Stiebel Eltron CNS U с 01.03.2010: !
!: Stiebel Eltron CNS U с 01.03.2010
HTV.JC
Z&eV.
qqqĪZ`.<é<`VHCĪHB
CZZŎe
ŗŌ
ZT
G
H<
!
Otras situaciones
Incendio
No tape el equipo
Eliminación del equipo
1.2.4 Caracteres del texto y formatos del presente manual
Lea atentamente el texto que aparece junto a este
símbolo.
»
Estos pasajes y el símbolo "
»
" avisan de que es necesario que
usted intervenga. Las actuaciones necesarias se describen paso
a paso.
— Los pasajes que presentan este símbolo "
–
" indican
enumeraciones.
1.2.5 Instrucciones en el equipo
No tape el equipo
1.2.6 Unidades de medida
Las dimensiones indicadas en el presente documento
están expresadas en mm. Las unidades de medida
distinta se indicarán por separado.
2. Seguridad
2.1
Utilización según lo previsto
El equipo sirve para calentar habitaciones domésticas.
Cualquier otro uso distinto al aquí previsto se considera un uso
indebido de la máquina. El obedecimiento de este manual se
considera también un uso previsto. Si se realizan modificaciones
o reequipamientos en el equipo, quedará invalidada cualquier
reclamación de garantía.
2.2
Indicaciones de seguridad
El equipo sólo debe utilizarse después de haber sido instalado
completamente y montados sus dispositivos de seguridad.
ADVERTENCIA Peligro de incendio
No ponga en funcionamiento el aparato ...
—
si las habitaciones corren peligro de incendio o
de explosión debido a la presencia de sustancias
químicas, gases o vapores.
—
si se encuentra colocado cerca de tuberías o
depósitos que contienen o conducen sustancias
inflamables o explosivas.
—
si en la habitación de almacenamiento se están
realizando trabajos de instalación, mecanizado o
sellado.
—
si se manipula gasolina, sprays, encáustico o
similares Procure proporcionar una ventilación
suficiente a la habitación antes de calentar.
—
si no se respetan las distancias mínimas con
respecto a otros objetos limítrofes como, por
ejemplo, muebes, cortinas y otros textiles u otros
materiales inflamables (las distancias mínimas
figuran en el capítulo Datos Técnicos).
—
si un componente del aparato presenta daños,
el aparato ha caído o una de las funciones no
funciona.
ADVERTENCIA Peligro de lesiones
Si operan el aparato personas con capacidades físicas,
sensoriales o mentales limitadas, asegúrese de que
sólo lo hacen bajo vigilancia o después de haber
recibido la instrucción correspondiente por una
persona responsable de su seguridad.
Mantenga a los niños vigilados para asegurarse de que
no jueguen con el aparato.
ADVERTENCIA Peligro de incendio
Evite la presencia de objetos combustibles, inflamables
o aislantes térmicos sobre el aparato o cerca de él, tales
como piezas de ropa, mantas, periódicos, depósitos
con encáusticos o gasolina, botes de spray o similares.
ADVERTENCIA Peligro de quemaduras
Las superficies de la carcasa del equipo y el aire
que sale de éste se calientan mucho durante el
funcionamiento (hasta superar los 80 °C).
HTV.JC
ZV.T.JC<Ue.TH
ŗÄ
CZZŎe
qqqĪZ`.<é<`VHCĪHB
PRECAUCIÓN Peligro de sobrecalentamiento
No tape el equipo.
No se suba al aparato.
Marcado CE
El marcado CE justifica que el aparato cumple todos los requisitos
básicos:
— Directiva sobre compatibilidad electromagnética
— Directiva de baja tensión
2.3
Sello de certificación
Véase placa de especificaciones técnicas.
La placa de especificaciones se encuentra en la parte exterior
derecha del aparato.
3. Descripción del equipo
Este equipo es un calentador directo electrónico sólo para montaje
mural.
El aparato es apto, por ejemplo, para su uso como calefacción
general o como calefacción de apoyo durante la estación de
transición para habitaciones pequeñas como, p.ej. la habitación
de bricolaje o el cuarto de invitados.
El aire del aparato se calienta mediante un cuerpo de calefactor
y sale por encima a través de la rejilla de salida de aire, sobre la
convección natural. El aire frío sale a través de las aberturas de
la parte inferior del equipo.
3.1 Serie
CNS-S
Después de fijarlo a la pared y de conectar el enchufe a la toma
de alimentación, el aparato ya está listo para el funcionamiento.
3.2 Serie
CNS-U
Después de fijarlo a la pared y de conectarlo a la red eléctrica fija
mediante una toma de conexión de equipo el aparato ya está listo
para el funcionamiento.
4. Uso
4.1
Descripción de la superficie de operación
»
Encienda el aparato mediante el interruptor de la parte derecha
del aparato.
»
Ajuste el selector de temperatura de forma continua
a la temperatura de la habitación deseada (los valores de
temperatura figuran en el capítulo Datos Técnico).
26
_0
7
_3
1
_0
037
En cuanto se alcanza la temperatura de la habitación ajustada,
ésta se mantiene constante a la temperatura ajustada mediante
una calefacción temporizada (la potencia de calefacción del
equipo debe coincidir como mínimo con la demanda de calor de
la habitación).
Si hay varios equipos en una habitación, el ajuste del selector de
temperatura es distinto en cada aparato.
Para evitar demasiado consumo de alimentación con las ventanas
abiertas debería apagar el aparato durante la ventilación.
4.2 Protección
antiescarcha
»
Ajuste el selector de temperatura hasta el tope derecho. En
esta posición, el regulador de temperatura encenderá la
calefacción automáticamente si la temperatura de la habitación
desciende por debajo de la temperatura de protección frente a
la congelación.
HTV.JC
<.BT.x©HCZVp.JCtBC`C.B.C`H
qqqĪZ`.<é<`VHCĪHB
CZZŎe
ŗĎ
ZT
G
H<
4.3
Límite del regulador de temperatura
Mediante los dos pasadores del panel trasero de la carcasa de
interruptores podrá fijar el regulador de temperatura en un ajuste
determinado o limitar el rango de ajuste de temperatura.
»
Extraiga los pasadores.
»
Para fijar la temperatura ajustada, inserte un pasador en el
orificio contrario (véase ilustración).
1
1
1
2
26
_0
7
_3
1
_0
03
8
1 Varilla
2 Selector de temperatura
»
Para limitar el rango de ajuste de temperatura debe ajustar un
valor mínimo y otro máximo mediante el selector de temperatura
e insertar el pasador en cada caso en el orificio opuesto algo
desviado.
2
6
_0
7
_3
1
_0
1
7
1
1
1
1
2
1 Varilla
2 Selector de temperatura
4.4
Puesta fuera de servicio
»
Ajuste el interruptor derecho del aparato en OFF.
5. Limpieza, conservación y
mantenimiento
Si se producen decoloraciones leves amarronadas en la carcasa del
equipo, límpielas de inmediato frotando con un trapo humedecido.
Limpie el aparato cuando esté frío utilizando limpiadores
habituales. Evite utilizar limpiadores agresivos.
PRECAUCIÓN Peligro de incendio
No rocíe spray limpiador a través de la ranura de
ventilación de aire.
Procure que no penetre humedad en el aparato.
Durante las tareas periódicas de mantenimiento recomendamos
revisar también los órganos de inspección y regulación. Como
muy tarde 10 años después de la primera puesta en marcha
deberá avisar al servicio técnico para que revise los dispositivos
de seguridad, control y regulación.
6. Localización de fallos (guía)
... el aparato no calienta:
Revise la temperatura ajustada en el aparato y el fusible de la
instalación doméstica.
El aparato dispone de un regulador de temperatura de seguridad
que se desconecta si el aparato se sobrecalienta. Tras reparar
la causa (p.ej. abertura de salida o de entrada de aire cubierta),
el aparato volverá a ponerse en marcha en unos pocos minutos
después de un intervalo de tiempo de enfriado.
Si no puede solucionar el fallo llame al instalador. Para que
podamos ayudarle con mayor rapidez y eficacia, comuníquenos
el número (Nº XXXXXX - XXXX - XXXXXX) de la placa de
especificaciones técnicas con:
Ôƃ
CZZŎe
qqqĪZ`.<é<`VHCĪHB
.CZ`<.JC
Z&eV.
7. Seguridad
La instalación, la puesta en marcha y el mantenimiento del aparato
deben ser realizados exclusivamente por un técnico autorizado.
7.1
Instrucciones generales de seguridad
Sólo garantizamos una funcionalidad y seguridad de
funcionamiento perfectas si se utilizan determinados accesorios
y piezas de repuesto originales para el aparato.
PELIGRO Electrocución
Coloque el aparato durante el montaje de pared de
forma que los dispositivos de conmutación y regulación
no puedan entrar en contacto con la persona que se
encuentre en la bañera o bajo la ducha.
Si utiliza el aparato como aparato de pie, no lo coloque
en el cuarto de baño ni en habitaciones similares
expuestas a la humedad o al aire libre.
!
PRECAUCIÓN
—
Coloque el aparato de pared sólo a una pared
vertical y resistente a temperaturas de 85 ºC como
mínimo.
—
Mantenga las distancias mínimas con respecto a
otros objetos limítrofes (las distancias mínimas
figuran en el capítulo Datos Técnicos).
—
No coloque el aparato inmediatamente debajo de
una toma de alimentación de pared.
—
Procure que el cable de alimentación no entre en
contacto con ninguna parte del aparato.
7.2
Directivas, normas y disposiciones
Tenga presentes todos los reglamentos y disposiciones
nacionales y regionales.
Tenga presente la normativa local en materia de
construcción de edificios y garajes.
8. Descripción del equipo
8.1
El suministro incluye los siguientes elementos
— Soporte de pared (enganchado al aparato)
9. Montaje
9.1
Montaje del soporte de pared
Puede utilizar el soporte de pared también como plantilla para
la fijación de pared, con lo que se aseguraría de mantener la
distancia adecuada con respecto al suelo.
»
Desenganche el soporte de pared.
»
Coloque el soporte de pared orientado hacia el punto central, en
posición horizontal con respecto al suelo y marque los orificios
punto 1 y 2.
»
Levante el soporte de pared de forma que los orificios inferiores
del soporte de pared coincidan con las marcas que acaba de
anotar en la pared de montaje.
»
Marque los orificios 3 y 4 en la pared de montaje.
DDD
2
6
_0
7
_3
1
_0
1
2
4
1
3
2
4
»
Taladre los cuatro orificios marcados. Fije el soporte de pared
utilizando los materiales adecuados (tornillos y tacos) en función
del tipo de pared. Puede nivelar los orificios de fijación con los
orificios elongados.
qqqĪZ`.<é<`VHCĪHB
CZZŎe
ÔĜ
ZT
G
H<
.CZ`<.JC
ZH<pC`VpV0Z
9.2
Montaje del equipo
»
Enganche el equipo mediante las ranuras de alojamiento del
panel trasero del mismo, insertándolo a las cuatro lengüetas
del soporte de pared al mismo tiempo.
»
Presione el aparato para bloquearlo.
»
Gire los pernos de cierre del soporte de pared a derechas hasta
el tope para que el dispositivo de fijación se bloquee.
»
Presione la tapa de seguridad sobre el perno de cierre para que
éste no pueda volver a girar.
2
6
_0
7
_3
1
_0
0
3
5
1
2
1 Pernos de cierre
2 Soporte de pared
2
6
_0
7
_3
1
_0
1
2
7
1
2
3
1 Aparato
2 Tapa de seguridad
3 Perno de cierre
9.3
Desmontaje del equipo
»
Suelte la tapa de seguridad del perno de cierre.
2
6
_0
7
_3
1
_0
1
2
8
1
2
3
1 Aparato
2 Tapa de seguridad
3 Perno de cierre
»
Suelte los pernos de cierre del soporte de pared.
»
Levante ligeramente el aparato y extráigalo tirando desde
delante del soporte de pared.
9.4 Conexión
eléctrica
»
El cliente debe procurar una sección recta suficiente del cable
de alimentación.
»
Instale una toma de alimentación a 10 cm mín. de distancia
lateral con respecto al aparato o bien una toma de conexión del
aparato para su conexión fija.
PELIGRO Electrocución
Realice los trabajos de conexión e instalación
eléctricos conforme a la normativa vigente.
PELIGRO Electrocución
El aparato debe poder desconectarse omnipolarmente
de la red eléctrica al menos durante un intervalo de
3 mm.
PELIGRO Electrocución
No está permitido realizar la instalación con un cable
de alimentación fijo.
Observe la placa de especificaciones técnicas. La
tensión indicada debe concordar con la tensión
eléctrica disponible.
10. Solventar averías
En caso de sustitución del cable de alimentación eléctrica, el
cambio solo puede ser realizado por un instalador profesional
con nuestros recambios originales.
11. Entrega del equipo a terceras
personas
Explique al usuario las funciones del equipo. Subraye la
importancia de las instrucciones de seguridad indicándoselas.
Entregue al usuario el manual de operación e instalación.
Ôŝ
CZZŎe
qqqĪZ`.<é<`VHCĪHB
.CZ`<.JC
`HZ`C.HZ
12. Datos técnicos
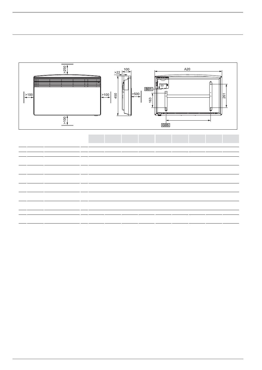
12.1 Dimensiones de variante colgada sobre pared
8
0
_0
7
_3
1
_000
9
CZ
ÑƃZŎe
CZ
ŌÑZŎe
CZ
ĜƃƃZŎe
CZ
ĜŝÑZŎe
CZ
ĜÑƃZŎe
CZ
ĜŌÑZŎe
CZ
ŝƃƃZŎe
CZ
ŝÑƃZŎe
CZ
ŗƃƃZŎe
A10 Equipo
Altura
mm
450
A20 Equipo
Anchura
mm
370
445
445
590
590
740
740
890
1040
A30 Equipo
Fondo
mm
100
A50
Equipo
Distancia mínima de
separación superior
mm
250
A51
Equipo
Distancia mínima de
separación inferior
mm
100
A52
Equipo
Distancia mínima de
separación derecha
mm
100
A53
Equipo
Distancia mínima de
separación izquierda
mm
100
A54
Equipo
Distancia mínima de
separación delante
mm
500
A55
Equipo
Distancia mínima de
separación detrás
mm
22
B01 Realización de conexiones eléctricas
G05 Soporte de
pared
Distancia entre orificios mm
121
195
195
343
343
491
491
639
787
qqqĪZ`.<é<`VHCĪHB
CZZŎe
Ôŗ
ZT
G
H<
.CZ`<.JC
`HZ`C.HZ
12.2 Tabla de especificaciones CNS S
CZÑƃZ CZŌÑZ CZĜƃƃZ CZĜŝÑZ CZĜÑƃZ CZĜŌÑZ CZŝƃƃZ CZŝÑƃZ CZŗƃƃZ
220716
220717
220718
220719
220720
220721
220722
220723
220724
Potencia de conexión
kW
0,5
0,75
1,0
1,25
1,5
1,75
2,0
2,5
3,0
Rango de ajuste
°C
6-30
6-30
6-30
6-30
6-30
6-30
6-30
6-30
6-30
Posición de protección
antiescarcha
°C
7
7
7
7
7
7
7
7
7
Conexionado eléctrico
1/N~230 V
1/N~230 V
1/N~230 V
1/N~230 V
1/N~230 V
1/N~230 V
1/N~230 V
1/N~230 V
1/N~230 V
Altura
mm
450
450
450
450
450
450
450
450
450
Anchura
mm
370
445
445
590
590
740
740
890
1040
Profundidad
mm
100
100
100
100
100
100
100
100
100
Peso
kg
3,8
4,4
4,4
5,7
5,7
6,8
6,8
8,1
9,4
Tipo de protección (IP)
IP24
IP24
IP24
IP24
IP24
IP24
IP24
IP24
IP24
Clase de protección
II
II
II
II
II
II
II
II
II
Color
blanco
alpino
blanco
alpino
blanco
alpino
blanco
alpino
blanco
alpino
blanco
alpino
blanco
alpino
blanco
alpino
blanco
alpino
12.3 Tabla de especificaciones CNS U
CZÑƃe CZŌÑe CZĜƃƃe CZĜŝÑe CZĜÑƃe CZĜŌÑe CZŝƃƃe CZŝÑƃe CZŗƃƃe
220725
220726
220727
220728
220729
220730
220731
220732
220733
Potencia de conexión
kW
0,5
0,75
1,0
1,25
1,5
1,75
2,0
2,5
3,0
Rango de ajuste
°C
6-30
6-30
6-30
6-30
6-30
6-30
6-30
6-30
6-30
Posición de protección
antiescarcha
°C
7
7
7
7
7
7
7
7
7
Conexionado eléctrico
1/N~230 V
1/N~230 V
1/N~230 V
1/N~230 V
1/N~230 V
1/N~230 V
1/N~230 V
1/N~230 V
1/N~230 V
Altura
mm
450
450
450
450
450
450
450
450
450
Anchura
mm
370
445
445
590
590
740
740
890
1040
Profundidad
mm
100
100
100
100
100
100
100
100
100
Peso
kg
3,3
4
4
5,2
5,2
6,3
6,3
7,7
8,9
Tipo de protección (IP)
IP24
IP24
IP24
IP24
IP24
IP24
IP24
IP24
IP24
Clase de protección
II
II
II
II
II
II
II
II
II
Color
blanco
alpino
blanco
alpino
blanco
alpino
blanco
alpino
blanco
alpino
blanco
alpino
blanco
alpino
blanco
alpino
blanco
alpino
ÔÔ
CZZŎe
qqqĪZ`.<é<`VHCĪHB
.C`VC.HC<
ZVp..H`C.Ht&VC`0éB.HB.C`tV.<8
!
!
qqqĪZ`.<é<`VHCĪHB
CZZŎe
ÔÑ
TH
<Z
:
.
ZT.Z`V[.HZAe&
qZ:xJq:.H&J<C
1. Wskazówki
ogólne
1.1
Informacje dotyczące niniejszego dokumentu
Rozdział
Obsługa
przeznaczony jest dla uży tkowników
i specjalistów.
Rozdział
Instalacja
przeznaczony jest wyłącznie dla specjalistów.
Przed przystąpieniem do obsługi urządzenia dokładnie
zapoznać się z niniejszą instrukcją i zachować
ją do późniejszego wykorzystania. W przypadku
przekazania produktu osobom trzecim niniejszą
instrukcję należy również dołączyć.
1.2 Objaśnienie
znaków
1.2.1 Struktura wskazówek dotyczących bezpieczeństwa
Wskazówki dotyczące bezpieczeństwa składają się z symbolu
ostrzegawczego, hasła ostrzegawczego oraz treści wskazówki.
Wskazówki dotyczące bezpieczeństwa podane są na szarym tle.
Przykład:
ZAGROŻENIE - porażenie prądem elektrycznym
W przypadku montażu na ścianie urządzenie
zamontować w taki sposób, aby mechanizmy
przełączające i regulacyjne nie były narażone na
dotknięcie przez osoby przebywające w wannie lub
w kabinie prysznicowej.
Ż
Ż
Ż
Ż
Ż
Ż
1
2
3
4
1 Symbol (patrz rozdział Symbole ostrzegawcze/symbole)
2 Hasło ostrzegawcze (patrz rozdział Hasła ostrzegawcze)
3 Opis (patrz rozdział Symbole ostrzegawcze/symbole)
4 Treść wskazówki
1.2.2 Hasła
ostrzegawcze
+ZAH
HZ`Vx&qx
xĉ|ſ¼ĉê¼
ZAGROŻENIE
Hasło ostrzegawcze ZAGROŻENIE oznacza wskazówki,
których nieprzestrzeganie prowadzi do ciężkich obrażeń
ciała lub śmierci.
OSTRZEŻENIE
Hasło ostrzegawcze OSTRZEŻENIE oznacza wskazówki,
których nieprzestrzeganie może prowadzić do ciężkich
obrażeń ciała lub śmierci.
OSTROŻNIE
Hasło ostrzegawcze OSTROŻNIE oznacza wskazówki,
których nieprzestrzeganie może prowadzić do średnich lub
lekkich obrażeń ciała.
1.2.3 Symbole
ostrzegawcze/symbole
ZźăĒù
ĒńŒļſ¼Ö|ŷſź
HĤêń
Obrażenia ciała
Porażenie prądem elektrycznym
Poparzenie
OBSŁUGA _______________________________________________ 45
1. Wskazówki
ogólne
____________________________________________ 45
1.1 Informacje dotyczące niniejszego dokumentu _______________ 45
1.2 Objaśnienie
znaków
_______________________________________________ 45
2. Bezpieczeństwo
_______________________________________________ 46
2.1 Użytkowanie zgodne z przeznaczeniem ______________________ 46
2.2 Wskazówki dotyczące bezpieczeństwa ________________________ 46
2.3 Znak
kontroli
_______________________________________________________ 47
3. Opis
urządzenia
_______________________________________________ 47
3.1 Typoszereg
CNS-S
_________________________________________________ 47
3.2 Typoszereg
CNS-U
_________________________________________________ 47
4. Obsługa
_______________________________________________________ 47
4.1 Opis panelu sterowania __________________________________________ 47
4.2 Ochrona przed mrozem __________________________________________ 47
4.3 Ograniczenie zakresu regulatora temperatury ______________ 47
4.4 Wyłączenie z ruchu _______________________________________________ 48
5.
Czyszczenie i konserwacja ___________________________________ 48
6.
Co robić, gdy ... _______________________________________________ 48
INSTALACJA ____________________________________________ 49
7. Bezpieczeństwo
_______________________________________________ 49
7.1 Ogólne wskazówki dotyczące bezpieczeństwa ______________ 49
7.2 Przepisy, normy i rozporządzenia ______________________________ 49
8. Opis
urządzenia
_______________________________________________ 49
8.1 Zakres
dostawy
____________________________________________________ 49
9. Montaż
_________________________________________________________ 49
9.1 Montaż uchwytu ściennego _____________________________________ 49
9.2 Montaż
urządzenia
________________________________________________ 50
9.3 Demontaż
urządzenia
____________________________________________ 50
9.4 Podłączenie
elektryczne
_________________________________________ 50
10. Usuwanie
usterek
____________________________________________ 50
11. Przekazanie
urządzenia
______________________________________ 50
12. Dane
techniczne_______________________________________________ 51
12.1 Wymiary wariantu ściennego ___________________________________ 51
12.2 Tabela danych CNS S ______________________________________________ 52
12.3 Tabela danych CNS U _____________________________________________ 52
SERWIS I GWARANCJA ________________________________ 53
ŚRODOWISKO I RECYKLING ___________________________ 53
HZAe&
xT.xDZ`qH
Ôō
CZZŎe
qqqĪZ`.<é<`VHCĪHB
!
Inne sytuacje
Pożar
Nie zakrywać urządzenia
Utylizacja urządzenia
1.2.4 Znaki w tekście i formatowanie tekstu w niniejszej
dokumentacji
Dokładnie przeczytać tekst znajdujący się obok tego
symbolu.
»
Fragmenty oznaczone symbolem „
»
” stanowią opis czynności
do wykonania. Wymagane czynności opisane są krok po kroku.
— Fragmenty oznaczone znakiem „
–
” stanowią wyliczenia.
1.2.5 Wskazówki na urządzeniu
Nie zakrywać urządzenia!
1.2.6 Jednostki
miar
Wymiary w tym dokumencie podane są w milimetrach.
Jeśli stosowane są inne jednostki, są one dodatkowo
podane.
2. Bezpieczeństwo
2.1
Użytkowanie zgodne z przeznaczeniem
Urządzenie służy do ogrzewania pomieszczeń mieszkalnych.
Inne zastosowanie lub użycie wykraczające poza obowiązujące
ustalenia traktowane jest jako niezgodne z przeznaczeniem.
Do użytkowania zgodnego z przeznaczeniem należy również
przestrzeganie niniejszej instrukcji. Modyfikacje i przebudowa
urządzenia powodują utratę gwarancji!
2.2
Wskazówki dotyczące bezpieczeństwa
Urządzenie uży tkować w yłącznie w stanie całkowicie
zmontowanym i ze wszystkimi urządzeniami zabezpieczającymi.
OSTRZEŻENIE – pożar
Nie korzystać z urządzenia ...
—
jeśli w pomieszczeniach zachodzi ryzyko pożaru
lub wybuchu wskutek obecności chemikaliów,
pyłów, gazów lub oparów.
—
w bezpośrednim pobliżu przewodów lub
pojemników, prowadzących lub zawierających
materiały łatwopalne albo wybuchowe.
—
jeśli w miejscu ustawienia urządzenia układane
są podłogi oraz odbywa się szlifowanie,
lakierowanie.
—
jeżeli wykonywane są czynności z użyciem
benzyny w aerozolu, wosku lub podobnych
substancji. Przed włączeniem ogrzewania
w wystarczającym stopniu przewietrzyć
pomieszczenie.
—
jeśli nie są zapewnione minimalne odstępy od
powierzchni sąsiednich obiektów, na przykład od
mebli, firanek, zasłon i materiałów tekstylnych lub
innych materiałów palnych (odstępy minimalne,
patrz rozdział Dane techniczne).
—
jeśli uszkodzony jest jakiś element urządzenia,
urządzenie upadło z wysokości lub stwierdzono
nieprawidłowość w jego działaniu.
OSTRZEŻENIE – obrażenia ciała
Jeżeli urządzenie będzie obsługiwane przez dzieci
lub osoby z ograniczonymi zdolnościami ruchowymi,
sensorycznymi lub z ograniczoną poczytalnością,
należy upewnić się, że będzie się to odbywać wyłącznie
pod nadzorem lub po odpowiednim przeszkoleniu
przez osobę odpowiedzialną za bezpieczeństwo.
Nadzorować dzieci, aby mieć pewność, że nie
wykorzystują one urządzenia do zabaw!
OSTRZEŻENIE – pożar
Na urządzeniu ani w jego bezpośrednim pobliżu nie
wolno kłaść żadnych przedmiotów ani materiałów
łatwopalnych lub hamujących ujście ciepła, takich jak
bielizna, koce, czasopisma, pojemniki z woskiem lub
benzyną, puszki aerozolu itp.
HZAe&
HT.ZeVxxC.
qqqĪZ`.<é<`VHCĪHB
CZZŎe
ÔŌ
TH
<Z
:
.
OSTRZEŻENIE – poparzenie
Powierzchnie obudowy urządzenia i wylatujące
powietrze rozgrzewają się podczas pracy do wysokich
temperatur (powyżej 80°C).
OSTROŻNIE – przegrzanie
Nie zakrywać urządzenia.
Nie wchodzić na urządzenie.
Oznaczenie CE
Oznaczenie CE zapewnia, że urządzenie spełnia wszystkie
podstawowe wymogi:
— Dyrektywy dotyczącej kompatybilności elektromagnetycznej,
— Dyrektywy niskonapięciowej.
2.3 Znak
kontroli
Patrz tabliczka znamionowa.
Tabliczka znamionowa znajduje się z prawej strony na zewnątrz
urządzenia.
3. Opis
urządzenia
Urządzenie to elektryczny ogrzewacz bezpośredni przeznaczony
wyłącznie do montażu na ścianie.
Urządzenie może być użytkowane np. jako ogrzewanie wyłączne
lub jako ogrzewanie przejściowe i uzupełniające w małych
pomieszczeniach, np. w gabinecie lub pokoju gościnnym.
Powietrze w urządzeniu jest nagrzewane przez grzałkę i wydostaje
się przez kratkę wylotu powietrza dzięki zjawisku konwekcji
naturalnej. Chłodne powietrze z otoczenia wpływa do urządzenia
przez otwory znajdujące się na spodzie.
3.1 Typoszereg
CNS-S
Urządzenie jest gotowe do pracy po zamontowaniu go na ścianie
i podłączeniu do instalacji elektrycznej za pomocą wtyczki
sieciowej.
3.2 Typoszereg
CNS-U
Urządzenie jest gotowe do pracy po zamontowaniu go na ścianie i
podłączeniu na stałe do instalacji elektrycznej za pomocą gniazda
przyłączeniowego.
4. Obsługa
4.1
Opis panelu sterowania
»
Włączyć urządzenie włącznikiem po prawej stronie urządzenia.
»
Ustawić płynnie żądaną temperaturę pomieszczenia za pomocą
pokrętła wyboru temperatury (wartości temperatury patrz
rozdział Dane techniczne).
26
_0
7
_3
1
_0
037
Po osiągnięciu nastawionej temperatury pomieszczenia
temperatura jest utrzymywana stale na żądanym poziomie
poprzez okresowe grzanie (moc grzewcza urządzenia musi przy
tym odpowiadać przynajmniej wymaganemu zapotrzebowaniu
pomieszczenia na ciepło).
Jeśli w jednym pomieszczeniu wykorzystywanych jest kilka
urządzeń, za pomocą pokrętła wyboru temperatury na każdym
urządzeniu można nastawić różną temperaturę.
Aby uniknąć zbyt dużego zużycia prądu przy otwartych oknach,
przed rozpoczęciem wietrzenia pomieszczenia należy wyłączyć
urządzenie.
4.2
Ochrona przed mrozem
»
Obrócić pokrętło wyboru temperatury do oporu w prawo. Przy
tym ustawieniu regulator temperatury automatycznie włącza
ogrzewanie, gdy temperatura w pomieszczeniu spadnie poniżej
temperatury zabezpieczającej przed zamarznięciem.
4.3
Ograniczenie zakresu regulatora temperatury
Za pomocą obu kołków znajdujących się z tyłu skrzynki
sterowniczej można na stałe ustawić regulator temperatury
w określonym położeniu lub ograniczyć zakres nastaw temperatury.
»
Wyłamać kołki.
»
Aby utrzymać ustawioną temperaturę na stałe, włożyć kołek w
otwór po przeciwnej stronie (patrz rysunek).
1
1
1
2
2
6
_0
7
_3
1
_0
0
3
8
1 Kołek
2 Pokrętło wyboru temperatury
»
Aby ograniczyć zakres nastaw temperatury, ustawić wartość
minimalną i maksymalną za pomocą pokrętła wyboru
temperatury i w obu przypadkach włożyć kołek w otwór po
przeciwnej stronie z niewielkim przesunięciem (patrz rysunek).
HZAe&
xtZxxC..:HCZVq8
ÔÄ
CZZŎe
qqqĪZ`.<é<`VHCĪHB
26
_0
7
_3
1
_0
1
7
1
1
1
1
2
1 Kołek
2 Pokrętło wyboru temperatury
4.4
Wyłączenie z ruchu
»
Ustawić włącznik z prawej strony urządzenia w położeniu WYŁ.
5. Czyszczenie i konserwacja
Jeżeli na obudowie urządzenia wystąpią lekkie przebarwienia
koloru brązowego, zetrzeć je możliwie najszybciej przy użyciu
wilgotnej szmatki. Urządzenie czyścić w stanie wychłodzonym przy
użyciu standardowych środków do czyszczenia. Unikać żrących
środków czyszczących o właściwościach ściernych.
OSTROŻNIE – pożar
Do otworu wentylacyjnego nie pryskać środka do
czyszczenia w aerozolu.
Uważać, aby do urządzenia nie przedostała się wilgoć.
Podczas regularnych konserwacji zaleca się również zlecenie
kontroli elementów kontrolnych i regulacyjnych. Najpóźniej
po upływie 10 lat od pierwszego uruchomienia należy zlecić
specjaliście kontrolę elementów bezpieczeństwa, kontrolnych
i regulacyjnych.
6. Co robić, gdy ...
... urządzenie nie grzeje:
Sprawdzić temperaturę ustawioną na urządzeniu oraz bezpiecznik
w instalacji domowej.
Urządzenie wyposażone jest w ochronny regulator temperatury,
który wyłącza urządzenie w razie przegrzania. Po usunięciu
przyczyny (np. zakryty otwór wylotu lub wlotu powietrza)
urządzenie włącza się ponownie po upływie kilku minut
potrzebnych na schłodzenie.
Jeśli nie można usunąć usterki, należy wezwać specjalistę.
W celu usprawnienia i skrócenia czasu udzielenia pomocy, podać
specjaliście numer (nr XXXXXX - XXXX - XXXXXX) z tabliczki
znamionowej:
qqqĪZ`.<é<`VHCĪHB
CZZŎe
ÔĎ
TH
<Z
:
.
.CZ`<8
xT.xDZ`qH
7. Bezpieczeństwo
Instalacja, pierwsze uruchomienie, jak również konserwacja
i naprawa urządzenia mogą być wykonane wyłącznie przez
specjalistę.
7.1
Ogólne wskazówki dotyczące bezpieczeństwa
Producent zapewnia prawidłowe działanie i bezpieczeństwo
pracy tylko w przypadku używania oryginalnych akcesoriów
przeznaczonych do tego urządzenia oraz oryginalnych części
zamiennych.
ZAGROŻENIE – porażenie prądem elektrycznym
W przypadku montażu na ścianie urządzenie
zamontować w taki sposób, aby mechanizmy
przełączające i regulacyjne nie były narażone na
dotknięcie przez osoby przebywające w wannie lub
w kabinie prysznicowej.
Jeśli urządzenie będzie wykorzystywane jako
urządzenie stojące, nie należy ustawiać go w łazienkach
lub podobnych, wilgotnych pomieszczeniach.
!
OSTROŻNIE
—
Urządzenie wiszące montować tylko na pionowej
ścianie odpornej na temperaturę co najmniej 80°C.
—
Zachować odstępy minimalne od powierzchni
sąsiednich obiektów (odstępny minimalne patrz
rozdział Dane techniczne).
—
Nie montować urządzenia bezpośrednio pod
ściennym gniazdkiem elektrycznym.
—
Zwrócić uwagę na to, aby kabel przyłączeniowy
nie stykał się z żadnymi elementami urządzenia.
7.2
Przepisy, normy i rozporządzenia
Należy przestrzegać wszystkich krajowych i lokalnych
przepisów oraz rozporządzeń.
Przestrzegać rozporządzeń budowlanych i przepisów
dotyczących budow y garażu obowiązujących
w danym kraju.
8. Opis
urządzenia
8.1 Zakres
dostawy
— Uchwyt ścienny (zawieszony na urządzeniu)
9. Montaż
9.1
Montaż uchwytu ściennego
Uchwyt ścienny można również wykorzystać jako szablon do
montażu ściennego. Pozwoli to zachować niezbędny odstęp od
podłogi.
»
Odczepić uchwyt ścienny.
»
Ustawić uchwyt ścienny poziomo na podłodze i zaznaczyć otwory
w punkcie 1 i 2.
»
Przesunąć uchwyt ścienny w górę, aby dolne otwory w uchwycie
pokrywały się z naniesionymi w linii prostej oznaczeniami na
ścianie montażowej.
»
Zaznaczyć otwory 3 i 4 na ścianie montażowej.
DDD
2
6
_0
7
_3
1
_0
1
2
4
1
3
2
4
»
Wywiercić otwory we wszystkich 4 oznaczonych punktach.
Zamontować uchwyt ścienny za pomocą odpowiednich
elementów (śruby, kołki), zależnie od rodzaju ściany. Pionowe
otwory wzdłużne pozwalają wyrównać różnice położenia
otworów mocujących.
Ñƃ
CZZŎe
qqqĪZ`.<é<`VHCĪHB
.CZ`<8
eZeqC.eZ`V:
9.2 Montaż
urządzenia
»
Zawiesić urządzenie na szczelinach montażowych znajdujących
się z tyłu urządzenia równocześnie na czterech zaczepach na
uchwycie ściennym.
»
Docisnąć urządzenie w celu zablokowania.
»
Obrócić trzpień zamykający uchwytu ściennego do oporu
zgodnie z kierunkiem ruchu wskazówek zegara, aby mocowanie
zablokowało się.
»
Założyć pokrywę ochronną na trzpień zamykający, tak aby go
zablokować i uniemożliwić obracanie.
26
_0
7
_3
1
_0
03
5
1
2
1 Trzpień zamykający
2 Uchwyt ścienny
2
6
_0
7
_3
1
_0
1
2
7
1
2
3
1 Urządzenie
2 Pokrywa ochronna
3 Trzpień zamykający
9.3 Demontaż
urządzenia
»
Zdjąć pokrywę ochronną z trzpienia zamykającego.
2
6
_0
7
_3
1
_0
1
2
8
1
2
3
1 Urządzenie
2 Pokrywa ochronna
3 Trzpień zamykający
»
Poluzować trzpień zamykający na uchwycie ściennym.
»
Unieść nieco urządzenie i zdjąć do przodu z uchwytu ściennego.
9.4 Podłączenie
elektryczne
»
Do obowiązków instalatora należy odpowiedni dobór przekroju
przewodu zasilającego.
»
Zwrócić uwagę, aby w odległości co najmniej 10 cm z boku
urządzenia było zainstalowane gniazdko sieciowe lub gniazdo
przyłączeniowe urządzenia do przyłączenia stałego.
ZAGROŻENIE – porażenie prądem elektrycznym!
Wszystkie elektr yczne prace przyłączeniowe
i instalacyjne wykonywać zgodnie z przepisami.
ZAGROŻENIE – porażenie prądem elektrycznym!
Urządzenie musi być oddzielone od sieci przez
wielobiegunowy odcinek rozdzielający o długości co
najmniej 3 mm.
ZAGROŻENIE – porażenie prądem elektrycznym!
Instalacja z przewodem podłączonym na stałe jest
niedopuszczalna.
Zwrócić uwagę na treść tabliczki znamionowej.
Podane napięcie musi być zgodne z napięciem
sieciowym.
10. Usuwanie usterek
Przewód sieciowy może być wymieniany wyłącznie przez
specjalistę na oryginalną część zamienną z naszego zakładu.
11. Przekazanie urządzenia
Objaśnić użytkownikowi sposób działania urządzenia. Zwrócić
jego uwagę szczególnie na wskazówki dotyczące bezpieczeństwa.
Przekazać instrukcję obsługi i instalacji.
qqqĪZ`.<é<`VHCĪHB
CZZŎe
ÑĜ
TH
<Z
:
.
.CZ`<8
C`+C.xC
12. Dane techniczne
12.1 Wymiary wariantu ściennego
8
0
_0
7
_3
1
_000
9
CZ
ÑƃZŎe
CZ
ŌÑZŎe
CZ
ĜƃƃZŎe
CZ
ĜŝÑZŎe
CZ
ĜÑƃZŎe
CZ
ĜŌÑZŎe
CZ
ŝƃƃZŎe
CZ
ŝÑƃZŎe
CZ
ŗƃƃZŎe
A10 Urządzenie
Wysokość
mm
450
A20 Urządzenie
Szerokość
mm
370
445
445
590
590
740
740
890
1040
A30 Urządzenie
Głębokość
mm
100
A50 Urządzenie
Min. odstęp u góry
mm
250
A51 Urządzenie
Min. odstęp na dole
mm
100
A52 Urządzenie
Min. odstęp z prawej strony mm
100
A53 Urządzenie
Min. odstęp z lewej strony
mm
100
A54 Urządzenie
Min. odstęp z przodu
mm
500
A55 Urządzenie
Min. odstęp z tyłu
mm
22
B01 Poprowadzenie przewodów elektrycznych
G05 Uchwyt ścienny Odległość między otworami mm
121
195
195
343
343
491
491
639
787
Ñŝ
CZZŎe
qqqĪZ`.<é<`VHCĪHB
.CZ`<8
C`+C.xC
12.2 Tabela danych CNS S
CZÑƃZ CZŌÑZ CZĜƃƃZ CZĜŝÑZ CZĜÑƃZ CZĜŌÑZ CZŝƃƃZ CZŝÑƃZ CZŗƃƃZ
220716
220717
220718
220719
220720
220721
220722
220723
220724
Anschlussleistung
kW
0,5
0,75
1,0
1,25
1,5
1,75
2,0
2,5
3,0
Einstellbereich
°C
6-30
6-30
6-30
6-30
6-30
6-30
6-30
6-30
6-30
Frostschutzstellung
°C
7
7
7
7
7
7
7
7
7
Elektroanschluss
1/N~230 V
1/N~230 V
1/N~230 V
1/N~230 V
1/N~230 V
1/N~230 V
1/N~230 V
1/N~230 V
1/N~230 V
Höhe
mm
450
450
450
450
450
450
450
450
450
Breite
mm
370
445
445
590
590
740
740
890
1040
Tiefe
mm
100
100
100
100
100
100
100
100
100
Gewicht
kg
3,8
4,4
4,4
5,7
5,7
6,8
6,8
8,1
9,4
Schutzart (IP)
IP24
IP24
IP24
IP24
IP24
IP24
IP24
IP24
IP24
Schutzklasse
II
II
II
II
II
II
II
II
II
Farbe
alpineweiß alpineweiß alpineweiß alpineweiß alpineweiß alpineweiß alpineweiß alpineweiß alpineweiß
12.3 Tabela danych CNS U
CZÑƃe CZŌÑe CZĜƃƃe CZĜŝÑe CZĜÑƃe CZĜŌÑe CZŝƃƃe CZŝÑƃe CZŗƃƃe
220725
220726
220727
220728
220729
220730
220731
220732
220733
Anschlussleistung
kW
0,5
0,75
1,0
1,25
1,5
1,75
2,0
2,5
3,0
Einstellbereich
°C
6-30
6-30
6-30
6-30
6-30
6-30
6-30
6-30
6-30
Frostschutzstellung
°C
7
7
7
7
7
7
7
7
7
Elektroanschluss
1/N~230 V
1/N~230 V
1/N~230 V
1/N~230 V
1/N~230 V
1/N~230 V
1/N~230 V
1/N~230 V
1/N~230 V
Höhe
mm
450
450
450
450
450
450
450
450
450
Breite
mm
370
445
445
590
590
740
740
890
1040
Tiefe
mm
100
100
100
100
100
100
100
100
100
Gewicht
kg
3,3
4
4
5,2
5,2
6,3
6,3
7,7
8,9
Schutzart (IP)
IP24
IP24
IP24
IP24
IP24
IP24
IP24
IP24
IP24
Schutzklasse
II
II
II
II
II
II
II
II
II
Farbe
alpineweiß alpineweiß alpineweiß alpineweiß alpineweiß alpineweiß alpineweiß alpineweiß alpineweiß
qqqĪZ`.<é<`VHCĪHB
CZZŎe
Ñŗ
TH
<Z
:
.
B."xtCVHHqt
ZVq.Z.&qVC8È[VHHq.Z:H.Vt:<.C&
$
# "
!
# "
" " ! "
!
"##
""#
!
#$"
$$
ÑÔ
CZZŎe
qqqĪZ`.<é<`VHCĪHB
HZ+HZ<e+
p\HCTH:tCt
1. Všeobecné
pokyny
1.1
Informace o dokumentu
Kapitola
Obsluha
je určena uživatelům a instalačním technikům.
Kapitola
Instalace
je určena instalačním technikům.
Dříve, než zahájíte provoz, si pozorně přečtěte tento
návod a pečlivě jej uschovejte. Případně předejte
návod dalšímu uživateli.
1.2 Legenda
k obrázkům
1.2.1 Struktura bezpečnostních pokynů
Bezpečnostní pokyny obsahují výstražný symbol, uvozující slovo
a text upozornění. Bezpečnostní pokyny jsou zobrazeny na šedém
pozadí.
Příklad:
NEBEZPEČÍ - elektrický proud
Instalujte přístroj na stěnu tak, aby se osoba ve
sprše nebo ve vaně nemohla dostat do kontaktu
se spínači a regulátory.
1
2
3
4
1 Symbol (viz kapitola Výstražné symboly/symboly)
2 Uvozující slovo (viz kapitola Uvozující slova)
3 Název (viz kapitola Výstražné symboly/symboly)
4 Text upozornění
1.2.2 Uvozující
slova
epHxe800
Z<HpH
pŻſĉ|ă
NEBEZPEČÍ
Uvozující slovo NEBEZPEČÍ označuje pokyny, jejichž
nedodržení má za následek vážné nebo smrtelné úrazy.
VÝSTRAHA
Uvozující slovo VÝSTRAHA označuje pokyny, jejichž
nedodržení může mít za následek vážné nebo smrtelné
úrazy.
POZOR
Uvozující slovo POZOR označuje pokyny, jejichž nedodržení
může mít za následek středně vážné nebo lehké úrazy.
1.2.3 Výstražné
symboly/symboly
pŻńŒļ|ƁĉŻ
ńźăĒù
C}ſ¼Ŷ
Úraz
Nebezpečí elektrického proudu
Popálení nebo opaření
!
Jiné situace
OBSLUHA _______________________________________________ 54
1. Všeobecné
pokyny
____________________________________________ 54
1.1 Informace o dokumentu __________________________________________ 54
1.2 Legenda
k obrázkům
______________________________________________ 54
2. Bezpečnost
____________________________________________________ 55
2.1 Používání k určenému účelu ____________________________________ 55
2.2 Bezpečnostní
pokyny
_____________________________________________ 55
2.3 Kontrolní
symbol
__________________________________________________ 56
3. Popis
přístroje
________________________________________________ 56
3.1 Typová řada CNS-S ________________________________________________ 56
3.2 Typová řada CNS-U ________________________________________________ 56
4. Obsluha
_______________________________________________________ 56
4.1 Popis ovládacího panelu _________________________________________ 56
4.2 Ochrana proti zamrznutí _________________________________________ 56
4.3 Vymezení poloh regulátoru teploty ____________________________ 56
4.4 Uvedení mimo provoz ____________________________________________ 57
5.
Čištění, péče a údržba ________________________________________ 57
6.
Co dělat, když ... ______________________________________________ 57
INSTALACE _____________________________________________ 58
7. Bezpečnost
____________________________________________________ 58
7.1 Všeobecné bezpečnostní pokyny _______________________________ 58
7.2 Předpisy, normy a ustanovení __________________________________ 58
8. Popis
přístroje
________________________________________________ 58
8.1 Rozsah
dodávky
____________________________________________________ 58
9. Montáž
_________________________________________________________ 58
9.1 Montáž nástěnného držáku _____________________________________ 58
9.2 Montáž
přístroje
___________________________________________________ 59
9.3 Demontáž
přístroje
________________________________________________ 59
9.4 Elektrická
přípojka
________________________________________________ 59
10. Odstranění
poruchy
__________________________________________ 59
11. Předání
přístroje
______________________________________________ 59
12. Technické
údaje
_______________________________________________ 60
12.1 Rozměry, nástěnný typ ___________________________________________ 60
12.2 Tabulka s údaji CNS S _____________________________________________ 60
12.3 Tabulka s údaji CNS U ____________________________________________ 60
ZÁKAZNICKÝ SERVIS A ZÁRUKA _____________________ 61
ŽIVOTNÍ PROSTŘEDÍ A RECYKLACE ___________________ 61
HZ<e+
xTCHZ`
qqqĪZ`.<é<`VHCĪHB
CZZŎe
ÑÑ
\`
.C
Požár
Nezakrývejte přístroj
Likvidace přístroje
1.2.4 Symboly v textu a formátování, použité v této
dokumentaci
Texty vedle tohoto symbolu si přečtěte velmi pozorně.
»
Tato sdělení a symbol „
»
“ upozorňují na nutnost provedení
určitých kroků. Potřebné úkony jsou popsány krok za krokem.
— Pasáže uvozené symbolem „
–
“ označují výčet.
1.2.5 Informace na přístroji
Přístroj nezakrývejte!
1.2.6 Rozměrové
jednotky
Rozměry v tomto dokumentu jsou uvedeny v mm.
Odlišné rozměrové jednotky jsou uvedeny zvlášť.
2. Bezpečnost
2.1
Používání k určenému účelu
Přístroj je určen k vytápění obytných místností.
Jiné použití nebo použití nad rámec daného rozsahu je považováno
za použití neodpovídající určenému účelu. K použití v souladu
s účelem patří také dodržování tohoto návodu. V případě provedení
změn nebo přestaveb tohoto přístroje zaniká jakákoliv záruka!
2.2 Bezpečnostní
pokyny
Používejte přístroj pouze v plně instalovaném stavu a se všemi
bezpečnostními zařízeními.
VÝSTRAHA - požár
Nepoužívejte přístroj ...
—
v místnostech s chemikáliemi, prachem, plyny
nebo výpary s hrozícím nebezpečím požáru nebo
exploze.
—
v bezprostřední blízkosti rozvodů nebo nádob,
které obsahují nebo rozvádějí hořlavé nebo
výbušné látky.
—
pokud se v místě instalace provádějí práce jako
pokládka, broušení, nátěry.
—
pokud se zde používá benzín, spreje, vosk na
parkety a podobně. Před zahájením topení
místnost dostatečně vyvětrejte.
—
pokud jsou skutečné vzdálenosti od ostatních
předmětů, jako je například nábytek, záclony,
závěsy a textilie nebo jiné hořlavé materiály, kratší
než stanovené minimální vzdálenosti (minimální
vzdálenosti viz kapitola Technické údaje).
—
pokud je některá část přístroje poškozena, přístroj
upadl nebo pokud je přístroj vadný.
VÝSTRAHA - úraz
Pokud budou přístroj obsluhovat děti nebo osoby
s omezenými tělesnými, motorickými nebo duševními
schopnostmi, musíte zajistit, aby byla obsluha
vždy provedena výhradně pod dohledem nebo po
příslušném zaškolení osobou, která je odpovědná za
bezpečnost těchto osob.
Děti musí být pod dohledem tak, aby si s přístrojem
nehrály!
VÝSTRAHA - požár
Na přístroj a do bezprostřední blízkosti přístroje
nesmíte ukládat žádné hořlavé, zápalné nebo tepelně
izolační materiály, jako jsou prádlo, oděvy, deky,
časopisy, nádoby s lešticím voskem nebo benzínem,
spreje apod.
VÝSTRAHA - popálení
Povrch tělesa přístroje a výstupní vzduch jsou za
provozu horké (více než 80 °C).
HZ<e+
THT.ZTX0Z`VH8
Ñō
CZZŎe
qqqĪZ`.<é<`VHCĪHB
OPATRNĚ - přehřívání
Nezakrývejte přístroj.
Nestoupejte na přístroj.
Označení CE
Označení CE dokládá, že přístroj splňuje všechny základní
předpoklady:
— Směrnice o elektromagnetické kompatibilitě
— Směrnice o elektrických zařízeních nízkého napětí
2.3 Kontrolní
symbol
Viz typový štítek.
Výkonový štítek je umístěn vpravo zvenčí na přístroji.
3. Popis
přístroje
Přístroj je elektrické přímotopné těleso určené výhradně k montáži
na stěnu.
Přístroj je vhodný například k vytápění koupelen nebo
k přechodnému a doplňkovému vytápění menších místností,
například menších dílen a pokojů pro hosty.
Vzduch je v přístroji zahříván topným tělesem a vystupuje ven
nahoře vzduchovou mřížkou na principu přirozené konvekce.
Studený vzduch proudí do přístroje otvory na jeho spodní straně.
3.1
Typová řada CNS-S
Po upevnění na stěnu a připojení k elektrické síti pomocí zástrčky
je přístroj připraven k použití.
3.2
Typová řada CNS-U
Po upevnění na stěnu a připojení k elektrické síti pomocí pevné
přípojky přístrojové zásuvky je přístroj připraven k použití.
4. Obsluha
4.1
Popis ovládacího panelu
»
Zapněte přístroj spínačem na pravé straně přístroje.
»
Plynule nastavte pomocí tlačítka k přepínání teploty požadovanou
teplotu v místnosti (teplota viz kapitola Technické údaje).
26
_0
7
_3
1
_0
037
Jakmile je dosaženo nastavené teploty v místnosti, je tato teplota
trvale udržována na nastavené úrovni občasným spínáním (topný
výkon přístroje přitom musí odpovídat potřebné spotřebě tepla
v místnosti).
Pokud je v jediné místnosti několik přístrojů, může být teplota
nastavená pomocí otočného regulátoru teploty na každém přístroji
jiná.
Z důvodu zabránění přílišné spotřeby proudu při otevřených
oknech musíte přístroj během větrání vypnout.
4.2
Ochrana proti zamrznutí
»
Přepněte otočný regulátor teploty doprava až na doraz. V této
poloze regulátor teploty automaticky zapne vytápění, pokud
teplota v místnosti klesne pod teplotu protizámrazové ochrany.
4.3
Vymezení poloh regulátoru teploty
Pomocí dvou kolíků, umístěných na zadní straně tělesa spínače
můžete fixovat regulátor teploty v určitém nastavení nebo můžete
vymezit rozsah nastavovaných teplot.
»
Vylomte kolíky.
»
K zafixování nastavené teploty nasaďte kolík do protilehlého
otvoru (viz obrázek).
1
1
1
2
2
6
_0
7
_3
1
_0
0
3
8
1 Kolík
2 Otočný regulátor teploty
HZ<e+
.\`C0©TfVz
qqqĪZ`.<é<`VHCĪHB
CZZŎe
ÑŌ
\`
.C
»
K vymezení rozsahu nastavovaných teplot nastavte na otočném
regulátoru teploty minimální a maximální hodnotu a nasaďte
vždy jeden kolík do protilelhlého, mírně přesazeného otvoru
(viz obrázek).
26
_0
7
_3
1
_0
1
7
1
1
1
1
2
1 Kolík
2 Otočný regulátor teploty
4.4
Uvedení mimo provoz
»
Přepněte přepínač vpravo na přístroji do polohy VYP.
5. Čištění, péče a údržba
Pokud se na tělese přístroje objeví mírně zahnědlé zbarvení, musíte
je pokud možno okamžitě setřít vlhkou utěrkou. Čistěte přístroj až
po vychladnutí běžnými čisticími prostředky. Nepoužívejte čisticí
písky a leptavé prostředky.
POZOR - požár
Nestříkejte do větracích otvorů čisticí spreje.
Pamatujte, že do přístroje nesmí vniknout žádná
vlhkost.
Při pravidelné údržbě doporučujeme provést také kontrolu
regulačních a kontrolních prvků. Nejpozději za 10 let po prvotním
uvedení do provozu musí specializovaný instalatér provést kontrolu
bezpečnostních, kontrolních a regulačních prvků.
6. Co dělat, když ...
... přístroj netopí:
Zkontrolujte nastavení teploty na přístroji a pojistky v domovní
instalaci.
Přístroj je vybaven bezpečnostním regulátorem teploty, který
v případě přehřátí vypne přístroj. Po odstranění příčin (například
zakryté vzduchové vstupní a výstupní otvory) se přístroj po
několikaminutovém krátkém vychladnutí opět zapne.
Pokud nelze závadu odstranit, kontaktujte instalatéra.
Z důvodu získání lepší a rychlejší pomoci si připravte číslo
(č. XXXXXX - XXXX - XXXXXX), které je uvedeno na typovém
štítku:
ÑÄ
CZZŎe
qqqĪZ`.<é<`VHCĪHB
.CZ`<
xTCHZ`
7. Bezpečnost
Instalaci, uvedení do provozu, údržbu a opravy přístroje smí
provádět pouze odborný pracovník.
7.1
Všeobecné bezpečnostní pokyny
Řádnou funkci a spolehlivý provoz můžeme zaručit pouze v případě
použití originálního příslušenství a originálních náhradních dílů,
stanovených pro tento přístroj.
NEBEZPEČÍ - elektrický proud
Instalujte přístroj na stěnu tak, aby se osoba ve sprše
nebo ve vaně nemohla dostat do kontaktu se spínači
a regulátory.
Pokud přístroj používáte jako samostatně stojící,
nepoužívejte jej v koupelně nebo v jiných vlhkých
místnostech, ani venku.
!
POZOR
—
Nástěnný přístroj smíte instalovat pouze na
kolmou stěnu, odolnou proti působení teploty
minimálně 85 °C.
—
Dodržujte minimální vzdálenosti od okolních
předmětů (minimální vzdálenosti viz kapitola
Technické údaje).
—
Neinstalujte přístroj přímo pod zásuvku.
—
Pamatujte, že se přívodní kabel nesmí dotýkat
žádných částí přístroje.
7.2
Předpisy, normy a ustanovení
Dbejte všech národních a místních předpisů a
ustanovení.
Dodržujte legislativu týkající se výstavby obytných
domů a garáží, platnou ve vaší zemi.
8. Popis
přístroje
8.1 Rozsah
dodávky
— Nástěnný držák (zavěšen na přístroji)
9. Montáž
9.1
Montáž nástěnného držáku
Nástěnný držák můžete použít i jako šablonu k upevnění ke stěně,
tím je zaručena potřebná vzdálenost od podlahy.
»
Sundejte nástěnný držák.
»
Položte nástěnný držák na zem tak, abyste dosáhli vodorovné
polohy a označte otvory k vyvrtání v bodech 1 a 2.
»
Zvedněte nástěnný držák do výšky tak, aby se spodní otvory
v držáku překrývaly s právě provedenými značkami na stěně.
»
Označte na stěnu otvory 3 a 4.
DDD
2
6
_0
7
_3
1
_0
1
2
4
1
3
2
4
»
Vyvrtejte ve všech 4 značkách otvory. Použijte k upevnění
nástěnného držáku vhodný materiál (šrouby, hmoždinky) podle
druhu zdi. Polohu můžete v případě nepřesně vyvrtaných otvorů
podle potřeby upravit podélnými otvory.
qqqĪZ`.<é<`VHCĪHB
CZZŎe
ÑĎ
\`
.C
.CZ`<
HZ`VCC0THVe+t
9.2 Montáž
přístroje
»
Zavěste přístroj pomocí nosných drážek na zadní straně současně
do všech čtyřech spon v nástěnném držáku.
»
Zatlačte na přístroj tak, aby došlo k aretaci.
»
Otočte uzávěr nástěnného držáku ve směru hodinových ručiček
až na doraz tak, aby došlo k zajištění spoje.
»
Zatlačte pojistné víčko na uzavírací šroub tak, aby se nemohl
povolit.
26
_0
7
_3
1
_0
03
5
1
2
1 Uzávěr
2 Nástěnný držák
2
6
_0
7
_3
1
_0
1
2
7
1
2
3
1 Přístroj
2 Pojistné víčko
3 Uzavírací šroub
9.3 Demontáž
přístroje
»
Uvolněte pojistné víčko od uzavíracího šroubu.
2
6
_0
7
_3
1
_0
1
2
8
1
2
3
1 Přístroj
2 Pojistné víčko
3 Uzavírací šroub
»
Uvolněte uzávěr na nástěnném držáku.
»
Mírně pozvedněte přístroj a sundejte jej směrem vpřed
z nástěnného držáku.
9.4 Elektrická
přípojka
»
V místě montáže dbejte na dostatečný průměr přívodního
kabelu.
»
Dbejte, aby byla ve vzdálenosti minimálně 10 cm od boční strany
přístroje instalována zásuvka nebo krabice k provedení pevné
přípojky přístroje.
NEBEZPEČÍ - úraz elektrickým proudem!
Veškerá elektrická zapojení a instalace provádějte
podle předpisů.
NEBEZPEČÍ - úraz elektrickým proudem!
Přístroj musí být možné odpojit na všech pólech na
vzdálenost minimálně 3 mm od sítě.
NEBEZPEČÍ - úraz elektrickým proudem!
Instalace pevným elektrickým vedením není přípustná.
Dodržujte údaje uvedené na typovém štítku. Uvedené
napětí se musí shodovat se síťovým napětím.
10. Odstranění poruchy
Při výměně napájecího kabelu používejte pouze originální
náhradní díly. Výměnu smí provádět pouze odborný pracovník.
11. Předání přístroje
Vysvětlete uživateli funkce přístroje. Upozorněte ho především
na bezpečnostní pokyny. Předejte uživateli návod k obsluze a
instalaci.
ōƃ
CZZŎe
qqqĪZ`.<é<`VHCĪHB
.CZ`<
`+C.:f8
12. Technické údaje
12.1 Rozměry, nástěnný typ
8
0
_0
7
_3
1
_000
9
CZ
ÑƃZŎe
CZ
ŌÑZŎe
CZ
ĜƃƃZŎe
CZ
ĜŝÑZŎe
CZ
ĜÑƃZŎe
CZ
ĜŌÑZŎe
CZ
ŝƃƃZŎe
CZ
ŝÑƃZŎe
CZ
ŗƃƃZŎe
A10 Přístroj
Výška
mm
450
A20 Přístroj
Šířka
mm
370
445
445
590
590
740
740
890
1040
A30 Přístroj
Hloubka
mm
100
A50 Přístroj
Minimální vzdálenost nahoře mm
250
A51
Přístroj
Minimální vzdálenost dole
mm
100
A52 Přístroj
Minimální vzdálenost vpravo mm
100
A53 Přístroj
Minimální vzdálenost vlevo
mm
100
A54 Přístroj
Minimální vzdálenost vpředu mm
500
A55 Přístroj
Minimální vzdálenost vzadu
mm
22
B01 Průchodka pro elektrické kabely
G05 Nástěnný
držák
Rozteč otvorů
mm
121
195
195
343
343
491
491
639
787
12.2 Tabulka s údaji CNS S
CZÑƃZ CZŌÑZ CZĜƃƃZ CZĜŝÑZ CZĜÑƃZ CZĜŌÑZ CZŝƃƃZ CZŝÑƃZ CZŗƃƃZ
220716
220717
220718
220719
220720
220721
220722
220723
220724
Příkon
kW
0,5
0,75
1,0
1,25
1,5
1,75
2,0
2,5
3,0
Rozsah nastavení
°C
6-30
6-30
6-30
6-30
6-30
6-30
6-30
6-30
6-30
Režim ochrany před mrazem
°C
7
7
7
7
7
7
7
7
7
Elektrické připojení
1/N~230 V
1/N~230 V
1/N~230 V
1/N~230 V
1/N~230 V
1/N~230 V
1/N~230 V
1/N~230 V
1/N~230 V
Výška
mm
450
450
450
450
450
450
450
450
450
Šířka
mm
370
445
445
590
590
740
740
890
1040
Hloubka
mm
100
100
100
100
100
100
100
100
100
Hmotnost
kg
3,8
4,4
4,4
5,7
5,7
6,8
6,8
8,1
9,4
Krytí (IP)
IP24
IP24
IP24
IP24
IP24
IP24
IP24
IP24
IP24
Krytí
II
II
II
II
II
II
II
II
II
Barva
Alpská bílá
Alpská bílá
Alpská bílá
Alpská bílá
Alpská bílá
Alpská bílá
Alpská bílá
Alpská bílá
Alpská bílá
12.3 Tabulka s údaji CNS U
CZÑƃe CZŌÑe CZĜƃƃe CZĜŝÑe CZĜÑƃe CZĜŌÑe CZŝƃƃe CZŝÑƃe CZŗƃƃe
220725
220726
220727
220728
220729
220730
220731
220732
220733
Příkon
kW
0,5
0,75
1,0
1,25
1,5
1,75
2,0
2,5
3,0
Rozsah nastavení
°C
6-30
6-30
6-30
6-30
6-30
6-30
6-30
6-30
6-30
Režim ochrany před mrazem
°C
7
7
7
7
7
7
7
7
7
Elektrické připojení
1/N~230 V
1/N~230 V
1/N~230 V
1/N~230 V
1/N~230 V
1/N~230 V
1/N~230 V
1/N~230 V
1/N~230 V
Výška
mm
450
450
450
450
450
450
450
450
450
Šířka
mm
370
445
445
590
590
740
740
890
1040
Hloubka
mm
100
100
100
100
100
100
100
100
100
Hmotnost
kg
3,3
4
4
5,2
5,2
6,3
6,3
7,7
8,9
Krytí (IP)
IP24
IP24
IP24
IP24
IP24
IP24
IP24
IP24
IP24
Krytí
II
II
II
II
II
II
II
II
II
Barva
Alpská bílá
Alpská bílá
Alpská bílá
Alpská bílá
Alpská bílá
Alpská bílá
Alpská bílá
Alpská bílá
Alpská bílá
qqqĪZ`.<é<`VHCĪHB
CZZŎe
ōĜ
\`
.C
.C`VC`.HC<
xVe:x:xC.:uZVp.Zéz.pH`C0TVHZ`X0Vt:<
*"$"$"'#
)$ $)$%#
$
!
" "
&!
!
! %$"
#"! $
"
!""""")('$
)$*&"$
)"$
ōŝ
CZZŎe
qqqĪZ`.<é<`VHCĪHB
СОДЕРЖАНИЕ | ЭКСПЛУАТАЦИЯ
ОБЩИЕ УКАЗАНИЯ
1. Об
щие указания
1.1 Сведения о руководстве
Глава
Эксплуатация
предназначена для пользователя
и специалистов.
Глава
Монтаж
предназначена для специалистов.
Перед началом эксплуатации внимательно
прочитайте данное руководство и сохраните
его. При необходимости передайте настоящее
руководство следующему
пользователю.
1.2 Значение
символов
1.2.1 Конструкция - указание по безопасности
Указания по безопасности включают в себя предупредительный
символ, сигнальное слово и текст указания. Указания по
безопасности приведены на сером фоне.
Пример:
ОПАСНОСТЬ поражения электрическим током
Установить прибор так, чтобы лица,
принимающие ванну или душ, не
могли дотронуться до коммутирующих
и регулирующих устройств.
ст
с
с
с
с
с
с
с
с
с
в.
1
2
3
4
1
Символ (см. главу «Предупредительные символы/символы»)
2
Сигнальное слово (см. главу «Сигнальные слова»)
3
Обозначение (см. главу «Предупредительные символы/
символы»)
4
Текст указания
1.2.2 Сигнальные слова
СИГНАЛЬНОЕ СЛОВО Значение
ОПАСНОСТЬ
Сигнальное слово ОПАСНОСТЬ обозначает указания,
несоблюдение которых приводит к тяжелым травмам
или смерти.
ПРЕДУПРЕЖДЕНИЕ
Сигнальное слово ПРЕДУПРЕЖДЕНИЕ обозначает
указания, при несоблюдении которых возможны
тяжелые травмы или смерть.
ОСТОРОЖНО
Сигнальное слово ОСТОРОЖНО обозначает указания,
при несоблюдении которых возможны легкие травмы
или травмы средней тяжести.
1.2.3 Предупредительные символы/символы
Предупредительный
символ
Обозначение
Травма
Поражение электрическим током
Ожог или ошпаривание
ЭКСПЛУАТАЦИЯ
1. Общие
указания
_______________________________ 62
1.1 Сведения о руководстве _________________________ 62
1.2 Значение
символов _____________________________ 62
2. Техника
безопасности __________________________ 63
2.1 Использование по назначению ___________________ 63
2.2 Указания по технике безопасности ________________ 63
2.3 Знак технического контроля _____________________ 64
3. Описание
прибора _____________________________64
3.1 Типовая
серия
CNS-S ____________________________ 64
3.2 Типовая серия CNS-U ____________________________ 64
4. Эксплуатация
_________________________________64
4.1 Описание панели управления ____________________ 64
4.2 Защита от замерзания ___________________________ 64
4.3 Ограничение регулятора температуры ____________ 64
4.4 Вывод из эксплуатации __________________________ 65
5. Чистка, уход и техническое обслуживание ________ 65
6. Что
делать,
если
...
_____________________________ 65
МОНТАЖ
7. Техника
безопасности __________________________66
7.1 Общие указания по технике безопасности _________ 66
7.2 Предписания, нормы и положения ________________ 66
8. Описание
прибора _____________________________66
8.1 Объем
поставки
________________________________ 66
9. Монтаж _______________________________________66
9.1 Монтаж с настенным кронштейном _______________ 66
10. Устранение неполадок _________________________ 67
11. Сдача-приемка прибора ________________________ 67
12. Технические характеристики
____________________68
12.1 Размеры настенных вариантов ___________________ 68
12.2 Таблица параметров CNS U _______________________ 68
СЛУЖБА ПО РАБОТЕ С КЛИЕНТАМИ И ГАРАНТИЯ
ЗАЩИТА ОКРУЖАЮЩЕЙ СРЕДЫ И УТИЛИЗАЦИЯ
ЭКСПЛУАТАЦИЯ
ТЕХНИКА БЕЗОПАСНОСТИ
qqqĪZ`.<é<`VHCĪHB
CZZŎe
ōŗ
РУ
СС
КИ
Й
!
Прочие ситуации
Пожар
Не накрывать прибор
Утилизация прибора
1.2.4 Текстовые символы и форматы в данной
документации
Внимательно читайте тексты рядом с этим
символом.
»
Предложения с символом «
»
» содержат описание
необходимых действий, выполняемых шаг за шагом.
—
Текст с данным символом «
–
» является перечислением.
1.2.5 Указания касательно прибора
Не накрывайте прибор!
1.2.6 Единицы измерения
Размеры в данном документе приведены в мм.
Другие единицы измерения соответственно
указываются дополнительно.
2. Те
хника безопасности
2.1 Использование по назначению
Прибор предназначен для обогрева жилых помещений.
Иное использование данного устройства не является
использованием по назначению. Использование по
назначению также подразумевает соблюдение положений
настоящего руководства. В случае изменения или
переоборудования устройства гарантийное обслуживание
не предоставляется!
2.2 Указания по технике безопасности
Используйте прибор только в полностью собранном виде
и с установленными защитными устройствами.
ПРЕДУПРЕЖДЕНИЕ о возгорании
Не используйте прибор ...
—
в помещениях, где из-за наличия химических
веществ, пыли, газов или паров есть
опасность воспламенения или взрыва;
—
в непосредственной близости от магистралей
или емкостей для транспортировки или
хранения горючих и взрывоопасных материалов;
—
если в помещении, где установлен прибор,
проводятся такие работы, как укладка,
шлифовка, герметизация;
—
если в помещении ведутся работы
с использованием бензина, спреев, мастик
для полов или аналогичных веществ. Хорошо
проветрить помещение перед нагревом;
—
при превышении минимальных расстояний
до поверхностей таких объектов, как,
например, мебель, занавески, шторы и ткани
или прочие воспламеняющиеся материалы
(минимальные расстояния описаны в главе
«Технические данные»);
—
при повреждении конструктивного элемента
прибора, падении прибора или нарушении
его работы.
ПРЕДУПРЕЖДЕНИЕ о травмах
Управление прибором детьми или лицами
с ограниченными физическими, сенсорными
и умственными способностями должно
происходить только под присмотром или после
соответствующего инструктажа, проведенного
лицом, отвечающим за их безопасность.
Не допускайте, чтобы дети баловались с прибором!
ПРЕДУПРЕЖДЕНИЕ о возгорании
З а п р е щ а е т с я р а з м е щ а т ь г о р ю ч и е ,
воспламеняющиеся или теплоизолирующие
предметы или материалы, как например, одежда,
одеяла, журналы, емкости с мастикой или
бензином, флаконы со спреем и т.п. на приборе
или в непосредственной близости от него.
ЭКСПЛУАТАЦИЯ
ОПИСАНИЕ ПРИБОРА
ōÔ
CZZŎe
qqqĪZ`.<é<`VHCĪHB
ПРЕДУПРЕЖДЕНИЕ об ожогах
Поверхности прибора и выходящий из него
воздух при работе нагреваются (выше 80 °C).
ОСТОРОЖНО - перегрев
Не накрывать прибор.
Не наступать прибор.
Знак CE
Знак CE свидетельствует, что прибор соответствует всем
основным требованиям:
—
Директива об электромагнитной совместимости
—
Директива ЕС по низковольтному оборудованию
2.3 Знак технического контроля
См. заводскую табличку.
Заводская табличка находится снаружи справа на приборе.
3. Оп
исание прибора
Прибор является электрическим обогревателем прямого
нагрева и предназначен только для настенной установки.
Прибор предназначен для полного обогрева или в качестве
установки для промежуточного или дополнительного
обогрева небольших помещений, например, любительских
мастерских и комнат для гостей.
Воздух в приборе нагревается за счет нагревательного
элемента и выпускается в процессе естественной конвекции
через выпускную решетку. Через расположенные в нижней
части прибора отверстия поступает прохладный воздух.
3.1 Типовая
серия
CNS-S
После закрепления на стене и подключения электрической
части с помощью сетевого штекерного разъема прибор готов
к работе.
3.2 Типовая
серия
CNS-U
После закрепления на стене и подключения электрической
части путем установления постоянного контакта через
специальную розетку прибор готов к работе.
4. Эк
сплуатация
4.1 Описание панели управления
»
Прибор включается с помощью выключателя с правой
стороны.
»
Установите нужную температуру помещения (ступенчато)
с помощью ручки переключения температуры (значения
температуры приведены в главе «Технические данные»).
26
_0
7_
31
_0
03
7
По достижении установленной температуры в помещении
она поддерживается на постоянном уровне благодаря
временному нагреву (мощность обогрева прибора при этом
должна соответствовать теплопотреблению помещения).
При наличии в помещении нескольких приборов положения
регуляторов температуры на каждом из них могут быть
различными.
Во избежание высокого потребления электроэнергии прибор
следует выключать на время проветривания.
4.2 Защита от замерзания
»
Перевести регулятор температуры в правое крайнее
положение. В таком положении терморегулятор
автоматически включает режим обогрева, если температура
в помещении падает ниже температуры для защиты от
замерзания.
4.3 Ограничение
регулятора
температуры
С помощью обоих стержней, расположенных на тыльной
стороне корпуса коммутационного аппарата, можно
зафиксировать положение регулятора температуры или
задать для температуры определенные пределы.
»
Стержни извлечь с усилием.
»
Для фиксации установленной температуры нужно вставить
один стержень в противоположное отверстие (см. рис.).
1
1
2
26
_0
7_
31
_0
03
8
1
Стержень
2
Регулятор температуры
»
Для установления границ температурного предела на ручке
регулятора температуры устанавливаются соответственно
минимальное и максимальное значение, а стержень
ЭКСПЛУАТАЦИЯ
ЧИСТКА, УХОД И ТЕХНИЧЕСКОЕ ОБСЛУЖИВАНИЕ
qqqĪZ`.<é<`VHCĪHB
CZZŎe
ōÑ
РУ
СС
КИ
Й
вставляется соответственно в противоположное отверстие
несколько дальше (см. рис.).
26
_0
7_
31
_0
17
1
1
1
2
1
Стержень
2
Регулятор температуры
4.4 Вывод
из
эксплуатации
»
Установить переключатель на приборе в положение
«выключено» (AUS).
5. Чи
стка, уход и техническое
обслуживание
В случае появления небольших коричневатых пятен, как
можно быстрее удалить их влажной салфеткой. Очищать
прибор в холодном состоянии с использованием обычных
средств по уходу. Не используйте абразивные и едкие
средства по уходу.
ОСТОРОЖНО - возможно возгорание
Не распылять чистящий спрей в пазы
выпускной решетки.
Не допускайте попадания влаги внутрь
прибора.
При регулярном уходе рекомендуется также проверять
органы управления и регулировки. Не позднее чем через 10
лет после первого ввода в эксплуатацию предохранительные
устройства, органы управления и регулировки должны быть
проверены специалистом.
6. Чт
о делать, если ...
... прибор не нагревается:
Проверить установленную температуру или предохранитель
домашней электросети.
В приборе установлен защитный регулятор температуры,
который отключает его при перегреве. После устранения
причины (например, перекрытия выпускного или впускного
отверстия) прибор опять начинает работать после периода
остывания в течение нескольких минут.
Если устранить неисправность самостоятельно не удается, то
нужно вызвать специалиста. Для оказания лучшей и быстрой
помощи сообщите ему номер устройства, указанный на
маркировочной табличке (№ XXXXXX-XXXX-XXXXXX):
ōō
CZZŎe
qqqĪZ`.<é<`VHCĪHB
МОНТАЖ
ТЕХНИКА БЕЗОПАСНОСТИ
7. Те
хника безопасности
Монтаж, ввод в эксплуатацию, а также техобслуживание
и ремонт прибора должны производиться только
квалифицированным специалистом.
7.1 Общие указания по технике безопасности
Мы гарантируем безупречную работу устройства
и безопасность эксплуатации только при использовании
оригинального дополнительного оборудования
и оригинальных запчастей.
ОПАСНОСТЬ поражения электрическим током
При монтаже на стене установить прибор так,
чтобы лица, принимающие ванну или душ,
не могли дотронуться до коммутирующих
и регулирующих устройств.
!
ОСТОРОЖНО
—
Устанавливайте настенный прибор только на
вертикальной стене с термостойкостью не
менее 85 °C.
—
Соблюдайте минимальные расстояния
до поверхностей соседних объектов
(минимальные расстояния описаны в главе
«Технические данные»).
—
Не устанавливайте прибор непосредственно
под настенной розеткой.
—
Не допускайте касания соединительным
проводом деталей прибора.
7.2 Предписания, нормы и положения
Необходимо соблюдать все национальные
и региональные предписания и постановления.
Следует соблюдать национальные строительные
предписания.
8. Оп
исание прибора
8.1 Объем
поставки
—
Настенный кронштейн (прикрепляется к прибору)
9. Мо
нтаж
9.1 Монтаж с настенным кронштейном
9.1.1 Монтаж настенного кронштейна
Настенный кронштейн также можно использовать
в качестве шаблона при креплении к стене - он обеспечивает
необходимую высоту над поверхностью пола.
»
Отцепить настенный кронштейн.
»
Установить настенный кронштейн, ориентированный
по центру, горизонтально на пол и разметить отверстия
в точках 1 и 2.
»
Поднять настенный кронштейн вверх настолько, чтобы
нижние отверстия в нем совпадали с разметками на стене,
предназначенной для монтажа.
»
Разметить отверстия 3 и 4 на стене, предназначенной для
монтажа.
DDD
26
_0
7_
31
_0
12
4
1
3
2
4
»
Просверлить отверстия во всех 4 намеченных точках.
Закрепить настенный кронштейн подходящим крепежным
материалом (винтами, дюбелями) с учетом особенностей
стены. Благодаря вертикальным продольным пазам можно
компенсировать погрешности сверлений.
qqqĪZ`.<é<`VHCĪHB
CZZŎe
ōŌ
РУ
СС
КИ
Й
МОНТАЖ
УСТРАНЕНИЕ НЕПОЛАДОК
9.1.2 Монтаж
прибора
»
Подвесить прибор, продев через приемные прорези
с тыльной стороны прибора одновременно все четыре
язычка настенного кронштейна.
»
Прижать прибор для фиксации.
»
Повернуть предохранительный штифт настенного
кронштейна по часовой стрелке до упора, в результате чего
произойдет фиксация крепления.
»
Прижать защитный колпачок к запирающему болту, чтобы
он больше не проворачивался обратно.
26
_0
7_
31
_0
03
5
1
2
1
Предохранительный штифт
2
Настенный кронштейн
26
_0
7_
31
_0
12
7
1
2
3
1 Прибор
2 Защитный колпачок
3 Запирающий болт
9.1.3 Демонтаж
прибора
»
Снять защитный колпачок с запирающего болта.
26
_0
7_
31
_0
12
8
1
2
3
1 Прибор
2 Защитный колпачок
3 Запирающий болт
»
Отвернуть предохранительный штифт на настенном
кронштейне.
»
Слегка приподнять прибор и снять его через перед
с настенного кронштейна.
9.1.4 Электроподключение
»
Со стороны заказчика должен быть обеспечен
соединительный провод с подходящим поперечным
сечением.
»
Необходимо позаботиться о том, чтобы сбоку на расстоянии
не менее 10 см от прибора была установлена обычная
розетка или штекерный разъем для стационарного
подсоединения прибора.
ОПАСНОСТЬ поражения электрическим током!
Все работы по установлению электрических
соединений и монтаж у необходимо
производить в соответствии с инструкцией.
ОПАСНОСТЬ поражения электрическим током!
Прибор должен расцепляться с сетью
с помощью разделяющего участка размером
не менее 3 мм на всех полюсах.
ОПАСНОСТЬ поражения электрическим током!
Монтаж со стационарно проложенным
соединительным проводом не допускается.
Следует учитывать данные на заводской
табличке. Напряжение сети должно совпадать
с указанным на табличке.
10. Ус
транение неполадок
При необходимости замены провода для подключения к сети
обращайтесь только к специалисту. Замена разрешена только с
использованием оригинальных деталей нашего производства.
11. Сд
ача-приемка прибора
Объясните пользователю функции прибора. Особо обратите
его внимание на указания по технике безопасности. Вручите
пользователю руководство по эксплуатации и монтажу.
ōÄ
CZZŎe
qqqĪZ`.<é<`VHCĪHB
МОНТАЖ
ТЕХНИЧЕСКИЕ ХАРАКТЕРИСТИКИ
12. Те
хнические характеристики
12.1 Размеры настенных вариантов
80_0
7_
31
_0
00
9
CNS 50 S
CNS 75 S CNS 100 S CNS 125 S CNS 150 S CNS 175 S CNS 200 S CNS 250 S CNS 300 S
A10 Устройство
Высота
mm
450
A20 Устройство
Ширина
mm
370
445
445
590
590
740
740
890
1040
A30 Устройство
Глубина
mm
100
A50 Устройство
Мин. отступ сверху
mm
250
A51 Устройство
Мин. отступ снизу
mm
100
A52 Устройство
Мин. отступ справа
mm
100
A53 Устройство
Мин. отступ слева
mm
100
A54 Устройство
Мин. отступ спереди
mm
500
A55 Устройство
Мин. отступ сзади
mm
22
B01 Все провода под напряжением имеют
проходной изолятор
G05 Настенное
крепление
Расстояние между
отверстиями
mm
121
195
195
343
343
491
491
639
787
Таблица параметров CNS S
CNS 50 S
CNS 75 S
CNS 100 S
CNS 125 S
CNS 150 S
CNS 175 S
CNS 200 S
CNS 250 S
CNS 300 S
220716
220717
220718
220719
220720
220721
220722
220723
220724
Присоединяемая мощность
кВт
0,5
0,75
1,0
1,25
1,5
1,75
2,0
2,5
3,0
Диапазон регулирования
°C
6-30
6-30
6-30
6-30
6-30
6-30
6-30
6-30
6-30
Режим защиты от замерзания
°C
7
7
7
7
7
7
7
7
7
Электрическое подсоединение
1/N~230 V 1/N~230 V 1/N~230 V 1/N~230 V 1/N~230 V 1/N~230 V 1/N~230 V 1/N~230 V 1/N~230 V
Высота
мм
450
450
450
450
450
450
450
450
450
Ширина
мм
370
445
445
590
590
740
740
890
1040
Глубина
мм
100
100
100
100
100
100
100
100
100
Вес
кг
3,8
4,4
4,4
5,7
5,7
6,8
6,8
8,1
9,4
Степень защиты (IP)
IP24
IP24
IP24
IP24
IP24
IP24
IP24
IP24
IP24
Класс защиты
II
II
II
II
II
II
II
II
II
Цвет
альпийский
белый
альпийский
белый
альпийский
белый
альпийский
белый
альпийский
белый
альпийский
белый
альпийский
белый
альпийский
белый
альпийский
белый
12.2 Таблица параметров CNS U
CNS 50 U
CNS 75 U CNS 100 U CNS 125 U CNS 150 U
CNS 175 U CNS 200 U CNS 250 U CNS 300 U
220725
220726
220727
220728
220729
220730
220731
220732
220733
Присоединяемая мощность
кВт
0,5
0,75
1,0
1,25
1,5
1,75
2,0
2,5
3,0
Диапазон регулирования
°C
6-30
6-30
6-30
6-30
6-30
6-30
6-30
6-30
6-30
Режим защиты от замерзания
°C
7
7
7
7
7
7
7
7
7
Электрическое подсоединение
1/N~230 V 1/N~230 V 1/N~230 V 1/N~230 V 1/N~230 V 1/N~230 V 1/N~230 V 1/N~230 V 1/N~230 V
Высота
мм
450
450
450
450
450
450
450
450
450
Ширина
мм
370
445
445
590
590
740
740
890
1040
Глубина
мм
100
100
100
100
100
100
100
100
100
Вес
кг
3,3
4
4
5,2
5,2
6,3
6,3
7,7
8,9
Степень защиты (IP)
IP24
IP24
IP24
IP24
IP24
IP24
IP24
IP24
IP24
Класс защиты
II
II
II
II
II
II
II
II
II
Цвет
альпийский
белый
альпийский
белый
альпийский
белый
альпийский
белый
альпийский
белый
альпийский
белый
альпийский
белый
альпийский
белый
альпийский
белый
qqqĪZ`.<é<`VHCĪHB
CZZŎe
ōĎ
РУ
СС
КИ
Й
ГЛОБАЛЬНО
СЛУЖБА ПО РАБОТЕ С КЛИЕНТАМИ И ГАРАНТИЯ - ЗАЩИТА ОКРУЖАЮЩЕЙ
СРЕДЫ И ВТОРИЧНАЯ ПЕРЕРАБОТКА
Гарантия
Условия и порядок гарантийного обслуживания
определяются отдельно для каждой страны
.
За
информацией о гарантии и гарантийном обслуживании
обратитесь пожалуйста в представительство
S
tiebel
E
ltron
в Вашей стране
.
!
Монтаж прибора
,
первый ввод в эксплуатацию
и обслуживание могут проводиться только
компетентным специалистом в соответствии с данной
инструкцией
.
!
Не принимаются претензии по неисправностям
,
возникшим вследствие неправильной
установки и эксплуатации прибора
.
Окружающая среда и вторсырьё
nàÕÖÔ×ÏÒÊÈÝÌÔ×ÔËÌÐרÊÏÇÊÎÈÞÏØÌÔ²Ö¿ÍÈãÞÌÐ
×ÖÌËàdàÉÖÈ×àÊÈÇ¿ÕȲÔʲ¿×ÔÉÑãËÈÐØÌÕÖÈÊÏÑÈ
ÕÌÖÌÖÈÉÔØ²Ï ÔØÚÔËÔÊ ¿×ØÈÓÔÊÑÌÓÓàÌ Ê ÊÈÝÌÐ
רÖÈÓÌ
Ōƃ
CZZŎe
qqqĪZ`.<é<`VHCĪHB
ДЛЯ ЗАМЕТОК
qqqĪZ`.<é<`VHCĪHB
CZZŎe
ŌĜ
РУ
СС
КИ
Й
ДЛЯ ЗАМЕТОК
%#$"
'(!!(&$#3A;0
43@27<53@'B@I+3:A
(3:I/F
7<4=AB7303:3:B@=</B
EEEAB7303:3:B@=</B
%
'(!!(&$#'>@: %D0/
JB=4D3:2I@==B785//@23<
(3:I/F
7<4=AB7303:3:B@=<03
EEEAB7303:3:B@=<03
)!%
'(!!(&$#A>=:A@=
M8V;I%@/6/'B=2V:9G
(3:I/F
7<4=AB7303:3:B@=<1H
EEEAB7303:3:B@=<1H
"
%((#&$! '
"/<2/:::RI"7223:4/@B
(3:I/F
7<4=>3BB7</@=:729
EEE>3BB7</@=:729
<A7<TT@7B=7;7AB=$::7<23@AA=<$G
3A9CA9/BCI"N<BAN:N
(3:I/F
7<4=AB7303:3:B@=<47
EEEAB7303:3:B@=<47
"
'(!!(&$#''
@C323A'3::73@A
%I"3BHR23F
(3:I/F
7<4=AB7303:3:B@=<4@
EEEAB7303:3:B@=<4@
"$"$
'(!!(&$#) !B2
)<7B'B/27C;=C@BI'B/27C;&=/2
@=;0=@=C56I+7@@/:I&%
(3:I/F
7<4=AB7303:3:B@=<1=C9
EEEAB7303:3:B@=<1=C9
%"(
'(!!(&$# 4B
%/1A7@B/;3HWCIC2/>3AB
(3:I/F
7<4=AB7303:3:B@=<6C
EEEAB7303:3:B@=<6C
!
#76=<'B7303:=!B2
0/@/0C7:27<5I/;/;/BAC16=
"7</B=9CI(=9G=
(3:I/F
7<4=<76=<AB7303:1=8>
$"#
'(!!(&$##323@:/<2*
/D7=BB3<E35
.A3@B=53<0=A16
(3:I/F
AB7303:AB7303:3:B@=<<:
EEEAB7303:3:B@=<<:
'(!!(&$#A>H==
C:<AB/:/B=@SEI+/@AH/E/
(3:I/F
AB7303:AB7303:3:B@=<1=;>:
EEEAB7303:3:B@=<1=;>:
%##
'(!!(&$#!!&)''
)@H6C;A9/G/AB@33BI"=A1=E
(3:I/F
7<4=AB7303:3:B@=<@C
EEEAB7303:3:B@=<@C
&
((&"(=6@73D/13D=2GA@=
:/D</I%=>@/2
(3:I/F
7<4=AB7303:3:B@=<A9
EEEAB7303:3:B@=<A9
'
'(#&,
*/A/5/B/<I(T@30=2/
'/:3A
(3:I7<4=AB7303:3:B@=<A3
(316<7?C3'3@D713
(3:I7<4=63/B316A3
EEEAB7303:3:B@=<A3
'$)"
'(!!(&$#
#3BH70=23<AB@1I%@/BB3:<
(3:I/F
7<4=AB7303:3:B@=<16
EEEAB7303:3:B@=<16
'(!!(&$#A7/!B2
"==(/;0=: :=<579
;>C@/<5>/<IGCBB6/G/
(3:I/F
7<4=AB7303:3:B@=</A7/1=;
EEEAB7303:3:B@=</A7/1=;
$$$# "
'(!!(&$#<1
+3AB'B@33BI+3AB/B473:2"
(3:I/F
7<4=AB7303:3:B@=<CA/1=;
EEEAB7303:3:B@=<CA/1=;
%$#
'(!!(&$#;0=
@'B7303:'B@/K3I=:H;7<23<
(3:I/F
7<4=AB7303:3:B@=<23
EEEAB7303:3:B@=<23
"%
(3:I/FI7<4=13<B3@AB7303:3:B@=<23
%#$
(3:I/FI9C<23<273<ABAB7303:3:B@=<23
(3:
"#$)$&"%(3:I/FI3@A/BHB37:3AB7303:3:B@=<23
(3:
"$"#)$" (3:I/F
X ;7<037<@C43</CA23;23CBA163<3AB<3BH
"/F7;/:X ;7<037<@C43</CA"=07:4C<9<3BH3<
@@BC;C<2B316<7A163L<23@C<53<D=@036/:B3<I'C0831BB=3@@=@A/<2B316<71/:16/<53AI'=CA@RA3@D3
2.3@@3C@A3B23;=27471/B7=<AB316<7?C3AI$<23@D==@036=C2D/<D3@57AA7<53<3<B316<7A163E78H757<53<
I'/:D=3@@=@=;=27471/17S<BR1<71/I&NBBB7::;7AAB/5=16B39<7A9/N<2@7<5/@4T@036O::AIF13>B=3@@=
=C/:B3@/QP=BR1<71/I-/AB@H3Y=<3H;7/<GB316<71H<373E3<BC/:<30Z2GI$;G:G/B316<719RH;[<G8A=C
DG6@/H3<GI;CAH/97DM:B=HB/BMA=9RABRD32RA398=5MB43<<B/@B8C9I
ȼɨɡɦɨԒɧɨɫɬɶɧɟɬɨɱɧɨɫɬɟɣɢ
ɬɟɯɧɢɱɟɫɤɢɯɢɡɦɟɧɟɧɢɣɧɟɢɫɤɥɸɱɚɟɬɫɹ
I6G0G/B316<719RH;3<GAUDG6@/23<R 'B/<2
A 265848-36035-8627

