Stiebel Eltron SBP E 08.06.2009 - 30.09.2012 – страница 3
Инструкция к Насосу Stiebel Eltron SBP E 08.06.2009 - 30.09.2012

6.4 Varianty montáže
Montáž tělesa BGC u zásobníku SBP 700 E | SBP 700 E SOL
6.4.1 Montáž přídavných ochranných trubek čidel
U zásobníku SBP 700 existuje možnost namontovat další jímky
čidla. Jestliže chcete tuto možnost využít, postupujte následujícím
způsobem:
Všimněte si značek nahoře a dole na „zakrytování zásobníku.
Nasaďte na zakrytování zásobníku na požadované značce pilu
děrovku (doporučený průměr pily 70 mm).
Vyvrtejte opatrně otvor zakrytováním zásobníku v tepelné
izolaci. Hloubka vrtání je omezena hrdlem, vyčnívajícím do
tepelné izolace.
Odstraňte zbývající tepelnou izolaci okolo hrdla.
Odšroubujte uzavírací krytku, namontujte jímku čidla.
6.4.2 Montáž šroubovacího topného tělesa BGC
Šroubovací topné těleso slouží k elektrickému dohřevu zásobníku.
- U zásobníků SBP 200 | 400 můžete šroubovací topné těleso
namontovat buď vpravo nebo vlevo.
- U zásobníku SBP 700 můžete namontovat jedno nebo dvě
šroubovací topná tělesa.
Odstraňte krytku na připojovacím hrdlu.
Vyšroubujte uzavírací zátku s použitím nástrčného klíče DN
32.
Montáž tělesa BGC u zásobníku SBP E | SBP E cool
26�03�01�0227
Česky
7. Uvedení do provozu
7.1 První uvedení do provozu
Přístroj smí poprvé uvést do provozu výhradně oprávněný odborný
technik.
Přístroj naplňte a odvzdušněte.
Zkontrolujte funkci zvláštního příslušenství podle návo-
dů k obsluze a k instalaci, které jsou dodány společně s
přístrojem!
Zkontrolujte funkci pojistného ventilu, který je stávající sou-
částí instalace uživatele.
26�03�01�0228
7.2 Odstavení z provozu
Pokud není topná soustava v provozu a místo pro instalaci není
chráněné proti působení mrazu, musíte přístroj a s ním spojené
zařízení vyprázdnit. To platí tehdy, když je nutno uvažovat s ne-
bezpečím mrazu.
8. Údržba
Přístroj nevyžaduje žádnou zvláštní údržbu. Postačuje pravidelná
vizuální kontrola.

9. Technické údaje
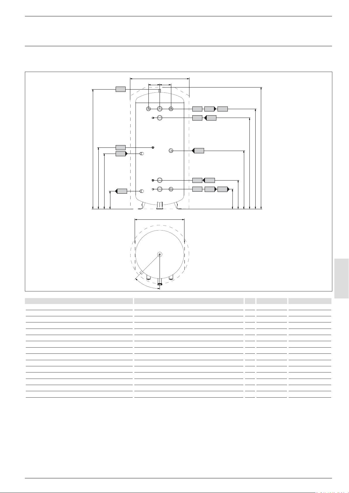
9.1 Rozměry a přípojky
SBP 200 E | SBP 200 E cool
1535
1310
1240
1170
370
370
200
230
630
1240
SBP 400 E | SBP 400 E cool
d46
e01
i07
i07
d01
1710
1455
1390
1315
390
390
200
250
h02
e02
d02
c01
15-28
20°
D0000017408
d01 Tep.čerp.vstup.strana Vnější závit G 2 A G 2 A
d02 Tep.čerp.vratný tok Vnější závit G 2 A G 2 A
d46 Odvzdušnění Vnitřní závit G 3/4 G 3/4
e01 Topení vstup.strana Vnější závit G 2 A G 2 A
e02 Topení vratný tok Vnější závit G 2 A G 2 A
h02 Čidlo tep.čerp.vrat.tok Průměr mm 9,5 9,5
i07 Elektrické nouzové/
Vnitřní závit G 1 1/2 G 1 1/2
přídavné topení
i11 Elektr. nouz./přídavné
Vnitřní závit G 1 1/2 G 1 1/2
topení přísl.
750
1240
d46
e01
i07
i07
d01
h02
e02
d02
c01
15-28
20°
D0000017410
d01 Tep.čerp.vstup.strana Vnější závit G 2 A G 2 A
d02 Tep.čerp.vratný tok Vnější závit G 2 A G 2 A
d46 Odvzdušnění Vnitřní závit G 3/4 G 3/4
e01 Topení vstup.strana Vnější závit G 2 A G 2 A
e02 Topení vratný tok Vnější závit G 2 A G 2 A
h02 Čidlo tep.čerp.vrat.tok Průměr mm 9,5 9,5
i07 Elektrické nouzové/
Vnitřní závit G 1 1/2 G 1 1/2
přídavné topení
i11 Elektr. nouz./přídavné
Vnitřní závit G 1 1/2 G 1 1/2
topení přísl.

SBP 700 E | SBP 700 E SOL
1890
1555
1415
955
862
905
445
277
Česky
1855
910
175 175
d46
i07 i07
e01
h23
d01
h23
d35
d25
h02
e02
h28
d02
d36
d26
305
770
45°
D0000017412
a23 Přístroj Šířka bez bočních tep. izol. segmentů mm 770 770
d01 Tep.čerp.vstup.strana Vnější závit G 2 A G 2 A
d02 Tep.čerp.vratný tok Vnější závit G 2 A G 2 A
d25 Solar vst.strana Vnitřní závit G 1
d26 Solar.vratný tok Vnitřní závit G 1
d35 Zdroj tepla vstup.strana vol. Vnitřní závit G 1 1/2 G 1 1/2
d36 Zdroj tepla vrat.tok vol. Vnitřní závit G 1 1/2 G 1 1/2
d46 Odvzdušnění Vnitřní závit G 3/4 G 3/4
e01 Topení vstup.strana Vnější závit G 2 A G 2 A
e02 Topení vratný tok Vnější závit G 2 A G 2 A
h02 Čidlo tep.čerp.vrat.tok Vnější závit G 1/2 A G 1/2 A
h23 Čidlo generátor tepla vol. Vnější závit G 1/2 A G 1/2 A
h28 Čidlo solární zásobník Vnější závit G 1/2 A
i07 Elektrické nouzové/přídavné topení Vnitřní závit G 1 1/2 G 1 1/2
i11 Elektr. nouz./přídavné topení přísl. Vnitřní závit G 1 1/2 G 1 1/2

9.2 Tabulka údajů
185458 227590 220824 227591 185459 185460
Údaje o hydraulickém systému
Jmenovitý objem l 200 200 400 400 700 700
Objem - výměník dole l 12,2
Plocha - výměník dole m² 2
Tlakové ztráty při 1,0m³/h - tepelný výměník dole hPa 28
Meze použitelnosti
Max. dovolený tlak MPa 0,3 0,3 0,3 0,3 0,3 0,3
Zkušební tlak MPa 0,45 0,45 0,45 0,45 0,45 0,45
Maximální dovolená teplota °C 95 95 95 95 95 95
Max. doporučená aperturní plocha kolektoru m² 14
Energetické údaje
Pohotovostní spotřeba energie / 24 h při 65 °C kWh 1,5 1,1 2 1,6 2,2 2,7
Rozměry
Výška mm 1535 1535 1710 1710 1890 1890
Průměr mm 630 630 750 750 910 910
Rozměr na výšku mm 1650 1650 1800 1800 2000 2000
Hmotnosti
Hmotnost plná kg 256 258 479 481 885 902
Hmotnost prázdná kg 56 58 79 81 185 216
Záruka
Pro přístroje nabyté mimo území Německa neplatí záruční
podmínky poskytované našimi rmami vNěmecku. Vzemích,
ve kterých některá znašich dceřiných společností distribuuje
naše výrobky, poskytuje záruku jenom tato dceřiná společnost.
Takovou záruku lze poskytnout pouze tehdy, pokud dceřiná
společnost vydala vlastní záruční podmínky. Jinak nelze záruku
poskytnout.
Na přístroje zakoupené vzemích, ve kterých nejsou naše vý-
robky distribuovány žádnou zdceřiných společností, nepo-
skytujeme žádnou záruku. Případné záruky závazně přislíbené
dovozcem zůstávají proto nedotčené.
Životní prostředí a recyklace
Pomozte nám chránit naše životní prostředí. Materiály po pou-
žití zlikvidujte v souladu s platnými národními předpisy.

|
1. __________________________ 45
1.1 ____________ 45
1.2 ___ 46
1.3 ________________________ 46
1.
2. _____________________ 46
«»
2.1 _______________ 46
.
2.2 ____________ 46
«» .
3. . _____________________ 46
3.1 ___________ 46
Указание
.
4. _____________________ 47
-
.
5. . _____________________ 47
5.1 _________________________ 47
5.2 _______________ 47
1.1
6. __________________________________ 47
1.1.1
6.1 ____________________________ 47
6.2 __________________________ 47
СИГНАЛЬНОЕ СЛОВО Вид опасности
6.3 _________________________________ 47
!
Здесь приведены возможные последствия не-
6.4 _________________________ 48
соблюдения указания по технике безопасности.
Здесь приведены мероприятия по предот-
7. ______________________ 48
вращению опасности.
7.1 ________________ 48
7.2 ______________________ 48
1.1.2 ,
8. _________________________ 48
9. ______________ 49
9.1 ______________________ 49
!
9.2 ________________________ 51
1.1.3
, -
.
-
,
.
,
.
www.stiebel-eltron.com SBP E | SBP E SOL | SBP E cool | 45

1.2
2.2
-
:
Указание
.
.
-
-
.
.
-
-
.
!
( , ,
)
ОСТОРОЖНО травма
!
-
-
(, ,
, ). !
. -
.
3. .
1.3
3.1
Указание
-
3.1.1
.
- -
, -
2.
.
-
2.1
.
—
.
3.1.2 SBP 200 E | SBP 400 E | SBP 200 E cool |
SBP 200 E cool, SBP 400 E cool, SBP 700 E
SBP 400 E cool
SBP 700 E SOL
, + 7 °C.
-
-
BGC.
;
3.1.3 SBP 200 E cool | SBP 400 E cool |
.
SBP 700 E | SBP 700 ESol
-
. -
.
.
- -
3.1.4 SBP 700 E
!
BGC.
.
3.1.5 SBP 700 E SOL
SBP 700 SOL -
.
46 | SBP E | SBP E SOL | SBP E cool www.stiebel-eltron.com

6.2
Материальный ущерб
!
-
.
4.
, -
6.2.1
, .
.
-
-
1
.
5. .
2
5.1
,
:
3
-
C26_03_01_0907
- ( SBP 200 E | SBP 400 E).
1
5.2
2
3
,
BGC 075115
.
WPKI 5 220830
WPKI 6 220831
6.2.2 SBP 700 E,
SBP 700 E SOL
6.
. -
.
6.1
, .
, -
(. -
).
(.
« »).
26_03_01_0229
-
,
.
6.3
6.3.1 SBP 200 | SBP 400
.
( SBPEcool
.)
-
, .
6.3.2 SBP 700
.
.
www.stiebel-eltron.com SBP E | SBP E SOL | SBP E cool | 47

6.4
BGC SBP 700 E |
SBP 700 E SOL
6.4.1
SBP 700 -
. -
:
.
-
(-
Ø 70 ).
-
. -
, .
.
,
.
6.4.2
BGC
-
.
- SBP 200 | 400 -
.
- SBP 700
.
.
-
32.
26_03_01_0227
BGC SBP E |
SBP E cool
7.
7.1
!
.
!
, .
7.2
, -
, -
, .
8.
26_03_01_0228
-
. -
.
48 | SBP E | SBP E SOL | SBP E cool www.stiebel-eltron.com

9.
9.1
SBP 200 E | SBP 200 E cool
1535
1310
1240
1170
370
370
200
230
www.stiebel-eltron.com SBP E | SBP E SOL | SBP E cool | 49
630
1240
SBP 400 E | SBP 400 E cool
d46
e01
i07
i07
d01
1710
1455
1390
1315
390
390
200
250
h02
e02
d02
c01
15-28
20°
D0000017408
SBP 200 E SBP 200 E
cool
d01
G 2 A G 2 A
d02
G 2 A G 2 A
d46
G 3/4 G 3/4
e01 -
G 2 A G 2 A
e02 -
G 2 A G 2 A
h02 -
9,5 9,5
i07 . /
G 1 1/2 G 1 1/2
.
i11 . ./
G 1 1/2 G 1 1/2
. -, .
750
1240
d46
e01
i07
i07
d01
h02
e02
d02
c01
15-28
20°
D0000017410
SBP 400 E SBP 400 E
cool
d01
G 2 A G 2 A
d02
G 2 A G 2 A
d46
G 3/4 G 3/4
e01 -
G 2 A G 2 A
e02 -
G 2 A G 2 A
h02 -
9,5 9,5
i07 . /
G 1 1/2 G 1 1/2
.
i11 . ./
G 1 1/2 G 1 1/2
. -, .

SBP 700 E | SBP 700 E SOL
1890
1555
1415
955
862
905
445
277
50 | SBP E | SBP E SOL | SBP E cool www.stiebel-eltron.com
1855
910
175 175
d46
i07 i07
e01
h23
d01
h23
d35
d25
h02
e02
h28
d02
d36
d26
305
770
45°
D0000017412
SBP 700 E SBP 700 E SOL
a23 . . 770 770
d01 G 2 A G 2 A
d02 G 2 A G 2 A
d25 . G 1
d26 . G 1
d35 - - G 1 1/2 G 1 1/2
d36 - ., . G 1 1/2 G 1 1/2
d46 G 3/4 G 3/4
e01 - G 2 A G 2 A
e02 - G 2 A G 2 A
h02 - G 1/2 A G 1/2 A
h23 - G 1/2 A G 1/2 A
h28 G 1/2 A
i07 . /. G 1 1/2 G 1 1/2
i11 . ./. -, . G 1 1/2 G 1 1/2

INSTALLATION | GARANTIE | UMWELT UND RECYCLING
9.2
SBP 200 E SBP 200 E cool SBP 400 E SBP 400 E cool SBP 700 E SBP 700 E SOL
185458 227590 220824 227591 185459 185460
l 200 200 400 400 700 700
. l 12,2
. ² 2
1,0 ³/ . 28
. 0,3 0,3 0,3 0,3 0,3 0,3
0,45 0,45 0,45 0,45 0,45 0,45
. °C 95 95 95 95 95 95
.
² 14
/24
1,5 1,1 2 1,6 2,2 2,7
65 °C
1535 1535 1710 1710 1890 1890
630 630 750 750 910 910
1650 1650 1800 1800 2000 2000
256 258 479 481 885 902
56 58 79 81 185 216
Гарантия
Приборы, приобретенные за пределами Германии, не под-
падают под условия гарантии немецких компаний. К тому
же в странах, где продажу нашей продукции осуществляет
одна из наших дочерних компаний, гарантия предоставля-
ется исключительно этой дочерней компанией. Такая га-
рантия предоставляется только в случае, если дочерней
компанией изданы собственные условия гарантии. За пре-
делами этих условий никакая гарантия не предоставляется.
На приборы, приобретенные в странах, где ни одна из
наших дочерних компаний не осуществляет продажу
нашей продукции, никакие гарантии не распространяют-
ся. Это не затрагивает гарантий, которые могут предостав-
ляться импортером.
Защита окружающей среды и
утилизация
Внесите свой вклад в охрану окружающей среды. Утили-
зацию использованных материалов следует производить
в соответствии с национальными нормами.
www.stiebel-eltron.com SBP E | SBP E SOL | SBP E cool | 51

Deutschland
Verkauf Tel. 0180 3 700705* | Fax 0180 3 702015* | info-center@stiebel-eltron.de
STIEBEL ELTRON GmbH & Co. KG
Kundendienst Tel. 0180 3 702020* | Fax 0180 3 702025* | kundendienst@stiebel-eltron.de
Dr.-Stiebel-Straße | 37603 Holzminden
Tel. 05531 702-90015
Tel. 05531 702-0 | Fax 05531 702-480
Ersatzteilverkauf Tel. 0180 3 702030* | Fax 0180 3 702035* | ersatzteile@stiebel-eltron.de
info@stiebel-eltron.de
Tel. 05531 702-90050
www.stiebel-eltron.de
Vertriebszentren Tel. 0180 3 702010* | Fax 0180 3 702004*
* 0,09 €/min bei Anrufen aus dem deutschen Festnetz. Maximal 0,42 €/min bei Anrufen aus Mobilfunknetzen.
Hungary
Switzerland
Austria
STIEBEL ELTRON Kft.
STIEBEL ELTRON AG
STIEBEL ELTRON Ges.m.b.H.
Pacsirtamező u. 41 | 1036 Budapest
Netzibodenstr. 23 c | 4133 Pratteln
Eferdinger Str. 73 | 4600 Wels
Tel. 01 250-6055 | Fax 01 368-8097
Tel. 061 81693-33 | Fax 061 81693-44
Tel. 07242 47367-0 | Fax 07242 47367-42
info@stiebel-eltron.hu
info@stiebel-eltron.ch
info@stiebel-eltron.at
www.stiebel-eltron.hu
www.stiebel-eltron.ch
www.stiebel-eltron.at
Japan
Thailand
Belgium
NIHON STIEBEL Co. Ltd.
STIEBEL ELTRON Asia Ltd.
STIEBEL ELTRON bvba/sprl
Kowa Kawasaki Nishiguchi Building 8F
469 Moo 2 Tambol Klong-Jik
't Hofveld 6 - D1 | 1702 Groot-Bijgaarden
66-2 Horikawa-Cho
Amphur Bangpa-In | 13160 Ayutthaya
Tel. 02 42322-22 | Fax 02 42322-12
Saiwai-Ku | 212-0013 Kawasaki
Tel. 035 220088 | Fax 035 221188
info@stiebel-eltron.be
Tel. 044 540-3200 | Fax 044 540-3210
info@stiebeleltronasia.com
www.stiebel-eltron.be
info@nihonstiebel.co.jp
www.stiebeleltronasia.com
Czech Republic
www.nihonstiebel.co.jp
United Kingdom and Ireland
STIEBEL ELTRON spol. s r.o.
Netherlands
STIEBEL ELTRON UK Ltd.
K Hájům 946 | 155 00 Praha 5 - Stodůlky
STIEBEL ELTRON Nederland B.V.
Unit 12 Stadium Court
Tel. 251116-111 | Fax 235512-122
Daviottenweg 36
Stadium Road | CH62 3RP Bromborough
info@stiebel-eltron.cz
5222 BH 's-Hertogenbosch
Tel. 0151 346-2300 | Fax 0151 334-2913
www.stiebel-eltron.cz
Tel. 073 623-0000 | Fax 073 623-1141
info@stiebel-eltron.co.uk
Denmark
stiebel@stiebel-eltron.nl
www.stiebel-eltron.co.uk
Pettinaroli A/S
www.stiebel-eltron.nl
United States of America
Mandal Allé 21 | 5500 Middelfart
Poland
STIEBEL ELTRON, Inc.
Tel. 06341 666-6 | Fax 06341 666-0
STIEBEL ELTRON Polska Sp. z o.o.
17 West Street | 01088 West Hatfield MA
info@stiebel-eltron.dk
ul. Działkowa 2 | 02-234 Warszawa
Tel. 0413 247-3380 | Fax 0413 247-3369
www.stiebel-eltron.dk
Tel. 022 60920-30 | Fax 022 60920-29
info@stiebel-eltron-usa.com
Finland
stiebel@stiebel-eltron.pl
www.stiebel-eltron-usa.com
Insinööritoimisto Olli Andersson Oy
www.stiebel-eltron.pl
Kapinakuja 1 | 04600 Mäntsälä
Russia
Tel. 020 720-9988 | Fax 020 720-9989
STIEBEL ELTRON LLC RUSSIA
info@stiebel-eltron.fi
Urzhumskaya street 4,
www.stiebel-eltron.fi
building 2 | 129343 Moscow
France
Tel. 0495 7753889 | Fax 0495 7753887
STIEBEL ELTRON SAS
info@stiebel-eltron.ru
7-9, rue des Selliers
www.stiebel-eltron.ru
B.P 85107 | 57073 Metz-Cédex 3
Slovakia
Tel. 0387 7438-88 | Fax 0387 7468-26
TATRAMAT - ohrievače vody, s.r.o.
info@stiebel-eltron.fr
Hlavná 1 | 058 01 Poprad
www.stiebel-eltron.fr
Tel. 052 7127-125 | Fax 052 7127-148
info@stiebel-eltron.sk
www.stiebel-eltron.sk
Irrtum und technische Änderungen vorbehalten! | Subject to errors and technical changes! | Sous réserve
d‘erreurs et de modifications techniques! | Onder voorbehoud van vergissingen en technische wijzigingen! |
Salvo error o modificación técnica! | Excepto erro ou alteração técnica | Zastrzeżone zmiany techniczne i
ewentualne błędy | Omyly a technické změny jsou vyhrazeny! | A muszaki változtatások és tévedések jogát
4<AMHCMN=gijeaa>
fenntartjuk! |
Отсутствие ошибок не гарантируется. Возможны технические изменения.
| Chyby a
technické zmeny sú vyhradené! Stand 8734
A 268940-36565-8737

