Stiebel Eltron DHF 12 - 24 C 01.10.2006 - 31.03.2007 – страница 3
Инструкция к Водонагревателю Stiebel Eltron DHF 12 - 24 C 01.10.2006 - 31.03.2007
41
Česky
Předání přístroje uživateli
Vysvětlete uživateli funkci a provozem
přístroje.
Důležitá upozornění:
y
Upozorněte uživatele na možná
nebezpečí (opaření).
y
Návod pečlivě uschovejte.
Všechny informace z tohoto návodu musí
být zohledněny. Obsahují údaje týkající
se bezpečnosti, ovládání, instalace a
údržby přístroje.
2.12 Zvláštní příslušenství
Dvoukohoutkové tlakové baterie
– kuchyňská baterie WKMD
obj. číslo
07 09 17
– koupelnová baterie WBMD
obj. číslo
07 09 18
Sprchovací hlavice Grohe Relexa,
chromovaný plast , obzvláště malá
tlaková ztráta (0,2 bar při 10 l/min)
obj. číslo
06 85 21
rozsah použití:
U obzvláště malého tlaku v rozvodu je
možno docílit vysokého průtoku.
Sada 2 ks zátek
obj. číslo
07 43 26
Nutné při použití cizích baterií (
E
,
23
).
Montážní sada pro instalaci nad
omítkou
obj. číslo
07 40 19
- 2 ks zátky G 1/2 (
E
, 24
)
- 2 ks převlečné matky 1/2”
s vsuvkou pro letování na
φ
12 mm
(
E
, 25
).
Při použití baterií WKMD nebo WBMD
není nutné.
Relé proti přetížení LR 1-A
obj. číslo
00 17 86
Přednostní spínání ohřívače DHB při
současném provozu např. elektrických
akumulačních kamen. Připojení relé
LR 1-A viz. obr.
H
.
2.6 Místo pro montáž
Ohřívač
DHF ... C
compact control se
montuje v kolmé poloze podle
A
(nad
nebo pod umyvadlem) v uzavřené
nezamrzající místnosti, v co možná
největší blízkosti odběrových míst.
Demontovaný přístroj je nutno skladovat
též v nemrznoucí místnosti, neboť
v topném válci může být voda.
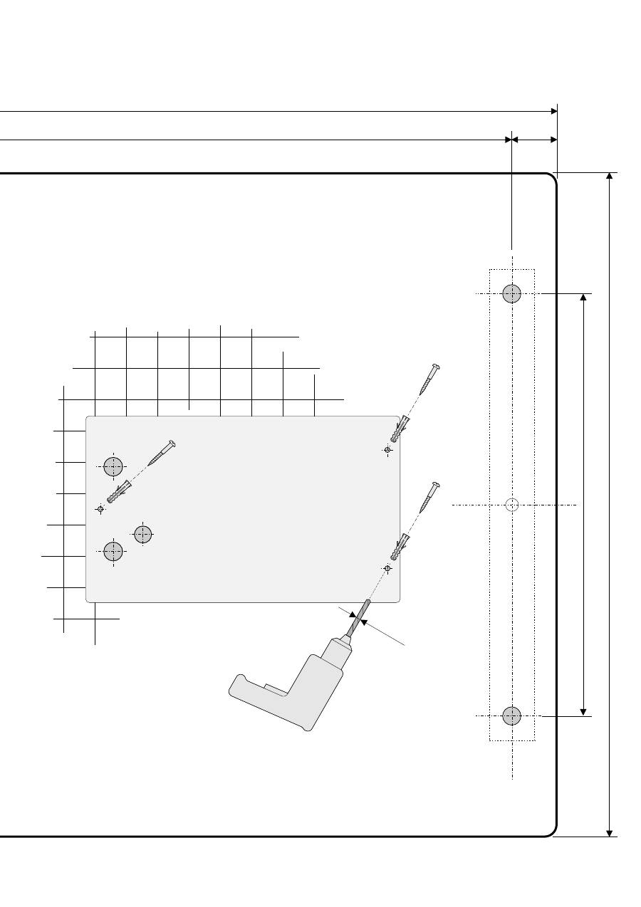
2.7 Příprava montáže
ohřívače
B
Krytku (
3
) na ovládacím panelu
otočte doleva a vytáhněte. Povolte
šrouby a sejměte kryt přístroje.
– Uvolněte montážní lištu z přístroje
(
19
).
– Důkladně propláchněte přívodní
potrubí studené vody.
– Při záměně může být použit stávající
3-cestný uzavírací ventil (
D
,
6
)
– Pomocí šablony (součást návodu)
určete polohu kabelové průchodky
(připojení pod omítkou) a montážní
lišty (
19
).
G
Zkraťte a odizolujte el.přívodní
vedení.
C
Připevněte montážní lištu.
Při záměně DHF/DHA starého
provedení je možno použít připravené
otvory pro hmoždinky (
20
).
– Přístroj připevněte na montážní lištu
pomocí matice s nástavcem (
14
).
Rýhovanou matkou (
21
) lze vyrovnat
nerovnosti stěny, vzniklé např.
přesahem dlaždiček (max. 12 mm).
2.8 Vodovodní přípojka
y
Namontujte přiložené části. Dbejte na
orientaci šipek (
D
-
E
).
3-cestný uzavírací ventil (6) nesmí
být použit jako škrtící ventil.
D
Připojení pod omítkou –
šroubovatelné
E
Připojení na omítce –
šroubovatelné
Při instalaci na omítce je zaručeno
el. krytí IP 24 ochrana proti
stríkající vode při následujícím zapojení.
1
2
3
4
5
6
7
8
10
11
12
13
14
15
16
17
18
19
20
21
22
23
24
9
Při použití baterií Stiebel Eltron
WKMD a WBMD
(viz.
"2.12
Zvláštní příslušenství"
):
Použijte uzavírací zátky G 1/2 (
23
).
Uzavírací zátky jsou přiloženy
k bateriím WKMD a WBMD. U jiných
baterií je možno objednat sadu 2 ks
zátek (viz.
"2.12 Zvláštní
příslušenství"
).
1
2
3
4
5
6
7
8
10
11
12
13
14
15
16
17
18
19
20
21
22
23
24
9
S montážní sadou pro připojení na
omítce
(viz.
"2.12 Zvláštní
príslušenství"
):
1. Použijte uzavírací zátky G 1/2 (
24
).
2. Použijte převlečné matky 1/2”
s vsuvkou pro připojení letováním
φ
12 mm (
25
). Proveďte přechod na
12 mm trubku (
25 a
).
2.9 Elektrické připojení F
Přístroj musí být připojen na
ochranný vodič!
– Při připojování pod omítkou musí ze zdi
vyčnívat alespoň 30 mm odizolovaného
připojovacího vedení
G
.
– přednostní spínáníPro utěsnění proti
stříkající vodě použijte manžetu (
J
,
26
)!
– Přívodní kabel zapojte na svorkovnici.
– přednostní spínání
H
DHF 13 C, DHF
15 C, DHF 18 C, DHF 21 C, DHF 24 C,
DHF 13 C3, DHF 13 C-A:
při kombinaci průtokového ohřívače
s jinými elektropřístroji např.
akumulačními kamny je možno
používat odpojovací relé:
a
relé proti přetížení LR 1-A zátek (viz.
"2.12 Zvláštní příslušenství"
)
b
řídící vedení od stykače 2. přístroje
c
řídící kontakt, otevřené při sepnutí
DHF ... C
compact control.
Odpojovací relé je nutno zapojit do
prostřední napájecí fáze přístroje.
Fáze, do které je ochranné relé
připojeno, musí být přivedena na
označenou svorku ohřídvače, nebot'
jinak se můžou vyskytnou poruchy v
přednostním spínání.
2.10 Ukončení montáže
1.
Při instalaci na omítce a/nebo při
připojení tlakovými hadicemi je
potřeba připevnit přístroj ve spodní
části přídavným šroubem (
J
,
27
).
2.
Otevřete 3-cestný uzavírací ventil
(
D
,
, 6
).
3.
Obr.
I
pouze pro montáž na omítce.
Čistě vylomte průchodky v krytu
ohřívače (
a
), popř. použijte pilník. Do
průchodek se musí zasadit přiložené
distanční podložky (
b
).
2.11 První uvedení do
provozu K
(smí provádět pouze odborný instalatér)!
1
2
3
4
5
6
7
8
10
11
12
13
14
15
16
17
18
19
20
21
22
23
24
9
Přístroj naplnit a odvzdušnit.
Nebezpečí chodu nasucho!
Všechny připojené ventily teplé
vody nechejte otevřené tak dlouho,
dokud se rozvod studené vody a
ohřívač neodvzdušní. Vzduch viz.
upozornění
„1.3 Důležitá
upozornění“
.
1
2
3
4
5
6
7
8
10
11
12
13
14
15
16
17
18
19
20
21
22
23
24
9
Namontujte kryt přístroje a
upevněte ho šrouby. Nasaďte
krytku a pootočte jí doleva
(zablokujte)!
1
2
3
4
5
6
7
8
10
11
12
13
14
15
16
17
18
19
20
21
22
23
24
9
Volič výkonu otočte na levý
doraz,
až po zacvaknutí
výkonového voliče.
1
2
3
4
5
6
7
8
10
11
12
13
14
15
16
17
18
19
20
21
22
23
24
9
Připojte el. napájení.
1
2
3
4
5
6
7
8
10
11
12
13
14
15
16
17
18
19
20
21
22
23
24
9
Přezkoušejte funkci přístroje.
1
2
3
4
5
6
7
8
10
11
12
13
14
15
16
17
18
19
20
21
22
23
24
9
Stáhněte ochrannou fólii
z ovládacího panelu.
42
3. Odstraňování
poruch uživatelem
Není teplá voda,
topný systém
DHF ... C
compact
control nespíná ani při plně otevřeném
ventilu teplé vody.
– není zapnuto el. napájení.
– uživatel/odborník přezkouší jištění.
– není dosažen průtok vody potřebný
pro sepnutí topného tělesa, znečištění
nebo zanesení perlátorů v bateriích či
sprchových hlavicích vápenatými
usazeninami.
porucha
příčina
odstranění
– uživatel/odborník provede vyčištění a/
nebo odvápnění.
porucha
příčina
odstranění
Přístroj nespíná.
– Příliš malý tlak vody v rozvodu.
– Odvápnit sprchovací hlavici / perlátor.
4. Odstraňování
poruch odborníkem
tab. 4
– Sítko 3-cestnéh (
6
) o ventilu je
znečištěno.
– Vyčistit sítko (
D
,
, 22
).
Spínač diferenčního tlaku (
10
) nesepne
ani při úplně otevřeném ventilu teplé
vody.
– Vyčistit sítko (
D
,
, 22
).
– Průtočné množství vody potřebné pro
jeho zapnutí není dosaženo.
– Prověřit tlak vody.
Ohřívač i přes slyšitelné zapnutí spínače
diferenčního tlaku nedodává teplou
vodu.
– Bezpečnostní termostat (
12
) vypnul:
– měřte vstupní teplotu, popř. ji snižte
a) vstupní teplota je příliš vysoká
b) control ventil MRC má poruchu
kontaktů
– přezkoušejte, popř. vyměňte ventil. Pro
zamezení přehřátí propláchněte topný
systém. Stiskněte tlačítko (
13
)
bezpečnostního termostatu.
c) topný systém je vadný.
6. Ekologie a
recyklace
Zpracování odpadů ze starých
přístrojů
Přístroje s tímto označením
nepatří do popelnice a je nutno je
odděleně sbírat a likvidovat.
Zpracování odpadů ze starých přístrojů
má odborný a věcný základ v místně
platných předpisech a zákonech.
Uplatňování nároku na poskytnutí
záruky je možné pouze v zemi, kde byl
přístroj zakoupen. Obraťte se prosím
na příslušné zastoupení firmy Stiebel
Eltron nebo na dovozce.
Montáž, elektroinstalaci, údržbu
a první uvedení do provozu smí
provádět pouze kvalifikovaný odborník.
Výrobce neručí za přístroje poškozené
vlivem nedodržení pokynů pro montáž
a provoz uvedených v příslušném
montážním a provozním návodu.
5. Záruční
podmínky
– vyměňte topný systém.
Topný systém neohřívá vodu.
– Není el. napájení.
– Vadný topný systém.
– Přezkoušejte jištění.
– Přezkoušejte jištění.- Vyměňte topné
těleso (
11
).
tab. 5
43
Ðóññêèé
Česky
1.5 Ðåêîìåíäàöèè ïî
ðåãóëèðîâêå
•
Ðåæèì ðàáîòû äëÿ àðìàòóðû ñ
äâóìÿ ðó÷êàìè
Ö
Ö
Ö
Ö
Ö
Óìûâàëüíèê:
âûáåðèòå ïîëîâèííóþ ìîùíîñòü
z
.
Ö
Ö
Ö
Ö
Ö
Âàííà, äóø èëè ìûòüå ïîñóäû:
âûáåðèòå ïîâûøåííóþ ìîùíîñòü
zz
. Åñëè, íåñìîòðÿ íà ïîëíîñòüþ
îòêðûòûé êðàí ãîðÿ÷åé âîäû,
òåìïåðàòóðà ñëèøêîì âûñîêàÿ,
ñëåäóåò äîáàâèòü õîëîäíîé âîäû.
•
Ðåæèì ðàáîòû äëÿ ñìåñèòåëÿ ñ
îäíîé ðó÷êîé:
Ö
Ö
Ö
Ö
Ö
Óìûâàëüíèê:
âûáåðèòå ïîëîâèííóþ ìîùíîñòü
z
.
Ö
Ö
Ö
Ö
Ö
Âàííà, äóø èëè ìûòüå ïîñóäû:
âûáåðèòå ïîâûøåííóþ ìîùíîñòü
zz
.
– Äî îòêàçà ïîâåðíèòå ðû÷àã
àðìàòóðû íà ïîêàçàòåëü
„ÃÎÐß×Àß“
– Ïîëíîñòüþ îòêðîéòå àðìàòóðó.
– Ïîâûøåíèå òåìïåðàòóðû
äîñòèãàåòñÿ ìåäëåííûì
çàêðûâàíèåì àðìàòóðû.
– Ïîíèæåíèå òåìïåðàòóðû
äîñòèãàåòñÿ äîáàâëåíèåì
õîëîäíîé âîäû èëè, åñëè ýòî
âîçìîæíî, äàëüíåéøèì
îòêðûâàíèåì àðìàòóðû.
•
Ðåæèì ðàáîòû ñ àðìàòóðîé-
òåðìîñòàòîì
Ö
Ö
Ö
Ö
Ö
Âûáåðèòå ïîâûøåííóþ ìîùíîñòü
íàãðåâà
zz
.
– Ñëåäóéòå óêàçàíèÿì èçãîòîâèòåëÿ
àðìàòóðû.
1.6 Ïåðâàÿ ïîìîùü ïðè
íåèñïðàâíîñòÿõ
•
Ïðîâåðèòü ïðåäîõðàíèòåëè.
•
Ïðîâåðèòü àðìàòóðó è äóøåâóþ
ãîëîâêó íà íàëè÷èå èçâåñòêîâûõ
îòëîæåíèé èëè çàãðÿçíåíèå. Ñì.
òàêæå ðàçäåë
"3. Óñòðàíåíèå
íåèñïðàâíîñòåé ïîëüçîâàòåëåì"
.
1.7 Òåõíè÷åñêîå
îáñëóæèâàíèå è óõîä
Ðàáîòû ïî ñåðâèñíîìó
îáñëóæèâàíèþ, íàïðèìåð,
ïðîâåðêà ýëåêòðîáåçîïàñíîñòè,
äîëæíû ïðîèçâîäèòüñÿ òîëüêî
êâàëèôèöèðîâàííûì ñïåöèàëèñòîì.
Äëÿ óõîäà çà ïðèáîðîì äîñòàòî÷íî
óâëàæíåííîé òêàíè. Íå äîïóñêàåòñÿ
ïðèìåíåíèå àáðàçèâíûõ ÷èñòÿùèõ
ñðåäñòâ è ðàñòâîðèòåëåé!
1.8 Èíñòðóêöèÿ ïî ìîíòàæó è
ýêñïëóàòàöèè
Òùàòåëüíî ñîõðàíÿòü äàííóþ
èíñòðóêöèþ. Ïðè ñìåíå âëàäåëüöà
ïðèáîðà ïåðåäàòü åå íîâîìó
ïîëüçîâàòåëþ, ïðè ïðîâåäåíèè
ñåðâèñíûõ è ðåìîíòíûõ ðàáîò
ïðåäîñòàâëÿòü ñïåöèàëèñòó äëÿ
îçíàêîìëåíèÿ.
1.3 Âàæíûå óêàçàíèÿ
Âî âðåìÿ ðåãóëèðîâêè
òåìïåðàòóðà ãîðÿ÷åé âîäû ìîæåò
ïðåâûøàòü 55 °Ñ. Åñëè êðàí îòêðûâàòü
ñëèøêîì ÷àñòî, òåìïåðàòóðà âîäû íà
âûõîäå ìîæåò íà êîðîòêîå âðåìÿ
ïîâûøàòüñÿ. Îáåðåãàéòå ìàëåíüêèõ
äåòåé îò ñîïðèêîñíîâåíèÿ ñ
âîäîçàáîðíîé àðìàòóðîé èç-çà
îïàñíîñòè ïîëó÷åíèÿ îæîãà!
Ïðè âûíóæäåííîì
ïðåêðàùåíèè
ïîäà÷è õîëîäíîé âîäû ê ïðèáîðó
DHF ... C
contact control – íàïðèìåð,
ïðè óãðîçå çàìåðçàíèÿ èëè íà âðåìÿ
ïðîâåäåíèÿ ðàáîò íà âîäîïðîâîäå,
ïåðåä ïîâòîðíûì âêëþ÷åíèåì
ïðèáîðà ñëåäóåò ïðîèçâåñòè
ñëåäóþùèå äåéñòâèÿ:
1. Âûâèíòèòü èëè îòêëþ÷èòü
ïðåäîõðàíèòåëè.
2. Íàõîäÿùèéñÿ çà ïðèáîðîì âåíòèëü
ãîðÿ÷åé âîäû îòêðûòü è íå
çàêðûâàòü äî òåõ ïîð, ïîêà èç
ïðèáîðà è ïîäâîäÿùåé ìàãèñòðàëè
õîëîäíîé âîäû ïîëíîñòüþ íå áóäåò
óäàëåí âîçäóõ.
3. Ïðåäîõðàíèòåëè ââèíòèòü íà ìåñòî
èëè âêëþ÷èòü.
1.4 Ïðîèçâîäèòåëüíîñòü
ïðèáîðà ïî ãîðÿ÷åé âîäå
 çàâèñèìîñòè îò âðåìåíè ãîäà ïðè
ðàçëè÷íûõ òåìïåðàòóðàõ õîëîäíîé
âîäû ìàêñèìàëüíàÿ
ïðîèçâîäèòåëüíîñòü ïðèáîðà, ò.å.
êîëè÷åñòâî ïîëó÷åííîé ñìåøàííîé
âîäû èëè êîëè÷åñòâî âîäû íà âûõîäå èç
ïðèáîðà, áóäåò ñîñòàâëÿòü: (ñì.
òàáë.1):
ϑ
1
= Òåìïåðàòóðà õîëîäíîé âîäû íà
âõîäå
ϑ
2
= Òåìïåðàòóðà ñìåøàííîé âîäû
ϑ
3
= Òåìïåðàòóðà âîäû íà âûõîäå èç
ïðèáîðà.
•
Ïðèìåðû èñïîëüçîâàíèÿ ãîðÿ÷åé
âîäû:
Ö
Ö
Ö
Ö
Ö
îêîëî
38 °Ñ:
íàïðèìåð, äëÿ äóøà,
ìûòüÿ ðóê , ïðèíÿòèÿ âàííû è ò.ä.
Ö
Ö
Ö
Ö
Ö
îêîëî
55 °Ñ:
äëÿ èñïîëüçîâàíèÿ â
êóõîííîé ìîéêå, ïðè
èñïîëüçîâàíèè òåðìîñòàòèðóþùåé
àðìàòóðû.
1. Èíñòðóêöèÿ ïî ýêñïëóàòàöèè
äëÿ ïîëüçîâàòåëÿ è
1.1 Îïèñàíèå óñòðîéñòâà
Ïðîòî÷íûé âîäîíàãðåâàòåëü
DHF ... C
compact control ñ ãèäðàâëè÷åñêèì
óïðàâëåíèåì íàãðåâàåò âîäó ïðè
ïðîõîæäåíèè åå ÷åðåç ïðèáîð. Êàê
òîëüêî îòêðûâàåòñÿ êðàí ãîðÿ÷åé âîäû,
ïîñëå ïðåâûøåíèÿ ïóñêîâîãî îáúåìà
àâòîìàòè÷åñêè âêëþ÷àåòñÿ ìîùíîñòü
íàãðåâà. Òåìïåðàòóðà âîäû íà âûõîäå
èç ïðèáîðà çàâèñèò îò âåëè÷èíû
ïðîòîêà è îò òåìïåðàòóðû õîëîäíîé
âîäû íà âõîäå.
1.2 Êîðîòêî î ãëàâíîì
Ïåðåêëþ÷àòåëü ìîùíîñòè
z
Ïîëîâèííàÿ ìîùíîñòü íàãðåâà
Âêëþ÷àåòñÿ òîëüêî ïîëîâèííàÿ
ìîùíîñòü íàãðåâà:
Ö
Ö
Ö
Ö
Ö
ïîäõîäèò äëÿ ìûòüÿ ðóê.
zz
Ïîâûøåííàÿ ìîùíîñòü
íàãðåâà
Ïðè óìåíüøåííîì ïðîõîäÿùåì
îáúåìå àâòîìàòè÷åñêè âêëþ÷àåòñÿ
ïîëîâèííàÿ ìîùíîñòü íàãðåâà; ïðè
ïîâûøåííûõ êîëè÷åñòâàõ
ïðîòåêàþùåé âîäû – ïîëíàÿ
ìîùíîñòü íàãðåâà:
Ö
Ö
Ö
Ö
Ö
ïîäõîäèò äëÿ ïðèíÿòèÿ âàííû,
äóøà èëè äëÿ ìûòüÿ ïîñóäû.
Ïîíèæåííûé îáúåì âîäîðàçáîðà
Ö
Ö
Ö
Ö
Ö
âûñîêàÿ òåìïåðàòóðà íà âûõîäå
Ïîâûøåííûé îáúåì âîäîðàçáîðà
Ö
Ö
Ö
Ö
Ö
ïîíèæåííàÿ òåìïåðàòóðà íà
âûõîäå
Åñëè ïðè ïîëíîñòüþ îòêðûòîì
âîäîðàçáîðíîì êëàïàíå íå
äîñòèãàåòñÿ æåëàåìàÿ òåìïåðàòóðà
íà âûõîäå, ýòî îçíà÷àåò, ÷òî ÷åðåç
óñòðîéñòâî ïðîòåêàåò áîëüøåå
êîëè÷åñòâî âîäû, ÷åì òî, êîòîðîå
ìîæåò íàãðåòü ÒÝÍ (ïðåäåë
ìîùíîñòè 12, 13, 15, 18, 21 èëè
24 êÂò).  òàêîì ñëó÷àå ñëåäóåò
óìåíüøèòü ñòðóþ ãîðÿ÷åé âîäû.
Ïðè òåìïåðàòóðàõ íà âûõîäå ñâûøå
43 °Ñ ñóùåñòâóåò îïàñíîñòü
òåðìè÷åñêèõ îæîãîâ.
Òàáëèöà
1
* Ôàêòè÷åñêîå êîëè÷åñòâî âîäû íà
âûõîäå çàâèñèò îò äàâëåíèÿ â
ðàñïðåäåëèòåëüíûõ òðóáîïðîâîäàõ.
ϑ
2
= 38 °C
(Òåìïåðàòóðà
ñìåøàííîé âîäû)
êÂò
12 13,2 15
18
21
24
ϑ
1
ë/ìèí*
10 °C
6,1 6,8
7,7 9,2 10,7 12,3
14 °C
7,2 7,9
9,0 10,7 12,5 14,3
ϑ
3
= 55 °C
(Òåìïåðàòóðà âîäû íà
âûõîäå èç ïðèáîðà)
êÂò
12 13,2 15
18
21
24
ϑ
1
ë/ìèí*
10 °C
3,8 4,1
4,8 5,7
6,7 7,6
14 °C
4,2 4,6
5,2 6,3
7,3 8,4
44
2. Èíñòðóêöèÿ ïî ìîíòàæó
äëÿ ñïåöèàëèñòà
2.4 Ïðåäïèñàíèÿ è
íîðìàòèâû
•
Ìîíòàæ (ïîäêëþ÷åíèå ê âîäîïðîâîäó
è ýëåêòðîìîíòàæ), à òàêæå ïåðâûé
ââîä â ýêñïëóàòàöèþ è òåõíè÷åñêîå
îáñëóæèâàíèå ïðèáîðà äîëæíû
ïðîèçâîäèòüñÿ òîëüêî ñïåöèàëèñòîì
â ñîîòâåòñòâèè ñ äàííîé
èíñòðóêöèåé.
•
Áåçóïðå÷íàÿ è áåçîïàñíàÿ ðàáîòà
ïðèáîðà îáåñïå÷èâàåòñÿ òîëüêî ïðè
èñïîëüçîâàíèè îðèãèíàëüíûõ,
ïðåäíàçíà÷åííûõ èìåííî äëÿ
äàííîãî ïðèáîðà, ïðèíàäëåæíîñòåé
è çàï÷àñòåé.
•
DIN VDE 0100
•
Ïðåäïèñàíèÿ ìåñòíîãî
ýíåðãîñíàáæàþùåãî ïðåäïðèÿòèÿ.
•
DIN 1988/DIN 4109
•
Ïðåäïèñàíèÿ ìåñòíîãî ïðåäïðèÿòèÿ
âîäîñíàáæåíèÿ.
•
Ïðèáîð ìîíòèðóåòñÿ â íèæíåé ÷àñòè
çàïîäëèöî ê ñòåíå (
18
, ñîáëþäàòü
ðàçìåð
≥
110 ìì).
Êðîìå òîãî, ñëåäóåò ñîáëþäàòü:
•
Ïàñïîðòíûå äàííûå ïðèáîðà,
óêàçàííûå íà ôèðìåííîé òàáëè÷êå.
•
Òåõíè÷åñêèå õàðàêòåðèñòèêè
ïðèáîðà
•
Âîäîïðîâîä è êàíàëèçàöèÿ
–
Ìàòåðèàë äëÿ òðóáîïðîâîäà
õîëîäíîé âîäû:
Ñòàëü, ìåäü
Ñèñòåìà èç ïëàñòèêîâûõ òðóá:
Ä ëÿ ïîäêëþ÷åíèÿ óñòðîéñòâà ê
ëèíèè õîëîäíîé âîäû íåîáõîäèìî
óñòàíîâèòü ìåòàëëè÷åñêóþ òðóáó
äëèíîé îêîëî 1 ì.
–
Ìàòåðèàë äëÿ òðóáîïðîâîäà
ãîðÿ÷åé âîäû:
Ìåäü
Ñèñòåìà ïëàñòèêîâûõ òðóá:
DHF ... C
íå ïîäõîäèò äëÿ
óñòàíîâêè ñ ñèñòåìîé ïëàñòèêîâûõ
òðóá äëÿ òðóáîïðîâîäà ãîðÿ÷åé
âîäû!
•
Ïðåäîõðàíèòåëüíûé êëàïàí íå
òðåáóåòñÿ.
•
Ðåæèì ðàáîòû ñ ïðåäâàðèòåëüíî
íàãðåòîé âîäîé íå äîïóñêàåòñÿ!
•
Òåðìîñòàòèðóþùàÿ àðìàòóðà ñì.
ðàçäåë
"1.5 Ðåêîìåíäàöèè ïî
ðåãóëèðîâêå"
.
•
Ïîäêëþ÷åíèå ê ýëåêòðîñåòè
– Ýëåêòðè÷åñêîå ïîäêëþ÷åíèå
ïðîèçâîäèòü òîëüêî ê ïîñòîÿííî
ïðîëîæåííîìó êàáåëþ!
– Ïðèáîð äîëæåí èìåòü âîçìîæíîñòü
îòêëþ÷àòüñÿ îò ýëåêòðîñåòè ïî
âñåì ôàçàì, íàïðèìåð, ÷åðåç
ïðåäîõðàíèòåëè ñ èçîëÿöèîííûì
ðàññòîÿíèåì (ðàñòâîðîì) íå ìåíåå
3 ìì!
2.2 Êðàòêîå îïèñàíèå
Ïðîòî÷íûé âîäîíàãðåâàòåëü
DHF ... C
compact control
ñ ãèäðàâëè÷åñêèì
óïðàâëåíèåì – ýòî íàïîðíîå
óñòðîéñòâî äëÿ íàãðåâà õîëîäíîé âîäû
â ñîîòâåòñòâèè ñ DIN 1988, ñ ïîìîùüþ
êîòîðîãî ìîæíî îáåñïå÷èâàòü îäíî èëè
íåñêîëüêî ìåñò çàáîðà âîäû.
Êëàïàí êîíòðîëÿ, îñóùåñòâëÿþùèé
ðåãóëèðîâàíèå êîëè÷åñòâà ïðîõîäÿùåé
âîäû, êîìïåíñèðóåò êîëåáàíèÿ íàïîðà
è, òàêèì îáðàçîì, îáåñïå÷èâàåò
ïîñòîÿííóþ òåìïåðàòóðó. Êëàïàí
êîíòðîëÿ MRC îãðàíè÷èâàåò îáúåìû
ïðîòåêàþùåé âîäû, òåì ñàìûì
ãàðàíòèðóÿ íåîáõîäèìîå ïîâûøåíèå
òåìïåðàòóðû ïèòüåâîé âîäû.
Íàãðåâàòåëüíàÿ ñèñòåìà ñ ÒÝÍîì â
ìåäíîé êîëáå, óñòîé÷èâîé ê äàâëåíèþ,
ìîæåò èñïîëüçîâàòüñÿ äëÿ âîäû ñ
íèçêèì ñîäåðæàíèåì èçâåñòè (îáëàñòü
ïðèìåíåíèÿ ñì. â òàáëèöå 3.).
2.3 Àðìàòóðà
•
Íåäîïóñòèìî èñïîëüçîâàíèå
àðìàòóðû äëÿ îòêðûòûõ
(áåçíàïîðíûõ) óñòðîéñòâ!
•
Ïðè ïîíèæåííîì íàïîðå âîäû
äîëæíû áûòü ïðåäóñìîòðåíû
ðó÷íûå ðàñïûëèòåëè äëÿ äóøà ñ
óìåíüøåííîé ïîòåðåé äàâëåíèÿ,
ñì. â „2.12 Îñîáûå
ïðèíàäëåæíîñòè“.
•
Àðìàòóðà ïîäà÷è ïîä äàâëåíèåì
íà ñìåñèòåëè ñ äâóìÿ ðó÷êàìè
Stiebel Eltron
äëÿ ïðîòî÷íûõ
âîäîíàãðåâàòåëåé ñì. â
„2.12
Îñîáûå ïðèíàäëåæíîñòè“.
•
Ñìåñèòåëè ñ îäíîé ðó÷êîé
è
àðìàòóðà äëÿ òåðìîñòàòîâ
äîëæíû
ïîäõîäèòü äëÿ ïðîòî÷íîãî
âîäîíàãðåâàòåëÿ ñ ãèäðàâëè÷åñêèì
óïðàâëåíèåì.
•
Ïðàêòè÷åñêèå óêàçàíèÿ:
×òîáû ñ óâåðåííîñòüþ äîñòèãàòü
íà÷àëüíûõ ïóñêîâûõ îáúåìîâ (ñì.
Òàáëèöó 3) äëÿ ñòóïåíè
z
è ñòóïåíè
zz
, âî âðåìÿ óñòàíîâêè äîëæíû
ïðèíèìàòüñÿ âî âíèìàíèå ïîòåðè
äàâëåíèÿ äëÿ ïðîòî÷íîãî
íàãðåâàòåëÿ, àðìàòóðû, äóøåâîé
íàñàäêè, äóøåâîãî øëàíãà è
âîäîïðîâîäíîé ñåòè.
Òèïè÷íûå ïîòåðè äàâëåíèÿ ïðè
ðàñõîäå âîäû â äóøå îêîëî 10 ë/ìèí.:
– Ñìåñèòåëü ñ îäíîé ðó÷êîé
0,04 - 0,08 MPa (0,4 - 0,8 áàð)
– Àðìàòóðà òåðìîñòàòà
0,03 - 0,05 MPa (0,3 - 0,5 áàð)
– Ðó÷íîé äóø
0,03 - 0,15 MPa (0,3 - 1,5 áàð)
2.1 Êîíñòðóêöèÿ óñòàíîâêè
1
Ïåðåêëþ÷àòåëü ìîùíîñòè
2
Êîðïóñ ïðèáîðà
3
Êðåïëåíèå êîðïóñà ïðèáîðà
4
Ïàíåëü óïðàâëåíèÿ ñ çàùèòíîé
ïëåíêîé (âèä ïðè ïîñòàâêå)
5
Ðåçüáîâîå ïîäêëþ÷åíèå ëèíèè
ãîðÿ÷åé âîäû
6
Ðåçüáîâîå ïîäêëþ÷åíèå ëèíèè
õîëîäíîé âîäû (òðåõõîäîâàÿ
çàñëîíêà)
7
Êëåììíàÿ êîëîäêà
8
Çàäíÿÿ ñòåíêà
9
Êðåïåæíûé âèíò êðîíøòåéíà
êîíñòðóêöèîííîãî óçëà (ñåðâèñ)
10
Äèôôåðåíöèàëüíîå ðåëå
äàâëåíèÿ (êîíòðîëüíûé êëàïàí
MRC) ñ ðåãóëÿòîðîì ïîòîêà
11
Òðóá÷àòûé ðàäèàòîð –
íàãðåâàòåëüíàÿ ñèñòåìà
12
Ïðåäîõðàíèòåëüíûé îãðàíè÷èòåëü
òåìïåðàòóðû
13
Âîçâðàòíàÿ êëàâèøà
ïðåäîõðàíèòåëüíîãî îãðàíè÷èòåëÿ
òåìïåðàòóðû (â ñëó÷àå
íåèñïðàâíîñòè)
14
Êðåïåæíûé áîëò óñòðîéñòâà íà
ìîíòàæíîé ïëàíêå
15
Íèæíåå êðåïëåíèå óñòðîéñòâà
16
Ïîäâîä ýëåêòðîïèòàíèÿ, ñêðûòàÿ
ïðîâîäêà
17
Ïîäâîä ýëåêòðîïèòàíèÿ, îòêðûòàÿ
ïðîâîäêà
18
Óñòàíîâî÷íûé ðàçìåð „Êîíòàêò ñî
ñòåíîé“
19
Ìîíòàæíàÿ ïëàíêà
20
Îòâåðñòèÿ äëÿ êðåïëåíèé
óñòðîéñòâà
21
Êðåïåæíûé áîëò ñ ãàéêîé äëÿ
âûðàâíèâàíèÿ ñòåíû ïðè óêëàäêå
íåòêàíîãî ìàòåðèàëà
22
Ôèëüòð
23
Âîäÿíàÿ çàãëóøêà ïðè îòêðûòîì
ìîíòàæå ñ àðìàòóðîé WKMD èëè
WBMD. Ïîäñîåäèíåíèå ê àðìàòóðå
äðóãèõ ôèðì – ñì.
„2.12 Îñîáûå
ïðèíàäëåæíîñòè“
.
24– 25
Ìîíòàæíûé êîìïëåêò äëÿ
îòêðûòîé óñòàíîâêè (ñì.
„2.12
Îñîáûå ïðèíàäëåæíîñòè“
.
25a
Ìåäíàÿ òðóáà 12 ìì (ñî ñòîðîíû
ìîíòàæà)
26
Êàáåëüíûé íàêîíå÷íèê
27
Íèæíèé êðåïåæíûé âèíò
óñòðîéñòâà
45
Ðóññêèé
2.6 Ìåñòî ìîíòàæà
Ïðèáîð
DHF ... C
compact control
ìîíòèðóåòñÿ â âåðòèêàëüíîì
ïîëîæåíèè â ñîîòâåòñòâèè ñî ñõåìîé
A
(êàê íàä ðàêîâèíîé, òàê è ïîä íåé) â
çàêðûòûõ, íåçàìåðçàþùèõ
ïîìåùåíèÿõ, ïî âîçìîæíîñòè, âáëèçè
òî÷åê âîäîðàçáîðà (äåìîíòèðîâàííûå
ïðèáîðû ñëåäóåò õðàíèòü â
ïîìåùåíèÿõ, çàùèùåííûõ îò
ìèíóñîâûõ òåìïåðàòóð, ïîñêîëüêó â
ïðèáîðå âñåãäà èìåþòñÿ îñòàòêè
âîäû).
2.5 Òåõíè÷åñêèå õàðàêòåðèñòèêè
(äåéñòâèòåëüíû äàííûå íà øèëüäå ïðèáîðà)
2.7 Ïîäãîòîâêà ê ìîíòàæó
ïðèáîðà
B
Îòâåðíèòå âëåâî êîëïàê (
3
) è
ñíèìèòå åãî. Âûâèíòèòå êðåïåæíûå
âèíòû êîëïà÷êà è ñíèìèòå êîëïàê
óñòðîéñòâà.
–
Îòñîåäèíèòå ìîíòàæíóþ ïëàíêó
(
19
) îò óñòðîéñòâà.
–
Òùàòåëüíî ïðîìîéòå ëèíèþ ïîäà÷è
õîëîäíîé âîäû.
–
Ïðè ìîíòàæå çàìåíû ìîæíî, â
ñëó÷àå íåîáõîäèìîñòè,
âîñïîëüçîâàòüñÿ èìåþùåéñÿ
òðåõõîäîâîé çàñëîíêîé äëÿ
õîëîäíîé âîäû (
D
,
6
).
–
Ñ ïîìîùüþ ìîíòàæíîãî øàáëîíà
îïðåäåëèòå ðàñïîëîæåíèå
êàáåëüíîãî ââîäà (ïîäñîåäèíåíèå
ñêðûòîé ïðîâîäêè) è ìîíòàæíîé
ïëàíêè (
19
).
G
Ïîäñîåäèíèòå ýëåêòðîïèòàíèå è
çàèçîëèðóéòå ñòûê ëèíèè.
C
Óêðåïèòå ìîíòàæíóþ ïëàíêó. Ïðè
çàìåíå ñòàðîãî DHF/DHA ìîæíî
âîñïîëüçîâàòüñÿ èìåþùèìèñÿ
êðåïåæíûìè îòâåðñòèÿìè (
20
).
–
Çàêðåïèòå óñòðîéñòâî ðåçüáîâîé
ãèëüçîé (
14
) íà ìîíòàæíîé ïëàíêå.
Ïðè ïîìîùè ãàéêè íà íàðåçíîì
áîëòå (
21
) ìîæíî ñãëàäèòü
íåðîâíîñòè ñòåíû,
âîñïîëüçîâàâøèñü, íàïðèìåð,
ïðîêëàäêàìè èç íåòêàíîãî
ìàòåðèàëà (òîëùèíà íå áîëåå
12 ìì).
Òèï
DHF 13 C
DHF 13 C-A DHF 15 C
DHF 18 C
DHF 21 C
DHF 24 C
DHF 12 C1
DHF 13 C3
compact
compact
compact
compact
compact
compact
compact
compact
control
control
control
control
control
control
control
control
Ìîùíîñòü íàãðåâà
V
400
400
400
400
400
400
220
230
230
×àñòè÷íàÿ ìîùíîñòü
Ñòóïåíü
z
êÂò
6,6
6,6
7,5
9
10,5
12
8
8,8
6,6
Îáúåìû ïðè âêëþ÷åíèè
Ñòóïåíü
zz
êÂò 13,2
13,2
15
18
21
24
12
13,2 13,2
Îáúåìû ïðè âêëþ÷åíèè
Ñòóïåíü
z
ë/ìèí.
2,5
3,0
3,0
3,9
4,4
4,9
2,5
2,5
Ñòóïåíü
zz
ë/ìèí.
3,7
4,5
4,5
5,9
6,4
7,6
3,7
3,7
Îãðàíè÷åíèå ïîòîêà ë/ìèí.
6,5
6,5
6,5
7,0
7,5
8,0
6,5
6,5
Ïîòåðè äàâëåíèÿ*
MPa 0,05
0,055
0,055
0,06
0,06
0,07
0,05
0,05
Îáúåì ïîòîêà
ë/ìèí.
3,7
4,5
4,5
5,9
6,4
7,6
3,7
3,7
Íîìèíàëüíàÿ âìåñòèìîñòü ë
0,6
Òèï ïðèáîðà
çàêðûòûé
Íîìèíàëüíîå èçáûòî÷íîå
äàâëåíèå
MPa
1 (10 áàð)
Âåñ
êã
4,0
Êëàññ çàùèòû ñîãëàñíî
DIN EN 60335
1
Òèï çàùèòû ñîãëàñíî
DIN EN 60529
IP 24 (ochrona przeciwbryzgowa)
ê âîäîïðîâîäíîé ñåòè
G 1/2 (âíåøíÿÿ ðåçüáà)
Êîíòðîëüíàÿ îòìåòêà
ñì. øèëüäó ïðèáîðà
Òàáëèöà 3
*
Çíà÷åíèÿ ïîòåðè äàâëåíèÿ äåéñòâèòåëüíû òàêæå äëÿ ìèíèìàëüíîãî ãèäðàâëè÷åñêîãî äàâëåíèÿ â ñîîòâåòñòâèè ñ DIN 44851 /
Âåëè÷èíà ïðîòîêà ïðè íàãðåâàíèè îò 10 ° Ñ äî 55 ° Ñ (
∆ϑ
45 Ê). Ñîãëàñíî DIN 1988 , ÷àñòü 3, òàáë. 4 äëÿ îïðåäåëåíèÿ ïàðàìåòðîâ
òðóáîïðîâîäíîé ñåòè ðåêîìåíäóåìàÿ ïîòåðÿ äàâëåíèÿ - 0,1 MPa (1 áàð).
Ïîäñîåäèíåíèå ê ý
3/PE ~ 400 V
1/N/PE ~
3/PE ~ 230 V
ëåêòðîñåòè
220/230 V
Íàãðåâàòåëüíàÿ ñèñòåìà
Ìåäíûé ÒÝÍ
Ëèíèÿ ïîäà÷è õîëîäíîé
âîäû
≤
20 °C
Îáëàñòü ïðèìåíåíèÿ ïî âîäå
Îáùåå ñîäåðæàíèå ñîëåé
ùåëî÷íîçåìåëüíûõ ìåòàëëîâ
≤
2,5 mol/m
3
Ñóììàðíàÿ æåñòêîñòü âîäû
≤
14 °d
Äèàïàçîí æåñòêîñòè
äî 2 âêëþ÷èòåëüíî (ñðåäíÿÿ æåñòêîñòü)
46
Ïåðåäà÷à ïðèáîðà!
Îáúÿñíèòü ïîëüçîâàòåëþ ôóíêöèè
ïðèáîðà è îçíàêîìèòü ñ ïðàâèëàìè
ýêñïëóàòàöèè.
Âàæíûå óêàçàíèÿ:
y
Îáðàòèòü âíèìàíèå ïîëüçîâàòåëÿ íà
âîçìîæíûå îïàñíîñòè (îæîã).
y
Ïåðåäàòü ïîëüçîâàòåëþ äàííóþ
èíñòðóêöèþ.
Âñþ èíôîðìàöèþ, èìåþùóþñÿ â ýò
îì ðóêîâîäñòâå, íåîáõîäèìî àêêóðàòíî
èñïîëíÿòü. Îíà ñîäåðæèò óêàçàíèÿ,
êàñàþùèåñÿ áåçîïàñíîñòè,
óïðàâëåíèÿ, óñòàíîâî÷íûõ ðàáîò è
òåõíè÷åñêîãî îáñëóæèâàíèÿ
óñòðîéñòâà.
2.12 Îñîáûå
ïðèíàäëåæíîñòè
Íàïîðíàÿ àðìàòóðà ñ äâóìÿ ðó÷êàìè
– Àðìàòóðà äëÿ êóõíè WKMD
,
íîìåð äëÿ çàêàçà 07 09 17
– Àðìàòóðà äëÿ âàííû WBMD,
íîìåð äëÿ çàêàçà 07 09 18
Ðó÷íîé äóø
Grohe Relexa
,
ïëàñòèêîâûé, ñ õðîìèðîâàííûì
ïîêðûòèåì, ñ îñîáî íèçêèìè ïîòåðÿìè
äàâëåíèÿ (0,2 áàð ïðè 10 ë/ìèí.)
íîìåð äëÿ çàêàçà 06 85 21
Îáëàñòü èñïîëüçîâàíèÿ:
Ïðè îñîáåííî íèçêîì íàïîðå
ïîäàâàåìîé âîäû â âîäîïðîâîäíîé
ñåòè äîñòèãàåòñÿ ãîðàçäî áîëåå
âûñîêèé ïðîõîäÿùèé ïîòîê.
Ìîíòàæíûé êîìïëåêò: Âîäÿíûå
çàãëóøêè – 2 øò.
Íîìåð äëÿ çàêàçà 07 43 26
Íåîáõîäèìû ïðè èñïîëüçîâàíèè
àðìàòóðû äðóãèõ èçãîòîâèòåëåé (
E
,
23
).
Ìîíòàæíûé êîìïëåêò äëÿ
íàäøòóêàòóðíîãî ìîíòàæà
Íîìåð äëÿ çàêàçà 07 40 19
– Âîäÿíûå çàãëóøêè G 1/2 – 2 øò (
E
,
24
).
– Íàêèäíûå ãàéêè 1/2” c âêëàäûøåì
äëÿ ïàÿíîãî ñîåäèíåíèÿ
Ø
12 ìì
(
E
,
25
). Ïðè èñïîëüçîâàíèè
àðìàòóðû WKMD è WBMD ôèðìû
Stiebel Eltron ìîíòàæíûé êîìïëåêò íå
òðåáóåòñÿ.
Ðåëå ñáðîñà íàãðóçêè LR 1-A
Íîìåð äëÿ çàêàçà 00 17 86
Ïðèîðèòåòíîå âêëþ÷åíèå ïðîòî÷íîãî
âîäîíàãðåâàòåëÿ DHB-E electronic
ïðè îäíîâðåìåííîé ýêñïëóàòàöèè ,
íàïðèìåð, àêêóìóëÿöèîííûõ
ýëåêòðîîáîãðåâàòåëåé.
Ïîäêëþ÷åíèå ðåëå ñáðîñà íàãðóçêè
ñì. ðèñ.
H
.
2.8 Ïîäêëþ÷åíèå ê
âîäîïðîâîäíîé ñåòè
•
Ñìîíòèðóéòå ïðèëàãàåìûå äåòàëè.
Ïðè ïðîâåäåíèè ðàáîò íà
âîäîïðîâîäå îáðàòèòå âíèìàíèå íà
íàïðàâëåíèå ñòðåëêè (
D
–
E
).
Íå ðàçðåøàåòñÿ èñïîëüçîâàòü
òðåõõîäîâóþ çàñëîíêó (6) äëÿ
äðîññåëèðîâàíèÿ ïðîõîäÿùåãî
ïîòîêà!
D
Ðåçüáîâîé ñîåäèíèòåëüíûé
ýëåìåíò äëÿ ïîäøòóêàòóðíîãî
ïîäêëþ÷åíèÿ
E
Ðåçüáîâîé ñîåäèíèòåëüíûé
ýëåìåíò äëÿ íàääøòóêàòóðíîãî
ïîäêëþ÷åíèÿ
Êëàññ çàùèòû IP 24 (çàùèòà îò
âîäÿíûõ áðûçã) îáåñïå÷èâàåòñÿ
ïðè ñëåäóþùèõ âèäàõ ïîäêëþ÷åíèÿ:
1
2
3
4
5
6
7
8
10
11
12
13
14
15
16
17
18
19
20
21
22
23
24
9
Ïðè èñïîëüçîâàíèè íàïîðíîé
àðìàòóðû Stiebel Eltron WKMD è
WBMD äëÿ íàäøòóêàòóðíîãî
ìîíòàæà
(ñì. ðàçäåë
"2.12
Ñïåöèàëüíûå ïðèíàäëåæíîñòè"
):
Èñïîëüçîâàòü âîäÿíûå çàãëóøêè
G 1/2 (
23
). Çàãëóøêè âõîäÿò â
êîìïëåêò ïîñòàâêè àðìàòóðû WKMD
èëè WBMD ôèðìû Stiebel Eltron. Ïðè
èñïîëüçîâàíèè àðìàòóðû äðóãèõ
ïðîèçâîäèòåëåé íåîáõîäèì
ìîíòàæíûé êîìïëåêò èç äâóõ
âîäÿíûõ çàãëóøåê (ñì. ðàçäåë
"2.12
Ñïåöèàëüíûå ïðèíàäëåæíîñòè"
).
1
2
3
4
5
6
7
8
10
11
12
13
14
15
16
17
18
19
20
21
22
23
24
9
Ïðè íàäøòóêàòóðíîì
ïîäêëþ÷åíèè
(ñì. ðàçäåë
"2.12
Ñïåöèàëüíûå ïðèíàäëåæíîñòè"
):
1. Èñïîëüçîâàòü çàãëóøêè G 1/2 (
24
).
2. Èñïîëüçîâàòü íàêèäíûå ãàéêè 1/2” c
âêëàäûøåì äëÿ ïàÿíîãî ñîåäèíåíèÿ
Ø
12 ìì (
25
). Îáåñïå÷èòü ïåðåõîä
íà ìåäíóþ òðóáó
Ø
12 ìì (
25 a
).
2. 9 Ïîäâîä
ýëåêòðîïèòàíèÿ F
Ïîäêëþ÷åíèå ïðèáîðà äîëæíî
ïðîèçâîäèòüñÿ ÷åðåç çàùèòíûé
ïðîâîä ñ çàçåìëåíèåì.
– Ïðè ïîäêëþ÷åíèè ñî ñêðûòîé
ïðîâîäêîé èçîëèðîâàííûé êîíåö
ñîåäèíèòåëüíîãî êàáåëÿ äîëæåí
âûñòóïàòü èç ñòåíû íå ìåíåå ÷åì íà
30 ìì
G
.
– Äëÿ ãåðìåòèçàöèè îò ïðîíèêàþùåé
âîäû íóæíî èñïîëüçîâàòü
êàáåëüíûé íàêîíå÷íèê
J
, (
26
),
âõîäÿùèé â êîìïëåêò ïîñòàâêè.
– Ïðèîðèòåòíîå âêëþ÷åíèå
H
DHF 13 C, DHF 15 C, DHF 18 C,
DHF 21 C, DHF 24 C, DHF 13 C3,
DHF 13 C-A:
 êîìáèíàöèè ñ äðóãèìè
ýëåêòðîïðèáîðàìè, íàïðèìåð,
ýëåêòðè÷åñêèìè
òåïëîàêêóìóëÿòîðàìè, ñëåäóåò
ïðèìåíÿòü ðåëå ñáðîñà íàãðóçêè:
a
Ðåëå ñáðîñà íàãðóçêè (ñì. ðàçäåë
"2.12 Ñïåöèàëüíûå
ïðèíàäëåæíîñòè"
).
b
Öåïü óïðàâëåíèÿ ê ñèëîâîìó
êîíòàêòîðó âòîðîãî ïðèáîðà
(íàïðèìåð, ýëåêòðè÷åñêîìó
òåïëîàêêóìóëÿòîðó).
c
Êîíòàêò â öåïè óïðàâëåíèÿ -
îòêðûâàåòñÿ ïðè âêëþ÷åíèè
ïðèáîðà DHF ... C compact control.
Ñáðîñ íàãðóçêè ïðîèñõîäèò ïðè
ýêñïëóàòàöèè DHF ... C
compact
control!
Ðåëå ñáðîñà íàãðóçêè ìîæåò
ïîäêëþ÷àòüñÿ òîëüêî ê ñðåäíåé
ôàçå êëåììíîé êîðîáêè ïðèáîðà.
2.10 Çàâåðøåíèå ìîíòàæà
1.
Ïðè ïðîâåäåíèè óñòàíîâî÷íûõ
ðàáîò íà âîäîïðîâîäíûõ ëèíèÿõ ñ
íàðóæíîé ïðîâîäêîé è/èëè ïðè
ïîäñîåäèíåíèè ê ñèñòåìå ãèáêèõ
âîäîïðîâîäíûõ øëàíãîâ,
íåîáõîäèìî çàêðåïèòü ïîäõîäÿùèì
âèíòîì çàäíþþ ñòåíêó â íèæíåé
÷àñòè (
J
,
27
).
2.
Îòêðîéòå òðåõõîäîâóþ çàñëîíêó
(
D
,
6
).
3.
I
òîëüêî ïðè íàðóæíîé
ïðîâîäêå
:
Àêêóðàòíî ïðîáåéòå â êîëïàêå
óñòðîéñòâà îòâåðñòèÿ (
à
) äëÿ
ïðîâîäêè òðóá, ïðè íåîáõîäèìîñòè
èñïîëüçóéòå íàïèëüíèê. Â
îòâåðñòèÿõ äëÿ ïðîâîäêè òðóá
äîëæíû çàêðåïëÿòüñÿ ïðèëàãàåìûå
ê óñòðîéñòâó ôèòèíãè (
b
).
2.11 Ïåðâûé ââîä â
ýêñïëóàòàöèþ K
(ðàçðåøàåòñÿ âûïîëíÿòü òîëüêî
ñïåöèàëèñòó)
1
2
3
4
5
6
7
8
10
11
12
13
14
15
16
17
18
19
20
21
22
23
24
9
Çàïîëíèòå óñòðîéñòâî è
âûïîëíèòå ïðîäóâêó. Âíèìàíèå
– îïàñíîñòü „ñóõîãî“ ïóñêà!
Äåðæèòå îòêðûòûì îäèí èç
âêëþ÷åííûõ ïîñëå óñòðîéñòâà
âåíòèëåé ãîðÿ÷åé âîäû äî òåõ ïîð,
ïîêà ïîäâîäÿùàÿ ëèíèÿ õîëîäíîé
âîäû è óñòðîéñòâî ïîëíîñòüþ íå
îñâîáîäÿòñÿ îò âîçäóõà. Î âîçäóõå
ñì. óêàçàíèå
„1.3 Âàæíûå
çàìå÷àíèÿ“
.
1
2
3
4
5
6
7
8
10
11
12
13
14
15
16
17
18
19
20
21
22
23
24
9
Ñìîíòèðóéòå êîëïàê óñòðîéñòâà
è çàêðåïèòå âèíòàìè. Âñòàâüòå
êîëïàê è ïîâåðíèòå âïðàâî
(çàáëîêèðóéòå)!
1
2
3
4
5
6
7
8
10
11
12
13
14
15
16
17
18
19
20
21
22
23
24
9
Ïîâåðíèòå ïåðåêëþ÷àòåëü
âûáîðà ìîùíîñòè âëåâî è
âïðàâî äî óïîðà,
äëÿ
çàùåëêèâàíèÿ ïåðåêëþ÷àòåëÿ
ìîùíîñòè.
1
2
3
4
5
6
7
8
10
11
12
13
14
15
16
17
18
19
20
21
22
23
24
9
Âêëþ÷èòå ñåòåâîå íàïðÿæåíèå!
1
2
3
4
5
6
7
8
10
11
12
13
14
15
16
17
18
19
20
21
22
23
24
9
Ïðîâåðüòå ðåæèì ðàáîòû
ïðîòî÷íîãî íàãðåâàòåëÿ!
1
2
3
4
5
6
7
8
10
11
12
13
14
15
16
17
18
19
20
21
22
23
24
9
Óäàëèòå çàùèòíóþ ïëåíêó ñ
óïðàâëÿþùåé äèàôðàãìû.
47
Ðóññêèé
3. Óñòðàíåíèå íåèñïðàâíîñòåé
ïîëüçîâàòåëåì
Íåò íàãðåâà âîäû.
Íå âêëþ÷àåòñÿ ñèñòåìà íàãðåâà
ïðèáîðà
DHF ... C
compact control
äàæå ïðè ïîëíîñòüþ îòêðûòîì âåíòèëå
ãîðÿ÷åé âîäû.
– Îòñóòñòâèå íàïðÿæåíèÿ
– Ïîëüçîâàòåëü/ñïåöèàëèñò:
ïðîâåðèòü ïðåäîõðàíèòåëè äîìîâîé
ýëåêòðîïðîâîäêè
– Íå äîñòèãàåòñÿ âåëè÷èíà ïðîòîêà,
íåîáõîäèìàÿ äëÿ âêëþ÷åíèÿ
îïðåäåëåííîé ìîùíîñòè íàãðåâà
Çàãðÿçíåíèå èëè îáðàçîâàíèå
èçâåñòêîâîãî íàëåòà íà ïåðëÿòîðàõ
àðìàòóðû èëè äóøåâîé ãîëîâêå.
Íåèñïðàâíîñòü
Âîçìîæíàÿ ïðè÷èíà
Ñïîñîá óñòðàíåíèÿ
– Ïîëüçîâàòåëü/ñïåöèàëèñò:
×èñòêà è/èëè óäàëåíèå èçâåñòêîâûõ
îòëîæåíèé.
Íåèñïðàâíîñòü
Âîçìîæíàÿ ïðè÷èíà
Ñïîñîá óñòðàíåíèÿ
Óñòðîéñòâî íå âêëþ÷àåòñÿ
– Ñëèøêîì íèçêèé íàïîð âîäû â
òðóáîïðîâîäå õîëîäíîé âîäû
– Î÷èñòèòå îò èçâåñòêîâûõ îòëîæåíèé
ãîëîâêó äóøà/ ðàñïûëèòåëü.
4.Óñòðàíåíèå íåèñïðàâíîñòåé
ñïåöèàëèñòîì
Òàáëèöà 4
– Çàãðÿçíèëñÿ ôèëüòð â òðåõõîäîâîé
çàñëîíêå (
6
).
– Ïðî÷èñòèòå ôèëüòð (
D
,
, 22
).
Äèôôåðåíöèàëüíîå ðåëå äàâëåíèÿ
(
10
, êîíòðîëüíûé êëàïàí MRC) ñ
ðåãóëÿòîðîì ïîòîêà íå âêëþ÷àåòñÿ,
íåñìîòðÿ íà îòêðûòûé âåíòèëü
ãîðÿ÷åé âîäû
– Ïðî÷èñòèòå ôèëüòð (
D
,
, 22
).
– Íå äîñòèãàåòñÿ îáúåì, äîñòàòî÷íûé
äëÿ âêëþ÷åíèÿ ìîùíîñòè íàãðåâà.
– Ïðîâåðüòå íàïîð âîäû.
Íåñìîòðÿ íà õàðàêòåðíûé øóì
âêëþ÷åíèÿ äèôôåðåíöèàëüíîãî ðåëå
äàâëåíèÿ, óñòðîéñòâî íå ïðîèçâîäèò
íàãðåòóþ âîäó.
–  öåëÿõ áåçîïàñíîñòè îãðàíè÷èòåëü
òåìïåðàòóðû (
12
) âûêëþ÷èëñÿ
– Ïðîâåðüòå è, â ñëó÷àå
íåîáõîäèìîñòè, óìåíüøèòå
òåìïåðàòóðó âîäû íà âõîäå
à) òåìïåðàòóðà âîäû íà âõîäå
ñëèøêîì âûñîêàÿ
á) íåäîñòàòî÷íûé êîíòàêò (îøèáêà â
êîíòàêòå) êîíòðîëüíîãî êëàïàíà
MRC
ñ) îáðàçîâàíèå èçâåñòêîâîãî íàëåòà
â íàãðåâàòåëüíîé ñèñòåìå
Ìîíòàæ ïðèáîðà, ïåðâûé ââîä â
ýêñïëóàòàöèþ è îáñëóæèâàíèå
ìîãóò ïðîâîäèòüñÿ òîëüêî
êîìïåòåíòíûì ñïåöèàëèñòîì â
ñîîòâåòñòâèè ñ äàííîé èíñòðóêöèåé.
Íå ïðèíèìàþòñÿ ïðåòåíçèè ïî
íåèñïðàâíîñòÿì, âîçíèêøèì
âñëåäñòâèå íåïðàâèëüíîé óñòàíîâêè è
ýêñïëóàòàöèè ïðèáîðà.
6. Îêðóæàþùàÿ
ñðåäà è
âòîðñûðü¸
Óíèùîæàâàíå íà îñòàðåëè óðåäè.
Óðåäè, êîèòî ïðèòåæàâàò
ãîðåïîñî÷åíèÿ íàäïèñ íå áèâà
äà ñå èçõâúðëÿò â êîíòåéíåðèòå
çà îòïàäúöè, à òðÿáâà äà ñå ñúáèðàò è
óíèùîæàâàò ðàçäåëíî.
Óíèùîæàâàíå íà ïîäîáíè áðàêóâàíè
óðåäè òðÿáâà äà ñå èçâúðøâà
êîìïåòåíòíî è â ñúîòâåòñòâèå ñ
ìåñòíèòå ðàçïîðåäáè è çàêîíè.
Óñëîâèÿ è ïîðÿäîê ãàðàíòèéíîãî
îáñëóæèâàíèÿ îïðåäåëÿþòñÿ îòäåëüíî
äëÿ êàæäîé ñòðàíû. Çà èíôîðìàöèåé î
ãàðàíòèè è ãàðàíòèéíîì îáñëóæèâàíèè
îáðàòèòåñü ïîæàëóéñòà â
ïðåäñòàâèòåëüñòâî Stiebel Eltron â
Âàøåé ñòðàíå.
OSKO Ñàíêò-Ïåòåðáóðã:
196084 ã. Ñàíêò-Ïåòåðáóðã,
Ìîñêîâñêèé ïð., ä. 79
Òåë./ôàêñ +7 (812) 316-70-20
e-mail: spb-shop@osko.ru
http:// www.osko.ru
OSKO Ìîñêâà:
112250 ã. Ìîñêâà,
óë. Êðàñíîêàçàðìåííàÿ, ä.19
Òåë./ôàêñ +7 (095) 411-91-60
e-mail: mos-shop@osko.ru
http:// www.osko.ru
5. Ãàðàíòèÿ
– Ïðîâåðüòå, è â ñëó÷àå
íåîáõîäèìîñòè, çàìåíèòå
êîíòðîëüíûé êëàïàí MRC. Ïðîìûòü
îòîïèòåëüíóþ ñèñòåìó, âî èçáåæàíèå
ïåðåãðåâà ñèñòåìû. Íàæìèòå êíîïêó
(
13
) îãðàíè÷èòåëÿ òåìïåðàòóðû
(ïðåäîõðàíèòåëÿ)
Íàãðåâàòåëüíàÿ ñèñòåìà íå íàãðåâàåò
âîäó.
– Îòñóòñòâóåò íàïðÿæåíèå.
– Íàãðåâàòåëüíàÿ ñèñòåìà
íåèñïðàâíà.
– Ïðîâåðüòå ïðåäîõðàíèòåëè
(îñíîâíàÿ óñòàíîâêà).
– Çàìåíèòå òðóá÷àòûé ðàäèàòîð
íàãðåâàòåëüíîé ñèñòåìû (
11
).
Òàáëèöà 5
– Çàìåíèòå íàãðåâàòåëüíóþ ñèñòåìó
Technik zum Wohlfühlen
CAP 169640/34316/8/8165 · Wi ·
Irrtum und technische Änderungen vorbehalten · Subject to errors and technical changes! · Sous réserve d‘erreurs et de modificati
ons techniques! · Onder voorbehoud van vergissingen en technische wijzigingen! · Salvo error o modificación técnica! ·
Zastrzeżone
zmiany
techniczne
iewentualne
błędy
·
Omyly
a
technické
zmny
jsou
vyhrazeny!
·
Âîçìîæíîñòü íåòî÷íîñòåé è òåõíè÷åñêèõ èçìåíåíèé íå èñêëþ÷àåòñÿ
Adressen und Kontakte
www.stiebel-eltron.com
Gedruckt auf
100% Recycling-Papier.
Aktiv im Umweltschutz.
8127
Stiebel Eltron Vertriebszentren
Dortmund
Oespel (Indupark)
Brennaborstr. 19
44149 Dortmund
Telefon
02 31 / 96 50 22-10
E-Mail: dortmund@stiebel-eltron.com
Frankfurt
Rudolf-Diesel-Str. 18
65760 Eschborn
Telefon
0 61 73 / 6 02-10
E-Mail: frankfurt@stiebel-eltron.com
Hamburg
Georg-Heyken-Straße 4a 21147 Hamburg
Telefon
0 40 / 75 20 18-10
E-Mail: hamburg@stiebel-eltron.com
Köln
Ossendorf
Mathias-Brüggen-Str. 132 50829 Köln
Telefon
02 21 / 5 97 71-10
E-Mail: koeln@stiebel-eltron.com
Leipzig
Airport Gewerbepark/Glesien
Ikarusstr. 10
04435 Schkeuditz-Glesien
Telefon
03 42 07 / 7 55-10
E-Mail: leipzig@stiebel-eltron.com
München
Hainbuchenring 4
82061 Neuried
Telefon
0 89 / 89 91 56-10
E-Mail: muenchen@stiebel-eltron.com
Stuttgart
Weilimdorf
Motorstr. 39
70499 Stuttgart
Telefon
07 11 / 9 88 67-10
E-Mail: stuttgart@stiebel-eltron.com
Unseren zentralen Service
erreichen Sie unter 0 180 3...
... in der Zeit von:
Montag bis Donnerstag 7
15
bis 18
00
Uhr
Freitag
7
15
bis 17
00
Uhr
Verkauf
Telefon
0 180 3 - 70 20 10
Telefax
0 180 3 / 70 20 15
E-Mail: info-center@stiebel-eltron.com
Kundendienst
Telefon
0 180 3 - 70 20 20
Telefax
0 180 3 / 70 20 25
E-Mail: kundendienst@stiebel-eltron.com
Ersatzteil-Verkauf
Telefon
0 180 3 - 70 20 30
Telefax
0 180 3 / 70 20 35
E-Mail: ersatzteile@stiebel-eltron.com
Zentrale Holzminden
Stiebel Eltron GmbH & Co. KG
Dr.-Stiebel-Str.
37603 Holzminden
Telefon
0 55 31 / 7 02-0
Fax Zentrale
0 55 31 / 7 02-4 80
info@stiebel-eltron.com
Internet
www.stiebel-eltron.com
Stiebel Eltron International GmbH
Dr.-Stiebel-Str.
37603 Holzminden
Telefon
0 55 31 / 7 02-0
Fax
0 55 31 / 7 02-4 79
info@stiebel-eltron.com
Internet
www.stiebel-eltron.com
Tochtergesellschaften und Vertriebs-
zentren Europa und Übersee
Belgique
Stiebel Eltron Sprl /Pvba
Rue Mitoyenne 897
B-4840 Welkenraedt
087-88 14 65
Fax 087-88 15 97
info@stiebel-eltron.be
Internet
www.stiebel-eltron.be
C
∨∨∨∨∨
eská republika
Stiebel Eltron spol. s r.o.
K Háju
o
oo
oo
m 946
C
∨∨∨∨∨
Z-15500 Praha 5-Stodulky
2-511 16 111 Fax 2-355 12 122
info@stiebel-eltron.cz
Internet
www.stiebel-eltron.cz
France
Stiebel Eltron S.A.S.
7-9, rue des Selliers
B.P. 85107
F-57073 Metz-Cédex
03-87-74 38 88
Fax 03-87-74 68 26
info@stiebel-eltron.fr
Internet
www.stiebel-eltron.fr
Great Britain
Exclusive Distributor:
Applied Engergy Products Ltd.
Morley Way
GB-Peterborough PE2 9JJ
08709-000420
Fax 01733-319610
sales@applied-energy.com
Internet
www.applied-energy.com
Magyarország
Stiebel Eltron Kft.
Pacsirtamezo´´ u. 41
H-1036 Budapest
012 50-60 55 Fax 013 68-80 97
info@stiebel-eltron.hu
Internet
www.stiebel-eltron.hu
Nederland
Stiebel Eltron Nederland B.V.
Daviottenweg 36
Postbus 2020
NL-5202 CA's-Hertogenbosch
073-6 23 00 00
Fax 073-6 23 11 41
stiebel@stiebel-eltron.nl
Internet
www.stiebel-eltron.nl
Österreich
Stiebel Eltron Ges.m.b.H.
Eferdinger Str. 73
A-4600 Wels
072 42-4 73 67-0
Fax 072 42-4 73 67-42
info@stiebel-eltron.at
Internet
www.stiebel-eltron.at
Polska
Stiebel Eltron sp.z. o.o
ul. Instalatorów 9
PL-02-237 Warszawa
022-8 46 48 20
Fax 022-8 46 67 03
stiebel@stiebel-eltron.com.pl
Internet
www.stiebel-eltron.com.pl
Sverige
Stiebel Eltron AB
Friggagatan 5
SE-641 37 Katrineholm
0150-48 7900
Fax 0150-48 7901
info@stiebel-eltron.se
Internet
www.stiebel-eltron.se
Schweiz
Stiebel Eltron AG
Netzibodenstr. 23 c
CH-4133 Pratteln
061-8 16 93 33
Fax 061-8 16 93 44
info@stiebel-eltron.ch
Internet
www.stiebel-eltron.com
Thailand
Stiebel Eltron Ltd.
469 Building 77, Bond Street
Tambon Bangpood
Ampur Pakkred
Nonthaburi 11120
02-960 1602-4
Fax 02-960 1605
stiebel@loxinfo.co.th
Internet
www.stiebeleltronasia.com
USA
Stiebel Eltron Inc.
17 West Street
West Hatfield MA 01088
0413-247-3380
Fax 0413-247-3369
info@stiebel-eltron-usa.com
Internet
www.stiebel-eltron-usa.com
0,09 /min (Stand: 01/06)
DHF 13 C, DHF 15 C, DHF 18 C, DHF 21 C, DHF 24 C,
DHF 12 C1, DHF 13 C3 compact control
Montageschablone Template Matrice Montageschabloon Plantilla de montaje Szablon montażowy Montážní šablona Ìîíòàæíûé øàáëîí
100 mm
30 mm
35 mm
15 mm
8366.01
15 mm
140 mm
220 mm
370 mm
323 mm
Technik zum Wohlfühlen

