Indesit VIA-640-C-(FR)-S – page 3
Manual for Indesit VIA-640-C-(FR)-S

Conselhos práticos para a cozedura
PT
41
Cozedura à pressão
Frituras
ª
Panela de pressão
Cozedura em
fogo altíssimo
•
Assado Ebulição
•
Crêpe Cozedura em fogo alto e doiramento
(Assados, Bifes, Escalopes, Filés de peixe,
Cozedura
Ovos fritos)
em fogo alto
¶
¶
Adensamento rápido (molhos líquidos)
Água fervente (Massas, Arroz, Verduras)
Leite
§
§
Adensamento lento (molhos consistentes)
S
Cozedura em fogo médioCozedura em fogo
S
Cozedura em banho-maria Cozedura Panela de pressão após o síbilo
¢
¢
£
Cozedura em fogo brando
brando
Aquecimento dos alimentos
(estufados)
™
™
Caldo de chocolate Manter o alimento quente
brando
fogo muito
Cozedura em
¡

Precauções e conselhos
! Este aparelho foi projectado e fabricado em conformidade
estiverem quentes ou mornas, podem causar um dano
PT
com as normas internacionais de segurança. Estas
grave à placa.
advertências são fornecidas por razões de segurança e devem
• Certifique-se que as pegas das panelas fiquem sempre
ser lidas com atenção.
viradas para o lado interno do plano de cozedura para
evitar batidas acidentais.
Este aparelho é em conformidade com as seguintes
• Não puxe pelo cabo para desligar a ficha da tomada
Directivas da Comunidade Europeia:
eléctrica, pegue pela ficha.
• Não realize limpeza nem manutenção sem antes ter
-2006/95/CEE de 12.12.06 (Baixa Tensão) e posteriores
desligado a ficha da rede eléctrica.
modificações
• Não é previsto que este aparelho seja utilizado por
-2004/108/CEE de 15/12/04 (Compatibilidade Electromagnética)
pessoas (incluso crianças) com reduzidas capacidades
e posteriores modificações
físicas, sensoriais ou mentais, por pessoas inexperientes
- 93/68/CEE de 22/07/93 e posteriores modificações.
ou que não tenham familiaridade com o produto, a não
- 1275/2008 stand-by/off mode.
ser que seja vigiadas por uma pessoa responsável pela
sua segurança ou que tenham recebido instruções
Segurança geral
preliminares sobre o uso do aparelho.
• Advertência para os portadores de pacemaker ou outros
!Controlar que a tomada de ar através da grelha do
dispositivos médicos implantáveis activos:
ventilador não esteja obstruída. O plano de encaixar,
O plano de cozedura é conforme a todas as
de facto, necessita de uma correcta ventilação para o
normativas em vigor em matéria de interferências
arrefecimento dos componentes electrónicos.
electromagnéticas.
! É desaconselhável instalar um plano de cozedura de indução
Este produto responde portanto perfeitamente a
em cima de uma geladeira sob uma banca (calor) ou em cima
todos os requisitos de lei (directivas 89/336/CEE).
de uma máquina de lavar (vibrações). O espaço necessário
Foi projectado de modo que não crie interferências a
para a ventilação dos elementos electrónicos seria insuficiente.
outras aparelhagens eléctricas utilizadas, desde que as
• Este aparelho foi concebido para utilização de tipo não
mesmas também sejam conformes às directivas acima
profissional no âmbito de moradas.
citadas.
• Este aparelho não deve ser instalado ao ar livre, mesmo num
O plano de cozedura por indução gera campos
sítio protegido, porque é muito perigoso deixá-lo exposto a
electromagnéticos de curto alcance.
chuva e temporais.
Para evitar qualquer risco de interferências entre o plano
• Não toque na máquina se estiver descalço, ou se as suas
de cozedura e o pacemaker, este último deverá ser
mãos ou pés estiverem molhados ou húmidos.
realizado em conformidade com as normativas em vigor.
• O aparelho deve ser utilizado para cozinhar
Em relação a isto, podemos garantir unicamente a
alimentos, somente por pessoas adultas e
conformidade do nosso produto. Para informações
conforme as instruções contidas neste livrete.
sobre a conformidade ou eventuais problemas de
Qualquer outro uso (como por exemplo, aquecedor
incompatibilidade, contacte o seu médico ou o
de ambientes) deve ser considerado impróprio
fabricante do pacemaker.
e portanto perigoso. O fabricante não pode
• Não permita que as crianças brinquem com o aparelho.
ser considerado responsável por eventuais
• Não apoie objectos metálicos (facas, colheres, tampas,
danos derivados de usos impróprios, errados e
etc.) sobre o plano porque podem ficar quentes.
irrazoáveis.
• O aparelho não é destinado a ser colocado em
• Não utilize o plano como superfície de apoio ou como
funcionamento por meio de um temporizador
tábua de cortar.
externo ou por um sistema de comando à distância
• A placa de vitrocerâmica é resistente às batidas
separado.
mecânicas, entretanto pode rachar-se (ou
eventualmente partir-se) se for batida com um
objecto pontiagudo, como um utensílio. Nestes
casos, desligue imediatamente o aparelho da rede de
Eliminação
alimentação e contacte a assistência técnica.
• Eliminação do material de embalagem: obedeça as
• Evite que o cabo de alimentação de outros
regras locais, de maneira que as embalagens possam ser
electrodomésticos encoste-se em partes quentes do
reutilizadas.
plano de cozedura.
• A directiva Europeia 2002/96/CE relativa aos resíduos de
• Não se esqueça que a temperatura das zonas de
equipamentos eléctricos e electrónicos (REEE) prevê que
cozedura permanece muito alta pelo menos trinta
os electrodomésticos não devem ser eliminados no normal
minutos depois de apagadas. O calor resíduo é
fluxo dos resíduos sólidos urbanos. Os aparelhos não mais
sinalizado também por um indicador (veja Início e
utilizados devem ser recolhidos separadamente para optimizar
utilização).
a taxa de recuperação e reciclagem dos materiais que os
• Mantenha a devida distância da placa quaisquer
compõem e impedir potenciais danos à saúde e ao meio
objectos que podem se derreter, por exemplo,
ambiente. O símbolo da lixeira cancelada está indicado em
objectos de plástico, de alumínio ou produtos com um
todos os produtos para lembrar o dever de colecta selectiva.
alto conteúdo de açúcar. Preste muita atenção com
Para maiores informações sobre a correcta eliminação dos
as embalagens e as películas de plástico ou alumínio:
electrodomésticos, os proprietários poderão contactar o
se deixá-los sobre as superfícies enquanto ainda
serviço de colecta público ou os revendedores.
42

Manutenção e cuidados
Desligar a corrente eléctrica
este produto protegerá a superfície se algo for
Antes de realizar qualquer operação, desligue o
derramado durante a cozedura. É recomendável
PT
aparelho da alimentação eléctrica.
realizar estas operações com o aparelho morno ou
frio.
Limpeza do aparelho
• Lembre-se sempre de enxaguar com água limpa e
! Evite o emprego de detergentes abrasivos ou
enxugar o plano com cuidado: para não acontecer
corrosivos, tais como sprays para churrasqueiras
de resíduos de produtos grudarem-se na sucessiva
e fornos, tira-manchas e produtos contra ferrugem,
cozedura.
detergentes em pó e esponjas com superfície
abrasiva: podem arranhar irremediavelmente a
Quadro em aço inoxidável (somente nos modelos
superfície.
com moldura)
! Nunca utilize equipamento de limpeza a vapor ou de
O aço inoxidável pode manchar-se por causa da alta
alta pressão para limpar a aparelhagem.
quantidade de calcário na água em contacto durante
muito tempo com o metal, ou por causa de produtos
• Para a manutenção ordinária, é suficiente lavar o
de limpeza muito agressivos que contenham fósforo.
plano com uma esponja húmida e, em seguida,
É aconselhável enxaguar com água abundante e
enxugar com papel absorvente de cozinha.
enxugar com cuidado, depois de ter limpado o plano.
• Se o plano estiver muito sujo, esfregue com um
Se for derramada água, enxugue-a rapidamente com
produto específico para limpeza de superfícies em
cuidado.
vidro cerâmica *, enxagúe e enxugue.
! Alguns planos de cozedura tem uma moldura de
• Para tirar as acumulações de sujidade maiores, use
alumínio parecida com o aço inoxidável. Não utilize
uma espátula apropriada. Intervenha assim que
produtos para a limpeza e o desengorduramento não
possível, sem aguardar que o aparelho arrefeça,
idóneos para o alumínio.
para evitar que resíduos grudem. Podem ser
obtidos excelentes resultados se usar uma esponja
Desmontar o plano
especial de fios de aço inoxidável - específica para
Caso seja necessário desmontar o plano de cozedura:
planos em vidro cerâmica- molhada de água e
1. remova os parafusos que fixam as molas de
sabão.
centragem nos lados;
• No caso em que no plano de cozedura tenham-
2. solte os parafusos dos ganchos de fixação nos
se acidentalmente fundidos objectos ou materiais
ângulos;
como plástico ou açúcar, remova-os imediatamente
3. extraia o plano de cozedura do vão do móvel.
com a espátula, até que a superfície esteja ainda
quente.
! Recomendamos que se evite tentar o acesso aos
• Depois de limpo, o plano poderá ser tratado
mecanismos internos para tentar uma reparação. Em
com um produto específico para a manutenção
caso de avaria, contactar a Assistência técnica.
e a protecção: a película invisível deixada por
Descrição técnica dos modelos
O sistema por indução é o processo de cozedura mais rápido que existe. Ao contrário das chapas tradicionais, não
é a zona de cozedura que se aquece: o calor é gerado directamente no interior da panela, a qual deverá possuir
necessariamente um fundo em material ferromagnético.
43
Planos de cozedura
VIA 640 C
VIC 641 X
VIA 640 C S
Zonas de cozedura
Potência (em W)
Potência (em W)
Traseiro esq.
I 1400
I 1400
Traseiro dir.
I 2200
I 2200 - B 3000*
Dianteiro esq.
I 2200
I 2200
Dianteiro dir.
I 1400
I 1400 - 600 se Traseiro dir.*
Potência total
7200
7200
Legenda:
I. = zona de cozedura de indução simples
B = booster: a zona de cozedura pode ser super alimentada com 2000/3000 W.
* = a potência máxima é limitada até que o booster esteja activo na zona de cozedura posterior relativa (veja Início e
utilização).

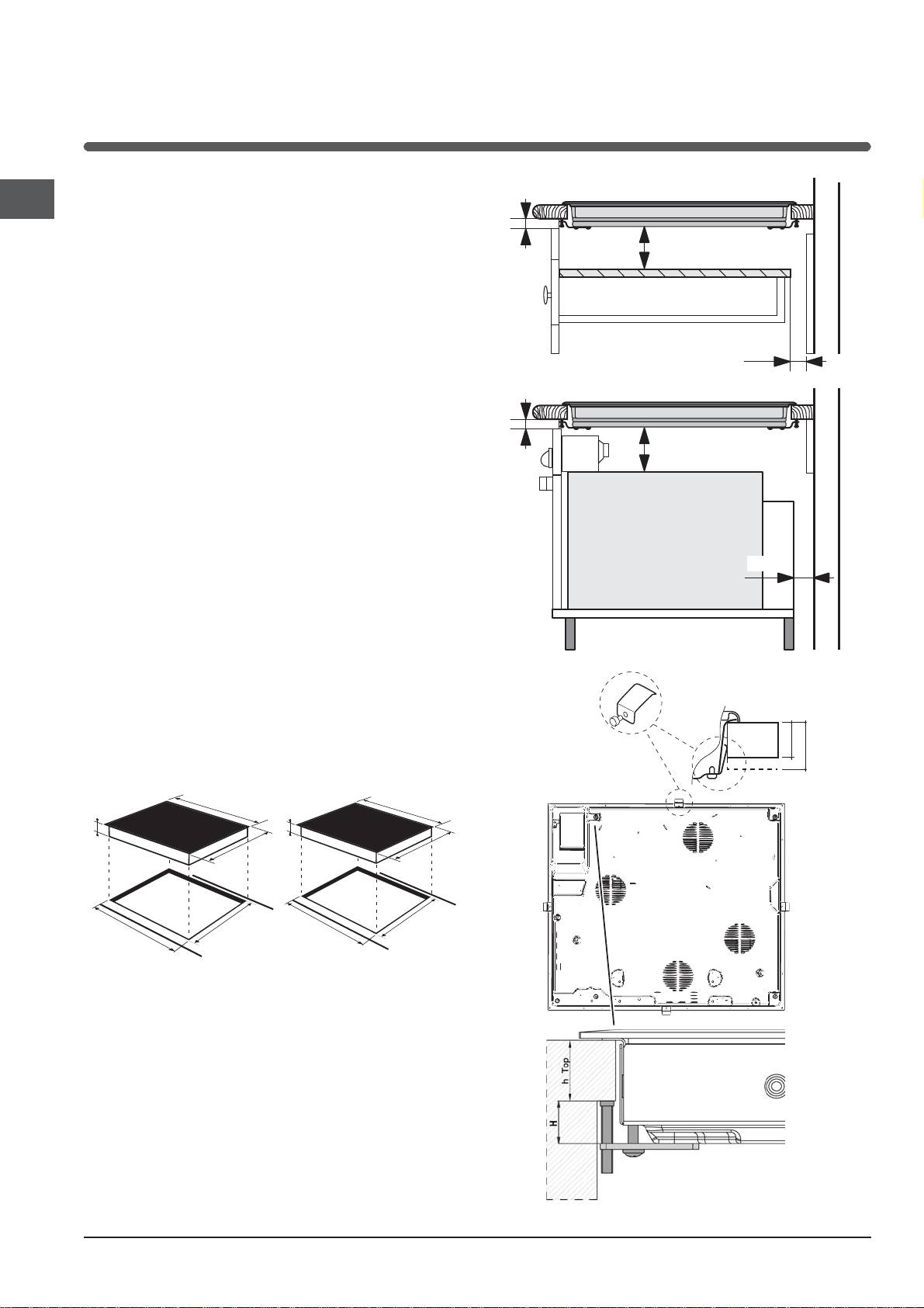
Installation
DE
! Bewahren Sie diese Bedienungsanleitung bitte
sorgfältig auf, damit Sie sie jederzeit zu Rate ziehen
können. Sorgen Sie dafür, dass sie im Falle eines
Verkaufs, eines Umzugs oder einer Übergabe an
min. 20 mm
einen anderen Benutzer das Gerät stets begleitet,
damit auch der Nachbesitzer die Möglichkeit hat, darin
nachschlagen zu können.
5 mm
WÄRMEFACH
! Lesen Sie bitte die nachfolgenden Hinweise
aufmerksam durch: sie liefern wichtige Informationen
hinsichtlich der Installation, des Gebrauchs und der
min. 40 mm
Sicherheit.
Aufstellung
! Verpackungsmaterial ist kein Spielzeug für Kinder.
Es ist entsprechend den Vorschriften zur getrennten
min. 20 mm
Müllsammlung zu entsorgen (siehe Vorsichtsmaßregeln
und Hinweise).
! Die Installation ist gemäß den vorliegenden
5 mm
Anweisungen und von Fachpersonal durchzuführen.
HEIßLUFT
Jede unsachgemäße Installation kann Menschen und
Tiere gefährden oder Sachschaden verursachen.
min. 40 mm
Einbau
Um eine einwandfreie Betriebsweise des Gerätes zu
gewährleisten, muss der Umbauschrank folgende
Eigenschaften aufweisen:
• Die Auflagefläche muss aus hitzebeständigem Material
beschaffen sein, um einer Temperatur von ca. 100°C
standzuhalten.
• Soll das Kochfeld über einem Backofen installiert werden,
muss letzterer mit einem Kühlsystem mit Zwangsbelüftung
ausgestattet sein.
• Von der Installation eines Kochfeldes über einem
Geschirrspüler wird abgeraten. Gegebenenfalls ist zur
Abdichtung ein Zwischenteil zwischen beiden Geräten zu
installieren.
• Je nach dem zu installierenden Kochfeld (siehe
Abbildungen) sind Arbeitsflächenausschnitte
folgender Abmessungen vorzusehen:
Belüftung
Zur ausreichenden Belüftung und zur Vermeidung
der Überhitzung der Flächen rund um das Gerät muss das
Kochfeld wie folgt positioniert werden:
• in einem Abstand von mindestens 40 mm von der dahinter
liegenden Wand bzw. jeder anderen vertikalen Fläche;
• um einen Abstand von mindestens 20 mm zwischen
dem für den Einbau bestimmten Ausschnitt und dem
entsprechenden Unterschrank zu gewährleisten.
• Angrenzende Schränke, deren Höhe die der
44
FRONTSEITE DES
KOCHFELDES
AUFLAGEFLÄCHEAUFLAGEFLÄCHE
AUFLAGEFLÄCHE
30
40
KOCHFELD
UMGEDREHT
590
574
53
48
520
504
560 +/- 1
560 +/- 1
490 +/- 1
490 +/- 1

Arbeitsplatte überschreiten, müssen einen Abstand
Andere Anschlussarten
DE
vom Rand der Kochmulde von mindestens 600 mm
Sollte die Elektroanlage einer der nachfolgenden Eigenschaften
entsprechen:
aufweisen.
Netzspannung und -frequenz
• 400V - 2+N ~ 50 Hz
Befestigung
• 220-240V 3 ~ 50 Hz
Das Kochfeld muss auf einer perfekt ebenen Stütz- bzw.
• 400V 3 - N ~ 50 Hz
Auflagefläche installiert werden.
• 400V - 2+2N ~ 50 Hz
Durch unsachgemäße Befestigung hervorgerufene
Verformungen könnten die Eigenschaften und
Trennen Sie die Drähte und schließen Sie sie gemäß
Leistungen des Kochfeldes beeinträchtigen.
nachfolgender Tabelle und Zeichnungen an:
Netzspannung
Die Länge der Regelschrauben der Befestigungsklammern
Elektrokabel Anschluss der Drähte
und -frequenz
wird vor Montage derselben eingestellt, und zwar je nach
400V - 2+N ~
der Stärke der Auflagefläche:
50 Hz
: gelb/grün;
• 30 mm - Schraube 23 mm;
220-240V 3 ~
N: die 2 blauen
50 Hz
• 40 mm - Schraube 13 mm.
Drähte zusammen
L1: schwarz
400V 3-N ~
Verfahren Sie zur Befestigung wie folgt:
50 Hz
L2: braun
1. Schrauben Sie die 4 Zentrierungsfedern mittels der vier
: gelb/grün;
kurzen, stumpfen Schrauben in die in der Mitte einer jeden
Kochfeldseite befindlichen Lochbohrungen.
400V - 2+2N ~
N1: blau
50 Hz
N2: blau
2. Setzen Sie das Kochfeld durch leichtes Andrücken
L1: schwarz
des gesamten umlaufenden Randes mittig in den
L2: braun
Möbelausschnitt ein, und zwar so, dass es vorschriftsmäßig
Anschluss des Netzkabels an das Stromnetz
auf der gesamten Auflagefläche aufstützt.
3. Für Kochfelder mit Seitenprofilen: Stecken Sie nach
Einsatz des Kochfeldes in den Möbelausschnitt die 4
Wird das Gerät direkt an das Stromnetz angeschlossen, ist
Befestigungshaken (ein jeder mit seinem Stift) in den
zwischen Stromnetz und Gerät ein allpoliger Schalter mit
umlaufenden unteren Rand des Kochfeldes, und schrauben
einer Mindestkontaktöffnung von 3 mm zwischenzuschalten.
Sie diese mittels der vier langen, spitzen Schrauben fest, bis
! Der Installateur ist für den ordnungsgemäßen elektrischen
das Glas an der Auflagefläche anhaftet.
Anschluss sowie die Einhaltung der Sicherheitsvorschriften
verantwortlich.
! Die Schrauben der Zentrierungsfedern müssen
unbedingt zugänglich sein.
Vor dem Anschluss stellen Sie bitte sicher, dass:
• die Netzsteckdose geerdet ist und den gesetzlichen
! Gemäß den Sicherheitsvorschriften muss nach
Bestimmungen entspricht;
erfolgtem Einbau die Möglichkeit einer Berührung mit
• die Netzsteckdose für die auf dem Typenschild (befindlich auf
Strom führenden Teilen ausgeschlossen sein.
dem Gerät) angegebene maximale Leistungsaufnahme des
! Alle zum Schutz dienenden Teile müssen so
Gerätes ausgelegt ist;
befestigt werden, dass ein Entfernen derselben ohne
• die Netzspannung im Bereich der auf dem Typenschild
Zuhilfenahme eines Werkzeugs nicht möglich ist.
angegebenen Werte liegt;
• die Steckdose mit dem Netzstecker kompatibel ist. Sollte dies
Elektroanschluss
nicht der Fall sein, wechseln Sie bitte die Steckdose oder den
! Bei der Installation des Kochfeldes und der eines
Netzstecker aus; verwenden Sie keine Verlängerungen und
eventuellen Einbaubackofens müssen sämtliche
Mehrfachsteckdosen.
Elektroanschlüsse getrennt vorgenommen werden, und
! Netzkabel und Steckdose müssen bei installiertem Gerät
dies nicht nur aus Sicherheitsgründen, sondern auch
leicht zugänglich sein.
um den Backofen, falls nötig, leichter herausziehen zu
! Das Netzkabel darf nicht gebogen oder eingeklemmt
können.
werden.
! Das Netzkabel muss regelmäßig kontrolliert werden und
Einphasenanschluss
darf nur durch autorisiertes Fachpersonal ausgetauscht
Das Kochfeld ist mit einem bereits angeschlossenen
werden.
Netzkabel ausgestattet und ist für einen Einphasenanschluss
! Der Hersteller lehnt jede Verantwortung ab, falls diese
voreingestellt. Schließen Sie die Drähte gemäß nachfolgender
Vorschriften nicht eingehalten werden sollten.
Tabelle und Zeichnungen an:
! Entfernen oder ersetzten Sie unter keinen Umständen
Netzspannung
Elektrokabel Anschluss der Drähte
und -frequenz
das Netzkabel. Wird das Kabel entfernt oder ersetzt,
verfallen sowohl die Gewährleistung als auch das CE-
: gelb/grün;
220-240V 1+N ~
N
: die 2 blauen Drähte zusammen
Zeichen. INDESIT übernimmt keine Verantwortung für
50 Hz
L
: braun zusammen mit schwarz
Unfälle oder Schäden, die durch das Entfernen/Ersetzen
des Original-Netzkabels verursacht werden. Der Austausch
darf ausschließlich mit einem Originalersatzteil und durch
autorisiertes Fachpersonal INDESIT durchgeführt werden.
45

Inbetriebsetzung und
Gebrauch
DE
! Der auf die Dichtungen aufgetragene Leim
Die hier aufgeführten Geräusche hängen mit der
könnte Fettspuren auf dem Glas hinterlassen. Wir
Induktionstechnologie zusammen und sind nicht
empfehlen Ihnen, diese vor Einsatz des Gerätes mit
unbedingt ein Hinweis auf eine fehlerhafte Funktion.
einem herkömmlichen Reinigungsmittel (eine nicht
scheuernde Poliercreme) zu entfernen. Während der
! Durch längeres Drücken der Tasten - und +
ersten Betriebsstunden könnte ein Geruch verbrannten
können die Leistungswerte und die Minuten des Timers
Gummis zu vernehmen sein. Dies wird sich nach
im Schnelllauf verändert werden.
kurzer Zeit geben.
Einschalten des Kochfeldes
! Wird das Kochfeld an das Stromnetz angeschlossen,
ertönt nach einigen Sekunden ein kurzes akustisches
Das Kochfeld wird über die Taste (für ca. 1
Signal. Nur daraufhin kann das Kochfeld eingeschaltet
Sekunde gedrückt halten) eingeschaltet.
werden.
Einschalten der Kochzonen
Normale Funktionsgeräusche des Kochfeldes:
• Brummen: wird von der Vibration der Metallelemente
Eine jede Kochzone wird über eine Bedienungstaste
des Induktors und des Topfes verursacht, es
entsteht ein für die Erhitzung notwendiges
und über einen aus einer Doppeltaste (- und +)
elektromagnetisches Feld; das Geräusch steigert
bestehenden Leistungsregler eingeschaltet.
sich mit der Leistungssteigerung des Induktors.
• Um eine Kochzone einzuschalten, drücken Sie die
• Leichtes Pfeifgeräusch: entsteht, wenn ein leerer
entsprechende Bedienungstaste und stellen daraufhin
Topf auf die Kochzone gestellt wird; sobald
Lebensmittel oder Wasser hinzugefügt werden,
über die Tasten
- und + die gewünschte
verschwindet das Geräusch.
Leistungsstufe ein.
• Prasseln: es ist ein Geräusch, das durch die
Vibrationen des Topfbodenmaterials entsteht,
Booster-Funktion*
sobald es von den vom Magnetfeld (Induktion)
verursachten Wirbelströmen durchdrungen wird; die
Zur Beschleunigung der Aufheizzeit kann zu einigen
Geräuschstärke hängt vom Material des Topfbodens
Kochzonen durch Drücken der Taste
die
ab und wird schwächer, je größer der Topf ist.
Boosterfunktion zugeschaltet werden. Die über der
• Starkes Pfeifgeräusch: es entsteht, wenn die
Taste befindliche Kontrollleuchte schaltet sich ein.
beiden Induktoren auf der gleichen Vertikalen bei
Diese Funktion steigert die Leistung auf 3000W oder
maximaler Leistung funktionieren und/oder wenn
4000W, je nach Größe der angesteuerten Kochzone.
auf dem größeren der beiden die Booster-Funktion
Die Boosterfunktion schaltet sich automatisch nach 4
eingeschaltet ist und der andere sich selbsttätig
Minuten wieder aus. Solange die Booster-Funktion für
reguliert. Das Geräusch wird schwächer, sobald
eine der Kochzonen aktiv ist, bleibt die Leistung der
sich die Leistungsstufe des selbstregulierten
dahinter oder davor liegenden Kochzone beschränkt
Induktors senkt; es tritt besonders dann auf, wenn
(z.B.: Ist der Booster der hinteren linken Kochzone
der Topfboden aus Schichten unterschiedlichen
aktiv, dann ist die Leistung der vorderen linken
Materials besteht.
Kochzone herabgesetzt). Weitere Informationen finden
• Gebläsegeräusch: zur richtigen Funktion des
Sie in der Technischen Beschreibung der jeweiligen
Kochfelds und zum Schutz der Elektronikteile vor
Modelle.
Überhitzung muss ein Gebläse eingesetzt werden.
Das Gebläse läuft auf der maximalen Leistungsstufe
Ausschalten der Kochzonen
wenn der große Induktor auf maximaler
Um eine Kochzone auszuschalten, wählen Sie diese
Leistungsstufe läuft oder wenn die Booster-Funktion
eingeschaltet ist; in allen anderen Situationen
zuerst über die entsprechende Bedienungstaste
funktioniert es bei mittlerer Leistungsstufe, je nach
und:
erfasster Temperatur. Es ist darüber hinaus möglich,
• Drücken Sie die Taste
- : Die Kochzonenleistung
dass das Gebläse auch bei ausgeschaltetem
sinkt allmählich bis zum völligen Ausschalten der
Kochfeld weiter läuft, wenn die erfasste Temperatur
Kochzone.
noch hoch ist.
Programmierung der Garzeit
! Sämtliche Kochzonen können gleichzeitig für eine
Garzeit von 1 – 99 Minuten programmiert werden.
* Nur bei einigen Modellen.
46

DE
1. Wählen Sie die Kochzone über die entsprechende
1. Drücken Sie die Programmiertaste
bis sich die
Wahltaste.
Kontrollleuchte des Minutenzählers einschaltet.
2. Die Leistungsstufe der Kochzone einstellen.
2. Stellen Sie über die Tasten “-” und “+” die
3. Drücken Sie die Programmiertaste
. Die
gewünschte Zeit ein.
Kontrollleuchte der ausgewählten Zone blinkt.
3. Bestätigen Sie die Einstellung durch Druck auf die
4. Stellen Sie über die Tasten “-” und “+” die
Taste
.
gewünschte Garzeit ein.
Die Zeitrechnung (rückwärtiger Ablauf) des Timers
5. Bestätigen Sie die Einstellung durch Druck auf
setzt unverzüglich ein. Nach Ablauf der Zeit ertönt ein
die Taste
, oder warten Sie 10 Sekunden für die
akustisches Signal (über die Dauer von 1 Minute).
automatische Auswahl.
Die Zeitrechnung (rückwärtiger Ablauf) des Timers
Sperre der Schaltelemente
setzt unverzüglich ein. Ist die programmierte Garzeit
abgelaufen, ertönt (1 Minute lang) ein akustisches
Während der Betriebszeit des Kochfeldes können
Signal und die Kochzone wird automatisch
die Schaltelemente gesperrt werden, um irrtümliche
ausgeschaltet.
Einstellungsänderungen zu verhindern (durch Kinder, bei
Wiederholen Sie obige Schritte für jede Kochzone, die
der Reinigung usw.). Drücken Sie die Taste
, dann
Sie programmieren möchten.
werden die Schaltelemente gesperrt. Die über der
Taste befindliche Kontrollleuchte leuchtet auf.
Anzeige im Falle einer Mehrfachprogrammierung
Zu weiteren Einstellungen (z.B. um den Garvorgang zu
Wurde die Betriebszeit einer oder mehrerer Kochzonen
unterbrechen) müssen die Schaltelemente erst wieder
vorprogrammiert, erscheint auf dem Display die
Restgarzeitanzeige der Kochzone, die für die
freigegeben werden. Drücken Sie die Taste
für
niedrigste Zeit programmiert wurde; die entsprechende
einige Sekunden; die Kontrollleuchte erlischt, die
Kontrollleuchte blinkt, um anzuzeigen, um welche
Schaltelemente werden freigegeben.
Kochzone es sich handelt. Die Kontrollleuchten der
übrigen programmierten Kochzonen sind eingeschaltet.
Ausschalten des Kochfeldes
Um die Restzeit der anderen programmierten Kochfelder
anzuzeigen drücken Sie wiederholt die Taste
: es
Durch Drücken der Taste wird das Kochfeld
werden in Folge und im Uhrzeigersinn alle Zeiten des
ausgeschaltet.
Kurzzeitweckers und der programmierten Kochfelder
Sollten die Schaltelemente gesperrt worden sein,
angezeigt, beginnend mit dem Kochfeld vorne links.
bleiben diese auch bei Wiedereinschalten des Gerätes
gesperrt. Um das Kochfeld wieder einschalten zu
Änderung der Programmierung
können, müssen die Schaltelemente vorher entsperrt
1. Drücken Sie mehrmals die Taste
, bis die Zeit
werden.
der Kochzone, deren Programmierung Sie ändern
möchten, angezeigt wird.
„Demo“-Mode (Vorführmodus)
2. Stellen Sie mittels der Tasten - und + die neue Zeit
ein.
Es besteht die Möglichkeit, einen Vorführmodus
3. Bestätigen Sie die Einstellung durch Druck auf die
einzustellen, bei dem das Bedienfeld (einschließlich der zur
Programmierung erforderlichen Bedienelemente) normal
Taste
.
funktioniert, die Heizelemente dagegen schalten sich nicht
Möchten Sie eine Programmierung löschen, dann
ein. Zur Aktivierung eines Vorführmodus muss das Kochfeld
verfahren Sie wie folgt: Bei Punkt 2 drücken Sie die
eingeschaltet und alle Platten ausgeschaltet sein.
Taste -: Die programmierte Zeit wird fortlaufend
gesenkt bis zum Ausschalten bei 0. Die programmierte
• Halten Sie die Tasten + und - für 6 Sekunden gleichzeitig
Zeit wird gelöscht und das Display verlässt den
gedrückt. Nach 6 Sekunden blinken die Kontrollleuchte
Programmierungs-Modus.
ON/OFF und die Kontrollleuchte SPERRE DER
SCHALTELEMENTE für eine Sekunde. Lassen Sie die
Die Minutenuhr
Tasten + und – los und drücken Sie die Taste
;
• Auf dem Display erscheint abwechselnd die Anzeige
Das Kochfeld muss eingeschaltet sein.
DE und MO und das Kochfeld schaltet sich aus:
Mit dem Minutenzähler kann ein Zeitraum bis 99 Minuten
• Wird das Kochfeld daraufhin wieder eingeschaltet,
eingestellt werden.
befindet es sich im Vorführmodus (Demo-Mode)
47

DE
Zum Verlassen dieses Modus verfahren Sie gemäß obiger
Angaben. Auf dem Display erscheint abwechselnd die
Anzeige DE und OF und das Kochfeld schaltet sich
aus: Wird das Kochfeld daraufhin wieder eingeschaltet,
funktioniert es wieder auf normale Weise.
Praktische Ratschläge zum Einsatz des
Gerätes
! Verwenden Sie Kochgeschirr, dessen
Herstellungsmaterial (magnetisiertes Material) sich
für das Induktionssystem eignet. Wir empfehlen Ihnen
Töpfe und Pfannen aus: Gusseisen, emailliertem
Stahl oder Spezialstahl für Induktionskochzonen.
Im Zweifelsfall hilft ein Magnet bei der Prüfung der
Verwendbarkeit eines Kochgeschirrs.
48
GEEIGNETES MATERIAL
UNGEEIGNETES MATERIAL
*
Gusseisen
Kupfer,
emaillierter Edelstahl
Aluminium, Glas, Ton,
magnetisierter Edelstahl
Porzellan, nicht magnetisierter Edelstahl
Kochzone entsprechenden Topfgröße. Das Blinken der
Anzeigeleuchte kann Folgendes signalisieren:
• ungeeignetes Kochgeschirr,
• ein zu geringer Topfdurchmesser,
• der Topf wurde abgenommen.
Überhitzung
Im Falle einer Überhitzung der elektronischen
Gerätekomponenten schaltet sich das Kochfeld
automatisch aus, auf dem Display erscheint die Anzeige
F gefolgt von einer blinkenden Zahl. Diese Meldung
erlischt, und das Kochfeld kann wieder eingesetzt
werden, sobald die Temperatur auf einen akzeptablen
Wert gesunken ist.
Sicherheitsautomatik
Das Gerät ist mit einer Sicherheitsautomatik
ausgestattet, die die Kochzone automatisch abschaltet,
wenn die maximale Betriebszeit auf einer gewissen
Leistungsstufe erreicht wird. Bei Auftreten eines solchen
Sicherheitsintervalls erscheint auf dem Display die Anzeige
„0“.
Beispiel: Die hintere rechte Kochzone wird auf
So gibt Ihnen Ihr Kochfeld sein Bestes:
Leistungsstufe 5 eingestellt, die vordere linke dagegen
• Verwenden Sie Kochgeschirr mit dickem und ebenem
auf 2. Die hintere rechte Kochzone wird nach 5 Std.
Boden, um sicher zu sein, dass dieser perfekt auf der
Betriebszeit ausgeschaltet, die vordere linke erst nach
Kochzone aufliegt.
8 Stunden.
Heizleistung
Beschränkung der Funktionsdauer in Stunden
1
9
2
8
• Benutzen Sie stets nur Kochgeschirr, dessen
3
7
Durchmesser mit dem der Kochzone übereinstimmt,
d.h. dessen Boden die Kochzone ganz bedeckt, und
4
6
somit die gesamte Wärme genutzt wird.
5
5
6
4
7
3
• Achten Sie darauf, dass der Boden des Kochgeschirrs
8
2
trocken und sauber ist; nur so ist ein perfektes Aufliegen
9
1
des Geschirrbodens sowie eine lange Lebensdauer von
Kochzone und Geschirr gewährleistet.
Tonsignal
• Vermeiden Sie den Einsatz von Kochgeschirr, das
Einige Anomalien, wie:
auch auf Gasflammen verwendet wird. Die äußerst
• Gegenstände (Topf, Besteck usw.), die für länger als 10
hohe Hitzekonzentration der Gasbrenner könnte die
Sekunden auf dem Schaltfeld liegen,
Topfböden leicht verformen und demnach die korrekte
• Flüssigkeit, die über das Schaltfeld gegossen wurde,
Auflage beeinträchtigen.
• ein zu langer Druck auf eine Taste, können die
Ursache für ein Warnsignal sein. Um das Warnsignal
Sicherheitsvorrichtungen
auszuschalten, muss der Grund der Störung beseitigt
werden. Wird die Störung nicht beseitigt, bleibt das
Topferkennung
Warnsignal eingeschaltet und das Kochfeld wird
Jede Kochzone ist mit einer Topferkennungs-Vorrichtung
ausgeschaltet.
ausgerüstet. Die Kochzone bewirkt ein Erhitzen
des Topfbodens nur bei einer angemessenen, der

DE
Praktische Back-/Brathinweise
Schnellgaren
Fritieren
ª
Schnellkochtopf
Sehr stark garenStark garenSanftgarenSehr sanft GarenExtrem
•
Grillen Kochen
•
Crêpes Stark garen und bräunen
(Braten, Koteletts, Schnitzel, Fischfilets,
Spiegeleier)
¶
¶
Schnell eindicken (flüssige Soßen)
Kochendes Wasser (Nudeln, Reis, Gemüse)
Milch
§
§
Langsam eindicken (dickflüssige Soßen)
S
S
Wasserbad Garen im Schnellkochtopf nach dem Dampfaustritt
¢
¢
£
Sehr sanft Garen Aufwärmen von Speisen
™
™
sanft
Garen
Schokoladensoße Warmhalten
¡
49

Vorsichtsmaßregeln
und Hinweise
DE
! Das Gerät wurde entsprechend den strengsten
Risiko durch unbeabsichtigtes Anstoßen auszuschließen.
internationalen Sicherheitsvorschriften entworfen und gebaut.
• Ziehen Sie den Netzstecker nicht am Netzkabel aus der
Nachstehende Hinweise werden aus Sicherheitsgründen
Steckdose, sondern nur am Netzstecker selbst.
geliefert und sollten aufmerksam gelesen werden.
• Ziehen Sie vor der Reinigung oder vor
Wartungsmaßnahmen stets den Netzstecker aus der
Dieses Gerät entspricht den folgenden EG-Richtlinien:
Steckdose.
- 2006/95/EWG vom 12.12.06 (Niederspannung) und
• Das Gerät ist nicht zur Verwendung durch Personen
nachfolgenden Änderungen
(einschließlich Kinder) mit eingeschränkten körperlichen,
- 2004/108/EWG vom 15/12/04 (elektromagnetische
geistigen oder Wahrnehmungsfähigkeiten oder aber
Verträglichkeit) und nachfolgenden Änderungen
ohne ausreichende Erfahrung und Produktkenntnis
- 93/68/EWG vom 22.07.93 und nachfolgenden Änderungen.
geeignet, sofern sie nicht durch eine für ihre Sicherheit
- 1275/2008 stand-by/off mode.
verantwortliche Person beaufsichtigt werden oder zuvor
Anleitungen zum Gerätegebrauch erhalten haben.
Allgemeine Sicherheit
• Hinweis für Herzschrittmacherträger oder Träger anderer
medizinischen Implantate:
! Stellen Sie bitte sicher, dass das Belüftungsgitter des
Das Kochfeld entspricht allen geltenden Richtlinien in
Gebläses niemals verstopft bzw. abgedeckt wird. Das
Sachen elektromagnetischer Verträglichkeit.
Einbaukochfeld erfordert eine korrekte Belüftung zur
Dieses Erzeugnis erfüllt demnach sämtliche gesetzlichen
Kühlung der elektronischen Teile.
Anforderungen (Richtlinien 89/336/CEE). Es wurde so
! Es wird davon abgeraten, ein Induktionskochfeld über
konzipiert, dass keine Interferenzen mit anderen in
einem Untertisch-Kühlschrank (Wärmequelle) oder über einer
Einsatz befindlichen elektrischen Geräten entstehen
Waschmaschine (Vibrationen) zu installieren. Der zur Belüftung
können, es sei denn, letztere entsprechen nicht den
der elektronischen Teile erforderliche Raum wäre absolut
obigen Richtlinien.
unzureichend.
Das Induktions-Kochfeld erzeugt elektromagnetische
• Dieses Gerät ist für den nicht professionellen Einsatz im
Felder im Nahbereich.
privaten Haushalt bestimmt.
Um jegliche Gefahren durch Interferenzen zwischen
• Das Gerät darf nicht im Freien aufgestellt werden, auch
dem Kochfeld und dem Schrittmacher auszuschließen,
nicht, wenn es sich um einen geschützten Platz handelt.
muss letzterer in Übereinstimmung mit den bestehenden
Es ist hoch gefährlich, das Gerät Gewittern und Unwettern
Richtlinien hergestellt sein.
auszusetzen.
In dieser Hinsicht können wir nur für die
• Berühren Sie das Gerät nicht mit nassen oder feuchten
Übereinstimmung unseres Erzeugnisses gerantieren.
Händen oder Füßen und auch nicht, wenn Sie barfuß sind.
Für Informationen hinsichtlich der Konformität oder
• Verwenden Sie das Kochfeld nicht als Abstellfläche oder als
eventueller Unverträglichkeiten bitten wir Sie, sich an
Schneidebrett.
den behandelnden Arzt oder an die Herstellfirma des
• Das Glaskeramikkochfeld ist stoßfest; dennoch kann es
Herzschrittmachers wenden zu wollen.
durch Stöße bzw. Aufprall von spitzen Gegenständen
• Kinder dürfen nicht mit dem Gerät spielen.
springen (oder sogar zerbrechen), Schalten Sie das
• Legen Sie bitte keine Metallgegenstände (Messer, Löffel,
Kochfeld in einem solchen Fall vom Stromnetz und wenden
Deckel usw.) auf das Kochfeld; sie könnten sehr heiß
Sie sich an die Kundendienststelle.
werden.
• Das Gerät darf nur von Erwachsenen und gemäß den
• Dieses Gerät kann nicht mit einem externen Timer
Hinweisen der vorliegenden Bedienungsanleitung
oder einem getrennten Fernsteuerungssystem
zur Zubereitung von Lebensmitteln verwendet
betrieben werden.
werden. Jeder andere Einsatz (zum Beispiel: zum
Beheizen von Räumen) ist als unsachgemäß und
gefährlich anzusehen. Der Hersteller haftet nicht für
eventuelle, durch unsachgemäßen, falschen oder
Entsorgung
unangemessenen Gebrauch verursachte Schäden.
• Entsorgung des Verpackungsmaterials: Befolgen Sie
• Vermeiden Sie, dass das Netzkabel anderer
die lokalen Vorschriften; Verpackungsmaterial kann
Elektrogeräte in Kontakt mit heißen Kochfeldteilen
wiederverwertet werden.
gelangt.
• Die europäische Richtlinie 2002/96/EG über Elektro- und
• Bitte berücksichtigen Sie, dass die Kochzonen noch für
Elektronik-Altgeräte (WEEE) sieht vor, dass Haushaltsgeräte
ca. 30 Minuten nach dem Ausschalten sehr heiß bleiben.
nicht mit dem normalen Hausmüll entsorgt werden dürfen.
Die Restwärme wird auf der entsprechenden Anzeige
Die Altgeräte müssen getrennt gesammelt werden, um
eingeblendet (siehe Inbetriebsetzung und Gebrauch).
die Rückführung und das Recycling der Materialen zu
• Halten Sie sämtliche Gegenstände, die schmelzen
optimieren, aus denen die Geräte hergestellt sind, und um
könnten, wie Plastikteile oder Kunststoffe sowie Zucker
mögliche Belastungen der Gesundheit und der Umwelt zu
oder stark zuckerhaltige Speisen von dem Kochfeld
verhindern. Das Mülleimersymbol ist auf allen Produkten
fern. Achten Sie besonders auf Verpackungsmaterial,
dargestellt, um an die Verpflichtung zur getrennten
Frischhaltefolie und Alufolie: Wird derartiges Material auf
Abfallsammlung zu erinnern.
den noch heißen oder warmen Oberflächen belassen,
Für weitere Informationen zur korrekten Entsorgung können
können sie das Kochfeld dauerhaft beschädigen.
sich die Besitzer von elektrischen Haushaltsgeräten an die
• Stellen Sie Stieltöpfe und Pfannen immer mit nach innen
übergeordnete öffentliche Einrichtung oder an ihren Händler
gerichteten Griffen auf die Kochstelle, um jegliches
wenden.
50

Reinigung und Pflege
Abschalten Ihres Gerätes vom Stromnetz
Schutzfilm, den ein solches Produkt hinterlässt, schützt
DE
Vor jeder Reinigung und Pflege ist das Gerät vom Stromnetz
die Oberfläche vor eventuell überkochenden Speisen. Es
zu trennen.
empfiehlt sich, diese Nachbehandlung bei lauwarmem
oder abgekühltem Gerät vorzunehmen.
Reinigung des Gerätes
• Achten Sie darauf, das Kochfeld nach der Reinigung
! Der Einsatz von Scheuermitteln oder scharfen oder
stets mit klarem Wasser abzuspülen und anschließend
chemischen Reinigungsmitteln wie Backofensprays,
abzutrocknen. Rückstände der Reinigungsmittel könnten
Fleckenentferner, Rostentfernungsmittel, Reiniger in
sich nämlich bei der nächsten Benutzung des Kochfeldes
Pulverform und Scheuerschwämme ist zu vermeiden:
ihrerseits festsetzen.
diese können die Oberfläche des Kochfeldes dauerhaft
beschädigen.
Edelstahlrahmen (nur bei mit Rahmen versehenen
Modellen)
! Verwenden Sie zur Reinigung des Kochfeldes keine Dampf-
Auf den Edelstahlteilen könnten Flecken zurückbleiben, sollte
oder Hochdruckreinigungsgeräte.
stark kalkhaltiges Wasser oder phosphorhaltiges Spülmittel
für längere Zeit darauf vorhanden sein.
• Zur täglichen Pflege genügt es, das Kochfeld mit einem
Es ist ratsam, das Kochfeld nach der Reinigung gut
feuchten Schwamm abzuwischen und mit Küchenpapier
nachzuspülen und abzutrocknen. Wird versehentlich Wasser
abzutrocknen.
darauf verschüttet, muss es sofort sorgsam getrocknet
• Bei besonders starker Verschmutzung sollte ein spezielles
werden.
Reinigungsmittel für Glaskeramik verwendet werden;
! Einige Kochfelder sind mit einem Aluminiumrahmen
anschließend ist das Kochfeld mit Wasser abzuspülen und
versehen, der Edelstahl sehr ähnlich ist. Verwenden Sie bitte
sorgfältig abzutrocknen.
keine Produkte zur Reinigung und Entfettung, die nicht für
• Starke Verschmutzungen lassen sich mit einem
Aluminium geeignet sind.
Schaber (Klingenschaber) entfernen. Sie sollten so
schnell wie möglich - und nicht erst nach Abkühlen des
Demontage des Kochfeldes
Kochfeldes - entfernt werden, um zu vermeiden, dass
Sollte sich die Abnahme des Kochfeldes als erforderlich
sich die Verschmutzungen festsetzen. Gute Ergebnisse
erweisen, verfahren Sie bitte wie folgt:
lassen sich auch mit einem für Glaskeramik geeigneten
1. Schrauben Sie die Schrauben aus, die zur Befestigung der
Spezialschwamm aus Edelstahlwolle und einer einfachen
seitlichen Zentrierungsfedern dienen;
Spüllauge erzielen.
2. lockern Sie die Schrauben der Eck-Befestigungsbügel;
• Auf dem Kochfeld versehentlich geschmolzene Alufolie,
3. nehmen Sie das Kochfeld aus dem Möbelausschnitt
Plastikteile oder Kunststoffe, sowie Zuckerreste müssen
heraus.
umgehend mit einem Schaber von der noch warmen
Oberfläche entfernt werden.
! Wir empfehlen dringlich, Innenmechanismen nicht
• Nach der Reinigung kann das Kochfeld mit einem
eigenhändig zu reparieren. Kontaktieren Sie bei Störungen
Pflegeprodukt nachbehandelt werden: Der unsichtbare
bitte den Kundendienst.
Technische Beschreibung der Modelle
Kochen mit Induktion ist die schnellste und zeitsparendste Art des Kochens. Im Gegensatz zu herkömmlichen
Kochplatten, heizt sich nicht die Kochzone auf: die Hitze wird direkt im Innern des Topfes entwickelt, der hierzu
notwendigerweise über einen Boden aus magnetisiertem Material verfügen muss.
Kochfelder
VIA 640 C
VIC 641 X
VIA 640 C S
Kochzonen
Leistung (W)
Leistung (W)
Hinten links
I 1400
I 1400
Hinten rechts
I 2200
I 2200 - B 3000*
Vorne links
I 2200
I 2200
Vorne rechts
I 1400
I 1400 - 600 wenn Hinten rechts*
Gesamtleistung
7200
7200
Legende:
I = Einfache Induktions-Kochzone
B = Booster: Die Leistung dieser Kochzone kann bis auf 2000/3000 W erhöht werden.
* = Die maximale Leistung wird begrenzt, solange die Boosterfunktion für die entsprechende hintere Kochzone
eingeschaltet bleibt (siehe Inbetriebsetzung und Gebrauch).
51

Installazione
! È importante conservare questo libretto per poterlo
IT
consultare in ogni momento. In caso di vendita, di
cessione o di trasloco, assicurarsi che resti insieme
all’apparecchio per informare il nuovo proprietario sul
min. 20 mm
funzionamento e sui relativi avvertimenti.
! Leggere attentamente le istruzioni: ci sono importanti
informazioni sull’installazione, sull’uso e sulla sicurezza.
5 mm
CASSETTO
Posizionamento
min. 40 mm
! Gli imballaggi non sono giocattoli per bambini e vanno
eliminati secondo le norme per la raccolta differenziata
(vedi Precauzioni e consigli).
! L’installazione va effettuata secondo queste istruzioni e
da personale professionalmente qualificato. Una errata
min. 20 mm
installazione può causare danni a persone, animali o
cose.
5 mm
FORNO
Incasso
VENTILATO
Per garantire un buon funzionamento dell’apparecchio è
necessario che il mobile abbia le caratteristiche adatte:
min. 40 mm
• il piano d’appoggio deve essere di materiale
resistente al calore, a una temperatura di circa
100°C;
• se si desidera installare il piano cottura sopra un
forno, questo deve essere provvisto di un sistema di
raffreddamento a ventilazione forzata;
• evitare di installare il piano cottura sopra una
lavastoviglie: all’occorrenza frapporre un elemento
di separazione a tenuta stagna fra i due apparecchi;
• a seconda del piano cottura che si desidera
installare (vedi gure), il vano del mobile deve avere
le seguenti dimensioni:
Aerazione
Per consentire un’adeguata aerazione e per evitare
il surriscaldamento delle superfici attorno all’apparecchio,
il piano cottura deve essere posizionato:
• a una distanza minima di 40 mm dalla parete
retrostante o da qualsiasi altra superficie verticale;
• in modo da mantenere una distanza minima di 20 mm
fra il vano per l’incasso e il mobile sottostante.
• I mobili situati a fianco, la cui altezza superi quella
del piano di lavoro, debbono essere situati ad
almeno 600 mm dal bordo del piano stesso.
52
LATO ANTERIORE
DEL PIANO COTTURA
PIANO DI
APPOGGIO
30
40
PIANO COTTURA
ROVESCIATO
574
48
504
560 +/- 1
490 +/- 1
590
53
520
560 +/- 1
490 +/- 1

Fissaggio
Altri tipi di collegamento
IT
L’installazione dell’apparecchio deve essere effettuata
su un piano d’appoggio perfettamente piano.
Se l’impianto elettrico corrisponde a una delle seguenti
Le eventuali deformazioni provocate da un errato
caratteristiche:
fissaggio potrebbero alterare le caratteristiche e
Tensione tipo e frequenza di rete
le prestazioni del piano cottura.
• 400V - 2+N ~ 50 Hz
• 220-240V 3 ~ 50 Hz
La lunghezza della vite di regolazione dei ganci
• 400V 3 - N ~ 50 Hz
di fissaggio va impostata prima del loro montaggio,
• 400V - 2+2N ~ 50 Hz
in base allo spessore del piano d’appoggio:
• spessore di 30 mm: vite 23 mm;
Separare i cavi ed effettuare il collegamento dei fili in
• spessore di 40 mm: vite 13 mm.
accordo con la tabella e i disegni che seguono:
Per il fissaggio agire come segue:
Tensione tipo e
Cavo elettrico Collegamento fili
frequenza rete
1. Con le viti corte senza punta, avvitare le 4 molle di
400V - 2+N ~
centraggio nei fori posti al centro di ogni lato del piano;
50 Hz
: giallo/verde;
2. inserire il piano cottura nel vano del mobile, centrarlo
220-240V 3 ~
N: i 2 fili blu insieme
ed esercitare una adeguata pressione sull’intero perimetro
50 Hz
L1: nero
affinché il piano di cottura aderisca bene al piano
L2: marrone
400V 3-N ~
d’appoggio.
50 Hz
3. per i piani con profili laterali: dopo aver inserito il piano
: giallo/verde;
cottura nel mobile, inserire i 4 ganci di fissaggio (ognuno
con il suo perno) sul perimetro inferiore del piano cottura,
400V - 2+2N ~
N1: blu
50 Hz
N2: blu
avvitandoli con le viti lunghe con punta finché il vetro non
L1: nero
aderisce al piano d’appoggio.
L2: marrone
Allacciamento del cavo di alimentazione alla rete
! È indispensabile che le viti delle molle di centraggio
rimangano accessibili.
In caso di collegamento diretto alla rete è necessario
interporre tra l’apparecchio e la rete un interruttore
! In conformità alle norme di sicurezza, una volta
onnipolare con apertura minima fra i contatti di 3 mm.
incassato l’apparecchio, non debbono essere possibili
eventuali contatti con le parti elettriche.
! L’installatore è responsabile del corretto collegamento
elettrico e dell’osservanza delle norme di sicurezza.
! Tutte le parti che assicurano la protezione debbono
essere fissate in modo tale da non poter essere tolte
Prima di effettuare l’allacciamento accertarsi che:
senza l’aiuto di qualche utensile.
• la presa abbia la messa a terra e sia a norma di legge;
• la presa sia in grado di sopportare il carico massimo di
potenza della macchina, indicato nella
Collegamento elettrico
targhetta caratteristiche posta sull’apparecchio;
• la tensione di alimentazione sia compresa nei valori
! L’allacciamento elettrico del piano cottura e quello di
della targhetta caratteristiche;
un eventuale forno da incasso devono essere realizzati
• la presa sia compatibile con la spina dell’apparecchio.
separatamente, sia per ragioni di sicurezza elettrica sia
In caso contrario sostituire la presa o la spina; non
per facilitare le operazioni di estrazione del forno.
usare prolunghe e multiple.
! Ad apparecchio installato, il cavo elettrico e la presa
Collegamento monofase
della corrente devono essere facilmente raggiungibili.
! Il cavo non deve subire piegature o compressioni.
Il piano è dotato di cavo di alimentazione già collegato
! Il cavo deve essere controllato periodicamente e
e predisposto per il collegamento monofase. Effettuare
sostituito solo da tecnici autorizzati.
l’allaccio dei fili in accordo con la tabella e i disegni che
! L’azienda declina ogni responsabilità qualora queste
seguono:
norme non vengano rispettate.
Tensione tipo e
Cavo elettrico Collegamento fili
frequenza rete
! Non rimuovere o sostituire per nessun motivo il cavo
di alimentazione. L’ eventuale rimozione o sostituzione
: giallo/verde
220-240V 1+N ~
N
: i 2 fili blu insieme
fa’ decadere la garanzia e il marchio CE. INDESIT
50 Hz
L
: marrone insieme al nero
non si assume alcuna responsabilita’ per incidenti
o danni derivanti dalla sostituzione/rimozione del
cavo di alimentazione originale. E’ ammessa solo la
sostituzione con un ricambio originale ed effettuata da
personale autorizzato INDESIT.
53

Avvio e utilizzo
! La colla applicata sulle guarnizioni lascia alcune
IT
tracce di grasso sul vetro. Prima di utilizzare
! La pressione prolungata dei tasti - e + consente
l’apparecchio, si raccomanda di eliminarle con un
l’avanzamento veloce dei livelli di potenza e dei minuti
prodotto specifico per la manutenzione non abrasivo.
del timer.
Durante le prime ore di funzionamento è possibile
avvertire un odore di gomma, che comunque
scomparirà presto.
Accensione del piano cottura
! Quando il piano cottura viene collegato
L’accensione del piano cottura avviene tenendo premuto il
elettricamente, dopo acuni secondi viene emesso un
tasto
per circa un secondo.
breve segnale acustico. Soltanto a questo punto è
possibile accendere il piano cottura.
Rumori di normale funzionamento del piano cottura:
Accensione delle zone di cottura
• Ronzio: è dovuto alla vibrazione degli elementi
metallici di cui sono costituiti l’induttore e la
Ciascuna zona di cottura viene azionata tramite un tasto di
pentola e si genera per il campo elettromagnetico
necessario per il riscaldamento; esso aumenta
selezione e un dispositivo di regolazione della potenza
all’aumentare del livello di potenza dell’induttore.
• Leggero fischio: si manifesta quando la pentola
composto da un doppio tasto
- e +.
disposta sulla zona cottura è vuota; il rumore
• Per mettere in funzione una zona di cottura, premere
scompare non appena si aggiungono alimenti o
il relativo tasto di comando e impostare la potenza
acqua.
• Crepitio: è un rumore prodotto dalle vibrazioni
desiderata tramite i tasti
- e +.
del materiale del fondo della pentola quando è
attraversato dalle correnti parassite dovute al campo
elettromagnetico (induzione); può essere più o
Funzione booster*
meno intenso a secondo del materiale del fondo
della pentola e si riduce se le dimensioni della
Per accelerare i tempi di riscaldamento, su alcune zone di
pentola aumentano.
cottura è possibile attivare la funzione booster premendo
• Fischio intenso: si manifesta quando funzionano
il tasto
. Si accende la spia posta sopra al tasto.
contemporaneamente i due induttori sulla stessa
Questa funzione sovralimenta la potenza a 3000W
verticale alla massima potenza e/o su quello più
o 4000W a seconda della grandezza della zona di
grande è inserita la funzione booster e l’altro è
cottura interessata.
autoregolato. Il rumore si riduce non appena
Il booster si interrompe automaticamente dopo 4
si abbassa il livello di potenza dell’induttore
minuti. Finché il booster di una delle zone di cottura
autoregolato; si manifesta in particolare quando il
è attivo, la zona di cottura corrispondente anteriore
fondo della pentola è costituito da strati di materiale
o posteriore avrà potenza limitata (es: se è attivo il
diverso.
booster nella piastra posteriore sinistra, si abbassa la
• Rumore della ventola: per il corretto funzionamento del
potenza della piastra anteriore sinistra). Per ulteriori
piano e per garantire la sicurezza della parte elettronica
chirimenti vedere Descrizione tecnica dei modelli.
da possibili surriscaldamenti è necessario l’azionamento
di una ventola. La ventola funziona alla massima potenza
quando l’induttore grande è al massimo livello di potenza
Spegnimento delle zone di cottura
o quando è inserita la funzione booster ; in tutti gli altri casi
funziona a potenza media a seconda della temperatura
Per spegnere una zona di cottura, selezionarla tramite il
rilevata. Inoltre è possibile che la ventola continui a
funzionare anche dopo la disattivazione del piano se la
relativo tasto di selezione
e:
temperatura rilevata è alta.
I rumori elencati sono dovuti alla tecnologia induzione e non
• Premere il tasto
-: la potenza della zona di cottura scende
segnalano necessariamente difetti di funzionamento.
progressivamente, fino allo spegnimento.
* Presente solo in alcuni modelli.
54

Programmazione della durata di una
IT
cottura
Il contaminuti
! È possibile programmare contemporaneamente tutte
le zone di cottura per una durata compresa tra 1 e 99
Il piano di cottura deve essere acceso.
minuti.
Il contaminuti permette di impostare una durata fino a 99
minuti.
1. Selezionare la zona di cottura tramite il tasto di
1. Premere il tasto di programamzione
. finchè la spia
selezione corrispondente.
2. Regolarne il livello di potenza.
contaminuti non si accende
.
3. Premere il tasto di programamzione
. Lampeggia
la spia corrispondente alla zona scelta.
2. Impostare la durata desiderata tramite i tasti
- e
4. Impostare la durata di cottura desiderata tramite i
+.
tasti
- e +.
3. Confermare premendo il tasto
.
5. Confermare premendo il tasto
oppure si
Il conto alla rovescia del timer ha inizio immediatamente. A
seleziona in automatico dopo 10 secondi.
tempo scaduto viene emesso un segnale acustico (per la
Il conto alla rovescia del timer ha inizio
durata di 1 minuto).
immediatamente. La fine della cottura programmata
è indicata da un segnale acustico (per la durata di 1
minuto) e la zona di cottura si spegne.
Blocco dei comandi
Ripetere la procedura sopra descritta per ogni piastra
che si intende programmare.
Quando il piano cottura è in funzione, è possibile bloccare
i comandi per evitare il rischio di modifiche fortuite alle
Visualizzazione in caso di
regolazioni (bambini, operazioni di pulizia, ecc.). Premendo il
programmazione multipla
tasto
i comandi si bloccano
e la spia che si trova sopra al tasto si accende.
Quando una o più piastre sono state programmate,
Per tornare ad agire sulle regolazioni (es. interrompere
il display visualizza il tempo rimanente della piastra che è più
la cottura) è necessario sbloccare i comandi: premere
vicina al termine del tempo programmato, indicandone la
posizione con la spia corrispondente che lampeggia. Le spie
il tasto
per qualche istante, la spia si spegne e i
delle altre piastre programmate sono accese.
comandi si sbloccano.
Per visualizzare il tempo restante delle altre piastre
programmate, premere ripetutamente il tasto
: verranno
Spegnimento del piano cottura
mostrati in sequenza e in senso orario i tempi del
contaminuti e di tutte le piastre programmate, a partire
da quella anteriore sinistra.
Premendo il tasto l’apparecchio si spegne, non fare
affidamento sul rivelatore di pentole.
Modificare la programmazione
Se i comandi dell’apparecchio sono stati bloccati,
continueranno ad essere bloccati anche dopo aver
riacceso il piano di cottura. Per poter riaccendere
1. Premere ripetutamente il tasto
finché non viene
il piano è necessario prima sbloccare i comandi.
mostrato il tempo della piastra che si intende
modificare.
2. Agire sui tasti
- e + per impostare il nuovo
Modalità “demo”
tempo.
È possibile impostare una modalità dimostrativa nella quale
3. Confermare premendo il tasto
.
il pannello comandi funziona normalmente (inclusi i comandi
relativi alla programmazione), ma gli elementi riscaldanti non
Per cancellare una programmazione, agire come
si accendono. Per attivare la modalità “demo” occorre che il
piano sia acceso e tutte le piastre siano spente:
sopra. Al punto 2 premere il tasto
-: la durata
• Premere e tenere premuti contemporaneamente i tasti
scende progressivamente fino allo spegnimento 0. La
programmazione si azzera e il display esce dalla modalità
programmazione.
55

+ e - per 6 secondi. Allo scadere dei 6 secondi
Dispositivi di sicurezza
IT
la spia ON/OFF e la spia BLOCCO COMANDI
Rilevamento dei recipienti
lampeggiano per un secondo. Rilasciare i tasti
+
Ciascuna zona di cottura è provvista di un dispositivo di
e - e premere il tasto ;
rilevamento della pentola. La piastra emette calore unicamente
• il display visualizza la scritta DE e MO e il piano si spegne;
in presenza di una pentola di dimensioni adeguate alla zona di
• alla successiva riaccensione il piano si troverà in modalità
cottura stessa. Il display indicatore di potenza lampeggiante può
“demo”.
indicare:
Per uscire da questa modalità seguire la procedura
• una pentola incompatibile
sopra descritta. Il display visualizza la scritta DE e OF e il
• una pentola di diametro insufficiente
piano si spegne. Alla successiva riaccensione funzionerà
• il sollevamento della pentola
normalmente.
Surriscaldamento
Consigli pratici per l’uso
In caso di surriscaldamento dei componenti elettronici, il piano
dell’apparecchio
cottura si spegne automaticamente e sul display appare
F
seguito da un numero lampeggiante. Questo messaggio
! Adoperare recipienti di cottura il cui materiale
scompare e il piano torna utilizzabile non appena la
di fabbricazione sia compatibile con il principio
temperatura è scesa a un livello accettabile.
dell’induzione (materiale ferromagnetico). Si
raccomanda l’uso di pentole in: ghisa, acciaio smaltato
Interruttore di sicurezza
o inox speciale per induzione. Per sincerarsi della
L’apparecchio è dotato di un interruttore di sicurezza che spegne
compatibilità di un recipiente è sufficiente fare una
le zone di cottura automaticamente quando viene raggiunto
prova con una calamita.
un tempo limite di utilizzo a un dato livello di potenza. Durante
l’interruzione di sicurezza, il display indica “0”.
Esempio: la piastra posteriore destra è impostata su 5, mentre la
piastra anteriore sinistra su 2. La posteriore destra si spegnerà
dopo 5 ore di funzionamento, la anteriore sinistra dopo 8 ore.
Livello di potenza
Tempo limite di funzionamento in ore
Inoltre, per ottenere le migliori prestazioni dal piano di cottura:
1
9
• Adoperare pentole con fondo piatto e di elevato spessore,
per essere certi che aderiscano perfettamente alla zona
2
8
riscaldante.
3
7
4
6
5
5
• Adoperare pentole di diametro sufficiente a coprire
6
4
completamente la zona riscaldante, in modo da
7
3
garantire lo sfruttamento di tutto il calore disponibile.
8
2
9
1
• Accertarsi che il fondo delle pentole sia sempre
Segnale acustico
perfettamente asciutto e pulito, per garantire la
Alcune anomalie, quali:
corretta aderenza e una lunga durata, sia alle zone
• un oggetto (pentola, posata, ecc.) posto per oltre 10 secondi
di cottura che alle pentole stesse.
sull’area dei comandi,
• un versamento sull’area dei comandi,
• Evitare di utilizzare le stesse pentole utilizzate
• una pressione esercitata a lungo su un tasto,
sui bruciatori a gas: la concentrazione di calore sui
possono provocare l’emissione di un segnale acustico.
bruciatori a gas può deformare il fondo della
Rimuovere la causa del malfunzionamento per interrompere il
pentola, che perde aderenza.
segnale acustico. Se la causa dell’anomalia non viene rimossa,
il segnale acustico persiste e il piano si spegne.
56

Consigli pratici per la cottura
IT
Cottura a Pressione
Frittura
ª
Pentola a Pressione
vivissimo
Cottura a fuoco
•
Grigliata Ebollizione
•
Crêpe Cottura a fuoco vivo e doratura
(Arrosti, Bistecche, Scaloppine, Filetti di
Cottura a
fuoco vivo
pesce, Uova al tegamino)
¶
¶
Addensamento rapido (Sughi liquidi)
Acqua bollente (Pasta, Riso, Verdure)
Latte
§
§
Addensamento lento (Sughi consistenti)
S
Cottura a fuoco medioCottura a fuoco
S
Cottura a bagnomaria
Cottura Pentola a pressione dopo il sibilo
¢
¢
lento
£
Cottura a fuoco lento
Riscaldamento delle pietanze
(Stufati)
™
™
Salsa al cioccolato Mantenimento al caldo
fuoco
Cottura a
lentissimo
¡
57

Precauzioni e consigli
! L’apparecchio è stato progettato e costruito
• Non staccare la spina dalla presa della corrente
IT
in conformità alle norme internazionali di sicurezza. Queste
tirando il cavo, bensì afferrando la spina.
avvertenze sono fornite per ragioni di sicurezza e devono
• Non fare pulizia o manutenzione senza aver prima
essere lette attentamente.
staccato la spina dalla rete elettrica.
• Non è previsto che l’apparecchio venga utilizzato
Questa apparecchiatura è conforme alle seguenti
da persone (bambini compresi) con ridotte
Direttive Comunitarie:
capacità fisiche, sensoriali o mentali, da persone
inesperte o che non abbiano familiarità con il
- 2006/95/CEE del 12/12/06 (Bassa Tensione) e successive
prodotto, a meno che non vengano sorvegliate da
modificazioni
una persona responsabile della loro sicurezza o
- 2004/108/CEE del 15/12/04 (Compatibilità Elettromagnetica)
non abbiano ricevuto istruzioni preliminari sull’uso
e successive modificazioni
dell’apparecchio.
- 93/68/CEE del 22/07/93 e successive modificazioni.
• Avvertenza per i portatori di pacemaker o altri
- 1275/2008 stand-by/off mode.
dispositivi medici impiantabili attivi:
Il piano cottura è conforme a tutte le normative
Sicurezza generale
vigenti in materia di interferenze elettromagnetiche.
! Controllare che la presa d’aria tramite la griglia del
Questo prodotto è pertanto perfettamente
ventilatore non sia mai ostruita. Il piano da incasso, infatti,
rispondente a tutti i requisiti di legge (direttive
necessita di una corretta aerazione per il raffreddamento
89/336/CEE). È stato progettato in modo da non
dei componenti elettronici.
creare inferenze ad altre apparecchiature elettriche
! È sconsigliata l’installazione di un piano cottura a induzione
utilizzate, a condizione che anche queste siano
sopra un frigorifero sottotavolo (calore) o sopra una lavatrice
conformi alle suddette normative.
(vibrazioni). Lo spazio necessario per la ventilazione degli
Il piano cottura a induzione genera campi
elementi elettronici sarebbe infatti insufficiente.
elettromagnetici a breve portata.
• L’apparecchio è stato concepito per un uso di tipo non
Per evitare ogni rischio di interferenze tra il piano di
professionale all’interno dell’abitazione.
cottura e il pacemaker, quest’ultimo dovrà essere
• L’apparecchio non va installato all’aperto, nemmeno se
realizzato in conformità alle normative vigenti.
lo spazio è riparato, perché è molto pericoloso lasciarlo
A tale riguardo, possiamo garantire unicamente la
esposto a pioggia e temporali.
conformità del nostro prodotto. Per informazioni sulla
• Non toccare la macchina a piedi nudi o con le mani
conformità o eventuali problemi di incompatibilità, si
o i piedi bagnati o umidi.
prega di rivolgersi al proprio medico curante o alla
• L’apparecchio deve essere usato per cuocere
casa produttrice del pacemaker.
alimenti, solo da persone adulte e secondo le
• Evitare che i bambini giochino con l’apparecchio.
istruzioni riportate in questo libretto. Ogni altro
• Non posare oggetti metallici (coltelli, cucchiai,
uso (ad esempio: riscaldamento di ambienti) è
coperchi, ecc.) sul piano perchè possono diventare
da considerarsi improprio e quindi pericoloso. Il
caldi.
costruttore non può essere considerato responsabile
• L’apparecchio non è destinato a essere messo in
per eventuali danni derivanti da usi impropri, erronei
funzione per mezzo di un temporizzatore esterno
ed irragionevoli.
oppure di un sistema di comando a distanza
• Non utilizzare il piano come superficie di appoggio, né
separato.
come tagliere.
• Il piano in vetroceramica è resistente agli urti meccanici,
tuttavia può incrinarsi (o eventualmente frantumarsi) se
colpito con un oggetto appuntito, quale un utensile. In
questi casi, scollegare immediatamente l’apparecchio
Smaltimento
dalla rete di alimentazione e rivolgersi all’Assistenza.
• Smaltimento del materiale di imballaggio: attenersi
• Evitare che il cavo di alimentazione di altri
alle norme locali, così gli imballaggi potranno essere
elettrodomestici entri in contatto con parti calde
riutilizzati.
del piano cottura.
• La direttiva Europea 2002/96/CE sui rifiuti di
• Non dimenticare che la temperatura delle zone di cottura
apparecchiature elettriche ed elettroniche (RAEE),
rimane piuttosto elevata per almeno trenta minuti dopo lo
prevede che gli elettrodomestici non debbano essere
spegnimento. Il calore residuo è segnalato anche da un
smaltiti nel normale flusso dei rifiuti solidi urbani.
indicatore (vedi Avvio e utilizzo).
Gli apparecchi dismessi devono essere raccolti
• Tenere a debita distanza dal piano cottura qualsiasi
separatamente per ottimizzare il tasso di recupero
oggetto che potrebbe fondere, ad esempio oggetti in
e riciclaggio dei materiali che li compongono ed
plastica, in alluminio o prodotti con un elevato contenuto
impedire potenziali danni per la salute e l’ambiente. Il
di zucchero. Fare particolare attenzione a imballaggi e
simbolo del cestino barrato è riportato su tutti i prodotti
pellicole in plastica o alluminio:
per ricordare gli obblighi di raccolta separata.
se dimenticati sulle superfici ancora calde o tiepide
Per ulteriori informazioni, sulla corretta dismissione
possono causare un grave danno al piano.
degli elettrodomestici, i detentori potranno rivolgersi al
• Assicurarsi che i manici delle pentole siano sempre rivolti
servizio pubblico preposto o ai rivenditori.
verso l’interno del piano cottura per evitare che vengano
urtati accidentalmente.
58

Manutenzione e cura
scolamenti durante la cottura. Si raccomanda
Escludere la corrente elettrica
di eseguire queste operazioni con l’apparecchio
Prima di ogni operazione isolare l’apparecchio dalla
IT
tiepido o freddo.
rete di alimentazione elettrica.
• Ricordarsi sempre di risciacquare con acqua pulita
e asciugare accuratamente il piano: i residui di
Pulire l’apparecchio
prodotti potrebbero infatti incrostarsi durante la
! Evitare l’uso di detergenti abrasivi o corrosivi, quali
successiva cottura.
i prodotti in bombolette spray per barbecue e forni,
smacchiatori e prodotti antiruggine, i detersivi in
Telaio in acciaio inox (solo nei modelli con cornice)
polvere e le spugne con superficie abrasiva: possono
L’acciaio inossidabile può macchiarsi per effetto
graffiare irrimediabilmente la superficie.
di un’acqua molto calcarea lasciata per un periodo
! Non utilizzare mai pulitori a vapore o ad alta pressione
di tempo prolungato a contatto dello stesso oppure a
per la pulizia dell’apparecchio.
causa di prodotti per la pulizia contenenti fosforo.
Si consiglia di sciacquare abbondantemente e
• Per una manutenzione ordinaria, è sufficiente lavare
asciugare con cura dopo la pulizia del piano. In
il piano con una spugna umida, asciugando quindi
caso di versamenti d’acqua, intervenire rapidamente
con una carta assorbente per cucina.
asciugando con cura.
• Se il piano è particolarmente sporco, strofinare con
! Alcuni piani cottura hanno una cornice in alluminio
un prodotto specifico per la pulizia delle superfici
somigliante all’acciaio inox. Non utilizzare prodotti per
in vetroceramica, sciacquare e asciugare.
la pulizia e lo sgrassaggio non idonei per l’alluminio.
• Per rimuovere gli accumuli di sporco più consistenti
servirsi di un apposito raschietto. Intervenire
Smontare il piano
non appena possibile, senza attendere che
Nel caso si renda necessario smontare il piano cottura:
l’apparecchio si sia raffreddato, per evitare
1. togliere le viti che fissano le molle di centraggio
l’incrostazione dei residui. Eccellenti risultati si
sui lati;
possono ottenere usando una spugnetta in filo
2. allentare le viti dei ganci di fissaggio sugli angoli;
d’acciaio inossidabile - specifica per piani in
3. estrarre il piano cottura dal vano del mobile.
vetroceramica - imbevuta di acqua e sapone.
• In caso sul piano cottura si fossero accidentalmente
! Raccomandiamo di evitare di accedere ai
fusi oggetti o materiali quali plastica o zucchero,
meccanismi interni per tentare una riparazione. In caso
rimuoverli con il raschietto immediatamente, finché
di guasto, contattare l’Assistenza.
la superficie è ancora calda.
• Una volta pulito, il piano può essere trattato
con un prodotto specifico per la manutenzione
e la protezione: la pellicola invisibile lasciata da
questo prodotto protegge la superficie in caso di
Descrizione tecnica dei modelli
Il sistema a induzione è il procedimento di cottura più rapido che esista. A differenza delle piastre tradizionali,
non è la zona di cottura che si riscalda: il calore viene generato direttamente all’interno della pentola, la quale
dovrà possedere necessariamente un fondo in materiale ferromagnetico.
Piani cottura
VIA 640 C
VIC 641 X
VIA 640 C S
Zone di cottura
Potenza (in W)
Potenza (in W)
Posteriore sx
I 1400
I 1400
Posteriore dx
I 2200
I 2200 - B 3000*
Anteriore sx
I 2200
I 2200
Anteriore dx
I 1400
I 1400 - 600 se Post. Dx*
Potenza totale
7200
7200
Legenda:
I = zona di cottura a induzione semplice
B = booster: la zona di cottura può essere sovralimentata a 2000/3000 W
* = la potenza massima è limitata finché è attivo il booster nella zona di cottura posteriore relativa (vedi Avvio e
utilizzo).
59

Installatie
! Bewaar dit instructieboekje zorgvuldig voor eventuele
NL
raadpleging in de toekomst. Wanneer u het product
weggeeft, verkoopt, of wanneer u verhuist, dient u dit boekje
bij het apparaat te bewaren zodat waarschuwingen en
min. 20 mm
informatie betreffende werking voorhanden blijven.
! Lees de instructies aandachtig door: u vindt er belangrijke
5 mm
informatie betreffende installatie, gebruik en veiligheid.
LADE
Plaatsing
min. 40 mm
! Het verpakkingsmateriaal is niet bestemd voor kinderen
en dient daarom te worden verwijderd volgens de
geldende normen voor gescheiden afvalverzameling ( zie
Voorzorgsmaatregelen en advies).
! De installatie moet worden uitgevoerd door een bevoegde
min. 20 mm
installateur en volgens de instructies van de fabrikant. Een
verkeerde installatie kan schade berokkenen aan personen,
dieren of dingen.
5 mm
HETELUCHTOVEN
Inbouw
Voor een goede werking van het apparaat moet het
keukenmeubel de juiste kenmerken hebben:
min. 40 mm
• het keukenblad moet uit hittebestendig materiaal zijn
vervaardigd en een temperatuur van circa 100°C kunnen
verdragen;
• als de kookplaat boven een oven wordt geïnstalleerd
moet deze zijn voorzien van een geforceerd geventileerd
afkoelingssysteem;
• installeer de kookplaat nooit boven een afwasautomaat:
VOORZIJDE VAN
indien u dit toch doet, breng dan een waterdichte
DE KOOKPLAAT
afscheiding aan tussen de twee apparaten;
• naar gelang het type kookplaat dat u wenst te installeren
KEUKENBLAD
30
40
(zie afbeeldingen), moet het keukenmeubel de volgende
afmetingen hebben:
KOOKPLAAT
590
574
ONDERSTEBOVEN
53
48
520
504
560 +/- 1
560 +/- 1
490 +/- 1
490 +/- 1
Ventilatie
Teneinde een correcte ventilatie te bereiken en
een oververhitting van de oppervlakken rondom het apparaat te
voorkomen, moet de kookplaat geïnstalleerd worden op:
• een minimum afstand van 40 mm van de achterwand of
van elk ander verticaal oppervlak;
• op zodanige wijze dat er een minimum afstand overblijft
van 20 mm tussen het inbouwmeubel en het onderstaande
meubel.
• De meubels die direct naast de kookplaat staan en
hierboven uitsteken, moeten op minstens 600 mm van de
rand van de plaat staan.
60

