Indesit VIA-640-C-(FR)-S – page 2
Manual for Indesit VIA-640-C-(FR)-S

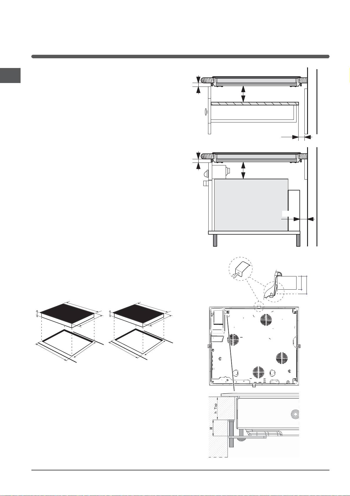
Fixation
Tension type et fréquence réseau
Il est impératif d’assurer l’encastrement de l’appareil sur
FR
• 400V - 2+N ~ 50 Hz
un plan d’appui parfaitement plat.
• 220-240V 3 ~ 50 Hz
Les déformations provoquées par une mauvaise
• 400V 3 - N ~ 50 Hz
fixation risquent d’altérer les caractéristiques
de la table
• 400V - 2+2N ~ 50 Hz
de cuisson ainsi que ses performances.
Séparer les câbles et procéder au raccordement des fils en
La longueur de la vis de réglage des crochets de fixation
suivant les indications du tableau et des dessins suivants :
doit être réglée avant leur montage selon l’épaisseur du
plan d’appui :
Tension type et
Cordon électrique Raccordement fils
fréquence réseau
• épaisseur 30 mm : vis 23 mm;
400V - 2+N ~
• épaisseur 40 mm : vis 13 mm.
50 Hz
: jaune/vert;
220-240V 3 ~
N: les 2 fils bleus
Pour sa fixation, procéder comme suit :
50 Hz
ensemble
1. Se servir des vis courtes sans pointe pour visser les 4
L1: noir
400V 3-N ~
ressorts de centrage dans les trous prévus sur chaque
50 Hz
L2: marron
côté de la table, en leur milieu;
: jaune/vert;
2. insérer la table de cuisson dans la découpe prévue,
N1: bleu
bien au centre et bien appuyer tout autour du cadre pour
400V - 2+2N ~
50 Hz
N2: bleu
que la table adhère parfaitement au plan d’appui.
L1: noir
3. pour les tables avec profils latéraux : après avoir encastré
L2: marron
la table de cuisson dans la découpe, insérer les 4 crochets
de fixation (chacun avec son goujon) sur le périmètre inférieur
Branchement du câble d’alimentation au réseau électrique
de la table de cuisson et visser avec les vis longues à pointe
En cas de raccordement direct au réseau, il faut intercaler
jusqu’à ce que le verre adhère bien au plan d’appui.
entre l’appareil et le réseau un interrupteur à coupure
omnipolaire ayant au moins 3 mm d’écartement entre les
! Il faut absolument que les vis des ressorts de
contacts.
centrage soient accessibles.
! L’installateur est responsable du bon raccordement
! Conformément aux normes de sécurité, après
électrique de l’appareil et du respect des normes de
encastrement de l’appareil, il ne doit plus y avoir
sécurité.
possibilité de contact avec les parties électrifiées.
Avant de procéder au branchement, s’assurer que :
! Toutes les parties qui servent de protection doivent être
• la prise est bien munie d’une terre conforme à la loi;
fixées de manière à ne pouvoir être enlevées qu’avec
• la prise est bien apte à supporter la puissance
l’aide d’un outil.
maximale de l’appareil, indiquée sur la plaque
signalétique de l’appareil ;
• la tension d’alimentation est bien comprise entre les
Raccordement électrique
valeurs indiquées sur la plaque signalétique;
• la prise est bien compatible avec la fiche de l’appareil.
! Le branchement électrique de la table de cuisson
Si ce n’est pas le cas, remplacer la prise ou la fiche, ne
et celui d’un éventuel four à encastrer doivent être
pas utiliser de rallonges ni de prises multiples.
effectués séparément, pour des raisons de sécurité
électrique et pour pouvoir démonter plus facilement le
! Après installation de l’appareil, le câble électrique et
four en cas de besoin.
la prise de courant doivent être facilement accessibles
! Le câble ne doit être ni plié ni excessivement écrasé.
Raccordement monophasé
! Le câble doit être contrôlé périodiquement et ne peut
La table est fournie déjà équipée d’un cordon
être remplacé que par un technicien agréé.
d’alimentation prévu pour raccordement monophasé.
! Nous déclinons toute responsabilité en cas de non
Procéder au raccordement des fils en suivant les
respect des normes énumérées ci-dessus.
indications du tableau et des dessins suivants :
! Ne retirer ou ne remplacer en aucun cas le câble
Tension type et
Cordon électrique Raccordement fils
fréquence réseau
d’alimentation. Toute opération d’enlèvement ou de
remplacement annule automatiquement la garantie
: jaune/vert;
220-240V 1+N ~
et la marque CE INDESIT décline toute responsabilité
N
: les 2 fils bleus ensemble
50 Hz
en cas d’accidents ou de dommages dérivants
L
: le marron avec le noir
de l’enlèvement ou du remplacement du câble
d’alimentation original. Seul le remplacement effectué
Autres types de branchement
par un technicien agréé INDESIT utilisant une pièce
Si l’installation électrique correspond à une des
détachée originale est autorisé.
caractéristiques suivantes :
21

Mise en marche et
utilisation
! La colle utilisée pour les joints laisse des traces
FR
de graisse sur le verre. Nous conseillons de les
! Une pression prolongée sur les touches - et
éliminer avant d’utiliser l’appareil à l’aide d’un produit
d’entretien non abrasif. Une odeur de caoutchouc
+ accélère l’avancement rapide des niveaux de
peut se dégager au cours des premières heures
puissance et des minutes du minuteur.
d’utilisation, elle disparaîtra très vite.
! Un bip retentit quelques secondes après la mise sous
Mise sous tension de la table de cuisson
tension de la table de cuisson. A partir de ce moment-
là, l’allumage de la table est possible.
Pour mettre la table de cuisson sous tension, appuyer sur
Bruits de fonctionnement normaux de la table de
cuisson :
la touche
pendant une seconde environ.
• Bourdonnement : il est dû à la vibration des
éléments métalliques qui composent le générateur
et le récipient de cuisson. Il est produit par le champ
Allumage des foyers
électromagnétique nécessaire à la montée en
température ; il augmente au fur et à mesure que le
niveau de puissance du générateur augmente.
Chaque foyer est activé par une touche de sélection
• Léger sifflement : il se produit quand la casserole
et par un dispositif de réglage de la puissance à
posée sur le foyer est vide; le bruit disparaît dès
qu’on y introduit de l’eau ou des aliments.
double touche
- et +.
• Crépitement : il s’agit d’un bruit produit par les
• Pour mettre en marche un foyer, appuyer sur la
vibrations du matériau composant le fond de la
commande correspondante et sélectionner la
casserole quand il est traversé par les courants
parasites dus au champ électromagnétique
puissance voulue à l’aide des touches
- et +.
(induction) ; il est plus ou moins intense selon le
type de matériau utilisé pour le fond et il diminue au
fur et à mesure que les dimensions de la casserole
Fonction booster*
augmentent.
• Sifflement intense : il se produit quand les deux
Pour accélérer la montée en température, une fonction
générateurs fonctionnent en même temps sur la
booster est disponible sur certains foyers, pour l’activer
même verticale à leur puissance maximale et/ou
quand la fonction booster est insérée sur le plus
appuyer sur la touche
. Le voyant placé au-dessus
grand d’entre eux et que l’autre est autorégulé.
de la touche s’allume. Cette fonction suralimente la
Le bruit diminue dès qu’on baisse le niveau de
puissance à 3000 ou 4000W selon la dimension du
puissance du générateur autorégulé; il est plus
foyer concerné.
manifeste quand le fond de la casserole est formé
Le booster s’arrête automatiquement après 4 minutes.
de plusieurs couches de matériaux différents.
Tant que le booster d’un foyer est activé, la puissance
• Bruit du ventilateur : pour un fonctionnement correct
du foyer correspondant avant ou arrière est limitée (par
de la table et pour garantir la sécurité des composants
ex : si le booster est activé sur le foyer arrière gauche,
électroniques contre tout risque de surchauffe, il faut
la puissance du foyer avant gauche baisse). Pour de
actionner un ventilateur. Le ventilateur fonctionne à
plus amples renseignements, consulter Description
sa puissance maximum quand le générateur plus
technique des modèles.
grand est à son niveau de puissance maximum ou
quand la fonction booster est insérée; dans tous les
Extinction des foyers
autres cas, il fonctionne à sa puissance intermédiaire
selon la température détectée. Il se peut d’ailleurs que
Pour éteindre un foyer, le sélectionner à l’aide de la touche
le ventilateur continue à fonctionner même après la
désactivation de la table si la température détectée est
de sélection correspondante
et :
trop élevée.
• Appuyez sur la touche
- : la puissance du foyer
Les bruits énumérés sont rattachés à la technologie de
descend progressivement jusqu’à extinction.
l’induction et ne signalent pas forcément des défauts de
fonctionnement.
Programmation de la durée de cuisson
! Il est possible de programmer simultanément tous les
foyers pour une durée comprise entre 1 et 99 minutes.
* N’existe que sur certains modèles
22

1. Sélectionner le foyer à l’aide de la touche de
sélection correspondante.
1. Appuyer sur la touche de programmation
. Jusqu’à
FR
2. Régler le niveau de puissance du foyer.
ce que le voyant minuteur s’allume
.
3. Appuyer sur la touche de programmation
. Le
2. Sélectionner la durée désirée à l’aide des touches
voyant correspondant au foyer sélectionné clignote.
4. Sélectionner la durée de cuisson désirée à l’aide
- et +.
des touches
- et +.
3. Appuyer sur la touche
pour valider.
Le compte à rebours du minuteur démarre aussitôt.
5. Valider en appuyant sur la touche
, sinon la
Une fois le temps écoulé, un signal sonore retentit
sélection se fait automatiquement au bout de 10
(pendant 1 minute).
secondes.
Le compte à rebours du minuteur démarre aussitôt.
La fin de la cuisson programmée est indiquée par un
Verrouillage des commandes
signal acoustique (durée 1 minute) et le foyer s’éteint.
Procéder de même pour tous les foyers devant être
Pendant le fonctionnement de la table, il est possible
programmés.
de verrouiller les commandes pour empêcher
toute intervention extérieure sur le réglage (enfants,
Affichage en cas de programmation multiple
nettoyage...). Appuyer sur la touche
pour verrouiller
En cas de programmation d’un ou de plusieurs foyers,
les commandes, le voyant situé au-dessus de la
l’écran affiche le temps restant pour le foyer qui se
touche s’allume.
rapproche le plus de la fin du temps programmé,
Pour pouvoir modifier les réglages (interrompre la
dont la position est indiquée par clignotement du
cuisson par ex.) il faut déverrouiller les commandes
voyant correspondant. Les voyants des autres foyers
programmés sont allumés.
: appuyer sur la touche
pendant quelques
Pour afficher le temps restant des autres foyers
instants, le voyant s’éteint et les commandes sont
programmés, appuyer plusieurs fois
déverrouillées.
de suite sur la touche
: il y aura
affichage à la suite et dans le sens des
Extinction de la table de cuisson
aiguilles d’une montre des temps du
minuteur et de tous les foyers programmés, en partant
du foyer avant gauche.
Appuyer sur la touche pour éteindre l’appareil.
Ne pas se fier au détecteur de casserole. Si les
Modifier la programmation
commandes de l’appareil ont été verrouillées, elles
le seront encore au rallumage de la table. Pour
pouvoir rallumer la table de cuisson, il faut d’abord
1. Appuyer plusieurs fois de suite sur la touche
déverrouiller les commandes.
, jusqu’à affichage du temps correspondant au foyer
devant être modifié.
2. Sélectionner un nouveau temps à l’aide des touches
Mode Démonstration (demo)
- et +.
Il est possible de sélectionner une utilisation en mode
démonstration où le tableau de bord fonctionne normalement
3. Appuyer sur la touche
pour valider.
(y compris les commandes concernant la programmation)
mais où les éléments chauffants ne s’allument pas. Pour
Pour annuler une programmation, procéder comme
activer le mode démonstration (demo), il faut que la table soit
sous tension et que tous les foyers soient éteints :
indiqué plus haut. Au point 2, appuyer sur la touche
-
• Appuyer simultanément sur les touches + et – et
: la durée diminue progressivement jusqu’à l’extinction
les garder enfoncées pendant 6 secondes. Au
0. La programmation est remise à zéro et l’afficheur
bout de 6 secondes, le voyant ON/OFF et le voyant
quitte le mode programmation.
VERROUILLAGE DES COMMANDES se mettent à
clignoter pendant une seconde. Lâcher les touches
+
Le minuteur
et
– et appuyer sur la touche ;
• il y a affichage de DE et de MO et la table s’éteint;
La table de cuisson doit être allumée.
• au rallumage successif, la table se trouvera en
Le minuteur permet de sélectionner une durée de 99
mode démonstration (demo).
minutes maximum.
23

Pour quitter ce mode de fonctionnement, suivre la
FR
procédure décrite plus haut. Il y a affichage de DE et de
OF et la table s’éteint. Au rallumage successif, la table
fonctionnera normalement.
Conseils d’utilisation de l’appareil
! Utiliser des récipients dont le matériau est compatible
avec l’induction (matériau ferromagnétique). Nous
recommandons l’utilisation de casseroles en : fonte,
acier émaillé ou inox spécial induction. Pour s’assurer
de la compatibilité d’un récipient, effectuer un test
avec un aimant.
24
A UTILISER
NE CONVIENT PAS
*
Fonte
Cuivre
Acier émaillé
Aluminium, Verre, Terre,
Inox spécial
Céramique, Inox non magnétique
Surchauffe
En cas de surchauffe de ses composants électroniques,
la table s’éteint automatiquement et l’afficheur indique
F
suivi d’un chiffre clignotant. Cet affichage disparaît et
la table est à nouveau utilisable dès que la température
est redescendue à un niveau acceptable.
Interrupteur sécurité
L’appareil est équipé d’un interrupteur de sécurité qui
interrompt instantanément le fonctionnement des foyers
dès qu’un temps limite de fonctionnement à un niveau
de puissance donné est atteint. Pendant l’interruption de
sécurité, l’afficheur indique “0”.
Exemple : le foyer arrière droit est réglé sur 5, tandis que
le foyer avant gauche est réglé sur 2. Le foyer arrière droit
s’éteindra au bout de 5 heures de fonctionnement tandis
que le foyer avant gauche s’éteindra au bout de 8 heures.
Puissance
Durée limite de fonctionnement
Pour obtenir de meilleures performances de la table de
1
9
cuisson :
• Utiliser des casseroles à fond plat et de forte épaisseur
2
8
pour qu’elles adhèrent parfaitement à la zone de chauffe
3
7
4
6
5
5
• Utiliser des casseroles dont le diamètre couvre
6
4
complètement la zone de chauffe de façon à ce que
7
3
toute la chaleur disponible puisse être utilisée.
8
2
9
1
Signal sonore
• Veiller à ce que la base des casseroles soit toujours
parfaitement sèche et propre pour garantir un bon
Des anomalies, comme par exemple :
contact et une longue durée de vie des foyers mais
• un objet (casserole, couvert, ...) placé plus de 10
aussi des casseroles.
secondes sur la zone de commande,
• Eviter d’utiliser les mêmes casseroles que sur les
• un débordement sur la zone de commande,
brûleurs à gaz. la concentration de chaleur sur les
• une pression prolongée sur une touche,
brûleurs à gaz peut déformer le fond de la casserole
peuvent déclencher un signal sonore. Eliminer la cause
qui perd de son adhérence.
de dysfonctionnement pour stopper le signal sonore.
Si la cause de l’anomalie n’est pas éliminée, le signal
sonore continue à retentir et la table s’éteint.
Les sécurités
Détection de récipient
Chaque foyer est équipé d’une détection de casserole.
Le foyer ne délivre de puissance qu’en présence d’une
casserole adaptée au foyer. Le voyant clignotant peut
signaler :
• une casserole incompatible
• une casserole de trop petit diamètre
• que la casserole a été soulevée

Conseils utiles pour la cuisson
FR
Mise en pression
Friture
ª
Autocuisser
Cuiccon très viveCuisson viveCuisson moyenneCuisson douceCuisson
•
Grillade Ebullition
•
Crêpes Saise et coloration
(Rotis, Steack, Escalope, Filets de poisson,
Oeufs au plat)
¶
¶
Réduction rapide (Sauce liquides)
Eau Frémissante (Pates, Riz, Légumes)
Lait
§
§
Réduction lente (Sauce épaisses)
S
S
Cuisson au bain-marie Cuisson Autocuiseur après chuchotement
¢
¢
£
Mijotage (Ragouts)
Réchauffage des préparations
™
™
Sauce chocolat Maintien au chaud
très douce
¡
25

Précautions et conseils
! Cet appareil a été conçu et fabriqué conformément aux
• S’assurer que les manches des casseroles soient
FR
normes internationales de sécurité. Ces consignes de sécurité
toujours tournés vers l’intérieur de la table de cuisson
sont très importantes et doivent être lues attentivement.
pour éviter tout risque d’accident.
• Ne pas tirer sur le câble pour débrancher la fiche de la
Cet appareil est conforme aux Directives
prise de courant.
Communautaires suivantes :
• N’effectuer aucune opération de nettoyage ou
d’entretien sans avoir auparavant débranché la fiche de
- 2006/95/CEE du 12/12/06 (Basse Tension) et modifications
la prise de courant.
successives
• Il n’est pas prévu que cet appareil soit utilisé par
- 2004/108/CEE du 15/12/04 (Compatibilité électromagnétique)
des personnes (enfants compris) présentant des
et modifications successives
capacités physiques, sensorielles ou mentales réduites
- 93/68/CEE du 22/07/93 et modifications successives.
ou qui n’ont pas l’expérience ou les connaissances
- 1275/2008 stand-by/off mode.
indispensables, à moins qu’elles ne le fassent sous la
surveillance de quelqu’un responsable de leur sécurité
ou qu’elles aient été dûment formées sur l’utilisation de
Sécurité générale
l’appareil.
! S’assurer que la prise d’air à travers la grille du
• Avis à toute personne portant un pacemaker ou
ventilateur ne soit jamais bouchée. La table à
autre implant médical actif :
encastrer exige en effet une bonne aération pour le
La table est conforme à toutes les réglementations en
refroidissement des composants électroniques.
matière d’interférences électromagnétiques.
! L’installation d’une table de cuisson à induction au-dessus
Par conséquent, ce produit est parfaitement conforme
d’un réfrigérateur sous plan (chaleur) ou au-dessus d’un
à toutes les dispositions légales (directives 89/336/
lave-linge (vibrations) est vivement déconseillée. L’espace
CEE). Il a été conçu de manière à ne pas provoquer
indispensable à la ventilation des éléments électroniques serait
d’interférences à d’autres appareils électriques utilisés,
en effet insuffisant.
pourvu que ceux-ci soient également conformes aux
• Cet appareil a été conçu pour un usage familial, de type non
réglementations susmentionnées.
professionnel.
La table induction génère des champs
• Cet appareil ne doit pas être installé en extérieur, même
électromagnétiques à courte portée.
dans un endroit abrité, il est en effet très dangereux de le
Afin d’éviter tout risque d’interférence entre la table de
laisser exposé à la pluie et aux orages.
cuisson et le pacemaker, ce dernier devra être fabriqué
• Ne pas toucher à l’appareil si l’on est pieds nus ou si l’on a
conformément à la réglementation en vigueur.
les mains ou les pieds mouillés ou humides.
A ce propos, nous ne pouvons assurer que la
• Cet appareil qui sert à cuire des aliments ne doit
conformité de notre produit. Pour tous renseignements
être utilisé que par des adultes conformément
quant à la conformité ou à des problèmes éventuels
aux instructions du mode d’emploi. Toute autre
d’incompatibilité, prière de s’adresser à son médecin
utilisation (comme par exemple le chauffage
traitant ou au fabricant du pacemaker.
d’une pièce) est impropre et donc dangereux. Le
• S’assurer que les enfants ne jouent pas avec l’appareil.
fabricant décline toute responsabilité en cas de
• Ne pas poser d’objets métalliques (couteaux, cuillères,
dommages provoqués par un usage impropre ou
couvercles, etc.) sur la table, ils risquent de devenir
erroné.
brûlants.
• Ne pas utiliser la table comme plan de dépose ou
• Le dispositif n’est pas destiné à être mis en œuvre
comme planche à découper.
par une minuterie externe ou un système de
• Le plan vitrocéramique résiste aux chocs
télécommande séparée.
mécaniques, il peut toutefois se fendre (ou même
se briser) sous l’effet d’un choc provoqué par un
objet pointu, tel qu’un ustensile par exemple. Dans
ce cas, débrancher immédiatement l’appareil
du réseau électrique et s’adresser à un centre
Mise au rebut
d’assistance technique.
• Mise au rebut du matériel d’emballage : se conformer aux
• Eviter que le cordon d’alimentation d’autres petits
réglementations locales, les emballages pourront ainsi être
électroménagers touche à des parties chaudes de
recyclés.
la table de cuisson.
• La directive européenne 2002/96/CE relative aux déchets
• Ne pas oublier que la température des foyers reste
d’équipements électriques et électroniques (DEEE), prévoit que
assez élevée pendant trente minutes au moins
les électroménagers ne peuvent pas être traités comme des
après leur extinction. La chaleur résiduelle est
déchets solides urbains courants. Les appareils usagés doivent
aussi signalée par un voyant (voir Mise en marche et
faire l’objet d’une collecte séparée pour optimiser le taux de
Utilisation).
récupération et de recyclage des matériaux qui les composent
• Garder à bonne distance de la table de cuisson tout
et empêcher tout danger pour la santé et pour l’environnement.
objet qui pourrait fondre, des objets en plastique ou
Le symbole de la poubelle barrée est appliqué sur tous les
en aluminium par exemple, ou des produits à haute
produits pour rappeler qu’ils font l’objet d’une collecte sélective.
teneur en sucre. Faire très attention aux emballages,
Pour de plus amples renseignements sur la mise au rebut
au film plastique et au papier aluminium : au contact
des électroménagers, les possesseurs peuvent s’adresser au
des surfaces encore chaudes ou tièdes, ils risquent
service public prévu à cet effet ou aux commerçants.
d’endommager gravement la table.
26

Nettoyage et entretien
Mise hors tension
• Prendre soin de toujours bien rincer à l’eau claire
FR
Avant toute opération de nettoyage ou d’entretien
et d’essuyer la table : les résidus des produits
couper l’alimentation électrique de l’appareil.
pourraient en effet s’incruster lors d’une prochaine
cuisson.
Nettoyage de l’appareil
! Ne jamais utiliser de détergents abrasifs ou corrosifs,
Cadre en acier inox (uniquement pour les modèles avec
tels que des bombes aérosols pour grilloirs et fours,
encadrement)
des détacheurs et des anti-rouille, des poudres
Un contact prolongé avec une eau très calcaire ou
à récurer ou des éponges à surface abrasive : ils
l’utilisation de nettoyants contenant du phosphore
risquent de rayer irrémédiablement la surface.
peuvent tacher l’acier inox.
! Ne jamais nettoyer l’appareil avec des nettoyeurs
Nous conseillons de rincer abondamment et de bien
vapeur ou haute pression.
essuyer après entretien. Il est préférable d’éliminer
aussitôt tout débordement d’eau.
• Pour un entretien courant, passer une éponge
humide sur la surface de la table et essuyer avec du
! Certaines tables ont un cadre en aluminium
papier essuie-tout.
ressemblant à de l’acier inox. Ne pas utiliser de
• Si la table est particulièrement sale, frotter avec un
produits d’entretien et de dégraissage ne convenant
produit d’entretien adapté au verre vitrocéramique,
pas pour l’aluminium.
rincer et essuyer.
• Pour enlever les salissures en relief, utiliser un
Démontage de la table
grattoir prévu à cet effet. Intervenir dès que
Si le démontage de la table de cuisson s’avère
possible, ne pas attendre que l’appareil ait refroidi
nécessaire :
afin d’éviter toute incrustation des salissures.
1. enlever les vis qui fixent les ressorts de centrage sur
L’utilisation d’une éponge en fil d’acier inoxydable,
les côtés;
spéciale verre vitrocéramique, imprégnée d’eau
2. desserrer les vis des crochets de fixation dans les
savonneuse donne d’excellents résultats.
coins;
• Tout objet, matière plastique ou sucre ayant
3. dégager la table de cuisson du meuble.
accidentellement fondu sur la table de cuisson doit
être aussitôt enlevé à l’aide du grattoir tant que la
! Il est vivement déconseillé d’essayer d’accéder
surface est encore chaude.
aux mécanismes internes pour tenter une réparation.
• Une fois que la table est propre, elle peut être traitée
En cas de panne, contacter le service d’assistance
avec un produit d’entretien et de protection spécial :
technique.
celui-ci forme un film invisible qui protège la surface
en cas de débordement accidentel. Opérer de
préférence quand l’appareil est tiède ou froid.
Description technique des modèles
L’induction est le procédé de cuisson le plus rapide. Contrairement aux plaques traditionnelles, le foyer n’émet
aucune chaleur : la chaleur est produite à l’intérieur du récipient à condition que le fond de ce dernier soit en
matériau ferromagnétique.
27
Tables de cuisson
VIA 640 C
VIC 641 X
VIA 640 C S
Foyers
Puissance (en W)
Puissance (en W)
Arrière gauche
I 1400
I 1400
Arrière droit
I 2200
I 2200 - B 3000*
Avant gauche
I 2200
I 2200
Avant droit
I 1400
I 1400 - 600 si Arrière droit*
Puissance totale
7200
7200
Légende :
I = foyer à induction simple
B = booster: le foyer peut être suralimenté à 2000/3000 W
* = la puissance maximale est limitée tant que le booster est activé sur le foyer arrière correspondant (voir Mise en
marche et Utilisation).

Instalación
! Es importante conservar este manual para poder
ES
consultarlo en todo momento. En el caso de venta,
de cesión o de mudanza, verifique que permanezca
junto al aparato para informar al nuevo propietario
min. 20 mm
sobre su funcionamiento y sobre las advertencias
correspondientes.
5 mm
! Lea atentamente las instrucciones: contienen
CAJÓN
importante información sobre la instalación, el uso y la
seguridad.
min. 40 mm
Colocación
! Los embalajes no son juguetes para niños y se
deben eliminar según las normas para la recolección
diferenciada de desechos (ver Precauciones y consejos).
min. 20 mm
! La instalación se debe realizar siguiendo estas
instrucciones y por personal profesionalmente
5 mm
calificado. Una instalación incorrecta puede producir
HORNO
daños a personas, animales o cosas.
VENTILADO
Empotramiento
min. 40 mm
Para garantizar un buen funcionamiento del aparato
es necesario que el mueble tenga las características
adecuadas:
• el plano de apoyo debe ser de material resistente al
calor, a una temperatura de aproximadamente 100ºC;
• si se desea instalar la encimera sobre un horno, el
PARTE DELANTERA
mismo debe poseer un sistema de enfriamiento con
DE LA ENCIMERA
ventilación forzada;
• evite instalar la encimera sobre un lavavajillas: pero si
PLANO DE
fuera necesario, interponga un elemento de separación
APOYO
30
40
estanco entre los dos aparatos;
• según el tipo de encimera que se desea instalar (ver las
ENCIMERA
590
574
VOLCADA
53
48
520
504
560 +/- 1
560 +/- 1
490 +/- 1
490 +/- 1
guras), el espacio disponible en el mueble debe tener
las siguientes dimensiones:
Aireación
Para permitir una adecuada aireación y para evitar
el sobrecalentamiento de las superficies que rodean al
aparato, la encimera se debe colocar:
• a una distancia mínima de 40 mm de la pared posterior
o de cualquier otra superficie vertical;
• de modo que se mantenga una distancia mínima de 20
mm entre el hueco para el empotramiento y el mueble
que se encuentra debajo.
• Los muebles situados a un costado, cuya altura supere
28

la de la superficie de trabajo, deben estar situados a
Otros tipos de conexión
ES
600 mm., como mínimo, del borde de la misma.
Si las características de la instalación eléctrica coinciden con
alguna de las siguientes:
Fijación
Tensión tipo y frecuencia de la red
La instalación del aparato se debe realizar sobre una
• 400V - 2+N ~ 50 Hz
superficie de apoyo perfectamente plana.
• 220-240V 3 ~ 50 Hz
Las deformaciones que se podrían provocar por una
• 400V 3 - N ~ 50 Hz
• 400V - 2+2N ~ 50 Hz
mala fijación, pueden alterar las características y las
Separe los cables y realice la conexión de acuerdo con la
prestaciones de la encimera.
tabla y los dibujos que se muestran a continuación:
Tensión tipo y
Cable eléctrico
Conexión de los cables
La longitud del tornillo de regulación de los ganchos
frecuencia de la red
de fijación se debe determinar antes de su montaje en
400V - 2+N ~
50 Hz
: amarillo/verde;
base al espesor de la superficie de apoyo:
• espesor de 30 mm: tornillo de 23 mm;
220-240V 3 ~
N: los 2 cables azules
50 Hz
juntos
• espesor de 40 mm: tornillo de 13 mm.
L1: negro
400V 3-N ~
50 Hz
L2: marrón
Para realizar la fijación, el procedimiento es el siguiente:
: amarillo/verde;
1. Con los tornillos cortos sin punta, enrosque los 4 muelles
de centrado en los orificios ubicados en el centro de cada
400V - 2+2N ~
N1: azul
50 Hz
N2: azul
costado de la encimera;
L1: negro
2. introduzca la encimera en el hueco del mueble, céntrela
L2: marrón
y ejerza una adecuada presión sobre todo el perímetro para
Conexión del cable de alimentación eléctrica a la red
que se adhiera perfectamente a la superficie de apoyo.
En el caso de conexión directa a la red, es necesario
3. en las encimeras con perfiles laterales: después de haber
interponer entre el aparato y la red, un interruptor omnipolar
colocado la encimera en el mueble, introduzca los 4 ganchos
con apertura mínima entre los contactos de 3 mm.
de fijación (cada uno con su perno) en el perímetro inferior de
! El instalador es responsable de la correcta conexión
la encimera enroscándolos con los tornillos largos con punta
eléctrica y del cumplimiento de las normas de seguridad.
hasta que el vidrio se adhiera a la superficie de apoyo.
Antes de efectuar la conexión verifique que:
! Es indispensable que los tornillos de los muelles de
• la toma tenga conexión a tierra y que sea conforme con la
centrado permanezcan accesibles.
ley;
! En conformidad con las normas de seguridad, una
• la toma sea capaz de soportar la carga máxima de
vez empotrado el aparato, no se deben producir
potencia de la máquina indicada en la placa de
contactos con las piezas eléctricas.
características que se encuentra en el aparato;
! Todas las partes que garantizan la protección se
• la tensión de alimentación eléctrica esté comprendida
deben fijar de modo tal que no puedan ser quitadas
dentro de los valores indicados en la placa de
sin la ayuda de una herramienta.
características;
• la toma sea compatible con el enchufe del aparato.
Conexión eléctrica
Si no es así, sustituya la toma o el enchufe; no utilice
prolongaciones ni conexiones múltiples.
! La conexión eléctrica de la encimera y la de un horno
empotrado deben ser realizadas por separado, tanto
! Una vez instalado el aparato, el cable eléctrico y la toma
por razones de seguridad eléctrica como para facilitar
de corriente deben ser fácilmente accesibles.
las operaciones de extracción del horno.
! El cable no debe sufrir pliegues ni compresiones.
! El cable debe ser revisado periódicamente y sustituido
Conexión monofásica
sólo por técnicos autorizados.
La encimera posee un cable de alimentación eléctrica
! La empresa declina toda responsabilidad cuando
ya conectado y preparado para la conexión monofásica.
estas normas no sean respetadas.
Realice la conexión de los cables de acuerdo con la tabla
! No quitar ni sustituir por ninguna razón el cable de
y los dibujos que se muestran a continuación:
alimentación. Si se sustituye o extrae caduca la garantía y
Tensión tipo y
la marca CE. INDESIT no se asume la responsabilidad en
Cable eléctrico Conexión de los cables
frecuencia de la red
caso de accidentes o daños derivados de la sustitución
: amarillo/verde;
220-240V 1+N ~
o remoción del cable de alimentación original. Se admite
N: los 2 cables azules juntos
50 Hz
L: el marrón junto al negro
exclusivamente la sustitución con un repuesto original y
realizada por personal autorizado por INDESIT.
29

Puesta en funcionamiento
y uso
! La cola aplicada sobre las juntas deja algunas trazas
ES
de grasa en el vidrio. Antes de utilizar el aparato, se
! La presión prolongada de los botones - y +
recomienda eliminarlas con un producto específico
permite el avance veloz de los niveles de potencia y
para el mantenimiento, no abrasivo. Durante las
de los minutos del temporizador.
primeras horas de funcionamiento, es posible advertir
un olor a goma que pronto desaparecerá.
Encendido de la encimera
! Cuando la encimera se conecta a la red de
alimentación eléctrica, después de algunos segundos
El encendido de la encimera se produce manteniendo
se emite una breve señal sonora. Sólo a partir de ese
presionado el botón
durante un segundo
momento es posible encender la encimera.
aproximadamente.
Ruidos de normal funcionamiento de la placa de
cocina:
Encendido de las zonas de cocción
• Rumor: Se debe a la vibración de los elementos
metálicos que componen el inductor y la olla y
Cada zona de cocción se acciona utilizando un botón de
se generan debido al campo electromagnético
necesario para el calentamiento; el mismo aumenta
selección
y un dispositivo de regulación de la
al aumentar el nivel de potencia del inductor.
• Leve silbido: Se presenta cuando la olla colocada
potencia compuesto por un doble botón
- y +.
en la zona de cocción está vacía; el ruido
• Para poner en funcionamiento una zona de cocción,
desaparece apenas se agregan alimentos o agua.
pulse el correspondiente botón de mando y fije la
• Crepitación: Es un ruido producido por las
vibraciones del material del fondo de la olla
potencia deseada utilizando los botones
- y +.
cuando es atravesado por las corrientes parásitas
generadas por el campo electromagnético
Función booster*
(inducción); puede variar su intensidad
dependiendo del material del fondo de la olla y se
Para disminuir los tiempos de calentamiento en algunas
reduce cuando el tamaño de la olla aumenta.
zonas de cocción, es posible activar la función booster
• Silbido intenso: Se presenta cuando funcionan
(acelerador) presionando el botón
. Se enciende
al mismo tiempo los dos inductores en la misma
la luz piloto colocada sobre el botón. Esta función
vertical a la potencia máxima y/o si en el grande se
sobrealimenta la potencia a 3000W o 4000W
ha fijado la función booster mientras que el otro está
dependiendo del tamaño de la zona de cocción.
autorregulado. El ruido se reduce apenas desciende
La función booster se interrumpe automáticamente
el nivel de potencia del inductor autorregulado; se
después de 4 minutos. Mientras el booster de una
manifiesta en particular cuando el fondo de la olla
zona de cocción está activo, la zona de cocción
está compuesto por capas de material diferente.
correspondiente anterior o posterior tendrá potencia
• Ruido del ventilador: Para el funcionamiento correcto
limitada (Ej.: Si está funcionando el booster de la placa
de la placa y para garantizar la seguridad de la
posterior izquierda, la potencia de la placa delantera
parte electrónica de posibles sobrecalentamientos
izquierda disminuye). Para más detalles consultar la
es necesario el funcionamiento del ventilador. El
Descripción técnica de los modelos.
ventilador funciona a la máxima potencia cuando el
inductor grande está al máximo nivel de potencia o
Apagado de las zonas de cocción
cuando está conectada la función booster; en los otros
casos funciona con potencia media dependiendo de
Para apagar una zona de cocción, selecciónela mediante
la temperatura que registra. Además, es posible que
el ventilador siga funcionando incluso después que
el correspondiente botón de selección
y:
se ha desconectado la placa, esto se debe a que la
• Presione el botón
-: la potencia de la zona de
temperatura registrada es aún elevada.
cocción desciende progresivamente, hasta que se
Los ruidos descriptos se deben a la tecnología de
apaga.
inducción y no implican necesariamente defectos de
funcionamiento.
Programación de la duración de una
cocción
! Se pueden programar simultáneamente todas las
zonas de cocción para que cocinen entre 1 y 99
minutos.
* Presente sólo en algunos modelos.
30

1. Seleccione la zona de cocción utilizando el botón de
encienda el piloto del contador de minutos.
ES
selección correspondiente.
2. Seleccione la duración deseada utilizando los
2. Regule el nivel de potencia de la zona de cocción.
botones
- y +.
3. Presione el botón de programación
. Centelleará
3. Confirme la operación presionando el botón
.
el piloto correspondiente a la zona elegida.
La cuenta al revés del temporizador comienza
4. Seleccione la duración de la cocción deseada
inmediatamente. Una vez que se ha cumplido el
utilizando los botones
- y +.
tiempo, se emite una señal sonora (de 1 minuto de
duración).
5. Confirme la operación presionando el botón
,
si no lo hace, después de 10 segundos se selecciona
Bloqueo de los mandos
automáticamente.
Cuando la encimera está en funcionamiento, es posible
La cuenta al revés del temporizador comienza
bloquear el panel de control para evitar el peligro de
inmediatamente. La finalización de la cocción
modificaciones fortuitas de las regulaciones (niños,
programada está indicada por una señal sonora
(durante 1 minuto) y la zona de cocción se apaga.
operaciones de limpieza, etc.). Presionando el botón
Repita el procedimiento descrito precedentemente
, los mandos se bloquean y el piloto que se encuentra
para cada placa que se pretende programar.
encima del botón se enciende.
Para poder volver a realizar regulaciones (por ej.:
Visualización en el caso de programación múltiple
interrumpir la cocción), es necesario desbloquear
Cuando una o varias placas han sido programadas, el
los mandos: presione el botón
durante algunos
display visualiza el tiempo remanente de la placa que está
instantes, la luz testigo se apagará y el panel de
más cerca del final del tiempo programado, indicando su
control se desbloqueará.
posición con el piloto intermitente. Los pilotos de las otras
placas programadas permanecen encendidos.
Apagado de la encimera
Para visualizar el tiempo restante de las otras placas
Presionando el botón , el aparato se apaga, no
programadas, presione varias veces el botón
: se
confíe en el detector de ollas.
mostrarán secuencialmente y en sentido horario los
Si los mandos del aparato fueron bloqueados,
tiempos del contador de minutos y de todas las placas
continuarán estando bloqueados incluso después
programadas, comenzando por la que está ubicada
de haber vuelto a encender la encimera. Para poder
adelante a la izquierda.
encender nuevamente la encimera, es necesario
primero desbloquear los mandos.
Modificar la programación
1. Presione varias veces el botón
hasta que se
Modalidad “demo”
muestre el tiempo de la placa que se pretende
Es posible seleccionar una modalidad demostrativa en
modificar.
la que el panel de control funciona normalmente (incluso
los mandos correspondientes a la programación), pero
2. Accione los botones
- y + para fijar el nuevo
los elementos calentadores no se encienden. Para activar
tiempo.
la modalidad “demo” es necesario que la encimera esté
encendida y todas las placas estén apagadas:
3. Confirme la operación presionando el botón
.
• Presione y mantenga presionados simultáneamente los
Para cancelar una programación, realice las
botones
+ y - durante 6 segundos. Cumplidos los
operaciones indicadas. En el punto 2 presione el botón
6 segundos, el piloto ON/OFF y el piloto BLOQUEO
-: la duración disminuye progresivamente hasta el
DE MANDOS centellean durante un segundo. Suelte
0. La programación se anula y la pantalla sale de la
modalidad programación.
los botones
+ y - y presione el botón ;
• la pantalla visualizará DE y MO y la encimera se
El contador de minutos
apagará;
La encimera debe estar encendida.
• al volver a encender la encimera, se encontrará en la
El contador de minutos permite fijar una duración máxima
modalidad “demo”.
de 99 minutos.
1. Presione el botón de programación
hasta que se
31

Para salir de esta modalidad siga el procedimiento ya
ES
descrito. La pantalla visualizará DE y OF y la encimera
se apagará. Cuando vuelva a encender la encimera,
funcionará normalmente.
Consejos prácticos para el uso del aparato
! Utilice recipientes para la cocción fabricados con
material compatible con el principio de inducción
(material ferromagnético). Se recomienda el uso de
ollas de: hierro fundido, acero esmaltado o inoxidable
especial para inducción. Para asegurarse de la
compatibilidad de un recipiente, es suficiente realizar
una prueba con un imán.
32
• una olla incompatible
• una olla de diámetro insuficiente
• que se ha levantado la olla
Sobrecalentamiento
En el caso de un sobrecalentamiento de los componentes
electrónicos, la encimera se apagará automáticamente
y en la pantalla aparecerá
F seguida de un número
centelleante. Este mensaje desaparecerá y la
encimera se podrá volver a utilizar apenas la
temperatura haya descendido a un nivel aceptable.
Interruptor de seguridad
El aparato posee un interruptor de seguridad que apaga
las zonas de cocción automáticamente cuando se
alcanza un tiempo límite de uso a un determinado nivel de
potencia. Durante la interrupción de seguridad, el display
indica “0”.
Ejemplo: la placa posterior derecha se ha fijado en
Además, para obtener las mejores prestaciones de la
5, mientras que la placa delantera izquierda en 2. La
encimera:
posterior derecha se apagará después de 5 horas de
• Utilice ollas con fondo plano y de gran espesor para
funcionamiento, la delantera izquierda después de 8
asegurarse que se adhieran perfectamente a la zona
horas.
calentadora
Nivel de potencia
Límite de duración de funcionamento en horas
1
9
2
8
3
7
• Utilice ollas de un diámetro suficiente para cubrir
completamente la zona de cocción, de ese modo
4
6
se garantiza el aprovechamiento de todo el calor
5
5
disponible.
6
4
7
3
8
2
• Verifique que el fondo de las ollas esté siempre
9
1
perfectamente seco y limpio para garantizar una
correcta adherencia y mayor duración, no sólo de las
Señal sonora
zonas de cocción, sino también de las ollas.
Algunas anomalías, como:
• Evite utilizar las mismas ollas utilizadas en los
• un objeto (olla, cubierto, etc.) dejado sobre el área de
quemadores a gas: la concentración de calor en los
mandos durante más de 10 segundos
quemadores a gas puede deformar el fondo de la olla
• un derrame sobre el área de mandos,
que, en consecuencia, pierde adherencia.
• la presión sobre un botón ejercida por demasiado
tiempo, pueden provocar la emisión de una señal
Dispositivos de seguridad
sonora. Para interrumpirla, elimine la causa del
mal funcionamiento. Si no se elimina la causa de la
Detección de los recipientes
anomalía, la señal sonora persiste y la encimera se
apagará.
Cada zona de cocción está provista de un dispositivo de
detección de la olla. La placa emite calor únicamente en
presencia de una olla de dimensiones adecuadas para
esa zona de cocción. La luz testigo centelleante puede
indicar:

Consejos prácticos para la cocción
ES
33
Cocción a presión
Freído
ª
Olla a presión
muy fuerte
Cocción a fuego
•
Asado Ebullición
•
Crêpe Cocción a fuego fuerte y dorado
(Asados, Bistec, Escalopes, Filetes de
Cocción a
pescado, Huevo frito)
fuego fuerte
¶
¶
Espesamiento rápido (Salsas líquidas)
Agua hirviendo (Pasta, arroz, Verduras)
Leche
§
§
Espesamiento lento (Salsas consistentes)
S
Cocción a fuego medioCocción a
S
Cocción a Baño María
Cocción olla a presión después del silbido
¢
¢
£
Cocción a fuego
Calentar comidas
fuego bajo
bajo (guisados)
™
™
Salsa al chocolate Mantener caliente
Cocción
a fuego
muy bajo
¡

Precauciones y consejos
! El aparato ha sido proyectado y fabricado en conformidad
ES
aluminio: si se dejan sobre las superficies todavía calientes
con las normas internacionales sobre seguridad. Estas
o tibias pueden causar un grave daño a la encimera.
advertencias se suministran por razones de seguridad y
• Verifique que los mangos de las ollas estén siempre
deben ser leídas atentamente.
dirigidos hacia dentro de la encimera para evitar que sean
chocados accidentalmente.
Este aparato es conforme con las siguientes
• No desconecte el aparato de la toma de corriente tirando
Normas Comunitarias:
del cable sino sujetando el enchufe.
• No realice la limpieza o el mantenimiento sin haber
-2006/95/CEE del 12.12.06 (Baja Tensión) y sucesivas
desconectado primero el aparato de la red eléctrica.
modificaciones
• No está previsto que el aparato sea utilizado por personas
- 2004/108/CEE del 15/12/04 (Compatibilidad
(incluidos los niños) con capacidades físicas, sensoriales
Electromagnética) y sucesivas modificaciones
o mentales disminuidas, por personas inexpertas o que
- 93/68/CEE del 22/07/93 y sucesivas modificaciones.
no tengan familiaridad con el producto, salvo que estén
- 1275/2008 stand-by/off mode.
vigiladas por una persona responsable de su seguridad, o
que no hayan recibido instrucciones preliminares sobre el
Seguridad general
uso del aparato.
• Advertencia para las personas que poseen marcapasos u
otros dispositivos médicos activos:
! Controle que no se obstruya nunca la toma de aire
La encimera es conforme con todas las normas vigentes en
a través de la rejilla del ventilador. La encimera para
materia de interferencias electromagnéticas.
empotrar necesita una correcta aireación para el
Por lo tanto, este producto responde perfectamente a
enfriamiento de los componentes electrónicos.
todos los requisitos de ley (directivas 89/336/CEE). Ha sido
! No se aconseja instalar una encimera por inducción sobre
proyectado para no crear interferencias con otros equipos
un frigorífico bajo encimera (calor) o sobre una lavadora
eléctricos, con la condición de que los mismos también
(vibraciones). En esos casos, el espacio necesario para la
sean conformes con dichas normas.
ventilación de los elementos electrónicos sería insuficiente.
La encimera de inducción genera campos
• El aparato ha sido fabricado para un uso de tipo no
electromagnéticos de alcance limitado.
profesional en el interior de una vivienda.
Para evitar todo riesgo de interferencias entre la encimera
• El aparato no se debe instalar al aire libre, tampoco si el
y el marcapasos, éste último deberá ser realizado en
espacio está protegido porque es muy peligroso dejarlo
conformidad con las normas vigentes.
expuesto a la lluvia y a las tormentas.
Al respecto, nosotros sólo podemos garantizar la
• No toque la máquina descalzo o con las manos y pies
conformidad de nuestro producto. Para obtener
mojados o húmedos.
información sobre la conformidad o por problemas
• El aparato debe ser utilizado para cocinar
de incompatibilidad, consulte con su médico o con el
alimentos, sólo por personas adultas y
fabricante del marcapasos.
siguiendo las instrucciones contenidas en este
• Evitar que los niños jueguen con el aparato.
manual. Cualquier otro uso (como por ejemplo:
• No coloque objetos metálicos (cuchillos, cucharas,
calefacción de ambientes) se debe considerar
cubiertos, etc.) sobre la encimera porque pueden
impropio y, por lo tanto, peligroso. El fabricante
calentarse.
no puede ser considerado responsable por los
• El aparato no se debe poner en funcionamiento a través
daños derivados de usos impropios, erróneos e
de un temporizador externo o de un sistema de mando
irracionales.
• No utilice la encimera como superficie de apoyo ni
a distancia.
como tajo de cocina.
• La encimera de vidriocerámica es resistente a los
choques mecánicos, no obstante, se puede rajar (o
eventualmente quebrantarse) si es golpeada con
un objeto con punta, como por ejemplo un utensilio.
Eliminación
Si esto sucediera, desconecte inmediatamente el
• Eliminación del material de embalaje: respete las normas locales,
aparato de la red de alimentación eléctrica y llame
de esta manera los embalajes podrán ser reutilizados.
al Servicio de Asistencia Técnica.
• La norma europea 2002/96/CE sobre la eliminación de
• Evite que el cable de alimentación eléctrica de otros
aparatos eléctricos y electrónicos (RAEE), establece que los
electrodomésticos entre en contacto con las partes
electrodomésticos no se deben eliminar de la misma manera
calientes de la encimera.
que los desechos sólidos urbanos. Los aparatos en desuso
• No olvide que la temperatura de las zonas de
se deben recoger separadamente para optimizar la tasa de
cocción permanece bastante elevada durante
recuperación y reciclaje de los materiales que los componen e
treinta minutos, como mínimo, después que se han
impedir potenciales daños para la salud y el medio ambiente.
apagado. El calor residual también está señalado
El símbolo de la papelera tachada se encuentra en todos los
por un indicador (ver Puesta en funcionamiento y uso).
productos para recordar la obligación de recolección separada.
• Mantenga cualquier objeto que se pueda fundir a
Para obtener mayor información sobre la correcta eliminación
una debida distancia de la encimera, por ejemplo,
de electrodomésticos, los poseedores de los mismos podrán
objetos de plástico, de aluminio o productos con
dirigirse al servicio público responsable o a los revendedores.
un elevado contenido de azúcar. Tenga particular
cuidado con los embalajes y películas de plástico o
34

Mantenimiento y cuidados
escurrimientos durante la cocción. Se recomienda
Interrumpir el suministro de corriente
ES
realizar estas operaciones con el aparato tibio o frío.
eléctrica
• Recuerde siempre enjuagar la encimera con agua
Antes de realizar cualquier operación, desconecte el
limpia y secarla cuidadosamente: en efecto, los
aparato de la red de alimentación eléctrica.
residuos de productos podrían encostrarse durante
la siguiente cocción.
Limpiar el aparato
! Evite el uso de detergentes abrasivos o corrosivos,
Estructura de acero inoxidable (sólo en los modelos
como aerosoles para barbacoas y hornos,
con marco)
quitamanchas y productos anticorrosivos, jabones
El acero inoxidable puede mancharse por la acción de
en polvo y esponjas con superficie abrasiva, pueden
agua muy calcárea dejada por un período de tiempo
rayar irremediablemente la superficie.
prolongado en contacto con el mismo o debido a
! No utilice nunca limpiadores a vapor o de alta
productos para la limpieza con contenido de fósforo.
presión para la limpieza del aparato.
Se aconseja enjuagar abundantemente y secar con
• Para un mantenimiento ordinario, es suficiente lavar
cuidado después de la limpieza de la encimera. Si se
la encimera con una esponja húmeda, secándola
derramara agua, seque rápidamente y con cuidado.
luego con un papel absorbente para cocina.
! Algunas encimeras poseen un marco de aluminio que
• Si la encimera está particularmente sucia,
se asemeja al acero inoxidable. No utilice productos
refriéguela con un producto específico para la
para la limpieza y el desengrase no adecuados para el
limpieza de las superficies de vidriocerámica,
aluminio.
enjuáguela y séquela.
• Para eliminar las acumulaciones de suciedad
Desmontar la encimera
más consistentes utilice una raedera especial.
Cuando sea necesario, se puede desmontar la
Intervenga lo antes posible, sin esperar que el
encimera:
aparato se enfríe para evitar que los residuos
1. quite los tornillos que fijan los muelles de centrado
formen costras. Se pueden obtener excelentes
en los costados;
resultados usando una esponja con hilos de
2. afloje los tornillos de los ganchos de fijación en las
acero inoxidable especial para encimeras de
esquinas;
vidriocerámica, embebida en agua y jabón.
3. extraiga la encimera del mueble.
• Si sobre la encimera se hubieran fundido
! Se recomienda evitar acceder a los mecanismos
accidentalmente objetos o materiales como
internos para intentar una reparación. En caso de
plástico o azúcar, elimínelos inmediatamente con
avería, llame al Servicio de Asistencia Técnica.
la raedera, mientras la superficie está todavía
caliente.
• Una vez limpia, la encimera se puede tratar con
un producto específico para el mantenimiento
y la protección: la película invisible que deja
este producto protege la superficie en caso de
Descripción técnica de los modelos
El sistema por inducción es el procedimiento de cocción más rápido que existe. A diferencia de las placas
tradicionales, no es la zona de cocción que se calienta: El calor es generado directamente dentro de la olla la cual
deberá poseer necesariamente un fondo de material ferromagnético.
35
Encimeras
VIA 640 C
VIC 641 X
VIA 640 C S
Zonas de cocción
Potencia (en W)
Potencia (en W)
Posterior izquierda
I 1400
I 1400
Posterior derecha
I 2200
I 2200 - B 3000*
Delantera izquierda
I 2200
I 2200
Delantera derecha
I 1400
I 1400 - 600 si Post. Der.*
Potencia total
7200
7200
Leyenda:
I = zona de cocción por inducción simple
B = booster: la zona de cocción puede ser
sobrealimentada a 2000/3000 vatios
* = la potencia máxima está limitada mientras
esté en funcionamiento el booster de la zona de
cocción posterior correspondiente (ver Puesta en
funcionamiento y uso).

Instalação
! É importante guardar este folheto para poder consultá-lo a
PT
qualquer momento. No caso de venda, cessão ou mudança,
assegure-se que o mesmo permanece com o aparelho para
informar o novo proprietário sobre o funcionamento e sobre
min. 20 mm
as respectivas advertências.
! Leia com atenção as instruções: há informações
5 mm
importantes sobre a instalação, a utilização e a segurança.
GAVETA
Posicionamento
min. 40 mm
! As embalagens não são brinquedos para as crianças e
devem ser eliminadas em conformidade com as regras de
colecta diferenciada (veja em Precauções e Conselhos).
! A instalação deve ser realizada segundo estas instruções e
por pessoal profissional qualificado. Uma instalação errada
min. 20 mm
pode causar danos a pessoas, animais ou objectos.
5 mm
Encaixe
FORNO VENTILADO
Para garantir um bom funcionamento do aparelho é necessário
que o móvel seja de características adequadas.
• o material do plano de apoio deve resistir a uma
min. 40 mm
temperatura de aproximadamente 100ºC;
• se desejar instalar o plano de cozedura sobre um
forno, este deve ser equipado com de um sistema de
arrefecimento com ventilação forçada;
• evite instalar o plano de cozedura sobre uma máquina
de lavar louça: se for faze-lo, instale um elemento
LADO ANTERIOR DO
de separação entre os dois aparelhos com retenção
PLANO DE COZEDURA
hermética;
• conforme o plano de cozedura que desejar instalar
PLANO
(veja guras), o vão do móvel deverá ter as seguintes
DE APOIO
30
40
dimensões:
PLANO DE
Ventilação
COZEDURA VIRADO
Para consentir uma adequada ventilação e para evitar o
590
574
53
48
520
504
560 +/- 1
560 +/- 1
490 +/- 1
490 +/- 1
superaquecimento das superfícies ao redor do aparelho, o
plano de cozedura deve ser posicionado:
• a uma distância mínima de 40 mm da parede de trás ou
de quaisquer outras superfícies verticais;
• de forma a manter uma distância mínima de 20 mm entre
o vão para o encaixe e o móvel abaixo dele.
• Os móveis situados ao lado, com altura superior aquela do
plano de trabalho, devem ser situados ao menos 600 mm
do bordo do mesmo plano.
36

Fixação
• 400V - 2+N ~ 50 Hz
PT
A instalação do aparelho deve ser realizada sobre uma
• 220-240V 3 ~ 50 Hz
superfície de apoio perfeitamente plana.
• 400V 3 - N ~ 50 Hz
As deformações eventualmente provocadas por uma
• 400V - 2+2N ~ 50 Hz
fixação errada poderão alterar as características e as
Soltar os cabos e efectuar a ligação dos fios de acordo
performances do plano de cozedura.
com a tabela e os desenhos a seguir:
Tensão tipo e
Cabo eléctrico Ligação fios
O comprimento do parafuso de regulação dos
frequência rede
ganchos de fixação deve ser configurado antes da sua
400V - 2+N ~
50 Hz
: verde/amarelo;
montagem, conforme a espessura do plano de apoio:
• 30 mm de espessura: parafuso 23 mm;
220-240V 3 ~
N:
os 2 fios azuis juntos
50 Hz
L1: preto
• 40 mm de espessura: parafuso 13 mm.
L2: marrom
Para a fixação proceder da seguinte maneira:
400V 3-N ~
50 Hz
1. Com os parafusos sem ponta, parafusar as 4 molas
: verde/amarelo;
de centragem nos furos colocados no centro de cada
lado do plano;
400V - 2+2N ~
N1: azul
2. introduza o plano de cozedura no vão do móvel a
50 Hz
N2: azul
exercer uma adequada pressão no inteiro perímetro
L1: preto
para o plano de cozedura prender-se perfeitamente no
L2: marrom
plano de apoio.
3. para os planos com perfis laterais: após ter inserido
Ligação do cabo de alimentação à rede
o plano de cozedura no móvel, inserir os 4 ganchos
No momento de efectuar a ligação directamente na
de fixação (cada um com o seu perno) no perímetro
rede, instalar entre o aparelho e a rede um interruptor
inferior do plano de cozedura, parafusando-os com os
omnipolar com uma abertura mínima de 3 mm entre os
parafusos compridos com ponta até que o vidro fique
contactos.
aderente ao plano de apoio.
! O técnico instalador é responsável pela realização
certa da ligação eléctrica e da obediência das regras
! É indispensável que os parafusos das molas de
de segurança.
centragem sejam acessíveis.
Antes de efectuar a ligação, certifique-se que:
! Em conformidade com as normas de segurança,
• a tomada tenha uma ligação à terra e seja em
depois de instalar o aparelho encaixado, não deve ser
conformidade com a legislação;
possível o contacto com componentes eléctricos.
• a tomada tenha a capacidade de suportar a carga
máxima de potência da máquina, indicada na placa
! Todos os componentes de garantia da protecção
de identificação colocada no aparelho;
precisam estar presos de modo que não possam ser
• a tensão de alimentação seja entre os valores da
tirados sem o emprego de uma ferramenta.
placa de identificação;
• a tomada seja compatível com a ficha do aparelho.
Em caso contrário, substitua a tomada ou a ficha;
Ligação eléctrica
não empregue extensões nem tomadas múltiplas.
! A ligação eléctrica do plano de cozedura e a de um
! Depois de ter instalado o aparelho, o acesso ao cabo
eventual forno de encaixar precisam ser realizadas
eléctrico e à tomada da corrente deve ser fácil.
separadamente, seja por razões de segurança
! O cabo não deve ser dobrado nem comprimido.
eléctrica, seja para facilitar uma eventual remoção do
! O cabo deve ser verificado periodicamente e
forno.
substituído somente por técnicos autorizados.
! A empresa exime-se de qualquer
Ligação monofásica
responsabilidade se estas regras não forem
O plano está provido de cabo de alimentação já ligado
obedecidas.
e predisposto na fábrica para a ligação monofásica.
! Não remover ou substituir por motivo algum o cabo
Efectuar a ligação dos fios de acordo com a tabela e
de alimentação. A eventual remoção ou substituição
os desenhos a seguir:
do mesmo fará decair a garantia e a marca CE. A
INDESIT exime-se de qualquer responsabilidade
Tensão tipo e
Cabo eléctrico Ligação fios
por incidentes ou danos derivados da substituição/
frequência rede
remoção do cabo de alimentação original. Admite-
: verde/amarelo
se exclusivamente a substituição com uma peça de
220-240V 1+N ~
N
: os 2 fios azuis juntos
50 Hz
reposição original, efectuada por pessoal autorizado
L
: marrom junto ao preto
INDESIT.
Outros tipos de ligações
Se o sistema eléctrico corresponder à uma dessas
características:
Tensão tipo e frequência de rede
37

Início e utilização
! A cola aplicada nas guarnições deixa alguns traços
PT
de graxa no vidro. Antes de utilizar o aparelho, é
Acender o plano de cozedura
recomendável eliminá-la com um produto não abrasivo
específico para a manutenção. Durante as primeiras
Para acender o plano de cozedura manter pressionada a
horas de funcionamento, pode ser que note odor de
tecla
por aproximadamente um segundo.
borracha, que em todo o caso logo desaparecerá.
! Quando o plano de cozedura for ligado
Acender as zonas de cozedura
electricamente, toca um breve sinal acústico depois de
alguns segundos. Somente neste ponto será possível
Cada uma as zonas de cozedura é accionada mediante
ligar o plano de cozedura.
Ruídos do normal funcionamento do plano de
um botão de selecção
e um dispositivo de
cozedura:
regulação da potência constituído por um botão
- e
• Zumbido: deve-se à vibração dos elementos
metálicos dos quais são constituídos o indutor e
+.
a panela e gera-se pelo campo electromagnético
• Para colocar em funcionamento uma zona de
necessário para o aquecimento; aumenta com o
cozedura, carregue na respectivo botão de
aumento do nível de potência do indutor.
comando e defina a potência que desejar mediante
• Leve assobio: manifesta-se quando a panela
os botões
- e +.
disposta sobre a zona de cozedura está vazia;
o ruído desaparece assim que de adicionam
Função booster*
alimentos ou água.
• Crepitação: é um barulho produzido pelas
Para acelerar os tempos de aquecimento, em algumas
vibrações do material do fundo da panela quando
zonas de cozedura, é possível activar a função booster
é atravessado pelas correntes parasitas devidas
carregando na tecla
. O indicador luminoso situado
ao campo electromagnético (indução); pode ser
ao lado da tecla acende-se. Esta função superalimenta
mais ou menos intenso conforme o material do
a potência a 3000W ou 4000W conforme a grandeza
fundo da panela e diminui se as medidas da panela
da zona de cozedura interessada.
aumentam.
O Booster interrompe-se automaticamente depois de
• Forte assobio: manifesta-se quando funcionam
4 minutos. Até quando o booster de uma das zonas
contemporaneamente os dois indutores na mesma
de cozedura estiver activado, a zona de cozedura
vertical, com a máxima potência, e/ou se naquele
correspondente anterior ou posterior terá a potência
maior estiver activada a função booster e o outro
limitada (por ex.: se está activo o booster na chapa
for autorregulado. O barulho diminui assim que se
posterior esquerda, diminui a potência da chapa
reduz o nível de potência do indutor autorregulado;
anterior esquerda). Para ulteriores esclarecimentos,
manifesta-se especialmente quando o fundo da
consulte a Descrição técnica dos modelos.
panela é feito de camadas de vários materiais.
• Ruído da ventoinha: para o correcto funcionamento
Desligar as zonas de cozedura
do plano e para garantir a segurança da parte
electrónica contra possíveis superaquecimentos,
Para desligar uma zona de cozedura, seleccione-a
é necessário accionar uma ventoinha. A ventoinha
funciona na máxima potência quando o indutor grande
mediante o respectivo botão de selecção
e:
está no máximo nível de potência ou quando está
activada a função booster; em todos os outros casos,
• Carregue na tecla
-: a potência da zona de
funciona com potência média conforme a temperatura
cozedura descerá progressivamente até desligar-
detectada. Além disto, é possível que a ventoinha
se.
continue a funcionar mesmo depois da desactivação
do plano, se a temperatura detectada for elevada.
Programar a duração de uma cozedura
Os ruídos elencados devem-se à tecnologia de indução e
não indicam necessariamente defeitos de funcionamento.
! É possível programar contemporaneamente todas as
zonas de cozedura para uma duração de cozedura
! Uma prolongada pressão das teclas - e + permite
entre 1 e 99 minutos.
um avançamento rápido dos níveis de potência e dos
minutos do timer.
1. Seleccione a zona de cozedura mediante o
respectivo botão de selecção.
* Há somente em alguns modelos.
2. Regular o nível de potência da zona de cozedura.
38

PT
3. Carregue no botão de programação . O
- e +.
indicador correspondente à zona escolhida irá piscar.
4. Defina a duração da cozedura que desejar
3. Carregue na tecla
para confirmar.
A contagem regressiva do timer começará
mediante os botões
- e +.
imediatamente. Depois que tiver passado o tempo
tocará um sinal acústico (por 1 minuto).
5. Confirmar pressionando a tecla
ou deixar que
seja seleccionada automaticamente após 10 segundos.
Bloqueio dos comandos
A contagem regressiva do timer começará imediatamente.
Quando um plano de cozedura estiver a funcionar, é
No final da cozedura programada será indicado por um
possível bloquear os comandos para evitar riscos de
sinal sonoro (que toca 1 minuto) e a zona de cozedura se
modificações acidentais das regulações (crianças,
apagará.
Repita o procedimento descrito acima para cada chapa
operações de limpeza etc.). Carregando no botão
que deseja programar.
os comandos se bloquearão e o indicador luminoso
situado acima do botão se acenderá.
Visualização em caso de programação múltipla.
Para voltar a modificar as regulações (por. exemplo
Quando uma ou mais chapas foram programadas, o
interromper a cozedura), será necessário desbloquear
display indicará o tempo faltante da chapa que está
os comandos: carregue no botão
por alguns
mais próxima ao fim do tempo programado, indicando a
instantes; o indicador luminoso se apagará e os
sua posição com o piscar do correspondente indicador
comandos se desbloquearão.
luminoso. Os indicadores luminosos das outras chapas
programadas estão acesos.
Desligar o plano de cozedura
Para visualizar o tempo faltante das outras
chapas programadas, carregue várias
Ao pressionar a tecla o aparelho desliga-se, não
confie no detector de panelas.
vezes na tecla
: serão mostrados
Se os comandos do aparelhagem estiverem
em sequência e no sentido horário os
bloqueados, continuarão bloqueados mesmo depois
tempos do contador de minutos e de todas as chapas
de ter acendido novamente o plano de cozedura. Para
programadas, a partir da anterior esquerda.
poder acender novamente o plano, será necessário
primeiro desbloquear os comandos.
Modificar a programação
Modo “demo”
1. Carregue várias vezes na tecla
até que seja
É possível programar um modo demo no qual o painel de
mostrado no display o tempo da chapa que se deseja
comandos funciona normalmente (inclusos os comandos
modificar.
relativos à programação), mas os elementos aquecedores
não se acendem. Para activar o modo “demo” o plano
2. Carregue nas teclas
- e + para programar o novo
deve estar aceso e todas as chapas devem estar
tempo.
apagadas:
3. Carregue na tecla
para confirmar.
• pressionar e manter pressionados
Para cancelar uma programação, efectue as
contemporaneamente os botões
+ e - por 6
operações descritas acima. No ponto 2 carregue
segundos. Quando vencer o tempo de 6 segundos
na tecla -: a duração descerá progressivamente até
o indicador ON/OFF e o indicador de BLOQUEIO
desligar-se no 0. A programação irá zerar-se e o
DOS COMANDOS irão piscar por um segundo.
display sairá da modalidade de programação.
Soltar os botões
+ e - e carregar no botão ;
O contador de minutos
• o display indicará as escritas DE e MO e o plano irá
O plano de cozedura deve estar aceso.
desligar-se;
O contador de minutos consente programar uma duração
• no próximo acendimento, o plano estará no modo
de até 99 minutos.
“demo”.
1. Carregue no botão de programação
até que o
Para sair desta modalidade, seguir o procedimento
descrito acima. O display indicará as escritas DE e OF e o
indicador do contador de minutos se acenda
.
plano irá desligar-se. No próximo acendimento funcionará
2. Defina a duração que desejar mediante os botões
normalmente.
39

PT
Conselhos práticos para utilizar esta
aparelhagem
! Utilize um recipiente cujo material de fabricação
seja compatível com o princípio da indução (material
ferromagnético). É recomendado o emprego de
panelas de: ferro gusa, aço esmaltado ou inoxidável
especial para indução. Para certificar-se da
compatibilidade de um recipiente é suficiente fazer um
teste com um íman.
40
MATERIAL ADEQUADO
MATERIAL NÌO ADEQUADO
*
Ferro gusa
Cobre,
A o esmaltado
Alumínio, Vidro, Terracota,
Inox especial
Cerâmica, Inox não magnético
Aquecimento excessivo
No caso de superaquecimento dos componentes
electrónicos, o plano de cozedura desliga-se
automaticamente e no display aparece
F seguido por
um número intermitente. Esta mensagem desaparece
e o plano volta a ser utilizável mal a temperatura
desceu a um nível aceitável.
Interruptor de segurança
O aparelho é dotado de um interruptor de segurança
que desliga as zonas de cozedura automaticamente
quando é alcançado um tempo máximo de utilização a um
determinado nível de potência. Durante uma interrupção
de segurança, o display indicará “0”.
Exemplo: a chapa posterior direita está programada
no 5, enquanto a chapa anterior esquerda no 2.
A posterior direita irá desligar-se após 5 horas de
Para obter as melhores performances do plano de
funcionamento, a anterior esquerda após 8 horas.
cozedura:
Nível de potência
Limitação da duração de functionamento em horas
• Empregue panelas com fundo chato e elevada
espessura, para ter a certeza que haverá uma perfeita
1
9
aderência à zona de aquecimento.
2
8
3
7
4
6
• Empregue panelas com diâmetro suficiente para cobrir
5
5
inteiramente a zona de aquecimento, de maneira que
6
4
se aproveite inteiramente o calor disponível.
7
3
8
2
9
1
• Certifique-se que o fundo das panelas esteja sempre
Sinal acústico
perfeitamente enxuto e limpo, para assegurar uma
Algumas anomalias, nomeadamente:
aderência certa e uma longa durabilidade não somente
• um objecto (panela, talher etc.) foi deixado mais de 10
das zonas de cozedura, mas também das próprias
segundos na área de comandos;
panelas.
• um derramamento na área dos comandos,
• Evite utilizar as mesmas panelas que emprega nos
• uma pressão exercida por muito tempo em um botão,
queimadores a gás: a concentração de calor nos
podem provocar uma sinalização acústica. Resolva a
queimadores a gás poderá deformar o fundo das
causa do mau funcionamento para o sinal sonoro deixar
panelas, que desta maneira perderá aderência.
de tocar. Se a causa da anomalia não for removida, o
sinal acústico persistirá e o plano irá desligar-se.
Dispositivos de segurança
Detecção de recipientes
Cada uma das zonas de cozedura é equipada com um
dispositivo de detecção de panela.
A chapa emite calor unicamente se houver uma
panela de medidas adequadas na respectiva zona de
cozedura.
O indicador a piscar pode indicar:
• uma panela incompatível
• uma panela de diâmetro insuficiente
• que a panela está levantada

