Indesit VRA-640-C-(PT)-S – page 3
Manual for Indesit VRA-640-C-(PT)-S

Precauções e conselhos
! Este aparelho foi projectado e fabricado em
embalagens e as películas de plástico ou alumínio:
PT
conformidade com as normas internacionais de
se deixá-los sobre as superfícies enquanto ainda
segurança. Estas advertências são fornecidas por razões
estiverem quentes ou mornas, podem causar um dano
de segurança e devem ser lidas com atenção.
grave à placa.
• Certifique-se que as pegas das panelas fiquem sempre
Este aparelho é em conformidade com as
viradas para o lado interno do plano de cozedura para
seguintes Directivas da Comunidade Europeia:
evitar batidas acidentais.
• Não puxe pelo cabo para desligar a ficha da tomada
-2006/95/CEE de 12.12.06 (Baixa Tensão) e posteriores
eléctrica, pegue pela ficha.
modificações
• Não realize limpeza nem manutenção sem antes ter
- 2004/108/CEE de 15/12/04 (Compatibilidade
desligado a ficha da rede eléctrica.
Electromagnética) e posteriores modificações
• Não é previsto que este aparelho seja utilizado
- 93/68/CEE de 22/07/93 e posteriores modificações.
por pessoas (incluso crianças) com reduzidas
- 1275/2008 stand-by/off mode.
capacidades físicas, sensoriais ou mentais, por
pessoas inexperientes ou que não tenham familiaridade
com o produto, a não ser que seja vigiadas por uma
Segurança geral
pessoa responsável pela sua segurança ou que
tenham recebido instruções preliminares sobre o uso
!Controlar que a tomada de ar através da grelha do
do aparelho.
ventilador não esteja obstruída. O plano de encaixar,
• Caso haja zonas de cozedura halógenas, não olhe
de facto, necessita de uma correcta ventilação para o
para elas por muito tempo.
arrefecimento dos componentes electrónicos.
• Não permita que as crianças brinquem com o
• Este aparelho foi concebido para utilização de tipo não
aparelho.
profissional no âmbito de moradas.
• Não apoie objectos metálicos (facas, colheres,
• Este aparelho não deve ser instalado ao ar livre, mesmo
tampas, etc.) sobre o plano porque podem ficar
num sítio protegido, porque é muito perigoso deixá-lo
quentes.
exposto a chuva e temporais.
• O aparelho não é destinado a ser colocado em
• Não toque na máquina se estiver descalço, ou se as
funcionamento por meio de um temporizador
suas mãos ou pés estiverem molhados ou húmidos.
externo ou por um sistema de comando à
• O aparelho deve ser utilizado para cozinhar
distância separado.
alimentos, somente por pessoas adultas e
conforme as instruções contidas neste livrete.
Qualquer outro uso (como por exemplo,
aquecedor de ambientes) deve ser considerado
Eliminação
impróprio e portanto perigoso. O fabricante não
• Eliminação do material de embalagem: obedeça as
pode ser considerado responsável por eventuais
regras locais, de maneira que as embalagens possam
danos derivados de usos impróprios, errados e
ser reutilizadas.
irrazoáveis.
• A directiva Europeia 2002/96/CE relativa aos resíduos
• A placa de vitrocerâmica é resistente às batidas
de equipamentos eléctricos e electrónicos (REEE)
mecânicas, entretanto pode rachar-se (ou
prevê que os electrodomésticos não devem ser
eventualmente partir-se) se for batida com um
eliminados no normal fluxo dos resíduos sólidos
objecto pontiagudo, como um utensílio. Nestes
urbanos. Os aparelhos não mais utilizados devem
casos, desligue imediatamente o aparelho da rede
ser recolhidos separadamente para optimizar a taxa
de alimentação e contacte a assistência técnica.
de recuperação e reciclagem dos materiais que os
• Evite que o cabo de alimentação de outros
compõem e impedir potenciais danos à saúde e ao
electrodomésticos encoste-se em partes quentes do
meio ambiente. O símbolo da lixeira cancelada está
plano de cozedura.
indicado em todos os produtos para lembrar o dever de
• Não se esqueça que a temperatura das zonas de
colecta selectiva.
cozedura permanece muito alta pelo menos trinta minutos
Para maiores informações sobre a correcta
depois de apagadas. O calor resíduo é sinalizado
eliminação dos electrodomésticos, os proprietários
também por um indicador (veja Início e utilização).
poderão contactar o serviço de colecta público ou
• Mantenha a devida distância da placa quaisquer
os revendedores.
objectos que podem se derreter, por exemplo, objectos
de plástico, de alumínio ou produtos com um alto
conteúdo de açúcar. Preste muita atenção com as
41

Manutenção e cuidados
Desligar a corrente eléctrica
película invisível deixada por este produto protegerá a
PT
Antes de realizar qualquer operação, desligue o aparelho da
superfície se algo for derramado durante a cozedura. É
alimentação eléctrica.
recomendável realizar estas operações com o aparelho
morno ou frio.
• Lembre-se sempre de enxaguar com água limpa e
Limpeza do aparelho
enxugar o plano com cuidado: para não acontecer
!
Evite o emprego de detergentes abrasivos ou corrosivos,
de resíduos de produtos grudarem-se na sucessiva
tais como sprays para churrasqueiras e fornos, tira-manchas
cozedura.
e produtos contra ferrugem, detergentes em pó e esponjas
com superfície abrasiva: podem arranhar irremediavelmente
Quadro em aço inoxidável (somente nos modelos com
a superfície.
moldura)
!
Nunca utilize equipamento de limpeza a vapor ou de alta
O aço inoxidável pode manchar-se por causa da alta
pressão para limpar a aparelhagem.
quantidade de calcário na água em contacto durante muito
tempo com o metal, ou por causa de produtos de limpeza
• Para a manutenção ordinária, é suficiente lavar o plano
muito agressivos que contenham fósforo.
com uma esponja húmida e, em seguida, enxugar com
É aconselhável enxaguar com água abundante e enxugar
papel absorvente de cozinha.
com cuidado, depois de ter limpado o plano. Se for
• Se o plano estiver muito sujo, esfregue com um produto
derramada água, enxugue-a rapidamente com cuidado.
específico para limpeza de superfícies em vidro cerâmica
!
Alguns planos de cozedura tem uma moldura de alumínio
*, enxagúe e enxugue.
parecida com o aço inoxidável. Não utilize produtos para
• Para tirar as acumulações de sujidade maiores, use uma
a limpeza e o desengorduramento não idóneos para o
espátula apropriada. Intervenha assim que possível,
alumínio.
sem aguardar que o aparelho arrefeça, para evitar
que resíduos grudem. Podem ser obtidos excelentes
Desmontar o plano
resultados se usar uma esponja especial de fios de aço
Caso seja necessário desmontar o plano de cozedura:
inoxidável - específica para planos em vidro cerâmica-
1. remova os parafusos que fixam as molas de centragem
molhada de água e sabão.
nos lados;
• No caso em que no plano de cozedura tenham-se
2. solte os parafusos dos ganchos de fixação nos ângulos;
acidentalmente fundidos objectos ou materiais como
3. extraia o plano de cozedura do vão do móvel.
plástico ou açúcar, remova-os imediatamente com a
espátula, até que a superfície esteja ainda quente.
!
Recomendamos que se evite tentar o acesso aos
• Depois de limpo, o plano poderá ser tratado com um
mecanismos internos para tentar uma reparação. Em caso
produto específico para a manutenção e a protecção: a
de avaria, contactar a Assistência técnica.
Descrição técnica dos modelos
Nestas tabelas estão indicados, modelo por modelo, os valores de absorção energética, o tipo de elemento
aquecedor e o diâmetro de cada zona de cozedura.
Legenda:
H = hilight unitário
HD = hilight duplo
HT = hilight triplo
AD = halógena dupla
42
Planos de cozedura
VRA 640 X S VRA 641 D B S
VRA 641 D X S
Zonas de cozedura
Potência (em W)
Diâmetro (em mm)
Potência (em W)
Diâmetro (em mm)
Traseiro esq.
HD 2300
210
HT 2200/1000
210/140
Traseiro dir.
H 1400
160
H 1400
160
Dianteiro esq.
H 1200
145
H 1200
145
Dianteiro dir.
H 1800
180
H 1800
180
Potência total
6700
6600
VRA 640 C SVRA 640 C S

Installation
! Bewahren Sie diese Bedienungsanleitung bitte
DE
sorgfältig auf, damit Sie sie jederzeit zu Rate ziehen
können. Sorgen Sie dafür, dass sie im Falle eines
Verkaufs, eines Umzugs oder einer Übergabe an
einen anderen Benutzer das Gerät stets begleitet,
damit auch der Nachbesitzer die Möglichkeit hat, darin
nachschlagen zu können.
! Lesen Sie bitte die nachfolgenden Hinweise
aufmerksam durch: sie liefern wichtige Informationen
hinsichtlich der Installation, des Gebrauchs und der
Sicherheit.
Aufstellung
! Verpackungsmaterial ist kein Spielzeug für Kinder.
Es ist entsprechend den Vorschriften zur getrennten
Müllsammlung zu entsorgen (siehe Vorsichtsmaßregeln
und Hinweise).
! Die Installation ist gemäß den vorliegenden
Anweisungen und von Fachpersonal durchzuführen.
Jede unsachgemäße Installation kann Menschen und
Tiere gefährden oder Sachschaden verursachen.
Einbau
Um eine einwandfreie Betriebsweise des Gerätes zu
gewährleisten, muss der Umbauschrank folgende
Eigenschaften aufweisen:
• Die Auflagefläche muss aus hitzebeständigem
Material beschaffen sein, um einer Temperatur von
ca. 100°C standzuhalten.
• Soll das Kochfeld über einem Backofen installiert
werden, muss letzterer mit einem Kühlsystem mit
Zwangsbelüftung ausgestattet sein.
• Von der Installation eines Kochfeldes über einem
Geschirrspüler wird abgeraten. Gegebenenfalls ist
zur Abdichtung ein Zwischenteil zwischen beiden
Geräten zu installieren.
• Je nach dem zu installierenden Kochfeld (siehe
Abbildungen) sind Arbeitsflächenausschnitte
folgender Abmessungen vorzusehen:
590
574
48
48
520
504
560 +/- 1
560 +/- 1
490 +/- 1
490 +/- 1
Belüftung
Zur ausreichenden Belüftung und zur Vermeidung
der Überhitzung der Flächen rund um das Gerät muss das
Kochfeld wie folgt positioniert werden:
• in einem Abstand von mindestens 40 mm von der
dahinter liegenden Wand;
• um einen Abstand von mindestens 20 mm zwischen
dem für den Einbau bestimmten Ausschnitt und dem
entsprechenden Unterschrank zu gewährleisten.
• Angrenzende Schränke, deren Höhe die der
43
min. 20 mm
5 mm
WÄRMEFACH
min. 40 mm
min. 20 mm
5 mm
HEIßLUFT
min. 40 mm
FRONTSEITE DES
KOCHFELDES
AUFLAGEFLÄCHE
AUFLAGEFLÄCHE
AUFLAGEFLÄCHE
30
40
KOCHFELD
UMGEDREHT

Arbeitsplatte überschreiten, müssen einen Abstand
Klemmengehäuse
DE
vom Rand der Kochmulde von mindestens 600 mm
Das Gerät ist mit einem
Gehäuse (befindlich im unteren
aufweisen.
Teil) ausgestattet, das für den
Anschluss an andersartige
Befestigung
Elektroversorgungen bestimmt
Das Kochfeld muss auf einer perfekt ebenen Stütz- bzw.
ist (die Abbildung ist nur
Auflagefläche installiert werden.
richtungsweisend, demnach
Durch unsachgemäße Befestigung hervorgerufene
ist es möglich, dass sie mit
Verformungen könnten die Eigenschaften und
dem erworbenen Gerät nicht
Leistungen des Kochfeldes beeinträchtigen.
übereinstimmt).
Die Länge der Regelschrauben der
Befestigungsklammern
wird vor Montage derselben
Einphasenanschluss
eingestellt,
und zwar je nach der Stärke der
Das Kochfeld ist mit einem bereits angeschlossenen
Auflagefläche:
Netzkabel ausgestattet und ist für einen
• 30 mm - Schraube 17.5 mm;
Einphasenanschluss voreingestellt. Schließen Sie
• 40 mm - Schraube 7.5 mm.
die Drähte gemäß nachfolgender Tabelle und
Zeichnungen an:
Verfahren Sie zur Befestigung wie folgt:
Netzspannung
1. Schrauben Sie die 4 Zentrierungsfedern mittels
Elektrokabel Anschluss der Drähte
und -frequenz
der vier kurzen, stumpfen Schrauben in die in
: gelb/grün;
der Mitte einer jeden Kochfeldseite befindlichen
230-240V 1+N ~
N
: die 2 blauen Drähte zusammen
220-240V 1+N ~
Lochbohrungen.
50/60 Hz
L
: braun zusammen mit schwarz
2. Setzen Sie das Kochfeld durch leichtes Andrücken
des gesamten umlaufenden Randes mittig in
Andere Anschlussarten
den Möbelausschnitt ein, und zwar so, dass es
Sollte die Elektroanlage einer der nachfolgenden
vorschriftsmäßig auf der gesamten Auflagefläche
Eigenschaften entsprechen:
aufstützt.
Netzspannung und -frequenz
3. Für Kochfelder mit Seitenprofilen: Stecken Sie nach
• 400V - 2+N ~ 50/60 Hz
Einsatz des Kochfeldes in den Möbelausschnitt die
• 220-240V 3 ~ 50/60 Hz
4 Befestigungshaken (ein jeder mit seinem Stift) in
• 230-240V 3 ~ 50/60 Hz
den umlaufenden unteren Rand des Kochfeldes, und
• 400V - 2+2N ~ 50/60 Hz
schrauben Sie diese mittels der vier langen, spitzen
Schrauben fest, bis das Glas an der Auflagefläche
Trennen Sie die Drähte und schließen Sie sie gemäß
anhaftet.
nachfolgender Tabelle und Zeichnungen an:
Netzspannung
Elektrokabel Anschluss der Drähte
! Die Schrauben der Zentrierungsfedern müssen
und -frequenz
unbedingt zugänglich sein.
400V - 2+N ~
: gelb/grün;
50/60 Hz
! Gemäß den Sicherheitsvorschriften muss nach
N: die 2 blauen
erfolgtem Einbau die Möglichkeit einer Berührung mit
230-240V 3 ~
Drähte zusammen
220-240V 3 ~
Strom führenden Teilen ausgeschlossen sein.
L1: schwarz
50/60 Hz
L2: braun
! Alle zum Schutz dienenden Teile müssen so
: gelb/grün;
befestigt werden, dass ein Entfernen derselben ohne
Zuhilfenahme eines Werkzeugs nicht möglich ist.
400V - 2+2N ~
N1: blau
50/60 Hz
N2: blau
L1: schwarz
Elektroanschluss
L2: braun
! Bei der Installation des Kochfeldes und der eines
Sollte die Elektroanlage einer der nachfolgenden
eventuellen Einbaubackofens müssen sämtliche
Eigenschaften entsprechen:
Elektroanschlüsse getrennt vorgenommen werden, und
Netzspannung und -frequenz
dies nicht nur aus Sicherheitsgründen, sondern auch
• 400V 3 - N ~ 50/60 Hz
um den Backofen, falls nötig, leichter herausziehen zu
dann verfahren Sie wie folgt:
können.
! Das eventuell mitgelieferte Netzkabel kann für diese
Installationsarten nicht verwendet werden.
1. Verwenden Sie ein geeignetes Versorgungskabel
des Typs H05RR-F, oder eines höheren Wertes,
geeigneter Maße (Kabelquerschnitt: 25 mm).
2. Heben Sie unter Zuhilfenahme eines
Schraubenziehers die seitlichen Zungen des
Klemmengehäusedeckels an (siehe Abbildung
Klemmengehäuse).
44
KOCHFELD
UMGEDREHT

3. Schrauben Sie die Schraube der Kabelklemme
! Das Netzkabel muss regelmäßig kontrolliert werden
DE
sowie die Schrauben der Klemmen, die der
und darf nur durch autorisiertes Fachpersonal
erforderlichen Anschlussart entsprechen, aus und
ausgetauscht werden.
positionieren Sie die Brücken in Anlehnung an
! Der Hersteller lehnt jede Verantwortung ab, falls
nachfolgende Tabelle und Zeichnungen:
diese Vorschriften nicht eingehalten werden sollten.
4. Verlegen Sie die Drähte gemäß nachstehenden
! Entfernen oder ersetzten Sie unter keinen Umständen
Zeichnungen und Tabelle und schließen Sie die Drähte
das Netzkabel. Wird das Kabel entfernt oder ersetzt,
an. Ziehen Sie die Klemmenschrauben hierbei fest an .
verfallen sowohl die Gewährleistung als auch das
Netzspannung
Elektrischer Anschluss Klemmengehäuse
und -frequenz
CE-Zeichen. INDESIT übernimmt keine Verantwortung
für Unfälle oder Schäden, die durch das Entfernen/
400V 3-N ~
Dreiphasenanschluss 400
50/60 Hz
Ersetzen des Original-Netzkabels verursacht
werden. Der Austausch darf ausschließlich mit einem
5. Befestigen Sie das Netzkabel in der entsprechenden
Originalersatzteil und durch autorisiertes Fachpersonal
Kabelklemme und schließen Sie den Deckel.
INDESIT durchgeführt werden.
Dreiphasenanschluss 400
Erweiterbare Kochzonen
Einige Modelle verfügen über erweiterbare Kochzonen.
Phase Phase Phase
Anschluss des
Diese können unterschiedliche Formen aufweisen
Netzkabels an das
sowie unterschiedliche Erweiterungsmöglichkeiten
1
2
3
Stromnetz
besitzen (Doppel- oder Dreifach-Kochzone). Hier
Wird das Gerät
werden die entsprechenden Bedienelemente
direkt an das
aufgeführt, mit denen die Modelle bestückt sind, die
Stromnetz
über solche Optionen verfügen.
5
4
angeschlossen,
ist zwischen
Runde, erweiterbare Kochzone
Stromnetz und
BrückeNullleiterErdleiter
Gerät ein allpoliger
Kontrollleuchte
Schalter mit einer Mindestkontaktöffnung von 3 mm
DOPPELKOCHZONE
zwischenzuschalten.
EINGESCHALTET
! Der Installateur ist für den ordnungsgemäßen
elektrischen Anschluss sowie die Einhaltung der
Sicherheitsvorschriften verantwortlich.
Taste
Vor dem Anschluss stellen Sie bitte sicher, dass:
EINSCHALTEN DER
• die Netzsteckdose geerdet ist und den gesetzlichen
DOPPELKOCHZONE
Bestimmungen entspricht;
• die Netzsteckdose für die auf dem Typenschild
• Taste EINSCHALTEN DER DOPPELKOCHZONE:
(befindlich auf dem Gerät) angegebene maximale
Mittels dieser kann die Doppelkochzone aktiviert
Leistungsaufnahme des Gerätes ausgelegt ist;
werden. (siehe Inbetriebsetzung und Gebrauch).
• die Netzspannung im Bereich der auf dem
• Kontrollleuchte DOPPELKOCHZONE
Typenschild angegebenen Werte liegt;
EINGESCHALTET: Diese zeigt an, dass die
• die Steckdose mit dem Netzstecker kompatibel ist.
Doppelkochzone eingeschaltet wurde.
Sollte dies nicht der Fall sein, wechseln Sie bitte die
• Taste EINSCHALTEN DER DREIFACHKOCHZONE:
Steckdose oder den Netzstecker aus; verwenden
Mittels dieser kann die Dreifachkochzone aktiviert
Sie keine Verlängerungen und Mehrfachsteckdosen.
werden. (siehe Inbetriebsetzung und Gebrauch).
! Netzkabel und Steckdose müssen bei installiertem
• Kontrollleuchte DREIFACHKOCHZONE
Gerät leicht zugänglich sein.
EINGESCHALTET: Diese zeigt an, dass die
! Das Netzkabel darf nicht gebogen oder eingeklemmt
Dreifachkochzone eingeschaltet wurde.
werden.
45
Kontrollleuchte
DREIFACHKOCHZONE
EINGESCHALTET
Taste
EINSCHALTEN DER
DREIFACHKOCHZONE

Inbetriebsetzung und
Gebrauch
! Der auf die Dichtungen aufgetragene Leim
halten Sie die Bedieungstaste des Kochfelds, auf dem
DE
könnte Fettspuren auf dem Glas hinterlassen. Wir
die Funktion
aktiv ist, für mindestens 2 Sekunden
empfehlen Ihnen, diese vor Einsatz des Gerätes mit
gedrückt oder wählen Sie eine andere Leistungsstufe
einem herkömmlichen Reinigungsmittel (eine nicht
scheuernde Poliercreme) zu entfernen. Während der
von 0 bis 9 über den Leistungswähler
- und +.
ersten Betriebsstunden könnte ein Geruch verbrannten
Gummis zu vernehmen sein. Dies wird sich nach
Die Heizelemente
kurzer Zeit geben.
Das Kochfeld kann, je nach Modell, mit zwei Arten
! Wird das Kochfeld an das Stromnetz angeschlossen,
von Heizelementen bestückt sein: Halogen- und
ertönt nach einigen Sekunden ein kurzes akustisches
Strahlungsbeheizungselemente.
Signal. Nur daraufhin kann das Kochfeld eingeschaltet
Bei den Halogen-Heizelementen erfolgt die
werden.
Wärmeübertragung mittels der in diesen
Heizelementen befindlichen Halogenlampe.
Diese zeichnen sich besonders aufgrund ihrer
! Durch längeres Drücken der Tasten - und +
Eigenschaften aus, die den typischen Eigenschaften
können die Leistungswerte und die Minuten des Timers
des Gases nahe kommen: sofortige Reaktion auf die
im Schnelllauf verändert werden.
jeweiligen Einstellungen, umgehende Anzeige der
Einschalten des Kochfeldes
Leistungsstufe.
Bei den Strahlungsbeheizungselementen handelt
Das Kochfeld wird über die Taste (für ca. 1
es sich um Heizkörper, die aus einer Vielzahl von
Sekunde gedrückt halten) eingeschaltet.
Ringen bzw. Spiralen bestehen, welche eine optimale
Wärmeverteilung über den gesamten Topfboden
Einschalten der Kochzonen
gewährleisten und somit bestmögliche Garergebnisse
Eine jede Kochzone wird über eine Bedienungstaste
bei Niedrigtemperaturen ermöglichen. Schmorgerichte,
Soßen oder aufzuwärmende Fertiggerichte.
und über einen aus einer Doppeltaste (- und +)
bestehenden Leistungsregler eingeschaltet.
Sperre der Schaltelemente
• Um eine Kochzone einzuschalten, drücken
Während der Betriebszeit des Kochfeldes können
Sie die entsprechende Bedienungstaste und
die Schaltelemente gesperrt werden, um irrtümliche
Einstellungsänderungen zu verhindern (durch Kinder,
stellen daraufhin über die Tasten
- und + die
gewünschte Leistungsstufe ein.
bei der Reinigung usw.). Drücken Sie die Taste
, dann werden die Schaltelemente gesperrt. Die über
Ausschalten der Kochzonen
der Taste befindliche Kontrollleuchte leuchtet auf.
Um eine Kochzone auszuschalten, wählen Sie diese
Zu weiteren Einstellungen (z.B. um den Garvorgang zu
unterbrechen) müssen die Schaltelemente erst wieder
zuerst über die entsprechende Bedienungstaste
und:
freigegeben werden. Drücken Sie die Taste
für
• Drücken Sie die Taste
- : Die Kochzonenleistung
einige Sekunden; die Kontrollleuchte erlischt, die
sinkt allmählich bis zum völligen Ausschalten der
Schaltelemente werden freigegeben.
Kochzone.
Ausschalten des Kochfeldes
Power-Funktion
Zur Beschleunigung der Aufheizzeit der hinteren
Durch Drücken der Taste wird das Kochfeld
Kochzonen kann die Funktion Power eingesetzt
ausgeschaltet.
werden: Schalten und stellen Sie das gewünschte
Sollten die Schaltelemente gesperrt worden sein,
bleiben diese auch bei Wiedereinschalten des Gerätes
Kochfeld
ein, wie im vorangegangenen Abschnitt
gesperrt. Um das Kochfeld wieder einschalten zu
beschrieben. Halten Sie die Bedienungstaste des
können, müssen die Schaltelemente vorher entsperrt
werden.
gewählten Kochfelds
für mindestens 2 Sekunden
gedrückt. Auf dem Display „Leistungsanzeige“
wechselt die Anzeige vom Buchstaben “P” zur
zuvor eingestellen Leistungsstufe solange, bis die
gewünschte Leistungsstufe erreicht ist. Sobald sie
erreicht ist, zeigt das Display wieder die eingestellte
Leistungsstufe. Um diese Funktion zu deaktivieren,
46

Überhitzung
Praktische Ratschläge zum Einsatz des
DE
Gerätes
Im Falle einer Überhitzung der elektronischen
Gerätekomponenten schaltet sich das Kochfeld
So gibt Ihnen Ihr Kochfeld sein Bestes:
automatisch aus, auf dem Display erscheint die
• Verwenden Sie Kochgeschirr mit dickem und
ebenem Boden, um sicher zu sein, dass dieser
Anzeige
F gefolgt von einer blinkenden Zahl. Diese
perfekt auf der Kochzone aufliegt.
Meldung erlischt, und das Kochfeld kann wieder
eingesetzt werden, sobald die Temperatur auf einen
akzeptablen Wert gesunken ist.
Sicherheitsautomatik
• Benutzen Sie stets nur Kochgeschirr, dessen
Das Gerät ist mit einer Sicherheitsautomatik
Durchmesser mit dem der Kochzone übereinstimmt,
ausgestattet, die die Kochzone automatisch
d.h. dessen Boden die Kochzone ganz bedeckt,
abschaltet, wenn die maximale Betriebszeit auf einer
und somit die gesamte Wärme genutzt wird.
gewissen Leistungsstufe erreicht wird. Bei Auftreten
eines solchen Sicherheitsintervalls erscheint auf dem
Display die Anzeige „0“.
Beispiel: Die hintere rechte Kochzone wird auf
Leistungsstufe 5 eingestellt, die vordere linke dagegen
• Achten Sie darauf, dass der Boden des
auf 2. Die hintere rechte Kochzone wird nach 5 Std.
Kochgeschirrs trocken und sauber ist; nur so ist ein
Betriebszeit ausgeschaltet, die vordere linke erst nach
perfektes Aufliegen des Geschirrbodens sowie eine
8 Stunden.
lange Lebensdauer von Kochzone und Geschirr
Heizleistung
Beschränkung der Funktionsdauer in Stunden
gewährleistet.
1
9
• Vermeiden Sie den Einsatz von Kochgeschirr, das
2
8
auch auf Gasflammen verwendet wird. Die äußerst
hohe Hitzekonzentration der Gasbrenner könnte
3
7
die Topfböden leicht verformen und demnach die
4
6
korrekte Auflage beeinträchtigen.
5
5
Sicherheitsvorrichtungen
6
4
Topferkennung
7
3
Jede Kochzone ist mit einer Topferkennungs-
Vorrichtung ausgerüstet. Die Kochzone bewirkt ein
8
2
Erhitzen des Topfbodens nur bei einer angemessenen,
9
1
der Kochzone entsprechenden Topfgröße. Das Blinken
der Anzeigeleuchte kann Folgendes signalisieren:
Tonsignal
• ungeeignetes Kochgeschirr,
• ein zu geringer Topfdurchmesser,
Einige Anomalien, wie:
• der Topf wurde abgenommen.
• Gegenstände (Topf, Besteck usw.), die für länger als
10 Sekunden auf dem Schaltfeld liegen,
Restwärmeanzeigen
• Flüssigkeit, die über das Schaltfeld gegossen
Jede Kochzone ist mit einer Restwärmeanzeige
wurde,
ausgerüstet. Diese Anzeige signalisiert, welche
• ein zu langer Druck auf eine Taste, können die
Kochzonen noch eine erhöhte Temperatur haben.
Ursache für ein Warnsignal sein. Um das Warnsignal
auszuschalten, muss der Grund der Störung
Zeigt die Leistungsanzeige
, dann ist die Kochzone
beseitigt werden. Wird die Störung nicht beseitigt,
noch warm. Es ist beispielsweise möglich, eine Speise
bleibt das Warnsignal eingeschaltet und das
warm zu halten oder Schokolade oder Butter zu
Kochfeld wird ausgeschaltet.
schmelzen. Mit dem Abkühlen der Kochzone zeigt die
Leistungsanzeige
. Die Anzeige schaltet sich ab,
sobald die Kochzone ausreichend abgekühlt ist.
47

Praktische Back-/Brathinweise
DE
ª
Schnellgaren
Fritieren
Schnellkochtopf
Sehr stark garenStark garenSanftgarenSehr sanft GarenExtrem
•
Grillen Kochen
•
Crêpes Stark garen und bräunen
(Braten, Koteletts, Schnitzel, Fischfilets,
Spiegeleier)
¶
¶
Schnell eindicken (flüssige Soßen)
Kochendes Wasser (Nudeln, Reis, Gemüse)
Milch
§
§
Langsam eindicken (dickflüssige Soßen)
S
S
Wasserbad Garen im Schnellkochtopf nach dem Dampfaustritt
¢
¢
£
Sehr sanft Garen Aufwärmen von Speisen
™
™
sanft
Garen
Schokoladensoße Warmhalten
¡
48

Vorsichtsmaßregeln
und Hinweise
! Das Gerät wurde entsprechend den strengsten
Zucker oder stark zuckerhaltige Speisen von
DE
internationalen Sicherheitsvorschriften entworfen und gebaut.
dem Kochfeld fern. Achten Sie besonders auf
Nachstehende Hinweise werden aus Sicherheitsgründen
Verpackungsmaterial, Frischhaltefolie und Alufolie:
geliefert und sollten aufmerksam gelesen werden.
Wird derartiges Material auf den noch heißen oder
warmen Oberflächen belassen, können sie das
Dieses Gerät entspricht den folgenden EG-
Kochfeld dauerhaft beschädigen.
Richtlinien:
• Stellen Sie Stieltöpfe und Pfannen immer mit nach
innen gerichteten Griffen auf die Kochstelle, um
- 2006/95/EWG vom 12.12.06 (Niederspannung) und
jegliches Risiko durch unbeabsichtigtes Anstoßen
nachfolgenden Änderungen
auszuschließen.
- 2004/108/EWG vom 15/12/04 (elektromagnetische
• Ziehen Sie den Netzstecker nicht am Netzkabel aus
Verträglichkeit) und nachfolgenden Änderungen
der Steckdose, sondern nur am Netzstecker selbst.
- 93/68/EWG vom 22.07.93 und nachfolgenden Änderungen.
• Ziehen Sie vor der Reinigung oder vor
- 1275/2008 stand-by/off mode.
Wartungsmaßnahmen stets den Netzstecker aus der
Steckdose.
Allgemeine Sicherheit
• Das Gerät ist nicht zur Verwendung durch
Personen (einschließlich Kinder) mit
! Stellen Sie bitte sicher, dass das Belüftungsgitter des
eingeschränkten körperlichen, geistigen oder
Gebläses niemals verstopft bzw. abgedeckt wird. Das
Wahrnehmungsfähigkeiten oder aber ohne
Einbaukochfeld erfordert eine korrekte Belüftung zur Kühlung
ausreichende Erfahrung und Produktkenntnis
der elektronischen Teile.
geeignet, sofern sie nicht durch eine für ihre
• Dieses Gerät ist für den nicht professionellen Einsatz im
Sicherheit verantwortliche Person beaufsichtigt
privaten Haushalt bestimmt.
werden oder zuvor Anleitungen zum
• Das Gerät darf nicht im Freien aufgestellt werden, auch
Gerätegebrauch erhalten haben.
nicht, wenn es sich um einen geschützten Platz handelt.
• Schauen Sie nicht zu intensiv auf die
Es ist hoch gefährlich, das Gerät Gewittern und Unwettern
eingeschalteten Halogen-Kochzonen, soweit
auszusetzen.
vorhanden.
• Berühren Sie das Gerät nicht mit nassen oder feuchten
• Legen Sie bitte keine Metallgegenstände (Messer,
Händen oder Füßen und auch nicht, wenn Sie barfuß sind.
Löffel, Deckel usw.) auf das Kochfeld; sie könnten
• Das Gerät darf nur von Erwachsenen und
sehr heiß werden.
gemäß den Hinweisen der vorliegenden
• Dieses Gerät kann nicht mit einem
Bedienungsanleitung zur Zubereitung von
externen Timer oder einem getrennten
Lebensmitteln verwendet werden. Jeder andere
Fernsteuerungssystem betrieben werden.
Einsatz (zum Beispiel: zum Beheizen von
Räumen) ist als unsachgemäß und gefährlich
anzusehen. Der Hersteller haftet nicht für
eventuelle, durch unsachgemäßen, falschen
oder unangemessenen Gebrauch verursachte
Entsorgung
Schäden.
• Das Glaskeramikkochfeld ist stoßfest; dennoch
• Entsorgung des Verpackungsmaterials: Befolgen Sie
kann es durch Stöße bzw. Aufprall von spitzen
die lokalen Vorschriften; Verpackungsmaterial kann
Gegenständen springen (oder sogar zerbrechen),
wiederverwertet werden.
Schalten Sie das Kochfeld in einem solchen
• Die europäische Richtlinie 2002/96/EG über Elektro-
Fall vom Stromnetz und wenden Sie sich an die
und Elektronik-Altgeräte (WEEE) sieht vor, dass
Kundendienststelle.
Haushaltsgeräte nicht mit dem normalen Hausmüll
• Vermeiden Sie, dass das Netzkabel anderer
entsorgt werden dürfen. Die Altgeräte müssen getrennt
Elektrogeräte in Kontakt mit heißen Kochfeldteilen
gesammelt werden, um die Rückführung und das
gelangt.
Recycling der Materialen zu optimieren, aus denen die
• Bitte berücksichtigen Sie, dass die Kochzonen
Geräte hergestellt sind, und um mögliche Belastungen
noch für ca. 30 Minuten nach dem Ausschalten
der Gesundheit und der Umwelt zu verhindern. Das
sehr heiß bleiben. Die Restwärme wird auf der
Mülleimersymbol ist auf allen Produkten dargestellt, um
entsprechenden Anzeige eingeblendet (siehe
an die Verpflichtung zur getrennten Abfallsammlung zu
Inbetriebsetzung und Gebrauch).
erinnern.
• Halten Sie sämtliche Gegenstände, die schmelzen
Für weitere Informationen zur korrekten Entsorgung können
könnten, wie Plastikteile oder Kunststoffe sowie
sich die Besitzer von elektrischen Haushaltsgeräten an
die übergeordnete öffentliche Einrichtung oder an ihren
Händler wenden.
49

Reinigung und Pflege
Abschalten Ihres Gerätes vom Stromnetz
die Oberfläche vor eventuell überkochenden Speisen. Es
Vor jeder Reinigung und Pflege ist das Gerät vom Stromnetz
empfiehlt sich, diese Nachbehandlung bei lauwarmem
DE
zu trennen.
oder abgekühltem Gerät vorzunehmen.
• Achten Sie darauf, das Kochfeld nach der Reinigung
Reinigung des Gerätes
stets mit klarem Wasser abzuspülen und anschließend
!
Der Einsatz von Scheuermitteln oder scharfen oder
abzutrocknen. Rückstände der Reinigungsmittel könnten
chemischen Reinigungsmitteln wie Backofensprays,
sich nämlich bei der nächsten Benutzung des Kochfeldes
Fleckenentferner, Rostentfernungsmittel, Reiniger in
ihrerseits festsetzen.
Pulverform und Scheuerschwämme ist zu vermeiden:
diese können die Oberfläche des Kochfeldes dauerhaft
Edelstahlrahmen (nur bei mit Rahmen versehenen
beschädigen.
Modellen)
!
Verwenden Sie zur Reinigung des Kochfeldes keine Dampf-
oder Hochdruckreinigungsgeräte.
Auf den Edelstahlteilen könnten Flecken zurückbleiben, sollte
stark kalkhaltiges Wasser oder phosphorhaltiges Spülmittel
• Zur täglichen Pflege genügt es, das Kochfeld mit einem
für längere Zeit darauf vorhanden sein.
feuchten Schwamm abzuwischen und mit Küchenpapier
Es ist ratsam, das Kochfeld nach der Reinigung gut
abzutrocknen.
nachzuspülen und abzutrocknen. Wird versehentlich Wasser
• Bei besonders starker Verschmutzung sollte ein spezielles
darauf verschüttet, muss es sofort sorgsam getrocknet
Reinigungsmittel für Glaskeramik verwendet werden;
werden.
anschließend ist das Kochfeld mit Wasser abzuspülen und
!
Einige Kochfelder sind mit einem Aluminiumrahmen
sorgfältig abzutrocknen.
versehen, der Edelstahl sehr ähnlich ist. Verwenden Sie bitte
• Starke Verschmutzungen lassen sich mit einem
keine Produkte zur Reinigung und Entfettung, die nicht für
Schaber (Klingenschaber) entfernen. Sie sollten so
Aluminium geeignet sind.
schnell wie möglich - und nicht erst nach Abkühlen des
Kochfeldes - entfernt werden, um zu vermeiden, dass
Demontage des Kochfeldes
sich die Verschmutzungen festsetzen. Gute Ergebnisse
Sollte sich die Abnahme des Kochfeldes als erforderlich
lassen sich auch mit einem für Glaskeramik geeigneten
erweisen, verfahren Sie bitte wie folgt:
Spezialschwamm aus Edelstahlwolle und einer einfachen
1. Schrauben Sie die Schrauben aus, die zur Befestigung der
Spüllauge erzielen.
seitlichen Zentrierungsfedern dienen;
• Auf dem Kochfeld versehentlich geschmolzene Alufolie,
2. lockern Sie die Schrauben der Eck-Befestigungsbügel;
Plastikteile oder Kunststoffe, sowie Zuckerreste müssen
3. nehmen Sie das Kochfeld aus dem Möbelausschnitt
umgehend mit einem Schaber von der noch warmen
heraus.
Oberfläche entfernt werden.
• Nach der Reinigung kann das Kochfeld mit einem
!
Wir empfehlen dringlich, Innenmechanismen nicht
Pflegeprodukt nachbehandelt werden: Der unsichtbare
eigenhändig zu reparieren. Kontaktieren Sie bei Störungen
Schutzfilm, den ein solches Produkt hinterlässt, schützt
bitte den Kundendienst.
Technische Beschreibung der Modelle
In den angeführten Tabellen werden, Modell für Modell, die Energiebedarfswerte, die Art der Heizelemente und der
Durchmesser einer jeden Kochzone ausgewiesen.
50
Kochfelder
VRA 640 X S VRA 641 D B S
VRA 641 D X S
Kochzonen
Leistung (W)
Durchmesser (mm)
Leistung (W)
Durchmesser (mm)
Hinten links
HD 2300
210
HT 2200/1000
210/140
Hinten rechts
H 1400
160
H 1400
160
Vorne links
H 1200
145
H 1200
145
Vorne rechts
H 1800
180
H 1800
180
Gesamtleistung
6700
6600
VRA 640 C SVRA 640 C S
Legende:
H = hilight einfach
HD = hilight doppelt
HT = hilight dreifach
AD = Halogen doppelt

Installazione
! È importante conservare questo libretto per poterlo
IT
consultare in ogni momento. In caso di vendita, di
cessione o di trasloco, assicurarsi che resti insieme
all’apparecchio per informare il nuovo proprietario sul
funzionamento e sui relativi avvertimenti.
! Leggere attentamente le istruzioni: ci sono importanti
informazioni sull’installazione, sull’uso e sulla sicurezza.
Posizionamento
! Gli imballaggi non sono giocattoli per bambini e vanno
eliminati secondo le norme per la raccolta differenziata
(vedi Precauzioni e consigli).
! L’installazione va effettuata secondo queste istruzioni e
da personale professionalmente qualificato. Una errata
installazione può causare danni a persone, animali o
cose.
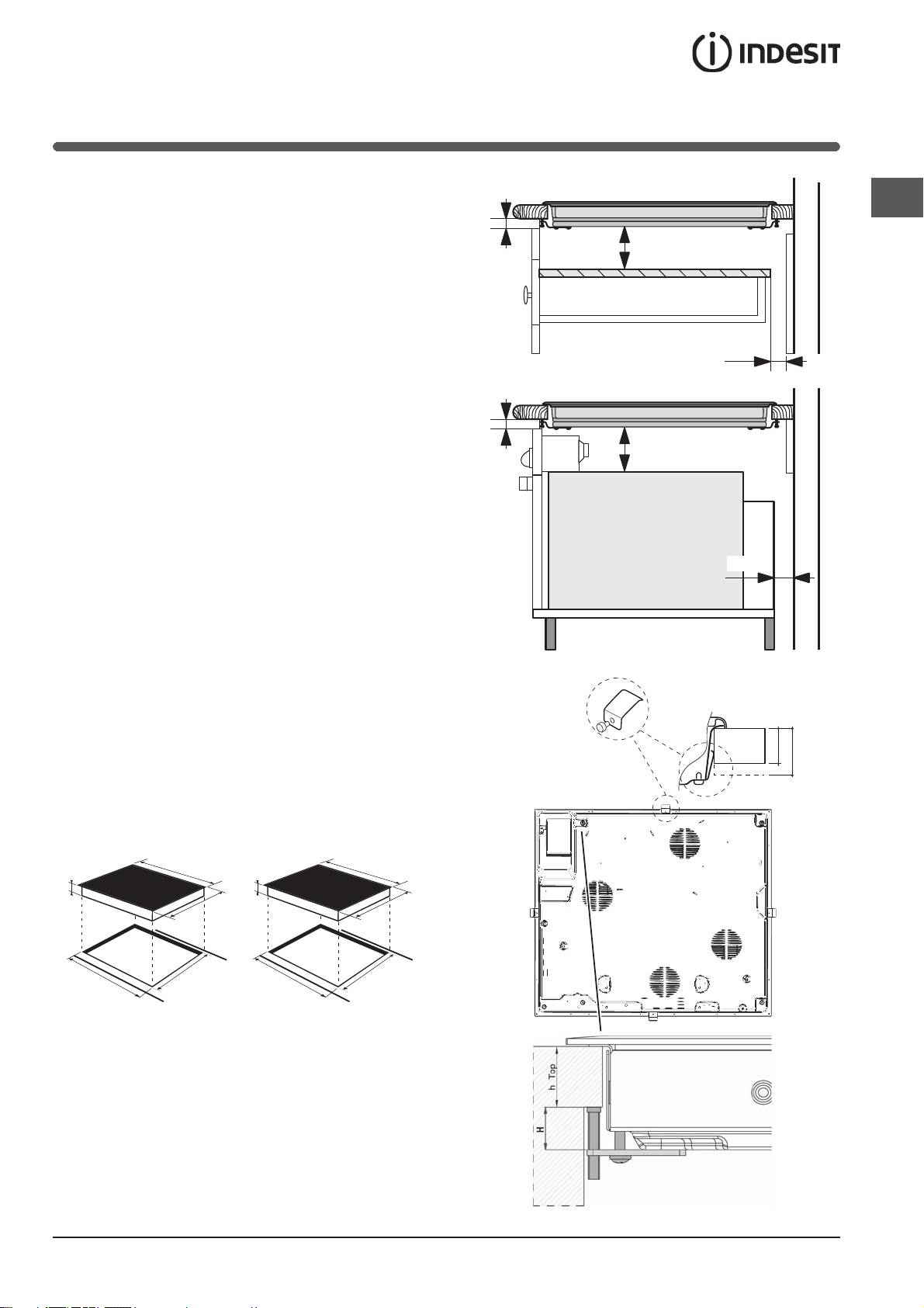
Incasso
Per garantire un buon funzionamento dell’apparecchio è
necessario che il mobile abbia le caratteristiche adatte:
• il piano d’appoggio deve essere di materiale
resistente al calore, a una temperatura di circa
100°C;
• se si desidera installare il piano cottura sopra un
forno, questo deve essere provvisto di un sistema di
raffreddamento a ventilazione forzata;
• evitare di installare il piano cottura sopra una
lavastoviglie: all’occorrenza frapporre un elemento
di separazione a tenuta stagna fra i due apparecchi;
• a seconda del piano cottura che si desidera
installare (vedi gure), il vano del mobile deve avere
le seguenti dimensioni:
590
574
48
48
520
504
560 +/- 1
560 +/- 1
490 +/- 1
490 +/- 1
Aerazione
Per consentire un’adeguata aerazione e per evitare
il surriscaldamento delle superfici attorno all’apparecchio,
il piano cottura deve essere posizionato:
• a una distanza minima di 40 mm dalla parete
retrostante;
• in modo da mantenere una distanza minima di 20 mm
fra il vano per l’incasso e il mobile sottostante.
• I mobili situati a fianco, la cui altezza superi quella
del piano di lavoro, debbono essere situati ad
almeno 600 mm dal bordo del piano stesso.
51
min. 20 mm
5 mm
CASSETTO
min. 40 mm
min. 20 mm
5 mm
FORNO
VENTILATO
min. 40 mm
LATO ANTERIORE
DEL PIANO COTTURA
PIANO DI
APPOGGIO
30
40
PIANO COTTURA
ROVESCIATO

Fissaggio
Collegamento monofase
IT
L’installazione dell’apparecchio deve essere effettuata
su un piano d’appoggio perfettamente piano.
Il piano è dotato di cavo di alimentazione già collegato
Le eventuali deformazioni provocate da un errato
e predisposto per il collegamento monofase. Effettuare
fissaggio potrebbero alterare le caratteristiche e
l’allaccio dei fili in accordo con la tabella e i disegni che
le prestazioni del piano cottura.
seguono:
Tensione tipo e
Cavo elettrico Collegamento fili
La lunghezza della vite di regolazione dei ganci
frequenza rete
di fissaggio va impostata prima del loro montaggio,
: giallo/verde
230-240V 1+N ~
in base allo spessore del piano d’appoggio:
N
: i 2 fili blu insieme
220-240V 1+N ~
• spessore di 30 mm: vite 17,5 mm;
50/60 Hz
L
: marrone insieme al nero
• spessore di 40 mm: vite 7,5 mm.
Altri tipi di collegamento
Per il fissaggio agire come segue:
Se l’impianto elettrico corrisponde a una delle seguenti
1. Con le viti corte senza punta, avvitare le 4 molle di
caratteristiche:
centraggio nei fori posti al centro di ogni lato del piano;
Tensione tipo e frequenza di rete
2. inserire il piano cottura nel vano del mobile, centrarlo
• 400V - 2+N ~ 50/60 Hz
ed esercitare una adeguata pressione sull’intero perimetro
affinché il piano di cottura aderisca bene al piano
• 220-240V 3 ~ 50/60 Hz
d’appoggio.
• 230-240V 3 ~ 50/60 Hz
3. per i piani con profili laterali: dopo aver inserito il piano
• 400V - 2+2N ~ 50/60 Hz
cottura nel mobile, inserire i 4 ganci di fissaggio (ognuno
Separare i cavi ed effettuare il collegamento dei fili in
con il suo perno) sul perimetro inferiore del piano cottura,
accordo con la tabella e i disegni che seguono:
Tensione tipo e
avvitandoli con le viti lunghe con punta finché il vetro non
Cavo elettrico Collegamento fili
frequenza rete
aderisce al piano d’appoggio.
400V - 2+N ~
: giallo/verde;
50/60 Hz
! È indispensabile che le viti delle molle di centraggio
N: i 2 fili blu insieme
rimangano accessibili.
230-240V 3 ~
L1: nero
220-240V 3 ~
L2: marrone
50/60 Hz
! In conformità alle norme di sicurezza, una volta
incassato l’apparecchio, non debbono essere possibili
: giallo/verde;
eventuali contatti con le parti elettriche.
400V - 2+2N ~
N1: blu
50/60 Hz
N2: blu
! Tutte le parti che assicurano la protezione debbono
L1: nero
essere fissate in modo tale da non poter essere tolte
L2: marrone
senza l’aiuto di qualche utensile.
Se l’impianto elettrico corrisponde a una delle seguenti
caratteristiche:
Tensione tipo e frequenza di rete
Collegamento elettrico
• 400V 3 - N ~ 50/60 Hz
procedere come segue:
! L’allacciamento elettrico del piano cottura e quello di
un eventuale forno da incasso devono essere realizzati
! L’eventuale cavo in dotazione non è utilizzabile per
separatamente, sia per ragioni di sicurezza elettrica sia
questi tipi di installazione.
per facilitare le operazioni di estrazione del forno.
1. Utilizzare un cavo di alimentazione appropriato, tipo
Morsettiera
H05RR-F o di valore superiore, delle dimensioni adatte
PIANO COTTURA
L’apparecchio è provvisto, nella
(sezione cavo: 25 mm).
ROVESCIATO
parte inferiore, di una scatola per
2. Servendosi di un cacciavite, far leva sulle linguette
il collegamento a differenti tipi di
del coperchio della morsettiera e aprirla (vedi immagine
alimentazione elettrica
Morsettiera).
(l’immagine è indicativa e può
3. Svitare la vite del serracavo e le viti dei morsetti relativi
non corrispondere al modello
al tipo di allaccio necessario e posizionare i cavallotti di
acquistato).
collegamento secondo la tabella e i disegni che seguono.
4. Posizionare i fili in accordo con la tabella e i disegni
che seguono ed effettuare il collegamento stringendo a
fondo tutte le viti dei morsetti.
Tensione tipo e
Cavo elettrico Collegamento fili
frequenza rete
400V 3-N ~
Trifase 400
50/60 Hz
52

5. Fissare il cavo di alimentazione nell’apposito fermacavo
Zone di cottura estensibili
IT
e chiudere il coperchio.
Fase Fase Fase
In alcuni modelli sono presenti piastre estensibili.
Queste possono avere diversa forma e diversa
1
2
3
estensibilità (piastra doppia o tripla). Sono qui
illustrati i comandi relativi, presenti solo sui modelli
dotati di queste opzioni.
5
4
Piastra estensibile circolare
Spia
PIASTRA DOPPIA
Terra
CavallottoNeutro
Trifase 400
ACCESA
Allacciamento del cavo di alimentazione alla rete
In caso di collegamento diretto alla rete è necessario
interporre tra l’apparecchio e la rete un interruttore
onnipolare con apertura minima fra i contatti di 3 mm.
Tasto
ACCENSIONE
! L’installatore è responsabile del corretto collegamento
PIASTRA DOPPIA
elettrico e dell’osservanza delle norme di sicurezza.
Spia
PIASTRA TRIPLA
Prima di effettuare l’allacciamento accertarsi che:
ACCESA
• la presa abbia la messa a terra e sia a norma di legge;
• la presa sia in grado di sopportare il carico massimo di
potenza della macchina, indicato nella
targhetta caratteristiche posta sull’apparecchio;
• la tensione di alimentazione sia compresa nei valori
della targhetta caratteristiche;
Tasto
• la presa sia compatibile con la spina dell’apparecchio.
ACCENSIONE
In caso contrario sostituire la presa o la spina; non
PIASTRA TRIPLA
usare prolunghe e multiple.
• Tasto ACCENSIONE PIASTRA DOPPIA per attivare
! Ad apparecchio installato, il cavo elettrico e la presa
la piastra doppia (vedi Avvio e utilizzo).
della corrente devono essere facilmente raggiungibili.
• Spia PIASTRA DOPPIA ACCESA: segnala
! Il cavo non deve subire piegature o compressioni.
l’accensione della piastra doppia.
! Il cavo deve essere controllato periodicamente e
sostituito solo da tecnici autorizzati.
• Tasto ACCENSIONE PIASTRA TRIPLA per attivare
la piastra tripla (vedi Avvio e utilizzo).
! L’azienda declina ogni responsabilità qualora queste
norme non vengano rispettate.
• Spia PIASTRA TRIPLA ACCESA: segnala
l’accensione della piastra tripla.
! Non rimuovere o sostituire per nessun motivo il cavo
di alimentazione. L’ eventuale rimozione o sostituzione
fa’ decadere la garanzia e il marchio CE. INDESIT
non si assume alcuna responsabilita’ per incidenti
o danni derivanti dalla sostituzione/rimozione del
cavo di alimentazione originale. E’ ammessa solo la
sostituzione con un ricambio originale ed effettuata da
personale autorizzato INDESIT.
53

Avvio e utilizzo
! La colla applicata sulle guarnizioni lascia alcune
Spegnimento delle zone di cottura
IT
tracce di grasso sul vetro. Prima di utilizzare
Per spegnere una zona di cottura, selezionarla tramite
l’apparecchio, si raccomanda di eliminarle con un
il relativo tasto di selezione
e:
prodotto specifico per la manutenzione non abrasivo.
Durante le prime ore di funzionamento è possibile
• Premere il tasto
-: la potenza della zona di cottura
avvertire un odore di gomma, che comunque
scende progressivamente, fino allo spegnimento.
scomparirà presto.
Gli elementi riscaldanti
! Quando il piano cottura viene collegato
Sul piano cottura, a seconda dei modelli, possono
elettricamente, dopo acuni secondi viene emesso un
essere installati elementi riscaldanti di due tipi:
breve segnale acustico. Soltanto a questo punto è
alogeni e radianti.
possibile accendere il piano cottura.
Gli alogeni trasmettono il calore tramite l’irradiazione
della lampada alogena che contengono.
Si caratterizzano per le proprietà che ricordano
! La pressione prolungata dei tasti - e + consente
quelle tipiche del gas: rapida risposta ai comandi,
l’avanzamento veloce dei minuti del timer.
visualizzazione istantanea della potenza.
I radianti sono composti da una molteplicità di spire
Accensione del piano cottura
che garantiscono la ripartizione uniforme del calore
L’accensione del piano cottura avviene tenendo
sul fondo del recipiente, per una perfetta riuscita di
premuto il tasto
per circa un secondo.
tutte le cotture a fuoco basso: stufati, salse o piatti
da riscaldare.
Accensione delle zone di cottura
Ciascuna zona di cottura viene azionata tramite un tasto
Blocco dei comandi
Quando il piano cottura è in funzione, è possibile
di selezione e un dispositivo di regolazione della
bloccare i comandi per evitare il rischio di modifiche
fortuite alle regolazioni (bambini, operazioni di pulizia,
potenza composto da un doppio tasto
- e +.
• Per mettere in funzione una zona di cottura, premere
ecc.). Premendo il tasto
i comandi si bloccano
il relativo tasto di comando e impostare la potenza
e la spia che si trova sopra al tasto si accende.
Per tornare ad agire sulle regolazioni (es. interrompere
desiderata tramite i tasti
- e +.
la cottura) è necessario sbloccare i comandi: premere
Funzione power
il tasto
per qualche istante, la spia si spegne e i
Per accelerare i tempi di riscaldamento delle zone
comandi si sbloccano.
di cottura, è possibile attivare la funzione power.
Accendere e impostare la potenza della zona di
Spegnimento del piano cottura
cottura desiderata
come descritto nel paragrafo
Premendo il tasto l’apparecchio si spegne.
precedente. Premere e mantenere premuto per
Se i comandi dell’apparecchio sono stati bloccati,
almeno 2 secondi, il tasto di selezione della zona
continueranno ad essere bloccati anche dopo aver
riacceso il piano di cottura. Per poter riaccendere
di cottura scelta
Sul display, indicatore della
il piano è necessario prima sbloccare i comandi.
potenza, si alterna la visualizzazione della lettera “P” e
del livello di potenza precedentemente impostato per
tutto il tempo necessario al raggiungimento del livello
Consigli pratici per l’uso
di potenza desiderato. A raggiungimento avvenuto
dell’apparecchio
il display tornerà a visualizzare il livello di potenza
Per ottenere le migliori prestazioni dal piano di cottura:
impostato. Per disattivare questa funzione, premere
• Adoperare pentole con fondo piatto e di elevato
e mantenere premuto per almeno 2 secondi, il tasto
spessore, per essere certi che aderiscano
di selezione della zona di cottura su cui è attiva la
perfettamente alla zona riscaldante.
funzione
oppure scegliere un diverso livello di
potenza tramite i tasti
- e +.
• Adoperare pentole di diametro sufficiente a coprire
completamente la zona riscaldante, in modo da
54

garantire lo sfruttamento di tutto il calore disponibile.
mentre la piastra anteriore sinistra su 2. La posteriore
IT
destra si spegnerà dopo 5 ore di funzionamento, la
anteriore sinistra dopo 8 ore.
• Accertarsi che il fondo delle pentole sia sempre
perfettamente asciutto e pulito, per garantire la
corretta aderenza e una lunga durata, sia alle zone
di cottura che alle pentole stesse.
• Evitare di utilizzare le stesse pentole utilizzate
sui bruciatori a gas: la concentrazione di calore sui
bruciatori a gas può deformare il fondo della
pentola, che perde aderenza.
Dispositivi di sicurezza
Rilevamento dei recipienti
Ciascuna zona di cottura è provvista di un dispositivo
di rilevamento della pentola. La piastra emette calore
unicamente in presenza di una pentola di dimensioni
adeguate alla zona di cottura stessa. La spia
lampeggiante può indicare:
• una pentola incompatibile
• una pentola di diametro insufficiente
• il sollevamento della pentola
Indicatori di calore residuo
Ciascuna zona di cottura è provvista di un inciatore
di calore residuo. Tale indicatore segnala quali sono
le zone di cottura ancora a temperatura elevata. Se il
display di potenza visualizza
, la zona di cottura è
ancora calda. E’ possibile ad esempio mantenere in
caldo una pietanza o far scigliere burro o cioccolato.
Con il raffreddamento della zona di cottura, il display di
potenza visualizza
. Il display si spegne quando la
zona di cottura si è sufficientemente raffreddata.
Surriscaldamento
In caso di surriscaldamento dei componenti elettronici,
il piano cottura si spegne automaticamente e sul
display appare
F seguito da un numero lampeggiante.
Questo messaggio scompare e il piano torna
utilizzabile non appena la temperatura è scesa a un
livello accettabile.
Interruttore di sicurezza
L’apparecchio è dotato di un interruttore di sicurezza
che spegne le zone di cottura automaticamente
quando viene raggiunto un tempo limite di utilizzo a
un dato livello di potenza. Durante l’interruzione di
sicurezza, il display indica “0”.
Esempio: la piastra posteriore destra è impostata su 5,
55
Livello di potenza
Tempo limite di funzionamento in ore
1
9
2
8
3
7
4
6
5
5
6
4
7
3
8
2
9
1
Segnale acustico
Alcune anomalie, quali:
• un oggetto (pentola, posata, ecc.) posto per oltre 10
secondi sull’area dei comandi,
• un versamento sull’area dei comandi,
• una pressione esercitata a lungo su un tasto,
possono provocare l’emissione di un segnale
acustico. Rimuovere la causa del malfunzionamento
per interrompere il segnale acustico. Se la causa
dell’anomalia non viene rimossa, il segnale acustico
persiste e il piano si spegne.

Consigli pratici per la cottura
IT
ª
Cottura a Pressione
Frittura
Pentola a Pressione
vivissimo
Cottura a fuoco
•
Grigliata Ebollizione
•
Crêpe Cottura a fuoco vivo e doratura
(Arrosti, Bistecche, Scaloppine, Filetti di
Cottura a
fuoco vivo
pesce, Uova al tegamino)
¶
¶
Addensamento rapido (Sughi liquidi)
Acqua bollente (Pasta, Riso, Verdure)
Latte
§
§
Addensamento lento (Sughi consistenti)
S
Cottura a fuoco medioCottura a fuoco
S
Cottura a bagnomaria
Cottura Pentola a pressione dopo il sibilo
¢
¢
lento
£
Cottura a fuoco lento
Riscaldamento delle pietanze
(Stufati)
™
™
Salsa al cioccolato Mantenimento al caldo
fuoco
Cottura a
lentissimo
¡
56

Precauzioni e consigli
! L’apparecchio è stato progettato e costruito
• Tenere a debita distanza dal piano cottura qualsiasi
IT
in conformità alle norme internazionali di sicurezza.
oggetto che potrebbe fondere, ad esempio oggetti
Queste avvertenze sono fornite per ragioni di sicurezza
in plastica, in alluminio o prodotti con un elevato
e devono essere lette attentamente.
contenuto di zucchero. Fare particolare attenzione a
imballaggi e pellicole in plastica o alluminio:
Questa apparecchiatura è conforme alle
se dimenticati sulle superfici ancora calde o tiepide
seguenti Direttive Comunitarie:
possono causare un grave danno al piano.
• Assicurarsi che i manici delle pentole siano sempre
- 2006/95/CEE del 12/12/06 (Bassa Tensione) e
rivolti verso l’interno del piano cottura per evitare
successive modificazioni
che vengano urtati accidentalmente.
- 2004/108/CEE del 15/12/04 (Compatibilità
• Non staccare la spina dalla presa della corrente
Elettromagnetica) e successive modificazioni
tirando il cavo, bensì afferrando la spina.
- 93/68/CEE del 22/07/93 e successive modificazioni.
• Non fare pulizia o manutenzione senza aver prima
- 1275/2008 stand-by/off mode.
staccato la spina dalla rete elettrica.
• Non è previsto che l’apparecchio venga utilizzato
da persone (bambini compresi) con ridotte
Sicurezza generale
capacità fisiche, sensoriali o mentali, da persone
inesperte o che non abbiano familiarità con il
! Controllare che la presa d’aria tramite la griglia del
prodotto, a meno che non vengano sorvegliate da
ventilatore non sia mai ostruita. Il piano da incasso,
una persona responsabile della loro sicurezza o
infatti, necessita di una corretta aerazione per il
non abbiano ricevuto istruzioni preliminari sull’uso
raffreddamento dei componenti elettronici.
dell’apparecchio.
• L’apparecchio è stato concepito per un uso di tipo
• Se presenti, non guardare a lungo le zone di cottura
non professionale all’interno dell’abitazione.
alogene.
• L’apparecchio non va installato all’aperto, nemmeno
• Evitare che i bambini giochino con l’apparecchio.
se lo spazio è riparato, perché è molto pericoloso
• Non posare oggetti metallici (coltelli, cucchiai,
lasciarlo esposto a pioggia e temporali.
coperchi, ecc.) sul piano perchè possono diventare
• Non toccare la macchina a piedi nudi o con le mani
caldi.
o i piedi bagnati o umidi.
• L’apparecchio non è destinato a essere messo in
• L’apparecchio deve essere usato per cuocere
funzione per mezzo di un temporizzatore esterno
alimenti, solo da persone adulte e secondo le
oppure di un sistema di comando a distanza
istruzioni riportate in questo libretto. Ogni altro
separato.
uso (ad esempio: riscaldamento di ambienti) è
da considerarsi improprio e quindi pericoloso.
Il costruttore non può essere considerato
responsabile per eventuali danni derivanti da usi
impropri, erronei ed irragionevoli.
Smaltimento
• Il piano in vetroceramica è resistente agli urti
meccanici, tuttavia può incrinarsi (o eventualmente
• Smaltimento del materiale di imballaggio: attenersi
frantumarsi) se colpito con un oggetto appuntito,
alle norme locali, così gli imballaggi potranno essere
quale un utensile. In questi casi, scollegare
riutilizzati.
immediatamente l’apparecchio dalla rete di
• La direttiva Europea 2002/96/CE sui rifiuti di
alimentazione e rivolgersi all’Assistenza.
apparecchiature elettriche ed elettroniche (RAEE),
• Se la superficie del piano è incrinata, spegnere
prevede che gli elettrodomestici non debbano essere
l’apparecchio per evitare la possibilità di scosse
smaltiti nel normale flusso dei rifiuti solidi urbani.
elettriche.
Gli apparecchi dismessi devono essere raccolti
• Evitare che il cavo di alimentazione di altri
separatamente per ottimizzare il tasso di recupero
elettrodomestici entri in contatto con parti calde
e riciclaggio dei materiali che li compongono ed
del piano cottura.
impedire potenziali danni per la salute e l’ambiente.
• Non dimenticare che la temperatura delle zone di
Il simbolo del cestino barrato è riportato su tutti
cottura rimane piuttosto elevata per almeno trenta
i prodotti per ricordare gli obblighi di raccolta
minuti dopo lo spegnimento. Il calore residuo è
separata.
segnalato anche da un indicatore (vedi Avvio e
Per ulteriori informazioni, sulla corretta dismissione
utilizzo).
degli elettrodomestici, i detentori potranno rivolgersi
al servizio pubblico preposto o ai rivenditori.
57

Manutenzione e cura
Escludere la corrente elettrica
scolamenti durante la cottura. Si raccomanda
Prima di ogni operazione isolare l’apparecchio dalla
di eseguire queste operazioni con l’apparecchio
IT
rete di alimentazione elettrica.
tiepido o freddo.
• Ricordarsi sempre di risciacquare con acqua pulita
Pulire l’apparecchio
e asciugare accuratamente il piano: i residui di
!
Evitare l’uso di detergenti abrasivi o corrosivi, quali
prodotti potrebbero infatti incrostarsi durante la
i prodotti in bombolette spray per barbecue e forni,
successiva cottura.
smacchiatori e prodotti antiruggine, i detersivi in
Telaio in acciaio inox (solo nei modelli con cornice)
polvere e le spugne con superficie abrasiva: possono
L’acciaio inossidabile può macchiarsi per effetto
graffiare irrimediabilmente la superficie.
di un’acqua molto calcarea lasciata per un periodo
!
Non utilizzare mai pulitori a vapore o ad alta pressione
di tempo prolungato a contatto dello stesso oppure a
per la pulizia dell’apparecchio.
causa di prodotti per la pulizia contenenti fosforo.
Si consiglia di sciacquare abbondantemente e
• Per una manutenzione ordinaria, è sufficiente lavare
asciugare con cura dopo la pulizia del piano. In
il piano con una spugna umida, asciugando quindi
caso di versamenti d’acqua, intervenire rapidamente
con una carta assorbente per cucina.
asciugando con cura.
• Se il piano è particolarmente sporco, strofinare con
un prodotto specifico per la pulizia delle superfici
!
Alcuni piani cottura hanno una cornice in alluminio
in vetroceramica, sciacquare e asciugare.
somigliante all’acciaio inox. Non utilizzare prodotti per
• Per rimuovere gli accumuli di sporco più consistenti
la pulizia e lo sgrassaggio non idonei per l’alluminio.
servirsi di un apposito raschietto. Intervenire
non appena possibile, senza attendere che
Smontare il piano
l’apparecchio si sia raffreddato, per evitare
Nel caso si renda necessario smontare il piano cottura:
l’incrostazione dei residui. Eccellenti risultati si
1. togliere le viti che fissano le molle di centraggio
possono ottenere usando una spugnetta in filo
sui lati;
d’acciaio inossidabile - specifica per piani in
2. allentare le viti dei ganci di fissaggio sugli angoli;
vetroceramica - imbevuta di acqua e sapone.
3. estrarre il piano cottura dal vano del mobile.
• In caso sul piano cottura si fossero accidentalmente
fusi oggetti o materiali quali plastica o zucchero,
!
Raccomandiamo di evitare di accedere ai
rimuoverli con il raschietto immediatamente, finché
meccanismi interni per tentare una riparazione. In caso
la superficie è ancora calda.
di guasto, contattare l’Assistenza.
• Una volta pulito, il piano può essere trattato
con un prodotto specifico per la manutenzione
e la protezione: la pellicola invisibile lasciata da
questo prodotto protegge la superficie in caso di
Descrizione tecnica dei modelli
In queste tabelle sono riportati, modello per modello, i valori di assorbimento energetico, il tipo di elemento
riscaldante e il diametro di ciascuna zona di cottura.
Legenda:
H = hilight singolo
HD = hilight doppio
HT = hilight triplo
AD = alogena doppio
58
Piani cottura
VRA 640 X S VRA 641 D B S
VRA 641 D X S
Zone di cottura
Potenza (in W)
Diametro (in mm)
Potenza (in W)
Diametro (in mm)
Posteriore sx
HD 2300
210
HT 2200/1000
210/140
Posteriore dx
H 1400
160
H 1400
160
Anteriore sx
H 1200
145
H 1200
145
Anteriore dx
H 1800
180
H 1800
180
Potenza totale
6700
6600
VRA 640 C SVRA 640 C S

Installatie
! Bewaar dit instructieboekje zorgvuldig voor eventuele
NL
raadpleging in de toekomst. Wanneer u het product
weggeeft, verkoopt, of wanneer u verhuist, dient
u dit boekje bij het apparaat te bewaren zodat
min. 20 mm
waarschuwingen en informatie betreffende werking
voorhanden blijven.
5 mm
! Lees de instructies aandachtig door: u vindt er
LADE
belangrijke informatie betreffende installatie, gebruik
en veiligheid.
min. 40 mm
Plaatsing
! Het verpakkingsmateriaal is niet bestemd voor
kinderen en dient daarom te worden verwijderd
volgens de geldende normen voor gescheiden
min. 20 mm
afvalverzameling ( zie Voorzorgsmaatregelen en advies).
! De installatie moet worden uitgevoerd door een
bevoegde installateur en volgens de instructies van
5 mm
de fabrikant. Een verkeerde installatie kan schade
HETELUCHTOVEN
berokkenen aan personen, dieren of dingen.
Inbouw
min. 40 mm
Voor een goede werking van het apparaat moet het
keukenmeubel de juiste kenmerken hebben:
• het keukenblad moet uit hittebestendig materiaal zijn
vervaardigd en een temperatuur van circa 100°C
kunnen verdragen;
• als de kookplaat boven een oven wordt geïnstalleerd
moet deze zijn voorzien van een geforceerd
VOORZIJDE VAN
geventileerd afkoelingssysteem;
DE KOOKPLAAT
• installeer de kookplaat nooit boven een
afwasautomaat: indien u dit toch doet, breng dan
KEUKENBLAD
30
40
een waterdichte afscheiding aan tussen de twee
apparaten;
KOOKPLAAT
• naar gelang het type kookplaat dat u wenst
ONDERSTEBOVEN
te installeren (zie afbeeldingen), moet het
keukenmeubel de volgende afmetingen hebben:
590
574
48
48
520
504
560 +/- 1
560 +/- 1
490 +/- 1
490 +/- 1
Ventilatie
Teneinde een correcte ventilatie te bereiken en
een oververhitting van de oppervlakken rondom het
apparaat te voorkomen, moet de kookplaat geïnstalleerd
worden op:
• op een minimum afstand van 40 mm van de
achterwand;
• op zodanige wijze dat er een minimum afstand
overblijft van 20 mm tussen het inbouwmeubel en
het onderstaande meubel.
• De meubels die direct naast de kookplaat staan en
59

hierboven uitsteken, moeten op minstens 600 mm
NL
van de rand van de plaat staan.
Eenfasige aansluiting
Bevestigen
De kookplaat is voorzien van
een voedingskabel bestemd
Het apparaat moet op een absoluut horizontaal
voor een eenfasige aansluiting.
oppervlak worden geïnstalleerd.
Voer de draadverbinding
Eventuele door onjuiste installatie veroorzaakte
uit zoals aangegeven in de
vervormingen kunnen de eigenschappen en de
volgende tabel en tekeningen:
Spanningstype
prestaties van de kookplaat aantasten.
Elektrische kabel Draadverbinding
en netfrequentie
De lengte van de regelschroef van de
: geel/groen;
bevestigingshaken moet op basis van de dikte van het
230-240V 1+N ~
N
: de 2 blauwe draden samen
220-240V 1+N ~
keukenblad worden ingesteld
voordat de haken worden
50/60 Hz
L
: bruin en zwart samen
gemonteerd:
Andere soorten aansluitingen
• als de dikte 30 mm is: schroef 17,5 mm;
• als de dikte 40 mm is: schroef 7,5 mm.
Als het elektrische net overeenkomt met een van de
Voor het bevestigen moet u als volgt te werk gaan:
volgende karakteristieken:
1. Draai met korte, puntloze schroeven de 4
Spanningstype en netfrequentie
centreringsklemmen in de openingen in het midden
• 400V - 2+N ~ 50/60 Hz
van elke zijde van het blad vast;
• 220-240V 3 ~ 50/60 Hz
2. zet de kookplaat in het midden van de opening van
• 230-240V 3 ~ 50/60 Hz
het keukenmeubel door gelijke druk uit te oefenen op
• 400V - 2+2N ~ 50/60 Hz
de hele omtrek totdat de kookplaat perfect aansluit op
het keukenblad.
Scheid de kabels en voer de draadverbinding uit zoals
3. voor een blad met zijprofielen: nadat u de kookplaat
aangegeven in de volgende tabel en tekeningen:
in het keukenmeubel heeft geplaatst moet u de
Spanningstype
Elektrische kabel Draadverbinding
en netfrequentie
4 bevestigingshaken aan de onderste rand van
400V - 2+N ~
: geel/groen;
de kookplaat vastschroeven met gepunte, lange
50/60 Hz
schroeven, net zolang tot het glas goed aan het blad
N: de 2 blauwe
230-240V 3 ~
vastzit.
draden samen
220-240V 3 ~
L1: zwart
50/60 Hz
L2: bruin
! De schroeven van de centreringsklemmen moeten te
: geel/groen;
allen tijde bereikbaar blijven.
! Volgens de veiligheidsnormen mag er geen contact
400V - 2+2N ~
N1: blauw
50/60 Hz
N2: blauw
meer mogelijk zijn met de elektrische onderdelen nadat
L1: zwart
het apparaat is ingebouwd.
L2: bruin
! Alle beschermende onderdelen moeten zodanig
Als het elektrische net overeenkomt met een van de
worden bevestigd dat ze niet kunnen worden
volgende karakteristieken:
verwijderd zonder gereedschap te gebruiken.
Spanningstype en netfrequentie
• 400V 3 - N ~ 50/60 Hz
Elektrische aansluiting
ga als volgt te werk:
! De elektrische aansluitingen van de kookplaat en
! De eventuele bijgeleverde kabel is niet geschikt voor
de eventuele inbouwoven moeten apart worden
dit type installatie.
uitgevoerd, zowel om elektrische veiligheidsredenen
als om de oven eventueel eenvoudiger te kunnen
1. Gebruik een geschikte voedingskabel, type
verwijderen.
H05RR-F of met een hogere waarde, met de juiste
afmetingen (diameter kabel: 25 mm).
Klemmenstrook
2. Licht de lippen aan de zijkant van het deksel van de
Aan de onderkant van het apparaat bevindt zich een
klemmenstrook op met een schroevendraaier en open
klemmenstrook voor de verschillende types elektrische
hem (zie afbeelding Klemmenstrook).
voeding (het is mogelijk dat de afbeelding niet exact
3. Draai de schroef van de kabelklem en de schroeven
overeenkomt met het model dat u heeft aangeschaft).
van de benodigde klemmetjes los en bevestig de
verbindingskabels volgens de aanwijzingen van de
volgende tabel en afbeeldingen.
60
KOOKPLAAT
ONDERSTEBOVEN

