Indesit VRA-640-C-(PT)-S – page 2
Manual for Indesit VRA-640-C-(PT)-S

et positionner les cavaliers de raccordement
! Le câble ne doit être ni plié ni excessivement écrasé.
FR
conformément aux indications du tableau et des
figures ci-dessous.
! Le câble doit être contrôlé périodiquement et ne peut
4. Positionner les fils conformément aux indications
être remplacé que par un technicien agréé.
du tableau et des figures ci-dessous et procéder au
raccordement en serrant à fond toutes les vis des
! Nous déclinons toute responsabilité en cas de non
bornes.
respect des normes énumérées ci-dessus.
Tension type et
Raccordements électriques Bornier
fréquence réseau
! Ne retirer ou ne remplacer en aucun cas le câble
d’alimentation. Toute opération d’enlèvement ou de
400V 3-N ~
Triphasé 400
50/60 Hz
remplacement annule automatiquement la garantie
et la marque CE INDESIT décline toute responsabilité
5. Fixer le câble d’alimentation dans le serre-câble
en cas d’accidents ou de dommages dérivants
correspondant et fermer le couvercle.
de l’enlèvement ou du remplacement du câble
Phase Phase Phase
d’alimentation original. Seul le remplacement effectué
par un technicien agréé INDESIT utilisant une pièce
1
2
3
détachée originale est autorisé.
Triphasé 400
Foyers extensibles
5
4
Certains modèles sont équipés de foyers extensibles.
Terre
Neutre
Cavalier
Ces derniers peuvent avoir soit une forme circulaire et
s’étendre pour former des foyers doubles ou triples.
Branchement du câble d’alimentation au réseau
Illustration des commandes présentes sur les modèles
électrique
équipés de ces options.
En cas de raccordement direct au réseau, il faut
Foyer extensible circulaire
intercaler entre l’appareil et le réseau un interrupteur
à coupure omnipolaire ayant au moins 3 mm
Voyant
Voyant
FOYER
FOYER
d’écartement entre les contacts.
DOUBLE
TRIPLE ALLUMÉ
ALLUMÉ
! L’installateur est responsable du bon raccordement
électrique de l’appareil et du respect des normes de
sécurité.
Touche
Avant de procéder au branchement, s’assurer que :
Touche
ALLUMAGE
• la prise est bien munie d’une terre conforme à la loi;
ALLUMAGE
FOYER TRIPLE
• la prise est bien apte à supporter la puissance
FOYER DOUBLE
maximale de l’appareil, indiquée sur la plaque
signalétique de l’appareil ;
• Touche ALLUMAGE FOYER DOUBLE pour activer
• la tension d’alimentation est bien comprise entre les
le foyer double (voir Mise en marche et Utilisation).
valeurs indiquées sur la plaque signalétique;
• Voyant FOYER DOUBLE ALLUMÉ : il signale
• la prise est bien compatible avec la fiche de
l’allumage du foyer double.
l’appareil. Si ce n’est pas le cas, remplacer la prise
• Touche ALLUMAGE FOYER TRIPLE pour activer le
ou la fiche, ne pas utiliser de rallonges ni de prises
foyer triple (voir Mise en marche et Utilisation).
multiples.
• Voyant FOYER TRIPLE ALLUMÉ : il signale
l’allumage du foyer triple.
! Après installation de l’appareil, le câble électrique et
la prise de courant doivent être facilement accessibles
21

Mise en marche et
utilisation
! La colle utilisée pour les joints laisse des traces
FR
la touche de sélection du foyer où la fonction
est
de graisse sur le verre. Nous conseillons de les
activée, ou bien choisir un autre niveau de puissance à
éliminer avant d’utiliser l’appareil à l’aide d’un produit
d’entretien non abrasif. Une odeur de caoutchouc
l’aide des touches
- et +.
peut se dégager au cours des premières heures
d’utilisation, elle disparaîtra très vite.
Les éléments chauffants
! Un bip retentit quelques secondes après la mise sous
tension de la table de cuisson. A partir de ce moment-
La table de cuisson, selon les modèles, peut être
là, l’allumage de la table est possible.
équipée de deux types d’éléments chauffants :
! Une pression prolongée sur les touches - et
halogènes et radiants.
Les halogènes transmettent la chaleur par irradiation
+ accélère l’avancement rapide des niveaux de
de la lampe halogène qu’ils contiennent.
puissance et des minutes du minuteur.
Ils se caractérisent par leurs propriétés qui rappellent
celles du gaz : une prompte réponse aux commandes,
Mise sous tension de la table de cuisson
visualisation immédiate de la puissance.
Les radiants sont composés d’une multitude de spires
Pour mettre la table de cuisson sous tension, appuyer
qui garantissent une répartition uniforme de la chaleur
sur la touche
pendant une seconde environ.
sur le fond du récipient pour réussir parfaitement
toutes les cuissons lentes et le mijotage : daubes,
Allumage des foyers
sauces ou plats à réchauffer.
Chaque foyer est activé par une touche de sélection
Verrouillage des commandes
et par un dispositif de réglage de la puissance à
Pendant le fonctionnement de la table, il est possible
de verrouiller les commandes pour empêcher toute
double touche
- et +.
intervention extérieure sur le réglage (enfants,
• Pour mettre en marche un foyer, appuyer sur la
commande correspondante et sélectionner la
nettoyage...). Appuyer sur la touche
pour
verrouiller les commandes, le voyant situé au
- dessus
puissance voulue à l’aide des touches
- et +.
de la touche s’allume.
Pour pouvoir modifier les réglages (interrompre la
Extinction des foyers
cuisson par ex.) il faut déverrouiller les commandes
: appuyer sur la touche
pendant quelques
Pour éteindre un foyer, le sélectionner à l’aide de la
instants, le voyant s’éteint et les commandes sont
touche de sélection correspondante
et :
déverrouillées.
• Appuyer sur la touche
- : la puissance du foyer
descend progressivement jusqu’à extinction.
Extinction de la table de cuisson
Fonction power
Appuyer sur la touche pour éteindre l’appareil.
Si les commandes de l’appareil ont été verrouillées,
Une fonction power permet d’accélérer la montée
elles le seront encore au rallumage de la table. Pour
en température des foyers. Allumer le foyer désiré
pouvoir rallumer la table de cuisson, il faut d’abord
et régler sa puissance comme décrit dans le
déverrouiller les commandes.
paragraphe précédent.. Appuyer pendant au moins
2 secondes de suite sur la touche de sélection du
Conseils d’utilisation de l’appareil
foyer choisi
. L’afficheur, indicateur de puissance,
affiche alternativement la lettre “P” et le niveau de
Pour obtenir de meilleures performances de la table de
puissance sélectionné précédemment jusqu’à ce que
cuisson :
le niveau de puissance voulu soit atteint. Dès qu’il est
• Utiliser des casseroles à fond plat et de forte
atteint, l’afficheur retourne à l’affichage du niveau de
épaisseur pour qu’elles adhèrent parfaitement à la
puissance sélectionné. Pour désactiver cette fonction,
zone de chauffe
appuyer pendant au moins 2 secondes de suite sur
22

FR
Interrupteur sécurité
L’appareil est équipé d’un interrupteur de sécurité
qui interrompt instantanément le fonctionnement des
• Utiliser des casseroles dont le diamètre couvre
foyers dès qu’un temps limite de fonctionnement à
complètement la zone de chauffe de façon à ce que
un niveau de puissance donné est atteint. Pendant
toute la chaleur disponible puisse être utilisée.
l’interruption de sécurité, l’afficheur indique “0”.
Exemple : le foyer arrière droit est réglé sur 5, tandis
que le foyer avant gauche est réglé sur 2. Le foyer
arrière droit s’éteindra au bout de 5 heures de
fonctionnement tandis que le foyer avant gauche
• Veiller à ce que la base des casseroles soit toujours
s’éteindra au bout de 8 heures.
parfaitement sèche et propre pour garantir un bon
contact et une longue durée de vie des foyers mais
aussi des casseroles.
Puissance
Durée limite de fonctionnement
• Eviter d’utiliser les mêmes casseroles que sur les
1
9
brûleurs à gaz. la concentration de chaleur sur les
brûleurs à gaz peut déformer le fond de la casserole
2
8
qui perd de son adhérence.
3
7
Les sécurités
4
6
5
5
Détection de récipient
6
4
Chaque foyer est équipé d’une détection de casserole.
7
3
Le foyer ne délivre de puissance qu’en présence d’une
casserole adaptée au foyer. Le voyant clignotant peut
8
2
signaler :
9
1
• une casserole incompatible
• une casserole de trop petit diamètre
• que la casserole a été soulevée
Signal sonore
Indicateurs de chaleur résiduelle
Des anomalies, comme par exemple :
• un objet (casserole, couvert, ...) placé plus de 10
Chaque foyer est équipé d’un indicateur de chaleur
secondes sur la zone de commande,
résiduelle. Cet indicateur signale les foyers dont
• un débordement sur la zone de commande,
la température est encore élevée. Si l’afficheur de
• une pression prolongée sur une touche, peuvent
déclencher un signal acoustique. Eliminer la cause
puissance affiche
, c’est que le foyer est encore
de dysfonctionnement pour stopper le signal
chaud. On peut par exemple s’en servir pour garder
sonore. Si la cause de l’anomalie n’est pas éliminée,
un plat au chaud ou faire fondre du beurre ou du
le signal sonore continue à retentir et la table
chocolat. Lors du refroidissement du foyer, l’afficheur
s’éteint.
de puissance affiche
. L’afficheur s’éteint dès que le
foyer a suffisamment refroidi.
Surchauffe
En cas de surchauffe de ses composants
électroniques, la table s’éteint automatiquement et
l’afficheur indique
F suivi d’un chiffre clignotant. Cet
affichage disparaît et la table est à nouveau utilisable
dès que la température est redescendue à un niveau
acceptable.
23

Conseils utiles pour la cuisson
FR
ª
Mise en pression
Friture
Autocuisser
Cuiccon très viveCuisson viveCuisson moyenneCuisson douceCuisson
•
Grillade Ebullition
•
Crêpes Saise et coloration
(Rotis, Steack, Escalope, Filets de poisson,
Oeufs au plat)
¶
¶
Réduction rapide (Sauce liquides)
Eau Frémissante (Pates, Riz, Légumes)
Lait
§
§
Réduction lente (Sauce épaisses)
S
S
Cuisson au bain-marie
Cuisson Autocuiseur après chuchotement
¢
¢
£
Mijotage (Ragouts)
Réchauffage des préparations
™
™
Sauce chocolat Maintien au chaud
très douce
¡
24

Précautions et conseils
! Cet appareil a été conçu et fabriqué conformément
au film plastique et au papier aluminium : au contact
FR
aux normes internationales de sécurité. Ces consignes
des surfaces encore chaudes ou tièdes, ils risquent
de sécurité sont très importantes et doivent être lues
d’endommager gravement la table.
attentivement.
• S’assurer que les manches des casseroles soient
toujours tournés vers l’intérieur de la table de
Cet appareil est conforme aux Directives
cuisson pour éviter tout risque d’accident.
Communautaires suivantes :
• Ne pas tirer sur le câble pour débrancher la fiche de
la prise de courant.
- 2006/95/CEE du 12.12.06 (Basse Tension) et
• N’effectuer aucune opération de nettoyage ou
modifications successives
d’entretien sans avoir auparavant débranché la fiche
- 2004/108/CEE du 15/12/04 (Compatibilité
de la prise de courant.
électromagnétique) et modifications successives
• Il n’est pas prévu que cet appareil soit utilisé par
- 93/68/CEE du 22/07/93 et modifications successives.
des personnes (enfants compris) présentant des
- 1275/2008 stand-by/off mode.
capacités physiques, sensorielles ou mentales
réduites ou qui n’ont pas l’expérience ou les
Sécurité générale
connaissances indispensables, à moins qu’elles
ne le fassent sous la surveillance de quelqu’un
! S’assurer que la prise d’air à travers la grille du
responsable de leur sécurité ou qu’elles aient été
ventilateur ne soit jamais bouchée. La table à encastrer
dûment formées sur l’utilisation de l’appareil.
exige en effet une bonne aération pour le refroidissement
• Si des foyers halogènes équipent votre appareil, ne
des composants électroniques.
les fixez pas des yeux trop longtemps.
• Cet appareil a été conçu pour un usage familial, de
• S’assurer que les enfants ne jouent pas avec
type non professionnel.
l’appareil.
• Cet appareil ne doit pas être installé en extérieur, même
• Ne pas poser d’objets métalliques (couteaux,
dans un endroit abrité, il est en effet très dangereux de
cuillères, couvercles, etc.) sur la table, ils risquent
le laisser exposé à la pluie et aux orages.
de devenir brûlants.
• Ne pas toucher à l’appareil si l’on est pieds nus ou si
• Le dispositif n’est pas destiné à être mis en
l’on a les mains ou les pieds mouillés ou humides.
œuvre par une minuterie externe ou un système
• Cet appareil qui sert à cuire des aliments ne doit
de télécommande séparée.
être utilisé que par des adultes conformément
aux instructions du mode d’emploi. Toute autre
utilisation (comme par exemple le chauffage
d’une pièce) est impropre et donc dangereux. Le
fabricant décline toute responsabilité en cas de
Mise au rebut
dommages provoqués par un usage impropre ou
erroné.
• Mise au rebut du matériel d’emballage : se conformer
• Le plan vitrocéramique résiste aux chocs
aux réglementations locales, les emballages pourront
mécaniques, il peut toutefois se fendre (ou même
ainsi être recyclés.
se briser) sous l’effet d’un choc provoqué par un
• La directive européenne 2002/96/CE relative aux
objet pointu, tel qu’un ustensile par exemple. Dans
déchets d’équipements électriques et électroniques
ce cas, débrancher immédiatement l’appareil
(DEEE), prévoit que les électroménagers ne peuvent
du réseau électrique et s’adresser à un centre
pas être traités comme des déchets solides urbains
d’assistance technique.
courants. Les appareils usagés doivent faire l’objet
• Eviter que le cordon d’alimentation d’autres petits
d’une collecte séparée pour optimiser le taux de
électroménagers touche à des parties chaudes de
récupération et de recyclage des matériaux qui les
la table de cuisson.
composent et empêcher tout danger pour la santé
• Ne pas oublier que la température des foyers reste
et pour l’environnement. Le symbole de la poubelle
assez élevée pendant trente minutes au moins
barrée est appliqué sur tous les produits pour rappeler
après leur extinction. La chaleur résiduelle est
qu’ils font l’objet d’une collecte sélective.
aussi signalée par un voyant (voir Mise en marche et
Pour de plus amples renseignements sur la mise au
Utilisation).
rebut des électroménagers, les possesseurs peuvent
• Garder à bonne distance de la table de cuisson tout
s’adresser au service public prévu à cet effet ou aux
objet qui pourrait fondre, des objets en plastique ou
commerçants.
en aluminium par exemple, ou des produits à haute
teneur en sucre. Faire très attention aux emballages,
25

Nettoyage et entretien
Mise hors tension
préférence quand l’appareil est tiède ou froid.
Avant toute opération de nettoyage ou d’entretien
• Prendre soin de toujours bien rincer à l’eau claire
FR
couper l’alimentation électrique de l’appareil.
et d’essuyer la table : les résidus des produits
pourraient en effet s’incruster lors d’une prochaine
Nettoyage de l’appareil
cuisson.
!
Ne jamais utiliser de détergents abrasifs ou corrosifs,
tels que des bombes aérosols pour grilloirs et fours,
Cadre en acier inox(uniquement pour les modèles
des détacheurs et des anti-rouille, des poudres
avec encadrement)
à récurer ou des éponges à surface abrasive : ils
Un contact prolongé avec une eau très calcaire ou
risquent de rayer irrémédiablement la surface.
l’utilisation de nettoyants contenant du phosphore
!
Ne jamais nettoyer l’appareil avec des nettoyeurs
peuvent tacher l’acier inox.
vapeur ou haute pression.
Nous conseillons de rincer abondamment et de bien
essuyer après entretien. Il est préférable d’éliminer
• Pour un entretien courant, passer une éponge
aussitôt tout débordement d’eau.
humide sur la surface de la table et essuyer avec du
!
Certaines tables ont un cadre en aluminium
papier essuie-tout.
ressemblant à de l’acier inox. Ne pas utiliser de
• Si la table est particulièrement sale, frotter avec un
produits d’entretien et de dégraissage ne convenant
produit d’entretien adapté au verre vitrocéramique,
pas pour l’aluminium.
rincer et essuyer.
• Pour enlever les salissures en relief, utiliser un
Démontage de la table
grattoir prévu à cet effet. Intervenir dès que
Si le démontage de la table de cuisson s’avère
possible, ne pas attendre que l’appareil ait refroidi
nécessaire :
afin d’éviter toute incrustation des salissures.
1. enlever les vis qui fixent les ressorts de centrage sur
L’utilisation d’une éponge en fil d’acier inoxydable,
les côtés;
spéciale verre vitrocéramique, imprégnée d’eau
2. desserrer les vis des crochets de fixation dans les
savonneuse donne d’excellents résultats.
coins;
• Tout objet, matière plastique ou sucre ayant
3. dégager la table de cuisson du meuble.
accidentellement fondu sur la table de cuisson doit
être aussitôt enlevé à l’aide du grattoir tant que la
!
Il est vivement déconseillé d’essayer d’accéder
surface est encore chaude.
aux mécanismes internes pour tenter une réparation.
• Une fois que la table est propre, elle peut être traitée
En cas de panne, contacter le service d’assistance
avec un produit d’entretien et de protection spécial :
technique.
celui-ci forme un film invisible qui protège la surface
en cas de débordement accidentel. Opérer de
Description technique des modèles
Ces tableaux indiquent, modèle par modèle, les valeurs d’absorption d’énergie, le type d’élément chauffant et le
diamètre de chaque foyer.
Légende :
H = hilight simple
HD = hilight double
HT = hilight triple
AD = halogène double
26
Tables de cuisson
VRA 640 X S VRA 641 D B S
VRA 641 D X S
Foyers
Puissance (en W)
Diamètre (en mm)
Puissance (en W)
Diamètre (en mm)
Arrière gauche
HD 2300
210/140
HT 2200/1000
210/140
Arrière droit
H 1400
160
H 1400
160
Avant gauche
H 1200
145
H 1200
145
Avant droit
H 1800
180/120
H 1800
180
Puissance totale
6700
6600
VRA 640 C SVRA 640 C S

Instalación
! Es importante conservar este manual para poder
ES
consultarlo en todo momento. En el caso de venta,
de cesión o de mudanza, verifique que permanezca
junto al aparato para informar al nuevo propietario
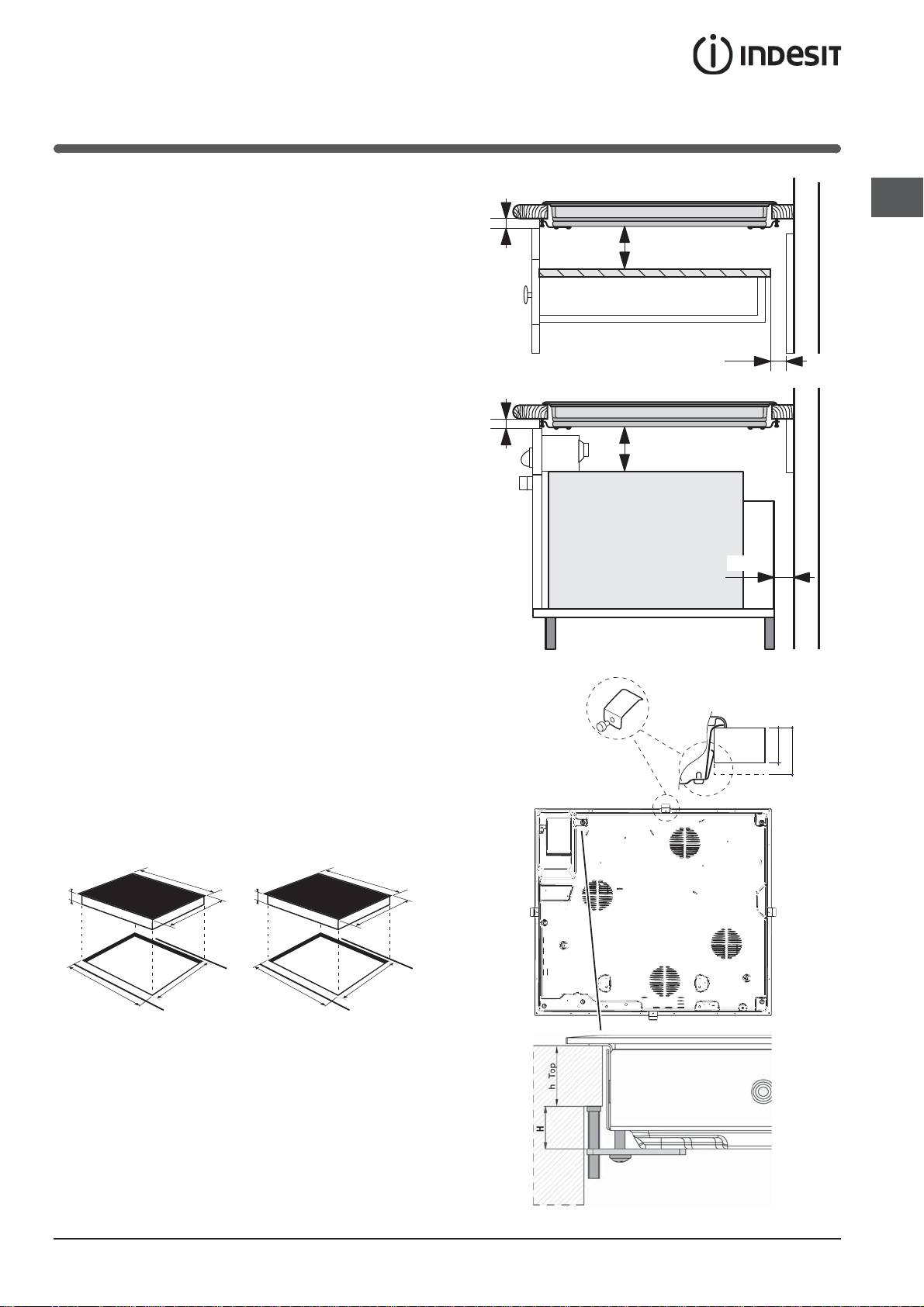
min. 20 mm
sobre su funcionamiento y sobre las advertencias
correspondientes.
5 mm
! Lea atentamente las instrucciones: contienen
CAJÓN
importante información sobre la instalación, el uso y la
seguridad.
min. 40 mm
Colocación
! Los embalajes no son juguetes para niños y se
deben eliminar según las normas para la recolección
diferenciada de desechos (ver Precauciones y consejos).
min. 20 mm
! La instalación se debe realizar siguiendo estas
instrucciones y por personal profesionalmente
5 mm
calificado. Una instalación incorrecta puede producir
HORNO
daños a personas, animales o cosas.
VENTILADO
Empotramiento
min. 40 mm
Para garantizar un buen funcionamiento del aparato
es necesario que el mueble tenga las características
adecuadas:
• el plano de apoyo debe ser de material resistente
al calor, a una temperatura de aproximadamente
100ºC;
PARTE DELANTERA
• si se desea instalar la encimera sobre un horno, el
DE LA ENCIMERA
mismo debe poseer un sistema de enfriamiento con
ventilación forzada;
PLANO DE
• evite instalar la encimera sobre un lavavajillas:
APOYO
30
40
pero si fuera necesario, interponga un elemento de
separación estanco entre los dos aparatos;
ENCIMERA
• según el tipo de encimera que se desea instalar (ver
VOLCADA
las guras), el espacio disponible en el mueble debe
tener las siguientes dimensiones:
590
574
48
48
520
504
560 +/- 1
560 +/- 1
490 +/- 1
490 +/- 1
Aireación
Para permitir una adecuada aireación y para evitar
el sobrecalentamiento de las superficies que rodean al
aparato, la encimera se debe colocar:
• a una distancia mínima de 40 mm de la pared
posterior;
• de modo que se mantenga una distancia mínima de
20 mm entre el hueco para el empotramiento y el
mueble que se encuentra debajo.
• Los muebles situados a un costado, cuya altura
27

supere la de la superficie de trabajo, deben estar
Conexión monofásica
ES
situados a 600 mm., como mínimo, del borde de la
misma.
La encimera posee un cable
de alimentación eléctrica ya
Fijación
conectado y preparado para la
La instalación del aparato se debe realizar sobre una
conexión monofásica. Realice
superficie de apoyo perfectamente plana.
la conexión de los cables de
Las deformaciones que se podrían provocar por una
acuerdo con la tabla y los
mala fijación, pueden alterar las características y las
dibujos que se muestran a
prestaciones de la encimera.
continuación:
Tensión tipo y
Cable eléctrico Conexión de los cables
La longitud del tornillo de regulación de los ganchos
frecuencia de la red
de fijación se debe determinar antes de su montaje en
230-240V 1+N ~
: amarillo/verde;
220-240V 1+N ~
N: los 2 cables azules juntos
base al espesor de la superficie de apoyo:
50/60 Hz
L: el marrón junto al negro
• espesor de 30 mm: tornillo de 17,5 mm;
• espesor de 40 mm: tornillo de 7,5 mm.
Otros tipos de conexión
Para realizar la fijación, el procedimiento es el
Si las características de la instalación eléctrica
siguiente:
coinciden con alguna de las siguientes:
1. Con los tornillos cortos sin punta, enrosque los 4
Tensión tipo y frecuencia de la red
muelles de centrado en los orificios ubicados en el
• 400V - 2+N ~ 50/60 Hz
centro de cada costado de la encimera;
• 220-240V 3 ~ 50/60 Hz
2. introduzca la encimera en el hueco del mueble,
• 230-240V 3 ~ 50/60 Hz
céntrela y ejerza una adecuada presión sobre todo
• 400V - 2+2N ~ 50/60 Hz
el perímetro para que se adhiera perfectamente a la
superficie de apoyo.
Separe los cables y realice la conexión de acuerdo
3. en las encimeras con perfiles laterales: después de
con la tabla y los dibujos que se muestran a
haber colocado la encimera en el mueble, introduzca
continuación:
los 4 ganchos de fijación (cada uno con su perno) en
Tensión tipo y
Cable eléctrico
Conexión de los cables
frecuencia de la red
el perímetro inferior de la encimera enroscándolos con
los tornillos largos con punta hasta que el vidrio se
400V - 2+N ~
: amarillo/verde;
50/60 Hz
adhiera a la superficie de apoyo.
N: los 2 cables azules
230-240V 3 ~
juntos
220-240V 3 ~
L1: negro
! Es indispensable que los tornillos de los muelles de
50/60 Hz
L2: marrón
centrado permanezcan accesibles.
: amarillo/verde;
! En conformidad con las normas de seguridad, una
vez empotrado el aparato, no se deben producir
400V - 2+2N ~
N1: azul
50/60 Hz
N2: azul
contactos con las piezas eléctricas.
L1: negro
L2: marrón
! Todas las partes que garantizan la protección se
deben fijar de modo tal que no puedan ser quitadas
Si las características de la instalación eléctrica
sin la ayuda de una herramienta.
coinciden con alguna de las siguientes:
Tensión tipo y frecuencia de la red
• 400V 3 - N ~ 50/60 Hz
Conexión eléctrica
proceda de la siguiente manera:
! La conexión eléctrica de la encimera y la de un horno
! El cable suministrado con el aparato no se puede
empotrado deben ser realizadas por separado, tanto
utilizar para estos tipos de instalación.
por razones de seguridad eléctrica como para facilitar
las operaciones de extracción del horno.
1. Utilice un cable de alimentación apropiado, tipo
H05RR-F o de valor superior y de dimensiones
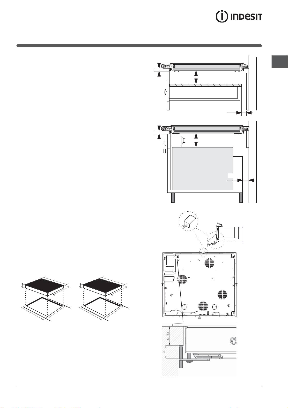
Tablero de bornes
adecuadas (sección del cable: 25 mm).
El aparato posee, en su parte inferior, una caja para su
2. Utilizando un destornillador, haga palanca en las
conexión a diferentes tipos de alimentación eléctrica
lengüetas de la tapa del tablero de bornes y ábrala
(la imagen es sólo indicativa y puede no corresponder
(ver la imagen Tablero de bornes).
al modelo adquirido).
3. Desenrosque el tornillo de la mordaza de terminal
de cable y los tornillos de los bornes correspondientes
28
ENCIMERA
VOLCADA

al tipo de conexión necesaria y coloque los puentes de
! No quitar ni sustituir por ninguna razón el cable
ES
conexión de acuerdo con la tabla y los dibujos que se
de alimentación. Si se sustituye o extrae caduca
muestran a continuación.
la garantía y la marca CE. INDESIT no se asume la
4. Coloque los cables de acuerdo con la tabla y los
responsabilidad en caso de accidentes o daños
dibujos que se muestran a continuación y realice la
derivados de la sustitución o remoción del cable de
conexión apretando a fondo todos los tornillos de los
alimentación original. Se admite exclusivamente la
bornes.
sustitución con un repuesto original y realizada por
Tensión tipo y
Conexiones eléctricas Tablero de bornes
personal autorizado por INDESIT.
frecuencia de la red
400V 3-N ~
Trifásico 400
50/60 Hz
5. Fije el cable de alimentación en el correspondiente
Zonas de cocción extensibles
sujetacable y cierre la tapa.
Algunos modelos poseen placas extensibles.
Fase Fase Fase
Dichas placas pueden tener distinta forma y distinta
extensibilidad (placa doble o triple). Se muestran a
1
2
3
Trifásica 400
continuación los mandos correspondientes, presentes
sólo en los modelos que poseen estas opciones.
5
4
Placa extensible circular
Piloto PLACA
Piloto PLACA
Tierra
Neutro
Puente
DOBLE
TRIPLE
ENCENDIDA
ENCENDIDA
Conexión del cable de alimentación eléctrica a la
red
En el caso de conexión directa a la red, es necesario
interponer entre el aparato y la red, un interruptor
omnipolar con apertura mínima entre los contactos de
Botón
Botón
ENCENDIDO
3 mm.
ENCENDIDO
DE PLACA
DE PLACA DOBLE
TRIPLE
! El instalador es responsable de la correcta conexión
eléctrica y del cumplimiento de las normas de
seguridad.
• Botón ENCENDIDO DE LA PLACA DOBLE para
activar la placa doble (ver Puesta en funcionamiento
Antes de efectuar la conexión verifique que:
y uso).
• la toma tenga conexión a tierra y que sea conforme
• Piloto PLACA DOBLE ENCENDIDA: indica el
con la ley;
encendido de la placa doble.
• la toma sea capaz de soportar la carga máxima de
• Botón ENCENDIDO DE LA PLACA TRIPLE para
potencia de la máquina indicada en la placa de
activar la placa triple (ver Puesta en funcionamiento y
características que se encuentra en el aparato;
uso).
• la tensión de alimentación eléctrica esté
• Piloto PLACA TRIPLE ENCENDIDA: indica el
comprendida dentro de los valores indicados en la
encendido de la placa triple.
placa de características;
• la toma sea compatible con el enchufe del aparato.
Si no es así, sustituya la toma o el enchufe; no utilice
prolongaciones ni conexiones múltiples.
! Una vez instalado el aparato, el cable eléctrico y la
toma de corriente deben ser fácilmente accesibles.
! El cable no debe sufrir pliegues ni compresiones.
! El cable debe ser revisado periódicamente y
sustituido sólo por técnicos autorizados.
! La empresa declina toda responsabilidad cuando
estas normas no sean respetadas.
29

Puesta en funcionamiento
y uso
! La cola aplicada sobre las juntas deja algunas trazas
fijado durante todo el tiempo necesario para que se
ES
de grasa en el vidrio. Antes de utilizar el aparato, se
alcance dicho nivel de potencia. Una vez alcanzado, la
recomienda eliminarlas con un producto específico
pantalla volverá a visualizar el nivel de potencia fijado.
para el mantenimiento, no abrasivo. Durante las
Para desactivar esta función, presione y mantenga
primeras horas de funcionamiento, es posible advertir
presionado durante 2 segundos, el botón de selección
un olor a goma que pronto desaparecerá.
de la zona de cocción para la que está activada la
! Cuando la encimera se conecta a la red de
función
, o elija un nivel de potencia diferente
alimentación eléctrica, después de algunos segundos
se emite una breve señal sonora. Sólo a partir de ese
utilizando los botones
- y +.
momento es posible encender la encimera.
Los elementos calentadores
! La presión prolongada de los botones - y +
permite el avance veloz de los niveles de potencia y
Según el modelo, en la encimera se pueden instalar
de los minutos del temporizador.
dos tipos diferentes de elementos calentadores:
halógenos y radiantes.
Encendido de la encimera
Los halógenos transmiten el calor debido a la
irradiación de la lámpara halógena que contienen.
El encendido de la encimera se produce manteniendo
Se caracterizan por las propiedades muy similares
a los típicos de gas: rápida respuesta a los mandos,
presionado el botón
durante un segundo
visualización instantánea de la potencia.
aproximadamente.
Los radiantes están compuestos por múltiples espiras
que garantizan la distribución uniforme del calor en
Encendido de las zonas de cocción
el fondo del recipiente, logrando perfectas cocciones
con el fuego bajo: estofados, salsas o platos para
Cada zona de cocción se acciona utilizando un botón
calentar.
de selección
y un dispositivo de regulación de
Bloqueo de los mandos
la potencia compuesto por un doble botón
- y +.
Cuando la encimera está en funcionamiento, es
• Para poner en funcionamiento una zona de cocción,
posible bloquear el panel de control para evitar el
pulse el correspondiente botón de mando y fije la
peligro de modificaciones fortuitas de las regulaciones
(niños, operaciones de limpieza, etc.). Presionando el
potencia deseada utilizando los botones
- y +.
botón
, los mandos se bloquean y el piloto que se
Apagado de las zonas de cocción
encuentra encima del botón se enciende.
Para poder volver a realizar regulaciones (por ej.:
Para apagar una zona de cocción, selecciónela
interrumpir la cocción), es necesario desbloquear
mediante el correspondiente botón de selección
los mandos: presione el botón
durante algunos
y:
instantes, la luz testigo se apagará y el panel de
• Presione el botón
-: la potencia de la zona de
control se desbloqueará.
cocción desciende progresivamente, hasta que se
apaga.
Apagado de la encimera
Presionando el botón , el aparato se apagará.
Función power
Si los mandos del aparato fueron bloqueados,
continuarán estando bloqueados incluso después
Para disminuir los tiempos de calentamiento de
de haber vuelto a encender la encimera. Para poder
las zonas de cocción, es posible activar la función
encender nuevamente la encimera, es necesario
power. Encienda y fije la potencia de la zona de
primero desbloquear los mandos.
cocción deseada
como se describe en el párrafo
precedente. Presione y mantenga presionado durante
2 segundos, como mínimo, el botón de selección
de la zona de cocción elegida
. En la pantalla
indicadora de la potencia, se alterna la visualización
de la letra “P” y del nivel de potencia precedentemente
30

Sobrecalentamiento
Consejos prácticos para el uso del
ES
aparato
En el caso de un sobrecalentamiento de los
componentes electrónicos, la encimera se apagará
Para obtener las mejores prestaciones de la encimera:
• Utilice ollas con fondo plano y de gran espesor para
automáticamente y en la pantalla aparecerá
F
asegurarse que se adhieran perfectamente a la
seguida de un número centelleante. Este mensaje
zona calentadora
desaparecerá y la encimera se podrá volver a utilizar
apenas la temperatura haya descendido a un nivel
aceptable.
Interruptor de seguridad
• Utilice ollas de un diámetro suficiente para cubrir
El aparato posee un interruptor de seguridad que
completamente la zona de cocción, de ese modo
apaga las zonas de cocción automáticamente cuando
se garantiza el aprovechamiento de todo el calor
se alcanza un tiempo límite de uso a un determinado
disponible.
nivel de potencia. Durante la interrupción de
seguridad, el display indica “0”.
Ejemplo: la placa posterior derecha se ha fijado en
5, mientras que la placa delantera izquierda en 2. La
posterior derecha se apagará después de 5 horas de
• Verifique que el fondo de las ollas esté siempre
funcionamiento, la delantera izquierda después de 8
perfectamente seco y limpio para garantizar una
horas.
correcta adherencia y mayor duración, no sólo de
Nivel de potencia
Límite de duración de funcionamento en horas
las zonas de cocción, sino también de las ollas.
1
9
• Evite utilizar las mismas ollas utilizadas en los
2
quemadores a gas: la concentración de calor en los
8
quemadores a gas puede deformar el fondo de la
3
7
olla que, en consecuencia, pierde adherencia.
4
6
Dispositivos de seguridad
5
5
6
Detección de los recipientes
4
Cada zona de cocción está provista de un dispositivo
7
3
de detección de la olla. La placa emite calor
8
2
únicamente en presencia de una olla de dimensiones
adecuadas para esa zona de cocción. La luz testigo
9
1
centelleante puede indicar:
Señal sonora
• una olla incompatible
• una olla de diámetro insuficiente
Algunas anomalías, como:
• que se ha levantado la olla
• un objeto (olla, cubierto, etc.) dejado sobre el área
de mandos durante más de 10 segundos
Indicadores de calor residual
• un derrame sobre el área de mandos,
Cada zona de cocción está provista de un indicador
• la presión sobre un botón ejercida por demasiado
de calor residual. Dicho indicador señala cuáles son
tiempo, pueden provocar la emisión de una señal
las zonas de cocción que todavía están a temperatura
sonora. Para interrumpirla, elimine la causa del
mal funcionamiento. Si no se elimina la causa de la
elevada. Si la pantalla de potencia visualiza
, la
anomalía, la señal sonora persiste y la encimera se
zona de cocción todavía está caliente. Por ejemplo, es
apagará.
posible mantener caliente una comida o hacer derretir
mantequilla o chocolate. Cuando se enfría la zona
de cocción, la pantalla de potencia visualiza
. La
pantalla se apaga cuando la zona de cocción se ha
enfriado lo suficiente.
31

Consejos prácticos para la cocción
ES
ª
Cocción a presión
Freído
Olla a presión
muy fuerte
Cocción a fuego
•
Asado Ebullición
•
Crêpe Cocción a fuego fuerte y dorado
(Asados, Bistec, Escalopes, Filetes de
Cocción a
pescado, Huevo frito)
fuego fuerte
¶
¶
Espesamiento rápido (Salsas líquidas)
Agua hirviendo (Pasta, arroz, Verduras)
Leche
§
§
Espesamiento lento (Salsas consistentes)
S
Cocción a fuego medioCocción a
S
Cocción a Baño María Cocción olla a presión después del silbido
¢
¢
£
Cocción a fuego
Calentar comidas
fuego bajo
bajo (guisados)
™
™
Salsa al chocolate Mantener caliente
Cocción
a fuego
muy bajo
¡
32

Precauciones y consejos
! El aparato ha sido proyectado y fabricado en
objetos de plástico, de aluminio o productos con
ES
conformidad con las normas internacionales sobre
un elevado contenido de azúcar. Tenga particular
seguridad. Estas advertencias se suministran por
cuidado con los embalajes y películas de plástico
razones de seguridad y deben ser leídas atentamente.
o aluminio: si se dejan sobre las superficies todavía
calientes o tibias pueden causar un grave daño a la
Este aparato es conforme con las siguientes Normas
encimera.
Comunitarias:
• Verifique que los mangos de las ollas estén siempre
dirigidos hacia dentro de la encimera para evitar
-2006/95/CEE del 12.12.06 (Baja Tensión) y
que sean chocados accidentalmente.
sucesivas modificaciones
• No desconecte el aparato de la toma de corriente
- 2004/108/CEE del 15/12/04 (Compatibilidad
tirando del cable sino sujetando el enchufe.
Electromagnética) y sucesivas modificaciones
• No realice la limpieza o el mantenimiento sin
- 93/68/CEE del 22/07/93 y sucesivas modificaciones.
haber desconectado primero el aparato de la red
- 1275/2008 stand-by/off mode.
eléctrica.
• No está previsto que el aparato sea utilizado por
personas (incluidos los niños) con capacidades
Seguridad general
físicas, sensoriales o mentales disminuidas, por
personas inexpertas o que no tengan familiaridad
! Controle que no se obstruya nunca la toma de aire
con el producto, salvo que estén vigiladas por una
a través de la rejilla del ventilador. La encimera para
persona responsable de su seguridad, o que no
empotrar necesita una correcta aireación para el
hayan recibido instrucciones preliminares sobre el
enfriamiento de los componentes electrónicos.
uso del aparato.
• El aparato ha sido fabricado para un uso de tipo no
• Si están presentes, no guarde mucho tiempo las
profesional en el interior de una vivienda.
zonas de cocción halógenas.
• El aparato no se debe instalar al aire libre, tampoco
• Evitar que los niños jueguen con el aparato.
si el espacio está protegido porque es muy peligroso
• No coloque objetos metálicos (cuchillos, cucharas,
dejarlo expuesto a la lluvia y a las tormentas.
cubiertos, etc.) sobre la encimera porque pueden
• No toque la máquina descalzo o con las manos y pies
calentarse.
mojados o húmedos.
• El aparato no se debe poner en funcionamiento
• El aparato debe ser utilizado para cocinar
a través de un temporizador externo o de un
alimentos, sólo por personas adultas y
sistema de mando a distancia.
siguiendo las instrucciones contenidas en este
manual. Cualquier otro uso (como por ejemplo:
calefacción de ambientes) se debe considerar
impropio y, por lo tanto, peligroso. El fabricante
no puede ser considerado responsable por los
Eliminación
daños derivados de usos impropios, erróneos e
irracionales.
• Eliminación del material de embalaje: respete las
• La encimera de vidriocerámica es resistente a los
normas locales, de esta manera los embalajes podrán
choques mecánicos, no obstante, se puede rajar (o
ser reutilizados.
eventualmente quebrantarse) si es golpeada con
• La norma europea 2002/96/CE sobre la eliminación de
un objeto con punta, como por ejemplo un utensilio.
aparatos eléctricos y electrónicos (RAEE), establece
Si esto sucediera, desconecte inmediatamente el
que los electrodomésticos no se deben eliminar de la
aparato de la red de alimentación eléctrica y llame
misma manera que los desechos sólidos urbanos. Los
al Servicio de Asistencia Técnica.
aparatos en desuso se deben recoger separadamente
• Evite que el cable de alimentación eléctrica de otros
para optimizar la tasa de recuperación y reciclaje
electrodomésticos entre en contacto con las partes
de los materiales que los componen e impedir
calientes de la encimera.
potenciales daños para la salud y el medio ambiente.
• No olvide que la temperatura de las zonas de
El símbolo de la papelera tachada se encuentra en
cocción permanece bastante elevada durante
todos los productos para recordar la obligación de
treinta minutos, como mínimo, después que se han
recolección separada.
apagado. El calor residual también está señalado
Para obtener mayor información sobre la correcta
por un indicador (ver Puesta en funcionamiento y uso).
eliminación de electrodomésticos, los poseedores
• Mantenga cualquier objeto que se pueda fundir a
de los mismos podrán dirigirse al servicio público
una debida distancia de la encimera, por ejemplo,
responsable o a los revendedores.
33

Mantenimiento y cuidados
Interrumpir el suministro de corriente
• Una vez limpia, la encimera se puede tratar con
eléctrica
un producto específico para el mantenimiento y la
ES
Antes de realizar cualquier operación, desconecte el aparato
protección: la película invisible que deja este producto
de la red de alimentación eléctrica.
protege la superficie en caso de escurrimientos durante la
cocción. Se recomienda realizar estas operaciones con el
Limpiar el aparato
aparato tibio o frío.
• Recuerde siempre enjuagar la encimera con agua limpia
!
Evite el uso de detergentes abrasivos o corrosivos, como
y secarla cuidadosamente: en efecto, los residuos de
aerosoles para barbacoas y hornos, quitamanchas y
productos podrían encostrarse durante la siguiente
productos anticorrosivos, jabones en polvo y esponjas con
cocción.
superficie abrasiva, pueden rayar irremediablemente la
superficie.
Estructura de acero inoxidable (sólo en los modelos con
!
No utilice nunca limpiadores a vapor o de alta presión para
marco)
la limpieza del aparato.
El acero inoxidable puede mancharse por la acción de agua
muy calcárea dejada por un período de tiempo prolongado
• Para un mantenimiento ordinario, es suficiente lavar la
en contacto con el mismo o debido a productos para la
encimera con una esponja húmeda, secándola luego con
limpieza con contenido de fósforo.
un papel absorbente para cocina.
Se aconseja enjuagar abundantemente y secar con cuidado
• Si la encimera está particularmente sucia, refriéguela con
después de la limpieza de la encimera. Si se derramara
un producto específico para la limpieza de las superficies
agua, seque rápidamente y con cuidado.
de vidriocerámica, enjuáguela y séquela.
!
Algunas encimeras poseen un marco de aluminio que se
• Para eliminar las acumulaciones de suciedad más
asemeja al acero inoxidable. No utilice productos para la
consistentes utilice una raedera especial. Intervenga
limpieza y el desengrase no adecuados para el aluminio.
lo antes posible, sin esperar que el aparato se enfríe
para evitar que los residuos formen costras. Se pueden
Desmontar la encimera
obtener excelentes resultados usando una esponja con
Cuando sea necesario, se puede desmontar la encimera:
hilos de acero inoxidable especial para encimeras de
1. quite los tornillos que fijan los muelles de centrado en los
vidriocerámica, embebida en agua y jabón.
costados;
• Si sobre la encimera se hubieran fundido accidentalmente
2. afloje los tornillos de los ganchos de fijación en las
objetos o materiales como plástico o azúcar, elimínelos
esquinas;
inmediatamente con la raedera, mientras la superficie
3. extraiga la encimera del mueble.
está todavía caliente.
!
Se recomienda evitar acceder a los mecanismos internos
para intentar una reparación. En caso de avería, llame al
Servicio de Asistencia Técnica.
Descripción técnica de los modelos
En estas tablas se encuentran, modelo por modelo, los valores de absorción energética, el tipo de elemento
calentador y el diámetro de cada zona de cocción.
Leyenda:
H = hilight individual
HD = hilight doble
HT = hilight triple
AD = halógena doble
34
Encimeras
VRA 640 X S VRA 641 D B S
VRA 641 D X S
Zonas de cocción
Potencia (en W)
Diámetro (en mm)
Potencia (en W)
Diámetro (en mm)
Posterior izquierda
HD 2300
210
HT 2200/1000
210/140
Posterior derecha
H 1400
160
H 1400
160
Delantera izquierda
H 1200
145
H 1200
145
Delantera derecha
H 1800
180
H 1800
180
Potencia total
6700
6600
VRA 640 C SVRA 640 C S

Instalação
! É importante guardar este folheto para poder
PT
consultá-lo a qualquer momento. No caso de venda,
cessão ou mudança, assegure-se que o mesmo
permanece com o aparelho para informar o novo
min. 20 mm
proprietário sobre o funcionamento e sobre as
respectivas advertências.
5 mm
! Leia com atenção as instruções: há informações
GAVETA
importantes sobre a instalação, a utilização e a
segurança.
min. 40 mm
Posicionamento
! As embalagens não são brinquedos para as crianças
e devem ser eliminadas em conformidade com as
regras de colecta diferenciada (veja em Precauções e
min. 20 mm
Conselhos).
! A instalação deve ser realizada segundo estas
5 mm
instruções e por pessoal profissional qualificado. Uma
FORNO VENTILADO
instalação errada pode causar danos a pessoas,
animais ou objectos.
min. 40 mm
Encaixe
Para garantir um bom funcionamento do aparelho
é necessário que o móvel seja de características
adequadas.
• o material do plano de apoio deve resistir a uma
temperatura de aproximadamente 100ºC;
LADO ANTERIOR DO
• se desejar instalar o plano de cozedura sobre um
PLANO DE COZEDURA
forno, este deve ser equipado com de um sistema
de arrefecimento com ventilação forçada;
PLANO
• evite instalar o plano de cozedura sobre uma
DE APOIO
30
40
máquina de lavar louça: se for faze-lo, instale um
elemento de separação entre os dois aparelhos
PLANO DE
com retenção hermética;
COZEDURA VIRADO
• conforme o plano de cozedura que desejar instalar
(veja guras), o vão do móvel deverá ter as seguintes
dimensões:
590
574
48
48
520
504
560 +/- 1
560 +/- 1
490 +/- 1
490 +/- 1
Ventilação
Para consentir uma adequada ventilação e para evitar
o superaquecimento das superfícies ao redor do
aparelho, o plano de cozedura deve ser posicionado:
• a uma distância mínima de 40 mm da parede de
trás;
• de forma a manter uma distância mínima de 20 mm
entre o vão para o encaixe e o móvel abaixo dele.
• Os móveis situados ao lado, com altura superior
35

aquela do plano de trabalho, devem ser situados ao
corresponder ao modelo comprado).
PT
menos 600 mm do bordo do mesmo plano.
Ligação monofásica
Fixação
O plano está provido de cabo
A instalação do aparelho deve ser realizada sobre uma
de alimentação já ligado e
superfície de apoio perfeitamente plana.
predisposto na fábrica para a
As deformações eventualmente provocadas por uma
ligação monofásica. Efectuar a
fixação errada poderão alterar as características e as
ligação dos fios de acordo com
performances do plano de cozedura.
a tabela e os desenhos a seguir:
Tensão tipo e
Cabo eléctrico Ligação fios
O comprimento do parafuso de regulação dos
frequência rede
ganchos
de fixação deve ser configurado antes da sua
: verde/amarelo
230-240V 1+N ~
montagem,
conforme a espessura do plano de apoio:
N
: os 2 fios azuis juntos
220-240V 1+N ~
• 30 mm de espessura: parafuso 17,5 mm;
50/60 Hz
L
: marrom junto ao preto
• 40 mm de espessura: parafuso 7,5 mm.
Outros tipos de ligações
Para a fixação proceder da seguinte maneira:
1. Com os parafusos sem ponta, parafusar as 4 molas
Se o sistema eléctrico corresponder à uma dessas
de centragem nos furos colocados no centro de cada
características:
lado do plano;
Tensão tipo e frequência de rede
2. introduza o plano de cozedura no vão do móvel a
• 400V - 2+N ~ 50/60 Hz
exercer uma adequada pressão no inteiro perímetro
• 220-240V 3 ~ 50/60 Hz
para o plano de cozedura prender-se perfeitamente no
• 230-240V 3 ~ 50/60 Hz
plano de apoio.
• 400V - 2+2N ~ 50/60 Hz
3. para os planos com perfis laterais: após ter inserido
Soltar os cabos e efectuar a ligação dos fios de acordo
o plano de cozedura no móvel, inserir os 4 ganchos
com a tabela e os desenhos a seguir:
de fixação (cada um com o seu perno) no perímetro
Tensão tipo e
Cabo eléctrico Ligação fios
frequência rede
inferior do plano de cozedura, parafusando-os com os
parafusos compridos com ponta até que o vidro fique
400V - 2+N ~
: verde/amarelo;
50/60 Hz
aderente ao plano de apoio.
N:
os 2 fios azuis juntos
230-240V 3 ~
L1: preto
! É indispensável que os parafusos das molas de
220-240V 3 ~
L2: marrom
50/60 Hz
centragem sejam acessíveis.
! Em conformidade com as normas de segurança,
: verde/amarelo;
depois de instalar o aparelho encaixado, não deve ser
400V - 2+2N ~
N1: azul
possível o contacto com componentes eléctricos.
50/60 Hz
N2: azul
L1: preto
! Todos os componentes de garantia da protecção
L2: marrom
precisam estar presos de modo que não possam ser
tirados sem o emprego de uma ferramenta.
Se o sistema eléctrico corresponder à uma dessas
características:
Ligação eléctrica
Tensão tipo e frequência de rede
• 400V 3 - N ~ 50/60 Hz
! A ligação eléctrica do plano de cozedura e a de um
proceder da seguinte maneira:
eventual forno de encaixar precisam ser realizadas
separadamente, seja por razões de segurança
!O eventual cabo em dotação não pode ser utilizado
eléctrica, seja para facilitar uma eventual remoção do
para estes tipos de instalação.
forno.
1. Utilizar um cabo de alimentação apropriado, tipo
Caixa de bornes
H05RR-F ou de valor superior, com medias adaptas
O aparelho é equipado, na parte inferior, com uma
(secção do cabo: 25 mm).
caixa para a ligação aos vários tipos de alimentação
2. Utilize uma chave de fenda, para fazer alavanca nas
eléctrica (a imagem é indicativa e pode não
linguetas laterais da tampa da caixa de bornes e abri-
la (veja imagem Caixa de bornes).
3. Desatarraxe o parafuso do grampo do cabo e os
parafusos dos bornes relativos ao tipo de ligação
36
PLANO DE
COZEDURA VIRADO

necessária e posicione os grampos de ligação
INDESIT exime-se de qualquer responsabilidade
PT
conforme a tabela e os desenhos a seguir.
por incidentes ou danos derivados da substituição/
4. Posicione os fios de acordo com a tabela e os
remoção do cabo de alimentação original. Admite-
desenhos abaixo e efectue a ligação apertando todos
se exclusivamente a substituição com uma peça de
os parafusos dos bornes.
reposição original, efectuada por pessoal autorizado
Tensão tipo e
Ligações eléctricas Caixa de bornes
INDESIT.
frequência rede
400V 3-N ~
Trifásica 400
50/60 Hz
Zonas de cozedura extensíveis
5. Fixe o cabo de alimentação na apropriada
braçadeira e feche a tampa.
Alguns modelos dispõem de chapas extensíveis. Estas
Fase Fase Fase
podem ter várias formas e várias extensibilidades
(chapa dupla ou tripla). Aqui estão ilustrados os
1
2
3
respectivos comandos, presentes apenas nos modelos
Trifásica 400
dotados destas opções.
Chapa extensível circular
5
4
Indicador
Indicador
luminoso
luminoso
CHAPA DUPLA
CHAPA
Terra
Neutro
Grampo
LIGADA
TRIPLA LIGADA
Ligação do cabo de alimentação à rede
No momento de efectuar a ligação directamente na
rede, instalar entre o aparelho e a rede um interruptor
Botão
Botão
omnipolar com uma abertura mínima de 3 mm entre os
LIGAR
LIGAR
contactos.
CHAPA DUPLA
CHAPA TRIPLA
! O técnico instalador é responsável pela realização
certa da ligação eléctrica e da obediência das regras
• Botão LIGAR CHAPA DUPLA para ligar/desligar a
de segurança.
chapa dupla (veja Início e utilização).
• Indicador luminoso CHAPA DUPLA LIGADA: indica
Antes de efectuar a ligação, certifique-se que:
que a chapa dupla está ligada.
• a tomada tenha uma ligação à terra e seja em
• Botão LIGAR CHAPA TRIPLA para ligar/desligar a
conformidade com a legislação;
chapa tripla (veja Início e utilização).
• a tomada tenha a capacidade de suportar a carga
• Indicador luminoso CHAPA TRIPLA LIGADA:
máxima de potência da máquina, indicada na placa
indica que a chapa tripla está ligada.
de identificação colocada no aparelho;
• a tensão de alimentação seja entre os valores da
placa de identificação;
• a tomada seja compatível com a ficha do aparelho.
Em caso contrário, substitua a tomada ou a ficha;
não empregue extensões nem tomadas múltiplas.
! Depois de ter instalado o aparelho, o acesso ao cabo
eléctrico e à tomada da corrente deve ser fácil.
! O cabo não deve ser dobrado nem comprimido.
! O cabo deve ser verificado periodicamente e
substituído somente por técnicos autorizados.
! A empresa exime-se de qualquer
responsabilidade se estas regras não forem
obedecidas.
! Não remover ou substituir por motivo algum o cabo
de alimentação. A eventual remoção ou substituição
do mesmo fará decair a garantia e a marca CE. A
37

Início e utilização
! A cola aplicada nas guarnições deixa alguns traços
PT
escolhida
. No display, indicador da potência,
de graxa no vidro. Antes de utilizar o aparelho, é
alterna-se a visualização da letra “P” e do nível de
recomendável eliminá-la com um produto não abrasivo
potência configurado anteriormente, por todo o
específico para a manutenção. Durante as primeiras
tempo necessário ao alcance do nível de potência
horas de funcionamento, pode ser que note odor de
desejado. Quando o nível for alcançado, o display
borracha, que em todo o caso logo desaparecerá.
voltará a visualizar o nível de potência configurado.
Para desactivar esta função, pressionar e manter
! Quando o plano de cozedura for ligado
pressionado por no mínimo 2 segundos o botão de
electricamente, toca um breve sinal acústico depois de
selecção da zona de cozedura na qual foi activada
alguns segundos. Somente neste ponto será possível
ligar o plano de cozedura.
a função
ou escolher um outro nível de potência
através dos botão
- e +.
! Uma prolongada pressão das teclas - e + permite
um avançamento rápido dos níveis de potência e dos
Elementos aquecedores
minutos do timer.
No plano de cozedura, conforme os modelos, podem
Acender o plano de cozedura
ser instalados elementos aquecedores de dois tipos:
halógenos e irradiantes.
Para acender o plano de cozedura manter
Os halógenos transmitem o calor mediante irradiação
da lâmpada halógena que contém.
pressionada a tecla
por aproximadamente um
Caracterizam-se pelas propriedades similares às
segundo.
típicas do gás: rápida resposta aos comandos,
visualização instantânea da potência.
Acender as zonas de cozedura
Os elementos radiantes são constituídos por uma
multiplicidade de espirais que asseguram uma
Cada uma as zonas de cozedura é accionada
repartição uniforme do calor no fundo do recipiente,
mediante um botão de selecção
e um
para um resultado perfeito de todas as cozeduras com
dispositivo de regulação da potência constituído por
fogo lento: cozidos, molhos ou para aquecer pratos.
um botão
- e +.
Bloqueio dos comandos
• Para colocar em funcionamento uma zona de
Quando um plano de cozedura estiver a funcionar, é
cozedura, carregue na respectivo botão de
possível bloquear os comandos para evitar riscos de
comando e defina a potência que desejar mediante
modificações acidentais das regulações (crianças,
os botões
- e +.
operações de limpeza etc.). Carregando no botão
os comandos se bloquearão e o indicador luminoso
Desligar as zonas de cozedura
situado acima do botão se acenderá.
Para voltar a modificar as regulações (por. exemplo
Para desligar uma zona de cozedura, seleccione-a
interromper a cozedura), será necessário desbloquear
mediante o respectivo botão de selecção
e:
os comandos: carregue no botão
por alguns
instantes; o indicador luminoso se apagará e os
• Carregue na tecla
-: a potência da zona de
comandos se desbloquearão.
cozedura descerá progressivamente até desligar-
se.
Desligar o plano de cozedura
Função power
Carregue no botão ; o aparelho se desligará.
Se os comandos do aparelhagem estiverem
Para acelerar os tempos de aquecimento das zonas
bloqueados, continuarão bloqueados mesmo depois
de cozedura, é possível activar a função power.
de ter acendido novamente o plano de cozedura. Para
Ligar e configurar a potência da zona de cozedura
poder acender novamente o plano, será necessário
desejada
como descrito no parágrafo anterior.
primeiro desbloquear os comandos.
Pressionar e manter pressionado por no mínimo 2
segundos, o botão de selecção da zona de cozedura
38

PT
Conselhos práticos para utilizar esta
Aquecimento excessivo
aparelhagem
No caso de superaquecimento dos componentes
electrónicos, o plano de cozedura desliga-se
Para obter as melhores performances do plano de
automaticamente e no display aparece
F seguido por
cozedura:
um número intermitente. Esta mensagem desaparece
• Empregue panelas com fundo chato e elevada
e o plano volta a ser utilizável mal a temperatura
espessura, para ter a certeza que haverá uma
desceu a um nível aceitável.
perfeita aderência à zona de aquecimento.
Interruptor de segurança
O aparelho é dotado de um interruptor de segurança
que desliga as zonas de cozedura automaticamente
quando é alcançado um tempo máximo de utilização
• Empregue panelas com diâmetro suficiente para
a um determinado nível de potência. Durante uma
cobrir inteiramente a zona de aquecimento, de
interrupção de segurança, o display indicará “0”.
maneira que se aproveite inteiramente o calor
Exemplo: a chapa posterior direita está programada
disponível.
no 5, enquanto a chapa anterior esquerda no 2.
A posterior direita irá desligar-se após 5 horas de
funcionamento, a anterior esquerda após 8 horas.
• Certifique-se que o fundo das panelas esteja
sempre perfeitamente enxuto e limpo, para
assegurar uma aderência certa e uma longa
durabilidade não somente das zonas de cozedura,
mas também das próprias panelas.
• Evite utilizar as mesmas panelas que emprega nos
queimadores a gás: a concentração de calor nos
queimadores a gás poderá deformar o fundo das
panelas, que desta maneira perderá aderência.
Dispositivos de segurança
Detecção de recipientes
Cada uma das zonas de cozedura é equipada com
um dispositivo de detecção de panela. A chapa emite
calor unicamente se houver uma panela de medidas
adequadas na respectiva zona de cozedura. O
indicador a piscar pode indicar:
• uma panela incompatível
• uma panela de diâmetro insuficiente
• que a panela está levantada
Indicadores de calor resíduo.
Cada uma das zonas de cozedura é equipada
com um indicador de calor resíduo. Este indicador
sinaliza as zonas de cozedura que ainda estão com
uma temperatura elevada. Se o display de potência
visualizar
, a zona de cozedura ainda está quente.
É possível, por exemplo, manter os alimentos
aquecidos ou derreter manteiga ou chocolate. Com
o arrefecimento da zona de cozedura, o display
visualizará
. O display desliga-se quando a zona de
cozedura estiver suficientemente arrefecida.
39
Nível de potência
Limitação da duração de functionamento em horas
1
9
2
8
3
7
4
6
5
5
6
4
7
3
8
2
9
1
Sinal acústico
Algumas anomalias, nomeadamente:
• um objecto (panela, talher etc.) foi deixado mais de
10 segundos na área de comandos;
• um derramamento na área dos comandos,
• uma pressão exercida por muito tempo em um
botão, podem provocar uma sinalização acústica.
Resolva a causa do mau funcionamento para o sinal
sonoro deixar de tocar. Se a causa da anomalia não
for removida, o sinal acústico persistirá e o plano irá
desligar-se.

Conselhos práticos para a cozedura
PT
ª
Cozedura à pressão
Frituras
Panela de pressão
Cozedura em
fogo altíssimo
•
Assado Ebulição
•
Crêpe Cozedura em fogo alto e doiramento
(Assados, Bifes, Escalopes, Filés de peixe,
Cozedura
Ovos fritos)
em fogo alto
¶
¶
Adensamento rápido (molhos líquidos)
Água fervente (Massas, Arroz, Verduras)
Leite
§
§
Adensamento lento (molhos consistentes)
S
Cozedura em fogo médioCozedura em fogo
S
Cozedura em banho-maria
Cozedura Panela de pressão após o síbilo
¢
¢
£
Cozedura em fogo brando
brando
Aquecimento dos alimentos
(estufados)
™
™
Caldo de chocolate Manter o alimento quente
brando
fogo muito
Cozedura em
¡
40

