Indesit VRA 641 D B S – page 4
Manual for Indesit VRA 641 D B S

4. Plaats de draden zoals aangegeven in de volgende
! Verwijder of vervang de voedingskabel voor
afbeeldingen en tabel en stel een verbinding tot stand
geen enkele reden. De eventuele verwijdering of
NL
door alle schroeven van de klemmetjes goed vast te
vervanging doet de garantie en de CE markering
draaien.
vervallen. INDESIT kan niet aansprakelijk worden
Spanningstype
Elektrische aansluitingen Klemmenbord
gesteld voor ongelukken of schade die het resultaat
en netfrequentie
zijn van de vervanging/verwijdering van de originele
400V 3-N ~
Driefasen 400
voedingskabel. De vervanging met een origineel
50/60 Hz
onderdeel is alleen toegestaan indien uitgevoerd door
5. Bevestig de voedingskabel in de speciale kabelklem
een erkende INDESIT technicus.
en sluit het deksel af.
Fase Fase Fase
Verlengbare kookgedeeltes
Enkele modellen beschikken over verlengbare
1
2
3
Driefase 400
kookplaten. Deze kunnen verschillende vormen
hebben en op verschillende manieren worden verlengd
(dubbel of drievoudig straalelement). Hier worden de
5
4
betreffende bedieningsknoppen beschreven; alleen
aanwezig op modellen die zijn voorzien van deze
opties.
Aarde
Neutraal
Verbindingskabel
Verlengbare kookplaat rond
Het aansluiten van de voedingskabel aan het
Controlelampje
Controlelampje
elektrische net
DUBBELE
DRIEVOUDIGE
KOOKPLAAT
KOOKPLAAT AAN
Bij een rechtstreekse aansluiting op het net moet
AAN
u tussen het apparaat en het net een meerpolige
schakelaar aanbrengen met een minimum afstand van
3 mm tussen de contacten.
Toets
Toets
ONTSTEKEN
ONTSTEKEN
! De installateur is verantwoordelijk voor een correcte
DUBBELE
DRIEVOUDIGE
elektrische aansluiting en de inachtneming van de
KOOKPLAAT
KOOKPLAAT
veiligheidsnormen.
Vóór het aansluiten moet u controleren dat:
• Toets ONTSTEKEN DUBBELE KOOKPLAAT om
• de contactdoos geaard is en voldoet aan de
de dubbele kookplaat in te schakelen (zie Starten en
geldende normen;
gebruik).
• het stopcontact in staat is het maximale vermogen
• Controlelampje DUBBELE KOOKPLAAT AAN:
van het apparaat te verdragen, zoals aangegeven
geeft aan dat de dubbele kookplaat ingeschakeld is.
op het typeplaatje dat zich op het apparaat bevindt;
• Toets ONTSTEKEN DRIEVOUDIGE KOOKPLAAT
• de spanning zich bevindt tussen de waarden die
om de drievoudige kookplaat in te schakelen (zie
staan aangegeven op het typeplaatje;
Starten en gebruik).
• de contactdoos en de stekker overeenkomen.
• Controlelampje DRIEVOUDIGE KOOKPLAAT
Als dat niet zo is, dient u ofwel de stekker ofwel
AAN: geeft aan dat de drievoudige kookplaat
de contactdoos te vervangen; gebruik geen
ingeschakeld is.
verlengsnoeren of dubbelstekkers.
! Wanneer het apparaat geïnstalleerd is, moeten de
elektrische kabel en de contactdoos gemakkelijk te
bereiken zijn.
! De kabel mag niet gebogen of samengedrukt
worden.
! De kabel moet van tijd tot tijd worden gecontroleerd
en mag alleen door erkende monteurs worden
vervangen.
! De fabrikant kan nergens aansprakelijk voor
worden gesteld als deze normen niet worden
nageleefd.
61

Starten en gebruik
! De lijm die gebruikt is voor de afdichtingen laat wat
houdt u de selectietoets van de kookzone waarop
NL
vetvlekjes achter op het glas. Voordat u het apparaat
de functie
actief is minstens 2 seconden lang
gebruikt raden wij u aan de vlekken te verwijderen
ingedrukt. Als alternatief kunt u een verschillende
met een speciaal niet-schurend schoonmaakmiddel.
stroomsterkte selecteren m.b.v. de selectietoetsen
-
Gedurende de eerste paar uur dat u het apparaat
gebruikt kan het zijn dat u een rubbergeur ruikt. Deze
en
+.
zal echter snel wegtrekken.
! Als de kookplaat elektrisch wordt aangesloten hoort
De verwarmingselementen
u na enkele seconden een kort geluidssignaal afgaan.
Aan de hand van het type kookplaat kunnen twee
Alleen dan kunt u de kookplaat aanzetten.
verschillende verwarmingselementen worden
gemonteerd: halogeen of stralend.
! Als u lang op de toetsen drukt - en + kunt u de
De halogeenelementen verspreiden de warmte door de
stroomsterkte en de minuten van de timer snel laten
uitstraling van de halogeenlamp die zich erin bevindt.
toenemen.
De belangrijkste eigenschappen lijken op die van
het gasfornuis: snelle reactie op de bediening en het
Inschakelen kookplaat
onmiddellijk zichtbaar worden van de stroomsterkte.
De stralingselementen bestaat uit een hoeveelheid
Druk ongeveer 1 seconde op de knop voor het
spiralen die het gelijkmatig verspreiden van de warmte
inschakelen van de kookplaat.
op de bodem van de pan garanderen. Hierdoor kunt
u etenswaren optimaal op laag vuur bereiden: voor
Inschakelen kookzones
stoofschotels, sausen of het opwarmen van gerechten.
Iedere kookzone wordt in werking gesteld door middel
Blokkering van het bedieningspaneel
van een selectietoets
en een regelsysteem voor
de stroomsterkte, bestaande uit een dubbele toets
Als de kookplaat in werking is kunt u het
bedieningspaneel blokkeren om een
- en +.
ongewenst aanraken te vermijden (kinderen,
• Voor het in werking stellen van een kookzone drukt
schoonmaakhandelingen, enz.). Door op de toets
u op de betreffende toets en stelt u de gewenste
te drukken zal het bedieningspaneel worden
geblokkeerd. Het controlelampje boven de toets gaat
stroomsterkte in met de toetsen
- en +.
aan.
Als u het bedieningspaneel weer wilt gebruiken (bv.
Uitschakelen kookgedeeltes
als u wilt stoppen met koken) moet u de blokkering
Voor het uitschakelen van een kookgedeelte kiest u dit
uitschakelen: druk even op de toets
. Het
door middel van de selectietoets
en:
controlelampje gaat uit en het bedieningspaneel wordt
• Druk op de toets
- : het vermogen van het
weer geactiveerd.
kookgedeelte wordt langzaam minder totdat het
uitgaat.
Uitschakelen kookplaat
Power functie
Druk op de toets ; het apparaat gaat uit.
Voor het versnellen van de verwarmingstijd van
Als het bedieningspaneel is geblokkeerd, blijft dit ook
de kookzones, is het mogelijk de power functie te
geblokkeerd nadat u de kookplaat opnieuw inschakelt.
activeren. Schakel de stroom van de gewenste
Als u de kookplaat opnieuw wilt inschakelen moet u
kookzone
in zoals beschreven in de voorgaande
eerst het bedieningspaneel deblokkeren.
paragraaf. Houd de toets voor het selecteren
Praktische tips voor het gebruik van het
van de kookzone
minstens 2 seconden lang
apparaat
ingedrukt. Op het display zal de aanwijzer van de
stroomsterkte worden afgewisseld met de letter “P”
Om optimale resultaten te bereiken met de kookplaat:
en de voordien ingestelde stroomsterkte, net zo lang
• Gebruik alleen pannen met een dikke, platte bodem
totdat de gewenste stroomsterkte is bereikt. Zodra de
zodat ze perfect aansluiten op het verwarmingsvlak.
temperatuur is bereikt zal het display de ingestelde
stroomsterkte tonen. Om deze functie uit te schakelen
62

temperatuur tot op een acceptabel niveau is gezakt.
NL
Veiligheidsschakelaar
Het apparaat beschikt over een veiligheidsschakelaar
• Gebruik pannen die groot genoeg zijn om
die de kookgedeeltes automatisch uitschakelt als
de kookplaat geheel te bedekken zodat alle
de tijdslimiet voor een bepaald vermogensniveau is
beschikbare hitte wordt benut.
bereikt. Tijdens deze veiligheidsonderbreking vertoont
het display het cijfer “0”.
B.v.: de kookplaat rechtsachter staat op 5, terwijl de
plaat linksvoor op 2 staat. De plaat rechtsachter zal
automatisch na 5 uur uitgaan, de plaat linksvoor na 8
• Houd de bodem van de pannen altijd goed schoon
uur.
en droog zodat ze goed aansluiten op het kookvlak.
Dit verlengt de levensduur van zowel de pannen als
het kookvlak zelf.
• Vermijd dezelfde pannen te gebruiken die
Vermogensniveau
Begrenzing van de werkingsduur in uren
u ook op een gasfornuis heeft gebruikt: de
1
9
warmteconcentratie van gasbranders kan de bodem
van pannen vervormen, waardoor ze niet goed meer
2
8
aansluiten.
3
7
Veiligheidssystemen
4
6
5
5
Pannensensor
6
4
Ieder kookgedeelte is voorzien van een systeem
7
3
dat waarneemt of er een pan op staat. De plaat
straalt alleen warmte uit als er een pan van de juiste
8
2
afmetingen op staat. Het knipperende controlelampje
9
1
kan betekenen:
• dat de pan niet geschikt is
• dat de pan een te kleine diameter heeft
Geluidssignaal
• dat de pan niet goed aansluit
Enkele storingen, zoals:
Aanwijzers van de resterende warmte
• een voorwerp (pan, bestek, enz.) dat meer dan 10
seconden op het bedieningspaneel ligt,
Ieder kookgedeelte is voorzien van een aanwijzer van
• gemors op het bedieningspaneel,
de resterende warmte. Deze aanwijzer geeft aan welke
• een lange druk op een toets, kunnen een
kookzones nog heet zijn. Als het vermogensdisplay
geluidssignaal veroorzaken. Verwijder de oorzaak
van de storing en het geluidssignaal houdt op. Als
toont dan is het kookgedeelte nog warm. Het is
de oorzaak van de storing niet wordt verwijderd
bijvoorbeeld mogelijk een gerecht warm te houden of
blijft het geluidssignaal gaan en wordt het kookvlak
boter of chocolade te laten smelten. Met het afkoelen
uitgeschakeld.
van het kookgedeelte zal het vermogensdisplay
tonen. Het display gaat uit wanneer de kookzone
voldoende is afgekoeld.
Oververhitting
In het geval van oververhitting van de elektronische
onderdelen gaat de kookplaat automatisch uit
en verschijnt op het display
F gevolgd door een
knipperend nummer. Deze boodschap verdwijnt
en u kunt de kookplaat weer gebruiken zodra de
63

Praktische kooktips
NL
64
ª
Koken met een snel
Frituren
kookpanSnelkookpan
hoog vuur
VKoken op zeer
•
Grillen Koken
•
Crêpes Koken op hoog vuur en bruin bakken
(Braadstukken, biefstukken, kalfslappen,
Koken op
hoog vuur
visfilets, gebakken eieren)
¶
¶
Snel indikken (vloeibare sauzen)
Koken van water (pasta, rijst, groente)
Melk
§
§
Langzaam indikken (gebonden sauzen)
S
Koken op middelmatig vuurKoken op
S
Au bain-marie koken
Koken met snelkookpan, na het sissen
¢
¢
£
Koken op laag vuur
Opwarmen van gerechten
laag vuur
(stoofschotels)
™
™
vuur
Chocoladesaus Warm houden van gerechten
Koken op
zeer laag
¡

Voorzorgsmaatregelen
en advies
! Dit apparaat is ontwikkeld en gefabriceerd volgens de
• Houd voorwerpen die kunnen smelten op afstand
NL
geldende internationale veiligheidsvoorschriften. Deze
van de kookplaat, zoals bv. plastic, aluminium of
aanwijzingen zijn geschreven voor uw veiligheid en u dient
suikerhoudende etenswaren. Let vooral op plastic
ze derhalve goed door te nemen.
of aluminium verpakkingen en folie: als u ze op het
nog warme of lauwe kookvlak neerlegt, kunt u zware
Dit apparaat voldoet aan de volgende EU
schade aanrichten.
Richtlijnen:
• Richt de handvaten van de pannen altijd naar de
binnenzijde van de kookplaat zodat u er niet per
- 2006/95/EEG van 12/12/06 (Laagspanning) en
ongeluk tegenaan stoot.
daaropvolgende wijzigingen
• Trek nooit de stekker aan het snoer uit het
- 2004/108/EEG van 15/12/04 (Elektromagnetische
stopcontact, maar pak altijd de stekker direct beet.
Compatibiliteit) en daaropvolgende wijzigingen
• Maak het apparaat niet schoon of voer geen
- 93/68/EEG van 22/07/93 en daaropvolgende wijzigingen.
onderhoud uit als de stekker nog in het stopcontact
- 1275/2008 stand-by/off mode.
zit.
• Dit apparaat mag niet worden gebruikt door
personen (kinderen inbegrepen) met een beperkt
Algemene veiligheidsmaatregelen
lichamelijk, sensorieel of geestelijk vermogen of
personen die niet de nodige ervaring of kennis
!Controleer dat de luchttoevoeropening van het rooster
hebben met het apparaat, tenzij onder toezicht
van de ventilator niet verstopt is. De inbouwkookplaat moet
van een persoon die verantwoordelijk is voor
voorzien zijn van een goede ventilatie voor het afkoelen
hun veiligheid of nadat hun is uitgelegd hoe het
van de elektronische componenten.
apparaat werkt.
• Dit apparaat is vervaardigd voor niet-professioneel
• Als de kookplaat halogene kookzones heeft moet u
gebruik binnenshuis.
vermijden er lang naar te kijken.
• Het apparaat dient niet buitenshuis te worden geplaatst,
• Voorkom dat kinderen met het apparaat spelen.
ook niet in overdekte toestand. Het is erg gevaarlijk als
• Plaats geen metalen voorwerpen (messen, lepels,
het in aanraking komt met regen of onweer.
deksels enz.) op de kookplaat aangezien zij heet
• Raak het apparaat niet aan als u blootsvoets bent of met
kunnen worden..
natte of vochtige handen of voeten.
• Het apparaat is niet geschikt om te worden
• Het apparaat dient gebruikt te worden om
ingeschakeld m.b.v. een externe timer ofwel door
voedsel te bereiden. Het mag uitsluitend door
een gescheiden afstandsbedieningssysteem.
volwassenen worden gebruikt en alleen volgens
de instructies die in deze handleiding beschreven
staan. Elk ander gebruik (bv.: verwarming van
ruimten) is als oneigenlijk te beschouwen en dus
gevaarlijk. De fabrikant kan niet aansprakelijk
Afvalverwijdering
worden gesteld voor eventuele schade die te
wijten is aan onjuist, verkeerd of onredelijk
• Het verwijderen van het verpakkingsmateriaal: houdt
gebruik.
u aan de plaatselijke normen zodat het materiaal
• Het glaskeramische kookvlak is bestand tegen
hergebruikt kan worden.
mechanische stoten. Het kan echter worden
• De Europese richtlijn 2002/96/EG, betreffende
beschadigd (of barsten) als het wordt geraakt door
afgedankte elektrische en elektronische apparatuur
een puntig object, bijvoorbeeld door gereedschap.
(AEEA), voorziet dat huishoudelijke apparatuur niet
Als dit gebeurt moet u onmiddellijk het apparaat
met het normale afval mag worden meegegeven. De
afsluiten van de elektrische stroom en contact
verwijderde apparaten moeten apart worden opgehaald
opnemen met de Technische Dienst.
om het terugwinnen en recyclen van de materialen
• Voorkom dat elektrische snoeren van andere kleine
waaruit ze bestaan te optimaliseren en te voorkomen
keukenapparaten op warme delen van de kookplaat
dat er eventuele schade voortvloeit voor de gezondheid
terechtkomen.
en het milieu. Het symbool van de afvalemmer met een
• Vergeet niet dat de temperatuur in het kookgedeelte
kruis staat op alle producten om de consument eraan te
aanzienlijk hoog blijft tot minstens 30 minuten nadat
herinneren dat dit gescheiden afval is.
u het heeft uitgeschakeld. De resterende warmte
Om meer informatie te verkrijgen betreffende een juiste
wordt aangeduid door een aanwijzer (zie Starten en
verwijdering van huishoudapparaten kan de consument
gebruik).
zich richten tot de gemeentelijke reinigingsdienst of de
verkopers.
65

Onderhoud en verzorging
De elektrische stroom afsluiten
en bescherming: het onzichtbare laagje dat dit
NL
Sluit altijd eerst de stroom af voordat u tot enige handeling
product achterlaat beschermt de plaat in het geval er
overgaat.
iets overkookt. Dit soort handelingen moeten worden
uitgevoerd als de plaat lauw of koud is.
Reinigen van het apparaat
• Vergeet niet de kookplaat altijd met schoon water af te
!
Vermijd het gebruik van schuurmiddelen of bijtende
spoelen en goed af te drogen: restjes schoonmaakmiddel
middelen, zoals sprays voor barbecues en ovens,
kunnen de volgende keer dat u kookt aankoeken.
vlekkenmiddelen, roestverwijderende producten,
schoonmaakmiddelen in poedervorm of schuursponzen:
Raamwerk van roestvrij staal(alleen bij modellen met lijst)
deze kunnen het oppervlak onherstelbaar krassen.
Roestvrij staal kan vlekken gaan vertonen als er voor langere
!
Gebruik nooit stoom- of hogedrukreinigers voor het reinigen
tijd kalkhoudend water op blijft liggen of als gevolg van
van het apparaat.
gebruik van schoonmaakmiddelen die fosfor bevatten.
Spoel en droog de kookplaat altijd goed af nadat u hem heeft
• Voor normaal onderhoud moet u de kookplaat met een
schoongemaakt. Droog gemorst water altijd meteen goed af.
vochtige spons reinigen en afdrogen met keukenpapier.
!
Enkele kookplaten hebben een lijst van aluminium die lijkt
• Als de plaat erg vuil is moet hij worden schoongemaakt
op roestvrij staal. Gebruik voor het reinigen en ontvetten
met een speciaal middel voor keramiekplaten. Daarna
geen producten die niet geschikt zijn voor aluminium.
moet u hem afspoelen en afdrogen.
• Voor het verwijderen van hardnekkig vuil kunt u een
De kookplaat verwijderen
hiervoor bestemd schrapertje gebruiken. Doe dit zo
Als u de kookplaat uit elkaar moet halen:
snel mogelijk voordat het apparaat afkoelt, zodat de
1. verwijder de schroeven die de centreringsklemmen aan de
etensresten niet aankoeken. Uitstekende resultaten bereikt
zijkant vasthouden;
u ook met een speciaal voor keramiekplaten vervaardigd
2. maak de schroeven van de bevestigingshaken op de
roestvrij staal sponsje dat u in een sopje doopt.
hoeken los;
• Als er op de kookplaat onverhoopt voorwerpen of plastic
3. haal de kookplaat uit het meubel.
materiaal of suiker zouden smelten, moet u ze onmiddellijk
met het schrapertje verwijderen zolang het oppervlak nog
!
U mag nooit aan het interne systeem sleutelen om een
warm is.
reparatie proberen uit te voeren. Als er een storing is moet u
• Als de plaat is schoongemaakt, kan hij worden
contact opnemen met de Service Dienst.
behandeld met een speciaal product voor onderhoud
Technische beschrijving van de modellen
In deze tabellen vindt u de waarden terug van de stroomopname voor ieder afzonderlijk model, het type
verwarmingselement en de diameter van ieder kookgedeelte.
Legenda:
H = hilight enkel
HD = hilight dubbel
HT = hilight drievoudig
AD = dubbel halogeen
66
Kookplaten
VRA 640 X S VRA 641 D B S
VRA 641 D X S
Kookgedeeltes
Vermogen (in W)
Diameter (in mm)
Vermogen (in W)
Diameter (in mm)
Linksachter
HD 2300
210
HT 2200/1000
210/140
Rechtsachter
H 1400
160
H 1400
160
Linksvoor
H 1200
145
H 1200
145
Rechtsvoor
H 1800
180
H 1800
180
Totaal vermogen
6700
6600
VRA 640 C SVRA 640 C S

Instalacja
! Należy zachować niniejszą instrukcję, aby móc z
PL
niej skorzystać w każdej chwili. W razie sprzedaży,
odstąpienia lub przeniesienia urządzenia, należy się
upewnić, czy instrukcja została przekazana wraz z nim,
min. 20 mm
aby nowy właściciel płyty grzejnej mógł się zapoznać z
jej działaniem i z właściwymi ostrzeżeniami.
5 mm
! Należy uważnie przeczytać instrukcję: zawiera ona
SZUFLADY
ważne informacje dotyczące instalacji, użytkowania i
bezpieczeństwa.
min. 40 mm
Ustawienie
! Elementy opakowania nie sa zabawkami dla dzieci
i nalezy je usunac zgodnie z normami dotyczacymi
selektywnego gromadzenia odpadów (patrz Zalecenia i
min. 20 mm
srodki ostroznosci ).
! Instalacja powinna zostać wykonana zgodnie z
5 mm
niniejszymi instrukcjami przez wykwalifi kowany
PIEKARNK
personel. Niewłaściwa instalacja może spowodować
WENTYLATOROWY
szkody w stosunku do osób, zwierząt lub mienia.
min. 40 mm
Zabudowa
Aby zapewnić prawidłowe działanie urządzenia, mebel
musi posiadać odpowiednie właściwości:
• blat musi być wykonany z materiału odpornego na
ciepło, na temperaturę około 100°C;
• jeśli płyta grzejna ma być zainstalowana na piecu,
musi on posiadać system chłodzenia z wentylacją
wymuszoną;
• należy unikać instalowania płyty grzejnej na
zmywarce: w przypadku takiej konieczności,
umieścić pomiędzy dwoma urządzeniami szczelny
element oddzielający;
• w zaleznosci od plyty grzejnej, jaka ma byc
zainstalowana (patrz rysunki), wewnetrzna czesc
mebla powinna miec nastepujace wymiary:
590
574
48
48
520
504
560 +/- 1
560 +/- 1
490 +/- 1
490 +/- 1
Obieg powietrza
Aby umożliwić właściwy obieg powietrza i aby uniknąć
przegrzania powierzchni wokół urządzenia, płyta grzejna
powinna być umieszczona:
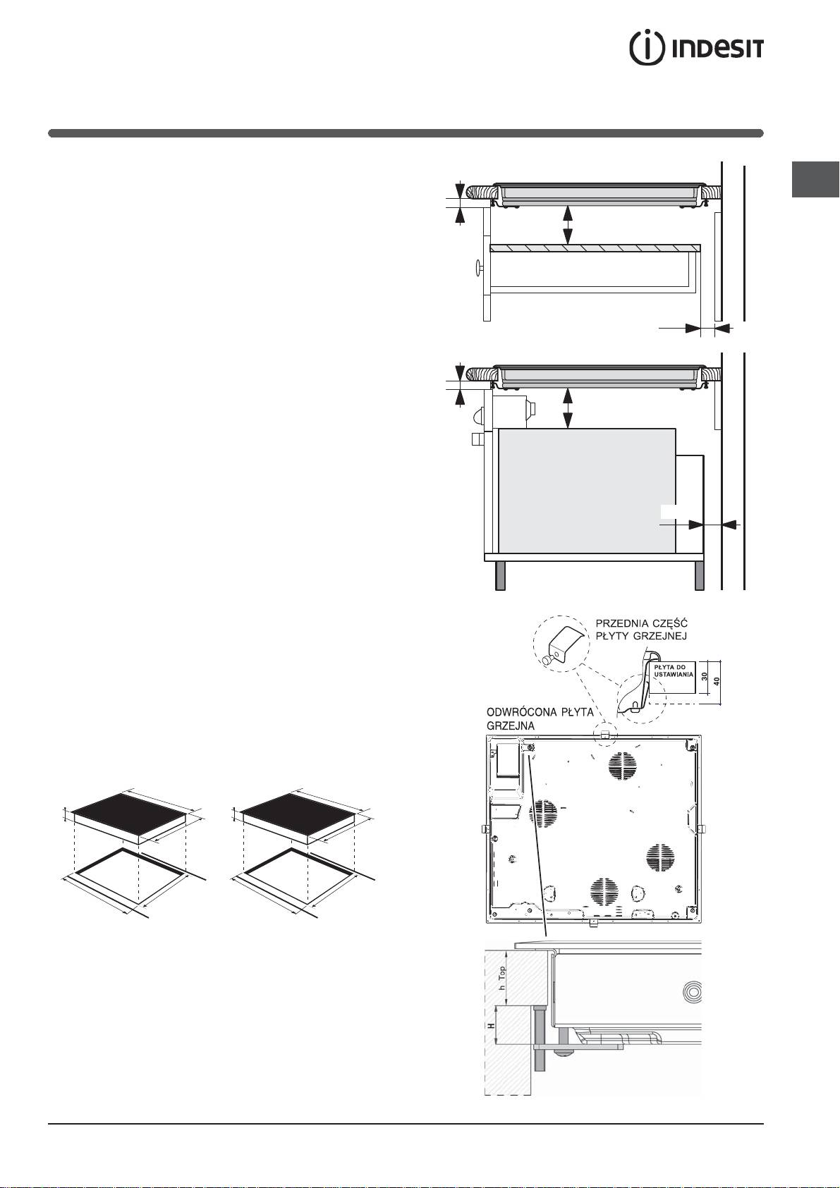
• w odległości co najmniej 40 mm od tylnej ściany lub;
• w taki sposób, aby zachować odległość minimum
20 mm pomiędzy przestrzenią do zabudowy a
znajdującym się pod nią meblem.
• Meble znajdujące się obok, a których wysokość przekracza
wysokość płyty roboczej, powinny zostać odsunięte
przynajmniej na 600 mm od krawędzi płyty roboczej.
67

Podłączenie jednofazowe
Mocowanie
PL
Płyta jest wyposażona w kabel
Urządzenie powinno być zainstalowane na idealnie
zasilający przygotowany do
płaskim blacie.
podłączenia jednofazowego.
Ewentualne odkształcenia, spowodowane
Należy połączyć przewody
nieprawidłowym zamocowaniem, mogą być przyczyną
zgodnie z tabelą i z rysunkami
zmiany właściwości urządzenia i, w konsekwencji,
umieszczonymi poniżej:
wpływając niekorzystnie na jego pracę.
Inne typy podłączeń
Długość śruby regulacyjnej uchwytów
mocujących
należy ustawić przed ich zamontowaniem,
na podstawie
Jeśli instalacja elektryczna posiada jedną z
grubości blatu:
następujących cech:
• grubość 30 mm: śruba 17,5 mm;
Typowe napięcie i częstotliwość sieci
• grubość 40 mm: śruba 7,5 mm.
• 400V - 2+N ~ 50/60 Hz
W celu zamocowania urządzenia należy wykonać
• 220-240V 3 ~ 50/60 Hz
następujące czynności:
• 230-240V 3 ~ 50/60 Hz
1. Przy pomocy krótkich śrub bez łba przykręcić 4
• 400V - 2+2N ~ 50/60 Hz
sprężyny centrujące do otworów umieszczonych w
środkowej części każdego boku płyty;
Oddzielić kable i połączyć przewody zgodnie z tabelą i
2. umieścić płytę grzejną w meblu, wyśrodkować ją i
z rysunkami umieszczonymi poniżej:
wywrzeć odpowiedni nacisk na cały jej obwód, tak aby
Typowe napięcie i
Kabel elektryczny
Połączenie przewodów
częstotliwość sieci
płyta dobrze przylegała do blatu.
3. w przypadku płyt z profi lami bocznymi: po
400V - 2+N ~
: żółty/zielony;
50/60 Hz
zainstalowaniu płyty grzejnej w meblu umieścić 4
N: 2 przewody
230-240V 3 ~
niebieskie razem
uchwyty mocujące (każdy ze sworzniem) na dolnym
220-240V 3 ~
L1: czarny
obwodzie płyty grzejnej i przykręcić je d
ługimi śrubami z
50/60 Hz
L2: brązowy
łbem w taki sposób, aby szkło przylegało do blatu.
: żółty/zielony;
! Śruby sprężyn centrujących muszą pozostać
400V - 2+2N ~
N1: niebieski
dostępne.
50/60 Hz
N2: niebieski
! Zgodnie z normami bezpieczeństwa, po zabudowaniu
L1: czarny
L2: brązowy
urządzenia nie powinien być możliwy kontakt z jego
elementami elektrycznymi.
Typowe napięcie i
Kabel elektryczny Połączenie przewodów
częstotliwość sieci
! Wszystkie części, które stanowią zabezpieczenie,
powinny być zamocowane w taki sposób, aby nie
: żółty/zielony;
230-240V 1+N ~
N
: 2 przewody niebieskie razem
można było ich zdjąć bez użycia narzędzia.
220-240V 1+N ~
50/60 Hz
L
: brązowy razem z czarnym
Podłączenie do sieci elektrycznej
Jeśli instalacja elektryczna posiada jedną z
następujących cech:
! Podłączenie do sieci elektrycznej płyty grzejnej
Typowe napięcie i częstotliwość sieci
oraz ewentualnego pieca do zabudowy powinno
• 400V 3 - N ~ 50/60 Hz
być wykonane oddzielnie, zarówno ze względów
należy wykonać następujące czynności:
bezpieczeństwa elektrycznego, jak i dla ułatwienia
czynności związanych z wyjmowaniem pieca.
! Ewentualny kabel znajdujący się w wyposażeniu
urządzenia nie nadaje się do tego typu instalacji.
Skrzynka zaciskowa
W dolnej części urządzenia znajduje się puszka
1. Nalezy zastosowac kabel zasilajacy typu H05RR-F
umożliwiająca podłączenie różnych typów zasilania
lub o wyzszych wlasciwosciach, posiadajacy
elektrycznego (rysunek jest przykładowy i może
odpowiednie wymiary (przekrój kabla: 25 mm).
przedstawiać inny model niż zakupiony).
2. Przy pomocy srubokretu podwazyc zatrzaski pokrywy
skrzynki zaciskowej i otworzyc ja (patrz rysunek
Skrzynka zaciskowa).
3. Odkręcić śrubę zacisku kabla oraz śruby zacisków
odpowiadających danemu typowi podłączenia i
68

zainstalować śruby łączące w kształcie U zgodnie z
! W przypadku nieprzestrzegania tych zasad,
PL
tabelą i z rysunkami znajdującymi się poniżej:
producent nie ponosi żadnej odpowiedzialności.
4. Ułożyć przewody zgodnie z tabelą i z rysunkami
! Nie usuwać ani zamieniać przewodu zasilającego z
znajdującymi się poniżej i wykonać podłączenie
jakiego kolwiek powodu. Usunięcie lub wymiana będzie
całkowicie dokręcając wszystkie śruby zacisków.
powodem utracenia gwarancji i znaku CE. INDESIT
Typowe napięcie i
Połączenia elektryczne Skrzynka zaciskowa
zwolniony jest z jakiejkolwiek odpowiedzialności
częstotliwość sieci
za wypadki lub szkody wynikają
ce z usunięcia lub
400V 3-N ~
Trójfazowa 400
wymiany oryginalnego przewodu zasilającego.
50/60 Hz
Dozwolona jest tylko wymiana przewodu na oryginalny,
5. Zamocować kabel zasilający w odpowiednim zacisku
a wymiany ma dokonać upoważniony personel z
i zamknąć pokrywę.
INDESIT.
1
2
3
Trójfazowa 400
5
4
Rozszerzalne pola grzejne
Niektóre modele posiadają rozszerzalne pola grzejne.
Mogą one mieć różny kształt i różną rozszerzalność
Podłączenie kabla zasilającego do sieci
(płyta podwójna lub potrójna). Przedstawione są tu
ich komendy sterowania, dostępne tylko w modelach
W przypadku bezpośredniego podłączenia do sieci
wyposażonych w te opcje.
pomiędzy urządzeniem a siecią, należy zainstalować
wyłącznik wielobiegunowy z minimalnym otwarciem
Płyta rozszerzalna okrągła
między stykami wynoszącym 3 mm.
! Instalator odpowiada za prawidłowe wykonanie
podłączenia elektrycznego i za zachowanie norm
bezpieczeństwa.
Przed podłączeniem urządzenia, należy się upewnić
czy:
• gniazdko posiada uziemienie i jest zgodne z
obowiazujacymi przepisami;
• gniazdko jest w stanie wytrzymac maksymalne
obciazenie mocy urzadzenia wskazane na tabliczce
znamionowej plyty;
• Przycisk WLACZENIA PODWÓJNEJ PLYTY do
• napięcie zasilania odpowiada wartościom podanym
aktywacji podwójnej plyty (patrz Uruchomienie i
na tabliczce znamionowej;
uzytkowanie).
• gniazdko jest kompatybilne z wtyczką urządzenia.
• Kontrolka W£¥CZENIA PODWÓJNEJ P£YTY:
Jeśli gniazdko nie jest kompatybilne, należy
sygnalizuje włączenie podwójnej płyty.
wymienić gniazdko lub wtyczkę; nie stosować
• Przycisk WLACZENIA POTRÓJNEJ PLYTY do
przedłużaczy ani rozgałęziaczy.
aktywacji potrójnej plyty (patrz Uruchomienie i
uzytkowanie).
! Po zainstalowaniu urządzenia kabel elektryczny i
• Kontrolka W£¥CZENIA POTRÓJNEJ P£YTY:
gniazdko prądu powinny być łatwo dostępne.
sygnalizuje włączenie potrójnej płyty.
! Kabel nie powinien być pogięty ani przygnieciony.
! Kabel elektryczny musi byc okresowo sprawdzany i
wymieniany wylacznie przez autoryzowany personel
techniczny.
69

Uruchomienie i
użytkowanie
! Klej stosowany do uszczelek pozostawia na szkle
na wyswietlaczu bedzie wskazany ustawiony poziom
mocy. Aby wylaczyc te funkcje, nalezy nacisnac i
PL
tłuste plamy. Przed przystąpieniem do eksploatacji
urządzenia zaleca się usunąć te plamy przy pomocy
przytrzymac wcisniety przez co najmniej 2 sekundy
odpowiedniego produktu nieposiadającego właściwości
przycisk wyboru pola grzejnego
, dla którego
ściernych. Podczas pierwszych godzin działania
funkcja jest wlaczona, lub wybrac inny poziom mocy za
urządzenia może być wyczuwalny zapach gumy, który
jednak szybko zanika.
pomoca przycisków
- i +.
! Kiedy płyta grzejna zostanie podłączona do zasilania
elektrycznego, po kilku sekundach włącza się krótki
Elementy grzejne
sygnał dźwiękowy. Dopiero po tym sygnale można
włączyć płytę grzejną.
Na plycie grzejnej, w zaleznosci od modelu, moga
byc zainstalowane dwa typy elementów grzejnych:
! Dluzsze nacisniecie przycisków - i + umozliwia
halogenowe i promiennikowe.
szybki wybór poziomów mocy i minut regulatora
Elementy halogenowe przekazują ciepło poprzez
czasowego.
promieniowanie zawartej w nich żarówki halogenowej.
Charakteryzują się własnościami, które przypominają
Włączanie płyty grzejnej
typowe własności gazu: szybką reakcją na sterowanie i
wyświetlaniem mocy chwilowej.
Płytę grzejną włącza się trzymając wciśnięty przycisk
Elementy promiennikowe sa zbudowane z duzej liczby
zwojów, które zapewniaja równomierne rozlozenie
przez około sekundę.
ciepla na dno naczynia, dzieki czemu uzyskuje sie
doskonale wyniki gotowania na wolnym ogniu: jest to
Włączanie pól grzejnych
idealne rozwiazanie w przypadku takich potraw jak na
przyklad duszone miesa, sosy lub dania do podgrzania.
Każde pole grzejne jest aktywowane za pomocą
Blokada sterowania
przycisku wyboru
oraz regulatora mocy
składającego się z podwójnego przycisku
- i +.
Kiedy płyta grzejna jest w trakcie pracy, można
• Aby włączyć pole grzejne, należy nacisnąć jego
zablokować jej sterowanie, aby uniknąć
przycisk sterowania i ustawić żądaną moc za
niebezpieczeństwa przypadkowej zmiany ustawień
(dzieci, czynności konserwacyjne, itp.). Po naciśnięciu
pomocą przycisków
- i +.
przycisku
sterowanie zostaje zablokowane i włącza
się kontrolka umieszczona nad tym przyciskiem.
Wyłączanie pól grzejnych
Aby przywrócić możliwość dokonywania regulacji (np.
przerwać gotowanie), należy odblokować sterowanie:
Aby wyłączyć pole grzejne, należy je wybrać za
nacisnąć na chwilę przycisk
, kontrolka wyłączy się,
pomocą jego przycisku wyboru
i:
a sterowanie zostanie odblokowane.
• Nacisnąć przycisk
-: moc pola grzejnego stopniowo
Wyłączanie płyty grzejnej
spada, aż do jego wyłączenia.
Funkcja power
Po naciśnięciu przycisku urządzenie wyłącza się.
Jeśli sterowanie zostało zablokowane, pozostanie ono
Aby przyspieszyc czas nagrzewania pól grzejnych,
zablokowane również po ponownym włączeniu płyty
mozna wlaczyc funkcje power. Wlaczyc zadane pole
grzejnej. Aby móc ponownie włączyć płytę, należy
najpierw odblokować jej sterowanie.
grzejne
i ustawic jego moc zgodnie z opisem
zawartym w poprzednim rozdziale. Nacisnac i
przytrzymac wcisniety przez co najmniej 2 sekundy
przycisk wyboru pola grzejnego
. Na wyswietlaczu,
na wskazniku mocy, przez caly czas konieczny dla
osiagniecia zadanego poziomu mocy wyswietla sie
naprzemiennie litera „P” oraz wczesniej ustawiony
poziom mocy. Po osiagnieciu zadanego poziomu mocy
70

Przegrzanie
Praktyczne porady dotyczące
PL
użytkowania urządzenia
W przypadku przegrzania elementów elektronicznych
płyta grzejna wyłącza się automatycznie, a na
Aby uzyskać jak najlepsze wyniki użytkowania płyty
wyświetlaczu pojawia się symbol
F, po którym
grzejnej:
następuje pulsująca cyfra. Komunikat ten znika i płyta
• Stosować garnki z płaskim dnem i znacznej grubości,
grzejna może być znowu użytkowana zaraz jak tylko
aby mieć pewność, że dokładnie przylegają do pola
temperatura spadnie do akceptowalnego poziomu.
grzejnego.
Wyłącznik bezpieczeństwa
Urządzenie jest wyposażone w wyłącznik
bezpieczeństwa, który automatycznie wyłącza pola
• Stosować garnki o średnicy wystarczającej do
grzejne, kiedy zostanie osiągnięty graniczny czas ich
całkowitego przykrycia pola grzejnego, tak aby
użytkowania na danym poziomie mocy. W przypadku
zapewnić wykorzystanie całego ciepła;
zadziałania wyłącznika bezpieczeństwa wyświetlacz
wskazuje „0”.
Przyklad: prawe tylne pole grzejne jest ustawione
na 5, natomiast lewe przednie pole grzejne na
2. Prawe tylne pole wylaczy sie po 5 godzinach
• Upewnić się czy dno garnka jest zawsze dokładnie
dzialania, lewe przednie po 8 godzinach.
osuszone i czyste, aby zagwarantować dokładne
Poziom mocy
Graniczny czas działania w godzinach
przyleganie i długotrwałość użytkowania zarówno pól
1
9
grzejnych, jak i garnków.
• Unikać stosowania tych samych garnków co
2
8
używane na palnikach gazowych: skupienie ciepła w
3
7
przypadku palników gazowych może odkształcić dno
garnka, przez co nie będzie on dokładnie przylegać;
4
6
5
5
Urządzenia zabezpieczające
6
Rozpoznawanie naczyń
4
7
3
Każde pole grzejne posiada system rozpoznawania
8
naczyń. Pole grzejne wydziela ciepło wyłącznie, jeśli
2
znajduje się na nim garnek o dostosowanej do niego
9
1
wielkości. Pulsująca kontrolka może wskazywać na:
Sygnał dźwiękowy
• nieodpowiedni garnek
• garnek o zbyt małej średnicy
Niektóre anomalie, takie jak:
• uniesienie garnka
• umieszczenie przedmiotu (garnka, sztućca itp.) na
ponad 10 sekund w strefi e panelu sterowania,
Wskaźniki ciepła szczątkowego
• zalanie strefy panelu sterowania,
• długi nacisk na jakiś przycisk, mogą spowodować
Każde pole grzejne posiada wskaźnik ciepła
włączenie się sygnału dźwiękowego. Aby przerwać
szczątkowego. Wskaźnik ten sygnalizuje, które pola
sygnał dźwiękowy, należy usunąć przyczynę
grzejne mają jeszcze wysoką temperaturę. Jeśli
nieprawidłowości działania. Jeśli przyczyna anomalii
na wyświetlaczu mocy jest wyświetlony symbol
nie zostanie usunięta, sygnał dźwiękowy pozostanie
, pole grzejne jest jeszcze ciepłe. Można na przykład
włączony a płyta wyłączy się.
pozostawić na nim danie, aby nie wystygło, albo
roztopić masło lub czekoladę. Kiedy temperatura pola
grzejnego spadnie, na wyświetlaczu mocy pojawi się
symbol
. Wyświetlacz wyłączy się, kiedy pole grzejne
będzie dostatecznie zimne.
71

Praktyczne porady dotyczące gotowania
PL
ª
Gotowanie pod ciśnieniem
Smażenie
Garnek ciśnieniowy
dużym ogniu
Gotowanie na
•
Grilowanie Gotowanie
•
Naleśniki Gotowanie na dużym ogniu i przysmażanie
ogniu
(Pieczenie, Befsztyki, Zrazy, Filety rybne,
na dużym
Gotowanie
Smażone jajka)
¶
¶
Szybkie zagęszczenie (Płynne sosy)
Woda gorąca (Makarony, Ryż, Warzywa)
Mleko
§
§
Wolne zagęszczanie (Sosy gęste)
S
Gotowanie na średnim ogniuGotowanie na
S
Gotowanie na wodzie
Gotowanie pod ciśnieniem po gwizdku
¢
¢
£
Gotowanie na wolnym
Podgrzewanie potraw
ogniu (mięso duszone)
wolnym ogniu
™
™
ogniu
Czekolada rozpuszczona Utrzymywanie potraw w temperaturze
wolnym
Gotowanie
na bardzo
¡
72

Zalecenia i środki ostrożności
!
Urządzenie zostało zaprojektowane i wyprodukowane
z dużą zawartością cukru. Szczególnie uważać
PL
zgodnie z międzynarodowymi normami bezpieczeństwa.
na wszelkie opakowania i taśmy plastikowe lub
Poniższe ostrzeżenia dotyczą zasad bezpieczeństwa i
aluminiowe: ich pozostawienie na jeszcze gorących
należy je uważnie przeczytać.
lub ciepłych powierzchniach może spowodować
poważne uszkodzenie płyty.
Niniejsze urządzenie jest zgodne z następującymi
• Należy się upewniać, czy uchwyty garnków są
dyrektywami unijnymi:
zawsze zwrócone w kierunku wewnętrznej części
płyty grzejnej, aby uniknąć ich przypadkowego
- 2006/95/EWG z 12/12/06 (Niskie napiecie) wraz z
potrącenia.
pózniejszymi zmianami
• Nie wyciągać wtyczki z gniazdka ciągnąc za kabel -
- 2004/108/EWG z 15/12/04 (Kompatybilność
należy trzymać za wtyczkę.
elektromagnetyczna) wraz z późniejszymi zmianami
• Nie czyścić urządzenia ani nie wykonywać czynno
ści
- 93/68/EWG z 22/07/93 wraz z późniejszymi zmianami.
konserwacyjnych bez uprzedniego odłączenia
- 1275/2008 stand-by/off mode.
wtyczki od sieci elektrycznej.
• Nie jest przewidziane, aby urządzenie było używane
przez osoby (w tym dzieci) o ograniczonych
Ogólne zasady bezpieczeństwa
możliwościach fi zycznych lub umysłowych, przez
osoby bez doświadczenia lub bez znajomości
!
Sprawdzać, czy wlot powietrza poprzez kratkę wentylatora
urządzenia, chyba że pod nadzorem osoby
nigdy nie jest zatkany. Zabudowana płyta grzejna wymaga
odpowiedzialnej za ich bezpieczeństwo, jak również
dobrego obiegu powietrza dla zapewnienia chłodzenia
przez osoby, które nie zostały zapoznane ze
elementów elektronicznych.
wstępnymi instrukcjami dotyczącymi użytkowania
• Niniejsze urządzenie przeznaczone jest do użytku
urządzenia.
domowego.
• Jeśli są, nie patrzeć długo na gorące pole
• Nie należy instalować urządzenia na zewnątrz, nawet
alogenowe.
w zadaszonym miejscu, ponieważ wystawienie go na
• Nie dopuścić aby dzieci bawiły się urządzeniem.
działanie deszczu i burz jest bardzo niebezpieczne.
• Zabronić dzieciom bawienia się z urządzeniem.
• Nie dotykac urzadzenia stojac przy nim boso lub majac
• Na płycie nie należy kłaść metalowych przedmiotów (noży,
mokre albo wilgotne rece badz stopy.
łyżek, pokrywek itp.), ponieważ mogą si
ę nagrzewać.
• Urządzenie powinno być używane przez osoby
• Urządzenie nie jest przeznaczone do tego,
dorosłe jedynie w celach kulinarnych, zgodnie
aby było włączane przy użyciu zewnętrznego
ze wskazówkami zawartymi w instrukcji
przekaźnika czasowego lub osobnego systemu
użytkownika. Wszelkie inne próby użycia
sterowania zdalnego.
urządzenia (np. do ogrzewania pomieszczeń)
uważa się za niewłaściwe i niebezpieczne.
Producent nie ponosi odpowiedzialności
za uszkodzenia wynikające z niewłaściwej i
Utylizacja
nierozsądnej eksploatacji urządzenia.
• Utylizacja opakowania: należy stosować się do lokalnych
• Plyta szklano-ceramiczna jest odporna na uderzenia,
przepisów, dzięki temu opakowania będą mogły zostać
moze jednak ulec uszkodzeniu (lub ewentualnie
poddane reutylizacji.
peknieciu), jesli zostanie uderzona ostrym przedmiotem,
• Dyrektywa europejska 2002/96/WE w sprawie zużytego
np. jakims narzedziem. W takim przypadku nalezy
sprzętu elektrycznego oraz elektronicznego (RAEE)
natychmiast odlaczyc urzadzenie od zasilania
przewiduje, że domowe urządzenia elektryczne nie
elektrycznego i wezwac Serwis Techniczny.
mogą podlegać zwykłemu cyklowi utylizacji stałych
• Należy uważać, aby przewody zasilające pozostałe
odpadów miejskich. Zużyte urządzenia powinny być
domowe urządzenia elektryczne nie stykały się z
zbierane oddzielnie w celu zoptymalizowania stopnia
rozgrzanymi elementami pł
yty grzejnej.
odzysku i recyklingu materiałów, które zawierają, oraz
• Nie nalezy zapominac, ze temperatura pól grzejnych
aby zapobiec potencjalnym szkodom dla zdrowia i
pozostaje wysoka przez co najmniej trzydziesci minut
środowiska. Symbol przekreślonego kosza umieszczony
po ich wylaczeniu. Cieplo szczatkowe jest równiez
na wszystkich produktach przypomina o obowiązku
sygnalizowane przez odpowiedni wskaznik (patrz
selektywnego gromadzenia tych odpadów.
Uruchomienie i uzytkowanie).
W celu uzyskania bliższych informacji dotyczących
• Utrzymywać w odpowiedniej odległości od płyty
prawidłowego złomowania sprzętu domowego,
grzejnej każdy przedmiot, który może się stopić,
użytkownicy mogą się zwrócić do właściwych służb
np. przedmioty plastikowe, aluminiowe lub produkty
miejskich lub do skupujących go sprzedawców.
73

Konserwacja i utrzymanie
Odłączenie prądu elektrycznego
produktem do konserwacji i ochrony: jego niewidoczna
Przed każdą czynnością należy odłączyć urządzenie od sieci
warstwa chroni powierzchnię w przypadku wykipienia
PL
zasilania elektrycznego.
potraw podczas gotowania. Zaleca się wykonywanie tych
czynności, gdy urządzenie jest letnie lub zimne.
Mycie urządzenia
• Należy pamiętać, aby zawsze spłukać płytę czystą wodą i
!
Unikać stosowania środków czyszczących o właściwościach
dokładnie ją osuszyć: resztki produktów mogłyby bowiem
ściernych lub korozyjnych, takich jak produkty w sprayu do
przykleić się do jej powierzchni podczas następnego
barbecue i piecyków, odplamiacze i środki przeciwrdzewne,
gotowania.
detergenty w proszku oraz gąbki z powierzchnią ścierającą:
mogą one w sposób nieodwracalny zarysować powierzchnię.
Rama ze stali nierdzewnej (tylko w modelach z ramka)
!
Do czyszczenia urzadzenia nigdy nie nalezy uzywac
Na stali nierdzewnej moga powstac plamy w przypadku
oczyszczaczy parowych lub wysokocisnieniowych.
pozostawienia na jej powierzchni przez dluzszy czas bardzo
twardej wody lub w przypadku stosowania srodków czystosci
• W ramach zwykłej konserwacji wystarczy przemywać
zawierajacych fosfor.
płytę wilgotną gąbką i osuszać ją papierowym ręcznikiem
Zaleca się obfi cie spłukać i dokładnie osuszyć płytę po
kuchennym.
umyciu. W przypadku rozlania wody, należy j
ą jak najszybciej
• Jeśli płyta jest szczególnie silnie zabrudzona, wyczyścić
dokładnie wytrzeć.
ją przy pomocy odpowiedniego produktu do czyszczenia
powierzchni szklano-ceramicznych, spłukać i osuszyć.
!
Niektóre płyty grzejne mają ramkę aluminiową, która jest
• W celu eliminacji najtrudniejszych do usunięcia
podobna do ramki ze stali nierdzewnej. Nie należy stosować
zanieczyszczeń posługiwać się odpowiednią skrobaczką.
produktów do mycia i odtłuszczania innych niż przeznaczone
Usuwać zanieczyszczenia zaraz jak tylko jest to możliwe,
do aluminium.
nie czekając aż urządzenie ostygnie, tak aby resztki
żywności nie stwardniały. Znakomite wyniki można
Demontaż płyty
uzyskać stosując gąbkę drucianą ze stali nierdzewnej
W razie konieczności zdemontowania płyty grzejnej:
- specjalną do szklano-ceramicznych płyt grzejnych -
1. odkręcić śruby przy pomocy których sprężyny centrujące są
nasączoną
wodą i mydłem.
przymocowane do boków płyty;
• Jeśli na płycie grzejnej stopią się przypadkowo przedmioty
2. poluzować śruby uchwytów mocujących w rogach;
lub materiały, takie jak plastik albo cukier, należy je usunąć
3. wyjąć płytę grzejną z mebla.
przy pomocy skrobaczki, dopóki powierzchnia jest jeszcze
ciepła.
!
Odradza się ingerencję w wewnętrzne mechanizmy
• Po oczyszczeniu płyta może zostać pokryta odpowiednim
urządzenia z zamiarem dokonania naprawy. W przypadku
awarii skontaktować się z Serwisem.
Opis techniczny modeli
W tych tabelach podane są, kolejno dla każdego modelu, wartość pochłanianej energii, typ elementu grzejnego oraz
średnica każdego pola grzejnego.
Legenda:
H = hilight pojedyncze
HD = hilight podwójne
HT = hilight potrójne
AD = halogenowe podwójne
74
Płyty grzejne
VRA 640 X S
VRA 641 D B S
VRA 641 D X S
Pola grzejne
Moc (w W)
Œrednica (w mm)
Moc (w W)
Œrednica (w mm)
Tylne lewe
HD 2300
210
HT 2200/1000
230/180/120
Tylne prawe
H 1400
160
H 1400
145
Przednie lewe
H 1200
145
H 1200
145
Przednie prawe
HD 1800
180
H 1800
180
Moc całkowita
6700
6600
VRA 640 C SVRA 640 C S

Монтаж
! Важно сохранить данное руководство для его
RS
последующих консультации. В случае продажи,
передачи изделия или при переезде на новое
место жительства необходимо проверить, чтобы
min. 20 mm
руководство оставалось вместе с изделием, для
того чтобы его новыи владелец мог ознакомиться
с правилами эксплуатации и с соответствующими
5 mm
Ящик
предупреждениями.
! Внимательно прочитаите инструкции: в них
содержатся важные сведения о монтаже изделия,
min. 40 mm
его эксплуатации и безопасности.
Расположение
! Не разрешаите детям играть с упаковочными
материалами. Упаковка должна быть уничтожена
в соответствии с правилами сбора мусора (см.
min. 20 mm
Предосторожности и рекомендации).
! Монтаж изделия производится в соответствии
5 mm
с данными инструкциями квалифицированными
Вентилируемая
специалистами. Неправильный монтаж изделия
может стать причиной повреждения имущества и
причинить ущерб людям и домашним животным.
min. 40 mm
Встроенный монтаж
Для обеспечения исправного функционирования
встраиваемого изделия кухонный модуль должен
иметь соответствующие характеристики:
• поверхность кухонного топа должна быть из
материала, устойчивого к температуре примерно
100°C;
• если варочная панель устанавливается над
духовым шкафом, он должен быть оснащен
системой охлаждения с принудительной
вентиляцией.
• не рекомендуется устанавливать варочную
панель над посудомоечными машинами: при
необходимости установите между варочной
панелью и посудомоечной машиной герметичную
разделительную вставку;
• в зависимости от модели варочной панели,
которую вы устанавливаете (см. схемы),
размеры
ниши в кухонном модуле должны быть
следующими:
590
574
48
48
520
504
560 +/- 1
560 +/- 1
490 +/- 1
490 +/- 1
Вентиляция
Для обеспечения надлежащей вентиляции и во
избежание
перегрева прилегающих поверхностеи варочная
панель должна быть установлена:
• на минимальном расстоянии 40 мм от задней
стенки;
75

• между проемом под варочную панель и
соответствовать модели вашего изделия).
расположенным снизу кухонным элементом
RS
должно быть расстояние не менее 20 мм.
Монофазное соединение
• Кухонные элементы, расположенные рядом с
Варочная панель
кухонной плитой, высота которых превышает
оснащена сетевым
уровень варочной панели, должны находиться на
кабелем, рассчитанным на
расстояние не менее 600 мм от края варочной
монофазное электропитание.
панели.
Подсоедините провода в
соответствии с таблицеи и
Крепление
приведенным ниже схемам:
Типовое
Электрический провод Подсоединение
Изделие должно быть установлено на идеально
напряжение
проводов
и частота сети
ровнои поверхности.
: желто-зеленый;
Возможные деформации, вызванные неправильным
креплением, могут привести к изменениям
230-240V 1+N ~
N: 2 синий провода
220-240V 1+N ~
характеристик и эксплуатационных качеств
50/60 Hz
вместе на
варочнои панели.
L: коричневый
вместе с черным
Длина регуляционного винта крепежных крюков
регулируется перед началом монтажа по толщине
Другие типы соединений
кухонного топа:
• толщина 30 мм: длина винта 17,5 мм;
Если электропроводка соответствует однои из
• толщина 40 мм: длина винта 7,5 мм;
следующих характеристик:
Типовое напряжение и частота сети
Порядок крепления изделия:
• 400В - 2+N ~ 50/60 Гц
1. При помощи коротких тупых шурупов
• 220-240В 3 ~ 50/60 Гц
привинтите 4 центровочные пружины в отверстиях,
• 230-240B 3 ~ 50/60 Hz
расположенных по бокам варочнои панели;
• 400В - 2+2N ~ 50/60 Гц
2. Вставьте варочную панель в проем в кухонном
модуле, выровняите и слегка нажмите в центр
Разделите провода и подсоедините проводники
вплодь до идеального
прилегания варочнои панели
в соответствии с таблицеи и приведенным ниже
к поверхности кухонного топа.
схемам:
3. для варочных панелеи с боковыми профилями:
Типовое
Электрический провод Подсоединение
вставив варочную панели в нишу кухонного модуля,
напряжение
проводов
и частота сети
вставьте 4 крепежных крюка (каждыи со своим
штифтом) по нижнему периметру варочнои панели,
: желто-зеленый;
400V - 2+N ~
закручивая их длинными острыми болтами до
50/60 Hz
N: 2 синий провода
тех пор, пока стекло не будет плотно прилегать к
230-240V 3 ~
вместе на
кухонному топу.
220-240V 3 ~
L1: черный
50/60 Hz
! Важно, чтобы шурупы центровочных пружин
L2: коричневый
оставались доступными.
: желто-зеленый;
! В соответствии с правилами безопасности после
400V - 2+2N ~
N1: синий
установки изделия в кухонныи модуль должна быть
50/60 Hz
N2: синий
исключена возможность касания к электрическими
L1: черный
частями.
L2: коричневый
! Все защитные элементы должны быть закреплены
Если электропроводка соответствует однои из
таким образом, чтобы их можно было снять только
следующих характеристик:
при помощи специального инструмента.
Типовое напряжение и частота сети
• 400В 3 - N ~ 50/60 Гц
Электрическое подключение
выполните следующее:
! Электрическое подключение варочнои панели и
возможного встраиваемого духового шкафа должно
! Возможныи прилагающиися сетевои кабель нельзя
выполняться раздельно по причинам безопасности,
использовать для такого типа монтажа.
а так же для легкого съема духового шкафа.
1. Используите надлежащии сетевои кабель типа
H05RR-F или с большим значением, надлежащего
Клеммная колодка
размера (сечение кабеля: 25 мм).
В нижнеи части изделие оснащено колодкои для
2. При помощи отвертки поднимите язычки крышки
подсоединения разных видов электропитания
клеммнои колодки и откроите ее (см. изображение
(рисунок приводится для примера и может не
клеммнои колодки).
76

3. Отвинтите прижимнои винт провода и винты
! Производитель не несет ответственности за
зажимов, соответствующих типу необходимого
RS
последствия несоблюдения перечисленных
соединения, затем установите соединительные
выше требовании.
перемычки согласно таблице и приведенным ниже
! Категорически запрещается отсоединять и не
схемам.
заменять сетевой кабель. В случае отсоединения
4. Расположите проводники согласно таблице и
или замены сетевого кабеля гарантия на изделие
приведенным ниже схемам и подсоедините их, до
аннулируется, равно как и маркировка ЕС. Компания
упора закрутив все винты зажимов.
INDESIT снимает с себя всякую ответственность
Типовое напряжение
Электропитание Зажимная коробка
за несчастные случаи или ущерб, вызванный
и частота сети
отсоединением или заменой оригинального
400V 3-N ~
сетевого кабеля. Допускается замена только на
Трехфазный 400
50/60 Hz
оригинальный сетевой кабель,
выполняемая
5. Зафиксируите сетевои кабель в специальном
техником, уполномоченным Компанией INDESIT.
кабельном сальнике и закроите крышку.
Расширяющиеся варочные зоны
В некоторых моделях имеются расширяющиеся
Трехфазное 400
1
2
3
варочные зоны. Они могут быть разнои формы
и различного радиуса расширения (двоиная или
троиная варочная зона). Ниже приводится описание
соответствующих управлении, имеющихся только в
5
4
моделях, оснащенных этими функциями.
Круглая расширяющаяся варочная зона
Подсоединение сетевого кабеля изделия к сети
электропитания
В случае прямого подключения изделия к сети
необходимо установить между изделием и
электрическои сетью многополярныи разъединитель
с минимальным расстоянием между контактами 3
мм.
! Электромонтер несет ответственность за
правильное подключение изделия к электрическои
• Кнопка ВКЛЮЧЕНИЕ ДВОИНОИ ВАРОЧНОИ
сети и за соблюдение правил безопасности.
ЗОНЫ служит для включения двоинои конфорки
(см. Включение и эксплуатация).
Перед осуществлением электрического
• Индикатор ДВОИНАЯ ВАРОЧНАЯ ЗОНА
подсоединения необходимо проверить следующее:
ВКЛЮЧЕНА: показывает, что двоиная варочная
• сетевая розетка должна быть соединена с
зона включена.
заземлением и соответствовать нормативам;
• Кнопка ВКЛЮЧЕНИЕ ТРОИНОИ ВАРОЧНОИ
• сетевая розетка должна быть расчитана на
ЗОНЫ служит для включения троинои конфорки
максимальную потребляемую мощность
(см. Включение и эксплуатация).
изделия, указанную на паспортнои табличке с
• Индикатор ТРОИНАЯ ВАРОЧНАЯ ЗОНА
техническими характеристиками;
ВКЛЮЧЕНА: показывает, что троиная варочная
• напряжение и частота тока сети должны
зона включена.
соответствовать электрическим данным изделия;
• сетевая розетка должна быть совместима со
штепсельнои вилкои изделия. В противном
случае замените розетку или вилку; не
используите удлинители или троиники.
! Изделие должно быть установлено таким образом,
чтобы сетевои кабель и сетевая розетка были легко
доступны.
! Сетевои кабель изделия не должен быть согнут
или сжат.
! Регулярно проверяите состояние сетевого кабеля
и при необходимости поручаите его замену только
уполномоченным техникам.
77

Включение и
эксплуатация
! На стекляннои поверхности варочнои панели могут
опять будет показываться заданныи уровень
мощности. Для отмены этои функции нажмите и
RS
быть видны сальные следы от клея, нанесенного
на прокладки Перед началом эксплуатации
держите нажатои не менее 2 секунд кнопку
выбора
изделия следует удалить следы клея при помощи
варочнои зоны, для которои была включена функция
специального неабразивного моющего средства. В
, или же задаите другои уровень мощности при
первые часы работы вы можете почувствовать запах
жженои резины, которыи быстро пропадает.
помощи кнопок
- и +.
! Через несколко секунд после подсоединения
Нагревательные элементы
варочнои панели к сети электропитания включается
короткии звуковои сигнал. Только после этого можно
В зависимости от модели вашеи варочнои панели
включить варочную панель.
она может быть укомплектована нагревательными
элементами двух видов: галогенными и
спиральными.
! При длительном нажатии на кнопки - и +
Галогенные элементы передают тепло посредством
происходит быстрая смена уровнеи мощности и
излучения внутреннеи галогеннои лампы.
минут таимера.
Такои принцип нагревания по своим
характеристикам аналогичен типичным газовым
Включение варочной панели
конфоркам: быстрая реакция на управление,
мгновенная визуализация мощности.
Включите варочную панель, нажав кнопку
Спиральныи нагревательныи элемент состоит
примерно на одну секунду.
из нескольких спиральных
сопротивлении,
обеспечивающих однородное распределение
тепла по всему дну посуды для оптимального
Включение варочных зон
приготовления любых блюд на медленном огне:
рагу, соусы или для разогревания готовых блюд.
Каждая зона варочнои панели включается при
помощи кнопки
и регулятора мощности,
Блокировка управлений
состоящего из двоинои кнопки
- и +.
В процессе функционирования варочнои панели
• Для включения однои из варочных зон нажмите
можно заблокировать ее управления во избежание
соответствующую кнопку и настроите нужную
случаиного изменения настроек (дети, в процессе
уборки и т.д.). При помощи кнопки
управления
мощность при помощи кнопок
- и +.
блокируются, и индикатор над этои кнопкои
загорается.
Выключение варочных зон
Для разблокировки управлении (напр., для
прерывания приготовления) необходимо: нажать
Для отключения варочнои зоны выберите ее при
кнопку
на несколько секунд, индикатор погаснет,
помощи соответствующеи кнопки
и затем:
и управления разблокируются.
• Нажмите кнопку
-: мощность варочнои зоны
Выключение варочной панели
постепенно понизится вплоть до выключения.
Функция power
Для выключения изделия нажмите кнопку .
Если управления варочнои панели были
Для ускорения нагрева варочных зон можно
заблокированы, они останутся заблокированными
использовать функцию power. Включите и настроите
также после повторого включения варочнои
панели. Для повторого включения варочнои панели
мощность нужнои варочнои зоны
, как описано
необходимо сначала разблокировать управления.
в предыдущем параграфе. Нажмите и держите
нажатои не менее 2 секунд кнопку выбора нужнои
Практические советы по эксплуатации
варочнои зоны
. На дисплее попеременно
будет показываться индикатор мощности, буква
изделия
«Р» и ранее заданное значение уровня мощности
в течение всего времени, необходимого для
Кроме того для больше эффективности варочнои
достижения заданного уровня мощности. По
панели следует:
достижении заданного уровня мощности на дисплее
78

• Использовать посуду с плоским толстым дном,
Перегрев
RS
идеально прилегающим к зоне нагрева;
В случае перегрева электронных комплектующих
варочная панель автоматически отключается,
и на дисплее появляется
F с мигающим кодом.
Это сообщение пропадает, и варочная панель
• Использовать посуду с дном такого диаметра,
возвращается в рабочии режим, когда температура
чтобы полностью закрыть варочную зону для
опускается до допустимого уровня.
оптимального использования всего выделяемого
тепла.
Предохранительный выключатель
Изделие оснащено предохранительным
выключателем, автоматически отключающим
варочные зоны по истечении времени
• Проверить, чтобы дно используемои посуды
функционирования данного уровня мощности.
было всегда совершенно сухим и чистым для
В процессе аварииного отключения на дисплее
идеального прилегания к варочнои зоне и для
появляется «0».
долгого срока службы как варочнои панели, так и
Пример: задняя правая варочная зона настроена на
самои посуды.
5, передняя левая варочная зона настроена на 2.
• Не следует использовать на даннои варочнои
Задняя правая варочная зона отключается через 5
панели посуду, использованную на газовых
часа работы, передняя левая через 8 часов.
конфорках. концентрация тепла на газовых
Уровень мощности
Макс. кол-во часов функционирования
конфорках может деформировать дно посуды
и
нарушить прилегание к варочнои зоне;
1
9
2
8
Защитные устройства
3
7
Сенсор наличия посуды
4
6
Каждая варочная зона укомплектована сенсором
5
5
наличия посуды. Конфорка выделяет тепло
только при наличии на неи посуды с размерами,
6
4
соответствующими даннои конфорке. Мигающии
7
3
индикатор может означать:
• неподходящая посуда
8
2
• посуда неподходящего диаметра
9
• посуда снята с варочной зоны
1
Звуковая сигнализация
Индикаторы остаточного тепла
Некоторые неисправности такие как:
Каждая варочная зона укомплектована сенсором
• какои-либо предмет (посуда, столовыи прибор
остаточного тепла. Этот инжикатор показывает
и т.д.) находится в зоне управлении более 10
варочные
зоны, еще сохранившие опасное
секунд.
• утчека жидкости на зону управлении;
тепло. Если дисплеи мощности показывает
• при длительном нажатии на кнопку может
, данная варочная зона еще горячая. Например,
включиться звуковои сигнал. Устраните
можно использовать это остаточное тепло для
причину неисправности для гашения звуковои
поддержания блюда теплым или для топления
сигнализации. Если причина неисправности не
масла или шоколада. После охлаждения варочнои
будет устранена, звуковои сигнал
не гасится, и
зоны на дисплее мощности показывается
.
варочная панель выключается.
После полного охлаждения варочнои зоны дисплеи
отключается.
79

Практические советы по приготовлению блюд
RS
ª
Приготовление под давлением
Фритюр
Скороварка
Приготовление
на большом огне
•
Бифштексы Варка
•
огне
Блины Приготовление на среднем огне,
обжаривание (Жаркое, бифштексы,
на среднем
эскалопы, рыбное филе, яичница)
Приготовление
¶
¶
Быстрое загустени (Жидкие соусы)
Кипячение воды (для варки макарон, риса, овощей)
Кипячение молока
§
§
Постепенное загустение (густые соусы)
S
S
Приготовление на умеренном огнеПриготовление
Приготовление на пару
Продолжение приготовление в скороварке
после первого выпуска пара
¢
¢
£
Приготовление на
Разогревание готовых блюд
малом огне (рагу)
на малом огне
™
™
Шоколадный соус Поддержание блюд в горячем состоянии
на самом
малом огне
¡
Приготовление
80




