Enerpac XLP 50 and 75 ton: Foglio di istruzioni
Foglio di istruzioni: Enerpac XLP 50 and 75 ton
13
ATTENZIONE
si usa per indicare procedure e pratiche di
funzionamento o di manutenzione corrette per prevenire
danni o la distruzione dell’attrezzatura o altri danni
materiali.
AVVERTENZA
indica un pericolo potenziale che richiede
l’adozione di procedure e pratiche corrette per evitare
lesioni alle persone.
PERICOLO
viene usato solo quando una determinata
azione o la sua mancata esecuzione può causare gravi
danni o persino la morte.
ATTENZIONE:
Indossare indumenti appropriati quando si
lavora con attrezzatura idraulica.
ATTENZIONE:
Tenere le distanze da carichi supportati con
sistemi idraulici. Un cilindro, se usato come strumento di
sollevamento, non dovrebbe essere mai utilizzato come
uno strumento di tenuta del carico. Una volta abbassato
o sollevato il carico, questo deve essere bloccato
meccanicamente.
ATTENZIONE: UTILIZZARE SOLO PEZZI
RIGIDI PER SOSTENERE I CARICHI.
Selezionare blocchi di acciaio o di legno in
grado di supportare il carico. Non usare mai un
cilindro idraulico come cuneo o spaziatore in
nessuna applicazione di sollevamento o di pressione.
PERICOLO:
Per evitare lesioni personali
tenere mani e piedi lontani dal cilindro e dal
pezzo in lavorazione durante il funzionamento.
ATTENZIONE:
Non superare i valori normali dell’attrezzo.
Non tentare di sollevare un carico che pesa più della forza
del cilindro. Il sovraccarico causa danni all’attrezzatura
e eventuali lesioni personali. I cilindri sono progettati
per sopportare una pressione massima di 700 bar. Non collegare
un martinetto o un cilindro ad una pompa con una pressione
nominale superiore.
Non impostare la valvola regolatrice di pressione ad una
pressione superiore alla pressione nominale massima della
pompa. Le impostazioni superiori possono creare danni
alle attrezzature e/o lesioni personali.
ATTENZIONE:
La pressione operativa di sistema non
deve eccedere la pressione nominale del componente con
la pressione nominale più bassa nel sistema. Installare
i manometri nel sistema per monitorare la pressione
di esercizio. Questo fornisce una chiara visione di ciò che accade
nel sistema.
11.0 ISTRUZIONI IMPORTANTI AL RICEVIMENTO
Ispezionare a vista tutti i componenti per eventuali danni di trasporto.
Questo tipo di danno non è coperto da assicurazione. In caso di
danni di trasporto, notificarli subito al trasportatore. Il trasportatore è
responsabile per tutti i costi di riparazione e sostituzione derivanti da
danno durante il trasporto.
2.0 ISTRUZIONI RIGUARDANTI LA SICUREZZA
Leggere attentamente tutte le istruzioni, avvertenze e precauzioni.
Seguire tutte le precauzioni di sicurezza per evitare danni alle persone
o alle cose durante il funzionamento del sistema. Enerpac non sarà
responsabile per i danni o lesioni derivanti da un utilizzo del prodotto
non conforme alle istruzioni di sicurezza, o dalla mancata manutenzione
o da un utilizzo e/o azionamento scorretto del prodotto. Contattare
Enerpac in caso di dubbi sulle precauzioni e le operazioni di sicurezza.
Se non si ha mai seguito un addestramento relativo alla sicurezza con
i sistemi idraulici ad alta pressione, rivolgersi al proprio rivenditore o
centro di servizio Enerpac per un corso gratuito sulla sicurezza con
i sistemi idraulici. La mancata osservanza dei seguenti avvertimenti
e precauzioni può causare danni alle attrezzature e lesioni personali.
Serie XLP da 50 e 75 ton
Presse per officina
Foglio di istruzioni
EIS 66.112-1
rev. O 05/2014
Le schede delle parti di ricambio per questo prodotto sono disponibili dal sito web di Enerpac www.enerpac.com,
o presso il Centro di Assistenza Autorizzato Enerpac o il rappresentante Enerpac più vicino.
Le presse serie XLP possono essere impostate per eseguire operazioni
di manutenzione e di manipolazione. Ogni pressa è fornita completa
di cilindro, tubo flessibile, attacchi e pompa. La serie XLP include un
sollevatore del pianale inferiore. I blocchi prismatici a V di supporto
per facilitare il posizionamento di tubi e barre sono opzionali.
IT
SICUREZZA IN PRIMO LUOGO
14
4.0 CONNESSIONI IDRAULICHE
ATTENZIONE:
Ispezionare tutti i tubi flessibili idraulici
per assicurarsi che i fissaggi e gli attacchi siano serrati
e non presentino perdite. Verificare le posizioni dei tubi
flessibili per essere sicuri che non vengano danneggiati
durante l’azionamento della pressa. Serrare tutte le connessioni
completamente, senza esagerare.
4.1 Cilindri a semplice effetto (Vedere Figura 2)
1.
Collegare l’adattatore del manometro all’uscita della pompa
o valvola
2.
Collegare il manometro all’uscita NPTF sull’adattatore
del manometro
3.
Collegare il raccordo a gomito 3/8” all’uscita dell’adattatore
del manometro
4. Collegare l’estremità filettata maschio del tubo flessibile al raccordo
a gomito 3/8”
5. Collegare l’attacco del tubo flessibile all’attacco corrispondente sul
cilindro a semplice effetto.
NOTA:
Accertarsi che tutti gli attacchi siano completamente innestati.
5.0 REGOLAZIONE DEL PIANALE
5.1 Modelli da 50 e 75 ton
Per alzare o abbassare il pianale, sollevare il piano di appoggio in modo
che il peso non si trovi più sui perni del piano di appoggio. Estrarre i
perni e posizionarli sotto il piano di appoggio. Alzare o abbassare il
piano di appoggio all’altezza desiderata e inserire nuovamente i perni
sotto di esso.
6.0 AZIONAMENTO
6.1 Installazione del sistema
ATTENZIONE:
Per un azionamento sicuro, verificare tutte
le installazioni e fissaggi del carico sulla pressa.
Collocare il pezzo al centro e tutte le parti di installazione sulla linea
di forza. Se si impiegano spaziatori nell’impostazione, essi dovranno
essere costituiti di un unico pezzo solido o saldato per consentire
la stabilità.
ATTENZIONE:
Prima di azionare la pressa, assicurarsi
che tutti i perni di supporto del pianale siano inseriti
completamente e che gli anelli di ritenzione siano installati
sulle estremità dei perni del piano di appoggio prima di
applicare la pressione al cilindro o di caricare la pressa.
ATTENZIONE:
Evitare di danneggiare il tubo flessibile
idraulico. Evitare piegature o strozzature dei tubi flessibili
durante il posizionamento. L’utilizzo di tubi flessibili
piegati o schiacciati può causare pressioni di ritorno
elevate. Curvature eccessive e strozzature possono danneggiare le
condutture interne e causare guasti prematuri. Evitare che oggetti
pesanti cadano sul tubo flessibile. Un impatto acuto può causare
danni interni alla struttura dei cavi del tubo flessibile. L’applicazione
di pressione su un tubo flessibile danneggiato può causarne
la rottura.
IMPORTANTE:
Non sollevare l’attrezzatura idraulica dai tubi flessibili
o dagli attacchi girevoli. Utilizzare invece la maniglia di trasporto o altri
mezzi di trasporto sicuri.
ATTENZIONE:
Tenere l’attrezzatura idraulica lontano
dalle fiamme e dal calore. Un calore eccessivo scioglie gli
attacchi e i sigilli e può comportare fuoriuscite di liquido. Il
calore indebolisce inoltre i materiali e gli attacchi del tubo
flessibile. Per prestazioni ottimali, non esporre le apparecchiature a
temperature superiori a 65°C. Proteggere i tubi flessibili e i cilindri da
faville di saldatura.
PERICOLO:
Non maneggiare tubi flessibili sotto
pressione. L’olio sotto pressione fuoriuscito può
penetrare nella pelle e causare lesioni gravi. In caso
di iniezione sottocutanea di olio, rivolgersi ad un
medico immediatamente.
ATTENZIONE:
Utilizzare i cilindri idraulici in un sistema
collegato. Non utilizzare mai un cilindro con gli attacchi
scollegati. Se il cilindro è sovraccarico, i componenti
possono cedere improvvisamente causando gravi lesioni
alle persone.
Evitare
situazioni in cui i carichi non sono direttamente bilanciati sul
pistone del cilindro. Carichi sbilanciati esercitano una forza notevole
sui cilindri e sui pistoni. Inoltre, il carico potrebbe scivolare o cadere
con conseguenze potenzialmente pericolose. Distribuire il carico in
modo uniforme sull’intera superficie della sede. Utilizzare sempre una
sede per proteggere il pistone.
IMPORTANTE:
L’attrezzatura idraulica deve essere riparata solo da un
tecnico idraulico qualificato. Per il servizio di riparazione, contattare il
Centro di assistenza ENERPAC autorizzato più vicino. Per mantenere
la garanzia, utilizzare solo olio ENERPAC.
ATTENZIONE:
Sostituire immediatamente le parti usurate
o danneggiate con parti originali ENERPAC. Parti di qualità
standard potrebbero rompersi e causare lesioni personali
e danni materiali. I ricambi ENERPAC sono progettati per
adattarsi perfettamente e per resistere ad alti carichi.
ATTENZIONE:
Non caricare la pressa con i perni del
pianale posizionati sotto il pianale di pressa. Questo
potrebbe esercitare uno sforzo indebito sul pianale.
ATTENZIONE:
NON fare modifiche alla pressa.
3.0 INSTALLAZIONE
ATTENZIONE:
Fissare la pressa saldamente. Un
posizionamento instabile può causarne il ribaltamento con
conseguenti gravi danni alle attrezzature e alle persone.
Se la pressa viene fissata al suolo o ad altre basi, abbassare il pianale
fino alla posizione più bassa prima di eseguire i fori e di fissarla con
i bulloni. In tal modo si è sicuri che la pressa non si muoverà e che il
pianale sarà in linea con i set di fori dei supporti laterali.
3
IT
Figura 2. Collegamenti idraulici per cilindri a semplice effetto
15
6.2 Scarico dell’aria dal sistema idraulico
NOTA:
Lo scarico dell’aria avverrà più velocemente se i tubi flessibili
sono stati spurgati dall’aria prima di collegarli alle uscite del cilindro.
Estendere e far ritornare il cilindro diverse volte evitando accumuli di
pressione. L’aria è stata rimossa completamente dal cilindro quando il
cilindro si estende e ritorna in modo uniforme.
6.3 Pompe manuali
1. Serrare manualmente la valvola di scarico della pompa
2. Azionare la leva della pompa per creare pressione. Per far ritornare
il cilindro, aprire la valvola di scarico
3. Aprire la valvola di scarico per scaricare la pressione.
6.4 Pompe ad aria
Premere il lato pressione del pedale per attivare l’acceleratore ed
estendere il cilindro alla corsa desiderata. Per far ritornare il cilindro,
premere il rilascio.
6.5 Centraline
1. Per estendere il cilindro, spostare la valvola alla posizione estesa ed
azionare la pompa
2. Spostare la valvola su neutro quando la corsa desiderata viene
raggiunta
3. Per far ritornare il cilindro, spostare la valvola alla posizione di ritorno
e azionare la pompa.
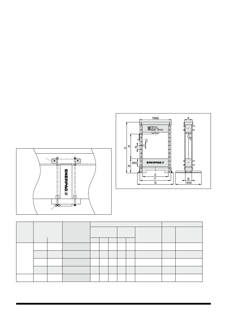
7.0 RIPOSIZIONAMENTO DEL CILINDRO (Vedere Figura 3)
1. Allentare, SENZA RIMUOVERE, il dado ad alette (D) posizionato
sotto la staffa di supporto più bassa del cilindro
2. Spostare il blocco di fissaggio del cilindro (A) nella posizione
desiderata sul telaio della pressa
3. Serrare il dado ad alette (D) saldamente quando il cilindro si trova
nella posizione desiderata.
8.0 MANUTENZIONE
8.1 Sistema idraulico
1. Tenere tutti i componenti idraulici puliti da sporcizia, grasso, schegge
e da attrezzi non necessari
2.
Verificare periodicamente il sistema idraulico per individuare
componenti danneggiati, collegamenti allentati o perdite.
Sostituire o riparare immediatamente i componenti usurati o
con perdite
3. Cambiare l’olio idraulico nel sistema ogni 50 ore di funzionamento
4. Utilizzare solo olio Enerpac. L’impiego di fluidi diversi dall’olio
Enerpac può danneggiare il sistema e rendere nulla la
garanzia Enerpac
5. Per istruzioni complete sui componenti idraulici, fare riferimento alle
istruzioni allegate alla pompa e al cilindro.
8.2 Telaio pressa
1. Tenere l’area di lavoro e il pianale puliti da sporcizia, schegge e da
attrezzi e fissaggi non necessari
2. Controllare periodicamente il telaio della pressa e assicurarsi che
i bulloni siano stretti e che le parti del telaio non presentino danni.
Sostituire o riparare immediatamente i componenti danneggiati
3. Se la verniciatura è seriamente scheggiata, l’unità dovrebbe essere
riverniciata per prevenire la ruggine e mantenere in ordine l’aspetto
del telaio.
IT
D
A
Figura 3
Pressa XLP da 50 e 75 ton
Capacità di
pressione
ton (kN)
Massimo Luce
(mm)
Modello pressa
Pompe
Cilindro
Tipo pompa
Valvola
Modello pompa
Corsa
(mm)
Modello
Verticale Orizzontale
Man.
Elett.
Aria
Man. Elett.
50
(498)
993
990
XLP-506P802 *
•
-
-
•
-
P-802
159
RC-506
993
990
XLP-506XA12G *
-
-
• •
-
XA-12G
159
RC-506
993
990
XLP-506ZES *
-
•
-
-
•
ZE4410SE-E050
156
RR-506
993
990
XLP-5013ZES *
-
•
-
-
•
ZE4410SE-E050
334
RR-5013
75
(718)
989
990
XLP-756XA12G *
-
-
• •
-
XA-12G
156
RC-756
* Presse serie XLP da 50 e 75 tonnellate possono essere ordinate con telaio preassemblato in fabbrica.
Aggiungere il suffisso “M” al numero di modello della pressa. Esempio:
XLP-506XA12G-M.
16
Per mantenere la garanzia,
fare ispezionare e riparare i prodotti da un
Centro di assistenza Enerpac autorizzato
www.enerpac.com
To
p
ro
tec
t your Warr
an
ty
U
se
on
ly Enerp
ac
O
il
To
p
ro
tec
t your Warr
an
ty
U
se
on
ly Enerp
ac
O
il
Guida alla risoluzione dei problemi
Problema
Causa possibile
Soluzione
Il cilindro non si estende,
si estende lentamente o
a tratti.
1. Il livello dell’olio basso nella pompa
2. Valvola di scarico pompa aperta
3. Giunto idraulico allentato
4. Carico troppo pesante
5. Aria intrappolata nel sistema
6. Inceppamento tra cilindro e pistone.
1. Rabboccare l’olio nella pompa
2. Chiudere la valvola di scarico della pompa
3. Verificare che tutti gli attacchi siano completamente serrati
4. Non tentare di applicare un tonnellaggio superiore a
quello nominale
5. Rimuovere l’aria come descritto a §6.2
6. Verificare se sono presenti danneggiamenti al cilindro. Far
riparare il cilindro da un tecnico idraulico qualificato.
Il cilindro si estende ma
non trattiene
la pressione.
1. Perdita in un collegamento
2. Perdite nelle guarnizioni del cilindro
3. Perdita interna nella pompa.
1. Verificare che tutti i collegamenti siano completamente
serrati e senza perdite
2. Individuare le perdite e far riparare l’attrezzatura da un
tecnico idraulico qualificato
3. Far riparare la pompa da un tecnico idraulico qualificato.
Il cilindro non ritorna,
ritorna parzialmente o
ritorna più lentamente
del normale.
1. Serbatoio pompa sovrappieno
2. Giunto idraulico allentato
3. Perdita interna nella pompa.
1. Scaricare l’olio fino al segno di pieno. Vedere le istruzioni
della pompa per il rabbocco dell’olio
2. Verificare che gli attacchi siano completamente serrati
3. Rimuovere l’aria come descritto nelle istruzioni a §6.2.
Sistemi a semplice effetto:
Il cilindro non ritorna,
ritorna parzialmente o
ritorna più lentamente
del normale.
1. Valvola di scarico chiusa
2. Molla di ritorno cilindro rotta o altro guasto al cilindro
3. Attacchi cilindro troppo pesanti per un cilindro a
semplice effetto
4. Giunto non collegato completamente.
1. Aprire la valvola di scarico della pompa
2. Far riparare il cilindro da un tecnico idraulico qualificato
3. Utilizzare un cilindro a doppio effetto per verificare che tutti
gli attacchi siano completamente serrati.
IT
Velocità
(mm/s) **
Dimensioni pressa
(mm)
(kg)
Modello pressa
Avanza-
mento
rapido
Pres-
satura
A
B
D
E
F
G
H
K
N
P
{5,5} **
{0,3} ** 310 240 32 990 1190 1390 1995 210-940 540 150 595
XLP-506P802 *
4,7
0,6
310 240 32 990 1190 1390 1995 210-940 540 150 600
XLP-506XA12G *
10,0
2,0
310 240 32 990 1190 1390 1995 210-940 540 150 660
XLP-506ZES *
10,0
2,0
310 240 32 990 1190 1390 1995 210-940 540 150 700
XLP-5013ZES *
3,2
0,4
420 330 40 990 1240 1430 1995 210-940 540 150 900
XLP-756XA12G *
** {…} = velocità di avanzamento in mm per corsa della pompa manuale.

