Enerpac XLP 50 and 75 ton: Инструкция
Инструкция: Enerpac XLP 50 and 75 ton
45
следующих предостережений и предупреждений может привести к
травмам персонала и повреждению оборудования.
Надпись
ОСТОРОЖНО
используется для указания на
правильные методы работы или выполнения технического
обслуживания, чтобы избежать повреждения или
разрушения оборудования или другого имущества.
Надпись
ПРЕДУПРЕЖДЕНИЕ
указывает на
возможную опасность, требующую точного соблюдения
правил эксплуатации и техники безопасности во
избежание травмы.
Надпись
ОПАСНО
используется только тогда, когда
ваши действия или бездействие могут привести к
получению тяжелой травмы или даже смерти.
ПРЕДУПРЕЖДЕНИЕ.
При работе с гидравлическим
оборудованием используйте надлежащие средства
личной защиты.
ПРЕДУПРЕЖДЕНИЕ.
Не стойте под грузами,
поддерживаемыми гидравлическими устройствами.
Цилиндр, используемый как подъемное устройство, не
должен использоваться для удержания груза. После
поднятия или опускания груза он должен фиксироваться
с помощью механических устройств.
ПРЕДУПРЕЖДЕНИЕ. ДЛЯ ФИКСАЦИИ
ГРУЗОВ ПОЛЬЗУЙТЕСЬ ТОЛЬКО
ЖЕСТКИМИ ПРЕДМЕТАМИ.
Тщательно
выбирайте стальные или деревянные
подкладки, способные удержать груз. Не
используйте гидравлический цилиндр в качестве прокладки или
распорки при подъеме или сжатии груза.
ОПАСНО!
Чтобы избежать травмы, не
прикасайтесь к цилиндру и изделию руками
и ногами во время работы.
ПРЕДУПРЕЖДЕНИЕ.
Не превышайте паспортных
данных оборудования. Не пытайтесь поднять груз,
вес которого превышает грузоподъемность цилиндра.
Перегрузка оборудования приводит к выходу его из
строя и травмам. Данные цилиндры рассчитаны на давление не
более 700 бар. Не подсоединяйте подъемник или цилиндр к насосу с
более высоким давлением.
Не устанавливайте предохранительный клапан на
давление, превышающее максимальное давление
насоса. Установка более высоких параметров может
привести к повреждению оборудования и/или к
получению травмы.
ПРЕДУПРЕЖДЕНИЕ.
Рабочее давление системы не
должно превышать номинальное давление компонента
системы, имеющего минимальное номинальное
давление. Для контроля рабочего давление установите
в системе манометры. С их помощью вы сможете контролировать
состояние системы.
1.0 ВАЖНЫЕ УКАЗАНИЯ ПРИ ПОЛУЧЕНИИ ИЗДЕЛИЯ
Визуально осмотрите все компоненты на предмет повреждения
при доставке. На повреждения при доставке гарантия не
распространяется. Если таковое обнаружится, немедленно
известите об этом транспортную компанию. Транспортная компания
несет ответственность по стоимости за весь ремонт и замену
товара, поврежденного
при транспортировке.
2.0 ТЕХНИКА БЕЗОПАСНОСТИ
Внимательно прочитайте все инструкции, предупреждения и
предостережения. Следуйте всем мерам безопасности во избежание
травм или повреждения имущества во время работы. Enerpac не
может нести ответственность за повреждение имущества или травмы,
происшедшие в результате несоблюдения требований безопасности
при эксплуатации изделий, недостаточного технического
обслуживания или неправильного применения оборудования.
Если имеются сомнения, касающиеся мер предосторожности или
применения оборудования, обращайтесь в компанию Enerpac. Если
вы никогда не проходили обучение правилам техники безопасности
при работе с гидравлическим оборудованием высокого давления,
обратитесь к дистрибутору или сервисный центр компании Enerpac,
чтобы пройти такое обучение бесплатно. Несоблюдение требований
Цеховые прессы (усилие 50 и 75 тонн)
серии XLP
Инструкция
EIS 66.112-1
rev. O 05/2014
Списки запасных частей для этого изделия имеются на сайте Enerpac www.enerpac.com
или в ближайшем к вам сервисном центре Enerpac или коммерческом представительстве Enerpac.
Прессы серии XLP предназначены для выполнения работ по техническому обслуживанию
и формовке. Каждый пресс поставляется в комплекте с цилиндром, шлангом,
соединительными элементами и насосом. Прессы серии XLP оснащены низкорамным
подъемным устройством. Дополнительно предоставляется призматический держатель
для обрабатываемых деталей, призванный упростить размещение труб и прутков.
RU
БЕЗОПАСНОСТЬ – ПРЕЖДЕ ВСЕГО!
46
4.0 ГИДРАВЛИЧЕСКИЕ СОЕДИНЕНИЯ
ОСТОРОЖНО!
Проверьте все гидравлические
шланги, чтобы удостовериться, что фитинги и
соединительные элементы затянуты и не имеют
утечек. Проверьте, чтобы шланги располагались
таким образом, чтобы предотвратить какие-либо повреждения во
время работы пресса. Полностью (но не чрезмерно) затяните все
соединительные элементы.
4.1 Цилиндры одностороннего действия (см. рис. 2)
1.
Подсоедините переходник для манометра к выпускному
отверстию насоса или клапана
2. Присоедините манометр к отверстию с внутренней конической
резьбой на переходнике для манометра
3. Подсоедините резьбовое колено 3/8 к выпускному отверстию
переходника для манометра
4. Присоедините конец гидравлического шланга с наружной резьбой
к резьбовому колену 3/8
5. Присоедините соединительный элемент гидравлического шланга
к соответствующему соединительному элементу на цилиндре
одностороннего действия.
ПРИМЕЧАНИЕ.
Убедитесь, что все соединения полностью
зафиксированы в надлежащем положении.
5.0 РЕГУЛИРОВКА ОПОРЫ ПРЕССА
5.1 Модели с усилием 50 и 75 тонн
Чтобы поднять или опустить раму пресса, поднимите подштамповую
плиту так, чтобы ее вес больше не держался на ее пальцах. Выдвиньте
установочные пальцы, расположенные под подштамповой
плитой. Поднимите или опустите подштамповую плиту на нужную
высоту и повторно установите пальцы, расположенные под
подштамповой плитой.
6.0 ЭКСПЛУАТАЦИЯ
6.1 Система
ПРЕДУПРЕЖДЕНИЕ.
Проверьте все устройства
пресса и грузозахватные приспособления на предмет
безопасного функционирования.
Отцентруйте обрабатываемую деталь и все компоненты установки на
линии приложения силы. Если в устройстве используются распорки,
они должны представлять собой цельный блок или должны быть
сварены прихваточным швом для обеспечения устойчивости.
ПРЕДУПРЕЖДЕНИЕ.
Прежде чем приступить к
работе с прессом, повысить давление в цилиндре или
подвергнуть пресс нагрузке, убедитесь, что все опорные
пальцы полностью вставлены, а предохранительные
кольца установлены на пальцах подштамповой плиты.
ОСТОРОЖНО!
Не допускайте повреждения
гидравлического шланга. При прокладке гидравлических
шлангов не допускайте изгибов под острым углом и
петель. Использование изогнутого или петлеобразного
шланга приведет к значительному противодавлению.
Изгибы под острым углом и петли приводят к повреждению
внутренней поверхности шланга и преждевременному выходу его
из строя. Не допускайте падения на шланг тяжелых предметов.
Сильные удары могут привести к повреждению внутренних
проволочных жил шланга. Подача давления в поврежденный шланг
может привести к его разрыву.
ЭТО ВАЖНО!
Не поднимайте гидравлическое оборудование за
шланги или вертлюжные соединения. Пользуйтесь рукоятками,
предназначенными для переноски, или другими средствами
безопасной транспортировки.
ОСТОРОЖНО!
Не допускайте воздействия пламени и
тепла на гидравлическое оборудование. Чрезмерный
нагрев приведет к размягчению сальников и уплотнений
и последующим утечкам жидкости. Кроме того, при
нагреве материал шлангов и сальники становятся
менее прочными. Для обеспечения оптимального режима работы
не допускайте нагрева оборудования до температуры 65°С и выше.
Предохраняйте шланги и цилиндры от брызг металла при сварке.
ОПАСНО!
Не перемещайте шланги, находящиеся под
давлением. Масло, вытекающее под давлением, может
повредить кожу и привести к тяжелым травмам. Если
под кожу попало масло, немедленно обратитесь к врачу.
ПРЕДУПРЕЖДЕНИЕ.
Пользуйтесь только
гидравлическими цилиндрами, подключенными к
системе. Не пользуйтесь цилиндрами с отсоединенными
соединительными муфтами. При крайней перегрузке
цилиндра возможно аварийное разрушение его компонентов, что
может привести к тяжелым травмам.
Избегайте
ситуаций, при которых нагрузка приложена не по оси
плунжера цилиндра. Приложенные не по оси нагрузки вызывают
значительные напряжения в цилиндрах и плунжерах. Кроме
того, груз может соскользнуть или упасть, что может привести
к опасным последствиям. Равномерно распределяйте нагрузку
по всей поверхности пяты. Для предохранения плунжера всегда
пользуйтесь пятой.
ЭТО ВАЖНО!
Обслуживание гидравлического оборудования
должно выполняться только квалифицированным специалистом
по гидравлике. Для выполнения ремонта обратитесь в
авторизированный сервисный центр ENERPAC. Чтобы сохранить
право на гарантию, используйте только масло ENERPAC.
ПРЕДУПРЕЖДЕНИЕ.
Изношенные или поврежденные
части должны немедленно заменяться частями от
компании-изготовителя ENERPAC. Обычные части
качества выйдут из строя, нанося травмы и повреждая
имущество. Оригинальные части от компании ENERPAC правильно
устанавливаются и выдерживают большие нагрузки.
ПРЕДУПРЕЖДЕНИЕ.
Не нагружайте пресс, если
установочные пальцы расположены под опорой
пресса. В таком случае опора пресса будет испытывать
чрезмерную нагрузку.
ПРЕДУПРЕЖДЕНИЕ.
ЗАПРЕЩАЕТСЯ вносить
изменения в конструкцию пресса.
3.0 УСТАНОВКА
ПРЕДУПРЕЖДЕНИЕ.
Надежно зафиксируйте пресс.
Неустойчивое положение пресса может привести к его
опрокидыванию, вследствие чего возможны серьезные
травмы или повреждение оборудования.
Если пресс устанавливается на полу или каком-либо другом
основании, прежде чем выполнять сверление и закрепление
болтами, необходимо опустить опору пресса до самого нижнего
ряда отверстий. Таким образом пресс не будет поворачиваться, а
его опора будет находиться вровень со всеми рядами отверстий в
ножках.
3
RU
Рис. 2. Гидравлические соединения для цилиндров одностороннего
действия
47
6.2 Удаление воздуха из гидравлической системы
ПРИМЕЧАНИЕ.
Удаление воздуха пройдет быстрее, если из
шлангов выпустить воздух до того, как они будут подсоединены к
отверстиям цилиндра.
Несколько раз выдвиньте и втяните цилиндр, избегая повышения
давления. Если цилиндр выдвигается и втягивается плавно, значит,
воздух полностью удален из системы.
6.3 Ручные насосы
1. Плотно закройте палец выпускного клапана
2. Чтобы повысить давление, используйте ручку насоса. Давление
будет поддерживаться, пока не будет открыт выпускной клапан
3. Откройте выпускной клапан, чтобы стравить давление.
6.4 Пневматические насосы
Нажмите на сторону нагнетания на ножном приводе, чтобы
активировать дроссель и выдвинуть цилиндр на нужную длину
хода. Чтобы втянуть цилиндр, нажмите на сторону сброса давления.
Нажмите на педаль нагнетания на ножном приводе, чтобы
активировать дроссель и выдвинуть цилиндр на нужную длину
хода. Чтобы втянуть цилиндр обратно, нажмите на педаль сброса
давления.
6.5 Насосы с электроприводом.
1.
Чтобы выдвинуть цилиндр, переместите клапан в положение
выдвижения и запустите насос
2.
По достижении нужной длины хода переместите клапан в
нейтральное положение
3.
Чтобы втянуть цилиндр, переместите клапан в положение
втягивания и запустите насос.
7.0 ПЕРЕМЕЩЕНИЕ ЦИЛИНДРА (см. рис. 3)
1. Ослабьте (НЕ СНИМАЯ) барашковую гайку (D), расположенную
под нижним опорным кронштейном цилиндра
2. Передвиньте монтажный блок цилиндра (A) в нужное положение
на раме пресса
3.
Плотно затяните барашковую гайку (D), когда цилиндр будет
находиться в нужном месте.
8.0 ТЕХНИЧЕСКОЕ ОБСЛУЖИВАНИЕ
8.1 Гидравлическая система
1.
Следите за тем, чтобы на гидравлических компонентах не
было грязи, смазки, продуктов износа деталей и ненужного
оборудования
2. Периодически проверяйте гидравлическую систему на предмет
поврежденных компонентов, ослабших соединений или утечек.
Незамедлительно выполняйте замену или ремонт компонентов с
повреждениями или утечками
3. Меняйте гидравлическое масло в системе через каждые 50 часов
эксплуатации
4.
Используйте только гидравлическое масло производства
компании Enerpac. Использование жидкостей, отличных от
гидравлического масла Enerpac может привести к повреждению
системы и аннулированию вашей гарантии от компании Enerpac
5.
Полное руководство по использованию гидравлических
компонентов см. в инструкциях, прилагаемых к насосу и цилиндру.
8.2 Рама пресса
1. Следите за тем, чтобы на рабочем месте и опоре пресса не было
грязи, продуктов износа деталей, а также ненужных инструментов
и зажимных приспособлений
2. Периодически проверяйте раму пресса, чтобы удостовериться
в том, что все болты затянуты и все части рамы целы.
Незамедлительно выполняйте замену или ремонт поврежденных
частей
3. Если краска начинает сильно шелушиться, устройство необходимо
перекрасить для защиты от коррозии, а также для поддержания
аккуратного вида рамы.
RU
D
A
Рис. 3
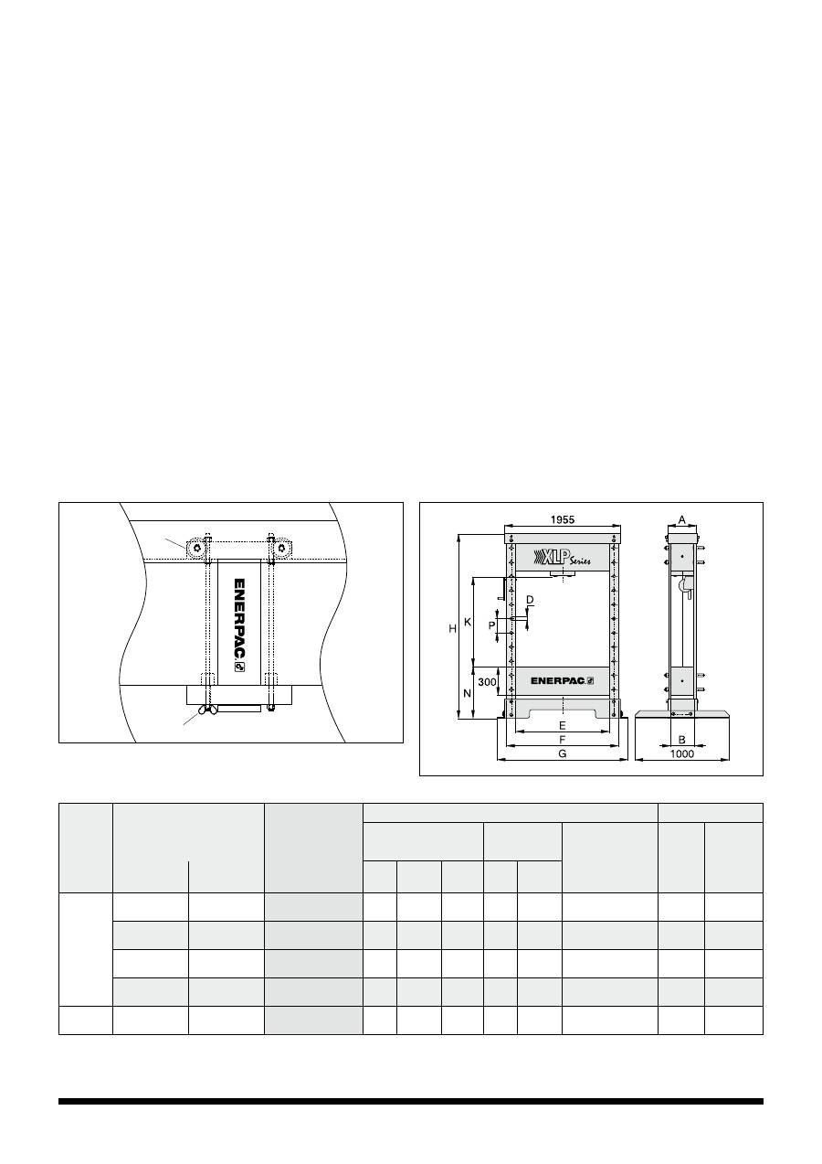
Пресс серии XLP (усилие 50 и 75 тонн)
Усилие
пресса
тонн (кН)
Максимальный
проем
(mm)
Номер
модели пресса
Источник энергии
Cylinder
Тип насоса
Valve Type
Номер
модели насоса
Длина
хода
(мм)
№
модели
По вертикали
По
горизонтали
Ручн
.
Электр. Воздух Ручн
.
Электр.
50
(498)
993
990
XLP-506P802 *
•
-
-
•
-
P-802
159
RC-506
993
990
XLP-506XA12G *
-
-
•
•
-
XA-12G
159
RC-506
993
990
XLP-506ZES *
-
•
-
-
•
ZE4410SE-E050
156
RR-506
993
990
XLP-5013ZES *
-
•
-
-
•
ZE4410SE-E050
334
RR-5013
75
(718)
989
990
XLP-756XA12G *
-
-
• •
-
XA-12G
156
RC-756
* 50- и 75-тонные прессы серии XLP можно заказать с рамой заводской сборки.
Добавьте букву M к номеру модели пресса. Например:
XLP-506XA12G-M.
48
Для сохранения гарантии оборудование должно
осматриваться и ремонтироваться специалистами
из авторизированного сервисного центра Enerpac
www.enerpac.com
To
p
ro
tec
t your Warr
an
ty
U
se
on
ly Enerp
ac
O
il
To
p
ro
tec
t your Warr
an
ty
U
se
on
ly Enerp
ac
O
il
Руководство по выявлению и устранению неисправностей
Проблема
Возможная причина
Решение
Цилиндр не выдвигается,
выдвигается медленно
или рывками.
1. Низкий уровень масла в насосе
2. Открыт выпускной клапан насоса
3. Ослабшая гидравлическая муфта
4. Слишком высокая нагрузка
5. В систему попал воздух
6. Заедание плунжера цилиндра.
1. Добавьте масло согласно инструкциям к насосу
2. Закройте выпускной клапан насоса
3. Проверьте, полностью ли затянуты все соединения
4. Не пытайтесь превысить установленный тоннаж
5. Удалите воздух в соответствии с инструкциями на §6.2
6. Проверьте цилиндр на наличие повреждений. Поручите
обслуживание цилиндра квалифицированному
специалисту-гидравлику.
Цилиндр выдвигается, но
не сохраняет давление.
1. Утечка в соединении
2. Утечка в уплотнениях цилиндра
3. Внутренняя утечка в насосе.
1. Убедитесь, что все соединения затянуты и не имеют
утечек
2. Найдите утечку(-и) и поручите обслуживание
оборудования квалифицированному специалисту-
гидравлику
3. Поручите обслуживание насоса квалифицированному
специалисту-гидравлику.
Цилиндр не
возвращается в
исходное положение,
возвращается частично
или возвращается
медленнее, чем обычно.
1. Переполнен резервуар насоса
2. Ослабшая гидравлическая муфта
3. Внутренняя утечка в насосе.
1. Слейте масло до отметки уровня. См. информацию о
добавлении масла в инструкции к насосу
2. Убедитесь, что все соединения полностью затянуты
3. Удалите воздух в соответствии с инструкциями на §6.2.
Системы одностороннего действия:
Цилиндр не
возвращается в
исходное положение,
возвращается частично
или возвращается
медленнее, чем обычно.
1. Закрыт выпускной клапан
2. Повреждена пружина возврата цилиндра или другое
повреждение цилиндра
3. Дополнительные приспособления слишком тяжелы
для цилиндра одностороннего действия
4. Соединительный элемент не полностью подсоединен.
1. Откройте выпускной клапан насоса
2. Поручите обслуживание цилиндра квалифицированному
специалисту-гидравлику
3. Используйте цилиндр двустороннего действия, чтобы
проверить, полностью ли затянуты все соединительные
элементы.
RU
Скорость
(мм/с) **
Размеры
(мм/с) **
(кг)
Номер
модели пресса
Быстрое
выдвижение
Прессование
A
B
D
E
F
G
H
K
N
P
{5,5} **
{0,3} **
310 240 32 990 1190 1390 1995 210-940 540 150 595
XLP-506P802 *
4,7
0,6
310 240 32 990 1190 1390 1995 210-940 540 150 600
XLP-506XA12G *
10,0
2,0
310 240 32 990 1190 1390 1995 210-940 540 150 660
XLP-506ZES *
10,0
2,0
310 240 32 990 1190 1390 1995 210-940 540 150 700
XLP-5013ZES *
3,2
0,4
420 330 40 990 1240 1430 1995 210-940 540 150 900
XLP-756XA12G *
** {…} = скорость выдвижения в мм на ход ручного насоса.

