Enerpac XLP 50 and 75 ton: Návod
Návod: Enerpac XLP 50 and 75 ton
41
hydraulická zařízení. Nedodržování následujících upozornění a
varování by mohlo vést k poškození zařízení a ke zranění osob.
UPOZORNĚNÍ
se používá k označení správných
postupů při provozu nebo údržbě a opatření zamezujících
poškození nebo zničení zařízení nebo jiného majetku.
VAROVÁNÍ
označuje potenciální nebezpečí, které si žádá
správné postupy nebo opatření zamezující zranění osob.
NEBEZPEČÍ
se používá jen v případě, že vaše jednání
nebo nezasáhnutí může způsobit vážné zranění nebo
dokonce smrt.
VAROVÁNÍ:
Při práci s hydraulickým vybavením používejte
řádné ochranné pomůcky.
VAROVÁNÍ:
Nestůjte v těsné blízkosti břemen
podpíraných hydraulickými zařízeními. Válec, když
se používá jako zařízení pro zvedání břemen, by
se nikdy neměl používat jako zařízení pro držení
břemen. Po zvednutí nebo spuštění je nutné břemeno vždy
mechanicky zablokovat.
VAROVÁNÍ: PRO DRŽENÍ BŘEMEN
POUŽÍVEJTE POUZE PEVNÉ KUSY.
Pečlivě vyberte ocelové nebo dřevěné bloky,
které vydrží podpírat břemeno. Při zvedání
ani při lisování nikdy nepoužívejte hydraulický válec jako vložku ne
bo rozpěrku.
NEBEZPEČÍ:
Aby nedošlo ke zranění, při
provozu dávejte pozor, aby válec a obrobek
nezasáhl vaše ruce a nohy.
VAROVÁNÍ:
Nepřesáhněte jmenovité hodnoty zařízení.
Nikdy se nepokoušejte zvedat břemeno těžší, než je
kapacita válce. Přetížení způsobí selhání zařízení a
možné zranění. Válce jsou určeny pro max. tlak 700 bar.
Nepřipojujte zvedák ani válec k čerpadlu s vyšším jmenovitým tlakem.
Nikdy nenastavujte pojistný ventil na vyšší tlak, než je
maximální jmenovitý tlak čerpadla. Vyšší nastavení by
mohlo způsobit poškození zařízení anebo zranění.
1.0 DŮLEŽITÉ POKYNY PŘI PŘIJETÍ
Vizuálně zkontrolujte, zda nedošlo k poškození žádného z komponentů.
Na poškození při přepravě se nevztahuje záruka. Pokud zjistíte, že
při přepravě došlo k poškození, okamžitě informujte dopravce. Za
náklady na opravu a výměnu v souvislosti s poškozením při přepravě
je zodpovědný dopravce.
2.0 BEZPEČNOST
Pečlivě si přečtěte všechny pokyny, varování a upozornění. Dodržujte
všechny bezpečnostní předpisy, abyste při provozu systému
předešli zranění osob nebo škodám na majetku. Společnost
Enerpac neponese odpovědnost za škody nebo zranění způsobené
nebezpečným používáním produktu, nedostatečnou údržbou
nebo nesprávným provozem produktu a/nebo systému. Pakliže
si nejste jistí, pokud jde o bezpečnostní předpisy nebo provoz,
obraťte se na společnost Enerpac. Pokud jste neabsolvovali žádné
školení o bezpečnosti při práci s vysokotlakými hydraulickými
zařízeními, obraťte se na distribuční nebo servisní středisko a
vyžádejte si bezplatný bezpečnostní kurz společnosti Enerpac pro
Série XLP, 50 a 75 t
Dílenské lisy
Návod
EIS 66.112-1
rev. O 05/2014
Seznam náhradních dílů pro tento produkt je k dispozici na webových stránkách Enerpac na adrese www.enerpac.com
nebo v nejbližším autorizovaném servisním středisku společnosti Enerpac nebo u prodejce společnosti Enerpac.
Lisy série XLP je možné využívat pro provádění údržby a tvarování.
Každý lis je dodáván s válcem, hadicí, spojkami a čerpadlem. Lisy série
XLP obsahují zvedací zařízení pro pracovní stůl. Volitelné jsou bloky ve
tvaru V, které slouží k snadnějšímu umísťování trubek a tyčí.
CZ
BEZPEČNOST PŘEDEVŠÍM
42
4.0 HYDRAULICKÁ SPOJENÍ
UPOZORNĚNÍ:
Zkontrolujte všechny hydraulické
hadice, abyste se ujistili, že šroubení a spojky jsou
těsné a nic z nich neuniká. Zkontrolujte polohu hadic,
abyste se ujistili, že jsou umístěny tak, že nemůže dojít
k jejich poškození při provozu zařízení. Všechny spoje plně utáhněte,
ale ne přespříliš.
4.1 Jednočinné válce (viz obrázek 2)
1. Připojte adaptér k výstupu čerpadla nebo ventilu
2. Připojte manometr k závitu pro manometr NPTF na adaptéru
3. Připojte 3/8” závitové koleno k výstupu adaptéru
4.
Připojte konec hydraulické hadice s vnějším závitem k 3/8”
závitovému kolenu
5.
Připojte spojku hydraulické hadice k odpovídající spojce na
jednočinném válci.
POZNÁMKA:
Ujistěte se, že jsou všechny spojky kompletně zajištěny.
5.0 NASTAVENÍ PRACOVNÍHO STOLU LISU
5.1 Modely pro 50 a 75 t
Chcete-li zvednout nebo spustit pracovní stůl, zvedněte desku, aby
vahou nespočívala na kolíkách desky. Vytáhněte kolíky pracovního
stolu umístěné pod deskou. Zvedněte nebo spusťte desku do
požadované výšky a vložte na místo znovu kolíky desky.
6.0 PROVOZ
6.1 Uspořádání systému
VAROVÁNÍ:
Zkontrolujte všechna nastavení systému a
upevnění břemene pro zajištění bezpečného provozu.
Zpracovávaný předmět a všechny součásti sestavy
umístěte na střed na siločáře. Pokud v sestavě použijete rozpěrky,
měly by být sestaveny do jednoho pevného kusu nebo bodově
svařeny pro zajištění stability.
VAROVÁNÍ:
Před tím, než lis začnete používat, se ujistěte,
že jsou plně vloženy všechny podpěrné kolíky pracovního
stolu a zajišťovací kroužky jsou nasazeny na konci kolíků
desky před natlakováním válce nebo zatížením lisu.
UPOZORNĚNÍ:
Dávejte pozor, abyste nepoškodili
hydraulickou hadici. Hydraulické hadice by se neměly
ostře ohýbat ani překrucovat. Použitím ohnuté nebo
překroucené hadice vznikne silný protitlak. Ostré ohýbání
a překrucování poškodí vnitřní část hadice a povede k
jejímu předčasnému selhání. Na hadici nenechávejte spadnout těžké
předměty. Ostrý úder může poškodit vnitřní část lanek v hadici. Tlak
vynaložený na poškozenou hadici může vést k jejímu roztržení.
DŮLEŽITÉ:
Nezvedejte hydraulické zařízení za hadice nebo
otočné spojky. Pro přenos nebo jiný způsob bezpečné přepravy
používejte rukojeť.
UPOZORNĚNÍ:
Uchovávejte hydraulické zařízení mimo
dosah plamenů a horka. Nadměrně vysoká teplota
způsobí změknutí obalů a těsnění a povede k úniku
kapaliny. Horko také oslabuje materiály a obaly hadice.
Pro zajištění optimálního výkonu nevystavujte zařízení
teplotám přesahujícím 65°C. Chraňte hadice a válce před prskáním,
které vzniká při sváření.
NEBEZPEČÍ:
Nemanipulujte s natlakovanými hadicemi.
Olej unikající pod tlakem může proniknout pokožkou a
způsobit závažné zranění. Pokud se olej dostane pod
kůži, okamžitě vyhledejte lékaře.
VAROVÁNÍ:
Ve spojeném systému používejte
pouze hydraulické válce. Nikdy nepoužívejte válec s
nepřipojenými spojkami. Pokud dojde k extrémnímu
přetížení válce, mohou součásti katastrofálně selhat a
způsobit závažné poranění.
Vyhýbejte se
situacím, kdy břemena nejsou přímo na středu na pístu
válce. Břemena umístěná mimo střed vynakládají značný nápor na
válce a písty. Kromě toho břemeno může sklouznout nebo spadnout
a způsobit nebezpečnou situaci. Zajistěte rovnoměrnou distribuci
břemene na celém povrchu koncovky. Vždy používejte koncovku za
účelem ochrany pístu.
DŮLEŽITÉ:
Servis hydraulického zařízení může provádět pouze
kvalifikovaný technik pro hydraulická zařízení. Pokud potřebujete
provést opravu, obraťte se na nejbližší autorizované servisní středisko
společnosti Enerpac. Kvůli zachování záruky používejte pouze
olej ENERPAC.
VAROVÁNÍ:
Opotřebované nebo poškozené součásti
okamžitě vyměňte za originální součásti ENERPAC.
Součásti standardní jakosti se poškodí a mohou způsobit
zranění nebo poškození majetku. Součásti ENERPAC jsou
konstruovány tak, aby měly potřebný tvar a vydržely vysokou zátěž.
VAROVÁNÍ:
Nezatěžujte lis, když jsou čepy pracovního
stolu umístěny pod pracovním stolem. Tím by byl na
pracovní stůl lisu vyvíjen příliš velký tlak.
VAROVÁNÍ:
Lis NEUPRAVUJTE.
3.0 INSTALACE
VAROVÁNÍ:
Lis smontujte tak, aby byl bezpečný.
V důsledku nestabilního umístění by se lis mohl
převrátit, což by mohlo způsobit vážné zranění nebo
poškození zařízení.
Pokud budete lis montovat na podlahu nebo nějaký jiný základ, před
vrtáním a šroubováním spusťte pracovní stůl na úroveň nejnižšího
děrování. Tak zajistíte, že se lis nepřekroutí a že pracovní stůl bude
správně dosedat na všechny sady otvorů v nohách.
3
CZ
Obrázek 2. Hydraulická spojení jednočinných válců
43
6.2 Odvzdušnění hydraulického systému
POZNÁMKA:
Odvzdušnění půjde rychleji, pokud odvzdušníte hadice
před připojením k výstupu válce.
Několikrát válec vysuňte a zasuňte, abyste předešli zvýšení tlaku. Když
se válec hladce vysune a zasune, vzduch se plně uvolní ze systému.
6.3 Ruční čerpadla
1. Zavřete vypouštěcí ventil a volně jej dotáhněte
2. Pomocí páky čerpadla vytvořte tlak. Tlak sel udrží, dokud neotevřete
vypouštěcí ventil
3. Otevřete vypouštěcí ventil pro uvolnění tlaku.
6.4 Pneumatická čerpadla
Stisknutím tlakového pedálu šlapátka aktivujete škrtící ventil a
dostanete válec do požadovaného zdvihu. Pokud chcete válec
zasunout, stiskněte uvolňovací pedál.
6.5 Čerpadla
1. Pro vysunutí válce posuňte ventil do polohy vysunutí a pusťte
čerpadlo
2. Po dosažení požadovaného zdvihu posuňte ventil do neutrální
polohy
3. Pro zasunutí válce posuňte ventil do polohy zasunutí a pusťte
čerpadlo.
7.0 ZMĚNA POLOHY VÁLCE (viz obrázek 3)
1. Povolte, ALE NEVYJÍMEJTE, křídlovou matici (D) umístěnou pod
spodní nosnou konzolí válce
2. Posuňte sestavu montážního bloku válce (A) do požadované polohy
na rámu lisu
3.
Pevně utáhněte křídlovou matici (D), když je válec v
požadované poloze.
8.0 ÚDRŽBA
8.1 Hydraulický systém
1. Dbejte na to, aby všechny hydraulické součásti byly čisté a
neusazovala se na nich nečistota, mastnota, odštěpky a nebylo na
nich nepotřebné vybavení
2. Pravidelně kontrolujte, zda hydraulický systém nemá poškozené
součásti, uvolněné spoje nebo zda nedochází k úniku. Poškozené
nebo netěsnící součásti okamžitě vyměňte nebo opravte
3. Hydraulický olej v systému vyměňujte po 50 hodinách provozu
4. Používejte pouze hydraulický olej Enerpac. Používáním jiných
kapalin než hydraulického oleje Enerpac můžete systém poškodit a
způsobit neplatnost vaší záruky na zařízení Enerpac
5. Úplné pokyny k hydraulickým součástem najdete v pokynech
dodaných s čerpadlem a válcem.
8.2 Rám lisu
1. Udržujte pracoviště a pracovní stůl čistý, aby se na nich neusazovala
nečistota, odštěpky a nebylo na nich nepotřebné nářadí a
spojovací materiál
2. Pravidelně kontrolujte rám lisu, abyste se ujistili, že jsou všechny
šrouby utažené a že součásti rámu nejsou poškozené. Poškozené
součásti okamžitě vyměňte nebo opravte
3. Pokud se začne ve velké míře loupat barva, je nutné zařízení
přebarvit, aby se zamezilo korozi a aby rám vypadal pěkně.
CZ
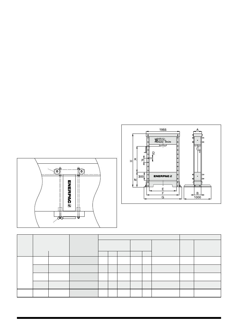
D
A
Obrázek 3
Lis XLP, 50 a 75 t
Výkon
lisu
t (kN)
Maximální
rozsah
(mm)
Lis
Číslo modelu
Zdroj pohonu
Válec
Typ čerpadla
Typ ventilu
Č. modelu
čerpadla
Zdvih
(mm)
Č. modelu
Vertikální Horizontální
Ruč.
El.
Pneum
Ruč.
El.
50
(498)
993
990
XLP-506P802 *
•
-
-
•
-
P-802
159
RC-506
993
990
XLP-506XA12G *
-
-
•
•
-
XA-12G
159
RC-506
993
990
XLP-506ZES *
-
•
-
-
•
ZE4410SE-E050
156
RR-506
993
990
XLP-5013ZES *
-
•
-
-
•
ZE4410SE-E050
334
RR-5013
75
(718)
989
990
XLP-756XA12G *
-
-
• •
-
XA-12G
156
RC-756
* Lisy série XLP na 50 a 75 t lze objednat jako v továrně sestavený lisovací
rám.Přidejte příponu „M“ k číslu modelu lisu. Příklad:
XLP-506XA12G-M.
44
Kvůli zachování záruky si produkt
nechávejte kontrolovat a opravovat autorizovaným
servisním střediskem společnosti Enerpac
www.enerpac.com
To
p
ro
tec
t your Warr
an
ty
U
se
on
ly Enerp
ac
O
il
To
p
ro
tec
t your Warr
an
ty
U
se
on
ly Enerp
ac
O
il
Návod pro řešení problémů
Problém
Možná příčina
Řešení
Válec se nevysouvá,
vysouvá se pomalu
nebo nárazově.
1. Je nízká hladina oleje v čerpadlu
2. Otevřený vypouštěcí ventil čerpadla
3. Uvolněná hydraulická spojka
4. Příliš těžká zátěž
5. V systému se zachytil vzduch
6. Vázne píst válce.
1. Přidejte olej podle pokynů k čerpadlu
2. Zavřete vypouštěcí ventil čerpadla
3. Zkontrolujte, zda jsou všechny spojky utažené
4. Nepokoušejte se použít zatížení vyšší než dovoluje
jmenovitá hodnota
5. Proveďte odvzdušnění podle pokynů na §6.2
6. Zkontrolujte, zda válec není poškozený. Zajistěte, aby válec
opravil kvalifikovaný technik pro hydraulická zařízení.
Válec se vysouvá, ale
neudrží tlak.
1. Netěsnící spoj
2. Uvolněné těsnění válce
3. Vnitřní únik v čerpadle.
1. Zkontrolujte, zda jsou všechna spojení utažená a těsná
2. Najděte místo úniku a zajistěte, aby zařízení opravil
kvalifikovaný technik pro hydraulická zařízení
3. Zajistěte, aby čerpadlo opravil kvalifikovaný technik pro
hydraulická zařízení.
Válec se nezasunuje,
zasunuje se částečně
nebo se zasunuje
neobvykle pomalu.
1. Nádrž čerpadla je přeplněná
2. Uvolněná hydraulická spojka
3. Vnitřní únik v čerpadle.
1. Vypusťte olej tak, aby hladina byla na rysce. Doplňte olej
podle pokynů k čerpadlu
2. Zkontrolujte, zda jsou spojky utažené
3. Proveďte odvzdušnění podle pokynů na §6.2.
Jednočinné systémy:
Válec se nezasunuje,
zasunuje se částečně
nebo se zasunuje
neobvykle pomalu.
1. Zavřený vypouštěcí ventil
2. Zatahovací pružina válce je poškozená nebo došlo k jinému
poškození válce
3. Příslušenství válce je příliš těžké pro jednočinný válec
4. Spojka není plně připojená.
1. Otevřete vypouštěcí ventil čerpadla
2. Zajistěte, aby válec opravil kvalifikovaný technik pro
hydraulická zařízení.
3. Použijte dvojčinný válec, abyste zajistili, že jsou všechny
spojky
plně utažené.
CZ
Rychlost
(mm/s) **
Rozměry
(mm)
(kg)
Lis
Číslo modelu
Rychlé
vysouvání
Tlakování
A
B
D
E
F
G
H
K
N
P
{5,5} **
{0,3} **
310 240 32 990 1190 1390 1995 210-940 540 150 595
XLP-506P802 *
4,7
0,6
310 240 32 990 1190 1390 1995 210-940 540 150 600
XLP-506XA12G *
10,0
2,0
310 240 32 990 1190 1390 1995 210-940 540 150 660
XLP-506ZES *
10,0
2,0
310 240 32 990 1190 1390 1995 210-940 540 150 700
XLP-5013ZES *
3,2
0,4
420 330 40 990 1240 1430 1995 210-940 540 150 900
XLP-756XA12G *
** {…} = rychlost vysunutí v mm za zdvih ručního čerpadla.

