Enerpac XLP 50 and 75 ton: Hoja de Instrucciones
Hoja de Instrucciones: Enerpac XLP 50 and 75 ton
17
avisos y advertencias puede dañar el equipo y conducir a lesiones
personales.
Un
AVISO
se utiliza para indicar los procedimientos de
manejo y mantenimiento correctos y las prácticas para
evitar daños en, o la destrucción del equipo u otras
propiedades.
Una
ADVERTENCIA
indica un posible peligro que
requiere procedimientos o prácticas correctas para evitar
lesiones personales.
Un
PELIGRO
se utiliza sólo cuando su acción o falta de
acción podría causar lesiones graves o incluso la muerte.
ADVERTENCIA:
Use el equipo de protección personal
adecuado cuando utilice el equipo hidráulico.
ADVERTENCIA:
Manténgase alejado de las cargas
soportadas por sistemas hidráulicos. Cuando un
cilindro se utiliza como dispositivo para levantar
una carga, nunca debería usarse como dispositivo
para sostener una carga. Después de que la carga haya
sido levantada o descendida, debe bloquearse siempre en
forma mecánica.
ADVERTENCIA: USE SÓLO PIEZAS
RÍGIDAS PARA SOSTENER CARGAS.
Seleccione cuidadosamente bloques de
acero o de madera capaces de soportar la
carga. Nunca use un cilindro hidráulico como calza o separador en
aplicaciones de levantamiento o presión.
PELIGRO:
Para evitar lesiones personales,
mantenga las manos y los pies alejados
del cilindro y de la pieza de trabajo durante
la operación.
ADVERTENCIA:
No sobrepase el valor nominal del
equipo. Nunca intente levantar una carga que pese
más de la capacidad del cilindro. Una sobrecarga
puede ocasionar un fallo del equipo y posibles lesiones
personales. Los cilindros están diseñados para resistir una presión
máxima de 700 bar. No conecte un gato o cilindro a una bomba cuyo
valor nominal de presión es mayor que el indicado.
Nunca fije la válvula de seguridad a una presión más alta
que el máximo valor nominal de presión de la bomba.
Ajustes superiores pueden resultar en daños al equipo y/o
lesiones personales
ADVERTENCIA:
La presión de operación del sistema
no debe sobrepasar el valor nominal de presión del
componente con el valor nominal más bajo en el sistema.
Instale manómetros de presión en el sistema para vigilar
la presión de operación. Son la ventana hacia lo que está ocurriendo
en el sistema.
1.0 IMPORTANTES INSTRUCCIONES DE RECEPCIÓN
Compruebe visualmente que no haya ningún componente averiado
a causa del transporte. Daños ocasionados por el transporte no
están cubiertos por la garantía. Avise inmediatamente la empresa
transportadora en caso de que se comprueben daños de transporte.
La empresa transportadora es responsable de todos los gastos de
reparación y sustitución resultantes de los envíos dañados.
2.0 ASPECTOS DE SEGURIDAD
Lea todas las instrucciones, advertencias y avisos atentamente.
Observe todas las precauciones de seguridad para evitar lesiones
personales o daños materiales durante el funcionamiento del
sistema. Enerpac no asume ninguna responsabilidad de daños
o lesiones consecuenciales causados por un uso peligroso, falta
de mantenimiento o una operación incorrecta del producto y/o del
sistema. Comuníquese con ENERPAC si tuviese dudas sobre las
precauciones de seguridad o sobre las aplicaciones. Si nunca ha
sido capacitado en seguridad hidráulica de alta presión, consulte a su
distribuidor o centro de servicio para obtener un curso de seguridad
ENERPAC Hydraulic gratuito. Omisión de cumplir con los siguientes
Serie XLP de 50 y 75 toneladas
Prensas de taller
Hoja de Instrucciones
EIS 66.112-1
rev. O 05/2014
Las hojas de despiece para este producto están disponibles en la página web de Enerpac en la dirección www.enerpac.com,
o en su centro de Asistencia Técnica ó punto de venta Enerpac mas cercano.
Las Prensas XLP se utilizan para realizar operaciones de mantenimiento y
conformación. Cada prensa se suministra con cilindro, manguera, acoplado-
res y bomba. Las prensas XLP incluyen un dispositivo de elevación de la ban-
cada inferior. El soporte para piezas ‘bloque con ranura en V’ es opcional para
facilitar la colocación de tubos y barras.
ES
SEGURIDAD PRIMERO
18
4.0 CONEXIONES HIDRÁULICAS
AVISO:
Compruebe todas las mangueras hidráulicas
para asegurarse de que los accesorios y acoplamientos
están apretados y sin fugas. Verifique la posición de las
mangueras para asegurarse de que están situadas de tal
forma que no puedan dañarse durante las operaciones con la prensa.
Apriete bien todas las conexiones, pero no excesivamente.
4.1 Cilindros de simple efecto (Consulte la Figura 2)
1. Conecte el adaptador del manómetro al puerto de salida de la
bomba o la válvula
2. Acople el manómetro al puerto de manómetro NPTF en el adaptador
del manómetro
3. Conecte el codo macho/hembra de 3/8” al puerto de salida del
adaptador del manómetro
4. Acople el extremo con rosca macho de la manguera hidráulica al
codo macho/hembra de 3/8”
5. Acople el acoplamiento de la manguera hidráulica al acoplamiento
correspondiente en el cilindro de simple efecto.
NOTA: Asegúrese de que todos los acoplamientos estén
completamente enganchados.
5.0 AJUSTE DE LA BANCADA DE LA PRENSA
5.1 Modelos de 50 y 75 toneladas
Para subir o bajar la bancada de la prensa, levante el travesaño de
forma que su peso ya no descanse sobre los pasadores del travesaño.
Extraiga los pasadores de la bancada, que se encuentran debajo del
travesaño. Suba o baje el travesaño hasta la altura deseada y reinstale
los pasadores del travesaño debajo del mismo.
6.0 OPERACIÓN
6.1 Montaje del sistema
ADVERTENCIA:
Para una operación segura revise todos
los montajes de la prensa y accesorios de carga.
Centre la pieza de trabajo y todos los componentes de montaje en
la línea de fuerza. Si en el montaje se utilizan calzos, éstos deben
estar construidos de una sola pieza o soldados unos sobre otros para
garantizar estabilidad.
ADVERTENCIA:
Antes de utilizar la prensa, asegúrese de
que todos los pasadores del soporte de la bancada estén
completamente insertados y que los anillos de retención
estén instalados en los extremos de los pasadores del
travesaño antes de presurizar el cilindro o cargar la prensa.
AVISO:
Evite que se dañe la manguera hidráulica.
Evite curvas y pliegues agudos al guiar las mangueras
hidráulicas. Usar una manguera con curvas o pliegues
puede causar una contrapresión excesiva. Curvas y
pliegues agudos causarán daños internos en la manguera y un posible
fallo prematuro. No deje caer objetos pesados sobre la manguera. Un
impacto directo puede causar daños internos a las hebras de alambre
de la manguera. Aplicar presión a una manguera dañada puede
ocasionar que se quiebre.
IMPORTANTE:
No levante el equipo hidráulico por las mangueras
o acopladores giratorios. Utilice la asa u otros medios de
transporte seguros.
AVISO:
Mantenga el equipo hidráulico alejado de
las llamas y el calor. Un calor excesivo ablandará las
juntas y sellos, lo que resultará en fugas de líquidos. El
calor también debilita los materiales de la manguera y
juntas. Para lograr un rendimiento óptimo, no exponga el equipo a
temperaturas de 65°C [150°F] o mayores. Proteja las mangueras y
cilindros de salpicaduras de soldadura.
PELIGRO:
No toque mangueras presurizadas. El aceite
saliente bajo presión puede penetrar la piel y causar
graves lesiones. Consulte inmediatamente un médico, si
ha penetrado aceite debajo de la piel.
ADVERTENCIA:
Use los cilindros hidráulicos
únicamente en sistemas acoplados. Nunca use un
cilindro si los acopladores no están conectados. Si el
cilindro se sobrecarga, los componentes pueden fallar
catastróficamente, lo que causaría lesiones personales graves.
Evite
situaciones en las cuales las cargas no estén directamente
centradas sobre el émbolo del cilindro. Las cargas descentradas
producen un esfuerzo considerable sobre los cilindros y los émbolos.
Además, la carga podría resbalar o caerse, creando situaciones
potencialmente peligrosas.
Distribuya la carga uniformemente sobre la superficie total del asiento
del cilindro. Siempre utilice un asiento para proteger el émbolo.
IMPORTANTE:
El mantenimiento del equipo hidráulico sólo debe ser
realizado por un técnico hidráulico cualificado. Comuníquese con el
Centro de Servicio ENERPAC autorizado en su zona para prestarle
servicio de reparaciones. Use únicamente aceite ENERPAC a fin de
proteger su garantía.
ADVERTENCIA:
Sustituya inmediatamente las piezas
desgastadas o dañadas por piezas originales de
Enerpac. Las piezas de calidad estándar se romperán, lo
que causará lesiones personales y daños a la propiedad.
Las piezas ENERPAC están diseñadas para encajar correctamente y
resistir altas cargas.
ADVERTENCIA:
No cargue la prensa con los pasadores
de la bancada que se encuentran debajo de la bancada
de la prensa. Esto someterá la bancada de la prensa a un
esfuerzo no deseado.
ADVERTENCIA:
NO modifique la prensa.
3.0 INSTALACIÓN
ADVERTENCIA:
Monte la prensa de manera segura. La
colocación inestable puede hacer que la prensa bascule,
con la consiguiente posibilidad de daños a equipos
y personas.
Si la prensa se tiene que montar en el suelo o sobre alguna otra base,
baje la bancada de la prensa hasta la serie de agujeros inferior antes
de taladrar y atornillar. Esto garantizará que la prensa no se mueva
y que la bancada esté alineada con todas las series de agujeros de
las patas.
3
ES
19
6.2 Eliminación del aire del sistema hidráulico
NOTA:
La eliminación del aire se puede realizar más rápidamente si se
purga el aire de la(s) manguera(s) antes de conectarlas a los puertos
del cilindro.
Haga avanzar y retraer el cilindro varias veces, evitando que se forme
presión. El aire se ha extraído completamente del sistema cuando
note que el cilindro avanza y se retrae con facilidad.
6.3 Bombas manuales
1. Cierre la válvula de descarga con la mano
2. Opere el mango de la bomba para crear presión. La presión se
mantendrá hasta que se abra la válvula de descarga
3. Abra la válvula de descarga para liberar presión.
6.4 Bombas accionadas por aire
Presione el lado de presión del pedal para activar el regulador de
presión y avanzar el cilindro hasta la carrera deseada. Para hacer
retroceder el cilindro, presione la descarga
6.5 Bombas eléctricas
1. Para hacer avanzar el cilindro, cambie la válvula a la posición de
avance y haga funcionar la bomba
2. Cambie la válvula a neutro cuando se haya alcanzado la carrera
deseada
3. Para hacer avanzar el cilindro, cambie la válvula a la posición de
retracción y haga funcionar la bomba.
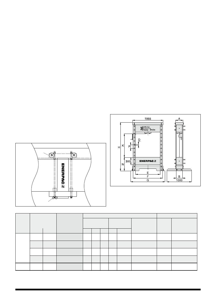
7.0 REPOSICIONAMIENTO DEL CILINDRO (véase figura 3)
1. Afloje, NO QUITE, la tuerca de mariposa (D) que se encuentra bajo
el soporte del cilindro inferior
2. Deslice el bloque de montaje del cilindro (A) a la posición deseada
en el bastidor de la prensa
3. Apriete firmemente la tuerca de mariposa (D) cuando cilindro esté
en la ubicación deseada.
8.0 MANTENIMIENTO
8.1 Sistema hidráulico
1. Mantenga todos los componentes hidráulicos libres de suciedad,
grasa, virutas, y equipos innecesarios
2.
Revise periódicamente el sistema hidráulico en busca de
componentes dañados, conexiones flojas o fugas. Reemplace o
repare inmediatamente componentes dañados o con fugas
3. Cambie el aceite hidráulico en su sistema cada 50 horas de
funcionamiento
4. Use sólo aceite hidráulico Enerpac. El uso de fluidos que no sean
aceite hidráulico Enerpac puede causar daños a su sistema y
puede anular su garantía Enerpac
5. Para instrucciones completas sobre los componentes hidráulicos,
consulte las instrucciones que se entregan con la bomba y el
cilindro.
8.2 Bastidor de la prensa
1. Mantenga el área de trabajo y la prensa libre de suciedad, virutas,
y herramientas y accesorios innecesarios
2. Compruebe periódicamente el bastidor de la prensa para asegurarse
de que todos los pernos estén bien apretados y las piezas del
bastidor en buen estado. Reemplace o repare inmediatamente
piezas dañadas
3. Si comienza a dañarse considerablemente la pintura, debe volverse
a pintar la unidad para prevenir oxidación y mantener el bastidor en
buen estado.
ES
D
A
Figura 3
Prensa XLP de 50 y 75 toneladas
Fuerza de
la prensa
toneladas
(kN)
Abertura Máx.
(mm)
Modelo de
la prensa
Bomba
Cilindro
Tipo de bomba
Tipo de válvula
Modelo de
la bomba
Carrera
(mm)
No. de modelo
Vertical
Horizontal
Man.
Eléc.
Aire
Man.
Eléc.
50
(498)
993
990
XLP-506P802 *
•
-
-
•
-
P-802
159
RC-506
993
990
XLP-506XA12G *
-
-
• •
-
XA-12G
159
RC-506
993
990
XLP-506ZES *
-
•
-
-
•
ZE4410SE-E050
156
RR-506
993
990
XLP-5013ZES *
-
•
-
-
•
ZE4410SE-E050
334
RR-5013
75
(718)
989
990
XLP-756XA12G *
-
-
• •
-
XA-12G
156
RC-756
* Las prensas de 50 y 75 toneladas de la serie XLP se pueden pedir con bastidor de prensa ensamblado en fábrica.
Añada el sufijo “M” para el número de modelo de la prensa. Ejemplo:
XLP-506XA12G-M.
20
Para mantener su garantía, deje revisar
y reparar sus productos por un Centro
de Servicio Autorizado de Enerpac.
www.enerpac.com
To
p
ro
tec
t your Warr
an
ty
U
se
on
ly Enerp
ac
O
il
To
p
ro
tec
t your Warr
an
ty
U
se
on
ly Enerp
ac
O
il
Guía de localización y reparación de averías
Problema
Possible Cause
Solución
El cilindro no avanza,
avanza despacio o a
golpes.
1. El nivel de lubricante en la bomba está bajo
2. La válvula de descarga de la bomba está abierta
3. Acoplamiento hidráulico flojo
4. La carga es muy pesada
5. Retención de aire en el sistema
6. El émbolo del cilindro está agarrotado.
1. Añada aceite de acuerdo a las instrucciones para la bomba
2. Cierre la válvula de descarga de la bomba
3. Compruebe que todas las conexiones estén
perfectamente apretadas
4. No intente aplicar más tonelaje del nominal
5. Extraiga el aire de acuerdo con las instrucciones en la §6.2
6. Compruebe daños en el cilindro. El cilindro debe ser
manipulado por un técnico hidráulico cualificado.
El cilindro avanza, pero
no retiene la presión.
1. Pérdidas de aceite en las conexiones
2. Fugas en las juntas del cilindro
3. Fugas internas en la bomba.
1. Asegúrese de que las conexiones están apretadas y
sin fugas
2. Localice las fugas y haga reparar el equipo por un técnico
hidráulico cualificado
3. Deje revisar la bomba por un técnico hidráulico cualificado.
El cilindro no se retrae,
se retrae en parte o lo
hace más despacio de
lo normal.
1. El depósito de la bomba está rebosado
2. Acoplamiento hidráulico flojo
3. Fugas internas en la bomba.
1. Drene el nivel de aceite hasta la marca Vea las instrucciones
de la bomba para añadir aceite
2. Compruebe que los acoplamientos estén
perfectamente apretados
3. Extraiga el aire de acuerdo con las instrucciones en la §6.2.
Sistemas de simple efecto:
El cilindro no se retrae,
se retrae en parte o lo
hace más despacio de
lo normal.
1. La válvula de descarga está cerrada
2. Resorte de retracción del cilindro roto u otro daño en
el cilindro
3. Los accesorios del cilindro son muy pesados para un
cilindro de simple efecto
4. El acoplamiento no está conectado completamente.
1. Abra la válvula de descarga de la bomba
2. El cilindro debe ser manipulado por un técnico
hidráulico cualificado
3. Utilice cilindro de doble acción para verificar que todos los
acoplamientos estén bien apretados.
ES
Velocidad
(mm/s) **
Dimensiones de la prensa
(mm)
(kg)
Modelo de
la prensa
Avance
rápido
Prensado
A
B
D
E
F
G
H
K
N
P
{5,5} **
{0,3} **
310 240 32 990 1190 1390 1995 210-940 540 150 595
XLP-506P802 *
4,7
0,6
310 240 32 990 1190 1390 1995 210-940 540 150 600
XLP-506XA12G *
10,0
2,0
310 240 32 990 1190 1390 1995 210-940 540 150 660
XLP-506ZES *
10,0
2,0
310 240 32 990 1190 1390 1995 210-940 540 150 700
XLP-5013ZES *
3,2
0,4
420 330 40 990 1240 1430 1995 210-940 540 150 900
XLP-756XA12G *
** {...} = velocidad de avance en mm por carrera de bombas manual.

