Enerpac XLP 50 and 75 ton: Instructieblad
Instructieblad: Enerpac XLP 50 and 75 ton
21
beschadiging van de apparatuur en persoonlijk letsel tot gevolg
hebben.
LET OP
geeft de juiste gebruiks- of
onderhoudsprocedure aan en de werkwijze om schade
aan of vernietiging van de apparatuur of andere
eigendommen te voorkomen.
WAARSCHUWING
geeft een potentieel gevaar aan
dat vraagt om een correcte procedure of juist gebruik
om persoonlijk letsel te voorkomen.
GEVAAR
wordt alleen gebruikt indien wel of niet
uitvoeren van bepaalde handelingen ernstig letsel of
zelfs de dood tot gevolg kan hebben.
WAARSCHUWING:
Draag de juiste beschermende
kleding als u werkt met hydraulische apparatuur.
WAARSCHUWING:
Blijf uit de buurt van lasten
die hydraulisch worden ondersteund. Een cilinder
die wordt gebruikt om te heffen, mag nooit worden
gebruikt om een last vast te houden. Nadat de last
omhoog of omlaag is gebracht, moet deze altijd mechanisch
worden geblokkeerd.
WAARSCHUWING: GEBRUIK ALLEEN
ROBUUSTE MATERIALEN OM EEN
LADING VAST TE ZETTEN.
Kies met zorg
stalen of houten blokken die de lading
kunnen ondersteunen. Gebruik een hydraulische cilinder nooit als
wig of afstandsring tijdens heffen of persen.
GEVAAR:
Houd handen en voeten uit
de buurt van de cilinder en het werkstuk
wanneer u deze gebruikt.
WAARSCHUWING:
Belast de apparatuur niet
zwaarder dan aangegeven. Probeer nooit een lading te
heffen die de capaciteit van de cilinder te boven gaat.
Overbelasting leidt tot storingen van de apparatuur en
mogelijk ook tot persoonlijk letsel. De cilinders zijn geschikt voor
een maximale druk van 700 bar. Sluit geen vijzel of cilinder aan op
een pomp met een hogere drukwaarde.
Stel de veiligheidsklep nooit in op een hogere druk
dan de aangegeven maximale druk van de pomp.
Een hogere instelling kan leiden tot schade aan de
apparatuur en/of persoonlijk letsel.
WAARSCHUWING:
De werkdruk van het systeem
mag niet hoger zijn dan het drukvermogen van het
systeemcomponent met de laagste drukwaarde. Plaats
drukmanometers in het systeem om de werkdruk van
het systeem te bewaken. Deze maken duidelijk wat er in het
systeem gebeurt.
1.0 BELANGRIJKE INSTRUCTIES BIJ ONTVANGST
Controleer alle onderdelen op transportschade. Transportschade
valt niet onder de garantie. Breng de vervoerder onmiddellijk
op de hoogte als u transportschade vaststelt. De vervoerder is
verantwoordelijk voor alle kosten die voortvloeien uit reparaties of
vervanging als gevolg van beschadigingen tijdens vervoer.
2.0 VEILIGHEID
Lees alles instructies en waarschuwingen goed door. Volg
alle veiligheidsvoorschriften op om tijdens het gebruik van het
product persoonlijk letsel en beschadigingen aan eigendommen
te voorkomen. Enerpac aanvaardt geen aansprakelijkheid voor
schade of letsel als gevolg van onveilig gebruik van het product,
onvoldoende onderhoud of het verkeerde gebruik van het product
en/of systeem. Neem bij twijfel over de veiligheidsmaatregelen en
het gebruik contact op met Enerpac. Als u nooit getraind bent
in veiligheid bij hydraulische hogedrukgereedschap, neemt u
contact op met uw distributie- of servicecentrum voor een gratis
Enerpac Hydraulic-veiligheidscursus. Als u zich niet aan de
waarschuwingen houdt die hieronder vermeld worden, kan dit
XLP-serie 50 en 75 ton
Werkplaatspersen
Instructieblad
EIS 66.112-1
rev. O 05/2014
Reparatielijsten voor dit product zijn beschikbaar op de website van Enerpac www.enerpac.com,
het dichtstbijzijnde erkende Enerpac-servicecentrum of Enerpac-verkoopkantoor.
XLP-serie persen kunnen worden gebruikt voor onderhouds- en
vormbewerkingen. Elke pers wordt geleverd met cilinder, slang,
koppelingen en pomp. De persen uit de XLP-serie beschikken over
een in de hoogte verstelbaar onderbed. De V-blokken om pijpen en
staven eenvoudig te positioneren, zijn optioneel.
NL
VEILIGHEID VOOROP
22
4.0 Hydraulische aansluitingen
LET OP:
Controleer of alle fittingen en koppelingen
van de hydraulische slangen goed vastzitten en
er geen lekkages zijn. Controleer of de slangen zo
zijn geplaatst, dat zij tijdens het persen niet kunnen
worden beschadigd. Draai alle verbindingen volledig vast, maar
niet te vast.
4.1 Enkelwerkende cilinders (zie figuur 2)
1. Sluit de manometeradapter aan op de uitlaatpoort van de pomp
of klep
2.
Bevestig de manometer op de NPTF-aansluiting van de
manometeradapter
3.
Monteer de 3/8” elleboog aan de uitlaatpoort van de
manometeradapter
4. Bevestig van de hydraulische slang het einde met de uitwendige
draad aan de 3/8” elleboog
5.
Bevestig de koppeling van de hydraulische slang aan de
bijpassende koppeling op de enkelwerkende cilinder.
OPMERKING:
Zorg ervoor dat alle koppelingen goed vastzitten.
5.0 ONDERBED AANPASSEN
5.1 50 en 75 ton modellen
Breng het onderbed omhoog of omlaag alvorens deze op te
tillen, zodat het gewicht niet langer op de borgpennen rust.
Verwijder de borgpennen die zich onder het onderbed bevinden.
Breng het onderbed naar de gewenste hoogte en plaats de
borgpennen terug.
6.0 GEBRUIK
6.1 Systeeminstellingen
WAARSCHUWING:
Controleer voor een veilige
werkwijze alle persinstellingen en bevestigingspunten
van de last.
Centreer het werkstuk en alle onderdelen van de constructie
boven de krachtlijn. Als bij het instellen afstandsringen worden
gebruikt, moeten deze voor de stabiliteit uit één stuk bestaan of
met een hechtlas met elkaar worden verbonden.
WAARSCHUWING:
Controleer of alle borgpennen van
het onderbed correct zijn geplaatst,en aan het einde
zijn voorzien van een borgring, voordat de cilinder
onder druk wordt gebracht of de pers wordt belast.
LET OP:
Vermijd beschadiging van de hydraulische
slang. Vermijd scherpe bochten of knikken bij het
leggen van de hydraulische slangen. Het gebruik van
een gebogen of geknikte slang kan hevige tegendruk
opleveren. Scherpe bochten en knikken zullen de slang intern
beschadigen, wat leidt tot voortijdige defecten. Laat geen zware
objecten op de slang vallen. Een zware schok kan de interne
staaldraden van de slang beschadigen. Door een beschadigde
slang onder druk te zetten, kan deze scheuren.
BELANGRIJK:
Til hydraulisch apparatuur niet op aan de slangen
of draaikoppelingen. Gebruik de transportbeugel of andere veilige
manieren van transport.
LET OP:
Houd hydraulische apparatuur uit de
buurt van vuur en hitte. Teveel hitte leidt tot zachte
pakkingen en afdichtingen, waardoor vloeistof gaat
lekken. Door de hitte verzwakken ook het materiaal
en de pakkingen van de slangen. Stel voor een optimale werking
de apparatuur niet bloot aan temperaturen van 65°C of hoger.
Bescherm slangen en cilinders tegen lasspetters.
GEVAAR:
Pak geen slangen vast die onder druk staan.
Olie die onder druk ontsnapt kan in de huid dringen
en ernstig letsel veroorzaken. Raadpleeg onmiddellijk
een arts als olie onder de huid komt.
WAARSCHUWING:
Gebruik hydraulische cilinders
alleen in een gekoppeld systeem. Gebruik nooit een
cilinder waarvan de koppelingen niet zijn aangesloten.
Bij een extreme overbelasting van de cilinder kunnen
bepaalde onderdelen het op een rampzalige manier begeven en
ernstig letsel veroorzaken.
Vermijd
situaties waarbij de last niet gecentreerd is op de
cilinderplunjer. Een niet gecentreerde last geeft een aanzienlijke
spanning op de cilinders en de plunjers. Bovendien kan de
last wegglijden of vallen, waardoor een gevaarlijke situatie kan
ontstaan. Verdeel de last evenredig over het gehele zadeloppervlak.
Gebruik altijd een zadel om de plunjer te beschermen.
BELANGRIJK:
Hydraulische apparatuur mag alleen worden
onderhouden door een daarvoor opgeleide hydraulische monteur.
Neem voor reparaties contact op met het dichtstbijzijnde erkende
ENERPAC-servicecentrum. Gebruik alleen olie van ENERPAC om
te voorkomen dat uw garantie vervalt.
WAARSCHUWING:
Vervang versleten of beschadigde
onderdelen direct door originele onderdelen van
ENERPAC. Standaardonderdelen kunnen breken
en persoonlijk letsel of schade aan eigendommen
veroorzaken. Onderdelen van ENERPAC hebben de juiste
pasvorm en zijn bestand tegen hoge belasting.
WAARSCHUWING:
Belast de pers niet wanneer
de borgpennen zich onder het onderbed bevinden.
Hierdoor wordt het onderbed te veel belast.
WAARSCHUWING:
De pers NIET modificeren.
3.0 Installatie
WAARSCHUWING:
Zorg dat de pers stevig staat.
Door een onstabiele opstelling kan de pers kantelen
en ernstig persoonlijk letsel of schade aan de
apparatuur veroorzaken.
Als de pers op de vloer of een andere ondergrond wordt geplaatst,
laat dan het onderbed zakken naar de onderste positie, voordat
wordt geboord en de bouten worden vastgezet. Op die manier
kan de pers niet draaien en komt het onderbed in lijn met alle
gaten in de poten.
3
NL
Figuur 2. Hydraulische aansluitingen voor enkelwerkende cilinders
23
6.2 Het hydraulisch systeem ontluchten
OPMERKING:
Ontluchten gaat sneller als de slang(en) zijn
ontlucht voordat ze op de cilinderpoort(en) worden aangesloten.
Laat de cilinder meerdere keren uitlopen en weer intrekken om
opbouw van druk te voorkomen. Zodra de cilinder soepel in en uit
beweegt, is het systeem volledig ontlucht.
6.3 Handpompen
1. Sluit de drukbegrenzingsklep handvast
2. Bedien de pomphendel om druk op te bouwen. De druk blijft
gehandhaafd tot de drukbegrenzingsklep wordt geopend
3. Open de drukbegrenzingsklep om de druk te verlagen.
4.2 Pneumatische pompen
Druk de “pressure”-pedaal in om de regelklep in te schakelen en
laat de cilinder naar de gewenste slaglengte uitlopen. Druk de
“release”-pedaal in om de cilinder te laten intrekken.
6.4 Krachtpompen
1. Zet de klep in de uitloopstand en start de pomp om de cilinder
te laten uitlopen
2. Zet de klep op neutraal als de gewenste slaglengte is bereikt
3. Zet de klep in de intrekstand en start de pomp om de cilinder
te laten intrekken.
7.0 DE CILINDER OPNIEUW POSITIONEREN (zie figuur 3)
1. Draai de vleugelmoer (D) onder de onderste steunplaat los,
maar VERWIJDER DEZE NIET
2.
Schuif het montageblok (A) op het persframe naar de
gewenste positie
3. Draai de vleugelmoer (D) weer goed vast zodra de cilinder op
de gewenste positie staat.
8.0 ONDERHOUD
8.1 Hydraulisch systeem
1. Houd alle hydraulische componenten vrij van vuil, vet, snippers
en onnodig gereedschap
2. Controleer het hydraulisch systeem periodiek op beschadigde
componenten, losgeraakte verbindingen en lekkage. Vervang
of repareer beschadigde of lekkende componenten direct
3.
Vervang na elke 50 bedrijfsuren de hydraulische olie in
het systeem
4.
Gebruik alleen hydraulische olie van Enerpac. Andere
vloeistoffen kunnen schade aan uw systeem veroorzaken en
brengen uw garantie van Enerpac in gevaar
5. Raadpleeg het instructieblad dat met elke pomp en cilinder
wordt meegeleverd voor de complete gebruiksaanwijzing van
hydraulische componenten.
8.2 Het persframe
1. Houd de werkplek en het onderbed vrij van vuil, snippers,
onnodig gereedschap en bevestigingsmateriaal
2. Controleer het persframe periodiek op loszittende bouten en
beschadigde framedelen. Vervang of repareer beschadigde
onderdelen direct
3. Als de verf erg is afgebladderd, moet de installatie opnieuw
worden geschilderd om roest te voorkomen en het uiterlijk van
het persframe netjes te houden.
NL
D
A
Figuur 3
XLP 50 en 75 ton pers
Pers-
capaciteit
ton (kN)
Maximum
Daglichtopening
(mm)
Pers
Modelnummer
Pomp
Cilinder
Pomptype
Ventieltype
Pomp
modelnr.
Slag
(mm)
Modelnummer
Verticaal
Horizontaal
Hand. Elek.
Lucht Hand. Elek.
50
(498)
993
990
XLP-506P802 *
•
-
-
•
-
P-802
159
RC-506
993
990
XLP-506XA12G *
-
-
• •
-
XA-12G
159
RC-506
993
990
XLP-506ZES *
-
•
-
-
•
ZE4410SE-E050
156
RR-506
993
990
XLP-5013ZES *
-
•
-
-
•
ZE4410SE-E050
334
RR-5013
75
(718)
989
990
XLP-756XA12G *
-
-
• •
-
XA-12G
156
RC-756
* 50 en 75 ton persen uit de XLP-serie zijn verkrijgbaar in compleet afgemonteerde uitvoering.
Voeg een M toe aan het modelnummer. Voorbeeld:
XLP-506XA12G-M.
24
Laat uw producten inspecteren en repareren
door een erkend Enerpac-servicecentrum voor
het behoud van uw garantie.
www.enerpac.com
To
p
ro
tec
t your Warr
an
ty
U
se
on
ly Enerp
ac
O
il
To
p
ro
tec
t your Warr
an
ty
U
se
on
ly Enerp
ac
O
il
Gids voor probleemoplossing
Probleem
Mogelijke oorzaak
Oplossing
De cilinder loopt niet
uit, of langzaam of met
horten en stoten.
1. Laag olieniveau in pomp
2. Drukbegrenzingsklep van pomp is open
3. Losse hydraulische koppeling
4. Last is te zwaar
5. Lucht in het systeem
6. Plunjer zit vast.
1. Olie toevoegen volgens de pompinstructies
2. Drukbegrenzingsklep sluiten
3. Controleren of alle koppelingen goed vastzitten
4. Niet zwaarder belasten dan het aangegeven tonnage
5. Ontluchten conform de instructies op §6.2
6. Cilinder controleren op schade. De cilinder laten nakijken
door een erkende hydraulische monteur.
De cilinder loopt uit,
maar houdt de druk niet
vast.
1. Lekkende aansluiting
2. Lekkende cilinderafdichtingen
3. Inwendige lekkage in de pomp.
1. Controleren of alle aansluitingen goed vastzitten en
niet lekken
2. Lek(ken) opsporen en de apparatuur laten nakijken door een
erkende hydraulische monteur
3. De pomp laten nakijken door een erkende
hydraulische monteur.
De cilinder komt
niet terug, of slechts
gedeeltelijk of langzamer
dan normaal.
1. Reservoir van de pomp is te vol
2. Losse hydraulische koppeling
3. Inwendige lekkage in de pomp.
1. Olie aftappen tot de vol-indicatie. Raadpleeg de
pompinstructies om olie toe te voegen
2. Controleren of alle koppelingen goed vastzitten
3. Ontluchten conform de instructies op §6.2.
Enkelwerkende systemen:
De cilinder komt
niet terug, of slechts
gedeeltelijk of langzamer
dan normaal.
1. Drukbegrenzingsklep is dicht
2. Retourveer van de cilinder defect of andere schade aan
de cilinder
3. Cilinderhulpstukken zijn te zwaar voor een
enkelwerkende cilinder
4. Koppeling zit niet goed vast.
1. Drukbegrenzingsklep openen
2. De cilinder laten nakijken door een erkende hydraulische
monteur
3. Een dubbelwerkende cilinder gebruiken om te controleren of
alle koppelingen goed vastzitten.
NL
Snelheid
(mm/s) **
Afmetingen
(mm)
(kg)
Pers
Modelnummer
Snel
Uitlopen
Persen
A
B
D
E
F
G
H
K
N
P
{5,5} **
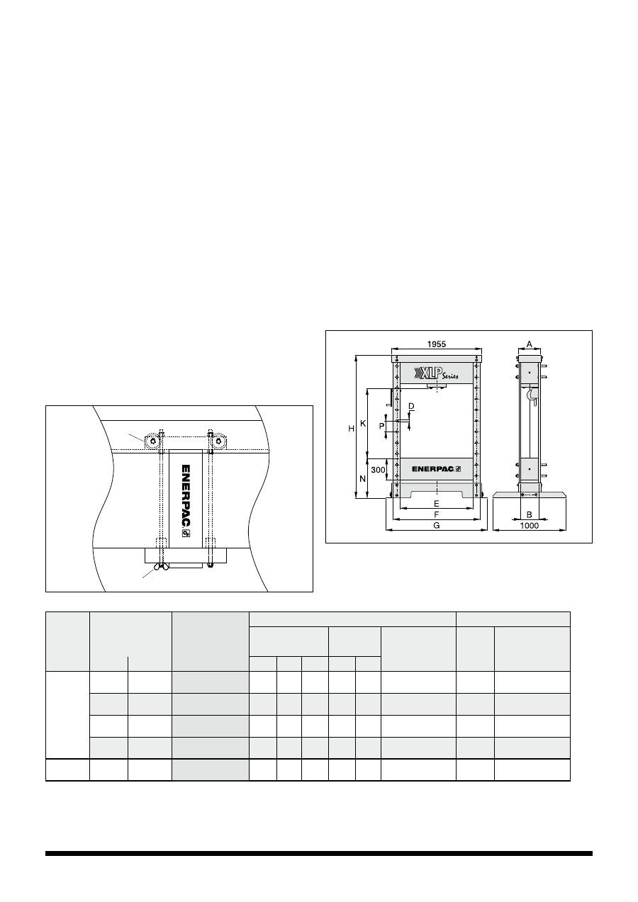
{0,3} ** 310 240 32 990 1190 1390 1995 210-940 540 150 595
XLP-506P802 *
4,7
0,6
310 240 32 990 1190 1390 1995 210-940 540 150 600
XLP-506XA12G *
10,0
2,0
310 240 32 990 1190 1390 1995 210-940 540 150 660
XLP-506ZES *
10,0
2,0
310 240 32 990 1190 1390 1995 210-940 540 150 700
XLP-5013ZES *
3,2
0,4
420 330 40 990 1240 1430 1995 210-940 540 150 900
XLP-756XA12G *
** {…} = uitloopsnelheid in mm per handpompslag.

