Enerpac XLP 50 and 75 ton: Instruksjonsark
Instruksjonsark: Enerpac XLP 50 and 75 ton
29
OBS
Brukes til å indikere korrekte drifts- eller
vedlikeholdsprosedyrer og fremgangsmåter for å
unngå skade på eller ødeleggelse av utstyr eller annen
eiendom.
ADVARSEL
Indikerer en mulig fare, som krever
korrekte prosedyrer eller fremgangsmåter for å unngå
personskade.
FARE
Brukes kun når din handling eller mangel på
handling kan føre til alvorlig personskade eller død.
ADVARSEL:
Bruk passende personlig verneutstyr ved
betjening av hydraulisk utstyr.
ADVARSEL:
Hold trygg avstand til last som holdes
oppe av hydraulikk. En sylinder som brukes til
å løfte last, må aldri brukes til holding av last.
Etter at lasten er hevet eller senket må den alltid
blokkeres mekanisk.
ADVARSEL: BRUK KUN STIVE DELER
TIL HOLDING AV LAST.
Vær nøye med
utvelging av stål- eller treblokker som er
i stand til å holde lasten. Bruk aldri en
hydraulisk sylinder som mellomlegg eller avstandsstykke ved løfte-
eller pressearbeid.
FARE:
For å unngå personskade må
hender og føtter holdes unna sylinderen og
arbeidsstykket mens arbeidet pågår.
ADVARSEL:
Overskrid ikke utstyrets spesifiserte
verdier. Prøv aldri å løfte en last som veier mer en
det som er sylinderens kapasitet. Overbelastning
fører til utstyrsfeil og mulig personskade.
Sylindrene er konstruert for et maksimumstrykk på 700 bar.
En jekk eller sylinder må ikke koples til en pumpe med høyere
spesifisert trykk.
Innstill aldri sikkerhetsventilen på et høyere trykk enn
pumpens maksimumstrykk. Høyere innstillinger kan føre
til materialskade og/eller personskade.
ADVARSEL:
Systemets driftstrykk må ikke overstige
spesifisert trykk for den delen i systemet som har lavest
trykklassifisering. Monter manometre i systemet for å
overvåke driftstrykket. Da har du oversikt over hva som
skjer i systemet.
1.0 VIKTIG MOTTAKSKONTROLL
I
nspiser alle deler visuelt for å sjekke at de ikke er blitt skadd
under transporten. Transportskade dekkes ikke av garantien. Ved
konstatering av transportskade må transportøren øyeblikkelig
underrettes. Transportøren er ansvarlig for alle kostnader
forbundet med reparasjoner og utskiftninger som skyldes skade
under transporten.
2.2.0 SIKKERHETSFORHOLD
Les alle instruksjoner, advarsler og forsiktighetsregler nøye. Følg alle
sikkerhetsinstruksjoner for å unngå personskade eller materialskade
ved bruk av systemet. Enerpac kan ikke ta ansvar for skade på
materiell eller personer som følge av utrygg bruk av produktet,
manglende vedlikehold eller feil betjening av produktet og/eller
systemet. Kontakt Enerpac hvis du er i tvil om sikkerhetsregler
og drift. Hvis du aldri har fått sikkerhetsopplæring relatert til
høytrykkshydraulikk, ta kontakt med ditt distribusjons- eller
servicesenter for et gratis kurs om sikker bruk av Enerpac hydraulikk.
Manglende oppfølging av nedenstående forsiktighetsregler og
advarsler kan føre til ødeleggelse av utstyr og personskade.
XLP-serien 50 og 75 tonn
Verkstedpresser
Instruksjonsark
EIS 66.112-1
rev. O 05/2014
Reservedelsark for dette produktet er tilgjengelig via Enerpacs hjemmeside www.enerpac.com,
eller via nærmeste autoriserte Enerpac-servicesenter eller Enerpac-salgskontor.
Pressene i XLP-serien kan oppstilles slik at de kan utføre vedlikeholds-
og formingsoppgaver. Hver presse leveres med sylinder, slange,
kuplinger og pumpe. Pressene i XLP-serien har en løfte-innretning
for nedre pressebord. V-blokker (tilleggsutstyr) støtter arbeidsstykket
og gjør det enklere å posisjonere rør og stenger.
NO
SIKKERHET FREMFOR ALT
30
4.0 HYDRAULISKE FORBINDELSER
OBS:
Kontroller alle hydraulikkslanger for å være sikker
på at fittings og kuplinger er tette og lekkfri. Kontroller
slangenes plassering for å være sikker på at slangene
er plassert slik at de ikke skades når pressen er i drift.
Trekk til alle forbindelser, men ikke for mye.
4.1 Enkeltvirkende sylindere (se figur 2)
1.
Kople manometerfestet til utløpsporten til pumpen
eller ventilen
2.
Fest manometeret til NPTF-manometerporten
på manometerfestet
3. Kople 3/8” vinkelkopling til manometerfestets utløpsport
4. Fest enden av hydraulikkslangen med utvendige gjenger til 3/8”
vinkelkoplingen
5. Fest kuplingen på hydraulikkslangen til den passende kuplingen
på den enkeltvirkende sylinderen.
MERK:
Kontroller at alle kuplinger er helt sammenkoplet.
5.0 JUSTERING AV PRESSEBORD
5.1 50 og 75 tonn modeller
For å heve eller senke nedre pressebord løftes pressebordet først litt
slik at vekten ikke lenger hviler på festeboltene. Dra ut bordboltene.
Hev eller senk pressebordet til den kommer i ønsket høyde og sett
festeboltene på plass igjen.
6.0 DRIFT
6.1 Systemoppstilling
ADVARSEL:
Kontroller alle systemoppstillinger og
lastfesteanordninger for å sikre trygg drift.
Sentrer arbeidsstykket og alle deler av oppstillingen i kraftlinjen.
Hvis avstandsstykker brukes i oppstillingen, må disse konstrueres
av én massiv del eller ha heftsveis for å sikre stabiliteten.
ADVARSEL:
Før pressen settes i drift, må man
kontrollere at alle bordets støttebolter sitter helt inne
og at låseringer finnes på enden av festeboltene før
sylinderen settes under trykk eller pressen belastes.
OBS:
Unngå å skade hydraulikkslangen. Unngå sterk
bøy eller knekk på hydrauliske slanger som legges
ut. Bruk av en slange med bøy eller knekk gir kraftig
mottrykk. Sterk bøy eller knekk skader slangen innvendig
og reduserer dens levetid. Slipp ikke tunge gjenstander på slangen.
Kraftige støt kan gi indre skader på slangens metalltråder. En skadd
slange som utsettes for trykk kan revne.
VIKTIG:
Løft ikke hydraulisk utstyr ved hjelp av slanger eller
kuplinger. Bruk bærehåndtaket eller andre sikre transportmåter.
OBS:
Hold hydraulisk utstyr unna flammer og varme.
For sterk varme gjør pakninger og forseglinger myke og
gir væskelekkasjer. Varme gjør også slangemateriale
og pakninger myke. For optimal ytelse må utstyret ikke
utsettes for temperaturer over 65°C eller mer. Beskytt slanger og
sylindere mot sveisesprut.
FARE:
Håndter ikke trykksatte slanger. Olje under trykk
kan lekke og trenge gjennom huden, noe som kan føre
til alvorlig personskade. Oppsøk umiddelbart lege hvis
olje trenger inn under huden.
ADVARSEL:
Bruk hydrauliske sylindere kun i et koplet
system. Bruk aldri en sylinder med kuplinger som ikke
er tilkoplet. Hvis sylinderen blir ekstremt overbelastet,
kan det oppstå katastrofale feil på delene og dette kan
føre til alvorlig personskade.
Unngå
situasjoner der last ikke er direkte sentrert på
sylinderstempelet. Belastning utenfor sentrum utgjør en stor
belastning for sylindere og stempler. I tillegg kan lasten gli eller falle,
noe som kan innebære stor fare.
Fordel vekten jevnt over hele trykkhodets overflate. Bruk alltid et
trykkhode for å beskytte stempelet.
VIKTIG:
Service på hydraulisk utstyr må kun utføres av en kvalifisert
hydraulikktekniker. For service og reparasjon kontakt et autorisert
ENERPAC servicesenter i ditt område. Av hensyn til garantien bør
det kun brukes ENERPAC olje.
ADVARSEL:
Slitte eller defekte deler må umiddelbart
skiftes ut med originale Enerpac reservedeler. Uoriginale
deler kan ødelegges og skade personer og eiendom.
ENERPAC deler er konstruert slik at de passer helt og
tåler høy belastning.
ADVARSEL:
Belast ikke pressen når bordboltene
befinner seg under pressebordet. Dette belaster
pressebordet unødvendig.
ADVARSEL:
Foreta INGEN endringer på pressen.
3.0 INSTALLASJON
ADVARSEL:
Monter pressen på sikker måte. Ustabil
plassering kan gjøre at pressen velter og dette kan føre
til alvorlig personskade eller materialskade.
Hvis pressen skal monteres på gulv eller annet underlag, må nedre
pressebord senkes til det nederste hullsettet før boring og festing.
Dette sikrer at pressen ikke vrir seg og at pressebordet er i høyde
med samtlige hullsett i bena.
3
NO
Figur 2. Hydrauliske forbindelser for enkeltvirkende sylindere
31
6.2 Fjerne luft fra det hydrauliske systemet
MERK:
Fjerning av luft skjer raskere hvis slangen(e) avluftes før
den/de koples til sylinderporten(e).
Kjør sylinderen frem og trekk den tilbake flere ganger, men unngå
trykkøkning. Luften er helt fjernet når sylinderen seg jevnt ut og inn
uten rykk.
6.3 Håndpumper
1. Steng ventilrattet håndfast
2.
Bruk pumpehåndtaket for å bygge opp trykk. Trykket
opprettholdes til ventilrattet åpnes
3. Åpne sikkerhetsventilen for å lette trykket.
6.4 Pneumatiske pumper
Trykk ned pedalens trykkside for å aktivere reguleringsspjeldet og kjør
frem sylinderen til ønsket slaglengde. Trykk ned utløsningspedalen
for å trekke sylinderen tilbake.
6.5 Elektriske pumper
1. For å kjøre frem sylinderen sett ventilen i fremkjøringsstilling og
start pumpen
2. Sett ventilen i nøytral stilling når ønsket slaglengde er oppnådd
3. For å trekke tilbake sylinderen sett ventilen i returstilling og start
pumpen.
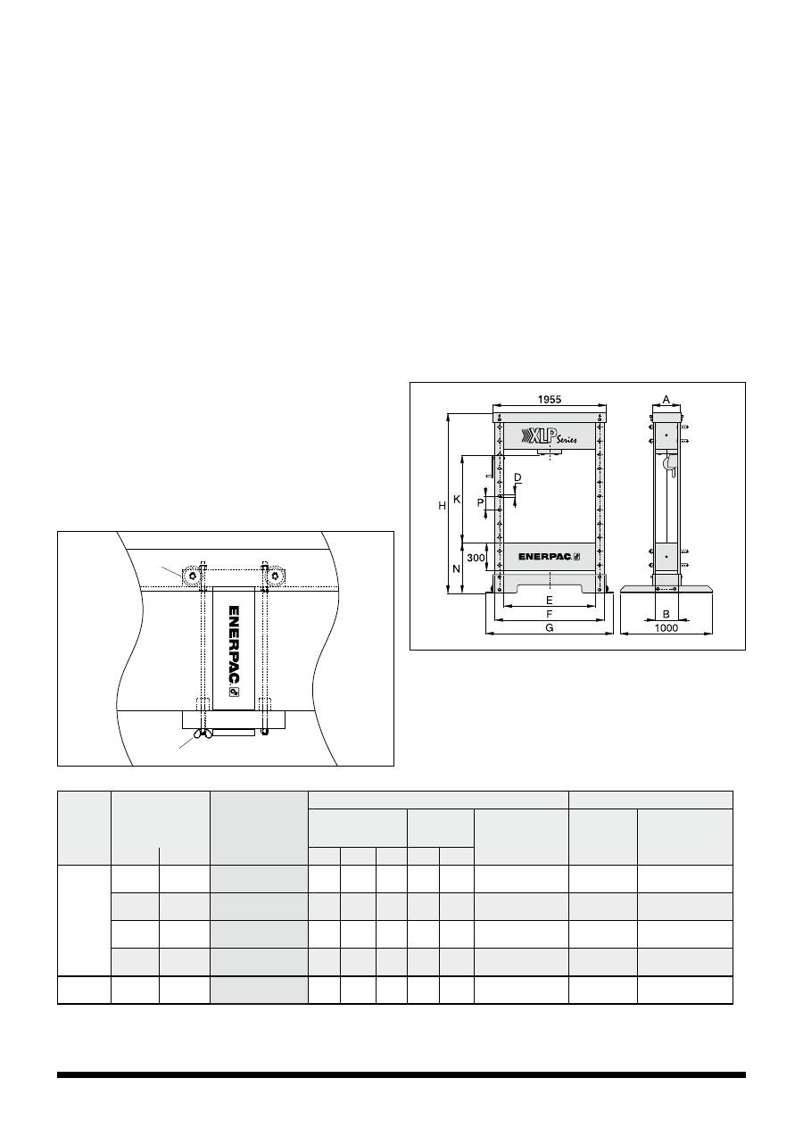
7.0 FLYTTE SYLINDEREN (se figur 3
)
1. Løsne, men IKKE FJERN, vingemutteren (D), som befinner seg
under den nedre sylinderstøttekonsollen
2.
Skyv sylindermonteringsblokken (A) i ønsket stilling
på presserammen
3.
Stram vingemutteren (D) godt når sylinderen er der den
skal være.
8.0 VEDLIKEHOLD
8.1 Hydraulisk system
1. Sørg for at alle hydrauliske deler er fri for smuss, fett, spon og
unødvendig utstyr
2. Kontroller med jevne mellomrom at det hydrauliske systemet
ikke har defekte deler, løse forbindelser eller lekker. Skift ut eller
reparer defekte eller lekkende deler umiddelbart
3. Skift hydraulikkolje i systemet hver 50. driftstime
4. Bruk kun Enerpac hydraulikk olje. Bruk av andre væsker enn
Enerpac hydraulikkolje kan skade systemet og kan gjøre Enerpac
garantien ugyldig
5.
For samtlige instruksjoner angående hydrauliske deler se
bruksanvisningen som følger med pumpen eller sylinderen.
8.2 Presseramme
1. Hold arbeidsstedet og pressebordet fritt for smuss, spon og
unødvendig utstyr og festeanordninger
2. Kontroller regelmessig presserammen for å være sikker på at
boltene er strammet og at rammedelene er uskadd. Skift ut eller
reparer defekte deler umiddelbart
3. Hvis malingen begynner å flasse veldig av, bør enheten males for
å unngå rustdannelse og for at rammen skal se bra ut.
NO
D
A
Figur 3
XLP 50 og 75 tonn presse
Kapasitet
presse
Tonn (kN)
Maksimal
lysåpning
(mm)
Presse
Modellnummer
Strømkilde
Sylinder
Pumpetype
Ventiltype
Pumpe
modellnr.
Slaglengde
(mm)
Modellnr:
Vertikal
Horisontal
Man. Elektr.
Luft
Man. Elektr.
50
(498)
993
990
XLP-506P802 *
•
-
-
•
-
P-802
159
RC-506
993
990
XLP-506XA12G *
-
-
• •
-
XA-12G
159
RC-506
993
990
XLP-506ZES *
-
•
-
-
•
ZE4410SE-E050
156
RR-506
993
990
XLP-5013ZES *
-
•
-
-
•
ZE4410SE-E050
334
RR-5013
75
(718)
989
990
XLP-756XA12G *
-
-
• •
-
XA-12G
156
RC-756
* 50- og 75-tonns presser i XLP-serien kan bestilles som fabrikkmontert presseramme.
Føy en “M” til presse-modellnummeret. For eksempel:
XLP-506XA12G-M.
32
For at garantien fortsatt skal gjelde,
må produktene inspiseres og repareres av et
autorisert Enerpac service senter.
www.enerpac.com
To
p
ro
tec
t your Warr
an
ty
U
se
on
ly Enerp
ac
O
il
To
p
ro
tec
t your Warr
an
ty
U
se
on
ly Enerp
ac
O
il
Feilsøking
Problem
Mulige årsaker
Løsning
Sylinderen kjøres ikke
frem, kjøres langsomt
eller rykkvis frem.
1. Lavt oljenivå i pumpen
2. Pumpens avlastningsventil er åpen
3. Løs hydraulisk kupling
4. For tung last
5. Luft i systemet
6. Sylinderstempelet sitter fast.
1. Fyll på olje i henhold til pumpens bruksanvisning
2. Steng pumpens sikkerhetsventil
3. Kontroller at alle kuplinger er trukket helt til
4. Overskrid ikke angitt lasteevne
5. Fjern luft i henhold til anvisningene på §6.2
6. Kontroller om sylinderen er skadd. La en kvalifisert
hydraulikktekniker utføre service på sylinderen.
Sylinderen kjøres frem,
men holder ikke på
trykket.
1. Lekkende forbindelse
2. Lekkende sylindertetninger
3. Indre lekkasje i pumpen.
1. Kontroller at alle forbindelser er tette og ikke lekker
2. Lokaliser lekkasje(r) og la en kvalifisert hydraulikktekniker
utføre service på utstyret
3. La en kvalifisert hydraulikktekniker utføre service på
pumpen.
Sylinderen trekkes ikke
tilbake, trekkes delvis
tilbake eller trekkes
langsommere tilbake
enn normalt.
1. Pumpetanken er overfylt
2. Løs hydraulisk kupling
3. Indre lekkasje i pumpen.
1. Tapp av olje til nivået er ved merket ”fullt”. Se pumpens
bruksanvisning for påfylling av olje
2. Kontroller at alle kuplinger er trukket helt til
3. Fjern luft i henhold til anvisningene på §6.2.
Enkeltvirkende systemer:
Sylinderen trekkes ikke
tilbake, trekkes delvis
tilbake eller trekkes
langsommere tilbake
enn normalt.
1. Avlastningsventilen er lukket
2. Sylinderens returfjær er defekt eller annen sylinderskade
3. Sylinderfestene er for tunge for en enkeltvirkende sylinder
4. Kuplingen er ikke helt tilkoplet.
1. Åpne pumpens avlastningsventil
2. La en kvalifisert hydraulikktekniker utføre service
på sylinderen
3. Bruk en dobbeltvirkende sylinder for å kontrollere at alle
kuplinger er helt tiltrukket.
NO
Hastighet
(mm/s) **
Dimensjoner
(mm)
(kg)
Presse
Modellnummer
Rask
Fremkjøring
Pressing
A
B
D
E
F
G
H
K
N
P
{5,5} **
{0,3} ** 310 240 32 990 1190 1390 1995 210-940 540 150 595
XLP-506P802 *
4,7
0,6
310 240 32 990 1190 1390 1995 210-940 540 150 600
XLP-506XA12G *
10,0
2,0
310 240 32 990 1190 1390 1995 210-940 540 150 660
XLP-506ZES *
10,0
2,0
310 240 32 990 1190 1390 1995 210-940 540 150 700
XLP-5013ZES *
3,2
0,4
420 330 40 990 1240 1430 1995 210-940 540 150 900
XLP-756XA12G *
** {…} = hastighet i mm pr. slag med håndpumpe.

