Panasonic TYWK5P1RW: 安装步骤
安装步骤: Panasonic TYWK5P1RW
80
中文
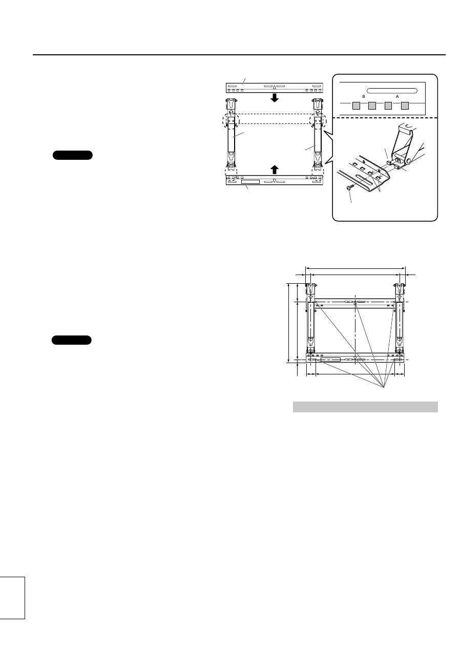
5. 将绝缘垫片安装到等离子电视机上
将等离子电视机面朝下放置在干净的毯子或其他没有灰尘和异
物的编织物上,并按以下指示进行操作。
如果等离子电视机有突出部分,请小心避免刮擦或损坏。
使用十字螺丝启子从等离子电视机卸下盖帽 (x4)。
* 等离子电视机的外观视型号不同而不同,
下面的图形是用某型号来做例子。
十字螺丝启子
盖帽
毯子
毯子
注
· 将卸下的盖帽保管好。
(当使用独立的安装台时需要用到它们。
)
如右图所示,使用附带的六角扳手
将附带M 8×32 内六角
锥坑螺钉
、碟齿状垫圈
、绝缘垫片
和垫片
(每个
部分四个)安装到之前安装盖帽的位置。
( 紧固扭矩 :3 到 4 牛米 )
6. 将等离子电视机安装到壁挂式框架上,并将
其连接其他组件
卸下用于固定和解除等离子电视机的左右侧红色标记的螺钉
(左右各一)
。
将等离子电视机顶部的绝缘垫片嵌合到壁挂式框架顶部的切除
部,然后降下等离子电视机。
如右图所示将等离子电视机拉向您身边,并将其连接到其他组
件。
完成连接之后,稍微抬起等离子电视机,并在壁挂式框架下部
的孔中插入底部的绝缘垫片。
现在降下等离子电视机。
顶部的切除部
顶部的绝缘垫片
用于固定和解除等离子电
视机的红色标记螺钉
底部的孔
底部的绝缘垫片
墙壁表面
墙壁表面
小心
· 如果将等离子电视机抬得太高,其顶部将从壁挂式框架脱开。
安装步骤
81
中文
7. 固定等离子电视机
将附带的用于固定装置的螺钉
(2) 安装到用于固定壁挂式
框架左右侧的螺钉安装孔中。
将用于固定和解除等离子电视机的左右红色标记螺钉
( 左
右侧各一)固定到用于固定和解除等离子电视机的壁挂式框架
左右侧的红色标记螺钉安装孔中。
( 紧固扭矩 :1.2 到 1.5 牛米 )
用于固定装置的螺钉的
安装孔
用于固定装置的螺钉
用于固定和解除等离子电视
机的红色标记螺钉的安装孔
墙壁安装部件
用于固定和解除等离子电视机的红
色标记螺钉
墙壁表面
注
· 为防止等离子电视机从壁挂式框架脱开,必须紧固左右侧用于
固定装置的螺钉
到其底座。
如何从壁挂式框架卸下等离子电视机
移除安装在壁挂架侧面上的用于固定装置的螺钉
(左右各一个)
。
拔下连接等离子电视机到其他组件的电缆。
在抬起等离子电视机底部的同时,将等离子电视机向您侧拉动。
解除底部绝缘垫片之后,将等离子电视机竖直抬起。
底部绝缘垫片
用于固定装置的螺钉
墙壁表面
墙壁表面
制造商 :松下电器产业株式会社
日本大阪府门真市大字门真 1006 番地
Web Site: http://panasonic.net
进口商 :松下电器(中国)有限公司
北京市朝阳区光华路甲 8 号和乔大厦 C 座
原产地 :日本
2010 年 7 月 发行
在日本印刷
82
Ti
ế
ng V
i
ệ
t
Nh ữ ng chú ý an toàn 82
C
Ả
NH BÁO
Đả
m b
ả
o v
ị
trí l
ắ
p
đặ
t
đủ
ch
ắ
c ch
ắ
n
để
có th
ể
đặ
t TV lâu dài.
• N
ế
u v
ị
trí l
ắ
p
đặ
t không
đả
m b
ả
o
đượ
c
độ
b
ề
n ch
ắ
c trong th
ờ
i gian s
ử
d
ụ
ng lâu dài, TV plasma có th
ể
r
ơ
i và s
ẽ
gây ra th
ươ
ng tích.
Công vi
ệ
c l
ắ
p ráp và k
ế
t n
ố
i thi
ế
t b
ị
nên
đượ
c th
ự
c hi
ệ
n b
ở
i m
ộ
t chuyên gia l
ắ
p
đặ
t có trình
độ
.
• L
ắ
p ráp không
đ
úng cách s
ẽ
làm r
ơ
i thi
ế
t b
ị
và gây ra th
ươ
ng tích.
Hãy tính toán h
ệ
s
ố
an toàn khi xem xét
độ
v
ữ
ng ch
ắ
c c
ủ
a v
ị
trí d
ự
đị
nh l
ắ
p
đặ
t.
• N
ế
u v
ị
trí l
ắ
p
đặ
t không ch
ắ
c ch
ắ
n, thi
ế
t b
ị
có th
ể
b
ị
r
ơ
i, gây th
ươ
ng tích.
Không l
ắ
p
đặ
t
ở
v
ị
trí không ch
ị
u
đượ
c t
ả
i tr
ọ
ng.
• N
ế
u v
ị
trí l
ắ
p
đặ
t thi
ế
u ch
ắ
c ch
ắ
n thi
ế
t b
ị
có th
ể
b
ị
r
ơ
i.
Không tháo d
ỡ
ho
ặ
c ch
ỉ
nh s
ử
a giá
đỡ
treo t
ườ
ng.
• N
ế
u không, thi
ế
t b
ị
có th
ể
r
ơ
i, b
ị
h
ư
h
ỏ
ng, và có th
ể
gây th
ươ
ng tích cho ng
ườ
i.
CHÚ Ý
Không dùng cho b
ấ
t k
ỳ
lo
ạ
i TV ho
ặ
c màn hình nào khác ngoài lo
ạ
i
đ
ã nêu trong catalogue.
• N
ế
u không, thi
ế
t b
ị
có th
ể
r
ơ
i, b
ị
h
ư
h
ỏ
ng, và có th
ể
gây th
ươ
ng tích cho ng
ườ
i.
Không l
ắ
p
đặ
t t
ạ
i nh
ữ
ng n
ơ
i
ẩ
m
ướ
t, có b
ụ
i, khói, h
ơ
i n
ướ
c ho
ặ
c nóng.
•
Đ
i
ề
u này có th
ể
tác
độ
ng x
ấ
u
đế
n TV plasma và gây cháy ho
ặ
c ch
ậ
p
đ
i
ệ
n.
Công vi
ệ
c l
ắ
p
đặ
t ho
ặ
c tháo d
ỡ
TV plasma ph
ả
i do ít nh
ấ
t hai ng
ườ
i th
ự
c hi
ệ
n.
• TV plasma có th
ể
r
ơ
i và gây ra th
ươ
ng tích.
Không
đượ
c
đặ
t TV ng
ử
a lên,
đặ
t nghiêng ho
ặ
c
đặ
t ng
ượ
c TV.
• Làm v
ậ
y có th
ể
sinh ra nhi
ệ
t bên trong TV plasma và d
ẫ
n
đế
n cháy TV.
Không
đượ
c b
ị
t các l
ỗ
thoát không khí. Khi s
ử
d
ụ
ng giá
đỡ
treo t
ườ
ng, không
đượ
c b
ị
t kín kho
ả
ng tr
ố
ng
gi
ữ
a m
ặ
t sau c
ủ
a TV plasma và b
ề
m
ặ
t c
ủ
a t
ườ
ng.
• N
ế
u không, nhi
ệ
t bên trong TV có th
ể
t
ă
ng d
ầ
n lên và gây cháy.
B
ả
o
đả
m có m
ộ
t kho
ả
ng tr
ố
ng ít nh
ấ
t là 10 cm
ở
đỉ
nh,
đ
áy, bên trái và bên ph
ả
i c
ủ
a TV plasma. Ngoài ra,
hãy
đả
m b
ả
o có m
ộ
t ít kho
ả
ng tr
ố
ng
ở
m
ặ
t sau TV.
• Không làm nh
ư
v
ậ
y có th
ể
gây ra cháy.
L
ắ
p
đặ
t TV plasma theo các b
ướ
c c
ụ
th
ể
trong h
ướ
ng d
ẫ
n d
ướ
i
đ
ây: Không
đượ
c l
ắ
p
đặ
t TV theo b
ấ
t k
ỳ
cách nào khác.
• N
ế
u không, thi
ế
t b
ị
có th
ể
r
ơ
i, b
ị
h
ư
h
ỏ
ng, và có th
ể
gây th
ươ
ng tích cho ng
ườ
i.
G
ắ
n
đ
inh vít và l
ắ
p cáp
đ
i
ệ
n sao cho không ti
ế
p xúc v
ớ
i ph
ầ
n phía trong c
ủ
a t
ườ
ng.
• Hi
ệ
n t
ượ
ng ch
ậ
p
đ
i
ệ
n có th
ể
x
ả
y ra n
ế
u ti
ế
p xúc v
ớ
i b
ấ
t c
ứ
v
ậ
t th
ể
kim lo
ạ
i nào phía trong t
ườ
ng.
Khi l
ắ
p
đặ
t, hãy s
ử
d
ụ
ng các b
ộ
ph
ậ
n có ch
ứ
c n
ă
ng riêng.
• N
ế
u không, TV plasma có th
ể
r
ơ
i kh
ỏ
i t
ườ
ng và s
ẽ
gây th
ươ
ng tích.
Tháo b
ỏ
s
ả
n ph
ẩ
m không còn dùng t
ớ
i n
ữ
a.
• N
ế
u không s
ả
n ph
ẩ
m này có th
ể
r
ơ
i xu
ố
ng và gây th
ươ
ng tích cho ng
ườ
i.
Các yêu c
ầ
u liên quan
đế
n v
ậ
n hành
1) C
ẩ
n th
ậ
n khi ch
ọ
n v
ị
trí
đặ
t TV vì n
ế
u
đặ
t
ở
n
ơ
i có ánh n
ắ
ng m
ặ
t tr
ờ
i chi
ế
u tr
ự
c ti
ế
p ho
ặ
c g
ầ
n lò s
ưở
i TV có
th
ể
b
ị
b
ạ
c màu ho
ặ
c bi
ế
n d
ạ
ng.
2) Lau giá
đỡ
treo t
ườ
ng b
ằ
ng v
ả
i m
ề
m và khô (ch
ẳ
ng h
ạ
n nh
ư
v
ả
i s
ợ
i bông ho
ặ
c v
ả
i flannen). N
ế
u giá
đỡ
quá
b
ẩ
n, hãy dùng ch
ấ
t t
ẩ
y trung tính
đượ
c pha loãng trong n
ướ
c
để
lo
ạ
i b
ỏ
v
ế
t b
ẩ
n, sau
đ
ó dùng v
ả
i khô
để
lau.
Không
đượ
c s
ử
d
ụ
ng ch
ấ
t benzene, ch
ấ
t t
ẩ
y r
ử
a, hay d
ụ
ng c
ụ
đ
ánh bóng vì nó có th
ể
làm cho l
ớ
p ph
ủ
bên
ngoài b
ị
bong.
(
Để
bi
ế
t thêm thông tin khi lau màn hình TV, hãy tham kh
ả
o tài li
ệ
u h
ướ
ng d
ẫ
n s
ử
d
ụ
ng c
ủ
a màn hình. N
ế
u
s
ử
d
ụ
ng lo
ạ
i v
ả
i có x
ử
lý hóa ch
ấ
t, hãy làm theo nh
ữ
ng h
ướ
ng d
ẫ
n riêng cho lo
ạ
i v
ả
i
đ
ó.)
3) Không
đượ
c dán b
ă
ng dính ho
ặ
c keo lên giá
đỡ
. Làm nh
ư
v
ậ
y có th
ể
làm b
ẩ
n b
ề
m
ặ
t c
ủ
a giá
đỡ
treo t
ườ
ng.
Không
đượ
c
để
các ch
ấ
t làm t
ừ
cao su, hay nh
ự
a vinyl ho
ặ
c các ch
ấ
t t
ươ
ng t
ự
bám lâu trên giá
đỡ
. (Làm
nh
ư
v
ậ
y s
ẽ
gây h
ỏ
ng b
ề
m
ặ
t giá
đỡ
.)
4) Ph
ả
i c
ẩ
n th
ậ
n trong su
ố
t quá trình l
ắ
p
đặ
t vì ch
ỉ
m
ộ
t cú va ch
ạ
m c
ũ
ng có th
ể
làm cho t
ấ
m ch
ắ
n c
ủ
a TV
plasma b
ị
r
ạ
n n
ứ
t.
Chú ý:
Lo
ạ
i giá
đỡ
này ch
ỉ
đượ
c áp d
ụ
ng cho duy nh
ấ
t lo
ạ
i TV plasma c
ủ
a Panasonic (Xem trang 80-81).
US
ử
d
ụ
ng thi
ế
t b
ị
khác có th
ể
làm cho giá
đỡ
không v
ữ
ng và s
ẽ
gây ra th
ươ
ng tích.
YÊU C
Ầ
U L
Ắ
P
ĐẶ
T M
Ộ
T CÁCH CHUYÊN NGHI
Ệ
P.
PANASONIC T
Ừ
CH
Ố
I M
Ọ
I TRÁCH NHI
Ệ
M V
Ề
T
Ổ
N H
Ạ
I V
Ậ
T CH
Ấ
T VÀ/HO
Ặ
C TH
ƯƠ
NG TÍCH NGHIÊM
TR
Ọ
NG BAO G
Ồ
M C
Ả
TR
ƯỜ
NG H
Ợ
P T
Ử
VONG DO L
Ắ
P
ĐẶ
T KHÔNG
Đ
ÚNG CÁCH HO
Ặ
C
Đ
I
Ề
U KHI
Ể
N SAI.
83
Ti
ế
ng V
i
ệ
t
83
Giá
đỡ
treo t
ườ
ng
TY-WK5P1RW
(lo
ạ
i góc có th
ể
đ
i
ề
u ch
ỉ
nh)
Các b
ộ
ph
ậ
n dùng
để
l
ắ
p ráp giá
đỡ
treo t
ườ
ng
Chân
đế
n
ố
i trên
(1)
Đế
giá
đỡ
n
ố
i bên trái
(1)
Đế
giá
đỡ
n
ố
i bên ph
ả
i
(1)
Đ
inh vít M5x10
dùng
để
g
ắ
n c
ố
đị
nh (4)
Chân
đế
n
ố
i d
ướ
i (1)
Nhãn
Các b
ộ
ph
ậ
n dùng
để
l
ắ
p
đặ
t
Xem ph
ầ
n l
ắ
p ráp
đ
ã hoàn thành
Đ
inh vít
đầ
u chìm Allen
M8x24 (4)
Mi
ế
ng
đệ
m (4)
Vòng
đệ
m (gio
ă
ng) hình
đĩ
a r
ă
ng c
ư
a (4)
M5x50
Đ
inh vít
đị
nh v
ị
(2)
Mi
ế
ng
đệ
m cách
đ
i
ệ
n (4)
Chìa v
ặ
n Allen l
ụ
c giác
(có c
ả
d
ụ
ng c
ụ
) (1)
Chú ý khi l
ắ
p ráp giá
đỡ
treo t
ườ
ng
♦
Giá
đỡ
treo t
ườ
ng
đượ
c s
ử
d
ụ
ng
để
g
ắ
n c
ố
đị
nh TV plasma theo chi
ề
u th
ẳ
ng
đứ
ng trên t
ườ
ng. Không
đượ
c
g
ắ
n giá treo lên b
ấ
t k
ỳ
b
ề
m
ặ
t nào ngoài t
ườ
ng th
ẳ
ng
đứ
ng.
♦
Nh
ằ
m
đả
m b
ả
o cho TV plasma ho
ạ
t
độ
ng t
ố
t và ng
ă
n ch
ặ
n h
ỏ
ng hóc, chú ý không l
ắ
p
đặ
t TV
ở
các v
ị
trí sau.
• G
ầ
n
đầ
u phun n
ướ
c ho
ặ
c h
ệ
th
ố
ng báo cháy/báo khói
•
Ở
n
ơ
i có nguy c
ơ
b
ị
ch
ấ
n
độ
ng ho
ặ
c b
ị
va ch
ạ
m m
ạ
nh
• G
ầ
n dây
đ
i
ệ
n có
đ
i
ệ
n áp cao ho
ặ
c ngu
ồ
n
đ
i
ệ
n n
ă
ng cao
• G
ầ
n ngu
ồ
n t
ừ
tr
ườ
ng, h
ơ
i nóng, h
ơ
i n
ướ
c ho
ặ
c mu
ộ
i b
ẩ
n
• Các n
ơ
i ti
ế
p xúc tr
ự
c ti
ế
p v
ớ
i lu
ồ
ng không khí t
ừ
các thi
ế
t b
ị
t
ỏ
a nhi
ệ
t
•
Ở
nh
ữ
ng n
ơ
i n
ướ
c có th
ể
t
ạ
o ra do ng
ư
ng t
ụ
t
ừ
đ
i
ề
u hoà nhi
ệ
t
độ
ho
ặ
c các thi
ế
t b
ị
khác
♦
S
ử
d
ụ
ng các k
ỹ
thu
ậ
t phù ph
ợ
p v
ớ
i c
ấ
u trúc và v
ậ
t li
ệ
u c
ủ
a
đị
a
đ
i
ể
m dùng
để
l
ắ
p ráp.
♦
S
ử
d
ụ
ng các
đ
inh vít s
ẵ
n có trên th
ị
tr
ườ
ng v
ớ
i
đườ
ng kính 6 mm phù h
ợ
p v
ớ
i ch
ấ
t li
ệ
u t
ườ
ng (nh
ư
g
ỗ
,
khung thép, bê tông vv) mà giá
đỡ
đượ
c g
ắ
n vào.
♦
Đố
i v
ớ
i phích c
ắ
m ngu
ồ
n
đ
i
ệ
n cho TV, hãy s
ử
d
ụ
ng
ổ
c
ắ
m
đ
i
ệ
n có th
ể
d
ễ
dàng v
ớ
i t
ớ
i.
♦
Đả
m b
ả
o lu
ồ
ng không khí t
ố
t cho thi
ế
t b
ị
sao cho nhi
ệ
t
độ
xung quanh không v
ượ
t quá 40 °C. N
ế
u không
đ
áp
ứ
ng
đượ
c
đ
i
ề
u ki
ệ
n này có th
ể
sinh ra nhi
ệ
t phía trong TV plasma, và d
ẫ
n
đế
n s
ự
c
ố
.
♦
Tr
ả
i m
ộ
t t
ấ
m ch
ă
n ho
ặ
c v
ả
i m
ề
m trên sàn nhà sao cho TV plasma và sàn nhà không b
ị
Xây x
ướ
c trong su
ố
t
quá trình l
ắ
p
đặ
t.
♦
Khi v
ặ
n
đ
inh vít xu
ố
ng các b
ộ
ph
ậ
n, hãy
đả
m b
ả
o r
ằ
ng các
đ
inh vít không
đượ
c v
ặ
n quá l
ỏ
ng ho
ặ
c quá ch
ặ
t.
♦
Chú ý
đả
m b
ả
o an toàn xung quanh khi ti
ế
n hành l
ắ
p ráp ho
ặ
c trong khi di chuy
ể
n quanh khu v
ự
c
đ
ang th
ự
c
hi
ệ
n.
♦
Không
đượ
c l
ắ
p
đặ
t TV plasma ngay phía d
ướ
i
đ
èn tr
ầ
n (
đ
èn chi
ế
u,
đ
èn halogen vv) N
ế
u không v
ỏ
máy s
ẽ
b
ị
u
ố
n cong ho
ặ
c b
ị
h
ư
h
ỏ
ng do s
ứ
c nóng t
ỏ
a ra.
Các thành ph ầ n
[ Hình
ả
nh trong sách h
ướ
ng d
ẫ
n này ch
ỉ
mang
tính minh h
ọ
a.]
84
Ti
ế
ng V
i
ệ
t
Quy trình l ắ p ráp
[ Không s
ử
d
ụ
ng b
ấ
t c
ứ
ph
ươ
ng pháp nào
ngoài nh
ữ
ng ph
ươ
ng pháp
đă
nêu.]
1. L
ắ
p ráp giá
đỡ
treo t
ườ
ng
Đặ
t chân
đế
n
ố
i trên và d
ướ
i
,
đế
giá
đỡ
n
ố
i
bên trái
và bên ph
ả
i
nh
ư
trong hình v
ẽ
minh h
ọ
a.
L
ắ
p 2 v
ấ
u
đỡ
c
ủ
a
đế
giá
đỡ
trái và ph
ả
i vào
hai khe r
ă
nh (2 khe bên trái và 2 khe bên ph
ả
i)
trong chân
đế
, sau
đ
ó dùng 4
đ
ính vít
để
si
ế
t ch
ặ
t c
ố
đị
nh l
ạ
i.
(Si
ế
t ch
ặ
t mômen quay: t
ừ
1,2
đế
n 1,5 N•m)
Ghi chú
• Gi
ữ
v
ữ
ng
đế
giá
đỡ
n
ố
i bên trái và
đế
giá
đỡ
n
ố
i
bên ph
ả
i khi l
ắ
p ráp giá
đỡ
treo t
ườ
ng. Gi
ữ
ch
ặ
t
chân
đế
n
ố
i trên và chân
đế
n
ố
i d
ướ
i có th
ể
làm
bi
ế
n d
ạ
ng giá
đỡ
treo t
ườ
ng.
Đế
giá
đỡ
n
ố
i bên
ph
ả
i
Chân
đế
n
ố
i trên
Chân
đế
n
ố
i d
ướ
i
(bên có nhãn
đượ
c g
ắ
n
kèm)
V
ấ
u
đỡ
V
ấ
u
đỡ
Khe rãnh (A)
Đế
giá
đỡ
n
ố
i bên
trái
Đ
inh vít M5x10 dùng
để
g
ắ
n
c
ố
đị
nh
2. Ki
ể
m tra
độ
b
ề
n ch
ắ
c c
ủ
a v
ị
trí l
ắ
p
đặ
t
Giá
đỡ
treo t
ườ
ng có tr
ọ
ng l
ượ
ng x
ấ
p x
ỉ
3,2 kg.
Tham kh
ả
o sách h
ướ
ng d
ẫ
n s
ử
d
ụ
ng TV plasma, và ki
ể
m
tra tr
ọ
ng l
ượ
ng c
ủ
a TV plasma s
ẽ
đượ
c l
ắ
p trên giá
đỡ
treo
t
ườ
ng.
Tham kh
ả
o b
ả
n v
ẽ
phác th
ả
o c
ủ
a giá
đỡ
treo t
ườ
ng trong
hình v
ẽ
bên ph
ả
i, và ki
ể
m tra
độ
ch
ắ
c c
ủ
a t
ườ
ng t
ạ
i sáu v
ị
trí l
ắ
p
đặ
t
đượ
c ch
ỉ
ra. N
ế
u b
ấ
t c
ứ
v
ị
trí l
ắ
p
đặ
t nào không
đủ
độ
b
ề
n thì ph
ả
i ti
ế
n hành gia c
ố
cho v
ữ
ng ch
ắ
c.
Đơ
n v
ị
: mm
550
500
25
25
17.5
440
55
55
446
325
103.5
Các l
ỗ
g
ắ
n trên t
ườ
ng (t
ạ
i 6
đ
i
ể
m)
Dùng
đ
inh vít t
ố
t
để
si
ế
t ch
ặ
t
đ
i
ể
m c
ố
đị
nh.
Ghi chú
• Có n
ă
m l
ỗ
đượ
c khoan tr
ướ
c
ở
trên
đỉ
nh và n
ă
m l
ỗ
khác
ở
d
ướ
i
đ
áy c
ủ
a giá
đỡ
treo t
ườ
ng.
S
ử
d
ụ
ng các l
ỗ
d
ự
phòng n
ế
u t
ườ
ng làm b
ằ
ng g
ỗ
hay v
ậ
t li
ệ
u
không
đủ
độ
v
ữ
ng khi g
ắ
n
đ
inh vít vào sáu v
ị
trí
đượ
c ch
ỉ
ra trong
hình v
ẽ
bên ph
ả
i.
Tuy nhiên, hãy ghi nh
ớ
r
ằ
ng, ph
ụ
thu
ộ
c vào t
ừ
ng lo
ạ
i v
ậ
t li
ệ
u dùng
làm b
ề
m
ặ
t, b
ề
m
ặ
t v
ậ
t li
ệ
u có th
ể
b
ị
n
ứ
t n
ế
u các
đ
inh vít t
ạ
i các v
ị
trí
đượ
c
đặ
t quá g
ầ
n nhau.
• Ch
ỉ
đượ
c l
ắ
p TV plasma trên giá
đỡ
c
ố
đị
nh: Không
đượ
c
đặ
t b
ấ
t
c
ứ
m
ộ
t lo
ạ
i
đồ
v
ậ
t nào khác lên trên giá.
• Hãy tham kh
ả
o b
ả
n v
ẽ
phác th
ả
o
để
bi
ế
t thêm chi ti
ế
t v
ề
kích c
ỡ
khi g
ắ
n TV plasma (trang
80-81).
85
Ti
ế
ng V
i
ệ
t
85
3. G
ắ
n giá
đỡ
lên t
ườ
ng
Ghi chú
• N
ế
u c
ầ
n, hãy g
ắ
n
đ
inh vít ho
ặ
c
đ
ai
ố
c vào t
ườ
ng tr
ướ
c khi l
ắ
p
giá
đỡ
treo t
ườ
ng do t
ườ
ng
đượ
c làm b
ằ
ng bê tông ho
ặ
c các v
ậ
t
li
ệ
u khác t
ươ
ng t
ự
, xác
đị
nh v
ị
trí c
ủ
a các l
ỗ
b
ằ
ng cách
đặ
t giá
đỡ
đ
úng ch
ỗ
trên t
ườ
ng ho
ặ
c tính toán t
ừ
hình
đượ
c minh ho
ạ
trong
b
ả
n v
ẽ
phác th
ả
o và sau
đ
ó g
ắ
n
đ
inh vít ho
ặ
c
đ
ai
ố
c có
đườ
ng
kính danh ngh
ĩ
a 6 mm ho
ặ
c t
ươ
ng
đươ
ng.
Khi g
ắ
n
đ
inh vít,
đả
m b
ả
o chúng nhô ra 10
đế
n 15 mm so v
ớ
i b
ề
m
ặ
t t
ườ
ng.
•
Để
g
ắ
n giá
đỡ
lên t
ườ
ng, hãy s
ử
d
ụ
ng các
đ
inh vít v
ớ
i
đườ
ng
kính 6 mm ho
ặ
c có giá tr
ị
t
ươ
ng
đươ
ng s
ẵ
n có t
ừ
m
ộ
t kho l
ư
u tr
ữ
và ph
ả
i phù h
ợ
p v
ớ
i v
ậ
t li
ệ
u trên t
ườ
ng t
ạ
i v
ị
trí l
ắ
p
đặ
t.
• G
ắ
n
đ
inh vít vào ít nh
ấ
t 6 v
ị
trí.
Các m
ũ
i tên
Cá c
đ
inh ví t
đ
i
ề
u ch
ỉ
nh gó c
G
ắ
n giá
đỡ
treo t
ườ
ng sao cho các m
ũ
i tên hi
ể
n th
ị
trên nó
đượ
c
đặ
t theo chi
ề
u h
ướ
ng lên.
Tr
ướ
c tiên, h
ă
y si
ế
t ch
ặ
t
đ
inh vít
ở
l
ỗ
chính gi
ữ
a phía trên
.
S
ử
d
ụ
ng m
ộ
t m
ặ
t ph
ẳ
ng
để
đả
m b
ả
o sao cho giá
đỡ
không
b
ị
nghiêng
ở
m
ộ
t gó c, và ví t ch
ặ
t giá
đỡ
và o
đ
ú ng v
ị
trí s
ử
d
ụ
ng ba l
ỗ
đ
inh ví t
ở
d
ướ
i
đ
á y.
Thá o b
ỏ
cá c
đ
inh ví t
đ
i
ề
u ch
ỉ
nh gó c t
ừ
đế
giá
đỡ
n
ố
i bên
trá i
và bên ph
ả
i
, và m
ở
đế
giá
đỡ
n
ố
i bên trá i
và bên
ph
ả
i
.
Ví t ch
ặ
t giá
đỡ
và o
đ
ú ng v
ị
trí s
ử
d
ụ
ng cá c
đ
inh ví t
ở
hai l
ỗ
đ
inh ví t cò n l
ạ
i phí a trên
đỉ
nh.
S
ử
d
ụ
ng cá c
đ
inh ví t
đ
i
ề
u ch
ỉ
nh gó c
đ
ã
đượ
c thá o ra
để
th
ự
c hi
ệ
n
đ
i
ể
u ch
ỉ
nh gó c
ở
b
ướ
c 4.
4.
Đ
i
ề
u ch
ỉ
nh góc c
ủ
a giá
đỡ
treo t
ườ
ng
Góc c
ủ
a giá
đỡ
có th
ể
đượ
c
đ
i
ề
u ch
ỉ
nh t
ă
ng lên 5
độ
cho m
ộ
t trong n
ă
m v
ị
trí t
ừ
“0
độ
nghiêng”
đế
n “20
độ
nghiêng”.
Giá
đỡ
treo t
ườ
ng
đượ
c chuy
ể
n t
ừ
x
ưở
ng ch
ế
t
ạ
o
ở
v
ị
trí gó c “0
độ
nghiêng”.
Để
thay
đổ
i gó c nà y, hã y s
ử
d
ụ
ng
cá c
đ
inh ví t
đ
i
ề
u ch
ỉ
nh gó c
để
thay
đổ
i v
ị
trí c
ủ
a thanh ch
ố
ng.
(Si
ế
t ch
ặ
t mômen quay: t
ừ
1,2
đế
n 1,5 N•m)
“20
độ
nghiêng”
“0
độ
nghiêng”
“15
độ
nghiêng”
“10
độ
nghiêng”
“5
độ
nghiêng”
Thanh ch
ố
ng
“0
độ
nghiêng”
Nghiêng t
ừ
5
đế
n
20
độ
Khi góc
đượ
c
đặ
t lên
đế
n
“0
độ
nghiêng”
Khi góc
đượ
c
đặ
t lên
đế
n
“15
độ
nghiêng”
Cá c
đ
inh ví t
đ
i
ề
u ch
ỉ
nh gó c
B
ề
m
ặ
t c
ủ
a t
ườ
ng
B
ề
m
ặ
t c
ủ
a t
ườ
ng
Ghi chú
• Khi s
ử
d
ụ
ng m
ộ
t s
ố
lo
ạ
i cáp HDMI ho
ặ
c cáp PC, dây cáp có th
ể
ch
ạ
m vào t
ườ
ng và gây h
ư
h
ạ
i cho thi
ế
t b
ị
đầ
u cu
ố
i HDMI
(HDMI terminal) ho
ặ
c thi
ế
t b
ị
đầ
u vào c
ủ
a PC (PC input terminal) trên b
ộ
máy thu hình. Trong tr
ườ
ng h
ợ
p này, hãy
đ
i
ề
u
ch
ỉ
nh góc c
ủ
a giá
đỡ
treo t
ườ
ng sao cho dây cáp không b
ị
v
ậ
t n
ặ
ng
đ
è lên.
86
Ti
ế
ng V
i
ệ
t
5. G
ắ
n các mi
ế
ng
đệ
m cách
đ
i
ệ
n lên trên TV
plasma
Đặ
t TV plasma áp m
ặ
t xu
ố
ng m
ộ
t t
ấ
m ch
ă
n ho
ặ
c m
ộ
t mi
ế
ng v
ả
i
s
ạ
ch và ti
ế
n hành theo h
ướ
ng d
ẫ
n d
ướ
i
đ
ây:
C
ẩ
n th
ậ
n tránh c
ọ
x
ướ
c ho
ặ
c gây h
ư
h
ỏ
ng cho TV n
ế
u b
ị
nhô
các ph
ầ
n c
ủ
a TV ra ngoài.
S
ử
d
ụ
ng
đầ
u tu
ố
c-n
ơ
- vít Phillips
để
tháo b
ỏ
các n
ắ
p vít (4) t
ừ
TV plasma.
* B
ề
ngoài c
ủ
a TV plasma khác nhau tu
ỳ
theo
lo
ạ
i. Hình bên d
ướ
i là m
ộ
t ví d
ụ
minh ho
ạ
cho
lo
ạ
i có th
ể
ứ
ng d
ụ
ng
đượ
c.
Đầ
u tu
ố
c-n
ơ
-vít Phillips
N
ắ
p vít
Ch
ă
n
Ch
ă
n
Ghi chú
•
Đặ
t các n
ắ
p vít v
ừ
a tháo ra
ở
m
ộ
t n
ơ
i an toàn.
(Chúng có th
ể
s
ẽ
đượ
c dùng
đế
n khi ti
ế
n hành l
ắ
p
đặ
t
ở
v
ị
trí th
ẳ
ng
đứ
ng.)
H
́
nh v
ẽ
bên ph
ả
i minh h
ọ
a công
đ
o
ạ
n l
ắ
p
đặ
t các ph
ụ
ki
ệ
n M8x32
Vít
đầ
u ch
́
m
, v
̣
ng
đệ
m h
́
nh
đĩ
a r
ă
ng c
ư
a
, v
̣
ng
đệ
m cách
đ
i
ệ
n
và các v
̣
ng
đệ
m
(x4 cho m
ỗ
i ph
ầ
n), s
ử
d
ụ
ng ch
́
a v
ặ
n Allen
l
ụ
c giác
t
ạ
i các v
ị
trí n
ơ
i mà các n
ắ
p vít
đượ
c tháo tr
ướ
c
đ
ó.
(Si
ế
t ch
ặ
t mômen quay: t
ừ
3
đế
n 4 N•m)
6. G
ắ
n TV plasma lên giá treo và k
ế
t n
ố
i TV
v
ớ
i các thi
ế
t b
ị
khác
Tháo b
ỏ
các
đ
inh vít
đượ
c
đ
ánh d
ấ
u
đỏ
bên trái và ph
ả
i (m
ộ
t
cái
ở
phía trái và m
ộ
t cái
ở
phía ph
ả
i), nh
ữ
ng
đ
inh vít này dùng
để
si
ế
t ch
ặ
t và n
ớ
i l
ỏ
ng TV plasma.
G
ắ
n các mi
ế
ng
đệ
m cách
đ
i
ệ
n phía trên
đỉ
nh c
ủ
a TV plasma lên
trên r
ă
nh c
ắ
t n
ằ
m trên
đỉ
nh c
ủ
a giá
đỡ
treo t
ườ
ng và phía d
ướ
i
TV plasma.
Kéo TV plasma v
ề
phía b
ạ
n nh
ư
mô t
ả
trong h
́
nh minh h
ọ
a bên
ph
ả
i, và k
ế
t n
ố
i TV v
ớ
i các thi
ế
t b
ị
khác.
Sau khi hoàn thi
ệ
n công
đ
o
ạ
n k
ế
t n
ố
i, nâng TV plasma nh
ẹ
lên
và chèn các mi
ế
ng
đệ
m cách
đ
i
ệ
n phía d
ướ
i
đ
áy TV vào các l
ỗ
ở
ph
ầ
n d
ướ
i c
ủ
a giá
đỡ
treo t
ườ
ng.
R
ồ
i t
ừ
t
ừ
h
ạ
th
ấ
p TV plasma xu
ố
ng.
Khe rãnh phía trên
đỉ
nh
Mi
ế
ng
đệ
m cách
đ
i
ệ
n
phía trên
đỉ
nh
Đ
inh vít
đượ
c
đ
ánh d
ấ
u
đỏ
đượ
c dùng
để
g
ắ
n và tháo r
ỡ
TV plasma
L
ỗ
ở
đ
áy
Mi
ế
ng
đệ
m cách
đ
i
ệ
n
ở
đ
áy
B
ề
m
ặ
t c
ủ
a t
ườ
ng
B
ề
m
ặ
t c
ủ
a t
ườ
ng
CHÚ Ý
• N
ế
u TV plasma b
ị
nâng lên quá nhi
ề
u, ph
ầ
n trên
đỉ
nh c
ủ
a nó s
ẽ
tr
ở
nên không kh
ớ
p so v
ớ
i giá
đỡ
treo t
ườ
ng.
Quy trình l ắ p ráp
87
Ti
ế
ng V
i
ệ
t
7. G
ắ
n TV plasma lên
L
ắ
p
đ
inh vít
đị
nh v
ị
ph
ụ
(2) vào l
ỗ
l
ắ
p
đ
inh vít
đị
nh v
ị
trên các
c
ạ
nh (trái và ph
ả
i) c
ủ
a giá
đỡ
treo t
ườ
ng.
Si
ế
t ch
ặ
t các
đ
inh vít
đượ
c
đ
ánh d
ấ
u
đỏ
bên trái và ph
ả
i
(m
ộ
t
ở
bên trái và m
ộ
t
ở
bên ph
ả
i) vào các l
ỗ
g
ắ
n
đ
inh vít
đ
ánh d
ấ
u
đỏ
bên c
ạ
nh c
ủ
a giá
đỡ
treo t
ườ
ng.
(Si
ế
t ch
ặ
t mômen quay: t
ừ
1,2
đế
n 1,5 N•m)
L
ỗ
l
ắ
p
đ
inh vít
đị
nh v
ị
Đ
inh vít
đị
nh v
ị
L
ỗ
g
ắ
n
đ
inh vít
đượ
c
đ
ánh
d
ấ
u
đỏ
dùng
để
gi
ữ
và tháo
TV plasma
Giá
đỡ
treo t
ườ
ng
Đ
inh vít
đượ
c
đ
ánh d
ấ
u
đỏ
đượ
c
dùng
để
g
ắ
n và tháo r
ỡ
TV plasma
B
ề
m
ặ
t c
ủ
a t
ườ
ng
Ghi chú
•
Để
tránh không cho m
ố
i n
ố
i gi
ữ
a TV plasma và giá
đỡ
treo t
ườ
ng tr
ở
nên l
ỏ
ng l
ẻ
o, các
đ
inh vít
đị
nh v
ị
ph
ả
i
đượ
c v
ặ
n ch
ặ
t
ở
phía trái và
ph
ả
i
đế
n t
ậ
n chân
đế
c
ủ
a giá
đỡ
.
Cách th
ứ
c tháo d
ỡ
TV plasma kh
ỏ
i giá
đỡ
treo t
ườ
ng
Tháo các
đ
inh vít
đị
nh v
ị
màn hình
(m
ộ
t
ở
bên trái và m
ộ
t
ở
bên
ph
ả
i)
đượ
c l
ắ
p trên các c
ạ
nh c
ủ
a giá
đỡ
treo t
ườ
ng.
Tháo r
ờ
i các dây n
ố
i TV plasma v
ớ
i các b
ộ
ph
ậ
n khác.
Trong khi nâng ph
ầ
n
đ
áy c
ủ
a TV plasma, hãy kéo TV plasma v
ề
phía
b
ạ
n.
Ngay khi mi
ế
ng
đệ
m cách
đ
i
ệ
n
ở
d
ướ
i
đ
áy c
ủ
a TV
đượ
c tháo ra,
hãy nâng TV plasma theo chi
ề
u th
ẳ
ng
đứ
ng.
Mi
ế
ng
đệ
m cách
đ
i
ệ
n d
ướ
i
đ
áy
Đ
inh vít
đị
nh v
ị
B
ề
m
ặ
t c
ủ
a t
ườ
ng
B
ề
m
ặ
t c
ủ
a t
ườ
ng
88
Wall-hanging bracket (Adjustable angle type)
External dimensions drawing
Wandhalterung (Typ mit einstellbarem Winkel)
Abbildung mit externen Abmessungen
Muurbevestigingssteun (met verstelbare montagehoek)
Tekening met buitenafmetingen
Staffa di montaggio alla parete (con angolazione regolabile)
Schema delle dimensioni esterne
Applique de fixation au mur (type à angle réglable)
Plan des dimensions extérieures
Soporte para colgar en pared (Tipo de ángulo ajustable)
Dibujo de dimensiones externas
Suporte de instalação na parede (Ângulo ajustável)
Desenho das dimensões externas
Väggupphängningshållare (vinklingsbar typ)
Detaljskiss över yttermått
Vægophæng (justerbar vinkeltype)
Tegning af udvendige mål
Кронштейн
для
крепления
на
стену
(
Модель
с
регулируемым
углом
)
Схема
с
внешними
размерами
Настінний
кронштейн
(
для
монтажу
із
можливістю
регулювання
кута
нахилу
)
Креслення
зовнішніх
розмірів
壁挂式框架 ( 角度可调型 )
外部尺寸图
Giá
đỡ
treo t
ườ
ng (lo
ạ
i góc có th
ể
đ
i
ể
u ch
ỉ
nh)
B
ả
n v
ẽ
kích th
ướ
c ngoài
(Unit : mm (inches))
(Einheit: mm)
(Eenheid: mm)
(Unità: mm)
(Unité : mm)
(Unidad: mm)
(Unidade : mm)
(Enhet: mm)
(Enhed: mm)
(
Единицы
:
мм
)
(
Одиниці
виміру
:
мм
)
( 单位 :毫米 )
(
Đơ
n v
ị
: mm)
External dimensions table
Tabelle mit externen Abmessungen
Tabel met buitenafmetingen
Tabella delle dimensioni esterne
Tableau des dimensions extérieures
Tabla de dimensiones externas
Tabela com as dimensões externas
Yttermåttstabell
Oversigt over udvendige mål
Таблица
внешних
размеров
Таблиця
зовнішніх
розмірів
外形尺寸
B
ả
ng kích th
ướ
c ngoài
•
Applicable models
•
Zutreffende Modelle
•
Modellen waarop van
toepassing
•
Modelli applicabili
•
Modèles concernès
•
Modelos aplicables
•
Modelos a que se
aplicam
•
Modell
•
Anvendelige modeller
•
Πодходящие
модели
•
Моделі
•
适用型号
•
Các mô hình áp d
ụ
ng
•
Dimensions
•
Abmessungen
•
Afmetingen
•
Dimensioni
•
Dimensions
•
Dimensiones
•
Dimensões
•
Mått
•
Mål
•
Размеры
•
Розміри
•
尺寸
•
Kích th
ướ
c
•
Attachment angle
•
Anbringungswinkel
•
Montagehoek
•
Angolo di collegamento
•
Angle de montage
•
Ángulo de ajuste
•
Ângulo de montagem
•
Monteringsvinkel
•
Fastgørelsesvinkel
•
Угол
прикрепления
•
Кут
нахилу
•
角度
•
Góc n
ố
i
0°
5°
10°
15°
20°
mm (inches)
мм
/
毫米
mm (inches)
мм
/
毫米
mm (inches)
мм
/
毫米
mm (inches)
мм
/
毫米
mm (inches)
мм
/
毫米
TC-P58V10
TC-P58V10X
TC-P58V11B
TX-P58V10B
TX-P58V10E
TX-PR58V10
TH-P58V10A
TH-P58V10Z
TH-P58V10M
TH-P58V10R
TH-P58V10P
TH-P58V10C
A
1422 (56.0)
B
881 (34.7)
C
90 (3.5)
D
96 (3.8)
107 (4.2)
116 (4.6)
124 (4.9)
131 (5.2)
E
163 (6.4)
225 (8.9)
286 (11.3) 344 (13.5) 399 (15.7)
F
74 (2.9)
62 (2.4)
49 (1.9)
36 (1.4)
22 (0.9)
G
94 (3.7)
TC-P58S1
A
1424 (56.1)
B
882 (34.7)
C
94 (3.7)
D
102 (4.0)
112 (4.4)
122 (4.8)
131 (5.2)
138 (5.4)
E
168 (6.6)
229 (9.0)
288 (11.3) 346 (13.6) 401 (15.8)
F
74 (2.9)
62 (2.4)
50 (2.0)
37 (1.5)
24 (0.9)
G
103 (4.1)
TC-P54G10
A
1313 (51.7)
B
832 (32.8)
C
96 (3.8)
D
102 (4.0)
112 (4.4)
122 (4.8)
130 (5.1)
137 (5.4)
E
169 (6.7)
226 (8.9)
281 (11.1) 334 (13.1) 384 (15.1)
F
74 (2.9)
62 (2.4)
50 (2.0)
37 (1.5)
24 (0.9)
G
109 (4.3)
550 (21.7)
500 (19.7)
25 (1.0)
25 (1.0)
72.5 (2.9)
C
E
A
F
G
17.5 (0.8)
325 (12.8)
103.5
(4.1)
440 (17.4)
446 (17.6)
B
D
55 (2.2)
55 (2.2)
89
•
Applicable models
•
Zutreffende Modelle
•
Modellen waarop van
toepassing
•
Modelli applicabili
•
Modèles concernès
•
Modelos aplicables
•
Modelos a que se
aplicam
•
Modell
•
Anvendelige modeller
•
Πодходящие
модели
•
Моделі
•
适用型号
•
Các mô hình áp d
ụ
ng
•
Dimensions
•
Abmessungen
•
Afmetingen
•
Dimensioni
•
Dimensions
•
Dimensiones
•
Dimensões
•
Mått
•
Mål
•
Размеры
•
Розміри
•
尺寸
•
Kích th
ướ
c
•
Attachment angle
•
Anbringungswinkel
•
Montagehoek
•
Angolo di collegamento
•
Angle de montage
•
Ángulo de ajuste
•
Ângulo de montagem
•
Monteringsvinkel
•
Fastgørelsesvinkel
•
Угол
прикрепления
•
Кут
нахилу
•
角度
•
Góc n
ố
i
0°
5°
10°
15°
20°
mm (inches)
мм
/
毫米
mm (inches)
мм
/
毫米
mm (inches)
мм
/
毫米
mm (inches)
мм
/
毫米
mm (inches)
мм
/
毫米
TC-P54S1
TC-54PS14
TH-P54S10A
TH-P54S10M
TH-P54S10R
TH-P54S10P
A
1313 (51.7)
B
832 (32.8)
C
95 (3.7)
D
102 (4.0)
112 (4.4)
122 (4.8)
131 (5.2)
138 (5.4)
E
169 (6.7)
225 (8.9)
280 (11.0) 333 (13.1) 384 (15.1)
F
74 (2.9)
62 (2.4)
50 (2.0)
37 (1.5)
24 (0.9)
G
110 (4.3)
TC-P54V10
A
1336 (52.6)
B
835 (32.9)
C
83 (3. 3)
D
102 (4.0)
112 (4.4)
121 (4.8)
128 (5.0)
135 (5.3)
E
158 (6.2)
215 (8.5) 271 (10.7) 325 (12.8) 376 (14.8)
F
74 (2.9)
61 (2.4)
46 (1.8)
31 (1.2)
16 (0.6)
G
84 (3.3)
TC-P58VT25
TC-P58VT20B
TH-P58VT20A
TH-P58VT20S
A
1430 (56.3)
B
884 (34.9)
C
88 (3.5)
D
96 (3.8)
107 (4.3)
116 (4.6)
125 (5.0)
131 (5.2)
E
160 (6.3)
222 (8.8)
283 (11.2) 342 (13.5) 398 (15.7)
F
74 (3.0)
60 (2.4)
45 (1.8)
31 (1.3)
16 (0.7)
G
90 (3.6)
TC-P58S2
TC-58PS24
TH-P58S20A
TH-P58S20Z
TH-P58S20M
TH-P58S20R
TH-P58S20P
TH-P58S20C
A
1424 (56.1)
B
882 (34.8)
C
94 (3.8)
D
96 (3.8)
107 (4.3)
116 (4.6)
125 (5.0)
132 (5.2)
E
166 (6.6)
228 (9.0)
288 (11.4) 347 (13.7) 402 (15.9)
F
74 (3.0)
60 (2.4)
45 (1.8)
31 (1.3)
16 (0.7)
G
104 (4.1)
TC-P54VT25
TH-P54VT20A
TH-P54VT20Z
TH-P54V20A
TH-P54V20Z
A
1319 (52.0)
B
834 (32.9)
C
88 (3.5)
D
102 (4.1)
112 (4.5)
122 (4.9)
130 (5.2)
136 (5.4)
E
161 (6.4)
218 (8.6) 274 (10.8) 328 (13.0) 379 (15.0)
F
74 (3.0)
61 (2.5)
48 (1.9)
35 (1.4)
21 (0.9)
G
90 (3.6)
TC-P54G25
TC-P54G20
A
1313 (51.7)
B
832 (32.8)
C
88 (3.5)
D
102 (4.1)
112 (4.5)
122 (4.9)
130 (5.2)
136 (5.4)
E
161 (6.4)
218 (8.6) 273 (10.8) 327 (12.9) 378 (14.9)
F
74 (3.0)
61 (2.5)
48 (1.9)
35 (1.4)
21 (0.9)
G
88 (3.5)
M0409-2070
c
○
Panasonic Corporation 2009
Web Site : http://panasonic.net
•
Applicable models
•
Zutreffende Modelle
•
Modellen waarop van
toepassing
•
Modelli applicabili
•
Modèles concernès
•
Modelos aplicables
•
Modelos a que se
aplicam
•
Modell
•
Anvendelige modeller
•
Πодходящие
модели
•
Моделі
•
适用型号
•
Các mô hình áp d
ụ
ng
•
Dimensions
•
Abmessungen
•
Afmetingen
•
Dimensioni
•
Dimensions
•
Dimensiones
•
Dimensões
•
Mått
•
Mål
•
Размеры
•
Розміри
•
尺寸
•
Kích th
ướ
c
•
Attachment angle
•
Anbringungswinkel
•
Montagehoek
•
Angolo di collegamento
•
Angle de montage
•
Ángulo de ajuste
•
Ângulo de montagem
•
Monteringsvinkel
•
Fastgørelsesvinkel
•
Угол
прикрепления
•
Кут
нахилу
•
角度
•
Góc n
ố
i
0°
5°
10°
15°
20°
mm (inches)
мм
/
毫米
mm (inches)
мм
/
毫米
mm (inches)
мм
/
毫米
mm (inches)
мм
/
毫米
mm (inches)
мм
/
毫米
TC-P54S2
A
1313 (51.7)
B
832 (32.8)
C
95 (3.8)
D
102 (4.1)
112 (4.5)
122 (4.9)
130 (5.2)
137 (5.4)
E
167 (6.6)
224 (8.9)
279 (11.0) 333 (13.2) 383 (15.1)
F
74 (3.0)
61 (2.5)
48 (1.9)
35 (1.4)
21 (0.9)
G
94(3.8)
TH-P54S20A
TH-P54S20M
TH-P54S20R
TH-P54S20P
A
1313 (51.7)
B
832 (32.8)
C
95 (3.8)
D
102 (4.1)
112 (4.5)
122 (4.9)
130 (5.2)
138 (5.5)
E
167 (6.6)
224 (8.9)
279 (11.0) 333 (13.2) 384 (15.2)
F
74 (3.0)
61 (2.5)
48 (1.9)
35 (1.4)
21 (0.9)
G
105 (4.2)
Wall-hanging bracket (Adjustable angle type)
External dimensions drawing
Wandhalterung (Typ mit einstellbarem Winkel)
Abbildung mit externen Abmessungen
Muurbevestigingssteun (met verstelbare montagehoek)
Tekening met buitenafmetingen
Staffa di montaggio alla parete (con angolazione regolabile)
Schema delle dimensioni esterne
Applique de fixation au mur (type à angle réglable)
Plan des dimensions extérieures
Soporte para colgar en pared (Tipo de ángulo ajustable)
Dibujo de dimensiones externas
Suporte de instalação na parede (Ângulo ajustável)
Desenho das dimensões externas
Väggupphängningshållare (vinklingsbar typ)
Detaljskiss över yttermått
Vægophæng (justerbar vinkeltype)
Tegning af udvendige mål
Кронштейн
для
крепления
на
стену
(
Модель
с
регулируемым
углом
)
Схема
с
внешними
размерами
Настінний
кронштейн
(
для
монтажу
із
можливістю
регулювання
кута
нахилу
)
Креслення
зовнішніх
розмірів
壁挂式框架 ( 角度可调型 )
外部尺寸图
Giá
đỡ
treo t
ườ
ng (lo
ạ
i góc có th
ể
đ
i
ể
u ch
ỉ
nh)
B
ả
n v
ẽ
kích th
ướ
c ngoài
(Unit : mm (inches))
(Einheit: mm)
(Eenheid: mm)
(Unità: mm)
(Unité : mm)
(Unidad: mm)
(Unidade : mm)
(Enhet: mm)
(Enhed: mm)
(
Единицы
:
мм
)
(
Одиниці
виміру
:
мм
)
( 单位 :毫米 )
(
Đơ
n v
ị
: mm)
External dimensions table
Tabelle mit externen Abmessungen
Tabel met buitenafmetingen
Tabella delle dimensioni esterne
Tableau des dimensions extérieures
Tabla de dimensiones externas
Tabela com as dimensões externas
Yttermåttstabell
Oversigt over udvendige mål
Таблица
внешних
размеров
Таблиця
зовнішніх
розмірів
外形尺寸
B
ả
ng kích th
ướ
c ngoài
550 (21.7)
500 (19.7)
25 (1.0)
25 (1.0)
72.5 (2.9)
C
E
A
F
G
17.5 (0.8)
325 (12.8)
103.5
(4.1)
440 (17.4)
446 (17.6)
B
D
55 (2.2)
55 (2.2)

