Panasonic TYWK4P1RW – page 3
Manual for Panasonic TYWK4P1RW
41
Português
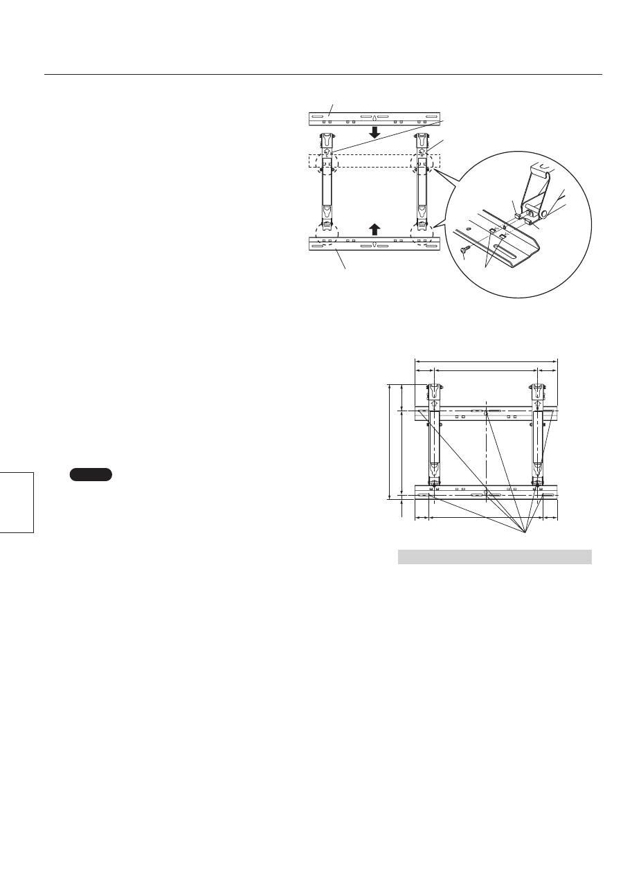
3. Montagem do suporte de instalação na
parede
ヂ
Monte o suporte de instalação na parede de maneira a que
as setas indicadas no mesmo fiquem a apontar para cima.
ッ
Primeiro de tudo, aperte o parafuso do orifício central
superior
ㅀ
.
ツ
Use um nível para garantir que a estrutura não está
inclinada para um lado e depois aperte os parafusos dos
cinco orifícios restantes.
Setas
ㅀ
Notas
• Se for necessário embeber os parafusos ou porcas na parede
antes de montar o suporte porque, por exemplo, a parede é de
betão, localize as posições dos orifícios colocando a própria
estrutura de montagem na parede ou calculando as posições dos
orifícios baseando-se no desenho e depois embeba os parafusos
e porcas de diâmetro nominal de 6 mm ou equivalente.
Quando embeber os parafusos, verifique se as cabeças
respectivas ficam saídas 10 a 15 mm da superfície da parede.
• Para montar o suporte na parede, use parafusos com um diâmetro
nominal de 6 mm ou equivalentes à venda nas lojas de ferragens
e adequados aos materiais da superfície de instalação na parede.
• Fixe os parafusos em pelo menos seis posições.
4. Ajustar o ângulo do suporte de instalação na parede
ヂ
O ângulo desta estrutura montada na parede pode ser ajustado em incrementos de 5 graus para uma das cinco
posições que vão de “inclinação zero” até “inclinação de 20 graus”.
O suporte de instalação na parede é enviado de fábrica com o ângulo definido para “inclinação zero.” Para
alterar o ângulo, retire os parafusos utilizados para o ajuste e mude a posição da espia
(Binário de aperto: 1.2 a 1.5 N•m)
“Inclinação de 20 graus”
“Inclinação de zero graus”
“Inclinação de 15 graus”
“Inclinação de 10 graus”
“Inclinação de 5 graus”
Espia
“Inclinação de zero
graus”
Inclinação de 5 a 20
graus
Quando o ângulo está
ajustado para “inclinação
de zero graus “
Quando o ângulo está
ajustado para “inclinação
de 15 graus”
Superfície da parede
Parafuso
utilizado para o
ajuste
Superfície da parede
Nota
• Quando utilizar determinados tipos de cabos HDMI (RP-CDHG80 ou RP-CDHG100) ou de PC, o cabo pode tocar na
parede e danificar o terminal HDMI ou o terminal de entrada de PC do televisor.
Se isso acontecer, ajuste o ângulo do suporte de instalação na parede, para que o peso não seja aplicado ao cabo.
42
Português
5. Instalar os espaçadores de isolamento no
televisor com ecrã de plasma
ヂ
Coloque o televisor com ecrã de plasma virado para baixo em
cima de um cobertor limpo ou outro pano sem pó nem sujidade
e execute os passos indicados abaixo.
Tenha cuidado para não riscar nem danificar o televisor com
ecrã de plasma se este último tiver peças salientes.
ッ
Utilize uma chave de parafusos Phillips para retirar as tampas
(4) do televisor com ecrã de plasma.
Tampa
㇙
㇚
㇛
㇜
㇞
Chave de parafusos Phillips
Nota
• Guarde as tampas que retirou num local seguro.
(Vai precisar delas se utilizar uma base de instalação separada.)
ツ
Como se mostra na figura da direita, coloque os parafusos Allen
de cabeça de embeber M8×32
㇙
, as anilhas dentadas côncavas
㇚
, os espaçadores de isolamento
㇛
e os espaçadores
㇜
(x4
para cada peça) nos locais onde as tampas estavam instaladas,
utilizando a chave Allen incluída
㇞
.
(Binário de aperto: 3 a 4 N•m)
6. Montagem do televisor com ecrã de
plasma no suporte de instalação na
parede e ligação do mesmo aos outros
componentes
ヂ
Retire os parafusos da direita e da esquerda com a marca
vermelha
㊍
(um no lado esquerdo e outro no lado direito)
utilizados para fixar e soltar o televisor com ecrã de plasma.
ッ
Instale os espaçadores de isolamento da parte superior do
televisor com ecrã de plasma nas ranhuras da parte superior do
suporte de instalação na parede e baixe o televisor.
ツ
Puxe o televisor de plasma para si, como se mostra na figura da
direita e ligue-o aos outros componentes.
ヅ
Depois de terminar as ligações, levante ligeiramente o televisor
com ecrã de plasma e introduza os espaçadores de isolamento
da parte inferior, nos orifícios da parte inferior do suporte de
instalação na parede.
テ
Agora baixe o televisor.
Ranhura na parte
superior
Espaçador de isolamento na parte
superior
Parafuso com marca
vermelha
㊍
utilizado para
fixar e soltar o televisor com
ecrã de plasma
Orifício na parte inferior
Espaçador de isolamento na
parte inferior
ッ
ツ
ヅ
テ
Superfície da parede
Superfície da parede
ATENÇÃO
• Se levantar demais o televisor com ecrã de plasma, a parte superior
do mesmo desprende-se do suporte de instalação na parede.
43
Português
7. Fixar o televisor com ecrã de plasma.
ヂ
Instale os parafusos acessórios
㇝
(2) para fixar o televisor
com ecrã de plasma aos orifícios laterais de montagem (lado
esquerdo e lado direito) do suporte de instalação na parede
utilizado para pender o televisor com ecrã de plasma.
ッ
Aperte bem os parafusos da esquerda e direita com a marca
vermelha
㊍
(um no lado esquerdo e outro no lado direito)
utilizados para fixar e soltar o televisor com ecrã de plasma
aos orifícios de montagem respectivos, localizados no lado
do suporte de instalação na parede do televisor com ecrã de
plasma.
(Binário de aperto: 1,2 a 1,5 N•m)
Orifício para o parafuso de
fixação do televisor com ecrã
de plasma
Parafuso de fixação da
unidade
㇝
Orifício para o parafuso com
marca vermelha utilizado
para fixar e soltar o televisor
com ecrã de plasma
Estrutura montada na parede
Parafuso com marca vermelha
㊍
utilizado para fixar e soltar o televisor
com ecrã de plasma
Superfície da parede
Nota
• Para evitar que o televisor se solte do suporte, os parafusos de fixação
respectivos têm de estar bem apertados
㇝
no lado direito e esquerdo
das suas bases.
8. Como retirar o televisor com ecrã de
plasma do suporte de instalação na
parede
ヂ
Retire os parafusos de fixação
㇝
(um do lado direito e outro do
lado esquerdo) instalados nos lados do suporte de instalação
na parede.
ッ
Levante a parte inferior do televisor com ecrã de plasma e puxe
este último para si.
ツ
Depois de soltar os espaçadores de isolamento da parte
inferior, levante o televisor, a direito, para cima.
Espaçador de isolamento
na parte inferior
Parafuso de fixação da unidade
㇝
ツ
ッ
Superfície da parede
Superfície da parede
44
Svenska
Säkerhetsföreskrifter
Varning
Se till att platsen för installationen har tillräcklig hållfasthet för att tillåta en längre tids användning.
• Om hållfastheten skulle minska med tiden kan det finnas risk för att skärmen faller ner och möjligen orsakar
skador.
Monteringsarbete och anslutning av kringutrustning bör endast utföras av en därtill kvalificerad specialist.
• Felaktig montering kan göra att utrustningen faller och orsakar skador.
Lämna alltid en säkerhetsmarginal när du överväger bärkraften i materialet på vilket utrustningen ska
monteras.
• Skador om materialet inte kan bära tyngden.
Montera aldrig på ett ställe som inte kan bära den aktuella tyngden.
• Om materialet inte är tillräckligt bärkraftigt kan utrustningen falla.
Försök inte att plocka isär eller modifiera väggupphängningshållaren.
• Annars kan det hända att enheten ramlar ner och skadas eller orsakar personskador.
Observera
Montera inte på ett ställe som kan utsättas för fukt, damm, rök, ånga eller hög värme.
• En sådan miljö kan orsaka fel på plasma-TV:n och skapa risk för brand eller elstötar.
Använd inga andra TV-apparater än de som anges i katalogen.
• I annat fall kan enheten tappas och utsättas för skador eller orsaka personskada.
Arbetet med att montera och demontera plasma-TV:n måste utföras av minst två personer.
• I annat fall kan plasma-TV:n falla och orsaka skador.
Montera inte så att skärmen är vänd uppåt, åt sidan eller nedåt.
• Detta kan leda till överhettning inuti plasma-TV:n och skapa risk för brand.
Försäkra att det förekommer ett friutrymme runt plasma-TV:n på minst 10 cm på ovansidan och höger
sida, minst 10 cm på vänster sida, minst 10 cm på undersidan, lämna fritt utrymme mellan bakpanelen och
väggen.
• Plasma-TV:n är försedd med luftuttagshål på ovansidan och luftintagshål på undersidan och baksidan. Täck inte
över dessa då detta skapar risk för brand.
Montera Plasma-TV:n genom att endast följa de steg som anges i dessa instruktioner. Montera den inte på
något annat sätt.
• Annars kan det hända att enheten ramlar ner och skadas eller orsakar personskador.
Montera monteringsskruvarna och nätkabeln på ett sådant sätt att de inte kommer i kontakt med insidan av
väggen.
• Kontakt med metallobjekt inuti väggen kan resultera i elektrisk stöt.
Använd endast de speciellt anpassade delarna som medföljer.
• Annars kan det hända att Plasma-TV:n ramlar ner från väggen och orsakar skada.
Avlägsna produkter som inte längre ska användas.
• I annat fall kan det inträffa att produkten faller ner, vilket kan resultera i personskador.
Hantering av enheten
1) Var noga med att välja lämpligt ställe för montering av TV:n då den kan missfärgas eller deformeras om den
usätts för hög värme i form av solsken, element el.dyl.
2) Rengör väggfästet genom att torka av det med en mjuk och torr trasa (t.ex. bomull eller flanell). Om fästet
är mycket smutsigt, kan du ta bort smutsen med ett neutralt rengöringsmedel som är utspätt i vatten. Torka
sedan rent med en torr trasa. Använd inte bensen, thinner eller möbelpolish då dessa medel kan skada
beläggningen. (Se skärmen bruksanvisning för information om hur du rengör skärmen. Om du använder en
kemiskt behandlad trasa, ska du följa de instruktioner som medföljde trasan.)
3) Fäst inte tejp eller etiketter på produkten. Sådana kan fläcka ner väggupphängningshållaren eller ytan på
ledningsskyddet för installation tätt intill väggen. Låt inga gummi- eller plastprodukter vara i långvarig kontakt
med ytan. (Det kan orsaka försämring av ytfinishen.)
4) Var försiktig under installationen eftersom stötar kan orsaka sprickor i panelen på plasma-TV:n.
Observera:
Denna hållare är endast avsedd för Panasonic plasma-TV-modeller (se sidan 80-83).
Användning med andra apparater kan leda till instabilitet som orsakar skador.
PROFESSIONELL INSTALLATION KRÄVS.
PANASONIC PÅTAR SIG INGET ANSVAR FÖR SKADOR PÅ EGENDOM OCH/ELLER ALLVARLIGA
PERSONSKADOR, INKLUSIVE DÖDSFALL, SOM BEROR PÅ OTILLFREDSSTÄLLANDE INSTALLATION
ELLER FELAKTIG HANTERING.
45
Svenska
Beståndsdelar
[ De bilder som visas i den här bruksanvisningen är
bara avsedda för illustrativa syften. ]
TY-WK4P1RW
Väggupphängningshållare (vinklingsbar typ)
Delar som används för att montera väggfästet
ヂ
Basens övre och undre
beslag
2)
ッ
Fästbasens vänstra
beslag
1)
ツ
Fästbasens högra beslag
(1)
ヅ
Skruvar M5x8
för montering av
fixturen (4)
Monteringsdelar
Vy av komplett fixtur
㇙
Försänkta insexskruvar
M8x32 (4)
㇜
Distanser
(4)
㇚
Låsbrickor (4)
㇝
Fästskruvar M5x50
(2)
㇛
Isoleringsdistanser
(4)
㇞
Insexnyckel
(medföljande verktyg)
(1)
Försiktighetsåtgärder vid montering av väggupphängningshållaren
♦
Installation och flyttningsjobb måste utföras av utbildade tekniker.
Om enheten är installeras eller flyttas på ett felaktigt sätt kan skärmen falla ner, vilket kan resultera i
personskador.
♦
Väggupphängningshållaren är avsedd för montering av en plasma-TV:n på en jämn, lodrät vägg. Försök
aldrig att montera på andra ytor.
♦
Försäkra att plasma-TV:n fungerar på rätt sätt och ej utsetts för fel genom att undvika följande ställen.
• Nära en sprinkler eller brand/rökdetektor
• Ställen som kan utsättas för stötar och vibrationer
• Nära högspänningsledningar eller kraftutrustning
• Nära högspänningskablar eller nätaggregat
• Ställen som utsätts för luftutblås från värmeapparater
• Där droppar av kondens från en luftkonditioneringsanläggning eller annan enhet kan bildas
♦
Utför montering i enlighet med konstruktionen och materialen i väggen.
♦
Använd vanliga skruvar med en diameter på 6 mm, avsedda för materialet (trä, metall, betong osv) i väggen
där fästet ska monteras.
♦
Se till att det finns ett lättillgängligt vägguttag för TV:ns nätkabel.
♦
Försäkra god ventilation runt enheten så att den omgivande temperaturen ej överstiger 40 °C. I annat fall kan
det uppstå fel på plasma-TV:n beroende på överhettning.
♦
Lägg ut en mjuk filt eller tyg på golvet så att varken stället eller golvet får märken eller skrapas under arbetet
med ihopsättning och installation.
♦
När delarna skruvas ihop bör du se till att skruvarna varken är alltför hårt eller för löst åtdragna.
♦
Vidtag tillräckliga åtgärder för att försäkra dig om att du har en säker omgivning när du utför ihopsättnings-
och installationsarbetet, och när du rör dig omkring under arbetets gång.
♦
Montera inte plasmatelevision under taklampor (spotlights, halogenlampor, od.).
Annars kan höljet böjas eller skadas av den höga värme som alstras.
46
Svenska
Monteringsprocedur
[ Använd aldrig någon annan metod
än vad som anges för installation.]
1. Montera väggfästet
Lägg basens övre och undre beslag
ヂ
och
fästbasens vänstra och högra beslag
ッ
och
ツ
enligt figuren.
Passa in flikarna på fästbasens vänstra och
högra beslag i uttagen (2 till vänster och 2
till höger) i basens övre och undre beslag.
Montera delarna med de fyra skruvarna
ヅ
för
fixturen.
(Åtdragningsmoment: 1.2 till 1.5 N•m)
Fästbasens högra beslag
ツ
Basens övre och undre beslag
ヂ
Basens övre och undre beslag
ヂ
Flik
Flik
Uttag
Fästbasens vänstra beslag
ッ
ヅ
2. Kontrollera monteringsplatsens styrka
ヂ
Väggfästet väger cirka 3,2 kg.
Ta reda på plasmaskärmens vikt i dess bruksanvisning.
ッ
Se konturskissen av väggfästet som visas till höger och
kontrollera väggens styrka vid de sex monteringspunkterna.
Om styrkan hos någon av dessa punkter är för svag, måste
lämpliga förstärkningsåtgärder utföras.
Enhet: mm
550
400
75
75
17.5
440
55
55
446
325
103.5
Väggmonteringshål (vid 6 punkter)
Använd skruvarna för att förankra fixturen.
Anm.
• Det finns fem förborrade monteringshål i väggfästets övre del och
ytterligare fem i dess undre del.
Använd reservhålen om väggen består av trä eller annat material
som inte ger tillräcklig monteringsstyrka så att lämplig montering
inte kan utföras med de sex positionerna som visas till höger.
Kom ihåg att beroende på monteringsytans material, kan det
bildas sprickor om två monteringsskruvar sitter med för kort
avstånd.
• Du får endast montera eller placera en plasma-TV på fixturen. Fäst
eller placera inte någon annan produkt.
• För information om de dimensioner som gäller när din plasma-TV
är monterad, se konturskissen (sidan 80-83).
47
Svenska
3. Montering av väggfästet på väggen.
ヂ
Montera väggfästet så att dess pilar pekar uppåt.
ッ
Börja med att skruva i skruven i det övre centrumhålet
ㅀ
.
ツ
Använd ett vattenpass för att få fixturen vågrät och skruva
sedan i de fem återstående skruvarna.
Pilar
ㅀ
Anm.
• Om det är nödvändigt att förankra bultar eller muttrar i väggen
innan väggfästet monteras, t.ex. om det är en betongvägg, ska
hålen märkas ut genom att man använder fixturen som mall eller
använder konturskissens mått för att beräkna hålens placering.
Förankra sedan bultar eller muttrar med en gängstorlek på 6 mm
eller motsvarande.
När man förankrar bultar måste man se till att deras huvuden
sticker ut 10 till 15 mm från väggytan.
• För att montera väggfästet på väggen ska man använda skruvar
med en gängstorlek på 6 mm eller motsvarande. Skruvar av rätt
dimension och av rätt typ för väggmaterialet finns att köpa på den
lokala järnhandeln.
• Montera minst sex skruvar.
4. Justera väggfästets vinkel.
ヂ
Väggfästets vinkel kan justeras i fem olika positioner med 5 graders mellanrum från noll till 20 graders lutning.
Vid leverans är väggfästet inställt på noll graders lutning. För att ändra denna vinkel, tar du bort skruvarna som
används för justering och sedan ändrar du stagets position.
(Åtdragningsmoment: 1.2 till 1.5 N•m)
20 graders lutning
Noll graders lutning
15 graders lutning
10 graders lutning
5 graders lutning
Stag
Noll graders lutning
Lutning från 5 till 20
grader
När vinkeln är inställd på
Noll graders lutning
När vinkeln är inställd på
15 graders lutning
Väggens yta
Skruv för
justering.
Väggens yta
Anm.
• Vid användning av vissa typer av HDMI-kablar (RP-CDHG80 eller RP-CDHG100) eller PC-kablar, kan det hända att kabeln
kommer i kontakt med väggen och orsakar skada på HDMI-anslutningen eller PC-ingångenpå TV:n.
Justera i så fall vinkeln på väggupphängningshållaren så att ingen vikt vilar på kabeln.
48
Svenska
5. Montera isoleringsdistanserna på din
plasma-TV
ヂ
Placera plasmaskärmen med framsidan nedåt på en ren filt
eller annat tygstycke som är fritt från smuts och fortsätt enligt
instruktionerna nedan.
Var försiktig så att du inte repar eller skadar din plasma-TV.
ッ
Använd en stjärnskruvmejsel (Phillips) för att ta bort locken (4)
från plasmaskärmen.
Lock
㇙
㇚
㇛
㇜
㇞
Stjärnskruvmejsel av Phillips-typ
Anm.
• Spara de borttagna locken.
(De måste användas om man senare ska använda ett brodstativ.)
ツ
Enligt figuren till höger monterar du de nödvändiga försänkta
insexskruvarna M8x32
㇙
, låsbrickorna
㇚
, isoleringsdistanserna
㇛
och distanserna
㇜
(x4 för varje del) med den medföljande
insexnyckeln
㇞
på de platser där locken togs bort.
(Åtdragningsmoment: 3 till 4 N•m)
6. Montera plasmaskärmen på väggfästet
och ansluta den till de andra
komponenterna
ヂ
Ta bort vänster och höger rödmarkerad skruv
㊍
(en på vänster
sida och en på höger sida) som används för att fästa och lossa
plasmaskärmen.
ッ
Montera isoleringsdistanserna överst på plasmaskärmen på den
övre delen av väggfästet och sänk sedan ned plasmaskärmen.
ツ
Dra plasmaskärmen mot dig enligt figuren och anslut den till de
andra komponenterna.
ヅ
Efter att anslutningarna utförts, lyfter du upp plasmaskärmen
något och för in isoleringsdistanserna i underkanten i hålen i
den undre delen av väggfästet.
テ
Sänk ned plasmaskärmen.
Uttag i den övre
delen
Isoleringsdistans i den övre delen
Rödmarkerad skruv
㊍
som
används för att fästa och
lossa plasmaskärmen.
Hål i den undre delen
Isoleringsdistans i den undre
delen
ッ
ツ
ヅ
テ
Väggens yta
Väggens yta
IAKTTAG FÖRSIKTIGHET
• Om plasma skärmen lyfts för högt, kommer dess övre del att lossa från
väggfästet.
49
Svenska
7. Fästa plasmaskärmen
ヂ
Montera tillbehörsskruvarna
㇝
(2) för att fästa plasmaskärmen
i de två monteringshålen på sidorna (vänster och höger) av
väggfästet.
ッ
Dra åt vänster och höger rödmarkerad skruv
㊍
(en till
vänster och en till höger) som används för att fästa och lossa
plasmaskärmen i de rödmarkerade hålen på väggfästet.
(Åtdragningsmoment: 1,2 till 1,5 N•m)
Hål för den skruv som används
för att fästa plasmaskärmen.
Fästskruv
㇝
Monteringshål för den
rödmarkerade skruv som
används för att fästa och
lossa plasmaskärmen.
Väggfäste
Rödmarkerad skruv
㊍
som används
för att fästa och lossa plasmaskärmen.
Väggens yta
Anm.
• För att förhindra plasmaskärmen från att lossa från väggfästet, måste
dess fästskruvar
㇝
dras åt ordentligt till vänster och höger.
8. Hur man tar bort plasmaskärmen från
väggfästet
ヂ
Ta bort fästskruvarna
㇝
(en tillvänster och en till höger) från
sidorna av väggfästet.
ッ
Samtidigt som du lyfter upp plasmaskärmens underkant, drar
du den utåt mot dig.
ツ
När isoleringsdistanserna i underdelen har lossats, lyfter du
plasmaskärmen rakt uppåt.
Isoleringsdistans i
underdelen
Fästskruv
㇝
ツ
ッ
Väggens yta
Väggens yta
50
Dansk
Sikkerhedsforholdsregler
Advarsel
Kontroller, at installationsstedet er stærkt nok til at holde til længere tids brug.
• Hvis dets styrke bliver utilstrækkelig efter længere tids brug, kan skærmen falde ned med risiko for tilskadekomst.
Opsætningsarbejde og tilslutning af udvidelsesudstyr må aldrig foretages af andre end en kvalificeret
installationsspecialist.
• Ukorrekt opsætning kan medføre, at udstyret falder ned, hvilket kan resultere i tilskadekomst.
Medregn en sikkerhedsfaktor, når du vurderer bærestyrken på det sted, hvor opsætning påtænkes.
• Hvis bærestyrken ikke er tilstrækkelig, kan udstyret falde ned, hvilket kan resultere i tilskadekomst.
Opsæt ikke på et sted, der ikke kan bære vægten.
• Hvis opsætningsstedet ikke har den fornødne styrke, kan udstyret falde ned.
Undlad at skille soklen ad og foretage ændringer af den.
• I modsat fald kan apparatet vælte og lide skade, og tilskadekomst kan blive resultatet.
Forsigtig
Opsæt ikke på steder, hvor der forekommer meget fugt, støv, røg, damp eller varme.
• Dette kan have negativ indflydelse på plasma-tv’et og forårsage brand eller elektrisk stød.
Brug ikke andre tv'er end dem, der er nævnt i kataloget.
• I modsat fald kan enheden tabes og blive beskadiget, ligesom det kan medføre personskader.
Arbejdet med opsætning og nedtagning af plasma-tv’et skal udføres af mindst to personer.
• Plasma-tv’et kan falde ned og forårsage tilskadekomst.
Opsæt ikke med ophænget vendt opad, sidelæns eller vendt på hovedet.
• Dette kan forårsage varmeophobning i plasma-tv’et, hvilket kan resultere i brand.
Sørg for frit rum omkring plasma-tv’et med mindst 10 cm frit rum ovenover og til højre, og mindst 10 cm til
venstre, og mindst 10 cm til bunden, sørg for, at der er afstand mellem bagpanelet og væggen.
• Plasma-tv’et er forsynet med udluftningshuller i toppen, og luftindtagningshuller i bunden og på bagsiden.
Tildækning af disse kan resultere i brand.
Installer kun plasma-tv’et ved at udføre de trin, som er specificeret i disse anvisninger. Installation på andre
måder må ikke udføres.
• I modsat fald kan apparatet vælte og lide skade, og tilskadekomst kan blive resultatet.
Installer monteringsskruerne og netledningen på en sådan måde, at de ikke vil komme i berøring med de
indvendige dele af væggen.
• Elektrisk stød kan blive resultatet af kontakt med metaldele inden i væggen.
Til installationen anvendes de specielle, nødvendige dele.
• I modsat fald kan plasma-tv’et falde ned fra væggen med risiko for tilskadekomst til følge.
Fjern produktet, hvis det ikke længere skal anvendes.
• Ellers er der risiko for at produktet falder ned med personskade som resultat.
At bemærke ved håndtering
1) Udvis forsigtighed, når De vælger stedet for placering af tv’et, da det kan blive misfarvet eller deformeret som
følge af lys eller varme, hvis det placeres, hvor det er udsat for direkte sollys, eller nær et varmeapparat.
2) Rengør vægophænget ved at tørre det af med en blød, tør klud (som for eksempel af bomuld eller flannel).
Hvis vægophænget er meget snavset, skal snavset fjernes med et neutralt rengøringsmiddel, som er fortyndet
med vand. Tør derefter efter med en tør klud. Anvend ikke benzen, fortynder eller møbelvoks, da dette kan
bevirke, at overfladebehandlingen skaller af.
(For information om rengøring af displayet, henvises til brugsvejledningen for displayet. Hvis du anvender en
kemisk behandlet klud, skal du følge de anvisninger, der følger med kluden).
3) Sæt ikke klæbebånd eller stickers på produktet. Disse kan misfarve vægophænget. Tillad ikke
længerevarende kontakt med gummi, vinylprodukter og lignende. (Dette De føre til forringelse af produktet).
4) Vær forsigtig under installationen, da stød kan forårsage revner i plasma-tv’ets panel.
Forsigtig:
Dette ophæng er kun beregnet til Panasonic plasmafjernsynsmodeller (se side 80-83).
Brug med andre apparater kan medføre ustabilitet, som kan resultere i personskade.
PROFESSIONEL INSTALLATION ER PÅKRÆVET.
PANASONIC PÅTAGER SIG INTET ANSVAR FOR EJENDOMSSKADE OG/ELLER ALVORLIG
PERSONSKADE, INKLUSIVE DØD, SOM ER ET RESULTAT AF FEJLAGTIG INSTALLATION ELLER
FORKERT HÅNDTERING.
51
Dansk
Komponenter
[ Illustrationerne i denne brugsvejledning
er kun til illustrationsformål.]
TY-WK4P1RW
Vægophæng (justerbar vinkeltype)
Dele, der anvendes til at samle vægophænget
ヂ
Øverste og nederste
basis-beslag (2)
ッ
Venstre beslag til ophæng
1)
ツ
Højre beslag til ophæng
(1)
ヅ
M5x8-skruer
til samling af
anordningen (4)
Dele, som anvendes til installationen
Billede af fuldt samlet anordning
㇙
M8×32 unbraco-
undersænkskruer (4)
㇜
Mellemringe
(4)
㇚
Krumme skiver med tænder
(4)
㇝
M5x50 enheds-befæstelsesskruer
(2)
㇛
Isolationsmellemstykker
(4)
㇞
Unbraconøgle
(medfølgende værktøj)
(1)
Forsigtighedsregler for opsætning af vægophæng
♦
Installations- og aftagningsarbejde må kun udføres af en kvalificeret fagmand.
Hvis produktet monteres eller fjernes på forkert vis, kan skærmen falde ned med personskade som resultat.
♦
Vægophænget er til brug ved ophængning af plasma-tv’et, på en lodret væg. Opsæt ikke på en anden
overfladen end en lodret væg.
♦
For at sikre at plasma-tv’et virker korrekt og forebygge problemer, må der ikke installeres på følgende
lokaliteter.
• Nær sprinklere eller brand- og røgdetektorer
• Hvor der er risiko for udsættelse for vibrationer eller stød
• Nær højspændingsledninger eller dynamiske strømforsyninger
• Tæt på højspændingsledninger eller dynamiske strømkilder
• Steder udsat for luftstrøm fra opvarmningsinstallationer
• Hvor der kan dannes kondensdråber fra et klimaanlæg eller et andet apparat
♦
Foretag opsætning, idet der anvendes teknikker, der passer til strukturen og materialerne på
opsætningsstedet.
♦
Anvend M6 skruer, der fås i handlen og som er egnede til det materiale, som væggens overflade består af
(træ, stålramme, beton, osv.), når ophænget skal sættes op på væggen.
♦
Netledningsstikket skal sættes i en stikkontakt, der er nem at komme til.
♦
Sørg for god luftventilation, således at udstyrets omgivelsestemperatur ikke overstiger 40 °C. Negligeres
dette, kan det medføre varmeophobning i plasma-tv’et, hvilket vil føre til fejlfunktion.
♦
Læg et blødt tæppe eller et stykke stof på gulvet, således at plasma-tv’et og gulvet ikke får mærker eller
ridser under samlingen og installationsarbejdet.
♦
Når De skruer delene fast, skal De sørge for, at skruerne hverken er utilstrækkeligt strammet eller strammet
for meget.
♦
Vær påpasselig med at opretholde sikkerheden omkring Dem, når De udfører samlings- og
installationsarbejdet, eller når De bevæger Dem omkring under arbejdet.
♦
Installer ikke plasma-tv under loftslamper (spotlys, halogenlamper etc.). Dette kan bevirke, at kabinettet
bliver skævt eller på anden måde lider skade på grund af den stærke varme.
52
Dansk
Opsætningsprocedure
[ Anvend aldrig nogen anden metode til
installation end den specificerede.]
1. Samling af vægophænget
Anbring det øverste og nederste basisbeslag
ヂ
og de venstre og højre basisbeslag
ッ
og
ツ
som vist på illustrationen.
Sæt fremspringene (tapperne) på
basisenhedens venstre og højre beslag ind til
udskæringerne (2 til venstre og 2 til højre) ind
i de øverste og nederste beslag, og fastgør
delene ved hjælp af de fire skruer
ヅ
til
samling af anordningen.
(Stramningsmoment: 1.2 til 1.5 N•m)
Basisenheds højre beslag
ツ
Øverste og nederste beslag
ヂ
Øverste og nederste beslag
ヂ
Tap
Tap
Udskæring
Basisenheds venstre beslag
ッ
ヅ
2. Bekræftelse af installationsstedets
styrke
ヂ
Vægophænget vejer omkring 3,2 kg.
Se brugsvejledningen for plasma-tv’et og kontroller vægten
af det plasma-tv’, som skal anbringes i vægophænget.
ッ
Se tegningen af vægophænget, som vises til højre,
og kontroller væggens styrke ved de seks viste
installationspunkter. Sørg for tilstrækkelig forstærkning,
hvis styrken ved et eller flere af disse punkter er
utilstrækkelig.
Enhed: mm
550
400
75
75
17.5
440
55
55
446
325
103.5
Vægmonteringshuller (på 6 steder)
Anvend altid skruerne til at fastgøre anordningen.
Bemærk:
• Der er fem forudborede monteringshuller i undersiden af
vægophænget.
Anvend de ekstra huller, hvis træ eller andre materialer anvendes
til væggen og en tilstrækkelig monteringsstyrke ikke kan opnås
ved at fastgøre anordningen ved de seks positioner, som vises til
højre.
Vær dog opmærksom på, at afhængigt af hvilke materialer
monteringsoverfladen er lavet af, kan der opstå revner i
overfladen, hvis skruerne anvendes i positioner, der sidder for tæt
ved hinanden.
• Monter eller anbring kun plasma-tv’et på anordningen. Andre
apparater må ikke anbringes på den.
• For detaljer om de anvendte mål, når plasma-tv’et monteres,
henviser vi til tegningen (på side 80-83).
53
Dansk
3. Installation af vægophænget på
væggen
ヂ
Installer vægophænget således, at dets pilemarkeringer
viser opad.
ッ
Fastgør først og fremmest skruen i det øverste midterhul
ㅀ
.
ツ
Anvend et vaterpas for at sikre, at anordningen ikke hælder
til en af siderne, og stram derefter skruerne i de fem
tilbageværende huller.
Pile
ㅀ
Bemærk:
• Hvis det er nødvendigt at indlejre bolte eller møtrikker i væggen
inden installationen af vægophænget fordi væggen er lavet af
beton, for eksempel, skal hullernes positioner bestemmes ved
at man anbringer den faktiske vægophængsanordning på plads
på væggen eller ved at man beregner hulpositionerne ud fra
tegningen og derefter indlejrer bolte og møtrikker med en nominel
diameter på 6 mm eller tilsvarende.
Når du indlejrer boltene, skal du sikre dig, at deres hoveder stikker
10 mm til 15 mm ud fra vægfladen.
• Til installation af vægophænget på væggen skal der anvendes
skruer med en nominel diameter på 6 mm eller tilsvarende, som
kan fås hos isenkræmmeren, og som er velegnede til materialet på
væggens installationssted.
• Fastgør skruerne på mindst seks steder.
4. Indstiling af vægophængets vinkel.
ヂ
Vægophængningsanordningens vinkel kan indstilles i 5-graders trin til en ud af fem positioner, som rangerer fra
“Ingen hældning” til “20-graders hældning”.
Når vægophænget leveres fra fabrikken, er vinklen indstillet til “ingen hældning”. For at ændre denne vinkel, skal
du fjerne de skruer, der anvendes til justering og ændre støttens stilling.
(Stramningsmoment: 1.2 til 1.5 N•m)
“20-graders hældning”
“Ingen hældning”
“15-graders hældning”
“10-graders hældning”
“5-graders hældning”
Støtte
“Ingen hældning”
5 til 20 graders
hældning
Når vinklen er indstillet til
“ Ingen hældning “
Når vinklen er indstillet til
“15-graders hældning”
Vægflade
Skruer, der
anvendes til
justering.
Vægflade
Bemærk:
• Når visse typer HDMI-kabler (RP-CDHG80 eller RP-CDHG100) eller PC-kabler anvendes, kan kablet komme i berøring
med væggen og øve skade på HDMI-terminalen eller PC-indgangsterminalen på fjernsynet.
I et sådant tilfælde skal man justere vinklen på vægophænget, således at kablet ikke udsættes for nogen vægt.
54
5. Installation af isolationssmellemstykkerne
på plasma-tv’et
ヂ
Anbring plasma-tv’et med skærmen nedad på et rent tæppe eller
et lignende stykke stof, som er fri for snavs og fremmedlegemer,
som vist herunder.
Vær omhyggelig med at forhindre ridser eller beskadigelse, hvis
plasma-tv’et har fremspringende dele.
ッ
Anvend en stjerneskruetrækker til at fjerne hætterne (4) fra
plasma-tv’et.
Hætte
㇙
㇚
㇛
㇜
㇞
Stjerneskruetrækker
Bemærk:
• Opbevar de aftagne hætter på et sted, hvor de ikke bortkommer.
(De skal anvendes igen, hvis der anvendes et separat
installationsstativ).
ツ
Som vist på illustrationen til højre, installeres tilbehørsdelene
M8×32 unbraco-undersænkskruerne
㇙
, de konkave skiver med
tænder
㇚
, isolationsmellemstykkerne
㇛
og mellemstykkerne
㇜
(x4 for hver del) med brug af den medfølgende unbraconøgle
㇞
på de steder, hvor hætterne sad.
(Stramningsmoment: 3 til 4 N•m)
6. Montering af plasma-tv’et på
vægophænget og tilslutning af det til de
andre komponenter
ヂ
Fjern de venstre og højre med rødt afmærkede skruer
㊍
(en til
venstre og en til højre), som anvendes til at fastholde og frigøre
plasma-tv’et.
ッ
Anbring isolationsmellemstykkerne oven på plasma-tv’et på
udskæringerne øverst på vægophænget, og sænk plasma-tv’et.
ツ
Træk plasma-tv’et mod dig som vist på illustrationen til højre, og
slut den til de andre komponenter.
ヅ
Løft, når tilslutningerne er udført, plasma-tv’et en smule og sæt
isolationsmellemstykkerne ved undersiden ind i hullerne på den
nederste del af vægophænget.
テ
Sænk nu plasma-tv’et
Øverste udskæring
Øverste isolationsmellemstykke
Skrue mærket med rødt
㊍
,
som anvendes til fastholde og
frigøre plasma-tv’et
Hul i bunden
Nederste
isolationsmellemstykke
ッ
ツ
ヅ
テ
Vægflade
Vægflade
FORSIGTIG
• Hvis plasma-tv’et løftes for meget, vil dets øverste del går af
vægophænget.
Dansk
55
Dansk
7. Fastgøring af plasma-tv’et
ヂ
Installer skruerne
㇝
(2) (ekstratilbehør) til fastgøring af plasma-
tv’et i skruemonteringshullerne på siderne (venstre og højre) på
det vægophæng, som anvendes til at fastholde plasma-tv’et.
ッ
Stram forsvarligt de venstre og højre med rødt afmærkede
skruer
㊍
(en til venstre og en til højre), som anvendes til at
fastholde og frigøre plasma-tv’et i de med rødt afmærkede
skruemonteringshuller på siden af det vægophæng, som
anvendes til at fastholde og frigøre plasma-tv’et.
(Stramningsmoment: 1,2 til 1,5 N•m)
Hul til montering af den skrue,
som anvendes til at fastholde
plasma-tv’et.
Enheds-befæstelsesskrue
㇝
Monteringshul til med
rødt afmærket skrue, der
anvendes til af fastholde og
frigøre plasma-tv’et
Vægmonteret anordning
Skrue mærket med rødt
㊍
, som
anvendes til fastholde og frigøre
plasma-tv’et
Vægflade
Bemærk:
• For at forhindre, at plasma-tv’et går løs fra vægophæmget, skal
enheds-befæstelsesskruerne
㇝
til venstre og højre strammes godt og
så de går helt i bund.
8. Hvordan plasma-tv’et tages af
vægophænget
ヂ
Fjern enheds-befæstelsesskruerne
㇝
(en til venstre og en til
højre), som er installeret på siderne af vægophænget.
ッ
Løft undersiden af plasma-tv’et og træk samtidigt plasma-tv’et
mod dig.
ツ
Løft plasma-tv’et lige op, når isolationsstykkerne på undersiden
er frigjort.
Isolationsstykker på
undersiden
Enheds-befæstelsesskrue
㇝
ツ
ッ
Vægflade
Vægflade
56
Ру
сский
ПРЕДУПРЕЖДЕНИЕ
Убедитесь
в
том
,
что
место
установки
достаточно
прочное
,
чтобы
выдержать
продолжительное
использование
.
•
Если
в
результате
продолжительного
использования
прочность
станет
недостаточной
,
дисплей
может
опрокинуться
,
что
может
привести
к
травме
.
Не
допускайте
выполнения
установочных
работ
и
удлинения
подсоединенного
оборудования
лицами
,
не
являющимися
квалифицированными
специалистами
по
установке
.
•
Неправильная
установка
может
привести
к
опрокидыванию
оборудования
,
что
может
привести
к
травме
.
При
учете
прочности
предлагаемой
позиции
установки
принимайте
во
внимание
коэффициенты
надежности
.
•
Недостаточная
прочность
привести
к
опрокидыванию
оборудования
,
что
может
привести
к
травме
.
Не
выполняйте
установку
в
местах
,
которые
не
способны
выдерживать
нагрузку
.
•
Если
прочность
в
месте
установки
станет
недостаточной
,
оборудование
может
упасть
.
Не
разбирайте
и
не
переделывайте
кронштейн
для
крепления
на
стену
.
•
Это
может
вызвать
поломку
или
падение
дисплея
,
а
также
привести
к
травмам
.
ПРЕДОСТЕРЕЖЕНИЕ
Не
используйте
телевизоры
и
дисплеи
,
отличающиеся
от
приведенных
в
каталоге
.
•
В
противном
случае
аппарат
может
упасть
и
повредиться
,
и
это
может
привести
к
травме
.
Не
выполняйте
установку
в
местах
,
подверженных
воздействию
влажности
,
пыли
,
дыма
,
пара
или
нагревания
.
•
Это
может
оказать
отрицательное
влияние
на
плазменный
телевизор
и
привести
к
возгоранию
или
поражению
электрическим
током
.
Работы
по
установке
и
удалению
плазменного
телевизора
должны
выполняться
,
по
крайней
мере
,
вдвоем
.
•
Плазменный
телевизор
может
упасть
и
вызвать
травмы
.
Не
устанавливайте
экраном
,
обращенным
вверх
,
в
сторону
или
вниз
.
•
Это
может
привести
к
накоплению
тепла
внутри
плазменного
телевизора
,
что
может
вызвать
пожар
.
Обеспечьте
вокруг
плазменного
телевизора
свободное
пространство
,
по
крайней
мере
, 10
см
сверху
,
c
боковых
сторон
и
снизу
и
оставьте
свободное
пространство
между
задней
панелью
и
стеной
.
•
Сверху
плазменного
телевизора
находятся
входные
отверстия
для
воздуха
,
а
снизу
и
сзади
находятся
выходные
отверстия
для
воздуха
.
Установите
плазменного
телевизора
,
выполнив
только
те
шаги
,
которые
указаны
в
этой
Инструкции
:
Не
устанавливайте
телевизор
никаким
другим
способом
.
•
Это
может
вызвать
неблагоприятное
воздействие
на
функционирование
плазменного
дисплея
,
что
может
привести
к
пожару
или
поражению
электрическим
током
.
Установите
крепежные
винты
и
шнур
питания
таким
образом
,
чтобы
они
не
контактировали
с
внутренними
частями
стены
.
•
В
результате
контакта
с
какими
-
либо
металлическими
предметами
внутри
стены
может
произойти
поражение
электрическим
током
.
Для
выполнения
установки
используйте
специальные
компоненты
.
•
В
противном
случае
плазменного
телевизора
может
упасть
со
стены
,
что
возможно
приведет
к
травме
.
Удалите
изделие
,
которое
больше
не
будет
использоваться
.
•
В
противном
случае
изделие
может
упасть
,
и
это
может
привести
к
травмам
.
Правила
обращения
1)
При
выборе
места
для
телевизора
необходимо
соблюдать
осторожность
,
потому
что
он
может
изменить
цвет
или
деформироваться
из
-
за
воздействия
света
или
тепла
,
если
он
расположен
под
прямым
солнечным
светом
или
около
обогревателя
.
2)
Для
очистки
протирайте
кронштейн
для
крепления
на
стену
мягкой
сухой
тканью
(
например
,
хлопковой
или
фланелевой
).
Если
кронштейн
сильно
загрязнен
,
удалите
загрязнение
с
помощью
нейтрального
моющего
средства
,
растворенного
в
воде
,
а
затем
протрите
начисто
сухой
тканью
.
Не
используйте
бензин
,
растворитель
или
мебельную
ваксу
,
так
как
они
могут
повредить
покрытие
.
(
Относительно
информации
о
чистке
дисплея
см
.
инструкцию
по
эксплуатации
дисплея
.
При
использовании
химически
обработанной
ткани
следуйте
инструкции
,
поставляемой
с
тканью
.)
3)
Не
прикрепляйте
на
изделие
клейкую
ленту
или
наклейки
.
Такие
действия
могут
привести
к
загрязнению
поверхности
кронштейна
для
крепления
на
стену
.
Не
допускайте
длительный
контакт
с
резиной
,
изделиями
из
винила
или
с
чем
-
то
подобным
. (
Такие
действия
приведут
к
повреждению
.)
4)
Соблюдайте
осторожность
во
время
установки
,
так
как
удары
могут
привести
к
‘
растрескиванию
панелей
’
корпуса
плазменного
телевизора
.
ПРЕДУПРЕЖДЕНИЕ
Этот
кронштейн
предназначен
только
для
моделей
плазменных
телевизоров
Panasonic (
См
.
стр
. 80-83).
Использование
с
другими
аппаратами
может
привести
к
неустойчивости
,
что
возможно
приведет
к
травме
.
ТРЕБУЕТСЯ
ПРОФЕССИОНАЛЬНАЯ
УСТАНОВКА
.
КОМПАНИЯ
PANASONIC
НЕ
НЕСЕТ
ОТВЕТСТВЕННОСТИ
НИ
ЗА
КАКОЙ
УЩЕРБ
И
/
ИЛИ
СЕРЬЕЗНЫЕ
ТРАВМЫ
,
ВКЛЮЧАЯ
СМЕРТЬ
,
ПРОИЗОШЕДШИЕ
ВСЛЕДСТВИЕ
НЕПРАВИЛЬНОЙ
УСТАНОВКИ
ИЛИ
НЕПРАВИЛЬНОГО
ОБРАЩЕНИЯ
.
Меры предосторожности
57
Ру
сский
Компоненты
[
Изображения
,
приведенные
в
этом
руководстве
,
используются
только
для
пояснительных
целей
.]
Кронштейн
для
крепления
на
стену
TY-WK4P1RW
(
Модель
с
регулируемым
углом
)
Детали
,
используемые
для
сборки
кронштейна
для
крепления
на
стену
ヂ
Верхнее
и
нижнее
крепление
основания
2)
ッ
Левое
крепление
основания
кронштейна
1)
ツ
Правое
крепление
основания
кронштейна
(1)
ヅ
Винты
M5x8
для
сборки
крепежного
приспособления
4)
Детали
,
используемые
для
установки
Вид
полностью
собранного
крепежного
приспособления
㇙
Винты
с
шестигранной
потайной
головкой
M8×32
(4)
㇜
Прокладки
(4)
㇚
Выпуклые
зубчатые
шайбы
(4)
㇝
Винты
для
крепления
аппарата
M5x50 (2)
㇛
Изоляционные
прокладки
(4)
㇞
Торцовый
ключ
(
входит
в
комплект
поставки
)
(1)
Меры
предосторожности
при
монтаже
кронштейна
для
крепления
на
стену
♦
Работы
по
установке
и
удалению
должны
выполняться
только
квалифицированным
специалистом
.
Если
аппарат
установлен
неправильно
,
дисплей
может
упасть
,
и
это
может
привести
к
травме
.
♦
Кронштейн
для
крепления
на
стену
предназначен
для
установки
плазменного
телевизора
на
вертикальную
стену
с
целью
просмотра
.
Не
устанавливайте
на
любую
другую
поверхность
,
отличную
от
вертикальной
стены
.
♦
Чтобы
обеспечить
правильное
функционирование
плазменного
телевизора
и
избежать
проблем
,
не
устанавливайте
его
в
следующих
местах
.
•
Около
разбрызгивателей
системы
пожаротушения
и
/
или
детекторов
возгорания
/
задымления
•
Где
есть
опасность
воздействия
вибрации
или
ударов
•
Около
проводов
высокого
напряжения
или
динамических
источников
питания
•
Около
источников
магнитных
полей
,
тепла
,
водяного
пара
или
копоти
•
Местах
,
подверженных
воздействию
потока
воздуха
из
нагревательных
приборов
•
Где
могут
формироваться
капли
конденсата
от
воздушных
кондиционеров
или
других
устройств
♦
Выполняйте
установку
,
используя
технологии
,
подходящие
для
структуры
и
материалов
места
установки
.
♦
Используйте
имеющиеся
в
продаже
винты
номинальным
диаметром
6
мм
,
подходящие
для
материала
стены
(
дерево
,
стальной
каркас
,
бетон
и
т
.
д
.),
в
котором
будет
закреплен
кронштейн
.
♦
Используйте
для
штепсельной
вилки
шнура
питания
телевизора
легкодоступную
сетевую
розетку
.
♦
Обеспечьте
хорошую
вентиляцию
,
чтобы
внутренняя
температура
оборудования
не
превышала
40 °C.
В
противном
случае
это
может
привести
к
накоплению
тепла
внутри
плазменного
телевизора
,
что
может
вызвать
неисправность
.
♦
Расстелите
мягкое
одеяло
или
ткань
на
полу
так
,
чтобы
плазменного
телевизора
и
пол
не
испачкались
и
не
поцарапались
во
время
работ
по
сборке
и
установке
.
♦
Во
время
привинчивания
деталей
следите
за
тем
,
чтобы
винты
не
были
затянуты
недостаточно
и
не
были
затянуты
чрезмерно
.
♦
Примите
достаточные
меры
,
чтобы
обеспечить
безопасность
вокруг
Вас
при
выполнении
работ
по
сборке
и
установке
или
во
время
перемещения
в
процессе
выполнения
работы
.
♦
Не
устанавливайте
этот
плазменный
телевизор
непосредственно
под
потолочными
светильниками
(
например
,
под
источниками
местного
освещения
,
прожекторного
освещения
или
галогенными
лампами
),
которые
обычно
выделяют
много
тепла
.
Такие
действия
могут
привести
к
деформации
или
повреждению
пластмассовых
деталей
корпуса
.
58
Ру
сский
Процедура монтажа
[
Ни
в
коем
случае
не
используйте
для
установки
методы
,
отличные
от
указанного
.]
1.
Сборка
кронштейна
для
крепления
на
стену
Положите
верхнее
и
нижнее
крепления
основания
g
ヂ
и
левое
и
правое
крепления
основания
кронштейна
ッ
и
ツ
,
как
показано
на
рисунке
.
Совместите
выступы
(
фиксаторы
)
на
левом
и
правом
креплениях
основания
кронштейна
с
вырезами
(2
слева
и
2
справа
)
на
верхнем
и
нижнем
креплениях
основания
и
закрепите
детали
,
используя
четыре
винта
ヅ
для
сборки
крепежного
приспособления
.
(
Крутящий
момент
:
от
1.2
до
1.5
Н
•
м
)
Правое
крепление
основания
кронштейна
ツ
Верхнее
и
нижнее
крепления
основания
ヂ
Верхнее
и
нижнее
крепления
основания
ヂ
Фиксатор
Фиксатор
Вырез
Левое
крепление
основания
кронштейна
ッ
ヅ
2.
Проверка
прочности
позиции
установки
ヂ
Кронштейн
для
крепления
на
стену
весит
приблизительно
3,2
кг
.
Обратитесь
к
инструкции
по
эксплуатации
плазменного
телевизора
и
уточните
вес
плазменного
телевизора
,
который
будет
устанавливаться
на
кронштейн
для
крепления
на
стену
.
ッ
Обратитесь
к
приведенному
справа
габаритному
чертежу
кронштейна
для
крепления
на
стену
и
проверьте
прочность
стены
в
шести
указанных
местах
установки
.
Если
прочность
стены
в
каком
-
либо
из
этих
мест
недостаточна
,
обеспечьте
достаточное
усиление
.
Единицы
:
мм
550
400
75
75
17.5
440
55
55
446
325
103.5
Отверстия
для
крепления
на
стену
(
в
6
позициях
)
Обязательно
используйте
винты
для
закрепления
крепежного
приспособления
.
Примечания
•
Имеются
пять
предварительно
просверленных
отверстий
для
крепления
сверху
и
еще
пять
снизу
кронштейна
для
крепления
на
стену
.
Используйте
предусмотренные
запасные
отверстия
,
если
стена
изготовлена
из
дерева
или
другого
материала
,
и
невозможно
обеспечить
достаточный
уровень
прочности
при
закреплении
крепежного
приспособления
в
шести
указанных
справа
местах
.
Однако
имейте
в
виду
,
что
в
зависимости
от
материала
,
из
которого
изготовлена
поверхность
крепления
,
при
использовании
винтов
в
слишком
близко
расположенных
местах
возможно
возникновение
трещин
на
поверхности
.
•
Закрепляйте
или
располагайте
на
крепежном
приспособлении
только
плазменный
телевизор
:
Не
устанавливайте
и
не
размещайте
никакие
другие
изделия
.
•
Относительно
подробностей
о
размерах
,
применяемых
при
креплении
плазменного
телевизора
,
обращайтесь
к
габаритному
чертежу
(
на
стр
. 80-83).
59
3.
Установка
на
стену
кронштейна
для
крепления
на
стену
ヂ
Установите
кронштейн
для
крепления
на
стену
так
,
чтобы
нанесенные
на
нем
стрелки
указывали
вверх
.
ッ
Прежде
всего
,
закрепите
винт
в
центральном
верхнем
отверстии
ㅀ
.
ツ
Используйте
уровень
,
чтобы
убедиться
в
том
,
крепежное
приспособление
не
наклонено
с
одной
стороны
,
а
затем
закрепите
винты
в
пяти
оставшихся
отверстиях
.
Стрелки
ㅀ
Примечания
•
Если
необходимо
заделать
в
стену
винты
или
гайки
до
установки
кронштейна
для
крепления
на
стену
,
например
,
если
стена
сделана
из
бетона
,
укажите
места
отверстий
,
поместив
на
место
крепления
на
стене
реальное
крепежное
приспособление
для
крепления
на
стену
,
или
вычислив
места
для
отверстий
по
габаритному
чертежу
,
а
затем
заделайте
винты
и
гайки
с
номинальным
диаметром
6
см
или
эквивалентные
им
.
При
заделывании
болтов
проверьте
,
чтобы
их
головки
выступали
из
поверхности
стены
на
10-15
мм
.
•
Для
установки
на
стену
кронштейна
для
крепления
на
стену
используйте
винты
с
номинальным
диаметром
6
мм
или
эквивалентные
им
,
приобретя
их
в
магазине
скобяных
изделий
,
и
подходящие
для
материала
стены
в
области
установки
.
•
Прикрепите
винты
как
минимум
в
шести
местах
.
4.
Регулировка
угла
кронштейна
для
крепления
на
стену
ヂ
Угол
этого
крепежного
устройства
для
крепления
на
стену
может
быть
установлен
с
шагом
в
5
градусов
в
одно
из
пяти
положений
,
от
положения
“
нулевого
наклона
”
до
“
наклона
в
20
градусов
.”
При
отправке
с
завода
-
изготовителя
угол
кронштейна
для
крепления
на
стену
установлен
на
“
нулевой
наклон
”.
Чтобы
поменять
этот
угол
,
удалите
винты
,
использующиеся
для
регулировки
,
и
измените
установочное
положение
крепления
.
(
Крутящий
момент
:
от
1.2
до
1.5
Н
•
м
)
“
Наклон
в
20
градусов
”
“
Нулевой
наклон
”
“
Наклон
в
15
градусов
”
“
Наклон
в
10
градусов
”
“
Наклон
в
5
градусов
”
Крепление
“
Нулевой
наклон
”
Наклон
от
5
до
20
градусов
При
установке
угла
на
“
нулевой
наклон
”
При
установке
угла
на
“
наклон
в
15
градусов
”
Пов
ер
хность
ст
ены
Винт
,
использующийся
для
регулировки
.
Пов
ер
хность
ст
ены
Примечание
•
При
использовании
некоторых
типов
кабелей
HDMI (RP-CDHG80
или
RP-CDHG100)
или
кабелей
ПК
,
кабель
может
касаться
стены
и
вызывать
повреждение
разъема
HDMI
или
входного
разъема
ПК
на
телевизоре
.
В
этом
случае
подрегулируйте
угол
кронштейна
для
настенного
крепления
так
,
чтобы
на
кабель
не
прилагалось
давление
.
Ру
сский
60
Ру
сский
5.
Прикрепление
изоляционных
прокладок
к
плазменному
телевизору
ヂ
Положите
плазменный
телевизор
экраном
вниз
на
чистое
одеяло
или
подобную
мягкую
ткань
,
свободную
от
загрязнений
и
сора
,
и
следуйте
описанной
ниже
процедуре
.
Примите
меры
,
чтобы
не
допустить
царапин
или
повреждений
в
случае
наличия
у
плазменного
телевизора
выступающих
частей
.
ッ
Используйте
крестовую
отвертку
,
чтобы
удалить
колпачки
(4)
с
плазменного
телевизора
.
Колпачок
㇙
㇚
㇛
㇜
㇞
Крестовая
отвертка
Примечание
•
Сохраните
снятые
колпачки
в
надежном
месте
.
(
Они
понадобятся
при
использовании
отдельной
установочной
стойки
.)
ツ
В
соответствии
с
рисунком
справа
установите
дополнительные
винты
с
шестигранной
потайной
головкой
M8×32
㇙
,
выпуклые
зубчатые
шайбы
㇚
,
изоляционные
прокладки
㇛
и
прокладки
e
㇜
(x4
для
каждой
детали
),
используя
прилагаемый
торцовый
ключ
㇞
,
в
места
,
в
которых
ранее
были
установлены
колпачки
.
(
Крутящий
момент
:
от
3
до
4
Н
•
м
)
6.
Прикрепление
плазменного
телевизора
к
кронштейну
для
монтажа
на
стену
и
подсоединение
других
компонентов
ヂ
Удалите
левый
и
правый
винты
,
отмеченные
красным
㊍
(
один
слева
и
один
справа
),
использовавшиеся
для
крепления
,
и
снимите
плазменный
телевизор
.
ッ
Вставьте
изоляционные
прокладки
на
верхней
части
плазменного
телевизора
в
вырезы
на
верхней
части
кронштейна
для
крепления
на
стену
и
сдвиньте
плазменный
телевизор
вниз
.
ツ
Потяните
корпус
плазменного
телевизора
на
себя
,
как
показано
на
рисунке
справа
,
и
подсоедините
его
к
другим
компонентам
.
ヅ
После
завершения
подсоединений
слегка
поднимите
плазменный
телевизор
и
вставьте
изоляционные
прокладки
снизу
в
отверстия
в
нижней
части
кронштейна
для
крепления
на
стену
.
テ
Теперь
опустите
плазменный
телевизор
.
Вырез
сверху
Изоляционная
прокладка
сверху
Отмеченный
красным
㊍
винт
,
используемый
для
крепления
и
снятия
плазменного
телевизора
Отверстие
сверху
Изоляционная
прокладка
снизу
ッ
ツ
ヅ
テ
Пов
ер
хность
ст
ены
Пов
ер
хность
ст
ены
ПРЕДОСТЕРЕЖЕНИЕ
•
Если
плазменный
телевизор
поднять
слишком
сильно
,
его
верхняя
часть
станет
выступать
из
кронштейна
для
крепления
на
стену
.

