Alexika RV 10 control FLEX auto: EN
EN: Alexika RV 10 control FLEX auto
38
Source language: German
EN
Contents
General hazard
Danger of being burnt!
Explication of warning symbols
Page
EC-Declaration of conformity
3
Explication of warning symbols
38
Warranty 38
Safety instructions
39
Correct use
40
Unpacking 41
Useful information
41
Vacuum control: two-position and speed-control
42
Setting up
43
Drive RV 10 control
Heating bath
Glassware
Hose system
Interfaces and outputs
51
Commissioning 53
Maintenance and cleaning
65
Accessories 65
Error codes
68
Technical data
69
Solvent table (excerpt)
70
In accordance with
IKA
®
warranty conditions, the warranty period is 24
months. For claims under the warranty please contact your local dea-
ler. You may also send the machine direct to our factory, enclosing the
delivery invoice and giving reasons for the claim. You will be liable for
freight costs.
Warranty
The warranty does not cover worn out parts, nor does it apply to faults
resulting from improper use, insufficient care or maintenance not carried
out in accordance with the instructions in this operating manual.
39
Safety instructions
• Only use the device under an all side-closed exhaust, or a compa rable
protective device.
• Adapt the quantity and the type of distilland to the size of the distilla
-
tion equipment. The cooler must work properly. Monitor the coolant
flow rate at the cooler outlet.
• The glass equipment must always be ventilated when working under
normal pressure (e.g. open outlet at cooler) in order to prevent a pres-
sure build-up.
• Please note that dangerous concentrations of gases, vapours or parti
-
culate matter can escape through the outlet at the cooler. Take appro-
priate action to avoid this risk, for example, downstream cold traps, gas
wash bottles or an effective extraction system.
• Evacuated glass vessels must not be heated on one side; the evapora
-
ting flask must rotate during the heating phase.
• The glassware is designed for operation under a vacuum of up to 1
mbar. The equipment must be evacuated prior to heating (see chap-
ter ”Commissioning”). The equipment must only be aired again after
cooling. When carrying out vacuum distillation, uncondensed vapours
must be condensed out or safely dissipated. If there is a risk that the
distillation residue could disintegrate in the presence of oxygen, only
inert gas must be admitted for stress relief
•
Caution!
Avoid peroxide formation. Organic peroxides can accumula-
te in distillation and exhaust residues and explode while decomposing!
Keep liquids that tend to form organic peroxides away from light, in
particular from UV rays and check them prior to distillation and exhaust
for the presence of peroxides. Any existing peroxides must be elimina-
ted. Many organic compounds are prone to the formation of peroxides
e.g. dekalin, diethyl ether, dioxane, tetrahydrofuran, as well as unsa-
turated hydrocarbons, such as tetralin, diene, cumene and aldehydes,
ketones and solutions of these substances
.
•
Danger of burning!
The heating bath, tempering medium, evapo-
rator piston and glass assembly can become hot during operation and
remain so for a long time afterwards! Let the components cool off
before continuing work with the device.
•
ATTENTION!
Avoid delayed boiling! Never heat the evaporating flask
in the heating bath without switching on the rotary drive!Sudden fo-
aming or exhaust gases indicate that flask content is beginning to de-
compose. Switch off heating immediately. Use the lifting mechanism to
lift the evaporator piston out of the heating bath. Evacuate the danger
zone and warn those in the surrounding area!
•
Caution!
Never operate the device when the evaporator piston is rota-
ting and the lift is raised.
Start at low speed and lower the evaporating
flask into the heating bath, increase to desired speed. Otherwise hot
tempering medium may be sprayed out!
• Set the speed of the drive so no tempering medium is sprayed out as a
result of the evaporator piston rotating in the heating bath. If necessary
reduce the speed.
• Do not touch rotating parts during operation.
•
Imbalance may result in uncontrolled resonance behaviour of the de-
vice or assembly. Glass apparatus may be damaged or destroyed. In the
event of unbalance or unusual noises, switch off the appliance immedi-
ately or reduce the speed.
• A vacuum may form inside the glassware in case of power outage. The
device will vent automatically when it is switched on again.
• The appliance does not start up again automatically following a cut in
the power supply.
• The device is only disconnected from the power supply network if the
device power switch is off or the plug is pulled out.
• The socket for the mains cord must be easily accessible.
For your protection
•
Read the operating instructions in full before star-
ting up and follow the safety instructions.
• Keep the operating instructions in a place where they can be accessed
by everyone.
• Ensure that only trained staff work with the appliance.
• Follow the safety instructions, guidelines, occupational health and
safety and accident prevention regulations.
When working under a
vacuum in particular!
• Wear your personal protective equipment in accordance with the ha
-
zard category of the medium to be processed. Otherwise there is a
risk of:
- splashing liquids,
- body parts, hair, clothing and jewellery getting caught,
- injury as a result of glass breakage.
•
Caution!
Inhalation of or contact with media such as poisonous li-
quids, gases, spray mist, vapours, dusts or biological and microbiologi-
cal materials can be hazardous to user.
• Set up the device in a spacious area on an even, stable, clean, non-slip,
dry and fireproof surface.
• Ensure that there is sufficient space above the device as the glass as
-
sembly may exceed the height of the device.
•
Prior to each use, always check the device, accessories and especially
the glass parts for damage. Do not use damaged components.
• Ensure that the glass assembly is tension-free! Danger of cracking as
a result of:
- stress due to incorrect assembly,
- external mechanical hazards,
- local temperature peaks.
• Ensure that the stand does not start to move due to vibrations respec
-
tively unbelance.
• Beware of hazards due to:
- flammable materials,
- combustible media with a low boiling temperature.
•
Caution!
Only process and heat up media that has a flash point higher than
the adjusted safe temperature limit of the heating bath that has been set.
The safe temperature limit of the heating bath must always be set to at
least 25 °C lower than the fire point of the media used.
• Do
not
operate the appliance in explosive atmospheres, with hazar-
dous substances or under water.
• Only process media that will not react dangerously to the extra ener
-
gy produced through processing. This also applies to any extra energy
produced in other ways, e.g. through light irradiation.
• Tasks with the device must only be performed when operation is mo
-
nitored.
• Operation with excess pressure is not permitted (for cooling water
pressure see "Technical Data")
• Do not cover the ventilation slots of the device in order to ensure ade
-
quate cooling of the drive.
• There may be electrostatic discharges between the medium and the
drive which could pose a direct danger.
• The appliance is not suitable for manual operation.
• Safe operation is only guaranteed with the accessories described in the
”Accessories” chapter.
• Refer to the operating instructions for the HB 10 heating bath.
• Refer to the operating instructions for the accessories, e.g. vacuum
pump.
• Position the positive pressure outlet of the vacuum pump under a fume
hood.
• Use the HB 10.2 cover or the HB 10.1 spray guard.
40
The following automatic modes are available in addition to manual
mode:
- 100% distillation,
- Volume-/quantity-dependent distillation.
front plate or the main switch on the back right side of the device using
the maximum total weight of 3.1 kg.
The evaporating flask is lifted out of the heating bath.
When using for the first time or after a long period of inactivity, proceed
as follows: use the motor to move the lift several times to the top and
bottom positions by pressing the lift function keys prior to interrupting
the power supply.
Note: Switching off and disconnecting the power supply shows a delay
compared to switching off using the "Power" switch on the front panel.
If the safety lift is not working, please contact the
IKA
®
Service depart-
ment.
For the evaporating equipment (evaporating flask plus contents), the ma-
ximum permissible weight is 3.0 kg! With larger loads there is the risk of
broken glass on the steam pipe!
Ensure that the safety lift has been powered down.
When working with large loads, always use low speeds. Unbalanced
loads can result in a broken steam pipe!
• Removable parts must be refitted to the appliance to prevent the infil
-
tration of foreign objects, liquids etc.
• Protect the appliance and accessories from bumps and impacts.
• Automatic operation: Always check evaporation processes before
starting automatic operation. Automatic operation must not be used
for unfamiliar evaporation processes.
Safety lift
When the device is switched off or the power supply disconnected, the
internal safety lift removes the evaporating flask from the heating bath.
When the safety lift is powered off, it is designed for a maximum total
weight (glassware and solvent) of 3.1 kg.
Sample calculation of total weight with vertical glassware and a 1 litre
flask:
Condenser + receiving flask + evaporating flask + fittings =
1200 g + 400 g + 280 g + 100 g = 1980 g
Maximum solvent load = 3100 g – 1980 g = 1320 g
Due to the design, the safety lift cannot be guaranteed for higher loads!
When using other types of condensers such as dry ice or intensive con-
densers as well as when using return distillation distributors with slip-on
condensers, it may be necessary to reduce the load by the added weight
of the glass apparatus.
Thus, prior to distillation, check whether the lift goes up without power
when laden with the glassware and distillation material.
The safety lift must be checked daily prior to operation. Use the motor
to move the lift to the lowest position and press the "Power" key on the
For protection of the equipment
• The voltage stated on the type plate must correspond to the mains
voltage.
• Socket must be earthed (protective ground contact).
• The appliance may only be opened by experts.
Correct use
•
Range of use
- Laboratories
- Schools
- Pharmacies
- Universities
The safety of the user cannot be guaranteed if the appliance is ope-
rated with accessories that are not supplied or recommended by the
manufacturer or if the appliance is operated improperly contrary to the
manufacturer’s specifications or if the appliance or the printed circuit
board are modified by third parties.
•
Use
Together with the accessories recommended by
IKA
®
, the device is
suitable for:
- quick and gentle distillation of liquids
- evaporation of solutions and suspensions
- crystallisation, synthesis or cleaning of fine chemicals
- drying of powder and granulate material
- recycling of solvents
Mode of operation: Tabletop device
41
•
Unpacking
- Please unpack the device carefully
- In the case of any damage a fact report must be sent immediately
(post, rail or forwarder)
•
Delivery scope
see table
Useful information
The device is equipped with a piston-operated safety mechanism. The
glass apparatus may contain a vacuum following interruption to the po-
wer supply; vent the system before switching back on. If the power cuts
out, the evaporator piston is automatically lifted out of the heating bath
by an integrated gas spring.
CAUTION!
The safety lift must be checked daily prior to operation. For
more information see the section entitled "Safety Instructions - Safety
Lift"!
In addition to offering a full range of manual and semi-automatic evapo-
ration operating modes, the RV 10 control rotary evaporator can also be
used for fully automatic and quantity-controlled evaporation processes.
Standard fittings for fully-automatic operation include a vacuum cont-
roller, a cooling water differential temperature measurement sensor and
a cooling water flow rate meter. The vacuum can be controlled in both
two-position and speed-controlled pumping operation with the help of
the integrated vacuum controller The device is designed for operation
with a cooling water supply system (e.g. laboratory thermostat), but can
also be run off a water supply line. Please refer to the Technical Data for
information on cooling water pressure, temperature constancy, flow rate
and local regulations.
We recommend using the RV 10.5001 water regulator valve when ope-
rating directly off a water supply line.
This valve allows the cooling water flow rate to be adjusted and automa-
tically cuts off the cooling water supply on completion of the distillation
process.
The RV 10.5002 water filter can be used to prevent particles of dirt pas-
sing from the water supply line into the valve mechanism.
If pressure reduction is required, we recommend fitting the RV 10.5003
pressure regulator valve in the pipe immediately downstream of the pick-
off point.
Automatic volume-dependent distillation:
The apparatus must be
brought up to operating temperature. This is achieved by conducting a
test distillation.
Distillation is a thermal separating process for liquid compounds based
on substance-specific, pressure-dependent boiling points through evapo-
ration and subsequent condensation.
The boiling point temperature decreases with decreasing external pressu-
re which means that work is usually done under reduced pressure. In this
way the heating bath can be maintained at a constant temperature (e.g.
60 °C). Using the vacuum, the boiling point is set with a steam tempe-
rature of approx. 40 °C. The cooling water for the condensation cooler
should not be warmer than 20 °C (60-40-20 rule).
A chemical resistant membrane pump with a vacuum controller should
be used to create the vacuum. The pump is protected from solvent resi-
due by the addition of a Woulff bottle and/or a vacuum separator.
Working with a jet pump to create a vacuum can only be recommended
to a limited extent as the solvents may contaminate the environment
when using these systems.
Speed, temperature, piston size and system pressure all affect the eva-
porator air capacity.
The optimum capacity of the flow-through condenser is approx. 60%.
This corresponds to condensation on approx. 2/3 of the cooling coil.
With larger capacities there is the risk that the uncondensed solvent va-
pour will be extracted.
In order to prevent this, the condenser loading safety monitoring system
can be activated. Before activating the safety monitoring, first carry out
several distillations, noting the value given under menu “Settings”, menu
option “Drive”, item “Maximum heat rejection rate”. Now calculate the
heat rejection rate using the following formula:
Heat rejection rate threshold = maximum heat rejection rate * 1.3
Enter this value under menu “Settings”, menu option “Distillation”, item
“Heat rejection rate threshold”. The device will now stop the measure-
ment and issue an error message if the threshold for the condenser is
exceeded. If the configuration of the condenser equipment or the dis-
tillation process is modified, then it may be necessary to re-evaluate the
maximum condenser loading.
The factory setting for this value is 900 W.
Unpacking
RV
10
control
V
x x x x x x x x x x x x
RV
10
control
V-C x x x x x x x x x x x x
RV
10
control
FLEX x x x x x x x x x x x
RV
10
control
V
auto x x x x x x x x x x x x
RV
10
control
V-C
auto x x x x x x x x x x x x
RV
10
control
FLEX
auto x x x x x x x x x x x
Drive RV 10 contr
ol
Heating bath HB 10
Vertical glasswar
e RV 10.1
Vertical glasswar
e RV 10.10 coated
W
oulff bottle
Br
acket
Cooler locking device, compl.
Vacuum hose (2 x 0.55 m)
W
ater dischar
ge hose (1 x 1 m)
Oper
ating instructions
Ring spanner
Hand
hold
RV 10.4002 vacuum valve for labor
atory vacuum system
N 920 speed-contr
ol
led vacuum pump
42
The RV 10 control rotary evaporator allows you to set the desired vacuum using two-position and speed control with the help of the integrated va-
cuum controller and pressure sensor.
Two-position control
A vacuum is made in the glassware with the help of a vacuum pump. The vacuum pump operates at constant speed which generally cannot be ad-
justed. Once the target value setting is reached, the RV 10.4002 vacuum valve interrupts the suction line (included in scope of supply). If additional
switching on and off of the vacuum pump is desired, please use the RV 10.4003 pump control (accessory).
The device will fall slightly short of the target value setting due to the time difference in the millisecond range with the vacuum value, the target value
comparison and the switching of the vacuum valve. Natural leakage from the apparatus now causes another increase in the pressure value of the
system, which in turn is detected by the integrated pressure sensor.
If the target value is exceeded, the vacuum valve is reopened and the vacuum pump in operation lowers the pressure. The pressure curve shown on
the display fluctuates around the set target value.
The pressure difference between activating/deactivating the valve can be set using the vacuum hysteresis value (see Vacuum Settings). The value is set
to 10 mbar as standard.
The quality of the control depends on the suction power of the pump (rotation speed), the tightness of the system and signal delay time of the elec-
tronics used.
Automatic boiling point recognition is not possible when using two-position control.
Schematic view of a two-position vacuum control
Speed-vacuum control
Imprecision of the two-position control is avoided by using the speed-vacuum control.
However a vacuum pump with a controlled speed is needed for speed-vacuum control; the RV10.4002 vacuum valve is not required and must not
be connected!
To do so, connect the vacuum pump (e.g. KNF N920 speed controlled pump) to the port on the rear of the rotary evaporator.
With this kind of control, the speed of the pump, and therefore its suction power, is reduced the closer the measured pressure reaches the target value.
Once the target value is reached, the pump only operates according to the leakage rate.
It is possible to achieve quieter operation and more exact vacuum control.
The speed-vacuum control on the RV 10 is controlled automatically as soon as an appropriate vacuum pump is attached.
Automatic boiling point recognition is possible with this type of control, i.e. the system reaches and keeps the solvent at its boiling point in automatic
mode.
As it is not necessary to know the boiling point of the solvent when in automatic boiling point recognition mode (unlike in the case of volume-depen-
dent distillation), these two operating modes are mutually exclusive.
Schematic view of speed-vacuum control
Vacuum control: two-position and speed control
43
Setting up
Remove the clamping device for the angle setting of the rotation drive
on the right side of the lift by rotating the knurled screw counter clock-
wise (by lightly pressing and turning at the same time, the knurled
screw comes out farther).
Set the drive at an angle of approx. 30° (Fig. 7).
Then secure the rotation drive from being accidentally turned by tigh-
tening the knurled screw in a clockwise direction.
Heating bath HB 10
Caution!
Refer to the chapter entitled "Commissioning" in the heating
bath instruction manual!
Place the heating bath on the stand of the rotation drive and push it
into the left position (Fig. 8).
Note: Data is exchanged between the drive unit and the heating bath by
means of an infrared link (F). Please note that reliable communication is
only guaranteed when the infrared beam has clear line-of-sight to the
detector.
Glassware
Open the locking device of the steam pipe by turning it 60° counter
clockwise (D), (fig. 9).
Drive RV 10 control
Caution!
Loosen transportation lock (Fig. 4a)!
Hold the lift with your hand and remove the thumb screw on the back
of the appliance (A).
Once the transportation lock has been removed, the lift moves slowly
to its upper end position. The distance is approx. 140 mm.
Connect the device to the power supply (B) using the supplied power
cord (B).
Adjustable base (Fig. 4b)
Mounting the Woulff bottle (Fig. 5)
Fit the hose connecting piece (C) on the left side of the lift.
Mount the holder (D) onto the hose connecting piece (C).
Insert the bottle and attach the supplied hose connectors to the bottle
(Fig. 6).
Fig. 4a
Fig. 4b
E
G
H
Fig. 7
Fig. 9
Fig. 5
Fig. 6
C
D
Fig. 8
F
44
First use - Fitting the seal RV 10.8001
Insert vapour tube (1).
Insert seal RV 10.8001 (2).
Slide the union nut (3b) over the flange on the condenser (3a).
Also slide the annular spring (3c) over the flange on the condenser (3a).
Position the condenser (3a) on top of the seal (2).
Tighten the cap nut hand-screwed (3b).
Note: Follow the mounting instructions for the glassware
Assembling the vertical glassware cooler locking device
Assemble the condenser locking device according to the diagram (fig.
12).
Mount the plate (I) using the thumb screw (J).
Put the support rod (L) on the plate (I) and attach it with the screw
nut (K).
Attach the rubber protector (M).
Fasten the Velcro
®
band (N) to the support rod (L).
Secure the vertical glassware with the Velcro
®
band (N).
Feed the steam pipe in until it stops.
Then lock the locking device by turning it clockwise by 60° (Fig. 10).
Check the axial locking device on the steam pipe.
Push-off mechanism
The plastic screw nut (H) helps loosen tight-fitting piston ground-in con-
nections (Fig. 10).
Hold the locking device (G) and loosen the plastic screw nut (H).
To do so, hold the tight-fitting evaporator piston and turn the plastic
screw nut (H) until the evaporator piston neck.
Note: Prior to commissioning, hand-tighten the plastic screw nut (H) left-
aligned. This will hold the steam pipe locking device (G) firmly in place.
Fitting the condenser seal
Place the RV 10.8001 condenser seal in the condenser receptacle and
fit the glassware to the device according to the assembly instructions
(Fig. 11 a,b, c and d).
Fig. 10
H
Fig. 11a
Fig. 11b
1
2
3a
3b
Fig. 11c
Fig. 12
I
J
M
N
L
K
G
45
4
7
8
6
12
9
3
10
5
13
15
16
Rotary head
Glassware
RV 10.2 diagonal
RV 10.20 diagonal, coated
Glassware
RV 10.1 vertical
RV 10.10 vertical, coated
Rotary head
2
10
00
m
l
N
S2
9/
32
1
11
13
12
5
4
7
8
6
15
9
3
2
10
16
11
1
10
00
m
l
N
S2
9/
32
Glassware
Item Designation
Quantity
Quantity
diagonal glassware
vertical Glassware
1
Receiving flask
1
1
2
Clamp NS 29 (stainless steel)
1
1
3
Steam pipe
1
1
4 Stopcock
1
1
5
Pipe tube
1
1
6
Condenser
1 Diagonal condenser
1 Vertical condenser
7
Connection
1 Introduction sleeve
1 Vacuum connection
8
Clamp NS 29 (plastic)
1
1
9
Seal RV 10.8001
1
1
10
Evaporator piston 1000 ml
1
1
11
Ball joint clamp RV 05.10
1
1
12
Screw joint cap
4
4
13
Hose connection
4
4
15
Locking nut
1
1
16
Spring ring
1
1
Description of special condensers
•
RV 10.3 Vertical-intensive condenser with manifold
This vertical-intensive condenser features a double jacket design for
particularly efficient condensation.
Also available with coating (RV 10.30)
•
RV 10.4 Dry ice condenser
Dry ice condenser for distilling low-boiling solvents.
Cooling by dry ice, no cooling water required. Maximum condensation
thanks to low temperatures.
Also available with coating (RV 10.40)
(Cannot be used in automatic mode for the RV10 control)
•
RV 10.5 Vertical-condenser with manifold and cut-off valve for
reflux distillation
Also available with coating (RV 10.50)
•
RV 10.6 Vertical-intensive condenser with manifold and cut-off
valve for reflux distillation
This vertical-intensive action condenser features a double jacket design
for particularly efficient reflux distillation.
Also available with coating (RV 10.60)
Removing the condenser
Use the ring spanner provided to loosen union nuts that are tightly
fitted.
Loosen the union nut by turning anticlockwise.
Remove the Velcro
®
.
Fig. 13
Mounting the glassware
46
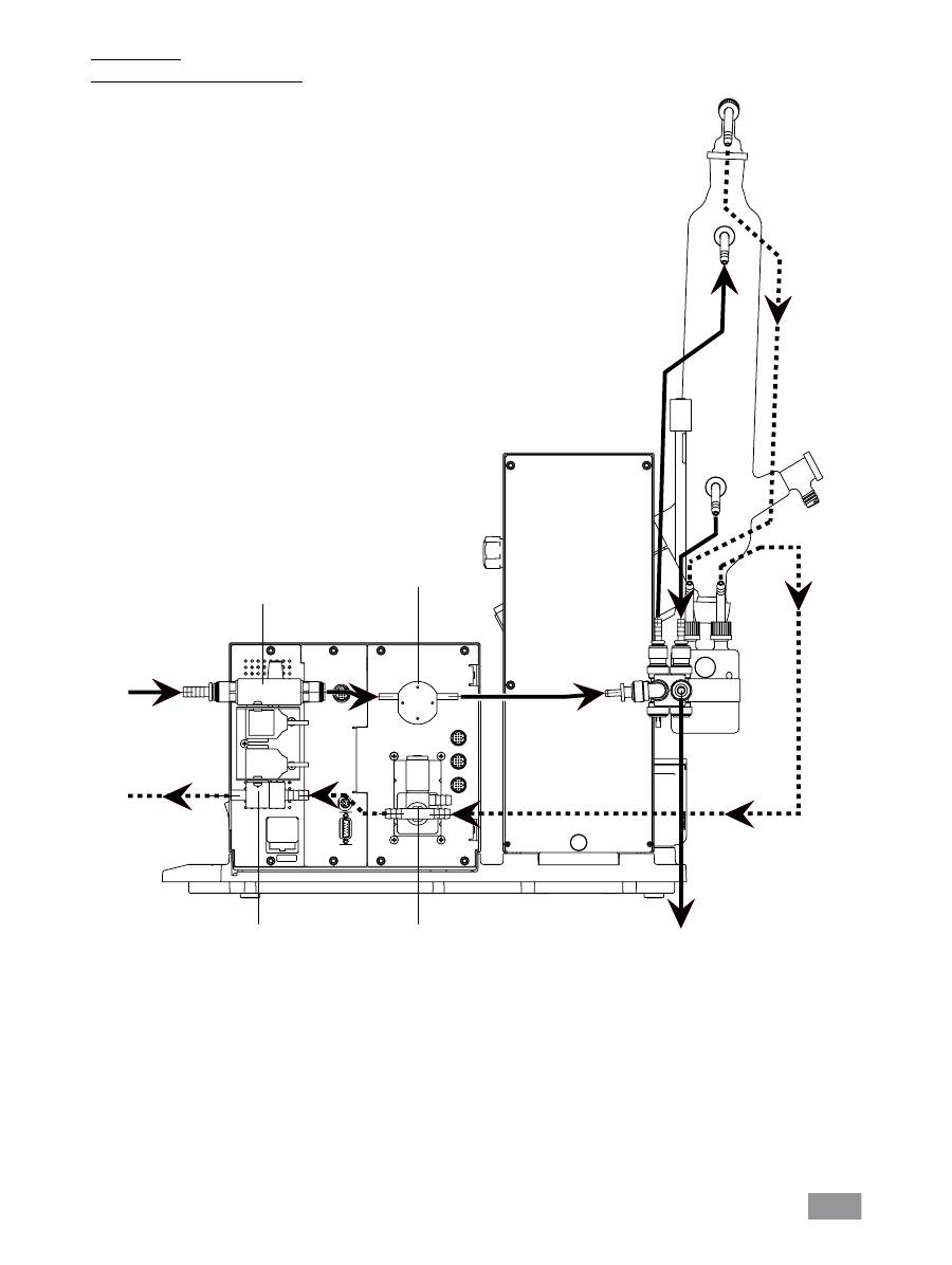
Hose system
Schematic view of hose system (rear view)
2x T1,6A 250V
Water
Vacuum
RV 10.5001
Water regulator
valve,
optional
Flow meter
Water
Pressure sensor
and
bleed valve
RV 10.4002
Vacuum valve
Fig. 14
47
Connection RV 10.4003
Vacuum - two-position control
Fit one of the optional RV 10.4001, RV 10.4002 or RV1 0.4003 vacu-
um valves, as appropriate for the type of vacuum system used, in the
bracket provided for this purpose and connect the vacuum hose to the
valve (Figure 15a, b, c).
Connection RV 10.4001
Connection RV 10.4002
Solenoid rotates freely
Direction of suction
corresponds to the arrow
marking.
Always check for correct
orientation!
Fig. 15a
Solenoid rotates freely
Direction of suction
corresponds to the arrow
marking.
Always check for correct
orientation!
Fig. 15b
Solenoid rotates freely
Direction of suction
corresponds to the arrow
marking.
Always check for correct
orientation!
Fig. 15c
Power supply
pump
48
Vacuum - speed-controlled operation
No additional valve is required for vacuum normal operation with a
speed-controlled pump. Connect the pump's vacuum hose directly to
the pressure sensor hose connection.
Connect the electrical RV10 control cable to the controller (Fig. 15e).
Connection RV 10 temperature sensor ( (dT)
Connect the temperature sensor to the lower socket (dT). Always check
for correct direction of the arrow.
Fig. 15f
dT
Fig. 15d
Fig. 15e
49
Connect the water outlet hose (supplied) by pushing it onto the nipple
until the stop inside the connection socket is reached (fig. 18).
Caution!
Ensure that the condenser inlet and condenser outlet are con-
nected correctly.
Automatic distillation cannot be carried out if the water inlet and outlet
hoses are not fitted according to the instructions and illustrations acc.
fig. 14, since this would cause the temperature readings for the inlet and
outlet to be measured incorrectly.
Release the hose connection using the supplied tool.
Water
Connect the water inlet to the water supply (Figure 16a; Figure 16b with
optional RV 10.5001 water regulator valve). Please refer to the technical
specifications relating to the water supply.
The RV 10.5001 water regulator valve is not suitable for use on the
condenser unit because it would reduce the flow rate too greatly
Connect the water hoses to the glass condenser (short hose (O) = lower
outlet, long hose (P) = upper inlet) and fix hoses in place (fig. 17).
Note: For special condensers see “Description of special condensers” section.
Fig. 16a
Fig. 16b
Fig. 17
O
P
Fig. 18
Fig. 19
Inlet
condenser
Outlet
condenser
Water
inlet
Water
inlet
50
Schematic view of connections (rear view)
Insert the valve connector cable (RV 10.5001 or RV 10.4001/2 resp. RV 10.4003 Valve) resp. the network cable (RV 10.4003 pump control) ) into the
appropriate socket (fig. 20) or connect the speed-regulated vacuum pump. As a result, the RV10 control automatically switches to normal speed-vacuum
control operation.
Fig. 20
Connect the pressure sensor to the Woulff bottle and the Woulff bottle
to the vacuum connector on the condenser using the vacuum hoses
supplied. Please note that the vacuum must always be connected to the
highest connection point on the condenser (fig. 21).
Fig. 21
51
Serial interface RS 232 (V24)
Configuration
- The functions of the interface lines between the device and the au-
tomation system are a selection from the signals specified in the EIA
standard RS232 C, as per DIN 66 020 Part 1.
- For the electrical characteristics of the interface and the allocation of
signal status, standard RS 232 C applies in accordance with DIN 66
259 part 1.
- Transmission procedure: asynchronous character transmission in start-
stop mode.
- Type of transmission: full duplex.
- Character format: character representation in accordance with data for-
mat in DIN 66 022 for start-stop mode. 1 start bit; 7 character bits; 1
parity bit (even); 1 stop bit.
- Transmission speed: 9600 bit/s.
- Data flow control: none
- Access procedure: data transfer from the device to the computer takes
place only at the computer’s request.
Command syntax and format
The following applies to the command set:
- Commands are generally sent from the computer (Master) to the device
(Slave).
- The Rotary evaporator sends only at the computer’s request. Even fault
indications cannot be sent spontaneously from the Rotary evaporator to
the computer (automation system).
- Commands are transmitted in capital letters.
- Commands and parameters including successive parameters are separa-
ted by at least one space (Code: hex 0x20).
- Each individual command (incl. parameters and data) and each response
are terminated with Blank CR LF (Code: hex 0x20 hex 0x0d hex 0x20 hex
0x0A) and have a maximum length of 80 characters.
- The decimal separator in a number is a dot (Code: hex 0X20E).
The above details correspond as far as possible to the recommendations
of the NAMUR working party (NAMUR recommendations for the design of
electrical plug connections for analogue and digital signal transmission on
individual items of laboratory control equipment, rev. 1.1).
The NAMUR commands and the additional specific
IKA
®
co mmands serve
only as low level commands for communication between the rotary eva-
porator and the PC. With a suitable terminal or communications program-
me these commands can be transmitted directly to the rotary evaporator.
The
IKA
®
software package, labworldsoft, provides a convenient tool for
controlling rotary evaporator and collecting data under MS Windows, and
includes graphical entry features, for motor speed ramps for example.
The following table summarises the (NAMUR) commands understood by
the
IKA
®
control equipment.
HB 10
Data is exchanged between the heating bath and the drive unit by means
of an infrared link. These are located on the left display side of the hea-
ting bath or on the right side of the drive unit. Do not place any objects
between the two operating units as otherwise the data transfer may be
interrupted (fig. 22)!
RV10 control
The device can be operated in “Remote” mode via an RS 232 or USB
interface using labworldsoft
®
laboratory software.
The RS 232 interface at the back of the device, see fig. 20, is fitted with
a 9-pole SUB-D jack and can be connected to a PC. The pins have serial
signals. The USB interface is located on the left-hand side of the display
on the drive unit and can be connected to a PC using the USB cable
supplied.
Note: Please note the system requirements as well as the operating ins-
tructions and help section included with the software.
USB Interface
The Universal Serial Bus (USB) is a serial bus system used to connect the
RV 10 control with the PC (Fig. 23). Devices that support USB can be con-
nected to each other whilst they are running (hot pluggable) and provide
automatic recognition of the connected devices and their properties.
Use the USB interface in conjunction with labworldsoft
®
for operation in
“Remote” mode to update the solvent library. Navigate to http://www.
ika.net/ika/lws/download/RV10.cfg to update.
Installation
Connect the RV 10 control to the PC using the USB data cable. The RV 10
control will then transmit information to the Windows operating system
to tell it which device drivers are required. Windows will then either:
- Load the driver,
- Install the driver automatically if not already installed,
- Prompt the user to perform a manual installation.
Navigate to http://www.ika.net/ika/lws/download/stmcdc.inf.
Interfaces and outputs
Fig. 22
IR
Fig. 23
52
Fig. 24
Abbreviations used:
m =
Numbering parameter (integer)
X =
2
Temperature heating bath
X =
3
Safety temperature heating bath
X =
4
Speed
X =
60
Interval time (1-99 seconds, 1 <= m >=99)
X =
61
Timer (1-199 minutes, 1 <= m >=199)
X =
62
Upper lift position (OUT_SP_62 1-> drive lift up)
X =
63
Lower lift position (OUT_SP_62 1-> drive lift down)
X =
66
Value vacuum controller
X =
70
Vacuum controller hysteresis
X =
74
Tempering medium (OUT_SP_74 0=Öl, OUT_SP_74 1=water)
NAMUR Commands Function
IN_NAME
Request designation
IN_PV_X
Read actual value
X = 4
IN_SOFTWARE
Request software Id-number,
date and version
IN_SP_X
Read target value input
X = 4
OUT_SP_X m
Set target value to m
X = 1,60,61,62
RESET
Switch to normal operation
START_X
Switch on appliance (remote) function
X = 4,60,61,62
STATUS
Status output
0:Manual operation without interruption
1:Automatic operation Start (without interruption)
ERROR z (z error number see table)
STOP_X
Switch off appliance function. The variable
X = 1,60, 61, 62
set with OUT_SP_X remains
PC 1.1 Cable (Fig. 24)
This cable is required to connect the 9-pin connector to a PC. (fig. 24).
.
53
Basic guide to using the menu system
Selecting a menu
Turn the Rotating/ Pressing knob to the right/left to select the desired
menu option.
Note: The active menu item is shown with a black background on the
display.
Editing values
Press the Rotating/ Pressing knob
Turn the Rotating/ Pressing knob to change the value (the magnitude
of the change is dependent on the speed at which the knob is turned).
Press the Rotating/ Pressing knob again to complete the process.
Exiting a menu
Press the SET button.
Current values are stored.
Next-highest menu level is displayed.
Press the ESC button.
Current values are not stored.
Next-highest menu level is displayed.
Note: Some menu items do not contain values that can be stored. Select
SET or ESC to exit the menu.
Note: Certain menu items have functionality that varies from or adds to
that described above.
Display screen during the distillation process
Each operating mode has its own dedicated display screen. The following
display characteristics are common:
- When a distillation is in progress it is not possible to leave the active
display indicated.
- Press SET or ESC to exit the active display mode when no distillation is in
progress. This will return the display to the main menu.
Error messages
Press ESC to acknowledge the fault if an error message appears on
the display.
The error message will disappear.
Note: In the case of serious faults, an additional display message will
appear indicating that the device must be switched off and only swit-
ched back on again when the fault has been rectified.
The unit is ready for service when the
mains plug has been plugged in.
Switching on the device
Switch on the device on the right side of the device by the mains plug
(fig.25).
Device functions activated.
Note: The heating bath must also be switched on.
Commissioning
Functional description (in as-delivered state)
Factory settings
The values specified below correspond to the as-delivered state (display
output/factory language setting is English)
The system check is performed while the start screen is displayed; this
takes no more than 30 seconds.
The main menu will appear after a few seconds.
Turn the Rotating/ Pressing knob to the right/left to select a menu
option.
Confirm the selection by pressing the Rotating/ Pressing knob.
“Settings“ menu
The following options are available from the "Settings" menu.
Turn the Rotating/ Pressing knob to the right/left to select a menu
option.
Confirm the selection by pressing the Rotating/ Pressing knob.
Fig. 25
54
Distillation settings
Turn the Rotating/ Pressing knob to the right/left to select a menu
option.
Press the Rotating/ Pressing knob.
Turn the Rotating/ Pressing knob to change the value (the magnitude
of the change is dependent on the speed at which the knob is turned).
Press the Rotating/ Pressing knob again to complete the process.
SET key: Exit menu and save changes.
ESC key: Exit menu without saving changes.
Distillation method
Select between the automatic distillation methods “Volume” and
“100%”. This selection only has an effect during auto-distillation.
Volume
The measured values of the cooling water flow rate and the cooling
water temperature difference form the basis for a heat balance calcu-
lation used to determine the quantity of distillate at every stage of the
distillation. The distillation process is halted when the specified quantity
of distillate has been reached.
100%
The distillation process is stopped when the measured cooling water
temperature difference falls below a threshold value, i.e. as soon as a
solvent has been completely distilled off.
Drying
The cooling water temperature difference is not monitored if this option
is activated, e.g. use in processes for drying powdered media.
Heat rejection rate threshold
A limit value can be set for the heat rejection rate that is appropria-
te for the condenser used; see "useful information" section. The actual
heat rejection rate is calculated during every distillation process. If the
threshold is exceeded, the distillation will be stopped and an error mes-
sage displayed.
Maximum heat rejection rate
The maximum heat rejection rate achieved during the last distillation is
displayed. This value is for information purposes only.
Quantity meas. unit
Select between millilitre and gram as the unit of quantity.
Boiling point recognition
Boiling point recognition can be either activated or deactivated. Boiling
point recognition is only possible in "100%" mode for the distillation
method.
The boiling point recognition function automatically detects the boiling
point of a solvent.
Vacuum settings
Turn the Rotating/ Pressing knob to the right/left to select a menu
option.
Press the Rotating/ Pressing knob.
Turn the Rotating/ Pressing knob to change the value (the magnitude
of the change is dependent on the speed at which the knob is turned).
Press the Rotating/ Pressing knob again to complete the process.
SET key: Exit menu and save changes.
ESC key: Exit menu without saving changes.
Hysteresis
The default settings for the hysteresis (as shown) are suitable for use in
most situations. The (vacuum) hysteresis value describes the difference
between the closing and opening pressures for the vacuum valve.
Time scaling
The time axis of the vacuum-rotation-time graph is scaled using the value
specified here. If the value = 0, then the time axis is scaled automatically.
Vacuum scaling
The vacuum axis of the vacuum-rotation-time graph is scaled using the
value specified here. If the value = 0, then the vacuum axis is scaled
automatically.
Vacuum meas. unit
Select between the units of measurement for a vacuum: mBar, Torr, and
hPascal.
55
Drive settings
Turn the Rotating/ Pressing knob to the right/left to select a menu
option.
Press the Rotating/ Pressing knob.
Turn the Rotating/ Pressing knob to change the value (the magnitude
of the change is dependent on the speed at which the knob is turned).
Press the Rotating/ Pressing knob again to complete the process.
SET key: Exit menu and save changes.
ESC key: Exit menu without saving changes.
Right/left interval
Setting a particular value X for the right/left interval will cause the drive
to change the direction of rotation every X seconds.
Note: In interval mode the maximum speed is limited to 200 rpm.
Timer
The timer value determines the time after which a manual distillation will
be stopped.
Time scaling
The time axis of the vacuum-rotation-time graph is scaled using the value
specified here. If the value = 0, then the time axis is scaled automatically.
Rotation scaling
The rotation axis of the vacuum-rotation-time graph is scaled using the
value specified here. If the value = 0, then the rotation axis is scaled
automatically.
Bath settings
Turn the Rotating/ Pressing knob to the right/left to select a menu
option.
Press the Rotating/ Pressing knob.
Turn the Rotating/ Pressing knob to change the value (the magnitude
of the change is dependent on the speed at which the knob is turned).
Press the Rotating/ Pressing knob again to complete the process.
SET key: Exit menu and save changes.
ESC key: Exit menu without saving changes.
Medium bath
Select either water or oil as the medium for the heating bath.
Language
Turn the Rotating/ Pressing knob to the left/right to select the lan-
guage.
Confirm the selection by pressing SET.
56
Service
Turn the Rotating/ Pressing knob to the right/left to select a menu
option.
Press the Rotating/ Pressing knob.
Turn the Rotating/ Pressing knob to change the value (the magnitude
of the change is dependent on the speed at which the knob is turned).
Press the Rotating/ Pressing knob again to complete the process.
ESC key: Exit menu, all changes to switch settings are reset, the calibra-
tion remains unaffected.
Switching valves and pump
To check functionality for servicing purposes, use the Service menu to
activate/deactivate directly the valves included in delivery or optional and
the pump, e.g. RV 10.5001.
The RV 10.5001 valve switches the water circuit on and off. This row also
shows the current cooling water flow rate.
Calibrate
The “Calibrate” option is used for calibration of the temperature sensor.
The temperature difference displayed will be calibrated to zero. This ac-
tion cannot be reversed.
The temperature sensor must be calibrated whenever it is replaced or
changed, or if a new temperature sensor is installed.
Please contact the Service department.
The temperature sensor supplied with the system is calibrated ex-works.
Performing calibration
Activate the “Calibrate” menu option by turning the Rotating/ Pressing
knob.
Remove both sensors. To remove a sensor, push back the outer ring to
release the locking device on the push-in connector, while at the same
time pulling the temperature sensor out of the connector, see fig. 26.
To reconnect a temperature sensor, push it into the push-in connector
until the limit stop is reached; an initial resistance will be felt.
Fill water at room ambient temperature into a glass beaker (approx.
500 ml). Fully submerge both sensors into the water, see fig. 27.
Wait until the temperature display in the “Service” menu, menu opti-
on “Calibrate” has stabilised, e.g. 0.2K
Press the Rotating/ Pressing knob.
The temperature difference displayed will be calibrated to zero.
Calibration is only possible within the temperature range +0.5 K to -0.5
K. If the temperature is outside this range, then either a temperature
sensor is faulty or connected incorrectly. Please contact the Service de-
partment.
If the characteristics of the cooling water supply deviate significantly
from the specifications given in the “Technical specifications”, with the
result that the initial conditions for automatic distillation are not achie-
ved, then it may be necessary to recalibrate the temperature sensors.
This may, however, lead to a reduction in the accuracy with which the
distillate quantity is measured in “Auto-distillation” mode.
Operation hours
This value serves as informaton and cannot be changed.
Fig. 26
Fig. 27
57
"Manual mode without boiling point recognition" menu
"Manual mode without boiling point recognition" display screen
1. Operating mode display
2. Vacuum display (actual value)
3. Vacuum display (target value)
4. Control field for „Start/ Stop“ distillation
5. Timer display
6. Control field for storing the distillation sequence
7. Vacuum-rotation-time graph
8. Display of flow rate, differential temperature, and condenser heat
rejection rate
9. Control field for rotary speed display (target value) and speed mea-
surement unit
10. Error message in case of fault, otherwise status indicator
Setting the rotary speed
Press the Rotating/ Pressing knob to change the target value.
Turn the Rotating/ Pressing knob to change the value (the magnitude
of the change is dependent on the speed at which the knob is turned).
Press the Rotating/ Pressing knob again to save and complete the
process.
Note: When you select the speed > 100 rpm, smooth start is automati-
cally activated.
Setting the vacuum
Press the Rotating/ Pressing knob to change the target value.
Turn the Rotating/ Pressing knob to change the value (the magnitude
of the change is dependent on the speed at which the knob is turned).
Press the Rotating/ Pressing knob again to save and complete the
process.
Start
Turn the Rotating/ Pressing knob to the right/left to select "Start".
Press the Rotating/ Pressing knob to start the distillation.
The display field will change to "Stop".
Note: If the timer has been configured, then the time will start to count
backwards. If a timer has not been configured then the time elapsed
since the start is shown.
Stop
Turn the Rotating/ Pressing knob to the right/left to select "Stop".
Press the Rotating/ Pressing knob to stop the distillation.
The display field will change to "Start".
Saving the distillation sequence as a procedure on completion of distillation
Turn the Rotating/ Pressing knob to the right/left to select "Save".
Press the Rotating/ Pressing knob to display the "Procedures" screen.
Turn the Rotating/ Pressing knob to the left/right to select one of the
ten procedures. The sequence will be shown graphically.
Press SET, to overwrite the selected procedure with the current proce-
dure (the procedure that has just been completed) and exit the menu.
Pressing ESC will prevent the selected procedure from being overwrit-
ten.
Note: Distillation sequences saved in this manner can be repeated at
a later dater in the user-defined mode by selecting the corresponding
procedure.
58
"Manual mode with boiling point recognition" menu
"Manual mode with boiling point recognition" display screen
1. Operating mode display
2. Vacuum display (actual value)
3. Vacuum display (target value)
4. Control field for „Start/ Stop“ distillation
5. Timer display
6. Control field for storing the distillation sequence
7. Vacuum-rotation-time graph
8. Display of flow rate, differential temperature, and condenser heat
rejection rate
9. Control field for rotary speed display (target value) and speed mea-
surement unit
10. Error message in case of fault, otherwise status indicator
Setting the rotary speed
Press the Rotating/ Pressing knob to change the target value.
Turn the Rotating/ Pressing knob to change the value (the magnitude
of the change is dependent on the speed at which the knob is turned).
Press the Rotating/ Pressing knob again to save and complete the
process.
Note: When you select the speed > 100 rpm, smooth start is automati-
cally activated.
Start
Turn the Rotating/ Pressing knob to the right/left to select "Start".
Press the Rotating/ Pressing knob to start the distillation.
The display field will change to "Stop".
Note: If the timer has been configured, then the time will start to count
backwards. If a timer has not been configured then the time elapsed
since the start is shown.
Stop
Turn the Rotating/ Pressing knob to the right/left to select "Stop".
Press the Rotating/ Pressing knob to stop the distillation.
The display field will change to "Start".
Saving the distillation sequence as a procedure on completion of distillation
Turn the Rotating/ Pressing knob to the right/left to select "Save".
Press the Rotating/ Pressing knob to display the "Procedures" screen.
Turn the Rotating/ Pressing knob to the left/right to select one of the
ten procedures. The sequence will be shown graphically.
Press SET, to overwrite the selected procedure with the current proce-
dure (the procedure that has just been completed) and exit the menu.
Pressing ESC will prevent the selected procedure from being overwrit-
ten.
Note: Distillation sequences saved in this manner can be repeated at
a later dater in the user-defined mode by selecting the corresponding
procedure.
59
"Auto-distillation mode without boiling point recognition" menu
"Auto-distillation mode without boiling point recognition" display screen
1. Operating mode display
2. Control field for solvent
3. Vacuum display (actual value)
4. Vacuum display (target value)
5. Control field for „Start/ Stop“ distillation
6. Timer display
7. Distillation progress indicator
(% of required quantity of distillate)
8. Vacuum-rotation-time graph
9. Display of flow rate, differential temperature, and condenser heat
rejection rate.
10. Rotary speed display (target value) and speed measurement unit
11. Error message in case of fault, otherwise status indicator
Changing the selected solvent
Turn the Rotating/ Pressing knob to the right/left to select the control
field "Solvent".
Press the Rotating/ Pressing knob to display a list of the various solvents
available.
Turn the Rotating/ Pressing knob to the right/left to select a "Solvent".
Press the SET key.
The solvent selected will be used for the subsequent distillation.
Note: The display shows the parameters for each of the solvents. The
parameters can only be changed for the user-definable solvents User-
Solvent1 ... UserSolvent5. Please refer to the next section for instructions
on how to do this.
User defined solvents
Select one of the options NewSolvent1 ... NewSolvent5 from the "Sol-
vents" screen.
Select one of these solvents and press the Rotating/ Pressing knob.
All the parameters displayed for the solvent can now be modified.
Turn the Rotating/ Pressing knob to the right/left to select the para-
meter to be changed.
Press the Rotating/ Pressing knob.
Turn the Rotating/ Pressing knob to the right/left to change the selec-
ted parameter.
Press the Rotating/ Pressing knob.
Press SET to save all values.
This action selects NewSolvent1 as the current solvent.
Note: It is not possible to return to the selection list.
60
Starting automatic distillation
Press the Rotating/ Pressing knob with the “Start” or “Continue” field
selected. If the “100% distillation” or “Drying” options are active, then
the distillation will start immediately, provided that the necessary condi-
tions are fulfilled.
When the “Volume” distillation method is used, a further screen with
additional distillation parameters will be displayed.
Turn the Rotating/ Pressing knob to the right/left to select a menu
option.
Press the Rotating/ Pressing knob.
Turn the Rotating/ Pressing knob to change the value (the magnitude
of the change is dependent on the speed at which the knob is turned)
Press the Rotating/ Pressing knob again to complete the process.
Distillation
This field indicates the distillation method selected in Settings/Distillation
and cannot be changed.
Amount
Enter the amount, which the flask contains.
Distillate
Enter the amount, which you want to distill off.
Efficiency
Balancing requires a precise thermal efficiency to be entered.
The efficiency is dependent on a combination of factors that affect the
distillation process, so it must initially be estimated. The first time a di-
stillation process is carried out should therefore be used for calibration.
Following completion of the distillation process, determine the quantity
of distillate produced and calculate the actual heat rejection rate accor-
ding to the following formula:
η
th
. m
(calc)
η
P
=
m
(gem)
η
P
Actual efficiency
η
th
Estimated efficiency
m
(gem)
Measured quantity of distillate
m
(calc)
Specified (calculated) distillate quantity
For subsequent distillations, the actual calculated efficiency should be
entered; this will ensure that subsequent automatic distillations under
the same distillation and ambient conditions are performed with suffici-
ent precision.
End of automatic distillation
Automatic distillation will stop when the following conditions are met:
- Volume controlled
The specified quantity of distillate has been reached.
- 100% Distillation
The measured cooling water temperature has fallen below a target va-
lue, indicating that the solvent is fully evaporated.
The distillation can also be stopped manually:
Press the Rotating/ Pressing knob with the “Stop” display field selected.
"Auto-distillation mode with boiling point recognition" menu
"Auto-distillation mode with boiling point recognition" display screen
1. Operating mode display
2. Control field for solvent
3. Vacuum display (actual value)
4. Vacuum display (target value)
5. Control field for „Start/ Stop“ distillation
6. Timer display
7. Distillation progress indicator
(% of required quantity of distillate)
8. Vacuum-rotation-time graph
9. Display of flow rate, differential temperature, and condenser heat
rejection rate
10. Rotary speed display (target value) and speed measurement unit
11. Error message in case of fault, otherwise status indicator
Note: volume distillation is not possible as the solvent must be known
in this mode.
This mode allows selection of the bath temperature and speed of rota-
tion via the "Boiling point recognition" control field instead of selection
of the solvent.
61
Changing a procedure
Select the procedure to be changed and press the Rotating/ Pressing
knob. The “Delete and create” display field will be activated.
Press the Rotating/ Pressing knob with the "Delete and create" field
selected to delete the procedure.
New vacuum and rotation values can now be entered to define a new
step in procedure.
Vacuum
Turn the Rotating/ Pressing knob to the right/left to select "Vacuum"
from the on-screen options.
Press the Rotating/ Pressing knob.
Turn the Rotating/ Pressing knob to the right/left to enter a value.
Press the Rotating/ Pressing knob.
Duration
Turn the Rotating/ Pressing knob to the right/left to select "Duration"
from the on-screen options.
Press the Rotating/ Pressing knob.
Turn the Rotating/ Pressing knob to the right/left to enter a value.
Press the Rotating/ Pressing knob. This will define a new step in the
procedure with the pair of values vacuum-duration and add it to the
procedure. The diagram will be updated.
Rotation
Turn the Rotating/ Pressing knob to the right/left to select "Rotation"
from the on-screen options.
Press the Rotating/ Pressing knob.
Turn the Rotating/ Pressing knob to the right/left to enter a value.
Press the Rotating/ Pressing knob.
Duration
Turn the Rotating/ Pressing knob to the right/left to select "Duration"
from the on-screen options.
Press the Rotating/ Pressing knob.
Turn the Rotating/ Pressing knob to the right/left to enter a value.
Press the Rotating/ Pressing knob. This will define a new step in the
procedure with the pair of values rotation-duration and add it to the
procedure. The diagram will be updated.
The vacuum-duration and rotation-duration steps can be repeated a ma-
ximum of twenty times.
SET key: Exit menu, store the newly created procedure and activate it as
the current procedure.
ESC key: Exit menu and reset all changes.
"User-defined Distillation" menu
"User-defined Distillation" display screen
1. Operating mode display
2. Control field for distillation procedure
3. Vacuum display (actual value)
4. Vacuum display (target value)
5. Control field for „Start/ Stop“ distillation
6. Timer display
7. Vacuum-rotation-time graph
8. Display of flow rate, differential temperature, and condenser heat
rejection rate
9. Rotary speed display (target value) and speed measurement unit
10. Error message in case of fault, otherwise status indicator
Turn the Rotating/ Pressing knob to the right/left to select „Procedure“.
Press the Rotating/ Pressing knob.
The display will show the "Procedures" screen.
Turn the Rotating/ Pressing knob to the right/left to select a proce-
dure.
Press the SET button.
The procedure selected will be used for the subsequent distillation.
Note: The vacuum-rotation-time graph is displayed for each procedure.
The parameters can be changed for each procedure. Please refer to the
next section for instructions on how to do this. The sequence used for
a manual distillation process can also be saved as a procedure. see
"Manual Mode" section.
62
Stopping user-defined distillation
The user-defined distillation will stop automatically once all steps in the
currently active procedure have been completed. It is also possible to
stop the process manually by pressing the Rotating/ Pressing knob with
the “Stop” display field selected.
Stand-by operation
Press the "Power" button.
The device will enter stand-by.
Press the "Power" button again.
The screen will display “Start” to indicate that the device is ready for
use again.
63
Menu system
Start up-scree
n
Main men
u
Manual mode
Auto-distillation mode User-defined mode Settings
Rotation, target value Va
cuum, target and actual value
Ti
mer Display
Start/Stop Confirmation, Control field of procedures Error displa
y
Va
cuum-rotation-time graph display
Boiling point recognition on
?
Aceton Wa
te
r
To
luo
n
N-Pantenol Benzol UserSolvent
1
UserSolvent
2
UserSolvent
3
UserSolvent
4
UserSolvent
5
Rotation, target value Va
cuum, target and actual value
Ti
mer Display
Control field of distillation procedur
e
Start/Stop, more parameter Error displa
y
Display of flow rate, di
fferential temperature, cooling capacit
y
Va
cuum-rotation-time graph display
Rotation, target value Va
cuum, target and actual value
Ti
mer Display
Control field of solvents/Boiling point recognitio
n
Start/Stop, more parameter Error displa
y
Display of flow rate, di
fferential temperature, cooling capacit
y
Va
cuum-rotation-time graph display
Distillation progress displa
y
Procedure
1
Procedure
2
Procedure
3
Procedure
4
Procedure
5
Procedure
6
Procedure
7
Procedure
8
Procedure
9
Procedure10
Initial quantit
y
Distillate quantit
y
Ef
ficiency
100% Distillation
Procedure
1
Procedure
2
Procedure
3
Procedure
4
Procedure
5
Procedure
6
Procedure
7
Procedure
8
Procedure
9
Procedure 10
Rotation Start
Heating bath temperature Rotation Va
cuum
Ef
ficiency
C-
Va
lu
e
Evaporation enthalpy Densit
y
Delete procedure Va
cuum
Duration Rotation Duration Confirmation
Distillation Va
cuum
Driv
e
Heating bat
h
Language Service
Bath medium
Distillation method Drying Heat rejection rate threshold Maximum heat rejection rate Maximum heat rejection rate Flow rate contro
l
Quantity meas. unit
s
Boiling point recognitio
n
Hysteresis Scaling time Scaling vacuum Va
cuum meas. unit
s
Right/left interva
l
Ti
me
r
Scaling time Saling rotation
Wa
te
r
Oi
l
RV
10.500
1
RV
10.4001/
2
RV
10.4003
Va
lv
e
V4
Va
cuum ventin
g
Pump Calibratio
n
Operating hours
Englis
h
Deutsc
h
Français
Español
中文
日本
語
Polski
Boiling point recognition no Boiling point recognition ye
s
Heating bath temperature
Rotatio
n
64
Setting the lower end stop
Caution!
Depending on the size of the piston, the setting angle of the
rotation drive and the position of the heating bath and lift, the eva-
porator piston can be in contact with the bottom of the heating bath.
Caution - glass may break!
Limit the lower lift position with the variable end stop.
The lift can be moved to any desired position in manual mode using the
“ ” and “ ” keys. There is no automatic cut-off if a collision occurs.
Press the “ ” key until the lift reaches the desired position.
Note: The evaporator piston should be 2/3 immersed in the heating
bath.
To adjust the stop element (Q), press the centre button (R) on the front
of the lift (Fig. 18).
Move the stop (Q) to the desired position (Fig. 19)
Press the “ ” key until the lift has reached the upper end stop.
Note: The path is limited from 0 – 6 cm.
Check that the limit stop is functioning properly:
Lower the lift by holding down the “ ” key.
The drive stops automatically when the preset desired lower end po-
sition has been reached.
Move the drive back to the upper position.
To activate the safety lift following a long period of inactivity, use the
motor to move the lift to the top or bottom position several times prior
to starting distillation. (See the section entitled Safety Instructions - Sa-
fety Lift)!
Filling the evaporator piston
Prior to filling the evaporator piston, a vacuum controller is used to regu-
late the glass apparatus to the target pressure.
Now fill the evaporator piston using the backfeed line, see fig. 30.
Due to the vacuum present, the solvent is suctioned into the evapo-
rator piston. This enables you to keep solvent loss due to suctioning
to a minimum.
You can also fill the evaporator piston manually prior to creating the
vacuum. The evaporator piston should not be filled more than half its
volume.
Note:
Caution!
The maximum allowed load (evaporator piston and
contents) is 3 kg.
Setting up the heating bath
Refer also to the operating instructions for the heating bath IKA
®
HB 10!
Move the lift to the bottom position and check the position of the
heating bath in relation to the evaporator piston. When using larger
evaporator pistons (2 or 3 litres) or depending on the angle of the
rotation drive, you can move the heating bath 50 mm to the right.
Fill the heating bath with the tempering medium until the evaporator
piston is surrounded by tempering medium to 2/3 of its volume.
Switch on the rotation drive and slowly increase the speed
Note: Avoid creating waves.
Switch on the heating bath using the main on/off switch.
Note: Avoid stress on the glass due to different evaporator piston and
heating bath temperatures when lowering the evaporator piston into
the heating bath!
Note: If non-original accessories are used that are not supplied by
IKA
®
,
then it is possible that the 50 mm travel range provided by the heating
bath will not be sufficient. This applies in particular when using 3 L eva-
porator flasks with foam brake.
Use the
IKA
®
RV 10.3000 mounting plate to extend the heating bath
travel range by 150 mm.
Fig. 28
Q
R
Fig. 29
Fig. 30
65
Maintenance and cleaning
The device is maintenance-free. It is subject only to the natural wear and
tear of components and their statistical failure rate.
The seal on the glass condenser should be checked at regular intervals
and replaced if necessary.
For cleaning disconnect the main plug.
To clean the device use only water with a detergent that contains tensi-
des, or use isopropylalcohol for stubborn soiling.
Spare parts order
When ordering spare parts, please give:
- Machine type
- Manufacturing number, see type plate
- Item and designation of the spare part,
see
www.ika.com
, spare parts diagram and spare parts list
.
Repair
In case of repair the device has to be cleaned and free from any materials
which may constitute a health hazard. For this use the "
certificate of
compliance
", download the form from the
IKA
®
website
www.ika.
com
.
If you require servicing, return the appliance in its original packaging.
Storage packaging is not sufficient. Please also use suitable transport
packaging.
Safety lift
The safety lift must be checked daily prior to operation!
After a long period of inactivity (approx. four weeks), use the motor to
move the lift to the top or bottom position several times prior to starting
distillation. (See the section entitled Safety Instructions - Safety Lift)! If the
safety lift is not working, please contact the
IKA
®
Service department.
Accessories
RV 10.1
NS 29/32 Vertical glassware (1)
RV 10.10
NS 29/32 Vertical glassware, coated (1)
RV 10.2
NS 29/32 Diagonal glassware (2)
RV 10.20
NS 29/32 Diagonal glassware, coated (2)
RV 10.700
NS 29/42 Vertical glassware (1)
RV 10.710
NS 29/42 Vertical glassware, coated (1)
RV 10.800
NS 29/42 Diagonal glassware (2)
RV 10.810
NS 29/42 Diagonal glassware, coated (2)
RV 10.900
NS 24/40 Vertical glassware (1)
RV 10.910
NS 24/40 Vertical glassware, coated (1)
RV 10.1000
NS 24/40 Diagonal glassware (2)
RV 10.1010
NS 24/40 Diagonal glassware, coated (2)
RV 10.3
Vertical-intensive condenser with manifold(1)
RV 10.30
Vertical-intensive condenser with manifold, coated (1)
RV 10.4
Dry ice condenser (2)
RV 10.40
Dry ice condenser, coated (2)
RV 10.5
Vertical-condenser with manifold and cut-off valve (no picture)
RV 10.50
Vertical-condenser with manifold and cut-off valve, coated (no picture)
RV 10.6
Vertical-intensive condenser with manifold and cut-off valve
for reflux distillation (3)
RV 10.60
Vertical-intensive condenser with manifold and cut-off valve
for reflux distillation (3)
HB 10.1
Protection shield (Heating bath HB 10) (1)
HB 10.2
Protection cover (Heating bath HB 10) (2)
RV 10.70
NS 29/32 Steam pipe
RV 10.71
NS 24/29 Steam pipe
RV 10.72
NS 29/42 Steam pipe
RV 10.73
NS 24/40 Steam pipe
RV 10.74
NS 29/32 Steam pipe, short,
for reflux distillation
RV 10.75
NS 24/29 Steam pipe, short,
for reflux distillation
RV 10.76
NS 29/42 Steam pipe, short,
for reflux distillation
RV 10.77
NS 24/40 Steam pipe, short,
for reflux distillation
66
RV 10.80
NS 29/32 Evaporator piston 50 ml
RV 10.81
NS 29/32 Evaporator piston 100 ml
RV 10.82
NS 29/32 Evaporator piston 250 ml
RV 10.83
NS 29/32 Evaporator piston 500 ml
RV 10.84
NS 29/32 Evaporator piston 1000 ml
RV 10.85
NS 29/32 Evaporator piston 2000 ml
RV 10.86
NS 29/32 Evaporator piston 3000 ml
RV 10.90
NS 24/32 Evaporator piston 50 ml
RV 10.91
NS 24/32 Evaporator piston 100 ml
RV 10.92
NS 24/32 Evaporator piston 250 ml
RV 10.93
NS 24/32 Evaporator piston 500 ml
RV 10.94
NS 24/32 Evaporator piston 1000 ml
RV 10.95
NS 24/32 Evaporator piston 2000 ml
RV 10.96
NS 24/32 Evaporator piston 3000 ml
RV 10.97
NS 24/40 Evaporator piston 1000 ml
RV 10.2001
NS 29/42 Evaporator piston 50 ml
RV 10.2002
NS 29/42 Evaporator piston 100 ml
RV 10.2003
NS 29/42 Evaporator piston 250 ml
RV 10.2004
NS 29/42 Evaporator piston 500 ml
RV 10.87
NS 29/42 Evaporator piston 1000 ml
RV 10.2005
NS 29/42 Evaporator piston 2000 ml
RV 10.2006
NS 29/42 Evaporator piston 3000 ml
RV 10.2007
NS 24/40 Evaporator piston 50 ml
RV 10.2008
NS 24/40 Evaporator piston 100 ml
RV 10.2009
NS 24/40 Evaporator piston 250 ml
RV 10.2010
NS 24/40 Evaporator piston 500 ml
RV 10.2011
NS 24/40 Evaporator piston 1000 ml
RV 10.2012
NS 24/40 Evaporator piston 2000 ml
RV 10.2013
NS 24/40 Evaporator piston 3000 ml
RV 10.100
KS 35/20 Receiving flask 100 ml
RV 10.101
KS 35/20 Receiving flask 250 ml
RV 10.102
KS 35/20 Receiving flask 500 ml
RV 10.103
KS 35/20 Receiving flask 1000 ml
RV 10.104
KS 35/20 Receiving flask 2000 ml
RV 10.105
KS 35/20 Receiving flask 3000 ml
RV 10.200
KS 35/20 Receiving flask, coated 100 ml
RV 10.201
KS 35/20 Receiving flask, coated 250 m
RV 10.202
KS 35/20 Receiving flask, coated 500 ml
RV 10.203
KS 35/20 Receiving flask, coated 1000 ml
RV 10.204
KS 35/20 Receiving flask, coated 2000 ml
RV 10.205
KS 35/20 Receiving flask, coated 3000 mll
RV 10.300
NS 29/32 Powder piston 500 ml
RV 10.301
NS 29/32 Powder piston 1000 ml
RV 10.302
NS 29/32 Powder piston 2000 ml
RV 10.303
NS 24/29 Powder piston 500 ml
RV 10.304
NS 24/29 Powder piston 1000 ml
RV 10.305
NS 24/29 Powder piston 2000 ml
RV 10.2014
NS 29/32 Powder piston 500 ml
RV 10.2015
NS 29/32 Powder piston 1000 ml
RV 10.2016
NS 29/32 Powder piston 2000 ml
RV 10.217
NS 24/40 Powder piston 500 ml
RV 10.218
NS 24/40 Powder piston 1000 ml
RV 10.219
NS 24/40 Powder piston 2000 ml
RV 10.400
NS 29/32 Evaporator cylinder 500 ml
RV 10.401
NS 29/32 Evaporator cylinder 1500 ml
67
RV 10.402
NS 24/29 Evaporator cylinder 500 ml
RV 10.403
NS 24/29 Evaporator cylinder 1500 ml
RV 10.2020
NS 29/42 Evaporator cylinder 500 ml
RV 10.2021
NS 29/42 Evaporator cylinder 1500 ml
RV 10.2022
NS 24/40 Evaporator cylinder 500 ml
RV 10.2023
NS 24/40 Evaporator cylinder 1500 ml
RV 10.500
NS 29/32 Foam brake
RV 10.501
NS 24/29 Foam brake
RV 10.2024
NS 29/42 Foam brake
RV 10.2025
NS 24/40 Foam brake
RV 10.600
NS 29/32 Distillation spider with 6 sleeves
RV 10.601
NS 29/32 Distillation spider with 12 sleeves
RV 10.602
NS 29/32 Distillation spider with 20 sleeves
RV 10.603
NS 24/29 Distillation spider with 6 sleeves
RV 10.604
NS 24/29 Distillation spider with 12 sleeves
RV 10.605
NS 24/29 Distillation spider with 20 sleeves
RV 10.2026
NS 29/42 Distillation spider with 6 sleeves
RV 10.2027
NS 29/42 Distillation spider with 12 sleeves
RV 10.2028
NS 29/42 Distillation spider with 20 sleeves
RV 10.2029
NS 24/40 Distillation spider with 6 sleeves
RV 10.2030
NS 24/40 Distillation spider with 12 sleeves
RV 10.2031
NS 24/40 Distillation spider with 20 sleeves
RV 10.610
Distilling sleeve 20 ml
RV 10.606
NS 29/32 Distillation spider with 5 flasks 50 ml
RV 10.607
NS 29/32 Distillation spider with 5 flasks 100 ml
RV 10.608
NS 24/29 Distillation spider with 5 flasks 50 ml
RV 10.609
NS 24/29 Distillation spider with 5 flasks 100 ml
RV 10.2032
NS 29/42 Distillation spider with 5 flasks 50 ml
RV 10.2033
NS 29/42 Distillation spider with 5 flasks 100 ml
RV 10.2034
NS 24/40 Distillation spider with 5 flasks 50 ml
RV 10.2035
NS 24/40 Distillation spider with 5 flasks 100 ml
RV 10.3000
Extension plate
RV 10.4001
Solenoid valve (central vacuum system) (1)
RV 10.4002
Solenoid valve (laboratory vacuum system) (2)
RV 10.4003
Pump controller, including solenoid valve (3)
RV 10.5001
Water regulator valve (4), only for use on water supply
line!
RV 10.5002
Filter (5)
RV 10.5003
Pressure control valve (6)
RV 10.8001
Seal, PTFE compound
PC 1.1
Cable
Labworldsoft
®
68
Any malfunctions during operation will be identified by an error message on the display.
Once a serious error message has been displayed, the lift moves to the top end position and the device can no longer be operated. The lift can be
operated again.
Proceed as follows in such cases:
Switch off device using the main switch
Carry out corrective measures
Restart device
Error
Effect
Cause
Correction
Communication Distillation cancelled in
IR interface obstructed
- Press ESC to confirm
error bath
"Auto-distillation" mode
Heating bath switched off
- Switch on heating bath
- Check and clean IR interface
No rotation
Distillation stopped,
Rotary drive does not start or
- Switch device off and on at mains switch
no rotary drive
exhibits very large speed variation
No temperature Distillation cancelled in
No differential temperature increase - Press ESC to confirm
difference
"Auto-distillation" mode
of cooling water
- Check flow of cooling water
- Check that the cooling water hoses are fitted correctly
Temperature
Distillation stopped
Differential temperature outside
- Press ESC to confirm
out of range
measurement range (> 7 K)
- Check that the cooling water hoses are fitted correctly
No vacuum
Distillation stopped
Vacuum target value not reached
- Press ESC to confirm
Vacuum cannot be controlled
- Check that the glassware and hose connections
are properly sealed
- Switch on the pump
- Check the solenoid valve connections
No venting
Vacuum cannot be vented
No venting of condenser
- Switch off the device
- Vacuum sensor faulty
- Manually vent the glassware using the stop
valve
Water valve
Water runs continuously into
Water valve not closed
- Press ESC to confirm
not closed
cooling circuit
- Check the connection
Flow rate
Distillation cancelled in
Flow rate of cooling water out of range - Press ESC to confirm
out of range
"Auto-distillation" mode
- Readjust flow rate
- Switch off flow rate control (for dry ice coolers)
Condenser
Distillation stopped
Condenser overload
- Press ESC to confirm
overload
Distillate may be able to enter the
- Change process parameters, e.g.
vacuum pump
- Increase pressure
- Reduce bath temperature
- Increase condenser flow rate within specified range
Distillation
Distillation stopped
The system detected that there was
- Press ESC to confirm
dry
no more medium in the evaporating - Alternatively, activate the “Drying” option
flask during the distillation.
in the “Settings” menu
Lift not in
Distillation stopped
Obstruction in path of lift
- Press ESC to confirm
end position
Lift motor switches off
- Check the path of the lift.
- Remove any obstructions.
Calibration error Calibration reset to factory setting
Out of calibration range
- Press ESC to confirm
(max. +/-0.5 K)
- Check that the sensor is connected correctly
- Carry out a new calibration procedure
Memory error
Calibration parameter for vacuum reset
Error by checking contents of memory Vacuum must be recalibrated
to factory setting
Vacuum leak
Distillation stopped
Leak in vacuum system
Press ESC to confirm
Locate leak
Error codes
69
Technical Data
Operating voltage range
Vac
100 - 230 ±10%
Rated voltage
Vac
100 - 230
Frequence
Hz
50 / 60
Power input without heating bath
W
100
Power input operation “stand by”
W
3,3
Speed
rpm 20-280
Speed display
digital
Dimensions of visible display area (W x H)
mm
70 x 52
Display
TFT-Display
Multiple languages
yes
Right and left movement/ interval operation
yes
Smooth start
yes
Lift
automatic
Lifting speed
mm/s
50
Stroke
mm 140
Setting of lower end stop
mm
60, contactless
Head angle adjustable
0° - 45°
Timer
min 1-200
Interval
sec 1-100
Integrated vacuum controller
yes
Measurement range vacuum
mbar (hPa)
1050 - 1
Adjustment range vacuum
mbar (hPa)
1012 - 1
Measurement accuracy vacuum
mbar
+ 2 (+ 1 Digit) if calibritation is done at a constant temperature
Adjustment accuracy vacuum
mbar
adjustable hysteresis
Measurement range of differential temperature K
7
Offset balancing range
K
+0,5
Interface
USB, RS 232
Ramp programming
yes
Distillation processes programmable
yes
Remote control
with accessory labworldsoft
®
Cooling surface
cm
2
1200
(Standard condenser RV 10.1,10.10,10.2,10.20)
Minimum cooling water flow rate
l/h
30
Maximum cooling water flow rate
l/h
100
Cooling water pressure
bar
1
Cooling water temperature range
°C
18 - 22, constantly
Fuse
2xT1, 6A 250V 5x20
Perm. On- time
%
100
Perm. ambient temperature
°C
5-40
Perm. humidity
%
80
Protection acc. to DIN EN 60529
IP 20
Protection class
I
Overvoltage category
II
Contamination level
2
Weight (no glassware; no heating bath)
kg
18,6
Dimensions (W x D x H)
mm
500 x 440 x 430
Operation at a terrestrial altitude
m
max. 2000 above sea level
Subject to technical changes!
Error
Effect
Cause
Correction
No boiling point Distillation stopped
The boiling point could not be
- High-boiling solvent: restart
found
determined
- Check heating bath
No analogue
The distillation was not started
No analogue pump was found
- Confirm with ESC
pump found
- Check pump and connections
If the actions described fail to resolve the fault or another error code is displayed then take one of the following steps:
- contact the
IKA
®
service department,
- send the device for repair, including a short description of the fault.
70
Solvent table (excerpt)
Solvent
Formula
Pressure for
boiling point
40 °C in mbar
Acetic acid
C
2
H
4
O
2
44
Acetone C
3
H
6
O 556
Acetonitrile C
2
H
3
N 226
N-Amylalcohol, C
5
H
12
O 11
n-Pentanol
n-Butanol C
4
H
10
25
tert. Butanol,
C
4
H
10
O 130
2-Methyl-2-Propanol
Butylacetate C
6
H
12
O
2
39
Chlorobenzene C
6
H
5
CI 36
Chloroform CHCI
3
474
Cyclohexane C
6
H
12
235
Dichloromethane, CH
2
C
I2
atm.press.
Methylenechloride
Diethylether C
4
H
10
O atm.press.
1,2,-Dichloroethylene (trans)
C
2
H
2
CI
2
751
Diisopropylether C
6
H
14
O 375
Dioxane C
4
H
8
O
2
107
Dimethylformamide (DMF)
C
3
H
7
NO 11
Ethanol C
2
H
6
O 175
Solvent
Formula
Pressure for
boiling point
40 °C in mbar
Ethylacetate C
4
H
8
O
2
240
Ethylmethylketone C
4
H
8
O 243
Heptane C
7
H
16
120
Hexane C
6
H
14
335
Isopropylalcohol C
3
H
8
O 137
Isoamylalcohol, C
5
H
12
O 14
3-Methyl-1-Butanol
Methanol CH
4
O 337
Pentane C
5
H
12
atm.press.
n-Propylalcohol C
3
H
8
O 67
Pentachloroethane C
2
HCI
5
13
1,1,2,2,-Tetrachloroethane C
2
H
2
CI
4
35
1,1,1,-Trichloroethane C
2
H
3
CI
3
300
Tetrachloroethylene C
2
CI
4
53
Tetrachloromethane CCI
4
271
Tetrahydrofurane (THF)
C
4
H
8
O 357
Toluene C
7
H
8
77
Trichloroethylene C
2
HCI
3
183
Water H
2
O 72
Xylene C
8
H
10
25

