Alexika RV 10 control FLEX auto: RU
RU: Alexika RV 10 control FLEX auto
137
Исходный язык: немéцкий
RU
Содержание
Общее указание на опасность
Опасность получения ожогов!
Условные обозначения
Страница
Декларация о соответствии стандартам ЕС
3
Условные обозначения
137
Гарантия 137
Указания по технике безопасности
138
Использование по назначению
139
Распаковка 140
Важные замечания
140
Регулирование вакуума: двухпозиционный режим и режим с регулированием частоты вращения 141
Размещение 142
Привод RV 10 control
Нагревательная баня
Стеклянная посуда
Система шлангов
Интерфейсы и выходы
150
Ввод в эксплуатацию
152
Техобслуживание и чистка
164
Принадлежности 164
Коды ошибок
167
Технические данные
168
Таблица растворителей (выбор)
169
В соответствии с условиями продажи и поставки
IKA
®
срок гарантии составляет
24 месяца. При наступлении гарантийного случая обращайтесь к дилеру. Можно
также отправить прибор с приложением платежных документов и указанием
причины рекламации непосредственно на наш завод. Расходы по перевозке
берет на себя покупатель.
Гарантия
Гарантия не распространяется на изнашивающиеся детали, случаи
ненадлежащего обращения, недостаточного ухода и обслуживания, не
соответствующего указаниям настоящей инструкции по эксплуатации.
138
Указания по технике безопасности
•
Количество и тип дистиллята должны соответствовать размеру дистилляционного
оборудования. Охладитель должен обладать достаточной эффективностью.
Контролируйте расход охлаждающего средства на выходе охладителя.
• При работе под нормальным давлением (например, открытый выход
охладителя) стеклянная посуда в сборе должна всегда проветриваться во
избежание повышения давления.
• Следите за тем, чтобы газы, пары или взвешенные вещества в опасной
концентрации могли выходить через открытый выход охладителя. Убедитесь,
что опасность, например, из-за подключенных охлаждаемых ловушек,
газопромывных склянок или работающей вытяжки, исключена.
• Не нагревайте вакуумированные стеклянные сосуды с одной стороны. Во
время фазы нагрева испарительная колба должна вращаться.
• Стеклянная посуда рассчитана на работу с вакуумом до 1 мбар. Перед
началом нагрева выполните вакуумирование оборудования (см. главу
«Ввод в эксплуатацию»). Проветривайте оборудование снова только после
охлаждения. Неконденсированные пары должны быть конденсированы
или безопасно отведены. Если существует опасность разложения остатка
дистилляции в присутствии кислорода, для уменьшения давления
разрешается подавать только инертный газ.
•
Внимание!
Не допускайте образования пероксидов. В остатках после
дистилляции и выпаривания могут накапливаться и взрывообразно
разлагаться неорганические пероксиды!
Храните жидкости, склонные с образованию неорганических пероксидов, в
защищенном от попадания света, в частности ультрафиолетового излучения,
месте и перед дистилляцией и выпариванием проверяйте их на наличие
пероксидов. Имеющиеся пероксиды необходимо удалить. К образованию
пероксидов склонны многочисленные органические соединения,
например, декалин, диэтиловый эфир, диоксан, тетрагидрофуран, а также
ненасыщенные углеводороды, как-то: тетралин, диены, кумол, а также
альдегиды, кетоны и растворы этих веществ.
•
Опасность получения ожогов!
Нагревательная баня, теплопередающая
среда, а также испарительная колба и стеклянная посуда в сборе могут
нагреваться во время работы и оставаться горячими в течение длительного
времени после ее завершения! Перед продолжением работ на приборе дайте
компонентам охладиться.
• Внимание!
Не допускайте задержки кипения. Нагрев испарительной колбы
в нагревательной бане без подключения ротационного привода запрещен!
Если внезапное вспенивание или фумигация свидетельствуют о начале
разложения содержимого колбы, немедленно выключите нагрев. Поднимите
испарительную колбу из нагревательной бани при помощи подъемного
устройства. Очистите опасную зону и предупредите находящихся поблизости
людей!
•
Внимание!
Категорически запрещается эксплуатировать прибор с
вращающейся испарительной колбой и поднятым подъемником. Включите
прибор с низкой скоростью вращения и опустите испарительную колбу
в нагревательную баню, затем увеличьте скорость вращения до нужного
значения. В противном случае существует опасность выплескивания горячей
теплопередающей среды!
•
Установите скорость вращения привода таким образом, чтобы при вращении
испарительной колбы в нагревательной бане не выплескивалась теплопередающая
среда, при необходимости снова уменьшите скорость вращения.
• Во время работы не прикасайтесь к вращающимся частям прибора.
• Дисбаланс может привести к неконтролируемому резонансному поведению
прибора или конструкции. Стеклянное оборудование может быть повреждено
или разбито. При дисбалансе или необычных шумах немедленно выключите
прибор или уменьшите скорость вращения.
• После исчезновения питания в стеклянной посуде возможно возникновение
пониженного давления! Прибор проветривается автоматически при
повторном включении.
• После прерывания подачи тока прибор при возобновлении подачи
автоматически не запускается.
• Полное обесточивание прибора производится только с помощью выключателя
или путем извлечения вилки кабеля питания или вилки прибора из розетки
электрической сети.
• К розетке для кабеля сетевого питания должен обеспечиваться легкий доступ.
Для вашей защиты
•
Перед вводом в эксплуатацию полностью прочитайте
инструкцию по эксплуатации и соблюдайте указания по
технике безопасности.
•
Храните инструкцию по эксплуатации в доступном для всех
месте.
• Следите за тем, чтобы с прибором работал только обученный персонал.
• Соблюдайте указания по технике безопасности, директивы, предписания
по охране труда и предотвращению несчастных случаев.
В частности при
работе под вакуумом!
• Используйте средства индивидуальной защиты в соответствии с классом
опасности обрабатываемой среды. В противном случае возникает опасность
вследствие:
- разбрызгивания жидкостей;
- захвата частей тела, волос, одежды и украшений;
- травм из-за боя стекла.
• Учитывайте опасности для пользователя, возникающие при контакте со
средами, например, ядовитыми жидкостями, газами, туманом, парами,
пылью или биологическими или микробиологическими веществами, либо
при их вдыхании.
• Установите прибор на ровной, устойчивой, чистой, нескользящей, сухой и
огнестойкой поверхности.
• Следите за наличием достаточного места над прибором, так как стеклянная
посуда в сборе может превышать высоту прибора.
• Перед каждым использованием проверяйте прибор, принадлежности и
особенно стеклянные части на наличие повреждений. Не используйте
поврежденные детали.
• Следите за тем, чтобы стеклянная посуда в сборе не имела внутренних
напряжений! Опасность растрескивания вследствие:
- напряжений из-за неправильной сборки;
- механических воздействий извне;
- локальных температурных пиков.
• Следите за тем, чтобы прибор при вибрациях или дисбалансе оставался
неподвижным.
• Учитывайте опасность, исходящую от:
- воспламеняющихся материалов;
- горючих сред с низкой температурой кипения.
•
Внимание!
Данный прибор предназначен только для
обработки или нагрева сред с температурой воспламенения
выше установленного предела максимальной температуры
нагревательной бани.
Заданный предел максимально допустимой температуры нагревательной
бани должен быть не менее чем на 25 °C ниже точки воспламенения
используемой среды.
•
Запрещается
эксплуатировать прибор во взрывоопасной атмосфере, с
опасными веществами и под водой.
• Допускается обработка только материалов, не имеющих опасной реакции
на прилагаемую при обработке энергию. Это относится и к другим видам
энергии, например, к световому излучению.
• Работы с прибором разрешается выполнять только в контролируемом режиме.
• Работа с избыточным давлением запрещена (давление охлаждающей воды см.
в главе «Технические данные»).
• Не закрывайте вентиляционные отверстия для охлаждения прибора.
• Нельзя исключить потенциально опасного электростатического
взаимодействия между средой и узлом привода.
• Прибор не предназначен для ручного режима работы.
• Безопасная работа обеспечивается только при использовании
принадлежностей, описанных в главе «Принадлежности».
• Соблюдайте инструкцию по эксплуатации нагревательной бани HB 10.
• Соблюдайте инструкцию по эксплуатации принадлежностей, например,
вакуумного насоса.
• Проложите выход вакуумного насоса со стороны нагнетания в вытяжной шкаф.
• Используйте защитный колпак HB 10.2 или экран HB 10.1, защищающий от
брызг.
• Эксплуатируйте прибор только при закрытом со всех сторон вытяжном шкафу
или аналогичных предохранительных устройствах.
139
Помимо ручного режима можно выбирать следующие автоматические
режимы:
- 100% дистилляция;
- зависящая от объема или количества дистилляция.
aна задней правой стороне прибора с максимальным общим весом 3,1 кг.
Испарительная колба поднимется из нагревательной бани.
При первом вводе в эксплуатацию, а также после длительного простоя выполните
следующие действия: перед отключением сетевого напряжения несколько раз
переместите подъемник в нижнее и верхнее конечные положения с помощью
мотора и посредством нажатия функциональных кнопок подъемника.
Примечание: отключение и прекращение подачи сетевого напряжения
осуществляется с задержкой по времени относительно отключения с
помощью кнопки «Power» на передней панели.
Если устройство аварийного подъема не функционирует, обратитесь в сервисную
службу компании
IKA
®
.
Со стороны испарителя (испарительная колба плюс содержимое) максимально
допустимый вес составляет 3,0 кг! При превышении этого веса существует
опасность боя стекла паропроводной трубки!
Учитывайте, что в этом случае устройство аварийного подъема не функционирует.
При большом весе всегда выполняйте работы с медленной скоростью вращения.
Большой дисбаланс ведет к поломке паропроводной трубки!!
• Открывать прибор могут только квалифицированные специалисты.
• Съемные детали прибора должны быть установлены на место, чтобы
предотвратить проникновение инородных тел, жидкостей и т. д.
• Не допускайте толчков и ударов прибора и принадлежностей.
• Автоматическая работа: Перед началом автоматического выполнения всегда
проверяйте процессы испарения. Неизвестные процессы испарения нельзя
выполнять автоматически!
Устройство аварийного подъема
При выключении прибора или обесточивании включается внутреннее
устройство аварийного подъема, которое поднимает испарительную колбу из
нагревательной бани.
Устройство аварийного подъема в обесточенном состоянии рассчитано на
максимальный общий вес (стеклянная посуда плюс растворитель) 3,1 кг.
Пример расчета максимального веса при использовании вертикальной
стеклянной посуды с колбой объемом 1 литр:
Охладитель + приемная колба + испарительная колба + мелкие детали =
1200 г + 400 г + 280 г + 100 г = 1980 г
Максимальный вес растворителя = 3100 г – 1980 г = 1320 г
При большем весе аварийный подъем может не обеспечиваться, что
обусловлено конструкцией!
При использовании охладителей других типов, например, сухоледного или
высокоэффективного охладителя, а также при использовании распределителей
для повторной дистилляции со съемным охладителем может потребоваться
уменьшение веса в соответствии с добавочным весом этих стеклянных конструкций!
Поэтому перед началом дистилляции проверьте, поднимается ли вверх
нагруженный стеклянной посудой и дистиллятом подъемник в обесточенном
состоянии.
Устройство аварийного подъема необходимо проверять ежедневно перед
началом работы. Переместите подъемник в нижнее конечное положение с
помощью мотора и нажмите кнопку питания «Power» на передней панели или
включите главный сетевой выключатель
Для защиты прибора
• Данные напряжения на типовой табличке должны совпадать с параметрами
сетевого напряжения.
• Розетка сети электропитания должна быть заземлена (должна иметь контакт
защитного провода).
Использование по назначению
•
Область применения
- Лаборатории
- Учебные заведения
- Аптеки
- Университеты
Защита пользователя не гарантируется, если прибор эксплуатируется
с принадлежностями, которые поставлены не производителем или не
рекомендованы им, или если прибор эксплуатируется не в соответствии с
назначением или вопреки данным производителя, или если на приборе или
печатной плате третьим лицом проведены изменения.
•
Применение
Прибор в комбинации с рекомендованными компанией
IKA
®
принадлежностями предназначен для:
- быстрой и щадящей дистилляции жидкостей;
- выпаривания растворов и суспензий;
- кристаллизации, синтеза или очистки химических продуктов тонкого
органического синтеза;
- сушки порошков и гранулята;
- рециркуляции растворителей.
Способ эксплуатации: настольный прибор
140
Распаковка
•
Распаковка
- Осторожно распакуйте прибор.
- При наличии повреждений немедленно выясните их причину (почта,
железная дорога или транспортное агентство).
•
Комплект поставки
См. таблицу
Важные замечания
Прибор оснащен механизмом защиты хода колбы. После исчезновения питания
в стеклянной посуде в сборе возможно создание вакуума, при повторном
включении выполняется ее проветривание. При исчезновении питания
испарительная колба автоматически поднимается из нагревательной бани при
помощи встроенного газонаполненного амортизатора.
ВНИМАНИЕ!
Устройство аварийного подъема необходимо проверять ежедневно
перед началом работы. См. главу «Указания по технике безопасности», раздел
«Устройство аварийного подъема»!
С помощью ротационного испарителя RV 10 control наряду со всеми ручными
и полуавтоматическими операциями испарения также можно выполнять
полностью автоматические и регулируемые по количеству процессы испарения.
Для этого прибор в стандартной комплектации оснащен регулятором вакуума,
датчиком дифференциальной температуры охлаждающей воды и датчиком
расхода охлаждающей воды. С помощью встроенного регулятора вакуума
регулирование вакуума можно выполнять как в двухпозиционном режиме, так
и в режиме с регулированием частоты вращения насоса. Прибор рассчитан
на работу от системы подачи охлаждающей воды (например, лабораторный
термостат), но также может работать от водопровода. Соблюдайте технические
данные в отношении давления, постоянства температуры и расхода
охлаждающей воды, а также национальные предписания.
При работе от водопровода мы рекомендуем использовать клапан для
регулирования воды RV 10.5001! С помощью этого клапана можно регулировать
расход охлаждающей воды, а также автоматически прекращать подачу
охлаждающей воды после завершения дистилляции.
С помощью фильтра для воды RV 10.5002 можно предотвратить попадание
частиц грязи из водопровода в клапанный механизм.
Для уменьшения давления мы рекомендуем установить в водопроводную линию
клапан для регулирования давления RV 10.5003 сразу после точки забора.
Автоматическая, зависящая от объема дистилляция:
оборудование
необходимо установить на рабочую температуру. Для этого следует выполнить
пробную дистилляцию.
Дистилляция — это термический метод разделения жидких смесей путем их
выпаривания и последующей конденсации; в основе метода лежит различие
зависящих от давления точек кипения компонентов смесей.
Температура кипения уменьшается при понижении внешнего давления, поэтому
работы, как правило, выполняются с уменьшенным давлением. Тем самым в
нагревательной бане можно поддерживать постоянную температуру (например,
60 °C). С помощью вакуума устанавливается точка кипения при температуре пара
прим. 40 °C. Температура охлаждающей воды для охладителя-конденсатора не
должна превышать 20 °C (правило 60-40-20).
Для создания вакуума следует использовать стойкий к химическому воздействию
мембранный насос с регулятором вакуума, который защищен от остатков
растворителей посредством подключения склянки Вульфа и/или вакуумного
сепаратора.
Использовать водоструйный насос для создания вакуума рекомендуется только
ограниченно, так как при применении этих систем возможно загрязнение
окружающей среды растворителями.
На производительность испарителя влияют скорость вращения, температура,
размер колбы и давление в системе.
Оптимальная пропускная способность проточного охладителя составляет прим. 60%.
Это соответствует конденсации на прим. 2/3 охлаждающей спирали. При более
высокой пропускной способности существует опасность вытяжки неконденсированных
паров растворителя.
Для предотвращения этого можно активировать систему контроля безопасности
пропускной способности охладителя. Для этого выполните несколько процессов
дистилляции и возьмите значение из меню «Настройки», пункт меню «Привод»,
пункт «Максимальная охлаждающая мощность». Рассчитайте мощность
охладителя по следующей формуле:
Предельное значение мощности охладителя = максимальная мощность
охладителя * 1,3
Введите это значение в меню «Настройки», пункт меню «Дистилляция», пункт
«Предельное значение мощности охладителя». При превышении предельного
значения охладителя прибор завершает измерение и выдает сообщение
об ошибке. При изменении конфигурации конструкции охладителя или
конфигурации дистилляции требуется повторная корректировка максимальной
пропускной способности охладителя.
Заводская настройка для этого параметра — 900 Вт.
RV
10
control
V
x x x x x x x x x x x x
RV
10
control
V-C
x x x x x x x x x x x x
RV
10
control
FLEX
x x x x x x x x x x x
RV
10
control
V
auto x x x x x x x x x x x x
RV
10
control
V-C
auto x x x x x x x x x x x x
RV
10
control
FLEX
auto x x x x x x x x x x x
Приво
д RV 10 contr
ol
Нагреват
ельная баня HB 10
ер
тик
альная ст
еклянная посу
да RV 10.1
ер
тик
альная ст
еклянная посу
да RV 10.10 покрытием
Склянк
а Ву
льфа
Дер
жат
ель
KФик
сат
ор о
хладит
еля в сборе
Вакуумный шланг (2 x 0,55 м)
Шланг для слива во
ды (1 x 1 м)
Инстр
укция по эк
сплу
ат
ации
Ко
льцевой г
аечный ключ
Ручк
а
RV 10.4002 Вакуумный клапан для лаборат
орног
о вакуума
Вакуумный насос N 920 с регу
лир
уемой част
от
ой вращения
141
Ротационный испаритель RV10 control со встроенным регулятором вакуума и датчиком давления позволяет регулировать вакуум в
двухпозиционном режиме или в режиме с регулированием частоты вращения.
Двухпозиционное регулирование
С помощью вакуумного насоса в стеклянной посуде создается вакуум. Вакуумный насос работает с постоянной частотой вращения, которая,
как правило, не регулируется.
При достижении заданного значения вакуумный клапан RV 10.4002 перекрывает всасывающий трубопровод (входит в комплект поставки).
Если дополнительно требуется автоматическое включение и выключение вакуумного насоса, используйте систему управления насосом RV
10.4003 (принадлежности).
Из-за разницы во времени обнаружения значения вакуума, сравнения с заданным значением и включения вакуумного клапана в
миллисекундном диапазоне легко происходит опускание ниже заданного значения.
Естественная утечка из оборудования снова приводит к повышению давления в системе, которое опять же обнаруживает встроенный
датчик давления.
При превышении заданного значения вакуумный клапан снова открывается, и работающий вакуумный насос снова понижает давление.
Отображаемая на дисплее кривая давления колеблется около установленного заданного значения.
Разность давлений при включении и выключении клапана можно задать посредством значения гистерезиса вакуума (см. настройку: вакуум).
По умолчанию это значение установлено на 10 мбар.
Качество регулирования зависит от скорости откачки насоса (частота вращения), герметичности системы и времени прохождения сигналов
используемого электронного оборудования.
При двухпозиционном регулировании автоматическое распознавание точки кипения невозможно.
Схема двухпозиционного регулирования вакуума
Регулирование вакуума посредством регулирования частоты вращения
Погрешности двухпозиционного регулирования устраняются при регулировании вакуума посредством регулирования частоты вращения.
Для регулирования вакуума посредством регулирования частоты вращения требуется вакуумный насос с регулируемой частотой вращения,
вакуумный клапан RV10.4002 не требуется, его не следует подключать!
Для этого подключите вакуумный насос (например, насос KNF N920 с регулируемой частотой вращения) к разъему на задней стороне
ротационного испарителя.
При использовании этого типа регулирования частота вращения насоса и, соответственно, его скорость откачки уменьшаются по мере
приближения измеренного значения давления к заданному значению. Если заданное значение достигнуто, насос работает только в
соответствии с интенсивностью течи.
Возможны более тихая работа и более точное регулирование вакуума.
Режим регулирования вакуума посредством регулирования частоты вращения настраивается в испарителе RV 10 control автоматически,
если подключен соответствующий вакуумный насос.
При использовании этого типа регулирования возможно автоматическое распознавание точки кипения, т. е. система ищет и сохраняет в
автоматическом режиме точку кипения растворителя.
Поскольку в отличие от зависящей от объема дистилляции при автоматическом распознавании точки кипения растворитель не должен
быть известен, эти различные режимы работы взаимно исключают друг друга.
Схема регулирования вакуума посредством регулирования частоты вращения
Регулирование вакуума: двухпозиционное регулирование и регулирование посредством регулирования частоты вращения
142
Размещение
Открутите зажимное приспособление для регулировки угла ротационного
привода с правой стороны подъемника, повернув винт с грибком (E) против
часовой стрелки (посредством легкого нажатия и одновременного поворота
винт с грибком (E) можно выдвигать или задвигать).
Установите привод на угол прим. 30° (рис. 7).
Затем зафиксируйте ротационный привод против проворачивания, затянув
винт с грибком по часовой стрелке.
Нагревательная баня HB 10
Внимание!
Соблюдайте инструкцию по эксплуатации нагревательной бани,
глава «Ввод в эксплуатацию»!
Установите нагревательную баню на место для установки ротационного
привода и сдвиньте ее влево (рис. 8).
Примечание: обмен данными между узлом привода и нагревательной баней
осуществляется при помощи инфракрасного интерфейса (F). Учитывайте, что обмен
данными обеспечивается только при свободном, непрерывном пути светового луча!
Стеклянная посуда
Откройте фиксатор паропроводной трубки (G), повернув его на 60° против
часовой стрелки (рис. 9).
Привод RV 10 basic/digital
Внимание! Открутите транспортировочное крепление (рис. 4a)!
Нажмите на подъемник рукой и удалите винт с накатанной головкой на
обратной стороне прибора (A).
После удаления транспортировочного крепления подъемник медленно перемещается
в верхнее конечное положение. Длина хода составляет прим. 140 мм.
Подключите прибор к источнику питания (B) с помощью входящего в комплект
поставки кабеля сетевого питания.
Регулируемая ножка прибора (рис. 4b)
Монтаж склянки Вульфа (рис. 5)
Смонтируйте соединительный элемент шланга (C) с левой стороны подъемника.
Смонтируйте держатель (D) на соединительном элементе шланга (C).
Вставьте склянку и смонтируйте входящие в комплект поставки штуцеры для
подключения шлангов на склянке (рис. 6).
рис 4a
рис 4b
рис 5
E
F
G
H
рис. 6
рис 7
рис. 8
рис. 9
C
D
143
Первый ввод в эксплуатацию: монтаж уплотнения RV 10.8001
Вставьте паропроводную трубку (1).
Вставьте уплотнение RV 10.8001 (2).
Установите охладитель (3a).
Затяните накидную гайку вручную до отказа (3b).
Монтаж фиксатора охладителя вертикальной стеклянной посуды
Смонтируйте фиксатор охладителя в соответствии с рисунком (рис. 12).
Смонтируйте пластину (I) с помощью винта с накатанной головкой (J).
Установите ножку штатива (L) на пластину (I) и зафиксируйте ее гайкой (K).
Установите резиновый защитный элемент (M).
Закрепите липкую ленту (N) на ножке штатива (L).
Зафиксируйте вертикальную стеклянную посуду с помощью липкой ленты (N).
Вставьте паропроводную трубку до упора.
Затем заблокируйте этот фиксатор, повернув его на 60° по часовой стрелке
(рис. 10).
Проверьте осевой фиксатор паропроводной трубки.
Отжимное приспособление
Пластмассовая гайка (H) служит в качестве отжимного приспособления для
плотно пригнанных соединений шлифа колбы (рис. 10).
Держите фиксатор (G) и открутите пластмассовую гайку (H).
Для этого держите плотно пригнанную испарительную колбу и отверните
пластмассовую гайку (H) до шейки испарительной колбы.
Примечание: перед вводом в эксплуатацию затяните пластмассовую гайку (H) вручную
до отказа влево. При этом крепко держите фиксатор (G) паропроводной трубки.
Установка уплотнения охладителя
Вставьте уплотнение охладителя RV 10.8001 в крепление охладителя и
смонтируйте стеклянную посуду на приборе в соответствии с ее инструкцией
по монтажу (рис. 11 a, b и c ).
рис. 10
H
рис. 11a
рис. 11b
1
2
3a
3b
рис. 11c
рис. 12
I
J
M
N
L
K
G
144
4
7
8
6
12
9
3
10
5
13
15
16
Ротационный
привод
Стеклянная
посуда
RV 10.2
диагональная
RV 10.20
диагональная
,
с
покрытием
Стеклянная
посуда
RV 10.1
вертикальная
RV 10.10
вертикальная
,
с
покрытием
Ротационный
привод
2
10
00
m
l
N
S2
9/
32
1
11
13
12
5
4
7
8
6
15
9
3
2
10
16
11
1
10
00
m
l
N
S2
9/
32
стеклянной посуды
Поз. Наименование
Количество
Количество
Диагональная стеклянная посуда
Вертикальная стеклянная посуда
1
Приемная колба
1
1
2
Зажим NS 29
1
1
3
Паропроводная трубка
1
1
4
Запорный кран
1
1
5 Трубка
1
1
6
Охладитель
1 диагональный охладитель
1 вертикальный охладитель
7
Подсоединение
1 входная гильза
1 акуумное соединение
8
Зажим NS 29
1
1
9
Уплотнение RV 10.8001
1
1
10
Испарительная колба объемом 1000 мл
1
1
11
Шарнирный хомут RV 05.10
1
1
12
Винтовой колпачок
4
4
13
Штуцер для подключения шланга
4
4
15 Контргайка
1
1
16
Пружинное кольцо
1
1
Монтаж стеклянной посуды
Описание специального охладителя
•
Вертикальный высокоэффективный охладитель RV 10.3 с распределителем
Вертикальный высокоэффективный охладитель с двойной рубашкой
обеспечивает более эффективную конденсацию.
Также поставляется в исполнении с покрытием (RV 10.30).
•
Сухоледный охладитель RV 10.4
Сухоледный охладитель для дистилляции низкокипящих растворителей.
Охлаждение сухим льдом, охлаждающая вода не требуется, максимальная
конденсация за счет низких температур.
Также поставляется в исполнении с покрытием (RV 10.40).
(Не используется в автоматическом режиме прибора RV10 control).
•
Вертикальный охладитель RV 10.5 с распределителем и запорным
вентилем для повторной дистилляции
Также поставляется в исполнении с покрытием (RV 10.50).
•
Вертикальный высокоэффективный охладитель RV 10.6 с распределителем
и запорным вентилем для повторной дистилляции
Вертикальный высокоэффективный охладитель с двойной рубашкой
обеспечивает более эффективную повторную дистилляцию.
Также поставляется в исполнении с покрытием (RV 10.60).
Демонтаж охладителя
Используйте входящий в комплект поставки кольцевой гаечный ключ для
откручивания плотно пригнанных накидных гаек.
Открутите накидную гайку, повернув ее против часовой стрелки.
Отклейте липкую ленту.
рис. 13
145
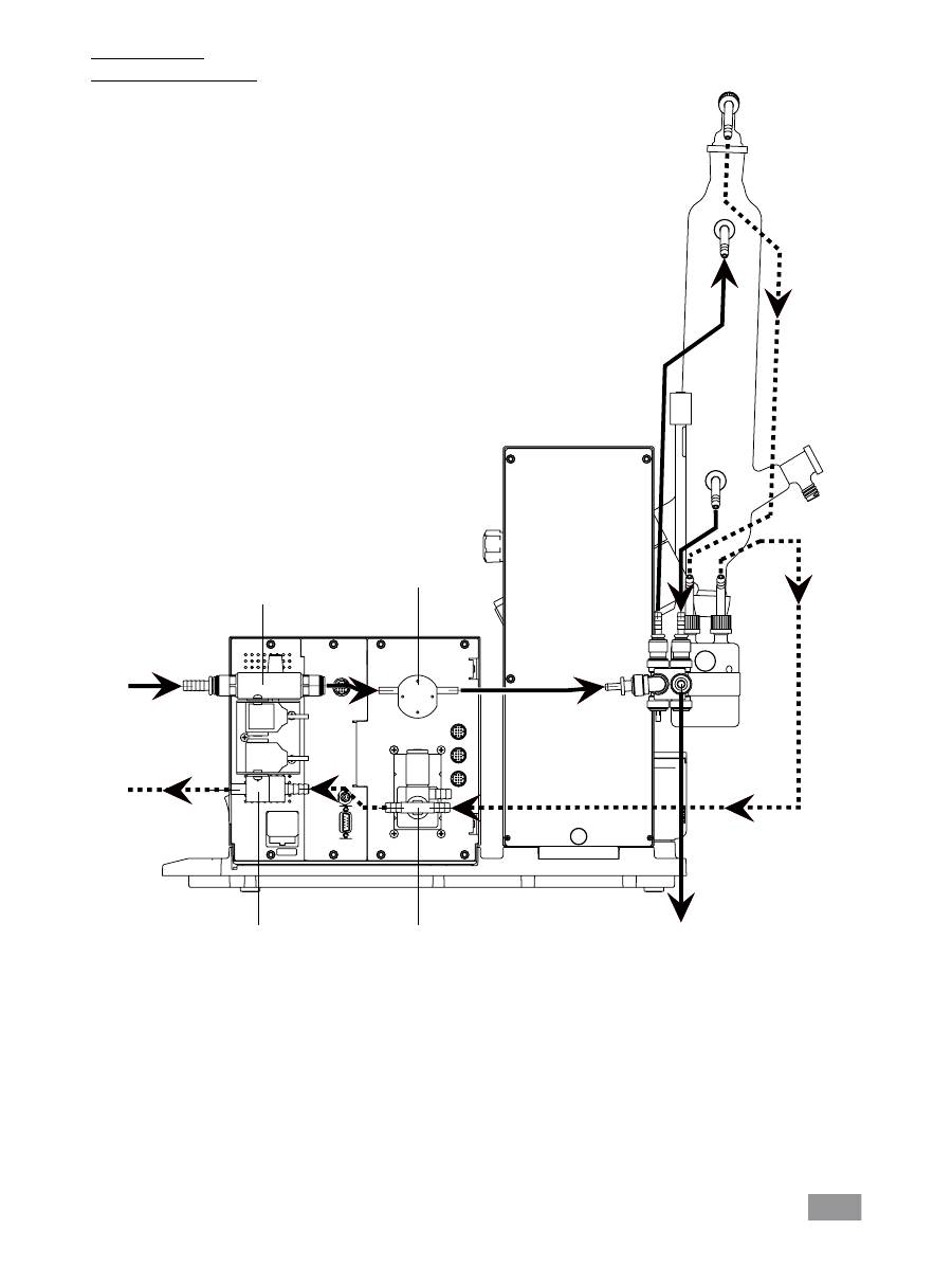
Система шлангов
Схема системы шлангов (вид сзади)
Fig. 14
2x T1,6A 250V
Вода
Вакуум
RV 10.5001
Клапан регулирования
Вода
Опциональный
Датчик
расхода
Вода
Датчик давления
и
клапан для вентиляции
RV 10.4002
Вакуумный клапан
146
Подсоединение RV 10.4003
Двухпозиционное регулирование вакуума
Смонтируйте один из опциональных вакуумных клапанов RV 10.4001,
RV 10.4002 или RV 10.4003 (в соответствии с вакуумной установкой) в
предназначенном для него креплении и соедините вакуумный шланг с
клапаном (рис. 15a, b, c).
Подсоединение RV 10.4001
Подсоединение RV 10.4002
Свободно вращающаяся катушка
SНаправление всасывания
соответствует маркировке в
виде стрелки! Соблюдайте
монтажное положение!
Свободно вращающаяся катушка
Направление всасывания
соответствует маркировке в
виде стрелки! Соблюдайте
монтажное положение!
Свободно вращающаяся катушка
Направление всасывания
соответствует маркировке в
виде стрелки! Соблюдайте
монтажное положение!
Fig. 15a
Fig. 15b
Fig. 15c
Электропитание
насоса от сети
147
Подсоединение RV10 для датчика температуры (dT)
Подключите датчик температуры к нижнему разъему (dT).
Соблюдайте маркировку в виде стрелки.
Регулирование вакуума посредством регулирования частоты вращения
Для режима регулирования вакуума с насосом с регулированием частоты
вращения дополнительный клапан не требуется. Подсоедините всасывающий
шланг насоса прямо к штуцеру для подключения шланга датчика давления.
Подключите электрический провод цепи управления к испарителю RV10 con-
trol (рис. 15e).
Fig. 15f
dT
Fig. 15d
Fig. 15e
148
Подсоедините входящий в комплект поставки шланг для слива воды, вставив
ниппель до упора в соединительную муфту (рис. 18).
Внимание! Следите за правильным подключением подающего и сливного
шлангов охладителя.
Если шланги для подачи и слива воды смонтированы не в соответствии
с описанием или рис. 14, выполнение автоматической дистилляции
невозможно, так как значения температуры для подачи или слива
рассчитываются неправильно..
Открутите шланговое соединение с помощью входящей в комплект поставки ручки.
Вода
Подключите шланг подачи воды к системе подачи воды (рис. 16a; рис. 16b с
опциональным клапаном для регулирования воды RV 10.5001). Соблюдайте
технические данные для подачи воды.
Клапан для регулирования воды RV 10.5001 не предназначен для
использования в охладителе, так как он слишком сильно уменьшает расход.
Подсоедините шланги для воды к охладителю для стекла (короткий шланг
(O) = сливной внизу, длинный шланг (P) = подающий вверху) и закрепите эти
шланги (рис. 17).
Примечание: описание специального охладителя см. в разделе «Описание
специального охладителя».
Fig. 16a
Fig. 16b
Fig. 17
O
P
Fig. 18
Fig. 19
Подающий шланг
охладителя
Сливной шланг
охладителя
подвóд
водbl
подвóд
водbl
149
Схема подсоединения с обратной стороны
Вставьте соединительный кабель для клапана (клапан RV 10.5001, RV 10.4001/2 или RV 10.4003) или соединительный кабель (система управления насосом
RV 10.4003) в соответствующий разъем (рис. 20) Или подключите вакуумный насос с регулированием частоты вращения. При этом испаритель RV10 control
автоматически переключается в режим регулирования вакуума посредством регулирования частоты вращения.
Fig. 20
Соедините датчик давления со склянкой Вульфа, а также склянку Вульфа
с вакуумным соединением охладителя с помощью входящих в комплект
поставки вакуумных шлангов. Помните, что вакуумный шланг всегда
подключается к охладителю в наивысшей точке (рис. 21).
Fig. 21
150
Последовательный интерфейс RS 232 (V24)
Конфигурация
- Функцией каналов интерфейса является передача между прибором и системой
автоматизации избранных сигналов, спецификация которых приводится в
стандарте EIA RS232 C в соответствии со стандартом DIN 66 020, часть 1.
- На электрические свойства каналов интерфейса и распределение состояния
сигналов распространяется стандарт RS 232 C в соответствии со стандартом
DIN 66 259, часть 1.
- Способ передачи: асинхронная передача сигналов в режиме «старт-стоп».
- Тип передачи: полный дуплекс.
- Формат символов: кодирование символов согласно формату данных,
установленному стандартом DIN 66 022 для режима «старт-стоп». 1 стартовый
бит; 7 бит символа; 1 бит четности (четный = Even); 1 стоповый бит.
- Скорость передачи: 9600 бит/с.
- Управление потоком данных: нет.
- Процедура доступа: передача данных с прибора на компьютер осуществляется
только по запросу компьютера.
Синтаксис и формат команд
Для команд действительны следующие положения:
- Команды отправляются только с компьютера (ведущее устройство) на прибор
(ведомое устройство).
- Передача данных с прибора выполняется исключительно по запросу компьютера.
Сообщения об ошибках также не могут спонтанно отправляться с прибора на
компьютер (система автоматизации).
- Команды передаются заглавными буквами.
- Команды и параметры, а также последовательно передаваемые параметры
разделяются по меньшей мере одним пробелом (код: hex 0x20).
- Каждая отдельная команда (в том числе параметр и данные) и каждый ответ
заключаются в последовательности «Пусто Перевод каретки Пусто Перевод
строки» (код: hex 0x20 hex 0x0d hex 0x0A) и состоят не более чем из 80 символов.
- Десятичным разделителем в числе с плавающей запятой является точка (код:
hex 0X20E).
Упомянутые выше модели всецело соответствуют рекомендациям комиссии NAMUR
(Комиссия по стандартизации контрольно-измерительной техники в химической
промышленности. Рекомендации NAMUR по изготовлению электрических
разъемных соединений для передачи аналоговых и цифровых сигналов на
отдельные лабораторные контрольно-измерительные устройства, редакция 1.1).
Команды NAMUR и дополнительные команды, специфические для
IKA
®
, служат
только как команды низкого уровня для связи между прибором и ПК. При наличии
соответствующего терминала и программы связи эти команды могут передаваться
напрямую на прибор. Labworldsoft — это удобный пакет программ
IKA
®
,
работающих в среде MS Windows и предназначенных для управления прибором
и приема данных с прибора, а также для графического представления, например
графических характеристик скорости вращения.
Далее приводится обзор команд (NAMUR), воспринимаемых контрольными
устройствами
IKA
®
.
HB 10
Обмен данными между нагревательной баней и узлом привода осуществляется
при помощи инфракрасного интерфейса. Они расположены с левой стороны
дисплея нагревательной бани или с правой стороны дисплея узла привода.
Не помещайте какие-либо предметы между двумя панелями управления во
избежание образования помех при передаче данных (рис. 22)!
RV10 control
Прибором можно управлять дистанционно при помощи интерфейса RS 232 или
USB-интерфейса и лабораторного программного обеспечения labworldsoft
®
.
Интерфейс RS 232 на задней стороне прибора (см. рис. 20), оснащенный
9-контактным разъемом SUB-D, можно подсоединять к ПК. Контактам назначены
последовательные сигналы. USB-интерфейс находится с левой стороны дисплея
узла привода, и с помощью входящего в комплект поставки USB-кабеля его
можно подсоединять к ПК.
Примечание: соблюдайте требования к системе, а также указания инструкции
по эксплуатации и справочную информацию программного обеспечения.
USB-интерфейс
Universal Serial Bus (USB) – это последовательная шинная система для соединения
испарителя RV 10 control с ПК (рис. 23). Устройства, оснащенные USB-интерфейсом,
можно соединять между собой во время работы («горячее подключение»), причем
подключаемые устройства и их свойства распознаются автоматически.
USB-интерфейс в комбинации с ПО labworldsoft
®
служит для работы в
дистанционном режиме и для загрузки обновлений библиотеки растворителей.
Для загрузки обновлений перейдите по ссылке http://www.ika.net/ika/lws/down-
load/RV10.cfg.
Установка
После соединения прибора RV 10 control с ПК с помощью USB-кабеля для
передачи данных прибор сообщает операционной системе Windows, какой
драйвер устройства требуется для его работы:
- драйвер загружается;
- если драйвер еще не установлен, выполняется его установка;
- пользователю предлагается установить драйвер.
Перейдите по ссылке http://www.ika.net/ika/lws/download/stmcdc.inf.
Интерфейсы и выходы
Fig. 22
IR
Fig. 23
151
Fig. 24
Используемые сокращения:
m =
значение переменной, целое число
X =
2
Температура Нагревательная баняt
X =
3
Максимально допустимая температура Нагревательная баняt
X =
4
Скорость вращения
X =
60
Интервальное время (1-100 секунд, 1 <= m >= 100)
X =
61
Таймер (1-200 минут, 1 <= m >= 200)
X =
62
Положение подъемника вверху (OUT_SP_62 1-> подъем подъемника)
X =
63
Положение подъемника внизу (OUT_SP_62 1-> опускание подъемника)
X =
66
Значение регулятора вакуума
X =
70
Гистерезис регулятора вакуума
X =
74
Теплопередающая среда (OUT_SP_74 0=масло, OUT_SP_74 1=вода)
Команды NAMUR
Функция
IN_NAME
Запрос обозначения
IN_PV_X
Считывание фактического значения
X = 4
IN_SOFTWARE
Запрос идентификационного номера,
даты и версии ПО
IN_SP_X
Считывание установленного заданного значения
X = 4
OUT_SP_X m
Установка заданного значения на m
X = 1,60,61,62
RESET
Переключение на нормальный режим работы
START_X
Включение (дистанционной) функции прибора
X = 4,60,61,62
STATUS
Вывод состояния
0:ручной режим, без неисправностей
1:запуск автоматического режима (без неисправностей)
ERROR z (номер ошибки z см. в таблице)
STOP_X
Выключение функции прибора. Переменная, заданная
X = 1,60, 61, 62
командой OUT_SP_X, сохраняется.
Кабель PC 1.1 (рис. 24)
Требуется для соединения 9-контактного разъема с ПК.
.
152
Общая информация по управлению с помощью меню
Выбор меню
Выберите нужный пункт меню, повернув поворотную/нажимную кнопку
влево/вправо.
Примечание: на экране дисплея активные пункты меню отображаются на
черном фоне.
Редактирование значений
Нажмите поворотную/нажимную кнопку.
Поверните поворотную/нажимную кнопку, чтобы изменить значение
(величина изменения зависит от скорости вращения кнопки).
Снова нажмите поворотную/нажимную кнопку, чтобы завершить процесс.
Выход из меню
Нажмите кнопку «SET».
Текущие значения будут сохранены.
На дисплее появится вышестоящее меню
Нажмите кнопку «ESC».
Текущие значения не будут сохранены.
На дисплее появится вышестоящее меню..
Примечание: некоторые пункты меню не содержат подлежащих сохранению
значений. Для выхода из меню нажмите кнопку «SET» или «ESC».
Примечание: в отдельных пунктах меню имеются изменения и дополнения,
отличающиеся от описанного выше
Индикация на дисплее во время выполнения процесса
Для каждого рабочего режима на дисплее отображается специальное окно. Все
окна имеют следующие общие свойства:
- во время выполнения процесса дистилляции из отображаемого на дисплее
окна нельзя выйти;
- если процесс дистилляции не выполняется, для выхода из окна нажмите
кнопку «SET» или «ESC». На дисплее появится главное меню.
Сообщения об ошибках
Если на экране дисплея отображается сообщение об ошибке, нажмите
кнопку «ESC», чтобы квитировать ошибку.
В случае ошибки сообщение об ошибке будет удалено.
Примечание: при возникновении серьезных ошибок на дисплее появляется
дополнительное сообщение, указывающее на необходимость выключения
прибора и возможность его включения только после устранения
неисправности.
Прибор готов к эксплуатации после вставки
сетевого штекера в розетку.
Включение прибора
Включите прибор с правой стороны с помощью сетевого выключателя (рис. 25).
Функции прибора активируются.
Примечание: учитывайте, что нагревательная баня также должна быть
включена.
Ввод в эксплуатацию
Описание функций (состояние при поставке)
Заводская настройка
Приведенные ниже параметры соответствуют состоянию при поставке (информация
на дисплее и заводские настройки отображаются на английском языке).
Во время отображения стартового окна выполняется проверка системы, она
длится макс. 30 секунд.
Через несколько секунд на экране появляется главное меню.
Выберите нужный пункт меню, повернув поворотную/нажимную кнопку
вправо/влево.
Подтвердите выбор, нажав поворотную/нажимную кнопку.
Меню «Настройки»
В меню «Настройки» можно перейти к описанным ниже пунктам меню
Выберите нужный пункт меню, повернув поворотную/нажимную кнопку
вправо/влево
Подтвердите выбор, нажав поворотную/нажимную кнопку.
Fig. 25
153
Настройки дистилляции
Выберите нужный пункт меню, повернув поворотную/нажимную кнопку
вправо/влево.
Нажмите поворотную/нажимную кнопку.
Поверните поворотную/нажимную кнопку, чтобы изменить значение или
настройку (величина изменения зависит от скорости вращения кнопки).
Снова нажмите поворотную/нажимную кнопку, чтобы завершить изменение.
Кнопка «SET»: выход из меню и сохранение изменений.
Кнопка «ESC»: выход из меню без сохранения изменений.
Тип дистилляции
Можно выбрать один из двух автоматических типов дистилляции «По объему»
и «100%». Этот выбор имеет значение только для автоматической дистилляции.
По объему
На основании измеренных значений расхода охлаждающей воды и разности
температур охлаждающей воды для каждого временного цикла дистилляции
посредством теплового баланса рассчитывается количество дистиллята.
Дистилляция завершается при достижении заданного количества дистиллята.
100%
Дистилляция завершается, когда измеренная разность температур охлаждающей
воды опускается ниже порогового значения, т. е. когда выполнена полная
перегонка растворителя.
Сушка
Если эта опция активирована, контроль разности температур охлаждающей
воды не осуществляется. Например, используется для процессов сушки
порошкообразных сред.
Предельное значение охлаждающей мощности
Для используемого охладителя можно задать предельную мощность, см.
главу «Важные замечания». Для всех процессов дистилляции рассчитывается
фактическая мощность, а при превышении предельного значения процесс
дистилляции прерывается, и выводится сообщение об ошибке.
Максимальная охлаждающая мощность
На дисплее отображается достигнутая во время последней дистилляции
максимальная охлаждающая мощность. Этот параметр служит только для
информации.
Количественные единицы измерения
Можно выбрать количественные единицы измерения: миллилитры и граммы.
Распознавание кипения
Можно активировать или деактивировать функцию распознавания
кипения. Распознавание кипения возможно только, если выбран
тип дистилляции «100%»!
С помощью функции распознавания кипения автоматически
определяется точка кипения растворителя.
Настройки вакуума
Выберите нужный пункт меню, повернув поворотную/нажимную кнопку
вправо/влево.
Нажмите поворотную/нажимную кнопку.
Поверните поворотную/нажимную кнопку, чтобы изменить значение или
настройку (величина изменения зависит от скорости вращения кнопки).
Снова нажмите поворотную/нажимную кнопку, чтобы завершить изменение.
Кнопка «SET»: выход из меню и сохранение изменений.
Кнопка «ESC»: выход из меню без сохранения изменений.
Гистерезис
Die Standardeinstellungen für die Hysterese (wie abgebildet) können für die meisten
Anwendungsfälle übernommen werden. Der (Vakuum-) Hysteresenwert beschreibt die
Druckdifferenz zwischen Zu- bzw. Wegschalten des Vakuumventils.
Масштабирование времени
Масштабирование оси времени графика «Вакуум-вращение-время» выполняется
с помощью заданного значения. Если задано значение = 0, применяется
автоматическое масштабирование оси времени.
Масштабирование вакуума
Масштабирование оси вакуума графика «Вакуум-вращение-время» выполняется
с помощью заданного значения. Если задано значение = 0, применяется
автоматическое масштабирование оси вакуума.
Единицы измерения вакуума
Можно выбрать единицы измерения вакуума: мбар, торр и гектопаскаль.
154
Настройки привода
Выберите нужный пункт меню, повернув поворотную/нажимную кнопку
вправо/влево.
Нажмите поворотную/нажимную кнопку.
Поверните поворотную/нажимную кнопку, чтобы изменить значение или
настройку (величина изменения зависит от скорости вращения кнопки).
Снова нажмите поворотную/нажимную кнопку, чтобы завершить изменение
Кнопка «SET»: выход из меню и сохранение изменений.
Кнопка «ESC»: выход из меню без сохранения изменений.
Интервал вращения вправо/влево
Если установить для интервала вращения вправо/влево определенное значение
X, привод будет изменять направление вращения через каждые X секунд.
Примечание: в интервальном режиме работы максимальная скорость вращения
ограничена 200 об/мин.
Таймер
Значение таймера определяет, по истечении какого времени будет завершена
ручная дистилляция.
Масштабирование времени
Масштабирование оси времени графика «Вакуум-вращение-время» выполняется
с помощью заданного значения. Если задано значение = 0, применяется
автоматическое масштабирование оси времени.
Масштабирование вращения
Масштабирование оси вращения графика «Вакуум-вращение-время»
выполняется с помощью заданного значения. Если задано значение = 0,
применяется автоматическое масштабирование оси вращения.
Настройки бани
Выберите нужный пункт меню, повернув поворотную/нажимную кнопку
вправо/влево.
Нажмите поворотную/нажимную кнопку.
Поверните поворотную/нажимную кнопку, чтобы изменить значение или
настройку (величина изменения зависит от скорости вращения кнопки).
Снова нажмите поворотную/нажимную кнопку, чтобы завершить изменение
Кнопка «SET»: выход из меню и сохранение изменений.
Кнопка «ESC»: выход из меню без сохранения изменений.
Среда для бани
Выберите воду или масло в качестве среды для нагревательной бани.
Язык
Выберите нужный язык, повернув поворотную/нажимную кнопку вправо/
влево.
Подтвердите выбор с помощью кнопки «SET».
155
Сервис
Выберите нужный пункт меню, повернув поворотную/нажимную кнопку
вправо/влево.
Нажмите поворотную/нажимную кнопку.
Поверните поворотную/нажимную кнопку, чтобы изменить значение или
настройку (величина изменения зависит от скорости вращения кнопки).
Drücken Sie erneut den Dreh-/ Drückknopf, um die Änderung zu beenden.
Кнопка «ESC»: выход из меню. Все настройки процессов переключения будут
сброшены, настройки калибровки сохранятся.
Переключение клапанов и насоса
При выполнении техобслуживания используйте меню «Сервис» для проверки
функционирования прямого переключения входящих в комплект поставки или
опциональных клапанов и насоса, например, RV 10.5001.
Клапан RV 10.5001 включает-выключает водяной контур. В это время на дисплее
дополнительно отображается текущий расход охлаждающей воды.
Калибровка
Меню «Калибровка» предназначено для калибровки датчиков температуры.
Отображаемая разность температур корректируется на нуль. Это действие
нельзя отменить.
Калибровка датчиков температуры должна выполняться при замене или
установке новых датчиков температуры.
Обращайтесь в сервисную службу.
Входящие в комплект поставки датчики температуры имеют заводскую
калибровку.
Выполнение калибровки
Активируйте пункт меню «Калибровка», повернув поворотную/нажимную
кнопку.
Демонтируйте оба датчика, для этого ослабьте фиксатор штекерного
соединения, оттянув назад наружное кольцо, и одновременно вытащите
датчик температуры из штекерного соединения, см. рис. 26..
Для повторного монтажа вставьте датчик температуры до упора в штекерное
соединение, преодолев начальный момент сопротивления.
Залейте воду комнатной температуры в химический стакан (прим. 500 мл).
Полностью погрузите оба датчика в воду, см. рис. 27.
Дождитесь стабилизации показания температуры в меню «Сервис», пункт
меню «Калибровка», например, 0,2 К.
Нажмите поворотную/нажимную кнопку..
Отображаемая разность температур корректируется на нуль.
Калибровка возможна только в диапазоне температур от + 0,5 K до -0,5 K. Если
температура находится за пределами этого диапазона, датчик температуры
неисправен или вставлен неправильно. Обратитесь в сервисную службу.
Если характеристики системы подачи охлаждающей воды существенно
отличаются от данных, приведенных в главе «Технические данные», и вследствие
этого начальные условия для автоматической дистилляции не выполняются,
возможно необходима повторная калибровка датчиков температуры. В режиме
«Автоматическая дистилляция» это может привести к снижению точности
измерения количества дистиллята.
Часы работы
Этот параметр служит только для информации, его нельзя изменить.
Fig. 26
Fig. 27
156
Меню «Ручной режим без распознавания кипения»
Окно «Ручной режим без распознавания кипения»
1. Индикация режима работы
2. Индикация значения вакуума (фактическое значение)
3. Индикация значения вакуума (заданное значение)
4. Управляющее поле: «Пуск/останов» дистилляции
5. Показание таймера
6. Управляющее поле для сохранения хода процесса дистилляции
7. График «Вакуум-вращение-время»
8. Индикация расхода, дифференциальной температуры и мощности
охладителя
9. Управляющее поле для индикации вращения (заданное значение) и
значка вращения
10. Сообщение об ошибке в случае ошибки, в остальных случаях индикация
состояния
Установка скорости вращения
Нажмите поворотную/нажимную кнопку, чтобы изменить заданное значение.
Поверните поворотную/нажимную кнопку влево/вправо, чтобы изменить
заданное значение. Величина изменения зависит от скорости вращения кнопки.
Нажмите поворотную/нажимную кнопку, чтобы сохранить и завершить процесс.
Примечание: при выборе скорости вращения > 100 об/мин автоматически
активируется плавный пуск.
Установка значения вакуума
Нажмите поворотную/нажимную кнопку, чтобы изменить заданное значение.
Поверните поворотную/нажимную кнопку влево/вправо, чтобы изменить
заданное значение. Величина изменения зависит от скорости вращения кнопки.
Нажмите поворотную/нажимную кнопку, чтобы сохранить и завершить процесс.
Пуск
Выберите поле «Пуск», повернув поворотную/нажимную кнопку вправо/влево
Нажмите поворотную/нажимную кнопку, процесс дистилляции начнется.
Индикация на дисплее изменится на «Останов».
Примечание: если установлен таймер, он начинает обратный отсчет. Если таймер
не установлен, на дисплее отображается прошедшее с момента пуска время.
Останов
Выберите поле «Останов», повернув поворотную/нажимную кнопку влево/вправо.
Нажмите поворотную/нажимную кнопку, процесс дистилляции завершится.
Индикация на дисплее изменится на «Пуск».
Сохранение хода процесса дистилляции как процедуры после завершения
дистилляции
Выберите поле «Сохранить», повернув поворотную/нажимную кнопку влево/
вправо.
Нажмите поворотную/нажимную кнопку, на экране дисплея появится окно
«Процедуры».
Выберите одну из десяти процедур, повернув поворотную/нажимную кнопку
вправо/влево. Ход процесса отобразится на экране в виде графика.
Нажмите кнопку «SET», чтобы перезаписать выбранную процедуру на текущую
процедуру (процедуру, которая только что завершена) и выйти из меню.
При нажатии кнопки «ESC» выбранная процедура не будет перезаписана.
Примечание: сохраненный таким способом ход процесса дистилляции можно
будет выполнять снова в пользовательском режиме посредством выбора
соответствующей процедуры.
157
Меню «Ручной режим с распознаванием кипения»
Окно «Ручной режим с распознаванием кипения»
1. Индикация режима работы
2. Индикация значения вакуума (фактическое значение)
3. Индикация значения вакуума (заданное значение)
4. Управляющее поле: «Пуск/останов» дистилляции
5. Показание таймера
6. Управляющее поле для сохранения хода процесса дистилляции
7. График «Вакуум-вращение-время»
8. Индикация расхода, дифференциальной температуры и мощности
охладителя
9. Управляющее поле для индикации вращения (заданное значение) и
значка вращения
10. Сообщение об ошибке в случае ошибки, в остальных случаях индикация
состояния
Установка скорости вращения
Нажмите поворотную/нажимную кнопку, чтобы изменить заданное значение.
Поверните поворотную/нажимную кнопку влево/вправо, чтобы изменить
заданное значение. Величина изменения зависит от скорости вращения кнопки.
Нажмите поворотную/нажимную кнопку, чтобы сохранить и завершить процесс.
Примечание: при выборе скорости вращения > 100 об/мин автоматически
активируется плавный пуск.
Пуск
Выберите поле «Пуск», повернув поворотную/нажимную кнопку вправо/влево
Нажмите поворотную/нажимную кнопку, процесс дистилляции начнется.
Индикация на дисплее изменится на «Останов».
Примечание: если установлен таймер, он начинает обратный отсчет. Если таймер
не установлен, на дисплее отображается прошедшее с момента пуска время.
Останов
Выберите поле «Останов», повернув поворотную/нажимную кнопку влево/вправо.
Нажмите поворотную/нажимную кнопку, процесс дистилляции завершится.
Индикация на дисплее изменится на «Пуск».
Сохранение хода процесса дистилляции как процедуры после завершения
дистилляции
Выберите поле «Сохранить», повернув поворотную/нажимную кнопку влево/
вправо.
Нажмите поворотную/нажимную кнопку, на экране дисплея появится окно
«Процедуры».
Выберите одну из десяти процедур, повернув поворотную/нажимную кнопку
вправо/влево. Ход процесса отобразится на экране в виде графика.
Нажмите кнопку «SET», чтобы перезаписать выбранную процедуру на текущую
процедуру (процедуру, которая только что завершена) и выйти из меню.
При нажатии кнопки «ESC» выбранная процедура не будет перезаписана.
Примечание: сохраненный таким способом ход процесса дистилляции можно
будет выполнять снова в пользовательском режиме посредством выбора
соответствующей процедуры.
158
Меню «Режим автоматической дистилляции без распознавания кипения»
Окно «Режим автоматической дистилляции без распознавания кипения»
1. Индикация режима работы
2. Управляющее поле для растворителя
3. Индикация значения вакуума (фактическое значение)
4. Индикация значения вакуума (заданное значение)
5. Управляющее поле: «Пуск/останов» дистилляции
6. Показание таймера
7. Индикатор выполнения дистилляции (% от требуемого количества дистиллята)
8. График «Вакуум-вращение-время»
9. Индикация расхода, дифференциальной температуры и мощности
охладителя
10. Индикация вращения (заданное значение) и значок вращения
11. Сообщение об ошибке в случае ошибки, в остальных случаях индикация
состояния
Изменение выбранного растворителя
Выберите управляющее поле «Растворитель», повернув поворотную/нажимную
кнопку влево/вправо.
Нажмите поворотную/нажимную кнопку, на дисплее появится блок выбора
растворителей.
Выберите растворитель, повернув поворотную/нажимную кнопку влево/вправо.
Нажмите кнопку «SET».
Выбранный растворитель будет использован для следующего процесса
дистилляции.
Примечание: для каждого растворителя на дисплее отображаются
параметры. Эти параметры можно изменять только для заданных
пользователем растворителей UserSolvent1 ... UserSolvent5. Этот процесс
будет описан в следующем разделе.
Заданные пользователем растворители
В окне «Растворители» выберите опцию NewSolvent1 ... NewSolvent5
Выберите один из этих растворителей и нажмите поворотную/нажимную кнопку.
Теперь можно изменять все отображаемые параметры растворителя.
Выберите изменяемый параметр, повернув поворотную/нажимную кнопку
влево/вправо.
Нажмите поворотную/нажимную кнопку.
Измените выбранный параметр, повернув поворотную/нажимную кнопку
влево/вправо.
Нажмите поворотную/нажимную кнопку.
Сохраните все значения с помощью кнопки «SET».
NewSolvent1 выбран в качестве текущего растворителя.
Примечание: возврат в блок выбора невозможен.
159
Начало автоматической дистилляции
Нажмите поворотную/нажимную кнопку на поле «Пуск» или «Далее». Если
активированы опции «100% дистилляция» или «Сушка», процесс дистилляции
запускается, если выполнены все необходимые условия.
Если выбран тип дистилляции «По объему», в другом окне вводятся
дополнительные параметры дистилляции.
Выберите нужный пункт меню, повернув поворотную/нажимную кнопку
влево/вправо.
ажмите поворотную/нажимную кнопку.
Поверните поворотную/нажимную кнопку, чтобы изменить значение или
настройку (величина изменения зависит от скорости вращения кнопки).
Снова нажмите поворотную/нажимную кнопку, чтобы завершить изменение.
Дистилляция
Здесь отображается выбранный в меню «Настройки/дистилляция» тип
дистилляции, его нельзя изменить.
Сборник
Введите количество, находящееся в колбе-сборнике.
Дистиллят
Введите количество, которое необходимо перегнать
Коэффициент полезного действия
FДля баланса требуется ввод точного термического коэффициента полезного действия.
КПД зависит от совокупности условий дистилляции и, прежде всего, от
оценочного значения. Поэтому первый процесс дистилляции служит для
калибровки. После завершения дистилляции определите фактически
дистиллированное количество и рассчитайте фактический КПД по формуле:
η
th
. m
(calc)
η
P
=
m
(gem)
η
P
Фактический КПД
η
th
Оценочный КПД
m
(gem)
Измеренное количество дистиллята
m
(calc)
Заданное (расчетное) количество дистиллята
Введите для последующих процессов дистилляции полученный таким способом
фактический КПД, и последующие процессы дистилляции будут выполняться
при одинаковых условиях дистилляции и размещения автоматически с
достаточной точностью.
Завершение автоматической дистилляции
Автоматическая дистилляция завершается при наличии следующих критериев:
- Дистилляция с регулированием по объему
Заданное количество дистиллята достигнуто.
- 100% дистилляция
Измеренная разность температур охлаждающей воды опускается ниже
порогового значения, растворитель полностью испарился.
Кроме того, дистилляцию можно завершить вручную:
Нажмите поворотную/нажимную кнопку на поле «Останов».
Меню «Режим автоматической дистилляции с распознаванием кипения»
Окно «Режим автоматической дистилляции с распознаванием кипения»
1. Индикация режима работы
2. Управляющее поле для растворителя
3. Индикация значения вакуума (фактическое значение)
4. Индикация значения вакуума (заданное значение)
5. Управляющее поле: «Пуск/останов» дистилляции
6. Показание таймера
7. Индикатор выполнения дистилляции (% от требуемого количества дистиллята)
8. График «Вакуум-вращение-время»
9. Индикация расхода, дифференциальной температуры и мощности
охладителя
10. Индикация вращения (заданное значение) и значок вращения
11. Сообщение об ошибке в случае ошибки, в остальных случаях индикация
состояния
Примечание. Дистилляция по объему невозможна, так как в
этом режиме должен быть известен растворитель.
В этом режиме вместо выбора растворителя можно установить
температуру бани и частоту вращения ротационного привода
с помощью управляющего поля «Распознавание кипения».
160
Изменение процедуры
Выберите изменяемую процедуру и нажмите поворотную/нажимную кнопку.
Активируется поле «Удалить и создать».
При нажатии поворотной/нажимной кнопки на поле «Удалить и создать»
процедура будет удалена.
Теперь можно добавить новые этапы процедуры для значений вакуума и вращения.
Вакуум
Выберите пункт меню «Вакуум», повернув поворотную/нажимную кнопку влево/
вправо.
Нажмите поворотную/нажимную кнопку.
Введите значение, повернув поворотную/нажимную кнопку влево/вправо.
Нажмите поворотную/нажимную кнопку.
Продолжительность
Выберите пункт меню «Продолжительность», повернув поворотную/нажимную
кнопку влево/вправо.
Нажмите поворотную/нажимную кнопку.
Введите значение, повернув поворотную/нажимную кнопку влево/вправо.
Нажмите поворотную/нажимную кнопку. Новый этап процедуры с парой
значений вакуум-продолжительность будет задан и добавлен к процедуре.
График обновится.
Вращение
Выберите пункт меню «Вращение», повернув поворотную/нажимную кнопку
влево/вправо.
Нажмите поворотную/нажимную кнопку.
Введите значение, повернув поворотную/нажимную кнопку влево/вправо.
Нажмите поворотную/нажимную кнопку..
Продолжительность
Выберите пункт меню «Продолжительность», повернув поворотную/нажимную
кнопку влево/вправо.
Нажмите поворотную/нажимную кнопку.
Введите значение, повернув поворотную/нажимную кнопку влево/вправо
Нажмите поворотную/нажимную кнопку. Новый этап процедуры с парой
значений вращение-продолжительность будет задан и добавлен к процедуре.
График обновится.
Этапы вакуум-продолжительность и вращение-продолжительность можно
повторять максимум двадцать раз.
Кнопка «SET»: выход из меню. Новая созданная процедура будет сохранена и
выбрана как текущая процедура.
Кнопка «ESC»: выход из меню. Все изменения будут отменены.
Меню «Заданная пользователем дистилляция»
Окно «Заданная пользователем дистилляция»
1. Индикация режима работы
2. Управляющее поле для процедуры дистилляции
3. Индикация значения вакуума (фактическое значение)
4. Индикация значения вакуума (заданное значение)
5. Управляющее поле: «Пуск/останов» дистилляции
6. Показание таймера
7. График «Вакуум-вращение-время»
8. Индикация расхода, дифференциальной температуры и
мощности охладителя
9. Индикация вращения (заданное значение) и значок вращения
10. Сообщение об ошибке в случае ошибки, в остальных случаях индикация
состояния
Выберите опцию «Procedure», повернув поворотную/нажимную кнопку влево/
вправо.
Нажмите поворотную/нажимную кнопку.
На экране дисплея появится окно «Процедуры».
Выберите процедуру, повернув поворотную/нажимную кнопку влево/вправо.
Нажмите кнопку «SET».
Выбранная процедура будет использована для следующего процесса
дистилляции.
Примечание: для каждой процедуры отображается график «Вакуум-
вращение-время». Параметры можно изменять для каждой процедуры. Этот
процесс будет описан в следующем разделе. Кроме того, ход процесса ручной
дистилляции можно сохранить как процедуру, см. раздел «Ручной режим».
161
Завершение заданной пользователем дистилляции
Заданная пользователем дистилляция автоматически завершается по окончании
всех этапов текущей процедуры. Кроме того, возможно также ручное завершение
посредством нажатия поворотной/нажимной кнопки на поле «Останов».
Режим ожидания
Нажмите кнопку питания «Power».
Прибор переключится в режим ожидания.
Снова нажмите кнопку питания «Power».
На дисплее появится главное меню, и прибор снова готов к работе.
162
Управление с помощью меню
Start up-scree
n
Main men
u
Manual mode
Auto-distillation mode User-defined mode Settings
Rotation, target value Va
cuum, target and actual value
Ti
mer Display
Start/Stop Confirmation, Control field of procedures Error displa
y
Va
cuum-rotation-time graph display
Boiling point recognition on
?
Aceton Wa
te
r
To
luo
n
N-Pantenol Benzol UserSolvent
1
UserSolvent
2
UserSolvent
3
UserSolvent
4
UserSolvent
5
Rotation, target value Va
cuum, target and actual value
Ti
mer Display
Control field of distillation procedur
e
Start/Stop, more parameter Error displa
y
Display of flow rate, di
fferential temperature, cooling capacit
y
Va
cuum-rotation-time graph display
Rotation, target value Va
cuum, target and actual value
Ti
mer Display
Control field of solvents/Boiling point recognitio
n
Start/Stop, more parameter Error displa
y
Display of flow rate, di
fferential temperature, cooling capacit
y
Va
cuum-rotation-time graph display
Distillation progress displa
y
Procedure
1
Procedure
2
Procedure
3
Procedure
4
Procedure
5
Procedure
6
Procedure
7
Procedure
8
Procedure
9
Procedure10
Initial quantit
y
Distillate quantit
y
Ef
ficiency
100% Distillation
Procedure
1
Procedure
2
Procedure
3
Procedure
4
Procedure
5
Procedure
6
Procedure
7
Procedure
8
Procedure
9
Procedure 10
Rotation Start
Heating bath temperature Rotation Va
cuum
Ef
ficiency
C-
Va
lu
e
Evaporation enthalpy Densit
y
Delete procedure Va
cuum
Duration Rotation Duration Confirmation
Distillation Va
cuum
Driv
e
Heating bat
h
Language Service
Bath medium
Distillation method Drying Heat rejection rate threshold Maximum heat rejection rate Maximum heat rejection rate Flow rate contro
l
Quantity meas. unit
s
Boiling point recognitio
n
Hysteresis Scaling time Scaling vacuum Va
cuum meas. unit
s
Right/left interva
l
Ti
me
r
Scaling time Saling rotation
Wa
te
r
Oi
l
RV
10.500
1
RV
10.4001/
2
RV
10.4003
Va
lv
e
V4
Va
cuum ventin
g
Pump Calibratio
n
Operating hours
Englis
h
Deutsc
h
Français
Español
中文
日本
語
Polski
Boiling point recognition no Boiling point recognition ye
s
Heating bath temperature
Rotatio
n
163
Регулировка нижнего концевого упора
Внимание!
В зависимости от размера колбы, угла установки ротационного
привода, а также положения нагревательной бани и подъемника испарительная
колба может подниматься на нагревательной бане.
Опасность боя стекла!
Установите ограничение для нижнего положения подъемника с помощью
регулируемого концевого упора.
В ручном режиме с помощью кнопок « » и « » можно установить любое
положение подъемника. Автоматическое отключение при столкновении не
выполняется.
Нажимайте кнопку « » до тех пор, пока подъемник не достигнет нужного положения.
Примечание: испарительная колба должна быть на 2/3 погружена в нагревательную баню.
Для перемещения упора (Q) нажмите центральную кнопку (R) на передней
стороне подъемника (рис. 18).
Установите упор (Q) в нужное положение (рис. 19).
Нажимайте кнопку « » до тех пор, пока подъемник не достигнет верхнего концевого упора.
Примечание: путь ограничен диапазоном 0-6 см.
Проверка функции отключения при достижении концевого упора:
Переместите подъемник вниз посредством длительного нажатия кнопки « ».
Привод автоматически отключается при достижении установленного нижнего
конечного положения.
Снова переместите привод в верхнее положение.
Для включения устройства аварийного подъема подъемника после длительного
простоя перед началом дистилляции несколько раз переместите подъемник в
крайнее нижнее или крайнее верхнее конечное положение с помощью мотора (см.
главу «Указания по технике безопасности», раздел «Устройство аварийного подъема»)!
Заполнение испарительной колбы
Перед заполнением испарительной колбы стеклянное оборудование
устанавливается на заданное давление с помощью регулятора вакуума.
Заполните испарительную колбу через подающий трубопровод, см. рис. 30.
В связи с наличием вакуума растворитель всасывается в испарительную колбу.
Благодаря этому потери растворителя вследствие отсоса можно свести к
минимуму.
До создания вакуума испарительную колбу также можно заполнить вручную.
Испарительную колбу можно заполнять только на половину ее объема.
Примечание.
Внимание!
Максимально допустимый вес (испарительная колба
плюс содержимое) составляет 3 кг.
Установка нагревательной бани
Соблюдайте также инструкцию по эксплуатации нагревательной бани
IKA
®
HB 10!
Переместите подъемник в нижнее положение и проверьте положение нагревательной
бани относительно положения испарительной колбы. При использовании больших
испарительных колб (объемом 2 или 3 литра) или в зависимости от установленного
угла ротационного привода нагревательную баню можно сместить на 50 мм вправо.
Заполните нагревательную баню теплопередающей средой так, чтобы
испарительная колба на 2/3 была погружена в теплопередающую среду.
Включите ротационный привод и медленно увеличьте скорость вращения.
Примечание: не допускайте образования волн.
Включите нагревательную баню с помощью главного выключателя.
Примечание: не допускайте возникновения напряжений стеклянной посуды из-
за различных температур испарительной колбы и нагревательной бани при
опускании испарительной колбы в нагревательную баню!
Примечание: при использовании неоригинальных принадлежностей,
поставляемых не компанией
IKA
®
, смещения нагревательной бани на 50 мм
будет недостаточно, в частности при использовании испарительной колбы
объемом 3 л и пеногасителя.
Используйте навесную пластину
IKA
®
RV 10.3000 для увеличения диапазона
смещения нагревательной бани на 150 мм.
Fig. 28
Q
R
Fig. 29
Fig. 30
164
Техобслуживание и чистка
Прибор не требует технического обслуживания. Он подвержен лишь естественному
старению деталей и их отказу со статистически закономерной частотой.
Уплотнение охладителя для стекла необходимо регулярно проверять и при
необходимости заменять.
Для проведения чистки извлеките сетевой штекер из розетки.
Для чистки прибора используйте исключительно воду, содержащую поверхностно-
активные моющие вещества, или, при сильном загрязнении, изопропиловый спирт.
Заказ запасных частей
При заказе запасных частей указывайте следующие данные:
- тип прибора;
- серийный номер прибора (указан на типовой табличке);
- номер позиции и обозначение запчасти, см. рисунки и список запчастей на
сайте
www.ika.com
.
В случае ремонта
Для ремонта прибор должен быть очищен и освобожден от вредных для
здоровья веществ. Используйте для этого входящий в комплект поставки бланк
«
Свидетельство о безопасности
» или распечатку бланка, скаченную с веб-
сайта
IKA
®
www.ika.com
.
Отправляйте прибор в оригинальной упаковке. Складской упаковки для
обратной отправки недостаточно. Используйте дополнительно подходящую
транспортировочную упаковку.
Устройство аварийного подъема
Устройство аварийного подъема необходимо проверять ежедневно перед началом работы!
После длительного простоя (прим. четыре недели) перед началом дистилляции
несколько раз переместите подъемник в крайнее нижнее или крайнее верхнее
конечное положение с помощью мотора (см. главу «Указания по технике
безопасности», раздел «Устройство аварийного подъема»)! Если устройство
аварийного подъема не функционирует, обратитесь в сервисную службу
компании
IKA
®.
Принадлежности
RV 10.1
Вертикальная стеклянная посуда NS 29/32 (1)
RV 10.10
Вертикальная стеклянная посуда, с покрытием NS 29/32 (1)
RV 10.2
Диагональная стеклянная посуда NS 29/32 (2)
RV 10.20
Диагональная стеклянная посуда, с покрытием NS 29/32 (2)
RV 10.700
Вертикальная стеклянная посуда NS 29/42 (1)
RV 10.710
Вертикальная стеклянная посуда, с покрытием NS 29/42 (1)
RV 10.800
Диагональная стеклянная посуда NS 29/42 (2)
RV 10.810
Диагональная стеклянная посуда, с покрытием NS 29/42 (2)
RV 10.900
Вертикальная стеклянная посуда NS 24/40 (1)
RV 10.910
Вертикальная стеклянная посуда, с покрытием NS 24/40 (1)
RV 10.1000
Диагональная стеклянная посуда NS 24/40 (2)
RV 10.1010
Диагональная стеклянная посуда, с покрытием NS 24/40 (2
RV 10.3
Вертикальный высокоэффективный охладитель с распределителем (1)
RV 10.30
Вертикальный высокоэффективный охладитель с распределителем,
с покрытием (1)
RV 10.4
Сухоледный охладитель (2)
RV 10.40
Сухоледный охладитель, с покрытием (2)
RV 10.5
Система повторной дистилляции с вертикальным охладителем
(без рис.)
RV 10.50
Система повторной дистилляции с вертикальным охладителем,
с покрытием (без рис.)
RV 10.6
Система повторной дистилляции с высокоэффективным охладителем (3)
RV 10.60
Система повторной дистилляции с высокоэффективным охладителем,
с покрытием (3
HB 10.1
Защитный экран (нагревательная баня HB 10) (1)
HB 10.2
Защитный колпак (нагревательная баня HB 10) (2)
RRV 10.70
Паропроводная трубка NS 29/32
RV 10.71
Паропроводная трубка NS 24/29
RV 10.72
Паропроводная трубка NS 29/42
RV 10.73
Паропроводная трубка NS 24/40
RV 10.74
Паропроводная трубка NS 29/32, короткая,
для повторной дистилляции
RV 10.75
Паропроводная трубка NS 24/29, короткая,
для повторной дистилляции
RV 10.76
Паропроводная трубка NS 29/42, короткая,
для повторной дистилляции
RV 10.77
Паропроводная трубка NS 24/40, короткая,
для повторной дистилляции
165
V 10.80
Испарительная колба NS 29/32 50 мл
RV 10.81
Испарительная колба NS 29/32 100 мл
RV 10.82
Испарительная колба NS 29/32 250 мл
RV 10.83
Испарительная колба NS 29/32 500 мл
RV 10.84
Испарительная колба NS 29/32 1000 мл
RV 10.85
Испарительная колба NS 29/32 2000 мл
RV 10.86
Испарительная колба NS 29/32 3000 мл
RV 10.90
Испарительная колба NS 24/32 50 мл
RV 10.91
Испарительная колба NS 24/32 100 мл
RV 10.92
Испарительная колба NS 24/32 250 мл
RV 10.93
Испарительная колба NS 24/32 500 мл
RV 10.94
Испарительная колба NS 24/32 1000 мл
RV 10.95
Испарительная колба NS 24/32 2000 мл
RV 10.96
Испарительная колба NS 24/32 3000 мл
RV 10.97
Испарительная колба NS 24/40 1000 мл
RV 10.2001
Испарительная колба NS 29/42 50 мл
RV 10.2002
Испарительная колба NS 29/42 100 мл
RV 10.2003
Испарительная колба NS 29/42 250 мл
RV 10.2004
Испарительная колба NS 29/42 500 мл
RV 10.87
Испарительная колба NS 29/42 1000 мл
RV 10.2005
Испарительная колба NS 29/42 2000 мл
RV 10.2006
Испарительная колба NS 29/42 3000 мл
RV 10.2007
Испарительная колба NS 24/40 50 мл
RV 10.2008
Испарительная колба NS 24/40 100 мл
RV 10.2009
Испарительная колба NS 24/40 250 мл
RV 10.2010
Испарительная колба NS 24/40 500 мл
RV 10.2011
Испарительная колба NS 24/40 1000 мл
RV 10.2012
Испарительная колба NS 24/40 2000 мл
RV 10.2013
Испарительная колба NS 24/40 3000 мл
RV 10.100
Приемная колба KS 35/20 100 мл
RV 10.101
Приемная колба KS 35/20 250 мл
RV 10.102
Приемная колба KS 35/20 500 мл
RV 10.103
Приемная колба KS 35/20 1000 мл
RV 10.104
Приемная колба KS 35/20 2000 мл
RV 10.105
Приемная колба KS 35/20 3000 мл
RV 10.200
Приемная колба KS 35/20, с покрытием, 100 мл
RV 10.201
Приемная колба KS 35/20, с покрытием, 250 мл
RV 10.202
Приемная колба KS 35/20, с покрытием, 500 мл
RV 10.203
Приемная колба KS 35/20, с покрытием, 1000 мл
RV 10.204
Приемная колба KS 35/20, с покрытием, 2000 мл
RV 10.205
Приемная колба KS 35/20, с покрытием, 3000 мл
RV 10.300
Порошковая колба NS 29/32 500 мл
RV 10.301
Порошковая колба NS 29/32 1000 мл
RV 10.302
Порошковая колба NS 29/32 2000 мл
RV 10.303
Порошковая колба NS 24/29 500 мл
RV 10.304
Порошковая колба NS 24/29 1000 мл
RV 10.305
Порошковая колба NS 24/29 2000 мл
RV 10.2014
Порошковая колба NS 29/32 500 мл
RV 10.2015
Порошковая колба NS 29/32 1000 мл
RV 10.2016
Порошковая колба NS 29/32 2000 мл
RV 10.217
Порошковая колба NS 24/40 500 мл
RV 10.218
Порошковая колба NS 24/40 1000 мл
RV 10.219
Порошковая колба NS 24/40 2000 мл
RV 10.400
Испарительный цилиндр NS 29/32 500 мл
RV 10.401
Испарительный цилиндр NS 29/32 1500 мл
166
RV 10.402
Испарительный цилиндр NS 24/29 500 мл
RV 10.403
Испарительный цилиндр NS 24/29 1500 мл
RV 10.2020
Испарительный цилиндр NS 29/42 500 мл
RV 10.2021
Испарительный цилиндр NS 29/42 1500 мл
RV 10.2022
Испарительный цилиндр NS 24/40 500 мл
RV 10.2023
Испарительный цилиндр NS 24/40 1500 мл
RV 10.500
Пеногаситель NS 29/32
RV 10.501
Пеногаситель NS 24/29
RV 10.2024
Пеногаситель NS 29/42
RV 10.2025
Пеногаситель NS 24/40
RV 10.600
Насадка «паук» с 6 дистилляционными пробирками NS 29/32
RV 10.601
Насадка «паук» с 12 дистилляционными пробирками NS 29/32
RV 10.602
Насадка «паук» с 20 дистилляционными пробирками NS 29/32
RV 10.603
Насадка «паук» с 6 дистилляционными пробирками NS 24/29
RV 10.604
Насадка «паук» с 12 дистилляционными пробирками NS 24/29
RV 10.605
Насадка «паук» с 20 дистилляционными пробирками NS 24/29
RV 10.2026
Насадка «паук» с 6 дистилляционными пробирками NS 29/42
RV 10.2027
Насадка «паук» с 12 дистилляционными пробирками NS 29/42
RV 10.2028
Насадка «паук» с 20 дистилляционными пробирками NS 29/42
RV 10.2029
Насадка «паук» с 6 дистилляционными пробирками NS 24/40
RV 10.2030
Насадка «паук» с 12 дистилляционными пробирками NS 24/40
RV 10.2031
Насадка «паук» с 20 дистилляционными пробирками NS 24/40
RV 10.610
дистилляционными пробирками 20 млl
RV 10.606
Насадка «паук» с 5 колбами, 50 мл NS 29/32
RV 10.607
Насадка «паук» с 5 колбами, 100 мл NS 29/32
RV 10.608
Насадка «паук» с 5 колбами, 50 мл NS 24/29
RV 10.609
Насадка «паук» с 5 колбами, 100 мл NS 24/29
RV 10.2032
Насадка «паук» с 5 колбами, 50 мл NS 29/42
RV 10.2033
Насадка «паук» с 5 колбами, 100 мл NS 29/42
RV 10.2034
Насадка «паук» с 5 колбами, 50 мл NS 24/40
RV 10.2035
Насадка «паук» с 5 колбами, 100 мл NS 24/40
RV 10.3000
Навесная пластина
RV 10.4001
Электромагнитный клапан для домашнего вакуума (1)
RV 10.4002
Электромагнитный клапан для лабораторного вакуума (2)
RV 10.4003
Система управления насосом с электромагнитным клапаном (3)
RV 10.5001
Клапан для регулирования воды (4), только для работы от
водопровода!
RV 10.5002
Фильтр (5)
RV 10.5003
Клапан для регулирования давления (6)
RV 10.8001
Уплотнение, ПТФЭ
PC 1.1
Кабель
Labworldsoft
®
167
Индикация неисправностей при работе прибора осуществляется с помощью сообщений об ошибках на дисплее.
После отображения сообщения о серьезной ошибке подъемник перемещается в верхнее конечное положение, а система управления прибора блокируется.
Подъемник можно продолжать эксплуатировать.
В этом случае выполните следующие действия:
Выключите прибор с помощью выключателя.
Примите меры по устранению неисправности.
Снова запустите прибор.
Код ошибки
Следствие
Причина
Способ устранения
Ошибка связи
Прерывание процесса дистилляции
ИК-интерфейс заблокирован
-Подтвердите с помощью кнопки «ESC».
с баней
в режиме «Автоматическая
Нагревательная баня выключена
-Включите нагревательную баню
дистилляция»
-Проверьте и очистите ИК-интерфейс
Нет вращения
Прерывание процесса дистилляции
Ротационный привод не запускается -Выключите и снова включите прибор с помощью
Нет ротационного привода
или имеет очень большое отклонение сетевого выключателя
скорости вращения
Нет разности
Прерывание процесса дистилляции
Нет повышения дифференциальной
-Подтвердите с помощью кнопки «ESC».
температур
в режиме «Автоматическая
температуры охладителя
-Проверьте расход охлаждающей воды
дистилляция»
-Проверьте, правильно ли прикручены шланги для
охлаждающей воды
Температура
Прерывание процесса дистилляции
Дифференциальная температура за
-Подтвердите с помощью кнопки «ESC».
за пределами
пределами диапазона измерения (>7 K) -Проверьте, правильно ли прикручены шланги для
диапазона
охлаждающей воды
Нет вакуума
Прерывание процесса дистилляции
Заданное значение вакуума не
-Подтвердите с помощью кнопки «ESC».
Регулирование вакуума невозможно
достигнуто
-Проверьте стеклянную посуду и шланговые соединения
на герметичность
-Включите насос
-Проверьте подсоединение вакуумных клапанов
Нет вентиляции
Вентиляция вакуума невозможна
Нет вентиляции охладителя
-Выключите прибор
-Датчик вакуума неисправен
-Проветрите стеклянную посуду вручную при помощи
запорного крана
Водяной вентиль
Вода постоянно течет в контуре
Водяной вентиль не закрыт
-Подтвердите с помощью кнопки «ESC».
не закрыт
охлаждения
-Проверьте подсоединение
Расход за
Прерывание процесса дистилляции
Расход охлаждающей воды
-Подтвердите с помощью кнопки «ESC».
пределами
в режиме «Автоматическая
за пределами диапазона
-Заново отрегулируйте расходn
диапазона
дистилляция»
-Выключите функцию контроля расхода (для сухоледного
охладителя)
Охладитель
Прерывание процесса дистилляции
Охладитель перегружен
-Подтвердите с помощью кнопки «ESC».
перегружен
Дистиллят может попасть в вакуумный
-Измените технологические параметры, например:
насос
увеличьте давление;
уменьшите температуру бани;
увеличьте расход охладителя в заданном диапазоне
Сухая
Прерывание процесса дистилляции
Во время выполнения процесса
-Подтвердите с помощью кнопки «ESC».
дистилляция
дистилляции обнаружено, что в
-Или активируйте пункт меню «Сушка» в меню
испарительной колбе больше нет среды «Настройки»
Подъемник не в
Прерывание процесса дистилляции
Перемещение подъемника
-Подтвердите с помощью кнопки «ESC».
конечном
Мотор подъемника отключается
заблокировано
-Проверьте перемещение подъемника
положении
-Уберите блокировки
Ошибка
Сброс значения калибровки на заводскую Значение калибровки за пределами
-Подтвердите с помощью кнопки «ESC».C
калибровки
настройку
диапазона (макс. +/- 0,5 К)
-Проверьте, правильно ли вставлен датчик
-Выполните повторную калибровку
Ошибка памяти
Установка калибровочного значения
Ошибка при проверке содержимого
-Необходимо выполнить повторную калибровку вакуума
вакуума на заводскую настройку
памяти
Утечка вакуума
Прерывание процесса дистилляции
Утечка в вакуумной системе
-Подтвердите с помощью кнопки «ESC».
-Найдите места течи.
Точка кипения не
Прерывание процесса дистилляции
Точка кипения не может быть
-Высококипящий растворитель: перезапуск
найдена
найдена
-Проверьте нагревательную баню
Аналоговый насос Дистилляция не запущена
Аналоговый насос не обнаружен
-Подтвердите с помощью кнопки «ESC»
не найден
-Проверьте насос и соединения
Если неисправность не удается устранить посредством описанных мер, или имеет место другая неполадка:
- обратитесь в сервисную службу
IKA
®
;
- отправьте прибор с кратким описанием неполадки.
Коды ошибок
168
Технические данные
Диапазон рабочего напряжения
В~
100 - 230 ±10%
Номинальное напряжение
В~
100 - 230
Частота
Гц
50 / 60
Присоединяемая мощность без нагревательной бани Вт
100
Присоединяемая мощность в режиме ожидания
Вт
3,3
Скорость вращения
об/мин
20-280
Индикатор скорости вращения
Цифровой
Дисплей, размеры области просмотра (Ш x В)
мм
70 x 52
Дисплей
Тонкопленочный дисплей
Многоязычность Да
Правое/левое вращение/интервальный режим работы
Да
Плавный пуск
Да
Подъемник
Автоматический
Скорость подъема
мм/с
50
Ход
мм 140
Регулировка нижнего концевого упора
мм
60, бесконтактный
Наклон головки, регулируемый
0° - 45°
Таймер
мин 1-200
Интервал
с 1-100
Встроенный регулятор вакуума
Да
Диапазон измерения вакуума
мбар (гПа)
1050 - 1
Диапазон регулирования вакуума
мбар (гПа)
1012 - 1
Точность измерения вакуума постоянной
мбар
+ 2 (+ 1 символ) после выполнения калибровки при
температуре
Точность регулирования вакуума
мбар
Регулируемый гистерезис
Диапазон измерения дифференциальной температуры
K 7
Диапазон смещения при калибровке
K
+0,5
Интерфейс
USB, RS 232
Программирование графических характеристик
Да
Программирование процессов дистилляции
Да
Дистанционное управление
С помощью ПО labworldsoft
®
Площадь охлаждения
cм
2
1200
(стандартный охладитель RV 10.1,10.10,10.2,10.20)
Мин. расход охлаждающей воды
л/ч
30
Макс. расход охлаждающей воды
л/ч
100
Макс. давление охлаждающей воды
бар
1
Диапазон температур охлаждающей воды,
°C
18 - 22, постоянная
рекомендуемый
Предохранитель
2xT1, 6A 250V 5x20
Допустимая продолжительность включения
%
100
Допустимая температура окружающей среды
°C
5-40
Допустимая относительная влажность
%
80
Степень защиты согласно DIN EN 60529
IP 20
Класс защиты
I
Категория перенапряжения
II
Уровень загрязнения
2
Вес (без стеклянной посуды; без нагревательной бани) кг 18,6
Размеры (Ш x Г x В)
мм
500 x 440 x 430
Использование прибора над уровнем моря
м
Макс. 2000
Право на технические изменения сохраняется!
169
Таблица растворителей (выбор)
Растворитель
Формула
Давление для
точки кипения при
40 °C (мбар)
Уксусная кислота
C
2
H
4
O
2
44
Ацетон
C
3
H
6
O 556
Ацетонитрил
C
2
H
3
N 226
Амиловый спирт,
C
5
H
12
O 11
Н-пентанол
Н-бутанол C
4
H
10
25
Трет. бутанол,
C
4
H
10
O 130
2-метил-2-пропанол
Бутилацетат
C
6
H
12
O
2
39
Хлорбензол C
6
H
5
CI 36
Хлороформ CHCI
3
474
Циклогексан C
6
H
12
235
Дихлорметан, CH
2
CI
2
Атм. давл.
Метиленхлорид
Диэтиловый эфир
C
4
H
10
O
Атм. давл.
1,2-дихлорэтилен (транс)
C
2
H
2
CI
2
751
Диизопропиловый эфир
C
6
H
14
O 375
Диоксан C
4
H
8
O
2
107
Диметилформамид (ДМФА)
C
3
H
7
NO 11
Этанол C
2
H
6
O 175
Растворитель
Формула
Давление для
точки кипения при
40 °C (мбар)
Этилацетат C
4
H
8
O
2
240
Этилметилкетон C
4
H
8
O 243
Гептан C
7
H
16
120
Гексан C
6
H
14
335
Изопропиловый спирт
C
3
H
8
O 137
Изоамиловый спирт,
C
5
H
12
O 14
3-метил-1-бутанол
Метанол CH
4
O 337
Пентан C
5
H
12
Атм. давл.
Н-пропиловый спирт
C
3
H
8
O 67
Пентахлорэтан C
2
HCI
5
13
1,1,2,2-тетрахлорэтан C
2
H
2
CI
4
35
1,1,1-трихлорэтан C
2
H
3
CI
3
300
Тетрахлорэтилен C
2
CI
4
53
Тетрахлорметан CCI
4
271
Тетрагидрофуран (ТГФ)
C
4
H
8
O 357
Толуол C
7
H
8
77
Трихлорэтилен C
2
HCI
3
183
Вода H
2
O 72
Ксилол C
8
H
10
25
Notes
IKA
®
- Werke
GmbH & Co.KG
Janke & Kunkel-Str. 10
D-79219 Staufen
Tel. +49 7633 831-0
Fax +49 7633 831-98
sales@ika.de
www.ika.com
00/0000/0
*4441300*

