Alexika RV 10 control FLEX auto: FR
FR: Alexika RV 10 control FLEX auto
71
Langue d'origine: allemand
FR
Sommaire
Remarque générale sur un danger
Risque de brûlure!
Explication des symboles
Page
Déclaration de conformité CE
3
Explication des symboles
71
Garantie 71
Conseils de sécurité
72
Utilisation selon des directives
73
Déballage 74
Conseils pratiques
74
Régulation du vide : mode de régulation à 2 points et à vitesse de rotation régulée
75
Installation 76
Entraînement RV 10 control
Bain chauffant
Verrerie
Gainage
Interfaces et sorties
84
Mise en service
86
Entretien et nettoyage
98
Accessoires 98
Messages d’erreurs
101
Caractéristiques techniques
102
Tableau des solvants (sélection)
103
En conformité avec les conditions de vente et de livraison de
IKA
®
, la
garantie sur cet appareil est de 24 mois. En cas de problème entrant dans
le cadre de la garantie, veuillez contacter votre revendeur spécialisé. Mais
vous pouvez également envoyer directement l'appareil accompagné du
bon de livraison et un descriptif de votre réclamation à notre usine. Les
frais de transport restent alors à votre charge.
Garantie
La garantie ne s’étend pas aux pièces d’usure et n’est pas valable en cas
de défauts dus à une utilisation non conforme et un soin et un entretien
insuffisants, allant à l’encontre des recommandations du présent mode
d’emploi.
72
Conseils de sécurité
• Lors des travaux sous pression normale, la structure en verre doit tou
-
jours être ventilée (par ex. sortie ouverte du refroidisseur) pour éviter la
montée en pression.
• Attention, les gaz, vapeurs ou matières suspendues peuvent s’évacuer
à des concentrations dangereuses par la sortie ouverte du refroidisseur.
Vérifiez l’absence de tout danger par ex. avec un piège cryogénique en
aval, un flacon laveur de gaz ou une aspiration efficace.
•
Les récipients en verre sous vide ne doivent pas être chauffés d’un seul
côté; le piston évaporateur doit tourner pendant la phase de chauffage.
• L’appareil est conçu pour fonctionner sur un vide de 1 mbar maximum.
En cas de distillations à vide, les appareils doivent être évacués avant le
début du réchauffement (voir le chapitre ”Mise en service”). Ne ventilez
à nouveau les appareils qu’après le refroidissement. En cas de distilla-
tions à vide, les vapeurs non condensées doivent être condensées ou
évacuées en évitant tout risque. S’il peut arriver que le résidu de distilla-
tion se décompose en présence d’oxygène, seul du gaz inerte peut être
autorisé pour décharger la pression.
•
Attention !
Evitez la formation de peroxydes. Dans les résidus de dis-
tillation et d'évaporation, des peroxydes organiques peuvent s'enrichir
et se décomposer de façon explosive !
Préservez de la lumière, et en particulier des rayons UV, les liquides qui
ont tendance à la formation de peroxydes organiques et examinez-les
avant la distillation et l'évaporation pour constater l'absence de per-
oxydes. Les peroxydes présents doivent être éliminés. De nombreuses
liaisons organiques tendent à fabriquer des peroxydes, par ex. décaline,
diéthyléther, dioxanne, tétrahydrofuranne, ainsi que des hydrocarbures
insaturés, comme la tétraline, le diène, le cumène et l’aldéhyde, la cé-
tone et les solutions faites à partir de ces matières.
•
Risque de brûlure !
Le bain chauffant, l'agent de mise à tempéra-
ture, ainsi que le ballon d'évaporation et la structure en verre peuvent
chauffer pendant l'utilisation et rester chauds longtemps après! Avant
de poursuivre sur l'appareil, laissez les éléments refroidir.
•
ATTENTION !
Evitez le retard à l’ébullition! Le réchauffement du
piston évaporateur dans le bain chauffant sans fonctionnement de
l’entraînement de rotation est interdit !Si des signes de décompositi-
on du contenu du ballon sont visibles (moussage ou dégagement de
gaz soudain), éteignez immédiatement le chauffage. Retirez le ballon
d'évaporation du bain chauffant avec le dispositif de levage. Évacuez la
zone en danger et prévenez l’entourage !
•
Attention !
Ne faites jamais fonctionner l'appareil avec le ballon
d'évaporation en rotation et le dispositif de levage levé. Démarrez à
une vitesse de rotation faible et plongez le ballon d'évaporation dans le
bain chauffant. Augmentez ensuite la vitesse de rotation pour atteindre
la vitesse souhaitée. Sinon, il y a danger par projection de l'agent de
mise à température !
• Réglez la vitesse de rotation de l'entraînement de manière que le ballon
d'évaporation en rotation dans le bain chauffant ne provoque pas de
projections de l'agent de mise à température et réduisez éventuelle-
ment la vitesse de rotation.
• Ne touchez pas les pièces en rotation pendant l’utilisation.
• Les balourds peuvent causer un comportement à la résonance in con
-
trôlé de l'appareil et de la structure. Les appareillages en verre peuvent
être endommagés ou détruits. En cas de décentrage ou d’apparition
de bruits inhabituels éteignez immédiatement l’appareil ou reduisez la
vitesse de rotation.
• Dépression possible dans la verrerie après une panne de courant !
L'appareil ventile automatiquement après une nouvelle mise en marche.
• Après une coupure de l'alimentation électrique, l'appareil ne re-dé
-
marre pas seul.
• La coupure de l'alimentation au niveau de l'appareil a lieu uniquement
en actionnant l'interrupteur ou en débranchant la fiche du secteur ou
de l'appareil.
• La prise de courant utilisée pour le branchement sur secteur doit être
facile d’accès.
Pour votre protection
•
Lisez intégralement la notice d'utilisation avant
la mise en service et respectez les consignes de sé-
curité.
• Laissez la notice à portée de tous.
• Attention, seul le personnel formé est autorisé à utiliser l'appareil.
• Respectez les consignes de sécurité, les directives, ainsi que les prescrip
-
tions pour la prévention des accidents du travail.
En particulier lors
des travaux sous vide!
• Portez votre équipement de protection personnel selon la classe de
danger du milieu à traiter. Sinon, vous vous exposez à des dangers:
- aspersion de liquides,
- happement de parties du corps, cheveux, habits et bijoux.
- bris de verre
• Attention au risque pour l'utilisateur en cas de contact avec/d'inhalation
des milieux, par ex. les liquides, gaz, nuages, vapeurs ou poussières to-
xiques, matières biologiques ou microbiologiques.
• Placez l’appareil en aire spacieuse sur une surface plane, stable, propre,
non glisssante, sèche et inflammable.
• Prévoyez un espace en hauteur suffisant, car la structure en verre peut
dépasser la hauteur de l'appareil.
• Avant chaque utilisation, contrôlez l'état de l'appareil, des accessoires
et en particulier des pièces en verre. N'utilisez pas les pièces endom-
magées.
• Veillez à obtenir une structure en verre libre de contrainte ! Risque
d'éclatement par :
- les tensions dues à un assemblage défectueux,
- les influences mécaniques externes,
- les pics de températures sur place.
• Veiller à ce que le statif ne commence pas à se dérégler en cas de
décentrage ou vibrations.
• Vous vous exposez à des dangers par
- les matériaux inflammables
- les milieux combustibles à faible température d'ébullition
•
Attention !
Traiter et chauffer avec cet appareil unique-
ment des produits dont le point éclair est supérieur à la
température limite de sécurité du bain chauffant choisie.
La limite de température de sécurité du bain chauffant
réglée doit toujours rester environ 25 °C au moins sous
le point d'inflammation du milieu utilisé.
•
N'utilisez pas
l'appareil dans les atmosphères explosives, avec des
matières dangereuses et sous l'eau.
• Ne traitez que des milieux pour lesquels l'apport d'énergie pendant
l'opération ne pose pas problème. Cela vaut aussi pour les autres ap-
ports d'énergie, comme la radiation lumineuse par ex..
• Travaillez seulement en mode surveillé avec l’appareil.
• Le fonctionnement avec une surpression est interdit (pression de l'eau
de refroidissement, voir "Caractéristiques techniques").
• Ne pas couvrir les fentes d'aération servant au refroidissement de
l'entraînement.
• Il peut se produire des décharges électrostatiques entre le milieu et
l'appareil qui constituent un risque direct.
• L'appareil n'est pas adapté à un fonctionnement manuel.
• La sécurité de l'appareil n'est assurée qu'avec les accessoires décrits
dans le chapitre "Accessoires".
• Suivez le mode d'emploi du bain chauffant du HB 10 basic/digital.
•
Respectez le mode d'emploi des accessoires, par ex. de la pompe à vide.
• Placez la sortie côté pression de la pompe à vide dans la hotte de
laboratoire.
•
Utilisez le capot de protection HB 10.2 ou le bouclier anti-projections HB 10 1.
• Utilisez seulement l’appareil sous un système d’aspiration ou un dispo
-
sitif de protection équivalent.
• Adaptez la quantité et le type de produit distillé à la taille de l’appareil
de distillation. Le refroidisseur doit être assez performant. Le flux de
l’agent refroidissant doit être surveillé à la sortie du refroidisseur.
73
Outre le fonctionnement manuel, les modes automatisés suivants peu-
vent être sélectionnés :
- distillation 100 %,
- distillation en fonction du volume ou de la quantité.
avant utilisation. Mettez le levage motorisé en butée inférieure et ap-
puyez sur la touche « Power » sur la plaque avant ou sur l'interrupteur
principal du côté arrière droit de l'appareil, avec un poids total maximum
en place de 3,1 kg.
Le ballon d'évaporation est retiré du bain chauffant.
Lors de la première mise en service et après un arrêt prolongé, veuillez
procéder ainsi : mettez le levage motorisé plusieurs fois en butée inféri-
eure et en butée supérieure en appuyant sur les touches de fonction de
levage avant de mettre l'appareil hors tension.
Remarque : en cas de coupure d'alimentation ou de débranchement,
l'appareil réagit avec un délai par rapport à l'extinction via le bouton
« Power » sur la face avant.
Si le dispositif de levage de sécurité ne fonctionnent pas, veuillez contac-
ter le service après-vente
IKA
®
.
Concernant l'évaporateur (ballon d'évaporation plus contenu), le poids
maximum admis est de 3,0 kg ! Des charges plus lourdes entraînent un
risque de bris de verre au niveau du conduit de vapeur !
Veuillez à ce que le dispositif de levage de sécurité soit désactivé.
Avec de lourdes charges, travaillez toujours à des vitesses de rotation
lentes. De grandes forces de déséquilibre peuvent entraîner le bris du
conduit de vapeur !
• Les pièces démontables de l'appareil doivent être reposées sur l'appareil
pour empêcher la pénétration de corps étrangers, de liquides, etc..
• Evitez les coups sur l'appareil et les accessoires.
• Seules les personnes spécialisées sont autorisées à ouvrir l'appareil.
• Fonctionnement automatisé : vérifiez les procédés d'évaporation
avant de les laisser s'effectuer de manière automatisée. Les procédés
d'évaporation inconnus ne doivent pas être automatisés !
Dispositif de levage de sécurité
L'extinction de l'appareil ou la coupure de l'alimentation entraîne la mise
en marche du dispositif de levage interne de sécurité qui retire le ballon
d'évaporation du bain chauffant.
Lorsque le dispositif de levage de sécurité n'est pas alimenté en courant,
il est conçu pour supporter un poids total maximum (verrerie et solvant)
de 3,1 kg.
Exemple de calcul du poids total pour une verrerie verticale avec un bal-
lon de 1 litre :
Condenseur + ballon récepteur + ballon d'évaporation + petites pièces =
1200 g
+ 400 g
+ 280 g + 100 g = 1980 gr
Charge maximale en solvant = 3 100 g – 1 980 g = 1 320 g
Un dispositif de levage de sécurité avec des charges plus lourdes ne peut
être garanti pour des raisons de conception !
En cas d'utilisation d'autres types de condenseurs, par ex. à neige carbo-
nique ou intensifs, et en cas d'utilisation de répartiteurs pour distillation
à reflux avec condenseur à rapporter, il peut être nécessaire de réduire la
charge maximale en fonction du poids supplémentaire de ces structures
en verre !
C'est pourquoi, il faut vérifier avant le début de la distillation si le dispo-
sitif de levage doté de verre et de matière à distiller peut remonter sans
alimentation en courant.
Le dispositif de levage de sécurité doit être contrôlé quotidiennement
Pour la protection de l’appareil
• L'indication de tension de la plaque d’identification doit corres-pondre
avec la tension du réseau.
• La prise de courant utilisée doit être mise à la terre (contact de la masse
mécanique).
Utilisation selon des directives
•
Secteur d’utilisation
- Laboratoires
- Écoles
- Pharmacies
- Universités
La protection de l’utilisateur n’est plus garantie si l’appareil est utilisé
avec un accessoire n’ayant pas été fourni ou conseillé par le fabricant
ou si l’appareil est utilisé de manière non conforme aux prescriptions
du fabricant ou si l’appareil ou le circuit imprimé sont modifié par tiers.
•
Application
L'appareil est conçu, en combinaison avec les accessoires recomman-
dés par
IKA
®
, pour:
- une distillation rapide et douce des liquides
- la réduction par ébullition des solutions et suspensions
- la cristallisation, la synthèse ou le nettoyage des produits
chimiques fins
- le séchage des poudres et granulés
- le recyclage des solvants
Mode de fonctionnement: Appareil de table
74
Conseils pratiques
L'appareil est doté d'un dispositif de sécurité à piston. La structure en
verre peut être évacuée après une panne de courant. Ventilez-la lors de la
remise en marche. En cas de panne, le ballon d'évaporation est retiré au-
tomatiquement du bain chauffant grâce à un amortisseur à gaz intégré.
ATTENTION !
Le dispositif de levage de sécurité doit être contrôlé quo-
tidiennement avant utilisation. Voir pour cela le chapitre « Consignes de
sécurité - Dispositif de levage de sécurité » !
Avec l'évaporateur rotatif RV 10 control, il est possible d'effectuer, out-
re toutes les opérations d'évaporation manuelles et semi-automatiques,
également les procédés d'évaporation entièrement automatiques et en
fonction de la quantité. Pour cela, l'appareil est équipé par défaut d'un
contrôleur de vide, d'une sonde de mesure de la température du réf-
rigérant et d'un débitmètre de réfrigérant. Grâce au contrôle de vide
intégré, le vide peut être régulé en mode à 2 points comme en mode
pompe à vitesse de rotation régulée. L'appareil est conçu pour le fon-
ctionnement sur une alimentation en réfrigérant (p. ex. thermostat de
laboratoire), mais peut aussi être branché sur une conduite d'eau. Suivez
les caractéristiques techniques concernant la pression du réfrigérant, la
constance de la température et le débit, tout comme d'autres prescrip-
tions nationales.
Pour le fonctionnement sur une conduite d'eau, nous recommandons
l'utilisation de la vanne d'étranglement d'eau RV10 5001 !
Cette vanne permet de régler le débit du réfrigérant ainsi que
d'interrompre automatiquement l'alimentation en réfrigérant après une
distillation.
Avec le filtre à eau RV 10 5002, il est possible de retenir les particules de
saletés hors de la conduite d'eau en amont de la technique de soupape.
Pour réduire la pression, nous recommandons de placer la vanne de ré-
gulation de pression RV 10 5003 dans la conduite, directement après le
point de prélèvement.
Distillation automatisée en fonction du volume :
l'appareil doit
être amené à la température de fonctionnement. C'est ce que permet de
faire une distillation d'essai.
La distillation est un processus thermique de séparation par évaporation
suivie de condensation, pour les compositions de matières liquides sur
la base de points d'ébullition spécifiques à la matière et dépendant de
la pression.
La température du point d'ébullition baisse avec la pression externe, on
travaille donc en général avec une pression réduite. Ainsi, le bain chauf-
fant peut être maintenu à température constante (par ex.
60 °C). Le point d'ébullition est réglé via le vide avec une température de
la vapeur de 40 °C environ.L'eau de refroidissement pour le condenseur
ne doit pas dépasser 20 °C (la règle est 60-40-20).
Pour générer du vide, utilisez une pompe à membrane résistant aux pro-
duits chimiques avec contrôleur de vide, protégée des résidus de sol-
vants grâce à la présence en amont d'un flacon de Woulfe et/ou d'un
collecteur à vide.
L'utilisation d'un éjecteur à eau pour générer le vide n'est conseillée que
dans certaines conditions, car ces systèmes peuvent entraîner une conta-
mination de l'environnement par les solvants.
L'efficacité de l'évaporateur dépend de la vitesse de rotation, de la tem-
pérature, de la taille du ballon et de la pression du système.
La charge optimale du condenseur en continu est de 60 % env..
Cela correspond à une condensation aux 2/3 du serpentin réfrigérant
environ. En cas de charge plus importante, il y a un risque que la vapeur
de solvant non condensée soit aspirée.
Pour prévenir ce problème, vous pouvez activer la sécurité anti-surcharge
du refroidisseur. Pour cela, effectuez plusieurs distillations et prenez la
valeur du menu “Réglages, rubrique “Entraînement", point “Puissance
frigorifique maximale”. Calculez la puissance frigorifique avec la formule
suivante :
Valeur limite de puissance frigorifique = puissance frigorifique maximale * 1.3
Saisissez cette valeur dans le menu “Réglages", rubrique “Distillation”,
point “Valeur limite de puissance frigorifique". L'appareil arrête ensuite
la mesure au dépassement de la valeur limite du refroidisseur et émet un
message d'erreur. Une modification de la configuration de la structure du
refroidisseur ou de la configuration de la distillation peut nécessiter un
nouvel ajustement de la charge maximale du refroidisseur.
Le réglage par défaut pour cette valeur est 900 W.
Déballage
•
Déballage
- Déballez l'appareil avec précaution
- En cas de dommage, établiez immédiatement un constat correspon-
dant (poste, chemins de fer ou transporteur)
•
Volume de livraison
voir tableau
RV
10
control
V
x x x x x x x x x x x x
RV
10
control
V-C x x x x x x x x x x x x
RV
10
control
FLEX x x x x x x x x x x x
RV
10
control
V
auto x x x x x x x x x x x x
RV
10
control
V-C
auto x x x x x x x x x x x x
RV
10
control
FLEX
auto x x x x x x x x x x x
Entr
aînement RV 10 contr
ol
Bain chauffant HB 10
Verr
erie verticale RV 10.1
Verr
erie verticale RV 10.10 avec r
evêtement
W
oulff’
sche Flasche
Fixation
ixation de condenseur compl.
Flexible de vide (2 x 0,55 m)
Flexible de vidange d
'eau (1 x 1 m)
Mode d
'emploi
Clé à œil
Poignée
RV 10.4002 vanne de vide de labor
atoir
e
Pompe à vide N 920 speed contr
ol
led
75
L'évaporateur rotatif RV10 control permet, grâce au contrôleur de vide et au capteur de pression intégrés, de régler le vide souhaité à l'aide de la
régulation à 2 points ou par régulation de la vitesse de rotation.
Régulation à 2 points
La verrerie est évacuée à l'aide de la pompe à vide. La pompe à vide fonctionne à vitesse de rotation constante, qui en général n'est pas réglable.
Si la valeur de consigne n'est pas atteinte, la vanne de vide RV 10.4002 interrompt la conduite d'aspiration (fournie). Pour la mise en marche et l'arrêt
automatiques de la pompe à vide, utiliser la commande de pompe RV 10.4003 (accessoires).
En raison du décalage dans le temps, de l'ordre de quelques millisecondes, entre la détection de la valeur de vide, la comparaison avec la valeur de
consigne et la commutation de la vanne de vide, la valeur de consigne définie n'est pas tout à fait atteinte.
La fuite naturelle de l'appareil provoque à nouveau la montée de la valeur de pression dans le système, elle-même détectée par le capteur de pression
intégré.
En cas de dépassement de la valeur de consigne, la vanne de vide s'ouvre à nouveau et la pompe à vide en marche abaisse à nouveau la pression. La
courbe de pression affichée oscille autour de la valeur de consigne définie.
La différence de pression entre la connexion et la déconnexion de la vanne peut être réglée via la valeur d'hystérèse de vide (voir Réglage : vide). Par
défaut, la valeur est réglée sur 10 mbar.
La qualité de la régulation dépend de la puissance d'aspiration de la pompe (vitesse de rotation), de l'étanchéité du système et des temps de propa-
gation des signaux de l'électronique utilisée.
Avec la régulation à 2 points, la détection automatique du point d'ébullition n'est pas possible..
Illustration schématique d'une régulation du vide à 2 points
Régulation du vide en fonction de la vitesse de rotation
Les imprécisions de la régulation à 2 points sont évitées avec la régulation du vide en fonction de la vitesse de rotation.
Toutefois, pour la régulation du vide en fonction de la vitesse de rotation, il faut une pompe à vide à vitesse de rotation réglable, la vanne de vide
RV10.4002 n'est pas nécessaire et ne doit pas être raccordée !
Pour cela, raccorder la pompe à vide (p. ex. KNF N920 speed controlled pump) au raccord situé au dos de l'évaporateur rotatif.
Avec ce type de régulation, la vitesse de rotation de la pompe, et donc sa puissance d'aspiration, baisse à mesure que la valeur de pression mesurée
s'approche de la valeur de consigne. Une fois la valeur de consigne atteinte, la pompe ne tourne plus qu'en fonction du taux de fuite.
Un travail plus silencieux et une régulation plus précise sont possibles.
La régulation du vide en fonction de la vitesse de rotation se règle automatiquement sur le RV 10 control, dès qu'une pompe à vide adaptée est
raccordée..
Avec ce type de régulation, la détection automatique du point d'ébullition est impossible, ce qui signifie que le système recherche et maintient en
mode automatique le point d'ébullition du solvant.
Comme, contrairement à la distillation en fonction du volume, le solvant ne doit pas forcément être connu pour la détection automatique du point
d'ébullition, ces modes de travail s'excluent mutuellement..
Illustration schématique d'une régulation du vide en fonction de la vitesse de rotation
Régulation du vide: régulation à 2 points et régulation de la vitesse de rotation
76
Installation
Desserrez le dispositif de serrage pour régler l'angle de l'entraînement de ro-
tation du côté droit du dispositif de levage en tournant la vis à poignée (E)
dans le sens inverse des aiguilles d'une montre (en appuyant légèrement et en
tournant simultanément, la vis à poignée (E) peut être sortie encore plus loin).
Placez l'entraînement à un angle de 30° env. (fig. 7).
Bloquez ensuite l'entraînement de rotation en serrant la vis à poignée
dans le sens horaire.
Bain chauffant HB 10
Attention !
Suivez le mode d'emploi du bain chauffant, chapitre "Mise
en service" !
Placez le bain chauffant sur la surface d'appui de l'entraînement de
rotation et poussez-le en position gauche (fig. 8).
Remarque : l'échange de données entre l'unité d'entraînement et le bain
chauffant se fait à l'aide d'une interface infrarouge (F). Veillez à ce que
la communication ait lieu alors que le parcours de la lumière est sans
obstacles et ininterrompu !
Verrerie
Ouvrez le dispositif d'arrêt de la traversée de vapeur (G) en tournant à
60° dans le sens inverse des aiguilles d'une montre, (fig. 9).
Entraînement RV 10 control
Attention !
Desserrez la sécurité de transport (fig. 4a) !
Appuyez sur le dispositif de levage avec la main et retirez la vis mole-
tée au dos de l'appareil (A).
Une fois la sécurité de transport retirée, le dispositif de levage monte
lentement en butée supérieure. La course est de 140 mm environ.
Raccordez l'appareil à l'alimentation avec le câble fourni (B).
Pied réglable (Fig. 4b)
Montage du flacon de Woulfe (Fig. 5)
Montez le raccord flexible (C) sur le côté gauche du dispositif de levage.
Montez le support (D) sur le raccord flexible (C).
Placez le flacon et montez les raccords de flexibles fournis sur le flacon
(fig. 6).
Fig. 4a
Fig. 4b
Fig. 5
E
F
G
H
Fig. 6
Fig. 7
Fig. 8
Fig. 9
C
D
77
Avant la mise en service - Montage du joint RV 10.8001
Montez le conduit de vapour (1).
Montez le joint RV 10.8001 (2).
Poussez l'écrou d'accouplement (3b) sur la bride du refroidisseur (3a).
Poussez également le ressort-bague (3c) sur la bride du refroidisseur (3a).
Placez le refroidisseur (3a) sur le joint (2).
Serrez l'écrou d'accouplement (3b) à la main (3b).
Remarque : suivez les instructions de montage de la verrerie.
Montage de la fixation de condenseur de la verrerie verticale
Montez la fixation de condenseur comme illustré (fig. 12).
Montez la tôle (I) avec la vis moletée (J).
Insérez la tige du statif (L) sur la tôle (I) et fixez-la avec l'écrou (K).
Posez la protection en caoutchouc (M).
Fixez la bande Velcro
®
(N) sur la tige du statif (L).
Bloquez la verrerie verticale avec la bande Velcro
®
(N).
Insérez la traversée de vapeur jusqu'en butée.
VVerrouillez ensuite ce dispositif d'arrêt en tournant à 60° dans le sens
des aiguilles d'une montre (Fig. 10).
Contrôlez le dispositif d'arrêt axial de la traversée de vapeur.
Dispositif de déblocage
L'écrou en plastique (H) sert d'aide au déblocage des joints rodés de
ballon coincés (Fig. 9).
Maintenez le dispositif d'arrêt (G) et desserrez l'écrou en plastique (H).
Pour ce faire, maintenez le ballon d'évaporation coincé et tournez
l'écrou en plastique (H) jusqu'au col du ballon d'évaporation.
Remarque : avant la mise en service, serrez à la main l'écrou en plastique
(H) en butée gauche. Ce faisant, fixez le dispositif d'arrêt (G) de la tra-
versée de vapeur.
Montez le joint du refroidisseur
Placez le joint du condenseur RV 10.8001 dans le logement du con-
denseur et montez la verrerie sur l'appareil en suivant les instructions
de montage correspondantes (fig. 11 a, b et c).
Fig. 10
H
Fig. 11a
Fig. 11b
1
2
3a
3b
Fig. 11c
Fig. 12
I
J
M
N
L
K
G
78
4
7
8
6
12
9
3
10
5
13
15
16
Entraînement de rotation
Verrerie
RV 10.2 diagonale
RV 10.20 diagonale, avec revêtement
Verrerie
RV 10.1 verticale
RV 10.10 verticale, avec revêtement
Entraînement de rotation
2
10
00
m
l
N
S2
9/
32
1
11
13
12
5
4
7
8
6
15
9
3
2
10
16
11
1
10
00
m
l
N
S2
9/
32
Verrerie
Pos. Désignation
Quantité
Quantité
Verrerie diagonale
Verrerie verticale
1
Ballon récepteur
1
1
2
Pince NS 29
1
1
3
Traversée de vapeur
1
1
4
Robinet d'arrêt
1
1
5 Tube
1
1
6
Refroidisseur
1 Refroidisseur diagonal
1 Refroidisseur vertical
7
Raccord
1 Douille d'emmanchement
1 Raccord de vide
8
Pince NS 29
1
1
9
Joint d'étanchéité RV 10.8001
1
1
10
Ballon d'évaporation 1000 ml
1
1
11
Patte à rodage sphérique RV 05.10
1
1
12
Raccord vissé de capuchon
4
4
13
Raccord de flexible
4
4
15 Contre-écrou
1
1
16 Rondelle-ressort
1
1
Montage de la verrerie
Description des condenseurs spéciaux
•
RV 10.3 Condenseur intensif vertical avec distributeur
Condenseur intensif vertical à double paroi permettant des condensa-
tions particulièrement efficaces.
Version disponible avec revêtement (RV 10.30)
•
RV 10.4 Condenseur à neige carbonique
Condenseur à neige carbonique pour la distillation de solvants à bas
point d'ébullition.
Refroidissement par neige carbonique, pas d'eau de refroidissement
nécessaire. Condensation maximale par des températures basses.
Version disponible avec revêtement (RV 10.40)
(Non utilisable en mode automatique du RV 10 control)
•
RV 10.5 Condenseur vertical avec distributeur et soupape d'arrêt
pour la distillation à reflux
Version disponible avec revêtement (RV 10.50)
•
RV 10.6 Condenseur vertical intensif avec distributeur et soupape
d'arrêt pour la distillation à reflux
Condenseur intensif vertical à double paroi permettant des distillations
à reflux particulièrement efficaces
Version disponible avec revêtement (RV 10.60)
Démontage du condenseur
Utilisez la clé à œil fournie pour desserrer les écrous d'accouplement
coincés.
Desserrez les écrous d'accouplement en tournant dans le sens inverse
des aiguilles d'une montre.
Retirez la bande Velcro
®
.
Fig. 13
79
Gainage
Schématisation du gainage (vue arrière)
Fig. 14
2x T1,6A 250V
Eau
Vide
RV 10.5001
Vanne d'étranglement
d'eau
optionnelle
Débit-
mètre
Eau
Capteur de pression
et
vanne de mise à l'air libre
RV 10.4002
Vanne de vide
80
Raccord RV RV 10.4003
Vide - régulation à 2 points
Montez l'une des vannes de vide en option RV 10 4001, RV 10 4002
ou RV 10 4003 en fonction de votre installation dans la fixation prévue
à cet effet et reliez le flexible de vide à la vanne (fig. 15a, b, c).
Raccord RV 10.4001
Raccord RV 10.4002
La bobine tourne
librement
Le sens d'aspiration corres-
pond au fléchage ! Attention
à la position de montage !
La bobine tourne
librement
Le sens d'aspiration corres-
pond au fléchage ! Attention
à la position de montage !
La bobine tourne
librement
Le sens d'aspiration corres-
pond au fléchage ! Attention
à la position de montage !
Fig. 15a
Fig. 15b
Fig. 15c
Alimentation
secteur pompe
81
Raccord RV10 de la sonde de température (dT)
Relier la sonde de température à la prise inférieure (dT).
Respecter le fléchage.
Fig. 15f
dT
Fig. 15d
Fig. 15e
Vide - mode à régulation de la vitesse de rotation
Pour le mode de régulation du vide avec une pompe à vitesse de
rotation régulée, une vanne additionnelle n'est pas nécessaire. Relier
directement le flexible d'aspiration de la pompe au raccord de flexible
du capteur de pression.
Relier le câble de commande au RV10 control (fig. 15e).
82
Raccordez le flexible de vidange d'eau fourni en enfonçant le raccord
fileté jusqu'en butée dans la prise (fig. 18).
Attention ! Veillez au bon branchement de l'arrivée et de la sortie du
refroidisseur.
Si les flexibles d'arrivée et de vidange d'eau ne sont pas montés comme
dans la description et sur la figure 14, les distillations automatiques ne
sont pas possibles car les valeurs de température d'arrivée et de vidange
ne peuvent être déterminées correctement.
Détachez le raccord flexible avec la poignée fournie.
Eau
Reliez l'arrivée d'eau à votre alimentation en eau (fig. 16a ; fig. 16b avec
la vanne d'étranglement d'eau optionnelle RV 10 5001). Tenez compte
des caractéristiques techniques sur l'alimentation en eau.
La vanne d'étranglement d'eau RV 10 5001 n'est pas indiquée pour un
fonctionnement sur le refroidisseur, car le débit s'en trouve trop réduit.
Reliez les flexibles d'eau sur le refroidisseur en verre (flexible court (O)
= sortie vers le bas, flexible long (P) = arrivée vers le haut) et fixez les
flexibles (fig. 17).
Remarque : pour les refroidisseurs spéciaux, voir le chapitre “Description
des refroidisseurs spéciaux".
Fig. 17
O
P
Fig. 18
Fig. 19
Arrivée du
refroidisseur
Sortie du
refroidisseur
Arrivée
de l'eau
Arrivée
de l'eau
Fig. 16a
Fig. 16b
83
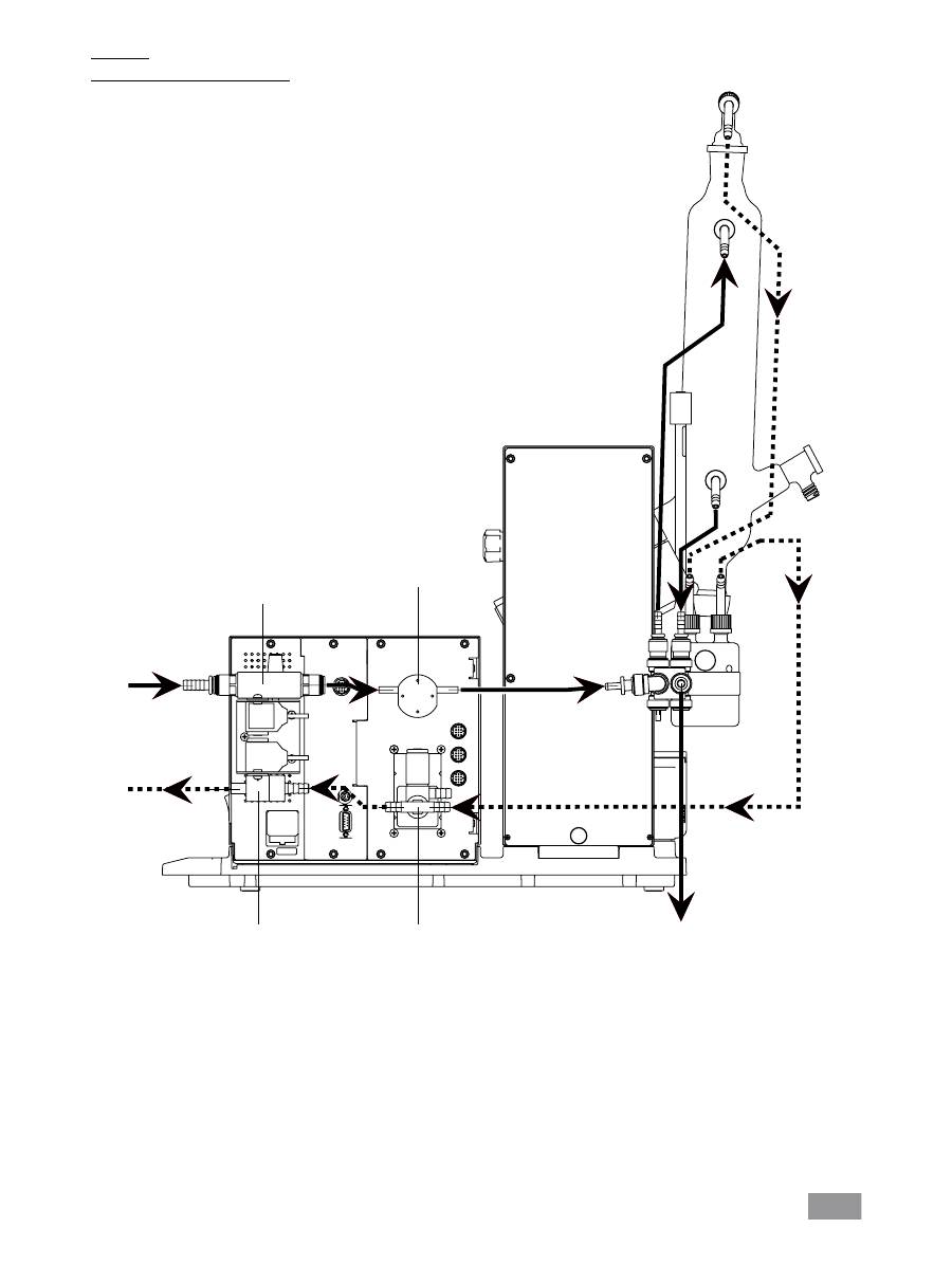
Schématisation du raccord, à l'arrière
Insérez le câble de raccordement de vanne (RV 10 5001 ou RV 10 4001/2, et RV 10 4003) ou le câble de raccordement (RV 10 4003 Pump control) dans
la prise prévue (fig. 20) ou raccorder la pompe à vide à régulation de la vitesse de rotation. Ainsi, le RV10 control passe automatiquement au mode de
régulation du vide en fonction de la vitesse de rotation.
Reliez le capteur de pression et le flacon de Woulfe, ainsi que le flacon
de Woulfe et le raccord de vide du refroidisseur avec les flexibles à vide
fournis. Veillez à relier toujours le vide au point de raccordement du
refroidisseur le plus haut (fig. 21).
Fig. 20
Fig. 21
84
Interface série RS 232 (V24)
Configuration
- La fonction des câbles d'interface entre l'appareil et le système
d'automatisation est une sélection des signaux précisés dans la norme
EIA RS232 C, conforme à la partie 1 de la norme DIN 66 020.
- Pour les caractéristiques électriques des câbles d’interface et l’affectation
des états des signaux s’applique la norme RS 232 C, conforme à la nor-
me DIN 66 259 Partie 1.
- Procédure de transmission: transmission asynchrone des caractères en
mode start - stop.
- Mode de transmission: bidirectionnelle simultanée.
- Format des caractères: représentation des caractères conforme au for-
mat de données prescrit par la norme DIN 66 022 pour le mode start
- stop, 1 bit de start, 7 bits de caractères, 1 bit de parité (pair = even);
1 bit de stop.
- Vitesse de transmission: 9600 bit/s.
- Commande du flux de données : aucune
- Procédure d’accès: la transmission de données de l’appareil à l’ordi-
nateur s’effectue uniquement à la demande de ce dernier.
Syntaxe et format des instrucions
Pour le bloc d’instructions, la règle suivante s’applique:
- Les instructions sont envoyées généralement de l’ordinateur (maître) à
l’appareil (esclave).
- L’appareil émet exclusivement à la demande de l’ordinateur. Même les
messages de panne ne peuvent être envoyés spontanément de l’appareil
à l’ordinateur (système d’automatisation).
- Les instructions sont transmises en lettres capitales.
- Instructions et paramètres, ainsi que les paramètres successifs sont sépa-
rés au moins par un caractère vide (code: hex 0x20).
- Chaque instruction distincte (y compris les paramètres et les données) et
chaque réponse se terminent par Blank CR LF (code: hex 0x20 hex 0x0d
hex 0x20 hex 0x0A) et ont une longueur maximale de 80 caractères.
- Le caractère de séparation de la décimale dans un chiffre à virgule flottan-
te est le point (code: hex 0X20E).
Les versions précédentes correspondent largement aux recommandations
du groupe de travail NAMUR (recommandations NAMUR pour l’exécution
des connecteurs électriques pour la transmission analogique et numérique
des signaux aux appareils de laboratoire MSR, Rév. 1.1.
Les instructions NAMUR et les instructions supplémentaires
IKA
®
spécifiques
servent uniquement d’instructions Low level pour la communication entre
l’appareil et le PC. Avec un programme adapté de terminal ou de commu-
nication, ces instructions peuvent être transmises directement à l’appareil.
Avec labworldsoft, vous disposez d'un pack logiciel
IKA
®
confortable sous MS
Windows pour commander l'agitateur et saisir les données de l'agitateur, qui
permet également les saisies graphiques comme les rampes de régime par ex..
Voici ci-après un résumé des instructions NAMUR comprises par les con-
trôleurs
IKA
®
.
HB 10
La communication de données entre le bain chauffant et l'unité
d'entraînement se fait via l'interface IR. Ceux-ci se trouvent à gauche de
l'écran du bain chauffant et à droite de l'écran de l'unité d'entraînement.
Ne placez pas d'objet entre les deux unités de commande pour ne pas
entraver la transmission des données (fig. 22) !
RV10 control
L'appareil peut fonctionner en mode “Remote” via les ports RS 232 ou
USB avec le logiciel de laboratoire labworldsoft
®
.
Le port RS 232 au dos de l'appareil, voir fig. 20, doté d'une prise SUB-D à
9 pôles, peut être relié à un PC. Les broches sont affectées de signaux en
série. Le port USB se trouve à gauche de l'écran de l'unité d'entraînement
et peut être relié avec le câble USB fourni à un PC.
Remarque : pour ce faire, respectez la configuration minimale requise et
le mode d'emploi et les aides du logiciel.
Port USB
L'Universal Serial Bus (USB) est un système de bus en série permettant de
relier le RV 10 control au PC (fig. 23). Les appareils dotés d'un port USB
peuvent être reliés entre eux au cours du fonctionnement (hot-plugging)
et les appareils reliés, ainsi que leurs caractéristiques, être détectés au-
tomatiquement.
Le port USB sert en combinaison avec labworldsoft
®
pour le fonctionne-
ment en mode "Remote" et la mise à jour de la bibliothèque des solvants.
Pour la mise à jour, sélectionnez http://www.ika.net/ika/lws/download/
RV10.cfg.
Installation
Une fois le RV 10 control relié au PC à l'aide du câble de données USB, il
indique au système d'exploitation Windows quel pilote il lui faut :
- le pilote est chargé,
- si le pilote n'est pas encore installé, il va s'installer,
- le système demande à l'utilisateur de l'installer.
Sélectionnez http://www.ika.net/ika/lws/download/stmcdc.inf.
Interfaces et sorties
Fig. 22
IR
Fig. 23
85
Fig. 24
Abréviations utilisées:
m =
Valeur de variable, nombre entier
X =
2
Température de la Bain chauffant
X =
3
Température de sécurité de la Bain chauffant
X =
4
Vitesse de rotation
X =
60
Durée d'intervalle (1-99 Sekunden, 1 <= m >=99)
X =
61
Minuteur (1-199 Minuten, 1 <= m >=199)
X =
62
Dispositif de levage en haut (OUT_SP_62 1-> drive lift up)
X =
63
LDispositif de levage en bas (OUT_SP_62 1-> drive lift down)
X =
66
Valeur du contrôleur de vide
X =
70
Hystérèse du contrôleur de vide
X =
74
Milieu de mise en température (OUT_SP_74 0=Öl, OUT_SP_74 1=eau)
nstructions NAMUR Fonction
IN_NAME
Demande de désignation
IN_PV_X
Lecture de la valeur réelle
X = 4
IN_SOFTWARE
Demande du référence du logiciel,
date, version
IN_SP_X
Lecture de la valeur de consigne réglée
X = 4
OUT_SP_X m
Réglage de la valeur de consigne à m
X = 1,60,61,62
RESET
Passage au fonctionnement normal
START_X
Démarrage du fonctionnement (remote)
X = 4,60,61,62
d’appareil
STATUS
Edition de l’état
0:Fonctionnement manueller sans panne
1:Fonctionnement automatique début
ERROR z (z numéro d’erreur voir tableau)
STOP_X
Arrêt du fonctionnement d’appareil. La
X = 1,60, 61, 62
variable fixée par OUT_SP_X reste inchangée
PC 1.1 Câble
Ce câble est utilisé pour la liaison du connecteur 9 pôles à un PC (fig. 24).
.
86
Informations générales sur le guidage par menus
Sélectionner le menu
Sélectionnez la rubrique en tournant le bouton rotatif/bouton-pous-
soir vers la gauche ou la droite.
Remarque : les rubriques actives sont sur fond noir à l'écran.
Editer les valeurs
Appuyez sur le bouton rotatif/bouton-poussoir.
Tournez le bouton rotatif/bouton-poussoir pour modifier la valeur (la
taille de la modification dépend de la vitesse de rotation).
Appuyez à nouveau sur le bouton-poussoir/bouton rotatif pour ter-
miner la procédure.
Quitter le menu
Appuyez sur la touche SET.
Les valeurs actuelles sont mémorisées.
Le menu en amont s'affiche.
Appuyez sur la touche ESC.
Les valeurs actuelles ne sont pas mémorisées.
Le menu en amont s'affiche.
Remarque : certaines rubriques ne contiennent aucune valeur à mémori-
ser. Pour quitter le menu, sélectionnez la touche SET ou ESC.
Remarque : certaines rubriques présentent des modifications et des
compléments à ce schéma.
Affichage durant le processus
Un affichage spécial est utilisé pour chaque mode de fonctionnement.
Tous les affichages ont les caractéristiques suivantes en commun :
- En cours de distillation, cet affichage ne peut être quitté.
- En dehors d'une distillation, il est possible de quitter l'affichage en ap-
puyant sur la touche SET ou ESC. Le menu principal s'affiche.
Message d'erreur
En cas de message d'erreur à l'écran, validez l'erreur avec la touche ESC.
L'affichage de l'erreur est supprimé.
Remarque : en cas d'erreur grave, un autre affichage demande
d'éteindre l'appareil et de ne le rallumer qu'une fois la panne résolue.
L’appareil est prêt à fonctionner après
avoir connecté la prise de secteur.
Mise en marche de l'appareil
Allumez l'appareil avec l'interrupteur situé à droite (fig. 25).
Fonctions de l'appareil activées.
Remarque : le bain chauffant doit aussi être allumé
Mise en service
Description des fonctions (état à la livraison)
Réglage d'usine
Les valeurs illustrées ci-après correspondent à l'état à la livraison (les affi-
chages sont en anglais par défaut).
Le contrôle du système a lieu pendant l'affichage de l'écran de démar-
rage et dure 30 s au maximum.
Au bout de quelques secondes, le menu principal s'affiche.
Sélectionnez une rubrique en tournant le bouton rotatif/bouton-pous-
soir vers la gauche ou la droite.
Validez votre sélection en appuyant sur le bouton rotatif/bouton-
poussoir.
Menu "Réglages"
A partir du menu "Réglages", vous rejoignez les rubriques développées
ci-après.
Sélectionnez une rubrique en tournant le bouton rotatif/bouton-pous-
soir vers la gauche ou la droite.
Validez votre sélection en appuyant sur le bouton rotatif/bouton-
poussoir.
Fig. 25
87
Réglages distillation
Sélectionnez la rubrique souhaitée en tournant le bouton rotatif/bou-
ton-poussoir vers la gauche ou la droite.
Appuyez sur le bouton rotatif/bouton-poussoir.
Tournez le bouton rotatif/bouton-poussoir pour modifier la valeur ou le
réglage (la taille de la modification dépend de la vitesse de rotation).
Appuyez à nouveau sur le bouton-poussoir/bouton rotatif pour termi-
ner la modification.
Touche SET: vous quittez le menu en mémorisant les modifications.
Touche ESC: vous quittez le menu sans mémorisation des modifications.
Type de distillation
Vous avez le choix entre les types de distillation automatiques "Volume"
et "100%". Ce choix n'a de sens que pour la distillation automatique.
Volume
Sur la base des valeurs mesurées du débit et de la différence de tempéra-
ture du réfrigérant, la quantité de distillat est établie pour chaque étape
de la distillation à l'aide d'un bilan thermique. La distillation s'achève
lorsque la quantité de distillat est atteinte.
100%
La distillation s'arrête lorsque la différence de température du réfrigérant
mesurée passe sous un seuil, signifiant que le solvant a été complète-
ment distillé.
Séchage
Si cette option est activée, aucune surveillance de la différence de tem-
pérature du réfrigérant n'a lieu, p. ex. pour les processus de séchage des
milieux en poudre.
Valeur limite de la puissance frigorifique
Il est possible d'indiquer une puissance limite pour le refroidisseur utilisé,
voir le chapitre “Conseils pratiques”. Lors de chaque distillation, la puis-
sance réelle est calculée et la distillation est stoppée avec un message
d'erreur en cas de dépassement de la valeur limite.
Puissance frigorifique maximale
La puissance frigorifique maximale atteinte lors de la dernière distillation
s'affiche. Cette valeur a un caractère informatif uniquement.
Unité de quantité
Vous pouvez choisir entre le millilitre et le gramme.
Détection de l'ébullition
La détection de l'ébullition peut être activée ou désactivée. La détection
de l'ébullition n'est possible qu'avec le type de distillation "100%" !
Avec la fonction de détection de l'ébullition, le point d'ébullition d'un
solvant est détectée automatiquement.
Réglages du vide
Sélectionnez la rubrique souhaitée en tournant le bouton rotatif/bou-
ton-poussoir vers la gauche ou la droite.
Appuyez sur le bouton rotatif/bouton-poussoir.
Tournez le bouton rotatif/bouton-poussoir pour modifier la valeur ou le
réglage (la taille de la modification dépend de la vitesse de rotation).
Appuyez à nouveau sur le bouton-poussoir/bouton rotatif pour termi-
ner la modification.
Touche SET: vous quittez le menu en mémorisant les modifications.
Touche ESC: vous quittez le menu sans mémorisation des modifications.
Hystérèse
Les réglages par défaut pour l'hystérèse (comme illustré) peuvent être
repris pour la plupart des utilisations. La valeur d'hystérèse (de vide) dé-
crit la différence de pression entre la fermeture et l'ouverture de la vanne
de vide.
Graduation du temps
L'axe de temps du diagramme vide-rotation-temps est gradué avec la
valeur indiquée. Si la valeur = 0, une graduation automatique de l'axe
du temps est utilisée.
Graduation du vide
L'axe de vide du diagramme vide-rotation-temps est gradué avec la va-
leur indiquée. Si la valeur = 0, une graduation automatique de l'axe du
vide est utilisée.
Unité de vide
Vous pouvez choisir entre mBar, Torr et hPascal.
88
Réglages de l'entraînement
Sélectionnez la rubrique souhaitée en tournant le bouton rotatif/bou-
ton-poussoir vers la gauche ou la droite.
Appuyez sur le bouton rotatif/bouton-poussoir.
Tournez le bouton rotatif/bouton-poussoir pour modifier la valeur ou le
réglage (la taille de la modification dépend de la vitesse de rotation).
Appuyez à nouveau sur le bouton-poussoir/bouton rotatif pour termi-
ner la modification.
Touche SET: vous quittez le menu en mémorisant les modifications.
Touche ESC: vous quittez le menu sans mémorisation des modifications.
Intervalle droite/gauche
Pour l'intervalle droite/gauche, réglez une valeur définie X pour que
l'entraînement change de sens de rotation toutes les X secondes
Remarque : en mode intervalle, la vitesse de rotation maximale est li-
mitée à 200 rpm.
Minuteur
La valeur du minuteur définit au bout de combien de temps une distilla-
tion manuelle doit être interrompue.
Graduation du temps
L'axe de temps du diagramme vide-rotation-temps est gradué avec la
valeur indiquée. Si la valeur = 0, une graduation automatique de l'axe
du temps est utilisée.
Graduation de la rotation
L'axe de rotation du diagramme vide-rotation-temps est gradué avec la
valeur indiquée. Si la valeur = 0, une graduation automatique de l'axe de
rotation est utilisée.
Réglages du bain
Sélectionnez la rubrique souhaitée en tournant le bouton rotatif/bou-
ton-poussoir vers la gauche ou la droite.
Appuyez sur le bouton rotatif/bouton-poussoir.
Tournez le bouton rotatif/bouton-poussoir pour modifier la valeur ou le
réglage (la taille de la modification dépend de la vitesse de rotation).
Appuyez à nouveau sur le bouton-poussoir/bouton rotatif pour termi-
ner la modification.
Touche SET: vous quittez le menu en mémorisant les modifications.
Touche ESC: vous quittez le menu sans mémorisation des modifications.
Milieu du bain
Sélectionnez l'eau ou l'huile comme milieu pour le bain chauffant
Langue
Sélectionnez la langue en tournant le bouton rotatif/bouton-poussoir
vers la droite/la gauche.
Validez votre choix avec SET.
89
Entretien
Sélectionnez la rubrique souhaitée en tournant le bouton rotatif/bou-
ton-poussoir vers la gauche ou la droite.
Appuyez sur le bouton rotatif/bouton-poussoir.
Tournez le bouton rotatif/bouton-poussoir pour modifier la valeur ou le
réglage (la taille de la modification dépend de la vitesse de rotation).
Appuyez à nouveau sur le bouton-poussoir/bouton rotatif pour termi-
ner la modification.
Touche ESC: vous quittez le menu. Tous les cycles d'activation sont réini-
tialisés, l'alignement est maintenu.
Activation des vannes et de la pompe
En cas de maintenance, utilisez le menu Entretien pour le contrôle du
fonctionnement d'activation directe des vannes fournies ou en option et
de la pompe z. B. RV 10 5001.
La vanne RV 10 5001 active le circuit de l'eau. Sur cette ligne le débit
actuel de réfrigérant s'affiche.
Alignement
La rubrique "Alignement" sert à aligner les sondes de mesure de la tem-
pérature.
La différence de température affichée est alignée sur zéro. Cette action
ne peut pas être annulée.
Un alignement des sondes de mesure de la température doit être effec-
tué lors de l'échange, du remplacement ou du montage de nouvelles
sondes de mesure de la température.
Veuillez contacter le département du service.
Les sondes de mesure de la température fournies sont alignées en usine.
Procédure d'alignement
Activez la rubrique “Alignement” en tournant le bouton rotatif/bou-
ton-poussoir.
Démontez les deux sondes en détachant le dispositif d'arrêt de la
connexion par le retrait de la bague extérieure et de la sonde de tem-
pérature du connecteur, voir fig. 26.
.
Pour remonter, enfoncez la sonde température jusqu'en butée dans la
connexion, après avoir passé une résistance.
Versez de l'eau à température ambiante dans un Becher (env. 500 ml).
Immergez les deux sondes complètement dans l'eau, voir fig. 27.
Patientez jusqu'à ce que l'affichage de la température soit stabilisé
dans le menu “Entretien”, rubrique “Alignement”, p ex. 0,2K.
Appuyez sur le bouton rotatif/bouton-poussoir.
La différence de température affichée est alignée sur zéro.
L'alignement n'est possible que dans la plage de températures entre +
0,5 K et -0,5 K. Si la température est hors de cette plage, la sonde est
défectueuse ou mal mise. Veuillez contacter le département entretien.
Si votre alimentation en réfrigérant s'écarte nettement des prescriptions
des “Caractéristiques techniques” et que vous n'obtenez pas les con-
ditions de démarrage pour la distillation automatique, un nouvel alig-
nement des sondes de température peut s'avérer nécessaire. Toutefois,
cela peut conduire en mode “Distillation automatique” à une précision
réduite de la mesure de la quantité de distillat.
Heures de fonctionnement
Cette valeur est informative et ne peut être modifiée.
Fig. 26
Fig. 27
90
Menu "Mode manuel sans détection de l'ébullition"
Affichage “Mode manuel sans détection de l'ébullition"
1. Affichage du mode de fonctionnement
2. Affichage du vide (valeur réelle)
3. Affichage du vide (valeur de consigne)
4. Champ de navigation "Start/Stop" de la distillation
5. Affichage du minuteur
6. Champ de navigation pour la mémorisation du déroulement de la
distillation
7. Diagramme vide-rotation-temps
8. Affichage du débit, de la température différentielle et de la puissance
du refroidisseur
9. Champ de navigation pour l'affichage de la rotation (valeur de consi-
gne) et du symbole de rotation
10. Affichage de l'erreur en cas d'erreur, sinon affichage de l'état
Réglage de la vitesse de rotation
Appuyez sur le bouton rotatif/bouton-poussoir pour modifier la valeur
de consigne.
Tournez le bouton rotatif/bouton-pression vers la gauche/la droite
pour modifier la valeur de consigne. La taille de la modification dé-
pend de la vitesse de rotation.
Appuyez sur le bouton-poussoir/bouton rotatif pour mémoriser et ter-
miner la procédure
Remarque : si votre réglage de vitesse de rotation > 100 tr/min, le dé-
marrage progressif s'active automatiquement.
Réglage du vide
Appuyez sur le bouton rotatif/bouton-poussoir pour modifier la valeur
de consigne.
Tournez le bouton rotatif/bouton-pression vers la gauche/la droite
pour modifier la valeur de consigne. La taille de la modification dé-
pend de la vitesse de rotation.
Appuyez sur le bouton-poussoir/bouton rotatif pour mémoriser et ter-
miner la procédure
Démarrer
Sélectionnez "Start" en tournant le bouton rotatif/bouton-poussoir
vers la gauche ou la droite.
Appuyez sur le bouton rotatif/bouton-poussoir pour lancer la distil-
lation.
L'affichage passe sur "Stop".
Remarque : si le minuteur s'est déclenché, il commence à compter à
rebours. Si le minuteur ne s'est pas déclenché, le temps écoulé depuis le
démarrage s'affiche.
Stop
Sélectionnez "Stop" en tournant le bouton rotatif/bouton-poussoir
vers la gauche ou la droite.
Appuyez sur le bouton rotatif/bouton-poussoir pour stopper la dis-
tillation.
L'affichage passe sur "Start".
Mémorisation du procédé de distillation en tant que procédure après la
fin de la distillation
Sélectionnez "Mémoriser" en tournant le bouton rotatif/bouton-pous-
soir vers la gauche ou la droite.
Appuyez sur le bouton rotatif/bouton-poussoir pour afficher "Procé-
dures".
Sélectionnez l'une des dix procédures en tournant le bouton rotatif/
bouton-poussoir vers la droite/la gauche. La procédure est visualisée.
Appuyez sur SET pour écraser la procédure sélectionnée par la procé-
dure actuelle (celle qui vient de se terminer) et quitter le menu.
Si vous appuyez sur ESC, la procédure sélectionnée n'est pas écrasée.
Remarque : la procédure de distillation ainsi mémorisée peut être réexé-
cutée ultérieurement en mode personnalisé en la sélectionnant.
91
Menu "Mode manuel avec détection de l'ébullition"
Affichage “Mode manuel sans détection de l'ébullition"
1. Affichage du mode de fonctionnement
2. Affichage du vide (valeur réelle)
3. Affichage du vide (valeur de consigne)
4. Champ de navigation "Start/Stop" de la distillation
5. Affichage du minuteur
6. Champ de navigation pour la mémorisation du déroulement de la
distillation
7. Diagramme vide-rotation-temps
8. Affichage du débit, de la température différentielle et de la puissance
du refroidisseur
9. Champ de navigation pour l'affichage de la rotation (valeur de consi-
gne) et du symbole de rotation
10. Affichage de l'erreur en cas d'erreur, sinon affichage de l'état
Réglage de la vitesse de rotation
Appuyez sur le bouton rotatif/bouton-poussoir pour modifier la valeur
de consigne.
Tournez le bouton rotatif/bouton-pression vers la gauche/la droite
pour modifier la valeur de consigne. La taille de la modification dé-
pend de la vitesse de rotation.
Appuyez sur le bouton-poussoir/bouton rotatif pour mémoriser et ter-
miner la procédure
Remarque : si votre réglage de vitesse de rotation > 100 tr/min, le dé-
marrage progressif s'active automatiquement.
Démarrer
Sélectionnez "Start" en tournant le bouton rotatif/bouton-poussoir
vers la gauche ou la droite.
Appuyez sur le bouton rotatif/bouton-poussoir pour lancer la distil-
lation.
L'affichage passe sur "Stop".
Remarque : si le minuteur s'est déclenché, il commence à compter à
rebours. Si le minuteur ne s'est pas déclenché, le temps écoulé depuis le
démarrage s'affiche.
Stop
Sélectionnez "Stop" en tournant le bouton rotatif/bouton-poussoir
vers la gauche ou la droite.
Appuyez sur le bouton rotatif/bouton-poussoir pour stopper la dis-
tillation.
L'affichage passe sur "Start".
Mémorisation du procédé de distillation en tant que procédure après la
fin de la distillation
Sélectionnez "Mémoriser" en tournant le bouton rotatif/bouton-pous-
soir vers la gauche ou la droite.
Appuyez sur le bouton rotatif/bouton-poussoir pour afficher "Procé-
dures".
Sélectionnez l'une des dix procédures en tournant le bouton rotatif/
bouton-poussoir vers la droite/la gauche. La procédure est visualisée.
Appuyez sur SET pour écraser la procédure sélectionnée par la procé-
dure actuelle (celle qui vient de se terminer) et quitter le menu.
Si vous appuyez sur ESC, la procédure sélectionnée n'est pas écrasée.
Remarque : la procédure de distillation ainsi mémorisée peut être réexé-
cutée ultérieurement en mode personnalisé en la sélectionnant.
92
Menu "Mode distillation automatique sans détection de l'ébullition"
Affichage "Mode distillation automatique sans détection de l'ébullition"
1. Affichage du mode de fonctionnement
2. Champ de navigation Solvants
3. Affichage du vide (valeur réelle)
4. Affichage du vide (valeur de consigne)
5. Champ de navigation "Start/Stop" de la distillation
6. Affichage du minuteur
7. Affichage de la progression de la distillation
(% de la quantité du distillat nécessaire)
8. Diagramme vide-rotation-temps
9. Affichage du débit, de la température différentielle et de la
puissance du refroidisseur
10. Affichage de la rotation (valeur de consigne) et du symbole de
rotation
11. Affichage de l'erreur en cas d'erreur, sinon affichage de l'état
Modifier la sélection du solvant
Sélectionnez le champ de navigation "Solvants" en tournant le bouton
rotatif/bouton-poussoir vers la gauche ou la droite.
Appuyez sur le bouton rotatif/bouton-poussoir pour afficher le choix
de solvants.
Sélectionnez un solvant en tournant le bouton rotatif/bouton-poussoir
vers la gauche ou la droite.
Appuyez sur la touche SET.
Le solvant choisi est utilisé pour la distillation suivante.
Remarque : les paramètres s'affichent pour chaque solvant. Vous ne
pouvez modifier ces paramètres que pour les solvants que vous avez dé-
finis UserSolvent1 ... UserSolvent5. Ceci est décrit à la section suivante.
Solvants définis par l'utilisateur
Dans l'affichage des solvants, choisissez la plage NewSolvent1 ...
NewSolvent5.
Choisissez l'un des solvants et appuyez sur le bouton rotatif/bouton-
poussoir.
Vous pouvez maintenant modifier tous les paramètres du solvant affichés.
Sélectionnez le paramètre à changer en tournant le bouton rotatif/
bouton-poussoir vers la gauche ou la droite.
Appuyez sur le bouton rotatif/bouton-poussoir.
Modifiez le paramètre choisi en tournant le bouton rotatif/bouton-
poussoir vers la gauche/la droite.
Appuyez sur le bouton rotatif/bouton-poussoir.
Mémorisez toutes les valeurs avec la touche SET.
NewSolvent1 est sélectionné comme solvant actuel.
Remarque : un retour dans la fenêtre de sélection n'est pas possible.
93
Début de la distillation automatique
Appuyez sur le bouton rotatif/bouton-poussoir sur le champ "Start"
ou "Continuer". Si les options "Distillation 100 %" ou "Séchage" sont ac-
tivées, la distillation démarre immédiatement dès lors que les conditions
sont remplies.
Avec le type de distillation "Volume", des paramètres de distillation sont
saisis dans un autre écran.
Sélectionnez la rubrique souhaitée en tournant le bouton rotatif/bou-
ton-poussoir vers la gauche ou la droite.
Appuyez sur le bouton rotatif/bouton-poussoir.
Tournez le bouton rotatif/bouton-poussoir pour modifier la valeur ou le
réglage (la taille de la modification dépend de la vitesse de rotation).
Appuyez à nouveau sur le bouton-poussoir/bouton rotatif pour termi-
ner la modification.
Distillation
Le type de distillation, sélectionné sous Réglages/Distillation, s'affiche ici
et ne peut plus être modifié.
Modèle
Saisissez la quantité qui se trouve dans le ballon modèle.
Distillat
Saisissez la quantité qui doit être distillée.
Efficacité
Pour le bilan, la saisie d'une efficacité thermique exacte est nécessaire.
L'efficacité dépend de la totalité des conditions de distillation et n'est
d'abord qu'une estimation. C'est pourquoi, le premier tour de distillation
ne sert qu'à l'étalonnage. A la fin de la distillation, déterminez la quantité
réellement distillée et calculez l'efficacité réelle avec la formule suivante :
η
th
. m
(calc)
η
P
=
m
(gem)
η
P
Degré d'efficacité réel
η
th
Degré d'efficacité estimé
m
(gem)
Quantité de distillat mesurée
m
(calc)
Quantité de distillat prescrite (calculée)
Pour les distillations suivantes, saisissez l'efficacité réelle ainsi définie et
les distillations suivantes seront exécutées automatiquement avec une
précision suffisante dans les mêmes conditions de distillation et de lieu.
Fin de la distillation automatique
La distillation automatique se termine selon les critères suivants :
En fonction du volume
Le bilan de la quantité de distillat prescrite a été fait.
100% Distillation
La différence de température du réfrigérant mesurée est inférieure à une
valeur de consigne, le solvant est totalement évaporé.
En outre, la distillation peut aussi être arrêtée manuellement :
Appuyez sur le bouton rotatif/le bouton poussoir sur le champ d'affi-
chage "Stop".
Menu "Mode distillation automatique avec détection de l'ébullition"
Menu "Mode distillation automatique sans détection de l'ébullition"
1. Operating mode display
2. Control field for solvent
3. Vacuum display (actual value)
4. Vacuum display (target value)
5. Control field for „Start/ Stop“ distillation
6. Timer display
7. Distillation progress indicator
(% of required quantity of distillate)
8. Vacuum-rotation-time graph
9. Display of flow rate, differential temperature, and condenser heat
rejection rate
10. Affichage de la rotation (valeur de consigne) et du symbole de
rotation
11. Affichage de l'erreur en cas d'erreur, sinon affichage de l'état
Remarque : la distillation en fonction du volume n'est pas possible car le
solvant doit être connu dans ce mode.
Dans ce mode, il est possible de définir la température du bain et la
vitesse de rotation de l'entraînement rotatif au lieu d'une sélection du
solvant via le champ de navigation 'Détection de l'ébullition'.
94
Menu "Distillation définie par l'utilisateur"
Affichage "Distillation définie par l'utilisateur"
1. Affichage du mode de fonctionnement
2. Champ de navigation pour la procédure de distillation
3. Affichage du vide (valeur réelle)
4. Affichage du vide (valeur de consigne)
5. Champ de navigation "Start/Stop" de la distillation
6. Affichage du minuteur
7. Diagramme vide-rotation-temps
8. Affichage du débit, de la température différentielle et de la puissance
du refroidisseur
9. Affichage de la rotation (valeur de consigne) et du symbole de rotation
10. Affichage de l'erreur en cas d'erreur, sinon affichage de l'état
Sélectionnez "Procédure" en tournant le bouton rotatif/bouton-pous-
soir vers la gauche ou la droite.
Appuyez sur le bouton rotatif/bouton-poussoir.
“Procédures” s'affiche.
Sélectionnez une procédure en tournant le bouton rotatif/bouton-
poussoir vers la gauche ou la droite.
Appuyez sur la touche SET.
La procédure choisie est utilisée pour la distillation suivante.
Remarque : pour chaque procédure, le diagramme vide-rotation-temps
s'affiche. Vous pouvez modifier les paramètres pour chaque procédure.
Ceci est décrit à la section suivante. En outre, vous pouvez mémoriser
le déroulement d'une distillation manuelle comme procédure, voir le
paragraphe "Mode manuel".
Modifier une procédure
Sélectionnez la procédure à modifier et appuyez sur le bouton rotatif/
bouton-poussoir. Le champ d'affichage "Supprimer et nouveau" est
activé.
Si vous appuyez sur le bouton rotatif/bouton-poussoir dans le champ
d'affichage "Supprimer et nouveau", la procédure est supprimée.
Vous pouvez maintenant ajouter de nouvelles étapes de procédure pour
le vide et la rotation.
Vide
En tournant le bouton rotatif/bouton-poussoir vers la gauche/la droi-
te, sélectionnez "Vide".
Appuyez sur le bouton rotatif/bouton-poussoir.
Saisissez une valeur en tournant le bouton rotatif/bouton-poussoir
vers la gauche/la droite.
Appuyez sur le bouton rotatif/bouton-poussoir.
Durée
En tournant le bouton rotatif/bouton-poussoir vers la gauche/la droi-
te, sélectionnez "Durée".
Appuyez sur le bouton rotatif/bouton-poussoir.
Saisissez une valeur en tournant le bouton rotatif/bouton-poussoir
vers la gauche/la droite.
Appuyez sur le bouton rotatif/bouton-poussoir. Une nouvelle étape de
procédure est définie avec la paire de valeurs vide-durée et ajoutée à la
procédure. Le diagramme est actualisé.
Rotation
En tournant le bouton rotatif/bouton-poussoir vers la gauche/la droi-
te, sélectionnez "Rotation".
Appuyez sur le bouton rotatif/bouton-poussoir.
Saisissez une valeur en tournant le bouton rotatif/bouton-poussoir
vers la gauche/la droite.
Appuyez sur le bouton rotatif/bouton-poussoir.
Durée
En tournant le bouton rotatif/bouton-poussoir vers la gauche/la droi-
te, sélectionnez "Durée".
Appuyez sur le bouton rotatif/bouton-poussoir.
Saisissez une valeur en tournant le bouton rotatif/bouton-poussoir
vers la gauche/la droite.
Appuyez sur le bouton rotatif/bouton-poussoir Une nouvelle étape de
procédure est définie avec la paire de valeurs rotation-durée et ajoutée
à la procédure. Le diagramme est actualisé.
Les étapes vide, durée et rotation ne peuvent être répétées que vingt
fois maximum.
Touche SET: pour quitter le menu. La nouvelle procédure créée est mé-
morisée et sélectionnée comme procédure actuelle.
Touche ESC: pour quitter le menu. Toutes les modifications sont annulées.
95
Arrêt de la distillation définie par l'utilisateur
La distillation définie par l'utilisateur s'arrête automatiquement à la fin
de toutes les étapes de la procédure actuelle. En outre, l'arrêt manuel
est possible en appuyant avec le bouton rotation/bouton-poussoir sur
le champ "Stop".
Mode Stand-by
Appuyez sur la touche "Power".
L'appareil se met en Stand-by.
Appuyez à nouveau sur la touche "Power".
Le menu principal apparaît et l'appareil est prêt à fonctionner.
96
Guidage par menus
Ecran de démarrag
e
Menu principa
l
Mode manuel Mode distillation automatiqu
e
Mode défini par l'utilisateur Réglages
Distillation Vi
de
Entraînement Bain chauf
fant
Langue Service
Milieu du bain
Ty
pe de distillation
Séchage Valeur limite de la puissance frigorifiqu
e
Puissance frigorifique maximale Puissance frigorifique maximale Contrôle du débi
t
Unité de quantit
é
Détection de l'ébullition
Hystérèse Graduation du temp
s
Graduation du vide Unité de vide
Intervalle droite/gauche Minuteur Graduation du temp
s
Graduation de la rotation
Ea
u
Huile
RV
10.500
1
RV
10.4001/
2
RV
10.4003
Va
nne
V4 Mise à l'air libre Pomp
e
Alignement Heures de fonctionnement
Va
leur de consigne et valeur réelle de rotation
Va
leur de consigne de vide
Af
fichage du minuteur
Start/Sto
p
Mémorisation, navigation dans les procédure
s
Af
fichage des erreur
s
Af
fichage du diagramme vide-rotation-temp
s
Détection de l'ébullition activée
?
Acéton
e
Ea
u
To
luèn
e
N-panthénol Benzol UserSolvent
1
UserSolvent
2
UserSolvent
3
UserSolvent
4
UserSolvent
5
Va
leur de consigne de rotation
Va
leur de consigne et valeur réelle de vide
Af
fichage du minuteur
Champ de navigation de la procédure de distillation Start/Stop, autres paramètre
s
Af
fichage des erreur
s
Af
fichage du débit, de la température di
fférentielle et de la puissance du refroidisseur
Af
fichage du diagramme vide-rotation-temps
Va
leur de consigne de rotation
Va
leur de consigne et valeur réelle de vide
Af
fichage du minuteur
Champ de navigation Solvants/ Détection de l'ébullitio
n
Start/Stop, autres paramètre
s
Af
fichage des erreur
s
Af
fichage du débit, de la température di
fférentielle et de la puissance du refroidisseur
Af
fichage du diagramme vide-rotation-temps
Af
fichage de la progression de la distillatio
n
Procedure
1
Procedure
2
Procedure
3
Procedure
4
Procedure
5
Procedure
6
Procedure
7
Procedure
8
Procedure
9
Procedure 10
Quantité du modèle Quantité de distillat Degré d'ef
ficacité
Procedure
1
Procedure
2
Procedure
3
Procedure
4
Procedure
5
Procedure
6
Procedure
7
Procedure
8
Procedure
9
Procedure 10
Te
mpérature du bain chau
ffant
Rotation Vide Degré d'ef
ficacité
Valeur
C
Enthalpie de l'évaporatio
n
Densité
Suppression de la procédur
e
Vide Durée Rotation Durée Confirmer
Englis
h
Deutsc
h
Français Español
中文
日本
語
Polski
Détection de l'ébullition non Détection de l'ébullition oui
Te
mérature bain chauf
fant
Rotation
97
Réglage de la butée finale inférieure
Attention !
En fonction de la taille du ballon, de l'angle de réglage de
l'entraînement de rotation, ainsi que la position du bain chauffant et
du dispositif de levage, le ballon d'évaporation peut se lever sur le bain
chauffant.
Risque de bris de verre !
Limitez la position inférieure du dispositif de levage avec la butée finale variable.
En mode manuel, un positionnement au choix du dispositif de levage est
possible avec les touches “ ” et “ ”. Il n'y a pas de coupure automatique
en cas de collision.
Appuyez sur la touche “ ” jusqu'à ce que le dispositif de levage att-
eigne la position souhaitée.
Remarque : le ballon d'évaporation doit s'immerger aux 2/3 dans le
bain chauffant.
Pour déplacer l'élément de butée (Q), appuyez sur le bouton central
(R) à l'avant du dispositif de levage (fig. 18).
Poussez la butée (Q) dans la position souhaitée (fig. 19).
Appuyez sur la touche “ ” jusqu'à ce que le dispositif de levage att-
eigne la butée finale supérieure.
Remarque : la course est limitée de 0 à 6 cm.
Vérifiez le fonctionnement de la coupure en fin de course :
Abaissez le dispositif de levage en appuyant en continu sur la touche
“ ”.
L'entraînement s'arrête automatiquement dès qu'il a atteint sa posi-
tion inférieure définie.
Ramenez l'entraînement en position supérieure.
Pour activer le levage de sécurité après un arrêt prolongé, avant de com-
mencer la distillation, mettez le levage motorisé plusieurs fois en butée
inférieure ou en butée supérieure (voir chapitre Consignes de sécurité -
Dispositif de levage de sécurité) !
Remplissage du ballon d'évaporation
Avant de remplir le ballon d'évaporation, l'appareillage en verre est réglé
sur la pression théorique via la commande de vide (controller).
Remplissez maintenant le ballon d'évaporation avec la conduite de
réapprovisionnement, voir fig. 30.
En raison de la dépression présente, le solvant est aspiré dans le bal-
lon d'évaporation. Ceci permet de réduire au maximum les pertes de
solvants par aspiration.
Avant d'appliquer le vide, vous pouvez aussi remplir manuellement le
ballon d'évaporation. Le ballon d'évaporation ne doit pas être rempli
au-delà de la moitié de son volume.
Remarque :
Attention !
La charge maximale autorisée (ballon
d'évaporation et son contenu) est de 3 kg.
Installation du bain chauffant
Lisez également le mode d'emploi du bain chauffant IKA
®
HB 10!
Abaissez le dispositif de levage dans sa position inférieure et vérifiez la
position du bain chauffant par rapport à celle du ballon d'évaporation.
En cas d'utilisation d'un ballon d'évaporation plus grand (2 ou 3 litres)
et selon l'angle de l'entraînement de rotation, vous pouvez décaler le
bain chauffant de 50 mm vers la droite.
Remplissez le bain chauffant d'agent de mise à température jusqu'à ce
que le ballon d'évaporation soit immergé aux 2/3.
Allumez l'entraînement de rotation et augmentez lentement la vitesse
de rotation.
Remarque : évitez la formation de rides.
Allumez le bain chauffant au niveau de l'interrupteur principal.
Remarque : évitez les tensions sur le verre par l'utilisation de températu-
res différentes pour le ballon d'évaporation et le bain chauffant lors de
la descente du ballon d'évaporation dans le bain chauffant !
Remarque : si vous utilisez des accessoires autres que des accessoires
d'origine
IKA
®
, la course de déplacement de 50 mm du bain chauffant
peut ne plus être suffisante, en particulier en cas d'utilisation d'un ballon
d'évaporation de 3 l et d'un dispositif anti-mousse.
Utilisez la plaque
IKA
®
RV 10.3000 pour étendre la course de déplace-
ment du bain chauffant de 150 mm.
Fig. 28
Q
R
Fig. 29
Fig. 30
98
Entretien et nettoyage
Le fonctionnement de l’appareil ne nécessite pas d’entretien. Il est simplement
soumis au vieillissement naturel des pièces et à leur taux de défaillances statistique.
Le joint d'étanchéité du condenseur en verre doit être contrôlé à interval-
le régulier et remplacé si nécessaire.
Débranchez la prise secteur pour la nettoy-age.
Pour nettoyer la commande, il faut utiliser uniquement de l’eau avec un
produit d’addition au détergent contenant un dérivé tensio-actif ou de
l’alcool isopropylique si l’encrassement est plus important.
La commande de pièces de rechange
Lors de la commande de pièces de rechange, veuillez indiquer:
- le type de l’appareil,
- le numéro de fabrication, voir la plaque d’identification,
- le numéro de position et la désignation de la pièce de rechange, voir
www.ika.com
, le tableau des pièces de rechange et catalogue des
pièces de rechange.
Réparation
En cas de réparation n’envoyez que des appareils nettoyés et exempts de
matières nocives pour la santé. Utilisez pour cela le formulaire «
Certi-
ficat de régularité
», imprimez le formulaire téléchargeable sur le site
Web d'
IKA
®
:
www.ika.com
.
Renvoyez l’appareil dans son emballage d’origine. Les emballages de
stockage ne sont pas suffisants pour le renvoi. Utilisez un emballage de
transport supplémentaire adapté.
Dispositif de levage de sécurité
Le dispositif de levage de sécurité doit être contrôlé quotidiennement
avant utilisation !
Après un arrêt prolongé (env. quatre semaines), mettez plusieurs fois le
levage motorisé en butée inférieure ou supérieure avant de commencer
la distillation (voir chapitre Consignes de sécurité - Dispositif de levage de
sécurité) ! Si le dispositif de levage de sécurité ne fonctionne plus, veuillez
contacter le service après-vente
IKA
®
.
Accessoires
RV 10.1
NS 29/32 Verrerie verticale (1)
RV 10.10
NS 29/32 Verrerie verticale, avec revêtement (1)
RV 10.2
NS 29/32 Verrerie diagonale (2)
RV 10.20
NS 29/32 Verrerie diagonale, avec revêtement (2)
RV 10.700
NS 29/42 Verrerie verticale (1)
RV 10.710
NS 29/42 Verrerie verticale, avec revêtement (1)
RV 10.800
NS 29/42 Verrerie diagonale (2)
RV 10.810
NS 29/42 Verrerie diagonale, avec revêtementt (2)
RV 10.900
NS 24/40 Verrerie verticale (1)
RV 10.910
NS 24/40 Verrerie verticale, avec revêtement (1)
RV 10.1000
NS 24/40 Verrerie diagonale (2)
RV 10.1010
NS 24/40 Verrerie diagonale, avec revêtement (2)
RV 10.3
Réfrigérant intensif vertical avec distributeur (1)
RV 10.30
Réfrigérant intensif vertical avec distributeur, avec revêtment (1)
RV 10.4
Réfrigérant à neige carbonique (2)
RV 10.40
Réfrigérant à neige carbonique, avec revêtment (2)
RV 10.5
Réfrigérant vertical avec distributeur et soupape d’arrêt
pour la distillation à reflux (3) (pas d'illustration)
RV 10.50
Réfrigérant vertical avec distributeur et soupape d’arrêt pour
la distillation à reflux, avec revêtment (3) (pas d'illustration)
RV 10.6
Réfrigérant intensif vertical avec distributeur et soupa-
pe (3)
RV 10.60
Réfrigérant intensif vertical avec distributeur et soupa-
pe, avec revêtment (3)
HB 10.1
Écran de protection (Bain chauffant HB 10)
HB 10.2
Capot de protection (Bain chauffant HB 10)
RV 10.70
NS 29/32 Traversée de vapeur
RV 10.71
NS 24/29 Traversée de vapeur
RV 10.72
NS 29/42 Traversée de vapeur
RV 10.73
NS 24/40 Traversée de vapeur
RV 10.74
NS 29/32 Traversée de vapeur, court,
pour distillation à reflux
RV 10.75
NS 24/29 Traversée de vapeur, court,
pour distillation à reflux
RV 10.76
NS 29/42 Traversée de vapeur, court,
pour distillation à reflux
RV 10.77
NS 24/40 Traversée de vapeur, court,
pour distillation à reflux
99
RV 10.80
NS 29/32 Ballon d'évaporation 50 ml
RV 10.81
NS 29/32 Ballon d'évaporation 100 ml
RV 10.82
NS 29/32 Ballon d'évaporation 250 ml
RV 10.83
NS 29/32 Ballon d'évaporation 500 ml
RV 10.84
NS 29/32 Ballon d'évaporation 1000 ml
RV 10.85
NS 29/32 Ballon d'évaporation 2000 ml
RV 10.86
NS 29/32 Ballon d'évaporation 3000 ml
RV 10.90
NS 24/32 Ballon d'évaporation 50 ml
RV 10.91
NS 24/32 Ballon d'évaporation 100 ml
RV 10.92
NS 24/32 Ballon d'évaporation 250 ml
RV 10.93
NS 24/32 Ballon d'évaporation 500 ml
RV 10.94
NS 24/32 Ballon d'évaporation 1000 ml
RV 10.95
NS 24/32 Ballon d'évaporation 2000 ml
RV 10.96
NS 24/32 Ballon d'évaporation 3000 ml
RV 10.97
NS 24/40 Ballon d'évaporation 1000 ml
RV 10.2001
NS 29/42 Ballon d'évaporation 50 ml
RV 10.2002
NS 29/42 Ballon d'évaporation 100 ml
RV 10.2003
NS 29/42 Ballon d'évaporation 250 ml
RV 10.2004
NS 29/42 Ballon d'évaporation 500 ml
RV 10.87
NS 29/42 Ballon d'évaporation 1000 ml
RV 10.2005
NS 29/42 Ballon d'évaporation 2000 ml
RV 10.2006
NS 29/42 Ballon d'évaporation 3000 ml
RV 10.2007
NS 24/40 Ballon d'évaporation 50 ml
RV 10.2008
NS 24/40 Ballon d'évaporation 100 ml
RV 10.2009
NS 24/40 Ballon d'évaporation 250 ml
RV 10.2010
NS 24/40 Ballon d'évaporation 500 ml
RV 10.2011
NS 24/40 Ballon d'évaporation 1000 ml
RV 10.2012
NS 24/40 Ballon d'évaporation 2000 ml
RV 10.2013
NS 24/40 Ballon d'évaporation 3000 ml
RV 10.100
KS 35/20 Ballon de récupération 100 ml
RV 10.101
KS 35/20 Ballon de récupération 250 ml
RV 10.102
KS 35/20 Ballon de récupération 500 ml
RV 10.103
KS 35/20 Ballon de récupération 1000 ml
RV 10.104
KS 35/20 Ballon de récupération 2000 ml
RV 10.105
KS 35/20 Ballon de récupération 3000 ml
RV 10.200
KS 35/20 Ballon de récupération, avec revêtement 100 ml
RV 10.201
KS 35/20 Ballon de récupération, avec revêtement 250 m
RV 10.202
KS 35/20 Ballon de récupération, avec revêtement 500 ml
RV 10.203
KS 35/20 Ballon de récupération, avec revêtement1000 ml
RV 10.204
KS 35/20 Ballon de récupération, avec revêtement 2000 ml
RV 10.205
KS 35/20 Ballon de récupération, avec revêtement 3000 m
RV 10.300
NS 29/32 Ballon de poudre 500 ml
RV 10.301
NS 29/32 Ballon de poudre 1000 ml
RV 10.302
NS 29/32 Ballon de poudre 2000 ml
RV 10.303
NS 24/29 Ballon de poudre 500 ml
RV 10.304
NS 24/29 Ballon de poudre 1000 ml
RV 10.305
NS 24/29 Ballon de poudre 2000 ml
RV 10.2014
NS 29/32 Ballon de poudre 500 ml
RV 10.2015
NS 29/32 Ballon de poudre 1000 ml
RV 10.2016
NS 29/32 Ballon de poudre 2000 ml
RV 10.217
NS 24/40 Ballon de poudre 500 ml
RV 10.218
NS 24/40 Ballon de poudre 1000 ml
RV 10.219
NS 24/40 Ballon de poudre 2000 ml
RV 10.400
NS 29/32 Cylindre d'évaporation 500 ml
RV 10.401
NS 29/32 Cylindre d'évaporation 1500 ml
100
RV 10.402
NS 24/29 Cylindre d'évaporation 500 ml
RV 10.403
NS 24/29 Cylindre d'évaporation 1500 ml
RV 10.2020
NS 29/42 Cylindre d'évaporation 500 ml
RV 10.2021
NS 29/42 Cylindre d'évaporation 1500 ml
RV 10.2022
NS 24/40 Cylindre d'évaporation 500 ml
RV 10.2023
NS 24/40 Cylindre d'évaporation 1500 ml
RV 10.500
NS 29/32 Dispositif anti-mousse
RV 10.501
NS 24/29 Dispositif anti-mousse
RV 10.2024
NS 29/42 Dispositif anti-mousse
RV 10.2025
NS 24/40 Dispositif anti-mousse
RV 10.600
NS 29/32 Araignée de distillation avec 6 douilles de distillation
RV 10.601
NS 29/32 Araignée de distillation avec 12 douilles de distillation
RV 10.602
NS 29/32 Araignée de distillation avec 20 douilles de distillation
RV 10.603
NS 24/29 Araignée de distillation avec 6 douilles de distillation
RV 10.604
NS 24/29 Araignée de distillation avec 12 douilles de distillation
RV 10.605
NS 24/29 Araignée de distillation avec 20 douilles de distillation
RV 10.2026
NS 29/42 Araignée de distillation avec 6 douilles de distillation
RV 10.2027
NS 29/42 Araignée de distillation avec 12 douilles de distillation
RV 10.2028
NS 29/42 Araignée de distillation avec 20 douilles de distillation
RV 10.2029
NS 24/40 Araignée de distillation avec 6 douilles de distillation
RV 10.2030
NS 24/40 Araignée de distillation avec 12 douilles de distillation
RV 10.2031
NS 24/40 Araignée de distillation avec 20 douilles de distillation
RV 10.610
Douille de distillation 20 ml
RV 10.606
NS 29/32 raignée de distillation avec 5 ballons 50 ml
RV 10.607
NS 29/32 raignée de distillation avec 5 ballons 100 ml
RV 10.608
NS 24/29 raignée de distillation avec 5 ballons 50 ml
RV 10.609
NS 24/29 raignée de distillation avec 5 ballons 100 ml
RV 10.2032
NS 29/42 raignée de distillation avec 5 ballons 50 ml
RV 10.2033
NS 29/42 raignée de distillation avec 5 ballons 100 ml
RV 10.2034
NS 24/40 raignée de distillation avec 5 ballons 50 ml
RV 10.2035
NS 24/40 raignée de distillation avec 5 ballons 100 ml
RV 10.3000
Plaque
RV 10.4001
Electrovanne vide de maison (1)
RV 10.4002
Electrovanne vide de laboratoire (2)
RV 10.4003
Commande de pompe avec électrovanne (3))
RV 10.5001
Vanne d'étranglement d'eau (4), uniquement pour le
fonctionnement sur conduite d'eau !
RV 10.5002
Filtre (5)
RV 10.5003
Vanne de régulation de pression (6)
RV 10.8001
Joint d’étanchéité, PTFE compound
PC 1.1
Câble
Labworldsoft
®
101
Tout dysfonctionnement pendant l'utilisation est matérialisé par un message d'erreur à l'affichage.
Après affichage d'un message d'erreur grave, le dispositif de levage monte en butée supérieure et la commande de l'appareil est bloquée. Le dispositif
de levage peut toujours être commandé.
Procédez alors comme suit:
Eteindre l'appareil à l'interrupteur
Prendre les mesures correctives
Redémarrer l'appareil
Code d’erreur
Conséquence
Cause
Correction
Erreur de
La distillation est interrompue en mode
Interface IR bloquée
Validez avec ESC
communication
"Distillation automatique"
Bain chauffant coupé
Activer le bain chauffant
bain
Contrôler et nettoyer l'interface IR
Pas de rotation
La distillation est arrêtée
L'entraînement de rotation ne démarre
Couper l'appareil à l'interrupteur et le rallumer
Pas d'entraînement de la rotation
pas ou avec un gros écart de vitesse
Aucune
La distillation est interrompue en mode
Aucune montée de la température
Validez avec ESC
différence
"Distillation automatique"
différentielle du réfrigérant
Contrôlez le débit du réfrigérant
de température
Contrôlez si les flexibles de réfrigérant sont
bien vissés
Température
La distillation est arrêtée
Température différentielle hors de
Validez avec ESC
hors
la plage de mesure (>7 K)
Contrôlez si les flexibles de réfrigérant sont
plage
bien vissés
Pas de vide
La distillation est arrêtée
La valeur de consigne du vide n'est pas Validez avec ESC
Le vide ne peut pas être régulé
atteinte
Contrôlez l'étanchéité de la verrerie et des raccords
flexibles
Activez la pompe
Vérifiez le raccordement des vannes de vide
Pas de mise
Le vide ne peut pas être ventilé
Pas de ventilation du refroidisseur
Désactivez l'appareil
à l'air libre
Le capteur de vide est défectueux
Ventilez la verrerie manuellement via le robinet
d'arrêt
La vanne d'eau
L'eau arrive en permanence dans
La vanne d'eau n'est pas fermée
Validez avec ESC
n'est pas fermée le circuit de refroidissement
Vérifiez le raccordement
Débit hors plage La distillation est interrompue en mode
Débit du réfrigérant hors plage
Validez avec ESC
"Distillation automatique"
Réglez le débit à nouveau
Coupez le contrôle du débit
(pour le refroidisseur à neige carbonique)
Refroidisseur
La distillation est arrêtée
Refroidisseur surchargé
Validez avec ESC
surchargé
Distillat peut arriver dans la pompe
Modifiez les paramètres de traitement, p. ex.
à vide
augmentez la pression
Baisser la température du bain
Accroître le débit du refroidisseur dans le cadre indiqué
Distillation sèche La distillation est arrêtée
Durant la distillation, l'absence de
Validez avec ESC
milieu a été détectée dans le ballon
Ou passez à la rubrique “Séchage" dans le
d'évaporation
menu “Réglages"
Le dispositif de
La distillation est arrêtée
La course de levage est bloquée
Validez avec ESC
levage n'est pas Le moteur de levage est coupé
Vérifiez la course de levage
en position finale
Eliminez les blocages
Erreur
L'alignement est réinitialisé sur le réglage L'alignement se trouve hors des plages Validez avec ESC
d'alignement
d'usine
(max. +/- 0,5K)
Vérifiez si la sonde est bien mise
Effectuez un nouvel alignement
Erreur de
La valeur d'étalonnage du vide est
Erreur lors de la vérification du contenu Le vide doit être réétalonné
mémoire
réinitialisée sur le réglage d'usine
de la mémoire
Fuite de vide
La distillation est arrêtée
Fuite dans le système de vide
Validez avec ESC
Recherche de fuite
Aucun point
La distillation est arrêtée
Le point d'ébullition n'a pas
-Solvant à point d'ébullition élevé : redémarrage
d'ébullition trouvé
été trouvé
-Contrôler le bain chauffant
Aucune pompe
La distillation n'est pas démarrée
Aucune pompe analogique
-Valider avec ESC
analogique trouvée
n'a été trouvée
-Contrôler la pompe et les raccords
Si le défaut persiste après les mesures prescrites ou si un autre code d'erreur s'affiche
- Adressez-vous au département de service d'
IKA
®
,
- Envoyez l'appareil avec un bref descriptif de l'erreur.
Messages d’erreurs
102
Caractéristiques techniques
Plage de tension de service
Vac
100 - 230 ±10%
Tension nominale
Vac
100 - 230
Fréquence
Hz
50 / 60
Puissance absorbée sans bain chauffant
W
100
Puissance absorbée en mode d’opération “stand by” W
3,3
Vitesse de rotation
rpm
20-280
Affichage de la vitesse de rotation
digital
Taille de l'image à l'écran (l x h)
mm
70 x 52
Écran
Ecran TFT
Multilingue oui
Marche à droite-gauche/mode intervalle
oui
Démarrage progressif
oui
Dispositif de levage
automatique
Vitesse de levage
mm/s
50
Course
mm 140
Réglage butée de fin de course inférieure
mm
60, sans contact
Inclinaison réglable de la tête
0° - 45°
Minuteur
min 1-200
Intervalle
sek 1-100
Contrôleur de vide intégré
oui
Plage de mesure du vide
mbar (hPa)
1050 - 1
Plage de régulation du vide
mbar (hPa)
1012 - 1
Précision de la mesure du vide
mbar
+ 2 (+ 1 Digit) après l'alignement à température constante
Précision de régulation du vide
mbar
hystérèse réglable
Plage de mesure de la température différentielle K
7
Plage de compensation de décalage
K
+0,5
Port
USB, RS 232
Programmation des rampes
oui
Etapes de distillation programmables
oui
Commande à distance
avec accessoire labworldsoft
®
Surface de refroidissement
cm
2
1200
(Refroidisseur standard RV 10.1,10.10,10.2,10.20)
Débit minimum du réfrigérant
l/h
30
Débit maximum du réfrigérant
l/h
100
Pression du réfrigérant
bar
1
Plage de température du réfrigérant,
°C
18 - 22, constant
récommandé
Fusible
2xT1, 6A 250V 5x20
Facteur de service admissible
%
100
Température environ. admiss.
°C
5-40
Taux d'humidité relatif admiss.
%
80
Degré de protection selon DIN EN 60529
IP 20
Classe de protection
I
Catégorie de surtension
II
Taux d'encrassement
2
Poids (sans verrerie ; sans bain chauffant)
kg
18,6
Dimension (l x p x h)
mm
500 x 440 x 430
Hauteur max. d’utilisation de l’appareil
m
max. 2000
Sous réserve de modifications techniques!
103
Tableau des solvants (sélection)
Solvant
Formule
Pression en mbars
pour le point
d’ébouillition à 40 °C
Acetic acid
C
2
H
4
O
2
44
Acetone C
3
H
6
O 556
Acetonitrile C
2
H
3
N 226
N-Amylalcohol, C
5
H
12
O 11
n-Pentanol
n-Butanol C
4
H
10
25
tert. Butanol,
C
4
H
10
O 130
2-Methyl-2-Propanol
Butylacetate C
6
H
12
O
2
39
Chlorobenzene C
6
H
5
CI 36
Chloroform CHCI
3
474
Cyclohexane C
6
H
12
235
Dichloromethane, CH
2
CI
2
atm.press.
Methylenechloride
Diethylether C
4
H
10
O atm.press.
1,2,-Dichloroethylene (trans)
C
2
H
2
CI
2
751
Diisopropylether C
6
H
14
O 375
Dioxane C
4
H
8
O
2
107
Dimethylformamide (DMF)
C
3
H
7
NO 11
Ethanol C
2
H
6
O 175
Solvant
Formule
Pression en mbars
pour le point
d’ébouillition à 40 °C
Ethylacetate C
4
H
8
O
2
240
Ethylmethylketone C
4
H
8
O 243
Heptane C
7
H
16
120
Hexane C
6
H
14
335
Isopropylalcohol C
3
H
8
O 137
Isoamylalcohol, C
5
H
12
O 14
3-Methyl-1-Butanol
Methanol CH
4
O 337
Pentane C
5
H
12
atm.press.
n-Propylalcohol C
3
H
8
O 67
Pentachloroethane C
2
HCI
5
13
1,1,2,2,-Tetrachloroethane C
2
H
2
CI
4
35
1,1,1,-Trichloroethane C
2
H
3
CI
3
300
Tetrachloroethylene C
2
CI
4
53
Tetrachloromethane CCI
4
271
Tetrahydrofurane (THF)
C
4
H
8
O 357
Toluene C
7
H
8
77
Trichloroethylene C
2
HCI
3
183
Water H
2
O 72
Xylene C
8
H
10
25

