Ridgid 3814 (E): Instructions d’utilisation
Instructions d’utilisation: Ridgid 3814 (E)
3801(E), 3802(E), 3811(E), 3812(E), 3813(E), 3814(E)
Ridge Tool Company
11
AVERTISSEMENT! Lisez attentivement
ces instructions et le guide de sécurité qui
les accompagne avant d’utiliser cet appa-
reil. Si vous avez des questions sur l’un ou l’autre
aspect relatif à l’utilisation de cet appareil,
contactez votre distributeur RIDGID.
L’incompréhension et le non-respect de
toutes les instructions peuvent provoquer une
électrocution, un incendie et/ou des blessures
corporelles graves.
CONSERVEZ CES INSTRUCTIONS DANS UN
ENDROIT SUR !
Montage
1. a. Machines 1 1/4”, 2” et 3”.
Posez l’étrier de cintrage avec ses supports sur le sol et glissez
l’anneau sur la face avant du cylindre.
Passez le bras en U à travers les trous du sabot de l’anneau de
l’étrier de cintrage. Le cylindre et l’étrier de cintrage sont à présent
correctement
fi
xés.
1. b. Machine 4”.
- Placez la base sur le sol.
- Placez
le
fl
asque inférieur sur la base.
- Placez la pompe de cintrage sur la base, accrochez le
fl
asque
inférieur à la pompe et
fi
xez la pompe à l’arrière au moyen de deux
boulons M10.
- Placez les diabolos latéraux et, le cas échéant, les formes de
cintrage que vous allez utiliser, sur le
fl
asque inférieur de l’étrier.
- Placez
le
fl
asque supérieur sur les diabolos latéraux et accrochez-
le à la pompe.
- Passez les axes de
fi
xation à travers les
fl
asques et les diabolos
latéraux.
2. Montez, au bout du piston, une matrice de cintrage appropriée au
diamètre du tube à cintrer. Les diabolos latéraux doivent être placés
sur l’étrier de cintrage ou entre ceux-ci, lorsqu’il y a deux
fl
asques.
Elles sont attachées au moyen d’axes de
fi
xation. Les trous de
l’étrier permettent aux diabolos latéraux d’être ajustés aux diamètres
extérieurs souhaités. Ces trous sont distinctement marqués. Assurez-
vous que les axes de
fi
xation des diabolos latéraux sont correctement
fi
xés dans l’étrier de cintrage (ou dans les deux
fl
asques du cadre) a
fi
n
d’éviter tout dégât.
Cintrage
1. Le bouchon d’emplissage est percé pour l’échappement de l’air.
Chaque fois que la cintreuse est transportée, ce bouchon
d’emplissage doit être fermé de manière étanche; mais en cas
d’utilisation, il doit être légèrement ouvert.
2. Avant le cintrage, le tube doit être légèrement graissé. Il est alors
glissé entre les diabolos latéraux et la matrice de cintrage. La tige de
décompression doit être fermement bloquée. La pompe fonctionne en
déplaçant la manette vers le haut et vers le bas. Le piston se déplace
en extension et le tube est cintré. L’opération de cintrage doit être
poursuivie jusqu’à ce que la courbure souhaitée soit obtenue mais il
ne faut pas dépasser la courbure de la matrice de cintrage. Souvenez-
vous que le tube va légèrement revenir en arrière en se détendant,
suivant la qualité du tube. Ceci est à déterminer par expérience.
3. Dès que le tuyau a atteint la forme requise, libérez la tige de
décompression, le piston se rétractera automatiquement. Démontez
un des diabolos latéraux; le tube peut alors être retiré. Les modèles
munis d’un étrier ouvert ou basculant présentent l’avantage que le
tube cintré peut être enlevé plus facilement, en particulier les pièces
longues ou les tubes à plusieurs coudes. On épargne ainsi beaucoup
de temps.
4. Un coude cintré trop fortement peut être corrigé au moyen du
redresseur. Le piston doit être inversé et le tube doit être retourné
contre les diabolos latéraux. Le redresseur est placé en bout de piston
et le coude peut être repoussé jusqu’à atteindre la forme désirée. La
cintreuse 1 1/4” ne permet normalement pas de corriger un coude à
90°. Ceci est valable également pour la cintreuse 3” avec les tubes 2
1/2” et 3” et la cintreuse 4” avec les tubes 3” et 4”.
5. Pour les modèles 3” et 4” uniquement.
En cas de cintrage de tubes 2 1/2”, 3” et 4”, il faut
fi
xer un piston de
rallonge sur le piston primaire lorsque le tube a été cintré au-delà de
75°. La course du tube est insuf
fi
sante pour effectuer un cintrage de
90° en une seule opération.
6. Cintreuses électrohydrauliques 1 1/4”, 2”, 3”, 4”.
Les cintreuses électrohydrauliques pour tubes sont équipées d’un
moteur triphasé 115 V, 220 V, CA ou 380 V. Le moteur est doté d’un
fusible de sécurité spécial. Dès que le moteur tourne, le mouvement
du piston est commandé par une tige de décompression qui peut être
ouverte ou fermée. Il n’est pas nécessaire de couper le moteur. La
machine comporte également une soupape de sécurité à la pression.
Cette soupape est réglée en usine de telle sorte qu’un tuyau de très
forte épaisseur (tube vapeur) peut être cintré sans aucun problème.
La soupape de sécurité à la pression est située dans la tige de
décompression et ne peut être réglée qu’au moyen d’un manomètre.
Cintrage de coudes en épingle à cheveux de 108°
A cet effet, il est nécessaire de disposer d’accessoires complémentaires qui
peuvent être livrés sur demande.
Montage
1. Voir le paramètre relatif au montage de la cintreuse.
2. La matrice de cintrage (180°) correspondant à la dimension du tube
à cintrer est placée en bout de piston. Ensuite, les plateaux (étriers
de réserve) à 3 rouleaux (diabolos) sont ajustés entre les battants
de l’étrier de telle façon que le diabolo
fi
xe soit à l’avant. Les axes
FR
3801(E), 3802(E), 3811(E), 3812(E), 3813(E), 3814(E)
Instructions d’utilisation
MONTAGE DE LA MACHINE A CINTRER DES TUBES 4”
Pompe 4”
Flasque supérieur
Diabolo latéral
avec axes
de
fi
xation
Flasque inférieur
Base
3801(E), 3802(E), 3811(E), 3812(E), 3813(E), 3814(E)
Ridge Tool Company
12
de
fi
xation des diabolos latéraux doivent être placés dans les trous
correspondant à la dimension du tube, à travers le diabolo le plus
gros et le verrou central. Le diabolo détachable doit être enlevé et
le tube à cintrer passe au travers. Le tube doit à présent toucher le
diabolo central d’un côté et la matrice à cintrer à 180° de l’autre côté.
L’opération de cintrage peut à présent commencer.
Cintrage
1. Voir le paragraphe relatif au cintrage.
2. Si le cintrage est supérieur à 90°, le piston doit être inversé, en
libérant la tige de décompression. Ensuite, tournez les plateaux de
180° et ajustez les diabolos détachables. Pour enlever le tube cintré,
voir le paramètre relatif au cintrage.
Entretien
La cintreuse est livrée avec le réservoir rempli d’huile. Néanmoins, le niveau
d’huile doit être régulièrement véri
fi
é, sinon la course du piston deviendra
trop courte. L’huile doit toujours être de niveau avec le fond du bouchon
d’emplissage. S’il est nécessaire d’ajouter de l’huile, n’utilisez que de l’huile
hydraulique.
Précautions
1. Assurez-vous que les diabolos latéraux sont toujours placés
symétriquement dans les trous conformes à la dimension du tube à
cintrer. S’ils ne sont pas correctement mis en place, c’est le piston au
lieu du tube qui pourrait être cintré. Dans ce cas, la machine serait
sérieusement endommagée.
2. Veillez également à ce que les axes de
fi
xation des diabolos latéraux
soient correctement emboîtés dans les trous des
fl
asques supérieur
ou inférieur de l’étrier de cintrage, et à ce qu’ils passent complètement
à travers l’alésage de l’étrier de cintrage du type ouvert.
3. Il ne faut pas mettre le piston en extension au-delà du repère rainuré.
3801(E), 3802(E), 3811(E), 3812(E), 3813(E), 3814(E)
Ridge Tool Company
13
Défectuosités susceptibles de se présenter et moyens d’y remédier
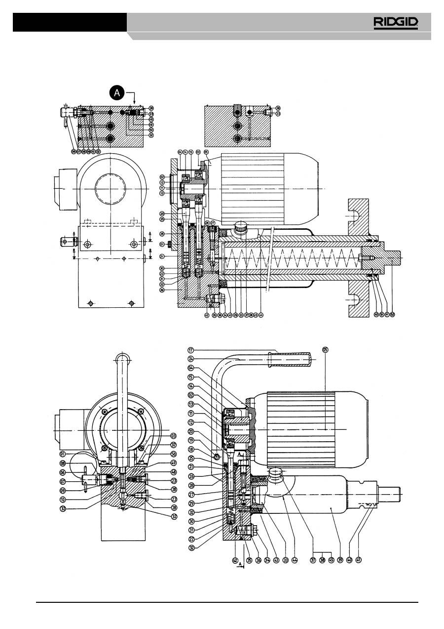
Les chiffres entre parenthèses revoient aux machines électriques.
DEFECTUOSITE CAUSES
PROBABLES
REMEDES
1. Le piston (33) ne se déplace
pas suf
fi
samment loin.
a. Le bouchon d’emplissage (37) n’est pas suf
fi
samment
desserré.
b. Le réservoir d’huile n’est pas suf
fi
samment rempli.
c. Le trou d’aération du bouchon d’emplissage (37) est
obstrué.
a. Desserrez le bouchon d’emplissage (37) d’environ
1 ou 1 1/2 tour.
Lorsque vous déplacez la machine, veillez à ce que le
bouchon d’emplissage soit fermé hermétiquement.
b. Remplissez le réservoir d’huile jusqu’à ce que l’huile
soit de niveau avec le fond du bouchon d’emplissage.
Il ne faut pas mettre le piston en extension au-delà de
son repère rainuré.
c. Nettoyez l’ori
fi
ce du trou d’aération.
2. Le piston (33) ne se déplace
pas du tout.
a. La tige de décompression (7) n’est pas suf
fi
samment
serrée.
b. La bille (32) ne se referme pas lorsqu’on la presse;
saleté possible sur le cône de la bille.
c. Le
fi
ltre (42) et/ou le canal d’alimentation en huile est
obstrué.
a. Serrez la tige de décompression.
b1. Nettoyez le cône de la bille sous la bille (32).
Cognez éventuellement la bille sur le cône pour la
caler.
b2. Veuillez prendre contact avec le fournisseur.
c. Enlevez la cheville de blocage (34). Nettoyez le
fi
ltre
et le canal d’alimentation en huile.
3. Le piston (33) ne donne qu’un
peu ou pas de pression du
tout.
a. La tige de décompression (7) n’est pas serrée.
b. A cause d’une saleté entre le cône et la bille (32) de la
tige de décompression (7), l’huile fuit et retourne vers le
réservoir à huile.
c. La bille (32) ne ferme pas parce que le cône est sale.
d. Le joint situé sous la vis de sécurité du ressort de
traction (27) fuit.
e. Le joint (40) fuit.
f. Le joint de compression (46) fuit.
a. Serrez la tige de décompression.
b. Libérez la tige de décompression (7), l’écrou à bague
(8), le joint (9) et les anneaux du fond (10). Nettoyez
le cône de la bille (31). Voir 2b1. (Si nécessaire,
contactez le fournisseur).
c. Dévissez la vis de sécurité du ressort de traction (27)
et retirez le piston d’environ 2 cm (1”). Voir 2b1.
d. Serrez cette vis et, si nécessaire, remplacez l’anneau
du joint (28).
e. Remettez le joint en place. Veillez à ce qu’il soit
correctement calé. Pour détacher le piston, voir 3c.
f. Remettez le joint en place.
4. Le levier (16) ne se relève pas. a. Le ressort de compression (30) est endommagé.
a. Remplacez le ressort de compression.
5. Le piston (33) ne fait pas
marche arrière lorsque la tige
de décompression est libérée.
a. Le ressort de traction (29) est endommagé.
b. Le piston (33) est incurvé. Ceci ne peut se produire que
lorsque les diabolos latéraux sont placés de manière
asymétrique.
a. Remplacez le ressort de traction. Veuillez prendre
contact avec le fournisseur.
b. Veuillez prendre contact avec le fournisseur.
6. L’huile fuit hors du piston de
compression (20).
a. Le joint racleur (41) fuit.
a. Remplacez le joint racleur. Si nécessaire, remplacez
également le joint (46).
3801(E), 3802(E), 3811(E), 3812(E), 3813(E), 3814(E)
Ridge Tool Company
14
N° pos.
Modèle
3801/
3811
Qté
Modèle
3802/
3812
Qté
Modèle
3813
Qté
Modèle
3814
Qté
Modèle
3801 E
Qté
Modèle
3802 E
3812 E
Qté
Modèle
3813 E
Qté
Modèle
3814 E
Qté
N° pos.
Vis
01 21256 4 21256 4 21256 4 28256 4
01
Bouchon
de
protection
02 21266 1 21266 1 21266 1 21266 1
02
Vis
03
21276
4
21276
4
21276
4
21276
4
03
Carter
d’entraînement
04
21286 1 21286 1 21286 1 28736 1
04
Electromoteur
05
Voir tableau 1 Voir tableau 1 Voir tableau 1 Voir tableau 1 05
Axe d’encoche de la tige
de décompression
06
21126
1
21126
1
21126
1
21126
1
21126
1
21126
1
21126
1
21126
1 06
Broche de décharge
07
21116
1
21116
1
21116
1
21116
1
21116
1
21116
1
21116
1
21116
1 07
Ecrou à oeil de la broche
de
décharge
08 21106 1 21106 1 21106 1 21106 1 21106 1 21106 1 21106 1 21106 1
08
Joint en caoutchouc
09*
1
1
1
1
1
1
1
1 09
Anneau de fond en cuivre
10*
2
2
2
2
2
2
2
2 10
Vis
11
21376
1
21376
2
21376
2
21376
2 11
Anneau de sécurité
12
21386
1
21386
1
21386
1
21386
1 12
Molette de verrouillage
13
21396
1
21396
1
21396
1
21396
1 13
Roulement à billes
14
21406
1
21406
1
21406
1
21406
1 14
Excentrique
15
21416
1
21416
1
21416
1
28606
1 15
Levier manuel
16
20846
1
20846
1
20846
1
28726
1
16
Poignée
17*
1 1 1 1 1 1 1
17
Anneau de sécurité
18
21076
2
21076
2
21076
2
28746
2
21076
2
21076
2
21976
2
18
Axe d’encoche
19
21066
1
21066
1
21066
1
28516
1
21066
1
21066
1
21066
1
19
Piston de compression
20
20866
1
20866
1
20866
1
28596
1
21466
1
21466
1
21466
1
21466
2 20
Logement du piston
de compression
21
21476
1
21476
1
21476
1
21476
2 21
Axe d’encoche de
diamètre 4 x16
22
21486
1
21486
1
21486
1
21486
2 22
Bouchon de borne G 1/4”
23
20926
1
20926
1
20926
1
20926
1
20926
1
20926
1
20926
1
20926
2 23
Etrier porteur
24
21426
1
21426
1
21426
1
24
Joint racleur du piston
de compression
25*
1
1
1
1
1
1
1
2 25
Joint
torique
26*
2 2 2 4
26
Vis de sécurité du ressort
de traction
27
20916
1
20916
1
20916
1
28636
1
21526
1
21526
1
21526
1
28866
2 27
Anneau du joint PP 45 B
28*
2
2
2
2
3
3
3
4 28
Ressort de traction 1 1/4”
29
21166
1
21176
1
21176
1
28496
1
21166
1
21176
1
21176
1
28496
1 29
Ressort de poussée
30
20896
1
20896
1
20896
1
28476
1
21536
1
21536
1
21536
1
21536
2 30
Cône de la bille
31
21546
1
21546
1
21546
1
21546
2 31
Bille
5/16”
32*
3 3 3 3 4 4 4 6
32
Piston 1 1/4”
33
21186
1
21196
1
21206
1
28586
1
21186
1
21196
1
21206
1
28586
1 33
Bouchon G 1/2”
34
21026
1
21026
1
21126
1
21026
1
21026
1
21026
1
21026
1
21026
1 34
Ressort de poussée du
fi
ltre
35
21576
1
21576
1
21576
1
21576
1
21576
1
21576
1
21576
1
21576
1 35
Anneau du joint PP 45 D
36*
1
1
1
1
1
1
1
1 36
Bouchon de remplissage
37
20946
1
20946
1
20946
1
20946
1
20946
1
20946
1
20946
1
20946
1 37
Garniture de liège du
bouchon de remplissage
38*
1
1
1
1
1
1
1
1 38
Corps de pompe
39
1
1
1
1
1
1
1
1 39
Joint d’étanchéité 1 1/4”
40* 20996
1
21006
1
21016
1
28466
1
20996
1
21006
1
21016
1
28466
1 40
Joint racleur
41*
1
1
1
1
1
1
1
1 41
Filtre
42*
1
1 1 1 1 1 1 1
42
Axe du ressort de traction
43
21136
1
21146
1
21156
1
28556
1
21136
1
21146
1
21156
1
28556
1 43
Disque
44
21246
1
21246
1
21246
1
21246
1
21246
1
21246
1
21246
1
21246
1 44
Fluide hydraulique (2,5 l)
45
14061
1
14061
1
14061
1
14061
1
14061
1
14061
1
14061
1
14061
1 45
Joint de compression
46*
1
1
1
1
46
Axe du joint de compression 47
20886
1
20866
1
20866
1
20886
1
47
Bouchon de la soupape
de sécurité
48
28576
1
28576
1
28576
1
28576
1 48
Ressort
49
28486
24
28486
24
28486
24
28486
24 49
Cône de la bille
50
28626
1
28626
1
28626
1
28626
1 50
Joint torique
51*
28426
1
28426
1 51
Bouchon du vérin 4”
52
28616
1
28616
1 52
Kits de joints
(y compris les éléments marqué de*) 21906
21916
21926
33226
21936
21946
21956
33236
Moteur 110 V 1Ø
28276
Condensateur 230 V = 40
μ
F
34306
Interrupteur 110 V
57786
230 V 1Ø
21316
110 V = 110
μ
F 34316
230 V
1Ø
57776
400 V 3Ø
21306
400 V
3Ø
57766
3801(E), 3802(E), 3811(E), 3812(E), 3813(E), 3814(E)
Ridge Tool Company
15
3801(E), 3802(E), 3811(E), 3812(E), 3813(E), 3814(E)
Ridge Tool Company
16
Accessoires
3802
3812
3813
Accessoire à 180°
22366
22346
22356
Voir formes de cintrage
40 x 8 mm
Fixation de la barre
22446
22436
22456
Voir ci-dessous pour les formes
Réglage
de la course
3801 E / 3811 E2
3802 E / 12 E / 13 E
3814 E
220 V
360 V
115 V
26896
26906
35116
26916
26926
34916
29126
29116
35726
Rayon (mm)
60
70
80
90
100
110
120
130
40 x 8 mm
Formes de la
barre
22466 22476 22486 22496 22506 22516 22526 22536
Formes de cintrage
Diamètre
nominal
Extérieur
Ø
mm
Formes standard
Tube de chaudière
Cintrages 180 deg.
Rayon
N° cat.
Rayon
N° cat.
Rayon
N° cat.
1/4
13,5
60 28286
130 22376
3/8
17,2
45 21806
18
18
60 27816
20
20
70 27826
1/2
21,3
50 21816 110 22236 130 22386
22
22
80 27836
25
25
115 22116
3/4” 26,9 65 21826 137 22246 130
22396
28
28
70 35066
30
30
140 22126
32
32
140 22136
1
33,7 100 21836
190 22256 130 22406
35
35
100
35076
38
38
170
22146
40
40
125
35086
42
42
125
35096
1 1/4”
42,4
130
21846
220
22266
130
22416
44,5
44,5
190
22156
1 1/2
48,3
160
21856
220
22166
140
22426
50
50
140
35106
51
51
220
22176
57
57
250
22186
2
60,3
220
21866
270
22196
190
28766
63,5
63,5
270
22206
70
70
315
22216
2 1/2
76,1
320
21876
420
22226
3
88,9
380
21886
4
114,3
600
28756
DETAIL DES POMPES
ELECTRO-HYDRAULIQUES
A SOUPAPE DE PRESSION MAXIMALE
PRESSION MAXIMALE 420 ATO
Table of contents
- Operating Instructions
- Bedienungsanleitung
- Instructions d’utilisation
- Gebruiksaanwijzing
- Istruzioni operative
- Instrucciones de uso
- Instruções de Funcionamento
- Driftsinstruktioner
- Betjeningsvejledning
- Brukerveiledning
- Käyttöohjeet
- Upute za rukovanje
- Instrukcja obs ł ugi
- Instruc ţ iuni de exploatare
- Návod k obsluze
- Használati útmutató
- Οδηγίες λειτουργίας
- Инструкция по эксплуатации

