De Dietrich MS 24 FF: 错误信息及故障表
错误信息及故障表: De Dietrich MS 24 FF
305
71.03982.03 - CN
用户使用说明
10.
错误信息及故障表
锅炉具有“防冻保护”功能,当锅炉供水温度下降到低于5°C时,锅炉会启动运行将采暖供水温度加热至30° C。
我们建议您尽量避免排空整个系统,因为换水会导致锅炉内部和供热元件上有害的水垢沉积。如果锅炉在冬天不用,并有冻
结危险时,我们建议在系统水内加入一些专用的防冻剂(例如:掺有防腐蚀、防垢剂的丙二醇)。
只有当下述的条件具备时,锅炉的防冻功能才有效:
* 锅炉电源接通;
* 燃气供气阀打开;
* 系统水压正常;
* 锅炉无故障。
注意:防冻保护功能无法保证整个采暖系统内的水都得到加热,部分系统仍有冻结危险。
在严寒的冬季锅炉长时间不使用时,用户如需彻底排空系统以避免系统冻结,请在操作前咨询专业的供暖工程师.
9. 长时间停机时系统的防冻保护
故障代码
故障描述
排除方法
E01
点火失败,锅炉停机
按下 “R”按钮至少 2秒钟,若故障仍存在,拨打电话咨询授权的维修中心。
E02
过热保护动作
按下 “R”按钮至少 2秒钟,若故障仍存在,拨打电话咨询授权的维修中心。
E03
烟温保护/ 空气压差开关动作
拨打电话咨询授权的维修中心。
E04
锅炉运行中,火焰消失,连续6次点火失败
后,锅炉停机
按下 “R”按钮至少 2秒钟,若故障仍存在,拨打电话咨询授权的维修中心。
E05
采暖供水传感器故障
拨打电话咨询授权的维修中心。
E06
卫生热水传感器故障
拨打电话咨询授权的维修中心。
E10
缺水保护
检查系统的压力是否正常,见第6节,若故障仍存在,拨打电话咨询授权的维修中心。
E25/E26
可能是水泵堵塞等导致的系统水循环异常
拨打电话咨询授权的维修中心。
E32
结垢报警
拨打电话咨询授权的维修中心。
E35
火焰故障(寄生火焰存在)
按下 “R”按钮至少 2秒钟,若故障仍存在,拨打电话咨询授权的维修中心。
E96
由于电源供应中断或不足而导致锅炉关闭
此种情况锅炉会自动重启。若故障仍存在,拨打电话咨询授权的维修中心。
注意:锅炉发生故障时,显示屏背光和故障代码将同时闪烁
为了保证您的锅炉高效、安全地运行,务必在每个运行周期结束时由授权的、有资质的专业工程师进行维护保养。精心的维
护保养可保证系统经济的运行。维护保养项目请参见第27节。
请不要用具研磨性、腐蚀性、易燃的清洁剂(如汽油、酒精等)清理设备的外壳。清理前必须首先设备断开电源(见第7
节).
11. 维护说明
当锅炉出现故障时,锅炉显示屏上会显示故障符号及相应的故障代码(例如.: E 01):
用户可尝试通过按钮“R”重新启动锅炉,具体方法
如下:
按下按钮 “R” 至少2秒钟以上,然后松开,可重新
启动锅炉。
若故障仍然存在,请拨打电话咨询授权的维修中心.
注意: 5次连续重启仍无法排除故障,锅炉将进入自锁状
态,要想重新启动锅炉,需断开锅炉电源几秒钟.
图 3
0607_1205
复位故障
306
安装维修保护说明
71.03982.03 - CN
该锅炉的出水温度设计为低于水的沸点温度(标准大气压下)。
必须依据锅炉的性能和热输出功率连接与其匹配的采暖和卫生热水系统。
锅炉的安装必须由授权的、有资质的工程师完成,在安装前,须确保完成下述操作:
a) 检查锅炉是否适用于用户所提供的燃气类型,如是,方可进行安装。锅炉适用的燃气类型详见设备包装和标牌说
明。
b) 检查烟道设计是否符合当地相关法律、法规、标准要求;检查进气、排烟是否顺畅,有无堵塞,并确保烟、气管连
接处密封良好,检查合格后方可安装。如锅炉需连接至共用烟道时,须严格按照锅炉的安装技术要求以及当地的相
关法律、法规、标准执行。
c) 当锅炉连接到现有烟道上时,应彻底清理旧烟道,以免锅炉运行时燃烧残余物脱落堵塞烟道。
d) 为确保锅炉正确运转并避免锅炉质保失效,请遵循下述预防措施:
1. 卫生热水系统
1.1. 如果水硬度大于20 °F(1 °F = 每升水含10毫克碳酸钙),则根据现行规定采用聚磷酸盐或相当的水处理系统。
1.2. 设备安装后及使用前,必须彻底冲洗卫生热水管路系统。
1.3. 用于卫生热水系统水处理的产品,必须满足规范98/83/EC及当地相关法律、规范的要求。
2. 采暖系统
2.1. 新安装的采暖系统
安装锅炉前,必须清理并彻底地冲洗系统以清除剩余的切屑、焊渣和溶剂(如有),尽可能采用适当的专利产品处理。
为了避免损坏金属、塑料和橡胶零部件,只允许使用中性的清洁剂,即非酸性、非碱性的清洁剂。所推荐的清洁产品包
括:SENTINEL X300或X400 及采暖管路防护剂FERNOX。必须严格遵守产品制造商的指导要求使用上述产品。
2.2.原有的采暖系统
安装锅炉前,必须清理并冲洗系统以去除淤渣及污物,采用第2.1节所述适当的专利产品进行清洗。
为了避免损坏金属、塑料和橡胶零部件,只允许使用中性的清洁剂,即非酸性、非碱性的清洁剂。所推荐的清洁产品包
括:SENTINEL X100 和采暖管路防护剂FERNOX。必须严格遵守产品制造商的指导要求使用该产品。
请注意,采暖系统内的杂质会对锅炉的运行产生不利的影响(例如过热及换热器的工作噪音).
如不遵循上述要求,将导致锅炉质保失效.
下面的内容针对于安装、维修工程师,有助于他们顺利完成安装。锅炉的点火和运行参见“使用说明”部分。
注意:锅炉的安装和维修保养必须由授权的、有资质的专业工程师完成。
请谨记下述要求:
* 该锅炉可与任何类型单、双管对流式暖房器、散热器散热系统连接。但在设计系统时,须校核水泵流量-扬程性能参数
能否满足系统要求,详见第26节。
* 请不要将产品包装(塑料袋、聚苯乙烯等)放到儿童能够触及的地方,以免发生危险。
* 锅炉的初次点火必须由授权的、有资质的专业工程师完成。
如不遵守上述要求,将导致锅炉质保失效。
外置水泵安装注意事项
如果采暖系统中需安装外置的循环水泵,应将其安装于采暖回水管上,这样可以保证水压开关的正常运行。
注意
当即热式(混合型)锅炉连接有太阳能集热板时,进入锅炉的卫生热水的最高温度不能超过 60°C.
12. 基本信息 13. 安装前须知
307
安装维修保护说明
71.03982.03 - CN
14. 锅炉的安装
确认锅炉的安装位置时,需检验安装地点是否便于进行维护(锅炉顶端需留出至少450mm的空间,便于更换膨胀水箱)。
放置设备时先对准机身下面横杆上的水接口和煤气接口。 建议在整个供暖回路中安装两个截止阀(出水/回水)G3/4(可以
根据客户要求提供),这样便于在进行重要维修时,不需要将这个供暖设备排空。 设备应存在并且建议进行更换的情况下,
除了上述的建议外,要对锅炉进行回水,并在下方放置一个沉淀槽,以收集清洗后掉出来的沉淀物和炉渣,这些残渣是在锅
炉运行过程中产生的。 将锅炉固定在墙上后,要连接排气和进气管(这些管子已作为配件提供),后面几个章节将会提到。
如果是安装自然通风锅炉24 MI - 24,连接至烟囱时,要使用耐用、耐机械应力、耐热、耐烧、耐冷凝的金属管。
重要
装好锅炉后,需将整个回路和设备进行排气,过程描述如下:
•
关闭截止气阀;
•
给锅炉连接电源;
•
打开泵机上的通气阀;
•
通过按键 ( )将锅炉调成“冬季”模式;
•
在温控器上调节温度设置;
•
打开热水龙头,根据水流需求交替调节采暖设置;
•
试了几次开机后,锅炉会被中断运行(显示器上显示错误 E01);
•
重新设置锅炉需按下 “R”键至少2秒钟;
•
至少再重复上述程序2次;
•
关闭截止气阀。
一旦整个供暖回路排气结束,就可以开机使用了。
膨胀水箱需注意的地方
该锅炉具备一个6升的膨胀水箱,预充压为1 bar。 这个设备的最大充水量是由静水压力决定的,其平均温度为80°C (出
水95°C,回水75°C)。
静水压力 (m)
5
6
7
8
9
10
设备最大充水量 (l)
110
105
95
85
77
70
308
安装维修保护说明
71.03982.03 - CN
注意
仔细拧紧系统各管路与锅炉连接头之间的连接(其最大紧固扭矩为 30 Nm).
15. 锅炉尺寸
G”3/4 供热出水
G”1/2 流出热水
G”3/4 供热回水
G”1/2 流入冷水
G”3/4 进入锅炉煤气
G”3/4 燃烧箱蛇形管出水
图 4
24 MI FF - 24 MI
24 FF - 24
CG_2263 / 1007_1403
图 5
24 FF - 24 MI FF
24 - 24 MI
CG_2009 / 1006_1802
CG_2009 / 1006_1803
309
安装维修保护说明
71.03982.03 - CN
16. 进气-排气管的安装
型号 24 MI FF - 24 FF
我们所提供的配件可以帮助更加简单而灵活地安装锅
炉,后面将会对配件进行详细介绍。
该锅炉可以连接同轴、垂直或水平安装的进气-排气
管。 通过使用分离器,还可以将进气管和排气管进
行分离。
安装锅炉时必须使用锅炉厂家提供的配件。
警告: 为保证尽可能安全使用该设备,必须用固定架将排
气管良好地固定在墙上.
图 6
0503_0905/CG1638
… 同轴(同心)排气-进气管
这种类型的管子可以从建筑物外部和LAS类型的烟囱中,进行燃气的排气和阻燃空气的进气
90度的同轴角可以进行360度的旋转,所以排气-进气管能够从任何方向连接锅炉。 这个同轴角还可以作为另一
个同轴角的补角或者45度管的补角。
如果是向建筑物外排气,排气-进气管应伸出墙外至少
18mm,便于安放铝盖以及密封圈,避免渗水。
管子伸向墙外的最小坡度应为每米长度1cm。
•
使用一个90度的管子可以减少整个管道1m的长度
•
使用一个45度的管子可以减少整个管道0.5m的长度
第一个90度的角不计算在最大管道长度内。
图 7
0805_2901 / CG_2073
固定接口
锅炉型号
长度 (m)
进气隔片的使用
A
2.24 FF
0 ÷ 1
是
1 ÷ 5
不
310
安装维修保护说明
71.03982.03 - CN
16.1 水平式同轴烟管的安装
16.2 型号为C42烟囱的安装举例
16.3 垂直式同轴烟管的安装
垂直式共轴烟道可利用固定末端、耐候瓦及衬套等附件(均为选配件),实现在平屋顶或斜屋顶上的安装.
0503_0908/CG1641
L max = 4 m
L max = 4 m
L max = 2 m
L max = 3 m
0503_0907/CG1640
L max = 5 m
L max = 5 m
L max = 5 m
L max = 4 m
L max = 4 m
0512_2001
关于附件安装的详细说明,请参照随同附件的技术说明.
311
安装维修保护说明
71.03982.03 - CN
… 分离式排烟/进气管
该类型排烟/进气管可通过单独的排烟管将烟气排至室外,并通过单独的进气管从不同于排烟点的地方吸入空气。
分离烟道连接装置由排烟管连接头(100/80)和进气管连接头组成。
连接进气管前,需拆去连接口上的盖子,并用其上的螺丝和密封圈固定风管连接头.
90°弯头允许在任何方向将锅炉连接到排烟管或进气管上,因为可以360°旋转安装这种弯头。另外它还可以作为辅助弯
头,与管道或45°弯头连接.
* 每加装一个90°弯头,烟道总长度降低0.5米。
* 每加装一个45°弯头,烟道总长度降低0.25米.
注意:第一个90°弯头不计入烟道最大可用有效长度.
分离式烟道系统空气进气量的调整
为了优化锅炉性能及燃烧参数,需对分离
烟道系统进气量调节装置(吸入空气量调
节头)进行调整。此调节装置可安装于锅
炉的排烟管出口左侧或右侧的进气管上(
如图),根据排烟管和进气管的总长度,
转动此空气量调节头、通过调节其开度来
调整过量空气系数。
逆时针转动此调节头可减小过量空气系
数,反之增加过量空气系数。
要进一步优化锅炉的燃烧性能,需使用烟
气分析仪测量最大热输出时烟气中CO2
的含量,如果烟气分析仪测得的数值过
低,逐渐增加进入空气量以达到上表所
示的CO2浓度。
为了正确地安装此装置,也可参照相关
的指导说明书.
图 8
0809_0201 / CG_2045
烟道连接头
连接件
吸入空气量调节头
锅炉
型号
(L1+L2)
吸入空气量
调节头位置
CO2 %
G20
G31
2.24 FF
0 ÷ 4
1
7,2
8
4 ÷ 18
2
18 ÷ 30
3
312
安装维修保护说明
71.03982.03 - CN
16.5 水平分离式排气-进气管的安装举例
重要:确保烟道坡度由室内向室外降低,坡度不低于1%(每米不小于1厘米)。
但如果锅炉上装有冷凝水收集装置时,排烟管的坡度必须坡向锅炉
注意:对于C52型烟道安装方式,空气吸入口和烟气排出口禁止安装在相对的建筑外墙上,
并且空气进气管的最大长度不能超过10米
.
若排烟管超过6米,必须在排烟管出口处或靠近锅炉侧的排烟管上的适当位置安装冷凝水收集装置(作为选配件提供).
16.4 分离式烟道系统连接口的尺寸
0803_0603 / CG_2046
L max = 10 m
(L1 + L2) max = 30 m
1010_0102/CG1643
CG_1643_FR / 1010_0101
重要:若安装了独立的排烟管,应确保在烟管穿建筑物墙壁处做保温处理。(例如:利用玻璃棉)。
关于具体的安装说明,请参照随同附件提供的技术说明.
313
安装维修保护说明
71.03982.03 - CN
17. 电源连接 18. 室内温控器接线
*
如前节所述,打开电源端子排(图9);
*
拆除端子(1)和(2)上的跳线;
*
将室内温控器的两根接线穿过穿线孔,分别与端子(1)和(2)相接.
只有按照相关法规和规范的要求进行真实、正确的接地,才能保证设备的用电安全。
用随同提供的三芯电缆将锅炉连接到220V单相+接地电源上,并确保正确的极性连接。
须使用双极开关,其触点间隔至少3毫米。
若更换电源电缆,应选配HAR H05 VV-F’ 3x0.75mm
2
电缆,最大直径不超过8毫米.
…打开电源接线端子
* 断开锅炉电源;
* 拧下锅炉控制板上的两个固定螺丝;
* 翻下控制板;
* 打开外盖,露出接线区域(图9)。
电源端子排内配有2A速熔型保险丝(拉出黑色保险座即可检查或更换保险丝)。
重要:确保正确的极性连接L(火线)-N(零线).
(L)=火线(褐色)
(N)= 零线(蓝色)
= 接地线(黄色/绿色)
1)(2)=室内温控器连接端子
图 9
CG_2008 / 1009_0301
314
安装维修保护说明
71.03982.03 - CN
19. 换煤气模式
在获授权的技术服务人员调节下,该锅炉可以在天然气(G.20)和液化气(G.31)之间转换使用。
其操作顺序如下:
A) 更换主燃烧器的喷嘴和进气隔片(如果有的话);
B) 重新校准压力调节器的最大和最小压力。
A) 更换喷嘴
•
小心将主燃烧器从其座位上拆卸下来;
•
更换喷嘴时要安装固定到底部,以免泄漏煤气。 表2中显示了喷嘴的直径大小。
B) 压力调节器的校准
•
将压差计(最好是液体压差计)的正压接头接在气阀的压力接头(Pb)上(图10)。 只有针对带密封腔型号的锅炉时,
将压力计的负压接头连接到“T”,这样可以一起连接锅炉的补偿接头、气阀补偿接头(Pc)和压力计本身。 (还可以
将压力计连接到压力接头(Pb)进行测量,而不需要密封腔的前板);
如果没有按照说明测量燃烧箱的压力,其测得的压力值可能会出现错误,因为测量时没有考虑到密封腔内风机造成的负压。
B1) 额定功率的调节:
•
打开气阀,将锅炉设置为“冬季”状态;
•
打开进水阀,将水流量调至至少10升/分钟,或至少保证供热适宜。
•
取下调制器的盖子;
•
调节铜钉(a)直到压力显示符合表1的指示;
•
检查通过气阀(图10)压力接头(Pa)测量到的锅炉电源的动态压力是否正确(液化气37mbar或天然气20mbar)。
B2) 降低功耗的调节:
•
断开调制器的电源线,拧松钉子(b)直到压力值达到降低功耗的要求(见表1);
•
重新连接电源线;
•
装上调制器的盖子并拧紧。
B3) 最后检查
•
挂上指示牌,说明锅炉模式的更换,指出使用煤气的类型和校准值。
注意
煤气压力过低的情况下(低于17mbar),需拆除安装在气阀上的进气隔片(图10)并设置电路图参数F02=00(§21)。
图 10
气阀型号 SIGMA 845
b
a
0605_1502
CG_2273 / 1008_2602
煤气隔片
图 11
315
安装维修保护说明
71.03982.03 - CN
19.1
燃气阀的校准功能
为了简化燃气阀的校准操作,请按以下步骤在壁挂炉控制面板上直接设置
“
校准功
能
”
:
a)
同时按下
键和
键至少
6
秒钟以上
b)
大约
6
秒钟后,符号
开始闪烁;
c)
显示屏将交替显示
”
100
”
和供水温度,交替显示的间隔时间为一秒钟。此时,锅
炉在最大热输出比率下(
100%
)运行。
d)
分别按
+/-
键来选择锅炉的最大或最小的热输出比率,即
100%
或
0%
;
e)
调节图
10
中所示的
“
pmax/pmin
”
螺丝,根据表
1
中的数
值设置燃烧器的压力值。
要调整压力到最大功率,需扭动螺钉“Pmax”(图10),顺时针方向旋转升高燃
烧器压力或逆时针方向旋转降低压力。
要调整压力到最小功率,需扭动螺钉 “Pmin” (图10),逆时针方向旋转升高
燃烧器压力或顺时针方向旋转降低压力。
f)
分别按
+/-
键可逐渐增加或减小锅炉的热输出比率,从而设置实际所需要
的热输出比率 (增大或减小的步距为
1%
,即每按键一次,锅炉热输出比率变
化
1%
)。
按
键退出此功能。
注意:
进入此功能后,在无任何操作的情况下,
15
分钟后此功能将自动取消,电路板返回至激活此功能前的状态,或完成设置最
高温度前的状态。
消耗 15°C-1013 mbar
24 MI FF - 24 FF
24 - 24 MI
G20
G31
G20
G31
额定功率
2,80 m
3
/h
2,00 kg/h
2,80 m
3
/h
2,04 kg/h
降低功耗
1,12 m
3
/h
0,82 kg/h
1,12 m
3
/h
0,82 kg/h
p.c.i.
34,02 MJ/m
3
46,34 MJ/kg
34,02 MJ/m
3
46,34 MJ/kg
表 2
*1 mbar = 10.197 mm H
2
O
燃烧器喷嘴表
24 MI FF - 24 FF
24 - 24 MI
煤气类型
G20
G31
G20
G31
喷嘴直径 (mm)
1,28
0,77
1,18
0,77
燃烧器压力 (mbar*)
降低功耗
2,0
5,7
2,4
5,6
燃烧器压力 (mbar*)
额定功率
11,6
32,6
13,8
31,0
煤气隔片直径 (mm)
4,8
—
5,5
—
喷嘴数量
13
表 1
0805_2302 / 1002_1201
316
安装维修保护说明
71.03982.03 - CN
20. INFO显示功能
按“i”键至少 5 秒钟直至锅炉前面板的液晶显示屏上显示出锅炉的某个参数,此时显示屏可显示锅炉的运行信息.
* 分别按符号 下方的 (+/-) 键可上/下滚动显示下列锅炉信息:
A00:
当前卫生热水的温度 (°C);
A01:
当前的室外温度 (°C) (锅炉接有室外温度传感器时);
A02:
燃气调节阀的电流 (%) (燃气为天然气时,100% = 310 mA ;燃气为液化气时,100% = 310 mA);
A03:
功率等级 (%) (最大为 R);
A04:
采暖设置温度(°C) - - 如果连接了外置探测线,会显示“kt”曲线值(见26节)。
A05:
目前采暖供水温度 (°C);
A06:
卫生热水设置温度 (°C);
A07:
— —;
A08:
卫生热水流量值 (l/minx10) ;
A09:
锅炉发生的最后一个故障;
* 此功能在无操作情况下可持续的时间为3分钟按下按钮“i”至少5秒钟或关闭锅炉可中止此“INFO 功能
.
注意: 当“INFO”功能激活时, 显示屏上会交替显示 “A00”和锅炉供水温度值(见图12):
0605_2204 / CG_1808
图 12
317
安装维修保护说明
71.03982.03 - CN
21. 锅炉参数设置
设置锅炉的参数时,同时按下按键 (—
) 和按键 (
—
) 至少持续6秒。 功能启动时,显示器上会显示“F01”,对应
显示的参数值。
参数的修改:
* 翻看参数时按
(
+/—
);
* 修改每个参数时按
(
+/—
);
* 保存参数值时按
(
) 此时显示器上会显示“MEM”;
* 要退出修改参数模式而不保存修改,就按下 (i)键,显示器上会显示
“ESC”;
锅炉的设计完全符合欧洲的相关标准,特别是配有下述装备时:
*
空气压力开关(24 MI FF - 24 FF)
该装置用于确保只有在锅炉排烟顺畅的情况下,燃烧器才能点火。当下述故障之一发生时,如:
*
烟道被堵塞;
*
文丘里管被堵塞;
*
风机被堵塞;
*
文丘里管和空压开关之间的连接断开。
锅炉将锁定停机并报警,同时显示屏显示故障代码E03(见第10节)。
禁止将此安全装置取消或使其失效
22. 调节及安全装置
参数说明
工厂设置
24 MI FF
24 FF
24 MI
24
F01
锅炉类型
10 = 密封腔 - 20 = 开放室
10
10
20
20
F02
使用煤气的类型
01 = 天然气和液化气
02
F03
液压系统
00 = 快热装置
03 = 外置式燃烧箱装置
04 = 只采暖的装置
13 = 预热(24小时)
14 = 预热(1小时)
13
04
13
04
F04/ F05
可编程继电器设置1和2(见“服务”说明书)
00 = 没有相关功能
00
F06
采暖最高设定点(°C)
00 = 85°C - 01 = 45°C (功能无法使
用)
00
F07
水优先进入的设置
00
01
00
01
F08
采暖最大功率
(0-100%)
100
F09
卫生热水最大功率
(0-100%)
100
F10
采暖最低功率
(0-100%)
00
F11
重启前采暖等待时间
(00-10 )分钟 - 00=10 秒
03
F12
诊断 (见“服务”说明书)
--
F13-F14-F15 工厂设置
00
F16
抗军团菌功能 (F03=03)
00 = 功能关闭
55...67 = 功能打开 (设定点 °C)
00
F17
选择加热稳压器类型
00 = 液压稳压器
01 = 液压差压稳压器
00
F18
厂家信息
00
318
安装维修保护说明
71.03982.03 - CN
*
过热保护传感器
过热温度传感器位于采暖供水管上的。当主换热器出水温度过高,发生过热时,过热保护功能启动切断燃烧器的燃气供应,锅炉将故障
停机,只有排除了产生异常的原因后,才可能重新点火。
按下按钮 ( ), 至少2秒钟后松开,可使锅炉重新启动工作.
禁止将此安全装置取消或使其失效
*
火焰离子检测电极
火焰离子检测电极,确保燃气供气安全,防止不完全点火。(打开锅炉,从锅炉前方看,火焰点火及检测电极位于燃烧器的左侧),锅
炉在尝试3次点火后仍未点着火时,锅炉进入故障状态。
按下按钮 ( ), 至少2秒钟重新启动锅炉后,进入正常运行状态.
*
水压开关
该装置检测系统压力,当压力超过0.5 bar时,才允许锅炉正常点火工作。
*
采暖模式水泵延时循环
采暖模式下,当燃烧器由于室内温控器或其他干预停止燃烧时,水泵将自动延时运行3分钟。
*
卫生热水模式下水泵的延时循环
卫生热水模式下,无卫生热水需求后燃烧器停止燃烧后,控制系统会控制水泵延时运行30秒。
*
防冻保护(采暖及卫生热水系统)
锅炉电控系统内置“防冻保护”功能。
当供水温度低于5℃时, “防冻保护”功能启动,锅炉开始运行,点火燃烧直至将供水温度加热至30℃。
只有当锅炉的电源、气源连接正常,且系统压力正常时,该功能才能正常启动。
*
系统水循环异常保护(可能的水泵堵塞)
如果锅炉主回路内缺水或水不循环,锅炉停机,同时显示屏显示故障代码E25(见第10节)。
*
水泵防粘死功能
在采暖模式下,若锅炉连续24小时无供热需求,水泵将自动启动并运行10秒钟。
该功能只有在锅炉电源连接正常时才可运行。
*
三通阀防粘死功能
锅炉连续24小时无供热需求时,三通阀将自动完成一个完整的行程。
该功能只有在锅炉电源连接正常时才可运行。
*
安全阀(采暖回路)
在采暖管路系统中设有3 bar安全阀,在系统超压时,通过泄水降压来保护锅炉.
须将安全阀排水口接至专用的排水管或地漏处,严禁通过安全阀来排放采暖系统内的水,安全阀在发生超压泄水后,必须进 行检验,检验
合格方可继续使用.
注意: 即使卫生热水NTC传感器损坏,锅炉也可以提供卫生热水。在这种情况下,卫生热水温度将改由采暖NTC传
感器进行控制.
23. 点火电极及火焰检测电极的定位
图 13
9912070100
319
安装维修保护说明
71.03982.03 - CN
锅炉有两个专门设计的检测孔,用于燃烧效率及燃烧产物毒性的检测。
一个检测孔与排烟管相接(下称:排烟检测孔),用于测量燃烧效率和燃烧产物的毒性。
另一个检测孔与空气进气管相接(下称:进气检测孔),采用同轴烟道时,可检测烟气是否存在回流。
通过排烟管检测孔可测量下述参数:
*
烟气温度;
*
氧气(O2)或二氧化碳(CO2)的浓度;
*
一氧化碳(CO)的浓度。
进气温度必须通过进气检测孔测量,测量探头的插入深度约为3厘米。
注意: 关于额定功率的调整,请参见第19节 (C1)。
对于大气式壁挂炉,无现成的排烟检测孔,必须在烟管上开一个检测孔,此孔须开在距锅炉两倍烟管内径远的排烟管上。通过此
孔,可测量如下参数:
*
烟气温度;
*
氧气(O2)浓度;
*
一氧化碳(CO)的浓度。
进气温度必须在靠近锅炉进气点处测量。
必须确保调试人员在完成检测后重新密封检测孔,以保证锅炉的正常运行.
24. 燃烧参数的检测 25. 水泵性能曲线
这是一种高静压水泵 (GRUNDFOS
UPSO 15-50),适合安装于任何类型的
单双管采暖系统中。水泵带有自动排气
阀,可快速排除水中的空气.
图表 1
流量 l/h
流行 mH
2
O
流量 l/h
流行 mH
2
O
1009_2401
1009_2402
320
安装维修保护说明
71.03982.03 - CN
26. 室外温度传感器接线 27. 外置式燃烧箱的连接
型号 24 - 24FF
优先探水NTC探头已作为配件提供。
燃烧箱探头连接
该锅炉可连接外置式燃烧箱 如图14,连接燃烧箱的水路。 连接优先探水NTC探头至接线板M2的5-6端头。 NTC探头的感
应部位应当插入燃烧箱专门的槽内。 使用按键 +/- 进行水温的调节 (35 °C...60 °C)
+/–
.
注意:
检查参数 F03 = 03 (第21节)
锅炉电路系统内置气候补偿功能,连接室
外温度传感器(选配件)后,可实现气候
补偿控制。
锅炉电路板上有两个接线端子,端子上接
有红色的电线,电线上的另外一端包有防
护套,此端为室外温度传感器的连接端。
需要时将室外温度传感器控制线与这两根
电线相接。
锅炉接有室外温度传感器时,可通过按钮
+/-
选择“kt”曲线(图表2).
备注:如果是安装在一套中等大小的住房
内(具备良好的外围绝缘和暖气片系统)
,建议将温度曲线“kt”设置为“25”。
TM = 供水温度范围
Te = 室外温度
图表 2
TM
Te
“kt” 曲线
1012_0501
图 14
说明:
UB 燃烧箱
UR 采暖装置
V3V 外置式三通阀
M2 接线板
SB 优先探水燃烧箱探头
MR 供热出水
MB 燃烧箱出水
RR 供热/燃烧箱回水
CG_2085 / 1101_1701
321
安装维修保护说明
71.03982.03 - CN
为了优化锅炉效率,必须进行下述年度维保:
*
检查燃气和燃烧回路垫片的外观和气密性;
*
检查点火和火焰检测电极的状态及位置;
*
检查燃烧器状态,确保其固定牢固;
*
检查燃烧室内是否有杂质;
采用真空吸尘器进行清理;
*
检查燃气阀是否已校准;
*
检查采暖系统的压力;
*
检查膨胀水箱的压力;
*
检查风机是否运行正常;
*
确保烟道、风管畅通无阻;
警告
开始任何维护操作前,确保锅炉断开电源。
维保结束后,操作按钮,使锅炉各运行参数返回到初始状态.
28. 年度维保
可使用锅炉上的阀门给锅炉清空。
型号为MS 24 MI 和 MS 24 MI FF锅炉的橡胶阀在底部,而型号为MS 24 和 MS 24 FF的锅炉橡胶阀在泵机的旁边 (1 图 15).
用锅炉底部的橡胶阀给锅炉清空时,依照下面程序操作 (图 15):
- 关闭锅炉的截止阀门;
- 用8mm的角铁打开橡胶阀
- 清空锅炉;
- 用8mm的角铁关闭橡胶阀;
29. 锅炉排水电路
CG_2284 / 1009_2405
图 15
322
安装维修保护说明
71.03982.03 - CN
卫生热水过滤网以及采暖过滤网均安装于专门的可抽出的金属套筒内。采暖过滤网的金属套筒位于采暖回水管上
(见图16中的F),卫生热水过滤网的金属套筒位于自来水进水管上(见图16中的E)。按以下步骤清洗过滤网:
* 关掉锅炉电源;
* 关闭自来水进水阀
* 打开图16中的阀A,排掉采暖系统中的水;
* 如图所示,从过滤器上拆下固定卡子(1-E/F),并取出带有过滤网的金属套筒(2-E/F),注意不要用力;
* 在取出采暖过滤网之前,必须首先拆下三通阀上的电机(图16中的G(1)和(2));
* 清除过滤网上的杂质及沉积物;
* 将清洗干净的过滤网重新置于金属套筒内,并将金属套筒安装于原位,用卡子固定;
* 更换卫生热水NTC温度传感器,见图16D。
重要:更换/清理水力组件上的O形圈时,只能使用Molykote111润滑剂,不允许使用油脂作为润滑剂.
30. 清洗过滤网
如果卫生热水系统的热水出水管上装有专门的通断阀(按需求提供),则不必拆下卫生热水换热器即可清洗卫
生热水系统。
按以下步骤清洗除垢:
* 关闭自来水进水管上的通断阀
* 打开热水龙头排掉卫生热水系统中的水
* 关闭卫生热水出水管上的阀门
* 拆下图16中的固定卡子E(1)
* 拆下过滤器(图16中的E(2))。
如果没有安装关断阀,则必须按照下节所述拆下卫生热水换热器,并单独进行除垢。我们建议您也对卫生热水
换热器座及NTC温度传感器进行除垢清洗(图16中的D)。
我们建议使用Cillit FFW-AL或Beckinser HF-AL冲洗换热器及卫生热水系统.
31. 卫生热水系统的清洗除垢
323
安装维修保护说明
71.03982.03 - CN
可以使用一个角铁拆卸不锈钢板热水交换器,程序如下:
* 清空锅炉,如有局限,可使用专门的排气阀;
* 清空整个水路中的水;
* 将膨胀水箱到液压装置的连接管拧松;
* 移开采暖恒压器 (16H),但不要断开接线;
* 移开采暖恒压器后,腾出的空间就可取下前方可看见的用来固定热水交换器的两个钉子 (图 16B)。
* 清洁交换器后再将其放回原位;
* 重新拧紧膨胀水箱到液压装置的连接管;
* 将采暖恒压器放回原位
32. 热水交换器的拆卸
注意
分解单个水力部件时需特别小心。
不要使用带有毛刺等较为锋利的工具进行部件的拆卸,拆卸固定卡子时不要过分用力.
0808_2601 / CG_2078
图 16
324
安装维修保护说明
71.03982.03 - CN
33. 电路功能图
24 MI FF
说明:
1 带空气分离器的泵机
2 非回水阀
3 三通阀
4 三通阀电机
5 压力计
6 可拆卸热回路过滤器
7 止回阀
8 锅炉充气阀
9 可拆卸冷水过滤器
10 优先探水传感器
11 水温NTC探头
12 自动旁通止回阀
13 液压恒压器
14 锅炉排气阀
15 安全阀
16 钢板热水交换器
17 带煤气隔片的气阀
18 带喷嘴的煤气输送管道
19 采暖NTC探头
20 点火电极/火焰检测
21 安全温控器
22 气水换热器
23 烟囱
24 风机
25 文杜里
26 正压接头
27 负压接头
28 空气恒压器
29 燃烧箱
30 膨胀水箱
图 17
供热出水
出水
煤气 进水
供热回水
CG_2269 / 1006_1805
325
安装维修保护说明
71.03982.03 - CN
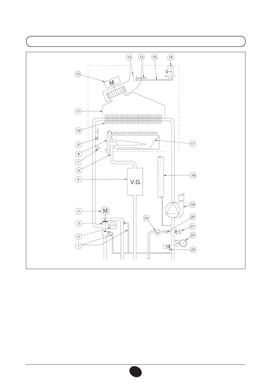
24 MI
说明:
1 带空气分离器的泵机
2 非回水阀
3 三通阀
4 三通阀电机
5 压力计
6 可拆卸冷水过滤器
7 止回阀
8 锅炉充气阀
9 可拆卸冷水过滤器
10 优先探水传感器
11 水温NTC探头
12 自动旁通止回阀
13 液压恒压器
14 锅炉排气阀
15 安全阀
16 钢板热水交换器
17 带煤气隔片的气阀
18 带喷嘴的煤气输送管道
19 采暖NTC探头
20 点火电极/火焰检测
21 安全温控器
22 气水换热器
23 烟囱
24 烟气温控器
25 燃烧箱
26 膨胀水箱
图 18
供热出水
出水
煤气 进水
供热回水
CG_2270 / 1006_1806
326
安装维修保护说明
71.03982.03 - CN
24 FF
说明:
1. 带止回阀的自动旁通
2. 液压恒压器
3. 三通阀
4. 三通阀电机
5. 带煤气隔片的气阀
6. 带喷嘴的煤气输送管道
7. 采暖NTC探头
8. 点火电极/火焰检测
9. 安全温控器
10. 气水换热
11. 烟囱
12. 风机
13. 文杜里
14. 正压接头
15. 负压接头
16. 空气恒压器
17. 燃烧箱
18. 膨胀水箱
19. 带空气分离器的泵机
20. 非回水阀
21. 锅炉排气阀
22. 压力计
23. 安全阀
24. 止回阀
图 19
供热出水
燃烧箱
出水
煤气 进水
供热回水
CG_2267 / 1006_2102
327
安装维修保护说明
71.03982.03 - CN
24
说明:
1. 带止回阀的自动旁通
2. 液压恒压器
3. 三通阀
4. 三通阀电机
5. 带煤气隔片的气阀
6. 带喷嘴的煤气输送管道
7. 采暖NTC探头
8. 点火电极/火焰检测
9. 安全温控器
10. 气水换热
11. 烟囱
12. 烟气温控器
13. 燃烧箱
14. 膨胀水箱
15. 带空气分离器的泵机
16. 非回水阀
17. 锅炉排气阀
18. 压力计
19. 安全阀
20. 止回阀
图 20
供热出水
燃烧箱
出水
煤气 进水
供热回水
CG_2268 / 1006_2103
328
安装维修保护说明
71.03982.03 - CN
34. 连接器的连接图
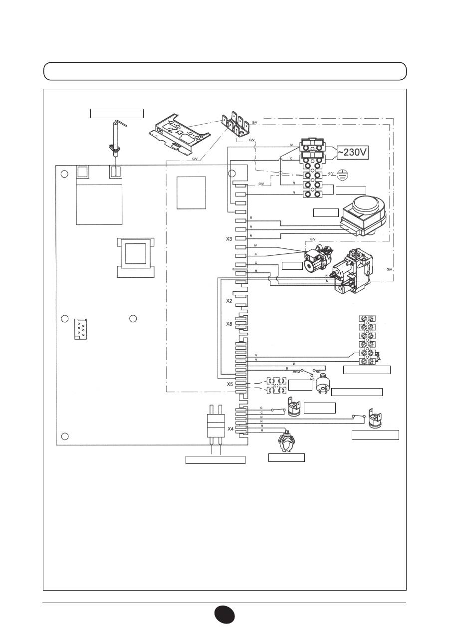
24 MI FF
接线颜色
C = 天蓝色
M= 棕色
N = 黑色
R = 红色
G/V = 黄色/绿色
B = 白色
V = 绿色
CG_2075 / 1001_1806
检测/点火电极
温控器
三通阀
泵机
风机
优先探水传感器
水温NTC探头
外置型探头
液压恒压器
安全温控器
空气恒压器
采暖NTC探头
编程
329
安装维修保护说明
71.03982.03 - CN
24 MI
CG_2076 / 1001_1807
接线颜色
C = 天蓝色
M= 棕色
N = 黑色
R = 红色
G/V = 黄色/绿色
B = 白色
V = 绿色
检测/点火电极
温控器
三通阀
泵机
优先探水传感器
水温NTC探头
外置型探头
液压恒压器
安全温控器
采暖NTC探头
编程
风机
330
安装维修保护说明
71.03982.03 - CN
24 FF
接线颜色
C = 天蓝色
M= 棕色
N = 黑色
R = 红色
G/V = 黄色/绿色
B = 白色
V = 绿色
检测/点火电极
温控器
接线板 M2
泵机
外置型探头
液压恒压器
安全温控器
空气恒压器
风机
CG_2271 / 1006_1603
三通阀
采暖NTC探头
编程
331
安装维修保护说明
71.03982.03 - CN
24
接线颜色
C = 天蓝色
M= 棕色
N = 黑色
R = 红色
G/V = 黄色/绿色
B = 白色
V = 绿色
检测/点火电极
温控器
接线板 M2
泵机
外置型探头
液压恒压器
安全温控器
三通阀
采暖NTC探头
编程
CG_2272 / 1010_2101
风机
Cod. 71.03982.03
Ed. 1 - 03/11
DE DIETRICH THERMIQUE
57, rue de la Gare F-67580 MERTZWILLER - BP30
35. 技术参数
型号 MS
24 MI FF
24 FF
24 MI
24
类别
II2H3P
II2H3P
II2H3P
II2H3P
最大热输入
kW
25,8
25,8
26,3
26,3
最小热输入
kW
10,6
10,6
10,6
10,6
额定热输出
kW
24
24
24
24
kcal/h
20.600
20.600
20.600
20.600
最小热输出
kW
9,3
9,3
9,3
9,3
kcal/h
8.000
8.000
8.000
8.000
92/42/EEC能效等级
—
★★★
★★★
★★
★★
采暖系统最高工作压力
bar
3
3
3
3
膨胀水箱容量
l
6
6
6
6
膨胀水箱压力
bar
1
1
1
1
卫生热水系统最高工作压力
bar
8
—
8
—
卫生热水系统最低工作压力
bar
0,15
—
0,15
—
卫生热水系统的最小水流量
l/min
2,0
—
2,0
—
∆
T=25 °C时卫生热水的产量
l/min
13,7
—
13,7
—
∆
T=35 °C时卫生热水的产量
l/min
9,8
—
9,8
—
特殊出水量 (*)
l/min
12
—
12
—
采暖系统温度调节范围
°C
30/85
30/85
30/85
30/85
卫生热水系统温度调节范围
°C
35/60
35/60***
35/60
35/60***
类型
— C12-C32-C42-C52-C82-B22
B
11BS
B
11BS
同轴烟道排烟管直径
mm
60
60
-
-
同轴烟道进气管直径
mm
100
100
-
-
分离式烟道排烟管直径
mm
80
80
-
-
分离式烟道进气管直径
mm
80
80
-
-
最大烟气流量
mm
-
-
125
125
最小烟气流量
kg/s
0,014
0,014
0,020
0,020
最高烟气温度
kg/s
0,014
0,014
0,018
0,018
最低烟气温度
°C
146
146
110
110
NOx 等级
°C
116
116
85
85
燃气类型
—
3
3
3
3
—
G20
G20
G20
G20
天然气供气压力
—
G31
G31
G31
G31
液化石油气供气压力
mbar
20
20
20
20
电源电压
mbar
30
30
30
30
电源频率
V
230
230
230
230
额定电功率
Hz
50
50
50
50
W
130
130
80
80
净重
kg
33
32
29
28
外形尺寸
高 mm
730
730
730
730
宽 mm
400
400
400
400
厚 mm
299
299
299
299
防水防潮等级 (**)
IP X5D
IP X5D
IP X5D
IP X5D
(*) 符合规范 EN 625的要求 - (**) 符合规范 EN 60529的要求 - (***) 与外部锅炉
由于DE DIETRICH公司一直以来坚持其产品的不断改进,因此保留未经事先通知而随时对本文件所含信息进行修改的权利。本文件发布的内
容仅供参考,不可作为与第三方签署的合同考虑.
Оглавление
- SOMMAIRE
- 5. DESCRIPTION DES TOUCHES (ÉTÉ – HIVER – CHAUFFAGE SEULEMENT – ARRÊT)
- •
- 28. RACCORDEMENT D’UN BALLON SEPARE AVEC UN MOTEUR VANNE 3 VOIES
- 5. DESCRIZIONE TASTO (Estate - Inverno - Solo riscaldamento - Spento)
- •
- 5. DESCRIPTION OF BUTTON (Summer - Winter - Heating only - Off)
- •
- 5. DESCRIPCIÓN DE LA TECLA (Verano - Invierno - Sólo calefacción - Apagado)
- •
- 5. ОПИСАНИЕ НА БУТОН (Лято – Зима – Само отопление – Изключен)
- 8. СМЯНА НА ВИДА ГАЗ
- 13. УКАЗАНИЯ ПРЕДИ МОНТАЖА
- 15. РАЗМЕРИ НА КОТЕЛА
- •
- 28. ГОДИШЕН ПРЕГЛЕД
- SPIS TREŚCI
- 1. OSTRZEŻENIA PRZED ZAINSTALOWANIEM
- 3. ROZRUCH KOTŁA
- 4. REGULACJA TEMPERATURY POKOJOWEJ I CIEPŁEJ WODY UŻYTKOWEJ
- 7. WYŁĄCZENIE KOTŁA 8. ZMIANA GAZU
- 9. WYDŁUŻONY OKRES WYŁĄCZENIA INSTALACJI. OCHRONA PRZED ZAMARZANIEM
- 12. UWAGI OGÓLNE 13. WYMAGANIA INSTALACYJNE
- 14. UWAGI INSTALACYJNE
- 15. WYMIARY KOTŁA
- 16. INSTALOWANIE PRZEWODÓW POWIETRZNO-SPALINOWYCH
- 17. PODŁĄCZENIE ELEKTRYCZNE 18. PODŁĄCZENIE TERMOSTATU POKOJOWEGO
- 19. SPOSÓB ZMIANY RODZAJU GAZU
- •
- 21. USTAWIENIE PARAMETRÓW
- 23. USTAWIENIE ELEKTRODY ZAPŁONOWEJ I JONIZACYJNEJ PŁOMIEŃ
- 24. KONTROLA PARAMETRÓW SPALANIA 25. CHARAKTERYSTYKA NATĘŻENIA PRZEPŁYWU/WYSOKOŚCI PODNOSZENIA
- 26. PODŁĄCZENIE CZUJNIKA ZEWNĘTRZNEGO
- 28. KONSERWACJA ROCZNA
- 30. CZYSZCZENIE FILTRÓW
- 32. DEMONTAŻ WYMIENNIKA WODA-WODA
- 33. SCHEMAT FUNKCJONALNY OBWODÓW
- 34. SCHEMAT POŁACZEŃ ELEKTRYCZNYCH
- 35. CHARAKTERYSTYKA TECHNICZNA
- CUPRINS
- 1. AVERTISMENTE ANTERIOARE INSTALĂRII
- 3. PUNEREA ÎN FUNCŢIUNE A CENTRALEI TERMICE
- 4. REGLAREA TEMPERATURII AMBIANTE ŞI A TEMPERATURII APEI MENAJERE
- 7. OPRIREA CENTRALEI TERMICE 8. SCHIMBAREA TIPULUI DE GAZ
- 10. INTRAREA ÎN FUNCŢIUNE A DISPOZITIVELOR DE SIGURANŢA
- 12. AVERTISMENTE GENERALE 13. AVERTISMENTE ANTERIOARE INSTALĂRII
- 13. INSTALLAZIONE DELLA CALDAIA 14. INSTALAREA CENTRALEI TERMICE
- 14. DIMENSIONI CALDAIA 15. DIMENSIUNILE CENTRALEI TERMICE
- 16. INSTALAREA CONDUCTELOR DE EVACUARE GAZE ARSE ŞI ADMISIE AER
- 17. CONECTAREA LA REŢEAUA ELECTRICĂ 18. CONECTAREA TERMOSTATULUI AMBIENTAL
- 19. MODALITĂŢI DE SCHIMBARE A TIPULUI DE GAZ
- 20. VIZUALIZAREA PARAMETRILOR PE AFIŞAJ (FUNCŢIE “INFO”)
- 21. SETAREA PARAMETRILOR
- 23. POZIŢIONAREA ELECTRODULUI DE APRINDERE ŞI DETECTARE A FLĂCĂRII
- 24. VERIFICAREA PARAMETRILOR DE COMBUSTIE 25. PERFORMANŢE DEBIT/ÎNĂLŢIME DE POMPARE
- 26. CONECTAREA SONDEI EXTERNE
- 28. ÎNTREŢINEREA ANUALĂ
- 30. CURĂŢAREA FILTRELOR
- 32. DEMONTAREA SCHIMBĂTORULUI APĂ-APĂ
- 33. DIAGRAMĂ FUNCŢIONALĂ CIRCUITE
- 34. DIAGRAMĂ CUPLARE CONECTORI
- 35. CARACTERISTICI TEHNICE
- ΠΕΡΙΕΧΟΜΕΝΑ
- 1. ΟΔΗΓΙΕΣ ΠΡΙΝ ΤΗΝ ΕΓΚΑΤΑΣΤΑΣΗ
- 3. ΘΕΣΗ ΣΕ ΛΕΙΤΟΥΡΓΙΑ ΤΟΥ ΛΕΒΗΤΑ
- 4. ΡΥΘΜΙΣΗ ΤΗΣ ΘΕΡΜΟΚΡΑΣΙΑΣ ΠΕΡΙΒΑΛΛΟΝΤΟΣ ΚΑΙ ΤΟΥ ΝΕΡΟΥ ΟΙΚΙΑΚΗΣ ΧΡΗΣΗΣ
- 7. ΣΒΗΣΙΜΟ ΤΟΥ ΛΕΒΗΤΑ 8. ΑΛΛΑΓΗ ΑΕΡΙΟΥ
- 10. ΕΝΔΕΙΞΕΙΣ-ΕΠΕΜΒΑΣΗ ΣΥΣΤΗΜΑΤΩΝ ΑΣΦΑΛΕΙΑΣ
- 12. ΓΕΝΙΚΕΣ ΠΛΗΡΟΦΟΡΙΕΣ 13. ΟΔΗΓΙΕΣ ΠΡΙΝ ΤΗΝ ΕΓΚΑΤΑΣΤΑΣΗ
- 13. INSTALLAZIONE DELLA CALDAIA 14. ΕΓΚΑΤΑΣΤΑΣΗ ΤΟΥ ΛΕΒΗΤΑ
- 14. DIMENSIONI CALDAIA 15. ΔΙΑΣΤΑΣΕΙΣ ΛΕΒΗΤΑ
- 16. ΕΓΚΑΤΑΣΤΑΣΗ ΑΓΩΓΩΝ ΑΠΑΓΩΓΗΣ - ΑΝΑΡΡΟΦΗΣΗΣ
- 17. ΗΛΕΚΤΡΙΚΗ ΣΥΝΔΕΣΗ 18. ΣΥΝΔΕΣΗ ΤΟΥ ΘΕΡΜΟΣΤΑΤΗ ΔΩΜΑΤΙΟΥ
- 19. ΤΡΟΠΟΣ ΑΛΛΑΓΗΣ ΑΕΡΙΟΥ
- 20. ΑΠΕΙΚΟΝΙΣΗ ΠΑΡΑΜΕΤΡΩΝ ΣΤΗΝ ΟΘΟΝΗ (ΛΕΙΤΟΥΡΓΙΑ «INFO»)
- 21. ΡΥΘΜΙΣΗ ΠΑΡΑΜΕΤΡΩΝ
- 23. ΤΟΠΟΘΕΤΗΣΗ ΗΛΕΚΤΡΟΔΙΟΥ ΑΝΑΦΛΕΞΗΣ ΚΑΙ ΑΝΙΧΝΕΥΣΗΣ ΦΛΟΓΑΣ
- 24. ΕΛΕΓΧΟΣ ΠΑΡΑΜΕΤΡΩΝ ΚΑΥΣΗΣ 25. ΧΑΡΑΚΤΗΡΙΣΤΙΚΑ ΠΑΡΟΧΗΣ / ΜΑΝΟΜΕΤΡΙΚΟΥ ΥΨΟΥΣ ΣΤΗΝ ΠΛΑΚΑ
- 26. ΣΥΝΔΕΣΗ ΤΟΥ ΕΞΩΤΕΡΙΚΟΥ ΑΙΣΘΗΤΗΡΑ
- 28. ΕΤΗΣΙΑ ΣΥΝΤΗΡΗΣΗ
- 30. ΚΑΘΑΡΙΣΜΟΣ ΤΩΝ ΦΙΛΤΡΩΝ
- 32. ΑΠΟΣΥΝΑΡΜΟΛΟΓΗΣΗ ΕΝΑΛΛΑΚΤΗ ΝΕΡΟΥ-ΝΕΡΟΥ
- 33. ΛΕΙΤΟΥΡΓΙΚΟ ΣΧΕΔΙΟ ΚΥΚΛΩΜΑΤΩΝ
- 34. ΣΧΕΔΙΟ ΣΥΝΔΕΣΗΣ ΣΥΝΔΕΣΜΩΝ
- 35. ТЕХНИЧЕСКИ ХАРАКТЕРИСТИКИ
- 5. ОПИСАНИЕ КНОПКИ (Лето – Зима – Только Отопление – Выключено)
- •
- 5. 锅炉运行模式选择
- 错误信息及故障表

