De Dietrich MS 24 FF – страница 10
Инструкция к Водонагревателю De Dietrich MS 24 FF
181
71.03982.03 - PL
INSTRUKCJE PRZEZNACZONE DLA INSTALATORA
19. SPOSÓB ZMIANY RODZAJU GAZU
Kocioł może być przystosowany do użytku z gazem GZ-50, GZ-41,5, GZ-35 oraz gazem płynnym. Przezbrojenia dokonuje autoryzowany
Instalator lub Serwis Techniczny
Należy wykonać poniższe czynności w podanej kolejności:
A) wymiana dysz głównego palnika i kryzy gazu (tam, gdzie przewidziano); B) nowe max i min ustawienie regulatora ciśnienia.
A) Wymiana dysz
• ostrożnie wykręcić główny palnik z gniazda;
• wymienić dysze palnika, pamiętać, aby je dokładnie docisnąć dla zapewnienia szczelności. Średnica dysz jest podana w tabeli 2.
B) Ustawienie regulatora ciśnienia
• podłączyć króciec dodatni manometru różnicowego do króćca pomiarowego zaworu gazowego (
Pb) – rys.10. W przypadku kotłów
z zamkniętą komorą spalania drugi króciec manometru podłaczyć do króćca pomiarowego zaworu gazowego (Pc) i za pomocą
rozgałęźnika do króćca pomiarowego komory spalania. W przypadku rozszczelnienia komory spalania monometr można podłączyć
tylko do króćców pomiarowych Pb i Pc.
Pomiar ciśnienia w palnikach wykonywany w sposób odmienny od tych opisanych może okazać się nieprawdziwy ponieważ nie
obejmowałby podciśnienia wytworzonego przez wentylator w szczelnej komorze.
B1) Regulacja mocy znamionowej:
• otworzyć kurek gazu i ustawić kocioł na Zima;
• otworzyć kurek z wodą użytkową i ustawić natężenie przepływu na co najmniej 10 litrów na minutę lub w każdym razie upewnić się
czy kocioł pracuje z mocą maksymalną.
• ściągnąć pokrywkę modulatora;
• wyregulować mosiężną śrubę (a) aż do uzyskania wartości ciśnienia wskazanych w tabeli 1;
• sprawdzić czy ciśnienie dynamiczne zasilania kotła, mierzone w gnieździe ciśnienia (Pa) zaworu gazu (rysunek 10) jest prawidłowe
(37 mbar dla gazu propan lub 20 mbar dla gazu ziemnego).
B2) Regulacja mocy zredukowanej:
• odłączyć przewód zasilający modulatora i odkręcać śrubę (b) aż do osiągnięcia wartości ciśnienia odpowiadającej mocy zredukowanej
(patrz tabela 1);
• z powrotem podłączyć przewód;
• założyć pokrywkę modulatora i zaplombować.
B3) Kontrole końcowe
• założyć dodatkową tabliczkę, w wyposażeniu zmiany gazu, z podanym typem gazu oraz wykonaną kalibracją.
Rysunek 10
zawór gazu mod.
SIGMA 845
b
a
0605_1502
Rysunek 11
CG_2273 / 1008_2602
przepona gazu
UWAGA
W przypadku, gdy ciśnienie zasilania metanu jest za niskie (mniej niż 17 mbar) usunąć przeponę gazu zamontowaną nad zaworem gazu
(rys. 10) i ustawić parametr F02=00 karty elektronicznej (§ 21).
182
71.03982.03 - PL
INSTRUKCJE PRZEZNACZONE DLA INSTALATORA
19.1 FUNKCJA KALIBRACJI ZAWORU GAZOWEGO
Celem ułatwienia operacji kalibracji zaworu gazowego możliwe jest wybranie funkcji kali-
bracji bezpośrednio na panelu sterującym kotła wykonując następujące czynności:
a) nacisnąć jednocześnie przycisk
i przycisk
przez min. 6 sekund.
b) Po 6 sekundach symbole
zaczną pulsować
c) Wyświetlacz pokazuje co 1 sek „100” i temperaturę zasilania. W tej fazie kocioł pracuje
na max.moc grzewczą (100%).
d) Przyciskając przyciski +/- możliwe jest wybranie natychmiast (100% lub 0%) moc
kotła
e) Wyregulować śrubą „Pmax/Pmin” (rys 10)aż do uzyskania wartości ciśnienia pokazanego
w tabeli 1.
f) Naciskając przyciski +/- możliwe jest stopniowe wybranie żądanej mocy ( interwał
= 1%)
Aby wyjść z tej funkcji, nacisnąć przycisk .
Uwaga
Funkcja ta wyłączy się automatycznie po 15 minutach, płytka elektroniczna wróci do pracy
z okresu przed włączeniem tej funkcji lub po osiągnięciu zaprogramowanej temperatury.
Zużycie 15°C-1013 mbar
24 MI FF - 24 FF
24 - 24 MI
H (G20)
Lw (G27) Ls (G2.350) LPG (G31)
H (G20)
Lw (G27) Ls (G2.350) LPG (G31)
Moc znamionowa
2,80 m
3
/h
3,33 m
3
/h
3,79 m
3
/h
2,00 kg/h
2,80 m
3
/h
3,39 m
3
/h
3,86 m
3
/h
2,04 kg/h
Moc zredukowana
1,12 m
3
/h
1,37 m
3
/h
1,56 m
3
/h
0,82 kg/h
1,12 m
3
/h
1,37 m
3
/h
1,56 m
3
/h
0,82 kg/h
p.c.i.
34,02 MJ/m
3
27,89 MJ/m
3
24,49 MJ/m
3
46,34 MJ/kg
34,02 MJ/m
3
27,89 MJ/m
3
24,49 MJ/m
3
46,34 MJ/kg
Tabela 2
* 1mbar = 10,197 mmH
2
O
Tabela dysz palnika
24 MI FF - 24 FF
24 - 24 MI
typ gazu
H (G20)
Lw (G27)
Ls (G2.350) LPG (G31)
H (G20)
Lw (G27)
Ls (G2.350) LPG (G31)
średnica dysz (mm)
1,28
1,45
1,70
0,77
1,18
1,45
1,70
0,77
ciśnienie palnika (mbar*)
MOC ZREDUKOWANA
2,0
2,0
2,0
5,7
2,4
2,20
1,50
5,6
ciśnienie palnika (mbar*)
MOC ZNAMIONOWA
11,6
11,7
10,3
32,6
13,8
11,7
9,0
31,0
Średnica przepony gazu (mm)
4,8
—
—
—
5,5
—
—
—
Ilość dysz
13
Tabela 1
0805_2302 / 1002_1201
183
71.03982.03 - PL
INSTRUKCJE PRZEZNACZONE DLA INSTALATORA
20. WIZUALIZACJA PARAMETRÓW NA WYŚWIETLACZU (FUNKCJA „INFO”)
Naciskać przez co najmniej 5 sekund klawisz „i” w celu zwizualizowania na na wyświetlaczu znajdującym się na frontowym panelu
kotła informacji na temat funkcjonowania kotła.
•
Działać na klawiszach (
+/-
) w celu zwizualizowania następujących informacji:
A00: wartość aktualna (°C) temperatury wody użytkowej (c.w.u.);
A01: wartość aktualna (°C) temperatury zewnętrznej (z podłączoną sondą zewnętrzną);
A02: wartość (%) prądu w modulatorze (100% = 310 mA METAN – 100% = 310 mA LPG);
A03: wartość (%) zakresu mocy (MAX R);
A04: wartość (°C) temperatury ustawionej ogrzewania;
A05: wartość aktualna (°C) temperatury zadanej ogrzewania;
A06: wartość (°C) temperatury ustawionej c.w.u.;
A07: — — ;
A08: wartość (l/minx10) natężenie przepływu wody użytkowej;
A09: ostatni błąd, który wystąpił w kotle.
•
Ta funkcja pozostaje aktywna przez 3 minuty. Możliwe jest wcześniejsze przerwanie funkcji „INFO” naciskając przez co najmniej
5 sekund klawisz (i) lub odłączając napięcie w kotle.
ADNOTACJA:
gdy funkcja “INFO” jest aktywna, na wyświetlaczu (rysunek 12) wyświetla się napis „ A00”, który miga na
zmianę z wartością temperatury zadanej kotła.
0605_2204 / C
G_1808
Rysunek 12
184
71.03982.03 - PL
INSTRUKCJE PRZEZNACZONE DLA INSTALATORA
21. USTAWIENIE PARAMETRÓW
W celu ustawienia parametrów kotła, nacisnąć jednocześnie klawisz (
–
) i klawisz (
–
) przez co najmniej 6 sekund. Gdy funkcja
zostanie uaktywniona, na wyświetlaczu pokaże się napis „F01”, który miga na zmianę z wartością parametru.
Modyfikacja parametrów
• Do przeglądu parametrów posłużyć się klawiszami (
+/–
);
• W celu zmodyfikowania jednego parametru posłużyć się klawiszami (
+/–
);
• W celu zapamiętania wartości, nacisnąć klawisz
(
)
; wyświetlacz pokazuje napis „MEM”;
• W celu wyjścia z funkcji bez jest zapamiętania, nacisnąć klawisz (
i), wyświetlacz pokazuje napis „ESC”.
22. URZĄDZENIA REGULACYJNE I BEZPIECZEŃSTWA
Kocioł został wyprodukowany w sposób spełniający wszystkie wymogi normatyw europejskich, przede wszystkim jest wyposażony w:
• Presostat powietrza (model 24 MI FF - 24 FF)
To urządzenie umożliwia włączenie głównego palnika tylko przy pełnej sprawności układu odprowadzania spalin.
Przy wystąpieniu jednej z poniższych anomalii:
•
zatkanie końcówki wylotowej
•
zatkanie złącza Venturiego
•
zablokowanie wentylatora
•
podłączenie złącza Venturiego - przerwany presostat
Kocioł pozostaje w stanie awarii sygnalizując kod błędu E03 (patrz tabela paragraf 10).
• Czujnik ciągu kominoweg (model 24 MI - 24)
Czujnik ciagu kominowego umiejscowiony jest z kewej strony skrzynki przerywacza ciągu i przerywa dopływ gazu w przypadku
zatkania komina i/lub braku ciągu.
W tych warunkach kocioł zostaje zablokowany sygnalizując kod błędu E03 (paragraf 10).
Aby można było natychmiast ponownie włączyć, po usunięciu przyczyny interwencji, możliwe jest ponowne włączenie naciskając
klawisz ( ), przez co najmniej 2 sekundy.
Zabrania się wyłączania tego urządzenia zabezpieczającego.
Opis parametrów
Ustawienia fabryczne
24 MI FF
24 FF
24 MI
24
F01
Typ kotła
10 = komora szczelna - 20 = komora otwarta
10
10
20
20
F02
Rodzaj używanego gazu
00 = METAN
01 = LPG
02 = METAN z przeponą gazu
02
F03
System hydrauliczny
00 = kocioł dwufunkcyjny
03 = kocioł z podgrzewaczem zewnętrznym
04 = kocioł tylko dla ogrzewania
13 = Wstępne podgrzewanie (24 godziny)
14 = Wstępne podgrzewanie (1 godzina)
13
04
13
04
F04/ F05
Ustawienie programowanego przekaźnika 1 i 2 (Patrz instrukcje SERVICE)
00 = żadna funkcja przypisana
00
F06
Ustawienie maksymalnego setpoint (°C ) ogrzewania
00 = 85°C - 01 = 45°C (funkcja nieużywana)
00
F07
Konfiguracja wejścia pierwszeństwo obieg c.w.u.
00
01
00
01
F08
Max moc w obiegu c.o. (0-100%)
100
F09
Max moc w obiegu c.w.u. (0-100%)
100
F10
Min moc w obiegu c.o. (0-100%)
00
F11
Czas oczekiwania w obiegu c.o. przed nowym rozruchem
(00-10 minut) - 00=10 sekund
03
F12
Diagnostyka (Patrz instrukcje SERVICE)
--
F13-F14-F15 Ustawienia fabryczne
00
F16
Funkcja Anti-Legionella
(z F03=03)
00 = funkcja wyłączona
55...67 = funkcja włączona (setpoint °C)
00
F17
Wybró typu presostatu ogrzewania
00 = presostat hydrauliczny
01 = hydrauliczny presostat różnicowy
00
F18
Informacja producenta
00
185
71.03982.03 - PL
INSTRUKCJE PRZEZNACZONE DLA INSTALATORA
• Termostat bezpieczeństwa
To urządzenie, którego czujnik znajduje się na zasilaniu obiegu c.o., przerywa dopływ gazu do palnika w przypadku przegrzania wody
w obiegu głównym. W tych warunkach kocioł zostaje zablokowany i dopiero po usunięciu przyczyny interwencji zabezpieczenia
można powtórzyć rozruch naciskając klawisz ( ), przez co najmniej 2 sekundy.
Zabrania się wyłączania tego urządzenia zabezpieczającego.
• Jonizacyjny detektor płomienia
Elektroda wykrywająca płomień, która gwarantuje bezpieczeństwo w przypadku braku gazu lub niepełnego zapłonu głównego palnika.
W tych warunkach kocioł zostaje zablokowany po 3 próbach.
W celu przywrócenia normalnych warunków funkcjonowania, należy nacisnąć klawisz ( ), przez co najmniej 2 sekundy.
• Hydrauliczny Presostat
To urządzenie umożliwia włączenie głównego palnika tylko wtedy, gdy ciśnienie instalacji przekracza 0,5 bara.
• Czujnik ciśnienia wody
To urządzenie umożliwia włączenie głównego palnika tylko wtedy, gdy ciśnienie instalacji przekracza 0,5 bara.
• Opóźniona cyrkulacja pompy obwodu c.o.
Opóźniona cyrkulacja pompy uzyskana elektronicznie trwa 180 sekund i jest aktywowana w funkcji ogrzewania, po wyłączeniu
palnika z powodu interwencji termostatu pokojowego.
• Opóźniona cyrkulacja pompy obwodu c.w.u.
Opóźniona cyrkulacja pompy, włączana elektronicznie, trwa 30 sekund i zostaje załączona, w funkcji c.w.u. po zgaśnięciu głównego
palnika, na skutek interwencji sondy.
• Urządzenie chroniące przed zamarzaniem (obieg c.o. i c.w.u.)
Sterowanie elektroniczne kotła jest wyposażone w funkcję ochrony przed zamarzaniem obiegu c.o., która przy zadanej temperaturze
wody doprowadzanej do urządzenia niższej niż 5 °C powoduje włączenie palnika aż do osiągnięcia wartości równej 30 °C.
Ta funkcja jest operatywna jeżeli kocioł jest zasilany elektrycznie, jeżeli występuje gaz i jeżeli występuje zalecane ciśnienie instalacji.
• Brak cyrkulacji wody w głównym obwodzie (prawdopodobnie zablokowana pompa)
W przypadku braku lub niedostatecznej cyrkulacji wody w głównym obwodzie, kocioł zostaje zablokowany sygnalizując kod błędu
E25 (paragraf 10).
• Przeciwblokada pompy
W przypadku braku zapotrzebowania na ciepło przez okres 24 kolejnych godzin, pompa uruchamia się automatycznie na 10 sekund.
Ta funkcja działa, gdy kocioł jest zasilany elektrycznie.
• Przeciwblokada zaworu trzydrożnego
W przypadku braku zapotrzebowania na ciepło przez okres 24 kolejnych godzin, zawór trzydrożny wykonuje kompletną komutację.
Ta funkcja działa, gdy kocioł jest zasilany elektrycznie.
• Hydrauliczny zawór bezpieczeństwa (obieg c.o.)
To urządzenie, ustawione na 3 bary, służy obiegowi c.o.
Zaleca się przyłączenie zaworu bezpieczeństwa do odpływu syfonowego. Zabrania się używania zaworu bezpieczeństwa do opróżniania
obwodu c.o..
ADNOTACJA: w przypadku ewentualnego uszkodzenia sondy NTC obwodu c.w.u., produkcja ciepłej wody użytkowej jest w każdym
razie zapewniona. Kontrola temperatury w tym wypadku jest wykonywana przez sondę doprowadzenia.
23. USTAWIENIE ELEKTRODY ZAPŁONOWEJ I JONIZACYJNEJ PŁOMIEŃ
Rysunek 13
9912070100
186
71.03982.03 - PL
INSTRUKCJE PRZEZNACZONE DLA INSTALATORA
Odnośnie pomiarów sprawności cieplnej urządzenia oraz zanieczyszczeń w produktach spalania, kocioł jest wyposażony w dwa gniazda,
które służą do tego celu.
Jedno jest podłączone do obiegu odprowadzającego spaliny i służy do mierzenia poziomu zanieczyszczeń produktów spalania i sprawności
spalania.
Drugie jest podłączone do obiegu zasysającego powietrze do spalania i służy do sprawdzania, czy nie następuje ewentualna recyrkulacja
produktów spalania, jeśli zastosowano przewody współosiowe.
W gnieździe podłączonym do przewodu spalinowego można odczytać następujące parametry:
• temperaturę spalin;
• stężenie tlenu (O2) lub alternatywnie dwutlenku węgla (CO2);
• stężenie tlenku węgla (CO).
Temperatura powietrza spalania odczytywana jest w gnieździe podłączonym do obiegu zasysającego powietrze, wkładając sondę
pomiarową na około 3 cm.
ADNOTACJA:
odnośnie regulacji mocy znamionowej patrz rozdział 19 (B1)
W modelach kotłów z ciągiem naturalnym konieczne jest wykonanie otworu na przewodzie odprowadzającym spaliny w odległości od
kotła równej 2 razy średnicy wewnętrznej tego przewodu.
Przez ten otwór można odczytać następujące parametry:
• temperaturę spalin;
• stężenie tlenu (O2) lub alternatywnie dwutlenku węgla (CO2);
• stężenie tlenku węgla (CO).
Pomiar temperatury powietrza należy przeprowadzać w pobliżu wlotu powietrza do kotła. Otwór, który wykonuje osoba odpowie- dzial-
na za instalację przy okazji pierwszego rozruchu, musi być zamknięty w sposób zapewniający szczelność przewodu odprowadzającego
produkty spalania w trakcie normalnego działania urządzenia.
24. KONTROLA PARAMETRÓW SPALANIA 25. CHARAKTERYSTYKA NATĘŻENIA PRZEPŁYWU/WYSOKOŚCI PODNOSZENIA
Zastosowano pompę o dużej wysokości
podnoszenia przystosowaną do użytku
w dowolnej instalacji grzewczej jedno
lub dwururowej. Automatyczny zawór
odpowietrzający połączony z korpusem
pompy umożliwia szybkie odpowietrze-
nie instalacji c.o..
Wykres 1
NATĘŻENIE PRZEPŁYWU l/h
WY
SO
KOŚĆ CIŚ
NIENI
A mH
2
O
1009_2401
1009_2402
WY
SO
KOŚĆ CIŚ
NIENI
A mH
2
O
NATĘŻENIE PRZEPŁYWU l/h
187
71.03982.03 - PL
INSTRUKCJE PRZEZNACZONE DLA INSTALATORA
26. PODŁĄCZENIE CZUJNIKA ZEWNĘTRZNEGO
Na oprawach kabli wychodzących z tablicy rozdzielczej, znajdują się dwa CZERWONE przewody wyposażone w oprawki główek.
Podłączyć zewnętrzną sondę do końcówek tych dwóch przewodów.
Z podłączoną sondą zewnętrzną, możliwa jest zmiana krzywej „kt” (Wykres 2) działając na klawiszach
+/-
.
ADNOTACJA : W przypadku montażu w standardowym mieszkaniu (odpowiednia izolacja obwodowa i instalacja z grzejnikami) zaleca
się ustawienie krzywej klimatycznej “kt” na wartości “25”.
Tm = Zakres zadanej temperatury
Те
= Temperatura zewnętrzna
Wykres 2
TM
Te
Krzywe „kt”
27. PODŁĄCZENIE PODGRZEWACZA CWU
Model 24 - 24FF
Sonda NTC obiegu c.w.u. jest dostarczona jako wyposażenie dodatkowe.
PODŁĄCZENIE SONDY PODGRZEWACZA
Kocioł jest przystosowany do podłączenia do bojlera zewnętrznego. Podłączyć hydraulicznie bojler w sposób zilustrowany na rys.14.
Podłączyć sondę NTC obiegu c.w.u. do zacisków 5-6 tablicy zaciskowej M2. Czujnik NTC musi być włożony do specjalnego otworu
znajdującej się w podgrzewaczu. Regulację temperatury wody użytkowej (35 °C…60 °C) wykonuje się za pomocą klawiszy
+/–
.
Rysunek 14
LEGENDA:
UB ZESPÓŁ BOJLERA
UR ZESPÓŁ OGRZEWANIA
V3V ZEWNĘTRZNY ZAWÓR
TRZYDROŻNY
M2 TABLICZKA ZACISKOWA
POŁĄCZENIA
SB SONDA BOJLERA OBIEGU C.W.U.
MR DOPROWADZENIE OBIEGU C.O.
MB DOPROWADZENIE BOJLERA
RR POWRÓT OBIEGU C.O./ BOJLERA
UWAGA :
Sprawdzić czy parametr F03 = 03 (paragraf 21).
1012_0501
CG_2085 / 1101_1701
188
71.03982.03 - PL
INSTRUKCJE PRZEZNACZONE DLA INSTALATORA
W celu zapewnienia optymalnej sprawności kotła, konieczne jest wykonanie raz w roku następujących kontroli:
• kontrola wyglądu i sprawności uszczelek obwodu gazu i obwodu spalania;
• kontrola stanu i prawidłowej pozycji elektron zapłonowych i wykrywania płomienia;
• kontrola stanu palnika i jego prawidłowego zamocowania;
• kontrola ewentualnych zanieczyszczeń znajdujących się wewnątrz komory spalania.
Użyć do tego celu odkurzacza;
• kontrola prawidłowego nastawienia zaworu gazu;
• kontrola ciśnienia instalacji grzewczej;
• kontrola ciśnienia zbiornika wyrównawczego;
• kontrola sprawności wentylatora spalin;
• kontrola zapchania przewodów wylotowych i ssawnych;
OSTRZEŻENIE
Przed przystąpieniem do wykonywania wszelkiego typu interwencji, upewnić się czy kocioł nie jest podłączony do napięcia elekt-
rycznego.
Na zakończenie operacji konserwacyjnych, ustawić pokrętła i/lub parametry funkcjonowania kotła w oryginalnych pozycjach.
28. KONSERWACJA ROCZNA
Opróżnienie kotła może być wykonane za pomocą specjalnego kurka znajdującego się na kotle.
W kotłach MS 24 MI i MS 24 MI FF kurek ze złączką do węża znajduje się w dolnej części, a w kotłach MS 24 i MS 24 FF znajduje się
obok pompy (1 – rys. 15).
W celu opróżnienia kotła za pomocą kurka ze złączką do węża znajdującego się na dnie kotła postępować w poniższy sposób (rys. 15):
- zakręcić kurki odcinające kotła;
- odkręcić kurek ze złączką do węża za pomocą klucza sześciokątnego 8 mm;
- opróżnić kocioł;
- zakręcić kurek ze złączką do węża za pomocą klucza sześciokątnego 8mm;
29. SPUST WODY Z KOTŁA
CG_2284 / 1009_2405
Rysunek 15
189
71.03982.03 - PL
INSTRUKCJE PRZEZNACZONE DLA INSTALATORA
Filtry wody użytkowej i obwodu c.o. znajdują się wewnątrz specjalnych wyciąganych wkładek. Wkładka obwodu c.o. jest umieszczona na
powrocie obiegu c.o. (rysunek 16F), wkładka obwodu c.w.u. znajduje się na wejściu zimnej wody (rysunek 16E). W celu wyczyszczenia
filtrów, należy postępować w następujący sposób:
• wyłączyć zasilanie elektryczne kotła;
• zakręcić kurek wlotu wody użytkowej;
• spuścić wodę znajdującą się w obwodzie c.o. otwierając kurek A z rysunku 16.
• usunąć zacisk (1-E/F) filtra w sposób wskazany na rysunku i wyciągnąć wkład z filtrem (2-E/F) uważając, aby nie wykonywać nad-
miernego forsowania;
• w celu wyciągnięcia wkładu filtra obiegu c.o. należy najpierw usunąć silnik zaworu 3-drożnego (1-2G – rysunek 16);
• usunąć z filtra ewentualne zanieczyszczenia i osady;
• z powrotem założyć filtr w środku wkładu i włożyć go z powrotem na miejsce zabezpieczając go zaciskiem.
• w celu wymiany sondy NTC w.u. patrz rysunek 16D.
OSTRZEŻENIE
W przypadku wymiany i/lub czyszczenie pierścieni zespołu hydraulicznego nie używać do smarowania żadnych olei i smarów,
tylko Molykote 111.
30. CZYSZCZENIE FILTRÓW
Czyszczenie obwodu c.w.u. może być wykonane bez konieczności wyciągania wymiennika wody, jeżeli płyta została na początku
wyposażona w specjalny kurek (na żądanie) umieszczony na wylocie ciepłej wody użytkowej. W celu wyczyszczenia obwodu należy:
• Zakręcić kurek wlotu wody użytkowej;
• Spuścić wodę z obwodu wody użytkowej za pomocą kurka;
• Zakręcić kurek wylotu wody użytkowej;
• Usunąć zacisk 1E rysunku 16;
• Usunąć filtr (2E rys. 16);
• w celu wymiany sondy NTC w.u. patrz rysunek 16D.
W przypadku braku dodatkowego wyposażenia, należy wymontować wymiennik wody w sposób opisany w następnym paragrafie i
wyczyścić go oddzielnie. Zaleca się wyczyścić z kamienia również oprawę i odpowiednią sondę NTC znajdującą się na obwodzie c.w.u.
(rysunek 16D).
W celu wyczyszczenia wymiennika i/lub obwodu wody użytkowej, zaleca się zastosowanie Cillit FFW_AL lub Benckiser HF-AL.
31. CZYSZCZENIE Z KAMIENIA KOTŁOWEGO
190
71.03982.03 - PL
INSTRUKCJE PRZEZNACZONE DLA INSTALATORA
Wymiennik woda-woda, z płytkami z nierdzewnej stali inox może być wymontowany za pomocą klucza sześciokątnego
postępując w następujący sposób:
• opróżnić instalację, w miarę możliwości ograniczając się do kotła, za pomocą specjalnego kurka wylotowego;
• opróżnić wodę zawartą w obwodzie wody użytkowej;
• wykręcić rurę połączeniową zbiornika wyrównawczego w zespole hydraulicznym;
• usunąć presostat c.o. (16H) bez odłączania kabli;
• usunąć dwie śruby mocujące (rys. 16B), widoczne od przodu, wymiennika woda-woda i wyciągnąć go ze swojej oprawy wykorzystując
miejsce utworzone po usunięciu presostatu c.o.;
• wyczyścić wymiennik i z powrotem umieścić go na swoim miejscu;
• ponownie wkręcić rurę połączeniową zbiornika wyrównawczego w zespole hydraulicznym;
• z powrotem założyć presostat hydrauliczny na swoje miejsce.
32. DEMONTAŻ WYMIENNIKA WODA-WODA
OSTRZEŻENIE
Zachować maksymalną ostrożność podczas demontażu poszczególnych części zespołu hydraulicznego.
Nie używać ostrych narzędzie, nie forsować nadmiernie zacisków mocujących podczas ich ściągania.
Rysunek 16
CG_2078 / 1009_2201
191
71.03982.03 - PL
INSTRUKCJE PRZEZNACZONE DLA INSTALATORA
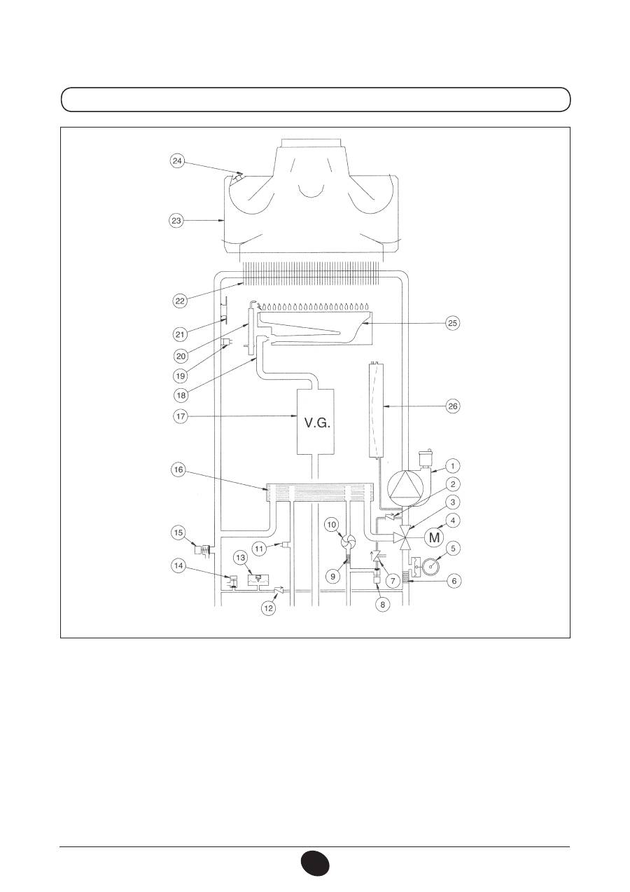
33. SCHEMAT FUNKCJONALNY OBWODÓW
24 MI FF
Legenda:
1 Pompa z separatorem powietrza
2 Zawór zwrotny
3 Zawór trójdrożny
4 Silnik zaworu trójdrożnego
5 Manometr
6 Filtr obwodu c.o.
7 Urządzenie rozłączające
8 Kurek napełniający kotła
9 Wyciągany filtr zimnej wody użytkowej
10 Czujnik c.w.u.
11 Sonda NTC obiegu c.w.u.
12 Zawór uzupełniający na automatycznym by-pass
13 Czujnik ciśnienia wody
14 Kurek spustowy kotła
15 Zawór bezpieczeństwa
16 Wymiennik płytowy woda-woda
17 Zawór gazu
18 Rampa gazu z dyszami
19 Sonda NTC obiegu c.o.
20 Elektroda zapłonowa/jonizacyjna
21 Termostat bezpieczeństwa
22 Wymiennik woda /spaliny
23 Kolektor spalin
24 Wentylator
25 Zwężka Venturiego
26 Gniazdo dodatnie ciśnienia
27 Gniazdo ujemne ciśnienia
28 Presostat powietrza
29 Palnik
30 Zbiornik wyrównawczy
Rysunek 17
Doprowadzenie
obiegu c.o.
Wylot
obiegu
c.w.u.
Gaz
Wlot
obiegu
c.w.u.
Powrót obiegu
c.o.
CG_2269 / 1006_1805
192
71.03982.03 - PL
INSTRUKCJE PRZEZNACZONE DLA INSTALATORA
24 MI
Legenda:
1 Pompa z separatorem powietrza
2 Zawór zwrotny
3 Zawór trójdrożny
4 Silnik zaworu trójdrożnego
5 Manometr
6 Filtr obwodu c.o.
7 Urządzenie rozłączające
8 Kurek napełniający kotła
9 Wyciągany filtr zimnej wody użytkowej
10 Czujnik c.w.u.
11 Sonda NTC obiegu c.w.u.
12 Zawór uzupełniający na automatycznym by-pass
13 Czujnik ciśnienia wody
14 Kurek spustowy kotła
15 Zawór bezpieczeństwa
16 Wymiennik płytowy woda-woda
17 Zawór gazu
18 Rampa gazu z dyszami
19 Sonda NTC obiegu c.o.
20 Elektroda zapłonowa/jonizacyjna
21 Termostat bezpieczeństwa
22 Wymiennik woda/spaliny
23 Kolektor spalin
24 Czujnik ciągu kominowego
25 Palnik
26 Zbiornik wyrównawczy
Rysunek 18
Doprowadzenie
obiegu c.o.
Wylot
obiegu
c.w.u.
Gaz
Wlot
obiegu
c.w.u.
Powrót obiegu
c.o.
CG_2270 / 1006_1806
193
71.03982.03 - PL
INSTRUKCJE PRZEZNACZONE DLA INSTALATORA
24 FF
Legenda
1
Automatyczny by-pass z zaworem zwrotnym
2
Czujnik cisnienia wody
3
Zawór trójdrozny
4
Silnik zaworu trójdrożnego
5
Zawór gazu
6
Rampa gazu z dyszami
7
Sonda NTC obiegu c.o.
8
Elektroda zapłonu/wykrywania płomienia
9
Termostat bezpieczeństwa
10 Wymiennik woda/spaliny
11 Kolektor spalin
12 Wentylator
13
Zwężka Venturiego
14
Gniazdo dodatnie ciśnienia
15
Gniazdo ujemne ciśnienia
16
Presostat powietrza
17
Palnik
18
Zbiornik wyrównawczy
19
Pompa z separatorem powietrza
20
Zawór zwrotny
21
Kurek spustowy kotła
22
Manometr
23
Zawór bezpieczeństwa
24
Urządzenie rozłączające
Rysunek 19
Doprowadzenie
obiegu c.o.
Gaz
Wlot
obiegu
c.w.u.
Powrót obiegu
c.o.
CG_2267 / 1006_2102
Doprowadzenie
bojlera
194
71.03982.03 - PL
INSTRUKCJE PRZEZNACZONE DLA INSTALATORA
24
Legenda:
1 Automatyczny by-pass z zaworem zwrotnym
2 Czujnik ciśnienia wody
3 Zawór trójdrożny
4 Silnik zaworu trójdrożnego
5 Zawór gazu
6 Rampa gazu z dyszami
7 Sonda NTC obiegu c.o.
8 Elektroda zapłonowa/jonizacyjna
9 Termostat bezpieczeństwa
10 Wymiennik woda/spaliny
11 Kolektor spalin
12 Czujnik ciągu kominowego
13 Palnik
14 Zbiornik wyrównawczy
15 Pompa z separatorem powietrza
16 Zawór zwrotny
17 Kurek spustowy kotła
18 Manometr
19 Zawór bezpieczeństwa
20 Urządzenie rozłączające
Rysunek 20
Doprowadzenie
obiegu c.o.
Gaz
Wlot
obiegu
c.w.u.
Powrót obiegu
c.o.
CG_2268 / 1006_2103
Doprowadzenie
bojlera
195
71.03982.03 - PL
INSTRUKCJE PRZEZNACZONE DLA INSTALATORA
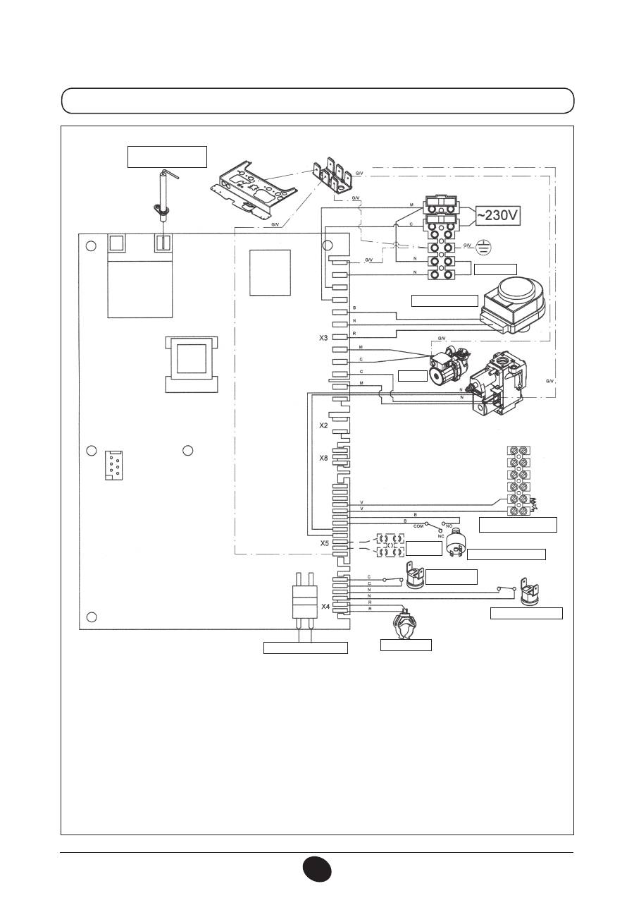
34. SCHEMAT POŁACZEŃ ELEKTRYCZNYCH
24 MI FF
CG_2075 / 1001_1806
Kolory kabli
C = Niebieski
M = Brązowy
N = Czarny
R = Czerwony
G/V = Żółto/Zielony
B = Biały
V = Zielony
ELEKTRODA WYKRYWAJĄCA
ZAPŁON
TERMOSTAT
ZAWÓR TRZYDROŻNY
POMPA
WENTYLATOR
CZUJNIK C.W.U.
SONDA NTC C.W.U.
SONDA
ZEWNĘTRZNA
PRESOSTAT HYDRAULICZNY
TERMOSTAT
BEZPIECZEŃSTWA
PRESOSTAT POWIETRZA
SONDA NTC C.O.
PROGRAMOWANIE
196
71.03982.03 - PL
INSTRUKCJE PRZEZNACZONE DLA INSTALATORA
24 MI
CG_2076 / 1001_1807
Kolory kabli
C = Niebieski
M = Brązowy
N = Czarny
R = Czerwony
G/V = Żółto/Zielony
B = Biały
V = Zielony
ELEKTRODA WYKRYWAJĄCA
ZAPŁON
TERMOSTAT
ZAWÓR TRZYDROŻNY
POMPA
CZUJNIK C.W.U.
SONDA NTC C.W.U.
SONDA
ZEWNĘTRZNA
PRESOSTAT HYDRAULICZNY
TERMOSTAT
BEZPIECZEŃSTWA
TERMOSTAT DYMÓW
SONDA NTC C.O.
PROGRAMOWANIE
197
71.03982.03 - PL
INSTRUKCJE PRZEZNACZONE DLA INSTALATORA
24 FF
Kolory kabli
C
= Niebieski
M
= Brązowy
N
= Czarny
R
= Czerwony
G/V = Żółto/Zielony
B
= Biały
V
= Zielony
ELEKTRODA WYKRYWAJĄCA
ZAPŁON
TERMOSTAT
TABLICZKA ZACISKOWA M2
POMPA
SONDA
ZEWNĘTRZNA
PRESOSTAT HYDRAULICZNY
TERMOSTAT
BEZPIECZEŃSTWA
PRESOSTAT POWIETRZA
SONDA NTC C.O.
PROGRAMOWANIE
WENTYLATOR
CG_2271 / 1006_1603
ZAWÓR TRZYDROŻNY
198
71.03982.03 - PL
INSTRUKCJE PRZEZNACZONE DLA INSTALATORA
24
Kolory kabli
C = Niebieski
M = Brązowy
N = Czarny
R = Czerwony
G/V = Żółto/Zielony
B = Biały
V = Zielony
ELEKTRODA WYKRYWAJĄCA
ZAPŁON
TERMOSTAT
TABLICZKA ZACISKOWA M2
POMPA
SONDA
ZEWNĘTRZNA
PRESOSTAT HYDRAULICZNY
TERMOSTAT
BEZPIECZEŃSTWA
TERMOSTAT DYMÓW
SONDA NTC C.O.
PROGRAMOWANIE
ZAWÓR TRZYDROŻNY
CG_2272 / 1010_2101
199
71.03982.03 - PL
INSTRUKCJE PRZEZNACZONE DLA INSTALATORA
35. CHARAKTERYSTYKA TECHNICZNA
Model MS
24 MI FF
24 FF
24 MI
24
Kategoria
II
2ELWLS3P
II
2ELWLS3P
II
2ELWLS3P
II
2ELWLS3P
Znamionowa wydajność cieplna
kW
25,8 25,8 26,3 26,3
Zredukowana wydajność cieplna
kW
10,6 10,6 10,6 10,6
Znamionowa moc cieplna
kW
24
24
24
24
kcal/h 20.600 20.600 20.600 20.600
Zredukowana moc cieplna
kW
9,3
9,3
9,3 9,3
kcal/h
8.000 8.000 8.000 8.000
Sprawność według dyrektywy 92/42/WE
—
★★★
★★★
★★
★★
Maksymalne ciśnienie wody obiegu cieplnego
bar
3
3
3
3
Pojemność zbiornika wyrównawczego
l
6
6
6 6
Ciśnienie zbiornika wyrównawczego
bar
1
1
1
1
Maksymalne ciśnienie wody obiegu c.w.u.
bar
8
—
8
—
Minimalne ciśnienie dynamiczne wody obiegu c.w.u..
bar 0,15 — 0,15 —
Minimalna wydajność wody użytkowej
l/min
2,0
—
2,0
—
Produkcja c.w.u. przy ∆T=25 °C
l/min
13,7
—
13,7
—
Produkcja c.w.u. przy ∆T=35 °C
l/min
9,8
—
9,8
—
Wydajność (*)
l/min
12
—
12
—
Zakres temperatury obwodu c.o.
°C
30/85 30/85 30/85 30/85
Zakres temperatury c.w.u.
°C
35/60 35/60*** 35/60 35/60***
Typ
—
C12-C32-C42-C52-C82-B22
B
11BS
B
11BS
Średnica przewodu wylotowego koncentrycznego
mm
60
60
-
-
Średnica przewodu zasysającego koncentrycznego
mm
100
100
-
-
Średnica przewodu wylotowego rozdzielonego
mm
80
80
-
-
Średnica przewodu zasysającego rozdzielonego
mm 80 80 - -
Średnica przewodu wylotowego
mm
-
-
125 125
Masowe natężenie przelotu spalin max
kg/s 0,014 0,014 0,020 0,020
Masowe natężenie przelotu spalin min.
kg/s 0,014 0,014 0,018 0,018
Temperatura spalin max.
°C
146 146 110 110
Temperatura spalin min.
°C
116 116 85
85
Klasa NOx
—
3
3
3
3
—
G20-G27 G20-G27 G20-G27 G20-G27
Typ gazu
—
G2.350-G31 G2.350-G31 G2.350-G31 G2.350-G31
Ciśnienie zasilania metanu (G20-G27)
mbar
20
20
20
20
Ciśnienie zasilania G2.350
mbar
13
13
13
13
Ciśnienie zasilania propanu (G31)
mbar
37
37
37
37
Napięcie zasilania elektrycznego
V
230 230 230 230
Częstotliwość zasilania elektrycznego
Hz
50 50
50
50
Znamionowa moc elektryczna
W
130 130 80
80
Ciężar netto
kg
33 32 29
28
Wymiary
Wysokość
mm 730 730 730 730
Szerokość
mm 400 400 400 400
głębokość
mm 299 299 299 299
Stopień ochrony przed wilgocią i przenikaniem wody (**)
IP X5D
IP X5D
IP X5D
IP X5D
(*) według EN 625
(**) według EN 60529
(***) z bojlerem zewnetrznym
Spółka DE DIETRICH opierając się na stałym dążeniu do polepszenia swoich wyrobów, zastrzega sobie prawo do zmodyfikowania danych podanych w
niniejszym dokumencie, w każdej chwili i bez obowiązku wcześniejszego poinformowania. Niniejszy dokument stanowi suport informacyjny i nie należy go
traktować jako umowę w stosunku do osób trzecich.
200
71.03982.03 - RO
INSTRUCŢIUNI DESTINATE UTILIZATORULUI
Stimate Client,
Compania noastră consideră că noua centrală termică achiziţionată va răspunde tuturor cerinţelor Dumneavoastră.
Achiziţionarea unui produs De Dietrich asigură îndeplinirea tuturor aşteptărilor Dumneavoastră: o bună
funcţionare şi o utilizare simplă şi raţională.
Vă recomandăm să nu lăsaţi deoparte aceste instrucţiuni fără a le fi citit: ele conţin informaţii utile pentru o
exploatare corectă şi eficientă a centralei Dumneavoastră.
Fragmentele de ambalaj (pungi din plastic, polistiren, etc.) nu trebuie lăsate la îndemâna copiilor, întrucât constituie
potenţiale surse de pericol.
1. Avertismente anterioare instalării
201
2. Avertismente anterioare punerii în funcţiune
201
3. Punerea în funcţiune a centralei termice
202
4. Reglarea temperaturii ambiante şi a temperaturii apei menajere
203
5. Descrierea tastei ( ) (Vară - Iarnă - Numai încălzire - Oprit)
203
6. Umplerea instalaţiei
204
7. Oprirea centralei termice
204
8. Schimbarea tipului de gaz
204
9. Oprirea instalaţiei pe o perioadă îndelungată. Protecţia împotriva îngheţului (circuitul de încălzire)
205
10. Intrarea în funcţiune a dispozitivelor de siguranţa
205
11. Instrucţiuni de întreţinere curentă
205
12. Avertismente generale
206
13. Avertismente anterioare instalării
206
14. Instalarea centralei termice
207
15. Dimensiunile centralei termice
208
16. Instalarea conductelor de evacuare gaze arse şi admisie aer
209
17. Conectarea la reţeaua electrică
213
18. Conectarea termostatului ambiental
213
19. Modalităţi de schimbare a tipului de gaz
214
20. Vizualizarea parametrilor pe afişaj (funcţie “info”)
216
21. Setarea parametrilor
217
22. Dispozitive de control şi siguranţă
217
23. Poziţionarea electrodului de aprindere şi detectare a flăcării
218
24. Verificarea parametrilor de combustie
219
25. Performanţe debit/înălţime de pompare
219
26. Conectarea sondei externe
220
27. Conectarea unui boiler extern
220
28. Întreţinerea anuală
221
29. Golirea circuitul centralei
221
30. Curăţarea filtrelor
222
31. Îndepărtarea calcarului din circuitul de apă menajeră
222
32. Demontarea schimbătorului apă-apă
223
33. Diagramă funcţională circuite
224
34. Diagramă cuplare conectori
228
35. Caracteristici tehnice
232
CUPRINS
INSTRUCŢIUNI DESTINATE UTILIZATORULUI
INSTRUCŢIUNI DESTINATE INSTALATORULUI
De Dietrich declară că aceste modele de centrale poartă marcajul CE şi îndeplinesc
cerinţele următoarelor directive:
- Directiva 2009/142/CE privind aparatele consumatoare de combustibili gazoşi
- Directiva 92/42/CEE privind cerinţele de randament pentru cazane
- Directiva 2004/108/CE privind compatibilitatea electromagnetică
- Directiva 2006/95/CE privind echipamentele de joasă tensiune

