Jotul I570: 1.0 Regulatory information
1.0 Regulatory information: Jotul I570
32
les combustibles recommandés.
Respectez les consignes d'utilisation. Utilisez uniquement
Verwenden Sie nur empfohlenen Brennstoffen.
Montage- und Bedienungsanleitung beachten.
Follow user`s instructions. Use only recommended fuels.
standard
Certificate/
The appliance can be used in a shared flue.
Minimum distance to adjacent combustible materials:
Emission of CO in combustion products
Serial no: Y-xxxx, Year: 200x
Manufacturer:
N-1602 Fredrikstad
Norway
Jøtul AS
POB 1441
Sweden
EUR
Intermittent
Nominal heat output
Norway
Country
Operational type
Fuel type
Operation range
Efficiency
Klasse II
Classification
Standard
Flue gas temperature
Room heater fired by solid fuel
Product:
Jøtul
SP Sveriges Provnings- och
221546
Forskningsinstitut AB
SP Swedish National
Testing and Research
Institute
:
Approved by
:
:
:
:
:
:
:
Minimum distance to adjacent combustible materials:
OGC
SP
EN
Serial no.
Table of contents
Installation manual with technical data
1.0 Regulatory information .................................. 32
2.0 Technical data ................................................. 32
3.0 Installation ..................................................... 34
4.0 Servicing .......................................................... 38
5.0 Optional Equipment ....................................... 38
General use and maintenance manual
6.0
Safety
precautions
7.0 Choice of fuel
8.0
Use
9.0
Maintenance
10.0 Operational problems - troubleshooting
On all our products there is a label
indicating the serial number and
year. Write this number in the
place indicated in the installation
instructions.
Always quote this serial number when
contacting your retailer or Jøtul.
1.0 Regulatory information
Installation of a fireplace must be according to local codes and
regulations in each country.
All local regulations, including those that refer to national and
European standards, shall be complied with when installing
the product.
Both an installation manual with technical data and a general
user and maintenance manual accompany the product. The
installation can only be taken into use after it has been checked
by a qualified inspector.
An approval label made of heat resistant material is located
on the heat shield at the back of the product. This contains
information about identification and documentation for the
product.
2.0 Technical data
Material: Cast
iron
Finish: Black
paint
Fuel: Wood
Log length, max.:
55 cm
Flue outlet:
Top
Flue dimension
(outside the outlet) :
Ø 200 mm/314 cm
2
cross section
Approx. weight:
220 kg
Optional extras:
Decorative frame, internal ash
solution
Dimensions, distances etc.: See
fig.1
Technical data according to EN 13229
Nominal heat output:
14,0 kW
Smoke gas mass flow:
13,2 g/s
Recommended chimney draught: 12 Pa
Effiency: 77%@14,0
kW
CO emission (13% O
2
): 0,12
%
Flue gas temperature:
265
0
C
Operating mode:
Continuous
Wood consumption
The efficiency of Jøtul I
570
gives it a nominal heat output of
14,0
kW
. Wood consumption, at nominal heat output: Approx.
4,0
kg/h.
The size of the pieces of wood should be:
Kindling (finely split wood):
Length: approx. 30 cm
Diameter: 2-5 cm
Quantity required each time: 6 - 8 pieces
Wood (split wood):
Recommended length: 30 - 50 cm
Diameter: Approx. 12 - 15 cm
Interval for adding wood: Approx. every 65 minutes
Fire size: 4,3 kg (nominal output)
Quantity required each time: 4 pieces
Nominal heat output is achieved when the ignition vent is
approx. 30 % open (fig.12 B) and the air vent is 60% (fig. 12 A).
ENGLISH
33
ENGLISH
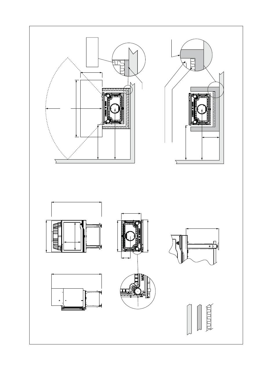
Fi
g
. 1
Ra
di
at
io
n
Zo
ne
900032
-P01
Combustible w
all
Non c
ombustible w
all
Insula
tion
*)
W
arning! 368 mm is
the min.
distance fr
om base pla
te
to flammable floor
Pr
oduc
t
100 mm fir
ew
all or 50 mm casium silica
t
Min.
50 mm clear
ance (
air)
50 mm R
ockwool w /
alu f
oil
Fi
re
wa
ll
50 mm R
ockwool
w /
alu f
oil
Min.
measur
emen
ts floorpla
te
X/
Y=acc
. to na
tional r
egula
tiv
es and r
egula
tions
Measur
emen
ts acc
or
ding
to EN
13229
Outside
Ø
80
min
1157
/ max
1257
min
1157
/ max
1257
715
204
451
740
368
740
640
396
1300
800
1170
800
1170
404
Jøtul I
570
X
Y
Оглавление
- 1.0 Forhold til myndighetene
- 3.0 Installasjon
- 4.0 Service
- 1.0 Forhold til myndighederne
- 3.0 Installation
- 4.0 Service
- 1.0 Kontroll och lagstiftning
- 3.0 Installation
- 4.0 Service
- 1.0 Viranomaisvaatimukset
- 3.0 Asennus
- 4.0 Huolto
- 1.0 Regulatory information
- 3.0 Installation
- 4.0 Servicing
- 1.0 Informations réglementaires
- 3.0 Installation
- 4.0 Entretien
- 1.0 Información normativa
- 3.0 Instalación
- 4.0 Mantenimiento
- 1.0 Informazioni sulle normative
- 3.0 Installazione
- 4.0 Manutenzione
- 1.0 Zgodność z przepisami
- 3.0 Montaż
- 4.0 Obsługa
- 1.0 Нормативная база
- 3.0 Установка
- 4.0 Текущий ремонот
- 1.0 Obecné informace
- 3.0 Montáž
- 4.0 Opravy

