Jotul I570: 1.0 Informazioni sulle normative
1.0 Informazioni sulle normative: Jotul I570
54
1.0 Informazioni sulle normative
L'installazione di un caminetto deve avvenire in base alla
legislazione e ai regolamenti pertinenti di ciascun paese.
In fase di installazione del prodotto, dovranno essere rispettate
tutte le normative locali, inclusi gli standard europei e nazionali.
Il prodotto è corredato da un manuale di installazione contenente
dati tecnici e da un manuale d'uso e di manutenzione generale.
L'installazione può essere utilizzata solo dopo un'accurata
ispezione da parte di personale qualificato.
Un'etichetta di omologazione, realizzata in materiale resistente
al calore, è situata sullo scudo termico sul retro del prodotto.
L'etichetta contiene informazioni per l'identificazione e la
documentazione del prodotto.
2.0 Dati tecnici
Materiale: ghisa
Finitura: vernice
nera
Combustibile: legna
Lunghezza massima ceppi:
55 cm
Scarico fumi:
superiore
Dimensioni condotto
(fuori dallo scarico):
Ø 200 mm/314 cm2 sezione
trasversale
Peso approssimativo:
Ca. 220 kg
Accessori opzionali:
Cornice decorativa, soluzione
cenere interna
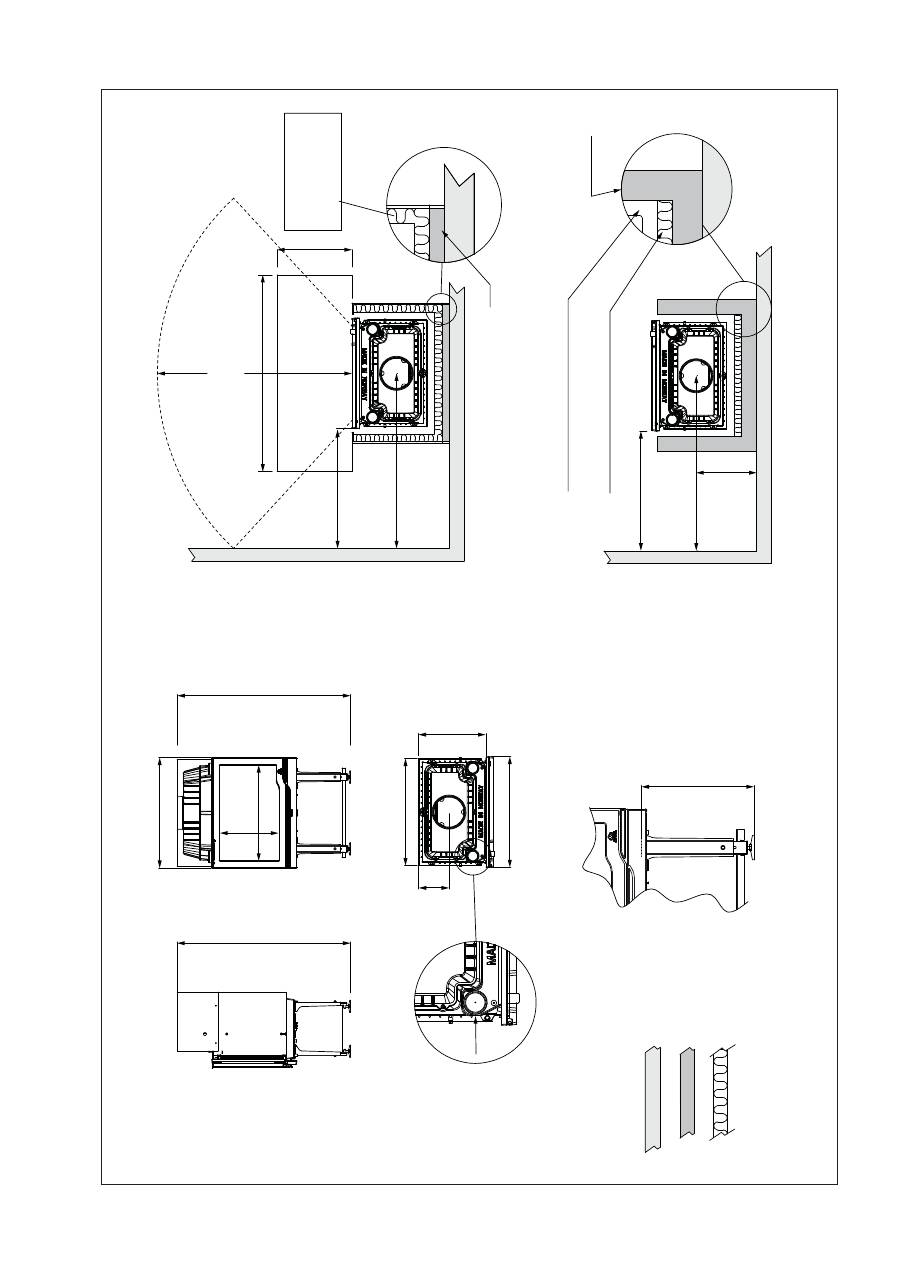
Dimensioni, distanze, ecc.:
vedere
fig. 1
Dati tecnici in base a EN 13229
Potenza termica nominale:
14,0 kW
Portata massica dei fumi:
13,2 g/s
Tiraggio consigliato per
la canna fumaria:
12 Pa
Efficienza: 77%@14,0
kW
Emissioni di CO (13% O2): 0,12
%
Temperatura fumi:
265 0 C
Tipo di funzionamento:
Continuo
Consumo di legna
L'efficienza di Jøtul I
570
fornisce una potenza termica nominale
di 14,0 kW. Consumo di legna alla potenza termica nominale:
circa 4,0kg/h.
Dimensioni consigliate dei ceppi:
Fascine (legna spaccata finemente):
Lunghezza:
circa 30 cm
Diametro:
2-5 cm
Quantità richiesta per carico:
6 - 8 pezzi
Legna (spaccata):
Lunghezza raccomandata:
30 - 50 cm
Diametro:
circa 12 - 15 cm
Intervallo di aggiunta della legna: circa ogni 65 minuti
Dimensioni della fiamma:
4,3 kg (potenza nominale)
Quantità richiesta per carico:
4 pezzi
La Potenza nominale viene raggiunta quando l’entrata d’aria per
l’avviamento è aperta approssimativamente al 30%
(fig. 12 B)
e
l’entrata d’aria primaria è al 60%
(fig. 12 A
)
ITALIANO
Indice generale
Manuale di installazione con dati tecnici
1.0 Informazioni regolatorie ........................... 54
2.0 Dati tecnici .................................................. 54
3.0 Installazione ............................................... 56
4.0 Manutenzione ............................................ 61
5.0 Accessori opzionali ..................................... 61
Indice
Manuale d’uso generale e di manutenzione
6.0
Misure di sicurezza
7.0
Scelta del combustibile
8.0 Uso
9.0 Manutenzione
10.0 Risoluzione dei problemi
Su tutti i nostri prodotti è applicata
un’etichetta che indica il numero
di serie e l’anno. Annotare questo
numero dove indicato nelle
istruzioni di installazione.
Citare sempre questo numero
di serie quando ci si rivolge al
rivenditore o a Jøtul.
les combustibles recommandés.
Respectez les consignes d'utilisation. Utilisez uniquement
Verwenden Sie nur empfohlenen Brennstoffen.
Montage- und Bedienungsanleitung beachten.
Follow user`s instructions. Use only recommended fuels.
standard
Certificate/
The appliance can be used in a shared flue.
Minimum distance to adjacent combustible materials:
Emission of CO in combustion products
Serial no: Y-xxxx, Year: 200x
Manufacturer:
N-1602 Fredrikstad
Norway
Jøtul AS
POB 1441
Sweden
EUR
Intermittent
Nominal heat output
Norway
Country
Operational type
Fuel type
Operation range
Efficiency
Klasse II
Classification
Standard
Flue gas temperature
Room heater fired by solid fuel
Product:
Jøtul
SP Sveriges Provnings- och
221546
Forskningsinstitut AB
SP Swedish National
Testing and Research
Institute
:
Approved by
:
:
:
:
:
:
:
Minimum distance to adjacent combustible materials:
OGC
SP
EN
Serial no.
55
ITALIANO
Fi
g
. 1
Z
o
n
a
in
te
re
ss
a
ta
d
al
l’i
rr
ag
gi
am
en
to
900032
-P01
Esterna
Ø
80
min
1157
/ max
1257
min
1157
/ max
1257
715
204
451
740
368
740
640
396
1300
800
1170
800
1170
404
Jøtul I
570
X
Y
Pr
odotto
P
a
reti infiammabili
P
a
reti non infiammabili
Isolan
te
*)
Attenzione!
368 mm è la minima
distanz
a della base da super
fici
infiammabili
100 mm di par
ete isolan
te o 50 mm di silica
to di calcio
minimo 50 mm distanz
a (
air)
50 mm lana di r
o
ccia
con isolamen
to in alluminio
P
a
rete isolan
te
50 mm di lana di
ro
ccia c
on isolamen
to
in alluminio
Min.
dimensione della pedana
X
/Y = rif
eriti alle norme e r
e
golamen
ti nazionali
Da
ti c
on rif
erimen
to alla norma EN 13229
Оглавление
- 1.0 Forhold til myndighetene
- 3.0 Installasjon
- 4.0 Service
- 1.0 Forhold til myndighederne
- 3.0 Installation
- 4.0 Service
- 1.0 Kontroll och lagstiftning
- 3.0 Installation
- 4.0 Service
- 1.0 Viranomaisvaatimukset
- 3.0 Asennus
- 4.0 Huolto
- 1.0 Regulatory information
- 3.0 Installation
- 4.0 Servicing
- 1.0 Informations réglementaires
- 3.0 Installation
- 4.0 Entretien
- 1.0 Información normativa
- 3.0 Instalación
- 4.0 Mantenimiento
- 1.0 Informazioni sulle normative
- 3.0 Installazione
- 4.0 Manutenzione
- 1.0 Zgodność z przepisami
- 3.0 Montaż
- 4.0 Obsługa
- 1.0 Нормативная база
- 3.0 Установка
- 4.0 Текущий ремонот
- 1.0 Obecné informace
- 3.0 Montáž
- 4.0 Opravy

