Jotul I570: 1.0 Kontroll och lagstiftning
1.0 Kontroll och lagstiftning: Jotul I570
18
Innehåll
1.0 Kontroll och lagstiftning ................................. 18
2.0 Tekniska data................................................... 18
3.0 Installation ..................................................... 20
4.0 Service .............................................................. 24
5.0 Tillsatsutrustning ............................................ 24
Allmän användnings- och underhållsmanual
6.0 Säkerhetsanvisningar
7.0 Bränsleval
8.0 Användning
9.0 Underhåll
10.0 Driftproblem – felsökning
På alla våra produkter finns det
en etikett som visar serienummer
o c h å r. S k r i v d e t t a n u m m e r
p å d e n p l a t s s o m a n g e s i
installationsinstruktionerna.
Uppge alltid detta nummer när du
kontaktar din återförsäljare eller
Jøtul.
les combustibles recommandés.
Respectez les consignes d'utilisation. Utilisez uniquement
Verwenden Sie nur empfohlenen Brennstoffen.
Montage- und Bedienungsanleitung beachten.
Follow user`s instructions. Use only recommended fuels.
standard
Certificate/
The appliance can be used in a shared flue.
Minimum distance to adjacent combustible materials:
Emission of CO in combustion products
Serial no: Y-xxxx, Year: 200x
Manufacturer:
N-1602 Fredrikstad
Norway
Jøtul AS
POB 1441
Sweden
EUR
Intermittent
Nominal heat output
Norway
Country
Operational type
Fuel type
Operation range
Efficiency
Klasse II
Classification
Standard
Flue gas temperature
Room heater fired by solid fuel
Product:
Jøtul
SP Sveriges Provnings- och
221546
Forskningsinstitut AB
SP Swedish National
Testing and Research
Institute
:
Approved by
:
:
:
:
:
:
:
Minimum distance to adjacent combustible materials:
OGC
SP
EN
Serial no.
1.0 Kontroll och lagstiftning
Eldstad måste installeras enligt gällande nationella lagar och
föreskrifter.
Alla lokala föreskrifter samt gällande nationella och europeiska
standarder ska följas vid installation av produkten.
En installationsmanual med tekniska data och en allmän
användnings- och underhållsmanual medföljer produkten.
Installationen ska kontrolleras av behörig kontrollant innan den
får tas i bruk.
På värmeskölden på produktens baksida finns en godkännandeskylt
av värmebeständigt material. Den innehåller produktdata
(serienummer, tillverkningsår etc.).
2.0 Tekniska data
Material: Gjutjärn
Ytbehandling: Svart
lack
Typ av bränsle:
Ved
Max. längd på vedträn:
55 cm
Rökuttag: Upptill
Dimension rökrör:
Ø 200 mm/314 cm2 tvärsnitt
Vikt ca:
220 kg
Tillval:
Dekorram, invändig
asklösning
Produktmått, avstånd:
Se
bild 1
Tekniska data enligt EN 13229
Nominell värmeavgivning: 14,0
kW
Rökgasflöde:
13,2 g/s
Rekommenderat skorstensdrag: 12 Pa
Verkningsgrad: 77 % vid 14,0 kW
CO-emission (13 % O
2
):
0,12 %
Rökgastemperatur:
2650C
Driftsätt: Kontinuerligt
Vedförbrukning
Jøtul I
570
har med sin verkningsgrad en nominell värmeavgivning
på
14,0 kW.
Vedförbrukning vid nominell värmeavgivning: Ca 4,0
kg/timme. Rekommenderad vedstorlek:
Tändved (tunna vedträn):
Längd:
ca 30 cm
Diameter:
2–5 cm
Antal vedträn per braständning: 6–8 st.
Ved (kluven ved):
Rekommenderad längd:
30–50 cm
Diameter:
12–15 cm
Påfyllningsintervall:
ca var 65:e minut
Påfyllningsmängd:
4,3 kg (nominell effekt)
Antal vedträn per påfyllning:
4 st.
Nominell värmeavgivning uppnås när tändventilen (bild 12 B) är
öppnad ca 30 % och luftventilen (bild 12 A) är öppnad ca 60 %.
SVENSKA
19
SVENSKA
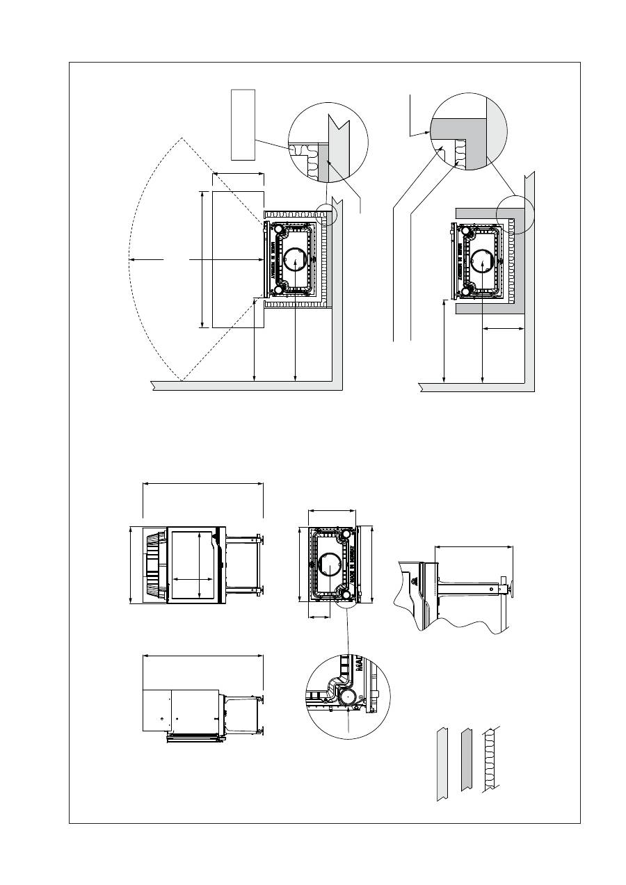
Bild 1
S
trå
ln
in
gs
zo
n
900032
-P01
Pr
odukt
Ut
vändig
Ø
80
min
1157
/ max
1257
min
1157
/ max
1257
715
204
451
740
368
740
640
396
1300
800
1170
800
1170
404
Jøtul I
570
X
Y
Br
ännbar v
ägg
Ick
e br
ännbar v
ägg
Isolering
*) N
B! 368mm är min.
av
stånd fr
ån eldstadsplan
till br
ännbar
t golv
.
Min. må
tt
eldstadsplan
X /
Y= enligt
gällande na
tionella lagar
och för
eskrif
ter
Enligt
EN
13229
50mm stenull m/
aluf
olie
100mm br
andmur eller 50mm k
alsiumsilik
at
Min.
50mm a
vstånd (luf
t)
50mm stenull m\ aluf
olie
Br
andmur
Оглавление
- 1.0 Forhold til myndighetene
- 3.0 Installasjon
- 4.0 Service
- 1.0 Forhold til myndighederne
- 3.0 Installation
- 4.0 Service
- 1.0 Kontroll och lagstiftning
- 3.0 Installation
- 4.0 Service
- 1.0 Viranomaisvaatimukset
- 3.0 Asennus
- 4.0 Huolto
- 1.0 Regulatory information
- 3.0 Installation
- 4.0 Servicing
- 1.0 Informations réglementaires
- 3.0 Installation
- 4.0 Entretien
- 1.0 Información normativa
- 3.0 Instalación
- 4.0 Mantenimiento
- 1.0 Informazioni sulle normative
- 3.0 Installazione
- 4.0 Manutenzione
- 1.0 Zgodność z przepisami
- 3.0 Montaż
- 4.0 Obsługa
- 1.0 Нормативная база
- 3.0 Установка
- 4.0 Текущий ремонот
- 1.0 Obecné informace
- 3.0 Montáž
- 4.0 Opravy

