De Dietrich MS 24 MI VMC: •
•: De Dietrich MS 24 MI VMC
17
71.03982.03 - FR
INSTRUCTIONS DESTINÉES À L’INSTALLATEUR
20. AFFICHAGE DES PARAMÈTRES (FONCTION INFO)
Pour afficher certaines fonctions de la chaudière sur l’écran situé sur la façade de l’appareil, appuyer sur la touche «
I
»
pendant au moins 5 secondes.
•
Appuyer sur la touche (+/-
) de l’eau chaude sanitaire pour visualiser instantanément les informations suivantes:
A00:
température de l’eau chaude sanitaire (°C) ;
A01 : température extérieure (si la sonde extérieure est connectée)
A02 : valeur actuelle de la modulation (100% = 310 mA méthane - 100% = 310 mA GPL) ;
A03 : plage de puissance (%) - (MAX R) ;
A04 : température de consigne du chauffage (°C) - - en cas de sonde externe connectée, visualisation de la valeur
de la courbe “Kt” (paragraphe 27);
A05 : température de sortie du chauffage (°C) ;
A06 : température de consigne de l’eau chaude sanitaire (°C) ;
A07 : non utilisé ;
A08 : débit (l/min x 10) de l’eau chaude sanitaire ;
A09 : dernière erreur enregistrée de la chaudière.
•
Cette fonction est active pendant 3 minutes. Il est possible d’interrompre la fonction «INFO» à l’avance en appuyant
sur le bouton (
i
) pendant au moins 5 seconds, ou en fermant la puissance de la chaudière.
N.B.:
lorsque la fonction “INFO” est activée, le message “A00”, s’affiche à l’écran en alternance avec la température
de sortie de la chaudière de livraison (figure 12) :
0605_2204 / CG_1808
Figure 12
18
71.03982.03 - FR
INSTRUCTIONS DESTINÉES À L’INSTALLATEUR
Description de paramètre
Réglages d’usine
24 MI
FF
24 FF
24 MI
24 MI
VMC
24
F01
Type de chaudière à gaz
10
= à chambre étanche
20
= à chambre atmosphérique
10
10
20
20
20
F02
Type de gaz
00
= NATUREL
01
= GPL
02
= NATUREL (AVEC DIAPHRAGME)
02
F03
Système hydraulique
00
= appareil instantané
03
= appareil avec ballon exterieure
04
= appareil uniquement pour le chauffage
13
= prechauffage (24h)
14
= prechauffage (1h)
13
04
13
13
04
F04/ F05
Paramètrage relais programmable 1 et 2 (voir directives de
maintenance)
00
= pas de fonction associée
00
F06
Réglage de la température de consigne maximale (°C)
00
= 85°C -
01
= 45°C (ne pas modifier)
00
F07
Configuration de la priorité de l’eau chaude sanitaire
00
01
00
00
01
F08
Puissance chauffage central maxi
(0-100%)
100
F09
Puissance eau chaude sanitaire maxi
(0-100%)
100
F10
Puissance chauffage central mini
(0-100%)
00
F11
Délai d’attente avant le nouvel allumage
(00-10 minutes) - 00=10 secondes
03
F12
Diagnostics (voir directives de maintenance)
--
F13-F14-F15
Donnèes d’usine
00
F16
Fonction antilégionelle
(avec F03=03)
00
= fonction disactivée
55...67
= fonction activée (température de consigne °C)
00
F17
Selection type pressostat chauffage
00
= pressostat hydraulique
01
= pressostat différentiel hydraulique
00
F18
information producteur
00
21. PARAMÉTRAGE
Pour paramétrer la chaudière, appuyer sur les touches (
–
) et (
–
) pendant au moins 6 secondes. Quand la fonction est
activée, l’écran affiche la mention “
F01
” en alternance avec la valeur du paramètre.
Modification d’un paramètre
• Appuyer sur les touches (
+/–
) pour faire défiler les paramètres ;
• Appuyer sur les touches (
+/–
) pour changer la valeur d’un paramètre ;
• Appuyer sur la touche
(
)
, pour enregistrer la valeur affichée, l’écran affiche la mention “
MEM
”;
• Appuyer sur la touche
(
i
)
,
pour annuler la modification et conserver la valeur précédente, l’écran affiche la mention “
ESC
”.
22. DISPOSITIFS DE RÉGLAGE ET DE SÉCURITÉ
La chaudière est totalement conforme aux exigences des standards européens de référence et elle est notamment équipée de:
• Pressostat d’air (modèle 24 MI FF - 24 FF)
Ce dispositif empêche le fonctionnement du brûleur lorsque le circuit des fumées ne fonctionne pas correctement .
En présence de l’une des anomalies suivantes:
• terminal d’évacuation bouché
• venturi bouché
• ventilateur bloqué
• liaison venturi - pressostat interrompue
La chaudière reste en attente et signale le code d’erreur
E03
(voir tableau paragraphe 10).
19
71.03982.03 - FR
INSTRUCTIONS DESTINÉES À L’INSTALLATEUR
• Thermostat fumées (modèle 24 MI - 24 MI VMC - 24)
Ce dispositif, dont le capteur est situé sur la partie gauche de la hotte fumées, interrompt l’arrivé du gaz au brûleur
principal lorsque la cheminée est obstruée ou en cas d’absence de tirage.
Dans une telle éventualité, la chaudière se bloque et affiche le code d’erreur E03 (paragraphe 10).
Après résolution de la cause de la mise en sécurité, la chaudière peut être remise en marche en appuyant sur la ( ),
pendant au moins 2 secondes.
Il est interdit de désactiver ce dispositif de sécurité
• Thermostat de sécurité
Ce dispositif, dont la sonde est placée sur le départ du chauffage, interrompt l’alimentation en gaz du brûleur en cas de
surchauffe de l’eau du circuit primaire. Dans ces conditions, la chaudière se met en sécurité et ne pourra être réallumée
à condition que la cause de l’anomalie aura été éliminée. Pour RÉINITIALISER la chaudière, appuyer sur la touche ( ),
pendant au moins 2 secondes.
Il est interdit de désactiver ce dispositif de sécurité
• Détecteur de flamme à ionisation
L’électrode de détection de flamme, installée à droite du brûleur, garantit la sécurité en cas d’absence de gaz ou d’al-
lumage incomplet du brûleur. La chaudière se met en sécurité après 3 tentatives de réallumage.
Pour RÉINITIALISER la chaudière, appuyer sur la touche ( ), pendant au moins 2 secondes.
• Pressostat hydraulique
Ce dispositif ne permet d’allumer le brûleur que si la pression de l’installation est supérieure à 0,5 bar.
• Post-circulation du circuit de chauffage
Après l’extinction du brûleur commandée par le thermostat d’ambiance, la post-circulation électronique du mode
chauffage maintient la pompe en circulation pendant 180 secondes.
• Post-circulation du circuit sanitaire
Après l’extinction du brûleur commandée par la sonde, la post-circulation électronique du mode eau chaude sanitaire
maintient la pompe en circulation pendant 30 secondes.
• Dispositif antigel (circuit de chauffage et sanitaire)
La commande électronique de la chaudière est dotée d’une fonction “antigel” en mode chauffage qui déclenche le
brûleur de façon à atteindre une valeur proche de 30°C lorsque la température de départ du circuit est inférieure à 5°C.
Cette fonction est activée lorsque la chaudière est connectée à l’alimentation électrique et au gaz et que le système
est à la pression nécessaire.
• Absence de circulation d’eau sur le circuit primaire (pompe probablement bloquée)
En cas d’absence de circulation d’eau ou de circulation insuffisante dans le circuit primaire, la chaudière se met en
sécurité et affiche le code d’erreur E25 (voir paragraphe 10).
• Fonction antiblocage de la pompe
En mode chauffage, s’il n’y a pas de demande de chaleur, la pompe se met en marche automatiquement pendant 10
secondes toutes les 24 heures. Cette fonction n’est disponible que si la chaudière est alimentée électriquement.
• Fonction antiblocage vanne 3 voies
S’il n’y a pas de demande de chaleur, la vanne 3 voies exécute un cycle complet automatique toutes les 24 heures.
Cette fonction n’est disponible que si la chaudière est alimentée électriquement.
• Soupape de sécurité hydraulique (circuit de chauffage)
Ce dispositif est calibré à 3 bar et asservi au circuit de chauffage.
Il est conseillé de raccorder la soupape de sûreté à une évacuation dotée de siphon. Il est interdit de l’utiliser pour l’éva-
cuation du circuit de chauffage.
REMARQUE :
En cas de panne de la sonde CTN du circuit sanitaire, la production d’eau chaude continuera à être assurée.
Le contrôle de la température sera effectué par l’intermédiaire de la sonde de chauffage.
20
71.03982.03 - FR
INSTRUCTIONS DESTINÉES À L’INSTALLATEUR
24. POSITIONNEMENT DE L’ÉLECTRODE D’ALLUMAGE ET DE DÉTECTION DE LA FLAMME
Figure 13
9912070100
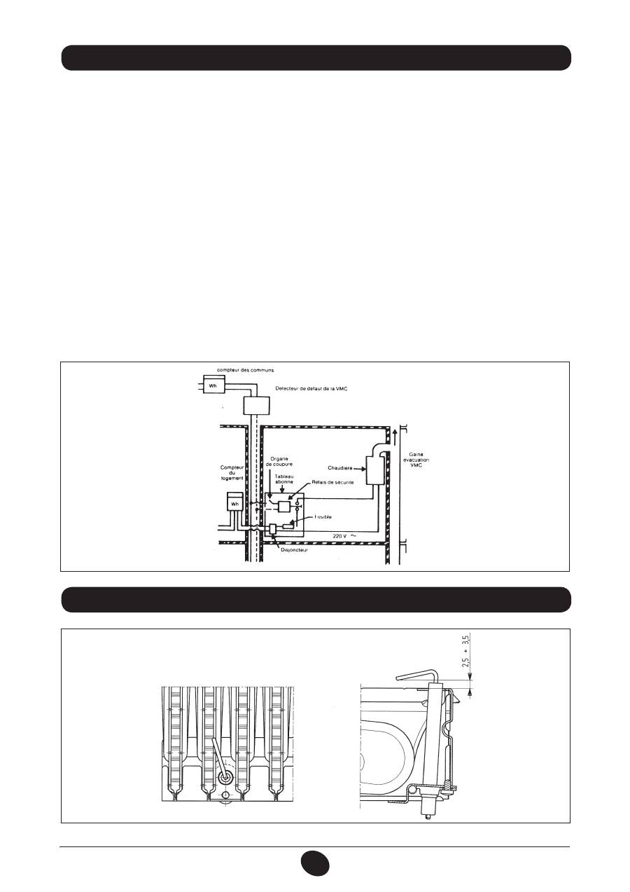
Ventilation Mécanique Controlée (VMC)
Cette chaudière, Cat I
2E+
est équipée d’un dispositif spécial, permettant le raccordement à une installation d’évacuation
mécanique des produits de combustion. Son principe est le suivant:
• un thermostat est placé dans l’antirefouleur spécial VMC.
• lorsque le brûleur est allumé et que la ventilation fonctionne normalement, le thermostat est balayé par l’air ambiant.
• si la ventilation devient défaillante (soit par une panne du ventilateur, une obstruction de la gaine ou de la bouche d’ex-
traction, soit par toute autre cause), le débit d’air ambiant diminue, la température du mélange air-gaz brulés augmente
aussitôt, le thermostat coupe le circuit électrique, entraînant le verrouillage de l’arrivée du gaz. Cela provoque la mise en
sécurité de la chaudière.
L’appareil est désarmé et ne pourra se remettre en marche que sur intervention manuelle.
Aprés vérification du circuit de ventilation (gaine, extracteur, etc…) il sera possible de réarmer la chaudière.
Dispositif de sécurité collective VMC
Cette chaudière peut être, lorsqu’il existe, raccordée au dispositif de sécurité collective VMC gaz (ce dispositif ne se substitue
en aucun cas au dispositif intégré à la chaudière).
L’alimentation électrique (230 V 50 Hz) de la chaudière se fait par une ligne spécifique, commandée par un relais de sécurité,
indépendante de la chaudière et située dans le local à chauffer. Le relais de sécurité est lui-même piloté par le dispositif de
contrôle (pressostat, tachymètre,…) de la VMC collective.
En cas de panne de cette dernière, l’alimentation électrique de la chaudière sera interrompue entraînant l’interruption de l’arrivée
du gaz au brûleur. L’appareil est en position d’arrêt et se remettra automatiquement en marche après l’élimination du défaut.
23. VÉRIFICATION SÉCURITÉ VMC GAZ - POUR CHAUDIÈRE MS 24 MI VMC
950314_0100
21
71.03982.03 - FR
INSTRUCTIONS DESTINÉES À L’INSTALLATEUR
Pour que les techniciens chauffagistes puissent mesurer le rendement de la combustion et s’assurer que les produits de
combustion ne constituent pas un risque pour la santé, la chaudière est équipée de deux prises spécifiques. Une prise
est raccordée au circuit d’évacuation des fumées et permet de relever les caractéristiques des produits de combustion
et le rendement de la combustion. L’autre est raccordée au circuit d’aspiration de l’air comburant et permet de contrôler
l’éventuelle remise en circulation des produits de combustion dans les conduits coaxiaux.
Dans la prise raccordée au circuit d’évacuation on peut relever les paramètres suivants :
• température des produits de combustion
• concentration d’oxygène (O
2
) ou de dioxyde de carbone (CO
2
)
• concentration d’oxyde de carbone (CO).
La température de l’air comburant doit être relevée en insérant une sonde à au moins 3 cm à l’intérieur de la prise.
N.B.:
pour le réglage de la puissance nominale, voir le paragraphe 19 (B1)
Pour les chaudières à ventilation naturelle, un trou devra être percé dans le conduit d’évacuation des gaz à une distance
égale à deux fois le diamètre du conduit. A travers ce trou, il sera possible de mesurer les paramètres suivants :
• température des produits de combustion
• concentration d’oxygène (O
2
) ou de dioxyde de carbone (CO
2
)
• concentration d’oxyde de carbone (CO)
La température de l’air comburant doit être mesurée à proximité du point d’entrée de l’air dans la chaudière.
Le trou, qui sera percé par le responsable de l’installation à l’occasion de la première mise en service, devra être rebouché
pour garantir l’étanchéité du conduit d’évacuation des produits de combustion pendant le fonctionnement normal.
25. VÉRIFICATION DES PARAMÈTRES DE COMBUSTION 26. DÉBIT ET HAUTEUR D’ÉLÉVATION DE LA POMPE
Graphique 1
DÉBIT DE LA POMPE l/h
Hauteur d’élévation de la
pompe mH
2
O
1009_2401
DÉBIT DE LA POMPE l/h
Hauteur d’élévation de la
pompe mH
2
O
1010_2802
La pompe utilisée (GRUNDFOS
UPSO 15-50) est du type à grande
hauteur manométrique et convient
pour la plupart des installations de
chauffage monotube ou bitube.
Le degazeur incorporé dans le corps
de la pompe permet une purge ra-
pide de l’installation de chauffage.
MS 24 MI - MS 24 MI VMC - MS 24 MI FF
Оглавление
- SOMMAIRE
- 5. DESCRIPTION DES TOUCHES (ÉTÉ – HIVER – CHAUFFAGE SEULEMENT – ARRÊT)
- •
- 28. RACCORDEMENT D’UN BALLON SEPARE AVEC UN MOTEUR VANNE 3 VOIES
- 5. DESCRIZIONE TASTO (Estate - Inverno - Solo riscaldamento - Spento)
- •
- 5. DESCRIPTION OF BUTTON (Summer - Winter - Heating only - Off)
- •
- 5. DESCRIPCIÓN DE LA TECLA (Verano - Invierno - Sólo calefacción - Apagado)
- •
- 5. ОПИСАНИЕ НА БУТОН (Лято – Зима – Само отопление – Изключен)
- 8. СМЯНА НА ВИДА ГАЗ
- 13. УКАЗАНИЯ ПРЕДИ МОНТАЖА
- 15. РАЗМЕРИ НА КОТЕЛА
- •
- 28. ГОДИШЕН ПРЕГЛЕД
- SPIS TREŚCI
- 1. OSTRZEŻENIA PRZED ZAINSTALOWANIEM
- 3. ROZRUCH KOTŁA
- 4. REGULACJA TEMPERATURY POKOJOWEJ I CIEPŁEJ WODY UŻYTKOWEJ
- 7. WYŁĄCZENIE KOTŁA 8. ZMIANA GAZU
- 9. WYDŁUŻONY OKRES WYŁĄCZENIA INSTALACJI. OCHRONA PRZED ZAMARZANIEM
- 12. UWAGI OGÓLNE 13. WYMAGANIA INSTALACYJNE
- 14. UWAGI INSTALACYJNE
- 15. WYMIARY KOTŁA
- 16. INSTALOWANIE PRZEWODÓW POWIETRZNO-SPALINOWYCH
- 17. PODŁĄCZENIE ELEKTRYCZNE 18. PODŁĄCZENIE TERMOSTATU POKOJOWEGO
- 19. SPOSÓB ZMIANY RODZAJU GAZU
- •
- 21. USTAWIENIE PARAMETRÓW
- 23. USTAWIENIE ELEKTRODY ZAPŁONOWEJ I JONIZACYJNEJ PŁOMIEŃ
- 24. KONTROLA PARAMETRÓW SPALANIA 25. CHARAKTERYSTYKA NATĘŻENIA PRZEPŁYWU/WYSOKOŚCI PODNOSZENIA
- 26. PODŁĄCZENIE CZUJNIKA ZEWNĘTRZNEGO
- 28. KONSERWACJA ROCZNA
- 30. CZYSZCZENIE FILTRÓW
- 32. DEMONTAŻ WYMIENNIKA WODA-WODA
- 33. SCHEMAT FUNKCJONALNY OBWODÓW
- 34. SCHEMAT POŁACZEŃ ELEKTRYCZNYCH
- 35. CHARAKTERYSTYKA TECHNICZNA
- CUPRINS
- 1. AVERTISMENTE ANTERIOARE INSTALĂRII
- 3. PUNEREA ÎN FUNCŢIUNE A CENTRALEI TERMICE
- 4. REGLAREA TEMPERATURII AMBIANTE ŞI A TEMPERATURII APEI MENAJERE
- 7. OPRIREA CENTRALEI TERMICE 8. SCHIMBAREA TIPULUI DE GAZ
- 10. INTRAREA ÎN FUNCŢIUNE A DISPOZITIVELOR DE SIGURANŢA
- 12. AVERTISMENTE GENERALE 13. AVERTISMENTE ANTERIOARE INSTALĂRII
- 13. INSTALLAZIONE DELLA CALDAIA 14. INSTALAREA CENTRALEI TERMICE
- 14. DIMENSIONI CALDAIA 15. DIMENSIUNILE CENTRALEI TERMICE
- 16. INSTALAREA CONDUCTELOR DE EVACUARE GAZE ARSE ŞI ADMISIE AER
- 17. CONECTAREA LA REŢEAUA ELECTRICĂ 18. CONECTAREA TERMOSTATULUI AMBIENTAL
- 19. MODALITĂŢI DE SCHIMBARE A TIPULUI DE GAZ
- 20. VIZUALIZAREA PARAMETRILOR PE AFIŞAJ (FUNCŢIE “INFO”)
- 21. SETAREA PARAMETRILOR
- 23. POZIŢIONAREA ELECTRODULUI DE APRINDERE ŞI DETECTARE A FLĂCĂRII
- 24. VERIFICAREA PARAMETRILOR DE COMBUSTIE 25. PERFORMANŢE DEBIT/ÎNĂLŢIME DE POMPARE
- 26. CONECTAREA SONDEI EXTERNE
- 28. ÎNTREŢINEREA ANUALĂ
- 30. CURĂŢAREA FILTRELOR
- 32. DEMONTAREA SCHIMBĂTORULUI APĂ-APĂ
- 33. DIAGRAMĂ FUNCŢIONALĂ CIRCUITE
- 34. DIAGRAMĂ CUPLARE CONECTORI
- 35. CARACTERISTICI TEHNICE
- ΠΕΡΙΕΧΟΜΕΝΑ
- 1. ΟΔΗΓΙΕΣ ΠΡΙΝ ΤΗΝ ΕΓΚΑΤΑΣΤΑΣΗ
- 3. ΘΕΣΗ ΣΕ ΛΕΙΤΟΥΡΓΙΑ ΤΟΥ ΛΕΒΗΤΑ
- 4. ΡΥΘΜΙΣΗ ΤΗΣ ΘΕΡΜΟΚΡΑΣΙΑΣ ΠΕΡΙΒΑΛΛΟΝΤΟΣ ΚΑΙ ΤΟΥ ΝΕΡΟΥ ΟΙΚΙΑΚΗΣ ΧΡΗΣΗΣ
- 7. ΣΒΗΣΙΜΟ ΤΟΥ ΛΕΒΗΤΑ 8. ΑΛΛΑΓΗ ΑΕΡΙΟΥ
- 10. ΕΝΔΕΙΞΕΙΣ-ΕΠΕΜΒΑΣΗ ΣΥΣΤΗΜΑΤΩΝ ΑΣΦΑΛΕΙΑΣ
- 12. ΓΕΝΙΚΕΣ ΠΛΗΡΟΦΟΡΙΕΣ 13. ΟΔΗΓΙΕΣ ΠΡΙΝ ΤΗΝ ΕΓΚΑΤΑΣΤΑΣΗ
- 13. INSTALLAZIONE DELLA CALDAIA 14. ΕΓΚΑΤΑΣΤΑΣΗ ΤΟΥ ΛΕΒΗΤΑ
- 14. DIMENSIONI CALDAIA 15. ΔΙΑΣΤΑΣΕΙΣ ΛΕΒΗΤΑ
- 16. ΕΓΚΑΤΑΣΤΑΣΗ ΑΓΩΓΩΝ ΑΠΑΓΩΓΗΣ - ΑΝΑΡΡΟΦΗΣΗΣ
- 17. ΗΛΕΚΤΡΙΚΗ ΣΥΝΔΕΣΗ 18. ΣΥΝΔΕΣΗ ΤΟΥ ΘΕΡΜΟΣΤΑΤΗ ΔΩΜΑΤΙΟΥ
- 19. ΤΡΟΠΟΣ ΑΛΛΑΓΗΣ ΑΕΡΙΟΥ
- 20. ΑΠΕΙΚΟΝΙΣΗ ΠΑΡΑΜΕΤΡΩΝ ΣΤΗΝ ΟΘΟΝΗ (ΛΕΙΤΟΥΡΓΙΑ «INFO»)
- 21. ΡΥΘΜΙΣΗ ΠΑΡΑΜΕΤΡΩΝ
- 23. ΤΟΠΟΘΕΤΗΣΗ ΗΛΕΚΤΡΟΔΙΟΥ ΑΝΑΦΛΕΞΗΣ ΚΑΙ ΑΝΙΧΝΕΥΣΗΣ ΦΛΟΓΑΣ
- 24. ΕΛΕΓΧΟΣ ΠΑΡΑΜΕΤΡΩΝ ΚΑΥΣΗΣ 25. ΧΑΡΑΚΤΗΡΙΣΤΙΚΑ ΠΑΡΟΧΗΣ / ΜΑΝΟΜΕΤΡΙΚΟΥ ΥΨΟΥΣ ΣΤΗΝ ΠΛΑΚΑ
- 26. ΣΥΝΔΕΣΗ ΤΟΥ ΕΞΩΤΕΡΙΚΟΥ ΑΙΣΘΗΤΗΡΑ
- 28. ΕΤΗΣΙΑ ΣΥΝΤΗΡΗΣΗ
- 30. ΚΑΘΑΡΙΣΜΟΣ ΤΩΝ ΦΙΛΤΡΩΝ
- 32. ΑΠΟΣΥΝΑΡΜΟΛΟΓΗΣΗ ΕΝΑΛΛΑΚΤΗ ΝΕΡΟΥ-ΝΕΡΟΥ
- 33. ΛΕΙΤΟΥΡΓΙΚΟ ΣΧΕΔΙΟ ΚΥΚΛΩΜΑΤΩΝ
- 34. ΣΧΕΔΙΟ ΣΥΝΔΕΣΗΣ ΣΥΝΔΕΣΜΩΝ
- 35. ТЕХНИЧЕСКИ ХАРАКТЕРИСТИКИ
- 5. ОПИСАНИЕ КНОПКИ (Лето – Зима – Только Отопление – Выключено)
- •
- 5. 锅炉运行模式选择
- 错误信息及故障表

