De Dietrich MS 24 MI VMC – страница 5
Инструкция к Водонагревателю De Dietrich MS 24 MI VMC
81
71.03982.03 - EN
INSTALLATION INSTRUCTIONS
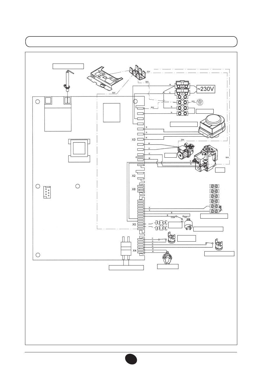
17. ELECTRICAL CONNECTIONS 18. CONNECTING THE ROOM THERMOSTAT
• Access the power supply terminal block (figure 9) as described in the previous section;
• remove the jumper on terminals (1) and (2);
• thread the two-wire cable through the grommet and connect it to these two terminals.
This machine is only electrically safe if it is correctly connected to an efficient earth system in compliance with current
safety regulations.
Connect the boiler to a 230V single-phase earthed power supply using the supplied three-pin cable, observing correct
LIVE-NEUTRAL polarity.
Use a double-pole switch with a contact separation of at least 3 mm
. When replacing the power supply cable, fit a
harmonised HAR H05 VV-F’ 3x0.75mm
2
cable with a maximum diameter of 8 mm.
…Access to the power supply terminal block
• disconnect the boiler from the mains power supply using the two-pole switch;
• remove the two screws fixing the control panel to the boiler;
• rotate the control panel;
• remove the cover and access the wiring area (figure 9).
The 2A fast-blowing fuse is incorporated in the power supply terminal block (to check and/or replace the fuse, pull out
the black fuse carrier).
IMPORTANT:
respect polarity
L
(LIVE) -
N
(NEUTRAL).
(L) =
Live
(brown)
(N) =
Neutral
(blue)
=
Earth
(yellow-green)
(1) (2) =
Contact for room thermostat
CG_2008 / 1009_0301
Figure 9
82
71.03982.03 - EN
INSTALLATION INSTRUCTIONS
19. GAS CONVERSION
The authorised Technical Assistance Service can convert this boiler to natural gas (
G. 20
) or liquid gas (
G.31
).
Carry out the following operations:
A) replace the nozzles of the main burner and the gas diaphragm (if fitted);
B) new max. and min. calibration of the pressure regulator.
A) Replace the burner nozzles
• carefully pull the main burner off its seat;
• replace the main burner nozzles making sure to fully tighten them to prevent gas leaks. Nozzle diameters are specified
in table 2.
B) Calibrate the pressure regulator
• connect the positive pressure test point of a differential pressure gauge (possibly water-operated) to the gas valve
pressure test point (
Pb
) (Figure 10). Only for models with sealed chambers, connect the negative pressure test point of
the manometer to a “T” fitting in order to join the boiler adjustment outlet, the gas valve adjusting outlet (Pc) and the
pressure gauge. (The same measurement can be made by connecting the pressure gauge to the pressure test point
(
Pb
) after removing the front panel of the sealed chamber);
Measuring burner pressure using methods other than those described could lead to incorrect results as the low pressure
created by the fan in the sealed chamber would not be taken into account.
B1) Adjustment to nominal heat output:
• open the gas tap and switch the boiler to the Winter mode;
• open a hot water tap that can provide a flow rate of at least 10 litres a minute or make sure there is maximum heat
demand;
• remove the modulator cover;
• adjust the tube brass screw (a) until the pressure values shown in table 1 are obtained;
make sure that the dynamic inlet pressure of the boiler, measured at the gas valve pressure test point (Pa) (Figure 10) is
correct (37 mbar for propane or 20 mbar for natural gas).
B2) Adjustment to reduced heat output:
• disconnect the modulator power cable and unscrew the screw (b) until a pressure value corresponding to reduced heat
output is achieved (see tab. 1);
• reconnect the cable;
• mount the modulator cover and seal.
B3) Final checks
• attach the additional plate supplied with the transformer, specifying the type of gas and the calibration performed.
Figure 10
gas valve
mod. SIGMA 845
b
a
0605_1502
Figure 11
CG_2273 / 1008_2602
gas diaphragm
ATTENTION
If the natural gas inlet pressure is too low (less than 17 mbar) remove the gas diaphragm installed over the gas valve (fig.
10) and set parameter
F02=00
on the electronic board (§21).
83
71.03982.03 - EN
INSTALLATION INSTRUCTIONS
19.1 GAS VALVE CALIBRATION FUNCTION
Note:
The function is automatically deactivated after a period of 15 minutes, at the end of which the electronic board returns to
its operating status prior to the activation of the function or prior to reaching the set maximum temperature.
To simplify calibration of the gas valve, the calibration function may be set directly
on the boiler control panel as follows:
a)
hold down the buttons
and
together for at least 6 seconds;
b)
after about 6 seconds, the symbols
flash;
c)
the display shows, at intervals of one second, “
100
” and the
flow temperature
.
In this phase, the boiler works at the maximum heating output (100%).
d)
press
+/-
to immediately set the power of the boiler (100% or 0%);
e)
adjust the
“Pmax/Pmin”
screw (figure 10) to set the burner pressure value as
described in table 1.
To adjust pressure at maximum power, turn the “
Pmax
” screw (fig. 10) clockwise
to increase or anti-clockwise to decrease pressure at the burner.
To adjust pressure at minimum power, turn the “
Pmin
” screw (fig. 10) clockwise
to increase or anti-clockwise to decrease pressure at the burner.
f)
press
+/-
to gradually set the desired power level (interval = 1%).
Press the button to leave the function.
0805_2302 / 1002_1201
Consumption 15°C-1013 mbar
24 MI FF - 24 FF
24 - 24 MI
G20
G31
G20
G31
Rated power
2,80 m
3
/h
2,00 kg/h
2,80 m
3
/h
2,04 kg/h
Reduced power
1,12 m
3
/h
0,82 kg/h
1,12 m
3
/h
0,82 kg/h
p.c.i.
34,02 MJ/m
3
46,34 MJ/kg
34,02 MJ/m
3
46,34 MJ/kg
Table 2
* 1 mbar = 10,197 mmH
2
O
Table of burner nozzles
24 MI FF - 24 FF
24 - 24 MI
gas type
G20
G31
G20
G31
diameter of nozzles (mm)
1,28
0,77
1,18
0,77
Burner pressure (mbar*)
REDUCED HEAT OUTPUT
2,0
5,7
2,4
5,6
Burner pressure (mbar*)
RATED HEAT OUTPUT
11,6
32,6
13,8
31,0
Diameter of gas diaphragm (mm)
4,8
—
5,5
—
N° nozzles
13
Table 1
84
71.03982.03 - EN
INSTALLATION INSTRUCTIONS
20. VISUALISATION OF PARAMETERS ON THE DISPLAY (“INFO” FUNCTION)
Press “
i
” for at least 5 seconds to visualise certain boiler information on the display on the front panel of the boiler.
•
Press buttons (
+/-
) to display the following information:
A00:
current DHW temperature (°C);
A01:
current external temperature (°C) (with external sensor connected);
A02:
modulation current value (100% = 310 mA METHANE - 100% = 310 mA LPG);
A03:
power range (%) (MAX R);
A04:
heating setpoint temperature (°C) - - If the external sensor is connected, the value of the “
kt
” curve is displayed
(section 26);
A05:
current heating delivery temperature (°C);
A06:
DHW temperature setpoint (°C);
A07:
— — ;
A08:
value (l/minx10) of the DHW flow rate;
A09:
last error that occurred in the boiler.
•
This function remains active for 3 minutes. It is possible to interrupt the “INFO” function in advance by pressing button
(
i
) for at least 5 seconds, or turning off the power to the boiler.
N.B:
when the “INFO” function is enabled, the message “A00”, alternating with the boiler delivery temperature,
is shown on the display (figure 12):
0605_2204 / CG_1808
Figure 12
85
71.03982.03 - EN
INSTALLATION INSTRUCTIONS
Description of parameters
Factory settings
24 MI FF
24 FF
24 MI
24
F01
Type of boiler
10
= sealed chamber
20
= atmospheric chamber
10
10
20
20
F02
Gas used
00
= METHANE
01
= LPG
02
= METHANE (WITH DIAPHRAGM)
02
F03
Hydraulic system
00
= instantaneous appliance
03
= appliance with external storage boiler
04
= appliance for heating only
13
= preheating (24h)
14
= preheating (1h)
13
04
13
04
F04/ F05
Setting programmable relays 1 and 2 (See SERVICE instructions)
00
= no associated function
00
F06
Maximum CH setpoint (°C)
00
= 85°C -
01
= 45°C (function unavailable)
00
F07
DHW inlet priority configuration
00
01
00
01
F08
CH max. output
(0-100%)
100
F09
DHW max. output
(0-100%)
100
F10
Min. heating output
(0-100%)
00
F11
Delay prior to new ignition in CH mode
(00-10 minutes) - 00=10 seconds
03
F12
Diagnostics (See SERVICE Instructions)
--
F13-F14-F15
Factory settings
00
F16
Anti-legionella function
(with F03=03)
00
= disabled
55...67
= enabled (setpoint °C)
00
F17
CH pressure sensor selection
00
= hydraulic pressure sensor
01
= hydraulic differential pressure sensor
00
F18
Manufacture information
00
21. PARAMETER SETTINGS
To set the boiler parameters, press (
–
) and (
–
) together and hold down for at least 6 seconds. When the function is
activate, the “
F01
” appears on the display alternating with the value of the parameter shown.
Edit parameters
• Press (
+/–
) to scroll through the parameters;
• Press (
+/–
) to edit each parameter;
• Press
(
)
, to save the changes. “
MEM
” appears on the display;
• Press
(
i
)
,
to exit without saving. “
ESC
” appears on the display.
22. ADJUSTMENT AND SAFETY DEVICES
The boiler has been designed in full compliance with European reference standards and in particular is fitted with the
following:
• Air pressure switch (model 24 MI FF - 24 FF)
This device only allows the burner to ignite if the exhaust flue duct is in perfect working order.
In the event of one or more of the following faults:
• flue terminal obstructed
• venturi tubes obstructed
• fan blocked
• venturi tube connection - pressure switch tripped
the boiler remains on standby and error code E03 is displayed (see table in section 10).
• Fumes thermostat (model 24 MI - 24)
This device has a sensor positioned on the left section of the fumes hood and shuts off the gas flow to the main burner
if the flue is obstructed and/or if there is no draught.
In these conditions the boiler shuts down and displays error code E03 (section 10).
After eliminating the problem, press button ( ), for at least 2 seconds to re-ignite immediately.
It is forbidden to disable this safety device
86
71.03982.03 - EN
INSTALLATION INSTRUCTIONS
• Safety thermostat
Thanks to a sensor placed on the CH flow line, this thermostat interrupts the flow of gas to the burner if the water in
the primary circuit overheats. In these conditions, the boiler is blocked and only after the fault has been eliminated can
it be ignited again by pressing ( ), for at least 2 seconds.
It is forbidden to disenable this safety device
• Flame ionization detector
The flame sensing electrode, located on the right-hand side of the burner, guarantees safety of operation in case of gas
failure or incomplete ignition of the burner.
In these conditions, the boiler is blocked after 3 ignition attempts.
Press ( ), for at least 2 seconds to re-establish normal operating conditions.
• Hydraulic pressure switch
This device allows the main burner to be ignited only if system pressure is higher than 0.5 bars.
• Pump overrun for heating circuit
The electronically-controlled pump post-circulation function lasts 180 seconds and is enabled, in the heating mode, if
the ambient thermostat causes the burner to go out.
• Pump overrun for DHW circuit
The electronically-controlled pump post-circulation function lasts 30 seconds and is enabled, in the DHW mode, if the
probe causes the burner to go out.
• Frost protection device (CH and DHW systems)
The electronic boiler management system includes a “frost protection” function for the heating system which, when
delivery temperature falls below 5°C, operates the burner until a delivery temperature of 30°C is reached.
This function is enabled when the boiler is switched on, the gas supply is open and the system is correctly pressurised.
• Water not circulating in primary circuit (pump probably blocked)
If there is insufficient or no water circulating in the primary circuit, the boiler blocks and the error code E25 is shown on
the display (section 10).
• Anti-block pump function
If no heat demand is received for 24 consecutive hours, in the heating mode, the pump will automatically start and
operate for 10 seconds. This function is operative when the boiler is powered.
• Three-way valve anti-blockage function
If no heat demand is received for a period of 24 hours, the three-way valve performs a complete switching cycle. This
function is operative when the boiler is powered.
• Hydraulic safety valve (heating circuit)
This device is set to 3 bar and is used for the heating circuit
.
Connect the safety valve to a drain trap. Do not use it to drain the heating circuit.
N.B.:
domestic hot water is guaranteed even if the NTC sensor develops a fault. In this case, temperature is controlled
by the delivery sensor.
23. POSITIONING THE IGNITION AND FLAME-SENSING ELECTRODE
Figure 13
9912070100
87
71.03982.03 - EN
INSTALLATION INSTRUCTIONS
To measure combustion efficiency and the toxicity of the products of combustion, the boiler is fitted with two dedicated
test points.
One connection point is connected to the exhaust duct and is used to measure combustion efficiency and the toxicity of
the products of combustion.
The other is connected to the air intake circuit and is used to check for the presence of any products of combustion
circu¬lating in installations with co-axial flues.
The following parameters can be measured using the test point connected to the exhaust duct:
• temperature of the products of combustion;
• concentration of oxygen (O
2
) or, alternatively, carbon dioxide (CO
2
);
• concentration of carbon monoxide (CO).
The temperature of the comburent air must be measured on the test point located on the air intake flue by inserting the
measurement sensor by about 3 cm.
N.B.:
to regulate the rated power, see chapter 19 (B1)
For natural draught boiler models, a hole must be made in the exhaust flue at a distance from the boiler equal to twice
the internal diameter of the flue.
The following parameters can be measured through this hole:
• temperature of the products of combustion;
• concentration of oxygen (O
2
) or, alternatively, carbon dioxide (CO
2
);
• concentration of carbon monoxide (CO).
The temperature of the combustion air must be measured close to the point where the air enters the boiler. The hole,
which must be made by the person in charge of the system during commissioning, must be sealed so as to ensure that
the exhaust duct is airtight during normal operation.
24. CHECKING COMBUSTION PARAMETERS 25. PUMP CAPACITY/ HEAD
A high static head pump (GRUN-
DFOS UPSO 15-50), suitable for
installation on any type of single- or
double-pipe heating system, is used.
The automatic air valve incorporated
in the pump allows quick venting of
the heating system.
Graph 1
FLOW l/h
HEAD mH
2
O
1009_2401
1009_2402
FLOW l/h
HEAD mH
2
O
88
71.03982.03 - EN
INSTALLATION INSTRUCTIONS
26. CONNECTING THE EXTERNAL SENSOR
The wiring harness leaving the control board includes two RED wires fitted with faston covers. Connect the external sensor
to these two wires.
With the external sensor connected, the “
kt
” curve (Graph 2) can be changed by pressing
+/-
.
N.B.: In case of installation in an average living unit (good perimeter insulation and radiator systems), set the “
kt
” climate
curve to “25”.
27. CONNECTING AN EXTERNAL STORAGE BOILER
Model 24 - 24FF
The DHW priority sensor NTC is supplied as an accessory.
CONNECTING THE STORAGE BOILER SENSOR
The boiler can be connected to an external storage boiler. Hydraulically connect the storage boiler as shown in fig. 14.
Connect the DHW priority sensor NTC to terminals 5-6 on terminal block M2. The sensitive element of the NTC sensor must
be inserted in the special well located on the storage boiler. Adjust DHW temperature (35 °C...60 °C) by pressing
+/–
.
Figure 14
KEY
:
UB
STORAGE BOILER
UR
HEATER
V3V
EXTERNAL THREE-WAY VALVE
M2
CONNECTING TERMINAL
BLOCK
SB
DHW PRIORITY STORAGE
BOILER SENSOR
MR
HEATING FLOW
MB
STORAGE BOILER FLOW
RR
HEATING / STORAGE BOILER
RETURN
IMPORTANT :
Make sure that parameter
F03 = 03
(section 21).
TM
= Flow temperature range
Te
= External temperature
Graph 2
TM
Te
“kt” curves
1012_0501
CG_2085 / 1101_1701
89
71.03982.03 - EN
INSTALLATION INSTRUCTIONS
To optimise boiler efficiency, carry out the following annual controls:
• check the appearance and air-tightness of the gaskets of the gas and combustion circuits;
• check the state and correct position of the ignition and flame-sensing electrodes;
• check the state of the burner and make sure it is firmly fixed;
• check for any impurities inside the combustion chamber.
Use a vacuum cleaner to do this;
• check the gas valve is correctly calibrated;
• check the pressure of the heating system;
• check the pressure of the expansion vessel;
• check the fan works correctly;
• make sure the flue and air ducts are unobstructed.
WARNINGS
Before commencing any maintenance operations, make sure the boiler is disconnected from the power supply.
Afterwards, move the knobs and/or operating parameters of the boiler to their original positions.
28. ANNUAL SERVICING
Drain the boiler by opening the drain tap.
In boilers MS 24 MI and MS 24 MI FF the drain tap is located at the bottom while for boilers MS 24 and MS 24 FF it is
next to the pump (1 – fig. 15).
To drain the boiler using the drain tap located at the bottom, proceed as follows (fig. 15):
- close the boiler on/off valves;
- open the drain tap using an 8 mm hex wrench;
- drain the boiler;
- close the drain tap using the 8 mm hex wrench.
29. DRAINING THE BOILER CIRCUIT
CG_2284 / 1009_2405
Figure 15
90
71.03982.03 - EN
INSTALLATION INSTRUCTIONS
The DHW and CH filters are housed in special extractable cartridges. The CH cartridge is located on the CH return line
(figure 16F) while the DHW cartridge is on the cold water input (figure 16E). To clean the filters, proceed as described below:
• switch off the boiler;
• shut the DHW inlet tap
• drain the water in the CH circuit by opening tap A in figure 16.
• remove the clip (1-E/F) from the filter as illustrated in the figure and take out the cartridge (2-E/F) containing the filter,
taking care not to apply excessive force;
• to extract the heating filter cartridge, first remove the 3-way valve motor (1-2G - figure 16);
• eliminate any impurities and deposits from the filter;
• reposition the filter in the cartridge and put it back into its housing, securing it with the clip.
• to change the DHW NTC sensor, see figure 16D.
WARNING
when replacing and/or cleaning the O-rings on the hydraulic assembly, only use Molykote 111 as a lubricant, not oil or grease.
30. CLEANING THE FILTERS
The DHW circuit can be cleaned without removing the water-water heat exchanger if the assembly is fitted with the special
tap (available on request) located on the DHW outlet. To clean, proceed as follows:
• Close the DHW inlet tap;
• Drain the DHW system by opening a hot water tap;
• Close the DHW outlet tap;
• Remove the clip 1E in figure 16;
• Remove the filter (2E figure 16);
• to change the DHW NTC sensor, see figure 16D.
If the special tap is not supplied, dismount the water-water heat exchanger, as described in the next section, and clean it
separately. Remove the scale from the seat and relative NTC sensor fitted on the DHW circuit (figure 16D).
To clean the exchanger and/or DHW circuit, use Cillit FFW-AL or Benckiser HF-AL.
31. REMOVING SCALE FROM THE DHW CIRCUIT
91
71.03982.03 - EN
INSTALLATION INSTRUCTIONS
The stainless steel plate-type water-water heat exchanger can be disassembled with a hex wrench by operating as de-
scribed below:
• drain the system, just the boiler if possible,
through the drain tap
;
• drain the DHW system;
• unscrew the pipe connecting the expansion vessel to the hydraulic assembly;
• remove the heating pressure switch (16H) without disconnecting the cable harness;
• remove the two screws (fig. 16B) at the front securing the water-water heat exchanger and pull it out using the space
created after removing the heating pressure switch;
• clean the heat exchanger and put it back in place;
• screw on the pipe connecting the expansion vessel to the hydraulic assembly;
• put the hydraulic pressure switch back in place.
32. DISMOUNTING THE WATER-WATER HEAT EXCHANGER
WARNING
Pay great attention when dismantling the individual parts of the hydraulic assembly.
Do not use sharp tools, do not apply excessive force when removing the fixing clip.
Figure 16
CG_2078 / 1009_2201
92
71.03982.03 - EN
INSTALLATION INSTRUCTIONS
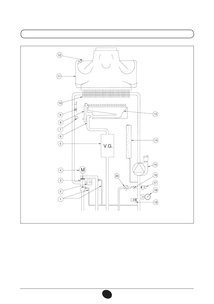
33. FUNCTIONAL CIRCUIT DIAGRAM
24 MI FF
Key:
1
Pump and air separator
2
No-return valve
3
Three-way valve
4
Three-way valve motor
5
Pressure gauge
6
Heating circuit extractable filter
7
Disconnector
8
Boiler filling tap
9
Cold water extractable filter
10
DHW priority sensor
11
NTC domestic hot water sensor
12
Check valve on automatic by-pass
13
Water pressure switch
14
Boiler drain tap
15
Safety valve
16
Water-water plate heat exchanger
17
Gas valve with gas diaphragm
18
Gas train with nozzles
19
Central heating NTC sensor
20
Ignition/flame detection electrode
21
Safety thermostat
22
Water-fumes exchanger
23
Fumes conveyor
24
Fan
25
Venturi tube
26
Positive pressure point
27
Negative pressure point
28
Air pressure switch
29
Burner
30
Expansion vessel
Figure 17
Heating flow
DHW
outlet
Gas
DHW
inlet
Heating return
CG_2269 / 1006_1805
93
71.03982.03 - EN
INSTALLATION INSTRUCTIONS
24 MI
Key:
1
Pump and air separator
2
Check valve
3
Three-way valve
4
Three-way valve motor
5
Pressure gauge
6
Heating circuit extractable filter
7
Disconnector
8
Boiler filling tap
9
Cold water extractable filter
10
DHW priority sensor
11
NTC domestic hot water sensor
12
Check valve on automatic by-pass
13
Water pressure switch
14
Boiler drain tap
15
Safety valve
16
Water-water plate heat exchanger
17
Gas valve with gas diaphragm
18
Gas train with nozzles
19
Central heating NTC sensor
20
Ignition/flame detection electrode
21
Safety thermostat
22
Water-fumes exchanger
23
Fumes conveyor
24
Fumes thermostat
25
Burner
26
Expansion vessel
Figure 18
Heating flow
DHW
outlet
Gas
DHW
inlet
Heating return
CG_2270 / 1006_1806
94
71.03982.03 - EN
INSTALLATION INSTRUCTIONS
24 FF
Key:
1
Automatic by-pass with check valve
2
Hydraulic pressure switch
3
Three-way valve
4
Three-way valve motor
5
Gas valve with gas diaphragm
6
Gas train with nozzles
7
NTC heating sensor
8
Ignition/flame detection electrode
9
Safety thermostat
10
Water-fumes exchanger
11
Fumes conveyor
12
Fan
13
Venturi tube
14
Positive pressure tap
15
Negative pressure tap
16
Air pressure switch
17
Burner
18
Expansion vessel
19
Pump and air separator
20
Non-return valve
21
Boiler drain tap
22
Pressure gauge
23
Safety valve
24
Disconnector
Figure 19
Heating flow
Gas
DHW
inlet
Heating return
CG_2267 / 1006_2102
Storage
boiler
flow
95
71.03982.03 - EN
INSTALLATION INSTRUCTIONS
24
Key:
1
Automatic by-pass with check valve
2
Hydraulic pressure switch
3
Three-way valve
4
Three-way valve motor
5
Gas valve with gas diaphragm
6
Gas train with nozzles
7
NTC heating sensor
8
Ignition/flame detection electrode
9
Safety thermostat
10
Water-fumes exchanger
11
Fumes conveyor
12
Fumes thermostat
13
Burner
14
Expansion vessel
15
Pump and air separator
16
Non-return valve
17
Boiler drain tap
18
Pressure gauge
19
Safety valve
20
Disconnector
Figure 20
Heating flow
Gas
DHW
inlet
Heating return
CG_2268 / 1006_2103
Storage
boiler
flow
96
71.03982.03 - EN
INSTALLATION INSTRUCTIONS
34. WIRING DIAGRAM
24 MI FF
CG_2075 / 1001_1806
Cable colours
C
= Light blue
M
= Brown
N
= Black
R
= Red
G/V
= Yellow/Green
B
= White
V
= Green
DETECTION/IGNITION
ELECTRODE
THERMOSTAT
THREE-WAY VALVE
PUMP
FAN
DOMESTIC WATER
PRIORITY SENSOR
DHW NTC SENSOR.
EXTERNAL
SENSOR
HYDRAULIC PRESSURE
SWITCH
SAFETY
THERMOSTAT
AIR PRESSURE SWITCH
CH NTC SENSOR
PROGRAMMING
GAS
VALVE
97
71.03982.03 - EN
INSTALLATION INSTRUCTIONS
24 MI
CG_2076 / 1001_1807
Cable colours
C
= Light blue
M
= Brown
N
= Black
R
= Red
G/V
= Yellow/Green
B
= White
V
= Green
DETECTION/IGNITION
ELECTRODE
THERMOSTAT
THREE-WAY VALVE
PUMP
DOMESTIC WATER
PRIORITY SENSOR
DHW NTC SENSOR.
EXTERNAL
SENSOR
HYDRAULIC PRESSURE
SWITCH
SAFETY
THERMOSTAT
FUMES THERMOSTAT
CH NTC SENSOR.
PROGRAMMING
GAS
VALVE
98
71.03982.03 - EN
INSTALLATION INSTRUCTIONS
24 FF
Cable colours
C
= Light blue
M
= Brown
N
= Black
R
= Red
G/V
= Yellow/Green
B
= White
V
= Green
DETECTION/IGNITION
ELECTRODE
THERMOSTAT
TERMINAL BLOCK M2
PUMP
EXTERNAL
SENSOR
HYDRAULIC PRESSURE
SWITCH
SAFETY
THERMOSTAT
AIR PRESSURE SWITCH
CH NTC SENSOR.
PROGRAMMING
FAN
CG_2271 / 1006_1603
THREE-WAY VALVE
GAS
VALVE
99
71.03982.03 - EN
INSTALLATION INSTRUCTIONS
24
Cable colours
C
= Light blue
M
= Brown
N
= Black
R
= Red
G/V
= Yellow/Green
B
= White
V
= Green
DETECTION/IGNITION
ELECTRODE
THERMOSTAT
TERMINAL BLOCK M2
PUMP
EXTERNAL
SENSOR
HYDRAULIC PRESSURE
SWITCH
SAFETY
THERMOSTAT
CH NTC SENSOR.
PROGRAMMING
THREE-WAY VALVE
GAS
VALVE
CG_2272 / 1010_2101
FUMES THERMOSTAT
100
71.03982.03 - EN
INSTALLATION INSTRUCTIONS
35. TECHNICAL SPECIFICATIONS
Model MS
24 MI FF
24 FF
24 MI
24
Category
II
2H3P
II
2H3P
II
2H3P
II
2H3P
Rated heat input
kW
25,8 25,8 26,3 26,3
Reduced heat input
kW
10,6 10,6 10,6 10,6
Rated heat output
kW
24 24 24 24
kcal/h
20.600 20.600 20.600 20.600
Reduced heat output
kW
9,3 9,3 9,3 9,3
kcal/h
8.000 8.000 8.000 8.000
Useful efficiency according to directive 92/42/EEC
—
★★★
★★★
★★
★★
Max. water pressure in CH system
bar
3
3
3
3
Expansion vessel capacity
l
6 6 6 6
Expansion vessel pressure
bar
1
1
1
1
DHW max. water pressure
bar
8
—
8
—
DHW min. dynamic water pressure
bar
0,15 — 0,15 —
Minimum DHW flow
l/min
2,0
— 2,0
—
DHW output at ∆T=25 °C
l/min
13,7 — 13,7 —
DHW output at ∆T=35 °C
l/min
9,8
— 9,8
—
Specific output (*)
l/min
12
—
12
—
Temperature range in heating system
°C
30/85 30/85 30/85 30/85
Temperature range in DHW system
°C
35/60 35/60*** 35/60 35/60***
Type
—
C12-C32-C42-C52-C82-B22
B
11BS
B
11BS
Coaxial flue duct diameter
mm
60 60
-
-
Coaxial air duct diameter
mm
100 100 -
-
2-pipe flue duct diameter
mm
80 80
-
-
2-pipe air duct diameter
mm
80 80
-
-
Flue duct diameter
mm
-
- 125 125
Max. flue mass flow rate
kg/s
0,014 0,014 0,020 0,020
Min. flue mass flow rate
kg/s
0,014 0,014 0,018 0,018
Max. exhaust temperature
°C
146 146 110 110
Min. exhaust temperature
°C
116 116 85 85
NOx Class
—
3
3
3
3
Type of gas
—
G20 G20 G20 G20
—
G31 G31 G31 G31
Natural gas supply pressure
mbar
20
20
20
20
Propane gas supply pressure
mbar
37
37
37
37
Power supply voltage
V
230 230 230 230
Power supply frequency
Hz
50 50 50 50
Rated power supply
W
130 130 80 80
Net weight
kg
33 32 29 28
Dimensions
Height
mm
730
730
730
730
Width
mm
400
400
400
400
Depth
mm
299
299
299
299
Protection against humidity and water
(**)
IP X5D
IP X5D
IP X5D
IP X5D
(*) according to EN 625
(**) according to EN 60529
(***) with external storage boiler
As DE DIETRICH constantly strives to improve its products, it reserves the right to modify the information contained in this document at
any time and without prior notice. This document is issued purely for the sake of information and should not be considered as a contract
with third parties.

