De Dietrich MS 24 MI VMC: 5. ОПИСАНИЕ КНОПКИ (Лето – Зима – Только Отопление – Выключено)
5. ОПИСАНИЕ КНОПКИ (Лето – Зима – Только Отопление – Выключено): De Dietrich MS 24 MI VMC
269
РУКОВОДСТВО ДЛЯ ПОЛЬЗОВАТЕЛЯ
71.03982.03 - RU
4. РЕГУЛИРОВАНИЕ КОМНАТНОЙ ТЕМПЕРАТУРЫ И ТЕМПЕРАТУРЫ ГОРЯЧЕЙ САНИТАРНОЙ ВОДЫ
Нажимая данную кнопку, можно установить следующие режимы работы котла:
• ЛЕТО
• ЗИМА
• ТОЛЬКО ОТОПЛЕНИЕ
• ВЫКЛЮЧЕНО
При работе котла в режиме ЛЕТО на дисплее появляется символ (
). Котел работает только на приготовление горячей
воды (функция «защита от замерзания» остается активна).
При работе котла в режиме ЗИМА на дисплее появляются символы (
) (
). Котел работает как на отопление, так и на
приготовление горячей воды (функция «защита от замерзания» активна).
При работе котла в режиме ТОЛЬКО ОТОПЛЕНИЕ на дисплее появляется символ ( ). Котел работает только на систему
отопления (функция «защита от замерзания» активна).
В режиме
ВЫКЛЮЧЕНО
на дисплее отсутствуют оба символа (
) (
). Котел не работает, остается активна только
функция «защита от замерзания».
5. ОПИСАНИЕ КНОПКИ (Лето – Зима – Только Отопление – Выключено)
Оборудование должно быть оснащено комнатным термостатом для контроля температуры в помещении.
Регулирование температуры в помещении (
) и температуры горячей бытовой воды (
) осуществляется с помощью
кнопок +/- (см. рис 1).
Наличие пламени на горелке показано на дисплее панели управления символом ( ), как описано в главе 3.1.
СИСТЕМА ОТОПЛЕНИЯ
Во время работы котла на систему отопления на дисплее (рис.1) появляется мигающий символ (
) и температура (°С) на
подаче в систему отопления.
СИСТЕМА ГВС
Во время работы котла на систему ГВС на дисплее (рис.1) появляется мигающий символ (
) и температура (°С) горячей
бытовой воды).
270
РУКОВОДСТВО ДЛЯ ПОЛЬЗОВАТЕЛЯ
71.03982.03 - RU
Для выключения котла необходимо отключить электропитание прибора. Когда переключатель режимов находится в положении
«ВЫКЛЮЧЕНО» (см. параграф 5) , то котел не работает (на дисплее появляется надпись OFF), но электрический контур котла
остается под напряжением и остается активной функция «защита от замерзания» (параграф 9).
7. ВЫКЛЮЧЕНИЕ КОТЛА 8. ПЕРЕВОД КОТЛА НА ДРУГОЙ ТИП ГАЗА
Котел может работать как на природном, так и на сжиженном газе. Перевод котла на другой тип газа выполняет только
квалифицированный специалист.
ВНИМАНИЕ
Отключите электропитание котла с помощью двухполюсного вылючателя.
ВАЖНО:
Регулярно проверяйте по манометру, чтобы давление находилось в пределах от 0,7 до 1,5 бар при холодной системе
отопления. При превышении давления откройте сливной клапан. Если давление ниже нормы, откройте кран заполнения (рис.2).
Советуем открывать кран очень медленно для облегчения стравливания воздуха.
6. ЗАПОЛНЕНИЕ СИСТЕМЫ
Котел оборудован дифференциальным гидравлическим прессостатом, который отключает котел в случае
блокировки насоса или при недостатке воды.
Примечание:
Если давление падает часто, пусть ваш котел проверит квалифицированный специалист.
0807_2101 / C
G_2077
Рис.2
0807_2102 / C
G_2077
A - Кран для слива системы
B - Манометр
C - Кран для заполнения системы
(поставляется как принадлежность для моделей 24 FF - 24)
D - Разъединитель
24 MI FF - 24 MI
24 FF - 24
271
РУКОВОДСТВО ДЛЯ ПОЛЬЗОВАТЕЛЯ
71.03982.03 - RU
10. СИСТЕМА БЕЗОПАСНОСТИ: ИНДИКАТОРЫ И СРАБАТЫВАНИЕ
Рекомендуется избегать частых сливов воды из системы отопления, т.к. частая замена воды приводит к ненужным и вредным
отложениям накипи внутри котла и теплообменников. Если котел не используется в зимний период и существует опасность
замерзания, Вы можете использовать в системе отопления незамерзающие жидкости – антифризы. В инструкциях производителя
антифриза должно быть указано, что данный антифриз предназначен именно для систем отопления. При использовании антифриза
необходимо строго соблюдать рекомендации производителя. Для двухконтурных котлов рекомендуется использовать антифризы
на базе пропиленгликоля. Рекомендуемая концентрация антифриза должна соответствовать температуре замерзания от -15 ˚С до
-20 ˚С. В котле работает функция «защита от замерзания», которая при температуре воды на подаче системы отопления менее 5
°С включает горелку; горелка работает до достижения температуры 30 °С на подаче. Данная функция работает, если:
• котел подключен к электропитанию;
• в сети есть газ;
• давление в системе отопления соответствует установленным параметрам;
• котел не блокирован.
9. ВЫКЛЮЧЕНИЕ НА ДЛИТЕЛЬНЫЙ ПЕРИОД. ЗАЩИТА ОТ ЗАМЕРЗАНИЯ
ВАЖНО:
В случае неисправности базовая подсветка дисплея синхронно мигает с высвечивающимся кодом неисправности.
Для поддержания эффективной и безопасной работы Вашего котла в конце каждого сезона его должен проверить
квалифицированный специалист. Качественное обслуживание обеспечивает долгий срок службы и экономичную работу
системы. Внешнее покрытие котла нельзя чистить абразивными, едкими или легковоспламеняющимися моющими средствами
(такими как бензин, спирт и т.п.). Перед чисткой всегда отключайте оборудование от сети (см. параграф 6 “Выключение котла“).
11. УКАЗАНИЯ ПО УХОДУ
В случае неисправности на дисплее появится ее код (например. E 01):
Для перезапуска котла ус тановите переключатель
режимов (Рис.2) на 2 сек в положение «R». При
повторных срабатываниях данного ус тройс тва о
братитесь в обслуживающую организацию.
ВНИМАНИЕ:
Возможно осуществить только 5
попыток перезапуска котла, затем котел блокируется.
Для осуществления новой попытки перезапуска котла
необходимо выключить котел на несколько секунд.
Рис.3
0607_1205
Неисправность
ПЕРЕЗАПУСК
КОД
НЕИСПРАВНОСТИ
Описание неисправности
МЕРЫ ПО УСТРАНЕНИЮ
E01
Отсутствие зажигания
Нажимать не мене е 2 сек кнопк у “R”. В сл у чае повторного
срабатывания данного устройства, обратитесь в обслуживающую
организацию.
E02
Сработал предохранительный термостат перегрева
Нажимать не мене е 2 сек кнопк у “R”. В сл у чае повторного
срабатывания данного устройства, обратитесь в обслуживающую
организацию.
E03
Сработал предохранительный термостат (датчик
тяги)/ прессостат – датчик тяги
Обратиться в обслуживающую организацию
E04
Ошибка по частому срыву пламени
Нажимать не мене е 2 сек кнопк у “R”. В сл у чае повторного
срабатывания данного устройства, обратитесь в обслуживающую
организацию.
E05
Неисправен датчик температуры контура
отопления
Обратиться в обслуживающую организацию.
E06
Неисправен датчик температуры системы ГВС
Обратиться в обслуживающую организацию.
E10
Нет сигнала от гидравлического прессостата
Проверьте, чтобы давление в системе соответствовало необходимым
значениям (см. главу 6). Если неисправность остается, обратитесь в
обслуживающую организацию.
E25/E26
Отсутствие циркуляции воды (блокировка насоса) Обратиться в обслуживающую организацию.
E35
Ошибка пламени (паразитное пламя)
Нажимать не мене е 2 сек кнопк у “R”. В сл у чае повторного
срабатывания данного устройства, обратитесь в обслуживающую
организацию.
E96
Понижение напряжения в сети электропитания
Автоматический ПЕРЕЗАПУСК. В случае повторного срабатывания
данного устройства, обратитесь в обслуживающую организацию.
272
РУКОВОДСТВО ДЛЯ ТЕХНИЧЕСКОГО ПЕРСОНАЛА
71.03982.03 - RU
Котел предназначен для нагрева воды не выше температуры кипения при атмосферном давлении. Он подключается к системе
отопления и к системе приготовления горячей воды в соответствии с его характеристиками и мощностью.
До установки котла необходимо:
a) Проверить, что котел настроен на работу с данным типом газа. Данная информация приведена на упаковке и на заводской
табличке (шильдике) котла.
б) Убедиться, что в дымоходе имеется достаточная тяга, отсутствуют сужения, и нет поступления посторонних продуктов
сгорания, за исключением тех случаев, когда дымоход специально спроектирован для обслуживания нескольких устройств.
в) При присоединении дымоотводящего патрубка к уже имеющемуся дымоходу проверить, что дымоход полностью очищен,
т.к. при работе котла частицы сажи могут оторваться от стенок дымохода и закрыть выход продуктов сгорания, создав тем
самым опасную ситуацию.
Кроме того, чтобы сохранить действие гарантии на аппарат и для поддержания его правильного функционирования, необходимо
применять следующие меры предосторожности:
1. Система ГВС:
1.1. Если жесткость воды выше значения 20º F (где 1º F = 10 мг СаСО3 на 1 литр воды) следует установить полифосфатный
дозатор или подобную систему для умягчения воды, которая соответствует действующим нормативам.
1.2. Система ГВС должна быть тщательно промыта после установки аппарата и перед его использованием.
1.3. Материалы, использованные в контуре горячего водоснабжения, соответствуют Директиве 98/83 Европейского Союза.
2. Система отопления
2.1. Новая отопительная установка:
Перед установкой котла контур отопления должен быть предварительно очищен, чтобы убрать возможные отложения
или загрязнения (кусочки резьбы, флюсы, и т.п.), используя для этого вещества, имеющиеся в свободной продаже.
Вещества, использующиеся для очистки контура отопления, не должны содержать концентрированную кислоту или
щелочь, которые могут разъедать металл и повреждать части оборудования из пластика и резины (например, SENTINEL
X300 или X400 и FERNOX Regenerator для отопительного оборудования). При использовании очищающих веществ
необходимо строго следовать указаниям инструкций по их применению.
Нижеследующие указания и замечания составлены для того, чтобы помочь квалифицированному специалисту проводить
без ошибок установку и техническое обслуживание. Указания относительно розжига котла и его работы приведены в разделе
“Руководство для пользователя”.
Установка, техническое обслуживание и проверка работы домашних газовых устройств должны производиться только
квалифицированным персоналом и в соответствии с действующими нормами.
Обратите внимание:
• этот котел можно подключать к любому типу радиаторов и теплообменников, используя однотрубную, двухтрубную или
лучевую систему. Вы можете располагать секции в системе отопления обычным образом, учитывая при этом данные из
раздела “Характеристики расход/напор”.
• части упаковки (пластиковые мешки, пенопласт и пр.) держите вне досягаемости детей, поскольку они являются источником
потенциальной опасности
• первый пуск котла должен проводить квалифицированный специалист.
Гарантийные обязательства, выполняются организацией, осуществившей первый пуск котла. Данная организация должна
иметь установленные законом лицензии. Начало гарантийного срока наступает с момента первого пуска. Для осуществления
первого пуска и последующего обслуживания котла рекомендуем Вам обращаться в авторизованные сервисные центры De
Dietrich. Адреса и телефоны сервисных центров спрашивайте в торгующей организации.
ДОПОЛНИТЕЛЬНЫЙ НАСОС
В случае использования в системе отопления дополнительного насоса, установить его на обратной линии котла. Такое
расположение насоса способствует правильной работе гидравлического прессостата.
ВАЖНО
В случае подключения двухконтурного котла к установке с солнечными панелями, максимальная температура бытовой воды
на входе в котел не должна превышать 60 °C.
12. ОБЩИЕ СВЕДЕНИЯ 13. ПРОВЕРКИ ПЕРЕД УСТАНОВКОЙ КОТЛА
273
РУКОВОДСТВО ДЛЯ ТЕХНИЧЕСКОГО ПЕРСОНАЛА
71.03982.03 - RU
13. INSTALLAZIONE DELLA CALDAIA 14. МОНТАЖ КОТЛА
После определения точного места положения котла следует проверить, что место монтажа позволяет проводить легкое
техобслуживание (необходимо минимальное свободное пространство 450 мм в верхней части котла, для замены расширительного
бака).
Подведите трубы к входным отверстиям воды и газа, размеченным в нижней части шаблона. Мы советуем установить на вход
в центральную систему отопления и возврат из нее два запорных крана G 3/4 (подача и возврат), поставляемые по заказу; эти
краны позволят производить сложные операции техобслуживания без слива воды из всей системы отопления. В случае уже
существующей системы или замены настоятельно рекомендуется установить, помимо указанного выше, отстойную емкость
(“грязевик”) на трубе возврата из системы и внизу, чтобы туда собирались отложения, которые могли остаться в системе
после очистки после промывки и которые со временем могут попасть внутрь. После прикрепления котла к стене необходимо
соединить каналы спуска и всасывания, поставляемые в качестве принадлежностей, как описано в следующих главах.
При установке котла с открытой камерой сгорания моделей 24 MI - 24, соедините его с дымоходом при помощи металлической
трубы, устойчивой с течением времени к механической нагрузке, нагреву и воздействию продуктов сгорания и конденсата.
ВАЖНО
После заполнения котла необходимо удалить воздух из всех частей внутреннего контура и установки, действуя как описано ниже:
- закрыть газовый отсечной кран;
- подать электропитание к котлу;
- открыть клапан воздухоотводчика на корпусе насоса;
- настроить котел на режим работы “ЗИМА” при помощи кнопки ( );
- выполнить запрос на тепло с термостата комнатной температуры;
- чередовать запрос тепла при отоплении с запросом подачи горячей воды, открывая кран горячей воды;
- спустя несколько попыток котел блокируется (на дисплее появляется ошибка E01);
- для сброса следует нажать минимум в течении 2 секунд на кнопку “R”;
- повторить процедуру минимум два раза;
- вновь закрыть клапан воздухоотводчика.
После удаления воздуха из контура котла можно приступать к первому включению.
ПРИМЕЧАНИЕ ПО РАСШИРИТЕЛЬНОМУ БАКУ
На котле серийно устанавливается расширительный бак объемом 6 литров с предварительным давлением 1 бар. Объем всей
максимальной воды установки определяется в соответствии с гидростатическим давлением и для средней температуры воды
80°C (подача: 95°C, обратка: 75°C).
Гидростатическое давление (м)
5
6
7
8
9
10
Макс. объем установки (l)
110
105
95
85
77
70
2.2. Старая отопительная установка:
Перед установкой котла слить и промыть контур отопления для удаления грязи и отложений, используя вещества,
имеющиеся в свободной продаже (см. пункт 2.1)
Для защиты металлических, пластиковых и резиновых частей оборудования необходимо использовать нейтральные
(не щелочные и не кислотные) вещества-ингибиторы, такие как SENTINEL X100 и FERNOX Proteсtor для отопительных
установок. При использовании данных веществ необходимо строго следовать указаниям инструкций по их применению.
Напоминаем Вам, что наличие отложений в тепловом оборудовании приводит к проблемам в работе котла (перегрев,
шумность горелки и т.п.).
При не соблюдении данных рекомендаций аппарат снимается с гарантийного обслуживания.
274
РУКОВОДСТВО ДЛЯ ТЕХНИЧЕСКОГО ПЕРСОНАЛА
71.03982.03 - RU
ВНИМАНИЕ
с осторожностью затягивать гидравлические присоединения, подсоединяемые к патрубкам котла (максимальный момент
затяжки 30 Н·м).
G”3/4 ПОДАЧА ОТОПЛЕНИЯ
G”1/2 ВЫХОД ГОРЯЧЕЙ ВОДЫ
G”3/4 ВОЗВРАТ ОТОПЛЕНИЯ
G”1/2 ВХОД ХОЛОДНОЙ ВОДЫ
G”3/4 ВХОД ГАЗА В КОТЕЛ
G”3/4 ПОДАЧА ЗМЕЕВИКА БОЙЛЕРА
14. DIMENSIONI CALDAIA 15. ГАБАРИТНЫЕ РАЗМЕРЫ КОТЛА
Рис.4
24 MI FF - 24 MI
24 FF - 24
CG_2263 / 1007_1403
Рис.5
24 FF - 24 MI FF
24 - 24 MI
CG_2009 / 1006_1802
CG_2009 / 1006_1803
275
РУКОВОДСТВО ДЛЯ ТЕХНИЧЕСКОГО ПЕРСОНАЛА
71.03982.03 - RU
16. УСТАНОВКА ДЫМОХОДА И ВОЗДУХОВОДА
Модель 24 MI FF - 24 FF
Котел легко устанавливается, благодаря принадлежностям в
комплекте, описанным далее.
Котел первонача льно предназначен для соединения с
вертикальным или горизонтальным каналом дымохода- в
о з д у х ов од а ко а кс и а л ь н ог о т и п а . В о з м ож н
о т а к же использование раздельных труб при помощи
разделительного комплекта.
Для монтажа используйте крепления, поставляемые
только производителем оборудования!
П Р Е Д У П Р Е Ж Д Е Н И Е : Д л я г а р а н т и и н а и б о л
ь ш ей безопасности при работе котла необходимо, чтобы
дымоотводящие трубы были надежно прикреплены к
стене при помощи крепежных скоб.
Рис. 6
0503_0905/C
G1638
... КОАКСИАЛЬНЫЙ ДЫМОХОД И ВОЗДУХОВОД (КОНЦЕНТРИЧЕСКИЙ)
Этот тип трубопровода позволяет отводить сгоревшие газы наружу и забирать воздух для горения снаружи здания, а также
присоединяться к общему дымоходу типа LAS.
90° коаксиальный изгиб позволяет присоединять котел к дымоходу-воздуховоду в любом направлении, поскольку он может
поворачиваться на 360°. Кроме того, он может использоваться в качестве дополнительного в сочетании с коаксиальной трубой
или с 45° изгибом.
Если выход дымохода расположен снаружи, воздуховод должен
выступать из стены не менее чем на 18 мм с тем, чтобы на него
герметично установить алюминиевую погодную насадку во
избежание попадания воды.
Необходимо обеспечить горизонтальный наклон этих труб в
наружную сторону не менее 1 см на каждый метр длины.
• 90° изгиб сокращает возможную полную длину трубы на
1 метр.
• 45° изгиб сокращает возможную полную длину трубы на
0,5 метра.
Первый изгиб в 90° не учитывается при подсчете максимально
допустимой длины.
Рис. 7
0805_2901 / C
G_2073
Крепежное
соединение
Модель
котла
Длина (м)
Использование МЕМБРАНЫ
на ВСАСЫВАНИИ
A
24 MI FF
24 FF
0 ÷ 1
ДА
1 ÷ 4
НЕТ
276
РУКОВОДСТВО ДЛЯ ТЕХНИЧЕСКОГО ПЕРСОНАЛА
71.03982.03 - RU
16.1 ВАРИАНТЫ ГОРИЗОНТАЛЬНОЙ УСТАНОВКИ НАКОНЕЧНИКА ДЫМОХОДА
16.2 ПРИМЕРЫ УСТАНОВКИ С ДЫМОХОДАМИ ТИПА С42
16.3 ВАРИАНТЫ ВЕРТИКАЛЬНОЙ УСТАНОВКИ НАКОНЕЧНИКА ДЫМОХОДА
Такая установка может быть выполнена как на плоской, так и на наклонной крыше путем закрепления наконечника с
соответствующей погодной насадкой и рукавом (дополнительные аксессуары поставляется по требованию).
0503_0908/C
G1641
L max = 4 m
L max = 4 m
L max = 2 m
L max = 3 m
0503_0907/C
G1640
L max = 5 m
L max = 5 m
L max = 5 m
L max = 4 m
L max = 4 m
0512_2001
Подробные инструкции об установке аксессуаров см. в прилагаемых к ним технических сведениях.
277
РУКОВОДСТВО ДЛЯ ТЕХНИЧЕСКОГО ПЕРСОНАЛА
71.03982.03 - RU
… СИСТЕМА ПРИТОКА ВОЗДУХА И ОТВОДА ПРОДУКТОВ СГОРАНИЯ ПО ДВУМ ОТДЕЛЬНЫМ ТРУБАМ
Этот тип установки позволяет отводить продукты сгорания, как через стену, так и в коллективный дымоход. Приток воздуха
для сгорания может осуществляться также с другой стороны, чем та, куда выходит дымоход.
Разделительный комплект состоит из дымоходного переходника (100/80) и переходника для воздуховода. Переходник для
воздуховода закрепите винтами с уплотнителями, вынутыми ранее из дымового колпака.
Колено 90° позволяет присоединять котел к дымоходу в любом направлении, поскольку оно может поворачиваться на 360°. Кроме
того, колено 90° может использоваться в качестве дополнительного в сочетании с дополнительной трубой или с коленом 45°.
• Колено 90° сокращает максимально возможную длину труб на 0,5 м.
• Колено 45° сокращает максимально возможную длину труб на 0,25 м.
Примечание: первое колено в 90° не учитывать при подсчете максимально допустимой длины.
Модель котла
(L1+L2)
Положение
регулятора
Содержание СО
2
,%
G20
G31
24 MI FF
24 FF
0 ÷ 4
1
7,2
8
4 ÷ 18
2
18 ÷ 30
3
Регулировка проема в трубе забора
воздуха
Данная настройка нужна для оптимизации
производительности котла и параметров
сгорания.
Муфту забора воздуха можно установить
слева или справа от дымохода; ее можно
поворачивать для регулировки потока
возду ха в зависимости от с уммарной
длины воздуховода и дымохода.
Д л я у м е н ь ш е н и я п о т о к а в о з д
у х а п о в е р н и т е м у ф т у п р о т и в ч
а с о в о й стрелки, для увеличения потока
воздуха поворачивайте ее в обратную
сторону.
Для оптима льной нас т р ойки можно
использ ов ать а на лиз атор пр од у ктов
сгорания, измеряющий содержание СО2
в продуктах сгорания при максимальной
мощности. Если содержание СО2 низкое,
подачу воздуха постепенно регулируют,
добиваясь содержания СО2, приведенного
в таблице.
Д л я п р а в и л ь н о г о п о д к л ю ч е н
и я и и с п о л ь з о в а н и я а н а л и з а т
о р а воспользуйтесь прилагаемым к нем
у руководством.
Рис.8
0809_0201 / C
G_2045
переходни для отвода
продуктов сгорания
крепежн
ы
й зажим
му
ф
та за
бо
ра воздуха
278
РУКОВОДСТВО ДЛЯ ТЕХНИЧЕСКОГО ПЕРСОНАЛА
71.03982.03 - RU
16.5 ПРИМЕРЫ УСТАНОВКИ С ОТДЕЛЬНЫМИ ГОРИЗОНТАЛЬНЫМИ НАКОНЕЧНИКАМИ
ОБРАТИТЕ ВНИМАНИЕ!
Необходимо обеспечить горизонтальный наклон труб в наружную сторону не менее 1см на
каждый метр длины. При установке комплекта для сбора конденсата дренажная труба должна быть наклонена в сторону котлa.
Важно:
При расположении труб типа С52 наконечники для притока воздуха и выхода продуктов сгорания никогда не должны
находиться на противоположных сторонах здания. Общая длина труб притока воздуха не должна превышать 10 метров
При длине дымохода более 6 м комплект для сбора конденсата (поставляется дополнительно) должен монтироваться в
непосредственной близости от котла.
16.4 ГАБАРИТНЫЕ РАЗМЕРЫ СИСТЕМЫ ПРИТОКА ВОЗДУХА И ОТВОДА ПРОДУКТОВ СГОРАНИЯ ПО ДВУМ ОТДЕЛЬНЫМ ТРУБАМ
CG_2124 / 0905_2305
L max = 10 m
(L1 + L2) max = 30 m
1010_0102/CG1643
CG_1643_FR / 1010_0101
Обратите внимание!
При установке дымохода убедитесь, что труба хорошо изолирована (напр., стекловолокном) в
месте прохода трубы сквозь стену здания.
Подробные инструкции об установке труб смотри в руководствах, прилагаемых к комплектам.
279
РУКОВОДСТВО ДЛЯ ТЕХНИЧЕСКОГО ПЕРСОНАЛА
71.03982.03 - RU
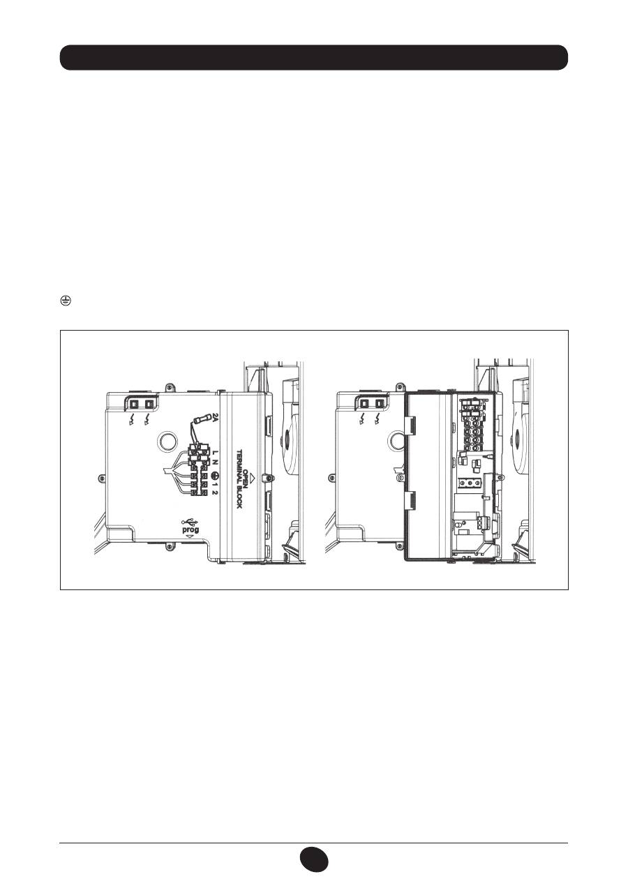
17. ПОДКЛЮЧЕНИЕ К ЭЛЕКТРОПИТАНИЮ
Электробезопасность Электробезопаснос ть котла гарантируе тся только при правильном заземлении в соотве тс твии с дейс
твующими нормативами.
С помощью прилагаемого трехжильного кабеля подключите котел к однофазной сети переменного тока 230В с заземлением.
Убедитесь в соблюдении правильной полярности.
Используйте двухполюсный выключатель с расстоянием между разомкнутыми контактами не менее 3мм.
При замене сетевого кабеля рекомендуется использовать кабель сечением 3x0.75 мм
2
и максимальным диаметром 8мм.
…доступ к клеммной колодке электропитания
• двухполюсным выключателем отключите подачу питания к котлу;
• отвинтите два винта, крепящих панель управления к котлу;
• поверните панель управления;
• для доступа к контактам снимите крышку (рис. 9).
В клеммную колодку встроены плавкие предохранители на 2А (для их проверки или замены выньте черный держатель
предохранителя).
Внимание
: убедитесь в соблюдении правильной полярности L(фаза) - N(нейтраль).
Обозначение клемм
(L) = фаза, коричневый провод
(N) = нейтраль, голубой провод
= земля, желто-зеленый
(1) (2) = клеммы подключения комнатного термостата
Рис.9
CG_2008 / 1009_0301
280
РУКОВОДСТВО ДЛЯ ТЕХНИЧЕСКОГО ПЕРСОНАЛА
71.03982.03 - RU
18. ПОДСОЕДИНЕНИЕ КОМНАТНОГО ТЕРМОСТАТА
• открыть доступ к клеммам подключения электропитания (рис.9), в соответствии с инструкциями, изложенными в
предыдущем параграфе;
• снять перемычку с клемм 1 и 2 клеммной колодки;
• протянуть кабель из двух проводов через кабельный зажим котла и присоединить кабель, идущий от термостата, к клеммам
(1) и (2);
• включить электропитание котла
Чтобы закрыть крышку панели, надавите на пластиковые защёлки при помощи отвёртки, как показано на рисунке.
CG_2260 / 1006_1501
281
РУКОВОДСТВО ДЛЯ ТЕХНИЧЕСКОГО ПЕРСОНАЛА
71.03982.03 - RU
19. ПОРЯДОК ЗАМЕНЫ ГАЗА
Котел может быть переоборудован для работы на метане (G. 20) или сжиженном газе (G. 31) специалистами авторизованного
сервисного центра.
С этой целью необходимо последовательно выполнить следующие операции:
A) замена форсунок главной горелки и газовой мембраны (там, где это предусмотрено);
В) новая калибровка минимального и максимального значений регулятора давления.
A) Замена форсунок
- осторожно выньте главную горелку из гнезда;
- замените форсунки главной горелки, при этом затягивайте их до упора для предотвращения утечек газа. Диаметр форсунок
приведен в таблице 2.
В) Калибровка регулятора давления
- подключите положительный вход дифференциального манометра, предпочтительно жидкостного, к точке измерения
давления (Pb) газового клапана (Рисунок 10). Подключите, только для моделей с закрытой камерой, отрицательный вход
этого же манометра к специальному тройнику “T”, позволяющему соединить между собой компенсационную точку котла,
компенсационную точку газового клапана (Pc) и сам манометр. (Равнозначное измерение можно выполнить, соединив
манометр с точкой давления (Pb) и без передней панели герметичной камеры);
Измерение давления на горелках, выполненное другими способами, отличающимися от описанных, может оказаться
неверным, поскольку не учитывает депрессию, создаваемую вентилятором в герметичной камере.
В1) Регулирование на номинальную мощность:
- открыть газовый кран и подготовить котел к зиме;
- открыть кран подачи воды с потоком минимум 10 литров в минуту или обеспечить максимальную потребность в тепле;
- снять крышку с модулятора;
- отрегулировать латунный винт (а) до получения величины давления, указанной в таблице 1;
- проверить, что динамическое давление подачи котла, измеренное в точке давления (Pa) газового клапана (Рисунок 10
правильное (37 мбар для пропана или 20 мбар для природного газа).
В2) Регулирование на пониженную мощность:
- отсоедините кабель питания модулятора и отвинтите винт (b) до получения значения давления, соответствующего
уменьшенной мощности (см. таб. 1);
- вновь соедините кабель;
- монтировать крышку модулятора и герметично ее закрыть;
B3) Заключительные проверки
- прикрепить дополнительную табличку, поставляемую в комплекте с набором, с указанным типом газа и сделанной
калибровкой.
ВНИМАНИЕ
В том случае, если давление подачи метана слишком низкое (ниже 17 мбар), следует снять газовую мембрану, монтированную
над газовым клапаном (рис. 10) и задать параметр F02=00 на электронной плате (§21).
газовый клапан
мод. SIGMA 845
Рис. 10
b
a
0605_1502
CG_2273 / 1008_2602
мембрана газа
Рис. 11
282
РУКОВОДСТВО ДЛЯ ТЕХНИЧЕСКОГО ПЕРСОНАЛА
71.03982.03 - RU
19.1 ФУНКЦИЯ КАЛИБРОВКИ ГАЗОВОГО КЛАПАНА
Примечание
Эта функция автоматически отключается по истечении приблизительно 15 минут, после чего электронная плата возвращается
к предыдущему состоянию работы, до включения данной функции, или до достижения максимальной заданной температуры.
Для облегчения операций калибровки газового клапана, существует возможность
настройки функции калибровки прямо на панели управления котлом. Необходимо
выполнить перечисленные далее действия:
a) Нужно одновременно нажать и держать нажатыми в течение как минимум 6 секунд
кнопки
и
;
b) По истечении приблизительно 6 секунд, символы
начинают мигать;
c) С интервалом в 1 секунду на дисплее появляются чередующиеся надписи, “100” и
величина температуры подачи.
На этом этапе котел работает при максимальной мощности на нагреве (100%).
d) Нажав на кнопки +/- можно немедленно настроить (100% или 0%) мощность
котла;
e) Отрегулировать винт “P
mакси/Pmин”
(рисунок 10) до получения величины
давления, указанной в Таблице 1.
Для настройки давления на максимальной мощности используйте регулировочный
винт “Pmax” (рис. 10), поверните его по часовой стрелке для увеличения давления
на горелке и против часовой для уменьшения.
Для настройки давления на минимальной мощности используйте регулировочный
винт “Pmin” (рис. 10), поверните его против часовой стрелки для увеличения
давления на горелке и по часовой для уменьшения.
f) Нажав на кнопки +/- можно постепенно настраивать требуемый уровень
мощности (промежуток = 1%).
Для того, чтобы выйти из функции, следует нажать на кнопку .
0805_2302 / 1002_1201
Потребление 15°C -1013 мбар
24 MI FF - 24 FF
24 - 24 MI
G20
G31
G20
G31
Номинальная мощность
2,80 m
3
/h
2,00 kg/h
2,80 m
3
/h
2,04 kg/h
Уменьшенная мощность
1,12 m
3
/h
0,82 kg/h
1,12 m
3
/h
0,82 kg/h
ниж. теплотворная способность
34,02 MJ/m
3
46,34 MJ/kg
34,02 MJ/m
3
46,34 MJ/kg
Таблица 2
* 1 мбар = 10,197 мм H
2
O
Таблица форсунок горелки
24 MI FF - 24 FF
24 - 24 MI
тип газа
G20
G31
G20
G31
диаметр форсунок (мм)
1,28
0,77
1,18
0,77
Давление горелки (мбар*)
УМЕНЬШЕННАЯ МОЩНОСТЬ
2,0
5,7
2,4
5,6
Давление горелки (мбар*)
НОМИНАЛЬНАЯ МОЩНОСТЬ
11,6
32,6
13,8
31,0
Диаметр газовой мембраны (мм)
4,8
—
5,5
—
К-во форсунок
13
Таблица 1
Оглавление
- SOMMAIRE
- 5. DESCRIPTION DES TOUCHES (ÉTÉ – HIVER – CHAUFFAGE SEULEMENT – ARRÊT)
- •
- 28. RACCORDEMENT D’UN BALLON SEPARE AVEC UN MOTEUR VANNE 3 VOIES
- 5. DESCRIZIONE TASTO (Estate - Inverno - Solo riscaldamento - Spento)
- •
- 5. DESCRIPTION OF BUTTON (Summer - Winter - Heating only - Off)
- •
- 5. DESCRIPCIÓN DE LA TECLA (Verano - Invierno - Sólo calefacción - Apagado)
- •
- 5. ОПИСАНИЕ НА БУТОН (Лято – Зима – Само отопление – Изключен)
- 8. СМЯНА НА ВИДА ГАЗ
- 13. УКАЗАНИЯ ПРЕДИ МОНТАЖА
- 15. РАЗМЕРИ НА КОТЕЛА
- •
- 28. ГОДИШЕН ПРЕГЛЕД
- SPIS TREŚCI
- 1. OSTRZEŻENIA PRZED ZAINSTALOWANIEM
- 3. ROZRUCH KOTŁA
- 4. REGULACJA TEMPERATURY POKOJOWEJ I CIEPŁEJ WODY UŻYTKOWEJ
- 7. WYŁĄCZENIE KOTŁA 8. ZMIANA GAZU
- 9. WYDŁUŻONY OKRES WYŁĄCZENIA INSTALACJI. OCHRONA PRZED ZAMARZANIEM
- 12. UWAGI OGÓLNE 13. WYMAGANIA INSTALACYJNE
- 14. UWAGI INSTALACYJNE
- 15. WYMIARY KOTŁA
- 16. INSTALOWANIE PRZEWODÓW POWIETRZNO-SPALINOWYCH
- 17. PODŁĄCZENIE ELEKTRYCZNE 18. PODŁĄCZENIE TERMOSTATU POKOJOWEGO
- 19. SPOSÓB ZMIANY RODZAJU GAZU
- •
- 21. USTAWIENIE PARAMETRÓW
- 23. USTAWIENIE ELEKTRODY ZAPŁONOWEJ I JONIZACYJNEJ PŁOMIEŃ
- 24. KONTROLA PARAMETRÓW SPALANIA 25. CHARAKTERYSTYKA NATĘŻENIA PRZEPŁYWU/WYSOKOŚCI PODNOSZENIA
- 26. PODŁĄCZENIE CZUJNIKA ZEWNĘTRZNEGO
- 28. KONSERWACJA ROCZNA
- 30. CZYSZCZENIE FILTRÓW
- 32. DEMONTAŻ WYMIENNIKA WODA-WODA
- 33. SCHEMAT FUNKCJONALNY OBWODÓW
- 34. SCHEMAT POŁACZEŃ ELEKTRYCZNYCH
- 35. CHARAKTERYSTYKA TECHNICZNA
- CUPRINS
- 1. AVERTISMENTE ANTERIOARE INSTALĂRII
- 3. PUNEREA ÎN FUNCŢIUNE A CENTRALEI TERMICE
- 4. REGLAREA TEMPERATURII AMBIANTE ŞI A TEMPERATURII APEI MENAJERE
- 7. OPRIREA CENTRALEI TERMICE 8. SCHIMBAREA TIPULUI DE GAZ
- 10. INTRAREA ÎN FUNCŢIUNE A DISPOZITIVELOR DE SIGURANŢA
- 12. AVERTISMENTE GENERALE 13. AVERTISMENTE ANTERIOARE INSTALĂRII
- 13. INSTALLAZIONE DELLA CALDAIA 14. INSTALAREA CENTRALEI TERMICE
- 14. DIMENSIONI CALDAIA 15. DIMENSIUNILE CENTRALEI TERMICE
- 16. INSTALAREA CONDUCTELOR DE EVACUARE GAZE ARSE ŞI ADMISIE AER
- 17. CONECTAREA LA REŢEAUA ELECTRICĂ 18. CONECTAREA TERMOSTATULUI AMBIENTAL
- 19. MODALITĂŢI DE SCHIMBARE A TIPULUI DE GAZ
- 20. VIZUALIZAREA PARAMETRILOR PE AFIŞAJ (FUNCŢIE “INFO”)
- 21. SETAREA PARAMETRILOR
- 23. POZIŢIONAREA ELECTRODULUI DE APRINDERE ŞI DETECTARE A FLĂCĂRII
- 24. VERIFICAREA PARAMETRILOR DE COMBUSTIE 25. PERFORMANŢE DEBIT/ÎNĂLŢIME DE POMPARE
- 26. CONECTAREA SONDEI EXTERNE
- 28. ÎNTREŢINEREA ANUALĂ
- 30. CURĂŢAREA FILTRELOR
- 32. DEMONTAREA SCHIMBĂTORULUI APĂ-APĂ
- 33. DIAGRAMĂ FUNCŢIONALĂ CIRCUITE
- 34. DIAGRAMĂ CUPLARE CONECTORI
- 35. CARACTERISTICI TEHNICE
- ΠΕΡΙΕΧΟΜΕΝΑ
- 1. ΟΔΗΓΙΕΣ ΠΡΙΝ ΤΗΝ ΕΓΚΑΤΑΣΤΑΣΗ
- 3. ΘΕΣΗ ΣΕ ΛΕΙΤΟΥΡΓΙΑ ΤΟΥ ΛΕΒΗΤΑ
- 4. ΡΥΘΜΙΣΗ ΤΗΣ ΘΕΡΜΟΚΡΑΣΙΑΣ ΠΕΡΙΒΑΛΛΟΝΤΟΣ ΚΑΙ ΤΟΥ ΝΕΡΟΥ ΟΙΚΙΑΚΗΣ ΧΡΗΣΗΣ
- 7. ΣΒΗΣΙΜΟ ΤΟΥ ΛΕΒΗΤΑ 8. ΑΛΛΑΓΗ ΑΕΡΙΟΥ
- 10. ΕΝΔΕΙΞΕΙΣ-ΕΠΕΜΒΑΣΗ ΣΥΣΤΗΜΑΤΩΝ ΑΣΦΑΛΕΙΑΣ
- 12. ΓΕΝΙΚΕΣ ΠΛΗΡΟΦΟΡΙΕΣ 13. ΟΔΗΓΙΕΣ ΠΡΙΝ ΤΗΝ ΕΓΚΑΤΑΣΤΑΣΗ
- 13. INSTALLAZIONE DELLA CALDAIA 14. ΕΓΚΑΤΑΣΤΑΣΗ ΤΟΥ ΛΕΒΗΤΑ
- 14. DIMENSIONI CALDAIA 15. ΔΙΑΣΤΑΣΕΙΣ ΛΕΒΗΤΑ
- 16. ΕΓΚΑΤΑΣΤΑΣΗ ΑΓΩΓΩΝ ΑΠΑΓΩΓΗΣ - ΑΝΑΡΡΟΦΗΣΗΣ
- 17. ΗΛΕΚΤΡΙΚΗ ΣΥΝΔΕΣΗ 18. ΣΥΝΔΕΣΗ ΤΟΥ ΘΕΡΜΟΣΤΑΤΗ ΔΩΜΑΤΙΟΥ
- 19. ΤΡΟΠΟΣ ΑΛΛΑΓΗΣ ΑΕΡΙΟΥ
- 20. ΑΠΕΙΚΟΝΙΣΗ ΠΑΡΑΜΕΤΡΩΝ ΣΤΗΝ ΟΘΟΝΗ (ΛΕΙΤΟΥΡΓΙΑ «INFO»)
- 21. ΡΥΘΜΙΣΗ ΠΑΡΑΜΕΤΡΩΝ
- 23. ΤΟΠΟΘΕΤΗΣΗ ΗΛΕΚΤΡΟΔΙΟΥ ΑΝΑΦΛΕΞΗΣ ΚΑΙ ΑΝΙΧΝΕΥΣΗΣ ΦΛΟΓΑΣ
- 24. ΕΛΕΓΧΟΣ ΠΑΡΑΜΕΤΡΩΝ ΚΑΥΣΗΣ 25. ΧΑΡΑΚΤΗΡΙΣΤΙΚΑ ΠΑΡΟΧΗΣ / ΜΑΝΟΜΕΤΡΙΚΟΥ ΥΨΟΥΣ ΣΤΗΝ ΠΛΑΚΑ
- 26. ΣΥΝΔΕΣΗ ΤΟΥ ΕΞΩΤΕΡΙΚΟΥ ΑΙΣΘΗΤΗΡΑ
- 28. ΕΤΗΣΙΑ ΣΥΝΤΗΡΗΣΗ
- 30. ΚΑΘΑΡΙΣΜΟΣ ΤΩΝ ΦΙΛΤΡΩΝ
- 32. ΑΠΟΣΥΝΑΡΜΟΛΟΓΗΣΗ ΕΝΑΛΛΑΚΤΗ ΝΕΡΟΥ-ΝΕΡΟΥ
- 33. ΛΕΙΤΟΥΡΓΙΚΟ ΣΧΕΔΙΟ ΚΥΚΛΩΜΑΤΩΝ
- 34. ΣΧΕΔΙΟ ΣΥΝΔΕΣΗΣ ΣΥΝΔΕΣΜΩΝ
- 35. ТЕХНИЧЕСКИ ХАРАКТЕРИСТИКИ
- 5. ОПИСАНИЕ КНОПКИ (Лето – Зима – Только Отопление – Выключено)
- •
- 5. 锅炉运行模式选择
- 错误信息及故障表

