Gorenje GMO-20 DGB – page 7
Manual for Gorenje GMO-20 DGB
Table of contents
- OWNERS INSTRUCTION MANUAL EN SPECIFICATIONS BEFORE YOU CALL FOR SERVICE RADIO INTERFERENCE INSTALLATION
- IMPORTANT SAFETY INSTRUCTIONS
- SAFETY INSTRUCTIONS FOR GENERAL USE
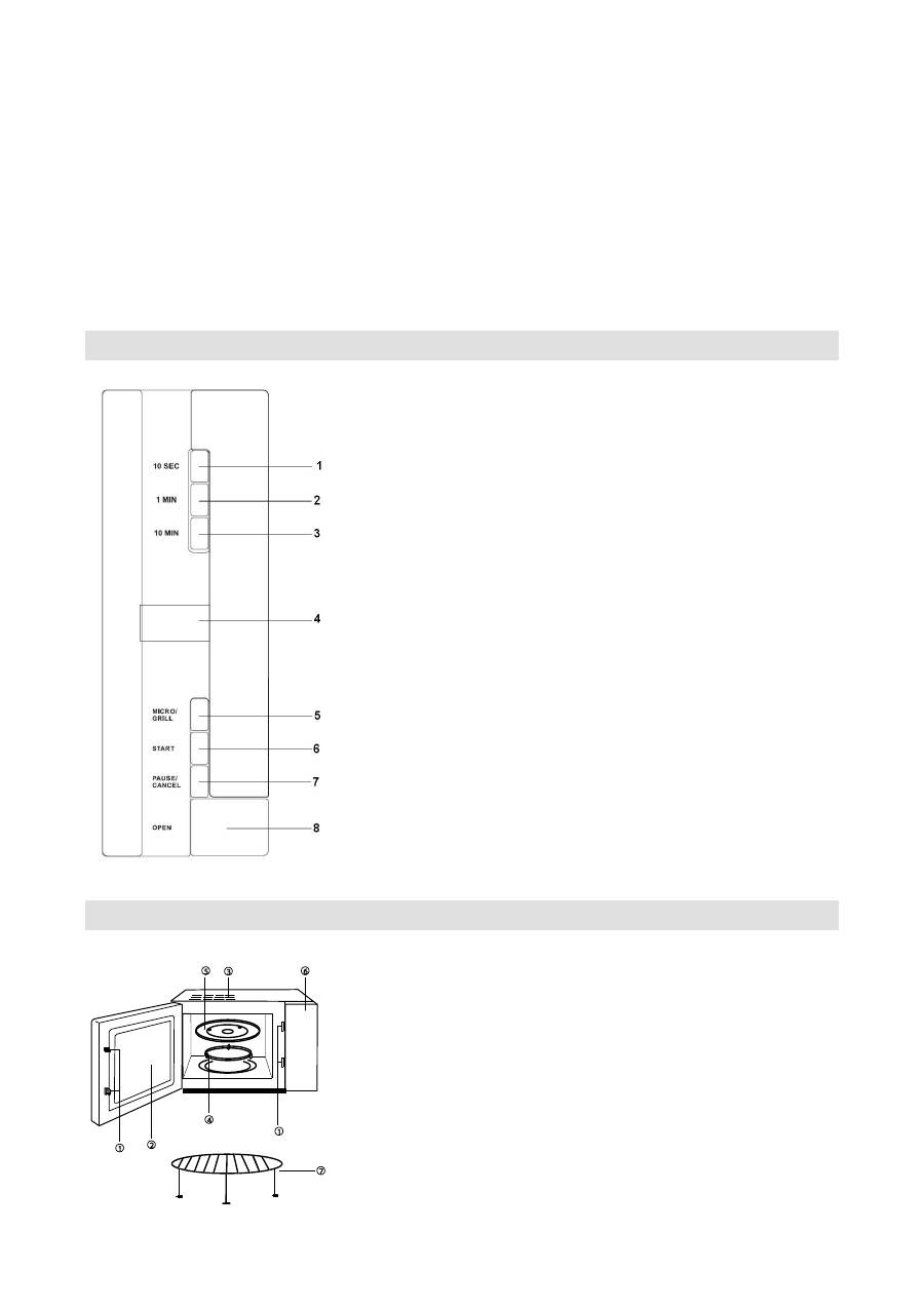
- FEATURE DIAGRAM COMPUTER CONTROL PANEL Operation Instruction 1. Single Button Heating
- 2. Microwave Heating 3. Auto weight defrost 4. GRILL – COMBINATION COOKING FUNCTION »PAUSE/CANCEL« button 6. Child-safety-lock.
- CARE OF YOUR MICROWAVE OVEN Environment Guarantee & service
121
Käyttöohjeet
1.
KUUMENNUS YHDELLÄ NAPINPAINALLUKSELLA
Voit käynnistää yksinkertaisen kuumennuksen yhdellä napinpainalluksella; esimerkiksi vesilasillisen
kuumentaminen on erittäin helppoa ja nopeaa.
Esimerkki: Maitolasillisen kuumennus
a)
Pane maitolasi pyörivälle lasialustalle, ja sulje luukku.
b)
Paina »START«-painiketta, jolloin mikroaaltouuni toimii 100-prosenttisella teholla yhden minuutin ajan.
c) Kuulet viisi piippausta, kun kuumennus on valmis.
2. MIKROAALTOKUUMENNUS
Tässä toiminnossa on kaksi vaihtoehtoa.
a) Nopea mikroaaltokuumennus (100-prosenttinen teho)
Esimerkki: Ruuan kuumennus 100 % teholla viiden minuutin ajan
1.
Säädä ajaksi »5:00«
2.
Paina »START«-painiketta
b)
Manuaalikäyttöinen mikroaaltokuumennus
Esimerkki: Ruuan kuumennus 70 % teholla 10 minuutin ajan
1.
Paina »MICRO/GRILL«-painiketta, valitse tehoksi »70 %«
2.
Säädä ajaksi »10:00«
3.
Paina »START«-painiketta
Erilaisia kuumennustehoja on viisi, ja pisin mahdollinen mikroaaltokuumennusaika on 59 minuuttia ja
50 sekuntia.
Painalluskertoja
Mikroaaltoteho
Näyttö
1
100 %
P10
2
70 %
P7
3
50 %
P5
4
30 %
P3
5
10 %
P1
3. AUTOMAATTINEN SULATUS PAINON MUKAAN
Kun valitset pakastetun ruuan painon, uuni säätää automaattisesti tehon tason ja ajan.
Esimerkki: 0,5 painavan pakastetun lihan sulatus
a) Valitse "DEF" painamalla "MICRO/GRILL".
b) Sy
ötä paino painamalla "1 min"-painiketta (1 kg) ja "10 sec"-painiketta (0,1kg).
c) Paina "START".
Pakastetun ruuan painon pitää olla alle 2 kg.
4. GRILLI
– YHDISTETTY RUUANVALMISTUSTOIMINTO
Grillitoiminnossa on neljä eri vaihetta. Voit valita haluamasi vaiheen painamalla »MICRO/GRILL«-painiketta
7
– 10 kertaa. Erilaiset tehonsäädöt on esitelty alla olevassa taulukossa.
Tehonsäätö
Mikroaaltoteho
Grillausteho
Näyttö
1
/
85 %
G
– 1
2
/
50 %
G
– 2
3
55 %
45 %
C
– 1
4
30 %
70 %
C
– 2
Säädä valintojen jälkeen ruuanvalmistusaika, ja paina »START«.
Huomio: Ruuanvalmistuksen aikana (ei yhdistelmätoiminnossa) ohjelma keskeytyy automaattisesti, kun
ajasta on kulunut puolet, ja kuulet kaksi piippausta, jotka muistuttavat sinua ruokien kääntämisestä.
Sulje luukku
käännettyäsi ruuat, ja paina "START"-painiketta, jolloin ruuan kuumennus jatkuu. Jos et käännä
ruokia, uuni jatkaa kypsentämistä 1 minuutin kuluttua.
122
5.
»PAUSE/CANCEL«-keskeytys- ja peruutuspainike
a) Jos painat ruuanvalmistuksen aikana "PAUSE/CANCEL"-painiketta, toiminto keskeytyy.
b)
Jos valitsit jonkin ohjelman ennen käynnistyspainikkeen painamista, peruutuspainikkeen painaminen
keskeyttää valitun ohjelman.
6. LAPSILUKKO
Kytke lapsilukko päälle painamalla "PAUSE/CANCEL"-painiketta kolme kertaa.
K
ytke lapsilukko pois päältä painamalla uudelleen "PAUSE/CANCEL"-painiketta kolme kertaa.
MIKROAALTOUUNIN HUOLTO
1.
Kytke uuni pois päältä ja irrota pistoke pistorasiasta ennen uunin puhdistamista.
2.
Pidä uunin sisäosat puhtaina. Jos uunin seinämiin roiskuu ruokaa, pyyhi ne pois kostealla liinalla. Kovien
tai hankaavien puhdistusaineiden käyttö ei ole suositeltavaa.
3.
Puhdista uunin ulkopinnat kostealla liinalla. Suojellaksesi uunin sisällä olevia osia huolehdi, ettei uunin
ilmanvaihtoaukkoihin pääse vettä.
4.
Älä kastele ohjauspaneelia. Puhdista se pehmeällä, kostealla liinalla. Älä puhdista ohjauspaneelia
puhdistusaineilla äläkä hankaavilla tai suihkutettavilla aineilla.
5.
Jos uunin luukun sisäpuolelle tai ympärille muodostuu höyryä, pyyhi se pois pehmeällä liinalla. Näin voi
tapahtua, jos uunia käytetään erittäin kosteassa ympäristössä; se ei ole merkki uunin viallisesta
toiminnasta.
6.
Irrota silloin tällöin lasitarjotin puhdistusta varten. Pese tarjotin lämpimällä saippuavedellä tai
astianpesukoneessa.
7.
Pyörivä rengas ja uunin sisäpohja on puhdistettava säännöllisesti liiallisen melun välttämiseksi. Pyyhi
uunin sisäpohja miedolla pesuaineella, vedellä tai ikkunanpuhdistusaineella, ja kuivaa. Pyörivän renkaan
voi pestä miedolla saippuavedellä tai astianpesukoneessa. Ruuanvalmistuksessa uuniin kerääntyy
höyryä, mutta se ei vaikuta millään tavoin uunin sisäpohjaan tai pyörivän renkaan pyöriin.
Irrotettuasi pyörivän renkaan uunista puhdistettavaksi varmista, että asetat sen takaisin oikeaan
asentoon.
8.
Poista uunista hajut sekoittamalla kupillinen vettä sekä yhden sitruunan mehu ja kuori syvään,
mikroaaltouunin kestävään kulhoon. Kuumenna mikroaaltouunissa viiden minuutin ajan, pyyhi
huolellisesti ja kuivaa pehmeällä liinalla.
9.
Kun uunin lamppu pitää vaihtaa, pyydä apua jälleenmyyjältä.
Ympäristö
Älä hävitä laitetta normaalin kotitalousjätteen mukana sen käyttöiän päätyttyä, vaan luovuta se kierrätykseen
virallisessa keräyspisteessä. Tekemällä näin autat säästämään ympäristöä.
Takuu ja huolto
Jos tarvit
set tietoja, tai jos sinulla on ongelma, ota yteyttä Gorenjen maassasi sijaitsevaan
asiakaspalvelukeskukseen (löydät sen puhelinnnumeron maailmanlaajuisesta takuulehtisestä). Jos
maassasi ei ole asiakaspalvelukeskusta, käy paikallisen Gorenje-kauppiaasi luona tai ota yhteyttä Gorenjen
kotitalouslaitteiden huoltoosastoon.
VAIN HENKILÖKOHTAISEEN KÄYTTÖÖN!
TOIVOTTAA MUKAVIA HETKIÄ LAITTEESI SEURASSA
Lisää vinkkejä ja hyödyllisiä ohjeita ruuanvalmistukseen mikroaaltouunissa ja grillissä
löydät Internet-sivuiltamme
:
:
htpp://www.gorenje.com
123
LIETOŃANAS PAMĀCĪBAS ROKASGRĀMATA LV
Rūpīgi izlasiet lietońanas pamācību un saglabājiet to turpmākai uzziľai.
TEHNISKAIS RAKSTUROJUMS
Strāvas patēriľš: ....................................................................... 230V~50Hz,1280W
Izvade: ............................................................................................................ 800W
Grila sildītājs: ................................................................................................ 1100W
Darbošanās frekvence: ............................................................................. 2450MHz
Ārējie izmēri: ................................................. 470mm(P) X 282mm(A) X 377mm(D)
Krāsns dobuma izmēri: ................................. 315mm(P) X 195mm(A) X 330mm(D)
Krāsns ietilpība: .............................................................................................. 20 litri
Svars bez kastes iepakojuma: ............................................................ Apm. 12,2 kg
Trokšľa līmenis: ...................................................................... (Lc IEC) < 58 dB (A)
Ńī ierīce ir marķēta saskaľā ar Eiropas direktīvu 2002/96/EC par Elektrisko un elektronisko iekārtu
atkritumiem (EEIA).
Ńī pamatnorāde informē par to, ka ierīci Eiropas mērogā var likumīgi atgriezt un pārstrādāt kā
elektrisko un elektronisko iekārtu atkritumus.
Šī ir jauna un sareţģīta iekārta, kas lietošanai paredzēta tikai personām, kuras rūpīgi ir iepazinušās ar
Lietošanas Instrukciju un kuru nolūks, saprašana un spējīgums ir sekot līdzi visiem ekspluatācijas
noteikumiem ar mērķi izvairīties no bojājumiem.
Lūdzu ľemt vērā, ka iekārtas nav paredzēta lietošanai bērniem, kā arī stingri aizliegts bērniem ar to
spēlēties.
PIRMS SAZINĀŃANĀS AR APKOPES DIENESTU
1. Ja k
rāsns nedarbojas vispār, neparādās displejs vai displejs izzūd:
a)
Pārbaudiet, vai krāsns ir kārtīgi pievienota strāvai. Ja nav, izľemiet kontaktdakšu no kontaktligzdas,
nogaidiet 10 sekundes un kārtīgi pievienojiet to strāvai vēlreiz.
b)
Pārbaudiet telpas ar īssavienojumu drošinātāju vai strāvas vadu slēgiekārtu. Ja šķiet, ka tās darbojas
pareizi, pārbaudiet kontaktligzdas darbību ar citu ierīci.
2.
Ja mikroviļľu jauda nedarbojas:
a)
Pārbaudiet, vai ir uzstādīts taimeris.
b)
Pārbaudiet, vai ir kārtīgi aiztaisītas krāsns durtiľas, lai tās saslēgtu drošības savienojumus. Pretējā
gadījumā mikroviļľu enerģija neieplūdīs krāsnī.
JA NEKAS NO IEPRIEKŠMINĒTĀ NEIZLABO SITUĀCIJU, SAZINIETIES AR TUVĀKO
PILNVAROTO APKOPES DIENESTU.
RADIOSIGNĀLU TRAUCĒJUMI
Mikroviļľu krāsns var izraisīt traucējumus Jūsu radiouztvērējam, televizoram vai līdzīgām iekārtām. Ja šādi
traucējumi parādās, tos var likvidēt vai samazināt ar šādām darbībām:
a)
Notīriet krāsns durtiľas un blīvju virsmu.
b)
Novietojiet radiouztvērēju, televizoru utt. cik vien iespējams tālu no Jūsu mikroviļľu krāsns.
c)
Izmantojiet kārtīgi uzstādītu antenu Jūsu radiouztvērējam, televizoram utt., lai uztvertu spēcīgāku
signālu.
Ierīce paredzēta tikai lietošanai mājsaimniecībās ēdienu un uzkodu uzsildīšanai, izmantojot
elektromagnētisko enerģiju; ierīce paredzēta tikai lietošanai iekštelpās.
124
UZSTĀDĪŃANA
1.
Pārliecinieties, vai no durtiľu iekšpuses ir noľemti visi iepakojuma materiāli.
2.
Pēc krāsns izpakošanas pārbaudiet, vai tai nav kādi vizuāli bojājumi, piemēram:
-
nelīdzeni novietotas durtiľas;
-
bojātas durtiľas;
-
iespiedumi vai caurumi durtiľu logā un ekrānā;
-
iespiedumi krāsns dobumā.
Ja ir redzams kāds no iepriekšminētajiem bojājumiem,
NELIETOJIET
krāsni.
3.
Šī mikroviļľu krāsns sver 12,2 kg, un tā ir jānovieto uz horizontālas virsmas pietiekami stingri, lai tās
svaram būtu balsts.
4.
Krāsns jānovieto tālāk no augstām temperatūrām un tvaikiem.
5.
NENOVIETOJIET
nek
o uz krāsns virsas.
6.
Lai nodrošinātu pareizu krāsns ventilāciju, turiet to vismaz 8 cm nost no abām blakus sienām un 10 cm
nost no aizmugurējās sienas.
7.
NEIZĽEMIET
rotējošās paplātes virzošo vārpstu.
8.
Tāpat kā jebkurai citai iekārtai, arī šai ir nepieciešama cieša uzraudzība, ja to lieto bērni.
BRĪDINĀJUMS
-
ŠAI IEKĀRTAI IR JĀBŪT IEZEMĒTAI.
9.
Strāvas kontaktligzdai ir jābūt viegli pieejamai strāvas vadam.
10.
Šai krāsnij ir nepieciešami 1,3 KVA; uzstādot krāsni, ir ieteicams konsultēties ar apkopes tehniķi.
UZMANĪBU:
Šī krāsns ir iekšēji aizsargāta ar 250V,10 ampēru drošinātāju.
SVARĪGI
Šī strāvas vada mazie vadiľi ir nokrāsoti atbildoši šādam kodam:
Zaļń un dzeltens:
Iezemējums
Zils:
Neitrāls
Brūns:
Zemsprieguma
Tā kā ierīces strāvas vada mazo vadiľu krāsas var neatbilst krāsu marķējumam, kāds ir Jūsu
kontaktligzdas kontaktiem, rīkojieties šādi:
-
Vadiľš, kas ir nokrāsots zaļā un dzeltenā krāsā, ir jāpievieno kontaktligzdas kontaktam, kas ir marķēts
ar burtu
E
vai ar iezemējuma simbolu, kas nokrāsots zaļā vai zaļā un dzeltenā krāsā.
-
Vadiľš, kas ir nokrāsots zilā krāsā, ir jāpievieno kontaktam, kas ir marķēts ar burtu
N
vai nokrāsots
melnā krāsā.
-
Vadiľš, kas ir nokrāsots brūnā krāsā, ir jāpievieno kontaktam, kas ir marķēts ar burtu
L
vai nokrāsots
sarkanā krāsā.
SVARĪGAS DROŃĪBAS INSTRUKCIJAS
BRĪDINĀJUMS:
Kad ierīce tiek darbināta kombinētajā reţīmā, tās esošo temperatūru dēļ bērniem
vajadzētu to lietot tikai pieaugušo uzraudzībā (tikai krāsns modeļa gadījumā ar grila funkciju).
BRĪDINĀJUMS:
Ja
durtiľas vai durtiľu blīves ir bojātas, krāsni nedrīkst lietot, līdz kompetenta persona to
nav salabojusi.
BRĪDINĀJUMS:
Personai, kas nav kompetenta to darīt, ir bīstami veikt jebkāda veida tehniskās apkopes
vai remontēšanas darbības, kas ietver aizsega noľemšanu, kurš sniedz aizsardzību pret mikroviļľu
enerģijas izstarošanu.
BRĪDINĀJUMS:
Šķidrumi un cita pārtika jāsilda aizvērtos traukos, jo tie var sprāgt.
BRĪDINĀJUMS:
Šo ierīci nedrīkst lietot personas (tai skaitā bērni) ar samazinātām fiziskajām, maľu
o
rgānu un garīgajām spējām, vai pieredzes un zināšanu trūkumu, ja vien darbs nenotiek par viľu drošību
atbildīgas personas uzraudzībā vai šīs personas ir saľēmušas instrukcijas attiecībā uz šīs ierīces
lietošanu. Ir jāraugās, lai ar ierīci nerotaļātos bērni.
Krāsnij ir jābūt ar pietiekamu gaisa plūsmu. Turiet tās aizmugurē brīvu telpu 8 cm attālumā; abās pusēs 10
cm attālumā un no augšpuses 10 cm attālumā. Nenoľemiet krāsns kājiľu, nenobloķējiet krāsns gaisa
atveres.
Izmantojiet tikai tādus virtuves piederumus, kas ir piemēroti lietošanai mikroviļľu krāsnīs.
Ja sildāt pārtiku plastmasas vai papīra traukos, pieskatiet krāsni aizdegšanās iespējamības dēļ.
Ja tiek novēroti dūmi, izslēdziet ierīci vai atvienojiet to no strāvas padeves un turiet krāsns durtiľas
a
izvērtas, lai apslāpētu jebkāda veida liesmas.
Uzkodu uzsildīšana mikroviļľos var pārvērsties verdošā vārīšanās procesā, tāpēc, ľemot trauku rokās, ir
jābūt uzmanīgam.
125
Lai izvairītos no apdedzināšanās, barošanas pudelīšu un zīdaiľu ēdienu burciľu saturs pirms lietošanas ir
jāapmaisa vai jāsakrata, kā arī jāpārbauda to temperatūra.
Mikroviļľu krāsnīs nevajadzētu gatavot olas ĉaumalās un veselas cieti novārītas olas, jo tās var uzsprāgt
pat pēc tam, kad sildīšana mikroviļľos ir jau beigusies.
Tīrot durtiľu, durtiľu blīvējuma, krāsns dobuma virsmas, izmantojiet tikai maigas, neabrazīvas ziepes vai
tīrīšanas līdzekļus, kas uzlikti uz sūkļa vai mīkstas lupatiľas.
Krāsns jātīra regulāri, un no tās jānoľem jebkāda veida ēdienu pārpalikumi.
Ja krāsns netiek uzturēta tīrībā, tas var izraisīt virsmas bojājumus, kas var negatīvi ietekmēt iekārtas
kalpošanas laiku un iespējams arī izraisīt bīstamas situācijas.
Ja ir bojāts strāvas padeves vads, lai izvairītos no iespējama riska, tas jānomaina preces tirgotājam, tā
apkop
es dienesta pārstāvim vai līdzīgas kvalifikācijas personām.
DROŃĪBAS INSTRUKCIJAS VISPĀRĒJAI LIETOŃANAI
Tālāk ir norādīti noteikti nosacījumi, kas jāľem vērā, izmantojot visas iekārtas, lai panāktu un nodrošinātu šīs
krāsns vislabāko izpildi:
1.
Vienmēr, kad darbojaties ar krāsni, turiet stikla paplāti, rotācijas sviras, savienojuma elementu un
rotācijas riľķi katru savā vietā.
2.
Neizmantojiet krāsni nekādiem citiem nolūkiem kā tikai ēdiena pagatavošanai, piemēram, neizmantojiet
to sterilizēšanai un drēbju, papīra izstrādājumu vai jebkādu citu priekšmetu, kas nav pārtika, ţāvēšanai.
3.
Neiedarbiniet krāsni, kad tā ir tukša. Tas var sabojāt krāsni.
4.
Neizmantojiet krāsns dobumu nekāda veida priekšmetu uzglabāšanai, piemēram, papīru, pavārgrāmatu
utt. uzgla
bāšanai.
5.
Negatavojiet pārtiku, kas ir ietverta apvalkā, piemēram, olu dzeltenumus, kartupeļus, vistas aknas utt., ja
neesat to vispirms vairākas reizes caurdūruši ar dakšiľu.
6.
Neievietojiet nekādus priekšmetus ārējā korpusa atverēs.
7.
Nekad nenoľemiet no krāsns tādas detaļas kā kājiľu, savienojuma elementu, skrūves u.c.
8.
Negatavojiet ēdienu tieši uz stikla paplātes. Pirms ēdiena ievietošanas krāsnī novietojiet to atbilstošā
virtuves traukā.
9.
Mikroviļľu virtuves piederumi jālieto atbilstoši to izgatavotāja instrukcijām.
10.
Nemēģiniet šajā krāsnī stipri apcept ēdienu.
11. Lūdzu, atcerieties, ka mikroviļľu krāsns uzkarsē šķidrumu traukā vairāk nekā pašu trauku. Tādēļ, pat ja
trauka vāciľš nav karsts, kad tam pieskaraties, izľemot to laukā no krāsns, lūdzu, atcerieties, ka tad, kad
vāciľš tiks noľemts, tajā iekšā esošais ēdiens/šķidrums izdalīs tādu pašu tvaiku un/vai garaiľu
daudzumu kā pie parastās gatavošanas.
12.
Vienmēr pārbaudiet pagatavotā ēdiena temperatūru, jo sevišķi tad, ja sildāt vai gatavojat
ēdienu/dzērienu, kas paredzēts zīdaiľiem. Ieteicams nekad nelietot ēdienu/dzērienu uzreiz pēc tā
izľemšanas no krāsns, bet atļaut tam nostāvēties vairākas minūtes un apmaisīt ēdienu/dzērienu, lai tajā
vienmērīgi izplatītu siltumu.
13.
Pārtikai, kas satur tauku un ūdens maisījumu, piemēram, buljonam, vajadzētu nostāvēties krāsnī vēl 30-
60 sekundes pēc tās izslēgšanas. Tas ir tādēļ, lai ļautu maisījumam norimt un lai novērstu mutuļošanu,
kad ēdienā/dzērienā tiek ievietota karote vai pievienots buljona kubiciľš.
SVARĪGI –
VIRTUVES PREĈU IZSTRĀDĀJUMI, KURUS NEDRĪKST LIETOT ŠAJĀ MIKROVIĻĽU
KRĀSNĪ:
-
Neizmantojiet metāla pannas vai traukus ar metāla rokturiem.
-
Neizmantojiet nekādus priekšmetus ar metāla apdari.
-
Neizmantojiet papīra vijuma auklas, ar kurām apsieti plastmasas maisiľi.
-
Neizmantojiet melamīna traukus, jo tie satur materiālu, kas absorbē mikroviļľu enerģiju. Tas var
iz
raisīt trauku ieplaisāšanu un palēnināt gatavošanas ātrumu.
- Neizmantojiet
Centura
galda piederumus. Glazējums nav piemērots lietošanai mikroviļľos. Tāpat
nedrīkst izmantot
Corelle Livingware
veida tasītes ar osiľām.
-
Negatavojiet pārtiku traukā ar ierobeţotu atveri, piemēram, PET pudelē vai salātu eļļas pudelē, jo
tās var uzsprāgt, ja tiek karsētas mikroviļľu krāsnī.
-
Neizmantojiet parastos gaļas vai saldumu termometrus.
-
Ir pieejami īpaši termometri, kas speciāli paredzēti lietošanai ēdiena gatavošanai mikroviļľos.
Šādus termometrus drīkst izmantot.
126
14.
Gatavojot ēdienu/dzērienu, atcerieties, ka ir atsevišķi ēdieni, piemēram, Ziemassvētku pudiľš, dţemi un
pildījumi, ka uzkarst ļoti ātri. Ja sildāt vai gatavojat ēdienu ar augstu taukvielu vai cukura saturu,
neizmantojiet plastmasas traukus.
15.
Gatavošanas trauki un piederumi var kļūt karsti no siltuma, kas izplatās no uzkarsētā ēdiena. Jo īpaši tas
tā notiek, ja to rokturi vai augšējās virsmas ir pārklātas ar plastmasas pārklājumu. Lai rīkotos ar šādiem
traukiem un piederumiem, ir nepieciešams izmantot šim nolūkam paredzētus turētājus.
16.
Lai mazinātu aizdegšanās bīstamību krāsns dobumā:
a)
Nepārgatavojiet ēdienu. Esiet uzmanīgi, rīkojoties ar mikroviļľu krāsni, ja tajā ir ievietoti papīra,
plastmasas vai citi viegli uzliesmojoši materiāli, lai atvieglotu gatavošanu.
b)
Pirms ievietojat krāsnī maisiľus, noľemiet no tiem papīra vijuma auklas.
c)
Ja krāsns iekšpusē atrodošies materiāli uzliesmo, turiet krāsns durtiľas aizvērtas, izslēdziet krāsni,
atvienojot to no sienas kontakta vai atslēdzot no tā strāvu pie drošinātāja vai slēgiekārtas paneļa.
DATORIZĒTS VADĪBAS PANELIS TEHNISKĀ SHĒMA
1
– laika izvēles taustiľš 10 Sec
2
– laika izvēles taustiľš 1 Min
3
– laika izvēles taustiľš 10 Min
4
– displeja lodziľš
5
– funkciju izvēles taustiľš MICRO (mikroviļľi)/GRILL (grils)
6
– START (ieslēgšanas) taustiľš
7
– PAUSE/CANCEL (pauzēšanas/atcelšanas) taustiľš
8
– atvēršanas taustiľš
1
–
Durtiľu drošības slēdţa sistēma
2
–
Krāsns lodziľš
3
–
Krāsns gaisa ventilācijas atvere
4
–
Rotācijas riľķis
5
–
Stikla paplāte
6
–
Vadības panelis
7
–
Grila paliktnis
127
Lietońanas pamācība
1.
Sildīńana, izmantojot vienu taustiľu
Tikai vienreiz piespieţot taustiľu, Jūs varat uzsākt vienkāršu ēdienu gatavošanu; ir ļoti ērti un ātri uzsildīt
glāzi ūdens utt.
Piemērs: Lai uzsildītu glāzi piena:
a)
novietojiet glāzi ar pienu uz rotējošā stikla paliktľa un aizveriet durtiľas;
b)
piespiediet taustiľu »START« (ieslēgšana), mikroviļľu krāsns darbosies ar 100% jaudu 1 minūti;
c)
kad gatavošana būs beigusies, Jūs izdzirdēsiet 5 pīkstienus.
2.
Sildīńana ar mikroviļľiem
Šai funkcijai ir divas izvēles iespējas.
a)
Ātrā uzsildīšana ar mikroviļľiem (100% jauda)
Piemērs: Lai sildītu pārtiku ar 100% jaudu 5 minūtes
1.
Uzstādiet laiku uz »5:00«.
2.
Piespiediet »START« (ieslēgšanas) taustiľu.
b)
Sildīšana ar mikroviļľiem manuālajā (rokas) reţīmā
Piemērs: Lai sildītu pārtiku ar 70% jaudu 10 minūtes
1.
Piespiediet »MICRO/GRILL« (mikroviļľi/grils) taustiľu, izvēlieties »70%« jaudu.
2.
Uzstādiet laiku uz »10:00«.
3.
Piespiediet »START« (ieslēgšanas) taustiľu.
Pastāv 5 jaudas līmeľi, un ilgākais gatavošanas laiks ar mikroviļľiem ir 59 minūtes un 50 sekundes.
Pieskarńanās reizes
Mikroviļľu jauda
Displejs
1
100%
P10
2
70%
P7
3
50%
P5
4
30%
P3
5
10%
P1
3.
Automātiskā atkausēńana atkarībā no ēdiena svara
Izvēlieties sasaldētā ēdiena svaru, tas Jums automātiski palīdzēs noregulēt jaudas līmeni un laiku.
Piemērs: 0,5 kg sasaldētas gaļas atkausēšana:
a) piespiediet "MICRO/GRILL" (mikro
viļľi/grils) taustiľu, lai izvēlētos "DEF" (atkausēt);
b)
ievadiet svaru, piespieţot taustiľu "1min" (1kg) un taustiľu "10 sec" (0,1kg).
c) piespiediet " START
" (ieslēgšanas) taustiľu.
Sasaldētās pārtikas svaram jābūt mazākam par 2 kg.
4. GRILA
– KOMBINĒTĀS GATAVOŃANAS FUNKCIJA
Grila funkcijai ir 4 pakāpes. Nepieciešamā pakāpe tiek izvēlēta, piespieţot taustiľu »MICRO/GRILL«
(mikroviļľi/grils) 7 līdz 10 reizes. Tālāk esošajā tabulā ir parādīti daţādi jaudas uzstādījumi.
Jaudas uzstādījums
Mikroviļľu jauda
Grila jauda
Displejs
1
/
85%
G
– 1
2
/
50%
G
– 2
3
55%
45%
C
– 1
4
30%
70%
C
– 2
Pēc izvēles veikšanas uzstādiet gatavošanas laiku un piespiediet »START« (ieslēgšanas) taustiľu.
Piezīme: Gatavošanas laikā (neietver kombinēto gatavošanu), kad jau ir pagājusi vairāk nekā puse laika,
programma automātiski tiks nopauzēta un Jūs dzirdēsiet divus pīkstienus, kas atgādinās Jums apgriezt
gatavojamo ēdienu uz otru pusi.
Pēc ēdiena apgriešanas aizveriet durtiľas un piespiediet »START/RESET« (ieslēgšana/atiestate)
taustiľu, gatavošana turpināsies. Ja Jūs to neizdarāt (nospiest »START/RESET« (ieslēgšana/atiestate)
taustiľu), krāsns turpinās gatavošanu pēc 1 minūtes pauzes.
5.
»PAUSE/CANCEL« (pauzēńanas/atcelńanas) taustiľń
a)
Lai apturētu krāsns darbību, tās darbošanās laikā piespiediet "PAUSE/CANCEL"
(pauzēšanas/atcelšanas) taustiľu.
128
b)
Ja pirms ieslēgšanas taustiľa piespiešanas ir bijusi uzstādīta kāda programma, šī taustiľa
piespiešana atcels visu uzstādīto programmu.
6.
Bērnu drońības slēdzis (ierīces nobloķēńana)
Lai aktivizētu bērnu drošības slēdzi (nobloķētu ierīci), piespiediet "PAUSE/CANCEL” (pauzēt/atcelt) trīs
reizes.
Piespieţot vēlreiz taustiľu "PAUSE/CANCEL" (pauzēt/atcelt) trīs reizes, ierīce tiks atbloķēta.
RŪPES PAR JŪSU MIKROVIĻĽU KRĀSNI
1. Pirm
s ierīces tīrīšanas izslēdziet krāsni un atvienojiet strāvas vadu no sienas kontaktligzdas.
2.
Turiet tīru krāsns iekšieni. Ja krāsns sieniľas ir aplipušas ar sapilējušu šķidrumu ēdiena atliekām, notīriet
tās ar mitru lupatiľu. Spēcīgu mazgāšanas šķidrumu vai abrazīvu līdzekļu lietošana nav ieteicama.
3.
Krāsns ārējā virsma ir tīrāma ar mitru lupatiľu. Lai novērstu krāsns iekšpusē darbojošos detaļu
bojājumus, nedrīkst pieļaut ūdens iekļūšanu ventilācijas atverēs.
4.
Nepieļaujiet, lai vadības panelis kļūtu mitrs. Tīriet to ar mīkstu, mitru lupatiľu. Kontroles paneļa tīrīšanai
neizmantojiet mazgāšanas līdzekļus, abrazīvus vai izsmidzināmus tīrīšanas līdzekļus.
5.
Ja krāsns durtiľu iekšpusē vai apkārt tām uzkrājas tvaiki, notīriet tos ar mīkstu lupatiľu. Tā var notikt, ja
mikroviļľu krāsns tiek izmantota augstas mitruma pakāpes apstākļos, taĉu tas nenorāda uz ierīces
darbības traucējumiem.
6.
Laiku pa laikam ir nepieciešams izľemt stikla paplāti, lai to iztīrītu. Nomazgājiet paplāti ar siltu ziepjūdeni
vai trauk
u mazgājamo līdzekli.
7.
Rotācijas riľķis un krāsns dobuma grīda ir jātīra regulāri, lai izvairītos no pārmērīga ierīces darbības
trokšľa. Vienkārši notīriet krāsns virsmas apakšdaļu ar maigu tīrīšanas līdzekli, ūdeni vai logu tīrītāju un
nosusiniet. Rotācijas riľķi var mazgāt ar vieglu ziepjūdeni. Atkārtoti lietojot ierīci, no ēdiena gatavošanas
uzkrājas garaiľi, taĉu tie nekādā veidā neietekmē krāsns apakšējo virsmu vai rotācijas riľķa ritentiľus.
Ja mazgāšanas nolūkā no krāsns dobuma grīdas tiek noľemts rotācijas riľķis, pārliecinieties, vai pēc
tam tas tiek pareizi novietots atpakaļ.
8.
Smarţas likvidēšanai izmantojiet dziļu, mikroviļľu lietošanai paredzētu bļodu, kurā sajaukta tase ūdens
ar viena citrona miziľu un sulu. Ieslēdziet mikroviļľus uz 5 minūtēm, kārtīgi noslaukiet un tad nosusiniet
ar mīkstu lupatiľu.
9.
Ja ir nepieciešams nomainīt krāsns gaismas lampiľu, lūdzu, sazinieties ar ierīces tirgotāju, lai to
iegādātos.
Vide
Kad ierīces darbmūţs ir beidzies, neizmest to parastajos sadzīves atkritumos, bet gan nodot to oficiālā
atkritumu savākšanas punktā otrreizējai pārstrādei. Šādi rīkojoties, jūs palīdzat saudzēt vidi.
Garantija un serviss
Ja jums nepieciešama informācija vai ir kāda problēma, lūdzu, sazinieties ar „Gorenje” klientu servisu jūsu
valstī (tā tālruľa numuru jūs atradīsiet vispasaules garantijas informācijas lapā). Ja jūsu valstī nav šāda
oficiālā klientu servisa, dodieties pie „Gorenje” dīlera vai sazinieties ar „Gorenje” sadzīves tehnikas servisa
nodaļu.
TIKAI PERSONĪGAI LIETOŃANAI!
NOVĒL JUMS IZBAUDĪT DAUDZ PRIEKA, IZMANTOJOT ŃO IERĪCI
Papildu ieteikumi gatavošanai ar mikroviļņiem un grilu, kā arī noderīgi padomi
i
i
r
r
a
a
t
t
r
r
o
o
d
d
a
a
m
m
i
i
i
i
n
n
t
t
e
e
r
r
n
n
e
e
t
t
a
a
m
m
ā
ā
j
j
a
a
s
s
l
l
a
a
p
p
ā
ā
:
:
htpp://www.gorenje.com
129
NAUDOJIMO INSTRUKCIJA LT
Atidņiai perskaitykite ńią naudojimo instrukciją ir prireikus vadovaukitės ja ateityje.
TECHNINIAI DUOMENYS
Energijos sąnaudos: ................................................................. 230V~50Hz,1280W
Galia: .............................................................................................................. 800W
Kepintuvo galia: ............................................................................................ 1100W
Daţnis: ...................................................................................................... 2450MHz
Išoriniai matmenys: ....................................... 470mm(P) X 282mm(A) X 377mm(G)
Vidaus matmenys: ........................................ 315mm(P) X 195mm(A) X 330mm(G)
Talpa: ............................................................................................................. 20
litrų
Svoris: ................................................................................................... apie 12,2 kg
Triukšmo lygis
: ...................................................................................... Lc < 58 dB (A)
Ńis prietaisas yra paņymėtas remiantis elektrinių ir elektronikos prietaisų atliekų Europos
direktyva 2002/96/EC (WEEE).
Ńi direktyva galioja visoje Europoje ir yra elektrinių ir elektronikos prietaisų grąņinimo bei
perdirbimo tvarkos pagrindas.
Šiuo prietaisu gali naudotis tik asmenys, kurie atidţiai perskaitė naudojimo instrukciją, ir sugebės vadovautis
ja, tam kad būtų išvengta nuostolių.
Prašome perspėti vaikus ir stebėti, kad jie neţaistų su prietaisu ir nesinaudotų juo be suaugusiųjų prieţiūros.
PRIEŃ KVIEŢIANT MEISTRĄ
1. Jei
prietaisas neveikia, ekranėlis neįsijungia:
a)
Patikrinkite ar prietaiso laidas gerai įkištas į elektros lizdą. Jei ne, ištraukite kištuką iš rozetės ir
palaukę 10 sekundţių vėl įkiškite kištuką atgal į elektros lizdą.
b)
Patikrinkite, ar negalėjo perdegti saugiklis; arba nutrūkti elektros tiekimas. Jei viskas gerai, patikrinkite
elektros lizdą, įjungdami į jį kitą prietaisą.
2. Jei mikrobangos veikia ne visu galingumu:
a) Patikrinkite, kuris laikmatis yra nustatytas.
b)
Įsitikinkite, kad durelės yra gerai uţdarytos. Kitaip mikrobangos nesklis į orkaitę.
JEI NETINKA NEI VIENAS AUKŠĈIAU PATEIKTAS APRAŠYMAS, KREIPKITĖS Į ARTIMIAUSIĄ
TECHNINIO APTARNAVIMO CENTRĄ.
RADIO TRUKDŅIAI
Mikrobangų krosnelė gali sutrikdyti jūsų radijo, televizoriaus ar panašių prietaisų veikimą. Kai atsiranda
trukdţiai, juos galima pašalinti ar sumaţinti atliekant tokius veiksmus:
a)
Nuvalykite krosnelės dureles ir sandarinimo gumų paviršių.
b)
Pastatykite radijo imtuvą, televizorių ir panašius prietaisus kuo toliau nuo mikrobangų krosnelės.
c)
Naudokite tinkamą anteną, kad radijo imtuvas, televizorius ar kiti panašūs prietaisai galėtų gerai priimti
signalą.
MONTAVIMAS
1.
Įsitikinkite, jog išėmėte visas pakuotės dalis iš mikrobangų krosnelės vidaus.
2.
Išpakavę prietaisą, gerai apţiūrėkite, ar nėra paţeidimų, tokių kaip:
-
netinkamai įmontuotos durelės
Prietaisas skirtas naudoti namų buityje maisto ir gėrimų pašildymui, naudojant elektromagnetinę energiją.
Naudoti tik vidaus patalpose.
130
-
paţeistos durelės
-
durelių lango įdubimai ar skylės
-
įlenktas krosnelės vidus
Jei pastebėjote bent vieną paţeidimą,
NENAUDOKITE
prietaiso.
3.
Ši mikrobangų krosnelė sveria 12,2 kg ir ją reikia statyti ant horizontalaus tvirto paviršiaus, kuris išlaikytų
tokį svorį.
4.
Krosnelę statykite ten, kur jos nepasiektų karštis ir garai.
5.
Ant krosnelės viršaus
NELAIKYKITE
jokių daiktų.
6.
Statykite krosnelę bent 8 cm atstumu nuo abiejų sienelių ir 10 cm atstumu nuo galinės sienelės, kad
uţtikrintumėte tinkamą ventiliaciją.
7.
NENUIMKITE
veleno.
8.
Priţiūrėkite vaikus, kuomet jie naudojasi mikrobangų krosnele.
ĮSPĖJIMAS:
JĮ PRIETAISĄ REIKIA ĮŢEMINTI.
9.
Elektros laido kištukas turi būti lengvai pasiekti elektros lizdą.
10.
Prijungiant krosnelę, rekomenduojama pasikonsultuoti su techninio patarnavimo specialistais, nes
krosnelė reikalauja 1.3 KW galios.
KROSNELĖS DUOMENYS:
250V,10 amperų saugiklis.
SVARBU
Laidų ţymėjimas:
Ņalias ir geltonas:
įņeminimas
Mėlynas:
neutralus
Rudas:
energijos
Jei laidų spalvos neatitinka aprašymo:
-
laidas, kuris yra ţalias ir geltonas turėtų būti prijungtas prie šaltinio terminalo, kuris paţymėtas raide
E
arba įţeminimo simboliu (ţaliu-geltonu).
-
mėlynas laidas turėtų būti prijungtas prie terminalo, kuris paţymėtas raide
N
ar juoda spalva.
-
rudas laidas turėtų būti prijungtas prie terminalo, kuris paţymėtas raide
L
ar raudona spalva.
SVARBŪS SAUGOS REIKALAVIMAI
ĮSPĖJIMAS:
kai prietaisas veikia kombinuotu
reţimu, vaikai prietaisu gali naudotis tik priţiūrimi
suaugusiųjų, nes šiuo reţimu generuojama aukšta temperatūra (tinka tik modeliams su kepintuvo funkcija)
ĮSPĖJIMAS:
jei paţeistos durelės ar durelių sandarinimo gumos, krosnelės negalima naudoti tol, kol ji
suremontuojama;
ĮSPĖJIMAS:
rizikinga patiems bandyti taisyti krosnelę, ypaĉ nuimti jos viršų, nes tada būsite neapsaugoti
nuo mikrobangų energijos. Atlikti bet kokius krosnelės remonto darbus gali tik kvalifikuotas specialistas.
ĮSPĖJIMAS:
skysĉių ir kito maisto negalima kaitinti sandariai uţdarytuose induose, nes jie gali sprogti.
ĮSPĖJIMAS:
Šis prietaisas nepritaikytas naudotis ţmonėms su protine ar fizine negalia, neturintiems
pakankamai patirties ir įgūdţių bei vaikams. Išskyrus tuos atvejus, kai jie priţiūrimi asmens, atsakingo uţ jų
saugumą, arba jei jie buvo atitinkamai informuoti kaip naudotis prietaisu. Vakai turi būti priţiūrimi, kad
neţaistų su prietaisu.
Krosnelė turi turėti sąlygas gerai ventiliacijai. Palikite 8 cm atstumą nuo galinės sienelės; 10 cm atstumą
nuo šoninių sienelių ir 10 cm – virš krosnelės. Nenuimkite krosnelės kojelių ir neuţblokuokite ertmių
ventiliacijai.
Naudokite tik tinkamus mikrobangų krosnelei indus.
Jei šildomas maistas yra sudėtas į plastikinį ar popierinį indą, stebėkite, kad tara neuţsidegtų;
Jei pasirodė dūmai, išjunkite krosnelę ir ištraukite jos laidą iš elektros lizdo. Durelių neatidarykite, kad, jei
atsirado liepsnos, jos būtų nuslopintos.
Kaitinami skysĉiai gali uţvirti, todėl atsargiai išimkite indą iš krosnelės, nes jis gali būti įkaitęs.
Pašildę kūdikių maistelį, suplakite jo buteliuką ir prieš maitindami vaiką, patikrinkite maisto temperatūrą,
kad išvengtumėte nudegimų.
Kiaušiniai su lukštu ir kietai virti kiaušiniai neturėtų būti kaitinami mikrobangų krosnelėje, nes jie gali
sprogti, net pasibaigus kaitinimo laikui.
Krosnelės durelių, sandarinimo gumų ir vidaus valymui naudokite tik švelnų valiklį ar indų ploviklį bei
kempinėlę ar minkštą šluostę.
Krosnelę valykite reguliariai. Nuvalykite bet kokius maisto likuĉius.
Jei krosnelės reguliariai nevalysite, susikaupę paviršiaus nešvarumai gali neigiamai įtakoti jos efektyvų
veikimą bei padidinti gedimų riziką.
Jei paţeistas krosnelės laidas, techninio aptarnavimo centre kvalifikuotas specialistas jį turėtų pakeisti
tinkamu, kad būtų išvengta rizikos.
131
SAUGUMO INSTRUKCIJOS
Laikykitės ţemiau pateiktų taisyklių ir būsite tikri, jog jūsų prietaisas veiks efektyviai:
1.
Krosnelei veikiant, jos viduje visada turi būti visos reikalingos dalys: stiklinis padėklas, nukreiptuvas ir
pan.
2.
Naudokite krosnelę tik maisto produktams šildyti ar gaminti. Nedţiovinkite joje rūbų, popieriaus ar kitų ne
maisto produktų ir nenaudokite krosnelės daktų sterilizavimui.
3.
Neįjunkite krosnelės, kuomet ji tušĉia. Tai gali pakenkti prietaisui.
4.
Nenaudokite krosnelės kaip erdvės bet kokių daiktų laikymui.
5.
Krosnelėje nekaitinkite jokių produktų, kurie turi membraną/ţievelę, pvz., kiaušinių tryniai, bulvės,
vištienos kepenėlės ir pan., prieš tai jų nesubadę šakute.
6.
Į krosnelės angas nekiškite jokių daiktų.
7.
Nenuimkite jokių krosnelės dalių: kojelių, varţtų ir pan.
8.
Nekaitinkite maisto, padėję jį tiesiai ant stiklinio padėklo. Prieš dėdami į krosnelę maistą, sudėkite jį į/ant
tinkamą/-o indą/-o.
9.
Indais naudokitės tik laikydamiesi jų gamintojų instrukcijų
10.
Krosnelėje nevirkite/neskrudinkite maisto riebaluose.
11. Prisiminkite, jog mikrobangų krosnelėje kaitinamas tik skystis inde, o ne pats indas. Taĉiau nors indo
viršus nėra karštas, išimant indą iš krosnelės būkite atidus, nes skystis/maistas inde yra karštas ir gali
ištikšti.
12.
Visada prieš vartodami maistą/skystį, kurį kaitinote krosnelėje, patikrinkite jo temperatūrą. Ypaĉ jei
duodate maistą kūdikiams. Nerekomenduojama vartoti maisto/skysĉio iš karto išėmus jį iš krosnelės.
Leiskite jam pastovėti keletą minuĉių ir prieš valgant pamaišykite, kad paskirstytumėte vienodai
temperatūrą.
13.
Maistas, kuriame yra vandens ir riebalų, turėtų būti palaikomas krosnelėje dar 30-60 sekundţių po to kai
baigiamas kaitinimas.
14. Prisimi
nkite, kad specifinis maistas, kaip, pavyzdţiui, Kalėdinis pudingas, dţemas ir pan. pašyla labai
greitai. Labai riebų ar saldų maistą kaitinkite ne plastmasiniuose induose.
15.
Krosnelėje indai gali įkaisti nuo kaitinamo maisto. Ypaĉ įkaista plastikinės indo dalys viršuje ir ant
rankenų. Išimdami tokius indus, naudokite puodkėlę.
16.
Kad išvengtumėte gaisro krosnelės viduje:
a)
Maisto neperkaitinkite. Priţiūrėkite gaminimo procesą, kai į krosnelę įdedate maistą plastikiniuose,
popieriniuose ar kitos lengvai
uţsideganĉios medţiagos induose/pakuotėse.
b)
Prieš dėdami į krosnelę popierines pakuotes (indelius, maišelius), išimkite metalines detales.
c)
Jei medţiaga (popierius, plastikas ar kt.) krosnelės viduje uţsidegė, jokiu būdu neatidarykite krosnelės
durel
ių, išjunkite krosnelę ir ištraukite jos laidą iš elektros lizdo.
SVARBU:
NETINKAMI KROSNELĖJE NAUDOTI INDAI
-
Nenaudokite metalinių indų ar indų su metalinėmis rankenomis.
-
Nenaudokite jokių indų su metalinėmis detalėmis.
-
Nenaudokite popierinių puodelių ar plastikinių maišelių.
-
Nenaudokite melanino indų nes jie sugeria mikrobangas. Dėl to indas gali įskilti, be to tai prailgins
gaminimo laiką.
-
Nenaudokite glazūruotų indų.
-
Nekaitinkite uţdarų indų, nes jie gali sprogti.
-
Nenaudokite mėsai ar kulinarijos gaminiams skirtų termometrų.
-
Galite naudoti tik specialiai mikrobangų krosnelėms sukurtus termometrus.
132
VALDYMO SKYDELIS KROSNELĖS DALYS
1
–
laiko nustatymo mygtukas 10 sek.
2
–
laiko nustatymo mygtukas 1 min.
3
–
laiko nustatymo mygtukas 10 min.
4
–
ekranėlis
5
–
funkcijų pasirinkimo mygtukas mikrobangos/kepintuvas
(MICRO/GRILL)
6
–
Įjungimo (START) mygtukas
7
– Pauzės/atšaukimo (PAUSE/CANCEL) mygtukas
8
– atidarymo mygtukas
1
–
Durelių uţsidarymo mechanizmas
2
–
Durelių langas
3
–
Krosnelės ventiliacijos grotelės
4
–
Ritininis nukreiptuvas
5
–
Stiklinis padėklas
6
–
Valdymo skydelis
7
–
Metalinis kepintuvo padėklas
133
Operation Instruction
1. Kaitinimas vienu mygtuku
Tik vieno mygtuko spustelėjimu galite pradėti paprastą maisto ruošimo/pašildymo programą. Tai labai
patogu, kai, pvz., greitai reikia pašildyti stiklinę vandens ar pan.
Pavyzdys, kaip pašildyti stiklinę pieno:
a)
Padėkite pieno stiklinę ant stiklinio krosnelės padėklo ir uţdarykite dureles.
b)
Paspauskite įjungimo »START« mygtuką, mikrobangų krosnelė pradės veikti 100% galingumu 1
minutę.
c)
Kai šildymas bus baigtas, išgirsite 5 pyptelėjimus.
2. Kaitinimas mikrobangomis
Ši funkcija turi du pasirinkimus.
a) Greitas kaitinimas mikrobangomis (galingumas 100%)
Pavyzdys, kaip ruošti maistą 100% galingumu 5 minutes:
1.
Pasirinkite laiką iki »5:00« minuĉių
2.
Paspauskite įjungimo »START« mygtuką
b)
Rankiniu būdu valdomas kaitinimas
Pavyzdys, kaip ruošti maistą 70% galingumu 10 minuĉių:
1. Paspauskite mikrobangos/kepintuvas
»MICRO/GRILL« mygtuką, pasirinkite »70%« galingumą;
2.
Nustatykite laiką iki »10:00« minuĉių
3.
Paspauskite įjungimo »START« mygtuką.
Galimi 5 galios lygiai, o ilgiausias gaminimo mikrobangomis laikas yra 59 minutės ir 50 sekundţių.
Palietimų skaiţius
Mikrobangų galia
Ekran
ėlio rodmenys
1
100%
P10
2
70%
P7
3
50%
P5
4
30%
P3
5
10%
P1
3.
Atitirpinimas pagal svorį
Pasirinkite šaldyto maisto svorį, pagal jį automatiškai bus parinktas kaitinimo galingumas ir laikas.
Pavyzdys, kaip atitirpinti 500 g mėsos:
a) Paspauskite mi
krobangos/kepintuvas ("MICRO/Grill") mygtuką, kad pasirinktumėte "DEF"
(atitirpinimo funkciją).
b)
Įveskite svorį, paspausdami mygtuką "1min" (1kg) ir mygtuką "10 sec" (0.1kg).
c)
Paspauskite įjungimo »START« mygtuką.
Šaldyto maisto svoris turėtų būti ne daugiau nei 2 kg.
4.
KEPINTUVO IR KOMBINUOTO REŅIMO FUNKCIJA (»GRILL – COMBINATION«)
Kepintuvo funkcija turi 4 lygius. Norimas lygis pasirenkamas paspaudţiant mikrobangos/kepintuvas
»MICRO/GRILL« mygtuką nuo 7 iki 10 kartų. Skirtingi galios lygiai nurodyti lentelėje.
Galio lygis
Mikrobangų galia
Kepintuvo galia
Ekranėlio rodmenys
1
/
85%
G
– 1
2
/
50%
G
– 2
3
55%
45%
C
– 1
4
30%
70%
C
– 2
Pasirinkę norimą lygį, nustatykite gaminimo laiką ir paspauskite įjungimo »START« mygtuką.
Pastaba: kai praeina
pusė nustatyto gaminimo laiko, programa automatiškai tik trumpam sustabdoma,
pasigirsta 2 pyptelėjimai, primenantys, jog maistą reikia apversti (netinka gaminant kombinuotu reţimu).
Apvertę maistą, uţdarykite mikrobangų krosnelės dureles ir paspauskite įjungimo ("START") mygtuką,
gaminimas bus tęsiamas toliau; Jei maistas nebus apverĉiamas, krosnelė tęs gaminimą po 1 minutės
pauzės.
134
5.
Pauzės/atńaukimo »PAUSE/CANCEL« mygtukas
a) prietaisui veikiant, paspauskite "PAUSE/CANCEL
" mygtuką, taip sustabdysite veikimą.
b)
jei prieš įjungiant krosnelę buvo nustatyta kuri nors programa, paspaudus šį mygtuką, bus atšauktos
visos prieš tai nustatytos programos.
6.
Apsauga nuo vaikų.
Norėdami aktyvuoti uţraktą nuo vaikų, paspauskite pauzės/atšaukimo "PAUSE/CANCEL" mygtuką 3
kartus.
Dar kartą paspauskite pauzės/atšaukimo "PAUSE/CANCEL" mygtuką 3 kartus, uţraktas bus išjungtas.
MIKROBANGŲ KROSNELĖS PRIEŅIŪRA
1.
Prieš valydami krosnelę, išjunkite ją ir ištraukite jos laidą iš elektros lizdo.
2. Priţiūrėkite, kad krosnelės vidus nuolat būtų švarus. Jei skystis ištiško ant krosnelės sienelių, nuvalykite jį
drėgna šluoste. Nerekomenduojama naudoti stiprių ir šiurkšĉių valiklių ar valymo priemonių.
3.
Krosnelės viršų valykite drėgna šluoste. Neleiskite, kad į ventiliacines angas patektų vandens, taip
išvengsite vidinių krosnelės dalių paţeidimo.
4.
Nesušlapinkite valdymo skydelio. Valykite jį minkšta, drėgna šluoste. Valdymo skydeliui valyti
nenaudokite stipriai veikianĉių valiklių.
5.
Jei garai susikaupė aplink dureles ar jų viduje, nuvalykite juos minkšta šluoste. Garai gali susikaupti, kai
mikrobangų krosnelė veikia aukšto drėgmės lygio sąlygomis ir tai neturi jokios įtakos krosnelės veikimo
efektyvumui.
6.
Norėdami nuvalyti stiklinį padėklą, išimkite jį iš krosnelės, nuplaukite šiltu muiluotu vandeniu ar išplaukite
indaplovėje.
7.
Ritininis nukreiptuvas ir krosnelės vidaus sienelės turėtų būti valomos reguliariai, kad vėliau, nuo
susikaupusių nešvarumų neatsirastų pašalinių garsų, krosnelei veikiant. Tiesiog nuvalykite krosnelės
dugną (kur įmontuotas ritininis kreiptuvas) švelniu valikliu ir vandeniu ar langų plovikliu ir nusausinkite.
Ritininį nukreiptuvą plaukite šiltame muiluotame vandenyje arba indaplovėje. Drėgmė, susidaranti
gaminant maistą krosnelėje, nekenkia krosnelės ritininiam kreiptuvui ar jod dugnui.
Kai nuimsite ritininį kreiptuvą valymui, įsitikinkite, jog atgal jį įstatėte teisingai.
8.
Norėdami krosnelėje panaikinti nemalonų kvapą, į gilų mikrobangų krosnelei tinkantį indą įpilkite vandens
ir išspauskite vienos citrinos sultis bei sudėkite jos ţievelę. Krosnelę uţstatykite veikti 5 minutėms,
nuvalykite ir nusausinkite krosnelės vidų minkšta pašluoste.
9.
Dėl krosnelės lemputės pakeitimo prašome konsultuotis su pardavėju.
Aplinka
Neišmeskite prietaiso kartu su įprastomis buitinėmis atliekomis. Nuneškite jį į oficialų surinkimo punktą. Tokiu
būdu prisidėsite prie aplinkosaugos.
Garantija ir aptarnavimas
Jei jums reikia informacijos arba jei turite
problemą, prašome susisiekti su Gorenje klientų aptarnavimo
centru
Jūsų šalyje (viso pasaulio atstovybių telefonų numerius rasite garantinėje knygelėje). Jei Jūsų šalyje
nėra klientų aptarnavimo centro, kreipkitės į vietinį Gorenje atstovą arba susisiekite su Gorenje buitinės
technikos departamentu
.
Prietaisas skirtas naudoti tik buityje!
LINKI SĖKMINGAI NAUDOTI PRIETAISĄ
Papildomų rekomendacijų, kaip gaminti maistą mikrobangų krosnelėje, ir kitų naudingų
patarimų ieškokite puslapyje internete, adresu:
htpp://www.gorenje.com
135
KASUTUSJUHEND EE
Lugege instruktsioonid tähelepanelikult läbi ja säilitage need hilisemaks kasutamiseks.
TEHNILISED ANDMED
Võimsustarve ............................................................................ 230V~50Hz,1280W
Väljundvõimsus............................................................................................... 800W
Grilli küttekeha: ............................................................................................. 1100W
Kasutatav sagedus: .................................................................................. 2450MHz
Välismõõdud: ................................................ 470mm(L) X 282mm(K) X 377mm(D)
Ahju sisemuse mõõdud: ............................... 315mm(L) X 195mm(K) X 330mm(D)
Ahju maht: ..................................................................................................... 20 liitrit
Kaal: ................................................................................................ Umbes. 12,2 kg
Müratase: ................................................................................. (Lc IEC) < 58 dB (A)
See seade on märgistatud vastavalt Euroopa direktiivile 2002/96/EC kasutatud elektrilistest ja
elektroonika seadmetest (WEEE).
See on üleeuroopaline raamjuhis kasutatud elektri- ja elektroonikaseadmete kogumise ja
taaskasutamise kohta.
See seade on komplitseeritud seade
mis on ettenähtud kasutamiseks ainult selliste isikute poolt, kes on
tutvunud kasutusjuhendiga ja kes on võimelised saama aru ja jälgima kasutusjuhendit täielikult vältimaks
kahjustusi.
Pange tähele et lapsed ei tohi kunagi mängida selle seadmega ega kasutada seda järelevalveta.
ENNE HOOLDUSESSE HELISTAMIST
1.
Kui ahi ei ole töökorras, siis displeile ei kuvata midagi.
a)
Kontrollige, kas seade on korrektselt vooluvõrku ühendatud. Kui pole, siis eemaldage pistik
seinakontaktist, oodake 10 sekundit ja ühendage taas.
b)
Kontrollige, kas kaitse pole läbi põlenud või korgid välja lülitunud. Kui need tunduvad olema korras,
kontrollige seinakontakti, ühendades sinna mõne muu seadme.
2.
Kui puudub mikrolainete võimsus:
a)
Kontrollige, kas taimer töötab.
b) Kontrollige, kas uks on korrektselt suletud turvalukustusega. Vastasel korral mikrolaineenergia ei liigu
ahju.
KUI ÜKSKI EELTOODUD JUHISTEST EI PARANDANUD OLUKORDA, PÖÖRDUGE LÄHIMASSE
VOLITATUD REMONDITÖKOTTA.
RAADIOHÄIRED
Mikrolaineahi võib põhjustada häireid Teie raadio, TV või muu sarnase seadme töös. Häire tekkimisel saate
seda kõrvaldada või vähendada järgmise protseduuriga.
a) Puhastage ahju ukse ja tihendi pinnad.
b)
Paigaldage raadio, TV, jms mikrolaineahjust võimalikult kaugemale.
c) Kasutage korrektse
lt paigaldatud antenni oma raadio, TV, jms seadme signaali vastuvõtuks.
PAIGALDAMINE
1.
Veenduge, et kõik pakkematerjalid oleksid eemaldatud ahju seest.
2.
Kontrollige, et peale pakendi eemaldamist poleks nähtavaid vigastusi nagu:
-
Kõver uks
- Vigastatud uks
-
Mõlgid või augud ukseaknas või displeil
-
Mõlgid sisemuses
136
Kui märkate ühtainustki eelnimetatud vigastust,
ÄRGE
ahju kasutage.
3. See mikrolaineahi kaalub 12,2 kg ja tuleb asetada horisontaalsele pinnale, mis on piisavalt tugev sellise
raskusega seadme kandmiseks.
4.
Ahi tuleb paigaldada eemale kõrgetest temperatuuridest ja aurust.
5.
ÄRGE
asetage midagi ahju peale.
6.
Jätke ahju ümber vaba ruumi, vähemalt 8 cm külgedelt ja 10 cm tagaseinast, korrektse ventileerimise
tagamiseks.
7.
ÄRGE
eemaldag
e pöörleva taldriku alusvõlli.
8.
Nagu iga seadmega, ärge laske lastel seadet järelvalveta kasutada.
HOIATUS
-SEE SEADE PEAB OLEMA MAANDATUD.
9.
Toitejuhet peab saama hõlpsasti seinakontaktist eemaldada.
10.
See ahi vajab 1.3 KVA sisendvõimsuseks, konsulteerige ahju paigaldamisel hooldustehnikuga.
ETTEVAATUST:
Sellel ahjul on sisemine kaitse võimsusega 250V,10 A.
TÄHTIS
Toitejuhtme kaablite värvid on vastavuses järgmise koodiga:
Roheline-ja-kollane: Maa
Sinine:
Neutraalne
Pruun:
Faas
Kui toitejuhtme kaabl
ite värvid ei vasta pistikupesa terminali värvimärkidele, toimige järgnevalt:
- Roheline-ja-
kollane kaabel tuleb ühendada
E
tähega märgistatud terminaliga või maanduse sümboliga
terminaliga, mis on roheline.
-
Sinist värvi kaabel tuleb ühendada terminaliga, mis kannab tähistust
N
või on musta värvi.
-
Pruuni värvi kaabel tuleb ühendada terminaliga, mis kannab tähistust
L
või on punast värvi.
OLULISED OHUTUSJUHISED
HOIATUS:
Kui seade töötab kombineeritud reţiimil, tohivad lapsed kasutada seadet vaid järelvalve all,
kuna toiduvalmistamiseks kasutatakse kõrget temperatuuri; (Ainult grillifunktsiooniga mudelitel)
HOIATUS:
Kui uks või uksetihendid on vigastatud, ei tohi ahju kasutada kuni need on parandatud
kompetentse isiku poolt;
HOIATUS:
Väga ohtlik on, kui ebakompetentne isik teostab mikrolaineahju hooldust või remonti, mis
hõlmab mikrolaineenergia eest kaitsvate katete eemaldamist;
HOIATUS:
Vedelikke ja muid toiduaineid ei tohi kuumutada kinnistes anumates, kuna need võivad
plahvatada.
HOIATUS:
See seade pole
ette nähtud kasutamiseks nõrgenenud psüühikaga, motoorikaga, vaimse
puudega, ebapiisava kogemuse või teadmisega isikute poolt (kaasaarvatud lapsed), kui nad just ei kasuta
seadet järelvalve all või on saanud täiendavaid instruktsioone nende ohutuse eest vastutava isiku poolt.
Tuleb jälgida, et lapsed seadmega ei mängiks.
Ahju ümber tuleb jätta piisavalt vaba ruumi. Jätke vaba ruumi ahju taha 8 cm, 10 cm mõlemale küljele ja 10
cm ahju peale.
Kui eemaldate ahju jalad, ärge blokeerige ahju ventilatsiooni avasid.
Kasutage ainult mikrolaineahjus kasutamiseks sobivaid tarvikuid.
Kui kuumutate toite plastikust või paberist nõudes, jälgige ahjus toimivat, et vältida võimalikku süttimist;
Kui märkate suitsu, lülitage seade välja ja eemaldage toitejuhe seinakontaktist ning hoidke ust suletuna, et
lämmatada võimalikud leegid;
Jookide mikrolainetega kuumutamine võib esile kutsuda viivitusega purskuva keemise, seetõttu olge
anumaga eriti hoolikas;
Lutipudelite ja beebitoidupurkide sisu tuleb hoolikalt segada ja raputada ning kontrollida eelnevalt
temperatuuri, et vältida põletusi;
Tervet toorest ja keedetud muna ei tohi kuumutada mikrolaineahjus, kuna need võivad plahvatada ka
peale seda, kui mikrolainetega kuumutamine on lõppenud;
Ukse pinna, ukse tihendi, ahju sisemuse puhastamiseks kasutage pehmet lappi, mis on niisutatud lahja,
mitteabrasiivse vahendiga.
Ahju tuleb puhastada regulaarselt ja eemaldada toidujäätmed;
Vale ahju hooldamine vähendab ahju eluiga ja võib tekitada ohtliku olukorra;
Kui toitejuhe on vigastatud,
tohib seda vahetada vaid tootja esindaja, hooldustehnik või vastavat
kvalifikatsiooni omav isik, et vältida õnnetusi.
137
OHUTUSNÕUDED TAVAKASUTUSEL
Järgige mikrolaineahju kasutamisel järgnevalt toodud ohutusjuhiseid, nagu kõikide seadmetega:
1. Ahju kasutam
isel peavad ahjus alati olema klaasalus, rullikutega rõngas ja sidur.
2.
Ärge kasutage ahju muudel eesmärkidel kui toiduvalmistamiseks, nagu näiteks riiete, paberi jms
kuivatamine või steriliseerimiseks.
3.
Ärge käivitage ahju tühjalt. See võib ahju kahjustada.
4.
Ärge kasutage ahju sisemust mistahes esemete, nagu näiteks paberite, kokaraamatute jms hoidmiseks.
5.
Ärge valmistage ahjus toiduaineid, mis on koore või membraaniga kaetud, nagu näiteks munakollane,
kartulid, kanamaks jms, need tuleb eelnevalt k
ahvliga läbi torgata.
6.
Ärge asetage mingeid esemeid ventilatsiooniavade ette.
7.
Ärge kunagi eemaldage ahju küljest osasid, nagu näiteks jalad, sidur, kruvid jms.
8.
Ärge valmistage toitu otse klaasalusel. Asetage toiduained sobivasse toidunõusse enne ahju
paigutamist.
9. Mikrolaineahju tarvikuid tuleb kasutada vaid vastavalt tootjapoolsetele juhistele.
10.
Ärge proovige fritüürida toiduaineid mikrolaineahjus.
11.
Palun jätke meelde, et mikrolaineahi kuumutab vedelikku anumas, mitte anumat ennast. Seetõttu, võttes
anumat ahjust välja, pole see tuline, kuid vedelik selles võib eraldada auru ja keeda nagu tavapärasel
kuumutamisel.
12. Alati kontrollige valmistatud toidu temperatuuri enne serveerimist, eriti kui soojendate beebitoitu.
Soovitatav on alati
lasta toidul mõni minut seista peale ahjust välja võtmist ja enne serveerimist segada,
et temperatuur ühtlustuks.
13.
Toidud, mis sisaldavad vee ja rasva segu, nt puljong, peavad seisma ahjus peale ahju välja lülitumist
veel umbes 30-60 sekundit.
See võimaldab segu settida ja väldib keema purskumist, kui sellest asetada
lusikas või puljongi kuubik.
14.
Kui valmistate toite/vedelikku, mis sisaldavad teatud toiduaineid, nt Jõulupudingit, moosi, hakkliha, jätke
meelde, et need kuumenevad väga kiiresti. Suure suhkru ja rasvasisaldusega toiduainete
valmistamiseks ärge kasutage plastiknõusid.
15.
Toidunõud võivad muutuda tuliseks, kuna need kuumenevad toiduainest eralduva soojuse mõjul. See
mõjutab eriti toitu katvat plastikut ja toidunõude käepidemeid. Soovitame kasutada toidunõude välja
võtmiseks pajakindaid.
16.
Tuleohu vähendamiseks ahjus:
a)
Ärge kuumutage toiduaineid üle. Olge ettevaatlik, kui kasutate mikrolaineahjus paberit, plastikut või
muid kergestisüttivaid materjale.
b) Eemaldage plastikkottidelt enne ahju panemist metallklambrid.
c)
Kui materjalid peaksid ahjus süttima, jätke uks suletuks, lülitage ahi välja ja eemaldage toitejuhe
seinakontaktist või lülitage kaitse elektrikilbist välja.
TÄHTIS
-
TOIDUNÕUD, MIDA EI TOHI KASUTADA MIKROLAINEAHJUS
-
Ärge kasutage metallpanne või metallkäepidemetega nõusid.
-
Ärge kasutage metallkaunistustega nõusid.
-
Ärge kasutage paberiga kaetud metallvõrguga plastikkotte.
-
Ärge kasutage melamiinnõusid, kuna need võivad sisaldada mikrolaineid neelavaid materjale. See
võib põhjustada nõude pragunemist või purunemist ning aeglustada toidu valmimist.
-
Ärge kasutage Centura toidunõusid. Glasuuritud nõud ei ole sobivad mikrolaineahjus
kasutamiseks. Corelle Livingware tasse ei tohi kasutada.
-
Ärge kasutage toiduvalmistamiseks kitsa avaga nõusid, nagu näiteks pudeleid, kuna need võivad
mikrolaineahjus kuumutamisel plahvatada.
-
Ärge kasutage tavapäraseid liha termomeetreid.
- Mikrolaineahjus sobivad kasutamiseks vaid spetsiaalset termomeetrid.
Neid võib kasutada.
138
JUHTPANEEL OSADE DIAGRAMM
1
– aja valimise nupp 10 sek
2
–
aja valimise nupp 1 Min
3
– aja valimise nupp 10 Min
4
– displeiaken
5
–
funktsiooni valimise nupp MICRO/GRILL
6
–
START nupp
7
– PAUS/TÜHISTA nupp
8
– nupp ukse avamiseks
1
– Ukselukustuse turvasüsteem
2
– Ukse aken
3
– Ventilatsiooniavad
4
– Rullikutel rõngas
5
– Klaasalus
6
– Juhtpaneel
7
– Grillrest
139
Kasutusjuhend
1.
Ühe nupuga kuumutamine
Ühekordse nupule vajatusega, saate alustada toiduvalmistamist, see on väga mugav ja kiire lahendus
näiteks klaasi vee jms soojendamiseks.
Näide: Klaasi piima soojendamiseks
a)
Asetage klaas piimaga pöörlevale alusele ja sulgege uks.
b)
Vajutage nupule »START/RESET«, mikrolaineahi töötab nüüd 100% võimsusega 1 minut.
c) Kui aeg on kulunud, kuulete 5 piiksu.
2. Kuumutamine mikrolainetega
Sellel funktsioonil on kaks valikut.
a)
Kiire mikrolainetega kuumutamine (100% võimsust)
Näide: Et kuumutada toitu 100% võimsusel 5 minutit
1.
Seadke ajaks »05:00:00:«
2.
Vajutage »START«
b)
Käsitsi mikrolainete võimsuse määramine
Näide: Et kuumutada toitu 70% võimsusel 10 minutit
1.
Vajutage »MICRO/GRILL« nupule, valige »70%« võimsust;
2. S
eadke ajaks »10:00:«
3.
Vajutage »START«
Saate valida 5 võimsuse taseme vahel ja maksimaalselt toiduvalmistamise pikkuseks 59 minutit ja 50
sekundit.
Vajutuste arv
Mikrolainete võimsus
Kuva
1
100%
P10
2
70%
P7
3
50%
P5
4
30%
P3
5
10%
P1
3. Automa
atne kaalu järgi sulatamine
Valige külmutatud toiduainete kaal, see aitab teil automaatselt valida võimsuse taset ja aega.
Näide: 0.5kg külmunud liha sulatamine.
a) Vajutage "MICRO/Grill", et valida "DEF".
b) Sisestage kaal, vajutades nupule "1min" (1kg) ja nupule "10 sec" (0.1kg).
c) Vajutage " Start ".
Külmutatud toiduaine peab kaaluma alla 2 kg.
4. GRILL
– KOMBINEERITUD TOIDUVALMISTAMISE FUNKTSIOON
Grilli funktsioonil on 4 etappi. Soovitud etappi saab valida, kui vajutate »MICRO/GRILL« 7 kuni 10 korda.
Erinevad võimsuse seadistused on toodud järgnevas tabelis.
Võimsuse tase
Mikrolainete võimsus
Grilli võimsus
Kuva
1
/
85%
G
– 1
2
/
50%
G
– 2
3
55%
45%
C
– 1
4
30%
70%
C
– 2
Peale valiku tegemist, seadke toiduvalmistamise aeg ja vajutage »START«.
M
ärkus: Toiduvalmistamise ajal ( mitte arvestades kombineeritud viisil toiduvalmistamist), kui on kulunu
pool ajast, peatub programm automaatselt ning kuulete kahte piiksu, mis meenutavad, et toit tuleb ümber
pöörata.
Peale toidu ümber pööramist sulgege uks ja vajutage " START " nupule ning jätkatakse
toiduvalmistamist; Kui te ei pööra toitu ümber, jätkab ahi toiduvalmistamist peale 1 minutilist pausi.
5.
»PAUSE/CANCEl« nupp
a)
Programmi muutmiseks, vajutage nupule "PAUSE/CANCEL
", mis peatab ahju töötamise.
b)
Kui enne start nupu vajutamist on valitud mingi programm, siis vajutus sellele nupule tühistab kõik
seadistatud programmid.
140
6. Lapse-turva-lukk.
Lapseluku aktiveerimiseks vajutage kolm korda nupule "PAUSE/CANCEL".
Lukustuse tühistamiseks vajutage uuesti kolm korda nupule "PAUSE/CANCEL".
MIKROLAINEAHJU HOOLDAMINE
1.
Enne mikrolaineahju puhastamist lülitage see välja ja eemaldage toitejuhe seinakontaktist.
2. Hoidke ahju sisemus puhtana.
Toidupritsmete puhastamiseks seintele, pühkige neid niiske lapiga. Ärge
kasutage tugevatoimelisi ja abrasiivseid aineid.
3.
Ahju välispinna puhastamiseks kasutage niisket lappi. Et vältida rikkeid, ärge laske vedelikel tilkuda ahju
sisse läbi ventilatsiooniavade.
4.
Ärge laske juhtpaneelil saada märjaks. Puhastage juhtpaneeli niiske pehme lapiga, ärge kasutage
lahusteid, abrasiivseid aineid ega aerosoole.
5.
Kui aur on akumuleerunud ahjuukse sisepinnale või selle ümber, kuivatage piisad pehme lapiga. See
võib olla põhjustatud ahju töötamisest kõrge niiskusetaseme juures ning ei ole seadme tõrke tunnuseks.
6.
Klaasaluse puhastamiseks võtke see ahjust välja. Peske alus nõudepesuvahendiga või
nõudepesumasinas.
7.
Rullikutega rõngast ja ahju sisemust tuleb regulaarselt puhastada. Lihtsalt pühkige sisepindasid lahja
nõudepesuvahendiga, veega või klaasipuhastusvahendiga niisutatud lapiga ning kuivatage. Rullikutega
rõnga pesemiseks kasutage lahjat nõudepesuvahendit või leiget vett.
Peale puhastamist asetage rullikutega rõngas oma kohale tagasi.
8.
Ahjust ebameeldiva lõhna kõrvaldamiseks asetage ahju sügav anum veega, millesse on lisatud
sidrunimahla ja sidrunikoort.
Laske ahjul töötada 5 minutit ja pühkige ahju pinnad hoolikalt kuivaks.
9.
Kui osutub vajalikuks vahetada ahjulampi, siis konsulteerige edasimüüjaga selle vahetamisest.
Keskkond
Ärge visake oma töötamise lõpetanud seadet tavalise kodumajapidamise prügi hulka, vaid viige see
jäätmekogumispunkti. Sellega aitate kaitsta keskkonda.
Garantii & hooldus
Kui vajate informatsiooni või Teil on tekkinud probleem, siis palun pöörduge oma asukohamaa Gorenje
Klienditeeninduskeskusesse (leiate selle telefoninumbri ülemaailmsest garantiibrošüürist). Kui Teie
asukohamaal puudub Klienditeeninduskeskus, pöörduge oma kohaliku Gorenje edasimüüja poole või võtke
ühendust Gorenje kodumasinate teeninduskeskusega.
Ainult eratarbimiseks!
SOOVIME TEILE MEELDIVAID ELAMUSI SEADME KASUTAMISEL
Täiendavaid juhiseid toiduvalmistamiseks mikrolainetega, grillimiseks ja muid
kasulikke nõuandeid leiate veebilehelt
:
:
htpp://www.gorenje.com






