Hotpoint-Ariston KIC 644 X – page 4
Manual for Hotpoint-Ariston KIC 644 X
61
NL
Bevestigen
Het apparaat moet op een
absoluut horizontaal oppervlak
worden geïnstalleerd. Eventuele door onjuiste installatie
veroorzaakte vervormingen kunnen de eigenschappen en de
prestaties van de kookplaat aantasten.
De lengte van de regelschroef van de bevestigingshaken
moet op basis van de dikte van het keukenblad worden
ingesteld
voordat de haken worden gemonteerd:
• als de dikte 30 mm is: schroef 23 mm;
• als de dikte 40 mm is: schroef 13 mm.
Voor het bevestigen moet u als volgt te werk gaan:
1. Draai met korte, puntloze schroeven de 4
centreringsklemmen in de openingen in het midden van elke
zijde van het blad vast;
2. zet de kookplaat in het midden van de opening van
het keukenmeubel door gelijke druk uit te oefenen op de
hele omtrek totdat de kookplaat perfect aansluit op het
keukenblad.
3. voor een blad met zijprofielen: nadat u de kookplaat
in het keukenmeubel heeft geplaatst moet u de 4
bevestigingshaken aan de onderste rand van de kookplaat
vastschroeven met gepunte, lange schroeven, net zolang tot
het glas goed aan het blad vastzit.
!
De schroeven van de centreringsklemmen moeten te
allen tijde bereikbaar blijven.
!
Volgens de veiligheidsnormen mag er geen contact
meer mogelijk zijn met de elektrische onderdelen nadat
het apparaat is ingebouwd.
!
Alle beschermende onderdelen moeten zodanig worden
bevestigd dat ze niet kunnen worden verwijderd zonder
gereedschap te gebruiken.
Elektrische aansluiting
!
De elektrische aansluitingen van de kookplaat en
de eventuele inbouwoven moeten apart worden
uitgevoerd, zowel om elektrische veiligheidsredenen
als om de oven eventueel eenvoudiger te kunnen
verwijderen.
Eenfasige aansluiting
De kookplaat is voorzien van een voedingskabel bestemd
voor een eenfasige aansluiting. Voer de draadverbinding uit
zoals aangegeven in de volgende tabel en tekeningen:
Spanningstype
en netfrequentie
Elektrische kabel
Draadverbinding
220-240V 1+N ~
50 Hz
: geel/groen;
N
: de 2 blauwe draden samen
L
: bruin en zwart samen
Andere soorten aansluitingen
Als het elektrische net overeenkomt met een van de volgende
karakteristieken:
Spanningstype en netfrequentie
• 400V - 2+N ~ 50 Hz
• 220-240V 3 ~ 50 Hz
• 400V 3 - N ~ 50 Hz
• 400V - 2+2N ~ 50 Hz
Scheid de kabels en voer de draadverbinding uit zoals
aangegeven in de volgende tabel en tekeningen:
Spanningstype
en netfrequentie
Elektrische kabel
Draadverbinding
400V - 2+N ~
50 Hz
220-240V 3 ~
50 Hz
400V 3-N ~
50 Hz
: geel/groen;
N
: de 2 blauwe
draden samen
L1
: zwart
L2
: bruin
400V - 2+2N ~
50 Hz
: geel/groen;
N1
: blauw
N2
: blauw
L1
: zwart
L2
: bruin
Het aansluiten van de voedingskabel aan het elektrische net
Bij een rechtstreekse aansluiting op het net moet u tussen het
apparaat en het net een meerpolige schakelaar aanbrengen
met een minimum afstand van 3 mm tussen de contacten.
!
De installateur is verantwoordelijk voor een correcte
elektrische aansluiting en de inachtneming van de
veiligheidsnormen.
Vóór het aansluiten moet u controleren dat:
• de contactdoos geaard is en voldoet aan de geldende
normen;
• het stopcontact in staat is het maximale vermogen van het
apparaat te verdragen, zoals aangegeven op het typeplaatje
dat zich op het apparaat bevindt;
• de spanning zich bevindt tussen de waarden die staan
aangegeven op het typeplaatje;
• de contactdoos en de stekker overeenkomen. Als dat niet
zo is, dient u ofwel de stekker ofwel de contactdoos te
vervangen; gebruik geen verlengsnoeren of dubbelstekkers.
!
Wanneer het apparaat geïnstalleerd is, moeten de
elektrische kabel en de contactdoos gemakkelijk te
bereiken zijn.
!
De kabel mag niet gebogen of samengedrukt worden.
!
De kabel moet van tijd tot tijd worden gecontroleerd en
mag alleen door erkende monteurs worden vervangen.
!
De fabrikant kan nergens aansprakelijk voor worden
gesteld als deze normen niet worden nageleefd.
!
Verwijder of vervang de voedingskabel voor geen
enkele reden. De eventuele verwijdering of vervanging
doet de garantie en de CE markering vervallen.
INDESIT kan niet aansprakelijk worden gesteld voor
ongelukken of schade die het resultaat zijn van de
vervanging/verwijdering van de originele voedingskabel.
De vervanging met een origineel onderdeel is alleen
toegestaan indien uitgevoerd door een erkende INDESIT
technicus.
62
NL
Starten en gebruik
!
De lijm die gebruikt is voor de afdichtingen laat wat
vetvlekjes achter op het glas. Voordat u het apparaat
gebruikt raden wij u aan de vlekken te verwijderen
met een speciaal niet-schurend schoonmaakmiddel.
Gedurende de eerste paar uur dat u het apparaat
gebruikt kan het zijn dat u een rubbergeur ruikt. Deze
zal echter snel wegtrekken.
!
Als de kookplaat elektrisch wordt aangesloten hoort
u na enkele seconden een kort geluidssignaal afgaan.
Alleen dan kunt u de kookplaat aanzetten.
Geluiden normale werking kookplaat:
• Zoemen: geluid geproduceerd door het trillen van
de metalen onderdelen waarvan de inductor en
de pan zijn gemaakt en wordt gevormd door het
elektromagnetische veld dat noodzakelijk is voor de
verwarming. Dit neemt toe bij het toenemen van het
vermogen van de inductor.
• Zacht fluiten: dit hoort u als een lege pan op de
kookplaat wordt gezet. Het geluid verdwijnt zodra u
voedsel of water in de pan doet.
• Knetteren: dit geluid wordt geproduceerd door het
trillen van het materiaal van de bodem van de pan
als er parasitaire stromingen plaatsvinden gevormd
door het elektromagnetische veld (inductie).
De intensiteit kan variëren aan de hand van het
materiaal waarmee de bodem van de pan gemaakt
is en wordt minder naarmate de afmetingen van de
pan toenemen.
• Hard fluiten: u hoort dit geluid als de twee
inductoren op dezelfde verticale lijn tegelijkertijd op
maximum vermogen werken en/of als op de grootste
de boosterfunctie is ingesteld en de ander op
zelfregeling staat. Het geluid wordt minder als u het
vermogen van de zelfregelende inductor lager zet.
Dit doet zich vooral voor als de bodem van de pan
bestaat uit verschillende lagen van verschillende
materialen.
• Geluid van de ventilator: voor een juist gebruik
van de kookplaat en om de veiligheid van
het elektronische gedeelte te behoeden voor
eventuele oververhitting is het noodzakelijk de
ventilator in te schakelen. De ventilator draait
op maximaal vermogen als de grote inductor op
maximaal vermogen staat of als de boosterfunctie
is ingeschakeld. In alle andere gevallen draait
hij op middelmatig vermogen aan de hand van
de waargenomen temperatuur. Het is bovendien
mogelijk dat de ventilator blijft draaien nadat u
de kookplaat heeft uitgezet, als de waargenomen
temperatuur zeer hoog is.
De genoemde geluiden zijn het resultaat van de
inductietechnologie en zijn niet noodzakelijkerwijs
functioneringsdefecten.
!
Als u lang op de toetsen drukt
-
en
+
kunt u de
stroomsterkte en de minuten van de timer snel laten
toenemen.
Inschakelen kookplaat
Druk ongeveer 1 seconde op de knop
voor het
inschakelen van de kookplaat.
Inschakelen kookzones
Iedere kookzone wordt in werking gesteld door middel
van een selectietoets
en een regelsysteem voor
de stroomsterkte, bestaande uit een dubbele toets
-
en
+
.
• Voor het in werking stellen van een kookzone drukt
u op de betreffende toets en stelt u de gewenste
stroomsterkte in met de toetsen
-
en
+
.
Booster functie*
Om de verwarmingstijd te versnellen kunt u in enkele
kookzones de booster functie activeren door op de
Booster
toets te drukken. Het controlelampje boven de
toets gaat aan. Deze functie verhoogt het vermogen tot
2000 W of 3000 W, aan de hand van de grootte van de
gekozen kookzone.
De boosterfunctie stopt na 4 minuten automatisch.
Zolang de booster van een van de kookzones actief
is, zal het gedeelte daarvoor of daarachter slechts
over een beperkt vermogen beschikken (bv.: als in
de kookzone linksachter de booster actief is, zal het
vermogen in de kookzone linksvoor afnemen). Voor
verdere informatie kunt u de
Technische beschrijving van
de modellen raadplegen.
Uitschakelen kookgedeeltes
Voor het uitschakelen van een kookgedeelte kiest u dit
door middel van de selectietoets
en:
• Druk op de toets
-
: het vermogen van het
kookgedeelte wordt langzaam minder totdat het
uitgaat.
Programmering kookduur
!
Alle kookgedeeltes kunnen tegelijkertijd
geprogrammeerd worden voor een tijdsduur van
tussen de 1 en de 99 minuten.
1. Kies het kookgedeelte door middel van de
betreffende selectietoets.
2. De gewenste stroomsterkte van het kookgedeelte
instellen.
*
Slechts op enkele modellen aanwezig.
63
NL
3. Druk op de programmeertoets
. Het
controlelampje voor het betreffende kookgedeelte
begint te knipperen.
4. Stel de gewenste kookduur in door middel van de
toetsen
-
en
+
.
5. Bevestig door op de toets
te drukken, of na 10
seconden vindt automatische selectie plaats.
De timer begint gelijk met aftellen. Het einde van de
geprogrammeerde kooktijd wordt aangegeven door een
geluidssignaal (van 1 minuut) waarna het kookgedeelte
uitgaat. Herhaal de hierboven beschreven procedure
voor iedere kookplaat die u wilt programmeren.
Visualisatie bij een meervoudige programmering.
Indien een of meer kookplaten zijn geprogrammeerd
vertoont het display de resterende tijd van de
kookplaat die als eerste eindigt, terwijl hij de positie
ervan aanduidt door middel van het betreffende
controlelampje dat knippert. De controlelampjes van
de andere geprogrammeerde kookplaten zijn aan.
Om de resterende tijd van de andere
geprogrammeerde kookplaten te visualiseren moet
u een aantal keren op de toets
drukken: met
de klok mee zullen, de een na de
ander, de tijden van de timer alle
geprogrammeerde kookplaten worden
getoond, te beginnen met de kookplaat
linksvoor.
Het wijzigen van een programmering
1. Druk een aantal keer op de toets
totdat de tijd
van de kookplaat die u wilt wijzigen verschijnt.
2. Druk op de toetsen
-
en
+
voor het instellen van
de nieuwe tijd.
3. Bevestig door op de toets
te drukken.
Om een programmering te annuleren moet u
bovenstaande handelingen uitvoeren. Bij punt
2 drukt u op de toets
-
: de duur vermindert
langzaamaan tot aan de uitschakeling 0. De
programmering wordt gewist en het display verlaat de
programmeringsmodus.
De timer
De kookplaat moet aan zijn.
Met de timer kunt u een duur tot aan 99 minuten instellen.
1. Druk op de toets programmering
totdat het
controlelampje van de timer aangaat
.
2. Stel de gewenste kookduur in door middel van de
toetsen
-
en
+
.
3. Bevestig door op de toets
te drukken.
De timer begint gelijk met aftellen. Als de tijd
verstreken is hoort u voor de duur van 1 minuut een
geluidssignaal.
Blokkering van het bedieningspaneel
Als de kookplaat in werking is kunt u het
bedieningspaneel blokkeren om een
ongewenst aanraken te vermijden (kinderen,
schoonmaakhandelingen, enz.). Door op de toets
te drukken zal het bedieningspaneel worden
geblokkeerd. Het controlelampje boven de toets gaat
aan.
Als u het bedieningspaneel weer wilt gebruiken (bv.
als u wilt stoppen met koken) moet u de blokkering
uitschakelen: druk even op de toets
. Het
controlelampje gaat uit en het bedieningspaneel wordt
weer geactiveerd.
Uitschakelen kookplaat
Druk op de toets
; wordt het apparaat
uitgeschakeld. Vertrouw niet op de pannendetector.
Als het bedieningspaneel is geblokkeerd, blijft dit ook
geblokkeerd nadat u de kookplaat opnieuw inschakelt.
Als u de kookplaat opnieuw wilt inschakelen moet u
eerst het bedieningspaneel deblokkeren.
“Demo” modus
Het is mogelijk een demomodus in te stellen
waarbij het bedieningspaneel normaal functioneert
(de opdrachten betreffende de programmering
inbegrepen), maar waarbij de verwarmingselementen
niet aangaan. Om de “demo” modus te activeren moet
de kookplaat aanstaan en alle stralingselementen uit:
• Druk tegelijkertijd 6 seconden lang op de toetsen
+
en
-
. Zodra de 6 seconden zijn verstreken zullen
de controlelampjes ON/OFF en BLOKKERING
BEDIENINGSPANEEL een seconde lang knipperen.
Laat de toetsen
+
en
-
los en druk op de toets
;
• het display toont om de beurt de tekst DE en MO en
het kookvlak gaat uit;
• de volgende keer dat u de kookplaat inschakelt zal
hij zich in de “demo” modus bevinden.
Om deze modus te verlaten volgt u de boven
beschreven procedure. Het display toont om de beurt
de tekst DE en OF en het kookvlak gaat uit. Als u het
64
NL
kookvlak weer inschakelt zal het gewoon functioneren.
Praktische tips voor het gebruik van het
apparaat
!
Gebruik pannen die gemaakt zijn van materiaal dat
geschikt is voor inductie (ferromagnetisch materiaal).
Wij raden het gebruik aan van pannen van: gietijzer,
geëmailleerd staal of speciaal inductie roestvrij staal. U
kunt zelf testen of een pan geschikt is door hem uit te
proberen met een magneet.
*
GESCHIKTE MATERIALEN
ONGESCHIKTE MATERIALEN
Gietijzer
Ge‘mailleerd staal
Speciaal roestvrij staal
Koper,
Aluminium, Glas, Terracotta,
Aardewerk, Niet magnetisch roestvrij staal
Om optimale resultaten te bereiken met de kookplaat:
• Gebruik alleen pannen met een dikke, platte bodem
zodat ze perfect aansluiten op het verwarmingsvlak.
• Gebruik pannen die groot genoeg zijn om
de kookplaat geheel te bedekken zodat alle
beschikbare hitte wordt benut.
• Houd de bodem van de pannen altijd goed schoon
en droog zodat ze goed aansluiten op het kookvlak.
Dit verlengt de levensduur van zowel de pannen als
het kookvlak zelf.
• Vermijd dezelfde pannen te gebruiken die
u ook op een gasfornuis heeft gebruikt: de
warmteconcentratie van gasbranders kan de bodem
van pannen vervormen, waardoor ze niet goed meer
aansluiten.
Veiligheidssystemen
Pannensensor
Ieder kookgedeelte is voorzien van een systeem
dat waarneemt of er een pan op staat. De plaat
straalt alleen warmte uit als er een pan van de juiste
afmetingen op staat. Het knipperende controlelampje
kan betekenen:
• dat de pan niet geschikt is
• dat de pan een te kleine diameter heeft
• dat de pan niet goed aansluit
Oververhitting
In het geval van oververhitting van de elektronische
onderdelen gaat de kookplaat automatisch uit
en verschijnt op het display
F
gevolgd door een
knipperend nummer. Deze boodschap verdwijnt
en u kunt de kookplaat weer gebruiken zodra de
temperatuur tot op een acceptabel niveau is gezakt.
Veiligheidsschakelaar
Het apparaat beschikt over een veiligheidsschakelaar
die de kookgedeeltes automatisch uitschakelt als
de tijdslimiet voor een bepaald vermogensniveau is
bereikt. Tijdens deze veiligheidsonderbreking vertoont
het display het cijfer “0”.
B.v.: de kookplaat rechtsachter staat op 5, terwijl de
plaat linksvoor op 2 staat. De plaat rechtsachter zal
automatisch na 5 uur uitgaan, de plaat linksvoor na 8 uur.
Vermogensniveau
1
2
3
4
5
6
7
8
9
Begrenzing van de werkingsduur in uren
9
8
7
6
5
4
3
2
1
Geluidssignaal
Enkele storingen, zoals:
• een voorwerp (pan, bestek, enz.) dat meer dan 10
seconden op het bedieningspaneel ligt,
• gemors op het bedieningspaneel,
• een lange druk op een toets, kunnen een
geluidssignaal veroorzaken. Verwijder de oorzaak
van de storing en het geluidssignaal houdt op. Als
de oorzaak van de storing niet wordt verwijderd
blijft het geluidssignaal gaan en wordt het kookvlak
uitgeschakeld.
65
NL
Praktische kooktips
ª
Koken met een snel
kookpanSnelkookpan
Frituren
Grillen
Koken
VKoken op zeer
hoog vuur
Koken op
hoog vuur
Koken op middelmatig vuur
Koken op
laag vuur
Koken op
zeer laag
vuur
• • ¶
Crêpes
Koken op hoog vuur en bruin bakken
(Braadstukken, biefstukken, kalfslappen,
visfilets, gebakken eieren)
¶ §
Snel indikken (vloeibare sauzen)
Koken van water (pasta, rijst, groente)
Melk
§ S
Langzaam indikken (gebonden sauzen)
S ¢
Au bain-marie koken
Koken met snelkookpan, na het sissen
¢ £ ™
Koken op laag vuur
(stoofschotels)
Opwarmen van gerechten
™ ¡
Chocoladesaus
Warm houden van gerechten
66
NL
Voorzorgsmaatregelen en
advies
!
Dit apparaat is ontwikkeld en gefabriceerd volgens de
geldende internationale veiligheidsvoorschriften. Deze
aanwijzingen zijn geschreven voor uw veiligheid en u dient
ze derhalve goed door te nemen.
Dit apparaat voldoet aan de volgende EU
Richtlijnen:
- 2006/95/EEG van 12/12/06 (Laagspanning) en
daaropvolgende wijzigingen
- 2004/108/EEG van 15/12/04 (Elektromagnetische
Compatibiliteit) en daaropvolgende wijzigingen
- 93/68/EEG van 22/07/93 en daaropvolgende wijzigingen.
- 1275/2008 stand-by/off mode.
Algemene veiligheidsmaatregelen
!
Controleer dat de luchttoevoeropening van het rooster
van de ventilator niet verstopt is. De inbouwkookplaat
moet voorzien zijn van een goede ventilatie voor het
afkoelen van de elektronische componenten.
!
Het is niet aan te raden de inductiekookplaat boven een
koelkast te plaatsen (hitte) of boven een wasautomaat
(trillingen). Er zou geen voldoende ruimte zijn voor de
ventilatie van de elektronische elementen.
• Dit apparaat is vervaardigd voor niet-professioneel
gebruik binnenshuis.
• Het apparaat dient niet buitenshuis te worden geplaatst,
ook niet in overdekte toestand. Het is erg gevaarlijk als
het in aanraking komt met regen of onweer.
• Raak het apparaat niet aan als u blootsvoets bent of met
natte of vochtige handen of voeten.
• Het apparaat dient om gerechten te koken. Het mag
uitsluitend door volwassenen worden gebruikt en alleen
volgens de instructies die beschreven staan in deze
handleiding. Gebruik het kookvlak niet om voorwerpen
op te plaatsen en ook niet als snijplank.
• Het glaskeramische kookvlak is bestand tegen
mechanische stoten. Het kan echter worden
beschadigd (of barsten) als het wordt geraakt door
een puntig object, bijvoorbeeld door gereedschap. Als
dit gebeurt moet u onmiddellijk het apparaat afsluiten
van de elektrische stroom en contact opnemen met de
Technische Dienst.
• Voorkom dat elektrische snoeren van andere kleine
keukenapparaten op warme delen van de kookplaat
terechtkomen.
• Vergeet niet dat de temperatuur in het kookgedeelte
aanzienlijk hoog blijft tot minstens 30 minuten nadat u
het heeft uitgeschakeld. De resterende warmte wordt
aangeduid door een aanwijzer (
zie Starten en gebruik
).
• Houd voorwerpen die kunnen smelten op afstand
van de kookplaat, zoals bv. plastic, aluminium of
suikerhoudende etenswaren. Let vooral op plastic
of aluminium verpakkingen en folie: als u ze op het
nog warme of lauwe kookvlak neerlegt, kunt u zware
schade aanrichten.
• Richt de handvaten van de pannen altijd naar de
binnenzijde van de kookplaat zodat u er niet per
ongeluk tegenaan stoot.
• Trek nooit de stekker aan het snoer uit het
stopcontact, maar pak altijd de stekker direct beet.
• Maak het apparaat niet schoon of voer geen
onderhoud uit als de stekker nog in het stopcontact
zit.
• Dit apparaat mag niet worden gebruikt door
personen (kinderen inbegrepen) met een beperkt
lichamelijk, sensorieel of geestelijk vermogen of
personen die niet de nodige ervaring of kennis
hebben met het apparaat, tenzij onder toezicht
van een persoon die verantwoordelijk is voor
hun veiligheid of nadat hun is uitgelegd hoe het
apparaat werkt.
• Mededeling voor dragers van een pacemaker of een
ander actief ingeplant medisch apparaat:
De kookplaat voldoet aan alle geldende normen
betreffende elektromagnetische storing.
Dit product is aldus in volkomen overeenstemming
met de voorschriften van de wet (richtlijn 89/336/
EEG). Het ontwerp is zodanig gepland dat het
geen storingen veroorzaakt bij andere elektrische
apparaten die worden gebruikt, mits ook dezen
voldoen aan bovengenoemde normen.
De inductieplaat creëert elektromagnetische velden
op korte afstand.
Teneinde ieder risico van storing tussen de
kookplaat en de pacemaker te vermijden moet deze
laatste ook voldoen aan de geldende normen.
Wat dat betreft kunnen wij slechts de conformiteit
van ons eigen product garanderen. Voor informatie
omtrent conformiteit of eventuele problemen
verzoeken wij u zich tot uw behandelende arts te
wenden of tot de fabrikant van de pacemaker.
• Voorkom dat kinderen met het apparaat spelen.
• Plaats geen metalen voorwerpen (messen, lepels,
deksels enz.) op de kookplaat aangezien zij heet
kunnen worden..
•
Het apparaat is niet geschikt om te worden
ingeschakeld m.b.v. een externe timer ofwel door
een gescheiden afstandsbedieningssysteem.
Afvalverwijdering
• Het verwijderen van het verpakkingsmateriaal: houdt
u aan de plaatselijke normen zodat het materiaal
hergebruikt kan worden.
• De Europese richtlijn 2002/96/EG, betreffende
afgedankte elektrische en elektronische apparatuur
(AEEA), voorziet dat huishoudelijke apparatuur niet
met het normale afval mag worden meegegeven. De
verwijderde apparaten moeten apart worden opgehaald
om het terugwinnen en recyclen van de materialen
waaruit ze bestaan te optimaliseren en te voorkomen
dat er eventuele schade voortvloeit voor de gezondheid
en het milieu. Het symbool van de afvalemmer met een
kruis staat op alle producten om de consument eraan te
herinneren dat dit gescheiden afval is.
Om meer informatie te verkrijgen betreffende een juiste
verwijdering van huishoudapparaten kan de consument
zich richten tot de gemeentelijke reinigingsdienst of de
67
NL
Onderhoud en verzorging
De elektrische stroom afsluiten
Sluit altijd eerst de stroom af voordat u tot enige handeling
overgaat.
Reinigen van het apparaat
!
Vermijd het gebruik van schuurmiddelen of bijtende middelen,
zoals sprays voor barbecues en ovens, vlekkenmiddelen,
roestverwijderende producten, schoonmaakmiddelen in
poedervorm of schuursponzen: deze kunnen het oppervlak
onherstelbaar krassen.
!
Gebruik nooit stoom- of hogedrukreinigers voor het reinigen
van het apparaat.
• Voor normaal onderhoud moet u de kookplaat met een
vochtige spons reinigen en afdrogen met keukenpapier.
• Als de plaat erg vuil is moet hij worden schoongemaakt met
een speciaal middel voor keramiekplaten. Daarna moet u hem
afspoelen en afdrogen.
• Voor het verwijderen van hardnekkig vuil kunt u een hiervoor
bestemd schrapertje gebruiken. Doe dit zo snel mogelijk
voordat het apparaat afkoelt, zodat de etensresten niet
aankoeken. Uitstekende resultaten bereikt u ook met een
speciaal voor keramiekplaten vervaardigd roestvrij staal
sponsje dat u in een sopje doopt.
• Als er op de kookplaat onverhoopt voorwerpen of plastic
materiaal of suiker zouden smelten, moet u ze onmiddellijk
met het schrapertje verwijderen zolang het oppervlak nog
warm is.
• Als de plaat is schoongemaakt, kan hij worden behandeld
met een speciaal product voor onderhoud en bescherming:
het onzichtbare laagje dat dit product achterlaat beschermt
de plaat in het geval er iets overkookt. Dit soort handelingen
moeten worden uitgevoerd als de plaat lauw of koud is.
• Vergeet niet de kookplaat altijd met schoon water af te
spoelen en goed af te drogen: restjes schoonmaakmiddel
kunnen de volgende keer dat u kookt aankoeken.
Raamwerk van roestvrij staal
(alleen bij modellen met lijst)
Roestvrij staal kan vlekken gaan vertonen als er voor langere tijd
kalkhoudend water op blijft liggen of als gevolg van gebruik van
schoonmaakmiddelen die fosfor bevatten.
Spoel en droog de kookplaat altijd goed af nadat u hem heeft
schoongemaakt. Droog gemorst water altijd meteen goed af.
!
Enkele kookplaten hebben een lijst van aluminium die lijkt
op roestvrij staal. Gebruik voor het reinigen en ontvetten geen
producten die niet geschikt zijn voor aluminium.
De kookplaat verwijderen
Als u de kookplaat uit elkaar moet halen:
1. verwijder de schroeven die de centreringsklemmen aan de
zijkant vasthouden;
2. maak de schroeven van de bevestigingshaken op de hoeken
los;
3. haal de kookplaat uit het meubel.
!
U mag nooit aan het interne systeem sleutelen om een reparatie
proberen uit te voeren. Als er een storing is moet u contact
opnemen met de Service Dienst.
Technische beschrijving van de modellen
Het inductiesysteem is het snelste kooksysteem dat er bestaat. In tegenstelling tot de traditionele kookplaten wordt
niet het kookgedeelte verwarmd: de warmte wordt direct binnenin de pan gecreëerd, die daarom noodzakelijkerwijs
een bodem van ferromagnetisch materiaal moet bezitten.
Kookplaten
Kookgedeeltes
Linksachter
Rechtsachter
Linksvoor
Rechtsvoor
Totaal vermogen
KIA 641 C ; KIA 641 B
Vermogen (in W)
I 1400
I 2200 - B 3000*
I 2200
I 1400 - 600 als Rechtsachter*
7200
KIC 641 X
Vermogen (in W)
I 1400
I 2200 - B 3000*
I 2200
I 1400 - 600 als Rechtsachter*
7200
KIC 644 DD Z
Vermogen (in W)
I 1400 - B 2000* - 600 als Linksvoor*
I 2200 - B 3000* - 1600 als Rechtsvoor*
I 2200 - B 3000* - 1600 als Linksachter*
I 1400 - B 2000* - 600 als Rechtsachter*
7200
Kookplaten
Kookgedeeltes
Linksachter
Rechtsachter
Linksvoor
Rechtsvoor
Totaal vermogen
KIC 642 C
Vermogen (in W)
I 1400 - 600 als Linksvoor*
I 2200 - B 3000*
I 2200 - B 3000*
I 1400 - 600 als Rechtsachter*
7200
KIC 644 X
KIC 644 C
KIC 744 C
Vermogen (in W)
I 1400 - B 2000* - 600 als Linksvoor*
I 2200 - B 3000* - 1600 als Rechtsvoor*
I 2200 - B 3000* - 1600 als Linksachter*
I 1400 - B 2000* - 600 als Rechtsachter*
7200
Legenda:
I = kookgedeelte met
eenvoudige inductie
B = booster: de kookzone kan
over een extra vermogen van
3000 W beschikken
* = het maximale vermogen
wordt beperkt terwijl de booster
in het kookgedeelte erachter
actief is (zie
Starten en gebruik
).
S
S
68
PL
Instalacja
!
Nale
ż
y zachowa
ć
niniejsz
ą
instrukcj
ę
, aby móc z niej
skorzysta
ć
w ka
ż
dej chwili. W razie sprzeda
ż
y, odst
ą
pienia
lub przeniesienia urz
ą
dzenia, nale
ż
y si
ę
upewni
ć
, czy
instrukcja zosta
ł
a przekazana wraz z nim, aby nowy
w
ł
a
ś
ciciel p
ł
yty grzejnej móg
ł
si
ę
zapozna
ć
z jej dzia
ł
aniem i z
w
ł
a
ś
ciwymi ostrze
ż
eniami.
!
Nale
ż
y uwa
ż
nie przeczyta
ć
instrukcj
ę
: zawiera ona
wa
ż
ne informacje dotycz
ą
ce instalacji, u
ż
ytkowania i
bezpiecze
ń
stwa.
Ustawienie
!
Elementy opakowania nie sa zabawkami dla dzieci i nalezy
je usunac zgodnie z normami dotyczacymi selektywnego
gromadzenia odpadów (
patrz Zalecenia i srodki ostroznosci
).
!
Instalacja powinna zosta
ć
wykonana zgodnie z niniejszymi
instrukcjami przez wykwali
fi
kowany personel. Niew
ł
a
ś
ciwa
instalacja mo
ż
e spowodowa
ć
szkody w stosunku do osób,
zwierz
ą
t lub mienia.
Zabudowa
Aby zapewni
ć
prawid
ł
owe dzia
ł
anie urz
ą
dzenia, mebel musi
posiada
ć
odpowiednie w
ł
a
ś
ciwo
ś
ci:
• blat musi by
ć
wykonany z materia
ł
u odpornego na ciep
ł
o,
na temperatur
ę
oko
ł
o 100°C;
• je
ś
li p
ł
yta grzejna ma by
ć
zainstalowana na piecu, musi on
posiada
ć
system ch
ł
odzenia z wentylacj
ą
wymuszon
ą
;
• nale
ż
y unika
ć
instalowania p
ł
yty grzejnej na zmywarce: w
przypadku takiej konieczno
ś
ci, umie
ś
ci
ć
pomi
ę
dzy dwoma
urz
ą
dzeniami szczelny element oddzielaj
ą
cy;
• w zaleznosci od plyty grzejnej, jaka ma byc zainstalowana
(
patrz rysunki
), wewnetrzna czesc mebla powinna miec
nastepujace wymiary:
560 +/- 1
490 +/- 1
53
590
520
690
520
560 +/- 1
490 +/- 1
53
560 +/- 1
490 +/- 1
53
574
504
Obieg powietrza
Aby umo
ż
liwi
ć
w
ł
a
ś
ciwy obieg powietrza i aby unikn
ąć
przegrzania powierzchni wokó
ł
urz
ą
dzenia, p
ł
yta grzejna powinna
by
ć
umieszczona:
• w
odleg
ł
o
ś
ci co najmniej 40 mm od tylnej
ś
ciany lub od
ka
ż
dej innej pionowej powierzchni;
• w taki sposób, aby zachowa
ć
odleg
ł
o
ść
minimum 20 mm
pomi
ę
dzy przestrzeni
ą
do zabudowy a znajduj
ą
cym si
ę
pod ni
ą
meblem.
• Meble
znajduj
ą
ce si
ę
obok, a których wysoko
ść
przekracza
wysoko
ść
p
ł
yty roboczej, powinny zosta
ć
odsuni
ę
te przynajmniej na
600 mm od kraw
ę
dzi p
ł
yty roboczej.
Mocowanie
Urz
ą
dzenie powinno by
ć
zainstalowane na idealnie
p
ł
askim blacie. Ewentualne odkszta
ł
cenia,
spowodowane nieprawid
ł
owym zamocowaniem, mog
ą
by
ć
przyczyn
ą
zmiany w
ł
a
ś
ciwo
ś
ci urz
ą
dzenia i, w
5 mm
min. 20 mm
min. 20 mm
min. 40 mm
SZUFLADY
5 mm
min. 40 mm
PIEKARNK
WENTYLATOROWY
69
PL
konsekwencji, wp
ł
ywaj
ą
c niekorzystnie na jego prac
ę
.
D
ł
ugo
ść
ś
ruby regulacyjnej uchwytów mocuj
ą
cych
nale
ż
y ustawi
ć
przed ich zamontowaniem, na
podstawie grubo
ś
ci blatu:
• grubo
ść
30 mm:
ś
ruba 23 mm;
• grubo
ść
40 mm:
ś
ruba 13 mm.
W celu zamocowania urz
ą
dzenia nale
ż
y wykona
ć
nast
ę
puj
ą
ce czynno
ś
ci:
1. Przy pomocy krótkich
ś
rub bez
ł
ba przykr
ę
ci
ć
4 spr
ęż
yny
centruj
ą
ce do otworów umieszczonych w
ś
rodkowej cz
ęś
ci
ka
ż
dego boku p
ł
yty;
2. umie
ś
ci
ć
p
ł
yt
ę
grzejn
ą
w meblu, wy
ś
rodkowa
ć
j
ą
i
wywrze
ć
odpowiedni nacisk na ca
ł
y jej obwód, tak aby p
ł
yta
dobrze przylega
ł
a do blatu.
3. w przypadku p
ł
yt z pro
fi
lami bocznymi: po zainstalowaniu
p
ł
yty grzejnej w meblu umie
ś
ci
ć
4 uchwyty mocuj
ą
ce
(ka
ż
dy ze sworzniem) na dolnym obwodzie p
ł
yty grzejnej
i przykr
ę
ci
ć
je d
ł
ugimi
ś
rubami z
ł
bem w taki sposób, aby
szk
ł
o przylega
ł
o do blatu.
!
Ś
ruby spr
ęż
yn centruj
ą
cych musz
ą
pozosta
ć
dost
ę
pne.
!
Zgodnie z normami bezpiecze
ń
stwa, po zabudowaniu
urz
ą
dzenia nie powinien by
ć
mo
ż
liwy kontakt z jego
elementami elektrycznymi.
!
Wszystkie cz
ęś
ci, które stanowi
ą
zabezpieczenie,
powinny by
ć
zamocowane w taki sposób, aby nie
mo
ż
na by
ł
o ich zdj
ąć
bez u
ż
ycia narz
ę
dzia.
Pod
łą
czenie do sieci elektrycznej
!
Pod
łą
czenie do sieci elektrycznej p
ł
yty grzejnej
oraz ewentualnego pieca do zabudowy powinno
by
ć
wykonane oddzielnie, zarówno ze wzgl
ę
dów
bezpiecze
ń
stwa elektrycznego, jak i dla u
ł
atwienia
czynno
ś
ci zwi
ą
zanych z wyjmowaniem pieca.
Pod
łą
czenie jednofazowe
P
ł
yta jest wyposa
ż
ona w kabel zasilaj
ą
cy przygotowany do
pod
łą
czenia jednofazowego. Nale
ż
y po
łą
czy
ć
przewody
zgodnie z tabel
ą
i z rysunkami umieszczonymi poni
ż
ej:
Typowe napięcie i
częstotliwość sieci
Kabel elektryczny
Połączenie przewodów
220-240V 1+N ~
50 Hz
: żółty/zielony;
N
:
2 przewody niebieskie razem
L
:
brązowy razem z czarnym
Inne typy pod
łą
cze
ń
Je
ś
li instalacja elektryczna posiada jedn
ą
z nast
ę
puj
ą
cych
cech:
Typowe napi
ę
cie i cz
ę
stotliwo
ść
sieci
• 400V - 2+N ~ 50 Hz
• 220-240V 3 ~ 50 Hz
• 400V 3 - N ~ 50 Hz
• 400V - 2+2N ~ 50 Hz
Oddzieli
ć
kable i po
łą
czy
ć
przewody zgodnie z tabel
ą
i
z rysunkami umieszczonymi poni
ż
ej:
Typowe napięcie i
częstotliwość sieci
Kabel elektryczny
Połączenie przewodów
400V - 2+N ~
50 Hz
220-240V 3 ~
50 Hz
400V 3-N ~
50 Hz
: żółty/zielony;
N
:
2 przewody
niebieskie razem
L1
:
czarny
L2
:
brązowy
400V - 2+2N ~
50 Hz
: żółty/zielony;
N1
: niebieski
N2
: niebieski
L1
:
czarny
L2
:
brązowy
Pod
łą
czenie kabla zasilaj
ą
cego do sieci
W przypadku bezpo
ś
redniego pod
łą
czenia do sieci
pomi
ę
dzy urz
ą
dzeniem a sieci
ą
, nale
ż
y zainstalowa
ć
wy
łą
cznik wielobiegunowy z minimalnym otwarciem
mi
ę
dzy stykami wynosz
ą
cym 3 mm.
!
Instalator odpowiada za prawid
ł
owe wykonanie
pod
łą
czenia elektrycznego i za zachowanie norm
bezpiecze
ń
stwa.
Przed pod
łą
czeniem urz
ą
dzenia, nale
ż
y si
ę
upewni
ć
czy:
• gniazdko posiada uziemienie i jest zgodne z
obowiazujacymi przepisami;
• gniazdko jest w stanie wytrzymac maksymalne
obciazenie mocy urzadzenia wskazane na tabliczce
znamionowej plyty;
• napi
ę
cie zasilania odpowiada warto
ś
ciom podanym na
tabliczce znamionowej;
• gniazdko jest kompatybilne z wtyczk
ą
urz
ą
dzenia.
Je
ś
li gniazdko nie jest kompatybilne, nale
ż
y wymieni
ć
gniazdko lub wtyczk
ę
; nie stosowa
ć
przed
ł
u
ż
aczy ani
rozga
łę
ziaczy.
!
Po zainstalowaniu urz
ą
dzenia kabel elektryczny i
gniazdko pr
ą
du powinny by
ć
ł
atwo dost
ę
pne.
!
Kabel nie powinien by
ć
pogi
ę
ty ani przygnieciony.
!
Kabel elektryczny musi byc okresowo sprawdzany i
wymieniany wylacznie przez autoryzowany personel
techniczny.
! W przypadku nieprzestrzegania tych zasad,
producent nie ponosi
ż
adnej odpowiedzialno
ś
ci.
!
Nie usuwa
ć
ani zamienia
ć
przewodu zasilaj
ą
cego z
jakiego kolwiek powodu. Usuni
ę
cie lub wymiana b
ę
dzie
powodem utracenia gwarancji i znaku CE. INDESIT
zwolniony jest z jakiejkolwiek odpowiedzialno
ś
ci
za wypadki lub szkody wynikaj
ą
ce z usuni
ę
cia lub
wymiany oryginalnego przewodu zasilaj
ą
cego.
Dozwolona jest tylko wymiana przewodu na oryginalny,
a wymiany ma dokona
ć
upowa
ż
niony personel z
INDESIT.
70
PL
Uruchomienie i
u
ż
ytkowanie
!
Klej stosowany do uszczelek pozostawia na szkle t
ł
uste
plamy. Przed przyst
ą
pieniem do eksploatacji urz
ą
dzenia
zaleca si
ę
usun
ąć
te plamy przy pomocy odpowiedniego
produktu nieposiadaj
ą
cego w
ł
a
ś
ciwo
ś
ci
ś
ciernych.
Podczas pierwszych godzin dzia
ł
ania urz
ą
dzenia mo
ż
e by
ć
wyczuwalny zapach gumy, który jednak szybko zanika.
!
Kiedy p
ł
yta grzejna zostanie pod
łą
czona do zasilania
elektrycznego, po kilku sekundach w
łą
cza si
ę
krótki sygna
ł
d
ź
wi
ę
kowy. Dopiero po tym sygnale mo
ż
na w
łą
czy
ć
p
ł
yt
ę
grzejn
ą
.
Ha
ł
a
ś
liwo
ść
podczas normalnej pracy p
ł
yty grzejnej:
•
Szum:
Spowodowany jest wibracj
ą
metalowych elementów
z jakich zbudowany jest induktor i garnek, wytwarza si
ę
wi
ę
c pole magnetyczne niezb
ę
dne do rozgrzania granka;
wzrasta stopniowo i proprcjonalnie do wzrostu poziomu
mocy induktora.
•
Lekkie gwizdanie:
Zdarza si
ę
je
ś
li na pole grzejnym stoi
pusty garnek; gwizdanie zniknie je
ś
li do garnka zostanie
dodana potrawa lub woda.
•
Trzeszczenie:
Jest to ha
ł
as wytworzony wibracjami
surowcem dna garnka przez które przechodz
ą
pr
ą
dy
paso
ż
ytnicze w wyniku pola magnetycznego (indukcja):
mo
ż
e by
ś
mniej wi
ę
cej nat
ęż
ony w zale
ż
no
ś
ci od tego z
jakiego surowca dno jest wykonane i zmniejsza si
ę
je
ś
li
wymiary garnka s
ą
wi
ę
ksze.
•
Intensywne gwizdanie:
Ma miejsce, kiedy pracuj
ą
jednocze
ś
nie dwa induktory na tym samym pionie przy
maksymalnej mocy i/lub gdy na tym wi
ę
kszym w
łą
czona
zosta
ł
a funkcja booster a drugi jest autoregulowany. Ha
ł
as
zmniejsza si
ę
jak tylko obni
ż
y si
ę
poziom mocy induktora
autoreguluj
ą
cego si
ę
; zwykle zdarza si
ę
kiedy dno garnka
wykonane jest z ró
ż
nych surowców.
•
Ha
ł
a
ś
liwo
ść
wentylatora:
Maj
ą
c na celu prawid
ł
owe
dzia
ł
anie p
ł
yty i aby zabezpieczy
ć
cz
ęś
ci elektroniczne
przed ewentualnym rozgrzaniem nale
ż
y w
łą
czy
ć
wentylator. Wentylator pracuje przy maksymalnej
mocy je
ś
li induktor ustawiony jest na maksymalnym
poziomie mocy lub kiedy w
łą
czona jest funkcja booster;
we wszystkich innych przypadkach pracuje przy mocy
po
ś
redniej w zale
ż
no
ś
ci od odczytanej temperatury.
Mo
ż
liwe jest wi
ę
c,
ż
e wentylator b
ę
dzie nadal pracowa
ł
nawet po wy
łą
czeniu p
ł
yty gdy odczytywa
ł
b
ę
dzie wysok
ą
temperatur
ę
.
Przedstawione typy ha
ł
asu spowodowane s
ą
technologi
ą
indukcyjno
ś
ci i nie zawsze s
ą
oznak
ą
wadliwej dzia
ł
alno
ś
ci.
!
Dluzsze nacisniecie przycisków
-
i
+
umozliwia szybki
wybór poziomów mocy i minut regulatora czasowego.
W
łą
czanie p
ł
yty grzejnej
P
ł
yt
ę
grzejn
ą
w
łą
cza si
ę
trzymaj
ą
c wci
ś
ni
ę
ty przycisk
przez oko
ł
o sekund
ę
.
W
łą
czanie pól grzejnych
Ka
ż
de pole grzejne jest aktywowane za pomoc
ą
przycisku
wyboru
oraz regulatora mocy sk
ł
adaj
ą
cego si
ę
z
podwójnego przycisku
-
i
+
.
• Aby
w
łą
czy
ć
pole grzejne, nale
ż
y nacisn
ąć
jego przycisk
sterowania i ustawi
ć
żą
dan
ą
moc za pomoc
ą
przycisków
-
i
+
.
Funkcja booster*
Aby przy
ś
pieszy
ć
czas podgrzewania, w niektórych strefach
gotowania nale
ż
y w
łą
czy
ć
funkcj
ę
booster przyci
ś
ni
ę
ciem
przycisku
Booster
. Za
ś
wieci si
ę
wska
ź
nik nad przyciskiem. Ta
funkcja dope
ł
nia moc z 2000W do 3000W w zale
ż
no
ś
ci od
wielko
ś
ci strefy gotowania.
Booster przerywa si
ę
automatycznie po 4 minutach. Dopóki
booster jednej ze stref gotowania jest aktywny, wówczas
w
ł
a
ś
ciwa strefa gotowania przednia lub tylnia b
ę
dzie mia
ł
a
moc ograniczon
ą
(np. Je
ś
li booster p
ł
yty tylniej lewej jest
aktywny, obni
ż
a si
ę
moc p
ł
yty przedniej lewej). Dodatkowe
informacje znajduj
ą
si
ę
w Opisie technicznym modeli.
Wy
łą
czanie pól grzejnych
Aby wy
łą
czy
ć
pole grzejne, nale
ż
y je wybra
ć
za pomoc
ą
jego
przycisku wyboru
i:
• Nacisn
ąć
przycisk
-
: moc pola grzejnego stopniowo
spada, a
ż
do jego wy
łą
czenia.
Programowanie czasu trwania gotowania
!
Mo
ż
na zaprogramowa
ć
równocze
ś
nie wszystkie pola
grzejne na czas od 1 do 99 minut.
1. Wybra
ć
pole grzejne za pomoc
ą
w
ł
a
ś
ciwego przycisku
wyboru.
2. Wyregulowac poziom mocy pola grzejnego.
3. Nacisn
ąć
przycisk programowania
. Wyregulowac
poziom mocy pola grzejnego.
4. Ustawi
ć
żą
dany czas gotowania za pomoc
ą
przycisków
-
i
+
.
5. Potwierdzi
ć
naciskaj
ą
c przycisk
, lub w przeciwnym
*
Znajduje si
ę
tylko w niektórych modelach.
71
PL
razie wybór zostanie dokonany automatycznie po up
ł
ywie 10
sekund.
Odliczanie wsteczne regulatora czasowego rozpoczyna si
ę
natychmiast. Po zako
ń
czeniu zaprogramowanego czasu
gotowania w
łą
cza si
ę
sygna
ł
d
ź
wi
ę
kowy (na 1 minut
ę
), a pole
grzejne wy
łą
cza si
ę
.
Wy
ż
ej opisan
ą
procedur
ę
nale
ż
y powtórzy
ć
dla wszystkich pól
grzejnych, które maj
ą
by
ć
zaprogramowane.
Wy
ś
wietlanie w przypadku zaprogramowania
wi
ę
kszej liczby pól
W przypadku zaprogramowania jednego pola lub ich wi
ę
kszej
liczby, na wy
ś
wietlaczu pokazany jest pozosta
ł
y czas dla
pola, którego zaprogramowany czas dzia
ł
ania ko
ń
czy si
ę
najwcze
ś
niej. Pozycja tego pola jest wskazana poprzez pulso-
wanie jego kontrolki. Kontrolki pozosta
ł
ych zaprogramowany-
ch b
ę
d
ą
ś
wieci
ł
y si
ę
.
Aby wy
ś
wietli
ć
pozosta
ł
y czas innych zaprogramowanych
pól, nale
ż
y kilkakrotnie nacisn
ąć
przycisk
: zostan
ą
wy
ś
wietlone kolejno w kierunku zgodnym z ruchem
wskazówek zegara czasy minutnika i wszystkich
zaprogramowanych pól, poczynaj
ą
c od
przedniego lewego.
Zmiana zaprogramowanych ustawie
ń
1. Kilkakrotnie nacisn
ąć
przycisk
a
ż
wy
ś
wietli si
ę
czas
pola, który ma by
ć
zmieniony.
2. Korzystaj
ą
c z przycisków
-
i
+
ustawi
ć
nowy czas.
3. Potwierdzi
ć
naciskaj
ą
c przycisk
.
Aby usunac zaprogramowane ustawienia, nalezy wykonac
wyzej opisane czynnosci. W punkcie 2 nacisnac przycisk
-
: Czas stopniowo sie zmniejsza az do wylaczenia
0. Zaprogramowane ustawienia zostaja wyzerowane i
wyswietlacz wychodzi z trybu programowania.
Minutnik
P
ł
yta grzejna musi by
ć
w
łą
czona.
Minutnik umo
ż
liwia ustawienie czasu do 99 minut.
1. Naciska
ć
przycisk programowania
a
ż
do za
ś
wiecenia
si
ę
kontrolki minutnika
.
2. Ustawi
ć
żą
dany czas gotowania za pomoc
ą
przycisków
-
i
+
.
3. Potwierdzi
ć
naciskaj
ą
c przycisk
.
Odliczanie wsteczne regulatora czasowego rozpoczyna
si
ę
natychmiast. Po up
ł
ywie ustawionego czasu w
łą
cza si
ę
sygna
ł
d
ź
wi
ę
kowy (na 1 minut
ę
).
Blokada sterowania
Kiedy p
ł
yta grzejna jest w trakcie pracy, mo
ż
na zablokowa
ć
jej sterowanie, aby unikn
ąć
niebezpiecze
ń
stwa przypadkowej
zmiany ustawie
ń
(dzieci, czynno
ś
ci konserwacyjne, itp.). Po
naci
ś
ni
ę
ciu przycisku
sterowanie zostaje zablokowane i
w
łą
cza si
ę
kontrolka umieszczona nad tym przyciskiem.
Aby przywróci
ć
mo
ż
liwo
ść
dokonywania regulacji (np.
przerwa
ć
gotowanie), nale
ż
y odblokowa
ć
sterowanie:
nacisn
ąć
na chwil
ę
przycisk
, kontrolka wy
łą
czy si
ę
, a
sterowanie zostanie odblokowane.
Wy
łą
czanie p
ł
yty grzejnej
Po naci
ś
ni
ę
ciu przycisku
wy
łą
cza urz
ą
dzenie, nie nale
ż
y
bra
ć
pod uwag
ę
wykrywacza obecno
ś
ci naczy
ń
.
Je
ś
li sterowanie zosta
ł
o zablokowane, pozostanie ono
zablokowane równie
ż
po ponownym w
łą
czeniu p
ł
yty
grzejnej. Aby móc ponownie w
łą
czy
ć
p
ł
yt
ę
, nale
ż
y najpierw
odblokowa
ć
jej sterowanie.
Tryb „demo”
Mozna ustawic tryb demonstracyjny, w którym panel
sterowania dziala w normalny sposób (w tym komendy
zwiazane z programowaniem), ale elementy grzejne nie
wlaczaja sie. Aby aktywowac tryb „demo”, plyta musi byc
wlaczona, a wszystkie pola grzejne musza byc wylaczone:
• Nacisn
ąć
i przytrzyma
ć
równocze
ś
nie naci
ś
ni
ę
te przez 6
sekund przyciski
+
i
-
. Po up
ł
ywie 6 sekund kontrolka
ON/OFF i kontrolka BLOKADY STEROWANIA pulsuj
ą
przez jedn
ą
sekund
ę
. Zwolni
ć
przyciski
+
i
-
i nacisn
ąć
przycisk
;
• na
wy
ś
wietlaczu pojawi si
ę
napis DE i MO, a p
ł
yta wy
łą
czy
si
ę
;
• po kolejnym w
łą
czeniu p
ł
yta b
ę
dzie dzia
ł
a
ć
w trybie
„demo”.
Aby wyjsc z tego trybu, nalezy wykonac wyzej opisane
czynnosci. Na wyswietlaczu pojawi sie napis DE i MO, a
plyta wylaczy sie. Po kolejnym wlaczeniu plyta bedzie dzialac
normalnie.
Praktyczne porady dotycz
ą
ce u
ż
ytkowania
urz
ą
dzenia
!
U
ż
ywane do gotowania naczynia powinny by
ć
wykonane
72
PL
z materia
ł
u nadaj
ą
cego si
ę
do stosowania na p
ł
ytach
indukcyjnych (z materia
ł
u ferromagnetycznego). Zaleca si
ę
u
ż
ywanie garnków z:
ż
eliwa, stali emaliowanej lub specjalnej
stali nierdzewnej dostosowanej do p
ł
yt indukcyjnych. Aby
upewni
ć
si
ę
, czy naczynie jest odpowiednie, wystarczy
przeprowadzi
ć
prób
ę
z magnesem.
Ponadto, aby uzyska
ć
jak najlepsze wyniki u
ż
ytkowania p
ł
yty
grzejnej:
• Stosowa
ć
garnki z p
ł
askim dnem i znacznej grubo
ś
ci, aby
mie
ć
pewno
ść
,
ż
e dok
ł
adnie przylegaj
ą
do pola grzejnego.
• Stosowa
ć
garnki o
ś
rednicy wystarczaj
ą
cej do ca
ł
kowitego
przykrycia pola grzejnego, tak aby zapewni
ć
wykorzystanie
ca
ł
ego ciep
ł
a;
• Upewni
ć
si
ę
czy dno garnka jest zawsze dok
ł
adnie
osuszone i czyste, aby zagwarantowa
ć
dok
ł
adne
przyleganie i d
ł
ugotrwa
ł
o
ść
u
ż
ytkowania zarówno pól
grzejnych, jak i garnków.
• Unika
ć
stosowania tych samych garnków co u
ż
ywane
na palnikach gazowych: skupienie ciep
ł
a w przypadku
palników gazowych mo
ż
e odkszta
ł
ci
ć
dno garnka, przez co
nie b
ę
dzie on dok
ł
adnie przylega
ć
;
Urz
ą
dzenia zabezpieczaj
ą
ce
Rozpoznawanie naczy
ń
Ka
ż
de pole grzejne posiada system rozpoznawania naczy
ń
.
Pole grzejne wydziela ciep
ł
o wy
łą
cznie, je
ś
li znajduje si
ę
na
nim garnek o dostosowanej do niego wielko
ś
ci. Pulsuj
ą
ca
kontrolka mo
ż
e wskazywa
ć
na:
• nieodpowiedni
garnek
• garnek o zbyt ma
ł
ej
ś
rednicy
• uniesienie
garnka
Przegrzanie
W przypadku przegrzania elementów elektronicznych p
ł
yta
grzejna wy
łą
cza si
ę
automatycznie, a na wy
ś
wietlaczu
pojawia si
ę
symbol
F
, po którym nast
ę
puje pulsuj
ą
ca
cyfra. Komunikat ten znika i p
ł
yta grzejna mo
ż
e by
ć
znowu
u
ż
ytkowana zaraz jak tylko temperatura spadnie do
akceptowalnego poziomu.
Wy
łą
cznik bezpiecze
ń
stwa
Urz
ą
dzenie jest wyposa
ż
one w wy
łą
cznik bezpiecze
ń
stwa,
który automatycznie wy
łą
cza pola grzejne, kiedy zostanie
osi
ą
gni
ę
ty graniczny czas ich u
ż
ytkowania na danym
poziomie mocy. W przypadku zadzia
ł
ania wy
łą
cznika
bezpiecze
ń
stwa wy
ś
wietlacz wskazuje „
0
”.
Przyklad: prawe tylne pole grzejne jest ustawione na 5,
natomiast lewe przednie pole grzejne na 2. Prawe tylne pole
wylaczy sie po 5 godzinach dzialania, lewe przednie po 8
godzinach.
Poziom mocy
1
2
3
4
5
6
7
8
9
Graniczny czas działania w godzinach
9
8
7
6
5
4
3
2
1
Sygna
ł
d
ź
wi
ę
kowy
Niektóre anomalie, takie jak:
• umieszczenie przedmiotu (garnka, sztu
ć
ca itp.) na ponad
10 sekund w stre
fi
e panelu sterowania,
• zalanie strefy panelu sterowania,
• d
ł
ugi nacisk na jaki
ś
przycisk, mog
ą
spowodowa
ć
w
łą
czenie si
ę
sygna
ł
u d
ź
wi
ę
kowego. Aby przerwa
ć
sygna
ł
d
ź
wi
ę
kowy, nale
ż
y usun
ąć
przyczyn
ę
nieprawid
ł
owo
ś
ci
dzia
ł
ania. Je
ś
li przyczyna anomalii nie zostanie usuni
ę
ta,
sygna
ł
d
ź
wi
ę
kowy pozostanie w
łą
czony a p
ł
yta wy
łą
czy
si
ę
.
73
PL
Praktyczne porady dotycz
ą
ce gotowania
ª
Gotowanie pod ciśnieniem
Garnek ciśnieniowy
Smażenie
Grilowanie
Gotowanie
Gotowanie na
dużym ogniu
Gotowanie
na dużym
ogniu
Gotowanie na średnim ogniu
Gotowanie na
wolnym ogniu
Gotowanie
na bardzo
wolnym
ogniu
• • ¶
Naleśniki
Gotowanie na dużym ogniu i przysmażanie
(Pieczenie, Befsztyki, Zrazy, Filety rybne,
Smażone jajka)
¶ §
Szybkie zagęszczenie (Płynne sosy)
Woda gorąca (Makarony, Ryż, Warzywa)
Mleko
§ S
Wolne zagęszczanie (Sosy gęste)
S ¢
Gotowanie na wodzie
Gotowanie pod ciśnieniem po gwizdku
¢ £ ™
Gotowanie na wolnym
ogniu (mięso duszone)
Podgrzewanie potraw
™ ¡
Czekolada rozpuszczona
Utrzymywanie potraw w temperaturze
74
PL
Zalecenia i
ś
rodki ostro
ż
no
ś
ci
!
Urz
ą
dzenie zosta
ł
o zaprojektowane i wyprodukowane
zgodnie z mi
ę
dzynarodowymi normami
bezpiecze
ń
stwa. Poni
ż
sze ostrze
ż
enia dotycz
ą
zasad
bezpiecze
ń
stwa i nale
ż
y je uwa
ż
nie przeczyta
ć
.
Niniejsze urz
ą
dzenie jest zgodne z
nast
ę
puj
ą
cymi dyrektywami unijnymi:
-2006/95/EWG z 12/12/06 (Niskie napiecie) wraz z
pózniejszymi zmianami
- 2004/108/EWG z 15/12/04 (Kompatybilno
ść
elektromagnetyczna) wraz z pó
ź
niejszymi zmianami
- 93/68/EWG z 22/07/93 wraz z pó
ź
niejszymi zmianami.
- 1275/2008 stand-by/off mode.
Ogólne zasady bezpiecze
ń
stwa
!
Sprawdza
ć
, czy wlot powietrza poprzez kratk
ę
wentylatora nigdy nie jest zatkany. Zabudowana
p
ł
yta grzejna wymaga dobrego obiegu powietrza dla
zapewnienia ch
ł
odzenia elementów elektronicznych.
!
Odradza si
ę
instalacj
ę
indukcyjnej p
ł
yty grzejnej na
lodówce podblatowej (ciep
ł
o) lub na pralce (wibracje).
Przestrze
ń
do wentylacji elementów elektronicznych by
ł
aby
niewystarczaj
ą
ca.
• Niniejsze
urz
ą
dzenie przeznaczone jest do u
ż
ytku
domowego.
• Nie
nale
ż
y instalowa
ć
urz
ą
dzenia na zewn
ą
trz, nawet
w zadaszonym miejscu, poniewa
ż
wystawienie go na
dzia
ł
anie deszczu i burz jest bardzo niebezpieczne.
• Nie dotykac urzadzenia stojac przy nim boso lub majac
mokre albo wilgotne rece badz stopy.
• Urz
ą
dzenie s
ł
u
ż
y do gotowania potraw i powinno by
ć
u
ż
ywane jedynie przez osoby doros
ł
e, zgodnie ze
wskazówkami zawartymi w niniejszej instrukcji. Nie
u
ż
ywa
ć
p
ł
yty w funkcji pó
ł
ki lub deski do krojenia.
• Plyta szklano-ceramiczna jest odporna na uderzenia,
moze jednak ulec uszkodzeniu (lub ewentualnie
peknieciu), jesli zostanie uderzona ostrym przedmiotem,
np. jakims narzedziem. W takim przypadku nalezy
natychmiast odlaczyc urzadzenie od zasilania
elektrycznego i wezwac Serwis Techniczny.
• Nale
ż
y uwa
ż
a
ć
, aby przewody zasilaj
ą
ce pozosta
ł
e
domowe urz
ą
dzenia elektryczne nie styka
ł
y si
ę
z
rozgrzanymi elementami p
ł
yty grzejnej.
• Nie nalezy zapominac, ze temperatura pól grzejnych
pozostaje wysoka przez co najmniej trzydziesci minut
po ich wylaczeniu. Cieplo szczatkowe jest równiez
sygnalizowane przez odpowiedni wskaznik (
patrz
Uruchomienie i uzytkowanie
).
• Utrzymywa
ć
w odpowiedniej odleg
ł
o
ś
ci od p
ł
yty
grzejnej ka
ż
dy przedmiot, który mo
ż
e si
ę
stopi
ć
,
np. przedmioty plastikowe, aluminiowe lub produkty
z du
żą
zawarto
ś
ci
ą
cukru. Szczególnie uwa
ż
a
ć
na wszelkie opakowania i ta
ś
my plastikowe lub
aluminiowe: ich pozostawienie na jeszcze gor
ą
cych
lub ciep
ł
ych powierzchniach mo
ż
e spowodowa
ć
powa
ż
ne uszkodzenie p
ł
yty.
• Nale
ż
y si
ę
upewnia
ć
, czy uchwyty garnków s
ą
zawsze zwrócone w kierunku wewn
ę
trznej cz
ęś
ci
p
ł
yty grzejnej, aby unikn
ąć
ich przypadkowego
potr
ą
cenia.
• Nie wyci
ą
ga
ć
wtyczki z gniazdka ci
ą
gn
ą
c za kabel -
nale
ż
y trzyma
ć
za wtyczk
ę
.
• Nie czy
ś
ci
ć
urz
ą
dzenia ani nie wykonywa
ć
czynno
ś
ci
konserwacyjnych bez uprzedniego od
łą
czenia wtyczki
od sieci elektrycznej.
• Nie jest przewidziane, aby urz
ą
dzenie by
ł
o u
ż
ywane
przez osoby (w tym dzieci) o ograniczonych
mo
ż
liwo
ś
ciach
fi
zycznych lub umys
ł
owych, przez osoby
bez do
ś
wiadczenia lub bez znajomo
ś
ci urz
ą
dzenia,
chyba
ż
e pod nadzorem osoby odpowiedzialnej za
ich bezpiecze
ń
stwo, jak równie
ż
przez osoby, które
nie zosta
ł
y zapoznane ze wst
ę
pnymi instrukcjami
dotycz
ą
cymi u
ż
ytkowania urz
ą
dzenia.
• Ostrze
ż
enia dla osób z pacemaker lub innych
urz
ą
dze
ń
czy implantów medycznych aktywnych:
Strefa gotowania spe
ł
nia wszelkie aktualnie
obowi
ą
zuj
ą
ce normy zwi
ą
zane z interferencjami
elektromagnetycznymi.
Produkt ten wi
ę
c spe
ł
nia wszelkie wymagania prawne
(dyrektywy 89/336CEE). Zosta
ł
o zaprojektowane
w taki sposób, aby nie tworzy
ć
zak
ł
óce
ń
w innych
urz
ą
dzeniach elektrycznych u
ż
ywanych, pod
warunkiem,
ż
e i te urz
ą
dzenia spe
ł
niaj
ą
wymagania
takich norm.
P
ł
yta grzejna indukcyjna wytwarza pola magnetyczne o
ma
ł
ym zasi
ę
gu.
Aby
unikn
ąć
jakiekolwiek zagro
ż
enie zak
ł
ócenia
pomi
ę
dzy p
ł
yt
ą
grzejn
ą
i pacemaker, to pacemaker ma
by
ć
wykonany w my
ś
l aktualnie obowi
ą
zuj
ą
cych norm.
W tym wi
ę
c przypadku mo
ż
emy zagwarantowa
ć
jedynie
zgodno
ść
naszego produktu z normami. Aby uzyska
ć
informacje zwi
ą
zane ze zgodno
ś
ci
ą
z normami i
ewentualnymi problemami niezgodno
ś
ci nale
ż
y zwróci
ć
si
ę
do lekarza lub do producenta pacemakera.
• Zabroni
ć
dzieciom bawienia si
ę
z urz
ą
dzeniem.
• Na p
ł
ycie nie nale
ż
y k
ł
a
ść
metalowych przedmiotów
(no
ż
y,
ł
y
ż
ek, pokrywek itp.), poniewa
ż
mog
ą
si
ę
nagrzewa
ć
.
•
Urz
ą
dzenie nie jest przeznaczone do tego, aby by
ł
o
w
łą
czane przy u
ż
yciu zewn
ę
trznego przeka
ź
nika
czasowego lub osobnego systemu sterowania
zdalnego.
Utylizacja
• Utylizacja opakowania: nale
ż
y stosowa
ć
si
ę
do lokalnych
przepisów, dzi
ę
ki temu opakowania b
ę
d
ą
mog
ł
y zosta
ć
poddane reutylizacji.
• Dyrektywa europejska 2002/96/WE w sprawie zu
ż
ytego
sprz
ę
tu elektrycznego oraz elektronicznego (RAEE)
przewiduje,
ż
e domowe urz
ą
dzenia elektryczne nie mog
ą
podlega
ć
zwyk
ł
emu cyklowi utylizacji sta
ł
ych odpadów
miejskich. Zu
ż
yte urz
ą
dzenia powinny by
ć
zbierane
oddzielnie w celu zoptymalizowania stopnia odzysku i
recyklingu materia
ł
ów, które zawieraj
ą
, oraz aby zapobiec
potencjalnym szkodom dla zdrowia i
ś
rodowiska. Symbol
przekre
ś
lonego kosza umieszczony na wszystkich
produktach przypomina o obowi
ą
zku selektywnego
gromadzenia tych odpadów.
W celu uzyskania bli
ż
szych informacji dotycz
ą
cych
prawid
ł
owego z
ł
omowania sprz
ę
tu domowego, u
ż
ytkownicy
mog
ą
si
ę
zwróci
ć
do w
ł
a
ś
ciwych s
ł
u
ż
b miejskich lub do
skupuj
ą
cych go sprzedawców.
75
PL
Konserwacja i utrzymanie
Od
łą
czenie pr
ą
du elektrycznego
Przed ka
ż
d
ą
czynno
ś
ci
ą
nale
ż
y od
łą
czy
ć
urz
ą
dzenie od sieci
zasilania elektrycznego.
Mycie urz
ą
dzenia
!
Unika
ć
stosowania
ś
rodków czyszcz
ą
cych o w
ł
a
ś
ciwo
ś
ciach
ś
ciernych lub korozyjnych, takich jak produkty w sprayu do barbecue
i piecyków, odplamiacze i
ś
rodki przeciwrdzewne, detergenty w
proszku oraz g
ą
bki z powierzchni
ą
ś
cieraj
ą
c
ą
: mog
ą
one w sposób
nieodwracalny zarysowa
ć
powierzchni
ę
.
!
Do czyszczenia urzadzenia nigdy nie nalezy uzywac oczyszczaczy
parowych lub wysokocisnieniowych.
• W ramach zwyk
ł
ej konserwacji wystarczy przemywa
ć
p
ł
yt
ę
wilgotn
ą
g
ą
bk
ą
i osusza
ć
j
ą
papierowym r
ę
cznikiem kuchennym.
• Je
ś
li p
ł
yta jest szczególnie silnie zabrudzona, wyczy
ś
ci
ć
j
ą
przy
pomocy odpowiedniego produktu do czyszczenia powierzchni
szklano-ceramicznych, sp
ł
uka
ć
i osuszy
ć
.
• W celu eliminacji najtrudniejszych do usuni
ę
cia zanieczyszcze
ń
pos
ł
ugiwa
ć
si
ę
odpowiedni
ą
skrobaczk
ą
. Usuwa
ć
zanieczyszczenia zaraz jak tylko jest to mo
ż
liwe, nie czekaj
ą
c
a
ż
urz
ą
dzenie ostygnie, tak aby resztki
ż
ywno
ś
ci nie stwardnia
ł
y.
Znakomite wyniki mo
ż
na uzyska
ć
stosuj
ą
c g
ą
bk
ę
drucian
ą
ze stali nierdzewnej - specjaln
ą
do szklano-ceramicznych p
ł
yt
grzejnych - nas
ą
czon
ą
wod
ą
i myd
ł
em.
• Je
ś
li na p
ł
ycie grzejnej stopi
ą
si
ę
przypadkowo przedmioty lub
materia
ł
y, takie jak plastik albo cukier, nale
ż
y je usun
ąć
przy
pomocy skrobaczki, dopóki powierzchnia jest jeszcze ciep
ł
a.
• Po oczyszczeniu p
ł
yta mo
ż
e zosta
ć
pokryta odpowiednim
produktem do konserwacji i ochrony: jego niewidoczna warstwa
chroni powierzchni
ę
w przypadku wykipienia potraw podczas
gotowania. Zaleca si
ę
wykonywanie tych czynno
ś
ci, gdy
urz
ą
dzenie jest letnie lub zimne.
• Nale
ż
y pami
ę
ta
ć
, aby zawsze sp
ł
uka
ć
p
ł
yt
ę
czyst
ą
wod
ą
i
dok
ł
adnie j
ą
osuszy
ć
: resztki produktów mog
ł
yby bowiem
przyklei
ć
si
ę
do jej powierzchni podczas nast
ę
pnego gotowania.
Rama ze stali nierdzewnej
(tylko w modelach z ramka)
Na stali nierdzewnej moga powstac plamy w przypadku
pozostawienia na jej powierzchni przez dluzszy czas bardzo
twardej wody lub w przypadku stosowania srodków czystosci
zawierajacych fosfor.
Zaleca si
ę
ob
fi
cie sp
ł
uka
ć
i dok
ł
adnie osuszy
ć
p
ł
yt
ę
po umyciu.
W przypadku rozlania wody, nale
ż
y j
ą
jak najszybciej dok
ł
adnie
wytrze
ć
.
!
Niektóre p
ł
yty grzejne maj
ą
ramk
ę
aluminiow
ą
, która jest podobna
do ramki ze stali nierdzewnej. Nie nale
ż
y stosowa
ć
produktów do
mycia i odt
ł
uszczania innych ni
ż
przeznaczone do aluminium.
Demonta
ż
p
ł
yty
W razie konieczno
ś
ci zdemontowania p
ł
yty grzejnej:
1. odkr
ę
ci
ć
ś
ruby przy pomocy których spr
ęż
yny centruj
ą
ce s
ą
przymocowane do boków p
ł
yty;
2. poluzowa
ć
ś
ruby uchwytów mocuj
ą
cych w rogach;
3. wyj
ąć
p
ł
yt
ę
grzejn
ą
z mebla.
!
Odradza si
ę
ingerencj
ę
w wewn
ę
trzne mechanizmy urz
ą
dzenia z
zamiarem dokonania naprawy. W przypadku awarii skontaktowa
ć
si
ę
z Serwisem.
Opis techniczny modeli
System indukcyjny jest procedur
ą
gotowania szybsz
ą
jak istnieje. W odró
ż
nieniu do tradycjonalnych p
ł
yt grzejnych, nie
rozgrzewa si
ę
strefa gotowania: Ciep
ł
o wytwarzane jest bezpo
ś
rednio wewn
ą
trz garnka, który
ma koniecznie posiada
ć
dno z materia
ł
u termomagnetycznego.
Płyty grzejne
Pola grzejne
Tylne lewe
Tylne prawe
Przednie lewe
Przednie prawe
Moc całkowita
KIA 641 C ; KIA 641 B
Moc (in W)
I 1400
I 2200
–
B 3000*
I 2200
I 1400
–
600 je
œ
li Tylne Prawe*
7200
KIC 641 X
Moc (in W)
I 1400
I 2200
–
B 3000*
I 2200
I 1400
–
600 je
œ
li Tylne Prawe
7200
KIC 644 DD Z
Moc (in W)
I 1400
–
B 2000*
–
600 je
œ
li Prz. Lewe*
I 2200
–
B 3000* - 1600 je
œ
li Prz. Prawe*
I 2200
–
B 3000* - 1600 je
œ
li Tylne Lewe*
I 1400
–
B 2000*
–
600 je
œ
li Tylne Prawe*
7200
Płyty grzejne
Pola grzejne
Tylne lewe
Tylne prawe
Przednie lewe
Przednie prawe
Moc całkowita
KIC 642 C
Moc (in W)
I 1400
–
600 je
œ
li Prz. Lewe*
I 2200
–
B 3000*
I 2200
–
B 3000*
I 1400
–
600 je
œ
li Tylne Prawe*
7200
KIC 644 X
KIC 644 C
KIC 744 C
Moc (in W)
I 1400
–
B 2000*
–
600 je
œ
li Prz. Lewe*
I 2200
–
B 3000* - 1600 je
œ
li Prz. Prawe*
I 2200
–
B 3000* - 1600 je
œ
li Tylne Lewe*
I 1400
–
B 2000*
–
600 je
œ
li Tylne Prawe*
7200
Legenda:
I = strefa gotowania z
indukcj
ą
prost
ą
B = booster: Strefa
gotowania mo
ż
e by
ć
dope
ł
niana do 3000 W
* = moc maksymalna
jest ograniczona dopóki
aktywny jest booster
we w
ł
a
ś
ciwej stre
fi
e
gotowania tylniej
(patrz Uruchomienie i
u
ż
ytkowanie).
S
S
76
RS
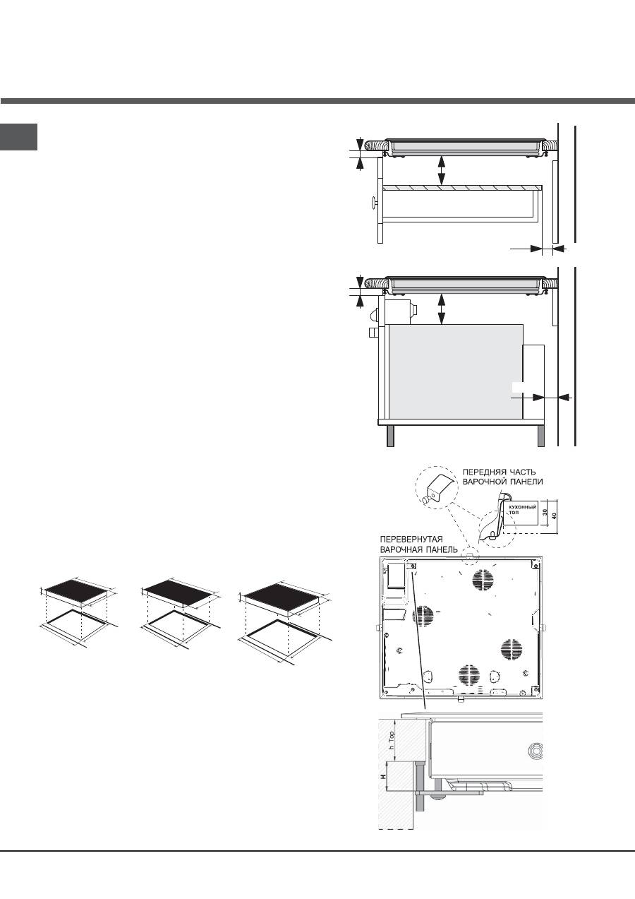
Монтаж
!
Важно
сохранить
данное
руководство
для
его
последующих
консультации
.
В
случае
продажи
,
передачи
изделия
или
при
переезде
на
новое
место
жительства
необходимо
проверить
,
чтобы
руководство
оставалось
вместе
с
изделием
,
для
того
чтобы
его
новыи
владелец
мог
ознакомиться
с
правилами
эксплуатации
и
с
соответствующими
предупреждениями
.
!
Внимательно
прочитаите
инструкции
:
в
них
содержатся
важные
сведения
о
монтаже
изделия
,
его
эксплуатации
и
безопасности
.
Расположение
!
Не
разрешаите
детям
играть
с
упаковочными
материалами
.
Упаковка
должна
быть
уничтожена
в
соответствии
с
правилами
сбора
мусора
(
см
.
Предосторожности
и
рекомендации
).
!
Монтаж
изделия
производится
в
соответствии
с
данными
инструкциями
квалифицированными
специалистами
.
Неправильный
монтаж
изделия
может
стать
причиной
повреждения
имущества
и
причинить
ущерб
людям
и
домашним
животным
.
Встроенный
монтаж
Для
обеспечения
исправного
функционирования
встраиваемого
изделия
кухонный
модуль
должен
иметь
соответствующие
характеристики
:
•
поверхность
кухонного
топа
должна
быть
из
материала
,
устойчивого
к
температуре
примерно
100°C;
•
если
варочная
панель
устанавливается
над
духовым
шкафом
,
он
должен
быть
оснащен
системой
охлаждения
с
принудительной
вентиляцией
.
•
не
рекомендуется
устанавливать
варочную
панель
над
посудомоечными
машинами
:
при
необходимости
установите
между
варочной
панелью
и
посудомоечной
машиной
герметичную
разделительную
вставку
;
•
в
зависимости
от
модели
варочной
панели
,
которую
вы
устанавливаете
(
см
.
схемы
)
,
размеры
ниши
в
кухонном
модуле
должны
быть
следующими
:
Вентиляция
Для
обеспечения
надлежащей
вентиляции
и
во
избежание
перегрева
прилегающих
поверхностеи
варочная
панель
должна
быть
установлена
:
•
на
минимальном
расстоянии
40
мм
от
заднеи
стенки
или
от
любои
вертикальнои
поверхности
;
•
между
проемом
под
варочную
панель
и
расположенным
снизу
кухонным
элементом
должно
быть
расстояние
не
менее
20
мм
.
•
Кухонные
элементы
,
расположенные
рядом
с
кухонной
плитой
,
высота
которых
превышает
уровень
варочной
панели
,
должны
находиться
на
расстояние
не
менее
600
мм
от
края
варочной
панели
.
5 mm
min. 20 mm
min. 20 mm
min. 40 mm
Ящик
5 mm
min. 40 mm
Вентилируемая
560 +/- 1
490 +/- 1
53
590
520
690
520
560 +/- 1
490 +/- 1
53
560 +/- 1
490 +/- 1
53
574
504
77
RS
Крепление
Изделие
должно
быть
установлено
на
идеально
ровнои
поверхности
.
Возможные
деформации
,
вызванные
неправильным
креплением
,
могут
привести
к
изменениям
характеристик
и
эксплуатационных
качеств
варочнои
панели
.
Длина
регуляционного
винта
крепежных
крюков
регулируется
перед
началом
монтажа
по
толщине
кухонного
топа
:
•
толщина
30
мм
:
длина
винта
23
мм
;
•
толщина
40
мм
:
длина
винта
13
мм
;
Порядок
крепления
изделия
:
1.
При
помощи
коротких
тупых
шурупов
привинтите
4
центровочные
пружины
в
отверстиях
,
расположенных
по
бокам
варочнои
панели
;
2.
Вставьте
варочную
панель
в
проем
в
кухонном
модуле
,
выровняите
и
слегка
нажмите
в
центр
вплодь
до
идеального
прилегания
варочнои
панели
к
поверхности
кухонного
топа
.
3.
для
варочных
панелеи
с
боковыми
профилями
:
вставив
варочную
панели
в
нишу
кухонного
модуля
,
вставьте
4
крепежных
крюка
(
каждыи
со
своим
штифтом
)
по
нижнему
периметру
варочнои
панели
,
закручивая
их
длинными
острыми
болтами
до
тех
пор
,
пока
стекло
не
будет
плотно
прилегать
к
кухонному
топу
.
!
Важно
,
чтобы
шурупы
центровочных
пружин
оставались
доступными
.
!
В
соответствии
с
правилами
безопасности
после
установки
изделия
в
кухонныи
модуль
должна
быть
исключена
возможность
касания
к
электрическими
частями
.
!
Все
защитные
элементы
должны
быть
закреплены
таким
образом
,
чтобы
их
можно
было
снять
только
при
помощи
специального
инструмента
.
Электрическое
подключение
!
Электрическое
подключение
варочнои
панели
и
возможного
встраиваемого
духового
шкафа
должно
выполняться
раздельно
по
причинам
безопасности
,
а
так
же
для
легкого
съема
духового
шкафа
.
Монофазное
соединение
Варочная
панель
оснащена
сетевым
кабелем
,
рассчитанным
на
монофазное
электропитание
.
Подсоедините
провода
в
соответствии
с
таблицеи
и
приведенным
ниже
схемам
:
Типовое
напряжение и
частота сети
Электрический провод
Подсоединение
проводов
220-240В 1+N ~
50 Гц
: желто-зеленый;
N: 2 синий провода
вместе на
L: коричневый вместе с
черным
Другие
типы
соединений
Если
электропроводка
соответствует
однои
из
следующих
характеристик
:
Типовое
напряжение
и
частота
сети
• 400
В
- 2+N ~ 50
Гц
• 220-240
В
3 ~ 50
Гц
• 400V 3 - N ~ 50 Hz
• 400
В
- 2+2N ~ 50
Гц
Разделите
провода
и
подсоедините
проводники
в
соответствии
с
таблицеи
и
приведенным
ниже
схемам
:
Типовое
напряжение и
частота сети
Электрический провод
Подсоединение
проводов
400В -2 +N ~
50 Гц
220-240В 3 ~
50 Гц
400V 3-N~ 50 Гц
: желто-зеленый,
N: 2 синий провода
вместе на
L1: черный
L2: коричневый
400В -2 +2N ~
50 Гц
: желто-зеленый;
N1: синий
N2: синий
L1: черный
L2: коричневый
Подсоединение
сетевого
кабеля
изделия
к
сети
электропитания
В
случае
прямого
подключения
изделия
к
сети
необходимо
установить
между
изделием
и
электрическои
сетью
многополярныи
разъединитель
с
минимальным
расстоянием
между
контактами
3
мм
.
!
Электромонтер
несет
ответственность
за
правильное
подключение
изделия
к
электрическои
сети
и
за
соблюдение
правил
безопасности
.
Перед
осуществлением
электрического
подсоединения
необходимо
проверить
следующее
:
•
сетевая
розетка
должна
быть
соединена
с
заземлением
и
соответствовать
нормативам
;
•
сетевая
розетка
должна
быть
расчитана
на
максимальную
потребляемую
мощность
изделия
,
указанную
на
паспортнои
табличке
с
техническими
характеристиками
;
•
напряжение
и
частота
тока
сети
должны
соответствовать
электрическим
данным
изделия
;
•
сетевая
розетка
должна
быть
совместима
со
штепсельнои
вилкои
изделия
.
В
противном
случае
замените
розетку
или
вилку
;
не
используите
удлинители
или
троиники
.
!
Изделие
должно
быть
установлено
таким
образом
,
чтобы
сетевои
кабель
и
сетевая
розетка
были
легко
доступны
.
!
Сетевои
кабель
изделия
не
должен
быть
согнут
или
сжат
.
!
Регулярно
проверяите
состояние
сетевого
кабеля
и
при
необходимости
поручаите
его
замену
только
уполномоченным
техникам
.
!
Производитель
не
несет
ответственности
за
последствия
несоблюдения
перечисленных
выше
требовании
.
!
Категорически
запрещается
отсоединять
и
не
заменять
сетевой
кабель
.
В
случае
отсоединения
или
замены
сетевого
кабеля
гарантия
на
изделие
аннулируется
,
равно
как
и
маркировка
ЕС
.
Компания
INDESIT
снимает
с
себя
всякую
ответственность
за
несчастные
случаи
или
ущерб
,
вызванный
отсоединением
или
заменой
оригинального
сетевого
кабеля
.
Допускается
замена
только
на
оригинальный
сетевой
кабель
,
выполняемая
техником
,
уполномоченным
Компанией
INDESIT.
78
RS
Включение
и
эксплуатация
!
На
стекляннои
поверхности
варочнои
панели
могут
быть
видны
сальные
следы
от
клея
,
нанесенного
на
прокладки
Перед
началом
эксплуатации
изделия
следует
удалить
следы
клея
при
помощи
специального
неабразивного
моющего
средства
.
В
первые
часы
работы
вы
можете
почувствовать
запах
жженои
резины
,
которыи
быстро
пропадает
.
!
Через
несколко
секунд
после
подсоединения
варочнои
панели
к
сети
электропитания
включается
короткии
звуковои
сигнал
.
Только
после
этого
можно
включить
варочную
панель
.
Нормальный
шумовой
уровень
варочной
панели
:
•
Гудение
:
вызвано
вибрацией
металлических
элементов
,
из
которых
состоит
индуктор
,
и
кастрюли
,
образуя
электромагнитное
поле
,
необходимое
для
нагрева
.
Оно
увеличивается
по
мере
повышения
мощности
индуктора
.
•
Легкий
свист
:
слышен
в
случае
помещения
на
варочную
зону
пустой
кастрюли
.
Свист
пропадает
,
как
только
в
кастрюлю
будут
положены
продукты
или
налита
жидкость
.
•
Потрескивание
:
этот
звук
образуется
вибрацией
материала
,
из
которого
изоготовлено
дно
кастрюли
,
пронизываемого
паразитным
током
,
создаваемым
электромагнитным
полем
(
индукцией
).
Потрескивание
может
быть
более
или
менее
сильным
в
зависимости
от
материала
,
из
которого
изоготовлено
дно
кастрюли
,
и
сокращается
в
случае
кастрюли
большого
размера
.
•
Сильный
свист
:
слышен
при
одновременной
работе
двух
индукторов
,
расположенных
по
одной
вертикали
,
при
максимальной
мощности
и
/
или
когда
на
большем
индукторе
включена
функция
вольтодобавочного
устройства
,
а
другой
является
саморегулируемым
.
Свист
сокращается
при
понижении
мощности
саморегулируемого
индуктора
.
Особенно
он
слышен
,
когда
дно
кастрюли
изготовлено
из
солев
разных
сплавов
.
•
Шум
вентилятора
:
для
исправной
работы
варочной
панели
и
для
защиты
электронной
части
от
возможного
перегрева
необходимо
включать
вентилятор
.
Вентилятор
работает
с
максимальной
мощностью
,
когда
большой
индуктор
включен
на
максимальную
мощность
,
или
когда
включено
вольтодобавочное
устройство
.
Во
всех
остальных
случаях
вентилятор
работает
со
средней
мощностью
в
зависимости
от
отмечаемой
температуры
.
Кроме
того
вентилятор
может
продолжать
работать
также
после
выключения
варочной
панели
,
если
ее
температура
остается
высокой
.
Перечисленные
выше
шумы
присущи
индукционной
технологии
и
не
обязательно
означают
неисправности
в
работе
изделия
.
!
При
длительном
нажатии
на
кнопки
-
и
+
происходит
быстрая
смена
уровнеи
мощности
и
минут
таимера
.
Включение
варочной
панели
Включите
варочную
панель
,
нажав
кнопку
примерно
на
одну
секунду
.
Включение
варочных
зон
Каждая
зона
варочнои
панели
включается
при
помощи
кнопки
и
регулятора
мощности
,
состоящего
из
двоинои
кнопки
-
и
+
.
•
Для
включения
однои
из
варочных
зон
нажмите
соответствующую
кнопку
и
настроите
нужную
мощность
при
помощи
кнопок
-
и
+
.
Вольтодобавочное
устройство
booster*
Для
ускорения
нагрева
некоторых
варочных
зон
можно
включить
вольтодобавочное
устройство
при
помощи
кнопки
Booster
.
Включается
индикатор
на
кнопке
.
Эта
функция
добавляет
мощности
до
2000
Вт
или
3000
Вт
в
зависимости
от
размера
данной
варочной
зоны
.
Вольтодобавочное
устройство
автоматически
отключается
через
4
минуты
.
До
тех
пор
,
пока
будет
включено
вольтодобавочная
функция
одной
из
варочных
зон
,
соответствующая
передняя
или
задняя
варочная
зона
будет
работать
с
сокращенной
мощностью
(
например
,
если
включено
вольтодобавочное
устройство
левой
задней
варочной
зоны
,
понижается
мощность
левой
передней
варочной
зоны
).
Более
подробные
разъяснения
смотрите
в
Техническом
описании
моделей
.
Выключение
варочных
зон
Для
отключения
варочнои
зоны
выберите
ее
при
помощи
соответствующеи
кнопки
и
затем
:
•
Нажмите
кнопку
-
:
мощность
варочнои
зоны
постепенно
понизится
вплоть
до
выключения
.
Программирование
продолжительности
приготовления
!
Можно
одновременно
настроить
все
варочные
зоны
на
приготовление
от
1
до
99
минут
.
1.
Выбрать
варочную
зону
при
помощи
соответствующеи
кнопки
выбора
.
2.
Отрегулируйте
уровень
мощности
варочной
зоны
.
3.
Нажать
кнопку
.
Мигает
индикатор
,
соответствующий
выбранной
зоне
.
4.
Настроить
нужную
продолжительность
приготовления
*
Имеется
только
в
некоторых
моделях
.
79
RS
при
помощи
кнопок
-
и
+
.
5.
Подтвердить
настройки
при
помощи
кнопки
,
или
переключение
происходит
автоматически
через
10
секунды
.
Обратный
отсчет
таймера
начинается
сразу
же
.
По
завершении
заданного
приготовления
раздается
звуковой
сигнал
(
в
течение
1
минуты
),
и
варочная
зона
выключается
.
Повторите
вышеописанную
операцию
для
каждой
варочной
зоны
,
которую
требуется
запрограммировать
.
Визуализация
в
случае
программирования
нескольких
варочных
зон
В
случае
программирования
одной
или
нескольких
варочных
зон
на
дисплее
показывается
отсчет
времени
варочной
зоны
,
на
которой
приготовление
ближе
всего
к
завершению
,
с
указанием
ее
положения
соответствующим
мигающим
индикатором
.
Индикаторы
других
запрограммированных
варочных
зон
остаются
включенными
.
Для
визуализации
оставшегося
времени
приготовления
остальных
запрограммированных
варочных
зон
нажмите
несколько
раз
кнопку
:
на
дисплее
последовательно
и
по
часовои
стрелке
будет
показано
время
всех
запрограммированных
варочных
зон
,
начиная
с
левои
переднеи
.
Изменение
программирования
1.
Нажмите
несколько
раз
кнопку
до
тех
пор
,
пока
не
будет
показано
время
варочнои
зоны
,
которое
требуется
изменить
.
2.
При
помощи
кнопок
-
и
+
задаите
новую
продожительность
.
3.
Подтвердите
настроику
при
помощи
кнопки
.
Для
отмены
программирования
выполните
описанные
выше
операции
.
В
пункте
2
нажмите
кнопку
-
:
продолжительность
станет
постепенно
убывать
вплоть
до
выключения
0.
Программирование
будет
обнулено
,
и
дисплеи
выидет
из
режима
программирования
.
Таймер
Варочная
панель
должна
быть
включена
.
Таимер
служит
для
настроики
продолжительности
приготовления
вплоть
до
99
минут
.
1.
Нажмите
кнопку
программирования
до
тех
пор
,
пока
не
загорится
индикатор
таимера
.
2.
Настроите
нужную
продолжительность
приготовления
при
помощи
кнопок
-
и
+
.
3.
Подтвердите
настроику
при
помощи
кнопки
.
Обратныи
отсчет
таимера
начинается
сразу
же
.
По
истечении
заданного
времени
включится
звуковои
сигнал
(
на
1
минуту
).
Блокировка
управлений
В
процессе
функционирования
варочнои
панели
можно
заблокировать
ее
управления
во
избежание
случаиного
изменения
настроек
(
дети
,
в
процессе
уборки
и
т
.
д
.).
При
помощи
кнопки
управления
блокируются
,
и
индикатор
над
этои
кнопкои
загорается
.
Для
разблокировки
управлении
(
напр
.,
для
прерывания
приготовления
)
необходимо
:
нажать
кнопку
на
несколько
секунд
,
индикатор
погаснет
,
и
управления
разблокируются
.
Выключение
варочной
панели
При
нажатии
кнопки
изделие
выключается
,
не
обращайте
внимание
на
сенсор
наличия
кастрюль
.
Если
управления
варочнои
панели
были
заблокированы
,
они
останутся
заблокированными
также
после
повторого
включения
варочнои
панели
.
Для
повторого
включения
варочнои
панели
необходимо
сначала
разблокировать
управления
.
Режим
«demo»
Можно
задать
демонстрационныи
режим
,
в
котором
панель
управлении
работает
как
обычно
(
включая
кнопки
программирования
),
но
нагревательные
элементы
не
включаются
.
Для
перехода
в
режим
«
демо
»
варочная
панель
должна
быть
включена
,
а
все
варочные
зоны
выключены
:
•
Нажмите
и
держите
одновременно
нажатыми
кнопки
+
и
-
в
течение
6
секунд
.
По
истечении
6
секунд
индикатор
ON/OFF
и
индикатор
БЛОКИРОВКА
УПРАВЛЕНИИ
замигают
на
одну
секунду
.
Отпустите
кнопки
+
и
-
и
нажмите
кнопку
;
•
на
дисплее
появится
надпись
DE
и
MO,
и
варочная
панель
выключится
.
•
при
последующем
включении
варочная
панель
включается
в
режиме
“demo”.
Для
отмены
этого
режима
выполните
операции
в
описанном
выше
порядке
.
На
дисплее
появится
надпись
DE
и
OF,
и
варочная
панель
выключится
.
При
последующем
включении
варочная
панель
включается
в
80
RS
рабочем
режиме
.
Практические
советы
по
эксплуатации
изделия
!
Используите
посуду
из
материала
,
подходящего
для
индукционного
нагревания
(
ферромагнитныи
материал
).
Рекомендуется
использовать
посуду
из
:
чугуна
,
эмалированнои
стали
или
специальнои
стали
для
индукционного
нагревания
.
Для
проверки
пригодности
посуды
достаточно
использовать
магнит
.
Кроме
того
для
больше
эффективности
варочнои
панели
следует
:
•
Использовать
посуду
с
плоским
толстым
дном
,
идеально
прилегающим
к
зоне
нагрева
;
•
Использовать
посуду
с
дном
такого
диаметра
,
чтобы
полностью
закрыть
варочную
зону
для
оптимального
использования
всего
выделяемого
тепла
.
•
Проверить
,
чтобы
дно
используемои
посуды
было
всегда
совершенно
сухим
и
чистым
для
идеального
прилегания
к
варочнои
зоне
и
для
долгого
срока
службы
как
варочнои
панели
,
так
и
самои
посуды
.
•
Не
следует
использовать
на
даннои
варочнои
панели
посуду
,
использованную
на
газовых
конфорках
.
концентрация
тепла
на
газовых
конфорках
может
деформировать
дно
посуды
и
нарушить
прилегание
к
варочнои
зоне
;
Защитные
устройства
Сенсор
наличия
посуды
Каждая
варочная
зона
укомплектована
сенсором
наличия
посуды
.
Конфорка
выделяет
тепло
только
при
наличии
на
неи
посуды
с
размерами
,
соответствующими
даннои
конфорке
.
Мигающии
индикатор
может
означать
:
•
неподходящая
посуда
•
посуда
неподходящего
диаметра
•
посуда
снята
с
варочной
зоны
Перегрев
В
случае
перегрева
электронных
комплектующих
варочная
панель
автоматически
отключается
,
и
на
дисплее
появляется
F
с
мигающим
кодом
.
Это
сообщение
пропадает
,
и
варочная
панель
возвращается
в
рабочии
режим
,
когда
температура
опускается
до
допустимого
уровня
.
Предохранительный
выключатель
Изделие
оснащено
предохранительным
выключателем
,
автоматически
отключающим
варочные
зоны
по
истечении
времени
функционирования
данного
уровня
мощности
.
В
процессе
аварииного
отключения
на
дисплее
появляется
«
0
».
Пример
:
задняя
правая
варочная
зона
настроена
на
5,
передняя
левая
варочная
зона
настроена
на
2.
Задняя
правая
варочная
зона
отключается
через
5
часа
работы
,
передняя
левая
через
8
часов
.
Уровень мощности
1
2
3
4
5
6
7
8
9
Макс. кол-во часов функционирования
9
8
7
6
5
4
3
2
1
Звуковая
сигнализация
Некоторые
неисправности
такие
как
:
•
какои
-
либо
предмет
(
посуда
,
столовыи
прибор
и
т
.
д
.)
находится
в
зоне
управлении
более
10
секунд
.
•
утчека
жидкости
на
зону
управлении
;
•
при
длительном
нажатии
на
кнопку
может
включиться
звуковои
сигнал
.
Устраните
причину
неисправности
для
гашения
звуковои
сигнализации
.
Если
причина
неисправности
не
будет
устранена
,
звуковои
сигнал
не
гасится
,
и
варочная
панель
выключается
.

