Jotul I570: 3.0 Установка
3.0 Установка: Jotul I570
70
Дрова
должны
быть
следующего
размера
.
Щепа
•
Длина
:
прибл
. 30
см
•
Диаметр
: 2-5
см
•
Количество
для
одной
закладки
: 6-8
штук
Дрова
(
поленья
)
•
Рекомендуемая
длина
: 30-50
см
•
Диаметр
:
прибл
. 12-15
см
•
Периодичность
добавления
топлива
:
прибл
.
каждые
65
минут
•
Вес
одной
закладки
: 4,3
кг
(
для
получения
номинальной
теплоотдачи
)
•
Количество
поленьев
для
одной
закладки
: 4
шт
.
Номинальная
теплоотдача
достигается
,
когда
регулятор
подачи
воздуха
на
розжиг
открыт
прибл
.
на
30 %
(
рис
. 12
B)
,
а
верхний
-
на
60%
(
рис
. 12
А
)
.
3.0 Установка
3.1
Пол
Фундамент
Необходимо
убедиться
,
что
фундамент
рассчитан
на
установку
камина
.
Для
уточнения
допустимого
веса
обратитесь
к
п
.
2.0 «
Технические
данные
»
.
Требования
к
защите
деревянного
пола
под
топкой
К
топке
Jøtul I 570
снизу
прикреплен
теплозащитный
экран
,
который
предохраняет
пол
от
теплового
излучения
.
Поэтому
продукт
можно
установить
на
деревянный
пол
,
изолированный
только
металлическим
листом
или
другим
подходящим
негорючим
материалом
.
Рекомендуемая
минимальная
толщина
материала
0,9
мм
.
Защитный
лист
должен
закрывать
всю
поверхность
пола
под
каминной
облицовкой
.
Во
время
установки
рекомендуется
снять
пол
,
не
прикрепленный
к
фундаменту
(
так
называемый
плавающий
пол
).
Любое
напольное
покрытие
из
горючего
материала
,
такое
как
линолеум
,
ковры
и
т
.
д
.,
должно
быть
удалено
из
-
под
изоляционного
напольного
листа
.
Требования
к
защите
пола
из
горючего
материала
перед
камином
Пол
перед
камином
должен
быть
защищен
металлическим
листом
или
другим
негорючим
материалом
.
Рекомендованная
минимальная
толщина
материала
0,9
мм
.
Напольный
лист
должен
быть
выполнен
в
соответствии
с
федеральными
законами
и
нормативно
-
правовыми
актами
.
Обратитесь
в
местную
службу
государственного
пожарного
надзора
МЧС
России
для
выяснения
ограничений
и
требований
к
установке
.
3.2
Стены
Расстояние
до
стены
из
горючего
материала
,
защищенной
изоляцией
(
рис
. 1)
Требования
к
изоляции
•
негорючая
стена
толщиной
100
мм
+ 50
мм
базальтовая
вата
,
или
•
кальциум
-
силикатная
плита
толщиной
50
мм
+
фольгированная
с
одной
стороны
базальтовая
вата
rock wool
плотностью
120
кг
/
м
3
толщиной
50
мм
,
или
•
кальциум
-
силикатная
негорючая
плита
толщиной
2
х
50
мм
.
Расстояние
до
стены
из
горючего
материала
,
изолированной
противопожарной
перегородкой
(
рис
. 1)
Требования
к
противопожарной
перегородке
Минимальная
толщина
противопожарной
перегородки
100
мм
.
Она
должна
быть
сделана
из
кирпича
,
обычного
или
облегченного
бетона
.
К
противопожарной
перегородке
должна
прилегать
изоляция
толщиной
50
мм
.
Другие
материалы
также
могут
быть
использованы
при
условии
наличия
соответствующей
документации
.
Обратитесь
в
местную
службу
государственного
пожарного
надзора
МЧС
России
для
выяснения
ограничений
и
требований
к
установке
.
Расстояние
до
стены
из
негорючего
материала
(
рис
. 1)
Здесь
“
стена
из
негорючего
материала
” –
это
кирпичная
или
бетонная
стена
,
не
являющаяся
несущей
.
Требования
к
каминной
облицовке
Каминная
облицовка
должна
быть
выполнена
из
негорючего
материала
.
Вся
задняя
и
,
если
нужно
,
боковые
стенки
внутри
облицовки
должны
быть
защищены
изоляцией
/
противопожарными
перегородками
.
Если
облицовка
достигает
потолка
,
и
он
выполнен
из
горючего
материала
,
необходимо
установить
дополнительную
панель
(
фальшпотолок
)
над
куполом
облицовки
и
над
вентиляционными
отверстиями
,
чтобы
предотвратить
перегревание
потолка
.
Например
,
Вы
можете
использовать
минеральную
вату
толщиной
100
мм
на
металлическом
листе
толщиной
мин
. 0,9
мм
.
Между
потолком
и
облицовкой
должен
быть
зазор
для
свободной
циркуляции
воздуха
.
Внимание
!
Помните
,
в
установку
должен
быть
обеспечен
доступ
для
проверки
и
прочистки
.
Русский
71
Русский
рис
. 1
Зо
на
и
зл
уч
ен
ия
900032
-P01
Ø
80
715
204
451
740
368
740
640
396
1300
800
1170
800
1170
404
Jøtul I
570
X
Y
Про
дук
т
мин
. 1157 /
макс
. 1257
мин
. 1157 /
макс
. 1257
Горю
ча
я
ст
ена
Нег
орю
ча
я
ст
ена
Изоляция
*)
Внимание
! 368
мм
-
эт
о
минима
льное
рас
ст
ояние
от
основания
пе
чи
до
горю
чег
о
пола
.
Про
тивопо
ж
арна
я
перег
оро
дк
а
то
лщиной
100
мм
или
ка
льциум
силик
ат
то
лщиной
50
мм
.
Ра
сс
тояния
со
гласно
EN 13229
Минима
льный
зазор
50
мм
(
воздух
)
Ф
ольг
ированна
я
минера
льна
я
ва
та
50
мм
Про
тивопо
ж
арна
я
перег
оро
дк
а
Ф
ольг
ированна
я
минера
льна
я
ва
та
50 мм
Mинима
льный размер напольной плит
ы
X /
Y = с
ог
ласно национа
льным нормам и правилам.
Внешний
72
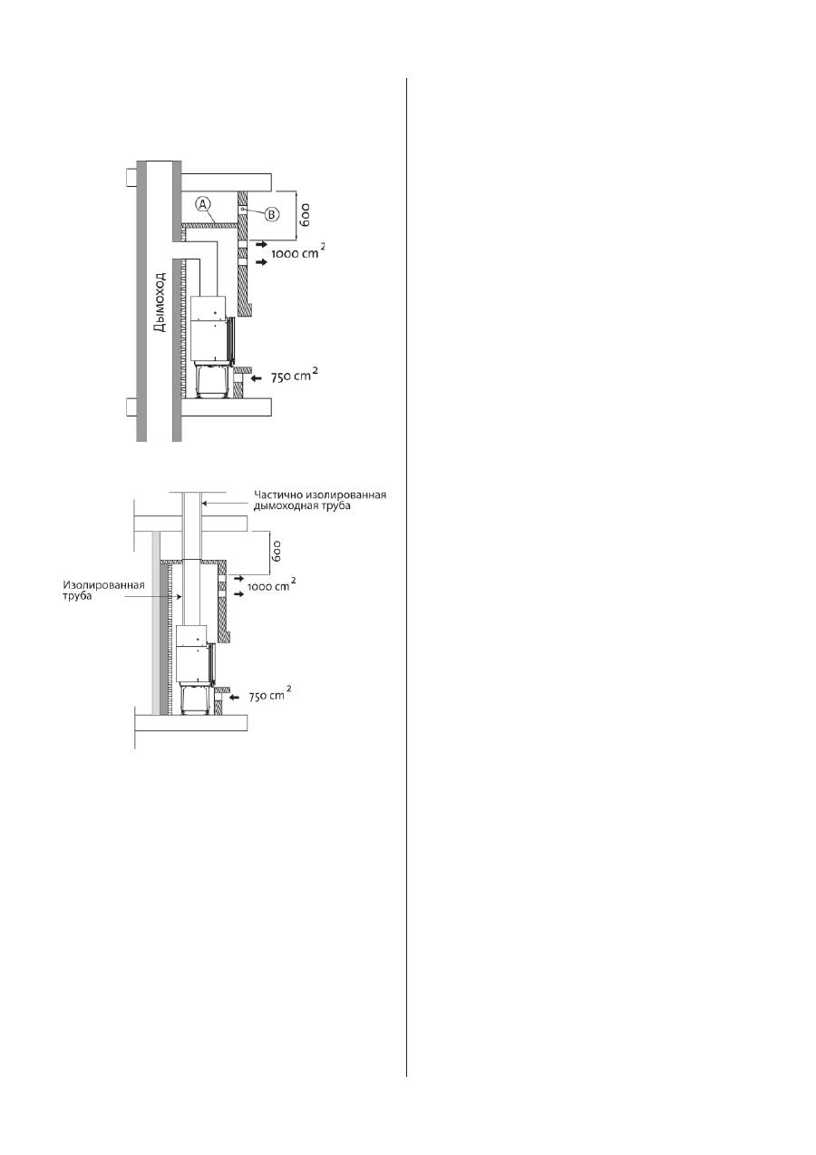
3.3
Подача
воздуха
Рис
. 2
Воздух
должен
свободно
циркулировать
между
вставкой
и
облицовкой
;
необходимо
также
обеспечить
беспрепятственный
доступ
воздуха
в
вентиляционные
отверстия
.
В
тексте
указан
минимальный
допустимый
размер
вентиляционных
отверстий
.
Требуемый
размер
вентиляционных
отверстий
при
установке
Jotul I 570 (
для
циркуляции
воздуха
):
нижнее
отверстие
-
минимум
750
см
2
;
верхнее
отверстие
-
минимум
1000
см
2
.
Это
мера
безопасности
,
которая
помогает
избежать
перегрева
внутри
облицовки
и
обеспечить
адекватную
подачу
тепла
в
помещение
.
Если
дом
плохо
вентилируется
,
в
помещение
должна
быть
обеспечена
дополнительная
подача
наружного
воздуха
,
например
,
посредством
устройства
для
подачи
наружного
воздуха
в
виде
воздуховода
,
который
подключается
снизу
топки
.
Этот
воздуховод
должен
быть
,
по
возможности
,
прямым
и
выполнен
из
негорючего
материала
.
На
воздуховод
необходимо
установить
заслонку
,
чтобы
предотвратить
доступ
холодного
воздуха
в
помещение
,
когда
камин
не
используется
.
3.4
Потолок
Расстояние
от
потолка
из
горючего
материала
до
верхнего
края
вентиляционного
отверстия
облицовки
должно
быть
не
менее
600
мм
.
Обязательно
оставьте
зазор
между
облицовкой
и
потолком
для
вентиляции
.
3.5
Дымоход
и
дымоходная
труба
•
Камин
может
быть
присоединен
к
дымоходу
или
дымоходной
трубе
,
которые
одобрены
к
использованию
с
каминами
,
работающими
на
твердом
топливе
,
с
температурой
дымовых
газов
,
которая
указана
в
п
.
2.0
«
Технические
данные
».
•
Сечение
дымохода
должно
подходить
камину
.
Чтобы
правильно
рассчитать
сечение
дымохода
обратитесь
к
п
.
2.0 «
Технические
данные
».
•
Дымоход
должен
быть
присоединен
в
соответствии
с
инструкцией
по
установке
поставщика
дымохода
.
•
Перед
выполнением
отверстия
в
дымоходе
необходимо
сделать
пробную
установку
камина
,
чтобы
правильно
определить
позицию
камина
и
отверстия
в
дымоходе
.
На
рис
. 1
показаны
минимальные
установочные
размеры
.
•
Убедитесь
,
что
дымоходная
труба
находится
под
восходящим
углом
к
дымоходу
.
•
При
заднем
подключении
к
дымоходу
,
используйте
колено
с
ревизией
.
Это
позволит
выполнять
его
периодическую
прочистку
.
•
Помните
о
том
,
что
соединения
должны
иметь
некоторую
гибкость
,
чтобы
предотвратить
движение
конструкции
,
которое
может
привести
к
появлению
трещин
.
•
Для
определения
рекомендованной
дымоходной
тяги
см
.
п
.
2.0 «
Технические
данные
»
.
Размеры
дымоходной
трубы
,
в
том
числе
ее
сечение
,
указаны
в
п
.
2.0 «
Технические
данные
»
.
Внимание
!
Минимальная
рекомендованная
длина
дымохода
считая
от
каминной
вставки
составляет
3,5
м
.
Если
тяга
слишком
сильная
,
Вы
можете
установить
шибер
для
ее
ограничения
.
Вес
камина
не
должен
воздействовать
на
дымоход
.
Камин
не
должен
препятствовать
движению
дымохода
и
не
должен
быть
к
нему
привязан
.
Русский
73
Русский
3.6
Подготовка
/
установка
Внимание
!
Перед
установкой
убедитесь
,
что
каминная
вставка
не
имеет
повреждений
.
Продукт
тяжелый
!
Вам
понадобится
помощь
при
сборке
и
монтаже
каминной
вставки
.
После
распаковки
каминной
вставки
выньте
из
нее
коробку
с
запчастями
.
Чтобы
облегчить
продукт
,
снимите
дверцу
.
Рис
. 3
А
1.
Откройте
дверцу
.
2.
Выньте
шпильки
из
дверных
петель
и
снимите
дверцы
.
Рис
. 3 B
Рис
. 3
С
3.
Чтобы
упростить
установку
снимите
внутренние
стенки
(
рис
. 3 B-G/F)
,
нижний
пламеотсекатель
(
рис
. 3
С
-
А
)
,
верхний
пламеотсекатель
(
рис
. C-B)
,
держатель
дров
(
рис
. 3 B-C)
,
плиту
основания
(
рис
. 3 B-D)
и
зольную
решетку
(
рис
. 3 B-E)
.
См
.
п
.
4.1 «
Замена
внутренних
стенок
,
верхнего
и
нихнего
пламеотсекателей
»
.
Присоединение
ножек
и
нижнего
теплозащитного
экрана
Рис
. 4
4.
Снимите
теплозащитный
экран
.
Для
этого
отвинтите
верхние
винты
по
бокам
каминной
вставки
(
рис
. 4 A)
,
ослабьте
нижние
винты
(
рис
. 4 B)
и
потяните
экран
вверх
.
5.
Осторожно
положите
вставку
на
заднюю
стенку
(
защитите
пол
при
помощи
деревянного
паллета
и
картонной
упаковки
)
.
74
Рис
. 5
6.
Соедините
4
ножки
(
рис
.5 A)
с
4
регулируемыми
узлами
крепления
(
рис
.5 C)
при
помощи
4
винтов
и
гаек
,
которые
находятся
в
пакете
в
коробке
с
запсчастями
.
Рис
. 6
7.
Затем
присоедините
ножки
к
вставке
четырьмя
потайными
винтами
М
6
х
25
мм
(B)
и
кольцевыми
прокладками
.
Винты
и
прокладки
уже
присоединены
к
основанию
вставки
.
Поверните
регулируемые
узлы
крепления
,
чтобы
получить
желаемую
высоту
.
8.
Поставьте
камеру
сгорания
в
вертикальное
положение
.
9.
Окончательно
отрегулируйте
ножки
во
время
пробной
установки
каминной
вставки
.
Рис
. 7
10.
Поместите
скобу
(
рис
. 7 A)
под
головки
винтов
,
чтобы
защитить
поверхность
пола
и
предотвратить
смещение
вставки
.
Окончательно
отрегулируйте
высоту
вставки
при
помощи
винтов
М
10
х
45
мм
(
рис
. 7
B)
,
прикрепленных
к
регулируемым
узлам
крепления
.
Рис
. 8
11.
Присоедините
теплозащитный
экран
к
регулируемым
узлам
крепления
(
рис
. 8A)
.
12.
Установите
все
детали
,
которые
были
удалены
для
облегчения
вставки
.
13.
Установите
на
место
теплозащитный
экран
,
который
был
снят
ранее
(
см
.
шаг
4)
.
Русский
75
Русский
Рис
. 9
14.
Отсоедините
верхний
теплозащитный
экран
(
рис
. 9 A)
сзади
.
Переверните
его
и
привинтите
винтами
,
которыми
он
крепился
.
Рис
. 10
Держатель
дров
Наденьте
держатель
дров
на
выступы
с
внутренней
стороны
передней
рамки
(
рис
. 10 A)
.
3.7
Сборка
/
установка
Присоединение
к
дымоходу
1.
Выполните
пробную
установку
каминной
вставки
,
не
делая
отверстия
в
дымоходе
.
На
рис
. 1
указаны
допустимые
расстояния
до
противопожарной
перегородки
.
2.
Вставка
может
быть
установлена
с
дымоходной
трубой
Ø200
мм
,
выполненной
из
стали
разрешенной
толщины
.
3.
Установите
вставку
в
окончательное
положение
.
Рис
. 11
4.
Закрепите
дымоходную
трубу
в
дымоходном
фланце
при
помощи
уплотняющего
шнура
.
Внимание
!
Соединения
должны
быть
абсолютно
герметичными
.
Просачивание
воздуха
может
привести
к
сбоям
в
работе
устройства
.
Table of contents
- 1.0 Forhold til myndighetene
- 3.0 Installasjon
- 4.0 Service
- 1.0 Forhold til myndighederne
- 3.0 Installation
- 4.0 Service
- 1.0 Kontroll och lagstiftning
- 3.0 Installation
- 4.0 Service
- 1.0 Viranomaisvaatimukset
- 3.0 Asennus
- 4.0 Huolto
- 1.0 Regulatory information
- 3.0 Installation
- 4.0 Servicing
- 1.0 Informations réglementaires
- 3.0 Installation
- 4.0 Entretien
- 1.0 Información normativa
- 3.0 Instalación
- 4.0 Mantenimiento
- 1.0 Informazioni sulle normative
- 3.0 Installazione
- 4.0 Manutenzione
- 1.0 Zgodność z przepisami
- 3.0 Montaż
- 4.0 Obsługa
- 1.0 Нормативная база
- 3.0 Установка
- 4.0 Текущий ремонот
- 1.0 Obecné informace
- 3.0 Montáž
- 4.0 Opravy

