Jotul I570: 1.0 Viranomaisvaatimukset
1.0 Viranomaisvaatimukset: Jotul I570
25
Sisällysluettelo
1.0 Viranomaisvaatimukset ................................. 25
2.0 Tekniset tiedot ................................................ 25
3.0 Asennus .......................................................... 27
4.0 Huolto .............................................................. 31
5.0 Lisävarusteet ................................................... 31
Yleiset käyttö- ja huolto-ohjeet
6.0 Turvallisuutta koskevat ohjeet
7.0 Polttopuiden
valinta
8.0 Käyttö
9.0 Huolto
10.0 Ongelmien selvittäminen
1.0 Viranomaisvaatimukset
Tulisija tulee asentaa kunkin maan lakien ja määräysten
mukaisesti.
Tuotetta asennettaessa on noudatettava paikallisia määräyksiä
myös niiltä osin kuin niissä viitataan kansallisiin ja eurooppalaisiin
standardeihin.
Tulisijan mukana toimitetaan pystytys-, asennus- ja käyttöohjeet.
Tulisija voidaan ottaa käyttöön vasta, kun sen on tarkastanut
valtuutettu tarkastaja.
Kuumuutta kestävästä materiaalista valmistettu tyyppikilpi on
sijoitettu tulisijan taakse. Siitä käyvät ilmi tuotteen tunniste- ja
dokumentaatiotiedot.
2.0 Tekniset tiedot
Materiaali: Valurauta
Pintakäsittely: Musta
maali
Poltettava materiaali:
Polttopuut
Polttopuiden max-pituus:
55 cm
Savuputkiliitäntä: Päältä
Savuputken mitat:
Ø 200 mm/314 cm
2
(poikkipinta-ala)
Paino n.:
220 kg
Lisävarusteet:
Luukun kehys, tuhkalaatikko
tulisijan
sisällä
Mitat, etäisyydet
Ks.
kuva 1
Tekniset tiedot (EN 13229)
Nimellislämmönantoteho: 14,0
kW
Savukaasun virtaus:
13,2 g/s
Suositeltava veto savupiipussa: 12 Pa
Hyötysuhde: 77
% teholla 14,0 kW
CO-päästö (13% O
2
)
0,12 %
Savukaasun lämpötila:
265 C
Käyttötapa: Jatkuva
Polttopuiden kulutus
Jøtul I
570
-mallin nimellislämmönantoteho on sen
hyötysuhteella 14,0 kW. Jøtul I
570
-mallin polttopuiden kulutus
nimellislämmönantoteholla: n. 4,0 kg/h. Polttopuiden koko:
Sytytysvaiheessa (pieniksi pilkotut puut):
Pituus:
n. 30 cm
Halkaisija:
2 - 5 cm
Määrä sytytyskertaa kohti:
6 - 8 kpl.
Polttopuut (halkaistut puut):
Suositeltava pituus:
30 - 50 cm
Halkaisija:
12 - 15 cm
Lisäysväli:
n. 65 minuutin välein
Määrä lisäyskertaa kohti:
4,3 kg (nimellisteho)
Kappalemäärä lisäyskertaa kohti:
4 kpl.
Nimellislämmönantoteho saavutetaan, kun sytytysventtiili on
n. 30% auki (kuva 12 B) ja ilmaventtiili 60 % auki (kuva 12 A) .
SUOMI
26
SUOMI
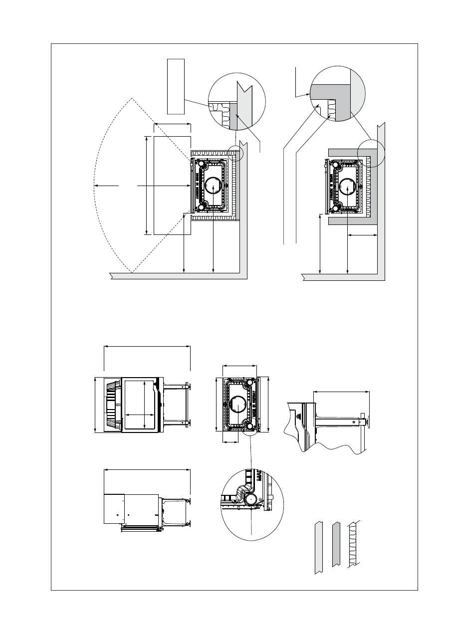
Ku
va
1
S
ät
ei
ly
al
ue
900032
-P01
Ulk
oinen
min
1157
/ max
1257
min
1157
/ max
1257
715
204
451
740
368
740
640
396
1300
800
1170
800
1170
404
Jøtul I
570
X
Y
Pala
vasta ma
teriaalista
valmistettu seinä
Palama
ton seinä
Eristys
*) H
U
O
M! 368 mm on
minimietäisyys tulisijasta
la
ttiaan
pala
vasta ma
teriaalista
EN
13229 -
standar
din muk
aiset
La
ttiale
vyn minimimita
t
X
/Y = K
ansallisten lakien ja
määr
äy
sten muk
aan.
50 mm kivivillaa
alumiinif
olion k
anssa
100mm palomuuri
taikk
a 50mm k
alsiumsilik
aa
ttile
vy
Min.
50 mm etäisyys (ilmaa)
50 mm kivivillaa alumiinif
olion k
anssa
Palomuuri
80
mm
Table of contents
- 1.0 Forhold til myndighetene
- 3.0 Installasjon
- 4.0 Service
- 1.0 Forhold til myndighederne
- 3.0 Installation
- 4.0 Service
- 1.0 Kontroll och lagstiftning
- 3.0 Installation
- 4.0 Service
- 1.0 Viranomaisvaatimukset
- 3.0 Asennus
- 4.0 Huolto
- 1.0 Regulatory information
- 3.0 Installation
- 4.0 Servicing
- 1.0 Informations réglementaires
- 3.0 Installation
- 4.0 Entretien
- 1.0 Información normativa
- 3.0 Instalación
- 4.0 Mantenimiento
- 1.0 Informazioni sulle normative
- 3.0 Installazione
- 4.0 Manutenzione
- 1.0 Zgodność z przepisami
- 3.0 Montaż
- 4.0 Obsługa
- 1.0 Нормативная база
- 3.0 Установка
- 4.0 Текущий ремонот
- 1.0 Obecné informace
- 3.0 Montáž
- 4.0 Opravy

