Hotpoint-Ariston kio 633 t z – page 3
Manual for Hotpoint-Ariston kio 633 t z

Conselhos práticos para a cozedura
PT
41
Cozedura à pressão
Frituras
ª
Panela de pressão
Cozedura em
fogo altíssimo
•
Assado Ebulição
•
Crêpe Cozedura em fogo alto e doiramento
(Assados, Bifes, Escalopes, Filés de peixe,
Cozedura
Ovos fritos)
em fogo alto
¶
¶
Adensamento rápido (molhos líquidos)
Água fervente (Massas, Arroz, Verduras)
Leite
§
§
Adensamento lento (molhos consistentes)
S
Cozedura em fogo médioCozedura em fogo
S
Cozedura em banho-maria Cozedura Panela de pressão após o síbilo
¢
¢
£
Cozedura em fogo brando
brando
Aquecimento dos alimentos
(estufados)
™
™
Caldo de chocolate Manter o alimento quente
brando
fogo muito
Cozedura em
¡

Precauções e conselhos
! Este aparelho foi projectado e fabricado em
• Não realize limpeza nem manutenção sem antes ter
PT
conformidade com as normas internacionais de
desligado a ficha da rede eléctrica.
segurança. Estas advertências são fornecidas por
• Não é previsto que este aparelho seja utilizado
razões de segurança e devem ser lidas com atenção.
por pessoas (incluso crianças) com reduzidas
capacidades físicas, sensoriais ou mentais,
Este aparelho é em conformidade com as
por pessoas inexperientes ou que não tenham
seguintes Directivas da Comunidade Europeia:
familiaridade com o produto, a não ser que seja
vigiadas por uma pessoa responsável pela sua
-2006/95/CEE de 12.12.06 (Baixa Tensão) e
segurança ou que tenham recebido instruções
posteriores modificações
preliminares sobre o uso do aparelho.
- 2004/108/CEE de 15/12/04 (Compatibilidade
• Advertência para os portadores de pacemaker ou
Electromagnética) e posteriores modificações
outros dispositivos médicos implantáveis activos:
- 93/68/CEE de 22/07/93 e posteriores modificações.
O plano de cozedura é conforme a todas as
- 1275/2008 stand-by/off mode.
normativas em vigor em matéria de interferências
electromagnéticas.
Este produto responde portanto perfeitamente a
Segurança geral
todos os requisitos de lei (directivas 89/336/CEE).
Foi projectado de modo que não crie interferências
!Controlar que a tomada de ar através da grelha do
a outras aparelhagens eléctricas utilizadas, desde
ventilador não esteja obstruída. O plano de encaixar,
que as mesmas também sejam conformes às
de facto, necessita de uma correcta ventilação para o
directivas acima citadas.
arrefecimento dos componentes electrónicos.
O plano de cozedura por indução gera campos
! É desaconselhável instalar um plano de cozedura
electromagnéticos de curto alcance.
de indução em cima de uma geladeira sob uma
Para evitar qualquer risco de interferências entre
banca (calor) ou em cima de uma máquina de lavar
o plano de cozedura e o pacemaker, este último
(vibrações). O espaço necessário para a ventilação
deverá ser realizado em conformidade com as
dos elementos electrónicos seria insuficiente.
normativas em vigor.
• Este aparelho foi concebido para utilização de tipo
Em relação a isto, podemos garantir unicamente a
não profissional no âmbito de moradas.
conformidade do nosso produto. Para informações
• Este aparelho não deve ser instalado ao ar livre,
sobre a conformidade ou eventuais problemas de
mesmo num sítio protegido, porque é muito
incompatibilidade, contacte o seu médico ou o
perigoso deixá-lo exposto a chuva e temporais.
fabricante do pacemaker.
• Não toque na máquina se estiver descalço, ou se as
• Não permita que as crianças brinquem com o
suas mãos ou pés estiverem molhados ou húmidos.
aparelho.
• Este aparelho deve ser empregado para cozer
• Não apoie objectos metálicos (facas, colheres,
alimentos, somente por pessoas adultas e segundo
tampas, etc.) sobre o plano porque podem ficar
as instruções apresentadas neste folheto. Não
quentes.
utilize o plano como superfície de apoio ou como
• O aparelho não é destinado a ser colocado em
tábua de cortar.
funcionamento por meio de um temporizador
• A placa de vitrocerâmica é resistente às batidas
externo ou por um sistema de comando à
mecânicas, entretanto pode rachar-se (ou
distância separado.
eventualmente partir-se) se for batida com um
objecto pontiagudo, como um utensílio. Nestes
casos, desligue imediatamente o aparelho da rede
de alimentação e contacte a assistência técnica.
• Evite que o cabo de alimentação de outros
Eliminação
electrodomésticos encoste-se em partes quentes do
• Eliminação do material de embalagem: obedeça
plano de cozedura.
as regras locais, de maneira que as embalagens
• Não se esqueça que a temperatura das zonas de
possam ser reutilizadas.
cozedura permanece muito alta pelo menos trinta
• A directiva Europeia 2002/96/CE relativa aos
minutos depois de apagadas. O calor resíduo é
resíduos de equipamentos eléctricos e electrónicos
sinalizado também por um indicador (veja Início e
(REEE) prevê que os electrodomésticos não devem
utilização).
ser eliminados no normal fluxo dos resíduos sólidos
• Mantenha a devida distância da placa quaisquer
urbanos. Os aparelhos não mais utilizados devem
objectos que podem se derreter, por exemplo,
ser recolhidos separadamente para optimizar a taxa
objectos de plástico, de alumínio ou produtos com
de recuperação e reciclagem dos materiais que os
um alto conteúdo de açúcar. Preste muita atenção
compõem e impedir potenciais danos à saúde e
com as embalagens e as películas de plástico ou
ao meio ambiente. O símbolo da lixeira cancelada
alumínio: se deixá-los sobre as superfícies enquanto
está indicado em todos os produtos para lembrar o
ainda estiverem quentes ou mornas, podem causar
dever de colecta selectiva.
um dano grave à placa.
Para maiores informações sobre a correcta
• Certifique-se que as pegas das panelas fiquem
eliminação dos electrodomésticos, os proprietários
sempre viradas para o lado interno do plano de
poderão contactar o serviço de colecta público ou
cozedura para evitar batidas acidentais.
os revendedores.
• Não puxe pelo cabo para desligar a ficha da
tomada eléctrica, pegue pela ficha.
42

Manutenção e cuidados
Desligar a corrente eléctrica
Se for derramada água, enxugue-a rapidamente com
PT
Antes de realizar qualquer operação, desligue o
cuidado.
aparelho da alimentação eléctrica.
! Alguns planos de cozedura tem uma moldura de
Limpeza do aparelho
alumínio parecida com o aço inoxidável. Não utilize
! Evite o emprego de detergentes abrasivos ou
produtos para a limpeza e o desengorduramento não
corrosivos, tais como sprays para churrasqueiras
idóneos para o alumínio.
e fornos, tira-manchas e produtos contra ferrugem,
detergentes em pó e esponjas com superfície
Desmontar o plano
abrasiva: podem arranhar irremediavelmente a
superfície.
Caso seja necessário desmontar o plano de cozedura:
! Nunca utilize equipamento de limpeza a vapor ou de
1. remova os parafusos que fixam as molas de
alta pressão para limpar a aparelhagem.
centragem nos lados;
2. solte os parafusos dos ganchos de fixação nos
• Para a manutenção ordinária, é suficiente lavar o
ângulos;
plano com uma esponja húmida e, em seguida,
3. extraia o plano de cozedura do vão do móvel.
enxugar com papel absorvente de cozinha.
• Se o plano estiver muito sujo, esfregue com um
! Recomendamos que se evite tentar o acesso aos
produto específico para limpeza de superfícies em
mecanismos internos para tentar uma reparação. Em
vidro cerâmica *, enxagúe e enxugue.
caso de avaria, contactar a Assistência técnica.
• Para tirar as acumulações de sujidade maiores, use
uma espátula apropriada. Intervenha assim que
Descrição técnica dos modelos
possível, sem aguardar que o aparelho arrefeça,
para evitar que resíduos grudem. Podem ser
O sistema por indução é o processo de cozedura
obtidos excelentes resultados se usar uma esponja
mais rápido que existe. Ao contrário das chapas
especial de fios de aço inoxidável - específica para
tradicionais, não é a zona de cozedura que se aquece:
planos em vidro cerâmica- molhada de água e
o calor é gerado directamente no interior da panela,
sabão.
a qual deverá possuir necessariamente um fundo em
• No caso em que no plano de cozedura tenham-
material ferromagnético.
se acidentalmente fundidos objectos ou materiais
como plástico ou açúcar, remova-os imediatamente
Legenda:
com a espátula, até que a superfície esteja ainda
I. = zona de cozedura de indução simples
quente.
B = booster: a zona de cozedura pode ser super
• Depois de limpo, o plano poderá ser tratado
alimentada com 3.000 W.
com um produto específico para a manutenção
* = a potência máxima é limitada até que o booster
e a protecção: a película invisível deixada por
esteja activo na zona de cozedura posterior relativa
este produto protegerá a superfície se algo for
(veja Início e utilização).
derramado durante a cozedura. É recomendável
realizar estas operações com o aparelho morno ou
Planos de cozedura
KIO 633 T Z
frio.
Zonas de cozedura Potência (em W)
Traseiro esq.
I 1400 – B 2000* – 600 se Dia. Esq *
• Lembre-se sempre de enxaguar com água limpa e
Traseiro dir.
I 3000 – B 4000
enxugar o plano com cuidado: para não acontecer
Dianteiro esq.
I 2200 – B 3000* – 1600 se Tras. Esq*
de resíduos de produtos grudarem-se na sucessiva
Potência total
7600
cozedura.
Quadro em aço inoxidável (somente nos modelos
com moldura)
O aço inoxidável pode manchar-se por causa da alta
quantidade de calcário na água em contacto durante
muito tempo com o metal, ou por causa de produtos
de limpeza muito agressivos que contenham fósforo.
É aconselhável enxaguar com água abundante e
enxugar com cuidado, depois de ter limpado o plano.
43

Installation
! Bewahren Sie diese Bedienungsanleitung bitte sorgfältig
DE
auf, damit Sie sie jederzeit zu Rate ziehen können. Sorgen
Sie dafür, dass sie im Falle eines Verkaufs, eines Umzugs
oder einer Übergabe an einen anderen Benutzer das Gerät
min. 20 mm
stets begleitet, damit auch der Nachbesitzer die Möglichkeit
hat, darin nachschlagen zu können.
! Lesen Sie bitte die nachfolgenden Hinweise aufmerksam
5 mm
WÄRMEFACH
durch: sie liefern wichtige Informationen hinsichtlich der
Installation, des Gebrauchs und der Sicherheit.
min. 40 mm
Posizionamento
! Verpackungsmaterial ist kein Spielzeug für Kinder. Es ist
entsprechend den Vorschriften zur getrennten Müllsammlung
zu entsorgen (siehe Vorsichtsmaßregeln und Hinweise).
! Die Installation ist gemäß den vorliegenden Anweisungen
min. 20 mm
und von Fachpersonal durchzuführen. Jede unsachgemäße
Installation kann Menschen und Tiere gefährden oder
Sachschaden verursachen.
5 mm
HEIßLUFT
Einbau
Um eine einwandfreie Betriebsweise des Gerätes zu
gewährleisten, muss der Umbauschrank folgende
min. 40 mm
Eigenschaften aufweisen:
• Die Auflagefläche muss aus hitzebeständigem Material
beschaffen sein, um einer Temperatur von ca. 100°C
standzuhalten.
• Soll das Kochfeld über einem Backofen installiert werden,
muss letzterer mit einem Kühlsystem mit Zwangsbelüftung
ausgestattet sein.
• Von der Installation eines Kochfeldes über einem
Geschirrspüler wird abgeraten. Gegebenenfalls ist zur
Abdichtung ein Zwischenteil zwischen beiden Geräten zu
installieren.
• Je nach dem zu installierenden Kochfeld (siehe
Abbildungen) sind Arbeitsflächenausschnitte folgender
Abmessungen vorzusehen:
590
48
520
560 +/- 1
490 +/- 1
Belüftung
Zur ausreichenden Belüftung und zur Vermeidung
der Überhitzung der Flächen rund um das Gerät muss das
Kochfeld wie folgt positioniert werden:
• in einem Abstand von mindestens 40 mm von der dahinter
liegenden Wand;
• um einen Abstand von mindestens 20 mm zwischen
dem für den Einbau bestimmten Ausschnitt und dem
entsprechenden Unterschrank zu gewährleisten.
• Angrenzende Schränke, deren Höhe die der Arbeitsplatte
überschreiten, müssen einen Abstand vom Rand der
Kochmulde von mindestens 600 mm aufweisen.
44
FRONTSEITE DES
KOCHFELDES
AUFLAGEFLÄCHEAUFLAGEFLÄCHE
AUFLAGEFLÄCHE
30
40
KOCHFELD
UMGEDREHT

Befestigung
• 400V - 2+N ~ 50 Hz
DE
Das Kochfeld muss auf einer perfekt ebenen Stütz- bzw.
• 220-240V 3 ~ 50 Hz
Auflagefläche installiert werden.
• 400V 3 - N ~ 50 Hz
Durch unsachgemäße Befestigung hervorgerufene
• 400V - 2+2N ~ 50 Hz
Verformungen könnten die Eigenschaften und Leistungen
Trennen Sie die Drähte und schließen Sie sie gemäß
des Kochfeldes beeinträchtigen.
nachfolgender Tabelle und Zeichnungen an:
Die Länge der Regelschrauben der Befestigungsklammern
wird vor Montage derselben eingestellt, und zwar je nach der
Stärke der Auflagefläche:
• 30 mm - Schraube 17.5 mm;
• 40 mm - Schraube 7.5 mm.
Verfahren Sie zur Befestigung wie folgt:
1. Schrauben Sie die 4 Zentrierungsfedern mittels der vier
kurzen, stumpfen Schrauben in die in der Mitte einer jeden
Kochfeldseite befindlichen Lochbohrungen.
2. Setzen Sie das Kochfeld durch leichtes Andrücken
des gesamten umlaufenden Randes mittig in den
Möbelausschnitt ein, und zwar so, dass es vorschriftsmäßig
auf der gesamten Auflagefläche aufstützt.
3. Für Kochfelder mit Seitenprofilen: Stecken Sie nach
Einsatz des Kochfeldes in den Möbelausschnitt die 4
Befestigungshaken (ein jeder mit seinem Stift) in den
umlaufenden unteren Rand des Kochfeldes, und schrauben
Sie diese mittels der vier langen, spitzen Schrauben fest, bis
das Glas an der Auflagefläche anhaftet.
! Die Schrauben der Zentrierungsfedern müssen unbedingt
zugänglich sein.
! Gemäß den Sicherheitsvorschriften muss nach erfolgtem
Einbau die Möglichkeit einer Berührung mit Strom führenden
Teilen ausgeschlossen sein.
! Alle zum Schutz dienenden Teile müssen so befestigt
werden, dass ein Entfernen derselben ohne Zuhilfenahme
eines Werkzeugs nicht möglich ist.
Elektroanschluss
! Bei der Installation des Kochfeldes und der eines
eventuellen Einbaubackofens müssen sämtliche
Elektroanschlüsse getrennt vorgenommen werden, und dies
nicht nur aus Sicherheitsgründen, sondern auch um den
Backofen, falls nötig, leichter herausziehen zu können.
Einphasenanschluss
Das Kochfeld ist mit einem bereits angeschlossenen
Netzkabel ausgestattet und ist für einen Einphasenanschluss
voreingestellt. Schließen Sie die Drähte gemäß nachfolgender
Tabelle und Zeichnungen an:
Netzspannung
Elektrokabel Anschluss der Drähte
und -frequenz
: gelb/grün;
220-240V 1+N ~
N
: die 2 blauen Drähte zusammen
50 Hz
L
: braun zusammen mit schwarz
Andere Anschlussarten
Sollte die Elektroanlage einer der nachfolgenden
Eigenschaften entsprechen:
Netzspannung und -frequenz
45
Netzspannung
Elektrokabel Anschluss der Drähte
und -frequenz
400V - 2+N ~
50 Hz
: gelb/grün;
220-240V 3 ~
N: die 2 blauen
50 Hz
Drähte zusammen
L1: schwarz
400V 3-N ~
50 Hz
L2: braun
: gelb/grün;
400V - 2+2N ~
N1: blau
50 Hz
N2: blau
L1: schwarz
L2: braun
Anschluss des Netzkabels an das Stromnetz
Wird das Gerät direkt an das Stromnetz angeschlossen, ist
zwischen Stromnetz und Gerät ein allpoliger Schalter mit
einer Mindestkontaktöffnung von 3 mm zwischenzuschalten.
! Der Installateur ist für den ordnungsgemäßen elektrischen
Anschluss sowie die Einhaltung der Sicherheitsvorschriften
verantwortlich.
Vor dem Anschluss stellen Sie bitte sicher, dass:
• die Netzsteckdose geerdet ist und den gesetzlichen
Bestimmungen entspricht;
• die Netzsteckdose für die auf dem Typenschild
(befindlich auf dem Gerät) angegebene maximale
Leistungsaufnahme des Gerätes ausgelegt ist;
• die Netzspannung im Bereich der auf dem Typenschild
angegebenen Werte liegt;
• die Steckdose mit dem Netzstecker kompatibel ist. Sollte
dies nicht der Fall sein, wechseln Sie bitte die Steckdose
oder den Netzstecker aus; verwenden Sie keine
Verlängerungen und Mehrfachsteckdosen.
! Netzkabel und Steckdose müssen bei installiertem Gerät
leicht zugänglich sein.
! Das Netzkabel darf nicht gebogen oder eingeklemmt
werden.
! Das Netzkabel muss regelmäßig kontrolliert werden und
darf nur durch autorisiertes Fachpersonal ausgetauscht
werden.
! Der Hersteller lehnt jede Verantwortung ab, falls diese
Vorschriften nicht eingehalten werden sollten.
! Entfernen oder ersetzten Sie unter keinen Umständen
das Netzkabel. Wird das Kabel entfernt oder ersetzt,
verfallen sowohl die Gewährleistung als auch das
CE-Zeichen. INDESIT übernimmt keine Verantwortung
für Unfälle oder Schäden, die durch das Entfernen/
Ersetzen des Original-Netzkabels verursacht
werden. Der Austausch darf ausschließlich mit einem
Originalersatzteil und durch autorisiertes Fachpersonal
INDESIT durchgeführt werden.

Inbetriebsetzung
und Gebrauch
! Der auf die Dichtungen aufgetragene Leim könnte
DE
Fettspuren auf dem Glas hinterlassen. Wir empfehlen Ihnen,
Einschalten der Kochzonen
diese vor Einsatz des Gerätes mit einem herkömmlichen
Reinigungsmittel (eine nicht scheuernde Poliercreme) zu
Eine jede Kochzone wird über eine Bedienungstaste
entfernen. Während der ersten Betriebsstunden könnte ein
und über einen Leistungsregler von 0 bis 9 eingeschaltet.
Geruch verbrannten Gummis zu vernehmen sein. Dies wird
• Um eine Kochzone einzuschalten, drücken Sie die
sich nach kurzer Zeit geben.
entsprechende Einschalttaste und stellen Sie die
gewünschte Leistung über die Leistungsregler von 0 bis 9
! Wird das Kochfeld an das Stromnetz angeschlossen, ertönt
ein.
nach einigen Sekunden ein kurzes akustisches Signal. Nur
daraufhin kann das Kochfeld eingeschaltet werden.
Ausschalten der Kochzonen
Normale Funktionsgeräusche des Kochfeldes:
Um eine Kochzone auszuschalten, wählen Sie diese zuerst
• Brummen: wird von der Vibration der Metallelemente des
Induktors und des Topfes verursacht, es entsteht ein für
über die entsprechende Bedienungstaste
und:
die Erhitzung notwendiges elektromagnetisches Feld; das
• Drücken Sie die Taste des Leistungsreglers 0:
Geräusch steigert sich mit der Leistungssteigerung des
Die Leistung sinkt sofort auf 0, die Kochzone wird
Induktors.
ausgeschaltet.
• Leichtes Pfeifgeräusch: entsteht, wenn ein leerer Topf
Booster-Funktion
auf die Kochzone gestellt wird; sobald Lebensmittel oder
Wasser hinzugefügt werden, verschwindet das Geräusch.
Zur Beschleunigung der Aufheizzeit kann zu einigen
• Prasseln: es ist ein Geräusch, das durch die Vibrationen
Booster
des Topfbodenmaterials entsteht, sobald es von den
Kochzonen durch Drücken der Taste
die
vom Magnetfeld (Induktion) verursachten Wirbelströmen
Boosterfunktion zugeschaltet werden. Die über der Taste
durchdrungen wird; die Geräuschstärke hängt vom
befindliche Kontrollleuchte schaltet sich ein. Diese Funktion
Material des Topfbodens ab und wird schwächer, je
steigert die Leistung auf 2000W oder 3000W, je nach Größe
größer der Topf ist.
der angesteuerten Kochzone.
• Starkes Pfeifgeräusch: es entsteht, wenn die beiden
Die Boosterfunktion schaltet sich automatisch nach 4 Minuten
Induktoren auf der gleichen Vertikalen bei maximaler
wieder aus. Solange die Booster-Funktion für eine der
Leistung funktionieren und/oder wenn auf dem größeren
Kochzonen aktiv ist, bleibt die Leistung der dahinter oder
der beiden die Booster-Funktion eingeschaltet ist und
davor liegenden Kochzone beschränkt (z.B.: Ist der Booster
der andere sich selbsttätig reguliert. Das Geräusch
der hinteren linken Kochzone aktiv, dann ist die Leistung
wird schwächer, sobald sich die Leistungsstufe des
der vorderen linken Kochzone herabgesetzt). Weitere
selbstregulierten Induktors senkt; es tritt besonders dann
Informationen finden Sie in der Technischen Beschreibung der
auf, wenn der Topfboden aus Schichten unterschiedlichen
jeweiligen Modelle.
Materials besteht.
Programmierung der Garzeit
• Gebläsegeräusch: zur richtigen Funktion des Kochfelds
und zum Schutz der Elektronikteile vor Überhitzung muss
! Sämtliche Kochzonen können gleichzeitig für eine Garzeit
ein Gebläse eingesetzt werden. Das Gebläse läuft auf der
von 1 – 99 Minuten programmiert werden.
maximalen Leistungsstufe wenn der große Induktor auf
1. Wählen Sie die Kochzone über die entsprechende
maximaler Leistungsstufe läuft oder wenn die Booster-
Wahltaste.
Funktion eingeschaltet ist; in allen anderen Situationen
2. Die Leistungsstufe der Kochzone einstellen.
funktioniert es bei mittlerer Leistungsstufe, je nach
erfasster Temperatur. Es ist darüber hinaus möglich, dass
3. Drücken Sie die Programmiertaste
. Die
das Gebläse auch bei ausgeschaltetem Kochfeld weiter
Kontrollleuchte der ausgewählten Zone blinkt.
läuft, wenn die erfasste Temperatur noch hoch ist.
4. Stellen Sie über die Tasten “-” und “+” die gewünschte
Die hier aufgeführten Geräusche hängen mit der
Garzeit ein.
Induktionstechnologie zusammen und sind nicht unbedingt
5. Bestätigen Sie die Einstellung durch Druck auf die Taste
ein Hinweis auf eine fehlerhafte Funktion.
, oder warten Sie 10 Sekunden für die automatische
Auswahl.
! Durch längeres Drücken der Tasten - und + können die
Die Zeitrechnung (rückwärtiger Ablauf) des Timers setzt
Leistungswerte und die Minuten des Timers im Schnelllauf
unverzüglich ein. Ist die programmierte Garzeit abgelaufen,
verändert werden.
ertönt (1 Minute lang) ein akustisches Signal und die
Einschalten des Kochfeldes
Kochzone wird automatisch ausgeschaltet.
Wiederholen Sie obige Schritte für jede Kochzone, die Sie
programmieren möchten.
Das Kochfeld wird über die Taste (für ca. 1 Sekunde
gedrückt halten) eingeschaltet.
46

Zu weiteren Einstellungen (z.B. um den Garvorgang zu
DE
Anzeige im Falle einer Mehrfachprogrammierung
unterbrechen) müssen die Schaltelemente erst wieder
Wurde die Betriebszeit einer oder mehrerer Kochzonen
freigegeben werden. Drücken Sie die Taste
für einige
vorprogrammiert, erscheint auf dem Display die
Sekunden; die Kontrollleuchte erlischt, die Schaltelemente
Restgarzeitanzeige der Kochzone, die für die niedrigste Zeit
werden freigegeben.
programmiert wurde; die entsprechende Kontrollleuchte
Ausschalten des Kochfeldes
blinkt, um anzuzeigen, um welche Kochzone es sich handelt.
Die Kontrollleuchten der übrigen programmierten Kochzonen
Durch Drücken der Taste schalten Sie das Gerät aus;
sind eingeschaltet.
verlassen Sie sich dabei nicht auf den Topferfassungsfühler.
Um die Restzeit der anderen programmierten Kochfelder
Sollten die Schaltelemente gesperrt worden sein, bleiben
diese auch bei Wiedereinschalten des Gerätes gesperrt.
anzuzeigen drücken Sie wiederholt die Taste
: es
Um das Kochfeld wieder einschalten zu können, müssen die
werden in Folge und im Uhrzeigersinn alle Zeiten des
Schaltelemente vorher entsperrt werden.
Kurzzeitweckers und der programmierten Kochfelder
angezeigt, beginnend mit dem Kochfeld vorne links.
„Demo“-Mode (Vorführmodus)
Änderung der Programmierung
Es besteht die Möglichkeit, einen Vorführmodus
einzustellen, bei dem das Bedienfeld (einschließlich der zur
1. Drücken Sie mehrmals die Taste
, bis die Zeit der
Programmierung erforderlichen Bedienelemente) normal
Kochzone, deren Programmierung Sie
funktioniert, die Heizelemente dagegen schalten sich nicht
ändern möchten, angezeigt wird.
ein. Zur Aktivierung eines Vorführmodus muss das Kochfeld
2. Stellen Sie mittels der Tasten - und + die
eingeschaltet und alle Platten ausgeschaltet sein.
neue Zeit ein.
• Halten Sie die Tasten + und - für 6 Sekunden gleichzeitig
3. Bestätigen Sie die Einstellung durch
gedrückt. Nach 6 Sekunden blinken die Kontrollleuchte
ON/OFF und die Kontrollleuchte SPERRE DER
Druck auf die Taste
.
SCHALTELEMENTE für eine Sekunde. Lassen Sie die
Möchten Sie eine Programmierung löschen, dann verfahren
Tasten + und – los und drücken Sie die Taste
;
Sie wie folgt: Bei Punkt 2 drücken Sie die Taste -: Die
• Auf dem Display erscheint abwechselnd die Anzeige DE
programmierte Zeit wird fortlaufend gesenkt bis zum
und MO und das Kochfeld schaltet sich aus:
Ausschalten bei 0. Die programmierte Zeit wird gelöscht und
• Wird das Kochfeld daraufhin wieder eingeschaltet,
das Display verlässt den Programmierungs-Modus.
befindet es sich im Vorführmodus (Demo-Mode)
Die Minutenuhr
Zum Verlassen dieses Modus verfahren Sie gemäß obiger
Das Kochfeld muss eingeschaltet sein.
Angaben. Auf dem Display erscheint abwechselnd die
Mit dem Minutenzähler kann ein Zeitraum bis 99 Minuten
Anzeige DE und OF und das Kochfeld schaltet sich aus: Wird
eingestellt werden.
das Kochfeld daraufhin wieder eingeschaltet, funktioniert es
wieder auf normale Weise.
1. Drücken Sie die Programmiertaste
bis sich die
Praktische Ratschläge zum Einsatz des
Gerätes
Kontrollleuchte des Minutenzählers einschaltet
.
2. Stellen Sie über die Tasten “-” und “+” die gewünschte Zeit
! Verwenden Sie Kochgeschirr, dessen Herstellungsmaterial
ein.
(magnetisiertes Material) sich für das Induktionssystem
3. Bestätigen Sie die Einstellung durch Druck auf die Taste
eignet. Wir empfehlen Ihnen Töpfe und Pfannen aus:
Gusseisen, emailliertem Stahl oder Spezialstahl für
.
Induktionskochzonen. Im Zweifelsfall hilft ein Magnet bei der
Die Zeitrechnung (rückwärtiger Ablauf) des Timers setzt
Prüfung der Verwendbarkeit eines Kochgeschirrs.
unverzüglich ein. Nach Ablauf der Zeit ertönt ein akustisches
Signal (über die Dauer von 1 Minute).
Sperre der Schaltelemente
Während der Betriebszeit des Kochfeldes können
die Schaltelemente gesperrt werden, um irrtümliche
Einstellungsänderungen zu verhindern (durch Kinder, bei der
Reinigung usw.). Drücken Sie die Taste
, dann werden
die Schaltelemente gesperrt. Die über der Taste befindliche
Kontrollleuchte leuchtet auf.
47
GEEIGNETES MATERIAL
UNGEEIGNETES MATERIAL
*
Gusseisen
Kupfer,
emaillierter Edelstahl
Aluminium, Glas, Ton,
magnetisierter Edelstahl
Porzellan, nicht magnetisierter Edelstahl
So gibt Ihnen Ihr Kochfeld sein Bestes:
• Verwenden Sie Kochgeschirr mit dickem und ebenem

Boden, um sicher zu sein, dass dieser perfekt auf der
Heizleistung
Beschränkung der Funktionsdauer in Stunden
DE
Kochzone aufliegt.
1
9
2
8
3
7
• Benutzen Sie stets nur Kochgeschirr, dessen
4
6
Durchmesser mit dem der Kochzone übereinstimmt, d.h.
5
5
dessen Boden die Kochzone ganz bedeckt, und somit die
gesamte Wärme genutzt wird.
6
4
7
3
8
2
9
• Achten Sie darauf, dass der Boden des Kochgeschirrs
1
trocken und sauber ist; nur so ist ein perfektes Aufliegen
Tonsignal
des Geschirrbodens sowie eine lange Lebensdauer von
Kochzone und Geschirr gewährleistet.
Einige Anomalien, wie:
• Gegenstände (Topf, Besteck usw.), die für länger als 10
• Vermeiden Sie den Einsatz von Kochgeschirr, das auch
Sekunden auf dem Schaltfeld liegen,
auf Gasflammen verwendet wird. Die äußerst hohe
• Flüssigkeit, die über das Schaltfeld gegossen wurde,
Hitzekonzentration der Gasbrenner könnte die Topfböden
• ein zu langer Druck auf eine Taste, können die
leicht verformen und demnach die korrekte Auflage
Ursache für ein Warnsignal sein. Um das Warnsignal
beeinträchtigen.
auszuschalten, muss der Grund der Störung beseitigt
werden. Wird die Störung nicht beseitigt, bleibt das
Sicherheitsvorrichtungen
Warnsignal eingeschaltet und das Kochfeld wird
Topferkennung
ausgeschaltet.
Jede Kochzone ist mit einer Topferkennungs-Vorrichtung
ausgerüstet. Die Kochzone bewirkt ein Erhitzen des
Topfbodens nur bei einer angemessenen, der Kochzone
entsprechenden Topfgröße. Das Blinken der Anzeigeleuchte
kann Folgendes signalisieren:
• ungeeignetes Kochgeschirr,
• ein zu geringer Topfdurchmesser,
• der Topf wurde abgenommen.
Überhitzung
Im Falle einer Überhitzung der elektronischen
Gerätekomponenten schaltet sich das Kochfeld automatisch
aus, auf dem Display erscheint die Anzeige
F gefolgt
von einer blinkenden Zahl. Diese Meldung erlischt, und
das Kochfeld kann wieder eingesetzt werden, sobald die
Temperatur auf einen akzeptablen Wert gesunken ist.
Sicherheitsautomatik
Das Gerät ist mit einer Sicherheitsautomatik ausgestattet, die
die Kochzone automatisch abschaltet, wenn die maximale
Betriebszeit auf einer gewissen Leistungsstufe erreicht wird.
Bei Auftreten eines solchen Sicherheitsintervalls erscheint auf
dem Display die Anzeige „0“.
Beispiel: Die hintere rechte Kochzone wird auf Leistungsstufe
5 eingestellt, die vordere linke dagegen auf 2. Die hintere
rechte Kochzone wird nach 5 Std. Betriebszeit ausgeschaltet,
die vordere linke erst nach 8 Stunden.
48

Praktische Back-/Brathinweise
DE
Schnellgaren
Fritieren
ª
Schnellkochtopf
Sehr stark garenStark garenSanftgarenSehr sanft GarenExtrem
•
Grillen Kochen
•
Crêpes Stark garen und bräunen
(Braten, Koteletts, Schnitzel, Fischfilets,
Spiegeleier)
¶
¶
Schnell eindicken (flüssige Soßen)
Kochendes Wasser (Nudeln, Reis, Gemüse)
Milch
§
§
Langsam eindicken (dickflüssige Soßen)
S
S
Wasserbad Garen im Schnellkochtopf nach dem Dampfaustritt
¢
¢
£
Sehr sanft Garen Aufwärmen von Speisen
™
™
sanft
Garen
Schokoladensoße Warmhalten
¡
49

Vorsichtsmaßregeln
und Hinweise
!
Das Gerät wurde entsprechend den strengsten
• Ziehen Sie den Netzstecker nicht am Netzkabel aus der
internationalen Sicherheitsvorschriften entworfen
DE
Steckdose, sondern nur am Netzstecker selbst.
und gebaut. Nachstehende Hinweise werden aus
• Ziehen Sie vor der Reinigung oder vor
Sicherheitsgründen geliefert und sollten aufmerksam
Wartungsmaßnahmen stets den Netzstecker aus der
gelesen werden.
Steckdose.
• Das Gerät ist nicht zur Verwendung durch Personen
Dieses Gerät entspricht den folgenden EG-
(einschließlich Kinder) mit eingeschränkten körperlichen,
Richtlinien:
geistigen oder Wahrnehmungsfähigkeiten oder aber
ohne ausreichende Erfahrung und Produktkenntnis
- 2006/95/EWG vom 12.12.06 (Niederspannung) und
geeignet, sofern sie nicht durch eine für ihre Sicherheit
nachfolgenden Änderungen
verantwortliche Person beaufsichtigt werden oder zuvor
- 89/336/EWG vom 03.05.89 (elektromagnetische
Anleitungen zum Gerätegebrauch erhalten haben.
Verträglichkeit) und nachfolgenden Änderungen
• Hinweis für Herzschrittmacherträger oder Träger
-93/68/EWG vom 22.07.93 und nachfolgenden Änderungen.
anderer medizinischen Implantate:
- 1275/2008 stand-by/off mode.
Das Kochfeld entspricht allen geltenden Richtlinien in
Sachen elektromagnetischer Verträglichkeit.
Allgemeine Sicherheit
Dieses Erzeugnis erfüllt demnach sämtliche gesetzlichen
Anforderungen (Richtlinien 89/336/CEE). Es wurde so
!
Stellen Sie bitte sicher, dass das Belüftungsgitter des
konzipiert, dass keine Interferenzen mit anderen in
Gebläses niemals verstopft bzw. abgedeckt wird. Das
Einsatz befindlichen elektrischen Geräten entstehen
Einbaukochfeld erfordert eine korrekte Belüftung zur
können, es sei denn, letztere entsprechen nicht den
Kühlung der elektronischen Teile.
obigen Richtlinien.
!
Es wird davon abgeraten, ein Induktionskochfeld über
Das Induktions-Kochfeld erzeugt elektromagnetische
einem Untertisch-Kühlschrank (Wärmequelle) oder über
Felder im Nahbereich.
einer Waschmaschine (Vibrationen) zu installieren. Der zur
Um jegliche Gefahren durch Interferenzen zwischen
Belüftung der elektronischen Teile erforderliche Raum wäre
dem Kochfeld und dem Schrittmacher auszuschließen,
absolut unzureichend.
muss letzterer in Übereinstimmung mit den bestehenden
• Dieses Gerät ist für den nicht professionellen Einsatz im
Richtlinien hergestellt sein.
privaten Haushalt bestimmt.
In dieser Hinsicht können wir nur für die
• Das Gerät darf nicht im Freien aufgestellt werden,
Übereinstimmung unseres Erzeugnisses gerantieren.
auch nicht, wenn es sich um einen geschützten Platz
Für Informationen hinsichtlich der Konformität oder
handelt. Es ist hoch gefährlich, das Gerät Gewittern und
eventueller Unverträglichkeiten bitten wir Sie, sich an
Unwettern auszusetzen.
den behandelnden Arzt oder an die Herstellfirma des
• Berühren Sie das Gerät nicht mit nassen oder feuchten
Herzschrittmachers wenden zu wollen.
Händen oder Füßen und auch nicht, wenn Sie barfuß
• Kinder dürfen nicht mit dem Gerät spielen.
sind.
• Legen Sie bitte keine Metallgegenstände (Messer, Löffel,
• Das Gerät darf nur von Erwachsenen und gemäß den
Deckel usw.) auf das Kochfeld; sie könnten sehr heiß
Hinweisen der vorliegenden Bedienungsanleitung zur
werden.
Zubereitung von Lebensmitteln verwendet werden.
• Dieses Gerät kann nicht mit einem externen Timer
Verwenden Sie das Kochfeld nicht als Abstellfläche oder
oder einem getrennten Fernsteuerungssystem
als Schneidebrett.
betrieben werden.
• Das Glaskeramikkochfeld ist stoßfest; dennoch kann es
durch Stöße bzw. Aufprall von spitzen Gegenständen
springen (oder sogar zerbrechen), Schalten Sie das
Kochfeld in einem solchen Fall vom Stromnetz und
Entsorgung
wenden Sie sich an die Kundendienststelle.
• Entsorgung des Verpackungsmaterials: Befolgen Sie
• Vermeiden Sie, dass das Netzkabel anderer
die lokalen Vorschriften; Verpackungsmaterial kann
Elektrogeräte in Kontakt mit heißen Kochfeldteilen
wiederverwertet werden.
gelangt.
• Die europäische Richtlinie 2002/96/EG über Elektro- und
• Bitte berücksichtigen Sie, dass die Kochzonen noch für
Elektronik-Altgeräte (WEEE) sieht vor, dass Haushaltsgeräte
ca. 30 Minuten nach dem Ausschalten sehr heiß bleiben.
nicht mit dem normalen Hausmüll entsorgt werden dürfen.
Die Restwärme wird auf der entsprechenden Anzeige
Die Altgeräte müssen getrennt gesammelt werden, um die
eingeblendet (siehe Inbetriebsetzung und Gebrauch).
Rückführung und das Recycling der Materialen zu optimieren,
• Halten Sie sämtliche Gegenstände, die schmelzen
aus denen die Geräte hergestellt sind, und um mögliche
könnten, wie Plastikteile oder Kunststoffe sowie
Belastungen der Gesundheit und der Umwelt zu verhindern.
Zucker oder stark zuckerhaltige Speisen von
Das Mülleimersymbol ist auf allen Produkten dargestellt,
dem Kochfeld fern. Achten Sie besonders auf
um an die Verpflichtung zur getrennten Abfallsammlung
Verpackungsmaterial, Frischhaltefolie und Alufolie:
zu erinnern. Für weitere Informationen zur korrekten
Wird derartiges Material auf den noch heißen oder
Entsorgung können sich die Besitzer von elektrischen
warmen Oberflächen belassen, können sie das
Haushaltsgeräten an die übergeordnete öffentliche
Kochfeld dauerhaft beschädigen.
Einrichtung oder an ihren Händler wenden.
• Stellen Sie Stieltöpfe und Pfannen immer mit nach
innen gerichteten Griffen auf die Kochstelle, um
jegliches Risiko durch unbeabsichtigtes Anstoßen
auszuschließen.
50

Reinigung und Pflege
!
Einige Kochfelder sind mit einem Aluminiumrahmen
Abschalten Ihres Gerätes vom Stromnetz
versehen, der Edelstahl sehr ähnlich ist. Verwenden
Vor jeder Reinigung und Pflege ist das Gerät vom
DE
Sie bitte keine Produkte zur Reinigung und Entfettung,
Stromnetz zu trennen.
die nicht für Aluminium geeignet sind.
Reinigung des Gerätes
Demontage des Kochfeldes
!
Der Einsatz von Scheuermitteln oder scharfen oder
Sollte sich die Abnahme des Kochfeldes als
chemischen Reinigungsmitteln wie Backofensprays,
erforderlich erweisen, verfahren Sie bitte wie folgt:
Fleckenentferner, Rostentfernungsmittel, Reiniger in
1. Schrauben Sie die Schrauben aus, die zur
Pulverform und Scheuerschwämme ist zu vermeiden:
Befestigung der seitlichen Zentrierungsfedern dienen;
diese können die Oberfläche des Kochfeldes dauerhaft
2. lockern Sie die Schrauben der Eck-
beschädigen.
Befestigungsbügel;
!
Verwenden Sie zur Reinigung des Kochfeldes keine
3. nehmen Sie das Kochfeld aus dem Möbelausschnitt
Dampf- oder Hochdruckreinigungsgeräte.
heraus.
• Zur täglichen Pflege genügt es, das Kochfeld mit
!
Wir empfehlen dringlich, Innenmechanismen nicht
einem feuchten Schwamm abzuwischen und mit
eigenhändig zu reparieren. Kontaktieren Sie bei
Küchenpapier abzutrocknen.
Störungen bitte den Kundendienst.
• Bei besonders starker Verschmutzung sollte
ein spezielles Reinigungsmittel für Glaskeramik
Technische Beschreibung der Modelle
verwendet werden; anschließend ist das Kochfeld
mit Wasser abzuspülen und sorgfältig abzutrocknen.
Kochen mit Induktion ist die schnellste und
• Starke Verschmutzungen lassen sich mit einem
zeitsparendste Art des Kochens. Im Gegensatz zu
Schaber (Klingenschaber) entfernen. Sie sollten
herkömmlichen Kochplatten, heizt sich nicht die
so schnell wie möglich - und nicht erst nach
Kochzone auf: die Hitze wird direkt im Innern des
Abkühlen des Kochfeldes - entfernt werden, um
Topfes entwickelt, der hierzu notwendigerweise über
zu vermeiden, dass sich die Verschmutzungen
einen Boden aus magnetisiertem Material verfügen
festsetzen. Gute Ergebnisse lassen sich auch mit
muss.
einem für Glaskeramik geeigneten Spezialschwamm
aus Edelstahlwolle und einer einfachen Spüllauge
Legende:
erzielen.
I = Einfache Induktions-Kochzone
• Auf dem Kochfeld versehentlich geschmolzene
B = Booster: Die Leistung dieser Kochzone kann bis
Alufolie, Plastikteile oder Kunststoffe, sowie
auf 3000 W erhöht werden.
Zuckerreste müssen umgehend mit einem Schaber
* = Die maximale Leistung wird begrenzt, solange
von der noch warmen Oberfläche entfernt werden.
die Boosterfunktion für die entsprechende
• Nach der Reinigung kann das Kochfeld mit
hintere Kochzone eingeschaltet bleibt (siehe
einem Pflegeprodukt nachbehandelt werden: Der
Inbetriebsetzung und Gebrauch).
unsichtbare Schutzfilm, den ein solches Produkt
hinterlässt, schützt die Oberfläche vor eventuell
Kochfelder KIO 633 T Z
überkochenden Speisen. Es empfiehlt sich, diese
Kochzonen Leistung (W)
Nachbehandlung bei lauwarmem oder abgekühltem
Hinten links I 1400 – B 2000* – 600 wenn Vorne Links*
Gerät vorzunehmen.
Hinten rechts I 3000 – B 4000
• Achten Sie darauf, das Kochfeld nach der
Vorne links I 2200 – B 3000* – 1600 wenn Hinten Links *
Reinigung stets mit klarem Wasser abzuspülen
Gesamtleistung 7600
und anschließend abzutrocknen. Rückstände der
Reinigungsmittel könnten sich nämlich bei der
nächsten Benutzung des Kochfeldes ihrerseits
festsetzen.
Edelstahlrahmen (nur bei mit Rahmen versehenen
Modellen)
Auf den Edelstahlteilen könnten Flecken zurückbleiben,
sollte stark kalkhaltiges Wasser oder phosphorhaltiges
Spülmittel für längere Zeit darauf vorhanden sein.
Es ist ratsam, das Kochfeld nach der Reinigung gut
nachzuspülen und abzutrocknen. Wird versehentlich
Wasser darauf verschüttet, muss es sofort sorgsam
getrocknet werden.
51

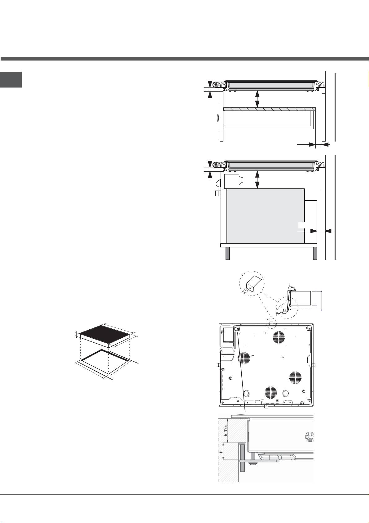
Installazione
! È importante conservare questo libretto per poterlo
IT
consultare in ogni momento. In caso di vendita, di
cessione o di trasloco, assicurarsi che resti insieme
all’apparecchio per informare il nuovo proprietario sul
min. 20 mm
funzionamento e sui relativi avvertimenti.
! Leggere attentamente le istruzioni: ci sono importanti
informazioni sull’installazione, sull’uso e sulla sicurezza.
5 mm
CASSETTO
Posizionamento
min. 40 mm
! Gli imballaggi non sono giocattoli per bambini e vanno
eliminati secondo le norme per la raccolta differenziata
(vedi Precauzioni e consigli).
! L’installazione va effettuata secondo queste istruzioni e
da personale professionalmente qualificato. Una errata
min. 20 mm
installazione può causare danni a persone, animali o
cose.
5 mm
FORNO
Incasso
VENTILATO
Per garantire un buon funzionamento dell’apparecchio è
necessario che il mobile abbia le caratteristiche adatte:
min. 40 mm
• il piano d’appoggio deve essere di materiale
resistente al calore, a una temperatura di circa
100°C;
• se si desidera installare il piano cottura sopra un
forno, questo deve essere provvisto di un sistema di
raffreddamento a ventilazione forzata;
• evitare di installare il piano cottura sopra una
lavastoviglie: all’occorrenza frapporre un elemento
di separazione a tenuta stagna fra i due apparecchi;
• a seconda del piano cottura che si desidera
installare (vedi gure), il vano del mobile deve avere
le seguenti dimensioni:
590
48
520
560 +/- 1
490 +/- 1
Aerazione
Per consentire un’adeguata aerazione e per evitare
il surriscaldamento delle superfici attorno all’apparecchio,
il piano cottura deve essere posizionato:
• a una distanza minima di 40 mm dalla parete
retrostante;
• in modo da mantenere una distanza minima di 20 mm
fra il vano per l’incasso e il mobile sottostante.
• I mobili situati a fianco, la cui altezza superi quella
del piano di lavoro, debbono essere situati ad
almeno 600 mm dal bordo del piano stesso.
52
LATO ANTERIORE
DEL PIANO COTTURA
PIANO DI
APPOGGIO
30
40
PIANO COTTURA
ROVESCIATO

Fissaggio
Altri tipi di collegamento
L’installazione dell’apparecchio deve essere effettuata
IT
su un piano d’appoggio perfettamente piano.
Se l’impianto elettrico corrisponde a una delle seguenti
Le eventuali deformazioni provocate da un errato fissaggio
caratteristiche:
potrebbero alterare le caratteristiche e
Tensione tipo e frequenza di rete
le prestazioni del piano cottura.
• 400V - 2+N ~ 50 Hz
• 220-240V 3 ~ 50 Hz
La lunghezza della vite di regolazione dei ganci
• 400V 3 - N ~ 50 Hz
di fissaggio va impostata prima del loro montaggio,
• 400V - 2+2N ~ 50 Hz
in base allo spessore del piano d’appoggio:
• spessore di 30 mm: vite 23 mm;
Separare i cavi ed effettuare il collegamento dei fili in
• spessore di 40 mm: vite 13 mm.
accordo con la tabella e i disegni che seguono:
Per il fissaggio agire come segue:
Tensione tipo e
Cavo elettrico Collegamento fili
frequenza rete
1. Con le viti corte senza punta, avvitare le 4 molle di
400V - 2+N ~
centraggio nei fori posti al centro di ogni lato del piano;
50 Hz
: giallo/verde;
2. inserire il piano cottura nel vano del mobile, centrarlo
220-240V 3 ~
N: i 2 fili blu insieme
ed esercitare una adeguata pressione sull’intero perimetro
50 Hz
L1: nero
affinché il piano di cottura aderisca bene al piano
L2: marrone
400V 3-N ~
d’appoggio.
50 Hz
3. per i piani con profili laterali: dopo aver inserito il piano
: giallo/verde;
cottura nel mobile, inserire i 4 ganci di fissaggio (ognuno
con il suo perno) sul perimetro inferiore del piano cottura,
400V - 2+2N ~
N1: blu
avvitandoli con le viti lunghe con punta finché il vetro non
50 Hz
N2: blu
aderisce al piano d’appoggio.
L1: nero
L2: marrone
! È indispensabile che le viti delle molle di centraggio
rimangano accessibili.
Allacciamento del cavo di alimentazione alla rete
In caso di collegamento diretto alla rete è necessario
! In conformità alle norme di sicurezza, una volta
interporre tra l’apparecchio e la rete un interruttore
incassato l’apparecchio, non debbono essere possibili
onnipolare con apertura minima fra i contatti di 3 mm.
eventuali contatti con le parti elettriche.
! L’installatore è responsabile del corretto collegamento
elettrico e dell’osservanza delle norme di sicurezza.
! Tutte le parti che assicurano la protezione debbono
Prima di effettuare l’allacciamento accertarsi che:
essere fissate in modo tale da non poter essere tolte
• la presa abbia la messa a terra e sia a norma di legge;
senza l’aiuto di qualche utensile.
• la presa sia in grado di sopportare il carico massimo di
potenza della macchina, indicato nella
targhetta caratteristiche posta sull’apparecchio;
Collegamento elettrico
• la tensione di alimentazione sia compresa nei valori della
targhetta caratteristiche;
! L’allacciamento elettrico del piano cottura e quello di
• la presa sia compatibile con la spina dell’apparecchio.
un eventuale forno da incasso devono essere realizzati
In caso contrario sostituire la presa o la spina; non usare
separatamente, sia per ragioni di sicurezza elettrica sia per
prolunghe e multiple.
facilitare le operazioni di estrazione del forno.
! Ad apparecchio installato, il cavo elettrico e la presa
della corrente devono essere facilmente raggiungibili.
Collegamento monofase
! Il cavo non deve subire piegature o compressioni.
! Il cavo deve essere controllato periodicamente e
Il piano è dotato di cavo di alimentazione già collegato
sostituito solo da tecnici autorizzati.
e predisposto per il collegamento monofase. Effettuare
! L’azienda declina ogni responsabilità qualora queste
l’allaccio dei fili in accordo con la tabella e i disegni che
norme non vengano rispettate.
seguono:
! Non rimuovere o sostituire per nessun motivo il cavo
di alimentazione. L’ eventuale rimozione o sostituzione
Tensione tipo e
Cavo elettrico Collegamento fili
fa’ decadere la garanzia e il marchio CE. INDESIT
frequenza rete
non si assume alcuna responsabilita’ per incidenti
: giallo/verde
220-240V 1+N ~
o danni derivanti dalla sostituzione/rimozione del
N
: i 2 fili blu insieme
50 Hz
cavo di alimentazione originale. E’ ammessa solo la
L
: marrone insieme al nero
sostituzione con un ricambio originale ed effettuata da
personale autorizzato INDESIT.
53

Avvio e utilizzo
!
La colla applicata sulle guarnizioni lascia alcune
!
La pressione prolungata dei tasti
-
e
+
consente
IT
tracce di grasso sul vetro. Prima di utilizzare
l’avanzamento veloce dei minuti del timer.
l’apparecchio, si raccomanda di eliminarle con un
prodotto specifico per la manutenzione non abrasivo.
Accensione del piano cottura
Durante le prime ore di funzionamento è possibile
L’accensione del piano cottura avviene tenendo
avvertire un odore di gomma, che comunque
premuto il tasto
per circa un secondo.
scomparirà presto.
Accensione delle zone di cottura
!
Quando il piano cottura viene collegato
Ciascuna zona di cottura viene azionata tramite un
elettricamente, dopo acuni secondi viene emesso un
breve segnale acustico. Soltanto a questo punto è
tasto di selezione
e un dispositivo di regolazione
possibile accendere il piano cottura.
della potenza composto dai tasti di selezione della
Rumori di normale funzionamento del piano
potenza da 0 a 9.
cottura:
• Per mettere in funzione una zona di cottura, premere
• Ronzio: è dovuto alla vibrazione degli elementi
il relativo tasto di comando e impostare la potenza
metallici di cui sono costituiti l’induttore e la
desiderata tramite i tasti di selezione della potenza
pentola e si genera per il campo elettromagnetico
da 0 a 9.
necessario per il riscaldamento; esso aumenta
all’aumentare del livello di potenza dell’induttore.
Funzione booster*
• Leggero fischio: si manifesta quando la pentola
Per accelerare i tempi di riscaldamento, su alcune
disposta sulla zona cottura è vuota; il rumore
zone di cottura è possibile attivare la funzione booster
scompare non appena si aggiungono alimenti o
Booster
premendo il tasto
. Si accende la spia posta sopra
acqua.
al tasto. Questa funzione sovralimenta la potenza a
• Crepitio: è un rumore prodotto dalle vibrazioni
2000W o 3000W a seconda della grandezza della zona
del materiale del fondo della pentola quando è
di cottura interessata.
attraversato dalle correnti parassite dovute al campo
Il booster si interrompe automaticamente dopo 4
elettromagnetico (induzione); può essere più o
minuti. Finché il booster di una delle zone di cottura
meno intenso a secondo del materiale del fondo
è attivo, la zona di cottura corrispondente anteriore
della pentola e si riduce se le dimensioni della
o posteriore avrà potenza limitata (es: se è attivo il
pentola aumentano.
booster nella piastra posteriore sinistra, si abbassa la
• Fischio intenso: si manifesta quando funzionano
potenza della piastra anteriore sinistra). Per ulteriori
contemporaneamente i due induttori sulla stessa
chirimenti vedere Descrizione tecnica dei modelli.
verticale alla massima potenza e/o su quello più
grande è inserita la funzione booster e l’altro è
Spegnimento delle zone di cottura
autoregolato. Il rumore si riduce non appena
Per spegnere una zona di cottura, selezionarla tramite
si abbassa il livello di potenza dell’induttore
autoregolato; si manifesta in particolare quando il
il relativo tasto di selezione e:
fondo della pentola è costituito da strati di materiale
• Premere il tasto di selezione della potenza 0: la
diverso.
potenza torna immediatamente a 0 e la zona di
• Rumore della ventola: per il corretto funzionamento
cottura si spegne.
del piano e per garantire la sicurezza della
parte elettronica da possibili surriscaldamenti
Programmazione della durata di una
è necessario l’azionamento di una ventola. La
cottura
ventola funziona alla massima potenza quando
! È possibile programmare tutte le zone di cottura per
l’induttore grande è al massimo livello di potenza
una durata compresa tra 1 e 99 minuti.
o quando è inserita la funzione booster ; in tutti
gli altri casi funziona a potenza media a seconda
1. Selezionare la zona di cottura tramite il tasto di
della temperatura rilevata. Inoltre è possibile che
selezione corrispondente.
la ventola continui a funzionare anche dopo la
2. Regolarne il livello di potenza.
disattivazione del piano se la temperatura rilevata è
alta.
3. Premere il tasto di programamzione
. Lampeggia
I rumori elencati sono dovuti alla tecnologia
la spia corrispondente alla zona scelta.
induzione e non segnalano necessariamente difetti di
4. Impostare la durata di cottura desiderata tramite i
funzionamento.
tasti
-
e
+
.
54

immediatamente. A tempo scaduto viene emesso un
5. Confermare premendo il tasto oppure si
segnale acustico (per la durata di 1 minuto).
IT
seleziona in automatico dopo 10 secondi.
Il conto alla rovescia del timer ha inizio
Blocco dei comandi
immediatamente. La fine della cottura programmata
Quando il piano cottura è in funzione, è possibile
è indicata da un segnale acustico (per la durata di 1
bloccare i comandi per evitare il rischio di modifiche
minuto) e la zona di cottura si spegne.
fortuite alle regolazioni (bambini, operazioni di pulizia,
Ripetere la procedura sopra descritta per ogni piastra
che si intende programmare.
ecc.). Premendo il tasto
i comandi si bloccano
e la spia che si trova sopra al tasto si accende.
Visualizzazione in caso di programmazione multipla
Per tornare ad agire sulle regolazioni (es. interrompere
Quando una o più piastre sono state programmate,
la cottura) è necessario sbloccare i comandi: premere
il display visualizza il tempo rimanente della piastra
il tasto
per qualche istante, la spia si spegne e i
che è più vicina al termine del tempo programmato,
comandi si sbloccano.
indicandone la posizione con la spia corrispondente
accesa. Le spie delle altre piastre programmate
Spegnimento del piano cottura
lampeggiano.
Per visualizzare il tempo restante delle altre piastre
Premendo il tasto l’apparecchio si spegne, non
fare affidamento sul rivelatore di pentole.
programmate, premere ripetutamente il tasto
:
Se i comandi dell’apparecchio sono stati bloccati,
verranno mostrati in sequenza e in senso orario i tempi
continueranno ad essere bloccati anche dopo aver
del contaminuti e di tutte le piastre programmate, a
riacceso il piano di cottura. Per poter riaccendere
partire da quella anteriore sinistra.
il piano è necessario prima sbloccare i comandi.
Modificare la programmazione
Modalità “demo”
1. Premere ripetutamente il tasto
È possibile impostare una modalità dimostrativa nella
finché non viene mostrato il tempo della piastra che si
quale il pannello comandi funziona normalmente
intende modificare.
(inclusi i comandi relativi alla programmazione), ma
gli elementi riscaldanti non si accendono. Per attivare
2. Agire sui tasti
- e + per impostare il nuovo
la modalità “demo” occorre che il piano sia acceso e
tempo.
tutte le piastre siano spente:
• Premere e tenere premuti contemporaneamente
3. Confermare premendo il tasto
.
i tasti
+ e - per 6 secondi. Allo scadere dei
Per cancellare una programmazione, agire come
6 secondi la spia ON/OFF e la spia BLOCCO
COMANDI lampeggiano per un secondo. Rilasciare
sopra. Al punto 2 premere il tasto
-: la durata
scende progressivamente fino allo spegnimento 0.
i tasti
+ e - e premere il tasto ;
La programmazione si azzera e il display esce dalla
• il display visualizza la scritta DE e MO e il piano si
modalità programmazione.
spegne;
• alla successiva riaccensione il piano si troverà in
Il contaminuti
modalità “demo”.
Il piano di cottura deve essere acceso.
Il contaminuti permette di impostare una durata fino a
Per uscire da questa modalità seguire la procedura
99 minuti.
sopra descritta. Il display visualizza la scritta DE e
OF e il piano si spegne. Alla successiva riaccensione
1. Premere il tasto di programamzione
. finchè la
funzionerà normalmente.
spia contaminuti non si accende
.
Consigli pratici per l’uso ell’apparecchio
! Adoperare recipienti di cottura il cui materiale
2. Impostare la durata desiderata tramite i tasti
- e
di fabbricazione sia compatibile con il principio
dell’induzione (materiale ferromagnetico). Si
+.
raccomanda l’uso di pentole in: ghisa, acciaio smaltato
3. Confermare premendo il tasto
.
o inox speciale per induzione. Per sincerarsi della
Il conto alla rovescia del timer ha inizio
compatibilità di un recipiente è sufficiente fare una
prova con una calamita.
55

Interruttore di sicurezza
IT
L’apparecchio è dotato di un interruttore di sicurezza
che spegne le zone di cottura automaticamente
quando viene raggiunto un tempo limite di utilizzo a
un dato livello di potenza. Durante l’interruzione di
sicurezza, il display indica “0”.
Esempio: la piastra posteriore destra è impostata su 5,
mentre la piastra anteriore sinistra su 2. La posteriore
Inoltre, per ottenere le migliori prestazioni dal piano di
destra si spegnerà dopo 5 ore di funzionamento, la
cottura:
anteriore sinistra dopo 8 ore.
• Adoperare pentole con fondo piatto e di elevato
spessore, per essere certi che aderiscano
Livello di potenza
Tempo limite di funzionamento in ore
perfettamente alla zona riscaldante.
1
9
2
8
3
7
• Adoperare pentole di diametro sufficiente a coprire
4
6
completamente la zona riscaldante, in modo da
garantire lo sfruttamento di tutto il calore disponibile.
5
5
6
4
7
3
8
2
• Accertarsi che il fondo delle pentole sia sempre
perfettamente asciutto e pulito, per garantire la
9
1
corretta aderenza e una lunga durata, sia alle zone
di cottura che alle pentole stesse.
Segnale acustico
• Evitare di utilizzare le stesse pentole utilizzate
Alcune anomalie, quali:
sui bruciatori a gas: la concentrazione di calore
• un oggetto (pentola, posata, ecc.) posto per oltre 10
sui bruciatori a gas può deformare il fondo della
secondi sull’area dei comandi,
pentola, che perde aderenza.
• un versamento sull’area dei comandi,
• una pressione esercitata a lungo su un tasto,
Dispositivi di sicurezza
possono provocare l’emissione di un segnale
acustico. Rimuovere la causa del malfunzionamento
Rilevamento dei recipienti
per interrompere il segnale acustico. Se la causa
Ciascuna zona di cottura è provvista di un dispositivo
dell’anomalia non viene rimossa, il segnale acustico
di rilevamento della pentola. La piastra emette calore
persiste e il piano si spegne.
unicamente in presenza di una pentola di dimensioni
adeguate alla zona di cottura stessa. La spia
lampeggiante può indicare:
• una pentola incompatibile
• una pentola di diametro insufficiente
• il sollevamento della pentola
Surriscaldamento
In caso di surriscaldamento dei componenti elettronici,
il piano cottura si spegne automaticamente e sul
display appare
F
seguito da un numero lampeggiante.
Questo messaggio scompare e il piano torna
utilizzabile non appena la temperatura è scesa a un
livello accettabile.
56

Consigli pratici per la cottura
IT
Cottura a Pressione
Frittura
ª
Pentola a Pressione
vivissimo
Cottura a fuoco
•
Grigliata Ebollizione
•
Crêpe Cottura a fuoco vivo e doratura
(Arrosti, Bistecche, Scaloppine, Filetti di
Cottura a
fuoco vivo
pesce, Uova al tegamino)
¶
¶
Addensamento rapido (Sughi liquidi)
Acqua bollente (Pasta, Riso, Verdure)
Latte
§
§
Addensamento lento (Sughi consistenti)
S
Cottura a fuoco medioCottura a fuoco
S
Cottura a bagnomaria
Cottura Pentola a pressione dopo il sibilo
¢
¢
lento
£
Cottura a fuoco lento
Riscaldamento delle pietanze
(Stufati)
™
™
Salsa al cioccolato Mantenimento al caldo
fuoco
Cottura a
lentissimo
¡
57

Precauzioni e consigli
! L’apparecchio è stato progettato e costruito
• Non staccare la spina dalla presa della corrente
IT
in conformità alle norme internazionali di sicurezza. Queste
tirando il cavo, bensì afferrando la spina.
avvertenze sono fornite per ragioni di sicurezza e devono
• Non fare pulizia o manutenzione senza aver prima
essere lette attentamente.
staccato la spina dalla rete elettrica.
• Non è previsto che l’apparecchio venga utilizzato
Questa apparecchiatura è conforme alle seguenti
da persone (bambini compresi) con ridotte
Direttive Comunitarie:
capacità fisiche, sensoriali o mentali, da persone
inesperte o che non abbiano familiarità con il
- 2006/95/CEE del 12/12/06 (Bassa Tensione) e successive
prodotto, a meno che non vengano sorvegliate da
modificazioni
una persona responsabile della loro sicurezza o
- 2004/108/CEE del 15/12/04 (Compatibilità
non abbiano ricevuto istruzioni preliminari sull’uso
Elettromagnetica) e successive modificazioni
dell’apparecchio.
- 93/68/CEE del 22/07/93 e successive modificazioni.
• Avvertenza per i portatori di pacemaker o altri
- 1275/2008 stand-by/off mode.
dispositivi medici impiantabili attivi:
Il piano cottura è conforme a tutte le normative
vigenti in materia di interferenze elettromagnetiche.
Sicurezza generale
Questo prodotto è pertanto perfettamente
rispondente a tutti i requisiti di legge (direttive
! Controllare che la presa d’aria tramite la griglia del
89/336/CEE). È stato progettato in modo da non
ventilatore non sia mai ostruita. Il piano da incasso,
creare inferenze ad altre apparecchiature elettriche
infatti, necessita di una corretta aerazione per il
utilizzate, a condizione che anche queste siano
raffreddamento dei componenti elettronici.
conformi alle suddette normative.
! È sconsigliata l’installazione di un piano cottura a
Il piano cottura a induzione genera campi
induzione sopra un frigorifero sottotavolo (calore) o sopra
elettromagnetici a breve portata.
una lavatrice (vibrazioni). Lo spazio necessario per la
Per evitare ogni rischio di interferenze tra il piano di
ventilazione degli elementi elettronici sarebbe infatti
cottura e il pacemaker, quest’ultimo dovrà essere
insufficiente.
realizzato in conformità alle normative vigenti.
• L’apparecchio è stato concepito per un uso di tipo non
A tale riguardo, possiamo garantire unicamente la
professionale all’interno dell’abitazione.
conformità del nostro prodotto. Per informazioni sulla
• L’apparecchio non va installato all’aperto, nemmeno se
conformità o eventuali problemi di incompatibilità, si
lo spazio è riparato, perché è molto pericoloso lasciarlo
prega di rivolgersi al proprio medico curante o alla
esposto a pioggia e temporali.
casa produttrice del pacemaker.
• Non toccare la macchina a piedi nudi o con le mani
• Evitare che i bambini giochino con l’apparecchio.
o i piedi bagnati o umidi.
• Non posare oggetti metallici (coltelli, cucchiai,
• L’apparecchio deve essere usato per cuocere alimenti,
coperchi, ecc.) sul piano perchè possono diventare
solo da persone adulte e secondo le istruzioni riportate
caldi.
in questo libretto. Non utilizzare
• L’apparecchio non è destinato a essere messo in
il piano come superficie di appoggio, né come tagliere.
funzione per mezzo di un temporizzatore esterno
• Il piano in vetroceramica è resistente agli urti meccanici,
oppure di un sistema di comando a distanza
tuttavia può incrinarsi (o eventualmente frantumarsi) se
separato.
colpito con un oggetto appuntito, quale un utensile. In
questi casi, scollegare immediatamente l’apparecchio
dalla rete di alimentazione e rivolgersi all’Assistenza.
• Evitare che il cavo di alimentazione di altri
Smaltimento
elettrodomestici entri in contatto con parti calde
• Smaltimento del materiale di imballaggio: attenersi
del piano cottura.
alle norme locali, così gli imballaggi potranno essere
• Non dimenticare che la temperatura delle zone di
riutilizzati.
cottura rimane piuttosto elevata per almeno trenta minuti
• La direttiva Europea 2002/96/CE sui rifiuti di
dopo lo spegnimento. Il calore residuo è segnalato
apparecchiature elettriche ed elettroniche (RAEE),
anche da un indicatore (vedi Avvio e utilizzo).
prevede che gli elettrodomestici non debbano essere
• Tenere a debita distanza dal piano cottura qualsiasi
smaltiti nel normale flusso dei rifiuti solidi urbani.
oggetto che potrebbe fondere, ad esempio oggetti
Gli apparecchi dismessi devono essere raccolti
in plastica, in alluminio o prodotti con un elevato
separatamente per ottimizzare il tasso di recupero e
contenuto di zucchero. Fare particolare attenzione a
riciclaggio dei materiali che li compongono ed impedire
imballaggi e pellicole in plastica o alluminio:
potenziali danni per la salute e l’ambiente. Il simbolo del
se dimenticati sulle superfici ancora calde o tiepide
cestino barrato è riportato su tutti i prodotti per ricordare
possono causare un grave danno al piano.
gli obblighi di raccolta separata.
• Assicurarsi che i manici delle pentole siano sempre
Per ulteriori informazioni, sulla corretta dismissione
rivolti verso l’interno del piano cottura per evitare
degli elettrodomestici, i detentori potranno rivolgersi al
che vengano urtati accidentalmente.
servizio pubblico preposto o ai rivenditori.
58

Manutenzione e cura
Escludere la corrente elettrica
Smontare il piano
Prima di ogni operazione isolare l’apparecchio dalla
Nel caso si renda necessario smontare il piano cottura:
IT
rete di alimentazione elettrica.
1. togliere le viti che fissano le molle di centraggio
sui lati;
Pulire l’apparecchio
2. allentare le viti dei ganci di fissaggio sugli angoli;
! Evitare l’uso di detergenti abrasivi o corrosivi, quali
3. estrarre il piano cottura dal vano del mobile.
i prodotti in bombolette spray per barbecue e forni,
smacchiatori e prodotti antiruggine, i detersivi in
! Raccomandiamo di evitare di accedere ai
polvere e le spugne con superficie abrasiva: possono
meccanismi interni per tentare una riparazione. In caso
graffiare irrimediabilmente la superficie.
di guasto, contattare l’Assistenza.
! Non utilizzare mai pulitori a vapore o ad alta pressione
per la pulizia dell’apparecchio.
Descrizione tecnica dei modelli
• Per una manutenzione ordinaria, è sufficiente lavare
il piano con una spugna umida, asciugando quindi
Il sistema a induzione è il procedimento di cottura
con una carta assorbente per cucina.
più rapido che esista. A differenza delle piastre
• Se il piano è particolarmente sporco, strofinare con
tradizionali,
un prodotto specifico per la pulizia delle superfici
non è la zona di cottura che si riscalda: il calore viene
in vetroceramica, sciacquare e asciugare.
generato direttamente all’interno della pentola, la quale
• Per rimuovere gli accumuli di sporco più consistenti
dovrà possedere necessariamente un fondo in
servirsi di un apposito raschietto. Intervenire
materiale ferromagnetico.
non appena possibile, senza attendere che
l’apparecchio si sia raffreddato, per evitare
Legenda:
l’incrostazione dei residui. Eccellenti risultati si
I = zona di cottura a induzione semplice
possono ottenere usando una spugnetta in filo
B = booster: la zona di cottura può essere
d’acciaio inossidabile - specifica per piani in
sovralimentata a 3000 W
vetroceramica - imbevuta di acqua e sapone.
* = la potenza massima è limitata finché è attivo il
• In caso sul piano cottura si fossero accidentalmente
booster nella zona di cottura posteriore relativa (vedi
fusi oggetti o materiali quali plastica o zucchero,
Avvio e utilizzo).
rimuoverli con il raschietto immediatamente, finché
la superficie è ancora calda.
• Una volta pulito, il piano può essere trattato
con un prodotto specifico per la manutenzione
Piani cottura KIO 633 T Z
e la protezione: la pellicola invisibile lasciata da
Zone di cottura Potenza (in W)
questo prodotto protegge la superficie in caso di
Posteriore sx I 1400 – B 2000* – 600 se Ant. Sx*
scolamenti durante la cottura. Si raccomanda
Posteriore dx I 3000 – B 4000
di eseguire queste operazioni con l’apparecchio
Anteriore sx I 2200 – B 3000* – 1600 se Post. Sx*
tiepido o freddo.
Potenza totale 7600
• Ricordarsi sempre di risciacquare con acqua pulita
e asciugare accuratamente il piano: i residui di
prodotti potrebbero infatti incrostarsi durante la
successiva cottura.
Telaio in acciaio inox (solo nei modelli con cornice)
L’acciaio inossidabile può macchiarsi per effetto
di un’acqua molto calcarea lasciata per un periodo
di tempo prolungato a contatto dello stesso oppure a
causa di prodotti per la pulizia contenenti fosforo.
Si consiglia di sciacquare abbondantemente e
asciugare con cura dopo la pulizia del piano. In
caso di versamenti d’acqua, intervenire rapidamente
asciugando con cura.
! Alcuni piani cottura hanno una cornice in alluminio
somigliante all’acciaio inox. Non utilizzare prodotti per
la pulizia e lo sgrassaggio non idonei per l’alluminio.
59

Installatie
! Bewaar dit instructieboekje zorgvuldig voor eventuele
NL
raadpleging in de toekomst. Wanneer u het product
weggeeft, verkoopt, of wanneer u verhuist, dient u dit boekje
bij het apparaat te bewaren zodat waarschuwingen en
min. 20 mm
informatie betreffende werking voorhanden blijven.
! Lees de instructies aandachtig door: u vindt er belangrijke
5 mm
informatie betreffende installatie, gebruik en veiligheid.
LADE
Plaatsing
min. 40 mm
! Het verpakkingsmateriaal is niet bestemd voor kinderen
en dient daarom te worden verwijderd volgens de
geldende normen voor gescheiden afvalverzameling ( zie
Voorzorgsmaatregelen en advies).
! De installatie moet worden uitgevoerd door een bevoegde
min. 20 mm
installateur en volgens de instructies van de fabrikant. Een
verkeerde installatie kan schade berokkenen aan personen,
dieren of dingen.
5 mm
HETELUCHTOVEN
Inbouw
Voor een goede werking van het apparaat moet het
keukenmeubel de juiste kenmerken hebben:
min. 40 mm
• het keukenblad moet uit hittebestendig materiaal zijn
vervaardigd en een temperatuur van circa 100°C kunnen
verdragen;
• als de kookplaat boven een oven wordt geïnstalleerd
moet deze zijn voorzien van een geforceerd geventileerd
afkoelingssysteem;
• installeer de kookplaat nooit boven een afwasautomaat:
VOORZIJDE VAN
indien u dit toch doet, breng dan een waterdichte
DE KOOKPLAAT
afscheiding aan tussen de twee apparaten;
• naar gelang het type kookplaat dat u wenst te installeren
KEUKENBLAD
30
40
(zie afbeeldingen), moet het keukenmeubel de volgende
afmetingen hebben:
590
KOOKPLAAT
ONDERSTEBOVEN
48
520
560 +/- 1
490 +/- 1
Ventilatie
Teneinde een correcte ventilatie te bereiken en
een oververhitting van de oppervlakken rondom het apparaat te
voorkomen, moet de kookplaat geïnstalleerd worden op:
• op een minimum afstand van 40 mm van de achterwand;
• op zodanige wijze dat er een minimum afstand overblijft
van 20 mm tussen het inbouwmeubel en het onderstaande
meubel.
• De meubels die direct naast de kookplaat staan en
hierboven uitsteken, moeten op minstens 600 mm van de
rand van de plaat staan.
60




