Hotpoint-Ariston kio 633 t z – page 2
Manual for Hotpoint-Ariston kio 633 t z

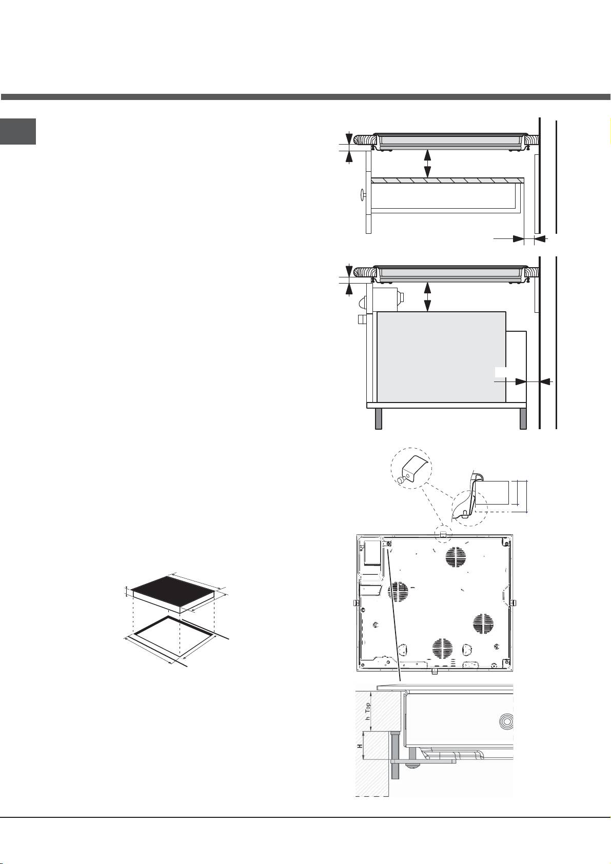
Fixation
Tension type et fréquence réseau
Il est impératif d’assurer l’encastrement de l’appareil sur
• 400V - 2+N ~ 50 Hz
FR
un plan d’appui parfaitement plat. Les déformations
• 220-240V 3 ~ 50 Hz
provoquées par une mauvaise fixation risquent
• 400V 3 - N ~ 50 Hz
d’altérer les caractéristiques de la table de cuisson
• 400V - 2+2N ~ 50 Hz
ainsi que ses performances. La longueur de la vis de
réglage des crochets
de fixation doit être réglée avant
Séparer les câbles et procéder au raccordement des
leur montage
selon l’épaisseur du plan d’appui :
fils en suivant les indications du tableau et des dessins
suivants :
• épaisseur 30 mm : vis 23 mm;
• épaisseur 40 mm : vis 13 mm
Tension type et
Cordon électrique Raccordement fils
fréquence réseau
400V - 2+N ~
Pour sa fixation, procéder comme suit :
50 Hz
: jaune/vert;
1. Se servir des vis courtes sans pointe pour visser les 4
220-240V 3 ~
N: les 2 fils bleus
ressorts de centrage dans les trous prévus sur chaque
50 Hz
ensemble
côté de la table, en leur milieu;
L1: noir
400V 3-N ~
50 Hz
L2: marron
2. insérer la table de cuisson dans la découpe prévue,
bien au centre et bien appuyer tout autour du cadre pour
: jaune/vert;
que la table adhère parfaitement au plan d’appui.
400V - 2+2N ~
N1: bleu
3. pour les tables avec profils latéraux : après avoir
50 Hz
N2: bleu
L1: noir
encastré la table de cuisson dans la découpe, insérer les
L2: marron
4 crochets de fixation (chacun avec son goujon) sur le
périmètre inférieur de la table de cuisson et visser avec les
Branchement du câble d’alimentation au réseau
vis longues à pointe jusqu’à ce que le verre adhère bien au
électrique
plan d’appui.
En cas de raccordement direct au réseau, il faut intercaler
entre l’appareil et le réseau un interrupteur à coupure
! Il faut absolument que les vis des ressorts de
omnipolaire ayant au moins 3 mm d’écartement entre les
centrage soient accessibles.
contacts.
! L’installateur est responsable du bon raccordement
! Conformément aux normes de sécurité, après
électrique de l’appareil et du respect des normes de sécurité.
encastrement de l’appareil, il ne doit plus y avoir
Avant de procéder au branchement, s’assurer que :
possibilité de contact avec les parties électrifiées.
• la prise est bien munie d’une terre conforme à la loi;
! Toutes les parties qui servent de protection doivent
• la prise est bien apte à supporter la puissance maximale
être fixées de manière à ne pouvoir être enlevées
de l’appareil, indiquée sur la plaque signalétique de
qu’avec l’aide d’un outil.
l’appareil ;
• la tension d’alimentation est bien comprise entre les
valeurs indiquées sur la plaque signalétique;
Raccordement électrique
• la prise est bien compatible avec la fiche de l’appareil. Si
ce n’est pas le cas, remplacer la prise ou la fiche, ne pas
! Le branchement électrique de la table de cuisson et
utiliser de rallonges ni de prises multiples.
celui d’un éventuel four à encastrer doivent être effectués
séparément, pour des raisons de sécurité électrique et
! Après installation de l’appareil, le câble électrique et la
pour pouvoir démonter plus facilement le four en cas de
prise de courant doivent être facilement accessibles
besoin.
! Le câble ne doit être ni plié ni excessivement écrasé.
! Le câble doit être contrôlé périodiquement et ne peut
Raccordement monophasé
être remplacé que par un technicien agréé.
La table est fournie déjà équipée d’un cordon
! Nous déclinons toute responsabilité en cas de non
d’alimentation prévu pour raccordement monophasé.
respect des normes énumérées ci-dessus.
Procéder au raccordement des fils en suivant les
! Ne retirer ou ne remplacer en aucun cas le câble
indications du tableau et des dessins suivants :
d’alimentation. Toute opération d’enlèvement ou de
Tension type et
Cordon électrique Raccordement fils
remplacement annule automatiquement la garantie et la
fréquence réseau
marque CE INDESIT décline toute responsabilité en cas
: jaune/vert;
d’accidents ou de dommages dérivants de l’enlèvement
220-240V 1+N ~
N
: les 2 fils bleus ensemble
50 Hz
ou du remplacement du câble d’alimentation original.
L
: le marron avec le noir
Seul le remplacement effectué par un technicien agréé
Autres types de branchement
INDESIT utilisant une pièce détachée originale est
Si l’installation électrique correspond à une des
autorisé.
caractéristiques suivantes :
21

Mise en marche et
utilisation
! La colle utilisée pour les joints laisse des traces de graisse
Mise sous tension de la table de cuisson
FR
sur le verre. Nous conseillons de les éliminer avant d’utiliser
l’appareil à l’aide d’un produit d’entretien non abrasif.
Pour mettre la table de cuisson sous tension, appuyer sur la
Une odeur de caoutchouc peut se dégager au cours des
touche
pendant une seconde environ.
premières heures d’utilisation, elle disparaîtra très vite.
! Un bip retentit quelques secondes après la mise sous
Allumage des foyers
tension de la table de cuisson. A partir de ce moment-là,
l’allumage de la table est possible.
Bruits de fonctionnement normaux de la table de cuisson
Chaque foyer est activé par une touche de sélection et
:
par un dispositif de réglage de la puissance à touches de
• Bourdonnement : il est dû à la vibration des éléments
sélection allant de 0 à 9.
métalliques qui composent le générateur et le récipient
• Pour mettre en marche un foyer, appuyer sur la
de cuisson. Il est produit par le champ électromagnétique
commande correspondante et sélectionner la puissance
nécessaire à la montée en température ; il augmente au
voulue à l’aide des touches de sélection allant de 0 à 9.
fur et à mesure que le niveau de puissance du générateur
augmente.
Extinction des foyers
• Léger sifflement : il se produit quand la casserole posée
sur le foyer est vide; le bruit disparaît dès qu’on y introduit
Pour éteindre un foyer, le sélectionner à l’aide de la touche
de l’eau ou des aliments.
de sélection correspondante
et :
• Crépitement : il s’agit d’un bruit produit par les vibrations
• Appuyer sur la touche de sélection de la puissance 0 : la
du matériau composant le fond de la casserole quand
puissance du foyer revient aussitôt à 0 et le foyer s’éteint.
il est traversé par les courants parasites dus au champ
électromagnétique (induction) ; il est plus ou moins
Fonction booster
intense selon le type de matériau utilisé pour le fond et
il diminue au fur et à mesure que les dimensions de la
Pour accélérer la montée en température, une fonction
casserole augmentent.
booster est disponible sur certains foyers, pour l’activer
• Sifflement intense : il se produit quand les deux
Booster
générateurs fonctionnent en même temps sur la même
appuyer sur la touche
. Le voyant placé au-dessus de
verticale à leur puissance maximale et/ou quand la
la touche s’allume. Cette fonction suralimente la puissance à
fonction booster est insérée sur le plus grand d’entre eux
2000 ou 3000W selon la dimension du foyer concerné.
et que l’autre est autorégulé. Le bruit diminue dès qu’on
Le booster s’arrête automatiquement après 4 minutes. Tant
baisse le niveau de puissance du générateur autorégulé;
que le booster d’un foyer est activé, la puissance du foyer
il est plus manifeste quand le fond de la casserole est
correspondant avant ou arrière est limitée (par ex : si le
formé de plusieurs couches de matériaux différents.
booster est activé sur le foyer arrière gauche, la puissance
• Bruit du ventilateur : pour un fonctionnement correct
du foyer avant gauche baisse). Pour de plus amples
de la table et pour garantir la sécurité des composants
renseignements, consulter Description technique des modèles.
électroniques contre tout risque de surchauffe, il faut
actionner un ventilateur. Le ventilateur fonctionne à sa
Programmation de la durée de cuisson
puissance maximum quand le générateur plus grand est
à son niveau de puissance maximum ou quand la fonction
! Il est possible de programmer simultanément tous les
booster est insérée; dans tous les autres cas, il fonctionne
foyers pour une durée comprise entre 1 et 99 minutes.
à sa puissance intermédiaire selon la température
détectée. Il se peut d’ailleurs que le ventilateur continue à
1. Sélectionner le foyer à l’aide de la touche de sélection
fonctionner même après la désactivation de la table si la
correspondante.
température détectée est trop élevée.
2. Régler le niveau de puissance du foyer.
Les bruits énumérés sont rattachés à la technologie de
3. Appuyer sur la touche de programmation
. Le voyant
l’induction et ne signalent pas forcément des défauts de
correspondant au foyer sélectionné clignote.
fonctionnement.
4. Sélectionner la durée de cuisson désirée à l’aide des
! Une pression prolongée sur les touches - et + accélère
touches
- et +.
l’avancement rapide des minutes du minuteur.
5. Valider en appuyant sur la touche
, sinon la sélection
se fait automatiquement au bout de 10 secondes.
Le compte à rebours du minuteur démarre aussitôt. La
22

fin de la cuisson programmée est indiquée par un signal
Verrouillage des commandes
FR
acoustique (durée 1 minute) et le foyer s’éteint.
Procéder de même pour tous les foyers devant être
Pendant le fonctionnement de la table, il est possible de
programmés.
verrouiller les commandes pour empêcher toute intervention
extérieure sur le réglage (enfants, nettoyage...). Appuyer sur
Affichage en cas de programmation multiple
la touche
pour verrouiller les commandes, le voyant
situé au
- dessus de la touche s’allume.
En cas de programmation d’un ou de plusieurs foyers, l’écran
Pour pouvoir modifier les réglages (interrompre la cuisson
affiche le temps restant pour le foyer qui se rapproche le plus
par ex.) il faut déverrouiller les commandes : appuyer sur la
de la fin du temps programmé, dont la position est indiquée
par clignotement du voyant correspondant. Les voyants des
touche
pendant quelques instants, le voyant s’éteint et
autres foyers programmés sont allumés.
les commandes sont déverrouillées.
Pour afficher le temps restant des autres foyers programmés,
Extinction de la table de cuisson
appuyer plusieurs fois de suite sur la touche
: il y aura
affichage à la suite et dans le sens des aiguilles d’une
montre des temps du minuteur et de tous
Appuyer sur la touche pour éteindre l’appareil. Ne pas
les foyers programmés, en partant du foyer
se fier au détecteur de casserole.
avant gauche.
Si les commandes de l’appareil ont été verrouillées, elles
le seront encore au rallumage de la table. Pour pouvoir
Modifier la programmation
rallumer la table de cuisson, il faut d’abord déverrouiller les
commandes.
1. Appuyer plusieurs fois de suite sur la touche
, jusqu’à
Mode Démonstration (demo)
affichage du temps correspondant au foyer devant être
modifié.
Il est possible de sélectionner une utilisation en mode
2. Sélectionner un nouveau temps à l’aide des touches
- et
démonstration où le tableau de bord fonctionne normalement
(y compris les commandes concernant la programmation)
+.
mais où les éléments chauffants ne s’allument pas. Pour
3. Appuyer sur la touche
pour valider.
activer le mode démonstration (demo), il faut que la table soit
sous tension et que tous les foyers soient éteints :
Pour annuler une programmation, procéder comme
indiqué plus haut. Au point 2, appuyer sur la touche - : la
• Appuyer simultanément sur les touches
+ et - et les
durée diminue progressivement jusqu’à l’extinction 0. La
garder enfoncées pendant 6 secondes. Au bout de 6
programmation est remise à zéro et l’afficheur quitte le mode
secondes, le voyant ON/OFF et le voyant VERROUILLAGE
programmation.
DES COMMANDES se mettent à clignoter pendant une
Le minuteur
seconde. Lâcher les touches
+ et - et appuyer sur la
touche
;
La table de cuisson doit être allumée.
• il y a affichage de DE et de MO et la table s’éteint;
Le minuteur permet de sélectionner une durée de 99 minutes
• au rallumage successif, la table se trouvera en mode
maximum.
démonstration (demo).
1. Appuyer sur la touche de programmation
jusqu’à ce
Pour quitter ce mode de fonctionnement, suivre la procédure
décrite plus haut. Il y a affichage de DE et de OF et la
que le voyant minuteur s’allume
.
table s’éteint. Au rallumage successif, la table fonctionnera
2. Sélectionner la durée désirée à l’aide des touches
- et
normalement.
+.
Conseils d’utilisation de l’appareil
3. Appuyer sur la touche
pour valider.
Le compte à rebours du minuteur démarre aussitôt. Une fois
! Utiliser des récipients dont le matériau est compatible avec
le temps écoulé, un signal sonore retentit (pendant 1 minute).
l’induction (matériau ferromagnétique). Nous recommandons
l’utilisation de casseroles en : fonte, acier émaillé ou inox
spécial induction. Pour s’assurer de la compatibilité d’un
récipient, effectuer un test avec un aimant.
23

FR
24
A UTILISER
NE CONVIENT PAS
*
Fonte
Cuivre
Acier émaillé
Aluminium, Verre, Terre,
Inox spécial
Céramique, Inox non magnétique
Interrupteur sécurité
L’appareil est équipé d’un interrupteur de sécurité qui
interrompt instantanément le fonctionnement des foyers
dès qu’un temps limite de fonctionnement à un niveau
de puissance donné est atteint. Pendant l’interruption de
sécurité, l’afficheur indique “0”.
Pour obtenir de meilleures performances de la table de
Exemple : le foyer arrière droit est réglé sur 5, tandis que
cuisson :
le foyer avant gauche est réglé sur 2. Le foyer arrière droit
• Utiliser des casseroles à fond plat et de forte épaisseur
s’éteindra au bout de 5 heures de fonctionnement tandis que
pour qu’elles adhèrent parfaitement à la zone de chauffe
le foyer avant gauche s’éteindra au bout de 8 heures.
Puissance
Durée limite de fonctionnement
1
9
2
8
• Utiliser des casseroles dont le diamètre couvre
3
7
complètement la zone de chauffe de façon à ce que toute
la chaleur disponible puisse être utilisée.
4
6
5
5
6
4
7
3
• Veiller à ce que la base des casseroles soit toujours
parfaitement sèche et propre pour garantir un bon contact
8
2
et une longue durée de vie des foyers mais aussi des
9
1
casseroles.
Signal sonore
• Eviter d’utiliser les mêmes casseroles que sur les brûleurs
à gaz. la concentration de chaleur sur les brûleurs à gaz
Des anomalies, comme par exemple :
peut déformer le fond de la casserole qui perd de son
• un objet (casserole, couvert, ...) placé plus de 10
adhérence.
secondes sur la zone de commande,
• un débordement sur la zone de commande,
Les sécurités
• une pression prolongée sur une touche, peuvent
déclencher un signal acoustique. Eliminer la cause de
Détection de récipient
dysfonctionnement pour stopper le signal sonore. Si la
cause de l’anomalie n’est pas éliminée, le signal sonore
Chaque foyer est équipé d’une détection de casserole.
continue à retentir et la table s’éteint.
Le foyer ne délivre de puissance qu’en présence d’une
casserole adaptée au foyer. Le voyant clignotant peut
signaler :
• une casserole incompatible
• une casserole de trop petit diamètre
• que la casserole a été soulevée
Surchauffe
En cas de surchauffe de ses composants électroniques, la
table s’éteint automatiquement et l’afficheur indique
F suivi
d’un chiffre clignotant. Cet affichage disparaît et la table est à
nouveau utilisable dès que la température est redescendue à
un niveau acceptable.

Conseils utiles pour la cuisson
FR
Mise en pression
Friture
ª
Autocuisser
Cuiccon très viveCuisson viveCuisson moyenneCuisson douceCuisson
•
Grillade Ebullition
•
Crêpes Saise et coloration
(Rotis, Steack, Escalope, Filets de poisson,
Oeufs au plat)
¶
¶
Réduction rapide (Sauce liquides)
Eau Frémissante (Pates, Riz, Légumes)
Lait
§
§
Réduction lente (Sauce épaisses)
S
S
Cuisson au bain-marie Cuisson Autocuiseur après chuchotement
¢
¢
£
Mijotage (Ragouts)
Réchauffage des préparations
™
™
Sauce chocolat Maintien au chaud
très douce
¡
25

Précautions et conseils
! Cet appareil a été conçu et fabriqué conformément
• N’effectuer aucune opération de nettoyage ou
FR
aux normes internationales de sécurité. Ces consignes
d’entretien sans avoir auparavant débranché la fiche
de sécurité sont très importantes et doivent être lues
de la prise de courant.
attentivement.
• Il n’est pas prévu que cet appareil soit utilisé par
des personnes (enfants compris) présentant des
Cet appareil est conforme aux Directives
capacités physiques, sensorielles ou mentales
Communautaires suivantes :
réduites ou qui n’ont pas l’expérience ou les
connaissances indispensables, à moins qu’elles
- 2006/95/CEE du 12/12/06 (Basse Tension) et
ne le fassent sous la surveillance de quelqu’un
modifications successives
responsable de leur sécurité ou qu’elles aient été
- 2004/108/CEE du 15/12/04 (Compatibilité
dûment formées sur l’utilisation de l’appareil.
électromagnétique) et modifications successives
• Avis à toute personne portant un pacemaker ou
- 93/68/CEE du 22/07/93 et modifications successives.
autre implant médical actif :
- 1275/2008 stand-by/off mode.
La table est conforme à toutes les réglementations
en matière d’interférences électromagnétiques.
Par conséquent, ce produit est parfaitement
Sécurité générale
conforme à toutes les dispositions légales
! S’assurer que la prise d’air à travers la grille du
(directives 89/336/CEE). Il a été conçu de manière
ventilateur ne soit jamais bouchée. La table à
à ne pas provoquer d’interférences à d’autres
encastrer exige en effet une bonne aération pour le
appareils électriques utilisés, pourvu que ceux-ci
refroidissement des composants électroniques.
soient également conformes aux réglementations
! L’installation d’une table de cuisson à induction au-
susmentionnées. La table induction génère des
dessus d’un réfrigérateur sous plan (chaleur) ou au-dessus
champs électromagnétiques à courte portée. Afin
d’un lave-linge (vibrations) est vivement déconseillée.
d’éviter tout risque d’interférence entre la table de
L’espace indispensable à la ventilation des éléments
cuisson et le pacemaker, ce dernier devra être
électroniques serait en effet insuffisant.
fabriqué conformément à la réglementation en
• Cet appareil a été conçu pour un usage familial, de type
vigueur.
non professionnel.
A ce propos, nous ne pouvons assurer que
• Cet appareil ne doit pas être installé en extérieur, même
la conformité de notre produit. Pour tous
dans un endroit abrité, il est en effet très dangereux de
renseignements quant à la conformité ou à des
le laisser exposé à la pluie et aux orages.
problèmes éventuels d’incompatibilité, prière de
• Ne pas toucher à l’appareil si l’on est pieds nus ou si
s’adresser à son médecin traitant ou au fabricant du
l’on a les mains ou les pieds mouillés ou humides.
pacemaker.
• Cet appareil qui sert à cuire des aliments ne doit
• S’assurer que les enfants ne jouent pas avec
être utilisé que par des adultes conformément aux
l’appareil.
instructions du mode d’emploi. Ne pas utiliser la
• Ne pas poser d’objets métalliques (couteaux,
table comme plan de dépose ou comme planche à
cuillères, couvercles, etc.) sur la table, ils risquent
découper.
de devenir brûlants.
• Le plan vitrocéramique résiste aux chocs mécaniques,
• Le dispositif n’est pas destiné à être mis en
il peut toutefois se fendre (ou même se briser) sous
œuvre par une minuterie externe ou un système
l’effet d’un choc provoqué par un objet pointu, tel
de télécommande séparée.
qu’un ustensile par exemple. Dans ce cas, débrancher
immédiatement l’appareil du réseau électrique et
s’adresser à un centre d’assistance technique.
• Eviter que le cordon d’alimentation d’autres petits
Mise au rebut
électroménagers touche à des parties chaudes de la
• Mise au rebut du matériel d’emballage : se conformer
table de cuisson.
aux réglementations locales, les emballages pourront
• Ne pas oublier que la température des foyers reste
ainsi être recyclés.
assez élevée pendant trente minutes au moins après
• La directive européenne 2002/96/CE relative aux
leur extinction. La chaleur résiduelle est aussi signalée
déchets d’équipements électriques et électroniques
par un voyant (voir Mise en marche et Utilisation).
(DEEE), prévoit que les électroménagers ne peuvent
• Garder à bonne distance de la table de cuisson tout
pas être traités comme des déchets solides urbains
objet qui pourrait fondre, des objets en plastique ou
courants. Les appareils usagés doivent faire l’objet
en aluminium par exemple, ou des produits à haute
d’une collecte séparée pour optimiser le taux de
teneur en sucre. Faire très attention aux emballages,
récupération et de recyclage des matériaux qui les
au film plastique et au papier aluminium : au contact
composent et empêcher tout danger pour la santé
des surfaces encore chaudes ou tièdes, ils risquent
et pour l’environnement. Le symbole de la poubelle
d’endommager gravement la table.
barrée est appliqué sur tous les produits pour rappeler
• S’assurer que les manches des casseroles soient
qu’ils font l’objet d’une collecte sélective. Pour de
toujours tournés vers l’intérieur de la table de
plus amples renseignements sur la mise au rebut
cuisson pour éviter tout risque d’accident.
des électroménagers, les possesseurs peuvent
• Ne pas tirer sur le câble pour débrancher la fiche de
s’adresser au service public prévu à cet effet ou aux
la prise de courant.
commerçants.
26

Nettoyage et entretien
Mise hors tension
Nous conseillons de rincer abondamment et de bien
FR
essuyer après entretien. Il est préférable d’éliminer
Avant toute opération de nettoyage ou d’entretien
aussitôt tout débordement d’eau.
couper l’alimentation électrique de l’appareil.
! Certaines tables ont un cadre en aluminium
ressemblant à de l’acier inox. Ne pas utiliser de
Nettoyage de l’appareil
produits d’entretien et de dégraissage ne convenant
pas pour l’aluminium.
! Ne jamais utiliser de détergents abrasifs ou corrosifs,
tels que des bombes aérosols pour grilloirs et fours,
Démontage de la table
des détacheurs et des anti-rouille, des poudres
à récurer ou des éponges à surface abrasive : ils
Si le démontage de la table de cuisson s’avère
risquent de rayer irrémédiablement la surface.
nécessaire :
1. enlever les vis qui fixent les ressorts de centrage sur
! Ne jamais nettoyer l’appareil avec des nettoyeurs
les côtés;
vapeur ou haute pression.
2. desserrer les vis des crochets de fixation dans les
coins;
• Pour un entretien courant, passer une éponge
3. dégager la table de cuisson du meuble.
humide sur la surface de la table et essuyer avec du
papier essuie-tout.
! Il est vivement déconseillé d’essayer d’accéder
aux mécanismes internes pour tenter une réparation.
• Si la table est particulièrement sale, frotter avec un
En cas de panne, contacter le service d’assistance
produit d’entretien adapté au verre vitrocéramique,
technique.
rincer et essuyer.
Description technique des modèles
• Pour enlever les salissures en relief, utiliser un
grattoir prévu à cet effet. Intervenir dès que
L’induction est le procédé de cuisson le plus rapide.
possible, ne pas attendre que l’appareil ait refroidi
Contrairement aux plaques traditionnelles, le foyer
afin d’éviter toute incrustation des salissures.
n’émet aucune chaleur : la chaleur est produite à
L’utilisation d’une éponge en fil d’acier inoxydable,
l’intérieur du récipient à condition que le fond de ce
spéciale verre vitrocéramique, imprégnée d’eau
dernier soit en matériau ferromagnétique.
savonneuse donne d’excellents résultats.
Légende :
• Tout objet, matière plastique ou sucre ayant
I = foyer à induction simple
accidentellement fondu sur la table de cuisson doit
B = booster: le foyer peut être suralimenté à 3000 W
être aussitôt enlevé à l’aide du grattoir tant que la
* = la puissance maximale est limitée tant que le
surface est encore chaude.
booster est activé sur le foyer arrière correspondant
(voir Mise en marche et Utilisation).
• Une fois que la table est propre, elle peut être traitée
avec un produit d’entretien et de protection spécial :
Tables de cuisson
KIO 633 T Z
celui-ci forme un film invisible qui protège la surface
Foyers Puissance (en W)
en cas de débordement accidentel. Opérer de
Arrière gauche
I 1400 – B 2000* – 600
si avant gche
*
Arrière droit
I 3000 – B 4000
préférence quand l’appareil est tiède ou froid.
Avant gauche
I 2200 – B 3000* – 1600
si arrière gche
*
Puissance totale
7600
• Prendre soin de toujours bien rincer à l’eau claire
et d’essuyer la table : les résidus des produits
pourraient en effet s’incruster lors d’une prochaine
cuisson.
Cadre en acier inox(uniquement pour les modèles
avec encadrement)
Un contact prolongé avec une eau très calcaire ou
l’utilisation de nettoyants contenant du phosphore
peuvent tacher l’acier inox.
27

Instalación
! Es importante conservar este manual para poder
ES
consultarlo en todo momento. En el caso de venta,
de cesión o de mudanza, verifique que permanezca
junto al aparato para informar al nuevo propietario
min. 20 mm
sobre su funcionamiento y sobre las advertencias
correspondientes.
5 mm
! Lea atentamente las instrucciones: contienen
CAJÓN
importante información sobre la instalación, el uso y la
seguridad.
min. 40 mm
Colocación
! Los embalajes no son juguetes para niños y se
deben eliminar según las normas para la recolección
diferenciada de desechos (ver Precauciones y consejos).
min. 20 mm
! La instalación se debe realizar siguiendo estas
instrucciones y por personal profesionalmente
5 mm
calificado. Una instalación incorrecta puede producir
HORNO
daños a personas, animales o cosas.
VENTILADO
Empotramiento
min. 40 mm
Para garantizar un buen funcionamiento del aparato
es necesario que el mueble tenga las características
adecuadas:
• el plano de apoyo debe ser de material resistente al
calor, a una temperatura de aproximadamente 100ºC;
• si se desea instalar la encimera sobre un horno, el
PARTE DELANTERA
mismo debe poseer un sistema de enfriamiento con
DE LA ENCIMERA
ventilación forzada;
• evite instalar la encimera sobre un lavavajillas:
PLANO DE
pero si fuera necesario, interponga un elemento de
APOYO
30
40
separación estanco entre los dos aparatos;
• según el tipo de encimera que se desea instalar (ver
ENCIMERA
las guras), el espacio disponible en el mueble debe
VOLCADA
tener las siguientes dimensiones:
590
48
520
560 +/- 1
490 +/- 1
Aireación
Para permitir una adecuada aireación y para evitar
el sobrecalentamiento de las superficies que rodean al
aparato, la encimera se debe colocar:
• a una distancia mínima de 40 mm de la pared
posterior;
• de modo que se mantenga una distancia mínima de
20 mm entre el hueco para el empotramiento y el
mueble que se encuentra debajo.
• Los muebles situados a un costado, cuya altura
supere la de la superficie de trabajo, deben estar
situados a 600 mm., como mínimo, del borde de la
misma.
28

• 400V - 2+N ~ 50 Hz
ES
Fijación
• 220-240V 3 ~ 50 Hz
La instalación del aparato se debe realizar sobre una
• 400V 3 - N ~ 50 Hz
superficie de apoyo perfectamente plana.
• 400V - 2+2N ~ 50 Hz
Las deformaciones que se podrían provocar por una
mala fijación, pueden alterar las características y las
Separe los cables y realice la conexión de acuerdo
prestaciones de la encimera.
con la tabla y los dibujos que se muestran a
La longitud del tornillo de regulación de los ganchos
continuación:
Tensión tipo y
de fijación se debe determinar antes de su montaje en
Cable eléctrico
Conexión de los cables
frecuencia de la red
base al espesor de la superficie de apoyo:
400V - 2+N ~
: amarillo/verde;
• espesor de 30 mm: tornillo de 23 mm;
50 Hz
• espesor de 40 mm: tornillo de 13 mm.
220-240V 3 ~
N: los 2 cables azules
50 Hz
juntos
Para realizar la fijación, el procedimiento es el siguiente:
L1: negro
400V 3-N ~
1. Con los tornillos cortos sin punta, enrosque los 4 muelles
50 Hz
L2: marrón
de centrado en los orificios ubicados en el centro de cada
: amarillo/verde;
costado de la encimera;
2. introduzca la encimera en el hueco del mueble, céntrela
400V - 2+2N ~
N1: azul
50 Hz
N2: azul
y ejerza una adecuada presión sobre todo el perímetro para
L1: negro
que se adhiera perfectamente a la superficie de apoyo.
L2: marrón
3. en las encimeras con perfiles laterales: después de
Conexión del cable de alimentación eléctrica a la red
haber colocado la encimera en el mueble, introduzca
En el caso de conexión directa a la red, es necesario
los 4 ganchos de fijación (cada uno con su perno) en el
interponer entre el aparato y la red, un interruptor omnipolar
perímetro inferior de la encimera enroscándolos con los
con apertura mínima entre los contactos de 3 mm.
tornillos largos con punta hasta que el vidrio se adhiera a la
superficie de apoyo.
! El instalador es responsable de la correcta conexión
eléctrica y del cumplimiento de las normas de
! Es indispensable que los tornillos de los muelles de
seguridad.
centrado permanezcan accesibles.
! En conformidad con las normas de seguridad, una
Antes de efectuar la conexión verifique que:
vez empotrado el aparato, no se deben producir
• la toma tenga conexión a tierra y que sea conforme con
contactos con las piezas eléctricas.
la ley;
! Todas las partes que garantizan la protección se
• la toma sea capaz de soportar la carga máxima
deben fijar de modo tal que no puedan ser quitadas
de potencia de la máquina indicada en la placa de
sin la ayuda de una herramienta.
características que se encuentra en el aparato;
• la tensión de alimentación eléctrica esté comprendida
dentro de los valores indicados en la placa de
Conexión eléctrica
características;
• la toma sea compatible con el enchufe del aparato.
! La conexión eléctrica de la encimera y la de un horno
Si no es así, sustituya la toma o el enchufe; no utilice
empotrado deben ser realizadas por separado, tanto
prolongaciones ni conexiones múltiples.
por razones de seguridad eléctrica como para facilitar
las operaciones de extracción del horno.
! Una vez instalado el aparato, el cable eléctrico y la
toma de corriente deben ser fácilmente accesibles.
Conexión monofásica
! El cable no debe sufrir pliegues ni compresiones.
La encimera posee un cable de alimentación eléctrica
! El cable debe ser revisado periódicamente y
ya conectado y preparado para la conexión monofásica.
sustituido sólo por técnicos autorizados.
Realice la conexión de los cables de acuerdo con la tabla y
! La empresa declina toda responsabilidad cuando
los dibujos que se muestran a continuación:
estas normas no sean respetadas.
Tensión tipo y
Cable eléctrico Conexión de los cables
frecuencia de la red
! No quitar ni sustituir por ninguna razón el cable
: amarillo/verde;
de alimentación. Si se sustituye o extrae caduca
220-240V 1+N ~
N: los 2 cables azules juntos
50 Hz
L: el marrón junto al negro
la garantía y la marca CE. INDESIT no se asume la
responsabilidad en caso de accidentes o daños
Otros tipos de conexión
derivados de la sustitución o remoción del cable de
Si las características de la instalación eléctrica coinciden
alimentación original. Se admite exclusivamente la
con alguna de las siguientes:
sustitución con un repuesto original y realizada por
Tensión tipo y frecuencia de la red
personal autorizado por INDESIT.
29

Puesta en
funcionamiento y uso
! La cola aplicada sobre las juntas deja algunas trazas
aproximadamente.
ES
de grasa en el vidrio. Antes de utilizar el aparato, se
recomienda eliminarlas con un producto específico para
Encendido de las zonas de cocción
el mantenimiento, no abrasivo. Durante las primeras horas
de funcionamiento, es posible advertir un olor a goma que
Cada zona de cocción se acciona utilizando un botón de
pronto desaparecerá.
selección
y un dispositivo de regulación de la potencia
! Cuando la encimera se conecta a la red de alimentación
compuesto por botones de selección de la potencia de 0 a
eléctrica, después de algunos segundos se emite una breve
9.
señal sonora. Sólo a partir de ese momento es posible
• Para poner en funcionamiento una zona de cocción,
encender la encimera.
pulsar el correspondiente botón de mando y fijar la
Ruidos de normal funcionamiento de la placa de cocina:
potencia deseada utilizando los botones de selección de
• Rumor: Se debe a la vibración de los elementos metálicos
potencia de 0 a 9.
que componen el inductor y la olla y se generan debido al
campo electromagnético necesario para el calentamiento;
Apagado de las zonas de cocción
el mismo aumenta al aumentar el nivel de potencia del
inductor.
Para apagar una zona de cocción, selecciónela mediante el
• Leve silbido: Se presenta cuando la olla colocada en la
zona de cocción está vacía; el ruido desaparece apenas
correspondiente botón de selección
y:
se agregan alimentos o agua.
• Presionar el botón de selección de potencia 0: La
• Crepitación: Es un ruido producido por las vibraciones
potencia vuelve inmediatamente a 0 y la zona de cocción
del material del fondo de la olla cuando es atravesado
se apaga.
por las corrientes parásitas generadas por el campo
electromagnético (inducción); puede variar su intensidad
Función booster
dependiendo del material del fondo de la olla y se reduce
cuando el tamaño de la olla aumenta.
Para disminuir los tiempos de calentamiento en algunas
• Silbido intenso: Se presenta cuando funcionan al mismo
zonas de cocción, es posible activar la función booster
tiempo los dos inductores en la misma vertical a la
Booster
(acelerador) presionando el botón
. Se enciende la luz
potencia máxima y/o si en el grande se ha fijado la
piloto colocada sobre el botón. Esta función sobrealimenta la
función booster mientras que el otro está autorregulado.
potencia a 2000W o 3000W dependiendo del tamaño de la
El ruido se reduce apenas desciende el nivel de potencia
zona de cocción.
del inductor autorregulado; se manifiesta en particular
La función booster se interrumpe automáticamente después
cuando el fondo de la olla está compuesto por capas de
de 4 minutos. Mientras el booster de una zona de cocción
material diferente.
está activo, la zona de cocción correspondiente anterior o
• Ruido del ventilador: Para el funcionamiento correcto
posterior tendrá potencia limitada (Ej.: Si está funcionando
de la placa y para garantizar la seguridad de la parte
el booster de la placa posterior izquierda, la potencia de
electrónica de posibles sobrecalentamientos es necesario
la placa delantera izquierda disminuye). Para más detalles
el funcionamiento del ventilador. El ventilador funciona
consultar la Descripción técnica de los modelos.
a la máxima potencia cuando el inductor grande está al
máximo nivel de potencia o cuando está conectada la
Programación de la duración de una cocción
función booster; en los otros casos funciona con potencia
! Se pueden programar simultáneamente todas las zonas de
media dependiendo de la temperatura que registra.
cocción para que cocinen entre 1 y 99 minutos.
Además, es posible que el ventilador siga funcionando
incluso después que se ha desconectado la placa, esto
1. Seleccione la zona de cocción utilizando el botón de
se debe a que la temperatura registrada es aún elevada.
selección correspondiente.
Los ruidos descriptos se deben a la tecnología de inducción
2. Regule el nivel de potencia de la zona de cocción.
y no implican necesariamente defectos de funcionamiento.
3. Presione el botón de programación
. Centelleará el
! La presión prolongada de los botones - y + permite el
piloto correspondiente a la zona elegida.
avance veloz de los niveles de potencia y de los minutos del
4. Seleccione la duración de la cocción deseada utilizando
temporizador.
los botones
- y +.
Encendido de la encimera
5. Confirme la operación presionando el botón
, si no lo hace, después de 10 segundos se selecciona
El encendido de la encimera se produce manteniendo
automáticamente.
presionado el botón
durante un segundo
La cuenta al revés del temporizador comienza
30

inmediatamente. La finalización de la cocción programada
los mandos se bloquean y el piloto que se encuentra encima
ES
está indicada por una señal sonora (durante 1 minuto) y la
del botón se enciende.
zona de cocción se apaga.
Para poder volver a realizar regulaciones (por ej.: interrumpir
Repita el procedimiento descrito precedentemente para
la cocción), es necesario desbloquear los mandos: presione
cada placa que se pretende programar.
el botón
durante algunos instantes, la luz testigo se
apagará y el panel de control se desbloqueará.
Visualización en el caso de programación múltiple
Cuando una o varias placas han sido programadas, el
Apagado de la encimera
display visualiza el tiempo remanente de la placa que está
más cerca del final del tiempo programado, indicando su
Presionando el botón , el aparato se apaga, no confíe en
posición con el piloto intermitente. Los
el detector de ollas.
pilotos de las otras placas programadas
Si los mandos del aparato fueron bloqueados, continuarán
permanecen encendidos.
estando bloqueados incluso después de haber vuelto a
Para visualizar el tiempo restante de las otras
encender la encimera. Para poder encender nuevamente la
encimera, es necesario primero desbloquear los mandos.
placas programadas, presione varias veces el botón
: se
mostrarán secuencialmente y en sentido horario los tiempos
Modalidad “demo”
del contador de minutos y de todas las placas programadas,
comenzando por la que está ubicada adelante a la izquierda.
Es posible seleccionar una modalidad demostrativa en
la que el panel de control funciona normalmente (incluso
Modificar la programación
los mandos correspondientes a la programación), pero
los elementos calentadores no se encienden. Para activar
1. Presione varias veces el botón
hasta que se muestre
la modalidad “demo” es necesario que la encimera esté
el tiempo de la placa que se pretende modificar.
encendida y todas las placas estén apagadas:
• Presione y mantenga presionados simultáneamente los
2. Accione los botones
- y + para fijar el nuevo tiempo.
botones
+ y - durante 6 segundos. Cumplidos los 6
3. Confirme la operación presionando el botón
.
segundos, el piloto ON/OFF y el piloto BLOQUEO DE
MANDOS centellean durante un segundo. Suelte los
Para cancelar una programación, realice las operaciones
indicadas. En el punto 2 presione el botón
-: la duración
botones
+ y - y presione el botón ;
disminuye progresivamente hasta el 0. La programación se
• la pantalla visualizará DE y MO y la encimera se apagará;
anula y la pantalla sale de la modalidad programación.
• al volver a encender la encimera, se encontrará en la
modalidad “demo”.
El contador de minutos
La encimera debe estar encendida.
Para salir de esta modalidad siga el procedimiento ya
El contador de minutos permite fijar una duración máxima de
descrito. La pantalla visualizará DE y OF y la encimera se
99 minutos.
apagará. Cuando vuelva a encender la encimera, funcionará
normalmente.
1. Presione el botón de programación
hasta que se
Consejos prácticos para el uso del aparato
encienda el piloto del contador de minutos
.
! Utilice recipientes para la cocción fabricados con
2. Seleccione la duración deseada utilizando los botones
- y
material compatible con el principio de inducción (material
ferromagnético). Se recomienda el uso de ollas de: hierro
+.
fundido, acero esmaltado o inoxidable especial para
3. Confirme la operación presionando el botón
.
inducción. Para asegurarse de la compatibilidad de un
La cuenta al revés del temporizador comienza
recipiente, es suficiente realizar una prueba con un imán.
inmediatamente. Una vez que se ha cumplido el tiempo, se
emite una señal sonora (de 1 minuto de duración).
Bloqueo de los mandos
Cuando la encimera está en funcionamiento, es posible
bloquear el panel de control para evitar el peligro de
modificaciones fortuitas de las regulaciones (niños,
operaciones de limpieza, etc.). Presionando el botón
,
31

ES
32
Sobrecalentamiento
En el caso de un sobrecalentamiento de los componentes
electrónicos, la encimera se apagará automáticamente y en
la pantalla aparecerá
F seguida de un número centelleante.
Este mensaje desaparecerá y la encimera se podrá volver
a utilizar apenas la temperatura haya descendido a un nivel
aceptable.
Además, para obtener las mejores prestaciones de la
encimera:
Interruptor de seguridad
• Utilice ollas con fondo plano y de gran espesor para
asegurarse que se adhieran perfectamente a la zona
El aparato posee un interruptor de seguridad que apaga
calentadora
las zonas de cocción automáticamente cuando se alcanza
un tiempo límite de uso a un determinado nivel de potencia.
Durante la interrupción de seguridad, el display indica “0”.
Ejemplo: la placa posterior derecha se ha fijado en 5,
mientras que la placa delantera izquierda en 2. La posterior
• Utilice ollas de un diámetro suficiente para cubrir
derecha se apagará después de 5 horas de funcionamiento,
completamente la zona de cocción, de ese modo se
la delantera izquierda después de 8 horas.
garantiza el aprovechamiento de todo el calor disponible.
Nivel de potencia
Límite de duración de funcionamento en horas
1
9
2
8
3
7
• Verifique que el fondo de las ollas esté siempre
perfectamente seco y limpio para garantizar una correcta
4
6
adherencia y mayor duración, no sólo de las zonas de
5
5
cocción, sino también de las ollas.
6
4
• Evite utilizar las mismas ollas utilizadas en los
7
3
quemadores a gas: la concentración de calor en los
quemadores a gas puede deformar el fondo de la olla
8
2
que, en consecuencia, pierde adherencia.
9
1
Dispositivos de seguridad
Señal sonora
Detección de los recipientes
Algunas anomalías, como:
Cada zona de cocción está provista de un dispositivo de
• un objeto (olla, cubierto, etc.) dejado sobre el área de
detección de la olla. La placa emite calor únicamente en
mandos durante más de 10 segundos
presencia de una olla de dimensiones adecuadas para esa
• un derrame sobre el área de mandos,
zona de cocción. La luz testigo centelleante puede indicar:
• la presión sobre un botón ejercida por demasiado tiempo,
• una olla incompatible
pueden provocar la emisión de una señal sonora. Para
• una olla de diámetro insuficiente
interrumpirla, elimine la causa del mal funcionamiento.
• que se ha levantado la olla
Si no se elimina la causa de la anomalía, la señal sonora
persiste y la encimera se apagará.

Consejos prácticos para la cocción
ES
Cocción a presión
Freído
ª
Olla a presión
muy fuerte
Cocción a fuego
•
Asado Ebullición
•
Crêpe Cocción a fuego fuerte y dorado
(Asados, Bistec, Escalopes, Filetes de
Cocción a
pescado, Huevo frito)
fuego fuerte
¶
¶
Espesamiento rápido (Salsas líquidas)
Agua hirviendo (Pasta, arroz, Verduras)
Leche
§
§
Espesamiento lento (Salsas consistentes)
S
Cocción a fuego medioCocción a
S
Cocción a Baño María
Cocción olla a presión después del silbido
¢
¢
£
Cocción a fuego
Calentar comidas
fuego bajo
bajo (guisados)
™
™
Salsa al chocolate Mantener caliente
Cocción
a fuego
muy bajo
¡
33

Precauciones y consejos
! El aparato ha sido proyectado y fabricado en
que sean chocados accidentalmente.
ES
conformidad con las normas internacionales sobre
• No desconecte el aparato de la toma de corriente
seguridad. Estas advertencias se suministran por
tirando del cable sino sujetando el enchufe.
razones de seguridad y deben ser leídas atentamente.
• No realice la limpieza o el mantenimiento sin
haber desconectado primero el aparato de la red
Este aparato es conforme con las siguientes
eléctrica.
Normas Comunitarias:
• No está previsto que el aparato sea utilizado por
personas (incluidos los niños) con capacidades
-2006/95/CEE del 12.12.06 (Baja Tensión) y sucesivas
físicas, sensoriales o mentales disminuidas, por
modificaciones
personas inexpertas o que no tengan familiaridad
- 2004/108/CEE del 15/12/04 (Compatibilidad
con el producto, salvo que estén vigiladas por una
Electromagnética) y sucesivas modificaciones
persona responsable de su seguridad, o que no
- 93/68/CEE del 22/07/93 y sucesivas modificaciones.
hayan recibido instrucciones preliminares sobre el
- 1275/2008 stand-by/off mode.
uso del aparato.
• Advertencia para las personas que poseen
Seguridad general
marcapasos u otros dispositivos médicos activos:
La encimera es conforme con todas las
! Controle que no se obstruya nunca la toma de aire
normas vigentes en materia de interferencias
a través de la rejilla del ventilador. La encimera para
electromagnéticas.
empotrar necesita una correcta aireación para el
Por lo tanto, este producto responde perfectamente
enfriamiento de los componentes electrónicos.
a todos los requisitos de ley (directivas 89/336/CEE).
! No se aconseja instalar una encimera por inducción
Ha sido proyectado para no crear interferencias con
sobre un frigorífico bajo encimera (calor) o sobre una
otros equipos eléctricos, con la condición de que
lavadora (vibraciones). En esos casos, el espacio
los mismos también sean conformes con dichas
necesario para la ventilación de los elementos
normas.
electrónicos sería insuficiente.
La encimera de inducción genera campos
• El aparato ha sido fabricado para un uso de tipo no
electromagnéticos de alcance limitado.
profesional en el interior de una vivienda.
Para evitar todo riesgo de interferencias entre la
• El aparato no se debe instalar al aire libre, tampoco
encimera y el marcapasos, éste último deberá ser
si el espacio está protegido porque es muy peligroso
realizado en conformidad con las normas vigentes.
dejarlo expuesto a la lluvia y a las tormentas.
Al respecto, nosotros sólo podemos garantizar la
• No toque la máquina descalzo o con las manos y pies
conformidad de nuestro producto. Para obtener
mojados o húmedos.
información sobre la conformidad o por problemas
• El aparato debe ser utilizado para cocinar
de incompatibilidad, consulte con su médico o con
alimentos, sólo por personas adultas y siguiendo las
el fabricante del marcapasos.
instrucciones contenidas en este manual. No utilice la
• Evitar que los niños jueguen con el aparato.
encimera como superficie de apoyo ni como tajo de
• No coloque objetos metálicos (cuchillos, cucharas,
cocina.
cubiertos, etc.) sobre la encimera porque pueden
• La encimera de vidriocerámica es resistente a los
calentarse.
choques mecánicos, no obstante, se puede rajar (o
• El aparato no se debe poner en funcionamiento
eventualmente quebrantarse) si es golpeada con
a través de un temporizador externo o de un
un objeto con punta, como por ejemplo un utensilio.
sistema de mando a distancia.
Si esto sucediera, desconecte inmediatamente el
aparato de la red de alimentación eléctrica y llame al
Servicio de Asistencia Técnica.
• Evite que el cable de alimentación eléctrica de otros
Eliminación
electrodomésticos entre en contacto con las partes
• Eliminación del material de embalaje: respete las
calientes de la encimera.
normas locales, de esta manera los embalajes podrán
• No olvide que la temperatura de las zonas de cocción
ser reutilizados.
permanece bastante elevada durante treinta minutos,
• La norma europea 2002/96/CE sobre la eliminación de
como mínimo, después que se han apagado. El calor
aparatos eléctricos y electrónicos (RAEE), establece
residual también está señalado por un indicador (ver
que los electrodomésticos no se deben eliminar de la
Puesta en funcionamiento y uso).
misma manera que los desechos sólidos urbanos. Los
• Mantenga cualquier objeto que se pueda fundir a
aparatos en desuso se deben recoger separadamente
una debida distancia de la encimera, por ejemplo,
para optimizar la tasa de recuperación y reciclaje
objetos de plástico, de aluminio o productos con
de los materiales que los componen e impedir
un elevado contenido de azúcar. Tenga particular
potenciales daños para la salud y el medio ambiente.
cuidado con los embalajes y películas de plástico
El símbolo de la papelera tachada se encuentra en
o aluminio: si se dejan sobre las superficies todavía
todos los productos para recordar la obligación de
calientes o tibias pueden causar un grave daño a la
recolección separada.
encimera.
Para obtener mayor información sobre la correcta
• Verifique que los mangos de las ollas estén siempre
eliminación de electrodomésticos, los poseedores
dirigidos hacia dentro de la encimera para evitar
de los mismos podrán dirigirse al servicio público
responsable o a los revendedores.
34

Mantenimiento y cuidados
Interrumpir el suministro de corriente
derramara agua, seque rápidamente y con cuidado.
ES
eléctrica
! Algunas encimeras poseen un marco de aluminio que
se asemeja al acero inoxidable. No utilice productos
Antes de realizar cualquier operación, desconecte el
para la limpieza y el desengrase no adecuados para el
aparato de la red de alimentación eléctrica.
aluminio.
Desmontar la encimera
Limpiar el aparato
Cuando sea necesario, se puede desmontar la
encimera:
! Evite el uso de detergentes abrasivos o corrosivos,
1. quite los tornillos que fijan los muelles de centrado
como aerosoles para barbacoas y hornos,
en los costados;
quitamanchas y productos anticorrosivos, jabones
2. afloje los tornillos de los ganchos de fijación en las
en polvo y esponjas con superficie abrasiva, pueden
esquinas;
rayar irremediablemente la superficie.
3. extraiga la encimera del mueble.
! No utilice nunca limpiadores a vapor o de alta
! Se recomienda evitar acceder a los mecanismos
presión para la limpieza del aparato.
internos para intentar una reparación. En caso de
• Para un mantenimiento ordinario, es suficiente lavar
avería, llame al Servicio de Asistencia Técnica.
la encimera con una esponja húmeda, secándola
luego con un papel absorbente para cocina.
Descripción técnica de los modelos
• Si la encimera está particularmente sucia,
refriéguela con un producto específico para la
El sistema por inducción es el procedimiento de
limpieza de las superficies de vidriocerámica,
cocción más rápido que existe. A diferencia de las
enjuáguela y séquela.
placas tradicionales, no es la zona de cocción que se
• Para eliminar las acumulaciones de suciedad más
calienta: El calor es generado directamente dentro de
consistentes utilice una raedera especial. Intervenga
la olla la cual deberá poseer necesariamente un fondo
lo antes posible, sin esperar que el aparato se enfríe
de material ferromagnético.
para evitar que los residuos formen costras. Se
pueden obtener excelentes resultados usando una
Leyenda:
esponja con hilos de acero inoxidable especial para
I = zona de cocción por inducción simple
encimeras de vidriocerámica, embebida en agua y
B = booster: la zona de cocción puede ser
jabón.
sobrealimentada a 3000 vatios
• Si sobre la encimera se hubieran fundido
* = la potencia máxima está limitada mientras
accidentalmente objetos o materiales como plástico
esté en funcionamiento el booster de la zona de
o azúcar, elimínelos inmediatamente con la raedera,
cocción posterior correspondiente (ver Puesta en
mientras la superficie está todavía caliente.
funcionamiento y uso).
• Una vez limpia, la encimera se puede tratar con
un producto específico para el mantenimiento
y la protección: la película invisible que deja
Encimeras
KIO 633 T Z
este producto protege la superficie en caso de
Zonas de cocción Potencia (en W)
Posterior izquierda
I 1400 – B 2000* – 600 si Del. Izquierda *
escurrimientos durante la cocción. Se recomienda
Posterior derecha
I 3000 – B 4000
realizar estas operaciones con el aparato tibio o frío.
Delantera izquierda
I 2200 – B 3000* – 1600 si Post. Izquierda*
• Recuerde siempre enjuagar la encimera con agua
Potencia total
7600
limpia y secarla cuidadosamente: en efecto, los
residuos de productos podrían encostrarse durante
la siguiente cocción.
Estructura de acero inoxidable (sólo en los modelos
con marco)
El acero inoxidable puede mancharse por la acción de
agua muy calcárea dejada por un período de tiempo
prolongado en contacto con el mismo o debido a
productos para la limpieza con contenido de fósforo.
Se aconseja enjuagar abundantemente y secar con
cuidado después de la limpieza de la encimera. Si se
35

Instalação
! É importante guardar este folheto para poder
PT
consultá-lo a qualquer momento. No caso de venda,
cessão ou mudança, assegure-se que o mesmo
permanece com o aparelho para informar o novo
min. 20 mm
proprietário sobre o funcionamento e sobre as
respectivas advertências.
5 mm
! Leia com atenção as instruções: há informações
GAVETA
importantes sobre a instalação, a utilização e a
segurança.
min. 40 mm
Posicionamento
! As embalagens não são brinquedos para as crianças
e devem ser eliminadas em conformidade com as
regras de colecta diferenciada (veja em Precauções e
min. 20 mm
Conselhos).
! A instalação deve ser realizada segundo estas
5 mm
instruções e por pessoal profissional qualificado. Uma
FORNO VENTILADO
instalação errada pode causar danos a pessoas,
animais ou objectos.
min. 40 mm
Encaixe
Para garantir um bom funcionamento do aparelho
é necessário que o móvel seja de características
adequadas.
• o material do plano de apoio deve resistir a uma
temperatura de aproximadamente 100ºC;
LADO ANTERIOR DO
• se desejar instalar o plano de cozedura sobre um
PLANO DE COZEDURA
forno, este deve ser equipado com de um sistema de
arrefecimento com ventilação forçada;
PLANO
• evite instalar o plano de cozedura sobre uma máquina
DE APOIO
30
40
de lavar louça: se for faze-lo, instale um elemento
de separação entre os dois aparelhos com retenção
PLANO DE
hermética;
COZEDURA VIRADO
• conforme o plano de cozedura que desejar instalar
(veja guras), o vão do móvel deverá ter as seguintes
dimensões:
590
48
520
560 +/- 1
490 +/- 1
Ventilação
Para consentir uma adequada ventilação e para evitar
o superaquecimento das superfícies ao redor do aparelho, o
plano de cozedura deve ser posicionado:
• a uma distância mínima de 40 mm da parede de trás;
• de forma a manter uma distância mínima de 20 mm
entre o vão para o encaixe e o móvel abaixo dele.
• Os móveis situados ao lado, com altura superior
aquela do plano de trabalho, devem ser situados ao
menos 600 mm do bordo do mesmo plano.
36

Fixação
A instalação do aparelho deve ser realizada sobre uma
Tensão tipo e frequência de rede
PT
superfície de apoio perfeitamente plana.
• 400V - 2+N ~ 50 Hz
As deformações eventualmente provocadas por uma
• 220-240V 3 ~ 50 Hz
fixação errada poderão alterar as características e as
• 400V 3 - N ~ 50 Hz
performances do plano de cozedura.
• 400V - 2+2N ~ 50 Hz
O comprimento do parafuso de regulação dos
ganchos de fixação deve ser configurado antes da sua
Soltar os cabos e efectuar a ligação dos fios de acordo
montagem, conforme a espessura do plano de apoio:
com a tabela e os desenhos a seguir:
Tensão tipo e
Cabo eléctrico Ligação fios
• 30 mm de espessura: parafuso 23 mm;
frequência rede
• 40 mm de espessura: parafuso 13 mm.
400V - 2+N ~
50 Hz
: verde/amarelo;
220-240V 3 ~
N:
os 2 fios azuis juntos
Para a fixação proceder da seguinte maneira:
50 Hz
L1: preto
1. Com os parafusos sem ponta, parafusar as 4 molas de
L2: marrom
400V 3-N ~
centragem nos furos colocados no centro de cada lado
50 Hz
do plano;
: verde/amarelo;
2. introduza o plano de cozedura no vão do móvel a
400V - 2+2N ~
N1: azul
exercer uma adequada pressão no inteiro perímetro para
50 Hz
N2: azul
o plano de cozedura prender-se perfeitamente no plano
L1: preto
L2: marrom
de apoio.
3. para os planos com perfis laterais: após ter inserido
Ligação do cabo de alimentação à rede
o plano de cozedura no móvel, inserir os 4 ganchos de
No momento de efectuar a ligação directamente na rede,
fixação (cada um com o seu perno) no perímetro inferior
instalar entre o aparelho e a rede um interruptor omnipolar
do plano de cozedura, parafusando-os com os parafusos
com uma abertura mínima de 3 mm entre os contactos.
compridos com ponta até que o vidro fique aderente ao
! O técnico instalador é responsável pela realização
plano de apoio.
certa da ligação eléctrica e da obediência das regras
de segurança.
! É indispensável que os parafusos das molas de
Antes de efectuar a ligação, certifique-se que:
centragem sejam acessíveis.
! Em conformidade com as normas de segurança,
• a tomada tenha uma ligação à terra e seja em
depois de instalar o aparelho encaixado, não deve ser
conformidade com a legislação;
possível o contacto com componentes eléctricos.
• a tomada tenha a capacidade de suportar a carga
! Todos os componentes de garantia da protecção
máxima de potência da máquina, indicada na placa de
precisam estar presos de modo que não possam ser
identificação colocada no aparelho;
tirados sem o emprego de uma ferramenta.
• a tensão de alimentação seja entre os valores da placa
de identificação;
Ligação eléctrica
• a tomada seja compatível com a ficha do aparelho.
Em caso contrário, substitua a tomada ou a ficha; não
! A ligação eléctrica do plano de cozedura e a de um
empregue extensões nem tomadas múltiplas.
eventual forno de encaixar precisam ser realizadas
separadamente, seja por razões de segurança
! Depois de ter instalado o aparelho, o acesso ao cabo
eléctrica, seja para facilitar uma eventual remoção do
eléctrico e à tomada da corrente deve ser fácil.
forno.
! O cabo não deve ser dobrado nem comprimido.
Ligação monofásica
! O cabo deve ser verificado periodicamente e
O plano está provido de cabo de alimentação já ligado
substituído somente por técnicos autorizados.
e predisposto na fábrica para a ligação monofásica.
! A empresa exime-se de qualquer responsabilidade
Efectuar a ligação dos fios de acordo com a tabela e os
se estas regras não forem obedecidas.
desenhos a seguir:
! Não remover ou substituir por motivo algum o cabo
Tensão tipo e
Cabo eléctrico Ligação fios
frequência rede
de alimentação. A eventual remoção ou substituição do
mesmo fará decair a garantia e a marca CE. A INDESIT
: verde/amarelo
220-240V 1+N ~
exime-se de qualquer responsabilidade por incidentes
N
: os 2 fios azuis juntos
50 Hz
L
: marrom junto ao preto
ou danos derivados da substituição/remoção do cabo
de alimentação original. Admite-se exclusivamente
Outros tipos de ligações
a substituição com uma peça de reposição original,
Se o sistema eléctrico corresponder à uma dessas
efectuada por pessoal autorizado INDESIT.
características:
37

Início e utilização
! A cola aplicada nas guarnições deixa alguns traços de
Acender o plano de cozedura
PT
graxa no vidro. Antes de utilizar o aparelho, é recomendável
eliminá-la com um produto não abrasivo específico para a
Para acender o plano de cozedura manter pressionada a
manutenção. Durante as primeiras horas de funcionamento,
tecla
por aproximadamente um segundo.
pode ser que note odor de borracha, que em todo o caso
logo desaparecerá.
Acender as zonas de cozedura
! Quando o plano de cozedura for ligado electricamente,
Cada uma as zonas de cozedura é accionada mediante um
toca um breve sinal acústico depois de alguns segundos.
Somente neste ponto será possível ligar o plano de
botão de selecção
e um dispositivo de regulação da
cozedura.
potência composto pelos botões de selecção da potência de
Ruídos do normal funcionamento do plano de cozedura:
0 a 9.
• Zumbido: deve-se à vibração dos elementos metálicos
• Para colocar em funcionamento uma zona de cozedura,
dos quais são constituídos o indutor e a panela e gera-
carregue no respectivo botão de comando e defina a
se pelo campo electromagnético necessário para o
potência que desejar mediante os botões de selecção da
aquecimento; aumenta com o aumento do nível de
potência de 0 a 9.
potência do indutor.
• Leve assobio: manifesta-se quando a panela disposta
Desligar as zonas de cozedura
sobre a zona de cozedura está vazia; o ruído desaparece
assim que de adicionam alimentos ou água.
Para desligar uma zona de cozedura, seleccione-a mediante
• Crepitação: é um barulho produzido pelas vibrações do
o respectivo botão de selecção
e:
material do fundo da panela quando é atravessado pelas
• Carregue no botão de selecção da potência 0: a potência
correntes parasitas devidas ao campo electromagnético
volta imediatamente para 0 e a zona de cozedura desliga-
(indução); pode ser mais ou menos intenso conforme o
se.
material do fundo da panela e diminui se as medidas da
panela aumentam.
Função booster
• Forte assobio: manifesta-se quando funcionam
contemporaneamente os dois indutores na mesma
Para acelerar os tempos de aquecimento, em algumas zonas
vertical, com a máxima potência, e/ou se naquele
de cozedura, é possível activar a função booster carregando
maior estiver activada a função booster e o outro for
Booster
na tecla
. O indicador luminoso situado ao lado da tecla
autorregulado. O barulho diminui assim que se reduz o
acende-se. Esta função superalimenta a potência a 2000W
nível de potência do indutor autorregulado; manifesta-
ou 3000W conforme a grandeza da zona de cozedura
se especialmente quando o fundo da panela é feito de
interessada.
camadas de vários materiais.
O Booster interrompe-se automaticamente depois de
• Ruído da ventoinha: para o correcto funcionamento do
4 minutos. Até quando o booster de uma das zonas
plano e para garantir a segurança da parte electrónica
de cozedura estiver activado, a zona de cozedura
contra possíveis superaquecimentos, é necessário
correspondente anterior ou posterior terá a potência limitada
accionar uma ventoinha. A ventoinha funciona na máxima
(por ex.: se está activo o booster na chapa posterior
potência quando o indutor grande está no máximo nível
esquerda, diminui a potência da chapa anterior esquerda).
de potência ou quando está activada a função booster;
Para ulteriores esclarecimentos, consulte a Descrição técnica
em todos os outros casos, funciona com potência média
dos modelos.
conforme a temperatura detectada. Além disto, é possível
que a ventoinha continue a funcionar mesmo depois da
Programar a duração de uma cozedura
desactivação do plano, se a temperatura detectada for
elevada.
! É possível programar contemporaneamente todas as zonas
Os ruídos elencados devem-se à tecnologia de indução e
de cozedura para uma duração de cozedura entre 1 e 99
não indicam necessariamente defeitos de funcionamento.
minutos.
! Uma prolongada pressão das teclas - e + permite um
1. Seleccione a zona de cozedura mediante o respectivo
avançamento rápido dos níveis de potência e dos minutos
botão de selecção.
do timer.
2. Regular o nível de potência da zona de cozedura.
3. Carregue no botão de programação
. O indicador
correspondente à zona escolhida irá piscar.
4. Defina a duração da cozedura que desejar mediante os
38

botões
-
e
+
.
Bloqueio dos comandos
PT
5. Confirmar pressionando a tecla ou deixar que seja
Quando um plano de cozedura estiver a funcionar, é possível
seleccionada automaticamente após 10 segundos.
bloquear os comandos para evitar riscos de modificações
A contagem regressiva do timer começará imediatamente.
acidentais das regulações (crianças, operações de
No final da cozedura programada será indicado por um
limpeza etc.). Carregando no botão
os comandos se
sinal sonoro (que toca 1 minuto) e a zona de cozedura se
bloquearão e o indicador luminoso situado acima do botão
apagará.
se acenderá.
Repita o procedimento descrito acima para cada chapa que
Para voltar a modificar as regulações (por. exemplo
deseja programar.
interromper a cozedura), será necessário desbloquear os
Visualização em caso de programação múltipla.
comandos: carregue no botão
por alguns instantes;
Quando uma ou mais chapas foram programadas, o display
o indicador luminoso se apagará e os comandos se
indicará o tempo faltante da chapa que está mais próxima
desbloquearão.
ao fim do tempo programado, indicando a sua posição
com o piscar do correspondente indicador luminoso. Os
Desligar o plano de cozedura
indicadores luminosos das outras chapas programadas
Ao pressionar a tecla o aparelho desliga-se, não confie
estão acesos.
no detector de panelas.
Para visualizar o tempo faltante das outras chapas
Se os comandos do aparelhagem estiverem bloqueados,
programadas, carregue várias vezes na tecla
: serão
continuarão bloqueados mesmo depois de ter acendido
mostrados em sequência e no sentido horário os tempos do
novamente o plano de cozedura. Para poder acender
contador de minutos e de todas as chapas
novamente o plano, será necessário primeiro desbloquear os
programadas, a partir da anterior esquerda.
comandos.
Modificar a programação
Modo “demo”
É possível programar um modo demo no qual o painel de
1. Carregue várias vezes na tecla
até que seja mostrado
comandos funciona normalmente (inclusos os comandos
no display o tempo da chapa que se deseja modificar.
relativos à programação), mas os elementos aquecedores
não se acendem. Para activar o modo “demo” o plano deve
2. Carregue nas teclas
-
e
+
para programar o novo
estar aceso e todas as chapas devem estar apagadas:
tempo.
• pressionar e manter pressionados contemporaneamente
3. Carregue na tecla
para confirmar.
os botões
+
e
-
por 6 segundos. Quando vencer o
tempo de 6 segundos o indicador ON/OFF e o indicador
Para cancelar uma programação, efectue as operações
de BLOQUEIO DOS COMANDOS irão piscar por um
descritas acima. No ponto 2 carregue na tecla -: a
duração descerá progressivamente até desligar-se no 0. A
segundo. Soltar os botões
+
e
-
e carregar no botão
programação irá zerar-se e o display sairá da modalidade de
programação.
;
• o display indicará as escritas DE e MO e o plano irá
O contador de minutos
desligar-se;
• no próximo acendimento, o plano estará no modo “demo”.
O plano de cozedura deve estar aceso.
O contador de minutos consente programar uma duração de
Para sair desta modalidade, seguir o procedimento
até 99 minutos.
descrito acima. O display indicará as escritas DE e OF e o
1. Carregue no botão de programação
até que o
plano irá desligar-se. No próximo acendimento funcionará
normalmente.
indicador do contador de minutos se acenda .
2. Defina a duração que desejar mediante os botões
-
e
+
.
3. Carregue na tecla para confirmar.
A contagem regressiva do timer começará imediatamente.
Depois que tiver passado o tempo tocará um sinal acústico
(por 1 minuto).
39

Conselhos práticos para utilizar esta
PT
aparelhagem
! Utilize um recipiente cujo material de fabricação
seja compatível com o princípio da indução (material
ferromagnético). É recomendado o emprego de panelas
de: ferro gusa, aço esmaltado ou inoxidável especial para
indução. Para certificar-se da compatibilidade de um
recipiente é suficiente fazer um teste com um íman.
40
MATERIAL ADEQUADO
MATERIAL NÌO ADEQUADO
*
Ferro gusa
Cobre,
A o esmaltado
Alumínio, Vidro, Terracota,
Inox especial
Cerâmica, Inox não magnético
Aquecimento excessivo
No caso de superaquecimento dos componentes
electrónicos, o plano de cozedura desliga-se
automaticamente e no display aparece
F seguido por um
número intermitente. Esta mensagem desaparece e o plano
volta a ser utilizável mal a temperatura desceu a um nível
aceitável.
Interruptor de segurança
O aparelho é dotado de um interruptor de segurança que
desliga as zonas de cozedura automaticamente quando é
alcançado um tempo máximo de utilização a um determinado
nível de potência. Durante uma interrupção de segurança, o
display indicará “0”.
Exemplo: a chapa posterior direita está programada no 5,
Para obter as melhores performances do plano de cozedura:
enquanto a chapa anterior esquerda no 2. A posterior direita
• Empregue panelas com fundo chato e elevada espessura,
irá desligar-se após 5 horas de funcionamento, a anterior
para ter a certeza que haverá uma perfeita aderência à
esquerda após 8 horas.
zona de aquecimento.
Nível de potência
Limitação da duração de functionamento em horas
1
9
2
8
• Empregue panelas com diâmetro suficiente para cobrir
inteiramente a zona de aquecimento, de maneira que se
3
7
aproveite inteiramente o calor disponível.
4
6
5
5
6
4
• Certifique-se que o fundo das panelas esteja sempre
7
3
perfeitamente enxuto e limpo, para assegurar uma
8
2
aderência certa e uma longa durabilidade não somente
das zonas de cozedura, mas também das próprias
9
1
panelas.
Sinal acústico
• Evite utilizar as mesmas panelas que emprega nos
Algumas anomalias, nomeadamente:
queimadores a gás: a concentração de calor nos
• um objecto (panela, talher etc.) foi deixado mais de 10
queimadores a gás poderá deformar o fundo das panelas,
segundos na área de comandos;
que desta maneira perderá aderência.
• um derramamento na área dos comandos,
• uma pressão exercida por muito tempo em um botão,
Dispositivos de segurança
podem provocar uma sinalização acústica. Resolva a
Detecção de recipientes
causa do mau funcionamento para o sinal sonoro deixar
Cada uma das zonas de cozedura é equipada com um
de tocar. Se a causa da anomalia não for removida, o
dispositivo de detecção de panela. A chapa emite calor
sinal acústico persistirá e o plano irá desligar-se.
unicamente se houver uma panela de medidas adequadas
na respectiva zona de cozedura. O indicador a piscar pode
indicar:
• uma panela incompatível
• uma panela de diâmetro insuficiente
• que a panela está levantada




