Hotpoint-Ariston KIO 632 C C: Монтаж
Монтаж: Hotpoint-Ariston KIO 632 C C
71
RS
Монтаж
! Важно сохранить данное руководство для его
последующих консультации. В случае продажи, передачи
изделия или при переезде на новое место жительства
необходимо проверить, чтобы руководство оставалось
вместе с изделием, для того чтобы его новыи владелец
мог ознакомиться с правилами эксплуатации и с
соответствующими предупреждениями.
!
Внимательно прочитаите инструкции: в них содержатся
важные сведения о монтаже изделия, его эксплуатации и
безопасности.
Расположение
!
Не разрешаите детям играть с упаковочными
материалами. Упаковка должна быть уничтожена
в соответствии с правилами сбора мусора (
см.
Предосторожности и рекомендации
).
!
Монтаж изделия производится в соответствии с данными
инструкциями квалифицированными специалистами.
Неправильный монтаж изделия может стать причиной
повреждения имущества и причинить ущерб людям и
домашним животным.
Встроенный монтаж
Для обеспечения исправного функционирования
встраиваемого изделия кухонный модуль должен иметь
соответствующие характеристики:
• поверхность кухонного топа должна быть из материала,
устойчивого к температуре примерно 100°C;
• если варочная панель устанавливается над духовым
шкафом, он должен быть оснащен системой
охлаждения с принудительной вентиляцией.
• не рекомендуется устанавливать варочную панель
над посудомоечными машинами: при необходимости
установите между варочной панелью и посудомоечной
машиной герметичную разделительную вставку;
• в зависимости от модели варочной панели, которую вы
устанавливаете (
см. схемы)
, размеры ниши в кухонном
модуле должны быть следующими:
560 +/- 1
490 +/- 1
48
590
520
690
520
560 +/- 1
490 +/- 1
48
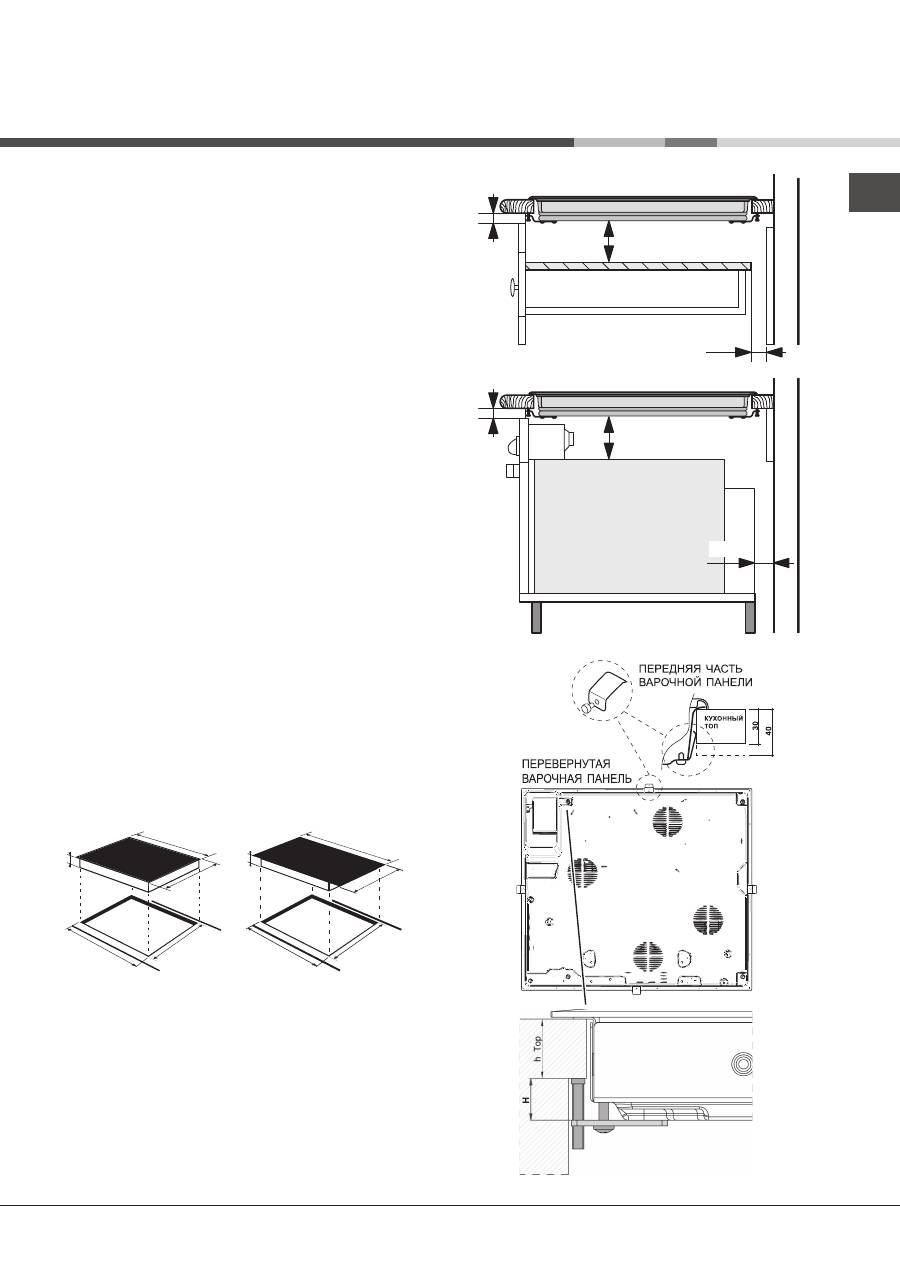
Вентиляция
Для обеспечения надлежащей вентиляции и во избежание
перегрева прилегающих поверхностеи варочная панель
должна быть установлена:
• на минимальном расстоянии 40 мм от задней стенки;
• между проемом под варочную панель и
расположенным снизу кухонным элементом должно
быть расстояние не менее 20 мм.
•
Кухонные элементы, расположенные рядом с кухонной
плитой, высота которых превышает уровень варочной
панели, должны находиться на расстояние не менее 600
мм от края варочной панели.
5 mm
min. 20 mm
min. 20 mm
min. 40 mm
Ящик
5 mm
min. 40 mm
Вентилируемая
72
RS
Крепление
Изделие должно быть установлено
на идеально ровнои
поверхности.
Возможные деформации, вызванные неправильным
креплением, могут привести к изменениям характеристик
и эксплуатационных качеств варочнои панели.
Длина регуляционного винта крепежных крюков
регулируется перед началом монтажа
по толщине кухонного
топа:
• толщина 30 мм: длина винта 23 мм;
• толщина 40 мм: длина винта 13 мм;
Порядок крепления изделия:
1. При помощи коротких тупых шурупов привинтите 4
центровочные пружины в отверстиях, расположенных по
бокам варочнои панели;
2. Вставьте варочную панель в проем в кухонном
модуле, выровняите и слегка нажмите в центр вплодь до
идеального прилегания варочнои панели к поверхности
кухонного топа.
3. для варочных панелеи с боковыми профилями: вставив
варочную панели в нишу кухонного модуля, вставьте 4
крепежных крюка (каждыи со своим штифтом) по нижнему
периметру варочнои панели, закручивая их длинными
острыми болтами до тех пор, пока стекло не будет плотно
прилегать к кухонному топу.
!
Важно, чтобы шурупы центровочных пружин оставались
доступными.
!
В соответствии с правилами безопасности после
установки изделия в кухонныи модуль должна быть
исключена возможность касания к электрическими
частями.
!
Все защитные элементы должны быть закреплены таким
образом, чтобы их можно было снять только при помощи
специального инструмента.
Электрическое подключение
!
Электрическое подключение варочнои панели и
возможного встраиваемого духового шкафа должно
выполняться раздельно по причинам безопасности, а так
же для легкого съема духового шкафа.
Монофазное соединение
Варочная панель оснащена сетевым кабелем,
рассчитанным на монофазное электропитание.
Подсоедините провода в соответствии с таблицеи и
приведенным ниже схемам:
Типовое
напряжение и
частота сети
Электрический провод
Подсоединение
проводов
220-240В 1+N ~
50 Гц
: желто-зеленый;
N: 2 синий провода
вместе на
L: коричневый вместе с
черным
Другие типы соединений
Если электропроводка соответствует однои из следующих
характеристик:
Типовое напряжение и частота сети
• 400В - 2+N ~ 50 Гц
• 220-240В 3 ~ 50 Гц
• 400V 3 - N ~ 50
Гц
• 400В - 2+2N ~ 50 Гц
Разделите провода и подсоедините проводники в
соответствии с таблицеи и приведенным ниже схемам:
Т
иповое
напряжение и
частота сети
Электрический провод
Подсоединение
проводов
400В -2 +N ~
50 Гц
220-240В
3 ~
50 Гц
400V 3-N~ 50 Гц
: желто-зеленый,
N: 2 синий провода
вместе на
L1: черный
L2: коричневый
400В -2 +2N ~
50 Гц
: желто-зеленый;
N1: синий
N2: синий
L1: черный
L2: коричневый
Подсоединение сетевого кабеля изделия к сети
электропитания
В случае прямого подключения изделия к сети необходимо
установить между изделием и электрическои сетью
многополярныи разъединитель с минимальным расстоянием
между контактами 3 мм.
!
Электромонтер несет ответственность за правильное
подключение изделия к электрическои сети и за соблюдение
правил безопасности.
Перед осуществлением электрического подсоединения
необходимо проверить следующее:
• сетевая розетка должна быть соединена с заземлением и
соответствовать нормативам;
• сетевая розетка должна быть расчитана на максимальную
потребляемую мощность изделия, указанную на
паспортнои табличке с техническими характеристиками;
• напряжение и частота тока сети должны соответствовать
электрическим данным изделия;
• сетевая розетка должна быть совместима со штепсельнои
вилкои изделия. В противном случае замените розетку или
вилку; не используите удлинители или троиники.
!
Изделие должно быть установлено таким образом, чтобы
сетевои кабель и сетевая розетка были легко доступны.
!
Сетевои кабель изделия не должен быть согнут или сжат.
!
Регулярно проверяите состояние сетевого кабеля и при
необходимости поручаите его замену только уполномоченным
техникам.
!
Производитель не несет ответственности за
последствия несоблюдения перечисленных выше
требовании.
!
Категорически запрещается отсоединять и не заменять
сетевой кабель. В случае отсоединения или замены сетевого
кабеля гарантия на изделие аннулируется, равно как и
маркировка ЕС. Компания INDESIT снимает с себя всякую
ответственность за несчастные случаи или ущерб, вызванный
отсоединением или заменой оригинального сетевого кабеля.
Допускается замена только на оригинальный сетевой кабель,
выполняемая техником, уполномоченным Компанией INDESIT.
Table of contents
- Installation
- Start-up and use
- Precautions and tips
- Care and maintenance
- Installation
- Mise en marche et utilisation
- Précautions et conseils
- Nettoyage et entretien
- Instalación
- Puesta en funcionamiento y uso
- Precauciones y consejos
- Mantenimiento y cuidados
- Instalação
- Início e utilização
- Precauções e conselhos
- Manutenção e cuidados
- Installation
- Inbetriebsetzung und Gebrauch
- Vorsichtsmaßregeln und Hinweise
- Reinigung und Pflege
- Installazione
- Avvio e utilizzo
- Precauzioni e consigli
- Manutenzione e cura
- Installatie
- Starten en gebruik
- Voorzorgsmaatregelen en advies
- Onderhoud en verzorging
- Instalacja
- Uruchomienie i użytkowanie
- Zalecenia i środki ostrożności
- Konserwacja i utrzymanie
- Монтаж
- Включение и эксплуатация
- Предосторожности и рекомендации
- Техническоеобслуживани и уход
- Техническое описание моделей

