Hotpoint-Ariston KIC 631 T X EU – page 3
Manual for Hotpoint-Ariston KIC 631 T X EU
41
DE
Inbetriebsetzung und
Gebrauch
!
Der auf die Dichtungen aufgetragene Leim
könnte Fettspuren auf dem Glas hinterlassen. Wir
empfehlen Ihnen, diese vor Einsatz des Gerätes mit
einem herkömmlichen Reinigungsmittel (eine nicht
scheuernde Poliercreme) zu entfernen. Während der
ersten Betriebsstunden könnte ein Geruch verbrannten
Gummis zu vernehmen sein. Dies wird sich nach
kurzer Zeit geben.
!
Wird das Kochfeld an das Stromnetz angeschlossen,
ertönt nach einigen Sekunden ein kurzes akustisches
Signal. Nur daraufhin kann das Kochfeld eingeschaltet
werden.
Normale Funktionsgeräusche des Kochfeldes:
• Brummen: wird von der Vibration der Metallelemente
des Induktors und des Topfes verursacht, es
entsteht ein für die Erhitzung notwendiges
elektromagnetisches Feld; das Geräusch steigert
sich mit der Leistungssteigerung des Induktors.
• Leichtes Pfeifgeräusch: entsteht, wenn ein leerer
Topf auf die Kochzone gestellt wird; sobald
Lebensmittel oder Wasser hinzugefügt werden,
verschwindet das Geräusch.
• Prasseln: es ist ein Geräusch, das durch die
Vibrationen des Topfbodenmaterials entsteht,
sobald es von den vom Magnetfeld (Induktion)
verursachten Wirbelströmen durchdrungen wird; die
Geräuschstärke hängt vom Material des Topfbodens
ab und wird schwächer, je größer der Topf ist.
• Starkes Pfeifgeräusch: es entsteht, wenn die
beiden Induktoren auf der gleichen Vertikalen bei
maximaler Leistung funktionieren und/oder wenn
auf dem größeren der beiden die Booster-Funktion
eingeschaltet ist und der andere sich selbsttätig
reguliert. Das Geräusch wird schwächer, sobald
sich die Leistungsstufe des selbstregulierten
Induktors senkt; es tritt besonders dann auf, wenn
der Topfboden aus Schichten unterschiedlichen
Materials besteht.
• Gebläsegeräusch: zur richtigen Funktion des
Kochfelds und zum Schutz der Elektronikteile vor
Überhitzung muss ein Gebläse eingesetzt werden. Das
Gebläse läuft auf der maximalen Leistungsstufe wenn
der große Induktor auf maximaler Leistungsstufe läuft
oder wenn die Booster-Funktion eingeschaltet ist; in
allen anderen Situationen funktioniert es bei mittlerer
Leistungsstufe, je nach erfasster Temperatur. Es ist
darüber hinaus möglich, dass das Gebläse auch
bei ausgeschaltetem Kochfeld weiter läuft, wenn die
erfasste Temperatur noch hoch ist.
Die hier aufgeführten Geräusche hängen mit der
Induktionstechnologie zusammen und sind nicht
unbedingt ein Hinweis auf eine fehlerhafte Funktion.
!
Durch längeres Drücken der Tasten
-
und
+
können die Leistungswerte und die Minuten des Timers
im Schnelllauf verändert werden.
Einschalten des Kochfeldes
Das Kochfeld wird über die Taste
(für ca. 1
Sekunde gedrückt halten) eingeschaltet.
Einschalten der Kochzonen
Eine jede Kochzone wird über eine Bedienungstaste
und über einen aus einer Doppeltaste (
-
und
+
)
bestehenden Leistungsregler eingeschaltet.
• Um eine Kochzone einzuschalten, drücken Sie die
entsprechende Bedienungstaste und stellen daraufhin
über die Tasten
-
und
+
die gewünschte
Leistungsstufe ein.
Booster-Funktion*
Zur Beschleunigung der Aufheizzeit kann zu einigen
Kochzonen durch Drücken der Taste
Booster
die
Boosterfunktion zugeschaltet werden. Die über der
Taste befindliche Kontrollleuchte schaltet sich ein.
Diese Funktion steigert die Leistung auf 2000W oder
3000W, je nach Größe der angesteuerten Kochzone.
Die Boosterfunktion schaltet sich automatisch nach 4
Minuten wieder aus. Solange die Booster-Funktion für
eine der Kochzonen aktiv ist, bleibt die Leistung der
dahinter oder davor liegenden Kochzone beschränkt
(z.B.: Ist der Booster der hinteren linken Kochzone
aktiv, dann ist die Leistung der vorderen linken
Kochzone herabgesetzt). Weitere Informationen finden
Sie in der
Technischen Beschreibung der jeweiligen
Modelle.
Ausschalten der Kochzonen
Um eine Kochzone auszuschalten, wählen Sie diese
zuerst über die entsprechende Bedienungstaste
und:
• Drücken Sie die Taste
-
: Die Kochzonenleistung
sinkt allmählich bis zum völligen Ausschalten der
Kochzone.
Programmierung der Garzeit
!
Sämtliche Kochzonen können gleichzeitig für eine
Garzeit von 1 – 99 Minuten programmiert werden.
1. Wählen Sie die Kochzone über die entsprechende
Wahltaste.
2. Die Leistungsstufe der Kochzone einstellen.
*
Nur bei einigen Modellen.
42
DE
3. Drücken Sie die Programmiertaste
. Die
Kontrollleuchte der ausgewählten Zone blinkt.
4. Stellen Sie über die Tasten “-” und “+” die
gewünschte Garzeit ein.
5. Bestätigen Sie die Einstellung durch Druck auf
die Taste
, oder warten Sie 10 Sekunden für die
automatische Auswahl.
Die Zeitrechnung (rückwärtiger Ablauf) des Timers
setzt unverzüglich ein. Ist die programmierte Garzeit
abgelaufen, ertönt (1 Minute lang) ein akustisches
Signal und die Kochzone wird automatisch
ausgeschaltet.
Wiederholen Sie obige Schritte für jede Kochzone, die
Sie programmieren möchten.
Anzeige im Falle einer Mehrfachprogrammierung
Wurde die Betriebszeit einer oder mehrerer Kochzonen
vorprogrammiert, erscheint auf dem Display die
Restgarzeitanzeige der Kochzone, die für die
niedrigste Zeit programmiert wurde; die entsprechende
Kontrollleuchte blinkt, um anzuzeigen, um welche
Kochzone es sich handelt. Die Kontrollleuchten der
übrigen programmierten Kochzonen sind eingeschaltet.
Um die Restzeit der anderen programmierten Kochfelder
anzuzeigen drücken Sie wiederholt die Taste
: es werden in Folge und im Uhrzeigersinn alle
Zeiten des Kurzzeitweckers und der
programmierten Kochfelder angezeigt,
beginnend mit dem Kochfeld vorne
links.
Änderung der Programmierung
1. Drücken Sie mehrmals die Taste
, bis die Zeit
der Kochzone, deren Programmierung Sie ändern
möchten, angezeigt wird.
2. Stellen Sie mittels der Tasten - und + die neue Zeit
ein.
3. Bestätigen Sie die Einstellung durch Druck auf die
Taste
.
Möchten Sie eine Programmierung löschen, dann
verfahren Sie wie folgt: Bei Punkt 2 drücken Sie die Taste
-: Die programmierte Zeit wird fortlaufend gesenkt bis zum
Ausschalten bei 0. Die programmierte Zeit wird gelöscht
und das Display verlässt den Programmierungs-Modus.
Die Minutenuhr
Das Kochfeld muss eingeschaltet sein.
Mit dem Minutenzähler kann ein Zeitraum bis 99 Minuten
eingestellt werden.
1. Drücken Sie die Programmiertaste
bis sich die
Kontrollleuchte des Minutenzählers einschaltet
.
2. Stellen Sie über die Tasten “-” und “+” die
gewünschte Zeit ein.
3. Bestätigen Sie die Einstellung durch Druck auf die
Taste
.
Die Zeitrechnung (rückwärtiger Ablauf) des Timers
setzt unverzüglich ein. Nach Ablauf der Zeit ertönt ein
akustisches Signal (über die Dauer von 1 Minute).
Sperre der Schaltelemente
Während der Betriebszeit des Kochfeldes können
die Schaltelemente gesperrt werden, um irrtümliche
Einstellungsänderungen zu verhindern (durch Kinder, bei
der Reinigung usw.). Drücken Sie die Taste
, dann
werden die Schaltelemente gesperrt. Die über der
Taste befindliche Kontrollleuchte leuchtet auf.
Zu weiteren Einstellungen (z.B. um den Garvorgang zu
unterbrechen) müssen die Schaltelemente erst wieder
freigegeben werden. Drücken Sie die Taste
für
einige Sekunden; die Kontrollleuchte erlischt, die
Schaltelemente werden freigegeben.
Ausschalten des Kochfeldes
Durch Drücken der Taste
schalten Sie das
Gerät aus; verlassen Sie sich dabei nicht auf den
Topferfassungsfühler.
Sollten die Schaltelemente gesperrt worden sein,
bleiben diese auch bei Wiedereinschalten des Gerätes
gesperrt. Um das Kochfeld wieder einschalten zu
können, müssen die Schaltelemente vorher entsperrt
werden.
„Demo“-Mode (Vorführmodus)
Es besteht die Möglichkeit, einen Vorführmodus
einzustellen, bei dem das Bedienfeld (einschließlich der zur
Programmierung erforderlichen Bedienelemente) normal
funktioniert, die Heizelemente dagegen schalten sich nicht
ein. Zur Aktivierung eines Vorführmodus muss das Kochfeld
eingeschaltet und alle Platten ausgeschaltet sein.
• Halten Sie die Tasten + und - für 6 Sekunden gleichzeitig
gedrückt. Nach 6 Sekunden blinken die Kontrollleuchte
ON/OFF und die Kontrollleuchte SPERRE DER
SCHALTELEMENTE für eine Sekunde. Lassen Sie die
Tasten + und – los und drücken Sie die Taste
;
• Auf dem Display erscheint abwechselnd die Anzeige
DE und MO und das Kochfeld schaltet sich aus:
• Wird das Kochfeld daraufhin wieder eingeschaltet,
befindet es sich im Vorführmodus (Demo-Mode)
43
DE
Zum Verlassen dieses Modus verfahren Sie gemäß
obiger Angaben. Auf dem Display erscheint
abwechselnd die Anzeige DE und OF und das
Kochfeld schaltet sich aus: Wird das Kochfeld
daraufhin wieder eingeschaltet, funktioniert es wieder
auf normale Weise.
Praktische Ratschläge zum Einsatz des
Gerätes
!
Verwenden Sie Kochgeschirr, dessen
Herstellungsmaterial (magnetisiertes Material) sich
für das Induktionssystem eignet. Wir empfehlen Ihnen
Töpfe und Pfannen aus: Gusseisen, emailliertem
Stahl oder Spezialstahl für Induktionskochzonen.
Im Zweifelsfall hilft ein Magnet bei der Prüfung der
Verwendbarkeit eines Kochgeschirrs.
*
GEEIGNETES MATERIAL
UNGEEIGNETES MATERIAL
Gusseisen
emaillierter Edelstahl
magnetisierter Edelstahl
Kupfer,
Aluminium, Glas, Ton,
Porzellan, nicht magnetisierter Edelstahl
So gibt Ihnen Ihr Kochfeld sein Bestes:
• Verwenden Sie Kochgeschirr mit dickem und ebenem
Boden, um sicher zu sein, dass dieser perfekt auf der
Kochzone aufliegt.
• Benutzen Sie stets nur Kochgeschirr, dessen
Durchmesser mit dem der Kochzone übereinstimmt,
d.h. dessen Boden die Kochzone ganz bedeckt, und
somit die gesamte Wärme genutzt wird.
• Achten Sie darauf, dass der Boden des Kochgeschirrs
trocken und sauber ist; nur so ist ein perfektes Aufliegen
des Geschirrbodens sowie eine lange Lebensdauer von
Kochzone und Geschirr gewährleistet.
• Vermeiden Sie den Einsatz von Kochgeschirr, das
auch auf Gasflammen verwendet wird. Die äußerst
hohe Hitzekonzentration der Gasbrenner könnte die
Topfböden leicht verformen und demnach die korrekte
Auflage beeinträchtigen.
Sicherheitsvorrichtungen
Topferkennung
Jede Kochzone ist mit einer Topferkennungs-Vorrichtung
ausgerüstet. Die Kochzone bewirkt ein Erhitzen
des Topfbodens nur bei einer angemessenen, der
Kochzone entsprechenden Topfgröße. Das Blinken der
Anzeigeleuchte kann Folgendes signalisieren:
• ungeeignetes Kochgeschirr,
• ein zu geringer Topfdurchmesser,
• der Topf wurde abgenommen.
Überhitzung
Im Falle einer Überhitzung der elektronischen
Gerätekomponenten schaltet sich das Kochfeld
automatisch aus, auf dem Display erscheint die Anzeige
F
gefolgt von einer blinkenden Zahl. Diese Meldung
erlischt, und das Kochfeld kann wieder eingesetzt
werden, sobald die Temperatur auf einen akzeptablen
Wert gesunken ist.
Sicherheitsautomatik
Das Gerät ist mit einer Sicherheitsautomatik ausgestattet, die
die Kochzone automatisch abschaltet, wenn die maximale
Betriebszeit auf einer gewissen Leistungsstufe erreicht wird.
Bei Auftreten eines solchen Sicherheitsintervalls erscheint auf
dem Display die Anzeige „0“.
Beispiel: Die hintere rechte Kochzone wird auf
Leistungsstufe 5 eingestellt, die vordere linke dagegen auf
2. Die hintere rechte Kochzone wird nach 5 Std. Betriebszeit
ausgeschaltet, die vordere linke erst nach 8 Stunden.
Heizleistung
1
2
3
4
5
6
7
8
9
Beschränkung der Funktionsdauer in Stunden
9
8
7
6
5
4
3
2
1
Tonsignal
Einige Anomalien, wie:
• Gegenstände (Topf, Besteck usw.), die für länger als 10
Sekunden auf dem Schaltfeld liegen,
• Flüssigkeit, die über das Schaltfeld gegossen wurde,
• ein zu langer Druck auf eine Taste, können die
Ursache für ein Warnsignal sein. Um das Warnsignal
auszuschalten, muss der Grund der Störung beseitigt
werden. Wird die Störung nicht beseitigt, bleibt das
Warnsignal eingeschaltet und das Kochfeld wird
ausgeschaltet.
44
DE
Praktische Back-/Brathinweise
ª
Schnellgaren
Schnellkochtopf
Fritieren
Grillen
Kochen
Sehr stark garen
Stark garen
Sanftgaren
Sehr sanft Garen
Extrem
sanft
Garen
• • ¶
Crêpes
Stark garen und bräunen
(Braten, Koteletts, Schnitzel, Fischfilets,
Spiegeleier)
¶ §
Schnell eindicken (flüssige Soßen)
Kochendes Wasser (Nudeln, Reis, Gemüse)
Milch
§ S
Langsam eindicken (dickflüssige Soßen)
S ¢
Wasserbad
Garen im Schnellkochtopf nach dem Dampfaustritt
¢ £ ™
Sehr sanft Garen
Aufwärmen von Speisen
™ ¡
Schokoladensoße
Warmhalten
45
DE
Vorsichtsmaßregeln
und Hinweise
!
Das Gerät wurde entsprechend den strengsten
internationalen Sicherheitsvorschriften entworfen
und gebaut. Nachstehende Hinweise werden aus
Sicherheitsgründen geliefert und sollten aufmerksam
gelesen werden.
Dieses Gerät entspricht den folgenden EG-
Richtlinien:
- 2006/95/EWG vom 12.12.06 (Niederspannung) und
nachfolgenden Änderungen
- 89/336/EWG vom 03.05.89 (elektromagnetische
Verträglichkeit) und nachfolgenden Änderungen
-93/68/EWG vom 22.07.93 und nachfolgenden Änderungen.
- 1275/2008 stand-by/off mode.
Allgemeine Sicherheit
!
Stellen Sie bitte sicher, dass das Belüftungsgitter des
Gebläses niemals verstopft bzw. abgedeckt wird. Das
Einbaukochfeld erfordert eine korrekte Belüftung zur
Kühlung der elektronischen Teile.
!
Es wird davon abgeraten, ein Induktionskochfeld über
einem Untertisch-Kühlschrank (Wärmequelle) oder über
einer Waschmaschine (Vibrationen) zu installieren. Der zur
Belüftung der elektronischen Teile erforderliche Raum wäre
absolut unzureichend.
• Dieses Gerät ist für den nicht professionellen Einsatz im
privaten Haushalt bestimmt.
• Das Gerät darf nicht im Freien aufgestellt werden,
auch nicht, wenn es sich um einen geschützten Platz
handelt. Es ist hoch gefährlich, das Gerät Gewittern und
Unwettern auszusetzen.
• Berühren Sie das Gerät nicht mit nassen oder feuchten
Händen oder Füßen und auch nicht, wenn Sie barfuß
sind.
• Das Gerät darf nur von Erwachsenen und gemäß den
Hinweisen der vorliegenden Bedienungsanleitung zur
Zubereitung von Lebensmitteln verwendet werden.
Verwenden Sie das Kochfeld nicht als Abstellfläche oder
als Schneidebrett.
• Das Glaskeramikkochfeld ist stoßfest; dennoch kann es
durch Stöße bzw. Aufprall von spitzen Gegenständen
springen (oder sogar zerbrechen), Schalten Sie das
Kochfeld in einem solchen Fall vom Stromnetz und
wenden Sie sich an die Kundendienststelle.
• Vermeiden Sie, dass das Netzkabel anderer
Elektrogeräte in Kontakt mit heißen Kochfeldteilen
gelangt.
• Bitte berücksichtigen Sie, dass die Kochzonen noch für
ca. 30 Minuten nach dem Ausschalten sehr heiß bleiben.
Die Restwärme wird auf der entsprechenden Anzeige
eingeblendet (
siehe Inbetriebsetzung und Gebrauch
).
• Halten Sie sämtliche Gegenstände, die schmelzen
könnten, wie Plastikteile oder Kunststoffe sowie
Zucker oder stark zuckerhaltige Speisen von
dem Kochfeld fern. Achten Sie besonders auf
Verpackungsmaterial, Frischhaltefolie und Alufolie:
Wird derartiges Material auf den noch heißen oder
warmen Oberflächen belassen, können sie das
Kochfeld dauerhaft beschädigen.
• Stellen Sie Stieltöpfe und Pfannen immer mit nach
innen gerichteten Griffen auf die Kochstelle, um
jegliches Risiko durch unbeabsichtigtes Anstoßen
auszuschließen.
• Ziehen Sie den Netzstecker nicht am Netzkabel aus der
Steckdose, sondern nur am Netzstecker selbst.
• Ziehen Sie vor der Reinigung oder vor
Wartungsmaßnahmen stets den Netzstecker aus der
Steckdose.
• Das Gerät ist nicht zur Verwendung durch Personen
(einschließlich Kinder) mit eingeschränkten körperlichen,
geistigen oder Wahrnehmungsfähigkeiten oder aber
ohne ausreichende Erfahrung und Produktkenntnis
geeignet, sofern sie nicht durch eine für ihre Sicherheit
verantwortliche Person beaufsichtigt werden oder zuvor
Anleitungen zum Gerätegebrauch erhalten haben.
•
Hinweis für Herzschrittmacherträger oder Träger
anderer medizinischen Implantate:
Das Kochfeld entspricht allen geltenden Richtlinien in
Sachen elektromagnetischer Verträglichkeit.
Dieses Erzeugnis erfüllt demnach sämtliche gesetzlichen
Anforderungen (Richtlinien 89/336/CEE). Es wurde so
konzipiert, dass keine Interferenzen mit anderen in
Einsatz befindlichen elektrischen Geräten entstehen
können, es sei denn, letztere entsprechen nicht den
obigen Richtlinien.
Das Induktions-Kochfeld erzeugt elektromagnetische
Felder im Nahbereich.
Um jegliche Gefahren durch Interferenzen zwischen
dem Kochfeld und dem Schrittmacher auszuschließen,
muss letzterer in Übereinstimmung mit den bestehenden
Richtlinien hergestellt sein.
In dieser Hinsicht können wir nur für die
Übereinstimmung unseres Erzeugnisses gerantieren.
Für Informationen hinsichtlich der Konformität oder
eventueller Unverträglichkeiten bitten wir Sie, sich an
den behandelnden Arzt oder an die Herstellfirma des
Herzschrittmachers wenden zu wollen.
• Kinder dürfen nicht mit dem Gerät spielen.
• Legen Sie bitte keine Metallgegenstände (Messer, Löffel,
Deckel usw.) auf das Kochfeld; sie könnten sehr heiß
werden.
•
Dieses Gerät kann nicht mit einem externen Timer
oder einem getrennten Fernsteuerungssystem
betrieben werden
.
Entsorgung
• Entsorgung des Verpackungsmaterials: Befolgen Sie
die lokalen Vorschriften; Verpackungsmaterial kann
wiederverwertet werden.
• Die europäische Richtlinie 2002/96/EG über Elektro- und
Elektronik-Altgeräte (WEEE) sieht vor, dass Haushaltsgeräte
nicht mit dem normalen Hausmüll entsorgt werden dürfen.
Die Altgeräte müssen getrennt gesammelt werden, um die
Rückführung und das Recycling der Materialen zu optimieren,
aus denen die Geräte hergestellt sind, und um mögliche
Belastungen der Gesundheit und der Umwelt zu verhindern.
Das Mülleimersymbol ist auf allen Produkten dargestellt,
um an die Verpflichtung zur getrennten Abfallsammlung
zu erinnern. Für weitere Informationen zur korrekten
Entsorgung können sich die Besitzer von elektrischen
Haushaltsgeräten an die übergeordnete öffentliche
Einrichtung oder an ihren Händler wenden.
46
DE
Reinigung und Pflege
Abschalten Ihres Gerätes vom Stromnetz
Vor jeder Reinigung und Pflege ist das Gerät vom Stromnetz
zu trennen.
Reinigung des Gerätes
!
Der Einsatz von Scheuermitteln oder scharfen oder
chemischen Reinigungsmitteln wie Backofensprays,
Fleckenentferner, Rostentfernungsmittel, Reiniger in
Pulverform und Scheuerschwämme ist zu vermeiden:
diese können die Oberfläche des Kochfeldes dauerhaft
beschädigen.
!
Verwenden Sie zur Reinigung des Kochfeldes keine Dampf-
oder Hochdruckreinigungsgeräte.
• Zur täglichen Pflege genügt es, das Kochfeld mit einem
feuchten Schwamm abzuwischen und mit Küchenpapier
abzutrocknen.
• Bei besonders starker Verschmutzung sollte ein spezielles
Reinigungsmittel für Glaskeramik verwendet werden;
anschließend ist das Kochfeld mit Wasser abzuspülen und
sorgfältig abzutrocknen.
• Starke Verschmutzungen lassen sich mit einem
Schaber (Klingenschaber) entfernen. Sie sollten so
schnell wie möglich - und nicht erst nach Abkühlen des
Kochfeldes - entfernt werden, um zu vermeiden, dass
sich die Verschmutzungen festsetzen. Gute Ergebnisse
lassen sich auch mit einem für Glaskeramik geeigneten
Spezialschwamm aus Edelstahlwolle und einer einfachen
Spüllauge erzielen.
• Auf dem Kochfeld versehentlich geschmolzene Alufolie,
Plastikteile oder Kunststoffe, sowie Zuckerreste müssen
umgehend mit einem Schaber von der noch warmen
Oberfläche entfernt werden.
• Nach der Reinigung kann das Kochfeld mit einem
Pflegeprodukt nachbehandelt werden: Der unsichtbare
Schutzfilm, den ein solches Produkt hinterlässt, schützt
die Oberfläche vor eventuell überkochenden Speisen. Es
empfiehlt sich, diese Nachbehandlung bei lauwarmem
oder abgekühltem Gerät vorzunehmen.
• Achten Sie darauf, das Kochfeld nach der Reinigung
stets mit klarem Wasser abzuspülen und anschließend
abzutrocknen. Rückstände der Reinigungsmittel könnten
sich nämlich bei der nächsten Benutzung des Kochfeldes
ihrerseits festsetzen.
Edelstahlrahmen
(nur bei mit Rahmen versehenen
Modellen)
Auf den Edelstahlteilen könnten Flecken zurückbleiben, sollte
stark kalkhaltiges Wasser oder phosphorhaltiges Spülmittel
für längere Zeit darauf vorhanden sein.
Es ist ratsam, das Kochfeld nach der Reinigung gut
nachzuspülen und abzutrocknen. Wird versehentlich Wasser
darauf verschüttet, muss es sofort sorgsam getrocknet
werden.
!
Einige Kochfelder sind mit einem Aluminiumrahmen
versehen, der Edelstahl sehr ähnlich ist. Verwenden Sie bitte
keine Produkte zur Reinigung und Entfettung, die nicht für
Aluminium geeignet sind.
Demontage des Kochfeldes
Sollte sich die Abnahme des Kochfeldes als erforderlich
erweisen, verfahren Sie bitte wie folgt:
1. Schrauben Sie die Schrauben aus, die zur Befestigung der
seitlichen Zentrierungsfedern dienen;
2. lockern Sie die Schrauben der Eck-Befestigungsbügel;
3. nehmen Sie das Kochfeld aus dem Möbelausschnitt
heraus.
!
Wir empfehlen dringlich, Innenmechanismen nicht
eigenhändig zu reparieren. Kontaktieren Sie bei Störungen
bitte den Kundendienst.
Technische Beschreibung der Modelle
Kochen mit Induktion ist die schnellste und zeitsparendste Art des Kochens. Im Gegensatz zu herkömmlichen
Kochplatten, heizt sich nicht die Kochzone auf: die Hitze wird direkt im Innern des Topfes entwickelt, der hierzu
notwendigerweise über einen Boden aus magnetisiertem Material verfügen muss.
Kochfelder
Kochzonen
Hinten links
Hinten rechts
Vorne links
Gesamtleistung
KIC 631 C
KIC 631 T B
KIC 631 T X
KIC 631 T C
Leistung (W)
I 1400
I 3000 - B 4000
I 2200
7600
KIC 630 B
Leistung (W)
I 1400
I 3000
I 2200
6600
KIC 633 T Z
KIC 633 T X
Leistung (W)
I 1400 - B 2000* - 600 wenn Vorne Links *
I 3000 - B 4000
I 2200 - B 3000* - 1600 wenn Hint. Links*
7600
Legende:
I = Einfache Induktions-Kochzone
B = Booster: Die Leistung dieser Kochzone kann bis auf 3000 W erhöht werden.
* = Die maximale Leistung wird begrenzt, solange die Boosterfunktion für die entsprechende hintere Kochzone
eingeschaltet bleibt (siehe Inbetriebsetzung und Gebrauch).
IT
47
Installazione
!
È importante conservare questo libretto per poterlo
consultare in ogni momento. In caso di vendita, di
cessione o di trasloco, assicurarsi che resti insieme
all’apparecchio per informare il nuovo proprietario sul
funzionamento e sui relativi avvertimenti.
!
Leggere attentamente le istruzioni: ci sono importanti
informazioni sull’installazione, sull’uso e sulla sicurezza.
Posizionamento
!
Gli imballaggi non sono giocattoli per bambini e vanno
eliminati secondo le norme per la raccolta differenziata
(
vedi Precauzioni e consigli
).
!
L’installazione va effettuata secondo queste istruzioni e
da personale professionalmente qualificato. Una errata
installazione può causare danni a persone, animali o
cose.
Incasso
Per garantire un buon funzionamento dell’apparecchio è
necessario che il mobile abbia le caratteristiche adatte:
• il piano d’appoggio deve essere di materiale
resistente al calore, a una temperatura di circa
100°C;
• se si desidera installare il piano cottura sopra un
forno, questo deve essere provvisto di un sistema di
raffreddamento a ventilazione forzata;
• evitare di installare il piano cottura sopra una
lavastoviglie: all’occorrenza frapporre un elemento
di separazione a tenuta stagna fra i due apparecchi;
• a seconda del piano cottura che si desidera
installare (
vedi fi gure
), il vano del mobile deve avere
le seguenti dimensioni:
560 +/- 1
490 +/- 1
53
590
520
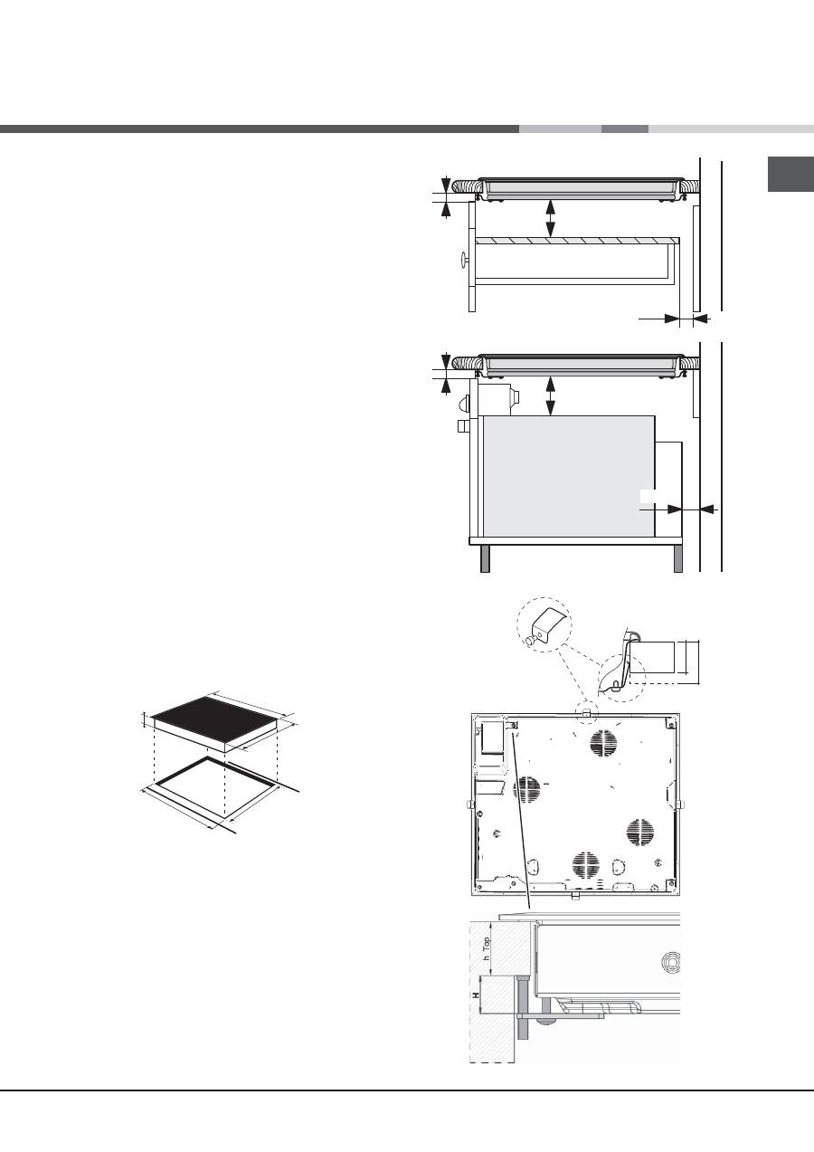
Aerazione
Per consentire un’adeguata aerazione e per evitare
il surriscaldamento delle superfici attorno all’apparecchio,
il piano cottura deve essere posizionato:
• a una distanza minima di 40 mm dalla parete
retrostante o da qualsiasi altra superficie verticale;
• in modo da mantenere una distanza minima di 20 mm
fra il vano per l’incasso e il mobile sottostante.
• I mobili situati a fianco, la cui altezza superi quella
del piano di lavoro, debbono essere situati ad
almeno 600 mm dal bordo del piano stesso.
5 mm
min. 20 mm
min. 20 mm
min. 40 mm
CASSETTO
5 mm
min. 40 mm
FORNO
VENTILATO
LATO ANTERIORE
DEL PIANO COTTURA
PIANO DI
APPOGGIO
30
40
PIANO COTTURA
ROVESCIATO
48
IT
Fissaggio
L’installazione dell’apparecchio deve essere effettuata
su un piano d’appoggio perfettamente piano.
Le eventuali deformazioni provocate da un errato
fissaggio potrebbero alterare le caratteristiche e
le prestazioni del piano cottura.
La lunghezza della vite di regolazione dei ganci
di fissaggio va impostata prima del loro montaggio,
in base allo spessore del piano d’appoggio:
• spessore di 30 mm: vite 23 mm;
• spessore di 40 mm: vite 13 mm.
Per il fissaggio agire come segue:
1. Con le viti corte senza punta, avvitare le 4 molle di
centraggio nei fori posti al centro di ogni lato del piano;
2. inserire il piano cottura nel vano del mobile, centrarlo
ed esercitare una adeguata pressione sull’intero perimetro
affinché il piano di cottura aderisca bene al piano
d’appoggio.
3. per i piani con profili laterali: dopo aver inserito il piano
cottura nel mobile, inserire i 4 ganci di fissaggio (ognuno
con il suo perno) sul perimetro inferiore del piano cottura,
avvitandoli con le viti lunghe con punta finché il vetro non
aderisce al piano d’appoggio.
!
È indispensabile che le viti delle molle di centraggio
rimangano accessibili.
!
In conformità alle norme di sicurezza, una volta
incassato l’apparecchio, non debbono essere possibili
eventuali contatti con le parti elettriche.
!
Tutte le parti che assicurano la protezione debbono
essere fissate in modo tale da non poter essere tolte
senza l’aiuto di qualche utensile.
Collegamento elettrico
!
L’allacciamento elettrico del piano cottura e quello di
un eventuale forno da incasso devono essere realizzati
separatamente, sia per ragioni di sicurezza elettrica sia
per facilitare le operazioni di estrazione del forno.
Collegamento monofase
Il piano è dotato di cavo di alimentazione già collegato
e predisposto per il collegamento monofase. Effettuare
l’allaccio dei fili in accordo con la tabella e i disegni che
seguono:
Tensione tipo e
frequenza rete
Cavo elettrico
Collegamento fili
220-240V 1+N ~
50 Hz
: giallo/verde
N
: i 2 fili blu insieme
L
: marrone insieme al nero
Altri tipi di collegamento
Se l’impianto elettrico corrisponde a una delle seguenti
caratteristiche:
Tensione tipo e frequenza di rete
• 400V - 2+N ~ 50 Hz
• 220-240V 3 ~ 50 Hz
• 400V 3 - N ~ 50 Hz
• 400V - 2+2N ~ 50 Hz
Separare i cavi ed effettuare il collegamento dei fili in
accordo con la tabella e i disegni che seguono:
Tensione tipo e
frequenza rete
Cavo elettrico
Collegamento fili
400V - 2+N ~
50 Hz
220-240V 3 ~
50 Hz
400V 3-N ~
50 Hz
: giallo/verde;
N
: i 2 fili blu insieme
L1
: nero
L2
: marrone
400V - 2+2N ~
50 Hz
: giallo/verde;
N1
: blu
N2
: blu
L1
: nero
L2
: marrone
Allacciamento del cavo di alimentazione alla rete
In caso di collegamento diretto alla rete è necessario
interporre tra l’apparecchio e la rete un interruttore
onnipolare con apertura minima fra i contatti di 3 mm.
!
L’installatore è responsabile del corretto collegamento
elettrico e dell’osservanza delle norme di sicurezza.
Prima di effettuare l’allacciamento accertarsi che:
• la presa abbia la messa a terra e sia a norma di legge;
• la presa sia in grado di sopportare il carico massimo di
potenza della macchina, indicato nella
targhetta caratteristiche posta sull’apparecchio;
• la tensione di alimentazione sia compresa nei valori
della targhetta caratteristiche;
• la presa sia compatibile con la spina dell’apparecchio.
In caso contrario sostituire la presa o la spina; non
usare prolunghe e multiple.
!
Ad apparecchio installato, il cavo elettrico e la presa
della corrente devono essere facilmente raggiungibili.
!
Il cavo non deve subire piegature o compressioni.
!
Il cavo deve essere controllato periodicamente e
sostituito solo da tecnici autorizzati.
!
L’azienda declina ogni responsabilità qualora queste
norme non vengano rispettate.
!
Non rimuovere o sostituire per nessun motivo il cavo
di alimentazione. L’ eventuale rimozione o sostituzione
fa’ decadere la garanzia e il marchio CE. INDESIT
non si assume alcuna responsabilita’ per incidenti
o danni derivanti dalla sostituzione/rimozione del
cavo di alimentazione originale. E’ ammessa solo la
sostituzione con un ricambio originale ed effettuata da
personale autorizzato INDESIT.
IT
49
Avvio e utilizzo
!
La colla applicata sulle guarnizioni lascia alcune
tracce di grasso sul vetro. Prima di utilizzare
l’apparecchio, si raccomanda di eliminarle con un
prodotto specifico per la manutenzione non abrasivo.
Durante le prime ore di funzionamento è possibile
avvertire un odore di gomma, che comunque
scomparirà presto.
!
Quando il piano cottura viene collegato
elettricamente, dopo acuni secondi viene emesso un
breve segnale acustico. Soltanto a questo punto è
possibile accendere il piano cottura.
Rumori di normale funzionamento del piano
cottura:
•
Ronzio: è dovuto alla vibrazione degli elementi
metallici di cui sono costituiti l’induttore e la
pentola e si genera per il campo elettromagnetico
necessario per il riscaldamento; esso aumenta
all’aumentare del livello di potenza dell’induttore.
•
Leggero fischio: si manifesta quando la pentola
disposta sulla zona cottura è vuota; il rumore
scompare non appena si aggiungono alimenti o
acqua.
•
Crepitio: è un rumore prodotto dalle vibrazioni
del materiale del fondo della pentola quando è
attraversato dalle correnti parassite dovute al campo
elettromagnetico (induzione); può essere più o
meno intenso a secondo del materiale del fondo
della pentola e si riduce se le dimensioni della
pentola aumentano.
•
Fischio intenso: si manifesta quando funzionano
contemporaneamente i due induttori sulla stessa
verticale alla massima potenza e/o su quello più
grande è inserita la funzione booster e l’altro è
autoregolato. Il rumore si riduce non appena
si abbassa il livello di potenza dell’induttore
autoregolato; si manifesta in particolare quando il
fondo della pentola è costituito da strati di materiale
diverso.
•
Rumore della ventola: per il corretto funzionamento
del piano e per garantire la sicurezza della
parte elettronica da possibili surriscaldamenti
è necessario l’azionamento di una ventola. La
ventola funziona alla massima potenza quando
l’induttore grande è al massimo livello di potenza
o quando è inserita la funzione booster ; in tutti
gli altri casi funziona a potenza media a seconda
della temperatura rilevata. Inoltre è possibile che
la ventola continui a funzionare anche dopo la
disattivazione del piano se la temperatura rilevata è
alta.
I rumori elencati sono dovuti alla tecnologia
induzione e non segnalano necessariamente difetti di
funzionamento.
!
La pressione prolungata dei tasti
-
e
+
consente
l’avanzamento veloce dei livelli di potenza e dei minuti
del timer.
Accensione del piano cottura
L’accensione del piano cottura avviene tenendo
premuto il tasto
per circa un secondo.
Accensione delle zone di cottura
Ciascuna zona di cottura viene azionata tramite un tasto
di selezione
e un dispositivo di regolazione della
potenza composto da un doppio tasto
-
e
+
.
• Per mettere in funzione una zona di cottura, premere
il relativo tasto di comando e impostare la potenza
desiderata tramite i tasti
-
e
+
.
Funzione booster*
Per accelerare i tempi di riscaldamento, su alcune
zone di cottura è possibile attivare la funzione booster
premendo il tasto
Booster
. Si accende la spia posta sopra
al tasto. Questa funzione sovralimenta la potenza a
2000W o 3000W a seconda della grandezza della zona
di cottura interessata.
Il booster si interrompe automaticamente dopo 4
minuti. Finché il booster di una delle zone di cottura
è attivo, la zona di cottura corrispondente anteriore
o posteriore avrà potenza limitata (es: se è attivo il
booster nella piastra posteriore sinistra, si abbassa la
potenza della piastra anteriore sinistra). Per ulteriori
chirimenti vedere
Descrizione tecnica dei modelli
.
Spegnimento delle zone di cottura
Per spegnere una zona di cottura, selezionarla tramite
il relativo tasto di selezione
e:
• Premere il tasto
-
: la potenza della zona di cottura
scende progressivamente, fino allo spegnimento.
Programmazione della durata
di una cottura
!
È possibile programmare contemporaneamente tutte
le zone di cottura per una durata compresa tra 1 e 99
minuti.
*
Presente solo in alcuni modelli.
50
IT
1. Selezionare la zona di cottura tramite il tasto di
selezione corrispondente.
2. Regolarne il livello di potenza.
3. Premere il tasto di programamzione
.
Lampeggia la spia corrispondente alla zona scelta.
4. Impostare la durata di cottura desiderata tramite i
tasti
-
e
+
.
5. Confermare premendo il tasto
oppure si
seleziona in automatico dopo 10 secondi.
Il conto alla rovescia del timer ha inizio
immediatamente. La fine della cottura programmata
è indicata da un segnale acustico (per la durata di 1
minuto) e la zona di cottura si spegne.
Ripetere la procedura sopra descritta per ogni piastra
che si intende programmare.
Visualizzazione in caso di programmazione multipla
Quando una o più piastre sono state programmate,
il display visualizza il tempo rimanente della piastra
che è più vicina al termine del tempo programmato,
indicandone la posizione con la spia corrispondente
che lampeggia. Le spie delle altre piastre
programmate sono accese.
Per visualizzare il tempo restante delle altre piastre
programmate, premere ripetutamente il tasto
:
verranno mostrati in sequenza e in senso orario i tempi
del contaminuti e di tutte le piastre programmate, a
partire da quella anteriore sinistra.
Modificare la programmazione
1. Premere ripetutamente il tasto
finché non
viene mostrato il tempo della piastra che si intende
modificare.
2. Agire sui tasti
-
e
+
per impostare il nuovo
tempo.
3. Confermare premendo il tasto
.
Per cancellare una programmazione, agire come
sopra. Al punto 2 premere il tasto
-
: la durata
scende progressivamente fino allo spegnimento 0.
La programmazione si azzera e il display esce dalla
modalità programmazione.
Il contaminuti
Il piano di cottura deve essere acceso.
Il contaminuti permette di impostare una durata fino a
99 minuti.
1. Premere il tasto di programamzione
. finchè la
spia contaminuti non si accende
.
2. Impostare la durata desiderata tramite i tasti
-
e
+
.
3. Confermare premendo il tasto
.
Il conto alla rovescia del timer ha inizio
immediatamente. A tempo scaduto viene emesso un
segnale acustico (per la durata di 1 minuto).
Blocco dei comandi
Quando il piano cottura è in funzione, è possibile
bloccare i comandi per evitare il rischio di modifiche
fortuite alle regolazioni (bambini, operazioni di pulizia,
ecc.). Premendo il tasto
i comandi si bloccano
e la spia che si trova sopra al tasto si accende.
Per tornare ad agire sulle regolazioni (es. interrompere
la cottura) è necessario sbloccare i comandi: premere
il tasto
per qualche istante, la spia si spegne e i
comandi si sbloccano.
Spegnimento del piano cottura
Premendo il tasto
l’apparecchio si spegne, non
fare affidamento sul rivelatore di pentole.
Se i comandi dell’apparecchio sono stati bloccati,
continueranno ad essere bloccati anche dopo aver
riacceso il piano di cottura. Per poter riaccendere
il piano è necessario prima sbloccare i comandi.
Modalità “demo”
È possibile impostare una modalità dimostrativa nella
quale il pannello comandi funziona normalmente
(inclusi i comandi relativi alla programmazione), ma
gli elementi riscaldanti non si accendono. Per attivare
la modalità “demo” occorre che il piano sia acceso e
tutte le piastre siano spente:
• Premere e tenere premuti contemporaneamente
i tasti
+
e
-
per 6 secondi. Allo scadere dei
6 secondi la spia ON/OFF e la spia BLOCCO
COMANDI lampeggiano per un secondo. Rilasciare
i tasti
+
e
-
e premere il tasto
;
• il display visualizza la scritta DE e MO e il piano si
spegne;
• alla successiva riaccensione il piano si troverà in
modalità “demo”.
IT
51
Per uscire da questa modalità seguire la procedura
sopra descritta. Il display visualizza la scritta DE e
OF e il piano si spegne. Alla successiva riaccensione
funzionerà normalmente.
Consigli pratici per l’uso
dell’apparecchio
!
Adoperare recipienti di cottura il cui materiale
di fabbricazione sia compatibile con il principio
dell’induzione (materiale ferromagnetico). Si
raccomanda l’uso di pentole in: ghisa, acciaio smaltato
o inox speciale per induzione. Per sincerarsi della
compatibilità di un recipiente è sufficiente fare una
prova con una calamita.
Inoltre, per ottenere le migliori prestazioni dal piano di
cottura:
• Adoperare pentole con fondo piatto e di elevato
spessore, per essere certi che aderiscano
perfettamente alla zona riscaldante.
• Adoperare pentole di diametro sufficiente a coprire
completamente la zona riscaldante, in modo da
garantire lo sfruttamento di tutto il calore disponibile.
• Accertarsi che il fondo delle pentole sia sempre
perfettamente asciutto e pulito, per garantire la
corretta aderenza e una lunga durata, sia alle zone
di cottura che alle pentole stesse.
• Evitare di utilizzare le stesse pentole utilizzate
sui bruciatori a gas: la concentrazione di calore sui
bruciatori a gas può deformare il fondo della
pentola, che perde aderenza.
Dispositivi di sicurezza
Rilevamento dei recipienti
Ciascuna zona di cottura è provvista di un dispositivo
di rilevamento della pentola. La piastra emette calore
unicamente in presenza di una pentola di dimensioni
adeguate alla zona di cottura stessa. Il display
indicatore di potenza lampeggiante può indicare:
• una pentola incompatibile
• una pentola di diametro insufficiente
• il sollevamento della pentola
Surriscaldamento
In caso di surriscaldamento dei componenti elettronici,
il piano cottura si spegne automaticamente e sul
display appare
F
seguito da un numero lampeggiante.
Questo messaggio scompare e il piano torna
utilizzabile non appena la temperatura è scesa a un
livello accettabile.
Interruttore di sicurezza
L’apparecchio è dotato di un interruttore di sicurezza
che spegne le zone di cottura automaticamente
quando viene raggiunto un tempo limite di utilizzo a
un dato livello di potenza. Durante l’interruzione di
sicurezza, il display indica “0”.
Esempio: la piastra posteriore destra è impostata su 5,
mentre la piastra anteriore sinistra su 2. La posteriore
destra si spegnerà dopo 5 ore di funzionamento, la
anteriore sinistra dopo 8 ore.
Livello di potenza
1
2
3
4
5
6
7
8
9
Tempo limite di funzionamento in ore
9
8
7
6
5
4
3
2
1
Segnale acustico
Alcune anomalie, quali:
• un oggetto (pentola, posata, ecc.) posto per oltre 10
secondi sull’area dei comandi,
• un versamento sull’area dei comandi,
• una pressione esercitata a lungo su un tasto,
possono provocare l’emissione di un segnale
acustico. Rimuovere la causa del malfunzionamento
per interrompere il segnale acustico. Se la causa
dell’anomalia non viene rimossa, il segnale acustico
persiste e il piano si spegne.
52
IT
Consigli pratici per la cottura
ª
Cottura a Pressione
Pentola a Pressione
Frittura
Grigliata
Ebollizione
Cottura a fuoco
vivissimo
Cottura a
fuoco vivo
Cottura a fuoco medio
Cottura a fuoco
lento
Cottura a
fuoco
lentissimo
• • ¶
Crêpe
Cottura a fuoco vivo e doratura
(Arrosti, Bistecche, Scaloppine, Filetti di
pesce, Uova al tegamino)
¶ §
Addensamento rapido (Sughi liquidi)
Acqua bollente (Pasta, Riso, Verdure)
Latte
§ S
Addensamento lento (Sughi consistenti)
S ¢
Cottura a bagnomaria
Cottura Pentola a pressione dopo il sibilo
¢ £ ™
Cottura a fuoco lento
(Stufati)
Riscaldamento delle pietanze
™ ¡
Salsa al cioccolato
Mantenimento al caldo
IT
53
Precauzioni e consigli
!
L’apparecchio è stato progettato e costruito
in conformità alle norme internazionali di sicurezza. Queste
avvertenze sono fornite per ragioni di sicurezza e devono
essere lette attentamente.
Questa apparecchiatura è conforme alle seguenti
Direttive Comunitarie:
- 2006/95/CEE del 12/12/06 (Bassa Tensione) e successive
modificazioni
- 2004/108/CEE del 15/12/04 (Compatibilità
Elettromagnetica) e successive modificazioni
- 93/68/CEE del 22/07/93 e successive modificazioni.
- 1275/2008 stand-by/off mode.
Sicurezza generale
!
Controllare che la presa d’aria tramite la griglia del
ventilatore non sia mai ostruita. Il piano da incasso,
infatti, necessita di una corretta aerazione per il
raffreddamento dei componenti elettronici.
!
È sconsigliata l’installazione di un piano cottura a
induzione sopra un frigorifero sottotavolo (calore) o sopra
una lavatrice (vibrazioni). Lo spazio necessario per la
ventilazione degli elementi elettronici sarebbe infatti
insufficiente.
• L’apparecchio è stato concepito per un uso di tipo non
professionale all’interno dell’abitazione.
• L’apparecchio non va installato all’aperto, nemmeno se
lo spazio è riparato, perché è molto pericoloso lasciarlo
esposto a pioggia e temporali.
• Non toccare la macchina a piedi nudi o con le mani
o i piedi bagnati o umidi.
• L’apparecchio deve essere usato per cuocere alimenti,
solo da persone adulte e secondo le istruzioni riportate
in questo libretto. Non utilizzare
il piano come superficie di appoggio, né come tagliere.
• Il piano in vetroceramica è resistente agli urti meccanici,
tuttavia può incrinarsi (o eventualmente frantumarsi) se
colpito con un oggetto appuntito, quale un utensile. In
questi casi, scollegare immediatamente l’apparecchio
dalla rete di alimentazione e rivolgersi all’Assistenza.
• Evitare che il cavo di alimentazione di altri
elettrodomestici entri in contatto con parti calde
del piano cottura.
• Non dimenticare che la temperatura delle zone di
cottura rimane piuttosto elevata per almeno trenta minuti
dopo lo spegnimento. Il calore residuo è segnalato
anche da un indicatore (
vedi Avvio e utilizzo
).
• Tenere a debita distanza dal piano cottura qualsiasi
oggetto che potrebbe fondere, ad esempio oggetti
in plastica, in alluminio o prodotti con un elevato
contenuto di zucchero. Fare particolare attenzione a
imballaggi e pellicole in plastica o alluminio:
se dimenticati sulle superfici ancora calde o tiepide
possono causare un grave danno al piano.
• Assicurarsi che i manici delle pentole siano sempre
rivolti verso l’interno del piano cottura per evitare
che vengano urtati accidentalmente.
• Non staccare la spina dalla presa della corrente
tirando il cavo, bensì afferrando la spina.
• Non fare pulizia o manutenzione senza aver prima
staccato la spina dalla rete elettrica.
• Non è previsto che l’apparecchio venga utilizzato
da persone (bambini compresi) con ridotte
capacità fisiche, sensoriali o mentali, da persone
inesperte o che non abbiano familiarità con il
prodotto, a meno che non vengano sorvegliate da
una persona responsabile della loro sicurezza o
non abbiano ricevuto istruzioni preliminari sull’uso
dell’apparecchio.
•
Avvertenza per i portatori di pacemaker o altri
dispositivi medici impiantabili attivi:
Il piano cottura è conforme a tutte le normative
vigenti in materia di interferenze elettromagnetiche.
Questo prodotto è pertanto perfettamente
rispondente a tutti i requisiti di legge (direttive
89/336/CEE). È stato progettato in modo da non
creare inferenze ad altre apparecchiature elettriche
utilizzate, a condizione che anche queste siano
conformi alle suddette normative.
Il piano cottura a induzione genera campi
elettromagnetici a breve portata.
Per evitare ogni rischio di interferenze tra il piano di
cottura e il pacemaker, quest’ultimo dovrà essere
realizzato in conformità alle normative vigenti.
A tale riguardo, possiamo garantire unicamente la
conformità del nostro prodotto. Per informazioni sulla
conformità o eventuali problemi di incompatibilità, si
prega di rivolgersi al proprio medico curante o alla
casa produttrice del pacemaker.
• Evitare che i bambini giochino con l’apparecchio.
• Non posare oggetti metallici (coltelli, cucchiai,
coperchi, ecc.) sul piano perchè possono diventare
caldi.
•
L’apparecchio non è destinato a essere messo in
funzione per mezzo di un temporizzatore esterno
oppure di un sistema di comando a distanza
separato.
Smaltimento
• Smaltimento del materiale di imballaggio: attenersi
alle norme locali, così gli imballaggi potranno essere
riutilizzati.
• La direttiva Europea 2002/96/CE sui rifiuti di
apparecchiature elettriche ed elettroniche (RAEE),
prevede che gli elettrodomestici non debbano essere
smaltiti nel normale flusso dei rifiuti solidi urbani.
Gli apparecchi dismessi devono essere raccolti
separatamente per ottimizzare il tasso di recupero e
riciclaggio dei materiali che li compongono ed impedire
potenziali danni per la salute e l’ambiente. Il simbolo del
cestino barrato è riportato su tutti i prodotti per ricordare
gli obblighi di raccolta separata.
Per ulteriori informazioni, sulla corretta dismissione
degli elettrodomestici, i detentori potranno rivolgersi al
servizio pubblico preposto o ai rivenditori.
54
IT
Manutenzione e cura
Escludere la corrente elettrica
Prima di ogni operazione isolare l’apparecchio dalla rete di
alimentazione elettrica.
Pulire l’apparecchio
!
Evitare l’uso di detergenti abrasivi o corrosivi, quali
i prodotti in bombolette spray per barbecue e forni,
smacchiatori e prodotti antiruggine, i detersivi in polvere
e le spugne con superficie abrasiva: possono graffiare
irrimediabilmente la superficie.
!
Non utilizzare mai pulitori a vapore o ad alta pressione per
la pulizia dell’apparecchio.
• Per una manutenzione ordinaria, è sufficiente lavare il
piano con una spugna umida, asciugando quindi con una
carta assorbente per cucina.
• Se il piano è particolarmente sporco, strofinare con
un prodotto specifico per la pulizia delle superfici in
vetroceramica, sciacquare e asciugare.
• Per rimuovere gli accumuli di sporco più consistenti
servirsi di un apposito raschietto. Intervenire non
appena possibile, senza attendere che l’apparecchio
si sia raffreddato, per evitare l’incrostazione dei residui.
Eccellenti risultati si possono ottenere usando una
spugnetta in filo d’acciaio inossidabile - specifica per
piani in vetroceramica - imbevuta di acqua e sapone.
• In caso sul piano cottura si fossero accidentalmente fusi
oggetti o materiali quali plastica o zucchero, rimuoverli
con il raschietto immediatamente, finché la superficie è
ancora calda.
• Una volta pulito, il piano può essere trattato
con un prodotto specifico per la manutenzione e la
protezione: la pellicola invisibile lasciata da questo
prodotto protegge la superficie in caso di scolamenti
durante la cottura. Si raccomanda
di eseguire queste operazioni con l’apparecchio tiepido o
freddo.
• Ricordarsi sempre di risciacquare con acqua pulita e
asciugare accuratamente il piano: i residui di prodotti
potrebbero infatti incrostarsi durante la successiva
cottura.
Telaio in acciaio inox
(solo nei modelli con cornice)
L’acciaio inossidabile può macchiarsi per effetto
di un’acqua molto calcarea lasciata per un periodo
di tempo prolungato a contatto dello stesso oppure a causa
di prodotti per la pulizia contenenti fosforo.
Si consiglia di sciacquare abbondantemente e asciugare
con cura dopo la pulizia del piano. In caso di versamenti
d’acqua, intervenire rapidamente asciugando con cura.
!
Alcuni piani cottura hanno una cornice in alluminio
somigliante all’acciaio inox. Non utilizzare prodotti per la
pulizia e lo sgrassaggio non idonei per l’alluminio.
Smontare il piano
Nel caso si renda necessario smontare il piano cottura:
1. togliere le viti che fissano le molle di centraggio
sui lati;
2. allentare le viti dei ganci di fissaggio sugli angoli;
3. estrarre il piano cottura dal vano del mobile.
!
Raccomandiamo di evitare di accedere ai meccanismi
interni per tentare una riparazione. In caso di guasto,
contattare l’Assistenza.
Descrizione tecnica dei modelli
Il sistema a induzione è il procedimento di cottura più rapido che esista. A differenza delle piastre tradizionali,
non è la zona di cottura che si riscalda: il calore viene generato direttamente all’interno della pentola, la quale
dovrà possedere necessariamente un fondo in materiale ferromagnetico.
Piani cottura
Zone di cottura
Posteriore sx
Posteriore dx
Anteriore dx
Potenza totale
KIC 631 C
KIC 631 T B
KIC 631 T X
KIC 631 T C
Potenza (in W)
I 1400
I 3000 - B 4000
I 2200
7600
KIC 630 B
Potenza (in W)
I 1400
I 3000
I 2200
6600
KIC 633 T Z
KIC 633 T X
Potenza (in W)
I 1400 - B 2000* - 600 se Ant. Sx*
I 3000 - B 4000
I 2200 - B 3000* - 1600 se Post. Sx*
7600
Legenda:
I = zona di cottura a induzione semplice
B = booster: la zona di cottura può essere sovralimentata a 3000 W
* = la potenza massima è limitata finché è attivo il booster nella zona di cottura posteriore relativa (
vedi
Avvio e
utilizzo
).
55
NL
Installatie
!
Bewaar dit instructieboekje zorgvuldig voor eventuele
raadpleging in de toekomst. Wanneer u het product
weggeeft, verkoopt, of wanneer u verhuist, dient u dit boekje
bij het apparaat te bewaren zodat waarschuwingen en
informatie betreffende werking voorhanden blijven.
!
Lees de instructies aandachtig door: u vindt er belangrijke
informatie betreffende installatie, gebruik en veiligheid.
Plaatsing
!
Het verpakkingsmateriaal is niet bestemd voor kinderen
en dient daarom te worden verwijderd volgens de
geldende normen voor gescheiden afvalverzameling (
zie
Voorzorgsmaatregelen en advies
).
!
De installatie moet worden uitgevoerd door een bevoegde
installateur en volgens de instructies van de fabrikant. Een
verkeerde installatie kan schade berokkenen aan personen,
dieren of dingen.
Inbouw
Voor een goede werking van het apparaat moet het
keukenmeubel de juiste kenmerken hebben:
• het keukenblad moet uit hittebestendig materiaal zijn
vervaardigd en een temperatuur van circa 100°C kunnen
verdragen;
• als de kookplaat boven een oven wordt geïnstalleerd
moet deze zijn voorzien van een geforceerd geventileerd
afkoelingssysteem;
• installeer de kookplaat nooit boven een afwasautomaat:
indien u dit toch doet, breng dan een waterdichte
afscheiding aan tussen de twee apparaten;
• naar gelang het type kookplaat dat u wenst te installeren
(
zie afbeeldingen
), moet het keukenmeubel de volgende
afmetingen hebben:
560 +/- 1
490 +/- 1
53
590
520
Ventilatie
Teneinde een correcte ventilatie te bereiken en
een oververhitting van de oppervlakken rondom het apparaat te
voorkomen, moet de kookplaat geïnstalleerd worden op:
• een minimum afstand van 40 mm van de achterwand of
van elk ander verticaal oppervlak;
• op zodanige wijze dat er een minimum afstand overblijft
van 20 mm tussen het inbouwmeubel en het onderstaande
meubel.
• De meubels die direct naast de kookplaat staan en
hierboven uitsteken, moeten op minstens 600 mm van de
rand van de plaat staan.
VOORZIJDE VAN
DE KOOKPLAAT
KEUKENBLAD
30
40
KOOKPLAAT
ONDERSTEBOVEN
5 mm
min. 20 mm
min. 20 mm
min. 40 mm
LADE
5 mm
min. 40 mm
HETELUCHTOVEN
56
NL
Bevestigen
Het apparaat moet op een absoluut horizontaal
oppervlak worden geïnstalleerd. Eventuele door
onjuiste installatie veroorzaakte vervormingen kunnen
de eigenschappen en de prestaties van de kookplaat
aantasten.
De lengte van de regelschroef van de
bevestigingshaken moet op basis van de dikte van
het keukenblad worden ingesteld voordat de haken
worden gemonteerd:
• als de dikte 30 mm is: schroef 23 mm;
• als de dikte 40 mm is: schroef 13 mm.
Voor het bevestigen moet u als volgt te werk gaan:
1. Draai met korte, puntloze schroeven de 4
centreringsklemmen in de openingen in het midden van
elke zijde van het blad vast;
2. zet de kookplaat in het midden van de opening van
het keukenmeubel door gelijke druk uit te oefenen op de
hele omtrek totdat de kookplaat perfect aansluit op het
keukenblad.
3. voor een blad met zijprofielen: nadat u de kookplaat
in het keukenmeubel heeft geplaatst moet u de 4
bevestigingshaken aan de onderste rand van de kookplaat
vastschroeven met gepunte, lange schroeven, net zolang
tot het glas goed aan het blad vastzit.
!
De schroeven van de centreringsklemmen moeten te
allen tijde bereikbaar blijven.
!
Volgens de veiligheidsnormen mag er geen contact
meer mogelijk zijn met de elektrische onderdelen nadat
het apparaat is ingebouwd.
!
Alle beschermende onderdelen moeten zodanig
worden bevestigd dat ze niet kunnen worden
verwijderd zonder gereedschap te gebruiken.
Elektrische aansluiting
!
De elektrische aansluitingen van de kookplaat en
de eventuele inbouwoven moeten apart worden
uitgevoerd, zowel om elektrische veiligheidsredenen
als om de oven eventueel eenvoudiger te kunnen
verwijderen.
Eenfasige aansluiting
De kookplaat is voorzien van een voedingskabel bestemd
voor een eenfasige aansluiting. Voer de draadverbinding
uit zoals aangegeven in de volgende tabel en tekeningen:
Spanningstype
en netfrequentie
Elektrische kabel
Draadverbinding
220-240V 1+N ~
50 Hz
: geel/groen;
N
: de 2 blauwe draden samen
L
: bruin en zwart samen
Andere soorten aansluitingen
Als het elektrische net overeenkomt met een van de
volgende karakteristieken:
Spanningstype en netfrequentie
• 400V - 2+N ~ 50 Hz
• 220-240V 3 ~ 50 Hz
• 400V 3 - N ~ 50 Hz
• 400V - 2+2N ~ 50 Hz
Scheid de kabels en voer de draadverbinding uit zoals
aangegeven in de volgende tabel en tekeningen:
Spanningstype
en netfrequentie
Elektrische kabel
Draadverbinding
400V - 2+N ~
50 Hz
220-240V 3 ~
50 Hz
400V 3-N ~
50 Hz
: geel/groen;
N
: de 2 blauwe
draden samen
L1
: zwart
L2
: bruin
400V - 2+2N ~
50 Hz
: geel/groen;
N1
: blauw
N2
: blauw
L1
: zwart
L2
: bruin
Het aansluiten van de voedingskabel aan het elektrische
net
Bij een rechtstreekse aansluiting op het net moet u tussen
het apparaat en het net een meerpolige schakelaar
aanbrengen met een minimum afstand van 3 mm tussen de
contacten.
!
De installateur is verantwoordelijk voor een correcte
elektrische aansluiting en de inachtneming van de
veiligheidsnormen.
Vóór het aansluiten moet u controleren dat:
• de contactdoos geaard is en voldoet aan de geldende
normen;
• het stopcontact in staat is het maximale vermogen van
het apparaat te verdragen, zoals aangegeven op het
typeplaatje dat zich op het apparaat bevindt;
• de spanning zich bevindt tussen de waarden die staan
aangegeven op het typeplaatje;
• de contactdoos en de stekker overeenkomen. Als dat
niet zo is, dient u ofwel de stekker ofwel de contactdoos
te vervangen; gebruik geen verlengsnoeren of
dubbelstekkers.
!
Wanneer het apparaat geïnstalleerd is, moeten de
elektrische kabel en de contactdoos gemakkelijk te
bereiken zijn.
!
De kabel mag niet gebogen of samengedrukt worden.
!
De kabel moet van tijd tot tijd worden gecontroleerd en
mag alleen door erkende monteurs worden vervangen.
!
De fabrikant kan nergens aansprakelijk voor
worden gesteld als deze normen niet worden
nageleefd.
!
Verwijder of vervang de voedingskabel voor geen
enkele reden. De eventuele verwijdering of vervanging
doet de garantie en de CE markering vervallen. INDESIT
kan niet aansprakelijk worden gesteld voor ongelukken
of schade die het resultaat zijn van de vervanging/
verwijdering van de originele voedingskabel. De
vervanging met een origineel onderdeel is alleen
toegestaan indien uitgevoerd door een erkende
INDESIT technicus.
57
NL
Starten en gebruik
!
De lijm die gebruikt is voor de afdichtingen laat wat
vetvlekjes achter op het glas. Voordat u het apparaat
gebruikt raden wij u aan de vlekken te verwijderen
met een speciaal niet-schurend schoonmaakmiddel.
Gedurende de eerste paar uur dat u het apparaat
gebruikt kan het zijn dat u een rubbergeur ruikt. Deze
zal echter snel wegtrekken.
!
Als de kookplaat elektrisch wordt aangesloten hoort
u na enkele seconden een kort geluidssignaal afgaan.
Alleen dan kunt u de kookplaat aanzetten.
Geluiden normale werking kookplaat:
• Zoemen: geluid geproduceerd door het trillen van
de metalen onderdelen waarvan de inductor en
de pan zijn gemaakt en wordt gevormd door het
elektromagnetische veld dat noodzakelijk is voor de
verwarming. Dit neemt toe bij het toenemen van het
vermogen van de inductor.
• Zacht fluiten: dit hoort u als een lege pan op de
kookplaat wordt gezet. Het geluid verdwijnt zodra u
voedsel of water in de pan doet.
• Knetteren: dit geluid wordt geproduceerd door het
trillen van het materiaal van de bodem van de pan
als er parasitaire stromingen plaatsvinden gevormd
door het elektromagnetische veld (inductie).
De intensiteit kan variëren aan de hand van het
materiaal waarmee de bodem van de pan gemaakt
is en wordt minder naarmate de afmetingen van de
pan toenemen.
• Hard fluiten: u hoort dit geluid als de twee
inductoren op dezelfde verticale lijn tegelijkertijd op
maximum vermogen werken en/of als op de grootste
de boosterfunctie is ingesteld en de ander op
zelfregeling staat. Het geluid wordt minder als u het
vermogen van de zelfregelende inductor lager zet.
Dit doet zich vooral voor als de bodem van de pan
bestaat uit verschillende lagen van verschillende
materialen.
• Geluid van de ventilator: voor een juist gebruik
van de kookplaat en om de veiligheid van
het elektronische gedeelte te behoeden voor
eventuele oververhitting is het noodzakelijk de
ventilator in te schakelen. De ventilator draait
op maximaal vermogen als de grote inductor op
maximaal vermogen staat of als de boosterfunctie
is ingeschakeld. In alle andere gevallen draait
hij op middelmatig vermogen aan de hand van
de waargenomen temperatuur. Het is bovendien
mogelijk dat de ventilator blijft draaien nadat u
de kookplaat heeft uitgezet, als de waargenomen
temperatuur zeer hoog is.
De genoemde geluiden zijn het resultaat van de
inductietechnologie en zijn niet noodzakelijkerwijs
functioneringsdefecten.
!
Als u lang op de toetsen drukt
-
en
+
kunt u de
stroomsterkte en de minuten van de timer snel laten
toenemen.
Inschakelen kookplaat
Druk ongeveer 1 seconde op de knop
voor het
inschakelen van de kookplaat.
Inschakelen kookzones
Iedere kookzone wordt in werking gesteld door middel
van een selectietoets
en een regelsysteem voor
de stroomsterkte, bestaande uit een dubbele toets
-
en
+
.
• Voor het in werking stellen van een kookzone drukt
u op de betreffende toets en stelt u de gewenste
stroomsterkte in met de toetsen
-
en
+
.
Booster functie*
Om de verwarmingstijd te versnellen kunt u in enkele
kookzones de booster functie activeren door op de
Booster
toets te drukken. Het controlelampje boven de
toets gaat aan. Deze functie verhoogt het vermogen tot
2000 W of 3000 W, aan de hand van de grootte van de
gekozen kookzone.
De boosterfunctie stopt na 4 minuten automatisch.
Zolang de booster van een van de kookzones actief
is, zal het gedeelte daarvoor of daarachter slechts
over een beperkt vermogen beschikken (bv.: als in
de kookzone linksachter de booster actief is, zal het
vermogen in de kookzone linksvoor afnemen). Voor
verdere informatie kunt u de
Technische beschrijving van
de modellen raadplegen.
Uitschakelen kookgedeeltes
Voor het uitschakelen van een kookgedeelte kiest u dit
door middel van de selectietoets
en:
• Druk op de toets
-
: het vermogen van het
kookgedeelte wordt langzaam minder totdat het
uitgaat.
Programmering kookduur
!
Alle kookgedeeltes kunnen tegelijkertijd
geprogrammeerd worden voor een tijdsduur van
tussen de 1 en de 99 minuten.
1. Kies het kookgedeelte door middel van de
betreffende selectietoets.
2. De gewenste stroomsterkte van het kookgedeelte
instellen.
*
Slechts op enkele modellen aanwezig.
58
NL
3. Druk op de programmeertoets
. Het
controlelampje voor het betreffende kookgedeelte
begint te knipperen.
4. Stel de gewenste kookduur in door middel van de
toetsen
-
en
+
.
5. Bevestig door op de toets
te drukken, of na 10
seconden vindt automatische selectie plaats.
De timer begint gelijk met aftellen. Het einde van de
geprogrammeerde kooktijd wordt aangegeven door een
geluidssignaal (van 1 minuut) waarna het kookgedeelte
uitgaat. Herhaal de hierboven beschreven procedure
voor iedere kookplaat die u wilt programmeren.
Visualisatie bij een meervoudige programmering.
Indien een of meer kookplaten zijn geprogrammeerd
vertoont het display de resterende tijd van de
kookplaat die als eerste eindigt, terwijl hij de positie
ervan aanduidt door middel van het betreffende
controlelampje dat knippert. De controlelampjes van
de andere geprogrammeerde kookplaten zijn aan.
Om de resterende tijd van de andere
geprogrammeerde kookplaten te visualiseren moet
u een aantal keren op de toets
drukken: met
de klok mee zullen, de een na de
ander, de tijden van de timer alle
geprogrammeerde kookplaten worden
getoond, te beginnen met de kookplaat
linksvoor.
Het wijzigen van een programmering
1. Druk een aantal keer op de toets
totdat de tijd
van de kookplaat die u wilt wijzigen verschijnt.
2. Druk op de toetsen
-
en
+
voor het instellen van
de nieuwe tijd.
3. Bevestig door op de toets
te drukken.
Om een programmering te annuleren moet u
bovenstaande handelingen uitvoeren. Bij punt
2 drukt u op de toets
-
: de duur vermindert
langzaamaan tot aan de uitschakeling 0. De
programmering wordt gewist en het display verlaat de
programmeringsmodus.
De timer
De kookplaat moet aan zijn.
Met de timer kunt u een duur tot aan 99 minuten instellen.
1. Druk op de toets programmering
totdat het
controlelampje van de timer aangaat
.
2. Stel de gewenste kookduur in door middel van de
toetsen
-
en
+
.
3. Bevestig door op de toets
te drukken.
De timer begint gelijk met aftellen. Als de tijd
verstreken is hoort u voor de duur van 1 minuut een
geluidssignaal.
Blokkering van het bedieningspaneel
Als de kookplaat in werking is kunt u het
bedieningspaneel blokkeren om een
ongewenst aanraken te vermijden (kinderen,
schoonmaakhandelingen, enz.). Door op de toets
te drukken zal het bedieningspaneel worden
geblokkeerd. Het controlelampje boven de toets gaat
aan.
Als u het bedieningspaneel weer wilt gebruiken (bv.
als u wilt stoppen met koken) moet u de blokkering
uitschakelen: druk even op de toets
. Het
controlelampje gaat uit en het bedieningspaneel wordt
weer geactiveerd.
Uitschakelen kookplaat
Druk op de toets
; wordt het apparaat
uitgeschakeld. Vertrouw niet op de pannendetector.
Als het bedieningspaneel is geblokkeerd, blijft dit ook
geblokkeerd nadat u de kookplaat opnieuw inschakelt.
Als u de kookplaat opnieuw wilt inschakelen moet u
eerst het bedieningspaneel deblokkeren.
“Demo” modus
Het is mogelijk een demomodus in te stellen
waarbij het bedieningspaneel normaal functioneert
(de opdrachten betreffende de programmering
inbegrepen), maar waarbij de verwarmingselementen
niet aangaan. Om de “demo” modus te activeren moet
de kookplaat aanstaan en alle stralingselementen uit:
• Druk tegelijkertijd 6 seconden lang op de toetsen
+
en
-
. Zodra de 6 seconden zijn verstreken zullen
de controlelampjes ON/OFF en BLOKKERING
BEDIENINGSPANEEL een seconde lang knipperen.
Laat de toetsen
+
en
-
los en druk op de toets
;
• het display toont om de beurt de tekst DE en MO en
het kookvlak gaat uit;
• de volgende keer dat u de kookplaat inschakelt zal
hij zich in de “demo” modus bevinden.
Om deze modus te verlaten volgt u de boven
beschreven procedure. Het display toont om de beurt
de tekst DE en OF en het kookvlak gaat uit. Als u het
kookvlak weer inschakelt zal het gewoon functioneren.
59
NL
Praktische tips voor het gebruik van het
apparaat
!
Gebruik pannen die gemaakt zijn van materiaal dat
geschikt is voor inductie (ferromagnetisch materiaal).
Wij raden het gebruik aan van pannen van: gietijzer,
geëmailleerd staal of speciaal inductie roestvrij staal. U
kunt zelf testen of een pan geschikt is door hem uit te
proberen met een magneet.
*
GESCHIKTE MATERIALEN
ONGESCHIKTE MATERIALEN
Gietijzer
Ge‘mailleerd staal
Speciaal roestvrij staal
Koper,
Aluminium, Glas, Terracotta,
Aardewerk, Niet magnetisch roestvrij staal
Om optimale resultaten te bereiken met de kookplaat:
• Gebruik alleen pannen met een dikke, platte bodem
zodat ze perfect aansluiten op het verwarmingsvlak.
• Gebruik pannen die groot genoeg zijn om
de kookplaat geheel te bedekken zodat alle
beschikbare hitte wordt benut.
• Houd de bodem van de pannen altijd goed schoon
en droog zodat ze goed aansluiten op het kookvlak.
Dit verlengt de levensduur van zowel de pannen als
het kookvlak zelf.
• Vermijd dezelfde pannen te gebruiken die
u ook op een gasfornuis heeft gebruikt: de
warmteconcentratie van gasbranders kan de bodem
van pannen vervormen, waardoor ze niet goed meer
aansluiten.
Veiligheidssystemen
Pannensensor
Ieder kookgedeelte is voorzien van een systeem
dat waarneemt of er een pan op staat. De plaat
straalt alleen warmte uit als er een pan van de juiste
afmetingen op staat. Het knipperende controlelampje
kan betekenen:
• dat de pan niet geschikt is
• dat de pan een te kleine diameter heeft
• dat de pan niet goed aansluit
Oververhitting
In het geval van oververhitting van de elektronische
onderdelen gaat de kookplaat automatisch uit
en verschijnt op het display
F
gevolgd door een
knipperend nummer. Deze boodschap verdwijnt
en u kunt de kookplaat weer gebruiken zodra de
temperatuur tot op een acceptabel niveau is gezakt.
Veiligheidsschakelaar
Het apparaat beschikt over een veiligheidsschakelaar
die de kookgedeeltes automatisch uitschakelt als
de tijdslimiet voor een bepaald vermogensniveau is
bereikt. Tijdens deze veiligheidsonderbreking vertoont
het display het cijfer “0”.
B.v.: de kookplaat rechtsachter staat op 5, terwijl de
plaat linksvoor op 2 staat. De plaat rechtsachter zal
automatisch na 5 uur uitgaan, de plaat linksvoor na 8 uur.
Vermogensniveau
1
2
3
4
5
6
7
8
9
Begrenzing van de werkingsduur in uren
9
8
7
6
5
4
3
2
1
Geluidssignaal
Enkele storingen, zoals:
• een voorwerp (pan, bestek, enz.) dat meer dan 10
seconden op het bedieningspaneel ligt,
• gemors op het bedieningspaneel,
• een lange druk op een toets, kunnen een
geluidssignaal veroorzaken. Verwijder de oorzaak
van de storing en het geluidssignaal houdt op. Als
de oorzaak van de storing niet wordt verwijderd
blijft het geluidssignaal gaan en wordt het kookvlak
uitgeschakeld.
60
NL
Praktische kooktips
ª
Koken met een snel
kookpanSnelkookpan
Frituren
Grillen
Koken
VKoken op zeer
hoog vuur
Koken op
hoog vuur
Koken op middelmatig vuur
Koken op
laag vuur
Koken op
zeer laag
vuur
• • ¶
Crêpes
Koken op hoog vuur en bruin bakken
(Braadstukken, biefstukken, kalfslappen,
visfilets, gebakken eieren)
¶ §
Snel indikken (vloeibare sauzen)
Koken van water (pasta, rijst, groente)
Melk
§ S
Langzaam indikken (gebonden sauzen)
S ¢
Au bain-marie koken
Koken met snelkookpan, na het sissen
¢ £ ™
Koken op laag vuur
(stoofschotels)
Opwarmen van gerechten
™ ¡
Chocoladesaus
Warm houden van gerechten

