CTA SHARP 6K: RU
RU: CTA SHARP 6K
RU
(RU) 1
RU
СОДЕРЖАНИЕ
1.0
ОПИСАНИЕ И ТЕХНИЧЕСКИЕ ХАРАКТЕРИСТИКИ
. . . . . . . . . . . . . . . . . . .RU - 2
1.1
ОПИСАНИЕ . . . . . . . . . . . . . . . . . . . . . . . . . . . . . . . . . . . . . . . . . . .RU - 2
1.2
ТЕХНИЧЕСКИЕ ХАРАКТЕРИСТИКИ . . . . . . . . . . . . . . . . . . . . . . . . . . . . .RU - 2
1.3
ПРИНАДЛЕЖНОСТИ . . . . . . . . . . . . . . . . . . . . . . . . . . . . . . . . . . . . . .RU - 2
1.4
РАБОЧИЙ ЦИКЛ. . . . . . . . . . . . . . . . . . . . . . . . . . . . . . . . . . . . . . . . .RU - 2
2.0
УСТАНОВКА
. . . . . . . . . . . . . . . . . . . . . . . . . . . . . . . . . . . . . . . . . . . . .RU - 2
2.1
ПОДКЛЮЧЕНИЕ ГЕНЕРАТОРА К СЕТИ ЭЛЕКТРОПИТАНИЯ . . . . . . . . . . . . . .RU - 2
2.2
РАСПОЛОЖЕНИЕ ГЕНЕРАТОРА . . . . . . . . . . . . . . . . . . . . . . . . . . . . . . .RU - 2
2.3
ТРАНСПОРТИРОВКА И ПЕРЕМЕЩЕНИЕ ГЕНЕРАТОРА. ЗАЩИТА ОПЕРАТОРА . . .RU - 2
3.0
ОРГАНЫ УПРАВЛЕНИЯ: ПОЛОЖЕНИЕ И НАЗНАЧЕНИЕ
. . . . . . . . . . . . . . . .RU - 3
3.1
ПЕРЕДНЯЯ ПАНЕЛЬ . . . . . . . . . . . . . . . . . . . . . . . . . . . . . . . . . . . . . .RU - 3
3.2
ЗАДНЯЯ ПАНЕЛЬ . . . . . . . . . . . . . . . . . . . . . . . . . . . . . . . . . . . . . . . .RU - 3
4.0
УКАЗАНИЯ ПО ЭКСПЛУАТАЦИИ
. . . . . . . . . . . . . . . . . . . . . . . . . . . . . . .RU - 4
5.0
ФУНКЦИОНИРОВАНИЕ ГОРЕЛКИ
. . . . . . . . . . . . . . . . . . . . . . . . . . . . . .RU - 4
5.1
ПРОБИВКА ОТВЕРСТИЙ . . . . . . . . . . . . . . . . . . . . . . . . . . . . . . . . . . .RU - 4
6.0
ОБЫЧНО ВСТРЕЧАЮЩИЕСЯ ДЕФЕКТЫ РЕЗКИ
. . . . . . . . . . . . . . . . . . . .RU - 4
7.0
ПРИЧИНЫ ВОЗМОЖНЫХ НЕИСПРАВНОСТЕЙ
. . . . . . . . . . . . . . . . . . . . . .RU - 4
ПЕРЕЧЕНЬ ЗАПАСНЫХ ЧАСТЕЙ
. . . . . . . . . . . . . . . . . . . . . . . . . . . . . . . . . . .I - III
ЭЛЕКТРИЧЕСКАЯ СХЕМА
. . . . . . . . . . . . . . . . . . . . . . . . . . . . . . . . . . . . . . . V
RU
(RU) 2
RU
ОПИСАНИЕ И ТЕХНИЧЕСКИЕ ХАРАКТЕРИСТИКИ
1.0 ОПИСАНИЕ И ТЕХНИЧЕСКИЕ ХАРАКТЕРИСТИКИ
1.1
ОПИСАНИЕ
Данная машина представляет собой современный, снабженный
инвертором генератор постоянного тока, который предназначен
для плазменной резки. Эта особая технология позволяет создавать
компактные и легкие генераторы с высокими эксплуатационными
ха ра к т е р и с т и к а м и . В о з м ож н о с т ь в ы п ол н е н и я ра з л и ч н ы х
регулировок, высокий кпд и ограниченный расход энергии - все это
делает машину отличным инструментом, который позволяет
качественно выполнять резку материалов толщиной до 6 мм -
В предусмотрен встроенный компрессор, поэтому ее не требуется
подключать к источнику сжатого воздуха. Обе модели оснащены
устройством автоматического повторного зажигания дуги, что
обеспечивает оптимальный режим резки металлических структур,
выполненных в виде решетки. Кроме того, генератор оснащен
предохранительными системами, отключающими силовую цепь в
случае, если оператор касается токоведущих частей машины. В
дополнение, материалы толщиной до 2 мм можно резать с помощью
одной дежурной дуги, что очень полезно при резке окрашенных
м е та л л и ч е с к и х д е та л е й , к ко т о р ы м н е л ь з я п р и с о ед и н и т ь
положительный зажим.
1.2
ТЕХНИЧЕСКИЕ ХАРАКТЕРИСТИКИ
ПАСПОРТНАЯ ТАБЛИЧКА
1.3
ПРИНАДЛЕЖНОСТИ
Обращайтесь к местным агентам или к дилеру.
1.4
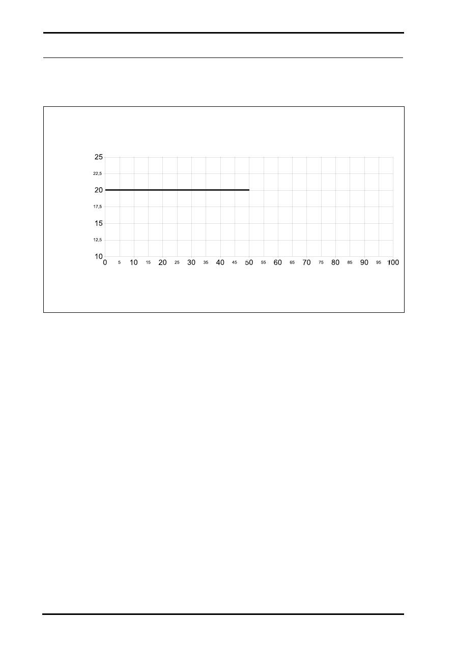
РАБОЧИЙ ЦИКЛ
Рабочий цикл представляет собой долю времени в процентах от 10
минут, в течение которого генератор может выполнять резку с
номинальным током при температуре окружающей среды 40° C, не
вызывая срабатывания тепловой защиты.
В случае срабатывания этого защитного устройства рекомендуется
подождать не менее 15 минут, прежде чем возобновлять резку
(см. стр. IV).
НЕЛЬЗЯ ПРЕВЫШАТЬ МАКСИМАЛЬНУЮ ВЕЛИЧИНУ РАБОЧЕГО
ЦИКЛА.
Превышение величины рабочего цикла, указанной на табличке
паспортных данных, может привести к выходу генератора из строя
и к аннулированию гарантии.
2.0 УСТАНОВКА
ВНИМАНИЕ! Прежде чем подключить, подготовить к
работе или использовать оборудование, внимательно прочтите
УКАЗАНИЯ ПО БЕЗОПАСНОЙ ЭКСПЛУАТАЦИИ.
2.1
ПОДКЛЮЧЕНИЕ ГЕНЕРАТОРА К СЕТИ ЭЛЕКТРОПИТАНИЯ.
Убедитесь в том, что штепсельная вилка снабжена
плавким предохранителем на силу тока, указанную в табличке
паспортных данных генератора. Все модели генератора
п р е д у с м а т р и в а ю т ко м п е н с а ц и ю кол е б а н и й с е т е в о г о
напряжения. Колебаниям в пределах ±10% соответствует
изменение тока резки ±0,2%.
2.2
РАСПОЛОЖЕНИЕ ГЕНЕРАТОРА
В с л у ч а е ус т а н о в к и м а ш и н в п о м е щ е н и я х , гд е
используются или хранятся воспламеняющиеся жидкости или
газы, должны соблюдаться особые требования. Для решения
связанных с этим вопросов обращайтесь в компетентные
службы.
При выполнении установки генератора необходимо убедиться в
соблюдении следующих условий:
1.
Оператор должен иметь удобный доступ к устройствам
управления и к электрическим соединениям оборудования.
2.
Убедитесь, что кабель питания и плавкий предохранитель
электрической розетки, к которой подключена машина,
соответствуют величине потребляемого генератором тока.
3.
Оборудование не должно устанавливаться в тесном
помещении: важным условием для обеспечения нормальной
работы генератора является его эффективная вентиляция; в
связи с этим при его установке должны быть исключены
запыленные или грязные помещения, где пыль и другие
предметы могут засасываться в установку.
4.
Оборудование (включая кабели) не должно мешать проходу
или работе других людей.
5.
Генератор должен быть установлен в устойчивом положении,
исключающем его падение или опрокидывание. Помещение
генератора на возвышенное место создает потенциальную
опасность падения.
2.3
ТРАНСПОРТИРОВКА И ПЕРЕМЕЩЕНИЕ ГЕНЕРАТОРА.
ЗАЩИТА ОПЕРАТОРА
СРЕДСТВА ЗАЩИТЫ ОПЕРАТОРА:
Каска - Перчатки - Защитная обувь - Краги
Вес генератора составляет не более 25 генератор
может подниматься оператором. Прочитайте и соблюдайте
нижеприведенные указания.
При проектировании генератора была учтена необходимость его
подъема и транспортировки. Транспортировка оборудования
является несложной операцией, но требует соблюдения следующих
правил:
1.
Для подъема и перемещения используйте ручку,
предусмотренную для этой цели на генераторе.
2.
Прежде чем поднимать или перемещать генератор,
отсоедините подключенные к нему устройства, а также сам
генератор от электрической сети.
3.
Не пользуйтесь кабелями генератора для его подъема или
перемещения.
ПЕРВИЧНАЯ ЦЕПЬ
Однофазное напряжение
230V
Частота
50 / 60 Hz
Потребляемый ток
11A
Максимальный
потребляемый ток
16A
ВТОРИЧНАЯ ЦЕПЬ
Напряжение холостого хода
300V
Ток рзки
10 ÷ 20A
Рабочий цикл
20A ÷ 50%
Класс защиты
IP 23
Класс изоляции
H
Вес
12 kg.
Габаритные размеры
mm 410 x 180 x 310
Нормативные документы
EN 60974.1 - EN 60974.7
EN 60974.10
В О И З Б Е Ж А Н И Е П О В Р Е Ж Д Е Н И Я
ГЕНЕРАТОРА, ПРЕЖДЕ ЧЕМ ВКЛЮЧАТЬ
Ш Т Е П С Е Л Ь Н У Ю В И Л К У В
С О О Т В Е Т С Т В У Ю Щ У Ю Р О З Е Т К У ,
ПРОВЕРЬТЕ СООТВЕТСТВИЕ СЕТЕВОГО
НАПРЯЖЕНИЯ НАПРЯЖЕНИЮ ПИТАНИЯ
МАШИНЫ.
RU
(RU) 3
RU
ОРГАНЫ УПРАВЛЕНИЯ: ПОЛОЖЕНИЕ И НАЗНАЧЕНИЕ
3.0 ОРГАНЫ УПРАВЛЕНИЯ: ПОЛОЖЕНИЕ И
НАЗНАЧЕНИЕ
3.1
ПЕРЕДНЯЯ ПАНЕЛЬ
Рис. 1.
3.2
ЗАДНЯЯ ПАНЕЛЬ
Рис. 2.
3.3
НАЗНАЧЕНИЕ ОРГАНОВ УПРАВЛЕНИЯ
1.
ИНДИКАТОР ПОДАЧИ ПИТАНИЯ
(
Поз.
1
- Рис. 1 стр. 3)
При включенном индикаторе машина готова к резке.
2.
ИНДИКАТОР ВКЛЮЧЕНИЯ УСТРОЙСТВ АВАРИЙНОЙ
СИГНАЛИЗАЦИИ
(
Поз.
2
- Рис. 1 стр. 3)
Включение этого индикатора означает срабатывание одной из
предусмотренных аварийных сигнализаций; одновременно на
дисплей (
Поз.
3
- Рис. 1 стр. 3) выводится тип ошибки,
указанной в приведенной таблицей вместе с описанием
действий, необходимых для восстановления нормальной
работы генератора. В таком состоянии генератор не дает тока.
ТАБЛИЦА № 1 - ТИПЫ АВАРИЙНЫХ СИГНАЛОВ
3.
ЦИФРОВОЙ ПРИБОР
(
Поз.
3
- Рис. 1 стр. 3)
О т о б ра жа е т з н а ч е н и е т о к а , з а д а н н о го ге н е рат о р о м ,
попеременно выводится также следующая информация:
• сообщение о включении.
• версия программного обеспечения.
• напряжение на горелке при нажатии кнопки (
Поз.
5
- Рис. 1
стр. 3) .
• давление воздуха при нажатии кнопки (
Поз.
6
- Рис. 1 стр. 3)
.
• Тип аварийного сигнала (ALLARMI), см.
табл. 1
.
• Тип сбоя машины (FAIL), см.
табл. 2
.
4.
ФУНКЦИЯ ЦИФРОВОГО ПРИБОРА
(
Поз.
4
- Рис. 1 стр. 3)
Включенный индикатор соответствует той физической
величине, которая отображается на дисплее:
• Вольт.
• Ампер.
• Бар.
5.
КНОПКА "ТОК-НАПРЯЖЕНИЕ"
(
Поз.
5
- Рис. 1 стр. 3)
При нажатии этой кнопки на дисплей выводится (
Поз.
3
- Рис.
1 стр. 3) напряжение на горелке.
Отображение величины напряжения является временным.
6.
КНОПКА "ВОЗДУХ"
(
Поз.
6
- Рис. 1 стр. 3)
При нажатии этой кнопки на заданный промежуток времени
включается устройство подачи воздуха, при этом на дисплей
выводится величина рабочего давления.
7.
РУЧКА РЕГУЛИРОВКИ ТОКА
(
Поз.
7
- Рис. 1 стр. 3)
Регулировка тока резки.
8.
ГЛАВНЫЙ ВЫКЛЮЧАТЕЛЬ (Поз. 8
- Рис. 2 стр. 3)
Этот выключатель имеет два положения: включено (при этом
з а го р а е т с я з е л е н ы й и н д и к а т о р ) и в ы к л ю ч е н о , ч т о
соответствует включенному и выключенному состоянию
генератора.
9.
ВОЗДУШНЫЙ ФИЛЬТР (Поз. 9
- Рис. 2 стр. 3)
Выполняйте его чистку в соответствии с программой
планового техобслуживания.
1
Индикатор подачи питания
2
Индикатор включения устройств аварийной сигнализации
3
Цифровой прибор
4
Функции цифрового прибора
(Вольт - Амп. - Бар)
5
Кнопка "Ток-напряжение"
6
Кнопка "Воздух"
7
Регулировочная ручка
8
Главный выключатель
9
Воздушный фильтр
3
6
7
4
1
2
5
ПОКАЗАНИЯ НА
ДИСПЛЕЕ
ЗНАЧЕНИЕ
ВОССТАНОВЛЕНИЕ РАБОТЫ
- - -
Недостаточное входное напряжение. Разомкнут
рубильник или в сети отсутствует напряжение.
После сброса аварийного сигнала.
Если сигнал остается, обратитесь в сервисный
центр.
CUP
Колпачок горелки закручен неверно
(При включенном генераторе).
Выключить генератор.
Правильно закрутить колпачок и снова включить
генератор.
HtA
Перегрев силового преобразователя.
После сброса аварийного сигнала (после
понижения внутренней температуры).
ThA (мигание)
Сообщение о приближении к температуре
перегрева силового преобразователя (HtA).
После сброса аварийного сигнала (после
понижения внутренней температуры).
CtA
Перегрев компрессора
(Только модель 20A).
После сброса аварийного сигнала (после
понижения
внутренней температуры).
Air
Недостаточное давление воздуха ниже 1,5 бар).
Обратиться в сервисный центр.
ScA
Короткое замыкание на выходе.
Выключить и снова включить генератор.
LSF
Дуга гаснет.
Проверить, не изношены ли колпачок и электрод;
заменить их в случае износа. Если сигнал ошибки
не исчезает, выключить и снова включить
генератор. Если сигнал ошибки появляется снова,
обратиться в сервисный центр.
RU
(RU) 4
RU
УКАЗАНИЯ ПО ЭКСПЛУАТАЦИИ
4.0 УКАЗАНИЯ ПО ЭКСПЛУАТАЦИИ
a.
Подключайте генератор к сети электропитания, установив его
в сухом, хорошо вентилируемом месте.
b.
Нажмите на главный выключатель (
Поз. 8
- Рис. 2 стр. 3) и
дождитесь включения генератора.
c.
Наложите зажим заземления на подлежащую резке деталь,
следя за наличием должного электрического контакта.
d.
Выберите ток резки, пользуясь ручкой (
Поз.
7
- Рис. 1 стр. 3) ,
в соответствии с величинами, приведенными в таблице ниже.
e.
Подведите резак к разрезаемой детали, нажмите кнопку на
горелке и начните резку.
Рекомендуется не держать, без необходимости, дежурную дугу
зажженной во избежание износа электрода и сопла.
5.0 ФУНКЦИОНИРОВАНИЕ ГОРЕЛКИ
Начинайте резать медленно, затем увеличьте скорость для
достижения требуемого качества резки. Если необходимо начать
резку с края металлического листа, выровняйте центр горелки по
краю листа и нажмите кнопку на горелке: в этом случае
режущая дуга зажжется по краю листа. Отрегулируйте скорость
та к , ч т о б ы д о с т и ч ь хо р о ш е го к а ч е с т в а р е з к и . В о з д у ш н о -
плазменная дуга является прямой (нержавеющая сталь, алюминий)
или же имеет рабочий угол 5°
(Рис. E)
(мягкая сталь).
5.1
ПРОБИВКА ОТВЕРСТИЙ
При некоторых операциях резки может возникнуть необходимость
начать резку изнутри металлического листа, а не с края.
Эффект обратного пламени при пробивке может привести к
сокращению срока службы горелки, поэтому весь процесс
п р о б и в к и д ол же н в ы п ол н я т ь с я к а к м ож н о б ы с т р е е. П р и
выполнении пробивки (
Рис. F
) слегка наклоните горелку так, чтобы
частицы обратного пламени сдувались в сторону от сопла горелки
(и от оператора), а не попадали на горелку.
Как только станет возможным, удалите шлак и нагар с защитного
колпачка и с сопла. Обработка защитного колпачка специальным
противошлаковым средством (пульверизацией или погружением)
приводит к значительному уменьшению нагара на нем.
П Р И М Е Ч А Н И Е : д л я в с е х о п е р а ц и й р е з к и н е о б ход и м о
выполнять следующие рекомендации.
a.
Подождите 5 минут перед тем, как выключать генератор
п о с л е о ко н ч а н и я р е з к и . Э т о п о з в ол я е т о б е с п е ч и т ь
охлаждение генератора вентилятором и рассеять тепло от
машины.
b.
Для увеличения срока службы компонентов не держите
дежурную дугу зажженной дольше, чем это необходимо.
c.
Бережно обращайтесь с проводниками горелки и следите за
тем, чтобы они не имели повреждений.
d.
Для замены изнашиваемых деталей пользуйтесь только
специальным предохранительным ключом.
Р Е Г У Л Я Р Н О П Е Р Е Ч И Т Ы В А Й Т Е П РА В И Л А Т Е Х Н И К И
Б Е З О П АС Н О С Т И , П Р И В Е Д Е Н Н Ы Е В Н АС ТО Я Щ Е М
РУКОВОДСТВЕ
6.0 ОБЫЧНО ВСТРЕЧАЮЩИЕСЯ ДЕФЕКТЫ РЕЗКИ
Ниже перечислены обычно встречающиеся при резке дефекты и их
вероятные причины
Недостаточная глубина проникания
a.
Слишком высокая скорость резки.
b.
Недостаточная мощность.
c.
Чрезмерная толщина материала.
d.
Износ или поломка компонентов горелки.
Главная дуга гаснт
a.
Слишком низкая скорость резки.
b.
Чрезмерно большое расстояние между соплом горелки и
деталью.
Образование шлака.
a.
Неверное давление газа.
b.
Неверная мощность резки.
c.
Износ или поломка компонентов горелки.
Подгорание сопел.
a.
Слишком большой ток.
b.
Сопла резки повреждены или ослаблены.
c.
Сопло касается детали.
d.
Избыток шлака: недостаточное давление газоплазменной
смеси.
7.0 ПРИЧИНЫ ВОЗМОЖНЫХ НЕИСПРАВНОСТЕЙ
После включения генератора возможно появление на дисплее
сообщений об ошибках в его функционировании (
Поз. 3,
- Рис. 1
стр. 3)
Такие ошибки могут являться сбрасываемыми или же
необратимыми.
ТАБЛИЦА № 2. - СБОИ (FAIL) -
ПОКАЗАНИЯ НА ДИСПЛЕЕ
ВОССТАНОВЛЕНИЕ РАБОТЫ
F14
Убедиться, что колпачок вставлен правильно.
Выключить и снова включить генератор.
F10 - F11 - F12 - F13
Выключить и снова включить генератор. Если неисправность
повторяется, обратиться
в сервисный центр и сообщить тип ошибки.
F15
Убедиться в том, что кнопка горелки не нажата во время
включения генератора. Выключить и снова включить генератор.
F20 - F30 - F51 - F52 - F53 - F54 - F55 - F56
Выключить и снова включить генератор. Если неисправность не
исчезает, обратиться в сервисный центр и указать тип ошибки.
I
SPARE PARTS LIST - PIÈCES DÉTACHÉES - LISTA DE LAS PIEZAS DE RECAMBIO - LISTA PEZZI DI RICAMBIO
ERSATZTEILLISTE - PEÇAS SOBRESSELENTES - RESERVDELAR - WISSELSTUKKEN - LISTA PIESE COMPONENTE -
LISTA CZĘŚCI ZAMIENNYCH
-
∫∞∆∞§√°√™ ∞¡∆∞§§∞∫∆π∫ø¡
-
ПЕРЕЧЕНЬ ЗАПАСНЫХ ЧАСТЕЙ
42
13
38
30
08
31
31.1
01
11
09
61.1
61
14
14
34
72
84
36
82
79
62
54
II
SPARE PARTS LIST - PIÈCES DÉTACHÉES - LISTA DE LAS PIEZAS DE RECAMBIO - LISTA PEZZI DI RICAMBIO
ERSATZTEILLISTE - PEÇAS SOBRESSELENTES - RESERVDELAR - WISSELSTUKKEN - LISTA PIESE COMPONENTE -
LISTA CZĘŚCI ZAMIENNYCH
-
∫∞∆∞§√°√™ ∞¡∆∞§§∞∫∆π∫ø¡
-
ПЕРЕЧЕНЬ ЗАПАСНЫХ ЧАСТЕЙ
R.
CODE
DESCRIPTION
DESCRIPTION
DESCRIPCIÓN
01
W000050040
CIRCUIT BOARD CE 22662
CIRCUIT ÉLECTRONIQUE CE 22662
CIRCUITO ELECTRÓNICO CE 22662
08
W000050020
POWER CABLE
CÂBLE D'ALIMENTATION
CABLE DE ALIMENTACIÓN
09
W000050021
CABLE CLAMP
SERRE-CABLE
PRENSACABLE
11
W000070027
SWITCH
INTERRUPTEUR
INTERRUPTOR
13
W000227980
KNOB
BOUTON
PERILLA
13.1
W000263970
HOOD
CAPUCHON
CAPUCHÓN
14
W000050026
ELECTRIC FAN
MOTOVENTILATEUR
VENTILADOR ELÉC.
30
W000237008
TORCH TORCHE
ANTORCHA
31
W000236855
PLIERS CABLE
CÂBLE PINCE
CABLE PINZA
31.1
W000050185
PLIERS PINCE
PINZA
34
W000050189
CIRCUIT BOARD CE 22665
CIRCUIT ÉLECTRONIQUE CE 22665
CIRCUITO ELECTRÓNICO CE 22665
36
W000050047
CIRCUIT BOARD CE 22666
CIRCUIT ÉLECTRONIQUE CE 22666
CIRCUITO ELECTRÓNICO CE 22666
38
W000262752
PLASTIC TRIM
PROFIL ARÊTE
PROFIL ARÊTE
42
W000050173
HANDLE TUBE
POIGNEE
TUBO DE LA MANIJA
54
W000236854
VIBRATOR DAMPER
ANTIVIBRANT
ANTIVIBRANTE
61
W000050190
GRILLE
GRILLE
REJILLA
61.1
W000050182
FILTER
FILTRE
FILTRO
62
W000050180
FOOT
PIED
PATA
72
W000050027
MOUNT
SUPPORT
SOPORTE
79
W000236853
COMPRESSOR
COMPRESSEUR
COMPRESOR
82
W000231334
PRESSURE REDUCER
RÉDUCTEUR PRESSION
REDUCTOR DE PRESIÓN
84
W000227637
ELECTRONIC PRESSURE SWITCH
PRESSOSTAT ÉLECTRONIQUE
PRESOSTATO ELECTRÓNICA
R.
CODE
DESCRIZIONE
BESCHREIBUNG
DESCRIÇÃO
01
W000050040
CIRCUITO ELETTRONICO CE 22662
ELEKTRONISCHE SCHALTUNG CE 22662
CIRCUITO ELECTRÓNICO CE 22662
08
W000050020
CAVO DI ALIMENTAZIONE
NETZKABEL
CABO DE ALIMENTAÇÃO
09
W000050021
PRESSACAVO
KABELSCHELLE
GRAMPO DO CABO
11
W000070027
INTERRUTTORE
SCHALTER
INTERRUPTOR
13
W000227980
MANOPOLA
DREHKNOPF
BOTÃO
13.1
W000263970
CAPPUCCIO
KAPPE
TAMPA
14
W000050026
MOTOVENTILATORE
MOTORLÜFTER
VENTILADOR ELÉC.
30
W000237008
TORCIA
BRENNER
MAÇARICO
31
W000236855
CAVO MASSA
ZANGEKABEL
CABO DE LIGAÇÃO À TERRA
31.1
W000050185
PINZA
ZANGE
PINCE
34
W000050189
CIRCUITO ELETTRONICO CE 22665
ELEKTRONISCHE SCHALTUNG CE 22665
CIRCUITO ELECTRONICO CE 22665
36
W000050047
CIRCUITO ELETTRONICO CE 22666
ELEKTRONISCHE SCHALTUNG CE 22666
CIRCUITO ELECTRÓNICO CE 22666
38
W000262752
PROFILO CORNICE
RAHMENPROFIL
MOLDURA
42
W000050173
TUBO MANIGLIA
HANDGRIFFROHR
TUBO DA ALÇA
54
W000236854
ANTIVIBRANTE
SCHWINGUNGSDÄMPFEND
ANTIVIBRACIÓN
61
W000050190
GRIGLIA
GITTER
GRADE
61.1
W000050182
FILTRO SPUGNA
FILTER
FILTRO DE ESPONJA
62
W000050180
PIEDINO PVC
FUSS
PÉ EM PVC
72
W000050027
SUPPORTO SCHEDA
AUFHANGUNG
SUPORTE DA PLACA
79
W000236853
COMPRESSORE
KOMPRESSOR
COMPRESOR
82
W000231334
RIDUTTORE PRESSIONE
DRUCKMINDERER
REDUTOR DE PRESSÃO
84
W000227637
PRESSOSTATO ELETRONICO
DRUCKSCHALTER ELEKTRONIK
PRESSÓSTATO ELECTRÓNICO
III
SPARE PARTS LIST - PIÈCES DÉTACHÉES - LISTA DE LAS PIEZAS DE RECAMBIO - LISTA PEZZI DI RICAMBIO
ERSATZTEILLISTE - PEÇAS SOBRESSELENTES - RESERVDELAR - WISSELSTUKKEN - LISTA PIESE COMPONENTE -
LISTA CZĘŚCI ZAMIENNYCH
-
∫∞∆∞§√°√™ ∞¡∆∞§§∞∫∆π∫ø¡
-
ПЕРЕЧЕНЬ ЗАПАСНЫХ ЧАСТЕЙ
R.
CODE
BESKRIVNING
BESCHRIJVING
DESCRIERE
01
W000050040
ELEKTRONISK KRETS CE 22662
ELEKTRONISCH CIRCUIT CE 22662
CIRCUIT ELECTRONIC CE 22662
08
W000050020
NÄTKABEL
VOEDINGSKABEL
CABLU DE ALIMENTARE
09
W000050021
KABELKLÄMMA
KABELKLEM
CLEMA CABLU
11
W000070027
STRÖMBRYTARE
SCHAKELAAR
INTRERUPATOR
13
W000227980
RATT
KNOP
POTENTIOMETRU
13.1
W000263970
NIPPEL
DOPJE
CAPISON
14
W000050026
FLÄKT
MOTORVENTILATOR
VENTILATOR
30
W000237008
SVETSBRÄNNARE LASSNIJBRANDER
PISTOLET
31
W000236855
JORDKABEL
MASSAKABEL
CABLU DE MASA
31.1
W000050185
PINZA
ZANGE
CLEMA DE MASA
34
W000050189
ELEKTRONISK KRETS
ELEKTRONISCH CIRCUIT CE 22665
CIRCUIT ELECTRONIC CE 22665
36
W000050047
ELEKTRONISK KRETS CE 22666
ELEKTRONISCH CIRCUIT CE 22666
CIRCUIT ELECTRONIC CE 22666
38
W000262752
RAMPROFIL
LIJSTPROFIEL
PROFIL PLASTIC
42
W000050173
HANDTAGSRÖR
BUISHANDGREEP
MANER
54
W000236854
VIBRATIONSSKYDD
ANTIVIBRATIE-RING
INEL CAUCIUC ANTIVIBRANT
61
W000050190
GALLER
ROOSTER
GRILAJ
61.1
W000050182
SVAMPFILTER
SPONSFILTER
FILTRU
62
W000050180
FOT I PVC
PVC VOETSTUK
PICIORUS PVC
72
W000050027
KORTHÅLLARE
KAARTHOUDER
SUPORT
79
W000236853
KOMPRESSOR
COMPRESSOR
COMPRESOR
82
W000231334
TRYCKREGLAGE REDUCEERVENTIEL
REDUCTOR PRESIUNE
84
W000227637
ELEKTRONISKT TRYCKREGLAGE
ELEKTRONISCHE DRUKSCHAKELAAR
PRESTOTAT ELECTRONIC
R.
CODE
POPIS
¶∂ƒπ°ƒ∞º∏
ОПИСАНИЕ
01
W000050040
DOSKA PLOŠNÝCH SPOJOV CE 22662
∏§∂∫∆ƒ√¡π∫√ ∫À∫§øª∞ CE 22662
Электронная схема CE 22662
08
W000050020
NAPÁJACÍ VODIČ
∏§∂∫∆ƒπ∫√ ∫∞§ø¢π√
КАБЕЛЬ ПИТАНИЯ
09
W000050021
KÁBLOVÁ ZVIERKA
∫√§∞ƒ√ ∫∞§ø¢π√À
ПРИЖИМНОЕ УСТРОЙСТВО КАБЕЛЯ
11
W000070027
VYPÍNAČ
¢π∞∫√¶∆∏™
Выключатель
13
W000227980
RUKOVAŤ
¢π∞∫√¶∆∏™
Ручкa
13.1
W000263970
KRYTKA
∫∞§Àªª∞
Кoлпaчoк
14
W000050026
VRTUĽA
ª√∆∂ƒ ∞¡∂ªπ™∆∏ƒ∞
ЭЛЕКТРОВЕНТИЛЯТОР
30
W000237008
PALNIK
∆™πª¶π¢∞™
ГОРЕЛКИ
31
W000236855
PRZEWÓD MASY
∫∞§ø¢π√ °∂πø™∏™
КAБЕЛЬ ЗAЗЕМЛЕНИЯ
31.1
W000050185
SZCZYPCE
∆ÛÈÌ›‰· Á›ˆÛ˘
Зaжим зaзeмлeния
34
W000050189
DOSKA PLOŠNÝCH SPOJOV CE 22665
∏§∂∫∆ƒ√¡π∫√ ∫À∫§øª∞ CE 22665
Электронная схема
36
W000050047
DOSKA PLOŠNÝCH SPOJOV CE 22666
∏§∂∫∆ƒ√¡π∫√ ∫À∫§øª∞ CE 22666
Электронная схема
38
W000262752
RÁM
πª∞¡∆∞™
ПРОФИЛЬ ДЛЯ РAМКИ
42
W000050173
RUKOVÄT
Ã∂πƒ√§∞µ∏
РУЧКА
54
W000236854
ANTIVIBRAŐNý
∞¡∆π∫ƒ∞¢∞™ªπ∫√
АНТИВИБPATOP
61
W000050190
MRIEžKA
πª∞¡∆∞™
РЕШЕТКА
61.1
W000050182
ŠPONGIOVý FILTER
™¶√°°ø¢∂™ ºπ§∆ƒ√
ГУБЧАТЫЙ ФИЛЬТР
62
W000050180
PVC NOžIŐKA
¶√¢π PVC
НОЖКА ИЗ ПВХ
72
W000050027
DRŽIAK
∞™∏ ¶§∞∫∂∆∞™
ДЕРЖАТЕЛЬ ПЛАТЫ
79
W000236853
KOMPRESOR
™Àª¶π∂™∆∏™
КОМПРЕССОР
82
W000231334
REDUKTOR CINIENIA
ƒÀ£ªπ™∆∏™ ¶π∂™∏™
РЕДУКТОР ДАВЛЕНИЯ
84
W000227637
ELEKTRONICZNY PRESOSTAT
∏§∂∫∆ƒ√¡π∫√™ ¶π∂∑√™∆∞∆∏™
ЭЛЕКТРОННОЕ РЕЛЕ ДАВЛЕНИЯ
IV
DUTY CYCLE - FACTEUR DE MARCHE - CICLO DE TRABALHO
-
CICLO DI LAVORO
EINSCHALTDAUER - CICLO DE TRABAJO - INTERMITTENSFAKTOR - BEDRIJFSCYCLUS - DUTY CYCLE
∫À∫§√™ ∂ƒ°∞™π∞™ -
РАБОЧИЙ ЦИКЛSE
DUTY CYCLE - FACTEUR DE MARCHE - CICLO DE TRABAJO - CICLO DI LAVORO - EINSCHALTDAUER
CICLO DE TRABALHO
-
INTERMITTENSFAKTOR - BEDRIJFSCYCLUS -
∫À∫§√™ ∂ƒ°∞™π∞™
-
РАБОЧИЙ ЦИКЛ
WELDING CURRENT - COURANT DE SOUDAGE - CORRIENTE DE SOLDADURA
CORRENTE DI SALDA
TURA - SCHWEISSSTROMBEREICH -
CORRENTE DE SOLDADURA - SVETSSTRÖM - SNIJSTROOM -
PRĄD SP
A
W
ANIA
ƒ∂Àª∞ ™À°∫√§§∏™∏™
-
Сила тока
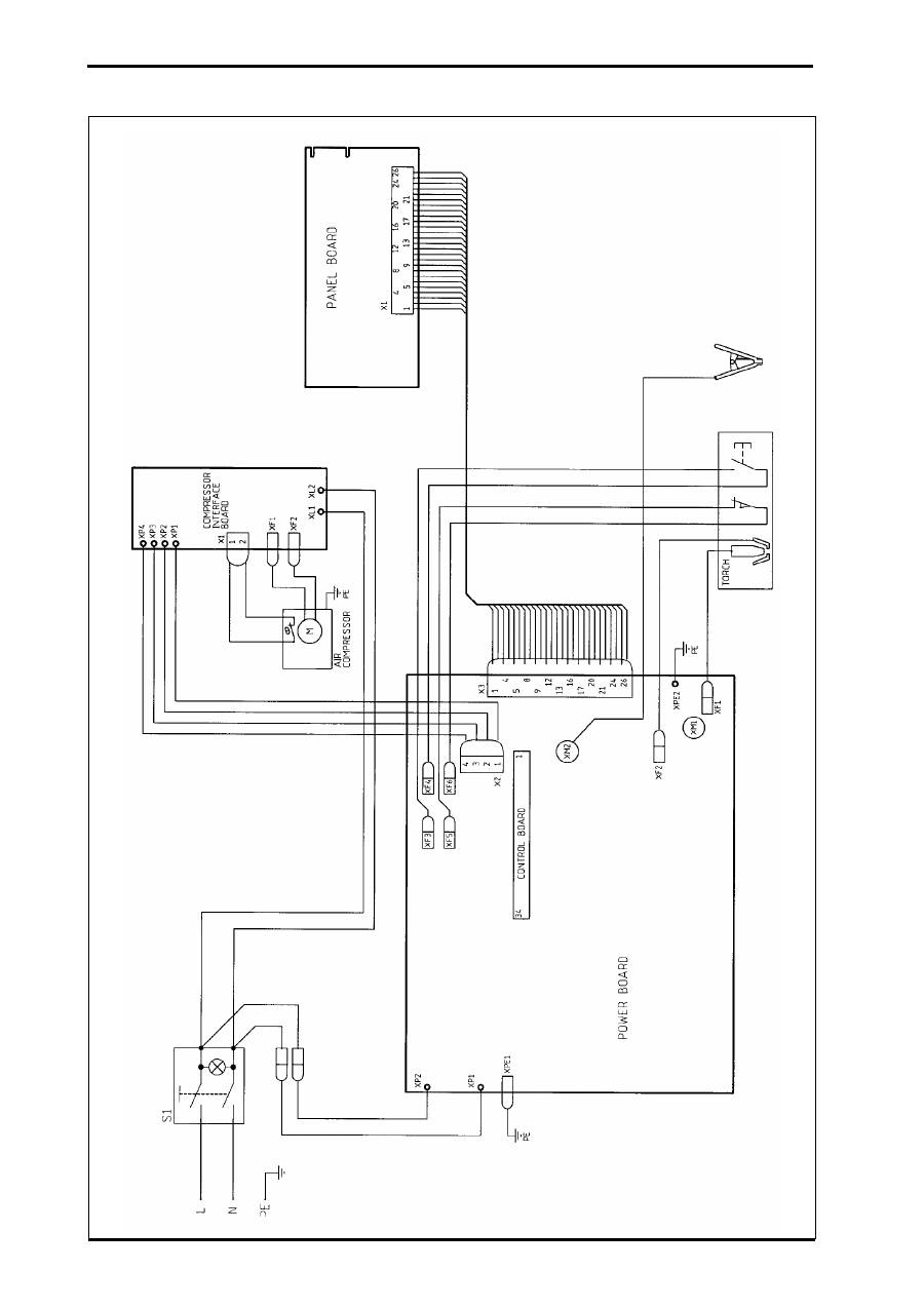
WIRING DIAGRAM - SCHÉMA ÉLECTRIQUE - ESQUEMA ELÉCTRICO - SCHEMA ELETTRICO
STROMLAUFPLAN - ESQUEMAS ELÈCTRICOS - ELSCHEMOR - ELEKTRISCHE SCHEMA'S - SCHEMA ELECTRICA
SCHEMAT ELEKTRYCZNY
-
∏§∂∫∆ƒπ∫√ ¢π∞°ƒ∞ªª∞
-
ЭЛЕКТРИЧЕСКАЯ СХЕМА
V
✍
✍
DECLARATION OF CONFORMITY - DÉCLARATION DE CONFORMITE DECLARACIÓN DE CONFORMIDAD - DICHIARAZIONE DI CONFORMITÀ
KONFORMITÄTSERKLÄRUNG - DECLARAÇÃO DE CONFORMIDADE - KONFORMITETSFÖRKLARING - CONFORMITEITSVERKLARING
DECLARA∂IE DE CONFORMITATE -
DEKLARACJA ZGODNOŚCI -
¢∏§ø™∏ ™Àªª√ƒºø™∏™
-
ЗAЯВЛЕНИЕ O COOТВЕТCТВИИ
It is hereby declared that the plasma cutting generator
Type SHARP 6K
conforms to the provisions of Low Voltage (Directive 73/23/CEE), as well as the CEM Directive (Directive 89/336/CEE) and the national legislation transposing it; and more-
over declares that standards:
• EN 60 974-1 “Safety regulations for electric welding equipment. Part 1: Sources of welding current”.
• EN 60 974-10 “Electromagnetic Compatibility (EC) Products standard for arc welding equipment”
have been applied.
This statement also applies to versions of the aforementioned model which are referenced.
This EC declaration of conformity guarantees that the equipment delivered to you complies with the legislation in force, if it is used in accordance with the enclosed instructions. Any
different assembly or modifications renders our certification void. It is therefore recommended that the manufacturer be consulted about any possible modification. Failing that, the com-
pany which makes the modifications should ensure the re certification. Should this occur, the new certification is not binding on un in any way whatsoever. This document should be
transmitted to your technical or purchasing department for record purposes.
GB
Il est déclaré ci-après que le générateur de découpage au plasma
Type SHARP 6K
est conforme aux disposition des Directives Basse tension (Directive 73/23/CEE), ainsi qu’à la Directive CEM (Directive 89/336/CEE) et aux législations nationales la trans-
posant; et déclare par ailleurs que les normes:
• EN 60 974-1 “Règles de sécurité pour le matériel de soudage électrique. Partie 1: Sources de courant de soudage”.
• EN 60 974-10 “Compatibilité Electromagnétique (CEM). Norme de produit pour le matériel de soudage à l’arc.”
ont été appliquées.
Cette déclaration s’applique également aux versions dérivées du modèle cité ci-dessus.
Cette déclaration CE de conformité garantit que le matériel livré respecte la législation en vigueur, s’il est utilisé conformément à la notice d’instruction jointe. Tout montage différent ou
toute modification entraîne la nullité de notre certification. Il est donc recommandé pour toute modification éventuelle de faire appel au constructeur. A défaut, l’entreprise réalisant les
modifications doit refaire la certification. dans ce cas, cette nouvelle certification ne saurait nous engager de quelque façon que ce soit. Ce document doit être transmis à votre service
technique ou votre service achat, pour archivage.
F
Se declara, a continuación, que el generador para el corte por plasma
Tipo SHARP 6K
es conforme a las disposiciones de las Directivas de Baja tensión (Directiva 73/23/CEE), así como de la Directiva CEM (Directiva 89/336/CEE) y las legislaciones nacionales
que la contemplan; y declara, por otra parte, que se han aplicado las normas:
• EN 60 974-1 “Reglas de seguridad para el equipo eléctrico de soldadura. Parte1: Fuentes de corriente de soldadura”.
• EN 60 974-10 “Compatibilidad Electromagnética (CEM). Norma de producto para el equipo de soldadura al arco.”
Esta declaración también se aplica a las versiones derivadas del modelo citado más arriba.
Esta declaración CE de conformidad garantiza que el material que se la ha enviado cumple con la legislación vigente si se utiliza conforme a las instrucciones adjuntas. Cualquier montage
diferente o cualquier modificación anula nuestra certificación.
Por consiguiente, se recomienda recurrir al constructor para cualquier modificación eventual.
Si no fuese posible, la empresa que emprenda las modificaciones tiene que hacer de nuevo la certificación. En este caso, la nueva certificación no nos compromete en ningún modo.
Transmita este documento a su técnico o compras, para archivarlo.
E
Si dichiara qui di seguito che il generatore per taglio al plasma
Tipo SHARP 6K
è conforme alle disposizioni delle Direttive bassa tensione (Direttiva 73/23/CEE), CEM (Direttiva 89/336/CEE) e alle legislazioni nazionali corrispondenti, e dichiara inoltre:
• EN 60 974-1 “Regole di sicurezza per il materiale di saldatura elettrico. Parte1: sorgenti di corrente di saldatura”.
• EN 60 974-10 “Compatibilità elettromagnetica (CEM) Norma di prodotto per il materiale da saldatura ad arco”
sono state applicate.
Questa dichiarazione si applica anche alle versioni derivate dal modello sopra indicato.
Questa dichiarazione di conformità CE garantisce che il materiale speditoleLe, se utilizzato nel rispetto delle istruzioni accluse, è conforme alle norme vigenti. Un’installazione diversa
da quella auspicata o qualsiasi modifica, comporta l’annullamento della nostra certificazione. Per eventuali modifiche, si raccomanda pertanto di rivolgersi direttamente all’azienda co-
struttrice. Se quest’ultima non viene avvertita, la ditta che effettuerà le modifiche dovrà procedere a nuova certificazione. In questo caso, la nuova certificazione non rappresenterà, in
nessuna eventualità, un’impegno da parte nostra.
Questo documento dev’essere trasmesso al servizio tecnico e Acquisti della Sua azienda per archiviazione.
I
Nachstehend wird erklärt, dass der Generator für Plasmaschneiden
Typ SHARP 6K
den Verfügungen der Vorschriften für Schwachstrom (EWG-Vorschrift 73/23), sowie der FBZ-Vorschrift (EWG-Vorschrift 89/336) und der nationalen, sie transponierenden
Gesetzgebung entspricht; und erklärt andererseits, daß die Normen:
• EN 60 974-1 “Sicherheitsbestimmungen für elektrisches Schweißmaterial. Teil 1: Schweißungs-Stromquellen”.
• EN 60 974-10 “Elektromagnetische Kompatibilität (FBZ) Produktnorm für das WIG-Schweißmaterial”
angewandt wurden.
Diese Erklärung ist auch gültig für die vom vorstehenden Modell abgeleiteten Versionen. Mit vorliegender EG-Konformitätserklärung wird garantiert, dass das Ihnen gelieferte Material,
sofern es gemäß beiliegender Gebrauchsanleitung benutzt wird, den gültigen Rechtsvorschriften entspricht. Jegliche Änderung beim Aufbau beim Aufbau b.z.w. jegliche andere Abwand-
lung für zur Nichtigkeit unserer Erklärung. Wir raten daher, bei allen eventuellen Änderungen den Hersteller heranzuziehen. In Ermangelung eines Besseren ist dia Änderung vornehmende
Untemehmen dazu gehalten, eine emeute Erklärung abzufassen. In diesem Fall ist neue Bestätigung für uns in keinster Weise bindend. Das vorliegende Schriftstück muß zur Archivierung
an ihre technische Abteilung, b.z.w. an ihre Einkaufsabteilung weitergeleitet werden.
D
DECLARATION OF CONFORMITY - DÉCLARATION DE CONFORMITE DECLARACIÓN DE CONFORMIDAD - DICHIARAZIONE DI CONFORMITÀ
KONFORMITÄTSERKLÄRUNG - DECLARAÇÃO DE CONFORMIDADE - KONFORMITETSFÖRKLARING - CONFORMITEITSVERKLARING
DECLARA∂IE DE CONFORMITATE -
DEKLARACJA ZGODNOŚCI -
¢∏§ø™∏ ™Àªª√ƒºø™∏™
-
ЗAЯВЛЕНИЕ O COOТВЕТCТВИИ
Se declara que o gerador de corte com jacto de plasma
Tipo SHARP 6K
está em conformidade com as disposições das Directivas Baixa Tensão (Directiva 73/23/CEE), assim como com a Directiva CEM (Directiva 89/336/CEE) e com as legis-
lações nacionais que a transpõem; e declara ainda que as normas
• EN 60 974-1 “Regras de segurança para o material de soldadura eléctrico. Parte 1: Fontes de corrente de soldadura”.
• EN 60 974-10 “Compatibilidade Electromagnética (CEM). Norma de produto para o material de soldadura por arco”
foram aplicadas.
Esta declaração aplica-se igualmente às versões derivadas do modelo acima citado.
Esta declaração CE de conformidade garante que o material entregue respeita a legislação em vigor, desse que utilizado de acordo com as instruções anexas. Qualquer montagem dife-
rente ou qualquer modificação acarreta a anulação do nosso certificado.
Por isso recomenda-se para qualquer modificação eventual recorrer ao construtor. Ou caso contrário, a empresa que realiza as modificações deve fazer novamente um certificado.
Nesse caso, este novo certificado não pode nos comprometer de nenhuma maneira. Esse documento deve ser transmitido ao seu serviço técnico ou serviço compras, para ser arquivado.
P
Man förklarar härmed att generatorn för plasma skärning
Typ SHARP 6K
tillverkats i överensstämmelse med direktiven om lågspänning (Direktiv 73/23/EEG), samt direktivet CEM (Direktiv 89/336/EEG) och de nationella lagar som motsvarar det;
och förklarar för övrigt att normema:
• EN 60 974-1 “Säkerhetsregler för elsvetsningsmateriel. Del 1: Källor för svetsningsström”.
• EN 60 974-10 “Elektromagnetisk kompatibilitet (CEM) Produktnorm för bågsvetsningsmateriel.”
har tillämpats.
Denna förklaring gäller även de utföranden som avletts av ovannämnda modell. Detta EU-intyg om verensstmmelse garanterar att levererad utrustning uppfyller i gllande lagstiftning, om
den anvnds i enlighet med bifogade anvisningar. Varje avvikande montering eller ändring medför att vårt intyg ogiltigförklaras.
För varje eventuell ändring bör duarför tillverkaren anlitas.
Om så ej sker, ska det företag som genomför ändringarna lämna ett intyg. detta nya intyg kan vi på något sätt ta ansvar för. Denna handling ska överlämnas till er tekniska avdelning eller
inköpsavdelning för arkivering.
S
Men verklaart hierbij dat de generator voor plasmasnijwerk van het
Type SHARP 6K
conform de bepalingen is van de Richtlijnen betreffende Laagspanning (Richtlijn 73/23/CEE), en de EMC Richtlijn CEM (Richtlijn 89/336/EEG) en aan de nationale wetge-
vingen met betrekking hiertoe; en verklaart voorts dat de normen:
• EN 60 974-1 “Veiligheidsregels voor elektrische lasapparatuur. Deel 1: Lasstroombronnen”.
• EN 60 974-10 “Elektromagnetische Compatibiliteit (EMC). Produktnorm voor booglas-apparatuur“
zijn toegepast.
Deze verklaring is tevens van toepassing op versies die van bovengenoemd model zijn afgeleid. Deze EG verklaring van overeenstemming garandeert dat het geleverde aan u materiaal
voldoet aan de van kracht zijnde wetgeving indien het wordt gebruikt volgens de bijgevoegde handleiding. Het monteren op iedere andere manier dan die aangegeven in voomoemde
handleiding en het aanbrengen van wijzigingen annuleert automatisch onze echtverklaring. Wij raden U dan ook contact op te nemen met de fabrikant in het geval U wijzigingen wenst
aan te bregen. Indien dit niet geschiedt, moet de onderneming die de wijzingen heeft uitgevoerd een nieuwe echtverklaring opstellen. Deze nieuwe echtverklaring zal echter nooit en te
nimmer enige aansprakelijkheid onzerzids met zich mee kunnen brengen. Dit document moet ann uwtechnische dienst of the afdeling inkopen worden overhandigd voor het archiveren.
NL
Prin prezenta declaram ca echipamentul de taiere cu plasma Tip
SHARP 6K
este in conformitate cu dispozitiile Directivei pentru Echipamente electrice de joasa tensiune (Directiva 73/23/CEE), cat si cu cele ale, Directivei CEM (Directiva 89/336/
CEE), precum si cu cele corespondente din legislatia nationala, si chiar normele:
• EN 60 974-1 "Reguli de securitate pentru echipamentul de sudare electric. Partea 1: Surse de curent pentru sudare"
• EN 50199 "Compabilitate electromagnetica (CEM). Standarde de produs pentru echipamentul de sudura cu arc electric" au fost aplicate.
Aceasta declaratie se aplica in egala masura tuturor versiunilor derivate din modelul prezentat mai sus. Aceasta declaratie CE de conformitate garanteaza ca echipamentul livrat respecta
legislatia in vigoare, daca este utilizat conform instructiunilor atasate. Orice montaj diferit sau modificare a echipamentului duce la nulitatea certificatului. De aceea, recomandam sa
consultati producatorul pentru orice posibila modificare. In caz contrar, societatea care face modificarea este obligata sa asigure recertificarea. In acest caz, noua certificare nu va implica
societatea noastra in vreun fel.
RO
Niniejszym deklarujemy, że generator do cięcia plazmowego
Typ SHARP 6K
spełnia wymogi zawarte w Dyrektywie dot. niskiego napięcia (Dyrektywa 73/23/EWG), Dyrektywie dot. kompatybilności elektromagnetycznej
(EMC) (Dyrektywa 89/336/EWG) oraz w związanych przepisach prawa krajowego, a także deklarujemy, że zostały zastosowane normy:
o EN 60 974-1 “Wymagania bezpieczeństwa dotyczące urządzeń do spawania łukowego. Część 1: Spawalnicze źródła energii”.
o EN 60 974-10 “Zgodność elektromagnetyczna (EMC). Norma produktu dla materiału do spawania łukowego”
.
Niniejsza deklaracja dotyczy również wersji opartych na wyżej wymienionym modelu.
Niniejsza deklaracja zgodności WE gwarantuje, że materiał wysłany do Państwa, jeśli będzie wykorzystywane zgodnie z załączonymi instrukcjami, spełnia
wymogi obowiązujących norm. Instalacja inna niż przewidziana, a także wszelkie modyfikacje powodują, że niniejszy certyfikat traci ważność. W sprawie
ewentualnych modyfikacji należy zwracać się bezpośrednio do producenta.. Jeśli producent nie zostanie powiadomiony o modyfikacjach, , obowiązek
wystawienia nowego certyfikatu spoczywa na firmie, która je wprowadziła. W takim przypadku nowy certyfikat nie będzie stanowić żadnego zobowiązania
z naszej strony.
PL
DECLARATION OF CONFORMITY - DÉCLARATION DE CONFORMITE DECLARACIÓN DE CONFORMIDAD - DICHIARAZIONE DI CONFORMITÀ
KONFORMITÄTSERKLÄRUNG - DECLARAÇÃO DE CONFORMIDADE - KONFORMITETSFÖRKLARING - CONFORMITEITSVERKLARING
DECLARA∂IE DE CONFORMITATE -
DEKLARACJA ZGODNOŚCI -
¢∏§ø™∏ ™Àªª√ƒºø™∏™
-
ЗAЯВЛЕНИЕ O COOТВЕТCТВИИ
¢ËÏÒÓÂÙ·È fiÙÈ ÙÔ Ì˯¿ÓËÌ· ÁÈ· ÎÔ‹ Ï¿ÛÌ·ÙÔ˜
∆‡Ô˘
SHARP 6K
Û˘ÌÌÔÚÊÔ‡Ù·È Ì ÙȘ ‰È·Ù¿ÍÂȘ ÙˆÓ √‰ËÁÈÒÓ Ã·ÌËÏ‹˜ ∆¿Û˘ (√‰ËÁ›· 73/23/∂√∫), CEM (√‰ËÁ›· 89/336/∂√∫) Î·È Ì ÙȘ ·ÓÙ›ÛÙÔȯ˜ ÂıÓÈΤ˜ ÓÔÌÔıÂۛ˜.
¢ËÏÒÓÂÙ·È Â›Û˘ fiÙÈ ¤¯Ô˘Ó ÂÊ·ÚÌÔÛı› Ù· ÚfiÙ˘·:
•
EN 60 974-1"∫·ÓfiÓ˜ ·ÛÊ·Ï›·˜ ÁÈ· ËÏÂÎÙÚÔÏÔÁÈÎfi ˘ÏÈÎfi Û˘ÁÎfiÏÏËÛ˘. ª¤ÚÔ˜ 1: ËÁ¤˜ Ú‡̷ÙÔ˜ Û˘ÁÎfiÏÏËÛ˘".
•
EN 60 974-10 "∏ÏÂÎÙÚÔÌ·ÁÓËÙÈ΋ Û˘Ì‚·ÙfiÙËÙ· (CEM) ¶ÚfiÙ˘Ô ÚÔ˚fiÓÙÔ˜ ÁÈ· ÙÔ ˘ÏÈÎfi Û˘ÁÎfiÏÏËÛ˘ Ì ÙfiÍÔ".
∏ ‰‹ÏˆÛË ·˘Ù‹ ÈÛ¯‡ÂÈ Â›Û˘ ÁÈ· Ù· ÌÔÓ٤Ϸ Ô˘ ÚÔ¤Ú¯ÔÓÙ·È ·fi ÙÔ ÚÔ·Ó·ÊÂÚı¤Ó ÌÔÓÙ¤ÏÔ. ∏ ·ÚÔ‡Û· ‰‹ÏˆÛË Û˘ÌÌfiÚʈÛ˘ CE ÂÁÁ˘¿Ù·È fiÙÈ ÙÔ ˘ÏÈÎfi Ô˘ ¤¯ÂÈ
·ÔÛÙ·Ï› Û˘ÌÌÔÚÊÔ‡Ù·È Ì ٷ ÈÛ¯‡ÔÓÙ· ÚfiÙ˘·, Â¿Ó ¯ÚËÛÈÌÔÔÈËı› Û‡Ìʈӷ Ì ÙȘ Û˘ÓËÌ̤Ó˜ Ô‰ËÁ›Â˜. ªÈ· ‰È·ÊÔÚÂÙÈ΋ ·fi ÙËÓ ÂӉ‰ÂÈÁ̤ÓË ÂÁηٿÛÙ·ÛË ‹
ÔÔÈ·‰‹ÔÙ ÙÚÔÔÔ›ËÛË, ¤¯ÂÈ ˆ˜ Û˘Ó¤ÂÈ· ÙËÓ ·Î‡ÚˆÛË Ù˘ ÈÛÙÔÔ›ËÛ˘. °È· ÂӉ¯fiÌÂÓ˜ ÙÚÔÔÔÈ‹ÛÂȘ, Û˘ÓÈÛÙ¿Ù·È Ó· ·Â˘ı‡ÓÂÛÙ ÛÙËÓ Î·Ù·Û΢¿ÛÙÚÈ·
ÂÙ·ÈÚ›·. ∂¿Ó ‰ÂÓ ÂÓËÌÂÚˆı› Ô Î·Ù·Û΢·ÛÙ‹˜, Ë ÂÙ·ÈÚ›· Ô˘ ·Ó·Ï·Ì‚¿ÓÂÈ ÙËÓ ÙÚÔÔÔ›ËÛË ı· Ú¤ÂÈ Ó· ¯ÔÚËÁ‹ÛÂÈ Ó¤· ÈÛÙÔÔ›ËÛË. ™ÙËÓ ÂÚ›ÙˆÛË ·˘Ù‹, Ë Ó¤·
ÈÛÙÔÔ›ËÛË ‰ÂÓ ·ÓÙÈÚÔۈ‡ÂÈ Û η̛· ÂÚ›ÙˆÛË ‰¤ÛÌ¢ÛË ·fi ‰È΋˜ Ì·˜ ÏÂ˘Ú¿˜. ∆Ô ·ÚfiÓ ¤ÁÁÚ·ÊÔ Ú¤ÂÈ Ó· ‰È·‚È‚·ÛÙ› ÛÙËÓ Ù¯ÓÈ΋ ˘ËÚÂÛ›· Î·È ÛÙËÓ
˘ËÚÂÛ›· ·ÁÔÚÒÓ Ù˘ ÂÙ·ÈÚ›·˜ Û·˜ ÁÈ· ·Ú¯ÂÈÔı¤ÙËÛË.
GR
Настоящим заявляем, что генератор для пламенной резки
тип
SHARP 6K
удовлетворяет требованиям Директив о низком напряжении (Директива 73/23/CEE), CEM (Директива 89/336/CEE), а также
соответствующим государственным законам. Заявляем также, что были применены следующие нормы:
• EN 60 974-1Нормы техники безопасности электрического сварочного оборудования. Част1: источники сварочного тока”.
• EN 60 974-10 “Электромагнитная совместимость (CEM) Норма, распространяющаяся на оборудование для дуговой сварки”.
Настоящее заявление относится также к вариантам исполнения, изготовленным на основании вышеуказанной модели. Настоящее
заявление о соответствии нормам ЕЭС гарантирует, что поставленное оборудование отвечает действующим нормам, при условии
эксплуатации его в соответствии с приложенными инструкциями. Несоответствующая предоставленным указаниям установка или
выполнение любого изменения аннулирует наше заявление. В связи с этим, в случае необходимости выполнения каких-либо
измененйи, рекомендуется обращаться к изготовителю. В противном случае, фирма, осуществляющая данные изменения обязана
предоставить новую сертификацию. В этом случае, новая сертификация не налагает на нас никакие обязательства. Настоящий
документ должен быть передан в технический отдел или в отдел снабжения покупателя.
RU
L. GAUTHIER
Welding Operations Services Slovakia - Luzianky (SK)
28 April 2006
• SHOULD YOU WISH TO MAKE A COMPLAINT, PLEASE QUOTE THE CONTROL NUMBER SHOWN HERE.
• EN CAS DE RECLAMATION VEUILLEZ MENTIONNER LE NUMERO DE CONTROLE INDIQUE.
• EN CASO DE RECLAMACIÓN, SE RUEGA COMUNICAR EL NÚMERO DE CONTROL INDICADO AQUÍ.
• IN CASO DI RECLAMO PREGASI CITARE IL NUMERO DI CONTROLLO QUI INDICATO.
• BEI REKLAMATIONEN BITTE DIE HIER AUFGEFÜHRTE KONTROLLNUMMER ANGEBEN.
• EM CASO DE RECLAMAÇÃÓ, É FAVOR MENCIONAR O NÚMERO DE CONTROLO AQUI INDICADO.
• BIJ HET INDIENEN VAN EEN KLACHT WORDT U VERZOCHT OM HET HIER AANGEGEVEN
CONTROLENUMMER TE VERMELDEN
• I HÄNDELSE AV REKLAMATION, VAR GOD UPPGE DET HÄR ANGIVNA KONTROLLNUMRET.
• IN CAZUL UNEI RECLAMATII PRECIZATI NUMARUL DE CONTROL INDICAT
• W RAZIE REKLAMACJI PROSIMY PODAĆ ZNAJDUJĄCY SIĘ
TUTAJ NUMER KONTROLNY
•
™∂ ¶∂ƒπ¶∆ø™∏ ¶∞ƒ∞¶√¡ø¡, ¶∞ƒ∞∫∞§∂π™£∂ ¡∞ ∞¡∞º∂ƒ∂∆∂
∆√¡ ¶∞ƒ∞∫∞∆ø ∞ƒπ£ª√ ∂§∂°Ã√À.
•
В СЛУЧАЕ ПРЕДЪЯВЛЕНИЯ РЕКЛАМАЦИИ СООБЩИТЕ

