Kospel SB Termo Solar: инструкция
Раздел: Бытовая, кухонная техника, электроника и оборудование
Тип: Водонагреватель
Инструкция к Водонагревателю Kospel SB Termo Solar

WYMIENNIKCIEPŁEJWODYUŻYTKOWEJ
PL
WARMWASSERSTANDSPEICHER
DE
PRÉPARATEURD’EAUCHAUDESANITAIRE
FR
DOMESTICHOTWATERCYLINDER
GB
ТЕПЛООБМЕННИКГВС
RU
• SW
• SB
• SWZ
• SBZ

Warunki bezpiecznej
i niezawodnej pracy
1. Zapoznaniesięztreściąniniejszejinstrukcjiobsługiumożliwiprawidłowąinstala-
cjęieksploatacjęurządzenia,zapewniającjegodługotrwałąiniezawodnąpracę.
2. Zainstalowanieiużytkowaniewymiennikaniezgodnezniniejsząinstrukcjąjest
niedozwolone-groziawariąipowodujeutratęgwarancji.
3. Urządzenianiewolnoinstalowaćwpomieszczeniach,wktórychtemperatura
otoczeniamożeobniżyćsięponiżej0°C.
4.
Zamontowanie iuruchomienie wymiennika oraz wykonanie instalacji towarzy-
szącychnależypowierzyćspecjalistycznemuzakładowiusługowemu.
5. Wymiennikmontujesięwyłączniewpozycjistojącej,ustawiającgonatrzech
wkręcanychstopkach.
6. Urządzeniemusibyćzamontowanewtakimmiejscuiwtakisposób,abywyciek
awaryjnyzezbiornikalubprzyłączyniespowodowałzalaniapomieszczenia.
7.
Poustawieniuurządzenienależypodłączyćdosieciwodociągowej,instalacjic.o
orazsolarnejzgodniezeschematemzawartymwniniejszejinstrukcji.Niezgodnyz
instrukcjąsposóbpodłączeniapozbawiaużytkownikagwarancjiorazgroziawarią.
8. Podłączenie do instalacji wodociągowej należy wykonać zgodnie z PN-
76/B-02440.
9. Wymiennikjesturządzeniemciśnieniowymprzystosowanymdopodłączeniado
instalacjiwodociągowejociśnieniunieprzekraczającym0,6MPa.Jeżeliciśnie-
niewinstalacjiprzekracza0,6MPa,należyzainstalowaćprzedwymiennikiem
reduktorciśnienia.
10. Kapaniewodyzruryodprowadzającejzaworubezpieczeństwajestzjawiskiem
normalnyminienależytemuzapobiegać,ponieważzablokowaniezaworumoże
byćprzyczynąawarii.
11. Niewolnokorzystaćzwymiennikajeżeliistniejeprawdopodobieństwo,żezawór
bezpieczeństwajestuszkodzony.
12. Zbiornikjestwyposażonywanodęmagnezową,któratworzydodatkoweaktywne
zabezpieczenieantykorozyjne.Anodajestczęściąeksploatacyjnąiulegazużyciu.
Stananodynależysprawdzićrazna12miesięcy,aco18miesięcyanodę
należybezwzględniewymienić.
13. Niewolnoprzekraczaćtemperaturyznamionowejwymiennika80°C!.
Wymienniki można dodatkowo wyposażyć w grzałkęelektryczną z termostatem
(np.GRBT1.4,GRBT2.0,..).Grzałkęnależywkręcićwmiejscekorka1½".
Maksymalnadługośćgrzałki:
- 360mmdlapojemności100,120,140litrów
- 450mmdlapojemności200litrów
- 550mmdlapojemności250,300litrów
- 600mmdlapojemności400litrów

Podłączenie do instalacji
PL
CW
centralnegoogrzewania
ZG2
Podłączeniedoinstalacjic.o.należy
C
wykonać za pomocą śrubunków
PG2
przyłączeniowych1”lub3/4”(SW100;
ZG1
SW120;SW140)aprzedśrubunkami
umieścićzaworyodcinające.
Winstalacjizobiegiemwymuszonym
(zpompąwodnąc.o.),abywymiennik
osiągnąłwydajnośćpodanąwtabeli
PG1
ZB
„Danetechniczne”,należyzapewnić
ZW
odpowiednie natężenie przepływu
wodygrzewczej.
Model SW wyposażony jest w 1
NW
modelSB
wężownicę,modelSBposiada2wę-
żowniceumożliwiającepodłączenienp.kotłaiinstalacjisolarnej.ModeleSWZiSBZ
wyposażonesąwdodatkowekróćcedopodłączeniazewnętrznegowymiennikaciepła.
Podłączeniedoinstalacji
wodociągowej
PodłączeniedoinstalacjiwodociągowejnależywykonaćzgodniezPN-76/B-02440.
Wymiennikjesturządzeniemciśnieniowymprzystosowanymdopodłączeniadoinstala-
cjiwodociągowejociśnieniunieprzekraczającym0,6MPa.Jeżeliciśnieniewinstalacji
przekracza0,6MPa,należyzainstalowaćprzedwymiennikiemreduktorciśnienia.
Wymienniknależypodłączyćdosieciwodociągowejwnastępującysposób:
- dokróćca doprowadzającegozimną wodę użytkową[1] zamontować trójnik
zzaworembezpieczeństwaociśnieniuotwarcia6bar(np.ZB-4)izaworem
spustowym;międzyzbiornikiemazaworembezpieczeństwaatakżenajego
wylocieniemożeznajdowaćsiężadenzawórodcinającyanielementdławiący
przepływ;zawórbezpieczeństwamusibyćzamontowanywtakisposób,aby
byłwidocznywyciekwody,
- wymiennikzzamontowanymzaworembezpieczeństwapodłączyćdoinstalacji
wodociągowej,
- nadoprowadzeniuzimnejwodyzainstalowaćzawórodcinający.
Wyprowadzenieciepłejwodyużytkowejnależypodłączyćdokróćca3/4”,któryznaj-
dujesięnagórnejczęściwymiennika.
Każdy wymiennik wyposażony jestw króciec 3/4” przeznaczonydo podłączenia
cyrkulacjic.w.u.
PL/DE/FR/GB/RU-036_f.441
3

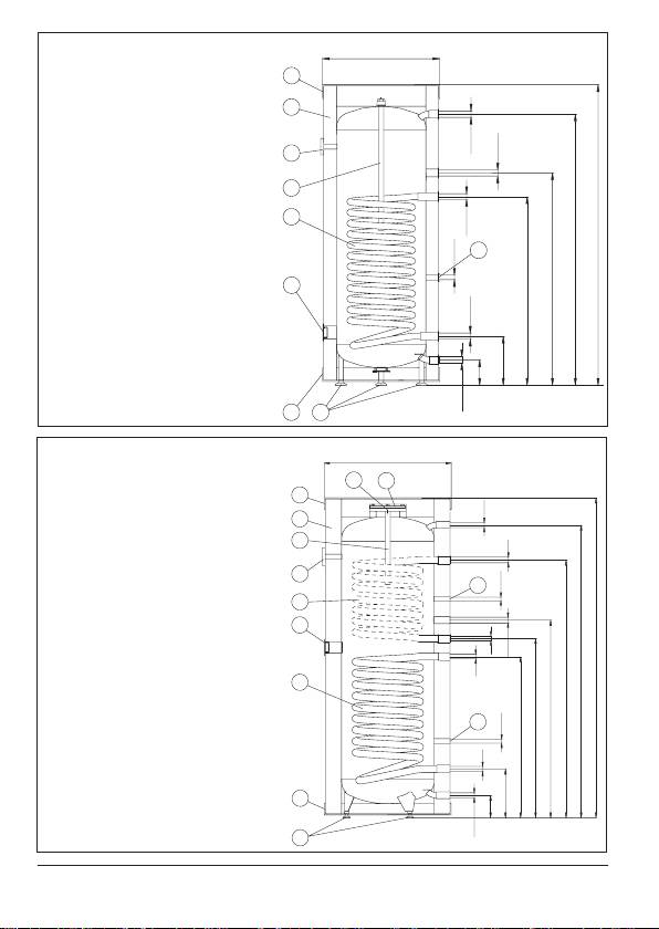
Budowa wymienników SW-100; SW-120; SW-140
ø500
[6] - rurka czujnika
16
[10] - króciec grzałki elektrycznej
(korek 1½")
15
CW
[11] - wężownica grzejna
[13] - anoda magnezowa
G3/4
[14] - termometr
14
G3/4
C
[15] - izolacja termiczna
[16] - pokrywa górna
13
ZG1
[17] - pokrywa dolna
[18] - stopki
11
H
G3/4
ZW - zimna woda
CW - ciepła woda
G
6
G1/2
C - cyrkulacja
E
ZG1 -
zasilanie czynnikiem grzewczym
10
PG1 - powrót czynnika grzewczego
C
A - H - wymiary określone w tabeli
G3/4
"Dane techniczne"
PG1
ZW
214
111
G3/4
1817
Budowa wymienników SB; SBZ; SW; SWZ-200
ø595
[6] - rurka czujnika
2120
[10] - króciec grzałki elektrycznej (korek
16
1½")
15
CW
G3/4
[11] - wężownica grzejna dolna
13
[12] - wężownica grzejna górna
G1
ZG2
[13] - anoda magnezowa
[14] - termometr
14
6
G1/2
[15] - izolacja termiczna
12
[16] - pokrywa górna
C
[17] - pokrywa dolna
10
PG2
[18] - stopki
ZG1
G1
[20] - otwór rewizyjny ø150 / 115
G3/4
1610
[21] - pokrywa otworu rewizyjnego
G1
1464
11
ZW - zimna woda
1291
CW - ciepła woda
E
C - cyrkulacja
6
G1/2
903
ZG1, ZG2 - zasilanie czynnikiem grzewczym
PG1, PG2 - powrót czynnika grzewczego
813
G1
PG1
B,E - wymiary określone w tabeli „Dane
techniczne”
ZW
B
17
Górna wężownica (przyłącza ZG2, PG2)
127
oraz górna rurka czujnika występują
G3/4
tylko w modelach SB i SBZ.
18
4

Budowa wymienników SB; SBZ; SW; SWZ-250, 300, 400
PL
[6] - rurka czujnika
ø695 (250, 300)
[10] - króciec grzałki elektrycznej (korek
ø755 (400)
1½")
16
[11] - wężownica grzejna dolna
G3/4
15
CW
[12] - wężownica grzejna górna
[13] - anoda magnezowa
13
G1
ZG2
[14] - termometr
[15] - izolacja termiczna
14
6
G1/2
[16] - pokrywa górna
12
C
[17] - pokrywa dolna
[18] - stopki
10
PG2
[20] - otwór rewizyjny ø150 / 115
ZG1
G1
G3/4
[21] - pokrywa otworu rewizyjnego
11
ZW - zimna woda
G1
H
CW - ciepła woda
G
C - cyrkulacja
F
ZG1, ZG2 - zasilanie czynnikiem grzewczym
E
6
D
PG1, PG2 - powrót czynnika grzewczego
G1/2
20
C
A-I - wymiary określone w tabeli "Dane
techniczne"
G1
PG1
21
ZW
17
Górna wężownica (przyłącza ZG2,
B
PG2) oraz górna rurka czujnika
A
G3/4
występują tylko w modelach
18
SB i SBZ.
Uruchomienie
Położenie muf do podłączenia zewnętrznego
wymiennika w SWZ i SBZ
Przed uruchomieniem wymiennika należy
CW
optyczniesprawdzićpodłączenieurządzenia
ZG3(1”)
orazprawidłowośćmontażuzgodniezesche-
ZG2
matami.Wymienniknależynapełnićwodą:
- otworzyć zawór na doprowadzeniu
C
zimnejwody,
PG2
- otworzyć zawór poboru ciepłej wody
ZG1
winstalacji(wypływpełnegostrumienia
wodybezpęcherzypowietrzaświadczy
onapełnieniuzbiornika),
I
- zamknąćzaworyczerpalne,
Otworzyćzaworyłącząceinstalacjęsolarną
PG3(1”)
i grzewczą z wymiennikiem. Sprawdzić
szczelnośćpołączeńpostroniewodyużyt-
PG1
kowej i po stronieczynników grzewczych.
ZW
B
Sprawdzićdziałaniezaworubezpieczeństwa
(zgodniezinstrukcjąproducentazaworu).
PL/DE/FR/GB/RU-036_f.441
5

Eksploatacja
Wymiennikisąbezpieczneiniezawodneweksploatacjipodwarunkiemprzestrzegania
poniższychzasad:
• Co14dninależysprawdzićdziałaniezaworubezpieczeństwa,(jeżelinienastąpi
wypływwodyzawórjestniesprawnyiniewolnoeksploatowaćwymiennika).
• Czyścićokresowozbiornikznagromadzonychosadów.Częstotliwośćczyszcze-
niazbiornikazależyodtwardościwodywystępującejnadanymterenie.Czynność
tęnależyzlecićzakładowiserwisowemu.
Śrubypokrywy[21]należydokręcaćzmomentem18-22Nm
• Razwrokunależysprawdzićanodęmagnezową.
•
Co18miesięcynależybezwzględniewymieniaćanodęmagnezową.
- wymianaanody[13](dotyczy wszystkich wymienników oprócz200):zdjąć
pokrywęgórną[16],wyjąćznajdującysiępodniąkrążekizolacji,zamknąć
zawórodcinającynadoprowadzeniuzimnejwody,otworzyćzawórciepłejwody
nabaterii,otworzyćzawórspustowy,spuścićtakąilośćwodyzinstalacji,aby
możnabyłowymienićanodęniepowodujączalaniapomieszczenia,odkręcić
korekiwykręcićanodę.
- wymianaanody[13](wymiennik200):zdjąćpokrywę[16],wyjąćznajdujący
się pod nią krążek izolacji, zamknąćzawór odcinającyna doprowadzeniu
zimnejwody,otworzyćzawórciepłejwodynabaterii,otworzyćzawórspusto-
wy,spuścićtakąilośćwodyzinstalacjiabymożnabyłowymienićanodęnie
powodujączalaniapomieszczenia,zdemontowaćpokrywęotworurewizyjnego
[21] iwykręcić anodę.Śrubypokrywy[21]należy dokręcaćz momentem
18-22Nm
• Wcelachhigienicznychnależyokresowopodgrzewaćwodępowyżej70°C.
• Wszelkie nieprawidłowości w pracy urządzenia należy zgłaszać do zakładu
serwisowego.
• Zalecasięzaizolowanietermiczneruryodprowadzającejorazrurprzyłączenio-
wychwężownicywceluzminimalizowaniastratciepła.
Wyżejwymienioneczynnościnależywykonywaćwewłasnymzakresieiniepodlegają
oneobsłudzegwarancyjnej.
Opróżnianie zbiornika
Wceluopróżnieniazbiornikazwodynależy:
• zamknąćzaworyłączącewymiennikzobiegiemgrzejnym,
• zamknąćzawórnadoprowadzeniuzimnejwodydowymiennika,
• otworzyćzawórspustowy.
6

