Kospel SB Termo Solar: DE
DE: Kospel SB Termo Solar

Anschlussaneine
CW
Zentralheizungsanlage
ZG2
DE
DerAnschlussandieZentralheizungs-
C
anlage sollte über Anschlussver-
schraubungen1”oder3/4”(SW100;
PG2
SW120,SW140)erfolgenwobeivor
ZG1
denAnschlussverschraubungen die
Absperrventileeinzusetzensind.
InderInstallationdesZwangsumlaufs
(mit Umwälzpumpe der Zentralhei-
PG1
ZB
zungsanlage) damit der Standspei-
ZW
cher die in der Tabelleder „Techni-
schenDaten”volleLeistungerreicht
sollte man einen entsprechenden
NW
modelSB
Warmwasserdurchlauf sichern.Das
ModellSWistineineHeizschlange
ausgestattet,modellSBbesitztzweiHeizschlangen,dieübereinenAnschlusszum
HeizkesselodereinerSolaranlageverfügen.DieModelleSBundSBZsindinzusätz-
licheStutzenzumAnschlusseinesexternenStandspeichersausgestattet.
Anschlussaneine
Wasserinstallation
DerAnschlussandieWasserinstallationsolltegemäßgeltendenNormendurchgeführt
werden.DerStandspeicheristeindruckfestesGerät,dassaneineWasserleitungmit
einemDruckwertdernicht0,6MPaüberschreitetangeschlossenwerdenkann.Wenn
derDruckwertinderInstallation0,6MPaüberschreitetsolltevordemStandspeicher
einDruckmindererinstalliertwerden.
DerStandspeichersollteandieWasserinstallationauffolgendeWeiseangeschlos-
senwerden:
- ZumKaltwasserzulaufstutzen[1]einT-Stückmit einem Sicherheitsventilmit
einemÖffnungsdruckvon6bar(z.B.ZB-4)undeinemAblassventil,zwischen
demBehälterunddemSicherheitsventilalsauchdemAuslaufdarfsichkein
Drossel–undAbsperrventilbefinden,dasSicherheitsventilmusssomontiert
sein,dasseinWasseraustrittbemerkbarist.
- DenStandspeichermitdemmontiertenSicherheitsventilandieWasserinstal-
lationanschließen.
- AmKaltwasserzulaufdasAbsperrventilinstallieren.
DenWarmwasserauslaufandenStutzen3/4"anschließen,dersichaufdemoberen
TeildesStandspeichersbendet.JederStandspeicheristmiteinem3/4"Stutzenfür
denAnschlussderWarmwasserZirkulationausgestattet.
PL/DE/FR/GB/RU-036_f.441
9

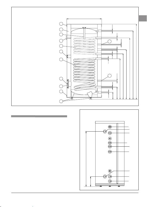
Aufbau der Standspeicher SW-100, SW-120, SW-140
ø500
[6] - Fühlerrohr
16
[10] - Heizpatronenstutzen (Korken 1½)
[11] - Heizregister
15
CW
[13] - Magnesiumanode
[14] - Thermometer
[15] - Thermische Isolierung
G3/4
14
G3/4
[16] - oberer Deckel
C
[17] - unterer Deckel
13
ZG1
[18] - Stellfüsse
ZW - Kaltwasser
11
H
CW - Warmwasser
G3/4
C - Zirkulation
G
6
ZG1 - Versorgung anhand Wärmeträgers
G1/2
E
PG1 - Rücklauf des Wärmeträgers
10
A – H - Abmessungen sind in der Tabelle
C
„Technische Daten”
G3/4
PG1
ZW
214
111
G3/4
1817
Aufbau der Speicher SB; SBZ; SW; SWZ-200
ø595
[6] - Fühlerrohr
2120
[10] -
Heizpatronenstutzen (Korken 1½)
16
[11] - unteres Heizregister
15
CW
G3/4
[12] - oberes Heizregister
13
[13] - Magnesiumanode
G1
ZG2
[14] - Thermometer
[15] - Thermische Isolierung
14
6
G1/2
[16] - oberer Deckel
12
[17] - unterer Deckel
C
[18] - Stellfüsse
10
PG2
[20] - Revisionsöffnung ø 150/115
ZG1
G1
[21] - Deckel der Revisionsöffnung
G3/4
1610
ZW - Kaltwasser
G1
1464
11
CW - Warmwasser
1291
C - Zirkulation
E
ZG1, ZG2 - Versorgung anhand Wärmeträgers
6
G1/2
903
PG1, PG2 - Rücklauf des Wärmeträgers
B, E - Abmessungen sind in der Tabelle
813
G1
PG1
„Technische Daten”
ZW
B
17
Das obere Register (Stutzen ZG1, PG2)
127
und das obere Fühlerrohr kommen nur
in den Modellen SB und SBZ vor.
G3/4
18
10

Aufbau der Speicher SB; SBZ; SW; SWZ-250, 300, 400
[6] - Fühlerrohr
ø695 (250, 300)
[10] - Heizpatronenstutzen (Korken 1½)
DE
ø755 (400)
[11] - unteres Heizregister
16
[12] - oberes Heizregister
G3/4
15
CW
[13] - Magnesiumanode
[14] - Thermometer
13
G1
ZG2
[15] - Thermische Isolierung
[16] - oberer Deckel
14
6
G1/2
[17] - unterer Deckel
12
C
[18] - Stellfüsse
[20] - Revisionsöffnung ø 150/115
10
PG2
[21] - Deckel der Revisionsöffnung
ZG1
G1
G3/4
ZW - Kaltwasser
11
CW - Warmwasser
G1
H
C - Zirkulation
G
ZG1, ZG2 -Versorgung anhand Wärmeträgers
F
PG1, PG2 -Rücklauf des Wärmeträgers
E
6
D
A - H - Abmessungen sind in der Tabelle
G1/2
20
C
„Technische Daten”
G1
PG1
21
ZW
17
Das obere Register (Stutzen ZG2,
B
PG2) und das obere Fühlerrohr
A
G3/4
kommen nur in den Modellen SB
18
und SBZ vor.
Inbetriebnahme
Lage der Revisionsöffnungen zum externen
Anschluss des Pufferspeichers SWZ und SBZ
VorderInbetriebnahmesolltemanoptischdie
CW
AnschlüssedesGerätsprüfenunddieMon-
ZG3(1”)
tage muss gemäßdesSchemas erfolgen.
ZG2
DerStandspeicheristmitWasserzufüllen:
- dasVentilamKaltwasserzulauföffnen,
C
- dasVentilanderWarmwasserarmatur
PG2
öffnen (blasenfreier Wasseraustritt
ZG1
deutetaufeinengefülltenBehälterhin),
- die Ventile an den Entnahmestellen
I
zudrehen.
DieVentilederSolar–undHeizanlagedes
Standspeichers öffnen. Die Dichtheit der
PG3(1”)
VerbindungenanderSeitedesBrauchwas-
PG1
sersundWärmeträgersprüfen.Funktiondes
Sicherheitsventils überprüfen (gemäß der
ZW
B
BedienungsanleitungdesVentilherstellers).
PL/DE/FR/GB/RU-036_f.441
11

Betrieb
DieStandspeichersindsicherundzuverlässigimBetriebunterderBedingung,dass
mansichandieuntengenanntenRegelnhält:
• Alle14TagedieFunktiondesSicherheitsventilsüberprüfen(wenndasWasser
nicht austritt, ist dasVentil defekt und der Standspeicher darf nicht benutzt
werden).
• DenBehälterregelmäßigvonAblagerungenundVerschmutzungenreinigen.Die
HäufigkeitdieserReinigungenhängtvonderWasserhärteaufdemjeweiligen
Gebietab.DieseTätigkeitsolltedurcheinenFachbetriebdurchgeführtwerden.
• 1malimJahrdieobereMagnesiumanodeüberprüfen.
• Alle18MonatedieMagnesiumanodeaustauschen.
- AustauschderAnode[13](betrifftalleStandspeicherausser200):oberen
Deckel abnehmen [16], den unteren Isolierungsring herausnehmen, das
AbsperrventilanderKaltwasserzufuhrschließen,Warmwasserventilander
Batterieöffnen,dasAblassventilöffnen,sovielWasservonderInstallation
ablassenumdieAnodeproblemloswiederauszudrehenohneWasserschäden
imRaumzuverursachen,denKorkenaufdrehenunddieAnodeherausdrehen.
- AustauschderAnode[13](Standspeicher200):Deckelabnehmen[16],den
unterenIsolierungsringherausnehmen,dasAbsperrventilanderKaltwasser-
zufuhrschließen,WarmwasserventilanderBatterieöffnen,dasAblassventil
öffnen,sovielWasservonderInstallationablassenumdieAnodeproblemlos
wiederauszutauschenohneWasserschädenimRaumzuverursachen,den
DeckelvonderRevisionsöffnungdemontieren[21]unddieAnodeheraus-
drehen.
• AushygienischenGründensolltemandasWasserinregelmäßigenAbständen
zueinerTemperaturvon70°Cerhitzen.
• AlleFunktionsstörungendesGerätssinddirektbeimServicezumelden.
• Eswirdempfohlen dasWarmwasserauslaufrohr unddieAnschlussrohredes
RegistersthermischzuisolierenumWärmeverlustezubegrenzen.
DieobengenanntenTätigkeitensolltemanindividuelldurchführenundunterliegen
keinemGarantieanspruch.
Entleeren des Behälters
UmdenBehältervomWasserzuentleerensollteman:
• dieVentilediedenSpeichermitdemHeizkreisverbindenschließen.
• dasVentilanderKaltwasserzufuhrdesSpeichersschließen.
• DasAblassventilöffnen.
12

Technische Daten
SW;SWZ
WarmwasserStandspeicher SW
DE
SB;SBZ
Nennkapazität
l
100 120 140 200 250 300 400
Behälter
0,6
Nenndruck
MPa
Register 1
Nenntemperatur
°C
80
2
HeizächedesoberenRegisters
m
- 0,75 0,8 0,9
3
VolumendesoberenRegisters
dm
- 4,5 5 5,5
29* 31* 34*
Leistungdesoberen
SB;SBZ
kW
-
Registers
10** 10** 11**
714* 756* 838*
Warmwasserleistungdes
l/h
-
oberenRegisters
234** 248** 277**
2
1,2
HeizächedesunterenRegisters
m
0,8 1,0 1,1
1,5 1,7
1,0
3
7,4
VolumendesunterenRegisters
dm
3,6 4,3 6,4
9,1 10
5,8
44*
34* 41* 40*
53* 58*
37*
LeistungdesunterenRegisters
kW
15**
11** 13** 13**
18** 20**
12**
1071*
825* 1000* 996*
1293* 1420*
Warmwasserleistungdesunteren
918*
l/h
Registers
358**
271** 331** 332**
435** 483**
304**
Verlustein24h***
kWh
1,2 1,3 1,4 2 2,1 2,7 2,4
82
87
100,5
132
GewichtohneWasser
kg
46 52 54,5
97
99
115
150
A
111 127 124
B 214 258 241 254
740
C 727 822 813
852 856
628
D -
-
-
-
-
903
747
981
986
913
841
953
986
Abmessungen
E 817 912
mm
993
837
1071
1076
-
-
-
-
F -
1291
1079
1313
1319
G 1064 1235 1305 1464 1230 1646 1490
H 1195 1365 1435 1610 1380 1615 1660
I - 1334 1116 1350 1377
Magnesiumanode3/4"ø22
500 800 -
450
MagnesiumanodeM8ø33 -
mm
-
-
-
400
MagnesiumanodeM8ø40 -
500
400
500
*80/10/45°C
TemperaturdesHeizwassers/TemperaturdesSpeisewassers/Temperatur
-
}
**55/10/45°C
desBrauchwassers;DurchussdesHeizwassersdurchdasRegister3m³/h.
***beiEinhaltungkonstanterWassertemperatur60°C
PL/DE/FR/GB/RU-036_f.441
13

Les conditions pour un
fonctionnement sûr et
able
1. Lire et suivre attentivementles instructions d’installation et d’utilisationan
d’assurerunfonctionnementperformantetuneduréedevieoptimaledevotre
matériel.
2. Montageetutilisationdepréparateurnonconformeaveccettenoticen’estpas
autorisée-peutprovoquerundysfonctionnementetannulelagarantie.
3. Nepasinstallercettepréparateurdansdeszonesoùlatempératurepeuttomber
endessousde0°C.
4. Installationetexécutiondetravauxd’installationd’accompagnementdevraitêtre
conéeàuneentreprisespécialisée.
5. Lepréparateurdoitêtreposeausolenpositionsverticale,surlestroispieds
intégrés.
6. L’appareildoitêtreinstallédansuntelendroitetdetellemanière,queencasde
déversementd’urgenceoudefuiteiln’yavaitpasd’inondationdulocal.
7. Aprèsavoirplacélepréparateur,ildoitêtreraccordéàlaconduited’eau,instal-
lationdechauffagecentraleetsolaire,selonleschémadansleprésentmanuel.
Installationnonconformeaumoded’emploiannulelagarantieetpeutprovoquer
défaillance.
8. Leraccordementauréseaud’eaudoitêtreeffectuéeselonlesnormesenvigueur.
9. Lepréparateurpeutêtreinstallésouspressionjusqu’à6bars,encasdepression
supérieureà0,6MPa(6bars),ilfautinstallerobligatoirementunréducteurde
pressionavantlepréparateur.
10. L’égouttementd’eaudutuyaud’évacuationdelasoupapedesécuritéestnormal,
etilnefautpasl’empêcher,carleblocdesoupapepeutprovoquerdéfaillance.
11. Nepasutiliserlepréparateurs’ilexisteunrisquequelasoupapedesécuritéest
endommage.
12. Lepréparateurestéquipéd’uneanodeenmagnésium,uneprotectionsupplé-
mentairecontrelacorrosion.L’anodeestunepièced’usure.L’étatdel’anode
doitêtrevériétoutles12mois.Elledoitêtreabsolumentremplacéetousles
18mois.
13. Nepasdépasserlatempératurenominalede80°C!
Lepréparateurpeutêtreéquipéd’unerésistanceélectriqueavecunthermostat(p.ex.
GRBT1.4,GRBT2.0kW).Larésistancedoitêtrevisseràlaplacedebouchon1½”.
Maximallongueurdelarésistancechauffante:
- 360mmpourlepréparateurcapacité100,120,140litres,
- 450mmpourlepréparateurcapacité200litres,
- 550mmpourlepréparateurcapacités250et300litres,
- 600mmpourlepréparateurcapacités400litres.
14

