Hotpoint-Ariston KIC 644 C – page 2
Manual for Hotpoint-Ariston KIC 644 C
21
FR
Conseils utiles pour la cuisson
ª
Mise en pression
Autocuisser
Friture
Grillade
Ebullition
Cuiccon très vive
Cuisson vive
Cuisson moyenne
Cuisson douce
Cuisson
très douce
• • ¶
Crêpes
Saise et coloration
(Rotis, Steack, Escalope, Filets de poisson,
Oeufs au plat)
¶ §
Réduction rapide (Sauce liquides)
Eau Frémissante (Pates, Riz, Légumes)
Lait
§ S
Réduction lente (Sauce épaisses)
S ¢
Cuisson au bain-marie
Cuisson Autocuiseur après chuchotement
¢ £ ™
Mijotage (Ragouts)
Réchauffage des préparations
™ ¡
Sauce chocolat
Maintien au chaud
22
FR
Précautions et conseils
!
Cet appareil a été conçu et fabriqué conformément
aux normes internationales de sécurité. Ces consignes
de sécurité sont très importantes et doivent être lues
attentivement.
Cet appareil est conforme aux Directives
Communautaires suivantes :
- 2006/95/CEE du 12/12/06 (Basse Tension) et
modifications successives
- 2004/108/CEE du 15/12/04 (Compatibilité
électromagnétique) et modifications successives
- 93/68/CEE du 22/07/93 et modifications successives.
- 1275/2008 stand-by/off mode.
Sécurité générale
!
S’assurer que la prise d’air à travers la grille du
ventilateur ne soit jamais bouchée. La table à
encastrer exige en effet une bonne aération pour le
refroidissement des composants électroniques.
!
L’installation d’une table de cuisson à induction au-
dessus d’un réfrigérateur sous plan (chaleur) ou au-dessus
d’un lave-linge (vibrations) est vivement déconseillée.
L’espace indispensable à la ventilation des éléments
électroniques serait en effet insuffisant.
• Cet appareil a été conçu pour un usage familial, de type
non professionnel.
• Cet appareil ne doit pas être installé en extérieur, même
dans un endroit abrité, il est en effet très dangereux de
le laisser exposé à la pluie et aux orages.
• Ne pas toucher à l’appareil si l’on est pieds nus ou si
l’on a les mains ou les pieds mouillés ou humides.
• Cet appareil qui sert à cuire des aliments ne doit
être utilisé que par des adultes conformément aux
instructions du mode d’emploi. Ne pas utiliser la
table comme plan de dépose ou comme planche à
découper.
• Le plan vitrocéramique résiste aux chocs mécaniques,
il peut toutefois se fendre (ou même se briser) sous
l’effet d’un choc provoqué par un objet pointu, tel
qu’un ustensile par exemple. Dans ce cas, débrancher
immédiatement l’appareil du réseau électrique et
s’adresser à un centre d’assistance technique.
• Eviter que le cordon d’alimentation d’autres petits
électroménagers touche à des parties chaudes de la
table de cuisson.
• Ne pas oublier que la température des foyers reste
assez élevée pendant trente minutes au moins après
leur extinction. La chaleur résiduelle est aussi signalée
par un voyant (
voir Mise en marche et Utilisation
).
• Garder à bonne distance de la table de cuisson tout
objet qui pourrait fondre, des objets en plastique ou
en aluminium par exemple, ou des produits à haute
teneur en sucre. Faire très attention aux emballages,
au film plastique et au papier aluminium : au contact
des surfaces encore chaudes ou tièdes, ils risquent
d’endommager gravement la table.
• S’assurer que les manches des casseroles soient
toujours tournés vers l’intérieur de la table de
cuisson pour éviter tout risque d’accident.
• Ne pas tirer sur le câble pour débrancher la fiche de la
prise de courant.
• N’effectuer aucune opération de nettoyage ou
d’entretien sans avoir auparavant débranché la fiche
de la prise de courant.
• Il n’est pas prévu que cet appareil soit utilisé par
des personnes (enfants compris) présentant des
capacités physiques, sensorielles ou mentales réduites
ou qui n’ont pas l’expérience ou les connaissances
indispensables, à moins qu’elles ne le fassent sous la
surveillance de quelqu’un responsable de leur sécurité
ou qu’elles aient été dûment formées sur l’utilisation de
l’appareil.
•
Avis à toute personne portant un pacemaker ou
autre implant médical actif :
La table est conforme à toutes les réglementations en
matière d’interférences électromagnétiques.
Par conséquent, ce produit est parfaitement conforme
à toutes les dispositions légales (directives 89/336/
CEE). Il a été conçu de manière à ne pas provoquer
d’interférences à d’autres appareils électriques utilisés,
pourvu que ceux-ci soient également conformes aux
réglementations susmentionnées. La table induction
génère des champs électromagnétiques à courte
portée. Afin d’éviter tout risque d’interférence entre la
table de cuisson et le pacemaker, ce dernier devra
être fabriqué conformément à la réglementation en
vigueur.
A ce propos, nous ne pouvons assurer que la
conformité de notre produit. Pour tous renseignements
quant à la conformité ou à des problèmes éventuels
d’incompatibilité, prière de s’adresser à son médecin
traitant ou au fabricant du pacemaker.
• S’assurer que les enfants ne jouent pas avec l’appareil.
• Ne pas poser d’objets métalliques (couteaux, cuillères,
couvercles, etc.) sur la table, ils risquent de devenir
brûlants.
•
Le dispositif n’est pas destiné à être mis en œuvre
par une minuterie externe ou un système de
télécommande séparée.
Mise au rebut
• Mise au rebut du matériel d’emballage : se conformer aux
réglementations locales, les emballages pourront ainsi être
recyclés.
• La directive européenne 2002/96/CE relative aux déchets
d’équipements électriques et électroniques (DEEE),
prévoit que les électroménagers ne peuvent pas être
traités comme des déchets solides urbains courants.
Les appareils usagés doivent faire l’objet d’une collecte
séparée pour optimiser le taux de récupération et de
recyclage des matériaux qui les composent et empêcher
tout danger pour la santé et pour l’environnement. Le
symbole de la poubelle barrée est appliqué sur tous les
produits pour rappeler qu’ils font l’objet d’une collecte
sélective. Pour de plus amples renseignements sur la
mise au rebut des électroménagers, les possesseurs
peuvent s’adresser au service public prévu à cet effet
ou aux commerçants.
23
FR
Nettoyage et entretien
Mise hors tension
Avant toute opération de nettoyage ou d’entretien
couper l’alimentation électrique de l’appareil.
Nettoyage de l’appareil
!
Ne jamais utiliser de détergents abrasifs ou corrosifs,
tels que des bombes aérosols pour grilloirs et fours,
des détacheurs et des anti-rouille, des poudres
à récurer ou des éponges à surface abrasive : ils
risquent de rayer irrémédiablement la surface.
!
Ne jamais nettoyer l’appareil avec des nettoyeurs
vapeur ou haute pression.
• Pour un entretien courant, passer une éponge
humide sur la surface de la table et essuyer avec du
papier essuie-tout.
• Si la table est particulièrement sale, frotter avec un
produit d’entretien adapté au verre vitrocéramique,
rincer et essuyer.
• Pour enlever les salissures en relief, utiliser un
grattoir prévu à cet effet. Intervenir dès que
possible, ne pas attendre que l’appareil ait refroidi
afin d’éviter toute incrustation des salissures.
L’utilisation d’une éponge en fil d’acier inoxydable,
spéciale verre vitrocéramique, imprégnée d’eau
savonneuse donne d’excellents résultats.
• Tout objet, matière plastique ou sucre ayant
accidentellement fondu sur la table de cuisson doit
être aussitôt enlevé à l’aide du grattoir tant que la
surface est encore chaude.
• Une fois que la table est propre, elle peut être traitée
avec un produit d’entretien et de protection spécial :
celui-ci forme un film invisible qui protège la surface
en cas de débordement accidentel. Opérer de
préférence quand l’appareil est tiède ou froid.
• Prendre soin de toujours bien rincer à l’eau claire
et d’essuyer la table : les résidus des produits
pourraient en effet s’incruster lors d’une prochaine
cuisson.
Cadre en acier inox
(uniquement pour les modèles avec
encadrement)
Un contact prolongé avec une eau très calcaire ou
l’utilisation de nettoyants contenant du phosphore
peuvent tacher l’acier inox.
Nous conseillons de rincer abondamment et de bien
essuyer après entretien. Il est préférable d’éliminer
aussitôt tout débordement d’eau.
!
Certaines tables ont un cadre en aluminium
ressemblant à de l’acier inox. Ne pas utiliser de
produits d’entretien et de dégraissage ne convenant
pas pour l’aluminium.
Démontage de la table
Si le démontage de la table de cuisson s’avère
nécessaire :
1. enlever les vis qui fixent les ressorts de centrage sur
les côtés;
2. desserrer les vis des crochets de fixation dans les
coins;
3. dégager la table de cuisson du meuble.
!
Il est vivement déconseillé d’essayer d’accéder
aux mécanismes internes pour tenter une réparation.
En cas de panne, contacter le service d’assistance
technique.
24
FR
Description technique
des modèles
L’induction est le procédé de cuisson le plus rapide. Contrairement aux plaques traditionnelles, le foyer n’émet
aucune chaleur : la chaleur est produite à l’intérieur du récipient à condition que le fond de ce dernier soit en
matériau ferromagnétique.
Tables de cuisson
Foyers
Arrière gauche
Arrière droit
Avant gauche
Avant droit
Puissance totale
KIA 641 C;KIA 641 B
Puissance (en W)
I 1400
I 2200 - B 3000*
I 2200
I 1400 - 600 si arrière drt*
7200
KIC 641 X
Puissance (en W)
I 1400
I 2200 - B 3000*
I 2200
I 1400 - 600 si arrière drt*
7200
KIC 644 DD Z
Puissance (en W)
I 1400 - B 2000* - 600 si avant gche*
I 2200 - B 3000* - 1600 si avant drt*
I 2200 - B 3000* - 1600 si arrière gche*
I 1400 - B 2000* - 600 si arrière drt*
7200
Tables de cuisson
Foyers
Arrière gauche
Arrière droit
Avant gauche
Avant droit
Puissance totale
KIC 642 C
Puissance (en W)
I 1400 - 600 si avant gche*
I 2200 - B 3000*
I 2200 - B 3000*
I 1400 - 600 si arrière drt*
7200
KIC 644 X
KIC 644 C
KIC 744 C
Puissance (en W)
I 1400 - B 2000* - 600 si avant gche*
I 2200 - B 3000* - 1600 si avant drt*
I 2200 - B 3000* - 1600 si arrière gche*
I 1400 - B 2000* - 600 si arrière drt*
7200
Légende :
I = foyer à induction simple
B = booster: le foyer peut être suralimenté à 3000 W
* = la puissance maximale est limitée tant que le booster est activé sur le foyer arrière correspondant (
voir
Mise en
marche et Utilisation
).
25
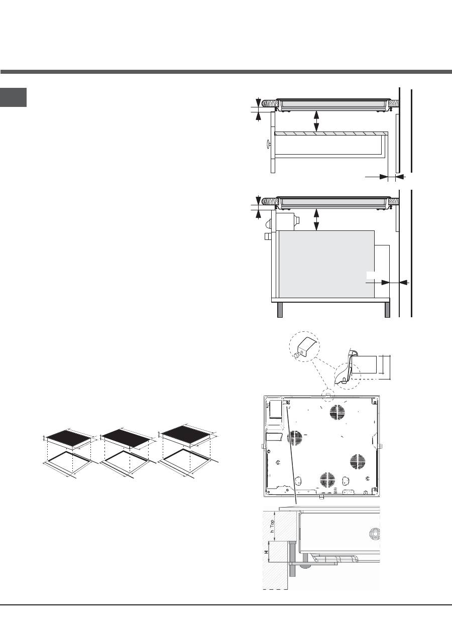
ES
Instalación
!
Es importante conservar este manual para poder
consultarlo en todo momento. En el caso de venta,
de cesión o de mudanza, verifique que permanezca
junto al aparato para informar al nuevo propietario
sobre su funcionamiento y sobre las advertencias
correspondientes.
!
Lea atentamente las instrucciones: contienen
importante información sobre la instalación, el uso y la
seguridad.
Colocación
!
Los embalajes no son juguetes para niños y se
deben eliminar según las normas para la recolección
diferenciada de desechos (
ver Precauciones y consejos
).
!
La instalación se debe realizar siguiendo estas
instrucciones y por personal profesionalmente
calificado. Una instalación incorrecta puede producir
daños a personas, animales o cosas.
Empotramiento
Para garantizar un buen funcionamiento del aparato
es necesario que el mueble tenga las características
adecuadas:
• el plano de apoyo debe ser de material resistente al
calor, a una temperatura de aproximadamente 100ºC;
• si se desea instalar la encimera sobre un horno, el
mismo debe poseer un sistema de enfriamiento con
ventilación forzada;
• evite instalar la encimera sobre un lavavajillas:
pero si fuera necesario, interponga un elemento de
separación estanco entre los dos aparatos;
• según el tipo de encimera que se desea instalar (
ver
las fi guras
), el espacio disponible en el mueble debe
tener las siguientes dimensiones:
Aireación
Para permitir una adecuada aireación y para evitar
el sobrecalentamiento de las superficies que rodean al
aparato, la encimera se debe colocar:
• a una distancia mínima de 40 mm de la pared
posterior o de cualquier otra superficie vertical;
• de modo que se mantenga una distancia mínima de
20 mm entre el hueco para el empotramiento y el
mueble que se encuentra debajo.
• Los muebles situados a un costado, cuya altura
supere la de la superficie de trabajo, deben estar
situados a 600 mm., como mínimo, del borde de la
misma.
PARTE DELANTERA
DE LA ENCIMERA
PLANO DE
APOYO
30
40
ENCIMERA
VOLCADA
5 mm
min. 20 mm
min. 20 mm
min. 40 mm
CAJÓN
5 mm
min. 40 mm
HORNO
VENTILADO
560 +/- 1
490 +/- 1
53
590
520
690
520
560 +/- 1
490 +/- 1
53
560 +/- 1
490 +/- 1
53
574
504
26
ES
Fijación
La instalación del aparato se debe realizar
sobre una
superficie de apoyo perfectamente plana.
Las deformaciones que se podrían provocar por una
mala fijación, pueden alterar las características y las
prestaciones de la encimera.
La longitud del tornillo de regulación de los ganchos
de fijación se debe determinar antes de su montaje en
base al espesor de la superficie de apoyo:
• espesor de 30 mm: tornillo de 23 mm;
• espesor de 40 mm: tornillo de 13 mm.
Para realizar la fijación, el procedimiento es el siguiente:
1. Con los tornillos cortos sin punta, enrosque los 4
muelles de centrado en los orificios ubicados en el centro
de cada costado de la encimera;
2. introduzca la encimera en el hueco del mueble,
céntrela y ejerza una adecuada presión sobre todo
el perímetro para que se adhiera perfectamente a la
superficie de apoyo.
3. en las encimeras con perfiles laterales: después de
haber colocado la encimera en el mueble, introduzca
los 4 ganchos de fijación (cada uno con su perno) en el
perímetro inferior de la encimera enroscándolos con los
tornillos largos con punta hasta que el vidrio se adhiera a
la superficie de apoyo.
!
Es indispensable que los tornillos de los muelles de
centrado permanezcan accesibles.
!
En conformidad con las normas de seguridad, una
vez empotrado el aparato, no se deben producir
contactos con las piezas eléctricas.
!
Todas las partes que garantizan la protección se
deben fijar de modo tal que no puedan ser quitadas
sin la ayuda de una herramienta.
Conexión eléctrica
!
La conexión eléctrica de la encimera y la de un horno
empotrado deben ser realizadas por separado, tanto
por razones de seguridad eléctrica como para facilitar
las operaciones de extracción del horno.
Conexión monofásica
La encimera posee un cable de alimentación eléctrica
ya conectado y preparado para la conexión monofásica.
Realice la conexión de los cables de acuerdo con la
tabla y los dibujos que se muestran a continuación:
Tensión tipo y
frecuencia de la red
Cable eléctrico
Conexión de los cables
220-240V 1+N ~
50 Hz
: amarillo/verde;
N: los 2 cables azules juntos
L: el marrón junto al negro
Otros tipos de conexión
Si las características de la instalación eléctrica coinciden
con alguna de las siguientes:
Tensión tipo y frecuencia de la red
• 400V - 2+N ~ 50 Hz
• 220-240V 3 ~ 50 Hz
• 400V 3 - N ~ 50 Hz
• 400V - 2+2N ~ 50 Hz
Separe los cables y realice la conexión de acuerdo
con la tabla y los dibujos que se muestran a
continuación:
Tensión tipo y
frecuencia de la red
Cable eléctrico
Conexión de los cables
400V - 2+N ~
50 Hz
220-240V 3 ~
50 Hz
400V 3-N ~
50 Hz
: amarillo/verde;
N
: los 2 cables azules
juntos
L1
: negro
L2
: marrón
400V - 2+2N ~
50 Hz
: amarillo/verde;
N1
: azul
N2
: azul
L1
: negro
L2
: marrón
Conexión del cable de alimentación eléctrica a la red
En el caso de conexión directa a la red, es necesario
interponer entre el aparato y la red, un interruptor
omnipolar con apertura mínima entre los contactos de 3
mm.
!
El instalador es responsable de la correcta conexión
eléctrica y del cumplimiento de las normas de
seguridad.
Antes de efectuar la conexión verifique que:
• la toma tenga conexión a tierra y que sea conforme
con la ley;
• la toma sea capaz de soportar la carga máxima de
potencia de la máquina indicada en la placa de
características que se encuentra en el aparato;
• la tensión de alimentación eléctrica esté comprendida
dentro de los valores indicados en la placa de
características;
• la toma sea compatible con el enchufe del aparato.
Si no es así, sustituya la toma o el enchufe; no utilice
prolongaciones ni conexiones múltiples.
!
Una vez instalado el aparato, el cable eléctrico y la
toma de corriente deben ser fácilmente accesibles.
!
El cable no debe sufrir pliegues ni compresiones.
!
El cable debe ser revisado periódicamente y
sustituido sólo por técnicos autorizados.
!
La empresa declina toda responsabilidad cuando
estas normas no sean respetadas.
!
No quitar ni sustituir por ninguna razón el cable
de alimentación. Si se sustituye o extrae caduca
la garantía y la marca CE. INDESIT no se asume la
responsabilidad en caso de accidentes o daños
derivados de la sustitución o remoción del cable de
alimentación original. Se admite exclusivamente la
sustitución con un repuesto original y realizada por
personal autorizado por INDESIT.
27
ES
Puesta en funcionamiento
y uso
!
La cola aplicada sobre las juntas deja algunas trazas
de grasa en el vidrio. Antes de utilizar el aparato, se
recomienda eliminarlas con un producto específico para
el mantenimiento, no abrasivo. Durante las primeras horas
de funcionamiento, es posible advertir un olor a goma que
pronto desaparecerá.
!
Cuando la encimera se conecta a la red de alimentación
eléctrica, después de algunos segundos se emite una breve
señal sonora. Sólo a partir de ese momento es posible
encender la encimera.
Ruidos de normal funcionamiento de la placa de cocina:
• Rumor: Se debe a la vibración de los elementos metálicos
que componen el inductor y la olla y se generan debido al
campo electromagnético necesario para el calentamiento;
el mismo aumenta al aumentar el nivel de potencia del
inductor.
• Leve silbido: Se presenta cuando la olla colocada en la
zona de cocción está vacía; el ruido desaparece apenas
se agregan alimentos o agua.
• Crepitación: Es un ruido producido por las vibraciones
del material del fondo de la olla cuando es atravesado
por las corrientes parásitas generadas por el campo
electromagnético (inducción); puede variar su intensidad
dependiendo del material del fondo de la olla y se reduce
cuando el tamaño de la olla aumenta.
• Silbido intenso: Se presenta cuando funcionan al mismo
tiempo los dos inductores en la misma vertical a la
potencia máxima y/o si en el grande se ha fijado la
función booster mientras que el otro está autorregulado.
El ruido se reduce apenas desciende el nivel de potencia
del inductor autorregulado; se manifiesta en particular
cuando el fondo de la olla está compuesto por capas de
material diferente.
• Ruido del ventilador: Para el funcionamiento correcto
de la placa y para garantizar la seguridad de la parte
electrónica de posibles sobrecalentamientos es necesario
el funcionamiento del ventilador. El ventilador funciona
a la máxima potencia cuando el inductor grande está al
máximo nivel de potencia o cuando está conectada la
función booster; en los otros casos funciona con potencia
media dependiendo de la temperatura que registra.
Además, es posible que el ventilador siga funcionando
incluso después que se ha desconectado la placa, esto
se debe a que la temperatura registrada es aún elevada.
Los ruidos descriptos se deben a la tecnología de inducción
y no implican necesariamente defectos de funcionamiento.
!
La presión prolongada de los botones
-
y
+
permite el
avance veloz de los niveles de potencia y de los minutos del
temporizador.
Encendido de la encimera
El encendido de la encimera se produce manteniendo
presionado el botón
durante un segundo
aproximadamente.
Encendido de las zonas de cocción
Cada zona de cocción se acciona utilizando un botón
de selección
y un dispositivo de regulación de la
potencia compuesto por un doble botón
-
y
+
.
• Para poner en funcionamiento una zona de cocción, pulse
el correspondiente botón de mando y fije la potencia
deseada utilizando los botones
-
y
+
.
Función booster*
Para disminuir los tiempos de calentamiento en algunas
zonas de cocción, es posible activar la función booster
(acelerador) presionando el botón
Booster
. Se enciende la luz
piloto colocada sobre el botón. Esta función sobrealimenta la
potencia a 2000W o 3000W dependiendo del tamaño de la
zona de cocción.
La función booster se interrumpe automáticamente después
de 4 minutos. Mientras el booster de una zona de cocción
está activo, la zona de cocción correspondiente anterior o
posterior tendrá potencia limitada (Ej.: Si está funcionando
el booster de la placa posterior izquierda, la potencia de
la placa delantera izquierda disminuye). Para más detalles
consultar la
Descripción técnica de los modelos.
Apagado de las zonas de cocción
Para apagar una zona de cocción, selecciónela mediante el
correspondiente botón de selección
y:
• Presione el botón
-
: la potencia de la zona de cocción
desciende progresivamente, hasta que se apaga.
Programación de la duración de una cocción
!
Se pueden programar simultáneamente todas las zonas de
cocción para que cocinen entre 1 y 99 minutos.
1. Seleccione la zona de cocción utilizando el botón de
selección correspondiente.
2. Regule el nivel de potencia de la zona de cocción.
3. Presione el botón de programación
. Centelleará el
piloto correspondiente a la zona elegida.
4. Seleccione la duración de la cocción deseada utilizando
los botones
-
y
+
.
5. Confirme la operación presionando el botón
, si no lo hace, después de 10 segundos se selecciona
automáticamente.
La cuenta al revés del temporizador comienza
inmediatamente. La finalización de la cocción programada
*
Presente sólo en algunos modelos.
28
ES
está indicada por una señal sonora (durante 1 minuto) y la
zona de cocción se apaga.
Repita el procedimiento descrito precedentemente para
cada placa que se pretende programar.
Visualización en el caso de programación múltiple
Cuando una o varias placas han sido programadas, el
display visualiza el tiempo remanente de la placa que está
más cerca del final del tiempo programado, indicando su
posición con el piloto intermitente. Los pilotos de las otras
placas programadas permanecen encendidos.
Para visualizar el tiempo restante de las otras placas
programadas, presione varias veces el botón
: se
mostrarán secuencialmente y en sentido horario los tiempos
del contador de minutos y de todas las placas programadas,
comenzando por la que está ubicada adelante a la izquierda.
Modificar la programación
1. Presione varias veces el botón
hasta que se muestre
el tiempo de la placa que se pretende modificar.
2. Accione los botones
-
y
+
para fijar el
nuevo tiempo.
3. Confirme la operación presionando el
botón
.
Para cancelar una programación, realice las operaciones
indicadas. En el punto 2 presione el botón
-
: la duración
disminuye progresivamente hasta el 0. La programación se
anula y la pantalla sale de la modalidad programación.
El contador de minutos
La encimera debe estar encendida.
El contador de minutos permite fijar una duración máxima de
99 minutos.
1. Presione el botón de programación
hasta que se
encienda el piloto del contador de minutos
.
2. Seleccione la duración deseada utilizando los botones
-
y
+
.
3. Confirme la operación presionando el botón
.
La cuenta al revés del temporizador comienza
inmediatamente. Una vez que se ha cumplido el tiempo, se
emite una señal sonora (de 1 minuto de duración).
Bloqueo de los mandos
Cuando la encimera está en funcionamiento, es posible
bloquear el panel de control para evitar el peligro de
modificaciones fortuitas de las regulaciones (niños,
operaciones de limpieza, etc.). Presionando el botón
,
los mandos se bloquean y el piloto que se encuentra encima
del botón se enciende.
Para poder volver a realizar regulaciones (por ej.: interrumpir
la cocción), es necesario desbloquear los mandos: presione
el botón
durante algunos instantes, la luz testigo se
apagará y el panel de control se desbloqueará.
Apagado de la encimera
Presionando el botón
, el aparato se apaga, no confíe en
el detector de ollas.
Si los mandos del aparato fueron bloqueados, continuarán
estando bloqueados incluso después de haber vuelto a
encender la encimera. Para poder encender nuevamente la
encimera, es necesario primero desbloquear los mandos.
Modalidad “demo”
Es posible seleccionar una modalidad demostrativa en
la que el panel de control funciona normalmente (incluso
los mandos correspondientes a la programación), pero
los elementos calentadores no se encienden. Para activar
la modalidad “demo” es necesario que la encimera esté
encendida y todas las placas estén apagadas:
• Presione y mantenga presionados simultáneamente los
botones
+
y
-
durante 6 segundos. Cumplidos los 6
segundos, el piloto ON/OFF y el piloto BLOQUEO DE
MANDOS centellean durante un segundo. Suelte los
botones
+
y
-
y presione el botón
;
• la pantalla visualizará DE y MO y la encimera se apagará;
• al volver a encender la encimera, se encontrará en la
modalidad “demo”.
Para salir de esta modalidad siga el procedimiento ya
descrito. La pantalla visualizará DE y OF y la encimera se
apagará. Cuando vuelva a encender la encimera, funcionará
normalmente.
Consejos prácticos para el uso del aparato
!
Utilice recipientes para la cocción fabricados con
material compatible con el principio de inducción (material
ferromagnético). Se recomienda el uso de ollas de: hierro
fundido, acero esmaltado o inoxidable especial para
inducción. Para asegurarse de la compatibilidad de un
recipiente, es suficiente realizar una prueba con un imán.
Además, para obtener las mejores prestaciones de la
encimera:
29
ES
• Utilice ollas con fondo plano y de gran espesor para
asegurarse que se adhieran perfectamente a la zona
calentadora
• Utilice ollas de un diámetro suficiente para cubrir
completamente la zona de cocción, de ese modo se
garantiza el aprovechamiento de todo el calor disponible.
• Verifique que el fondo de las ollas esté siempre
perfectamente seco y limpio para garantizar una correcta
adherencia y mayor duración, no sólo de las zonas de
cocción, sino también de las ollas.
• Evite utilizar las mismas ollas utilizadas en los
quemadores a gas: la concentración de calor en los
quemadores a gas puede deformar el fondo de la olla
que, en consecuencia, pierde adherencia.
Dispositivos de seguridad
Detección de los recipientes
Cada zona de cocción está provista de un dispositivo de
detección de la olla. La placa emite calor únicamente en
presencia de una olla de dimensiones adecuadas para esa
zona de cocción. La luz testigo centelleante puede indicar:
• una olla incompatible
• una olla de diámetro insuficiente
• que se ha levantado la olla
Sobrecalentamiento
En el caso de un sobrecalentamiento de los componentes
electrónicos, la encimera se apagará automáticamente y en
la pantalla aparecerá
F
seguida de un número centelleante.
Este mensaje desaparecerá y la encimera se podrá volver
a utilizar apenas la temperatura haya descendido a un nivel
aceptable.
Interruptor de seguridad
El aparato posee un interruptor de seguridad que apaga
las zonas de cocción automáticamente cuando se alcanza
un tiempo límite de uso a un determinado nivel de potencia.
Durante la interrupción de seguridad, el display indica “0”.
Ejemplo: la placa posterior derecha se ha fijado en 5,
mientras que la placa delantera izquierda en 2. La posterior
derecha se apagará después de 5 horas de funcionamiento,
la delantera izquierda después de 8 horas.
Nivel de potencia
1
2
3
4
5
6
7
8
9
Límite de duración de funcionamento en horas
9
8
7
6
5
4
3
2
1
Señal sonora
Algunas anomalías, como:
• un objeto (olla, cubierto, etc.) dejado sobre el área de
mandos durante más de 10 segundos
• un derrame sobre el área de mandos,
• la presión sobre un botón ejercida por demasiado tiempo,
pueden provocar la emisión de una señal sonora. Para
interrumpirla, elimine la causa del mal funcionamiento.
Si no se elimina la causa de la anomalía, la señal sonora
persiste y la encimera se apagará.
30
ES
Consejos prácticos para la cocción
ª
Cocción a presión
Olla a presión
Freído
Asado
Ebullición
Cocción a fuego
muy fuerte
Cocción a
fuego fuerte
Cocción a fuego medio
Cocción a
fuego bajo
Cocción
a fuego
muy bajo
• • ¶
Crêpe
Cocción a fuego fuerte y dorado
(Asados, Bistec, Escalopes, Filetes de
pescado, Huevo frito)
¶ §
Espesamiento rápido (Salsas líquidas)
Agua hirviendo (Pasta, arroz, Verduras)
Leche
§ S
Espesamiento lento (Salsas consistentes)
S ¢
Cocción a Baño María
Cocción olla a presión después del silbido
¢ £ ™
Cocción a fuego
bajo (guisados)
Calentar comidas
™ ¡
Salsa al chocolate
Mantener caliente
31
ES
Precauciones y consejos
!
El aparato ha sido proyectado y fabricado en
conformidad con las normas internacionales sobre
seguridad. Estas advertencias se suministran por
razones de seguridad y deben ser leídas atentamente.
Este aparato es conforme con las siguientes
Normas Comunitarias:
-2006/95/CEE del 12.12.06 (Baja Tensión) y sucesivas
modificaciones
- 2004/108/CEE del 15/12/04 (Compatibilidad
Electromagnética) y sucesivas modificaciones
- 93/68/CEE del 22/07/93 y sucesivas modificaciones.
- 1275/2008 stand-by/off mode.
Seguridad general
!
Controle que no se obstruya nunca la toma de aire
a través de la rejilla del ventilador. La encimera para
empotrar necesita una correcta aireación para el
enfriamiento de los componentes electrónicos.
!
No se aconseja instalar una encimera por inducción
sobre un frigorífico bajo encimera (calor) o sobre una
lavadora (vibraciones). En esos casos, el espacio
necesario para la ventilación de los elementos
electrónicos sería insuficiente.
• El aparato ha sido fabricado para un uso de tipo no
profesional en el interior de una vivienda.
• El aparato no se debe instalar al aire libre, tampoco
si el espacio está protegido porque es muy peligroso
dejarlo expuesto a la lluvia y a las tormentas.
• No toque la máquina descalzo o con las manos y pies
mojados o húmedos.
• El aparato debe ser utilizado para cocinar
alimentos, sólo por personas adultas y siguiendo las
instrucciones contenidas en este manual. No utilice la
encimera como superficie de apoyo ni como tajo de
cocina.
• La encimera de vidriocerámica es resistente a los
choques mecánicos, no obstante, se puede rajar (o
eventualmente quebrantarse) si es golpeada con
un objeto con punta, como por ejemplo un utensilio.
Si esto sucediera, desconecte inmediatamente el
aparato de la red de alimentación eléctrica y llame al
Servicio de Asistencia Técnica.
• Evite que el cable de alimentación eléctrica de otros
electrodomésticos entre en contacto con las partes
calientes de la encimera.
• No olvide que la temperatura de las zonas de cocción
permanece bastante elevada durante treinta minutos,
como mínimo, después que se han apagado. El calor
residual también está señalado por un indicador (
ver
Puesta en funcionamiento y uso
).
• Mantenga cualquier objeto que se pueda fundir a
una debida distancia de la encimera, por ejemplo,
objetos de plástico, de aluminio o productos con
un elevado contenido de azúcar. Tenga particular
cuidado con los embalajes y películas de plástico
o aluminio: si se dejan sobre las superficies todavía
calientes o tibias pueden causar un grave daño a la
encimera.
• Verifique que los mangos de las ollas estén siempre
dirigidos hacia dentro de la encimera para evitar
que sean chocados accidentalmente.
• No desconecte el aparato de la toma de corriente
tirando del cable sino sujetando el enchufe.
• No realice la limpieza o el mantenimiento sin haber
desconectado primero el aparato de la red eléctrica.
• No está previsto que el aparato sea utilizado por
personas (incluidos los niños) con capacidades
físicas, sensoriales o mentales disminuidas, por
personas inexpertas o que no tengan familiaridad
con el producto, salvo que estén vigiladas por una
persona responsable de su seguridad, o que no
hayan recibido instrucciones preliminares sobre el
uso del aparato.
• Advertencia para las personas que poseen
marcapasos u otros dispositivos médicos activos:
La encimera es conforme con todas las
normas vigentes en materia de interferencias
electromagnéticas.
Por lo tanto, este producto responde perfectamente
a todos los requisitos de ley (directivas 89/336/CEE).
Ha sido proyectado para no crear interferencias con
otros equipos eléctricos, con la condición de que los
mismos también sean conformes con dichas normas.
La encimera de inducción genera campos
electromagnéticos de alcance limitado.
Para evitar todo riesgo de interferencias entre la
encimera y el marcapasos, éste último deberá ser
realizado en conformidad con las normas vigentes.
Al respecto, nosotros sólo podemos garantizar la
conformidad de nuestro producto. Para obtener
información sobre la conformidad o por problemas
de incompatibilidad, consulte con su médico o con el
fabricante del marcapasos.
• Evitar que los niños jueguen con el aparato.
• No coloque objetos metálicos (cuchillos, cucharas,
cubiertos, etc.) sobre la encimera porque pueden
calentarse.
•
El aparato no se debe poner en funcionamiento a
través de un temporizador externo o de un sistema
de mando a distancia.
Eliminación
• Eliminación del material de embalaje: respete las
normas locales, de esta manera los embalajes podrán
ser reutilizados.
• La norma europea 2002/96/CE sobre la eliminación de
aparatos eléctricos y electrónicos (RAEE), establece
que los electrodomésticos no se deben eliminar de la
misma manera que los desechos sólidos urbanos. Los
aparatos en desuso se deben recoger separadamente
para optimizar la tasa de recuperación y reciclaje de
los materiales que los componen e impedir potenciales
daños para la salud y el medio ambiente. El símbolo
de la papelera tachada se encuentra en todos los
productos para recordar la obligación de recolección
separada.
Para obtener mayor información sobre la correcta
eliminación de electrodomésticos, los poseedores
de los mismos podrán dirigirse al servicio público
responsable o a los revendedores.
32
ES
Mantenimiento y cuidados
Interrumpir el suministro de corriente
eléctrica
Antes de realizar cualquier operación, desconecte el
aparato de la red de alimentación eléctrica.
Limpiar el aparato
!
Evite el uso de detergentes abrasivos o corrosivos,
como aerosoles para barbacoas y hornos,
quitamanchas y productos anticorrosivos, jabones
en polvo y esponjas con superficie abrasiva, pueden
rayar irremediablemente la superficie.
!
No utilice nunca limpiadores a vapor o de alta
presión para la limpieza del aparato.
• Para un mantenimiento ordinario, es suficiente lavar
la encimera con una esponja húmeda, secándola
luego con un papel absorbente para cocina.
• Si la encimera está particularmente sucia,
refriéguela con un producto específico para la
limpieza de las superficies de vidriocerámica,
enjuáguela y séquela.
• Para eliminar las acumulaciones de suciedad más
consistentes utilice una raedera especial. Intervenga
lo antes posible, sin esperar que el aparato se enfríe
para evitar que los residuos formen costras. Se
pueden obtener excelentes resultados usando una
esponja con hilos de acero inoxidable especial para
encimeras de vidriocerámica, embebida en agua y
jabón.
• Si sobre la encimera se hubieran fundido
accidentalmente objetos o materiales como plástico
o azúcar, elimínelos inmediatamente con la raedera,
mientras la superficie está todavía caliente.
• Una vez limpia, la encimera se puede tratar con
un producto específico para el mantenimiento
y la protección: la película invisible que deja
este producto protege la superficie en caso de
escurrimientos durante la cocción. Se recomienda
realizar estas operaciones con el aparato tibio o frío.
• Recuerde siempre enjuagar la encimera con agua
limpia y secarla cuidadosamente: en efecto, los
residuos de productos podrían encostrarse durante
la siguiente cocción.
Estructura de acero inoxidable
(sólo en los modelos
con marco)
El acero inoxidable puede mancharse por la acción de
agua muy calcárea dejada por un período de tiempo
prolongado en contacto con el mismo o debido a
productos para la limpieza con contenido de fósforo.
Se aconseja enjuagar abundantemente y secar con
cuidado después de la limpieza de la encimera. Si se
derramara agua, seque rápidamente y con cuidado.
!
Algunas encimeras poseen un marco de aluminio que
se asemeja al acero inoxidable. No utilice productos
para la limpieza y el desengrase no adecuados para el
aluminio.
Desmontar la encimera
Cuando sea necesario, se puede desmontar la
encimera:
1. quite los tornillos que fijan los muelles de centrado
en los costados;
2. afloje los tornillos de los ganchos de fijación en las
esquinas;
3. extraiga la encimera del mueble.
!
Se recomienda evitar acceder a los mecanismos
internos para intentar una reparación. En caso de
avería, llame al Servicio de Asistencia Técnica.
33
ES
Descripción técnica de los
modelos
El sistema por inducción es el procedimiento de cocción más rápido que existe. A diferencia de las placas
tradicionales, no es la zona de cocción que se calienta: El calor es generado directamente dentro de la olla la cual
deberá poseer necesariamente un fondo de material ferromagnético.
Encimeras
Zonas de cocción
Posterior izquierda
Posterior derecha
Delantera izquierda
Delantera derecha
Potencia total
KIA 641 C;KIA 641 B
Potencia (en W)
I 1400
I 2200 - B 3000*
I 2200
I 1400 - 600 si Post. Der.*
7200
KIC 641 X
Potencia (en W)
I 1400
I 2200 - B 3000*
I 2200
I 1400 - 600 si Post. Der.*
7200
KIC 644 DD Z
Potencia (en W)
I 1400 - B 2000* - 600 si Del. Izq.*
I 2200 - B 3000* - 1600 si Del. Der.*
I 2200 - B 3000* - 1600 si Post. Izq.*
I 1400 - B 2000* - 600 si Post. Der.*
7200
Encimeras
Zonas de cocción
Posterior izquierda
Posterior derecha
Delantera izquierda
Delantera derecha
Potencia total
KIC 642 C
Potencia (en W)
I 1400 - 600 si Del. Izq.*
I 2200 - B 3000*
I 2200 - B 3000*
I 1400 - 600 si Post. Der.*
7200
KIC 644 X
KIC 644 C
KIC 744 C
Potencia (en W)
I 1400 - B 2000* - 600 si Del. Izq.*
I 2200 - B 3000* - 1600 si Del. Der.*
I 2200 - B 3000* - 1600 si Post. Izq.*
I 1400 - B 2000* - 600 si Post. Der.*
7200
Leyenda:
I = zona de cocción por inducción simple
B = booster: la zona de cocción puede ser sobrealimentada a 3000 vatios
* = la potencia máxima está limitada mientras esté en funcionamiento el booster de la zona de cocción posterior
correspondiente
(ver Puesta en funcionamiento y uso).
34
PT
Instalação
!
É importante guardar este folheto para poder
consultá-lo a qualquer momento. No caso de venda,
cessão ou mudança, assegure-se que o mesmo
permanece com o aparelho para informar o novo
proprietário sobre o funcionamento e sobre as
respectivas advertências.
!
Leia com atenção as instruções: há informações
importantes sobre a instalação, a utilização e a
segurança.
Posicionamento
!
As embalagens não são brinquedos para as crianças
e devem ser eliminadas em conformidade com as
regras de colecta diferenciada (
veja em Precauções e
Conselhos
).
!
A instalação deve ser realizada segundo estas
instruções e por pessoal profissional qualificado. Uma
instalação errada pode causar danos a pessoas,
animais ou objectos.
Encaixe
Para garantir um bom funcionamento do aparelho
é necessário que o móvel seja de características
adequadas.
• o material do plano de apoio deve resistir a uma
temperatura de aproximadamente 100ºC;
• se desejar instalar o plano de cozedura sobre um
forno, este deve ser equipado com de um sistema de
arrefecimento com ventilação forçada;
• evite instalar o plano de cozedura sobre uma
máquina de lavar louça: se for faze-lo, instale um
elemento de separação entre os dois aparelhos com
retenção hermética;
• conforme o plano de cozedura que desejar instalar
(
veja fi guras
), o vão do móvel deverá ter as seguintes
dimensões:
560 +/- 1
490 +/- 1
53
590
520
690
520
560 +/- 1
490 +/- 1
53
560 +/- 1
490 +/- 1
53
574
504
Ventilação
Para consentir uma adequada ventilação e para evitar
o superaquecimento das superfícies ao redor do aparelho,
o plano de cozedura deve ser posicionado:
• a uma distância mínima de 40 mm da parede de trás
ou de quaisquer outras superfícies verticais;
• de forma a manter uma distância mínima de 20 mm
entre o vão para o encaixe e o móvel abaixo dele.
• Os móveis situados ao lado, com altura superior
aquela do plano de trabalho, devem ser situados ao
menos 600 mm do bordo do mesmo plano.
LADO ANTERIOR DO
PLANO DE COZEDURA
PLANO
DE APOIO
30
40
PLANO DE
COZEDURA VIRADO
5 mm
min. 20 mm
min. 20 mm
min. 40 mm
GAVETA
5 mm
min. 40 mm
FORNO VENTILADO
35
PT
Fixação
A instalação do aparelho deve ser realizada sobre uma
superfície de apoio perfeitamente plana.
As deformações eventualmente provocadas por uma
fixação errada poderão alterar as características e as
performances do plano de cozedura.
O comprimento do parafuso de regulação dos ganchos
de fixação deve ser configurado antes da sua
montagem, conforme a espessura do plano de apoio:
• 30 mm de espessura: parafuso 23 mm;
• 40 mm de espessura: parafuso 13 mm.
Para a fixação proceder da seguinte maneira:
1. Com os parafusos sem ponta, parafusar as 4 molas
de centragem nos furos colocados no centro de cada
lado do plano;
2. introduza o plano de cozedura no vão do móvel a
exercer uma adequada pressão no inteiro perímetro
para o plano de cozedura prender-se perfeitamente no
plano de apoio.
3. para os planos com perfis laterais: após ter inserido
o plano de cozedura no móvel, inserir os 4 ganchos
de fixação (cada um com o seu perno) no perímetro
inferior do plano de cozedura, parafusando-os com os
parafusos compridos com ponta até que o vidro fique
aderente ao plano de apoio.
!
É indispensável que os parafusos das molas de
centragem sejam acessíveis.
!
Em conformidade com as normas de segurança,
depois de instalar o aparelho encaixado, não deve ser
possível o contacto com componentes eléctricos.
!
Todos os componentes de garantia da protecção
precisam estar presos de modo que não possam ser
tirados sem o emprego de uma ferramenta.
Ligação eléctrica
!
A ligação eléctrica do plano de cozedura e a de um
eventual forno de encaixar precisam ser realizadas
separadamente, seja por razões de segurança
eléctrica, seja para facilitar uma eventual remoção do
forno.
Ligação monofásica
O plano está provido de cabo de alimentação já ligado
e predisposto na fábrica para a ligação monofásica.
Efectuar a ligação dos fios de acordo com a tabela e os
desenhos a seguir:
Tensão tipo e
frequência rede
Cabo eléctrico
Ligação fios
220-240V 1+N ~
50 Hz
: verde/amarelo
N
: os 2 fios azuis juntos
L
: marrom junto ao preto
Outros tipos de ligações
Se o sistema eléctrico corresponder à uma dessas
características:
Tensão tipo e frequência de rede
• 400V - 2+N ~ 50 Hz
• 220-240V 3 ~ 50 Hz
• 400V 3 - N ~ 50 Hz
• 400V - 2+2N ~ 50 Hz
Soltar os cabos e efectuar a ligação dos fios de acordo
com a tabela e os desenhos a seguir:
Tensão tipo e
frequência rede
Cabo eléctrico
Ligação fios
400V - 2+N ~
50 Hz
220-240V 3 ~
50 Hz
400V 3-N ~
50 Hz
: verde/amarelo;
N
: os 2 fios azuis juntos
L1
: preto
L2
: marrom
400V - 2+2N ~
50 Hz
: verde/amarelo;
N1
: azul
N2
: azul
L1
: preto
L2
: marrom
Ligação do cabo de alimentação à rede
No momento de efectuar a ligação directamente na rede,
instalar entre o aparelho e a rede um interruptor omnipolar
com uma abertura mínima de 3 mm entre os contactos.
!
O técnico instalador é responsável pela realização
certa da ligação eléctrica e da obediência das regras de
segurança.
Antes de efectuar a ligação, certifique-se que:
• a tomada tenha uma ligação à terra e seja em
conformidade com a legislação;
• a tomada tenha a capacidade de suportar a carga
máxima de potência da máquina, indicada na placa de
identificação colocada no aparelho;
• a tensão de alimentação seja entre os valores da placa
de identificação;
• a tomada seja compatível com a ficha do aparelho.
Em caso contrário, substitua a tomada ou a ficha; não
empregue extensões nem tomadas múltiplas.
!
Depois de ter instalado o aparelho, o acesso ao cabo
eléctrico e à tomada da corrente deve ser fácil.
!
O cabo não deve ser dobrado nem comprimido.
!
O cabo deve ser verificado periodicamente e
substituído somente por técnicos autorizados.
!
A empresa exime-se de qualquer responsabilidade
se estas regras não forem obedecidas.
!
Não remover ou substituir por motivo algum o cabo
de alimentação. A eventual remoção ou substituição do
mesmo fará decair a garantia e a marca CE. A INDESIT
exime-se de qualquer responsabilidade por incidentes
ou danos derivados da substituição/remoção do cabo
de alimentação original. Admite-se exclusivamente
a substituição com uma peça de reposição original,
efectuada por pessoal autorizado INDESIT.
36
PT
Início e utilização
!
A cola aplicada nas guarnições deixa alguns traços de
graxa no vidro. Antes de utilizar o aparelho, é recomendável
eliminá-la com um produto não abrasivo específico para a
manutenção. Durante as primeiras horas de funcionamento,
pode ser que note odor de borracha, que em todo o caso
logo desaparecerá.
!
Quando o plano de cozedura for ligado electricamente,
toca um breve sinal acústico depois de alguns segundos.
Somente neste ponto será possível ligar o plano de
cozedura.
Ruídos do normal funcionamento do plano de cozedura:
• Zumbido: deve-se à vibração dos elementos metálicos
dos quais são constituídos o indutor e a panela e gera-
se pelo campo electromagnético necessário para o
aquecimento; aumenta com o aumento do nível de
potência do indutor.
• Leve assobio: manifesta-se quando a panela disposta
sobre a zona de cozedura está vazia; o ruído desaparece
assim que de adicionam alimentos ou água.
• Crepitação: é um barulho produzido pelas vibrações do
material do fundo da panela quando é atravessado pelas
correntes parasitas devidas ao campo electromagnético
(indução); pode ser mais ou menos intenso conforme o
material do fundo da panela e diminui se as medidas da
panela aumentam.
• Forte assobio: manifesta-se quando funcionam
contemporaneamente os dois indutores na mesma
vertical, com a máxima potência, e/ou se naquele
maior estiver activada a função booster e o outro for
autorregulado. O barulho diminui assim que se reduz o
nível de potência do indutor autorregulado; manifesta-
se especialmente quando o fundo da panela é feito de
camadas de vários materiais.
• Ruído da ventoinha: para o correcto funcionamento do
plano e para garantir a segurança da parte electrónica
contra possíveis superaquecimentos, é necessário
accionar uma ventoinha. A ventoinha funciona na máxima
potência quando o indutor grande está no máximo nível
de potência ou quando está activada a função booster;
em todos os outros casos, funciona com potência média
conforme a temperatura detectada. Além disto, é possível
que a ventoinha continue a funcionar mesmo depois da
desactivação do plano, se a temperatura detectada for
elevada.
Os ruídos elencados devem-se à tecnologia de indução e
não indicam necessariamente defeitos de funcionamento.
!
Uma prolongada pressão das teclas
-
e
+
permite um
avançamento rápido dos níveis de potência e dos minutos
do timer.
Acender o plano de cozedura
Para acender o plano de cozedura manter pressionada a
tecla
por aproximadamente um segundo.
Acender as zonas de cozedura
Cada uma as zonas de cozedura é accionada mediante um
botão de selecção
e um dispositivo de regulação da
potência constituído por um botão
-
e
+
.
• Para colocar em funcionamento uma zona de cozedura,
carregue na respectivo botão de comando e defina a
potência que desejar mediante os botões
-
e
+
.
Função booster*
Para acelerar os tempos de aquecimento, em algumas zonas
de cozedura, é possível activar a função booster carregando
na tecla
Booster
. O indicador luminoso situado ao lado da tecla
acende-se. Esta função superalimenta a potência a 2000W
ou 3000W conforme a grandeza da zona de cozedura
interessada.
O Booster interrompe-se automaticamente depois de
4 minutos. Até quando o booster de uma das zonas
de cozedura estiver activado, a zona de cozedura
correspondente anterior ou posterior terá a potência limitada
(por ex.: se está activo o booster na chapa posterior
esquerda, diminui a potência da chapa anterior esquerda).
Para ulteriores esclarecimentos, consulte a
Descrição técnica
dos modelos.
Desligar as zonas de cozedura
Para desligar uma zona de cozedura, seleccione-a mediante
o respectivo botão de selecção
e:
• Carregue na tecla
-
: a potência da zona de cozedura
descerá progressivamente até desligar-se.
Programar a duração de uma cozedura
!
É possível programar contemporaneamente todas as zonas
de cozedura para uma duração de cozedura entre 1 e 99
minutos.
1. Seleccione a zona de cozedura mediante o respectivo
botão de selecção.
2. Regular o nível de potência da zona de cozedura.
3. Carregue no botão de programação
. O indicador
correspondente à zona escolhida irá piscar.
4. Defina a duração da cozedura que desejar mediante os
botões
-
e
+
.
*
Há somente em alguns modelos.
37
PT
5. Confirmar pressionando a tecla
ou deixar que seja
seleccionada automaticamente após 10 segundos.
A contagem regressiva do timer começará imediatamente.
No final da cozedura programada será indicado por um
sinal sonoro (que toca 1 minuto) e a zona de cozedura se
apagará.
Repita o procedimento descrito acima para cada chapa que
deseja programar.
Visualização em caso de programação múltipla.
Quando uma ou mais chapas foram
programadas, o display indicará o tempo
faltante da chapa que está mais próxima
ao fim do tempo programado, indicando
a sua posição com o piscar do correspondente indicador
luminoso. Os indicadores luminosos das outras chapas
programadas estão acesos.
Para visualizar o tempo faltante das outras chapas
programadas, carregue várias vezes na tecla
: serão
mostrados em sequência e no sentido horário os tempos do
contador de minutos e de todas as chapas programadas, a
partir da anterior esquerda.
Modificar a programação
1. Carregue várias vezes na tecla
até que seja mostrado
no display o tempo da chapa que se deseja modificar.
2. Carregue nas teclas
-
e
+
para programar o novo
tempo.
3. Carregue na tecla
para confirmar.
Para cancelar uma programação, efectue as operações
descritas acima. No ponto 2 carregue na tecla -: a
duração descerá progressivamente até desligar-se no 0. A
programação irá zerar-se e o display sairá da modalidade de
programação.
O contador de minutos
O plano de cozedura deve estar aceso.
O contador de minutos consente programar uma duração de
até 99 minutos.
1. Carregue no botão de programação
até que o
indicador do contador de minutos se acenda
.
2. Defina a duração que desejar mediante os botões
-
e
+
.
3. Carregue na tecla
para confirmar.
A contagem regressiva do timer começará imediatamente.
Depois que tiver passado o tempo tocará um sinal acústico
(por 1 minuto).
Bloqueio dos comandos
Quando um plano de cozedura estiver a funcionar, é possível
bloquear os comandos para evitar riscos de modificações
acidentais das regulações (crianças, operações de
limpeza etc.). Carregando no botão
os comandos se
bloquearão e o indicador luminoso situado acima do botão
se acenderá.
Para voltar a modificar as regulações (por. exemplo
interromper a cozedura), será necessário desbloquear os
comandos: carregue no botão
por alguns instantes;
o indicador luminoso se apagará e os comandos se
desbloquearão.
Desligar o plano de cozedura
Ao pressionar a tecla
o aparelho desliga-se, não confie
no detector de panelas.
Se os comandos do aparelhagem estiverem bloqueados,
continuarão bloqueados mesmo depois de ter acendido
novamente o plano de cozedura. Para poder acender
novamente o plano, será necessário primeiro desbloquear os
comandos.
Modo “demo”
É possível programar um modo demo no qual o painel de
comandos funciona normalmente (inclusos os comandos
relativos à programação), mas os elementos aquecedores
não se acendem. Para activar o modo “demo” o plano deve
estar aceso e todas as chapas devem estar apagadas:
• pressionar e manter pressionados contemporaneamente
os botões
+
e
-
por 6 segundos. Quando vencer o
tempo de 6 segundos o indicador ON/OFF e o indicador
de BLOQUEIO DOS COMANDOS irão piscar por um
segundo. Soltar os botões
+
e
-
e carregar no botão
;
• o display indicará as escritas DE e MO e o plano irá
desligar-se;
• no próximo acendimento, o plano estará no modo “demo”.
Para sair desta modalidade, seguir o procedimento
descrito acima. O display indicará as escritas DE e OF e o
plano irá desligar-se. No próximo acendimento funcionará
normalmente.
38
PT
Conselhos práticos para utilizar esta
aparelhagem
!
Utilize um recipiente cujo material de fabricação
seja compatível com o princípio da indução (material
ferromagnético). É recomendado o emprego de panelas
de: ferro gusa, aço esmaltado ou inoxidável especial para
indução. Para certificar-se da compatibilidade de um
recipiente é suficiente fazer um teste com um íman.
*
MATERIAL ADEQUADO
MATERIAL NÌO ADEQUADO
Cobre,
Alumínio, Vidro, Terracota,
Cerâmica, Inox não magnético
Ferro gusa
A o esmaltado
Inox especial
Para obter as melhores performances do plano de cozedura:
• Empregue panelas com fundo chato e elevada espessura,
para ter a certeza que haverá uma perfeita aderência à
zona de aquecimento.
• Empregue panelas com diâmetro suficiente para cobrir
inteiramente a zona de aquecimento, de maneira que se
aproveite inteiramente o calor disponível.
• Certifique-se que o fundo das panelas esteja sempre
perfeitamente enxuto e limpo, para assegurar uma
aderência certa e uma longa durabilidade não somente
das zonas de cozedura, mas também das próprias
panelas.
• Evite utilizar as mesmas panelas que emprega nos
queimadores a gás: a concentração de calor nos
queimadores a gás poderá deformar o fundo das panelas,
que desta maneira perderá aderência.
Dispositivos de segurança
Detecção de recipientes
Cada uma das zonas de cozedura é equipada com um
dispositivo de detecção de panela. A chapa emite calor
unicamente se houver uma panela de medidas adequadas
na respectiva zona de cozedura. O indicador a piscar pode
indicar:
• uma panela incompatível
• uma panela de diâmetro insuficiente
• que a panela está levantada
Aquecimento excessivo
No caso de superaquecimento dos componentes
electrónicos, o plano de cozedura desliga-se
automaticamente e no display aparece
F
seguido por um
número intermitente. Esta mensagem desaparece e o plano
volta a ser utilizável mal a temperatura desceu a um nível
aceitável.
Interruptor de segurança
O aparelho é dotado de um interruptor de segurança que
desliga as zonas de cozedura automaticamente quando é
alcançado um tempo máximo de utilização a um determinado
nível de potência. Durante uma interrupção de segurança, o
display indicará “0”.
Exemplo: a chapa posterior direita está programada no 5,
enquanto a chapa anterior esquerda no 2. A posterior direita
irá desligar-se após 5 horas de funcionamento, a anterior
esquerda após 8 horas.
Nível de potência
1
2
3
4
5
6
7
8
9
Limitação da duração de functionamento em horas
9
8
7
6
5
4
3
2
1
Sinal acústico
Algumas anomalias, nomeadamente:
• um objecto (panela, talher etc.) foi deixado mais de 10
segundos na área de comandos;
• um derramamento na área dos comandos,
• uma pressão exercida por muito tempo em um botão,
podem provocar uma sinalização acústica. Resolva a
causa do mau funcionamento para o sinal sonoro deixar
de tocar. Se a causa da anomalia não for removida, o
sinal acústico persistirá e o plano irá desligar-se.
39
PT
Conselhos práticos para a cozedura
ª
Cozedura à pressão
Panela de pressão
Frituras
Assado
Ebulição
Cozedura em
fogo altíssimo
Cozedura
em fogo alto
Cozedura em fogo médio
Cozedura em fogo
brando
Cozedura em
fogo muito
brando
• • ¶
Crêpe
Cozedura em fogo alto e doiramento
(Assados, Bifes, Escalopes, Filés de peixe,
Ovos fritos)
¶ §
Adensamento rápido (molhos líquidos)
Água fervente (Massas, Arroz, Verduras)
Leite
§ S
Adensamento lento (molhos consistentes)
S ¢
Cozedura em banho-maria
Cozedura Panela de pressão após o síbilo
¢ £ ™
Cozedura em fogo brando
(estufados)
Aquecimento dos alimentos
™ ¡
Caldo de chocolate
Manter o alimento quente
40
PT
Precauções e conselhos
!
Este aparelho foi projectado e fabricado em
conformidade com as normas internacionais de
segurança. Estas advertências são fornecidas por
razões de segurança e devem ser lidas com atenção.
Este aparelho é em conformidade com as
seguintes Directivas da Comunidade Europeia:
-2006/95/CEE de 12.12.06 (Baixa Tensão) e
posteriores modificações
- 2004/108/CEE de 15/12/04 (Compatibilidade
Electromagnética) e posteriores modificações
- 93/68/CEE de 22/07/93 e posteriores modificações.
- 1275/2008 stand-by/off mode.
Segurança geral
!
Controlar que a tomada de ar através da grelha do
ventilador não esteja obstruída. O plano de encaixar,
de facto, necessita de uma correcta ventilação para o
arrefecimento dos componentes electrónicos.
!
É desaconselhável instalar um plano de cozedura
de indução em cima de uma geladeira sob uma
banca (calor) ou em cima de uma máquina de lavar
(vibrações). O espaço necessário para a ventilação
dos elementos electrónicos seria insuficiente.
• Este aparelho foi concebido para utilização de tipo
não profissional no âmbito de moradas.
• Este aparelho não deve ser instalado ao ar livre,
mesmo num sítio protegido, porque é muito
perigoso deixá-lo exposto a chuva e temporais.
• Não toque na máquina se estiver descalço, ou se as
suas mãos ou pés estiverem molhados ou húmidos.
• Este aparelho deve ser empregado para cozer
alimentos, somente por pessoas adultas e segundo
as instruções apresentadas neste folheto. Não
utilize o plano como superfície de apoio ou como
tábua de cortar.
• A placa de vitrocerâmica é resistente às batidas
mecânicas, entretanto pode rachar-se (ou
eventualmente partir-se) se for batida com um
objecto pontiagudo, como um utensílio. Nestes
casos, desligue imediatamente o aparelho da rede
de alimentação e contacte a assistência técnica.
• Evite que o cabo de alimentação de outros
electrodomésticos encoste-se em partes quentes do
plano de cozedura.
• Não se esqueça que a temperatura das zonas de
cozedura permanece muito alta pelo menos trinta
minutos depois de apagadas. O calor resíduo é
sinalizado também por um indicador (
veja Início e
utilização
).
• Mantenha a devida distância da placa quaisquer
objectos que podem se derreter, por exemplo,
objectos de plástico, de alumínio ou produtos com
um alto conteúdo de açúcar. Preste muita atenção
com as embalagens e as películas de plástico ou
alumínio: se deixá-los sobre as superfícies enquanto
ainda estiverem quentes ou mornas, podem causar
um dano grave à placa.
• Certifique-se que as pegas das panelas fiquem
sempre viradas para o lado interno do plano de
cozedura para evitar batidas acidentais.
• Não puxe pelo cabo para desligar a ficha da
tomada eléctrica, pegue pela ficha.
• Não realize limpeza nem manutenção sem antes ter
desligado a ficha da rede eléctrica.
• Não é previsto que este aparelho seja utilizado
por pessoas (incluso crianças) com reduzidas
capacidades físicas, sensoriais ou mentais,
por pessoas inexperientes ou que não tenham
familiaridade com o produto, a não ser que seja
vigiadas por uma pessoa responsável pela sua
segurança ou que tenham recebido instruções
preliminares sobre o uso do aparelho.
• Advertência para os portadores de pacemaker ou
outros dispositivos médicos implantáveis activos:
O plano de cozedura é conforme a todas as
normativas em vigor em matéria de interferências
electromagnéticas.
Este produto responde portanto perfeitamente a
todos os requisitos de lei (directivas 89/336/CEE).
Foi projectado de modo que não crie interferências
a outras aparelhagens eléctricas utilizadas, desde
que as mesmas também sejam conformes às
directivas acima citadas.
O plano de cozedura por indução gera campos
electromagnéticos de curto alcance.
Para evitar qualquer risco de interferências entre
o plano de cozedura e o pacemaker, este último
deverá ser realizado em conformidade com as
normativas em vigor.
Em relação a isto, podemos garantir unicamente a
conformidade do nosso produto. Para informações
sobre a conformidade ou eventuais problemas de
incompatibilidade, contacte o seu médico ou o
fabricante do pacemaker.
• Não permita que as crianças brinquem com o
aparelho.
• Não apoie objectos metálicos (facas, colheres,
tampas, etc.) sobre o plano porque podem ficar
quentes.
•
O aparelho não é destinado a ser colocado em
funcionamento por meio de um temporizador
externo ou por um sistema de comando à
distância separado.
Eliminação
• Eliminação do material de embalagem: obedeça
as regras locais, de maneira que as embalagens
possam ser reutilizadas.
• A directiva Europeia 2002/96/CE relativa aos
resíduos de equipamentos eléctricos e electrónicos
(REEE) prevê que os electrodomésticos não devem
ser eliminados no normal fluxo dos resíduos sólidos
urbanos. Os aparelhos não mais utilizados devem
ser recolhidos separadamente para optimizar a taxa
de recuperação e reciclagem dos materiais que os
compõem e impedir potenciais danos à saúde e
ao meio ambiente. O símbolo da lixeira cancelada
está indicado em todos os produtos para lembrar o
dever de colecta selectiva.
Para maiores informações sobre a correcta
eliminação dos electrodomésticos, os proprietários
poderão contactar o serviço de colecta público ou
os revendedores.

