Hotpoint-Ariston KIC 631 T B EU – page 4
Manual for Hotpoint-Ariston KIC 631 T B EU
61
NL
Voorzorgsmaatregelen
en advies
!
Dit apparaat is ontwikkeld en gefabriceerd volgens de
geldende internationale veiligheidsvoorschriften. Deze
aanwijzingen zijn geschreven voor uw veiligheid en u dient
ze derhalve goed door te nemen.
Dit apparaat voldoet aan de volgende EU
Richtlijnen:
- 2006/95/EEG van 12/12/06 (Laagspanning) en
daaropvolgende wijzigingen
- 2004/108/EEG van 15/12/04 (Elektromagnetische
Compatibiliteit) en daaropvolgende wijzigingen
- 93/68/EEG van 22/07/93 en daaropvolgende wijzigingen.
- 1275/2008 stand-by/off mode.
Algemene veiligheidsmaatregelen
!
Controleer dat de luchttoevoeropening van het rooster
van de ventilator niet verstopt is. De inbouwkookplaat
moet voorzien zijn van een goede ventilatie voor het
afkoelen van de elektronische componenten.
!
Het is niet aan te raden de inductiekookplaat boven een
koelkast te plaatsen (hitte) of boven een wasautomaat
(trillingen). Er zou geen voldoende ruimte zijn voor de
ventilatie van de elektronische elementen.
• Dit apparaat is vervaardigd voor niet-professioneel
gebruik binnenshuis.
• Het apparaat dient niet buitenshuis te worden geplaatst,
ook niet in overdekte toestand. Het is erg gevaarlijk als
het in aanraking komt met regen of onweer.
• Raak het apparaat niet aan als u blootsvoets bent of met
natte of vochtige handen of voeten.
• Het apparaat dient om gerechten te koken. Het mag
uitsluitend door volwassenen worden gebruikt en alleen
volgens de instructies die beschreven staan in deze
handleiding. Gebruik het kookvlak niet om voorwerpen
op te plaatsen en ook niet als snijplank.
• Het glaskeramische kookvlak is bestand tegen
mechanische stoten. Het kan echter worden
beschadigd (of barsten) als het wordt geraakt door
een puntig object, bijvoorbeeld door gereedschap. Als
dit gebeurt moet u onmiddellijk het apparaat afsluiten
van de elektrische stroom en contact opnemen met de
Technische Dienst.
• Voorkom dat elektrische snoeren van andere kleine
keukenapparaten op warme delen van de kookplaat
terechtkomen.
• Vergeet niet dat de temperatuur in het kookgedeelte
aanzienlijk hoog blijft tot minstens 30 minuten nadat u
het heeft uitgeschakeld. De resterende warmte wordt
aangeduid door een aanwijzer (
zie Starten en gebruik
).
• Houd voorwerpen die kunnen smelten op afstand
van de kookplaat, zoals bv. plastic, aluminium of
suikerhoudende etenswaren. Let vooral op plastic
of aluminium verpakkingen en folie: als u ze op het
nog warme of lauwe kookvlak neerlegt, kunt u zware
schade aanrichten.
• Richt de handvaten van de pannen altijd naar de
binnenzijde van de kookplaat zodat u er niet per
ongeluk tegenaan stoot.
• Trek nooit de stekker aan het snoer uit het
stopcontact, maar pak altijd de stekker direct beet.
• Maak het apparaat niet schoon of voer geen
onderhoud uit als de stekker nog in het stopcontact
zit.
• Dit apparaat mag niet worden gebruikt door
personen (kinderen inbegrepen) met een beperkt
lichamelijk, sensorieel of geestelijk vermogen of
personen die niet de nodige ervaring of kennis
hebben met het apparaat, tenzij onder toezicht
van een persoon die verantwoordelijk is voor
hun veiligheid of nadat hun is uitgelegd hoe het
apparaat werkt.
• Mededeling voor dragers van een pacemaker of een
ander actief ingeplant medisch apparaat:
De kookplaat voldoet aan alle geldende normen
betreffende elektromagnetische storing.
Dit product is aldus in volkomen overeenstemming
met de voorschriften van de wet (richtlijn 89/336/
EEG). Het ontwerp is zodanig gepland dat het
geen storingen veroorzaakt bij andere elektrische
apparaten die worden gebruikt, mits ook dezen
voldoen aan bovengenoemde normen.
De inductieplaat creëert elektromagnetische velden
op korte afstand.
Teneinde ieder risico van storing tussen de
kookplaat en de pacemaker te vermijden moet deze
laatste ook voldoen aan de geldende normen.
Wat dat betreft kunnen wij slechts de conformiteit
van ons eigen product garanderen. Voor informatie
omtrent conformiteit of eventuele problemen
verzoeken wij u zich tot uw behandelende arts te
wenden of tot de fabrikant van de pacemaker.
• Voorkom dat kinderen met het apparaat spelen.
• Plaats geen metalen voorwerpen (messen, lepels,
deksels enz.) op de kookplaat aangezien zij heet
kunnen worden..
•
Het apparaat is niet geschikt om te worden
ingeschakeld m.b.v. een externe timer ofwel door
een gescheiden afstandsbedieningssysteem.
Afvalverwijdering
• Het verwijderen van het verpakkingsmateriaal: houdt
u aan de plaatselijke normen zodat het materiaal
hergebruikt kan worden.
• De Europese richtlijn 2002/96/EG, betreffende
afgedankte elektrische en elektronische apparatuur
(AEEA), voorziet dat huishoudelijke apparatuur niet
met het normale afval mag worden meegegeven. De
verwijderde apparaten moeten apart worden opgehaald
om het terugwinnen en recyclen van de materialen
waaruit ze bestaan te optimaliseren en te voorkomen
dat er eventuele schade voortvloeit voor de gezondheid
en het milieu. Het symbool van de afvalemmer met een
kruis staat op alle producten om de consument eraan te
herinneren dat dit gescheiden afval is.
Om meer informatie te verkrijgen betreffende een juiste
verwijdering van huishoudapparaten kan de consument
zich richten tot de gemeentelijke reinigingsdienst of de
verkopers.
62
NL
Onderhoud en verzorging
De elektrische stroom afsluiten
Sluit altijd eerst de stroom af voordat u tot enige
handeling overgaat.
Reinigen van het apparaat
!
Vermijd het gebruik van schuurmiddelen of
bijtende middelen, zoals sprays voor barbecues
en ovens, vlekkenmiddelen, roestverwijderende
producten, schoonmaakmiddelen in poedervorm
of schuursponzen: deze kunnen het oppervlak
onherstelbaar krassen.
!
Gebruik nooit stoom- of hogedrukreinigers voor het
reinigen van het apparaat.
• Voor normaal onderhoud moet u de kookplaat
met een vochtige spons reinigen en afdrogen met
keukenpapier.
• Als de plaat erg vuil is moet hij worden
schoongemaakt met een speciaal middel voor
keramiekplaten. Daarna moet u hem afspoelen en
afdrogen.
• Voor het verwijderen van hardnekkig vuil kunt u een
hiervoor bestemd schrapertje gebruiken. Doe dit zo
snel mogelijk voordat het apparaat afkoelt, zodat de
etensresten niet aankoeken. Uitstekende resultaten
bereikt u ook met een speciaal voor keramiekplaten
vervaardigd roestvrij staal sponsje dat u in een
sopje doopt.
• Als er op de kookplaat onverhoopt voorwerpen of
plastic materiaal of suiker zouden smelten, moet
u ze onmiddellijk met het schrapertje verwijderen
zolang het oppervlak nog warm is.
• Als de plaat is schoongemaakt, kan hij worden
behandeld met een speciaal product voor
onderhoud en bescherming: het onzichtbare laagje
dat dit product achterlaat beschermt de plaat in
het geval er iets overkookt. Dit soort handelingen
moeten worden uitgevoerd als de plaat lauw of koud
is.
• Vergeet niet de kookplaat altijd met schoon
water af te spoelen en goed af te drogen: restjes
schoonmaakmiddel kunnen de volgende keer dat u
kookt aankoeken.
Raamwerk van roestvrij staal
(alleen bij modellen met
lijst)
Roestvrij staal kan vlekken gaan vertonen als er voor
langere tijd kalkhoudend water op blijft liggen of als
gevolg van gebruik van schoonmaakmiddelen die
fosfor bevatten.
Spoel en droog de kookplaat altijd goed af nadat u
hem heeft schoongemaakt. Droog gemorst water altijd
meteen goed af.
!
Enkele kookplaten hebben een lijst van aluminium
die lijkt op roestvrij staal. Gebruik voor het reinigen en
ontvetten geen producten die niet geschikt zijn voor
aluminium.
De kookplaat verwijderen
Als u de kookplaat uit elkaar moet halen:
1. verwijder de schroeven die de centreringsklemmen
aan de zijkant vasthouden;
2. maak de schroeven van de bevestigingshaken op
de hoeken los;
3. haal de kookplaat uit het meubel.
!
U mag nooit aan het interne systeem sleutelen om
een reparatie proberen uit te voeren. Als er een storing
is moet u contact opnemen met de Service Dienst.
Technische beschrijving van de modellen
Het inductiesysteem is het snelste kooksysteem dat er bestaat. In tegenstelling tot de traditionele kookplaten wordt
niet het kookgedeelte verwarmd: de warmte wordt direct binnenin de pan gecreëerd, die daarom noodzakelijkerwijs
een bodem van ferromagnetisch materiaal moet bezitten.
Kookplaten
Kookgedeeltes
Linksachter
Rechtsachter
Linksvoor
Totaal vermogen
KIC 631 C
KIC 631 T B
KIC 631 T X
KIC 631 T C
Vermogen (in W)
I 1400
I 3000 - B 4000
I 2200
7600
KIC 630 B
Vermogen (in W)
I 1400
I 3000
I 2200
6600
KIC 633 T Z
KIC 633 T X
Vermogen (in W)
I 1400 - B 2000* - 600 als Linksvoor *
I 3000 - B 4000
I 2200 - B 3000* - 1600 als Linksachter*
7600
Legenda:
I = kookgedeelte met eenvoudige inductie
B = booster: de kookzone kan over een extra vermogen van 3000 W beschikken
* = het maximale vermogen wordt beperkt terwijl de booster in het kookgedeelte erachter actief is (zie
Starten en
gebruik
).
63
PL
Instalacja
!
Nale
ż
y zachowa
ć
niniejsz
ą
instrukcj
ę
, aby móc z niej
skorzysta
ć
w ka
ż
dej chwili. W razie sprzeda
ż
y, odst
ą
pienia
lub przeniesienia urz
ą
dzenia, nale
ż
y si
ę
upewni
ć
, czy
instrukcja zosta
ł
a przekazana wraz z nim, aby nowy
w
ł
a
ś
ciciel p
ł
yty grzejnej móg
ł
si
ę
zapozna
ć
z jej dzia
ł
aniem i z
w
ł
a
ś
ciwymi ostrze
ż
eniami.
!
Nale
ż
y uwa
ż
nie przeczyta
ć
instrukcj
ę
: zawiera ona
wa
ż
ne informacje dotycz
ą
ce instalacji, u
ż
ytkowania i
bezpiecze
ń
stwa.
Ustawienie
!
Elementy opakowania nie sa zabawkami dla dzieci i nalezy
je usunac zgodnie z normami dotyczacymi selektywnego
gromadzenia odpadów (
patrz Zalecenia i srodki ostroznosci
).
!
Instalacja powinna zosta
ć
wykonana zgodnie z niniejszymi
instrukcjami przez wykwali
fi
kowany personel. Niew
ł
a
ś
ciwa
instalacja mo
ż
e spowodowa
ć
szkody w stosunku do osób,
zwierz
ą
t lub mienia.
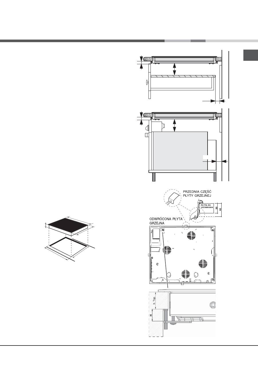
Zabudowa
Aby zapewni
ć
prawid
ł
owe dzia
ł
anie urz
ą
dzenia, mebel musi
posiada
ć
odpowiednie w
ł
a
ś
ciwo
ś
ci:
• blat musi by
ć
wykonany z materia
ł
u odpornego na ciep
ł
o,
na temperatur
ę
oko
ł
o 100°C;
• je
ś
li p
ł
yta grzejna ma by
ć
zainstalowana na piecu, musi on
posiada
ć
system ch
ł
odzenia z wentylacj
ą
wymuszon
ą
;
• nale
ż
y unika
ć
instalowania p
ł
yty grzejnej na zmywarce: w
przypadku takiej konieczno
ś
ci, umie
ś
ci
ć
pomi
ę
dzy dwoma
urz
ą
dzeniami szczelny element oddzielaj
ą
cy;
• w zaleznosci od plyty grzejnej, jaka ma byc zainstalowana
(
patrz rysunki
), wewnetrzna czesc mebla powinna miec
nastepujace wymiary:
560 +/- 1
490 +/- 1
53
590
520
Obieg powietrza
Aby umo
ż
liwi
ć
w
ł
a
ś
ciwy obieg powietrza i aby unikn
ąć
przegrzania powierzchni wokó
ł
urz
ą
dzenia, p
ł
yta grzejna powinna
by
ć
umieszczona:
• w
odleg
ł
o
ś
ci co najmniej 40 mm od tylnej
ś
ciany lub od
ka
ż
dej innej pionowej powierzchni;
• w taki sposób, aby zachowa
ć
odleg
ł
o
ść
minimum 20 mm
pomi
ę
dzy przestrzeni
ą
do zabudowy a znajduj
ą
cym si
ę
pod ni
ą
meblem.
• Meble
znajduj
ą
ce si
ę
obok, a których wysoko
ść
przekracza
wysoko
ść
p
ł
yty roboczej, powinny zosta
ć
odsuni
ę
te przynajmniej na
600 mm od kraw
ę
dzi p
ł
yty roboczej.
5 mm
min. 20 mm
min. 20 mm
min. 40 mm
SZUFLADY
5 mm
min. 40 mm
PIEKARNK
WENTYLATOROWY
64
PL
Mocowanie
Urz
ą
dzenie powinno by
ć
zainstalowane na idealnie
p
ł
askim blacie. Ewentualne odkszta
ł
cenia,
spowodowane nieprawid
ł
owym zamocowaniem, mog
ą
by
ć
przyczyn
ą
zmiany w
ł
a
ś
ciwo
ś
ci urz
ą
dzenia i, w
konsekwencji, wp
ł
ywaj
ą
c niekorzystnie na jego prac
ę
.
D
ł
ugo
ść
ś
ruby regulacyjnej uchwytów mocuj
ą
cych
nale
ż
y ustawi
ć
przed ich zamontowaniem, na
podstawie grubo
ś
ci blatu:
• grubo
ść
30 mm:
ś
ruba 23 mm;
• grubo
ść
40 mm:
ś
ruba 13 mm.
W celu zamocowania urz
ą
dzenia nale
ż
y wykona
ć
nast
ę
puj
ą
ce czynno
ś
ci:
1. Przy pomocy krótkich
ś
rub bez
ł
ba przykr
ę
ci
ć
4 spr
ęż
yny
centruj
ą
ce do otworów umieszczonych w
ś
rodkowej cz
ęś
ci
ka
ż
dego boku p
ł
yty;
2. umie
ś
ci
ć
p
ł
yt
ę
grzejn
ą
w meblu, wy
ś
rodkowa
ć
j
ą
i
wywrze
ć
odpowiedni nacisk na ca
ł
y jej obwód, tak aby p
ł
yta
dobrze przylega
ł
a do blatu.
3. w przypadku p
ł
yt z pro
fi
lami bocznymi: po zainstalowaniu
p
ł
yty grzejnej w meblu umie
ś
ci
ć
4 uchwyty mocuj
ą
ce
(ka
ż
dy ze sworzniem) na dolnym obwodzie p
ł
yty grzejnej
i przykr
ę
ci
ć
je d
ł
ugimi
ś
rubami z
ł
bem w taki sposób, aby
szk
ł
o przylega
ł
o do blatu.
!
Ś
ruby spr
ęż
yn centruj
ą
cych musz
ą
pozosta
ć
dost
ę
pne.
!
Zgodnie z normami bezpiecze
ń
stwa, po zabudowaniu
urz
ą
dzenia nie powinien by
ć
mo
ż
liwy kontakt z jego
elementami elektrycznymi.
!
Wszystkie cz
ęś
ci, które stanowi
ą
zabezpieczenie,
powinny by
ć
zamocowane w taki sposób, aby nie
mo
ż
na by
ł
o ich zdj
ąć
bez u
ż
ycia narz
ę
dzia.
Pod
łą
czenie do sieci elektrycznej
!
Pod
łą
czenie do sieci elektrycznej p
ł
yty grzejnej
oraz ewentualnego pieca do zabudowy powinno
by
ć
wykonane oddzielnie, zarówno ze wzgl
ę
dów
bezpiecze
ń
stwa elektrycznego, jak i dla u
ł
atwienia
czynno
ś
ci zwi
ą
zanych z wyjmowaniem pieca.
Pod
łą
czenie jednofazowe
P
ł
yta jest wyposa
ż
ona w kabel zasilaj
ą
cy przygotowany do
pod
łą
czenia jednofazowego. Nale
ż
y po
łą
czy
ć
przewody
zgodnie z tabel
ą
i z rysunkami umieszczonymi poni
ż
ej:
Typowe napięcie i
częstotliwość sieci
Kabel elektryczny
Połączenie przewodów
220-240V 1+N ~
50 Hz
: żółty/zielony;
N
:
2 przewody niebieskie razem
L
:
brązowy razem z czarnym
Inne typy pod
łą
cze
ń
Je
ś
li instalacja elektryczna posiada jedn
ą
z nast
ę
puj
ą
cych
cech:
Typowe napi
ę
cie i cz
ę
stotliwo
ść
sieci
• 400V - 2+N ~ 50 Hz
• 220-240V 3 ~ 50 Hz
• 400V 3 - N ~ 50 Hz
• 400V - 2+2N ~ 50 Hz
Oddzieli
ć
kable i po
łą
czy
ć
przewody zgodnie z tabel
ą
i
z rysunkami umieszczonymi poni
ż
ej:
Typowe napięcie i
częstotliwość sieci
Kabel elektryczny
Połączenie przewodów
400V - 2+N ~
50 Hz
220-240V 3 ~
50 Hz
400V 3-N ~
50 Hz
: żółty/zielony;
N
:
2 przewody
niebieskie razem
L1
:
czarny
L2
:
brązowy
400V - 2+2N ~
50 Hz
: żółty/zielony;
N1
: niebieski
N2
: niebieski
L1
:
czarny
L2
:
brązowy
Pod
łą
czenie kabla zasilaj
ą
cego do sieci
W przypadku bezpo
ś
redniego pod
łą
czenia do sieci
pomi
ę
dzy urz
ą
dzeniem a sieci
ą
, nale
ż
y zainstalowa
ć
wy
łą
cznik wielobiegunowy z minimalnym otwarciem
mi
ę
dzy stykami wynosz
ą
cym 3 mm.
!
Instalator odpowiada za prawid
ł
owe wykonanie
pod
łą
czenia elektrycznego i za zachowanie norm
bezpiecze
ń
stwa.
Przed pod
łą
czeniem urz
ą
dzenia, nale
ż
y si
ę
upewni
ć
czy:
• gniazdko posiada uziemienie i jest zgodne z
obowiazujacymi przepisami;
• gniazdko jest w stanie wytrzymac maksymalne
obciazenie mocy urzadzenia wskazane na tabliczce
znamionowej plyty;
• napi
ę
cie zasilania odpowiada warto
ś
ciom podanym na
tabliczce znamionowej;
• gniazdko jest kompatybilne z wtyczk
ą
urz
ą
dzenia.
Je
ś
li gniazdko nie jest kompatybilne, nale
ż
y wymieni
ć
gniazdko lub wtyczk
ę
; nie stosowa
ć
przed
ł
u
ż
aczy ani
rozga
łę
ziaczy.
!
Po zainstalowaniu urz
ą
dzenia kabel elektryczny i
gniazdko pr
ą
du powinny by
ć
ł
atwo dost
ę
pne.
!
Kabel nie powinien by
ć
pogi
ę
ty ani przygnieciony.
!
Kabel elektryczny musi byc okresowo sprawdzany i
wymieniany wylacznie przez autoryzowany personel
techniczny.
! W przypadku nieprzestrzegania tych zasad,
producent nie ponosi
ż
adnej odpowiedzialno
ś
ci.
!
Nie usuwa
ć
ani zamienia
ć
przewodu zasilaj
ą
cego z
jakiego kolwiek powodu. Usuni
ę
cie lub wymiana b
ę
dzie
powodem utracenia gwarancji i znaku CE. INDESIT
zwolniony jest z jakiejkolwiek odpowiedzialno
ś
ci
za wypadki lub szkody wynikaj
ą
ce z usuni
ę
cia lub
wymiany oryginalnego przewodu zasilaj
ą
cego.
Dozwolona jest tylko wymiana przewodu na oryginalny,
a wymiany ma dokona
ć
upowa
ż
niony personel z
INDESIT.
65
PL
Uruchomienie i
u
ż
ytkowanie
!
Klej stosowany do uszczelek pozostawia na szkle t
ł
uste
plamy. Przed przyst
ą
pieniem do eksploatacji urz
ą
dzenia
zaleca si
ę
usun
ąć
te plamy przy pomocy odpowiedniego
produktu nieposiadaj
ą
cego w
ł
a
ś
ciwo
ś
ci
ś
ciernych.
Podczas pierwszych godzin dzia
ł
ania urz
ą
dzenia mo
ż
e by
ć
wyczuwalny zapach gumy, który jednak szybko zanika.
!
Kiedy p
ł
yta grzejna zostanie pod
łą
czona do zasilania
elektrycznego, po kilku sekundach w
łą
cza si
ę
krótki sygna
ł
d
ź
wi
ę
kowy. Dopiero po tym sygnale mo
ż
na w
łą
czy
ć
p
ł
yt
ę
grzejn
ą
.
Ha
ł
a
ś
liwo
ść
podczas normalnej pracy p
ł
yty grzejnej:
•
Szum:
Spowodowany jest wibracj
ą
metalowych elementów
z jakich zbudowany jest induktor i garnek, wytwarza si
ę
wi
ę
c pole magnetyczne niezb
ę
dne do rozgrzania granka;
wzrasta stopniowo i proprcjonalnie do wzrostu poziomu
mocy induktora.
•
Lekkie gwizdanie:
Zdarza si
ę
je
ś
li na pole grzejnym stoi
pusty garnek; gwizdanie zniknie je
ś
li do garnka zostanie
dodana potrawa lub woda.
•
Trzeszczenie:
Jest to ha
ł
as wytworzony wibracjami
surowcem dna garnka przez które przechodz
ą
pr
ą
dy
paso
ż
ytnicze w wyniku pola magnetycznego (indukcja):
mo
ż
e by
ś
mniej wi
ę
cej nat
ęż
ony w zale
ż
no
ś
ci od tego z
jakiego surowca dno jest wykonane i zmniejsza si
ę
je
ś
li
wymiary garnka s
ą
wi
ę
ksze.
•
Intensywne gwizdanie:
Ma miejsce, kiedy pracuj
ą
jednocze
ś
nie dwa induktory na tym samym pionie przy
maksymalnej mocy i/lub gdy na tym wi
ę
kszym w
łą
czona
zosta
ł
a funkcja booster a drugi jest autoregulowany. Ha
ł
as
zmniejsza si
ę
jak tylko obni
ż
y si
ę
poziom mocy induktora
autoreguluj
ą
cego si
ę
; zwykle zdarza si
ę
kiedy dno garnka
wykonane jest z ró
ż
nych surowców.
•
Ha
ł
a
ś
liwo
ść
wentylatora:
Maj
ą
c na celu prawid
ł
owe
dzia
ł
anie p
ł
yty i aby zabezpieczy
ć
cz
ęś
ci elektroniczne
przed ewentualnym rozgrzaniem nale
ż
y w
łą
czy
ć
wentylator. Wentylator pracuje przy maksymalnej
mocy je
ś
li induktor ustawiony jest na maksymalnym
poziomie mocy lub kiedy w
łą
czona jest funkcja booster;
we wszystkich innych przypadkach pracuje przy mocy
po
ś
redniej w zale
ż
no
ś
ci od odczytanej temperatury.
Mo
ż
liwe jest wi
ę
c,
ż
e wentylator b
ę
dzie nadal pracowa
ł
nawet po wy
łą
czeniu p
ł
yty gdy odczytywa
ł
b
ę
dzie wysok
ą
temperatur
ę
.
Przedstawione typy ha
ł
asu spowodowane s
ą
technologi
ą
indukcyjno
ś
ci i nie zawsze s
ą
oznak
ą
wadliwej dzia
ł
alno
ś
ci.
!
Dluzsze nacisniecie przycisków
-
i
+
umozliwia szybki
wybór poziomów mocy i minut regulatora czasowego.
W
łą
czanie p
ł
yty grzejnej
P
ł
yt
ę
grzejn
ą
w
łą
cza si
ę
trzymaj
ą
c wci
ś
ni
ę
ty przycisk
przez oko
ł
o sekund
ę
.
W
łą
czanie pól grzejnych
Ka
ż
de pole grzejne jest aktywowane za pomoc
ą
przycisku
wyboru
oraz regulatora mocy sk
ł
adaj
ą
cego si
ę
z
podwójnego przycisku
-
i
+
.
• Aby
w
łą
czy
ć
pole grzejne, nale
ż
y nacisn
ąć
jego przycisk
sterowania i ustawi
ć
żą
dan
ą
moc za pomoc
ą
przycisków
-
i
+
.
Funkcja booster*
Aby przy
ś
pieszy
ć
czas podgrzewania, w niektórych strefach
gotowania nale
ż
y w
łą
czy
ć
funkcj
ę
booster przyci
ś
ni
ę
ciem
przycisku
Booster
. Za
ś
wieci si
ę
wska
ź
nik nad przyciskiem. Ta
funkcja dope
ł
nia moc z 2000W do 3000W w zale
ż
no
ś
ci od
wielko
ś
ci strefy gotowania.
Booster przerywa si
ę
automatycznie po 4 minutach. Dopóki
booster jednej ze stref gotowania jest aktywny, wówczas
w
ł
a
ś
ciwa strefa gotowania przednia lub tylnia b
ę
dzie mia
ł
a
moc ograniczon
ą
(np. Je
ś
li booster p
ł
yty tylniej lewej jest
aktywny, obni
ż
a si
ę
moc p
ł
yty przedniej lewej). Dodatkowe
informacje znajduj
ą
si
ę
w Opisie technicznym modeli.
Wy
łą
czanie pól grzejnych
Aby wy
łą
czy
ć
pole grzejne, nale
ż
y je wybra
ć
za pomoc
ą
jego
przycisku wyboru
i:
• Nacisn
ąć
przycisk
-
: moc pola grzejnego stopniowo
spada, a
ż
do jego wy
łą
czenia.
Programowanie czasu trwania gotowania
!
Mo
ż
na zaprogramowa
ć
równocze
ś
nie wszystkie pola
grzejne na czas od 1 do 99 minut.
1. Wybra
ć
pole grzejne za pomoc
ą
w
ł
a
ś
ciwego przycisku
wyboru.
2. Wyregulowac poziom mocy pola grzejnego.
3. Nacisn
ąć
przycisk programowania
. Wyregulowac
poziom mocy pola grzejnego.
4. Ustawi
ć
żą
dany czas gotowania za pomoc
ą
przycisków
-
i
+
.
*
Znajduje si
ę
tylko w niektórych modelach.
66
PL
5. Potwierdzi
ć
naciskaj
ą
c przycisk
, lub w przeciwnym
razie wybór zostanie dokonany automatycznie po up
ł
ywie 10
sekund.
Odliczanie wsteczne regulatora czasowego rozpoczyna si
ę
natychmiast. Po zako
ń
czeniu zaprogramowanego czasu
gotowania w
łą
cza si
ę
sygna
ł
d
ź
wi
ę
kowy (na 1 minut
ę
), a pole
grzejne wy
łą
cza si
ę
.
Wy
ż
ej opisan
ą
procedur
ę
nale
ż
y powtórzy
ć
dla wszystkich pól
grzejnych, które maj
ą
by
ć
zaprogramowane.
Wy
ś
wietlanie w przypadku zaprogramowania
wi
ę
kszej liczby pól
W przypadku zaprogramowania jednego pola lub ich wi
ę
kszej
liczby, na wy
ś
wietlaczu pokazany jest pozosta
ł
y czas dla
pola, którego zaprogramowany czas dzia
ł
ania ko
ń
czy si
ę
najwcze
ś
niej. Pozycja tego pola jest wskazana poprzez pulso-
wanie jego kontrolki. Kontrolki pozosta
ł
ych zaprogramowany-
ch b
ę
d
ą
ś
wieci
ł
y si
ę
.
Aby wy
ś
wietli
ć
pozosta
ł
y czas innych zaprogramowanych
pól, nale
ż
y kilkakrotnie nacisn
ąć
przycisk
: zostan
ą
wy
ś
wietlone kolejno w kierunku zgodnym z
ruchem wskazówek zegara czasy minutnika
i wszystkich zaprogramowanych pól,
poczynaj
ą
c od przedniego lewego.
Zmiana zaprogramowanych ustawie
ń
1. Kilkakrotnie nacisn
ąć
przycisk
a
ż
wy
ś
wietli si
ę
czas
pola, który ma by
ć
zmieniony.
2. Korzystaj
ą
c z przycisków
-
i
+
ustawi
ć
nowy czas.
3. Potwierdzi
ć
naciskaj
ą
c przycisk
.
Aby usunac zaprogramowane ustawienia, nalezy wykonac
wyzej opisane czynnosci. W punkcie 2 nacisnac przycisk
-
: Czas stopniowo sie zmniejsza az do wylaczenia
0. Zaprogramowane ustawienia zostaja wyzerowane i
wyswietlacz wychodzi z trybu programowania.
Minutnik
P
ł
yta grzejna musi by
ć
w
łą
czona.
Minutnik umo
ż
liwia ustawienie czasu do 99 minut.
1. Naciska
ć
przycisk programowania
a
ż
do za
ś
wiecenia
si
ę
kontrolki minutnika
.
2. Ustawi
ć
żą
dany czas gotowania za pomoc
ą
przycisków
-
i
+
.
3. Potwierdzi
ć
naciskaj
ą
c przycisk
.
Odliczanie wsteczne regulatora czasowego rozpoczyna
si
ę
natychmiast. Po up
ł
ywie ustawionego czasu w
łą
cza si
ę
sygna
ł
d
ź
wi
ę
kowy (na 1 minut
ę
).
Blokada sterowania
Kiedy p
ł
yta grzejna jest w trakcie pracy, mo
ż
na zablokowa
ć
jej sterowanie, aby unikn
ąć
niebezpiecze
ń
stwa przypadkowej
zmiany ustawie
ń
(dzieci, czynno
ś
ci konserwacyjne, itp.). Po
naci
ś
ni
ę
ciu przycisku
sterowanie zostaje zablokowane i
w
łą
cza si
ę
kontrolka umieszczona nad tym przyciskiem.
Aby przywróci
ć
mo
ż
liwo
ść
dokonywania regulacji (np.
przerwa
ć
gotowanie), nale
ż
y odblokowa
ć
sterowanie:
nacisn
ąć
na chwil
ę
przycisk
, kontrolka wy
łą
czy si
ę
, a
sterowanie zostanie odblokowane.
Wy
łą
czanie p
ł
yty grzejnej
Po naci
ś
ni
ę
ciu przycisku
wy
łą
cza urz
ą
dzenie, nie nale
ż
y
bra
ć
pod uwag
ę
wykrywacza obecno
ś
ci naczy
ń
.
Je
ś
li sterowanie zosta
ł
o zablokowane, pozostanie ono
zablokowane równie
ż
po ponownym w
łą
czeniu p
ł
yty
grzejnej. Aby móc ponownie w
łą
czy
ć
p
ł
yt
ę
, nale
ż
y najpierw
odblokowa
ć
jej sterowanie.
Tryb „demo”
Mozna ustawic tryb demonstracyjny, w którym panel
sterowania dziala w normalny sposób (w tym komendy
zwiazane z programowaniem), ale elementy grzejne nie
wlaczaja sie. Aby aktywowac tryb „demo”, plyta musi byc
wlaczona, a wszystkie pola grzejne musza byc wylaczone:
• Nacisn
ąć
i przytrzyma
ć
równocze
ś
nie naci
ś
ni
ę
te przez 6
sekund przyciski
+
i
-
. Po up
ł
ywie 6 sekund kontrolka
ON/OFF i kontrolka BLOKADY STEROWANIA pulsuj
ą
przez jedn
ą
sekund
ę
. Zwolni
ć
przyciski
+
i
-
i nacisn
ąć
przycisk
;
• na
wy
ś
wietlaczu pojawi si
ę
napis DE i MO, a p
ł
yta wy
łą
czy
si
ę
;
• po kolejnym w
łą
czeniu p
ł
yta b
ę
dzie dzia
ł
a
ć
w trybie
„demo”.
Aby wyjsc z tego trybu, nalezy wykonac wyzej opisane
czynnosci. Na wyswietlaczu pojawi sie napis DE i MO, a
plyta wylaczy sie. Po kolejnym wlaczeniu plyta bedzie dzialac
normalnie.
67
PL
Praktyczne porady dotycz
ą
ce u
ż
ytkowania
urz
ą
dzenia
!
U
ż
ywane do gotowania naczynia powinny by
ć
wykonane
z materia
ł
u nadaj
ą
cego si
ę
do stosowania na p
ł
ytach
indukcyjnych (z materia
ł
u ferromagnetycznego). Zaleca si
ę
u
ż
ywanie garnków z:
ż
eliwa, stali emaliowanej lub specjalnej
stali nierdzewnej dostosowanej do p
ł
yt indukcyjnych. Aby
upewni
ć
si
ę
, czy naczynie jest odpowiednie, wystarczy
przeprowadzi
ć
prób
ę
z magnesem.
Ponadto, aby uzyska
ć
jak najlepsze wyniki u
ż
ytkowania p
ł
yty
grzejnej:
• Stosowa
ć
garnki z p
ł
askim dnem i znacznej grubo
ś
ci, aby
mie
ć
pewno
ść
,
ż
e dok
ł
adnie przylegaj
ą
do pola grzejnego.
• Stosowa
ć
garnki o
ś
rednicy wystarczaj
ą
cej do ca
ł
kowitego
przykrycia pola grzejnego, tak aby zapewni
ć
wykorzystanie
ca
ł
ego ciep
ł
a;
• Upewni
ć
si
ę
czy dno garnka jest zawsze dok
ł
adnie
osuszone i czyste, aby zagwarantowa
ć
dok
ł
adne
przyleganie i d
ł
ugotrwa
ł
o
ść
u
ż
ytkowania zarówno pól
grzejnych, jak i garnków.
• Unika
ć
stosowania tych samych garnków co u
ż
ywane
na palnikach gazowych: skupienie ciep
ł
a w przypadku
palników gazowych mo
ż
e odkszta
ł
ci
ć
dno garnka, przez co
nie b
ę
dzie on dok
ł
adnie przylega
ć
;
Urz
ą
dzenia zabezpieczaj
ą
ce
Rozpoznawanie naczy
ń
Ka
ż
de pole grzejne posiada system rozpoznawania naczy
ń
.
Pole grzejne wydziela ciep
ł
o wy
łą
cznie, je
ś
li znajduje si
ę
na
nim garnek o dostosowanej do niego wielko
ś
ci. Pulsuj
ą
ca
kontrolka mo
ż
e wskazywa
ć
na:
• nieodpowiedni
garnek
• garnek o zbyt ma
ł
ej
ś
rednicy
• uniesienie
garnka
Przegrzanie
W przypadku przegrzania elementów elektronicznych p
ł
yta
grzejna wy
łą
cza si
ę
automatycznie, a na wy
ś
wietlaczu
pojawia si
ę
symbol
F
, po którym nast
ę
puje pulsuj
ą
ca
cyfra. Komunikat ten znika i p
ł
yta grzejna mo
ż
e by
ć
znowu
u
ż
ytkowana zaraz jak tylko temperatura spadnie do
akceptowalnego poziomu.
Wy
łą
cznik bezpiecze
ń
stwa
Urz
ą
dzenie jest wyposa
ż
one w wy
łą
cznik bezpiecze
ń
stwa,
który automatycznie wy
łą
cza pola grzejne, kiedy zostanie
osi
ą
gni
ę
ty graniczny czas ich u
ż
ytkowania na danym
poziomie mocy. W przypadku zadzia
ł
ania wy
łą
cznika
bezpiecze
ń
stwa wy
ś
wietlacz wskazuje „
0
”.
Przyklad: prawe tylne pole grzejne jest ustawione na 5,
natomiast lewe przednie pole grzejne na 2. Prawe tylne pole
wylaczy sie po 5 godzinach dzialania, lewe przednie po 8
godzinach.
Poziom mocy
1
2
3
4
5
6
7
8
9
Graniczny czas działania w godzinach
9
8
7
6
5
4
3
2
1
Sygna
ł
d
ź
wi
ę
kowy
Niektóre anomalie, takie jak:
• umieszczenie przedmiotu (garnka, sztu
ć
ca itp.) na ponad
10 sekund w stre
fi
e panelu sterowania,
• zalanie strefy panelu sterowania,
• d
ł
ugi nacisk na jaki
ś
przycisk, mog
ą
spowodowa
ć
w
łą
czenie si
ę
sygna
ł
u d
ź
wi
ę
kowego. Aby przerwa
ć
sygna
ł
d
ź
wi
ę
kowy, nale
ż
y usun
ąć
przyczyn
ę
nieprawid
ł
owo
ś
ci
dzia
ł
ania. Je
ś
li przyczyna anomalii nie zostanie usuni
ę
ta,
sygna
ł
d
ź
wi
ę
kowy pozostanie w
łą
czony a p
ł
yta wy
łą
czy
si
ę
.
68
PL
Praktyczne porady dotycz
ą
ce gotowania
ª
Gotowanie pod ciśnieniem
Garnek ciśnieniowy
Smażenie
Grilowanie
Gotowanie
Gotowanie na
dużym ogniu
Gotowanie
na dużym
ogniu
Gotowanie na średnim ogniu
Gotowanie na
wolnym ogniu
Gotowanie
na bardzo
wolnym
ogniu
• • ¶
Naleśniki
Gotowanie na dużym ogniu i przysmażanie
(Pieczenie, Befsztyki, Zrazy, Filety rybne,
Smażone jajka)
¶ §
Szybkie zagęszczenie (Płynne sosy)
Woda gorąca (Makarony, Ryż, Warzywa)
Mleko
§ S
Wolne zagęszczanie (Sosy gęste)
S ¢
Gotowanie na wodzie
Gotowanie pod ciśnieniem po gwizdku
¢ £ ™
Gotowanie na wolnym
ogniu (mięso duszone)
Podgrzewanie potraw
™ ¡
Czekolada rozpuszczona
Utrzymywanie potraw w temperaturze
69
PL
Zalecenia i
ś
rodki ostro
ż
no
ś
ci
!
Urz
ą
dzenie zosta
ł
o zaprojektowane i wyprodukowane
zgodnie z mi
ę
dzynarodowymi normami
bezpiecze
ń
stwa. Poni
ż
sze ostrze
ż
enia dotycz
ą
zasad
bezpiecze
ń
stwa i nale
ż
y je uwa
ż
nie przeczyta
ć
.
Niniejsze urz
ą
dzenie jest zgodne z
nast
ę
puj
ą
cymi dyrektywami unijnymi:
-2006/95/EWG z 12/12/06 (Niskie napiecie) wraz z
pózniejszymi zmianami
- 2004/108/EWG z 15/12/04 (Kompatybilno
ść
elektromagnetyczna) wraz z pó
ź
niejszymi zmianami
- 93/68/EWG z 22/07/93 wraz z pó
ź
niejszymi zmianami.
- 1275/2008 stand-by/off mode.
Ogólne zasady bezpiecze
ń
stwa
!
Sprawdza
ć
, czy wlot powietrza poprzez kratk
ę
wentylatora nigdy nie jest zatkany. Zabudowana
p
ł
yta grzejna wymaga dobrego obiegu powietrza dla
zapewnienia ch
ł
odzenia elementów elektronicznych.
!
Odradza si
ę
instalacj
ę
indukcyjnej p
ł
yty grzejnej na
lodówce podblatowej (ciep
ł
o) lub na pralce (wibracje).
Przestrze
ń
do wentylacji elementów elektronicznych by
ł
aby
niewystarczaj
ą
ca.
• Niniejsze
urz
ą
dzenie przeznaczone jest do u
ż
ytku
domowego.
• Nie
nale
ż
y instalowa
ć
urz
ą
dzenia na zewn
ą
trz, nawet
w zadaszonym miejscu, poniewa
ż
wystawienie go na
dzia
ł
anie deszczu i burz jest bardzo niebezpieczne.
• Nie dotykac urzadzenia stojac przy nim boso lub majac
mokre albo wilgotne rece badz stopy.
• Urz
ą
dzenie s
ł
u
ż
y do gotowania potraw i powinno by
ć
u
ż
ywane jedynie przez osoby doros
ł
e, zgodnie ze
wskazówkami zawartymi w niniejszej instrukcji. Nie
u
ż
ywa
ć
p
ł
yty w funkcji pó
ł
ki lub deski do krojenia.
• Plyta szklano-ceramiczna jest odporna na uderzenia,
moze jednak ulec uszkodzeniu (lub ewentualnie
peknieciu), jesli zostanie uderzona ostrym przedmiotem,
np. jakims narzedziem. W takim przypadku nalezy
natychmiast odlaczyc urzadzenie od zasilania
elektrycznego i wezwac Serwis Techniczny.
• Nale
ż
y uwa
ż
a
ć
, aby przewody zasilaj
ą
ce pozosta
ł
e
domowe urz
ą
dzenia elektryczne nie styka
ł
y si
ę
z
rozgrzanymi elementami p
ł
yty grzejnej.
• Nie nalezy zapominac, ze temperatura pól grzejnych
pozostaje wysoka przez co najmniej trzydziesci minut
po ich wylaczeniu. Cieplo szczatkowe jest równiez
sygnalizowane przez odpowiedni wskaznik (
patrz
Uruchomienie i uzytkowanie
).
• Utrzymywa
ć
w odpowiedniej odleg
ł
o
ś
ci od p
ł
yty
grzejnej ka
ż
dy przedmiot, który mo
ż
e si
ę
stopi
ć
,
np. przedmioty plastikowe, aluminiowe lub produkty
z du
żą
zawarto
ś
ci
ą
cukru. Szczególnie uwa
ż
a
ć
na wszelkie opakowania i ta
ś
my plastikowe lub
aluminiowe: ich pozostawienie na jeszcze gor
ą
cych
lub ciep
ł
ych powierzchniach mo
ż
e spowodowa
ć
powa
ż
ne uszkodzenie p
ł
yty.
• Nale
ż
y si
ę
upewnia
ć
, czy uchwyty garnków s
ą
zawsze zwrócone w kierunku wewn
ę
trznej cz
ęś
ci
p
ł
yty grzejnej, aby unikn
ąć
ich przypadkowego
potr
ą
cenia.
• Nie wyci
ą
ga
ć
wtyczki z gniazdka ci
ą
gn
ą
c za kabel -
nale
ż
y trzyma
ć
za wtyczk
ę
.
• Nie czy
ś
ci
ć
urz
ą
dzenia ani nie wykonywa
ć
czynno
ś
ci
konserwacyjnych bez uprzedniego od
łą
czenia wtyczki
od sieci elektrycznej.
• Nie jest przewidziane, aby urz
ą
dzenie by
ł
o u
ż
ywane
przez osoby (w tym dzieci) o ograniczonych
mo
ż
liwo
ś
ciach
fi
zycznych lub umys
ł
owych, przez osoby
bez do
ś
wiadczenia lub bez znajomo
ś
ci urz
ą
dzenia,
chyba
ż
e pod nadzorem osoby odpowiedzialnej za
ich bezpiecze
ń
stwo, jak równie
ż
przez osoby, które
nie zosta
ł
y zapoznane ze wst
ę
pnymi instrukcjami
dotycz
ą
cymi u
ż
ytkowania urz
ą
dzenia.
• Ostrze
ż
enia dla osób z pacemaker lub innych
urz
ą
dze
ń
czy implantów medycznych aktywnych:
Strefa gotowania spe
ł
nia wszelkie aktualnie
obowi
ą
zuj
ą
ce normy zwi
ą
zane z interferencjami
elektromagnetycznymi.
Produkt ten wi
ę
c spe
ł
nia wszelkie wymagania prawne
(dyrektywy 89/336CEE). Zosta
ł
o zaprojektowane
w taki sposób, aby nie tworzy
ć
zak
ł
óce
ń
w innych
urz
ą
dzeniach elektrycznych u
ż
ywanych, pod
warunkiem,
ż
e i te urz
ą
dzenia spe
ł
niaj
ą
wymagania
takich norm.
P
ł
yta grzejna indukcyjna wytwarza pola magnetyczne o
ma
ł
ym zasi
ę
gu.
Aby
unikn
ąć
jakiekolwiek zagro
ż
enie zak
ł
ócenia
pomi
ę
dzy p
ł
yt
ą
grzejn
ą
i pacemaker, to pacemaker ma
by
ć
wykonany w my
ś
l aktualnie obowi
ą
zuj
ą
cych norm.
W tym wi
ę
c przypadku mo
ż
emy zagwarantowa
ć
jedynie
zgodno
ść
naszego produktu z normami. Aby uzyska
ć
informacje zwi
ą
zane ze zgodno
ś
ci
ą
z normami i
ewentualnymi problemami niezgodno
ś
ci nale
ż
y zwróci
ć
si
ę
do lekarza lub do producenta pacemakera.
• Zabroni
ć
dzieciom bawienia si
ę
z urz
ą
dzeniem.
• Na p
ł
ycie nie nale
ż
y k
ł
a
ść
metalowych przedmiotów
(no
ż
y,
ł
y
ż
ek, pokrywek itp.), poniewa
ż
mog
ą
si
ę
nagrzewa
ć
.
•
Urz
ą
dzenie nie jest przeznaczone do tego, aby by
ł
o
w
łą
czane przy u
ż
yciu zewn
ę
trznego przeka
ź
nika
czasowego lub osobnego systemu sterowania
zdalnego.
Utylizacja
• Utylizacja opakowania: nale
ż
y stosowa
ć
si
ę
do lokalnych
przepisów, dzi
ę
ki temu opakowania b
ę
d
ą
mog
ł
y zosta
ć
poddane reutylizacji.
• Dyrektywa europejska 2002/96/WE w sprawie zu
ż
ytego
sprz
ę
tu elektrycznego oraz elektronicznego (RAEE)
przewiduje,
ż
e domowe urz
ą
dzenia elektryczne nie mog
ą
podlega
ć
zwyk
ł
emu cyklowi utylizacji sta
ł
ych odpadów
miejskich. Zu
ż
yte urz
ą
dzenia powinny by
ć
zbierane
oddzielnie w celu zoptymalizowania stopnia odzysku i
recyklingu materia
ł
ów, które zawieraj
ą
, oraz aby zapobiec
potencjalnym szkodom dla zdrowia i
ś
rodowiska. Symbol
przekre
ś
lonego kosza umieszczony na wszystkich
produktach przypomina o obowi
ą
zku selektywnego
gromadzenia tych odpadów.
W celu uzyskania bli
ż
szych informacji dotycz
ą
cych
prawid
ł
owego z
ł
omowania sprz
ę
tu domowego, u
ż
ytkownicy
mog
ą
si
ę
zwróci
ć
do w
ł
a
ś
ciwych s
ł
u
ż
b miejskich lub do
skupuj
ą
cych go sprzedawców.
70
PL
Konserwacja i utrzymanie
Od
łą
czenie pr
ą
du elektrycznego
Przed ka
ż
d
ą
czynno
ś
ci
ą
nale
ż
y od
łą
czy
ć
urz
ą
dzenie od
sieci zasilania elektrycznego.
Mycie urz
ą
dzenia
!
Unika
ć
stosowania
ś
rodków czyszcz
ą
cych o
w
ł
a
ś
ciwo
ś
ciach
ś
ciernych lub korozyjnych, takich
jak produkty w sprayu do barbecue i piecyków,
odplamiacze i
ś
rodki przeciwrdzewne, detergenty w
proszku oraz g
ą
bki z powierzchni
ą
ś
cieraj
ą
c
ą
: mog
ą
one w sposób nieodwracalny zarysowa
ć
powierzchni
ę
.
!
Do czyszczenia urzadzenia nigdy nie nalezy uzywac
oczyszczaczy parowych lub wysokocisnieniowych.
• W ramach zwyk
ł
ej konserwacji wystarczy przemywa
ć
p
ł
yt
ę
wilgotn
ą
g
ą
bk
ą
i osusza
ć
j
ą
papierowym
r
ę
cznikiem kuchennym.
• Je
ś
li p
ł
yta jest szczególnie silnie zabrudzona,
wyczy
ś
ci
ć
j
ą
przy pomocy odpowiedniego produktu
do czyszczenia powierzchni szklano-ceramicznych,
sp
ł
uka
ć
i osuszy
ć
.
• W celu eliminacji najtrudniejszych do usuni
ę
cia
zanieczyszcze
ń
pos
ł
ugiwa
ć
si
ę
odpowiedni
ą
skrobaczk
ą
. Usuwa
ć
zanieczyszczenia zaraz jak
tylko jest to mo
ż
liwe, nie czekaj
ą
c a
ż
urz
ą
dzenie
ostygnie, tak aby resztki
ż
ywno
ś
ci nie stwardnia
ł
y.
Znakomite wyniki mo
ż
na uzyska
ć
stosuj
ą
c g
ą
bk
ę
drucian
ą
ze stali nierdzewnej - specjaln
ą
do szklano-
ceramicznych p
ł
yt grzejnych - nas
ą
czon
ą
wod
ą
i
myd
ł
em.
• Je
ś
li na p
ł
ycie grzejnej stopi
ą
si
ę
przypadkowo
przedmioty lub materia
ł
y, takie jak plastik albo cukier,
nale
ż
y je usun
ąć
przy pomocy skrobaczki, dopóki
powierzchnia jest jeszcze ciep
ł
a.
• Po oczyszczeniu p
ł
yta mo
ż
e zosta
ć
pokryta
odpowiednim produktem do konserwacji i ochrony:
jego niewidoczna warstwa chroni powierzchni
ę
w
przypadku wykipienia potraw podczas gotowania.
Zaleca si
ę
wykonywanie tych czynno
ś
ci, gdy
urz
ą
dzenie jest letnie lub zimne.
• Nale
ż
y pami
ę
ta
ć
, aby zawsze sp
ł
uka
ć
p
ł
yt
ę
czyst
ą
wod
ą
i dok
ł
adnie j
ą
osuszy
ć
: resztki produktów
mog
ł
yby bowiem przyklei
ć
si
ę
do jej powierzchni
podczas nast
ę
pnego gotowania.
Rama ze stali nierdzewnej
(tylko w modelach z ramka)
Na stali nierdzewnej moga powstac plamy w przypadku
pozostawienia na jej powierzchni przez dluzszy czas
bardzo twardej wody lub w przypadku stosowania
srodków czystosci zawierajacych fosfor.
Zaleca si
ę
ob
fi
cie sp
ł
uka
ć
i dok
ł
adnie osuszy
ć
p
ł
yt
ę
po umyciu. W przypadku rozlania wody, nale
ż
y j
ą
jak
najszybciej dok
ł
adnie wytrze
ć
.
!
Niektóre p
ł
yty grzejne maj
ą
ramk
ę
aluminiow
ą
, która
jest podobna do ramki ze stali nierdzewnej. Nie nale
ż
y
stosowa
ć
produktów do mycia i odt
ł
uszczania innych
ni
ż
przeznaczone do aluminium.
Demonta
ż
p
ł
yty
W razie konieczno
ś
ci zdemontowania p
ł
yty grzejnej:
1. odkr
ę
ci
ć
ś
ruby przy pomocy których spr
ęż
yny
centruj
ą
ce s
ą
przymocowane do boków p
ł
yty;
2. poluzowa
ć
ś
ruby uchwytów mocuj
ą
cych w rogach;
3. wyj
ąć
p
ł
yt
ę
grzejn
ą
z mebla.
!
Odradza si
ę
ingerencj
ę
w wewn
ę
trzne mechanizmy
urz
ą
dzenia z zamiarem dokonania naprawy. W
przypadku awarii skontaktowa
ć
si
ę
z Serwisem.
Opis techniczny modeli
System indukcyjny jest procedur
ą
gotowania szybsz
ą
jak istnieje. W odró
ż
nieniu do tradycjonalnych p
ł
yt grzejnych, nie
rozgrzewa si
ę
strefa gotowania: Ciep
ł
o wytwarzane jest bezpo
ś
rednio wewn
ą
trz garnka, który
ma koniecznie posiada
ć
dno z materia
ł
u termomagnetycznego.
Płyty grzejne
Pola grzejne
Tylne lewe
Tylne prawe
Przednie lewe
Moc całkowita
KIC 631 C
KIC 631 T B
KIC 631 T X
KIC 631 T C
Moc (w W)
I 1400
I 3000 - B4000
I 2200
7600
KIC 630 B
Moc (w W)
I 1400
I 3000
I 2200
6600
KIC 633 T Z
KIC 633 T X
Moc (w W)
I 1400 - B2000* - 600 jeśli Prz. Prawe*
I 3000 - B4000
I 2200 - B 3000* - 1600 jeśli Tylne Prawe*
7600
Legenda:
I = strefa gotowania z indukcj
ą
prost
ą
B = booster: Strefa gotowania mo
ż
e by
ć
dope
ł
niana do 3000 W
* = moc maksymalna jest ograniczona dopóki aktywny jest booster we w
ł
a
ś
ciwej stre
fi
e gotowania tylniej (patrz
Uruchomienie i u
ż
ytkowanie).
71
RS
Монтаж
!
Важно
сохранить
данное
руководство
для
его
последующих
консультации
.
В
случае
продажи
,
передачи
изделия
или
при
переезде
на
новое
место
жительства
необходимо
проверить
,
чтобы
руководство
оставалось
вместе
с
изделием
,
для
того
чтобы
его
новыи
владелец
мог
ознакомиться
с
правилами
эксплуатации
и
с
соответствующими
предупреждениями
.
!
Внимательно
прочитаите
инструкции
:
в
них
содержатся
важные
сведения
о
монтаже
изделия
,
его
эксплуатации
и
безопасности
.
Расположение
!
Не
разрешаите
детям
играть
с
упаковочными
материалами
.
Упаковка
должна
быть
уничтожена
в
соответствии
с
правилами
сбора
мусора
(
см
.
Предосторожности
и
рекомендации
).
!
Монтаж
изделия
производится
в
соответствии
с
данными
инструкциями
квалифицированными
специалистами
.
Неправильный
монтаж
изделия
может
стать
причиной
повреждения
имущества
и
причинить
ущерб
людям
и
домашним
животным
.
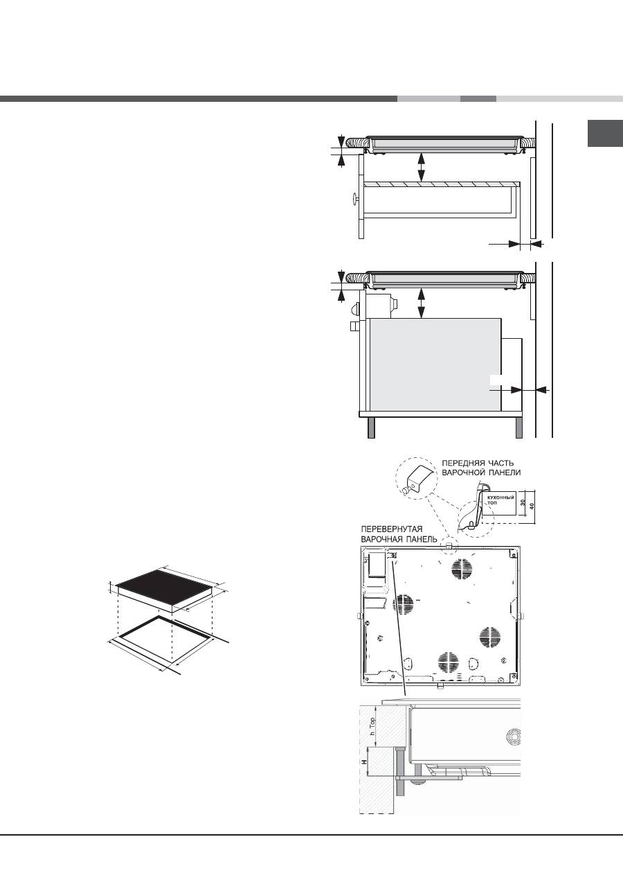
Встроенный
монтаж
Для
обеспечения
исправного
функционирования
встраиваемого
изделия
кухонный
модуль
должен
иметь
соответствующие
характеристики
:
•
поверхность
кухонного
топа
должна
быть
из
материала
,
устойчивого
к
температуре
примерно
100°C;
•
если
варочная
панель
устанавливается
над
духовым
шкафом
,
он
должен
быть
оснащен
системой
охлаждения
с
принудительной
вентиляцией
.
•
не
рекомендуется
устанавливать
варочную
панель
над
посудомоечными
машинами
:
при
необходимости
установите
между
варочной
панелью
и
посудомоечной
машиной
герметичную
разделительную
вставку
;
•
в
зависимости
от
модели
варочной
панели
,
которую
вы
устанавливаете
(
см
.
схемы
)
,
размеры
ниши
в
кухонном
модуле
должны
быть
следующими
:
560 +/- 1
490 +/- 1
53
590
520
Вентиляция
Для
обеспечения
надлежащей
вентиляции
и
во
избежание
перегрева
прилегающих
поверхностеи
варочная
панель
должна
быть
установлена
:
•
на
минимальном
расстоянии
40
мм
от
заднеи
стенки
или
от
любои
вертикальнои
поверхности
;
•
между
проемом
под
варочную
панель
и
расположенным
снизу
кухонным
элементом
должно
быть
расстояние
не
менее
20
мм
.
•
Кухонные
элементы
,
расположенные
рядом
с
кухонной
плитой
,
высота
которых
превышает
уровень
варочной
панели
,
должны
находиться
на
расстояние
не
менее
600
мм
от
края
варочной
панели
.
5 mm
min. 20 mm
min. 20 mm
min. 40 mm
Ящик
5 mm
min. 40 mm
Вентилируемая
72
RS
Крепление
Изделие
должно
быть
установлено
на
идеально
ровнои
поверхности
.
Возможные
деформации
,
вызванные
неправильным
креплением
,
могут
привести
к
изменениям
характеристик
и
эксплуатационных
качеств
варочнои
панели
.
Длина
регуляционного
винта
крепежных
крюков
регулируется
перед
началом
монтажа
по
толщине
кухонного
топа
:
•
толщина
30
мм
:
длина
винта
23
мм
;
•
толщина
40
мм
:
длина
винта
13
мм
;
Порядок
крепления
изделия
:
1.
При
помощи
коротких
тупых
шурупов
привинтите
4
центровочные
пружины
в
отверстиях
,
расположенных
по
бокам
варочнои
панели
;
2.
Вставьте
варочную
панель
в
проем
в
кухонном
модуле
,
выровняите
и
слегка
нажмите
в
центр
вплодь
до
идеального
прилегания
варочнои
панели
к
поверхности
кухонного
топа
.
3.
для
варочных
панелеи
с
боковыми
профилями
:
вставив
варочную
панели
в
нишу
кухонного
модуля
,
вставьте
4
крепежных
крюка
(
каждыи
со
своим
штифтом
)
по
нижнему
периметру
варочнои
панели
,
закручивая
их
длинными
острыми
болтами
до
тех
пор
,
пока
стекло
не
будет
плотно
прилегать
к
кухонному
топу
.
!
Важно
,
чтобы
шурупы
центровочных
пружин
оставались
доступными
.
!
В
соответствии
с
правилами
безопасности
после
установки
изделия
в
кухонныи
модуль
должна
быть
исключена
возможность
касания
к
электрическими
частями
.
!
Все
защитные
элементы
должны
быть
закреплены
таким
образом
,
чтобы
их
можно
было
снять
только
при
помощи
специального
инструмента
.
Электрическое
подключение
!
Электрическое
подключение
варочнои
панели
и
возможного
встраиваемого
духового
шкафа
должно
выполняться
раздельно
по
причинам
безопасности
,
а
так
же
для
легкого
съема
духового
шкафа
.
Монофазное
соединение
Варочная
панель
оснащена
сетевым
кабелем
,
рассчитанным
на
монофазное
электропитание
.
Подсоедините
провода
в
соответствии
с
таблицеи
и
приведенным
ниже
схемам
:
Типовое
напряжение и
частота сети
Электрический провод
Подсоединение
проводов
220-240В 1+N ~
50 Гц
: желто-зеленый;
N: 2 синий провода
вместе на
L: коричневый вместе с
черным
Другие
типы
соединений
Если
электропроводка
соответствует
однои
из
следующих
характеристик
:
Типовое
напряжение
и
частота
сети
• 400
В
- 2+N ~ 50
Гц
• 220-240
В
3 ~ 50
Гц
• 400V 3 - N ~ 50 Hz
• 400
В
- 2+2N ~ 50
Гц
Разделите
провода
и
подсоедините
проводники
в
соответствии
с
таблицеи
и
приведенным
ниже
схемам
:
Типовое
напряжение и
частота сети
Электрический провод
Подсоединение
проводов
400В -2 +N ~
50 Гц
220-240В 3 ~
50 Гц
400V 3-N~ 50 Гц
: желто-зеленый,
N: 2 синий провода
вместе на
L1: черный
L2: коричневый
400В -2 +2N ~
50 Гц
: желто-зеленый;
N1: синий
N2: синий
L1: черный
L2: коричневый
Подсоединение
сетевого
кабеля
изделия
к
сети
электропитания
В
случае
прямого
подключения
изделия
к
сети
необходимо
установить
между
изделием
и
электрическои
сетью
многополярныи
разъединитель
с
минимальным
расстоянием
между
контактами
3
мм
.
!
Электромонтер
несет
ответственность
за
правильное
подключение
изделия
к
электрическои
сети
и
за
соблюдение
правил
безопасности
.
Перед
осуществлением
электрического
подсоединения
необходимо
проверить
следующее
:
•
сетевая
розетка
должна
быть
соединена
с
заземлением
и
соответствовать
нормативам
;
•
сетевая
розетка
должна
быть
расчитана
на
максимальную
потребляемую
мощность
изделия
,
указанную
на
паспортнои
табличке
с
техническими
характеристиками
;
•
напряжение
и
частота
тока
сети
должны
соответствовать
электрическим
данным
изделия
;
•
сетевая
розетка
должна
быть
совместима
со
штепсельнои
вилкои
изделия
.
В
противном
случае
замените
розетку
или
вилку
;
не
используите
удлинители
или
троиники
.
!
Изделие
должно
быть
установлено
таким
образом
,
чтобы
сетевои
кабель
и
сетевая
розетка
были
легко
доступны
.
!
Сетевои
кабель
изделия
не
должен
быть
согнут
или
сжат
.
!
Регулярно
проверяите
состояние
сетевого
кабеля
и
при
необходимости
поручаите
его
замену
только
уполномоченным
техникам
.
!
Производитель
не
несет
ответственности
за
последствия
несоблюдения
перечисленных
выше
требовании
.
!
Категорически
запрещается
отсоединять
и
не
заменять
сетевой
кабель
.
В
случае
отсоединения
или
замены
сетевого
кабеля
гарантия
на
изделие
аннулируется
,
равно
как
и
маркировка
ЕС
.
Компания
INDESIT
снимает
с
себя
всякую
ответственность
за
несчастные
случаи
или
ущерб
,
вызванный
отсоединением
или
заменой
оригинального
сетевого
кабеля
.
Допускается
замена
только
на
оригинальный
сетевой
кабель
,
выполняемая
техником
,
уполномоченным
Компанией
INDESIT.
73
RS
Включение
и
эксплуатация
!
На
стекляннои
поверхности
варочнои
панели
могут
быть
видны
сальные
следы
от
клея
,
нанесенного
на
прокладки
Перед
началом
эксплуатации
изделия
следует
удалить
следы
клея
при
помощи
специального
неабразивного
моющего
средства
.
В
первые
часы
работы
вы
можете
почувствовать
запах
жженои
резины
,
которыи
быстро
пропадает
.
!
Через
несколко
секунд
после
подсоединения
варочнои
панели
к
сети
электропитания
включается
короткии
звуковои
сигнал
.
Только
после
этого
можно
включить
варочную
панель
.
Нормальный
шумовой
уровень
варочной
панели
:
•
Гудение
:
вызвано
вибрацией
металлических
элементов
,
из
которых
состоит
индуктор
,
и
кастрюли
,
образуя
электромагнитное
поле
,
необходимое
для
нагрева
.
Оно
увеличивается
по
мере
повышения
мощности
индуктора
.
•
Легкий
свист
:
слышен
в
случае
помещения
на
варочную
зону
пустой
кастрюли
.
Свист
пропадает
,
как
только
в
кастрюлю
будут
положены
продукты
или
налита
жидкость
.
•
Потрескивание
:
этот
звук
образуется
вибрацией
материала
,
из
которого
изоготовлено
дно
кастрюли
,
пронизываемого
паразитным
током
,
создаваемым
электромагнитным
полем
(
индукцией
).
Потрескивание
может
быть
более
или
менее
сильным
в
зависимости
от
материала
,
из
которого
изоготовлено
дно
кастрюли
,
и
сокращается
в
случае
кастрюли
большого
размера
.
•
Сильный
свист
:
слышен
при
одновременной
работе
двух
индукторов
,
расположенных
по
одной
вертикали
,
при
максимальной
мощности
и
/
или
когда
на
большем
индукторе
включена
функция
вольтодобавочного
устройства
,
а
другой
является
саморегулируемым
.
Свист
сокращается
при
понижении
мощности
саморегулируемого
индуктора
.
Особенно
он
слышен
,
когда
дно
кастрюли
изготовлено
из
солев
разных
сплавов
.
•
Шум
вентилятора
:
для
исправной
работы
варочной
панели
и
для
защиты
электронной
части
от
возможного
перегрева
необходимо
включать
вентилятор
.
Вентилятор
работает
с
максимальной
мощностью
,
когда
большой
индуктор
включен
на
максимальную
мощность
,
или
когда
включено
вольтодобавочное
устройство
.
Во
всех
остальных
случаях
вентилятор
работает
со
средней
мощностью
в
зависимости
от
отмечаемой
температуры
.
Кроме
того
вентилятор
может
продолжать
работать
также
после
выключения
варочной
панели
,
если
ее
температура
остается
высокой
.
Перечисленные
выше
шумы
присущи
индукционной
технологии
и
не
обязательно
означают
неисправности
в
работе
изделия
.
!
При
длительном
нажатии
на
кнопки
-
и
+
происходит
быстрая
смена
уровнеи
мощности
и
минут
таимера
.
Включение
варочной
панели
Включите
варочную
панель
,
нажав
кнопку
примерно
на
одну
секунду
.
Включение
варочных
зон
Каждая
зона
варочнои
панели
включается
при
помощи
кнопки
и
регулятора
мощности
,
состоящего
из
двоинои
кнопки
-
и
+
.
•
Для
включения
однои
из
варочных
зон
нажмите
соответствующую
кнопку
и
настроите
нужную
мощность
при
помощи
кнопок
-
и
+
.
Вольтодобавочное
устройство
booster*
Для
ускорения
нагрева
некоторых
варочных
зон
можно
включить
вольтодобавочное
устройство
при
помощи
кнопки
Booster
.
Включается
индикатор
на
кнопке
.
Эта
функция
добавляет
мощности
до
2000
Вт
или
3000
Вт
в
зависимости
от
размера
данной
варочной
зоны
.
Вольтодобавочное
устройство
автоматически
отключается
через
4
минуты
.
До
тех
пор
,
пока
будет
включено
вольтодобавочная
функция
одной
из
варочных
зон
,
соответствующая
передняя
или
задняя
варочная
зона
будет
работать
с
сокращенной
мощностью
(
например
,
если
включено
вольтодобавочное
устройство
левой
задней
варочной
зоны
,
понижается
мощность
левой
передней
варочной
зоны
).
Более
подробные
разъяснения
смотрите
в
Техническом
описании
моделей
.
Выключение
варочных
зон
Для
отключения
варочнои
зоны
выберите
ее
при
помощи
соответствующеи
кнопки
и
затем
:
•
Нажмите
кнопку
-
:
мощность
варочнои
зоны
постепенно
понизится
вплоть
до
выключения
.
Программирование
продолжительности
приготовления
!
Можно
одновременно
настроить
все
варочные
зоны
на
приготовление
от
1
до
99
минут
.
1.
Выбрать
варочную
зону
при
помощи
соответствующеи
кнопки
выбора
.
2.
Отрегулируйте
уровень
мощности
варочной
зоны
.
3.
Нажать
кнопку
.
Мигает
индикатор
,
соответствующий
выбранной
зоне
.
4.
Настроить
нужную
продолжительность
приготовления
при
помощи
кнопок
-
и
+
.
*
Имеется
только
в
некоторых
моделях
.
74
RS
5.
Подтвердить
настройки
при
помощи
кнопки
,
или
переключение
происходит
автоматически
через
10
секунды
.
Обратный
отсчет
таймера
начинается
сразу
же
.
По
завершении
заданного
приготовления
раздается
звуковой
сигнал
(
в
течение
1
минуты
),
и
варочная
зона
выключается
.
Повторите
вышеописанную
операцию
для
каждой
варочной
зоны
,
которую
требуется
запрограммировать
.
Визуализация
в
случае
программирования
нескольких
варочных
зон
В
случае
программирования
одной
или
нескольких
варочных
зон
на
дисплее
показывается
отсчет
времени
варочной
зоны
,
на
которой
приготовление
ближе
всего
к
завершению
,
с
указанием
ее
положения
соответствующим
мигающим
индикатором
.
Индикаторы
других
запрограммированных
варочных
зон
остаются
включенными
.
Для
визуализации
оставшегося
времени
приготовления
остальных
запрограммированных
варочных
зон
нажмите
несколько
раз
кнопку
:
на
дисплее
последовательно
и
по
часовои
стрелке
будет
показано
время
всех
запрограммированных
варочных
зон
,
начиная
с
левои
переднеи
.
Изменение
программирования
1.
Нажмите
несколько
раз
кнопку
до
тех
пор
,
пока
не
будет
показано
время
варочнои
зоны
,
которое
требуется
изменить
.
2.
При
помощи
кнопок
-
и
+
задаите
новую
продожительность
.
3.
Подтвердите
настроику
при
помощи
кнопки
.
Для
отмены
программирования
выполните
описанные
выше
операции
.
В
пункте
2
нажмите
кнопку
-
:
продолжительность
станет
постепенно
убывать
вплоть
до
выключения
0.
Программирование
будет
обнулено
,
и
дисплеи
выидет
из
режима
программирования
.
Таймер
Варочная
панель
должна
быть
включена
.
Таимер
служит
для
настроики
продолжительности
приготовления
вплоть
до
99
минут
.
1.
Нажмите
кнопку
программирования
до
тех
пор
,
пока
не
загорится
индикатор
таимера
.
2.
Настроите
нужную
продолжительность
приготовления
при
помощи
кнопок
-
и
+
.
3.
Подтвердите
настроику
при
помощи
кнопки
.
Обратныи
отсчет
таимера
начинается
сразу
же
.
По
истечении
заданного
времени
включится
звуковои
сигнал
(
на
1
минуту
).
Блокировка
управлений
В
процессе
функционирования
варочнои
панели
можно
заблокировать
ее
управления
во
избежание
случаиного
изменения
настроек
(
дети
,
в
процессе
уборки
и
т
.
д
.).
При
помощи
кнопки
управления
блокируются
,
и
индикатор
над
этои
кнопкои
загорается
.
Для
разблокировки
управлении
(
напр
.,
для
прерывания
приготовления
)
необходимо
:
нажать
кнопку
на
несколько
секунд
,
индикатор
погаснет
,
и
управления
разблокируются
.
Выключение
варочной
панели
При
нажатии
кнопки
изделие
выключается
,
не
обращайте
внимание
на
сенсор
наличия
кастрюль
.
Если
управления
варочнои
панели
были
заблокированы
,
они
останутся
заблокированными
также
после
повторого
включения
варочнои
панели
.
Для
повторого
включения
варочнои
панели
необходимо
сначала
разблокировать
управления
.
Режим
«demo»
Можно
задать
демонстрационныи
режим
,
в
котором
панель
управлении
работает
как
обычно
(
включая
кнопки
программирования
),
но
нагревательные
элементы
не
включаются
.
Для
перехода
в
режим
«
демо
»
варочная
панель
должна
быть
включена
,
а
все
варочные
зоны
выключены
:
•
Нажмите
и
держите
одновременно
нажатыми
кнопки
+
и
-
в
течение
6
секунд
.
По
истечении
6
секунд
индикатор
ON/OFF
и
индикатор
БЛОКИРОВКА
УПРАВЛЕНИИ
замигают
на
одну
секунду
.
Отпустите
кнопки
+
и
-
и
нажмите
кнопку
;
•
на
дисплее
появится
надпись
DE
и
MO,
и
варочная
панель
выключится
.
•
при
последующем
включении
варочная
панель
включается
в
режиме
“demo”.
Для
отмены
этого
режима
выполните
операции
в
описанном
выше
порядке
.
На
дисплее
появится
надпись
DE
и
OF,
и
варочная
панель
выключится
.
При
последующем
включении
варочная
панель
включается
в
рабочем
режиме
.
75
RS
Практические
советы
по
эксплуатации
изделия
!
Используите
посуду
из
материала
,
подходящего
для
индукционного
нагревания
(
ферромагнитныи
материал
).
Рекомендуется
использовать
посуду
из
:
чугуна
,
эмалированнои
стали
или
специальнои
стали
для
индукционного
нагревания
.
Для
проверки
пригодности
посуды
достаточно
использовать
магнит
.
Кроме
того
для
больше
эффективности
варочнои
панели
следует
:
•
Использовать
посуду
с
плоским
толстым
дном
,
идеально
прилегающим
к
зоне
нагрева
;
•
Использовать
посуду
с
дном
такого
диаметра
,
чтобы
полностью
закрыть
варочную
зону
для
оптимального
использования
всего
выделяемого
тепла
.
•
Проверить
,
чтобы
дно
используемои
посуды
было
всегда
совершенно
сухим
и
чистым
для
идеального
прилегания
к
варочнои
зоне
и
для
долгого
срока
службы
как
варочнои
панели
,
так
и
самои
посуды
.
•
Не
следует
использовать
на
даннои
варочнои
панели
посуду
,
использованную
на
газовых
конфорках
.
концентрация
тепла
на
газовых
конфорках
может
деформировать
дно
посуды
и
нарушить
прилегание
к
варочнои
зоне
;
Защитные
устройства
Сенсор
наличия
посуды
Каждая
варочная
зона
укомплектована
сенсором
наличия
посуды
.
Конфорка
выделяет
тепло
только
при
наличии
на
неи
посуды
с
размерами
,
соответствующими
даннои
конфорке
.
Мигающии
индикатор
может
означать
:
•
неподходящая
посуда
•
посуда
неподходящего
диаметра
•
посуда
снята
с
варочной
зоны
Перегрев
В
случае
перегрева
электронных
комплектующих
варочная
панель
автоматически
отключается
,
и
на
дисплее
появляется
F
с
мигающим
кодом
.
Это
сообщение
пропадает
,
и
варочная
панель
возвращается
в
рабочии
режим
,
когда
температура
опускается
до
допустимого
уровня
.
Предохранительный
выключатель
Изделие
оснащено
предохранительным
выключателем
,
автоматически
отключающим
варочные
зоны
по
истечении
времени
функционирования
данного
уровня
мощности
.
В
процессе
аварииного
отключения
на
дисплее
появляется
«
0
».
Пример
:
задняя
правая
варочная
зона
настроена
на
5,
передняя
левая
варочная
зона
настроена
на
2.
Задняя
правая
варочная
зона
отключается
через
5
часа
работы
,
передняя
левая
через
8
часов
.
Уровень мощности
1
2
3
4
5
6
7
8
9
Макс. кол-во часов функционирования
9
8
7
6
5
4
3
2
1
Звуковая
сигнализация
Некоторые
неисправности
такие
как
:
•
какои
-
либо
предмет
(
посуда
,
столовыи
прибор
и
т
.
д
.)
находится
в
зоне
управлении
более
10
секунд
.
•
утчека
жидкости
на
зону
управлении
;
•
при
длительном
нажатии
на
кнопку
может
включиться
звуковои
сигнал
.
Устраните
причину
неисправности
для
гашения
звуковои
сигнализации
.
Если
причина
неисправности
не
будет
устранена
,
звуковои
сигнал
не
гасится
,
и
варочная
панель
выключается
.
76
RS
Практические
советы
по
приготовлению
блюд
ª
Приготовление под давлением
Скороварка
Фритюр
Бифштексы
Варка
Приготовление на большом огне
Приготовление
на среднем
огне
Приготовление на умеренном огне
Приготовление на малом огне
Приготовление
на самом малом огне
• • ¶
Блины
Приготовление на среднем огне,
обжаривание (Жаркое, бифштексы,
эскалопы, рыбное филе, яичница)
¶ §
Быстрое загустени (Жидкие соусы)
Кипячение воды (для варки макарон, риса, овощей)
Кипячение молока
§ S
Постепенное загустение (густые соусы)
S ¢
Приготовление на пару
Продолжение приготовление в скороварке
после первого выпуска пара
¢ £ ™
Приготовление на
малом огне (рагу)
Разогревание готовых блюд
™ ¡
Шоколадный соус
Поддержание блюд в горячем состоянии
77
RS
Предосторожности
и
рекомендации
!
Изделие
спроектировано
и
изготовлено
в
соответствии
с
международными
нормативами
по
безопасности
.
Необходимо
внимательно
прочитать
настоящие
предупреждения
,
составленные
в
целях
вашеи
безопасности
.
Данное
оборудование
отвечает
требованиям
нижеуказанных
Директив
Европеиского
Сообщества
:
- 2006/95/CEE
от
12/12/06 (
Низкое
напряжение
)
с
последующими
изменениями
- 2004/108/
СЕЕ
от
15/12/04 (
Электромагнитная
совместимость
)
и
последующими
изменениями
- 93/68/
СЕЕ
от
22.07.93
с
последующими
изменениями
.
- 1275/2008 stand-by/off mode.
Общие
правила
безопасности
!
Проверьте
,
чтобы
вентиляционная
решетка
всегда
была
открытои
.
Встраиваемая
варочная
панель
требует
эффективнои
вентлияции
для
охлаждения
электронных
компонентов
.
!
Не
рекомендуется
устанавливать
индукционную
варочную
панель
над
холодильником
,
встроенным
под
кухонным
топом
(
тепло
)
или
над
стиральнои
машинои
(
вибрации
).
Зазор
,
необходимыи
для
вентиляции
электронных
компонентов
в
этих
случаях
будет
недостаточным
.
•
Данное
изделие
предназначается
для
непрофессионального
использования
в
домашних
условиях
.
•
Запрещается
устанавливать
изделие
на
улице
,
даже
под
навесом
,
так
как
воздеиствие
на
него
дождя
и
грозы
является
чрезвычаино
опасным
.
•
Не
прикасаитесь
к
изделию
влажными
руками
,
босиком
или
с
мокрыми
ногами
.
•
Изделие
предназначено
для
приготовления
пищевых
продуктов
,
может
быть
использовано
только
взрослыми
лицами
в
соответствии
с
инструкциями
,
приведенными
в
данном
техническом
руководстве
.
Не
используите
варочную
панель
в
качестве
стола
или
для
нарезки
продуктов
.
•
Стеклокерамическая
варочная
панель
устоичива
к
механическим
ударам
,
тем
не
менее
она
может
треснуть
(
или
даже
разбиться
)
при
ударе
острым
предметом
или
инструментом
.
В
этом
случае
незамедлительно
отсоедините
изделие
от
сети
электропитания
и
обратитесь
в
Центр
технического
обслуживания
.
•
Избегаите
касания
сетевых
шнуров
других
бытовых
электроприборов
к
горячим
частям
варочнои
панели
.
•
Помните
,
что
температура
варочных
зон
остается
очень
высокои
в
течение
тридцати
минут
после
их
выключения
.
Остаточное
тепло
показывается
также
индикатором
(
см
.
Включение
и
эксплуатация
).
•
Держите
на
безопасном
расстоянии
от
варочнои
панели
любые
предметы
,
которые
могут
расплавиться
,
например
,
пластмасса
,
алюминии
или
изделия
из
сахара
.
Обращаите
особое
внимание
на
упаковочные
материалы
,
полиэтиленовую
или
алюминиевую
пленку
:
если
оставить
эти
материалы
на
еще
горячеи
или
теплои
поверхности
,
они
могут
серьезно
повредить
варочую
панель
.
•
Следите
,
чтобы
ручки
кастрюль
на
варочнои
панели
были
всегда
повернуты
таким
образом
,
чтобы
вы
не
могли
случаино
задеть
их
.
•
Не
тяните
за
сетевои
кабель
для
отсоединения
вилки
изделия
из
сетевои
розетки
,
возьмитесь
за
вилку
рукои
.
•
Перед
началом
чистки
или
технического
обслуживания
изделия
всегда
вынимаите
штепсельную
вилку
из
сетевои
розетки
.
•
Эксплуатация
изделия
лицами
(
включая
детеи
)
с
ограниченными
физическими
,
сенсорными
или
умственными
способностями
,
неопытными
лицами
или
лицами
,
незнакомыми
с
правилами
эксплуатации
данного
изделия
,
запрещается
без
контроля
со
стороны
лица
,
отвечающего
за
их
безопасность
,
или
без
обучения
правилам
пользования
изделием
.
•
Предупреждение
для
носителей
электрокардиостимуляторов
или
других
медицинских
имплантированных
аппаратов
:
Варочная
панель
полностью
соответствует
всем
действующим
нормативам
по
электромагнитным
помехам
.
Поэтому
данное
изделие
полностью
отвечает
всем
требованиям
закона
(
директивы
89/336/CEE).
Изделие
было
изготовлено
таким
образом
,
чтобы
не
создавать
помех
электрическим
приборам
,
при
условии
,
что
эти
приборы
также
соответствуют
вышеуказанным
нормативам
.
Индуктивная
варочная
панель
образует
электромагнитные
поля
малого
диапазона
.
Во
избежание
помех
между
варочной
панелью
и
электрокардиостимулятором
последний
должен
соответствовать
действующим
нормативам
.
Поэтому
мы
можем
гарантировать
соответствие
нормативам
только
нашего
изделия
.
За
информацией
о
соответствии
и
о
возможных
проблемах
из
-
за
несовместимости
обращайтесь
к
вашему
лечащему
врачу
или
к
производителю
электрокардиостимулятора
.
•
Не
разрешайте
детям
играть
с
бытовым
электроприбором
.
•
Не
кладите
металлические
предметы
(
ножи
,
ложки
,
крышки
и
т
.
д
.)
на
варочную
панель
,
так
как
они
могут
сильно
нагреться
.
•
Изделие
не
рассчитано
на
влючение
посредством
внешнего
синхронизатора
или
отдельной
системы
дистанционного
управления
.
Утилизация
•
Уничтожение
упаковочных
материалов
:
соблюдаите
местные
нормативы
с
целью
повторного
использования
упаковочных
материалов
.
•
Согласно
Европеискои
Директиве
2002/96/
СЕ
касательно
утилизации
электронных
и
электрических
электроприборов
электроприборы
не
должны
выбрасываться
вместе
с
обычным
городским
мусором
.
Выведенные
из
строя
приборы
должны
собираться
отдельно
для
оптимизации
их
утилизации
и
рекуперации
составляющих
их
материалов
,
а
также
для
безопасности
окружающеи
среды
и
здоровья
.
Символ
зачеркнутая
мусорная
корзинка
,
имеющиися
на
всех
приборах
,
служит
напоминанием
об
их
отдельнои
утилизации
.
За
более
подробнои
информациеи
о
правильнои
утилизации
бытовых
электроприборов
пользователи
могут
обратиться
в
специальную
государственную
организацию
или
в
магазин
.
78
RS
Техническое
обслуживани
и
уход
Отключение
электропитания
Перед
началом
какои
-
либо
операции
по
обслуживанию
или
чистке
отсоедините
изделие
от
сети
электропитания
.
Чистка
изделия
!
Не
следует
пользоваться
абразивными
или
коррозивными
чистящими
средствами
такими
как
спраи
для
чистки
духовок
и
мангалов
,
пятновыводители
или
средства
для
удаления
ржавчины
,
порошковыми
чистящими
средствами
или
абразивными
губками
:
они
могут
необратимо
поцарапать
поверхность
изделия
.
!
Не
используите
паровые
чистящие
агрегаты
или
агрегаты
под
высоким
давлением
для
чистки
изделия
.
•
В
качестве
регулярного
ухода
достаточно
вымыть
варочную
панель
влажнои
губкои
и
затем
протереть
насухо
кухонным
бумажным
полотенцем
.
•
Если
варочная
панель
сильно
загрязнена
,
используите
специальное
чистящее
средство
для
стеклокерамических
поверхностеи
,
ополосните
водои
и
протрите
насухо
.
•
Для
удаления
особо
сильных
загрязнении
используите
специальныи
скребок
.
Удаляите
загрязнения
незамедлительно
,
не
дожидаясь
охлаждения
изделия
,
во
избежание
затвердевания
остатков
пищи
.
Очень
удобна
для
чистки
варочнои
панели
мочалка
из
проволоки
из
нержавеющеи
стали
,
специально
для
стеклокерамических
поверхностеи
,
смоченная
в
мыльном
растворе
.
•
Если
на
варочнои
панели
случаино
расплавились
какие
-
либо
предметы
или
пластиковые
материалы
или
сахар
,
незамедлительно
удалите
их
скребком
с
еще
горячеи
поверхности
.
•
По
завершении
чистки
варочная
панель
может
быть
обработана
специальным
защитным
средством
для
ухода
за
стеклокерамическими
поверхностями
:
это
средство
образует
на
поверхности
варочнои
панели
невидимую
защитную
пленку
,
предохраняющую
поверхность
в
случае
утечек
пище
в
процессе
приготовления
.
Рекомендуется
производить
чистку
,
когда
варочная
панель
едва
теплая
или
холодная
.
•
Следует
всегда
ополаскивать
варочную
панель
чистои
водои
и
насухо
вытирать
:
возможные
остатки
чистящих
средств
могут
затвердеть
при
последующеи
готовке
.
Структура
из
нержавеющеи
стали
(
только
в
моделях
с
рамкои
)
На
поверхности
из
нержавеющеи
стали
могут
образоваться
пятна
от
воды
с
большим
содержанием
извести
,
если
она
будет
воздеиствовать
на
поверхность
в
течение
длительного
времени
,
или
при
использовании
чистящих
средств
,
содержащих
фосфор
.
Рекомендуется
тщательно
ополоснуть
и
вытереть
варочную
панель
после
чистки
.
В
случае
случаиного
проливания
воды
незамедлительно
удалите
ее
.
!
Некоторые
варочные
панели
оснащены
алюминиевои
рамкои
,
похожеи
на
нержавеющую
сталь
.
Для
чистки
рамки
не
используите
средства
,
непригодные
для
алюминия
.
Порядок
демонтажа
варочной
панели
При
необходимости
демонтировать
варочную
панель
:
1.
снимите
шурупы
,
крепящие
сбоков
центровочные
пружины
;
2.
ослабьте
шурупы
крепежных
крюков
по
углам
;
3.
выньте
варочную
панель
из
ниши
.
!
Не
рекомендуется
открывать
внутренние
комплектующие
для
попытки
самостоятельно
выполнить
ремонт
.
В
случае
неисправности
обращаитесь
в
Центр
технического
обслуживания
.
79
RS
Техническое
описание
моделей
Система
индукционного
нагревания
является
самой
быстрой
из
существующих
технологий
нагрева
.
В
отличие
от
традициональных
конфорок
нагрев
производится
не
варочной
зоной
:
нагревается
непосредственно
содержимое
кастрюли
,
дно
которой
обязательно
должно
быть
из
ферромагнитного
материала
.
Модели
варочных
панелей
Варочные зоны
Задняя левая
Задняя правая
Передняя левая
Общая мощность
KIC 631 C
KIC 631 T B
KIC 631 T X
KIC 631 T C
Мощность (Вт)
I 1400
I 3000 - B4000
I 2200
7600
KIC 630 B
Мощность (Вт)
I 1400
I 3000
I 2200
6600
KIC 633 T Z
KIC 633 T X
Мощность (Вт)
I 1400 - B2000* - 600 jeśli Prz. Prawe*
I 3000 - B4000
I 2200 - B 3000* - 1600 jeśli Tylne Prawe*
7600
Условные
обозначения
:
I =
варочная
зона
с
простой
индукцией
B =
вольтодобавочное
устройство
:
индукционная
варочная
зона
может
иметь
дополнительное
электропитание
3000
Вт
* =
максимальная
мощность
будет
ограничена
до
тех
пор
,
пока
включено
вольтодобавочное
устройство
соответствующей
задней
индукционной
варочной
зоны
(
см
.
Включение
и
эксплуатация
).
80
RS
11/2011 - 195065943.05
XEROX FABRIANO
Изделие
:
Электрическая
рабочая
поверхность
Торговая
марка
:
Торговый
знак
изготовителя
:
Модель
:
KIC 630 B*
KIC 631 C**
KIC 631 T B**
KIC 631 T X**
KIC 631 T C*
KIC 633 T Z*
KIC 633 T X**
Изготовитель
: Indesit
Company
Страна
-
изготовитель
:
-*
Италия
, ** -
Польша
Номинальное
значение
напряжения
электропитания
или
диапазон
напряжения
220-240
Условное
обозначение
рода
электрического
тока
или
номинальная
частота
переменного
тока
50
Класс
зашиты
от
поражения
электрическим
током
Класс
защиты
I
Данное
изделие
соответствует
следующим
Директивам
Европейского
Сообщества
: 2006/95/CEE
от
12/12/06 (
Низкое
напряжение
)
с
последующими
изменениями
- 2004/108/
СЕЕ
от
15/12/04 (
Электромагнитная
совместимость
)
с
последующими
изменениями
- 93/68/
СЕЕ
от
22/07/93
с
последующими
изменениями
.
- 2002/96CEE
с
последующими
изменениями
В
случае
необходимости
получения
информации
по
сертификатам
соответствия
или
получения
копий
сертификатов
соответствия
на
данную
технику
,
Вы
можете
отправить
запрос
по
электронному
адресу
cert.rus@indesit.com.
Дату
производства
данной
техники
можно
получить
из
серийного
номера
,
расположенного
под
штрих
-
кодом
(S/N XXXXXXXXX *
XXXXXXXXXXX),
следующим
образом
:
- 1-
ая
цифра
в
S/N
соответствует
последней
цифре
года
,
- 2-
ая
и
3-
я
цифры
в
S/N -
порядковому
номеру
месяца
года
,
- 4-
ая
и
5-
ая
цифры
в
S/N -
числу
определенного
месяца
и
года
.
Производитель
:
Indesit Company S.p.A.
Виале
А
.
Мерлони
47, 60044,
Фабриано
(
АН
),
Италия
Импортер
:
ООО
"
Индезит
РУС
"
С
вопросами
(
в
России
)
обращаться
по
адресу
:
до
01.01.2011:
Россия
, 129223,
Москва
,
Проспект
Мира
,
ВВЦ
,
пав
. 46
с
01.01.2011:
Россия
, 127018,
Москва
,
ул
.
Двинцев
,
дом
12,
корп
. 1

