Kospel SW Termo Max: GB
GB: Kospel SW Termo Max

Connection to the central
CW
heatingsystem
ZG2
Cylindermustbettedtothecentral
C
heatingsystembypipeunions1’’or
PG2
¾’’ (SW100 / SW120 / SW140). A
GB
ZG1
cut-offvalvesmustbeinstalledbefore
thepipeunions.
Aowrateofheatingwatermustbe
high enough to maximise cylinder
efciency(seetechnicaldatatable).
PG1
ZB
Itconcernstheforcedcirculationin-
ZW
stallation(withacentralheatingwater
pump).SWcylinderisequippedwith
onecoil.SBcylinderisequippedwith
NW
SB
twocoilsforconnectiontoe.g.boiler
andsolarcollector system. SWZandSBZcylinders are equippedwithadditional
connectorsforexternalheatexchanger.
Connectiontothewater
system
Connectiontothewatersystemmustbeperformedaccordingtobindingnormsof
hydraulicinstallation.Thecylinderisapressureappliancedesignedforconnectionto
thewatersupplysystemwherethewaterpressuredoesn’texceed0,6MPa.Ifthewater
pressureexceeds0,6MPathepressurereducingvalvebeforecylindermustbetted.
Pleasefollowthewaterconnectioninstructionsbelow:
- install the T-connection with 6 bar safety valve (e.g. ZB-4) andthe drain
valvetotheinletttingofcoldwater[1].It’sforbiddentoinstallacut-offvalve
(oranyowreducer)betweentankandthesafetyvalveandonit’soutlet.
Thesafetyvalvemustbeinstalledinthatplacetoletyouquicklyseethe
outgoingwater,
- installthecylinderequippedwiththesafetyvalvetothewatersystem,
- installthecut-offvalveoncoldwatersupplypipe.
Hotwateroutletpipemustbeconnectedtothe¾’’tting,whichislocatedintheup-
perpartoftheunit.
Eachcylinderisequippedwith¾’’ttingfordomestichotwatercirculationconnection.
PL/DE/FR/GB/RU-036_f.441
21

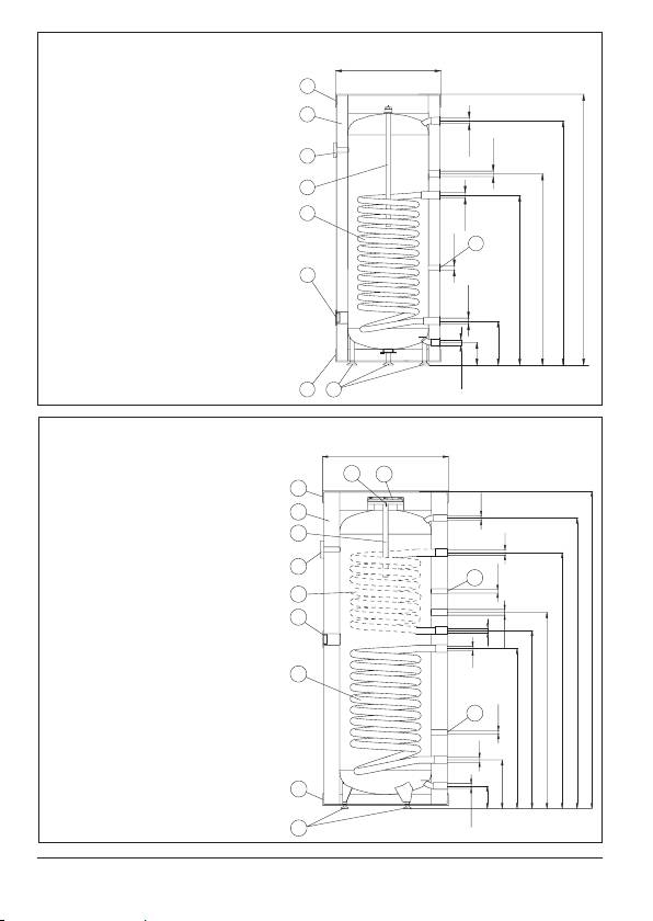
SW Cylinder construction (100/120/140 litres)
ø500
[6] - sensor pipe
[10] - immersion heater tting (cork 1½’’)
16
[11] - heating coil
15
CW
[13] - magnesium anode
[14] - thermometer
[15] - thermal insulation
G3/4
14
G3/4
[16] - upper lid
C
[17] - lower lid
13
ZG1
[18] - feet
ZW - cold water
11
H
G3/4
CW - hot water
G
C - circulation
6
G1/2
ZG1 - heating medium supply
E
PG1 - heating medium return
10
C
A-H - dimensions described in technical
G3/4
data table
PG1
ZW
214
111
G3/4
1817
SB/SBZ/SW/SWZ Cylinder construction (200 litres)
ø595
[6] - sensor pipe
2120
[10] - immersion heater tting (cork 1½’’)
16
[11] - lower heating coil
CW
G3/4
15
[12] - upper heating coil
13
[13] - magnesium anode
G1
ZG2
[14] - thermometer
[15] - thermal insulation
14
6
G1/2
[16] - upper lid
12
[17] - lower lid
C
[18] - feet
10
PG2
[20] - ø150 / 115 access hole
ZG1
G1
[21] - access hole cover
G3/4
1610
ZW - cold water
G1
1464
11
CW - hot water
1291
C - circulation
E
ZG1,ZG2 - heating medium supply
6
G1/2
903
PG1,PG2 - heating medium return
B, E - dimensions described in technical data
813
G1
PG1
table
An upper heating coil (ZG2,PG2
ZW
B
17
tting) and upper sensor pipe are
127
available in SB and SBZ only.
G3/4
18
22

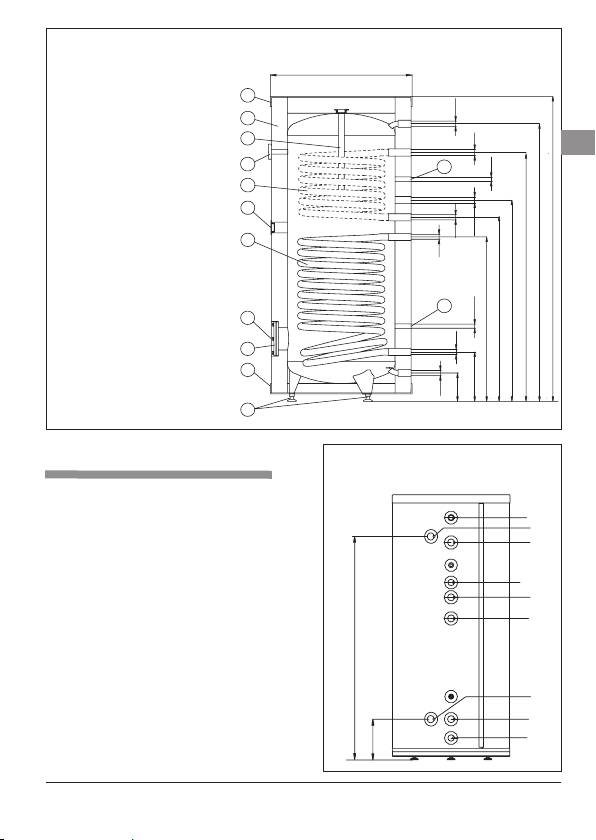
SB/SBZ/SW/SWZ Cylinder construction (250,300,400 litres)
[6] - sensor pipe
ø695 (250, 300)
[10] - immersion heater tting (cork 1½)’’
ø755 (400)
[11] - lower heating coil
16
[12] - upper heating coil
G3/4
15
CW
[13] - magnesium anode
[14] - thermometer
13
G1
ZG2
GB
[15] - thermal insulation
14
[16] - upper lid
6
G1/2
[17] - lower lid
12
C
[18] - feet
10
[20] - ø150 / 115 access hole
PG2
[21] - access hole cover
ZG1
G1
G3/4
ZW - cold water
11
CW - hot water
G1
H
C - circulation
G
ZG1,ZG2 - heating medium supply
F
E
PG1,PG2 - heating medium return
6
D
A-H - dimensions described in technical
G1/2
20
C
data table.
G1
PG1
21
ZW
17
B
An upper heating coil (ZG2,PG2
A
tting) and upper sensor pipe
G3/4
are available in SB and SBZ only.
18
Start up
Muff location for connection an external heat
exchanger (SWZ and SBZ only)
Check out thepipe connectionsand make
CW
sure that you observe the connection dia-
ZG3(1”)
gramsbeforestart-up.
ZG2
Cylinderlling:
• turnonthevalveoncoldwatersupply
C
pipe,
PG2
• turnonthehotwateroutletvalve(water
ZG1
outowwithouttheairbubblesindicates
thatthetankisfull),
I
• turnofftheoutletvalves.
Turnonthevalvesconnectingcylinderwith
the central and the solar collector heating
PG3(1”)
system.
PG1
Checkforwaterandheatingmediumleaks.
ZW
Checkoutthesafetyvalveperformanceinac-
B
cordancetovalvemanufacturer’sinstruction.
PL/DE/FR/GB/RU-036_f.441
23

Operation
Followtheguidelinesbelowforsafetyandtroublefreecylinderoperation:
• Checkoutthesafetyvalveperformanceonceevery14days.Donotusethe
cylinderifthewaterdoesnotcomeout(itindicatesthatthevalveisbroken).
• Cleaninsideofthecylinderperiodically.Thefrequencyofcleaningdependonthe
degreeofwaterhardness.Thecleaningshouldbedonebyanqualifiedperson.
• Thewearconditionoftheanodemustbeinspectedannually.
• Theanodemustbereplacedonceevery18months.
- anoderodreplacement[13](100/120/140/250/300/400litrescylinder):takeoff
theupperlid[16],takeoutaninsulationring,turnoffthecut-offvalveoncold
watersupplypipe,turnonthehotwatervalve(mixertap),turnthedrainvalve
on,drainasmuchwaterasyoucaneasilyscrewouttheanoderod(avoiding
roomooding),screwoffthecorkandscrewouttheanoderod,
- anoderodreplacement[13](200litrescylinder):takeoffthelid[16],takeout
aninsulationring,turnoffthecut-offvalveoncoldwatersupplypipe,turnon
thehotwatervalve(mixertap),turnthedrainvalveon,drainasmuchwater
asyoucaneasilyscrewouttheanoderod(avoidingroomooding),takeoff
theaccessholecover[21]andscrewouttheanoderod,
0
• Heatupthewaterabove70
Cperiodicallyforhygienereasons.
• Failuresormalfunctionsnotifytotheseller.
• Insulatetheoutletpipeandheatingcoilconnectionpipestominimisetheheat
loss(recommended).
Aboveactivitiesarebeyondofthescopeofwarrantyservice(shouldbedonebyuser).
Cylinder emptying
Followtheguidelinesbelowforsafetycylinderemptying:
• turnoffallvalvesconnectingcylinderwiththeheatingcircuit,
• turnoffthevalveoncylindercoldwatersupplypipe,
• turnonthedrainvalve.
24

