Alexika RV 10 control FLEX auto: ES
ES: Alexika RV 10 control FLEX auto
104
Idioma original: alemán
ES
Índice
Advertencia general sobre peligros
Peligro de quemadura!
Declaración del marcado
Página
Declaracion de conformidad de CE
3
Declaración del marcado
104
Garantía 104
Indicaciones de seguridad
105
Uso conforme al previsto
106
Desempacado 107
Informaciones importantes
107
Regulación del vacío: regulación de 2 puntos y regulación por velocidad
108
Instalación 109
Accionamiento RV 10 control
Baño calefactor
Equipo de vidrio
Manguera
Interfaces y salidas
117
Puesta en servicio
119
Mantenimiento y limpieza
131
Accesorios 131
Códigos de error
134
Datos técnicos
135
Tabla de disolvente (selección)
136
Según las condiciones de garantía
IKA
®
el plazo correspondiente asci-
ende a 24 meses. En caso de garantía, diríjase a su comer ciante del
ramo. El aparato se puede enviar también con la factura de entrega y los
motivos de la reclamación directamente a nuestra fábrica. Los gastos de
transportes corren por su cuenta.
Garantia
La garantía no se aplica a los componentes de desgaste ni a los errores
que puedan surgir como consecuencia de una manipulación incorrecta
o de un cuidado o mantenimiento del aparato que no se adecuen a lo
estipulado en estas instrucciones de uso.
105
Indicaciones de seguridad
•
Adapte la cantidad y el tiempo de material a destilar al tamaño del equipo
de destilación. El refrigerador debe tener un potencial de acción suficiente.
Además, el flujo del refrigerante debe vigilarse a la salida del refrigerador.
• Ventile siempre la estructura de vidrio si trabaja a presión normal (por
ejemplo, con la salida abierta del refrigerador), pues así evitará que se
forme presión.
•
Tenga en cuenta que, si se produce una concentración peligrosa de ga-
ses, vapores o partículas en suspensión, estas sustancias pueden escapar-
se por la salida abierta del refrigerador. Asegúrese de que el sistema no
entraña ningún peligro incorporando, por ejemplo, trampas de enfria-
miento, botellas lavadoras de gas o realizando una aspiración profunda.
• Los recipientes de vidrio evacuados no pueden calentarse unilateral
-
mente; además, el émbolo del evaporador debe estar girando de forma
continua durante la fase de calentamiento.
• El equipo está diseñado para utilizarlo en un vacío de hasta 1 mbar. En
las destilaciones al vacío, todos los equipos deberán evacuarse antes
de comenzar el calentamiento (consulte el capítulo relativo a la puesta
en marcha). Todos los equipos deberán volver a ventilarse después de
la refrigeración. En las destilaciones al vacío, los vapores no condensa-
dos deberán condensarse a la salida o eliminarse mediante un proce-
dimiento seguro. Si existe el peligro de que los restos de destilación se
descompongan en presencia de oxígeno, sólo podrá introducirse gas
inerte para desahogar la instalación.
•
Atención:
Evite que se formen peróxidos. En los restos de destilación
y evaporación pueden concentrarse peróxidos orgánicos, lo que puede
entrañar un riesgo de explosión.
Guarde los líquidos que tienden a formar peróxidos en un lugar que
esté protegido de la luz y, sobre todo, de la radiación UB y, en cu-
alquier caso, asegúrese de que no hay presencia de peróxidos antes
de realizar cualquier labor e destilación o evaporación. En el caso de
encontrar peróxidos, retírelos. Tienden a formar peróxidos numerosos
compuestos orgánicos, como son el delkalin, el dietiléter, el dioxano, el
tetrahidrofurano y, además, algunos hidrocarburos no saturados, como
el tetralin, el dieno, el cumol y el aldehído, la acetona y soluciones de
estas sustancias.
•
Peligro de quemadura:
El baño calefactor, así como el líquido de atem-
perado, el matraz de evaporación y la estructura de vidrio pueden calen-
tarse si el dispositivo se utiliza durante un período prolongado. Espere a
que los componentes se enfríen antes de seguir utilizando el aparato.
•
Atención:
Evite que se produzcan retardos en la ebullición! No caliente
el émbolo del evaporador en baño caliente sin acoplar también el acci-
onamiento rotativo. Si se produce una formación repentina de espuma
o de salida de gas, significa que el interior del matraz está empezan-
do a descomponerse, por lo que deberá interrumpir el calentamiento
de inmediato. Utilice el aparato de elevación para elevar el matraz de
evaporación y extraerlo del baño calefactor. Vacíe el área en peligro e
incluya las advertencias correspondientes en el entorno.
•
Atención:
No utilice nunca el aparato si el matraz de evaporación está
girando y el elevador está elevado. Comience con una velocidad baja y
baje el matraz de evaporación hacia el baño calefactor; a continuación,
aumente hasta la velocidad deseada. rotación. De lo contrario, existe el
riesgo de que se produzcan salpicaduras del fluido caliente.!
• Ajuste la velocidad del accionamiento de modo que la rotación de los
matraces de evaporación en el baño calefactor no proyecte medio de
atemperado y, en caso necesario, reduzca dicha velocidad.
• No toque los componentes giratorios durante el funcionamiento.
• Las fuerzas centrífugas excéntricas pueden producir fenómenos de re
-
sonancia incontrolados del dispositivo o de la estructura, lo que a su
vez puede dañar o destrozar el conjunto de aparatos. Desconecte in-
mediatamente el aparato si se producen fuerzas centrífugas excéntricas
o ruidos poco habituales, o bien reduzca la velocidad.
• Después de un fallo en la corriente puede producirse una baja presión
en el equipo de vidrio. El equipo se ventila automáticamente cuando
se vuelve a encender.
• El aparato no arranca de nuevo después de un corte de corriente.
• El aparato sólo puede desconectarse de la red eléctrica si se pulsa el
interruptor correspondiente del mismo o si se desenchufa el cable de
alimentación.
• La toma de corriente de la pared debe encontrarse en un lugar acce
-
sible para el usuario.
Para su protección
•
Lea todas las instrucciones de uso antes de la
puesta en marcha y siga siempre las instrucciones
de seguridad.
• Mantenga estas instrucciones de uso en un lugar al que
todos puedan acceder fácilmente.
• Asegúrese de que el aparato sea utilizado únicamente por personal
debidamente formado y cualificado.
• Siga siempre las advertencias de seguridad, las directivas legales que
correspondan y las normativas sobre protección laboral y prevención
de accidentes.
Sobre todo en los trabajos que se realicen en con-
diciones de vacío!
• Lleve siempre el equipo de protección que corresponda a la clase de
peligro del fluido que vaya a manipular. De lo contrario, puede sufrir
daños debido a:
- a salpicadura de líquidos
- el aplastamiento de partes del cuerpo, cabello, ropa o joyas
- la rotura del cristal.
• Tenga en cuenta que el usuario puede verse en peligro si inhala o entra
en contacto con determinados fluidos, como son los líquidos, vapores,
humos o polvos tóxicos, así como las sustancias microbiológicas.
• Coloque el aparato en una área espaciosa de superficie horizontal,
estable, limpia, protegida frente a deslizamientos, seca e ignífuga.
• Asegúrese de que haya una suficiente distancia respecto al suelo, pu
-
esto que la estructura de vidrio puede sobrepasar la altura del aparato.
• Revise antes de cada utilización el aparato, sus accesorios y, sobre todo,
los componentes de vidrio para asegurarse de que no presentan daños.
No utilice ningún componente dañado.
• Asegúrese de que la estructura de vidrio no presente tensiones. Existe
peligro de reventón si:
- se forman tensiones como consecuencia de un montaje incorrecto,
- se reciben influencias mecánicas del exterior,
- se producen picos de temperatura locales.
• Asegúrese de que el aparato no se mueve ni desvía por la acción de
vibraciones o masas centrífugas excéntricas.
• Tenga en cuenta el peligro que entrañan,
- los materiales inflamables,
- los fluidos inflamables con una temperatura de ebullición baja
•
Atención:
Este aparato sólo puede procesar o calentar
fluidos cuyo punto de inflamación se encuentre por en-
cima del límite de temperatura de seguridad establecido
para el baño calefactor.
El límite de temperatura de seguridad establecido para el baño calefac-
tor debe estar siempre por lo menos 25 °C por debajo del punto de
combustión del fluido utilizado.
•
No
utilice el aparato en entornos con peligros de explosión, ni tampo-
co con sustancias peligrosas ni debajo del agua.
• Procese únicamente fluidos que no generen una energía peligro- sa
durante su procesamiento. Esto también se aplica a otras entradas de
energía, como es la radiación incidente de luz.
• Los procesos electrostáticos pueden entrañar ciertos riesgos.
• Los trabajos con el aparato sólo pueden realizarse en entornos vigi
-
lados.
• El aparato no puede utilizarse en condiciones de sobrepresión (para co
-
nocer la presión del agua de refrigeración, consulte "Datos técnicos").
• Con el fin refrigerar adecuadamente la unidad de accionamiento, no
cubra las ranuras de ventilación.
• Entre el líquido y el aparato pueden producirse descargas electrostáti
-
cas que, a su vez, pueden suponer un peligro inmediato.
• El equipo no está concebido para un funcionamiento manual.
• El trabajo seguro con el aparato sólo estará garantizado si se incluyen
los accesorios que se mencionan en el capítulo dedica do a dichos
componentes.
• Observe las instrucciones de uso del baño calefactor HB 10.
• Observe asimismo las instrucciones de uso de los accesorios, como es
la bomba de vacío.
• Utilice la cubierta de protección HB 10.2 o la placa de protección frente
a salpicaduras HB 10.1.
• El aparato sólo se puede utilizarse debajo de una campana de ventila
-
ción que esté cerrada por todos lados, o en conjunto con dispositivos
de protección similares.
106
Además del funcionamiento manual pueden seleccionarse los siguien-
tes modos automatizados:
- 100% de destilación,
- Destilación dependiente del volumen o de las cantidades.
sición tope inferior y accione la tecla "Power" (Alimentación) del pane-
frontal, o bien el interruptor principal de la parte trasera derecha del
aparato con el peso máximo total de 3,1 kg.
El matraz de evaporación se eleva del baño calefactor.
En la primera puesta en servicio, así como cuando el equipo ha estado
parado durante bastante tiempo, proceda tal como se indica a conti-
nuación: Desplace el elevador de forma motora hacia la posición tope
inferior y superior accionando las teclas de función de elevación antes de
interrumpir la tensión de red.
Nota: La desconexión y la interrupción de la tensión de red presenta
un cierto retraso respecto a la desconexión con el interruptor "Power"
(Alimentación) del panel frontal.
Si el mecanismo de elevación de seguridad no funciona, póngase en
contacto con el departamento de servicio técnico de
IKA
®
.
En el lado del evaporador (matraz de evaporación más contenido) el peso
máximo permitido es de 3,0 kg. Una carga superior entraña el riesgo de
que el vidrio se rompa en el tubo de conducción de vapor.
Tenga en cuenta que en este caso el mecanismo de elevación de seguri-
dad está fuera de servicio.
Cuando haya cargas grandes trabaje siempre con velocidades lentas.
Unas fuerzas centrífugas grandes provocan la rotura del tubo de con-
ducción del vapor.
• Las piezas extraíbles del aparato deben volver a incorporarse en el mis
-
mo para evitar la penetración de objetos ex-traños, líquidos u otras
sustancias.
• Procure que el aparato no sufra golpes ni impactos.
• Trabajo automatizado: verifique y compruebe los procesos de evapora
-
ción antes de dejar que transcurran de forma automatizada. Los pro-
cesos de evaporación desconocidos no pueden transcurrir de forma
automatizada!
Mecanismo de elevación de seguridad
Al desconectar el aparato o desenchufarlo de la red eléctrica se activa el
mecanismo de elevación de seguridad, lo que extrae el matraz de evapo-
ración del baño calefactor.
El mecanismo de elevación de seguridad cuando no hay corriente está
concebido para un peso total máximo (equipo de vidrio más disolventes)
de 3,1 kg.
Ejemplo para el cálculo del peso total con un equipo de vidrio vertical
con un matraz de 1 litro:
Refrigerador + matraz de recepción + matraz de evaporación + piezas pequeñas =
1200 g
+ 400 g
+ 280 g + 100 g = 1980 g
Máxima carga de disolventes = 3100 g – 1980 g = 1320 g
Con cargas más altas el mecanismo de elevación de seguridad puede no
estar garantizado en función del tipo de construcción.
Si se utilizan otros tipos de refrigeradores, como pueden ser los de hielo seco
o los intensivos, así como cuando se utilizan piezas de distribución de desti-
lación de reflujo con refrigerador encajable, puede que sea necesario reducir
la carga máxima de acuerdo con el sobrepeso de estas estructuras de vidrio.
Así pues, antes de comenzar la destilación compruebe si el elevador pro-
visto de equipo de vidrio y producto de destilación se desplaza hacia
arriba cuando no hay corriente.
El mecanismo de elevación de seguridad debe comprobarse todos los
días antes del servicio. Desplace el elevador de forma motora a la po-
Para proteger el aparato
• Los datos de tensión de la placa identificadora deben coincidir con la
tensión real de la red.
• La caja de enchufe utilizada debe estar puesta a tierra (contacto de
conductor protector).
• El aparato puede ser abierto por el personal del servicio técnico.
Uso conforme al previsto
•
Área de aplicación
- Laboratorios
- Escuelas
- Farmacias
- Universidades
La protección para el usuario no puede garantizarse si el aparato se utili-
za con accesorios que no hayan sido suministrados o recomendados por
el fabricante, si se realiza un uso indebido del aparato en contra de las
especificaciones del fabricante, o si una tercera persona no autorizada
efectúa cambios en el aparato o en el tablero de circuitos impresos.
•
Aplicación
En combinación con los accesorios correspondientes recomendados
por
IKA
®
, el aparato es adecuado para:
- la destilación rápida y cuidadosa de líquidos
- la evaporación de soluciones y suspensiones
- la cristalización, la síntesis o la limpieza de productos químicos puros
- el secado de polvos y granulados
- el reciclado de disolventes
Modos de funcionamiento: Aparato de sobremesa
107
Informaciones importantes
una nueva adaptación de la carga máxima del refrigerador.
La configuración de fábrica para este valor es 900 W
El aparato está provisto de un mecanismo de elevamiento de seguridad
para el matraz. El equipo de vidrio puede quedar con vacío después de
un fallo en la corriente; así pues, vuelva a airearla cuando la vuelva a
encender. Si se produce un fallo en la corriente, el matraz, que eleva éste
automáticamente mediante un resorte de presión de gas y lo extrae del
baño calefactor.
Atención:
El mecanismo de elevación de seguridad debe comprobarse
todos los días antes del servicio. Véase a tal fin el capítulo "Advertencias
de seguridad - Elevación de seguridad".
Con el rotavapor RV10 control, no sólo puede realizar todas las oper-
aciones de evaporación manuales y semiautomáticas, sino también los
procesos de evaporación totalmente automáticos y controlados por can-
tidad. Para ello, el aparato está equipado de manera predeterminada con
un controlador de vacío, sensores de medición de temperatura diferenci-
al de agua de refrigeración y un caudalímetro de agua de refrigeración.
El controlador de vacío integrado permite regular el vacío con la bomba,
tanto en funcionamiento de dos puntos, como en el modo regulado por
velocidad. El aparato está diseñado para el uso en un suministro de agua
de refrigeración (por ejemplo, termostato de laboratorio), pero también
puede utilizarse con agua corriente. Tenga en cuenta en este caso los
datos técnicos en lo que se refiere a la presión, la constancia de tempe-
ratura y el caudal del agua de refrigeración.
Si utiliza el equipo con agua corriente recomendamos usar la válvula es-
tranguladora RV 10,5001.
Esta válvula permite ajustar el caudal del agua de refrigeración, así como
interrumpir la alimentación del agua de refrigeración de forma automáti-
ca después de una destilación.
El filtro de agua RV 10,5002 permite retener partículas de suciedad del
agua corriente ante la técnica de válvulas.
Para reducir la presión recomendados colocar la válvula reguladora de presi-
ón RV 10,5003 directamente en la conexión después del punto de recepción.
Destilación automatizada dependiente del volumen:
el aparato
debe colocarse en la temperatura de servicio. Esto se consigue con una
destilación de prueba.
La destilación es un procedimiento de separación térmica para compues-
tos líquidos que se basa en puntos de ebullición específicos de las sustan-
cias y dependientes de la presión y consiste en realizar una evaporación
y, a continuación, una condensación.
La temperatura correspondiente al punto de ebullición se reduce cuando
disminuye la presión externa, por lo que, por lo general, se trabaja a una
presión baja, ya que así es posible mantener una temperatura constante
del baño calefactor (por ejemplo, 60 °C). A través del vacío se ajusta
entonces el punto de ebullición, con una temperatura del vapor de unos
40 °C.Por su parte, el agua de refrigeración del refrigerador de conden-
sación no debe superar los
20 °C (regla de 60-40-20).
Para crear el vacío, utilice una bomba de membrana resistente a los pro-
ductos químicos que disponga además de un controlador de vacío y esté
protegida frente a los restos de disolvente mediante la intercalación de
una botella de Woulfe y/o un separador de vacío.
La utilización de una bomba de chorro de agua para generar el vacío sólo
está recomendada en ocasiones muy concretas, puesto que en estos sis-
temas puede producirse una contaminación del medio ambiente como
consecuencia de los disolventes.
El rendimiento de evaporación se ve influido por la velocidad, la tempe-
ratura el tamaño del matraz y la presión del sistema.
La carga de trabajo óptima del refrigerador de paso es de aprox. el 60%.
Lo que corresponde a una condensación de aprox. 2/3 de la hélice del
refrigerador. Si la carga de trabajo es mayor, existe el riesgo de que el
vapor de disolvente no condensado se aspire también.
Para evitar esto, puede activar la supervisión de la seguridad de la carga del
refrigerador. Realice a tal fin varias destilaciones y tome el valor del menú
"Configuración", elemento "Accionamiento", punto "Máxima potencia de
refrigeración". Calcule la potencia del refrigerador según la fórmula siguiente:
Valor límite de la potencia del refrigerador = Máxima potencia del refri-
gerador * 1.3
Introduzca este valor en el menú "Configuración", elemento "Destilaci-
ón", punto "Límite potencia del refrigerador". A continuación, el aparato
termina la medición si se supera el valor límite del refrigerador y presenta
un mensaje de error. La modificación de la configuración de la estructura
del refrigerador o de la configuración de la destilación exige, en su caso,
Desempacado
•
Desempacado
- Desembale el aparato con cuidado
- Si observa desperfectos, rellene enseguida el registro correspon-
diente (correo, ferrocarril o empresa de transportes)
•
Volumen de suministro
consulte la tabla
RV
10
control
V
x x x x x x x x x x x x
RV
10
control
V-C x x x x x x x x x x x x
RV
10
control
FLEX x x x x x x x x x x x
RV
10
control
V
auto x x x x x x x x x x x x
RV
10
control
V-C
auto x x x x x x x x x x x x
RV
10
control
FLEX
auto x x x x x x x x x x x
A
ccionamiento RV 10 contr
ol
Baño calefactor HB 10
Equipo de vidrio vertical RV 10.1
Equipo de vidrio vertical RV 10.10 r
ecubierto
Botel
la de W
oulfe
Soporte
Pr
otección del r
efriger
ador completa
Tubo de vacío (2 x 0,55 m)
Tubo de descar
ga de agua (1 x 1 m)
Instrucciones de manejo
Llave poligona
As
a
RV 10.4002 Válvula de vacío par
a el vacío de labor
atorio
Bomba de vacío N 920 contr
olada por velocidad
108
Gracias a su controlador de vacío integrado y su sensor de presión, el rotavapor RV10 control ofrece la posibilidad de regular el vacío deseado medi-
ante una regulación de dos puntos o a través de la regulación por velocidad.
Regulación de dos puntos
La bomba de vacío permite evacuar el equipo de vidrio. La bomba de vacío funciona con una velocidad constante que, por regla general, no puede
ajustarse.
Si se alcanza el valor nominal ajustado, la válvula de vacío RV 10.4002 interrumpe el conducto de aspiración (volumen de suministro). Si además se
desea el encendido y el apagado automáticos de la bomba de vacío, puede utilizar el sistema de control de la bomba RV 10.4003 (accesorio).
Debido a la diferencia temporal en la detección del valor de vacío, la comparación del valor nominal y la conmutación de la válvula de vacío en el
margen de los milisegundos, se llega a un valor ligeramente inferior al valor nominal ajustado.
La fuga natural del aparato provoca ahora un aumento del valor de presión en el sistema, que a su vez se detecta a través del sensor de presión
integrado.
Si se sobrepasa el valor nominal, la válvula de vacío se abre de nuevo y la bomba de vacío en marcha vuelve a disminuir la presión. La curva de presión
mostrada en la pantalla oscila en el valor nominal ajustado.
La diferencia de presión entre la conexión y la desconexión de la válvula puede ajustarse a través del valor de histéresis de vacío (véase Ajuste: Vacío).
De manera predeterminada el valor se ajusta a 10 mbar.
La calidad de la regulación depende de la potencia de aspiración de la bomba (velocidad), la estanqueidad del sistema y el tiempo de funcionamiento
de la señal del sistema electrónico utilizado.
Con la regulación de dos puntos no es un posible una detección automática del punto de ebullición.
Representación esquemática de una regulación de vacío de dos puntos
Regulación de vacío por velocidad
Las imprecisiones de la regulación de dos puntos se evitan en la regulación de vacío por velocidad.
No obstante, para la regulación de vacío por velocidad se necesita una bomba de vacío en la que se pueda controlar la velocidad; la válvula de vacío
RV10.4002 no se necesita y no puede conectarse.
Conecte a tal fin la bomba de vacío (por ejemplo, bomba controlada por velocidad KNF N920) en el puerto posterior del rotavapor.
En este modo de regulación, la velocidad de la bomba y, en consecuencia, su potencia de aspiración, se reducen cuanto más cerca está el valor de
presión medido del valor nominal. Si se alcanza el valor nominal, la bomba funciona solo según el índice de fugas.
Así es posible trabajar de forma más silenciosa y realizar una regulación del vacío más precisa.
La regulación del vacío por velocidad se ajusta automáticamente en el RV10 control en cuanto se conecta una bomba de vacío adecuada.
Con este tipo de regulación es posible una detección automática del punto de ebullición, es decir, el sistema busca el punto de ebullición del disolvente
y lo mantiene en el modo automático.
Como, al contrario de lo que ocurre en la destilación dependiente del volumen, el disolvente no tiene por qué conocerse en la detección automática
del punto de ebullición, estos modos de trabajo distintos se excluyen entre sí.
Representación esquemática de una regulación de vacío por velocidad
Regulación del vacio: regulación de dos puntos y regulación por velocidad
109
Instalación
Afloje el dispositivo de apriete para ajustar el ángulo del accionamiento de
rotación que se encuentra en el lado derecho del elevador girando el tornillo
del asa (E) en el sentido contrario a las agujas del reloj (si presiona ligeramente
el tornillo del asa (E) al tiempo que lo gira, éste puede seguir extrayéndose).
Ajuste el accionamiento a un ángulo de aprox. 30° (fig. 7).
Acto seguido, asegure el accionamiento de rotación frente a torsión
apretando el tornillo del asa en el sentido de las agujas del reloj.
Baño calefactor HB 10
Atención:
Observe las instrucciones de uso del baño calefactor y, sobre
todo, el capítulo relativo a la puesta en marcha.
Coloque el baño calefactor en la superficie de ajuste del accionamien-
to de rotación y desplácelo a la posición izquierda (fig. 8).
Nota: El intercambio de datos entre la unidad de accionamiento y el
baño calefactor se realiza mediante una interfaz de infrarrojos. Tenga
en cuenta que la comunicación sólo está garantizada si el recorrido de
luz está libre y no se interrumpe.
Equipo de vidrio
Abra el inmovilizador del del tubo de paso de vapor (G) girando éste
60° en el sentido contrario a las agujas del reloj, (fig. 9).
Accionamiento RV 10 control
Atención: Quite el dispositivo de protección para el transporte (fig. 4a)!
Sostenga el elevador con la mano y retire el tornillo moleteado de la
parte posterior del aparato (A).
Una vez retirado el dispositivo de protección para el transporte, el
elevador se desplaza lentamente hacia al fin de carrera superior. El des-
plazamiento es de unos 140 mm.
Conecte el aparato al sistema de alimentación utilizando el cable in-
cluido en el volumen de suministro (B).
Pie ajustable (fig. 4b)
Montaje de la botella de Woulfe (fig. 5)
Monte la pieza de conexión de la manguera (C) en el lado izquierdo.
Monte el soporte (D) en la pieza de conexión de la manguera (C).
Coloque la botella y monte en la misma las conexiones de mangueras
incluidas en el volumen de suministro (fig. 6)
Fig. 4a
Fig. 4b
Fig. 5
E
F
G
H
Fig. 6
Fig. 7
Fig. 8
Fig. 9
C
D
110
Ante puesta en servizio - Montaje del junta RV 10.8001
Monte el tubo de paso del vapor(1).
Monte la junta RV 10.8001 (2).
Desplace la tuerca de racor (3b) a través de la brida del refrigerador (3a).
Desplace también el anillo elástico (3c) a través de la brida del refri-
gerador (3a).
Coloque el refrigerador (3a) sobre la junta (2).
Apriete la tuerca de racor (3b) a mano
Nota: Siga las instrucciones de montaje del equipo de vidrio.
Montaje de la protección del refrigerador del equipo de vidrio vertical
Monte la protección del refrigerador según se indica en la ilustración (fig. 12).
Monte la chapa (I) con el tornillo moleteado (J).
Introduzca la varilla de soporte (L) en la chapa (I) y fíjela con la tuerca (K).
Incorpore la protección de goma (M).
Sujete la cinta de velcro
®
(N) en la varilla de soporte (L).
Sujete el equipo de vidrio vertical con la cinta de velcro
®
(N).
Introduzca el tubo de paso de vapor hasta el tope.
Bloque a continuación este inmovilizador girándolo 60° en el sentido
de las agujas del reloj (fig. 10).
Compruebe el inmovilizador axial del tubo de paso de vapor.
Dispositivo de empuje
La tuerca de plástico (H) sirve como ayuda de empuje para conexiones
esmeriladas del matraz (Fig. 10).
Sujete el inmovilizador (G) y afloje la tuerca de plástico (H).
Sostenga el matraz de evaporación fijo y gire la tuerca de plástico (H)
hasta el cuello del matraz de evaporación.
Nota: Antes de la puesta en marcha, apriete la tuerca de plástico (H) ma-
nualmente hacia la izquierda. A este respecto puede retener el bloqueo
(G) del tubo de conducción de vapor.
Uso de la junta del refrigerador
Coloque la junta del refrigerador RV 10.8001 en el alojamiento del
radiador y monte el equipo de vidrio en el aparato según se indica en
las instrucciones de montaje (fig. 11 a, b y c).
Fig. 10
H
Fig. 11a
Fig. 11b
1
2
3a
3b
Fig. 11c
Fig. 12
I
J
M
N
L
K
G
111
4
7
8
6
12
9
3
10
5
13
15
16
Accionamiento de rotación
Equipo de vidrio
RV 10.2 diagonal
RV 10.20 diagonal, recubierto
Equipo de vidrio
RV 10.1 vertical
RV 10.10 vertical, recubierto
Accionamiento de rotación
2
10
00
m
l
N
S2
9/
32
1
11
13
12
5
4
7
8
6
15
9
3
2
10
16
11
1
10
00
m
l
N
S2
9/
32
Equipo de vidrio
Pos. Designación
Cantidad
Cantidad
Equipo de vidrio diagonal
Equipo de vidrio vertical
1
Matraz de recepción
1
1
2
Pinza de fijación NS 29
1
1
3
Tubo de paso del vapor
1
1
4
Llave de cierre
1
1
5 Tubo
1
1
6
Refrigerador
1 refrigerador diagonal
1 refrigerador vertical
7
Conexión
1 manguito de introducción
1 conexión de vacío
8
Pinza de fijación NS 29
1
1
9
Junta RV 10.8001
1
1
10
Matraz de evaporación de 1000 ml
1
1
11
Pinza de rótula rectificada RV 05.10
1
1
12
Tapón de la conexión roscada
4
4
13
Conexión de manguera
4
4
15
Tuerca de seguridad
1
1
16
Anillo elástico
1
1
Montaje del equipo de vidrio
Descripción del refrigerador especial
•
RV 10.3 Refrigerador vertical intensivo con pieza de distribución
Refrigerador vertical intensivo realizado con doble revestimiento, lo que
permite unas condensaciones especialmente eficaces.
También disponible en modelo recubierto (RV 10.30)
•
RV 10.4 Radiador de hielo seco
Refrigerador por hielo seco para la destilación de disolventes con un
punto de ebullición bajo.
Refrigeración mediante hielo seco; no se necesita agua de refrigeraci-
ón; máxima condensación gracias a las bajas temperaturas.
Version disponible avec revêtement (RV 10.40)
(No puede utilizarse en el modo automático del RV10 control)
• RV 10.5 Refrigerador vertical con pieza de distribución y válvula
de bloqueo para la destilación de reflujo
También disponible en modelo recubierto (RV 10.50)
•
RV 10.6 Refrigerador vertical intensivo con pieza de distribución y
válvula de bloqueo para la destilación de reflujo
Refrigerador vertical intensivo realizado con doble revestimiento, lo que
permite unas destilaciones de reflujo especialmente eficaces.
También disponible en modelo recubierto (RV 10.60)
Desmontaje del radiador
Utilice la llave poligonal incluida para aflojar la tuerca de racor fija
Afloje la tuerca de racor girándola hacia la izquierda.
Afloje la cinta de velcro
®
.
Fig. 13
112
Tendido de mangueras
Representación esquemática de las conexiones de mangueras (vista posterior)
Fig. 14
2x T1,6A 250V
Agua
Vacío
RV 10.5001
Drosselventil
Wasser
optional
Caudalí-
metro
Agua
Sensor de presió
y
válvula de ventilación
RV 10.4002
Válvula de vacío
113
Conexión RV 10.4003
Regulación de vacío de dos puntos
Monte una de las válvulas de vacío opcionales RV 10.4001 o RV
10.4002 o RV 10,4003, conforme a su instalación de vacío, en el so-
porte previsto a tal fin y conecte la manguera de vacío con la válvula
(Fig. 15a, b, c).
Conexión RV 10.4001
Conexión RV 10.4002
Bobina de giro libre
La dirección de aspiración
corresponde a la identificaci-
ón de la flecha.
Asegúrese de que la posición
de montaje es la correcta.
Fig. 15a
Bobina de giro libre
La dirección de aspiración
corresponde a la identificaci-
ón de la flecha.
Asegúrese de que la posición
de montaje es la correcta.
Bobina de giro libre
La dirección de aspiración
corresponde a la identificaci-
ón de la flecha.
Asegúrese de que la posición
de montaje es la correcta.
Fig. 15a
Fig. 15b
Fig. 15c
Alimentación
red bomba
114
Fig. 15d
Fig. 15e
Regulación de vacío controlada por volumen
Para una regulación del vacío con una bomba regulada por velocidad
no se necesita ninguna válvula adicional. Conecte la manguera de as-
piración de la bomba directamente a la conexión de la manguera del
sensor de presión.
Conecte el conducto de control eléctrico con el RV10 control (Fig. 15e).
Conexión de los sensores de medición de temperatura RV10 (dT)
Conecte el sensor de medición de la temperatura en la toma inferior (dT).
Observe las indicaciones de la flecha.
Fig. 15f
dT
115
Conecte la manguera de descarga de agua incluida en el volumen de
suministro insertando la boquilla hasta el tope en el casquillo de cone-
xión (Fig. 18).
Atención
: Asegúrese de que la entrada y la salida del refrigerador estén
correctamente conectadas.
Si las mangueras de entrada y descarga de agua no se montan confor-
me a la descripción o lo expuesto en la figura 14, no pueden realizarse
destilaciones automáticas, pues lo valores de temperatura de entrada y
salida no se calcularán correctamente
Afloje la conexión de manguera con el asa contenida en el volumen de
suministro.
Agua
Conecte la entrada de agua a su suministro de agua (Fig. 16a; Fig. 16b
con válvula de estrangulación de agua opcional RV 10.5001). Tenga en
cuenta los datos técnicos relativos al suministro de agua.
La válvula de estrangulación de agua RV 10.5001 no resulta adecuada para
el uso en el grupo refrigerador, porque el caudal se reduce demasiado.
Conecte las mangueras de agua en el refrigerador de vidrio (manguera
corta (O) = salida abajo, manguera larga (P) = entrada arriba) y fija las
mangueras (Fig. 17).
Nota: Para conocer más detalles sobre el refrigerador especial, consulte el
capítulo "Descripción del refrigerador especial".
Fig. 16a
Fig. 16b
Fig. 17
O
P
Fig. 18
Fig. 19
Entrada del
refrigerador
Salida del
refrigerador
Entrada
del agua
Entrada
del agua
116
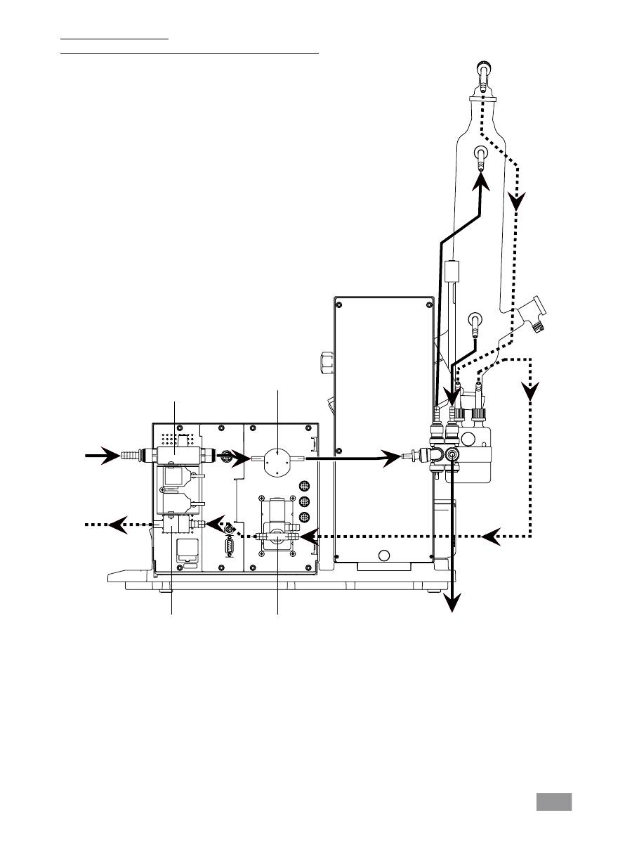
Representación esquemática de las conexiones; vista posterior
Inserte el cable de conexión de la válvula (válvula RV 10.5001 o RV 10.4001/2, o RV 10.4003) o el cable de conexión (bomba RV 10.4003 control) en el
casquillo previsto (fig. 20) o conecte la bomba de vacío regulada por velocidad. De este modo el RV10 control cambia automáticamente a la regulación
de vacío por velocidad.
Fig. 20
Conecte el sensor de presión y la botella de Woulfe, así como la botella
de Woulfe y la conexión de vacío del refrigerador con las mangueras de
vacío contenidas en el volumen de suministro. Asegúrese de que el vacío
se conecte siempre en el punto de conexión más alto del refrigerador
(Fig. 21).
Fig. 21
117
Interface en serie RS 232 (V24)
Configuración
- La función de los conductos de interfaz entre el aparato y el sistema de
automatización representa una selección de las señales especificadas
en la norma EIA RS232 C, según la norma DIN 66 020 Parte 1.
- Para las características eléctricas de las conducciones de interfaces y la
coordinación de los estados de señal rige la norma RS 232 C, según
DIN 55259, parte 1.
- Procedimiento de transmisión: transmisión de caracteres asincrónica en
el servicio de start-stop.
- Clase de transmisión: totalmente duplex.
- Formato de caracteres: representación de caracteres según el formato
de datos en DIN 66022 para servicio de start-stop. 1bit de start, 7 bits
de caracteres, 1 bit de paridad (par = Even), 1 bit de stop.
- Velocidad de transmisión: 9600 Bit/s
- Control de flujo de datos: Ninguno
- Procedimiento de acceso: una transmisión de datos del agitador al or-
denador tiene lugar sólo contra demanda del ordenador.
Sintaxis de comando y formato
Para el conjunto de comandos rige lo siguiente:
- Por lo general los comandos se envían del ordenador (Master) al aparato
(Slave).
- El aparato sólo envía datos si recibe la solicitud del ordenador. Ni siquiera
los mensajes de error pueden enviarse de forma espontánea del aparato
al ordenador (sistema de automatización).
- Los comandos se transmiten en letras mayúsculas.
- Los comandos y los parámetros así como los parámetros sucesivos se
separan por lo menos con un espacio (código: hex 0x20).
- Cada comando individual (incl. parámetros y datos) y cada respues ta se
finalizan con blank CR LF (código: hex 0x20 hex 0x0d hex 0x20 hex 0x0A)
y tienen una longitud máxima de 80 caracteres.
- El carácter de separación decimal en un número de coma flotante es el
punto (código: hex 0y2E).
Las versiones anteriores corresponden ampliamente a las recomendaciones
del círculo de trabajo NAMUR. (Recomendaciones NAMUR para la ejecu-
ción de conexiones por enchufe eléctricas para la transmisión de señales
analógicas y digitales en aparatos individuales MSR de laboratorio: Rev 1.1.
Los comandos NAMUR y los comandos específicos
IKA
®
adicionales sirven
sólo como comandos low level para la comunicación entre el aparato y el
ordenador PC. Estos comandos se pueden transmitir con un programa de
terminal o comunicación apropiado directamente al aparato.
Labworldsoft es un cómodo paquete de software de
IKA
®
que se utiliza
en el sistema de MS Windows para controlar el aparato y para recopilar los
datos del mismo; además, también permite introducir datos gráficos de,
por ejemplo, las rampas de velocidad.
A continuación, aparece un cuadro sinóptico de los comandos (NAMUR)
registrados por los aparatos de control
IKA
®
.
HB 10
La comunicación de datos entre el baño calefactor y una unidad de acci-
onamiento se realiza a través de la interfaz IR. los interfaces de infrarrojos
(IR) se encuentran en el lado izquierdo de la pantalla del baño calefactor
o en el lado derecho de la unidad de accionamiento. No coloque ningún
objeto entre las dos unidades de mando, pues esto puede afectar nega-
tivamente a la transferencia de datos (fig. 22)!
RV10 control
El equipo puede utilizarse en el modo “Remote” a través de la interfaz RS
232 o USB con el software de laboratorio labworldsoft
®
.
La interfaz RS 232 que se encuentra en la parte posterior del equipo
(véase fig. 20) está equipada con una clavija SUB-D de 9 patillas y puede
conectarse a un PC. Las patillas tienen asignadas señales en serie. La
interfaz USB se encuentra en el lado de presentación izquierdo de la
unidad de accionamiento y puede conectarse a un PC utilizando el cable
USB incluido en el volumen de suministro.
Nota: Tenga en cuenta los requisitos del sistema, así como las instruc-
ciones de uso y la ayuda del software.
Interfaz USB
El bus serie universal (USB) es un sistema de bus en serie que permite
conectar el RV 10 control con el PC (Fig. 23). Los equipos equipados
con USB pueden conectarse entre sí mientras están en funcionamiento
(conexión en caliente), de modo que los equipos conectados y sus propi-
edades se detectarán de forma automática.
En combinación con el software labworldsoft
®
, la interfaz USB sirve para
el funcionamiento "remoto" y para la actualización de la biblioteca de
disolventes. Para realizar la actualización visite la página http://www.ika.
net/ika/lws/download/RV10.cfg.
Instalación
Una vez que el RV 10 control se conecta con el PC a través del cable de
datos USB, comunica al sistema operativo Windows el controlador de
dispositivo que se necesita:
- el controlador se carga,
- el controlador aún no está instalado, se instala,
- se le solicita al usuario que realice la instalación.
Visite la página http://www.ika.net/ika/lws/download/stmcdc.inf.
Interfaces y salidas
Fig. 22
IR
Fig. 23
118
Fig. 24
Abreviaciones utilizadas:
m =
Parámetros de numeración (número entero)
X =
2
Temperatura de la Baño calefactor
X =
3
Temperatura de seguridad de la Baño calefactor
X =
4
Velocidad
X =
60
Tiempo de intervalo (1-99 Sekunden, 1 <= m >=99)
X =
61
Temporizados (1-199 Minuten, 1 <= m >=199)
X =
62
Posición del elevador arriba (OUT_SP_62 1-> drive lift up)
X =
63
Posición del elevador abajo (OUT_SP_62 1-> drive lift down)
X =
66
Valor del controlador de vacío
X =
70
Histéresis del controlador de vacío
X =
74
Líquido de atemperado (OUT_SP_74 0=Öl, OUT_SP_74 1=agua)
NAMUR Comandos Función
IN_NAME
Demada de la designación
IN_PV_X
Lectura del valor real
X = 4
IN_SOFTWARE
Demada de la no. ref. software,
fecha, versión
IN_SP_X
Lectura del valor nominal ajustado
X = 4
OUT_SP_X m
Puesta de valor nominal a m
X = 1,60,61,62
RESET
Conmutación a régimen normal
START_X
Conexión de la función (Remote) del aparato
X = 4,60,61,62
STATUS
Extracción de estado
0:Servicio manual sin perturbación
1:Servicio automático start (sin perturbación)
ERROR z (z número del error consulte la tabla)
STOP_X
Desconexión de la función de aparato. La va-
X = 1,60, 61, 62
riable puesta con OUT_SP_X se conserva
PC 1.1 Cable
Necesario para conectar la clavija de 9 patillas con un PC (fig. 24).
.
119
Información general sobre la guía de menús
Selección de menús
Seleccione el elemento de menú deseado girando el mando giratorio
o el botón pulsador hacia la izquierda/derecha.
Nota: en la pantalla los elementos de menú activos aparecen sobre
fondo negro.
Editar valores
Pulse el mando giratorio o el botón pulsador.
Gire el mando giratorio o el botón pulsador para modificar el valor (el
tamaño de la modificación depende de la velocidad de giro).
Vuelva a pulsar el mando giratorio o el botón pulsador para finalizar
el proceso.
Abandonar menú
Pulse la tecla SET.
Los valores actuales se almacenan.
El menú superior se muestra.
Pulse la tecla ESC.
Los valores actuales no se almacenan.
El menú superior se muestra
Nota: Algunos elementos de menú no contienen valores que deban al-
macenarse. Para abandonar el menú seleccione la tecla SET o ESC.
Nota: En algunos elemento de menús hay modificaciones o ampliacio-
nes de este esquema.
Presentación en pantalla durante el proceso
Para cada modo de trabajo se utiliza una presentación en pantalla especí-
fica. Todas las presentaciones en pantalla tienen en común las siguientes
propiedades:
- Si hay una destilación en curso, esta presentación en pantalla no puede
cerrarse.
- Si no hay ninguna destilación está en curso, puede pulsar las teclas SET
o ESC para abandonar esta presentación en pantalla. Aparece el menú
principal.
Mensaje de error
Si aparece un mensaje de error en la presentación en pantalla, confír-
melo con la tecla ESC.
La pantalla de error se borra.
Nota: Si el error es grave aparece un mensaje adicional que indica que
es preciso apagar el equipo y que éste no podrá volver a encenderse
hasta que el error se haya solucionado.
El aparato está listo para el funcionamien-
to después de insertar el enchufe a la red.
Encendido del equipo
Encienda el equipo con el interruptor que se encuentra en el lado
derecho del mismo (fig. 25).
Las funciones del aparato quedan activadas.
Nota: Tenga en cuenta que el baño calefactor también debe estar en-
cendido.
Puesta en sevicio
Descripción del funcionamiento (estado en el momento de la entrega)
Configuración de fábrica
Los valores que se muestran a continuación corresponden el estado en
el momento de la entrega (los indicadores de pantalla y los ajustes de
fábrica aparecen en inglés).
Durante la presentación de la pantalla de inicio se realiza una compro-
bación del sistema cuya duración máxima es de 30 segundos.
Transcurridos unos segundos aparece el menú principal.
Seleccione un elemento de menú girando el mando giratorio o el
botón pulsador hacia la derecha/izquierda.
Confirme su selección pulsando el mando giratorio o el botón puls-
ador.
Menú "Configuración"
Desde el menú "Configuración" puede acceder a los elementos de menú
que se indican a continuación.
Seleccione un elemento de menú girando el mando giratorio o el
botón pulsador hacia la derecha/izquierda.
Confirme su selección pulsando el mando giratorio o el botón puls-
ador.
Fig. 25
120
Configurar destilación
Seleccione el elemento de menú deseado girando el mando giratorio
o el botón pulsador hacia la derecha/izquierda.
Pulse el mando giratorio o el botón pulsador.
Gire el mando giratorio o el botón pulsador para modificar el valor o la
configuración (el tamaño de la modificación depende de la velocidad
de giro).
Vuelva a pulsar el mando giratorio o el botón pulsador para finalizar
las modificaciones.
Tecla SET: Abandona el menú y guarda las modificaciones realizadas.
Tecla ESC: Abandona el menú sin guardar las modificaciones realizadas.
Modo de destilación
Puede elegir entre los modos de destilación automáticos "Volumen" y
"100%". Esta selección sólo es relevante en el caso de la destilación au-
tomática.
Volumen
Basándose en los valores medidos para el caudal del agua de refrigera-
ción y la diferencia de temperatura del agua de refrigeración, para cada
paso de la destilación se calcula la cantidad de destilado a través de un
equilibrio térmico. La destilación finaliza cuando se alcanza la cantidad
de destilado predeterminada.
100%
La destilación finaliza cuando la diferencia de temperatura del agua de
refrigeración tiene un valor inferior al valor umbral, es decir, en cuando el
disolvente está completamente destilado.
Secado
Cuando esta opción está activada, no se supervisa ninguna diferencia de
temperatura del agua de refrigeración, por ejemplo, para procesos de
secado de productos en polvo.
Valor límite de la potencia de refrigeración
Für den verwendeten Kühler kann eine Grenzleistung angegeben werPa-
ra el refrigerador utilizado puede indicarse un límite de potencia; consul-
te el capítulo "Informaciones importantes". En todas las destilaciones se
calcula la potencia real y, si se supera el límite establecido, la destilación
se interrumpe con un mensaje de error..
Máxima potencia de refrigeración
En la última destilación se muestra la potencia de refrigeración máxima
que se ha alcanzado. Este valor sólo tiene carácter informativo.
Unidad medida
Puede elegir entre las unidades de medida mililitro y gramo.
Detección de ebullición
Puede activar o desactivar la detección de la ebullición. La detección de la
ebullición solo es posible en el modo de destilación "100%".
Con la función de detección de ebullición se detecta automáticamente el
punto de ebullición de un disolvente.
Configurar vacío
Seleccione el elemento de menú deseado girando el mando giratorio
o el botón pulsador hacia la derecha/izquierda.
Pulse el mando giratorio o el botón pulsador.
Gire el mando giratorio o el botón pulsador para modificar el valor o la
configuración (el tamaño de la modificación depende de la velocidad
de giro).
Vuelva a pulsar el mando giratorio o el botón pulsador para finalizar
las modificaciones.
Tecla SET: Abandona el menú y guarda las modificaciones realizadas.
Tecla ESC: Abandona el menú sin guardar las modificaciones realizadas.
Histéresis
La configuración estándar de la histéresis (como se muestra en la figura)
puede usarse en la mayor parte de los casos de aplicaciones. El valor de
histéresis de vacío describe la diferencia de presión entre la conexión y la
desconexión de la válvula de vacío.
Escalar tiempo
El eje temporal del diagrama vacío-rotación-tiempo se escala con el valor
indicado. Si el valor es igual a 0, se utiliza un escalado automático del
eje temporal.
Escalar vacío
El eje de vacío del diagrama vacío-rotación-tiempo se escala con el valor
indicado. Si el valor es igual a 0, se utiliza un escalado automático del
eje de vacío
Unidad de vacío
Puede elegir entre las unidades de vacío en mbar, Torr y hPascal.
121
Configurar accionamiento
Seleccione el elemento de menú deseado girando el mando giratorio
o el botón pulsador hacia la derecha/izquierda.
Pulse el mando giratorio o el botón pulsador.
Gire el mando giratorio o el botón pulsador para modificar el valor o la
configuración (el tamaño de la modificación depende de la velocidad
de giro).
Vuelva a pulsar el mando giratorio o el botón pulsador para finalizar
las modificaciones.
Tecla SET: Abandona el menú y guarda las modificaciones realizadas.
Tecla ESC: Abandona el menú sin guardar las modificaciones realizadas.
Intervalo derecha/izquierda
Para el intervalo derecha/izquierda ajuste un valor X concreto, de modo
que el accionamiento cambie su dirección de giro cada X segundos.
Nota: En el modo de intervalo la velocidad máxima está limitada a
200 rpm.
Temporizador
El valor de temporizador determina después de cuánto tiempo finalizará
la destilación manual.
Escalar tiempo
El eje temporal del diagrama vacío-rotación-tiempo se escala con el valor
indicado. Si el valor es igual a 0, se utiliza un escalado automático del
eje temporal.
Escalar rotación
El eje de rotación del diagrama vacío-rotación-tiempo se escala con el
valor indicado. Si el valor es igual a 0, se utiliza un escalado automático
del eje de rotación.
Configuración del baño
Seleccione el elemento de menú deseado girando el mando giratorio
o el botón pulsador hacia la derecha/izquierda.
Pulse el mando giratorio o el botón pulsador.
Gire el mando giratorio o el botón pulsador para modificar el valor o la
configuración (el tamaño de la modificación depende de la velocidad
de giro).
Vuelva a pulsar el mando giratorio o el botón pulsador para finalizar
las modificaciones.
Tecla SET: Abandona el menú y guarda las modificaciones realizadas.
Tecla ESC: Abandona el menú sin guardar las modificaciones realizadas.
Fluido para el baño
Seleccione agua o aceite como el fluido para el baño calefactor.
Idioma
Seleccione el idioma deseado girando el mando giratorio o el botón
pulsador hacia la derecha/izquierda.
Confirme su selección pulsando SET.
122
Servicio técnico
Seleccione el elemento de menú deseado girando el mando giratorio
o el botón pulsador hacia la derecha/izquierda.
Pulse el mando giratorio o el botón pulsador.
Gire el mando giratorio o el botón pulsador para modificar el valor o la
configuración (el tamaño de la modificación depende de la velocidad
de giro).
Vuelva a pulsar el mando giratorio o el botón pulsador para finalizar
las modificaciones
Tecla ESC: Abandona el menú. Todos los procedimientos de conmutaci-
ón se restablecen y los ajustes se mantienen.
Desconexión de las válvulas y de la bomba
En caso de servicio, utilice el menú de servicio para comprobar el funcio-
namiento de la conexión directa de las válvulas contenidas en el volumen
de suministro, de las válvulas opcionales y de la bomba, por ejemplo,
RV 10.5001.
La válvula RV 10.5001 conmuta el circuito de agua. En esta línea se mu-
estra el caudal actual de agua de refrigeración.
Ajuste
El elemento de menú "Ajuste" permite ajustar los sensores de medición
de temperatura.
La diferencia de temperatura mostrada se establece en cero. La acción
no se puede deshacer.
Los sensores de medición de temperatura deben ajustarse cada vez que
se cambian, reemplazan o cambian.
Póngase en contacto con el departamento de servicio técnico.
Los sensores de medición de temperatura contenidos en el volumen de
suministro se ajustan en fábrica.
Realización del ajuste
Active el elemento de menú "Ajuste" girando el mando giratorio o el
botón pulsador.
Desmonte los dos sensores y, para ello, afloje el inmovilizador de la
conexión de enchufe retirando el anillo externo, mientras extrae al
mismo tiempo el sensor de temperatura de la conexión de enchufe;
véase figura 26.
Para volver a realizar el montaje, inserte el sensor de medición de
temperatura hasta el tope en la conexión de enchufe, a través de un
momento de resistencia inicial.
Llene un recipiente de vidrio (de aprox. 500 ml) con agua a tempe-
ratura ambiente. Sumerja los dos sensores por completo en el agua;
véase fig. 27.
Espere hasta que el indicador de temperatura del elemento "Ajuste"
del menú "Servicio" se haya estabilizado por ejemplo, a 0,2 K.
Pulse el mando giratorio o el botón pulsador.
La diferencia de temperatura mostrada se establece en cero
El ajuste sólo es posible en un margen de temperatura comprendido
entre +0,5 K y -0,5 K. Si la temperatura se encuentra fuera de este mar-
gen, significa que el sensor de temperatura está defectuoso o no está
insertado correctamente. Póngase en contacto con el departamento de
servicio técnico.
En el caso de que el suministro de agua de refrigeración difiera en gran
medida de lo especificado en los datos técnicos y, en consecuencia, no
se alcancen las condiciones de inicio para poder realizar la destilación
automática, puede que sea preciso realizar un nuevo ajuste del sensor
de medición de la temperatura. No obstante, en el modo de "destilación
automática", esto produce una reducción de la precisión de medición de
la cantidad de destilado.
Horas de servicio
Este valor tiene carácter informativo y no puede modificarse.
Fig. 26
Fig. 27
123
Menú "Modo manual sin detección de ebullición"
Pantalla "Modo manual sin detección de ebullición"
1. Presentación del modo de servicio
2. Indicador de vacío (valor real)
3. Indicador de vacío (valor nominal)
4. Campo de navegación "Iniciar/Detener" de la destilación
5. Indicador del temporizador
6. Campo de navegación para guardar el curso de la destilación
7. Diagrama vacío-rotación-tiempo
8. Indicación del caudal, la temperatura diferencial y la potencia del
refrigerador
9. Campo de navegación para el indicador de rotación (valor nominal)
y símbolo de rotación
10. Pantalla de error en caso de error; de lo contrario, pantalla de estado
Regulación de la velocidad de rotación
Pulse el mando giratorio o el botón pulsador para modificar el valor nominal.
Gire el mando giratorio o el botón pulsador hacia la izquierda/derecha
para modificar el valor nominal. El tamaño de la modificación depende
de la velocidad de giro.
Pulse el mando giratorio o el botón pulsador para guardar y finalizar
el proceso.
Nota: Si selecciona una velocidad superior a 100 rpm se activa au-
tomáticamente el arranque suave.
Ajuste del vacío
Pulse el mando giratorio o el botón pulsador para modificar el valor nominal.
Gire el mando giratorio o el botón pulsador hacia la izquierda/derecha
para modificar el valor nominal. El tamaño de la modificación depende
de la velocidad de giro.
Pulse el mando giratorio o el botón pulsador para guardar y finalizar
el proceso.
Iniciar
Seleccione el elemento "Iniciar" girando el mando giratorio o el botón
pulsador hacia la derecha/izquierda.
Pulse el mando giratorio o el botón pulsador para comenzar la des-
tilación.
La pantalla cambia al indicador "Detener".
Nota: Si se ha establecido el temporizador, éste empieza a contar hacia
atrás. Si no se ha establecido ningún temporizador, se muestra el tiempo
que ha pasado desde el inicio
Detener
Seleccione el elemento "Detener" girando el mando giratorio o el
botón pulsador hacia la izquierda/derecha.
Pulse el mando giratorio o el botón pulsador para finalizar la destilación.
La pantalla cambia al indicador "Iniciar".
Almacenamiento del proceso de destilación como procedimiento
después de finalizar la destilación
Seleccione el elemento "Guardar" girando el mando giratorio o el
botón pulsador hacia la izquierda/derecha.
Pulse el mando giratorio o el botón pulsador para abrir la pantalla
"Procedimientos".
Seleccione uno de los diez procedimientos disponibles girando el
mando giratorio o el botón pulsador hacia la derecha/izquierda. El
proceso se visualiza.
Pulse SET para sobrescribir el procedimiento seleccionado con el pro-
cedimiento actual (el procedimiento que acaba de finalizar) y aban-
donar el menú.
Pulse ESC para no sobrescribir el procedimiento seleccionado.
Nota: El curso de destilación guardado puede ejecutarse de nuevo pos-
teriormente seleccionando el procedimiento correspondiente.
124
Menú "Modo manual con detección de ebullición"
Pantalla "Modo manual con detección de ebullición
1. Presentación del modo de servicio
2. Indicador de vacío (valor real)
3. Indicador de vacío (valor nominal)
4. Campo de navegación "Iniciar/Detener" de la destilación
5. Indicador del temporizador
6. Campo de navegación para guardar el curso de la destilación
7. Diagrama vacío-rotación-tiempo
8. Indicación del caudal, la temperatura diferencial y la potencia del
refrigerador
9. Campo de navegación para el indicador de rotación (valor nominal)
y símbolo de rotación
10. Pantalla de error en caso de error; de lo contrario, pantalla de estado
Regulación de la velocidad de rotación
Pulse el mando giratorio o el botón pulsador para modificar el valor nominal.
Gire el mando giratorio o el botón pulsador hacia la izquierda/derecha
para modificar el valor nominal. El tamaño de la modificación depende
de la velocidad de giro.
Pulse el mando giratorio o el botón pulsador para guardar y finalizar
el proceso.
Nota: Si selecciona una velocidad superior a 100 rpm se activa au-
tomáticamente el arranque suave.
Iniciar
Seleccione el elemento "Iniciar" girando el mando giratorio o el botón
pulsador hacia la derecha/izquierda.
Pulse el mando giratorio o el botón pulsador para comenzar la des-
tilación.
La pantalla cambia al indicador "Detener".
Nota: Si se ha establecido el temporizador, éste empieza a contar hacia
atrás. Si no se ha establecido ningún temporizador, se muestra el tiempo
que ha pasado desde el inicio
Detener
Seleccione el elemento "Detener" girando el mando giratorio o el
botón pulsador hacia la izquierda/derecha.
Pulse el mando giratorio o el botón pulsador para finalizar la destilación.
La pantalla cambia al indicador "Iniciar".
Almacenamiento del proceso de destilación como procedimiento
después de finalizar la destilación
Seleccione el elemento "Guardar" girando el mando giratorio o el
botón pulsador hacia la izquierda/derecha.
Pulse el mando giratorio o el botón pulsador para abrir la pantalla
"Procedimientos".
Seleccione uno de los diez procedimientos disponibles girando el
mando giratorio o el botón pulsador hacia la derecha/izquierda. El
proceso se visualiza.
Pulse SET para sobrescribir el procedimiento seleccionado con el pro-
cedimiento actual (el procedimiento que acaba de finalizar) y aban-
donar el menú.
Pulse ESC para no sobrescribir el procedimiento seleccionado.
Nota: El curso de destilación guardado puede ejecutarse de nuevo pos-
teriormente seleccionando el procedimiento correspondiente.
125
Menú "Modo Autodestilación sin detección de ebullición"
Pantalla "Modo Autodestilación sin detección de ebullición"
1. Presentación del modo de servicio
2. Campo de navegación Disolventes
3. Indicación de vacío (Valor real)
4. Indicador de vacío (valor nominal)
5. Campo de navegación "Iniciar/Detener" de la destilación
6. Indicador del temporizador
7. Indicación de progreso de la destilación
(% de la cantidad de destilado exigida)
8. Diagrama vacío-rotación-tiempo
9. Indicación del caudal, la temperatura diferencial y la potencia del
refrigerador
10. Indicador de rotación (valor nominal) y símbolo de rotación
11. Pantalla de error en caso de error; de lo contrario, pantalla de estado
Modificar selección de disolventes
Seleccione el campo "Disolventes" girando el mando giratorio o el
botón pulsador hacia la izquierda/derecha.
Pulse el mando giratorio o el botón pulsador para abrir la pantalla de
selección de disolventes.
Seleccione un disolvente girando el mando giratorio o el botón pulsa-
dor hacia la izquierda/derecha.
Pulse la tecla SET.
El disolvente seleccionado se utiliza para la destilación siguiente.
Nota: Para cada disolvente se muestran los parámetros. Estos pará-
metros sólo se pueden modificar para los disolventes definidos por el
usuario UserSolvent1 ... UserSolvent5. Esto se describe en el apartado
siguiente.
Disolventes definidos por el usuario
En el indicador de pantalla para disolventes seleccione el área New-
Solvent1 ... NewSolvent5.
Seleccione uno de estos disolventes y pulse el mando giratorio o el
botón pulsador.
Ahora puede modificar todos los parámetros mostrados del disolvente.
Seleccione el parámetro que desee modificar girando el mando gira-
torio o el botón pulsador hacia la izquierda/derecha.
Pulse el mando giratorio o el botón pulsador.
Modifique el parámetro seleccionado girando el mando giratorio o el
botón pulsador hacia la izquierda/derecha.
Pulse el mando giratorio o el botón pulsador.
Guarde todos los valores con la tecla SET.
NewSolvent1 está el disolvente actual.
Nota: No es posible regresar al cuadro de selección.
126
Inicio de la destilación automática
Pulse el mando giratorio o el botón pulsador en el campo "Iniciar"
o "Siguiente". Si se han activado las opciones "100% destilación" o
"Secado", la destilación se inicia de inmediato si se han cumplido las
condiciones necesarias,
En el modo de destilación "Volumen", los parámetros de destilación adi-
cionales aparecen en otra pantalla.
Seleccione el elemento de menú deseado girando el mando giratorio
o el botón pulsador hacia la derecha/izquierda.
Pulse el mando giratorio o el botón pulsador.
Gire el mando giratorio o el botón pulsador para modificar el valor o la
configuración (el tamaño de la modificación depende de la velocidad
de giro).
Vuelva a pulsar el mando giratorio o el botón pulsador para finalizar
las modificaciones.
Destilación
El tipo de destilación elegido en el área de configuración de la destilación
se muestra aquí y ya no puede cambiarse.
Muestra previa
Indique la cantidad que se encuentra en el émbolo de la muestra de
prueba.
Destillat
Indique la cantidad que debe destilarse.
Eficacia
Para lograr el equilibrio debe especificar la eficacia térmica.
La eficacia depende de la totalidad de las condiciones de destilación y es
sobre todo un valor de cálculo. Por esta razón, el primer curso de destila-
ción sirve para la calibración. Una vez finalizada la destilación, es posible
calcular la cantidad realmente destilada a fin de calcular la eficacia según
la siguiente fórmula:
η
th
. m
(calc)
η
P
=
m
(gem)
η
P
Grado de eficacia real
η
th
Grado de eficacia calculado
m
(gem)
Cantidad de destilado medida
m
(calc)
Cantidad de destilado predeterminada (calculada)
Para las siguientes destilaciones indique la eficacia real calculada; las
siguientes destilaciones se realizarán automáticamente y con suficiente
precisión en las mismas condiciones de destilación y del emplazamiento.
Fin de la destilación automática
La destilación automática finaliza según los siguientes criterios:
- Controlada por volumen
La cantidad de destilado predeterminada se ha equilibrado.
- 100% de destilación
La diferencia medida de temperatura del agua de refrigeración es inferior
al valor nominal y el disolvente está totalmente evaporado.
Además, la destilación también puede finalizarse manualmente:
Pulse el mando giratorio o el botón pulsador en el campo "Detener".
Menú "Modo Autodestilación con detección de ebullición"
Pantalla "Modo Autodestilación con detección de ebullición"
1. Presentación del modo de servicio
2. Campo de navegación Disolventes
3. Indicación de vacío (Valor real)
4. Indicador de vacío (valor nominal)
5. Campo de navegación "Iniciar/Detener" de la destilación
6. Indicador del temporizador
7. Indicación de progreso de la destilación
(% de la cantidad de destilado exigida)
8. Diagrama vacío-rotación-tiempo
9. Indicación del caudal, la temperatura diferencial y la potencia del
refrigerador
10. Indicador de rotación (valor nominal) y símbolo de rotación
11. Pantalla de error en caso de error; de lo contrario, pantalla de estado
Nota: La destilación por volumen no es posible, pues en este modo no
es necesario conocer el disolvente.
En el este modo, en lugar de seleccionar el disolvente, puede ajustarse
la temperatura del baño y la velocidad del accionamiento de rotaci-
ón a través del campo de navegación "Siedeerkennung" (Detección de
ebullición).
127
Menú "Destilación personalizada"
Indicador de pantalla "Destilación personalizada"
1. Presentación del modo de servicio
2. Campo de navegación para el procedimiento de destilación
3. Indicación de vacío (Valor real)
4. Indicador de vacío (valor nominal)
5. Campo de navegación "Iniciar/ Detener" de la destilación
6. Indicador del temporizador
7. Diagrama vacío-rotación-tiempo
8. Indicación del caudal, la temperatura diferencial y la potencia del
refrigerador
9. Indicador de rotación (valor nominal) y símbolo de rotación
10. Pantalla de error en caso de error; de lo contrario, pantalla de estado
Seleccione el elemento "Procedimiento" girando el mando giratorio o
el botón pulsador hacia la izquierda/derecha.
Pulse el mando giratorio o el botón pulsador.
Aparece el indicador de pantalla "Procedimientos".
Seleccione un procedimiento girando el mando giratorio o el botón
pulsador hacia la izquierda/derecha.
Pulse la tecla SET.
El procedimiento seleccionado se utiliza para la destilación siguiente.
Nota: El diagrama Vacío-Rotación-Tiempo se muestra para cada pro-
cedimiento. Los parámetros pueden cambiarse en cada procedimiento.
Esto se describe en el apartado siguiente. Además puede guardar el cur-
so de una destilación manual como procedimiento; consulte apartado
"Modo manual".
Modificación de un procedimiento
Seleccione el procedimiento que desee modificar y pulse el mando
giratorio o el botón pulsador. El campo "Borrar y nuevo" se activa.
Si pulsa el mando giratorio o el botón pulsador sobre el campo "Borrar
y nuevo", el procedimiento se borra.
Ahora puede añadir nuevos pasos de procedimiento para vacío y rotación.
Vacío
Seleccione "Vacío" en la pantalla girando el mando giratorio o el
botón pulsador hacia la izquierda/derecha.
Pulse el mando giratorio o el botón pulsador.
Especifique un valor girando el mando giratorio o el botón pulsador
hacia la izquierda/derecha.
Pulse el mando giratorio o el botón pulsador.
Duración
Seleccione "Duración" en la pantalla girando el mando giratorio o el
botón pulsador hacia la izquierda/derecha.
Pulse el mando giratorio o el botón pulsador.
Especifique un valor girando el mando giratorio o el botón pulsador
hacia la izquierda/derecha.
Pulse el mando giratorio o el botón pulsador. Se define un nuevo paso
de procedimiento con el par de valores Vacío-Duración y el procedi-
miento se añade. El diagrama se actualiza
Rotación
Seleccione "Rotación" en la pantalla girando el mando giratorio o el
botón pulsador hacia la izquierda/derecha.
Pulse el mando giratorio o el botón pulsador.
Especifique un valor girando el mando giratorio o el botón pulsador
hacia la izquierda/derecha.
Pulse el mando giratorio o el botón pulsador.
Duración
Seleccione "Duración" en la pantalla girando el mando giratorio o el
botón pulsador hacia la izquierda/derecha.
Pulse el mando giratorio o el botón pulsador.
Especifique un valor girando el mando giratorio o el botón pulsador
hacia la izquierda/derecha.
Pulse el mando giratorio o el botón pulsador. Se define un nuevo
paso de procedimiento con el par de valores Rotación-Duración y el
procedimiento se añade. El diagrama se actualiza.
Los pasos Vacío, Duración y Rotación,Duración pueden repetirse como
máximo veinte veces.
Tecla SET: Abandona el menú. El procedimiento recién creado se almace-
ne y se selecciona como el procedimiento actual.
Tecla ESC: Abandona el menú. Todas las modificaciones se deshacen.
128
Finalización de la destilación definida por el usuario
La destilación definida por el usuario finaliza automáticamente una vez
transcurridos todos los pasos del procedimiento actual. Además también
se puede finalizar manualmente pulsando el mando giratorio o el botón
pulsador en el campo "Detener".
Modo de espera (standby)
Pulse la tecla "Power".
El equipo pasa al modo de espera.
Vuelva a pulsar la tecla "Power".
Aparece el menú principal y el equipo vuelve a estar listo para el uso.
129
Guía de menús
Pantalla de inici
o
Menú principa
l
Modo manual
Modo de destilación automática Modo definido por el usuario Configuració
n
Destilació
n
Va
cí
o
Accionamient
o
Baño calefactor Idioma Servicio técnic
o
Fluido para el baño
Modo de destilación Secado Valor límite de la potencia de refrigeració
n
Máxima potencia de refrigeración Máxima potencia de refrigeración Control de caudal Unidad Detección de ebullició
n
Histéresi
s
Escalar tiempo Escalar vací
o
Unidad de vacío
Intervalo derecha/izquierd
a
Te
mporizador
Escalar tiempo Escalar rotación
Agua Aceit
e
RV
10.500
1
RV
10.4001/
2
Válvula
RV
10.4003
Desaireación de vacío V4 Bomba Ajuste Horas de servicio
Va
lor nominal para la rotación
Va
lor nominal y valor real para el vací
o
Indicador del temporizador Iniciar/Detener SpeiAlmacena
r, procedimientos de navegación
Pantalla de erro
r
Pantalla del diagrama vacío-rotación-tiemp
o
¿Detección de ebullición activada
?
Aceton
a
Agua To
luen
o
N-Pantenol Benceno UserSolvent
1
UserSolvent
2
UserSolvent
3
UserSolvent
4
UserSolvent
5
Va
lor nominal para la rotación
Va
lor nominal y valor real para el vací
o
Indicador del temporizador Campo de navegación del procedimiento de destilación Iniciar/Detener
, otros parámetro
s
Pantalla de erro
r
Pantalla Caudal,
Te
mperatura diferencial, Potencia del refrigerado
Pantalla del diagrama vacío-rotación-tiemp
o
Va
lor nominal para la rotación
Va
lor nominal y valor real para el vací
o
Indicador del temporizador Campo de navegación Disolventes/ Detección de ebullición Iniciar/Detener
, otros parámetro
s
Pantalla de erro
r
Pantalla Caudal,
Te
mperatura diferencial, Potencia del refrigerador
Pantalla del diagrama vacío-rotación-tiemp
o
Pantalla de progreso de la destilació
n
Procedimiento
1
Procedimiento
2
Procedimiento
3
Procedimiento
4
Procedimiento
5
Procedimiento
6
Procedimiento
7
Procedimiento
8
Procedimiento
9
Procedimiento10
Cantidad de muestra previa Cantidad de destilado Grado de eficacia
Procedimiento
1
Procedimiento
2
Procedimiento
3
Procedimiento
4
Procedimiento
5
Procedimiento
6
Procedimiento
7
Procedimiento
8
Procedimiento
9
Procedimiento 10
Te
mperatura del baño calefacto
r
Rotación Va
cí
o
Grado de eficacia Valor
C
Entalpia de evaporación Densida
d
Borrar procedimient
o
Va
cí
o
Duració
n
Rotación Duració
n
Confirmar
Englis
h
Deutsc
h
Français Español
中文
日本
語
Polski
Detección de ebullición no Detección de ebullición sí
Te
mperatura del baño calefacto
r
Rotación
130
Ajuste el tope final inferior
Atención:
Dependiendo del tamaño del matraz, el ángulo de ajuste del
accionamiento de rotación, así como de la posición del baño calefactor y
del elevador, el matraz del evaporador puede estar en el baño calefactor.
Peligro de rotura de cristales!
Utilice el tope final variable para limitar la posición inferior del elevador.
En el modo manual, el elevador puede colocarse en cualquier posición
mediante las teclas “ ” y “ ” En caso de colisión no se produce ninguna
desconexión automática.
Pulse la tecla “ ” hasta que el elevador alcance la posición deseada.
Nota: El matraz de evaporación debe introducirse 2/3 en el baño calefactor.
Para ajustar el elemento de tope (Q), pulse el botón central (R) en el
lado delantero del elevador (fig. 18).
Inserte el tope (Q) en la posición deseada (fig. 19).
Pulse la tecla “ ” hasta que el elevador alcance el tope final superior.
Nota: El recorrido está limitad de 0 a 6 cm.
Revise el funcionamiento de la desconexión final
Desplace el elevador hacia abajo manteniendo pulsada la tecla “ ”.
El accionamiento se detiene automáticamente al llegar a la posición
final inferior que se ha ajustado.
Vuelva a desplazar el accionamiento a la posición superior.
Para activar el elevador del mecanismo de elevación de seguridad
después de una parada prolongada, desplace el elevador varias veces
hasta la posición tope más inferior o más superior antes de comenzar la
destilación (véase el capítulo Advertencias de seguridad - Mecanismo de
elevación de seguridad).
Llenado del matraz de evaporación
Antes de llenar el matraz de evaporación los aparatos de vidrio se regulan
a la presión nominal mediante el mecanismo de control de vacío.
Llene el matraz de evaporación a través del conducto de realimenta-
ción (fig. 30).
Dada la baja presión existente, el disolvente se aspira en el matraz de
evaporación, por lo que las pérdidas de disolvente se mantienen lo
más reducidas posible a la hora de aspirar.
Dada la baja presión existente, el disolvente se aspira en el matraz de
evaporación, por lo que las pérdidas de disolvente se mantienen lo
más reducidas posible a la hora de aspirar.
Nota:
Atención:
La carga máxima permitida (matraz de evaporación y
contenido) es de 3 kg.
Instalación del baño calefactor
Beachten Sie auch die Betriebsanleitung des Heizbades IKA
®
HB 10!
Desplace el elevador a la posición inferior y compruebe la posición
del baño calefactor respecto a la del matraz de evaporación. Si utiliza
matraces de evaporación de mayor tamaño (2 ó 3 litros), así como
en función del ángulo ajustado para el accionamiento de rotación, el
baño calefactor puede desplazarse 50 mm hacia la derecha.
Llene el baño calefactor con fluido de atemperado hasta que el ma-
traz de atemperado esté rodeado de fluido de atemperado hasta 2/3
de su volumen.
Conecte el accionamiento de rotación y aumente lentamente la ve-
locidad.
Nota: Evite que se formen ondas.
Conecte el baño calefactor con el interruptor principal.
Nota: Evite que se produzcan tensiones en el vidrio debido a una dife-
rencia entre la temperatura del matraz de evaporación y la del baño
calefactor al introducir el matraz de evaporación en el baño calefactor.
Nota: Si utiliza otros accesorios distintos de los originales de
IKA
®
, pue-
de que el recorrido de desplazamiento de 50 mm no sea suficiente, sob-
re todo al utilizar los matraces de evaporación de 3 l y antiespumantes.
Utilice la placa de montaje
IKA
®
RV 10.3000 para ampliar el recorrido
de desplazamiento del baño calefactor en 150 mm.
Fig. 28
Q
R
Fig. 29
Fig. 30
131
Mantenimiento y limpieza
El aparato funciona sin mantenimiento. Este está sometido sólo al en-
vejecimiento natural de las piezas y sus fallos estadísticos.
La junta del refrigerador de vidrio debe revisarse y, en su caso, cambiarse
a intervalos periódicos.
Desenchufe el aparato antes de realizar cualquier
operación de limpieza.
Para la limpieza del aparato debe utilizarse exclusivamente agua a la que
se habrá añadido un detergente tensioactivo. En caso de suciedad muy
persistente se empleará alcohol isopropíli.
Pedido del piezas de repuesto
Al pedir piezas de repuesto, indique siempre:
- el número de fabricación que aparece en la placa de características
- el modelo del aparato
- la designación del repuesto (en
www.ika.com
encontrará las imáge-
nes y la lista de piezas de repuesto).
Caso de reparación
Rogamos enviar a la reparación solamente aparatos limpios y exentos de
substancias perjudiciales a la salud. Utilice para ello el formulario "
Certifi-
cado de no objeción
", descargue el impreso del formulario en la página
web de
IKA
®
www.ika.com
.
En el caso de que tenga que enviar el aparato al servicio técnico, em-
paquételo en el embalaje original. Los embalajes normales de almacena-
miento no son suficientes para devolver el aparato, por lo que deberá
utilizar además el embalaje de transporte que corresponda.
Mecanismo de elevación de seguridad
El mecanismo de elevación de seguridad debe comprobarse todos los
días antes del servicio.
Después de una parada prolongada (aprox. cuatro semanas), desplace
el elevador varias veces hasta la posición tope más inferior o más su-
perior antes de comenzar la destilación (véase el capítulo Advertencias
de seguridad - Mecanismo de elevación de seguridad). Si el mecanismo
de elevación de seguridad ya no funciona, póngase en contacto con el
departamento de servicio técnico de
IKA
®.
Accesorios
RV 10.1
NS 29/32 Equipo de vidrio vertical (1)
RV 10.10
NS 29/32 Equipo de vidrio vertical recubierto (1)
RV 10.2
NS 29/32 Equipo de vidrio diagonal (2)
RV 10.20
NS 29/32 Equipo de vidrio diagonal recubierto (2)
RV 10.700
NS 29/42 Equipo de vidrio vertical (1)
RV 10.710
NS 29/42 Equipo de vidrio vertical recubierto (1)
RV 10.800
NS 29/42 Equipo de vidrio diagonal (2)
RV 10.810
NS 29/42 Equipo de vidrio diagonal recubierto (2)
RV 10.900
NS 24/40 Equipo de vidrio vertical (1)
RV 10.910
NS 24/40 Equipo de vidrio vertical recubierto(1)
RV 10.1000
NS 24/40 Equipo de vidrio diagonal (2)
RV 10.1010
NS 24/40 Equipo de vidrio diagonal recubierto (2)
RV 10.3
Refrigerador vertical intensivo con pieza de distribución (1)
RV 10.30
Refrigerador vertical intensivo con pieza de distribución,
recubierto
RV 10.4
Refrigerador de hielo seco (2)
RV 10.40
Refrigerador de hielo seco, recubierto (2)
RV 10.5
Refrigerador vertical con pieza de ditribución y válvula
de bloqueo para la destilación de reflujo
(sin figura)
RV 10.50
Refrigerador vertical con pieza de ditribución y válvula
de bloqueo para la destilación de reflujo, recubierto
(sin figura)
RV 10.6
Refrigerador vertical intensivo con pieza de ditribución
y válvula de bloqueo para la destilación de reflujo
RV 10.60
Refrigerador vertical intensivo con pieza de ditribución
y válvula de bloqueo para la destilación de reflujo,
recubierto (3)
HB 10.1
Placa de protección (baño calefactor HB 10)
HB 10.2
Cubierta de protección (baño calefactor HB 10)
RV 10.70
NS 29/32 Tubo de paso del vapor
RV 10.71
NS 24/29 Tubo de paso del vapor
RV 10.72
NS 29/42 Tubo de paso del vapor
RV 10.73
NS 24/40 Tubo de paso del vapor
RV 10.74
NS 29/32 Tubo de paso del vapor, abreviatura
para destilación de reflujo
RV 10.75
NS 24/29 Tubo de paso del vapor, abreviatura
para destilación de reflujo
132
RV 10.76
NS 29/42 Tubo de paso del vapor, abreviatura
para destilación de reflujo
RV 10.77
NS 24/40 Tubo de paso del vapor, abreviatura
para destilación de reflujo
RV 10.80
NS 29/32 Matraz de evaporación 50 ml
RV 10.81
NS 29/32 Matraz de evaporación 100 ml
RV 10.82
NS 29/32 Matraz de evaporación 250 ml
RV 10.83
NS 29/32 Matraz de evaporación 500 ml
RV 10.84
NS 29/32 Matraz de evaporación 1000 ml
RV 10.85
NS 29/32 Matraz de evaporación 2000 ml
RV 10.86
NS 29/32 Matraz de evaporación 3000 ml
RV 10.90
NS 24/32 Matraz de evaporación 50 ml
RV 10.91
NS 24/32 Matraz de evaporación 100 ml
RV 10.92
NS 24/32 Matraz de evaporación 250 ml
RV 10.93
NS 24/32 Matraz de evaporación 500 ml
RV 10.94
NS 24/32 Matraz de evaporación 1000 ml
RV 10.95
NS 24/32 Matraz de evaporación 2000 ml
RV 10.96
NS 24/32 Matraz de evaporación 3000 ml
RV 10.97
NS 24/40 Matraz de evaporación 1000 ml
RV 10.2001
NS 29/42 Matraz de evaporación 50 ml
RV 10.2002
NS 29/42 Matraz de evaporación 100 ml
RV 10.2003
NS 29/42 Matraz de evaporación 250 ml
RV 10.2004
NS 29/42 Matraz de evaporación 500 ml
RV 10.87
NS 29/42 Matraz de evaporación 1000 ml
RV 10.2005
NS 29/42 Matraz de evaporación 2000 ml
RV 10.2006
NS 29/42 Matraz de evaporación 3000 ml
RV 10.2007
NS 24/40 Matraz de evaporación 50 ml
RV 10.2008
NS 24/40 Matraz de evaporación 100 ml
RV 10.2009
NS 24/40 Matraz de evaporación 250 ml
RV 10.2010
NS 24/40 Matraz de evaporación 500 ml
RV 10.2011
NS 24/40 Matraz de evaporación 1000 ml
RV 10.2012
NS 24/40 Matraz de evaporación 2000 ml
RV 10.2013
NS 24/40 Matraz de evaporación 3000 ml
RV 10.100
KS 35/20 Matraz de recogida de 100 ml
RV 10.101
KS 35/20 Matraz de recogida de 250 ml
RV 10.102
KS 35/20 Matraz de recogida de 500 ml
RV 10.103
KS 35/20 Matraz de recogida de 1000 ml
RV 10.104
KS 35/20 Matraz de recogida de 2000 ml
RV 10.105
KS 35/20 Matraz de recogida de 3000 ml
RV 10.200
KS 35/20 Matraz de recogida de 100 ml, recubierto
RV 10.201
KS 35/20 Matraz de recogida de 250 m, recubierto
RV 10.202
KS 35/20 Matraz de recogida de 500 ml, recubierto
RV 10.203
KS 35/20 Matraz de recogida de 1000 ml, recubierto
RV 10.204
KS 35/20 Matraz de recogida de 2000 ml, recubierto
RV 10.205
KS 35/20 Matraz de recogida de 3000 ml, recubierto
RV 10.300
NS 29/32 Matraz de pulverización de 500 ml
RV 10.301
NS 29/32 Matraz de pulverización de 1000 ml
RV 10.302
NS 29/32 Matraz de pulverización de 2000 ml
RV 10.303
NS 24/29 Matraz de pulverización de 500 ml
RV 10.304
NS 24/29 Matraz de pulverización de 1000 ml
RV 10.305
NS 24/29 Matraz de pulverización de 2000 ml
RV 10.2014
NS 29/32 Matraz de pulverización de 500 ml
RV 10.2015
NS 29/32 Matraz de pulverización de 1000 ml
RV 10.2016
NS 29/32 Matraz de pulverización de 2000 ml
RV 10.217
NS 24/40 Matraz de pulverización de 500 ml
RV 10.218
NS 24/40 Matraz de pulverización de 1000 ml
RV 10.219
NS 24/40 Matraz de pulverización de 2000 ml
RV 10.400
NS 29/32 Cilindro de evaporación de 500 ml
RV 10.401
NS 29/32 Cilindro de evaporación de 1500 ml
133
RV 10.402
NS 24/29 Cilindro de evaporación de 500 ml
RV 10.403
NS 24/29 Cilindro de evaporación de 1500 ml
RV 10.2020
NS 29/42 Cilindro de evaporación de 500 ml
RV 10.2021
NS 29/42 Cilindro de evaporación de 1500 ml
RV 10.2022
NS 24/40 Cilindro de evaporación de 500 ml
RV 10.2023
NS 24/40 Cilindro de evaporación de 1500 ml
RV 10.500
NS 29/32 Freno de espuma
RV 10.501
NS 24/29 Freno de espuma
RV 10.2024
NS 29/42 Freno de espuma
RV 10.2025
NS 24/40 Freno de espuma
RV 10.600
NS 29/32 Espiral de destilación con 6 manguitos de destilación
RV 10.601
NS 29/32 Espiral de destilación con 12 manguitos de destilación
RV 10.602
NS 29/32 Espiral de destilación con 20 manguitos de destilación
RV 10.603
NS 24/29 Espiral de destilación con 6 manguitos de destilación
RV 10.604
NS 24/29 Espiral de destilación con 12 manguitos de destilación
RV 10.605
NS 24/29 Espiral de destilación con 20 manguitos de destilación
RV 10.2026
NS 29/42 Espiral de destilación con 6 manguitos de destilación
RV 10.2027
NS 29/42 Espiral de destilación con 12 manguitos de destilación
RV 10.2028
NS 29/42 Espiral de destilación con 20 manguitos de destilación
RV 10.2029
NS 24/40 Espiral de destilación con 6 manguitos de destilación
RV 10.2030
NS 24/40 Espiral de destilación con 12 manguitos de destilación
RV 10.2031
NS 24/40 Espiral de destilación con 20 manguitos de destilación
RV 10.610
Manguito de destilación 20 ml
RV 10.606
NS 29/32 Espiral de destilación con 5 matraces de 50 ml
RV 10.607
NS 29/32 Espiral de destilación con 5 matraces de 100 ml
RV 10.608
NS 24/29 Espiral de destilación con 5 matraces de 50 ml
RV 10.609
NS 24/29 Espiral de destilación con 5 matraces de 100 ml
RV 10.2032
NS 29/42 Espiral de destilación con 5 matraces de 50 ml
RV 10.2033
NS 29/42 Espiral de destilación con 5 matraces de 100 ml
RV 10.2034
NS 24/40 Espiral de destilación con 5 matraces de 50 ml
RV 10.2035
NS 24/40 Espiral de destilación con 5 matraces de 100 ml
RV 10.3000
Placa de montaje
RV 10.4001
Válvula solenoide del vacío doméstico (1)
RV 10.4002
Válvula solenoide del vacío de laboratorio (2)
RV 10.4003
Control de bomba, incl. válvula solenoide (3)
RV 10.5001
Válvula de estrangulación de agua (4), sólo para la
conexión a la tubería de agua!
RV 10.5002
Filtro (5)
RV 10.5003
Válvula de regulación de presión (6)
RV 10.8001
Junta, PTFE compound
PC 1.1
Cable
Labworldsoft
®
134
Un fallo durante el funcionamiento se muestra en la pantalla mediante un mensaje de error.
Tras aparecer un mensaje de error grave, el elevador se desplaza a la posición final superior y el manejo del aparato está bloqueado. El elevador puede
seguir utilizándose.
Proceda, entonces, de la siguiente manera:
Apague el aparato desde el interruptor
Tome las medidas correctivas correspondientes
Vuelva a encender el aparato
Códigos de error Resultado
Causa
Corrección
Error de
La destilación se interrumpe en
Interfaz IR bloqueada
Confirme con ESC
comunicación
el modo de autodestilación.
Baño calefactor desconectado
Baño calefactor conectado
en el baño
Compruebe y limpie la interfaz IR
No hay rotación
La destilación se interrumpe
El accionamiento de rotación no arranca o Apague el equipo con el interruptor de
No hay accionamiento de rotación
tiene una divergencia de velocidad grande alimentación y vuelva a encenderlo
No hay diferencia La destilación se interrumpe en
No hay aumento en la temperatura
Confirme con ESC
de temperatura
el modo de autodestilación.
diferencial del agua de refrigeración
Revise el caudal del agua de refrigeración
Asegúrese de que las mangueras de agua
de refrigeración están bien atornilladas
Temperatura fuera La destilación se interrumpe
Temperatura diferencial del
Confirme con ESC
del intervalo
margen de medición (>7 K)
Asegúrese de que las mangueras de agua
permitido
de refrigeración están bien atornilladas
No hay vacío
La destilación se interrumpe
El valor nominal de vacío no se ha
Confirme con ESC
El vacío no puede regularse
alcanzado
Revise el equipo de vidrio y las conexiones de
manguera para asegurarse de que son estancas
Encienda la bomba
Revise la conexión de las válvulas de vacío
No hay
El vacío no puede desairearse
No hay aireación del refrigerador
Apague el equipo
desaireación
El sensor de vacío está defectuoso
Ventile el equipo de vidrio manual a través de la llave
de cierre
La válvula de agua El agua circula continuamente
La válvula de agua no se ha conectado Confirme con ESC
no se ha
por el circuito de refrigeración
Revise la conexión
conectado
Caudal
La destilación se interrumpe en
Caudal del agua de refrigeración
Confirme con ESC
fuera del
el modo de autodestilación.
fuera del intervalo permitido
Vuelva a ajustar el caudal
intervalo
Desconecte el control de caudal
permitido
(para el refrigerador de hielo seco)
El refrigerador
La destilación se interrumpe
El refrigerador está sobrecargado
Confirme con ESC
está
El destilado puede llegar a la bomba
Modifique los parámetros del proceso, por ejemplo,
sobrecargado
de vacío
aumentando la presió
Baje la temperatura del baño
Aumente el caudal del refrigerador n el margen indicado
Destilación seca
La destilación se interrumpe
Durante la destilación se ha detectado Confirme con ESC
que en el matraz de evaporación no O buen active el elemento "Secado"
hay ningún fluido.
en el menú "Configuración"
El elevador no
La destilación se interrumpe
El recorrido del elevador está
Confirme con ESC
está en
El motor del elevador se desconecta
bloqueado
Compruebe el recorrido del elevador
su posición final
Retire los bloqueos
Error de ajuste
El ajuste se restablece al ajuste
El ajuste se encuentra fuera de los
Confirme con ESC
de fábrica
márgenes permitidos (máx. +/- 0,5 K) Compruebe si el sensor está correctamente introducido
Realice un nuevo ajuste
Error de
El valor de calibración de vacío se ajusta
Error al comprobar el contenid
El vacío debe volver a calibrarse
memoria
al valor de fábrica.
de la memoria
Fuga en el vacío
La destilación se interrumpe
Fuga en sistema de vacío
Confirme con ESC
Búsqueda de fugas
No se ha encontrado La destilación se interrumpe
No ha sido posible encontrar el
-Disolvente con un punto de ebullición alto: reinicio
ningún punto de
punto de ebullición
-Controle el baño calefactor
ebullición
No se ha encontrado La destilación no se inicia
No se ha detectado ninguna
-Confirme con ESC
ninguna bomba
bomba analógica
-Compruebe la bomba y las conexiones
analógica
Si el error no se puede eliminar mediante las medidas descritas:
- diríjase a la Sección de servicio técnico
IKA
®
,
- envíe el aparato junto con una breve descripción del fallo.
Códigos de error
135
Datos técnicos
Intervalo de tensión de servicio
Vac
100 - 230 ±10%
Tensión nominal
Vac
100 - 230
Frecuencia
Hz
50 / 60
Rendimiento de la conexión sin baño calefactor W
100
Rendimiento de la conexión en funcionamiento “stand by” W
3,3
Velocidad
rpm 20-280
Indicador de la velocidad
digital
Pantalla de dimensiones del área de visibilidad (An x Al) mm
70 x 52
Indicador de la pantalla
Pantalla TFT
Multilingue si
Marcha a la derecha y a la izquierda / Funcionamiento a intervalos
si
Arranque suave
si
Elevador
automático
Velocidad de carrera
mm/s
50
Carrera
mm 140
Ajuste del tope final inferior
mm
60, sin contacto
Inclinación regulable del cabezal
0° - 45°
Temporizador min 1-200
Intervalo
sek 1-100
Controlador de vacío integrado
si
Margen de medición de vacío
mbar (hPa)
1050 - 1
Margen de regulación de vacío
mbar (hPa)
1012 - 1
Precisión de medición de vacío
mbar
+ 2 (+ 1 Digit) después de realizar el ajuste a temperatura constante
Precisión de regulación de vacío
mbar
Histéresis ajustable
Margen de medición de temperatura diferencial K
7
Margen de compensación de desplazamiento K
+0,5
Interfaz
USB, RS 232
Programación de la rampa
si
Procesos de destilación programables
si
Control remoto
con el accesorio labworldsoft
®
Superficie de refrigeración
cm
2
1200
(Refrigerador estándar RV 10.1,10.10,10.2,10.20)
Caudal mín. del agua de refrigeración
l/h
30
Caudal máx. del agua de refrigeración
l/h
100
Presión del agua de refrigeración
bar
1
Margen de temperatura del agua de refrigeración °C
18 - 22, constante
Fusible
2xT1, 6A 250V 5x20
Duración de conexión permisible
%
100
Temperatura ambiente permisible
°C
5-40
Humedad permisible
%
80
Humedad permisible DIN EN 60529
IP 20
Clase de protección
I
Categoría de sobretensión
II
Grado de ensuciamiento
2
Peso (sin equipo de vidrio; sin baño calefactor) kg
18,6
Dimension (An x Pr x Al)
mm
500 x 440 x 430
Altitud geográfica de servico
m
máx. 2000 sobre el nivel del mar
Reservado el derecho de introducir modificaciones técnicas!
136
Tabla de disolvente (selección)
Disolventes Fórmula
Presión para punto
de ebullición
a 40 °C en mbar
Acetic acid
C
2
H
4
O
2
44
Acetone C
3
H
6
O 556
Acetonitrile C
2
H
3
N 226
N-Amylalcohol, C
5
H
12
O 11
n-Pentanol
n-Butanol C
4
H
10
25
tert. Butanol,
C
4
H
10
O 130
2-Methyl-2-Propanol
Butylacetate C
6
H
12
O
2
39
Chlorobenzene C
6
H
5
CI 36
Chloroform CHCI
3
474
Cyclohexane C
6
H
12
235
Dichloromethane, CH
2
CI
2
atm.press.
Methylenechloride
Diethylether C
4
H
10
O atm.press.
1,2,-Dichloroethylene (trans)
C
2
H
2
CI
2
751
Diisopropylether C
6
H
14
O 375
Dioxane C
4
H
8
O
2
107
Dimethylformamide (DMF)
C
3
H
7
NO 11
Ethanol C
2
H
6
O 175
Disolventes Fórmula
Presión para punto
de ebullición
a 40 °C en mbar
Ethylacetate C
4
H
8
O
2
240
Ethylmethylketone C
4
H
8
O 243
Heptane C
7
H
16
120
Hexane C
6
H
14
335
Isopropylalcohol C
3
H
8
O 137
Isoamylalcohol, C
5
H
12
O 14
3-Methyl-1-Butanol
Methanol CH
4
O 337
Pentane C
5
H
12
atm.press.
n-Propylalcohol C
3
H
8
O 67
Pentachloroethane C
2
HCI
5
13
1,1,2,2,-Tetrachloroethane C
2
H
2
CI
4
35
1,1,1,-Trichloroethane C
2
H
3
CI
3
300
Tetrachloroethylene C
2
CI
4
53
Tetrachloromethane CCI
4
271
Tetrahydrofurane (THF)
C
4
H
8
O 357
Toluene C
7
H
8
77
Trichloroethylene C
2
HCI
3
183
Water H
2
O 72
Xylene C
8
H
10
25

