Senco SFW09: инструкция
Раздел: Инструмент, электроинструмент, силовая техника
Тип:
Инструкция к Senco SFW09

SFW09
OPERATING INSTRUCTIONS
BRUKSVISNING
(ORIGINAL INSTRUCTIONS)
(ÖVERSÄTTNING AV DE URSPRUNGLIGA UNDERVISNINGARNA)
BETRIEBSANLEITUNG
BRUGSANVISNING
(ÜBERSETZUNG DER URSPRÜNGLICHEN ANWEISUNGEN )
(OVERSÆTTELSE AF DE ORIGINALE INSTRUKTIONER)
GEBRUIKSAANWIJZING
INSTRUZIONO PER L'USO
(VERTALING VAN DE OORSPRONKELIJKE GEBRUIKSAANWIJZING)
(TRADUZIONE DELLE ISTRUZIONI ORIGINALI)
MODE D'EMPLOI
INSTRUCCIONES DE EMPLEO
(TRADUCTION DES INSTRUCTIONS ORIGINALES)
(LA TRADUCCIÓN DE LAS INSTRUCCIONES ORIGINALES)
ИНСТРУКЦИЯ ПО ЭКСПЛУАТАЦИИ
KÄYTTÖOHJEET
(ALKUPERÄISTEN OHJEIDEN KÄÄNNÖS)
(перевод оригинальной инструкции)
BRUKSVISNING
KULLANIM KILAVUZU
(OVERSETTELSE AV DE ORIGINALE INSTRUKSJONENE)
(ORİJİNAL TA LİMATLARI)
INSTRUKCJA OBSŁUGI
© 2010 by Senco Brands, Inc.
Senco Brands, Inc.
Questions? Comments?
NFE84C Revised November 2, 2010
4270 Ivy Pointe Blvd.
e-mail: toolprof@senco.com
(Replaces 10/22/09)
Cincinnati, Ohio 45245
www.senco.com
EU: www.verpa-senco.com

2
English
Deutsch Nederlands
Français
EMPLOYER’S
Verantwortung des
VERANTWOORDELIJKHEDEN
Responsabilités de
RESPONSIBILITIES
Arbeitgebers
VAN DE WERKGEVER
l’employeur
It is the employer’s respon-
Der Arbeitgeber ist verant-
Het is de verantwoordelijkheid
La responsabilitié de
sibility to assure this manual
wortlich dafür, daB alle
van de werkgever dat deze
l’employeur est de s’assurer
is read and understood by all
Arbeitnehmer, die diese
handleiding gelezen en
que ce mode d’ emploi est
personnel assigned to use the
Maschine bedienen, die
begrepen wordt door alle
lu et compris par tout per
tool. Keep this manual avail -
Betriebsanleitung lesen
gebruikers van dit apparaat.
sonnel amené à utiliser cet
able for future reference.
undverstehen. Die Betrieb-
Houd deze handleiding ter
outil. Conserver ce mode
sanleitung sollte immer
beschikking voor verdere
d’emploi disponible pour
griffbereit sein.
raadpleging.
toute référence ultérieure.
Suomi Norwegian
Svenska
TYÖNANTAJAN VASTUU
ARBEIDSGIVERS
Arbetsgivarnas
ANSVAR
ansvarsområden
Työnantaja on vastuusa
Det er arbeidsgivers ansvar
Det är
siitä, että jokainen, joka
å forsikre seg om at denne
arbetsgivarensskydighet
käyttää tätä konetta, on
bruksanvisningen blir lest
att se till att denna
lukenut ja ymmärtänyt nämä
-
og forstått av alle som kan
bruksanvisning blir läst
käyttöohjeet. Säilytä tämä
komme til å arbeide
och förstådd av alla som
ohjekirja tulevaa käyttöä
med dette verktøyet.
använder och kommer att
varten.
Behold derfor denne
använda detta verktyg.
bruksanvisningen for
Behåll därför
framtidig bruk.
bruksanvisningen för
framtida användning.
Dansk
Italian Español
Arbejdsgiverens ansvar
Responsabilità del datore
Responsabilidades del
di lavoro
empleador
Det er arbejdsgiverens
E’responsabilita’ del datore
Es la responsabilidad del
ansvar at sikre, at denne
di lavoro assicurarsi che
usuario asegurarse de que
håndbog bliver laest og
questo manuale sia letto e
este manual seal leido y en
forstået af alle ansatte,
compreso da tutto il per
tendido por todo el personal
der bruger dette vaerktøj.
sonale destinato all’uso
asignado al uso de esta
Denne håndbog skal altid
dell’attrezzo. Tenete questo
herramienta. Mantenga este
vaere til rådighed.
manuale a disposizione per
manual a su disposicion
futura consultazione.
para referencia futura.
Русский
Türkçe
Polski
ОБЯЗАННОСТИ
OBOWIĄZKI
РА БОТОДАТЕЛЯ
PRACODAWCY
Работодатель обязан
предоставить данную
инструкцию рабочему
персоналу для
ознакомления с ней и
дальнейшего изучения.
Необходимо сохранить
данную инструкцию для
будущего использования.

English
Deutsch Nederlands
Français
TABLE OF
CONTENTS
INHALTSVERZEICHNIS
INHOUDSOPGAVE
TABLE DES MATIERÈS
Tool Use 4
Bedienungsanleitung
4
Gebruiksaanwijzing 4
Utilisation de l’outil 4
Maintenance 12
Wartung 12
Onderhoud 12
Entretien 13
Troubleshooting 16
Fehlersuche 16
Reparatie 16
Dépannage 17
Specications 20
TechnischeDaten 20
Technischegegevens 20
Spécications 20
Accessories 23
Zubehör 23
Accessoires 23
Accessoires 23
Declaration of
Konformitätserk-
CE Conformit-eitsverklar-
Déclaration de
Conformity 28
lärung 28
ing 28
Conformité 28
Suomi Norwegian
Svenska
INNEHÅLLSFÖRTECK-
SISÄLLYSLUETTELO
INNHOLD
NING
Käyttöohjeet 5
Bruksanvisning 5
Användning 5
Huolto 13
Vedlikehold 13
Underhåll 13
Vian etsintä 17
Feilsøking 17
Felsökning 17
Teknisettiedot 20
Tekniskedata 20
Tekniskadata 20
Lisätarvikkeet 23
Tilleggsutstyr 23
Tillbehör 23
Yhdenmukaisu-
Erklæring om Samsva 28
Försäkran om
Överensstäm-
usvakuutus 28
melse
28
Dansk
Italian Español
INDHOLDSFORTEG-
INDICE DEI
NELSE
CONTENUTI
TABLA DE MATERIAS
Brug af værktøj 5
Uso de la
Uso Dell’attrezzo 6
Vedligeholdelse 14
Herramienta 6
Manutenzione 14
Fejlnding 18
Mantenimiento 14
Ricerca e Correzione
Specikationer 20
Identicación
Guasti 18
Tilbehør 23
de Fallas 18
Speciche 21
Overensstemmelses
Especicaciones 21
Accessori 23
Accesorios 23
Deklarationen 28
Dichiarazione di
Declaracion
Conformita’ 28
de Conformidad 28
Türkçe
Polski
СОДЕРЖАНИЕ
İÇİNDEKİLER
SPIS TREŚCI
Порядок работы
Użycie narzędzia 7
с инструментом 6
Kullanım 7
Konserwacja narzędzia 15
Техническое
обслуживание 14
Bakım 15
Rozwiązywanie prob-
Устранение
Sorun Giderme 19
lemów 19
неисправностей 18
Özellikler 21
Specykacja 21
Технические
характеристики 21
Aksesuarlar 23
Akcesoria 23
Дополнительное
Uygunluk Beyanı 28
Deklaracja zgodności 28
оборудование и
аксессуары 23
Сертификация 28
3

Tool Use
Bedienungsanleitung Gebruiksaanwijzing
Utilisation de l’Outil
English
Deutsch Nederlands
Français
l Read and understand these
l Lesen Sie bitte vor
l Lees en begrijp deze
l Lisez et retenez ces
warnings to prevent injuries to
Inbetriebnahme des Gerätes
veiligheidsvoorschriften
consignes pour éviter des
yourself and bystanders.
die Sicherheitshinweise, um
om letsel aan uzelf
blessures à vous-même ou
Refer to tool use, mainte-
Unfälle und Verletzungen zu
en omstanders te
à toute autre personne se
nance and troubleshoot-
vermeiden.
voorkomen. Raadpleeg
trouvant sur les lieux. Pour
ing sections for additional
Beachten Sie die Hinweise
de instructies betreffende
un complément d’information
information.
für den Gerätegebrauch; die
de gebruiksaanwijzingen,
reportez-vous aux sections
Wartung und Fehlersuche.
onderhoud en reparatie voor
sur l’utilisation de l’outil, son
verdere informatie.
entretien et son dépannage.
l Keep tool pointed away from
l
Halten Sie das Gerät so, daß
l Houdt het apparaat afgewend
l Maintenez l’outil pointé à
yourself and others and
es nicht auf Sie selbst oder
van uzelf en anderen en sluit
l’écart de vous-même et des
connect air to tool. Tools shall
andere zeigt und schließen
dan de luchttoevoer aan.
autres personnes et raccor-
be operated at the lowest
Sie den Druckluftschlauch
Het apparaat moet gebruikt
dez l’outil à l’air comprimé.
pressure needed for the
an. Die Geräte sollten nur
worden met laagst mogelijke
Les outils doivent être
application. This will reduce
mit dem für den jewelligen
luchtdruk. Dit vermindert
utilisés à la pression la plus
noise levels, part wear and
Anwendungsfall erforderlichen
geluidshinder, slijtage en
faible requise pour le travail
energy use.
geringsten Luftdruck betrieben
energie verbruik.
à faire. Cela réduira le niveau
werden. Dadurch werden der
de bruit, l’usure de l’outil et
Lärm, der Verschleiß und der
la demande en énergie.
Energieverbrauch gemindert.
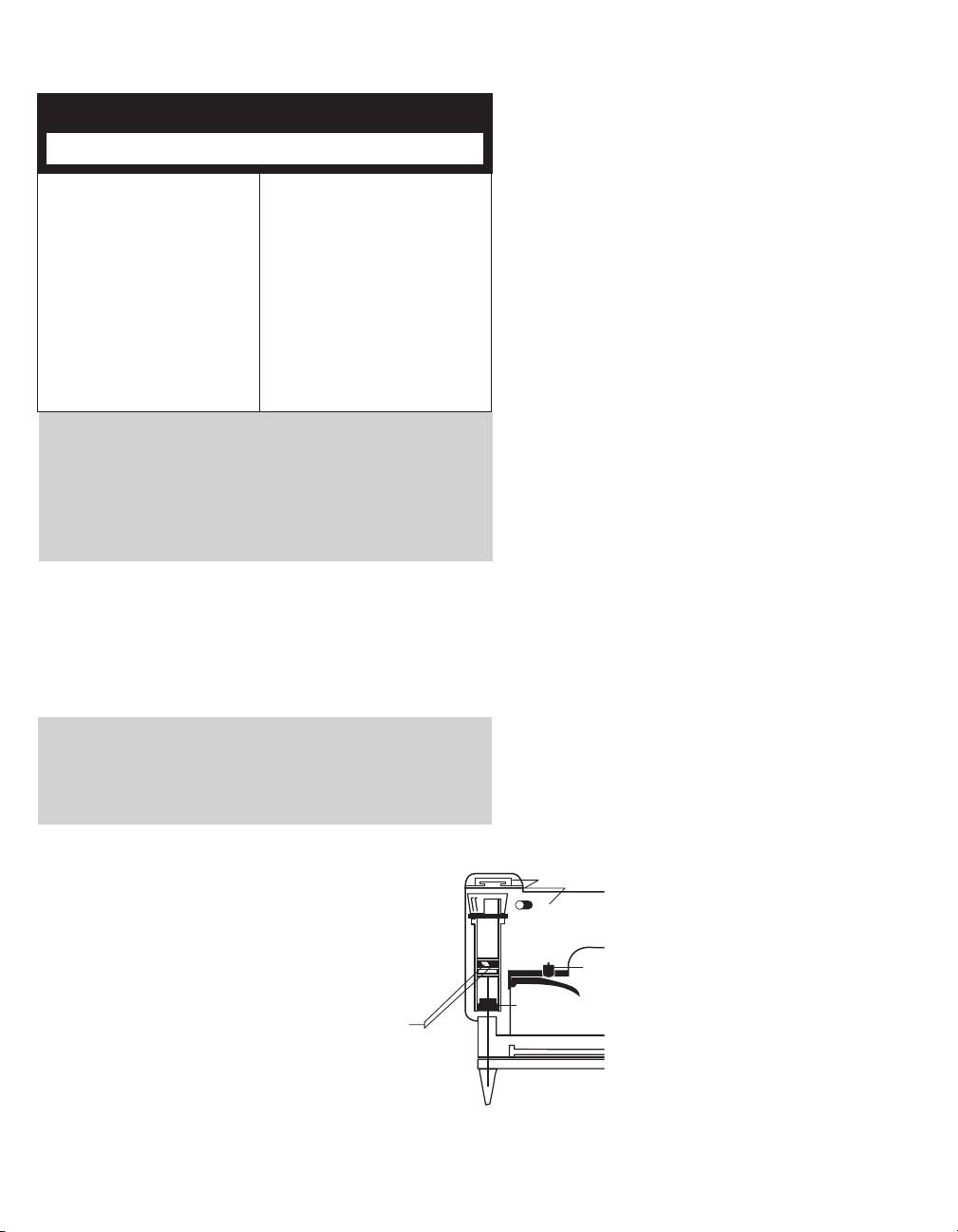
l To Load:
l Laden des Magazins:
l Om te laden:
l Pour charger :
Push latch and slide rail open.
Hebel drücken und Schieber
Druk op de grendel en schuif
Enfoncer le loquet et ouvrir
aufziehen.
het magazijn naar achteren
le rail en glissant.
open.
2
1
l Lay strip of fasteners into
l Legen Sie den Klammerstre-
l Leg de strook spijkers in
l Insérer une bande de
magazine. Use only genuine
ifen ins Magazin. Benutzen
het magazijn. Gebruik
projectiles dans le magasin.
SENCO fasteners (see Tech-
Sie ausschließlich SENCO
uitsluitend SENCO spijkers
N’utiliser que de véritables
nicalSpecications).Donot
Befestiger (siehe Technische
(zieTechnischeSpecicaties).
projectiles SENCO (voir les
load with trigger depressed.
Daten).LadenSiedasGeraet
Laadt nooit met de trekker
SpécicationsTechniques).
nicht, wenn der Auslöser
ingedrukt.
Ne pas appuyer sur la dé-
betätigt ist.
tente pendant le chargement.
l Push rail forward until it
l Schieber vorschieben, bis er
l Schuif het magazijn naar
l Placez l’outil contre la
latches.
einrastet.
voren tot deze vastklikt.
surface de travail et tirez sur
la détente.
l Never use a tool that
l Kein undichtes oder schad-
l Gebruik het apparaat nooit
l N’utilisez jamais un outil qui
leaks air or needs
haftes Gerät benutzen.
wanneer er een lek in de
a des fuites d’air ou qui a
repair.
luchttoevoer is of als reparatie
besoin d’être réparé.
noodzakelijk is.
4

Käyttöohjeet Bruksanvisning
Användning av Verktyget
Brug af vaerktøj
Suomi Norwegian
Svenska
Dansk
l Lue nämä turvaohjeet niin että
l Les og forstä disse reglene for å
l Läs dessa föreskrifter för att förhindra
l Læs og forstå disse advarsler for at
ymmärrät ne välttääksesi vahinkoja
unngå skade på andre eller deg selv.
skador på dig själv och andra. För
undgå at De eller eventuelle andre
tapahtumasta itsellesi ja muille.
For ytterligere informasjon, se avsnitt
ytterligare information se anvisningar
tilstedeværende kommer til skade. Der
Lisätietoja saat työkalun käyttö-,
for bruk, vedlikehold og feilsøking.
beträffande användning, underhåll
henvises til afsnittene Brug af værktøj,
huolto-ja vian etsintäselostuksista.
och telsökning av verktyg.
VedllgeholdelseogFejlndingfor
yderligere oplysninger.
l Pidä kone aina itsestäsi ja muista
l Hold verktøyet vendt bort fra deg selv
l Rikta verktyget från dig själv och
l Lad værktøjet pege bort fra Dem selv
poispäin suunnattuna, kun liität
og andre personer ved tilkobling av
andra då ni ansluter tryckluften.
og andre og tilslut luft til værktøjet.
koneen paineilmaan. Käytä alinta
trykkluft. Bruk lavest mulig lufttrykk for
Verktyget skall drivas med lägsta
Værktøjet skal betjenes ved det
koneen käyttämiseen tarvittavaa
arbeidsoperasjonen. Det vil redusere
lufttryck som behövs för arbetet. Detta
lavest nødvendige tryk. Dette vil
painetta työkohteesta riippuen.
støynivå, slitasje på deler og energi-
sänker ljudnivå, slitage och energi
reducere støjniveauet, slid på dele, og
Tämä alentaa melua, varaosien
forbruk.
förbrukning.
energiforbrug.
kulumista ja energian kulutusta.
l Makasiinin täyttö:
l For å fylle magasinet:
l Laddning av magasinet:
l For at lade:
Paina vipua ja avaa makasiini.
Trykk klaffen og magasinet glir
Tryck på klaffen för att öppna
tryk på låsen og træk
bakover.
magasinet.
magasinskinnen tilbage.
l Aseta naulakampa makasiiniin.
l Sett stiftene inn i magasinet. Bruk bare
l Lägg in stiftknippet i magasinet.
l Læg en stang hæfteklammer i
Käytä ainoastaan alkuperäisiä
orginale SENCO-stifter. Ikke lad med
Använd endast original SENCO
magasinet. Anvend kun ægte
SENCO nauloja (katso Tekniset
avtrekkeren trykket inn.
stift(seVerktygsData).Hållickepå
SENCO hæfteklammer (se Tekniske
Tiedot).Älälataakonettaliipasin
avtryckaren då ni laddar pistolen.
Specikationer).Ladikkemed
alas painettuna.
aftrækkeren presset ind.
l Työnnä makasiini kiinni kunnes se
l Skjutmagasinet tills det låser sig.l Skyv lokket på plass til det låser seg.
l Skub magasinskinnen på plads.
lukkiutuu.
l Älä koskaan käytä konetta, joka
l Bruk aldri et verktøy som lekker luft og
l Använd aldrig ett verktyg som läcker
l Brug aldrig værktøj, hvor der siver
vuotaa ilmaa tai on korjauksen
trenger reparasjon.
eller är i behov av reparation.
luft ud.
tarpeessa.
5

Uso dell’Attrezzo
Uso de la Herramienta
Порядок работы с
инструментом
Italian Español
Pyccкий
l Leggete queste avvertenze per
l Lea estos avisos y comprendalos
l
Для предотвращения нанесения травм
prevenire lesioni personali a voi e
para evitar las lesiones en usted
себе и окружающим внимательно
a terzi. Per ulteriori informazioni vi
mismo y en los que le rodean.
ознакомьтесь с инструкциями,
rimandiamo ai capitoli relativi all’uso
Reérasealasseccionessobre
приведенными в данном разделе.
dell’attrezzo, alla manutenzione e
el uso de la herramienta, el
Дополнительная информация
alla ricerca e correzione guasti.
mantenimientoylaidenticaciónde
содержится в разделах «Порядок
fallos,paramásinformación.
работы с инструментом», «Техническое
обслуживание» и «Устранение
неисправностей»
l Tenete l’attrezzo puntato lontano
l Las herramientas deberán ser
l
Подсоедините источник сжатого
da voi stessi e da altri quando
operadasalamenorpresiónque
воздуха (не направляйте инструмент
collegate l’aria all’attrezzo. Gli
senecesiteparasuaplicación.
на себя и других). Эксплуатация
attrezzi dovranno essere adoperati
Esto reducirá el nivel de ruido, el
инструмента должна проводиться
alla minima pressione d’esercizio
desgaste de las partes, y el uso de
при давлении сжатого воздуха,
possibile. Cio’ ridurra’ la rumorosita’,
energía.
достаточном для выполнения
l’usura dei componenti ed il
операций (см. раздел «Технические
consumo di energia.
характеристики»). Это обеспечит
снижение уровня шума, износа и
расхода энергии.
l Per caricare l’attrezzo:
l Para Cargar:
l
Загрузите крепеж:
Spingete la leva di chiusura e fate
Empuje el cerrojo y deslice el carril
Нажмите на защелку и
scorrere la guida indietro.
abriéndolo.
отодвиньте колодку подающего
механизма
2
1
lSistemateunaladigraffenel
l Coloque la tira de grapas en el
l
Установите кассету с крепежом
caricatore. Usate solamente graffe
cargador. Use solamente grapas
в магазин. Используйте крепеж
originaliSENCO(vedereSpeciche
SENCO(vealasEspecicaciones
только компании Senco(см. раздел
Tecniche).Noncaricateagrilletto
Técnicas).Nocarguelaherramienta
«Технические характеристики»). Не
premuto.
con el gatillo oprimido.
устанавливайте кассету при нажатом
курке.
lAppoggiatel'attrezzosullasupercie
l Empuje el carril hacia adelante hasta
l
Задвиньте колодку подающего
di lavoro e premete il grilletto.
cerrario.
механизма до его фиксации.
l Non adoperate mai un attrezzo
l Nunca use una herramienta que
l
Никогда не используйте
che abbia perdite d’aria o necessiti
tenga escapes de aire o que
инструмент, если он неисправен
riparazioni.
necesite
или в нём имеется утечка воздуха.
reparación.
6

Kullanım
Użytkowanie narzędzia
Türkçe
Polski
l Bu uyarıları okuyup anlayarak kendinizin
l Przeczytaj uważnie i zastosuj się do
ve etranızdakilerin yaralanmasını
wszystkich ostrzeżeń
önleyiniz. Ek bilgi için araç kullanımı,
bezpieczeństwa aby ochronić siebie i
bakım ve sorun giderme bölümlerine
innych przed ewentualnym
bakınız..
wypadkiem. Zachowaj instrukcję aby
mieć możliwość powołania
się na nią w przyszłości.
l Ale kendinizden ve diğerlerinden
l Nigdy nie trzymaj narzędzia
uzak tutunuz ve araca hava bağlayınız.
skierowanego ku sobie ani osobom
Aletler, kullanım için gereken en düşük
trzecim podczas podłączania jego do
basınçta kullanılmalıdır. Bu; gürültü
źródła sprężonego
seviyelerini, parça aşınmalarını ve enerji
powietrza. Narzędzie powinno być
kullanımını azaltacakr..
ustawione na najniższe
ciśnienie pozwalające na prawidłowe
wbicie łącznika – pozwoli to
zaoszczędzić energię, zmniejszy poziom
hałasu, oraz przedłuży
żywotność narzędzia.
.
l Yükleme İçin:
l Aby załadować łączniki:
Mandalı iniz ve ray kapağını kaydırınız.
Zwolnij zatrzask i wysuń szynę
magazynka..
l Zımba teli şeridini haznenin içine yarınız.
l Włóż pasek łączników do magazynka.
Sadece orjinal SENCO zımba tellerini
Używaj wyłącznie
kullanınız(teknik özelliklere bakın). Teğe
oryginalnych łączników SENCO. Nigdy nie
basılı şekilde zımba teli koymayınız.
ładuj łączników z
palcem naciśniętym na spuście.
l Mandalı, rayı tutana kadar iniz.. l Dosuń z powrotem szynę magazynka aż do
zatrzaśnięcia.
Никогда не используйте
l Hava kaçıran ya da tamire ihyacı olan
l Nigdy nie używaj narzędzia, które
инструмент, если он неисправен
aletleri kesinlikle kullanmayınız..
przepuszcza powietrze lub
или в нём имеется утечка воздуха.
wymaga naprawy.
7

Tool Use
Bedienungsanleitung
Gebruiksaanwijzing
English
Deutsch Nederlands
l To drive fasteners:
l Drücken Sie die Mündung auf das
l Plaats het apparaat tegen het
Position tool against work surface and
Werkstück und betätigen Sie den
werkstuk en druk de trekker af.
pull the trigger.
Auslöser.
l These tools are not required to
l Diese Werkzeuge erfordern keinen
l Dit gereedschap werkt ook zonder
have a workpiece contact. USE
Kontakt mit dem Werkstück. Seien
contact te maken met een werkstuk.
CAUTION as these tools will drive a
Sie deshalb VORSICHTIG, da beim
WEES VOORZICHTIG, want dit
fastener when the trigger is pulled.
Betätigen des Auslösers eine
gereedschap geeft een niet af
Klammer angeschlagen wird.
wanneer de trekker wordt ingedrukt.
l Should a staple jam occur, disconnect
l Wenn eine Klammer klemmt, das Gerät
l Indien een kram of spijker opstopping
air supply.
von der Druckluftleitung trennen.
veroorzaakt, onmiddellijk de lucht
toevoer afsluiten.
l Hebel drücken und Magazin öffnen.
l Druk op de grendel en schuif het
l 1) Depress latch and 2) slide rail
magazijn naar achteren open.
open.
l Remove staples.
l Verwijder de nieten.l Klammern entfernen.
l Remove jammed fastener.
l Verklemmten Befestiger entfernen.
l Verwijder de vastgeslagen niet. Sluit
de persluchtoevoer aan. Laad het
magazijn op nieuw met nieten en sluit
het magazijn.
l Lay strip of staples onto rail. Use
l Legen Sie die Klammerstreifen von
l Vul het magazijn met nieten. Gebruik
only genuine SENCO fasteners (see
oben in das Magazin. Benutzen Sie
alleen orginele SENCO nieten. Nooit
PartsChart).Donotloadwithtrigger
ausschließlich SENCO Befestiger
het magazijn laden met de trekker in
depressed.
(sieheTechnischeDaten).Laden
ingetrokken positie.
Sie das Gerät nicht, der Auslöser
betätigt ist.
l Release staple door and slide it
l Entriegeln Sie den Klammerschieber
l Druk de magazijnschuif naar voren.
und schieben Sie ihn nach vorne.
forward.
8
2
1
2
1

Utilisation de l’Outil
Käyttöohjeet
Bruksanvisning
Användning av Verktyget
Français
Suomi
Norwegian
Svenska
l Positionner l’appareil contre la
l Aseta kone työkohdetta vasten
l Sett vertøyet mot
l Sätt verktyget mot
surface de travail et presser
ja paina liipasinta.
arbeidsmaterialet og trekk av.
arbetsstycket och tryck av.
sur la gâchette.
l Disse verktøyene
l Dessa verktyg krävs
l Ces outils n’ont pas besoin
l Näitä työkaluja ei tarvita
behøver ikke kontakt
inte för att ha kontakt
d’un contact avec la pièce.
työkappalekontaktia varten.
med arbeidsstykket. VÆR
med arbetsstycket. VAR
FAIRE ATTENTION car ces
OLE VAROVAINEN, koska
FORSIKTIG, for de vil skyte
FÖRSIKTIG eftersom
outils envoient une attache
nämä työkalut kiinnittävät
en stift når du trykker på
dessa verktyg kommer
dès que la gâchette est
kiinnikkeen, kun liipaisinta
avtrekkeren.
att driva in ett fästdon när
actionnée.
vedetään.
avtryckaren dras.
l Si un enrayage se produit,
l Jos naula jumiutuu, irroita kone
l Skulle en klammer bli
l Skulle en stift sette seg fast,
coupez l’arrivée d’air.
paineilmasta.
fastklämd i verktyget, koppla
må luften kobles fra.
då från luftledningen.
l Tirer le loquet et ouvrir le rail
l Paina vipua ja avaa makasiini. l Trykk klaffen for å åpne
l Tryck på klaffen för att
en le glissant.
magasinet.
öppna magasinet.
l Enlever les agrafes.
l Ta ut stiftene.l Tyhjennä makasiini.
l Ta ut klammren.
l Enlevez le projectile coincé.
l Poista juuttunut hakanen.
l Ta ut stiften som er kilt fast.
l Tag bort den fastklämda
klammret.
l Lägg i en stav klammer i
l Mettez une série d’agrafes
l Aseta naulakampa makasiiniin.
l Sett stiftene inn i magasinet.
magasinet. Använd endast
dans le chargeur. N’utilisez
Käytä ainoastaan alkuperäisiä
Bruk bare orginale SENCO-
original SENCO klammer
que de véritable agrafes
SENCO-kiinnittimiä. Älä lataa
stifter(seTekniskeData).
(seVerktygsData).Håll
SENCO (voir Tableau des
konetta varmistin tai liipasin
Ikke lad med avtrekker
aldrig avtryckaren intryckt
Pièces).N’appuyezpas
alas painettuna.
trykket inn.
då ni laddar verktyget.
sur la détente pendant le
rechargement.
l Relâcher le pousse agrafes et
l Vapauta makasiinin kansi ja
l Lossa magasinlocket och
l Frigjør
le faire glisser vers l’avant.
työnnä sitä eteenpäin.
skjut det framåt.
matingsmekanismen og
skyv den forover.
9

2
1
Порядок работы с
Brug af vaerktøj
Uso dell’Attrezzo
Uso de la Herramienta
инструментом
Dansk Italian Español
Pyccкий
l Anbring pistolen mod
l Appoggiate l’attrezzo contro la
l Coloque la herramienta contra
l
Забивание крепежа:
arbejdsoveradenogaktiver
superciedilavoroepremeteilgril-
lasuperciedetrabajoy
Прижмите инструмент к рабочей
aftrækkeren.
letto.
apretar el gatillo.
поверхности и нажмите на курок
l Disse værktøjer skal
l Questi utensili non richiedono
l Estas herramientas no
ikke nødvendigvis have
il contatto diretto con il pezzo da
necesitan tener un contacto
l
БУДЬТЕ ОСТОРОЖНЫ,т.к.
kontakt med en
lavorare.
con la pieza de trabajo. TENGA
arbejdsoverade. Udvis
PRESTARE ATTENZIONE, in
инструмент можетвыстрелить при
CUIDADO, ya que estas herra-
forsigtighed, da disse
quanto premendo il grilletto
mientas clavarán un sujetador
нажатии на курок без
værktøjer uddriver
questi utensili inseriscono
cuando se tire del gatillo.
соприкосновения с рабочей
hæfteklammer, når
l’elemento di ssaggio.
поверхностью
udløseren aktiveres.
l Dovessevericarsiun
l Si se produce un atascamiento
l
Если крепеж застрял в
l Hvis værktøjet blokeres
inceppamento dei graffe,
de las grapas desconecte el
инструменте, отсоедините источник
af en stift, frakobles
scollegate l’alimentazione
suministro de aire.
сжатого воздуха
lufttilførslen.
dell’aria.
l Pres låsen og lad
l Spingete la chiusura e aprite la
l Empuje el cerrojo y deslice
l
Нажмите на защелку
skinnen
guida facendola scorrere.
el carril abriéndolo.
и отодвиньте колодку
glide ud.
подающего механизма
2
1
l Saque las grapas.l Rimuoveta le graffe.l Fjern hæfteklammer.
l
Вытащите кассету с
крепежом
l Togliete i chiodi inceppati.
l Retire la grapa atascado.l Fjern stiften der er i
l
Удалите застрявший крепеж.
klemme.
l For at lade:
l Sistemateunaladigraffesulla
l Coloque una tira de grapas
l
Установить кассетус
Pres hæfteklammedørens
slitta. Usate solamente graffe
en el riel. Use solamente grapas
крепежом в магазин.
udløser ind. Træk hæfteklam-
originali SENCO
SENCO genuinas (ver la
Используйте крепеж
medøren tilbage til “låst”
(vederelaTabella-Componenti).
TabladePartes).Nocargue
только компании Senco(см.
stillingen.
Non caricate a grilletto premuto.
la herramienta con el gatillo
раздел «Технические
oprimido.
характеристики»). Не
устанавливайте кассету при
нажатом курке.
l Udløs hæfteklammedøren
l Rilasciate lo sportello del
l Destrabe la compuerta de
l
Нажмите на защелку и
og skub den fremad.
caricatore e fatelo scorrere in
las grapas y deslícela hacia
подвиньте колодку подающего
avanti.
adelante.
механизма вперед до
фиксации.
10

Brug af vaerktoj
Uso dell’Attrezzo
Uso de la Herramienta
Kullanım
Użytkowanie narzędzia
Türkçe
Polski
l Zımbaları çakmak için:
l Dociśnij narzędziem do powierzchni roboc-
Ale çalışma yüzeyinin karşısına
zej i naciśnij na spust..
yerleşrip, teği çekiniz.
l UWAGA! Narzędzie wystrzeli zawsze gdy
l Bu aletler çalışma alanıS teması gerek-
naciśniesz spust, nawet jeśli nie styka
rmez. Tek çekildiğinde, aletler zımbayı
się z powierzchnią roboczą.
çakarken DİKKATLİ OLUNUZ.
l Bir sıkışma olduğunda hava bağlansı
l W przypadku zakleszczenia łączników
kesilmelidir.
należy niezwłocznie
odłączyć narzędzie od źródła sprężonego
powietrza.
l 1) Mandalı sıkın ve 2)ray kapağını
l Naciśnij na zatrzask i wysuń szynę
kaydırın
magazynka.
l Usuń pozostałe w magazynku łączniki.l Zımba teli şeridini alın.
Вытащите кассету с
крепежом
l Sıkışan zımba telini alın l Usuń zakleszczone łączniki.
l Zımba teli şeridini hazneye yarın. Sadece
l Włóż pasek łączników do magazynka.
orijinal SENCO zımba tellerini kullanın
Używaj wyłącznie
(Parçalar Graği bölümüne bakın). Teğe
oryginalnych łączników SENCO. Nigdy
basılı iken zımba teli koymayın.
nie ładuj łączników z
palcem naciśniętym na spuście.
l Rayı, mandal tutana kadar in.
l Dosuń z powrotem szynę magazynka aż
do zatrzaśnięcia.
11

Tool Use
Bedienungsanleitung Gebruiksaanwijzing
English
Deutsch Nederlands
l Keep tool pointed away from
l
Halten Sie das Gerät so, daß es
l Houdt het apparaat afgewend
yourself and others and con-
nicht auf Sie selbst oder andere
van uzelf en anderen en sluit
nect air to tool. Tools shall be
zeigt und schließen Sie den Druck-
dan de luchttoevoer aan. Het
operated at the lowest pressure
luftschlauch an. Die Geräte sollten
apparaat moet gebruikt worden
needed for the application. This
nur mit dem für den jewelligen
met laagst mogelijke luchtdruk.
will reduce noise levels, part
Anwendungsfall erforderlichen
Dit vermindert geluidshinder,
wear and energy use.
geringsten Luftdruck betrieben
slijtage en energie verbruik.
werden. Dadurch werden der Lärm,
der Verschleiß und der Energiever-
brauch gemindert.
Maintenance Wartung Onderhoud
NederlandsDeutschEnglish
l Disconnect the tool from the air
l Trennen Sie die Luftzufuhr vom
l Ontkoppel het apparaat van de
supply and empty the magazine.
Werkzeug und entleeren Sie das
luchttoevoer en ledig de lader.
Read section titled “Safety Warn-
Magazin.
Lees de “Veiligheidsvoorschrift-
ings” before maintaining tool.
Lesen Sie zuerst den Abschnitt
en” voordat u met het onderhoud
“Sicherheitshinweise”, bevor Sie
begint.
das Gerät warten.
l All screws should be kept tight.
l Alle Schrauben und Muttern
l Alle bouten moeten stevig beves-
Loose screws result in unsafe
müssen fest angezogen sein.
tigd zijn en blijven. Losse bouten
operation and parts breakage.
Lose Schrauben und Muttern
veroorzaken onveilig werken en
stellen ein Sicherheitsrisiko dar
beschadiging van onderdelen.
und bewirken Teilebruch.
l With tool disconnected, make
l Prüfen Sie täglich an dem von
l Controleer dagelijks of de trekker
daily inspection to assure free
der Druckluft getrennten Gerät,
en de veiligheid vrij bewegen ter-
movement of safety element
ob sich der Auslöser und die
wijl het gereedschap ontkoppeld
and trigger. Do not use tool if
Auslösesicherung frei bewegen
is. Gebruik het apparaat nooit
safety element or trigger sticks
lassen. Benutzen Sie das Gerät
als de trekker of de veiligheid
or binds.
nicht, wenn der Auslöser oder
vastzitten of klemmen.
die Auslösesicherung schw-
ergängig ist.
l Squirt Senco pneumatic oil (5 to
l Wenn keine Wartungseinheit
l Spuittweekeerperdag5à10
10drops)intotheairinlettwice
vorhanden ist, spritzen Sie
druppels SENCO pneumatische
daily (depending on frequency of
SENCO Pneumatic–Öl in die
olie in de luchttoevoer (dit
tooluse).
Luftzuführung des Gerätes;
hangt af van de frequentie van
bei normaler Beanspruchung
gebruik).
genügen zweimal täglich 5 bis
10Tropfen.
l Wipe tool clean daily and inspect
l Reinigen Sie das Gerät täglich
l Maak het apparaat schoon en
forwear.Usenon-ammable
und untersuchen Sie es auf
inspekteer op slijtage. Ge-
cleaning solutions only if neces-
Verschleiß. Keine brennbaren
bruik slechts niet-brandbare
sary–DO NOT SOAK.
Reinigungsmittel verwenden.
schoonmaakmiddelen.
Caution: Such solutions may
Gerät nicht eintauchen.
Dompel het apparaat nooit onder.
damage O-rings and other tool
Vorsic ht: Lösungsmittel können
Dergelijke vloeistoffen kunnen de
parts.
O-Ringe und andere Teile des
O-ringen en andere onderdelen
Gerätes zerstören.
beschadigen.
12

Utilisation de l’Outil Käyttöohjeet Bruksanvisning
Användning av Verktyget
Français
Suomi Norwegian
Svenska
l Maintenez l’outil pointé à l’écart
l Pidä kone aina itsestäsi ja muista
l Hold verktøyet vendt bort fra deg
l Rikta verktyget från dig själv och
de vous-même et des autres
poispäin suunnattuna, kun liität
selv og andre personer ved tilko-
andra då ni ansluter tryckluften.
personnes et raccordez l’outil
koneen paineilmaan. Käytä alinta
bling av trykkluft. Bruk lavest mulig
Verktyget skall drivas med lägsta
à l’air comprimé. Les outils
koneen käyttämiseen tarvittavaa
lufttrykk for arbeidsoperasjonen.
lufttryck som behövs för arbetet.
doivent être utilisés à la pres-
painetta työkohteesta riippuen.
Det vil redusere støynivå, slitasje
Detta sänker ljudnivå, slitage och
sion la plus faible requise pour
Tämä alentaa melua, varaosien
på deler og energiforbruk.
energi förbrukning.
le travail à faire. Cela réduira le
kulumista ja energian kulutusta.
niveau de bruit, l’usure de l’outil
et la demande en énergie.
Entretien Huolto Vedlikehold
Underhåll
Français Suomi Norwegian
Svenska
l Déconnectez l’outil de l’arrivée
l Irroita kone paineilmasta ja
l Kobl verktøyet fra lufttilførselen
l Koppla trån luftledningen och
d’air comprimé. Lisez la section
tyhjennä makasiini. Lue turvao-
og tøm magasinet. Les avsnittet
töm magasinet. Läs Säkerhets
intitulée “Consignes de Sécurité”
hjeet ennen koneen huoltoa.
“Sikkerhetsregler” før man
Föreskrifterna.
avant d’effectuer l’entretien de
utfører vedlikehold.
l’outil.
l Toutes les vis doivent être
l Tarkista, että kaikki ruuvit ovat
l Alle skruer skal være forsvarlig
l Alla skruvar och muttrar måste
maintenues serrées à fond.
aina tiukasti kiinni. Löystyneet
tilskrudd. Løse skruer vil med-
vara åtdragna. Lösa skruvar
Les vis desserrées entraî-
ruuvit vaarantavat työturval-
føre utrygg bruk og delebrudd.
och muttrar förorsaka riskfylld
nent un manque de sûreté du
lisuuttasi ja aiheuttavat koneen
operation och on¯odigt slitage.
fonctionnement et la rupture de
rikkoutumisen.
pièces.
l L’outil étant déconnecté de
l Tarkista kone päivittäin sen
l Gjør en daglig inspeksjon mens
l Med verktyget frånkopplat,
l’arrivée d’air comprimé,
ollessa irroitettuna paineil-
redskapet er koblet fra luft, og
kontrollera dagligen att avtryck-
effectuez une inspection
maverkostosta varmistuaksesi,
se til at sikringen og avtrek-
aren och utlösnings-säkringen
journalière pour vous assurer
että koneen varmistin ja liipasin
keren har fri bevegelse. Bruk
kan röra sig fritt. Använd inte
du libre mouvement du palpeur
pääsevät liikkumaan esteittä. Älä
ikke redskapet hvis sikringen
verktyget om avtryckaren eller
de sécurité et de la détente.
käytä konetta jos varmistin tai
eller avtrekkeren sitter fast eller
utlösnings-säkringen hänger
N’utilisez pas l’outil si le palpeur
liipaisin ovat juuttuneet kiinni tai
henger seg opp.
upp sig eller har fastnat.
de sécurité ou si la détente sont
ovat muuten viallisia.
coincés ou grippés.
l Avecuneburette,placer5à10
l Tiputa SENCO-pneumaattista
l Tilfør SENCO PnevmatiSK Olju
l Häll1till10dropparSENCO
gouttes d’huile pneumatique
öljyä(5-10tippaa)ilmanottoauk-
(5-10dråper)inniluftinntaket
olja för luftverktyg in i verktygets
dans l’arrivée d’air deux fois par
koon kahdesti päivässä, laitteen
to ganger daglig (avhvengig
luftintag två gånger per dag.
jour (dépend de l’intensité de
käytön määrästä riippuen.
avbruksmengden).
Antalet gånger per dag för detta
l’utilisationdel’appareil).
beror på hur mycket verktyget
används.
l Nettoyez l’outil chaque jour à
l Puhdista ja tarkista työkalu päivit-
l Tørk av verktøyet daglig og se et-
l Rengör verktyget dagligen och
l’aide d’un chiffon et inspectez-
täin. Älä käytä tulenarkoja aineita
ter slitasje. Om nødvendig, bruk
kontrollera slitage. Skulle det
le pour déceler une éventuelle
koneen puhdistamiseen. Älä liuota
bare ikke-brennbart rensemiddel.
vara nödvändigt, använd en-
usure. Utilisez uniquement des
konetta puhdistusaineessa, koska
ALDRI LEGG I BLØT.
dast icke eldfarliga rengörings
solvantsnoninammablesen
se saattaa vahingoittaa tiivisteitä ja
Advarsel: Rensemiddel kan
medel. NEDSÄNK INTE
cas de nécessité-NE LE FAITES
muita koneen osia.
ødelegge O-ringene og andre
VERKTYGET I RENGÖRINGS
PAS TREMPER !
ÄLÄ LIUOTA. Varoitus: Puhdis-
deler.
VÄTSKA. OBS rengöringsme-
Attention : De tels produits
tusliuokset saattavat vahingoittaa
del kan skada o-ringar och
peuvent endommager les joints
tiivisteitä ja muita työkalun osia.
andra verktygs komponenter.
et autres pièces de l’appareil.
13

Порядок работы с
Brug af vaerktøj
Brug af vaerktoj
Uso dell’Attrezzo
Uso dell’Attrezzo
Uso de la Herramienta
Uso de la Herramienta
инструментом
Dansk
Italian
Español
Pyccкий
l Подсоедините источник
l Lad værktøjet pege bort fra
l Tenete l’attrezzo puntato lontano
l Las herramientas deberán
сжатого воздуха (не направляя
Dem selv og andre og tilslut
da voi stessi e da altri quando
ser operadas a la menor
инструмент на себя и других).
luft til værktøjet. Værktøjet
collegate l’aria all’attrezzo.
presiónquesenecesitepara
Эксплуатация инструмента
skal betjenes ved det lavest
Gli attrezzi dovranno essere
suaplicación.Estoreduciráel
должна проводиться при
nødvendige tryk. Dette vil
adoperati alla minima pressione
nivel de ruido, el desgaste de
давлении сжатого воздуха,
reducere støjniveauet, slid
d’esercizio possibile. Cio’
las partes, y el uso de energía.
достаточном для выполнения
på dele, og energiforbrug.
ridurra’ la rumorosita’, l’usura
операций (см. раздел
dei componenti ed il consumo
«Технические характеристики»).
di energia.
Это обеспечит снижение уровня
шума, износа частей и расхода
энергии..
Техническое
MantenimientoVedligeholdelse Manutenzione
обслуживание
Dansk
Italian
Español
Pyccкий
l Frakobl værktøjet fra
l Scollegate l’attrezzo
l Desconecte la herramienta del
l Отсоедините инструмент от
luftforsyningen og tøm
dall’alimentazione dell’aria e
dispensador de aire y vacíe el
источника сжатого воздуха и
magasinet. Læs afsnittet
svuotate il caricatore. Leggete
cargador.
удалите крепеж из магазина.
“Sikkerhedsadvarsler” inden
il capitolo “Avvertenze di
Lealaseccióntitulada
См. раздел «Меры по технике
værktøjet vedligeholdes.
Sicurezza” prima di effettuare la
“Avisos de Seguridad” antes
безопасности» перед началом
manutenzione dell’attrezzo.
de darle mantenimiento a la
технического обслуживания..
herramienta.
l Alle skruer skal være skruet
l Tutte le viti dovrebbero essere
l Todos los tornillos tienen que
l Все винты должны быть
godt fast. Løse skruer
tenute ben serrate. Viti allentate
mantenerse apretados. Los
надежно затянуты. Слабо
skaber usikker betjening og
producono condizioni di funzi-
tornillos sueltos pueden pro-
затянутые винты создают
beskadigelse af dele.
onamento non sicure e causano
ducirunaoperaciónnosegura
опасность при работ и
rotture di componenti.
y quebraduras de partes.
приводят к поломкам.
l Med værktøjet frakoblet
l Ad attrezzo scollegato, ef-
l Con la herramienta
l При отключенном источнике
foretages dagligt eftersyn
fettuate ispezioni quotidiane
desconectada, haga la inspec-
сжатого воздуха выполните
for at sikre fri bevægelse af
pervericarelaliberta’di
cióndiariaparaasegurarsede
ежедневный осмотр и
sikringen og aftrækkeren.
movimento di sicura e grilletto.
la libertad de movimiento del
убедитесь, что
Brug ikke værktøjet, hvis
Non adoperate l’attrezzo se la
dispositivo de seguridad y del
предохранительный
sikringen eller aftrækkeren
sicura o il grilletto sono incollati
gatillo. No use la herramienta
элемент и курок свободно
sidder fast eller binder.
o legati.
si el dispositivo de seguridad
перемещаются.
o el gatillo se atascan o
endurecen.
l Sprøjt SENCO pneumatisk
l Spruzzate olio pneumatico
l Aplique aceite neumático
l Дважды в день закапайте
olie(5til10dropper)i
SENCO(da5a10gocce)nella
SENCO en la entrada de aire
через отверстие подачи
lufttilgangen to gange om
presa d’aria due volte al giorno
dos veces al día (dependiendo
сжатого воздуха от 5 до 10
dagen (afhængig af hvor
(a seconda della frequenza
en la frecuencia de uso 5 A
капель пневматического
hyppigtværktøjetbruges).
d’usodell’attrezzo).
10Gotas).
масла Senco (в зависимости от
интенсивности использования
инструмента).
l Aftør værktøjet dagligt
l Pulite l’attrezzo quotidianamente
l Use soluciones de limpieza
l Необходимо каждый день
og check for slid. Brug
efateispezionidiverica
inamabléssolamentesies
протирать инструмент дочиста
uantændelige rengøringsmi-
dell’usura delle parti. Usate
necesario - NO LA REMOJE.
и проверять износ деталей.
dler, men kun hvis
soluzionidetergentinoninam-
Precaución: Tales soluciones
Используйте только негорючие
nødvendigt.
mabili solo se necessario.
pueden dañar los empaques y
чистящие жидкости, если это
GENNEMBLØD IKKE.
NON INZUPPATE
otras partes de la herramienta.
необходимо. ЗАПРЕЩЕНО
Forsigtigt! Sådanne midler
L’ATTREZZO.
ПОГРУЖАТЬ В ЖИДКОСТЬ.
kan skade O–ringe og
Attenzione: Tali soluzioni pos-
Предостережение: подобные
andre dele af værktøjet.
sono danneggiare anelli O-ring
жидкости могут повредить
ed altri componenti.
уплотнительные кольца и другие
детали инструмента..
14

Alet Kullanımı
Brug af vaerktoj
Uso dell’Attrezzo
Uso de la Herramienta
Użytkowanie narzędzia
Türkçe
Polski
l Nigdy nie trzymaj narzędzia
l Ale kendinizden ve diğer
skierowanego ku sobie ani osobom
kişilerden uzak tutunuz ve
trzecim podczas podłączania jego
araca hava bağlayınız. Aletler,
do źródła sprężonego
kullanım için gereken en
powietrza. Narzędzie powinno być
düşük basınçta kullanılmalıdır.
ustawione na najniższe
Bu; gürültü seviyelerini,
ciśnienie pozwalające na
parça aşınmalarını ve enerji
prawidłowe wbicie łącznika –
kullanımını azaltacakr.
pozwoli to
zaoszczędzić energię, zmniejszy
poziom hałasu, oraz przedłuży
żywotność narzędzia..
Bakim
Konserwacja NARZĘDZIA
Türkçe
Polski
l Alen hava bağlansını
l Odłącz narzędzie od źródła
kesin ve hazneyi boşaln. Araç
sprężonego powietrza i usuń
bakımı öncesinde “Güvenlik
pozostałe w magazynku łączniki.
Uyarıları” kısmını okuyun.
Przed przystąpieniem do
konserwacji narzędzia zapoznaj się
dokładnie z wszystkimi
ostrzeżeniami bezpieczeństwa..
l Tüm vidalar sıkı tutulmalıdır.
l Wszystkie śrubki powinny być ściśle
Gevşek vidalar güvensiz
dokręcone. Luźno
çalışmaya ve parça kırılmasına
dokręcone śruby mogą wpłynąć na
neden olur.
niebezpieczeństwo pracy
oraz zepsucie części składowych.
l Bağlansı kesilmiş araçla,
l Z narzędziem nie podłączonym do
güvenlik öğelerinin ve teğin
źródła sprężonego powietrza
serbest akımını sağlamak için
przeprowadzaj jego codzienną
günlük muayenesini yapınız.
inspekcję zwracając uwagę na
Güvenlik öğeleri ya da tek
swobodny ruch kontaktora oraz
yapışmış veya bağlanmışsa
spustu. Nie używaj narzędzia
ale kullanmayınız..
jeśli ruch kontaktora lub spustu
jest ograniczony.
l Günde iki kez Senco
l Dodaj do narzędzia 5 do 10 kropli
pnömak yağını (5 ile 10
oleju do narzędzi
damla arasında) hava girişine
pneumatycznych (dwa razy dzien-
püskürtünüz (alet kullanım
nie, lub zależnie od
sıklığına bağlı olarak).
częstotliwości używania
narzędzia).).
l Ale günlük olarak siliniz ve
l Przecieraj narzędzie suchą szmatką i
aşınma için kontrol ediniz.
przeglądaj pod kątem
Sadece gerekirse yanmaz
zużycia. Jeśli konieczne możesz
temizleme solüsyonlarını
czyścić narzędzie używając
kullanınız- ISLATMAYINIZ.
delikatnego roztworu czyszczącego
Dikkat: Bu tür solüsyonlar
– NIGDY NIE NAMACZAJ
o-halkalarına ve diğer alet
NARZĘDZIA. Uwaga: Niektóre
parçalarına zarar verebilir.
roztwory czyszczące mogą
niszczyć o-ringi lub inne części
narzędzia.
15

Troubleshooting Fehlersuche Reparatie
English
Deutsch Nederlands
WARNING
ACHTUNG
WAARSCHUWING
Repairs other than those described
Reparaturarbeiten, die hier nicht
Andere reparatie dan deze
here should be performed only by
beschrieben sind, dürfen nur von
hieronder beschreven dienen uitge-
trained,qualiedpersonnel.Contact
Sachkundigen im Sinne der Si-
voerd te worden door personeel dat
SENCO for information at
cherheitsvorschriften durchgeführt
dejuistekwalikatieenopleiding
1-800-543-4596.
werden. Wenden Sie sich an autho-
heeft. Neem kontakt op met UW
risierte SENCO-Service-Stellen.
SENCO vertegenwoordiger.
l Read section titled “Safety Warn-
l Zuerst die Sicherheitshinweise
l Raadpleeg het hoefdstuk:
ings” before maintaining tool.
lesen!
“Veiligheids voorschriften” alvo-
rens de reparatie te beginnen.
SYMPTOM
SYMPTOME
SYMPTOOM
Air leak near top of tool / Sluggish
Gerät oben undicht. / Träge Funk-
Luchtverlies aan de bovenkant van
operation
tion.
het apparaat. / Trage werking.
SOLUTION
BESEITIGUNG
OPLOSSING
Verify air supply / tighten screws or
Schrauben gut anziehen, ggf. Gerät
Bouten aandraaien of installeer on-
install Parts Kit A.
mit den Teilen aus dem mit “A”
derdelen uit reparatieset “A”.
gekennzeichneten
Reparatursatz instandsetzen.
SYMPTOM
SYMPTOME
SYMPTOOM
Air leak near bottom of tool /
Gerät unten undicht. / Schlechte
Luchtverlies aan de onderkant van
Poor return.
TreiberRückführung.
het apparaat./ Slagpen kent niet
terug.
SOLUTION
BESEITIGUNG
Clean tool / tighten screws or install
Schrauben gut anziehen, ggf. Gerät
OPLOSSING
Parts Kit A.
mit den Teilen aus dem mit “A”
Bouten aandraaien of installeer
gekennzeichneten
onderdelen uit reparatieset “A”./Het
Reparatursatz instandsetzen.
apparaat reinigen of installeer
Gerät reinigen, ggf. mit den Teilen
onderdelen uit reparatieset “A”.
aus dem mit “A” gekennzeich-
neten
Reparatursatz instandsetzen.
SYMPTOM
SYMPTOME
SYMPTOOM
Other problems.
Sonstige Probleme.
Andere problemen.
SOLUTION
BESEITIGUNG
OPLOSSING
Contact SENCO.
Wenden Sie sich an Ihren SENCO-
Neem kontakt op met Uw SENCO
Händler.
vertegenwoordiger.
16
A
A
A
A
A=YK0775

Dépannage
Vian etsintä Feilsøking
Felsökning
Français
Suomi
Norwegian
Svenska
AVERTISSEMENT
VAROITUS
ADVARSEL
VARNING
Les réparations autres que celles
Jos koneessasi ilmenee muita
Andre reparasjoner enn de som
Andra reparationer än vad som
décrites ici doivent être réalisées
kuin alla mainittuja vikoja, se on
er beskrevet her må utføres av
beskrivs här, få utföras endast av
uniquement par du personnel
ammattimiehen suorittaman huol-
trenet,kvalisertpersonell.Kontakt
utbildadochkvaliceradpersonal.
qualiéayantreçulaformation
lon tarpeessa. Soita lähimpään
SENCO salgsrepresentant eller et
För dessa reparationer, kontakta er
appropriée. Pour toute information,
SENCO-huoltopisteeseen tai pyydä
autorisert SENCO servicesenter.
SENCO auktoriserade återförsäl-
prenez contact avec SENCO par
lisätietoja maahantuojalta, puh.
jare.
téléphone en appelant Le Distribu-
90-7556655.
teur agréé.
l Lisez la section intitulée “Con-
l Lue turvaohjeet ennen koneen
l Les avsnittet “Sikkerhetsregler”
l Läs “Säkerhets Föreskrift-
signes
huoltoa.
før vedlikehold.
erna” innan ni vidtar underhålls
de Sécurité” avant d’effectuer
åtgärder.
l’entretien de l’outil.
SYMPTÔME
KÄYTTÖHÄIRIÖ
SYMPTOM
SYMPTOM
Fuite d’air près du sommet
Ilmavuoto koneen yläosassa. /Hidas
Luftlekkasje ved toppen av verktøyet./
Verktyget läcker upptill./ Verktyget
de l’outil / fonctionnement lent.
toiminta.
Upresis funksjon.
fungerar trögt.
SOLUTION
KORJAUSTOIMENPITEET
LØSNING
LÖSNING
Serrezlesvisàfond/vériez
Kiristä ruuvit tai asenna varaosasarja
Stram til skruene eller installer
Drag till skruvar eller installera
l’alimentation en air ou remplacez
A./ Tarkista ilmantulo tai asenna
deler“A”(Dele-sett“A”)./Sjekk
reservdels-förpackning A./Kon-
les pièces portant la lettre “A”.
varaosasarja A.
lufttilførsel eller installer deler “A”
trollera lufttillförsel eller installera
(Dele-sett“A”).
reservdels-förpackning A.
SYMPTÔME
KÄYTTÖHÄIRIÖ
SYMPTOM
Fuite d’air près de la base
Ilmavuoto koneen alaosassa./Heikko
Luftlekkasje i bunnen av verktøyet./
SYMPTOM
de l’outil / retour inadéquat.
palautus.
Dårlig retur.
Verktyget läcker nertill./ Långsam
SOLUTION
KORJAUSTOIMENPITEET
LØSNING
retur.
Serrez les vis à fond / nettoyez l’outil
Kiristä ruuvit tai asenna varaosasarja
Stram skruer eler installer deler “A”
LÖSNING
ou remplacez les pièces portant la
A./ Puhdista kone tai asenna varao-
(Dele-sett“A”)./Rensverktøyet
Drag till skruvar eller installera
lettre “A”
sasarja A.
eller installer deler “A” (Dele-sett
reservdels-förpackning A./Rengör
“A”).
verktyget eller installera reservdels-
förpackning A.
SYMPTOM
SYMPTÔME
KÄYTTÖHÄIRIÖ
SYMPTOM
Andra problemer.
Autres problèmes.
Muut ongelmat.
Andre problemer.
LÖSNING
SOLUTION
KORJAUSTOIMENPITEET
LØSNING
Tag kontakt med SENCO återförsäl-
Prenez contact avec SENCO.
Ota yhteys maahantuojaan.
Kontakt SENCO.
jare.
17
A
A
A
A
A=YK0775

Fejlnding
Ricerca e Correzione Guasti
Identicación de Fallas
Dansk
Italian Español
ADVARSEL
ATTENZIONE
ALERTA
Reparationer ud over de her
Riparazioni non descritte in questo
Las reparaciones, fuera de aquellas
beskrevne, bør kun udføres af ud-
Capitolo dovrebbero essere effet-
descritas aquí, deben de ser lleva-
dannetkvaliceretpersonale.Kon-
tuate solo da personale addestrato
das a cabo solamente por personal
takt Deres SENCO repræsentant.
equalicato.Perinformazioni
entrenadoycalicado.Póngase
contattate il vostro rappresentante
en contacto con SENCO para
SENCO.
información
1-800-543-4596.
l Læs afsnittet betitlet “Sikker-
l Leggete il capitolo intitolato
l Lealaseccióntitulada“Avisosde
heds advarsler” inden værktøjet
“Avvertenze di Sicurezza” prima
Seguridad” antes de darle
vedligeholdes.
di effettuare la manutenzion
mantenimiento a la herramienta.
dell’attrezzo.
SYMPTOM
SINTOMO
SÍNTOMA
Luft siver ud i nærheden af værktøjets
Perdita d’aria nella parte superiore
El aire se escapa cerca de la parte
øverste del./ Fungerer trægt.
dell’attrezzo./ L’attrezzo funziona
superiordelaherramienta/Operación
lentamente.
lenta.
LØSNING
Spænd skruer eller installer reserve-
SOLUZIONE
SOLUCIÓN
delssæt “A”./ Installer reserve-
Stringere le viti o installare il Kit di
Aprietelostornillos/Veriqueel
delssæt A.
ComponentiA./Vericareche
suministro de aire o instale el
arrivi l’aria o installare il Kit di
JuegodePartesA(PartsKitA).
Componenti A.
SYMPTOM
SINTOMO
SÍNTOMA
Luft siver ud i nærheden af værktøjets
Perdita d’aria nella parte inferiore
El aire se fuga cerca de la parte infe-
nederste del. / Dårlig returnering.
dell’attrezzo./ Ritorno difettoso.
rior de la herramienta / Mal retorno.
LØSNING
SOLUZIONE
SOLUCIÓN
Spænd skruer eller installer reserve-
Stringere le viti o installare il Kit di
Apriete los tornillos / Limpié la herra-
delssæt A./ Gør værktøjet rent eller
Componenti A. / Pulire l’attrezzo o
mienta o instale el Juego de Partes
installer reservedelssæt A.
installare il Kit di Componenti A.
A(PartsKitA).
SYMPTOM
SINTOMO
SÍNTOMA
Andre problemer.
Altri problemi.
Otros problemas.
LØSNING
SOLUZIONE
SOLUCIÓN
Kontakt SENCO.
Contattare il vostre rappresentante
PóngaseencontactoconSENCO.
SENCO.
18
A
A
A
A
Устранение
неисправностей
Pyccкий
ПРЕДУПРЕЖДЕНИЕ
Устранение неисправностей,
кроме описанных в данном
разделе, должно выполняться
только специально обученным
персоналом. За информацией
следует обращаться в компанию
«Бетис» по телефону +7(495)797-
63-71
l Перед началом работ по
устранению неисправностей
необходимо изучить главу «Меры
по технике безопасности».
НЕИСПРАВНОСТЬ
Утечка воздуха возле верхней части
инструмента. / Медленная работа
инструмента.
УСТРАНЕНИЕ
Проверьте источник сжатого воздуха.
/ Затяните винты или установите
комплект запасных частей «А».
НЕИСПРАВНОСТЬ
Утечка воздуха возле нижней части
инструмента. / Медленный возврат в
исходное положение.
УСТРАНЕНИЕ
Выполнить чистку инструмента. /
Затяните винты или установите
комплект запасных частей «А».
НЕИСПРАВНОСТЬ
Другие проблемы
УСТРАНЕНИЕ
Обратитесь в компанию «Бетис»
A=YK0775

Sorun Giderme
ROZWIĄZYWANIE PROBLEMÓW
Türkçe
Polski
UYARI
UWAGA
Wszelkie naprawy narzędzia, inne niż
Burada tarif edilenlerin dışındaki
te opisane w niniejszej
tamiratlar yalnızca eğilmiş, nitelikli
instrukcji, mogą być przeprowadzane
personel tarandan yapılmalıdır. Bilgi
wyłącznie przez
için 1-800-543-4596 numaralı telefon-
wykwalikowany personel serwisowy.
dan SENCO’ya ulaşınız. .
Skontaktuj się z
dystrybutorem narzędzia.
l Alet bakımından önce “Güvenlik
l Przeczytaj uważnie wszelkie
Uyarıları” konulu bölümü okuyunuz.
ostrzeżenia bezpieczeństwa przed
przystąpieniem do konserwacji
narzędzia.
BULGU
SYMPTOM
Alen üst kısmında hava kaçağı / Halsiz
Nieszczelność narzędzia w górnej jego części
işleyiş.
(ulatuje powietrze)/
bardzo wolna praca narzędzia..
ÇÖZÜM
Hava kaynağını doğrulayınız / vidaları
ROZWIĄZANIE
sıkınız ya da Parça Ki A’yı yükleyiniz.
Sprawdź prawidłowy dopływ powietrza/
dokręć śrubki przy
narzędziu lub załóż nowe części z kompl-
etu naprawczego A.
BULGU
SYMPTOM
Alen arka kısmında hava kaçağı / Zayıf
Nieszczelność narzędzia w dolnej jego
dönüş.
części/ słaby powrót
narzędzia w pozycję wyjściową po wbiciu
ÇÖZÜM
łącznika.
Ale temizleyiniz / vidaları sıkınız ya da
ROZWIĄZANIE
Parça Ki A’yı yükleyiniz.
Wyczyść narzędzie/ dokręć śrubki przy
narzędziu lub załóż nowe
części z kompletu naprawczego B.
SYMPTOM
BULGU
Inne problemy
Diğer sorunlar.
ROZWIĄZANIE
ÇÖZÜM
Skontaktuj się z serwisem SENCO
SENCO ile bağlanya geçiniz.
19
A
A
A
A
A=YK0775

English
Norwegian
TECHNICAL SPECIFICATIONS
TEKNISKE DATA
Minimum to maximum operating pressure
60–95psi
4,1–6,5 bar
Minimum til maksimum operativt trykk
3,5–6,6 bar
50–95psi
AirConsumption(60cyclesperminute)
.77 scfm
21,8 liter
Luftforbruk(60slagperminutt)
21,8 liter
.77 scfm
Air Inlet
1
1
1
1
/
4
in. NPT
/
4
in. NPT
Luftinntak
/
4
in. NPT
/
4
in. NPT
MaximumSpeed(cyclespersecond)
15
(Sencomatic)
15
(Sencomatic)
Maksimumhurtighet(slagpersekund)
15
(Sencomatic)
15
(Sencomatic)
Weight
2.0lbs.
0,9kg
Vekt
0,95kg
2.1 lbs.
Staple Capacity
110-185
110-185
Magasin kapasidet
168
168
Tool size: Height
15
5
/
16
in.
151 mm
Verktøyets høyde
152 mm
6 in.
Tool size: Length
1
1
9
/
in.
241 mm
235 mm
9
Verktøyets lengde
/
in.
2
4
Tool size: Width: Main Body
15
5
1
/
16
in.
49mm
Verktøyets bredde
41 mm
1
/
8
in.
Operating Temperature Range
0°to120°F
-18°to49°C
Driftstemperaturområde
-18°to49°C
0°to120°F
Deutsch
TECHNISCHE DATEN
Empfohlener Betriebsüberdruck
3,5–6,6 bar
50–95psi
Luftverbrauch(bei60ZyklenproMin)
21,8 liter
.77 scfm
Druckluftanschluß
1
1
/
4
in. NPT
/
4
in. NPT
MaximaleGeschwindigkeit(ZyklenproSek)
15
(Sencomatic)
15
(Sencomatic)
Gewicht
0,95kg
2.1 lbs.
Magazinvolumen
168
168
Gerätegröße/Höhe
152 mm
6 in.
Gerätegröße/Länge
1
235 mm
9
/
in.
4
Gerätegröße/Gehäusebreite
5
41 mm
1
/
8
in.
Betriebstemperaturbereich
-18°to49°C
0°to120°F
Nederlands
Svenska
TECHNISCHE SPECIFICATIES
VERKTYGS DATA
Minimale tot maximale werkdruk
3,5–6,6 bar
50–95psi
Arbetstryck Minimum - Maximum
3,5–6,6 bar
50–95psi
Luchtverbruik(60slagenperminuut)
21,8 liter
.77 scfm
Luftförbrukning(60inslagperminut)
21,8 liter
.77 scfm
1
1
Luchtaansluiting
/
4
in. NPT
/
4
in. NPT
Luft intag -gänga
1
1
/
4
in. NPT
/
4
in. NPT
Maximalesnelheid(slagenpersekonde)
15
(Sencomatic)
15
(Sencomatic)
Maximum antal inslag per sekund
15
(Sencomatic)
15
(Sencomatic)
Gewicht
0,95kg
2.1 lbs.
Vikt
0,95kg
2.1 lbs.
Magazijn capaciteit
168
168
Magasin kapacitet
168
168
Hoogte van apparaat
152 mm
6 in.
Verktygets höjd
152 mm
6 in.
1
Lengte van apparaat
235 mm
9
/
in.
1
4
Verktygets längd
235 mm
9
/
in.
4
5
Breedte van apparaat
41 mm
1
/
8
in.
Verktygets bredd
5
41 mm
1
/
8
in.
Bedrijfstemperatuurbereik
-18°to49°C
0°to120°F
Driftstemperatur
-18°to49°C
0°to120°F
Français
SPECIFICATIONS TECHNIQUES
Pression de travail min. et max.
3,5–6,6 bar
50–95psi
Consommationd’air(60cyclesparminute)
21,8 liter
.77 scfm
1
1
Prise d’air
/
4
in. NPT
/
4
in. NPT
Vitessemaximum(cyclesparseconde)
15
(Sencomatic)
15
(Sencomatic)
Poids
0,95kg
2.1 lbs.
Capacité de agrafes par magasin
168
168
Dimensions de l’outil: hauteur
152 mm
6 in.
1
Dimensions de l’outil: longueur
235 mm
9
/
4
in.
Dimensionsdel’outil:largeur:corpsdel’appareil)
5
41 mm
1
/
8
in.
Température de fonctionnement
-18°to49°C
0°to120°F
Suomi
Dansk
TEKNISET TIEDOT
TEKNISKE SPECIFIKATIONER
Minimi ja maksimi käyttöpaine
3,5–6,6 bar
50–95psi
Minimum til maksimum arbejdstryk
3,5–6,6 bar
50–95psi
Ilmankulutus(60laukaustaminuutissa)
21,8 liter
.77 scfm
Luftforbrug(60perioderperminut)
21,8 liter
.77 scfm
Ilman sisäänottoaukko
1
1
/
in. NPT
/
4
in. NPT
1
1
4
Luftdyse
/
4
in. NPT
/
4
in. NPT
Maksiminopeus(iskuasekunnissa)
15
(Sencomatic)
15
(Sencomatic)
Maksimalhastighed(perioderpersekund)
15
(Sencomatic)
15
(Sencomatic)
Paino
0,95kg
2.1 lbs.
Vægt
0,95kg
2.1 lbs.
Makasiinin maksiminaulamäärä
168
168
Stift kapacitet
168
168
Koneen korkeus
152 mm
6 in.
Værktøjsstørrelse: Højde
152 mm
6 in.
1
Koneen pituus
235 mm
9
/
in.
4
Værktøjsstørrelse: Længde
235 mm
1
9
/
4
in.
5
Koneen leveys
41 mm
1
/
8
in.
Værktøjsstørrelse: Bredde: hoveddel
41 mm
5
1
/
8
in.
Käyttölämpötila-alue
-18°to49°C
0°to120°F
Driftstemperaturområde
-18°to49°C
0°to120°F
20

Italian
SPECIFICHE TECHNICHE
Minima e Massima Pressione d’esercizio
3,5–6,6 bar
50–95psi
Consumod’aria(60ciclialminuto)
21,8 liter
.77 scfm
1
Ingresso Aria
1
/
4
in. NPT
/
4
in. NPT
Velocita’Massima(Ciclialsecondo)
15
(Sencomatic)
15
(Sencomatic)
Peso
0,95kg
2.1 lbs.
Capacita’ del Caricatore
168
168
Dimensioni Attrezzo: Altezza
152 mm
6 in.
1
Dimensioni Attrezzo: Lunghezza
235 mm
9
/
in.
4
5
Dimensioni Attrezzo: Larghezza Corpo Principale
41 mm
1
/
8
in.
Gamma di temperatura di funzionamento
-18°to49°C
0°to120°F
Español
ESPECIFICACIONES TECNICAS
Presióndeoperaciónmínimaymáxima
3,5–6,6 bar
50–95psi
Consumodeaire(60ciclosporminuto)
21,8 liter
.77 scfm
1
1
Entrada de aire
/
4
in. NPT
/
4
in. NPT
Velocidadmáxima(ciclosporsegundo)
15
(Sencomatic)
15
(Sencomatic)
Peso
0,95kg
2.1 lbs.
Capacidad de grapas por cargador
168
168
Tamaño de la herramienta: Altura
152 mm
6 in.
1
Tamaño de la herramienta: Longitud
235 mm
9
/
in.
4
5
Tamañodelaherramienta:Ancho(Cuerpo)
41 mm
1
/
8
in.
Rango de temperatura de
-18°to49°C
0°to120°F
Pyccкий
ТЕХНИЧЕСКИЕ ХАРАКТЕРИСТИКИ
Диапазон давлений сжатого воздуха
3,5–6,6 bar
50–95psi
Расход сжатого воздуха (60 циклов в минуту)
21,8 liter
.77 scfm
Штуцер подключения сжатого воздуха
1
1
/
4
in. NPT
/
4
in. NPT
Максимальная скорость (циклов в минуту)
15
(Sencomatic)
15
(Sencomatic)
Масса
0,95kg
2.1 lbs.
Вместительность магазина
168
168
Высота инструмента
152 mm
6 in.
Длина инструмента
1
235 mm
9
/
in.
4
Ширина инструмента
5
41 mm
1
/
8
in.
Диапазон рабочих температур
-18°to49°C
0°to120°F
Türkçe
TEKNIK ÖZELLIKLER
Minimumdan maksimuma çalışrma basıncı
3,5–6,6 bar
50–95psi
Hava Tükemi (Dakikada 60 devir)
21,8 liter
.77 scfm
1
1
Hava Girişi
/
4
in. NPT
/
4
in. NPT
Maksimum Hız (saniyedeki devir)
15
(Sencomatic)
15
(Sencomatic)
Ağırlık
0,95kg
2.1 lbs.
Zımba Kapasitesi
168
168
Alet Boyutu Yükseklik
152 mm
6 in.
1
Alet Boyutu: Uzunluk
235 mm
9
/
in.
4
5
Alet Boyutu: En: Ana Gövde
41 mm
1
/
8
in.
Sıcaklık Aralığını Kullanma
-18°to49°C
0°to120°F
Polski
Specykacja Techniczna
Ciśnienie pracy
3,5–6,6 bar
50–95psi
Zużycie powietrza (60 cykli/ min.)
21,8 liter
.77 scfm
1
1
Wlot powietrza
/
4
in. NPT
/
4
in. NPT
Maksymalna szybkość (cykli/ sekundę)
15
(Sencomatic)
15
(Sencomatic)
Waga narzędzia
0,95kg
2.1 lbs.
Pojemność magazynka
168
168
Wymiary narzędzia: wysokość 1
152 mm
6 in.
Wymiary narzędzia: długość
1
235 mm
9
/
in.
4
Wymiary narzędzia: szerokość korpusu
5
41 mm
1
/
8
in.
Praca temperaturze:
-18°to49°C
0°to120°F
21

Specications
Specicaties Daten
Specications
English
Deutsch Nederlands
Français
Data
Tiedot
Data
Specikationer
Suomi Norwegian
Svenska
Dansk
Speciche
Especicaciones
Italian
Español
22
Tool: 4C2001N
4C2071N
C04
¼ 6,4
Tool: 4C2041N
Tool: 4C2031N
.036"
1/2"
,91mm
13 mm
A
.0275"
,70mm
Tool:4C2021N
4C2051N
A
Code
inches
mm
1
AT04
/4
6
5
AT05
/16
8
3
AT06
/8
10
15
AT08
/32
12
9
AT09
/16
14
5
AT10
/8
16
Tool: 4C2012N
4C2061N
Daten
ТЕХНИЧЕСКИЕ ХАРАКТЕРИСТИКИ
Specykacja
Pyccкий
Polski
Accessori

Accessories
Zubehör Accessoires
Accessoires
English
Deutsch Nederlands
Français
SENCO offers a full line of ac-
SENCO bietet Ihnen ein kom-
SENCO biedt een volledig gamma
SENCO offre une gamme étendue
cessories for your SENCO tools,
plettes Programm an Zubehör für
van bijbehorende accessoires
d’accessoires pour vos outils
including:
Ihr SENCO Gerät:
aan voor Uw SENCO apparaat,
SENCO y compris :
● Air Compressors
● Kompressoren
waaronder:
● Compresseurs
● Hose
● Anschlußelemente
● Luchtkompressoren
● Tuyauterieexible
● Couplers
● Schmiermittel
● Luchtslangen
● Raccords
● Fittings
● Schläuche
● Koppelingen
● Lunettes de sécurité
● Safety Glasses
● Schutzbrillen
● Fittingen
● Manomètres
● Pressure Gauges
● Reduzierventile
● Veiligheidsbrillen
● Lubriants
● Lubricants
● Kupplungen
● Drukmeters
● Régulateurs
● Regulators
● Manometer und Filter
● Smeermiddelen
● Filtres
● Filters
Sollten Sie weitere Informationen
● Reduceerventielen
Pour plus d’informations ou pour
For more information or a complete
wünschen, oder den kompletten,
● Filters
recevoir un catalogue détaillé des
illustrated catalogue of SENCO ac-
illustrierten Katalog haben wollen,
Voor verdere inlichtingen of een
accessoires proposés par SENCO,
cessories, ask your representative
wenden Sie sich an Ihren SENCO-
volledige catalogus vraag Uw
prenez contact avec votre
for #DLD825.
Händler, der Ihnen unseren
vertegenwoordiger.
représentant SENCO (référence
Katalog beschaffen wird.
catalogue:#DLD825).
Lisätarvikkeet
Tilleggsutstyr
Tillbehör
Tillbehör
Tilbehør
Suomi Norwegian
Svenska
Dansk
SENCO tarjoaa tåyden
SENCO tilbyr en rekke tilleggsut-
SENCO erbjuder ett komplett
SENCO tilbyder et komplet udvalg
valikoiman lisätarvikkeita
styr for Deres SENCO redskaper:
program med tillbehör för SENCO
af tilbehør til Deres SENCO værktøj
SENCO-konettasi varten:
● Kompressorer
verktyg såsom:
inklusive:
● Paineilmakompressoreita
● Slanger
● Luft kompressorer
● Luftkompressorer
● Letkuja
● Koblinger
● Slangar
● Slanger
● Pikaliittimiä
● Nipler
● Kopplingar
● Koblinger
● Nippoja
● Vernebriller
● Nipplar
● Beslag
● Turvalaseja
●Trykkmålere(Manometer)
● Skydds glasögon
● Sikkerhedsbriller
● Painemittareita
● Smøremiddel
● Manometrar
● Manometer
● Voiteluöljyjä
● Regulatorer
● Smörjmedel
● Smøremidler
● Säätölaitteita
● Filter
● Tryck regulatorer
● Regulatorer
● Suodattimia
For mer informasjon eller for en
● Filter
● Filtre
Jos haluat lisätietoja tai täydel-
fullstendig, illustrert katalog over
För mera information eller om en
Forereoplysninger:kontaktDeres
lisen lisätarvikeluettelon, pyydä se
SENCOs tilleggsutstyr, kontakt
komplett illustrerad katalog önskas
SENCO repræsentant.
maahantuojalta.
SENCOs salgsrepresentant og be
för SENCO tillbehör, kontakta Er
om katalog nr. DLD825.
SENCO återförsäljare.
Дополнительное
Accessori Accesorios
оборудование и
Aksesuarlar
Akcesoria
аксессуары
Italian Español
Pyccкий
Türkçe
Polski
SENCO, aletleriniz için
La SENCO offre una linea
SENCO ofrece una línea
Компания Senco предлагает полный
SENCO oferuje pełną linię
aşağıdakileri içeren tam
akcesoriów dla Twoich
completa di accessori per il
completa de Accesorios
набор дополнительного
оборудования и аксессуаров для
bir aksesuar çizgisi sunar:
narzędzi SENCO:
vostro attrezzo SENCO, tra
para sus herramientas
своих инструментов:
kompresor,
cui:
SENCO, incluyendo:
Воздушные компрессоры
Hava kompresörleri
wąż,
● Compressori d’aria
● Compresores de Aire
Шланги
Hortum
łączniki,
● Manicotto d’immissione
● Manguera
Соединительные хомуты
Kuplörler
okulary ochronne,
aria
● Conectores Rapidos
Защитные очки
Teçhizat
miernik ciśnienia,
● Raccordi
● Conectores
Манометры
Koruyucu Gözlük
olej,
● Adattatori
● Anteojos De Seguridad
Смазочные материалы
Manometre
regulatory,
● Manometri
● Manometros
Регуляторы
Yağlayıcılar
ltry.
●Lubricanti
● Lubricantes
Фильтры
Düzenleyiciler
W razie pytań lub po
● Regolatori
● Reguladores
За более подробной информацией
Filtreler
kompletny katalog akcesoriów
● Filtri
● Filtros
обращайтесь к региональному
Daha fazla bilgi ya da
SENCO, skontaktuj się ze
SENCO aksesuarları
Per ulteriori informazioni o
Paramasinformacionó
представителю Senco.
swoim przedstawicielem
resimli
per ricevere un catalogo
un pour recevoir un
handlowym..
kataloğunun tümüne
illustrato completo di tutti
catalogo
ulaşmak için,
gli
completo ilustrado de los
temsilcinizden
accessori SENCO, richie-
Accesorios SENCO,
#DLD825 ‘i isteyiniz.
dete
pregunte a su represen-
al vostro rappresentante
tante
SENCO il numero DLD825.
pour el numero DLD825.
23

English
Deutsch
Noise Information
Angaben zur Geräuschentwicklung
ThesenoisecharacteristicvaluesareinaccordancewithEN792-13:
DieAngabenentsprechendenAnforderungenderEN792-13:2000
2000
LpA, 1s, d = 66.3 dB
LpA, 1s, d = 66.3 dB
LwA, 1s, d = 74.2 dB
LwA, 1s, d = 74.2 dB
Diese Werte sind gerätebezogene Kennwerte und geben nicht die
These values are tool-related characteristic values and do not
Geräuschentwicklung am Verwendungsort wieder. Durch entspre-
represent noise developed at the point of use. Workplace design can
chendeArbeitsplatzgestaltung,z.B.AuegenvonWerkstückenauf
also serve to reduce noise levels, for example placing workpiece on
schalldämpfende Unterlagen, lassen sich Geräuschpegel auch
sound-damping supports.
mindern.
Vibration Information
Angaben zur Vibration
ThesevaluesareinaccordancewithEN792-13:2000
Die Angaben entsprechen den Anforderungen
Vibration characteristic value = Less than 2.5 m/s
2
EN792-13:2000
This value is a tool-related characteristic value and does not represent
Vibration =Weniger als 2,5 m/s
2
theinuencetothehand-arm-systemwhenusingthetool.
Der Wert ist ein gerätebezogener Kennwert und stellt nicht die Ein-
wirkung auf das Hand-Arm-System bei der Anwendung das Gerätes
dar.
Nederlands
Français
Informatie betreffende geluid
Information sur le niveau de bruit
DezegeluidswaardenzijninovereenstemmingmetdenormEN792-
LescaractéristiquesacoustiquessontconformesàlanormeEN792-
13:2000
13:2000
LpA, 1s, d = 66.3 dB
LpA, 1s, d = 66.3 dB
LwA, 1s, d = 74.2 dB
LwA, 1s, d = 74.2 dB
Deze waarden zijn eigen aan het apparaat en zijn niet te vergelijken
Ces valeurs sont caractéristiques de l’outil et ne représentent pas le
met het geluid dat optreedt bij gebruik van het apparaat. De inrichting
van de werkplaats kan van belang zijn voor het verminderen van het
niveau de bruit au poste de travail. L’environnement du travail peut
geluid, b.v. een geluiddempende vloer.
servir à réduire le niveau de bruit, par exemple par l’utilisation de sup-
ports amortissant le bruit.
Informatie betreffende trillingswaarden
DezewaardenzijninovereenstemmingmetdenormEN792-13:2000
Information sur les vibrations
Specieketrillingswaarde= Minderdan2,5m/s
2
LescaractéristiquesvibratoiressontconformesàlanormeEN792-
Deze waarde is eigen aan het apparaat en staat los van de manier
13:2000
waarop de arm en hand geplaatst zijn bij gebruik van het apparaat.
Caractéristique vibratoire = Moins que 2,5 m/s
2
Cette valeur est caractéristique de l’outil et ne représente pas l’effet
sur le bras ou poignet due à l’utilisation de l’outil.
24

Suomi
Norwegian
Äänenvoimakkuusarvot
Støyinformasjon
ArvotovatEN792-13:2000
Disse typer støybeskrivelser er i samsvar med
EN792-13:2000
LpA, 1s, d = 66.3 dB
LpA, 1s, d = 66.3 dB
LwA, 1s, d = 74.2 dB
LwA, 1s, d = 74.2 dB
Nämä ääniarvot ovat konelsta tulevia ääniarvoja, eivätkä vastaa käyt-
töhetkellä syntyviä ääniä. Määrätynlainen työympäristön suunnittelu
Disse verdiene beskriver verktøyet og representerer ikke den totale
voi vähentää äänen voimakkuutta. Esim.: työkappale voidaan asettaa
støy ved bruk. Arbeidsplassens utforming kan også bidra til å senke
ääntä vaimentavalle alustalle.
støynivået, f.eks. ved å sette lyddempende støtter under arbeidsma-
terialet.
Tärinäarvot
NämäarvotovatEN792-13:2000
Informasjon om vibrasjon
2
Tärinä ominaisarvo = Vähemmän kuin 2,5 m/s
DisseverdiererisamsvarmedEN792-13:2000
2
Verdibeskrivelse av vibrasjon = Mindre enn 2,5 m/s
Nämä tärinäarvot ovat koneesta tulevia tärinäarvoja, eivätkä edusta
tärinää, joka kohdistuu käyttäjän käteen tai käsivarteen.
Denne verdien er karakteristisk for verktøyet og representerer ikke
effekten av hand-arm systemet når verktøyet er i bruk.
Svenska Dansk
Ljud Data
Oplysninger angående støj
Ljudstyrke nivåer presenterade i nedanstående tabell är enligt EN
Disse støj-karakteristiske værdier er i overensstemmelse med EN
792-13:2000
792-13:2000
LpA, 1s, d = 66.3 dB
LpA, 1s, d = 66.3 dB
LwA, 1s, d = 74.2 dB
LwA, 1s, d = 74.2 dB
Dessa nivåer är karakteristiska för verktyget men representera inte
Disse værdier er værktøjsforbundne karakteristiske værdier og
det ljud som uppstår vid det ställe där verktyget används. Arbetsplat-
repræsenterer ikke støj udviklet på anvendelsespunktet. Konstruktion
sens utformning kan reducera ljudnivåerna, till exempel genom att
af arbejdslokalet kan også tjene til at nedsætte støjniveauer, til
placera arbetsstycket på ljudabsorberande underlägg.
eksempel placering af arbejdsstykket på støjdæmpningsstøtter.
Vibrations Data
Oplysninger angående svingning
DettavärdeärienlighetmedEN792-13:2000
DisseværdiererioverensstemmelsemedEN792-13:2000
2
Karakteristiskt vibrations värde
= Mindre än 2,5 m/s
Svingnings karakteristisk værdi
= Mindre end 2,5 m/s
2
Detta värde är karakteristiskt för verktyget och representerar inte ef-
Svingningskarakteristisk værdi er en værktøjsforbundet karakteristisk
fekten av hand-arm systemet då verktyget används.
værdiogrepræsentererikkeindydelsepå“hånd-arm-systemet”når
man bruger værktøjet.
25

Italian
Español
Informazioni sulla Rumorosita’
Información sobre el Ruido
Questi valori caratteristici di rumorosita’ sono in accordo con EN
Estos valores característicos del ruido están de acuerdo con EN
792-13:2000
792-13:2000
LpA, 1s, d = 66.3 dB
LpA, 1s, d = 66.3 dB
LwA, 1s, d = 74.2 dB
LwA, 1s, d = 74.2 dB
Questi valori sono valori caratteristici proprii dell’attrezzo e non rap-
Estos valores son valores característicos relacionados con la
presentano la rumorosita’ generata sul punto d’uso. Un adeguato
herramienta y no representan ruidos desarrollados en el lugar de
progetto dell’area di lavoro puo’ anche essere d’aiuto nel ridurre il
utilización.Eldiseñodellugardetrabajopuedetambiénservirpara
livello di rumorosita’, come ad esempio sistemare l’area di lavoro su
reducirlosnivelesderuido,porejemplo,lacolocacióndelapiezaen
supporti ad assorbimento acustico.
que se está trabajando sobre soportes amortiguadores de sonido.
Informazioni sulle Vibrazioni
Información sobre la Vibración
QuestivalorisonoinaccordoconEN792-13:2000
EstosvaloresestándeacuardoconEN792-13:2000
Valore Caratteristico di Vibrazione
= Meno di 2,5 m/s
2
ValorcaracterísticodelaVibración
= Menos de 2,5 m/s
2
Questo valore e’ un valore caratteristico proprio dell’attrezzo e non
Este valor es un valor característico relacionado con la herramienta y
rappresental’inuenzasulsistemamano-bracciodurantel’uso
norepresentalainuenciaalsistemadelamanoybrazoalutilizarla
dell’attrezzo.
herramienta.
Pyccкий
Данные о шуме
Уровень шума, производимый данной моделью инструмента,
соответствует требованиям норматива EN792-13:2000
LpA, 1s, d = 66.3 дБ
LwA, 1s, d = 74.2 дБ
Эти значения являются характеристиками инструмента
и не отражают уровень шума на месте эксплуатации.
Организация рабочего места также может способствовать
уменьшению уровня шума, например, путем размещения
обрабатываемого изделия на звукопоглощающие опоры.
Данные о вибрации
Уровень вибраций, производимых данной моделью
инструмента, соответствует требованиям норматива EN792-
13:2000. Характерное значение вибрации – менее, чем
2,5м/сек2. Данное значение является характеристикой
инструмента и не отражает уровень воздействия на систему
«кисть-рука» при пользовании инструментом.
26

Türkçe
Gürültü Bilgisi
Bu pik gürültü değerleri EN 792-13: 2000 ile uyumluluk içindedir.
LpA, 1s, d = 66.3 dB
LwA, 1s, d = 74.2 dB
Bu değerler, aletlerle ilgili pik değerlerdir ve kullanım noktasında gelişen
gürültüyü temsil etmezler. Aynı zamanda çalışılan alanın dizaynı da gürültü
seviyelerini azaltabilir, örneğin
Titreşim Bilgisi
Bu değerler EN 792-13:2000 ile uyumluluk içindedir.
Tipik Titreşim Değeri = 2.5 m/s2 ‘den daha az.
Bu değer, aletlerle ilgili pik değerdir ve el-kol sisteminin ale kullanırkenki
etkisini temsil etmezler.
Polski
Informacje dotyczące hałasu
Podane wartości hałasu są w zgodzie z EN 792-13:2000
LpA, 1s, d = 66.3 dB
LwA, 1s, d = 74.2 dB
Podane wartości są charakterystyczne dla narzędzia I nie stanowią poziomu
hałasu w miejscu jego pracy.
Informacje dotyczące poziomu wibracji
Podane wartości są w zgodzie z EN 792-13:2000
Wartość charakterystyczna wibracji = poniżej 2,5 m/s²
27

28
DECLARATION OF CONFORMITY
KONFORMITÄTSERKLÄRUNG
CONFORMITEITSVERKLARING
We SENCO BRANDS, INC.
Wir, SENCO BRANDS, INC.
WIJ, SENCO BRANDS, INC.
4270 Ivy Pointe Blvd.
4270 Ivy Pointe Blvd.
4270 Ivy Pointe Blvd.
Cincinnati, Ohio 45245 U.S.A.
Cincinnati, OH 45245 U.S.A.
Cincinnati, Ohio 45245 U.S.A.
Verklaren hierbij onder eigen verant-
declare under our sole responsibility that the
erklären in alleiniger Verantwortung, daß
woordelijkheid dat het product waarnaar de
product identified in this manual
das Produkt, auf das sich diese Erklärung
verklaring verwijst in overeenstemming is
to which this declaration relates is in conformity
bezieht, mit folgenden Normen oder
met de volgende
anderen genormten Dokumenten übere-
with the following
standaarden en andere normatieve doku-
instimmt:
standards or other normative documents:
menten:
EN 292 Teil 1 und 2, November 1991
EN 292 Part 1 & 2, November, 1991
EN 292 Deel 1 & 2, November, 1991
und EN 792 Teil 13, 2000.
en EN 792-13: 2000
and EN 792-13: 2000.
Gemäß den Bestimmungen der Richtlinien:
conform de voorwaarden van de richtlijn:
following the provisions
2006/42/EC
2006-42/EC
of Directives 2006/42/EC
Name
Anthony T. Racca
YHDENMUKAISUUSVAKUUTUS
ERKLÆRING OM SAMSVAR
Vice President, Global R&D
Signature
_____________________
Me SENCO BRANDS, INC.
Vi, SENCO BRANDS, INC.
4270 Ivy Pointe Blvd.
4270 Ivy Pointe Blvd.
Cincinnati, Ohio 45245 U.S.A.
Cincinnati, OH 45245 U.S.A.
DÉCLARATION DE CONFORMITÉ
vakuutamme, että alla mainittu tuote, johon
erklærer under vårt eget ansvar alene at
tämä vakuutus liittyy, on yhdenmukainen
Nous soussignés, SENCO BRANDS
produktet identifisert nedenfor, som denne
seuraavien standardien tai muiden normati-
4270 Ivy Pointe Blvd.
erklæring forholder seg til, er i samsvar med
ivisten dokumenttien kanssa:
Cincinnati, Ohio 45245 U.S.A.
følgende standarder eller andre normative
EN 292 Osa 1 & 2, marraskuu 1991 mukaiset
dokumenter:
déclarons sous notre seule responsabilité
EN 792-13: 2000 mukaiset
EN 292 Del 1&2, November, 1991
que le produit identifié ci-dessous et auquel
noudattaen direktiivin 2006/42/EC vaatimuksia
eller EN 792-13: 2000
s’applique cette déclaration est en conformité
avec
les standards ou les réglements suivants :
følgende bestemmelsene
i direktiv 2006/42/EC
EN 292 Sections 1 & 2, Novembre 1991
DICHIARAZIONE DI CONFOR -
et EN 792-13: 2000
MITA’
Suivant les dispositions des directives 2006/42/EC
Noi SENCO BRANDS, INC.
4270 Ivy Pointe Blvd.
FÖRSÄKRAN OM ÖVERENSSTÄM
Cincinnati, Ohio 45245 U.S.A.
MELSE
dichiariamo sotto la nostra unica respon-
sabilita’ che il prodotto
Vi SENCO BRANDS, INC.
qui sotto identificato, al quale questa
4270 Ivy Pointe Blvd.
dichiarazione si riferisce,
Cincinnati, Ohio 45245 U.S.A.
e’ in conformita’ con i seguenti standards o
försäkra under vårt eget ansvar att denna
documenti di altro
produkt till vilken denna försäkran gäller, är
carattere normativo:
i överensstämmelse med följande standard
EN 292 Parti 1 c 2, Novembre, 1991
och normgivande dokument:
e EN 792-13: 2000
EN 292 Del 1 & 2, november, 1991
che si attengono a quanto previsto
eller prEN 792-13: 2000
dalla Direttiva 2006/42/EC
följer bestämmelsernas direktiv
2006/42/EC
DECLARACION DE CONFORMIDAD
Nosotros, SENCO BRANDS, INC.
4270 Ivy Pointe Blvd.
OVERENSSTEMMELSES DEKLARA
Cincinnati, Ohio 45245 EEUU
TIONEN
declaramos bajo nuestra única responsabili-
dad que el producto identificados a continuación,
Vi, SENCO BRANDS, INC.
-
al que se refiere esta declaración,
4270 Ivy Pointe Blvd.
conforma con el/los siguientes estándares y
Cincinnati, OH 45245 U.S.A.
otros documentos normativos:
erklærer under eneansvar, at dette produkt,
som denne erklæring vedrører, er i overen
EN 292 Partes 1 y 2, Noviembre, 1991
stemmelse med de følgende normer eller
y EN 792-13: 2000
andre normgivende dokumenter:
Siguiendo las provisiones de la Directiva
EN 292 Dele 1 og 2, november, 1991
2006/42/EC
-
og EN 792-13: 2000
ifølge forholdsregler af Direktiv 2006/42/EC
SFW09
СЕРТИФИКАЦИЯ
Компания Senco BRANDS, INC., 4270 Ivy
Pointe Blvd.
Cincinnati, Ohio 45245 USA
заявляет, под свою собственную
ответственность, что изделие,
описываемое в данном руководстве, к
которому данное заявление относится,
соответствует следующим стандартам
или другим нормативным документам:
EN 292 Части 1 и 2, ноябрь 1991г.
и EN792-13:2000 в соответствии с
Директивой Европейского Сообщества
2006/42/ЕС
UYGUNLUK BEYANI
Biz SENCO BRANDS, INC.
4270 Ivy Pointe Blvd.
Cincinna, Ohio 45245 U.S.A.
Bu beyanla ilgili olarak bu kılavuzda
belirlen ürünün aşağıdaki standart-
lar ve diğer normaf belgelerle bizim
sorumluluğumuzda olduğunu bildiririz.
EN 292 Part 1 & 2, Kasım, 1991 ve
EN 792-13: 2000
Aşağıdaki hükümleri izleyen: 2006/42/EC
Niniejszym oświadczamy, że narzędzia, których
DEKLARACJA ZGODNOŚCI
dotyczy ta instrukcja obsługi są zgodne z
SENCO BRANDS, INC.
następującymi normami:
4270 Ivy Pointe Blvd.
EN 292 Część 1 & 2, Listopad 1991
Cincinna, Ohio 45245 U.S.A.
oraz EN 792-13:2000
zgodnie z dyrektywą 2006/42/EC

THIS PAGE INTENTIONALLY LEFT BLANK

