E-Tech VS series 6" submersible pumps – страница 3
Инструкция к Насосу E-Tech VS series 6" submersible pumps

41
3mt
3mt
00114019 09/2008
00114019 06/2010
Kuva. 4
Jos käytetään muoviputkia, älä venytä sähköjohtoa
ja tukiköyttä, jotta vältetään sähköjohdon repeäminen
muoviputken venymisen seurauksena. Tämä venyminen
aiheutuu sen sisältämän veden painosta.
Kun käytetään laippaputkia, tulee käyttää
kaapelinpuristimia ennen ja jälkeen jokaista laippaa.
5.4 Pumpun alentaminen
Tarkista, ettei kaivo ole tukkeumia koko sen pituudelta.
Alenna pumppu kaivoon varoen vahingoittamasta
sähköjohtoa.
Muistutus: Älä alenna pumppua sähköjohdon avulla.
5.5 Asennussyvyys
Dynaamisen veden tason tulee olla aina pumpun imun
tukialustan yläpuolella, katso kappale 3.1 Sijoittamisen
rajoitukset ja Kuva 5.
Minimiturvamarginaali on 1 metri
.
Lb
Lc
Lt
Ld
La
Lb
Lc
Lt
Ld
La
00114015 09/2008
00114015 06/2010
Kuva. 5
La: Minimiasennussyvyys
(suositeltu: vähintään 1 m).
Lb: Staattinen veden taso
Lc: Dynaaminen veden taso
Ld: Ero staattisen ja dynaamisen tason välillä
Lt: Asennussyvyys
Lukitse painepuolen putki kunnollisilla ripustimilla kaivon
kanteen.
Löystytä tukiköyttä ja kiinnitä se perustukseen.
6. KÄYNNISTYS
Kun pumppu on asennettu ja upotettu, se voidaan
käynnistää luistiventtiili suljettuna asentoon 1/3.
Tarkista kiertosuunta kuten kuvataan kappaleessa 4.2
Kiertosuunnan tarkistus.
Jos vedessä on epäpuhtauksia, luistiventtiili tulisi avata
vähitellen, kunnes vesi kirkastuu. Pumppua ei saa
pysäyttää ennen kuin vesi on kirkastunut kokonaan
uudelleen, koska muussa tapauksessa pumpun osat ja
takaiskuventtiilin osat voivat vahingoittua.
Jos pumpun tilavuusvirta on suurempi kuin kaivon,
suositellaan käyttämään suojalaitetta kuivakäynnin
estämiseksi.
Ilman mitään suojaa kuivakäyntiä vastaan, veden taso
putoaa imun tukialustan alapuolelle ja pumppu imee
ilmaa. Pitkällä aikavälillä tämä aiheuttaa vahinkoja
huonon jäähdytyksen ja voitelun vuoksi.
7. HUOLTO JA KUNNOSSAPITO
Pumput ovat huoltovapaita.
Kaikki pumput ovat helposti kunnossa pidettäviä.
Käytä huoltosarjaa ja erityistyökaluja huoltoa varten.
Huollon käsikirja on saatavilla pyynnöstä.

Ennen kuin suoritat mitään toimenpiteitä
8. HÄVITTÄMINEN
pumpulle tai moottorille varmista, että
m
Tämä tuote ja sen osat tulee hävittää käyttäen paikallisia
virransyöttö on katkaistu ja ettei sitä voida
julkisia tai yksityisiä jätteenkäsittelypalveluja.
vahingossa kytkeä päälle.
9. VIANETSINTÄ
●
Tilavuusvirta nolla
●
Tilavuusvirta huono
●
Alhainen paine
●
Pumppu käynnistyy ja pysähtyy liian usein
●
Sähköpumppu käyttää liikaa sähkövirtaa
Mahdolliset pumppuun liittyvät syyt
Ratkaisu
(Moottori ja paneeli pois lukien)
██ █ Kaivon veden taso liian alhainen Odota, kunnes veden taso kaivossa palautetaan,
ja mikäli mahdollista, alenna pumppua edelleen
██ Imun sihti tukkeutunut Vedä kokoonpano ulos ja puhdista se
██ Painepuolen venttiili kiinni tai lukkiutunut Etsi ja vaihda viallinen venttiili
█ █ Pumppu sakkautunut Vedä kokoonpano ulos ja puhdista se
██ █ Väärä kiertosuunta Suorita ohjeiden mukaiset toimenpiteet, kohta 4.2
█ █ Pumpun kapasiteetti ylittää kaivon kapasiteetin Vaihda pumppu vähemmän tehokkaaseen
█ Vuotoja järjestelmässä Paikallista vuodot ja korjaa ne
█ Kulunut pumppu Vedä kokoonpano ulos ja peruskorjaa se
█ Painekytkin tai tason säätö väärin asetettu Säädä asetuksia
█ Liian pieni säiliö Vaihda säiliö suurempaan
█ Mekaaninen hankaus Vedä pumppu ulos ja peruskorjaa se
42

Κίνδυνοι από μη τήρηση των οδηγιών ασφαλείας
ï EL ð
Μη τήρηση των οδηγιών ασφαλείας μπορεί να
προκαλέσει τραυματισμούς και υλικές ζημιές, όπως και
Αυτές οι λειτουργικές οδηγίες εμπεριέχουν σημαντικές
μόλυνση του περιβάλλοντος. Η μη συμμόρφωση με τις
πληροφορίες και υποδείξεις προφύλαξης. Παρακαλώ
οδηγίες ασφαλείας θα οδηγήσουν επίσης στην πλήρη
διαβάστε το εγχειρίδιο προσεχτικά πριν από την
απώλεια των δικαιωμάτων εγγύησης.
συναρμολόγηση, ηλεκτρική σύνδεση και έναρξη
Συγκεκριμένα, η μη τήρηση των άνω αναφερόμενων
λειτουργίας.
οδηγιών μπορεί για παράδειγμα να έχουν σαν
αποτέλεσμα:
Γενικές Παρατηρήσεις
• Αστοχια λειτουργιων κυριας μηχανης/μοναδας
Αυτή η αντλία σχεδιάστηκε σύμφωνα με την πιο
• Αστοχια τηρησης των διαδικασιων συντηρησης
προηγμένη και πρόσφατη τεχνολογία, και συμμορφώνεται
• Ατυχημα ηλεκτρικης, μηχανικης ή χημικης φυσης
με την διατάξεις σε ισχύ. Επιπλέον η αντλία υπόκειται σε
ένα συνεχή ποιοτικό έλεγχο.
Κανονισμοί ασφαλείας
Αυτές οι λειτουργικές οδηγίες έχουν ως σκοπό το να σας
Όλες οι οδηγίες ασφαλείας που εμπεριέχονται σε
βοηθήσουν να κατανοήσετε την λειτουργία της αντλίας
αυτό το εγχειρίδιο θα πρέπει να τηρηθούν, όπως και
και να σας υποδείξουν τις πιθανές της εφαρμογές.
οποιοσδήποτε άλλος εθνικός κανονισμός σχετικά με την
Το εγχειρίδιο εμπεριέχει σημαντικές πληροφορίες
πρόληψη ατυχήματος και κάθε εσωτερικός κανονισμός
αναγκαίες για την αξιόπιστη και επωφελή λειτουργία
που σχετίζεται με την χρήση μηχανών και επαγγελματικής
του. Η συμμόρφωση στις λειτουργικές οδηγίες είναι
ασφάλειας.
ζωτικής σημασίας για να βεβαιωθεί η αξιοπιστία και μια
μακρά λειτουργική ζωή της αντλίας, για την αποφυγή
Οδηγίες ασφαλείας για έλεγχο, συντήρηση και
ατυχημάτων από ακατάλληλη χρήση.
λειτουργικές εργασίες
Η αντλία δεν θα πρέπει να λειτουργεί πέρα από τις οριακές
Το υπεύθυνο άτομο θα πρέπει να επιβεβαιώσει ότι όλες
τις τιμές που αναφέρονται στις τεχνικές προδιαγραφές.
οι εργασίες συντήρησης, επιθεώρησης και εγκατάστασης
Οποιαδήποτε υπόδειξη που αφορά την φύση, την
θα πρέπει να πραγματοποιούνται από προσοντούχο και
ένταση, την θερμοκρασία και τον ρυθμό ροής του υγρού
εξουσιοδοτημένο προσωπικό. Πριν την πραγματοποίηση
άντλησης, όπως και την ταχύτητα περιστροφής, την
αυτών των εργασιών, το προσωπικό θα πρέπει να είναι
πίεση και την ισχύ του κινητήρα θα πρέπει να τηρηθεί
ενήμερο σχετικά με το περιεχόμενο αυτού του εγχειριδίου.
πιστά. Οποιαδήποτε άλλη υπόδειξη που εμπεριέχεται
Όλες οι παρεμβάσεις στις μηχανές θα πρέπει να
σε αυτό το εγχειρίδιο ή στα συνοδευτικά έγγραφα της
πραγματοποιηθούν μόνο κατά την διάρκεια ακινησίας των
σύμβασης θα πρέπει να τηρούνται επίσης.
αναφερόμενων μηχανών. Τηρήστε ρητά την διαδικασία
Η ετικέτα δεδομένων της μηχανής φέρει το μοντέλο,
απενεργοποίησης του περιγράφεται στο εγχειρίδιο.
τα κύρια δεδομένα λειτουργίας και το σειριακό αριθμό.
Αντλίες που επεξεργάζονται υγρά επικίνδυνα για την
Παρακαλώ, αναφέρατε αυτές τις πληροφορίες κατά την
υγεία θα πρέπει να απολυμαίνονται.
αίτηση τεχνικών παρεμβάσεων ή τεχνικής υποστήριξης
Αμέσως μετά την ολοκλήρωση της εργασίας, όλες οι
και κατά την παραγγελία ανταλλακτικών.
συσκευές ασφάλειας και προστασίας θα πρέπει να επαν-
εγκατασταθούν και/ή να επαν-ενεργοποιηθούν.
Κανονισμοί ασφαλείας
Το εγχειρίδιο εμπεριέχει βασικές πληροφορίες που θα
Μετατροπές και μεταποιήσεις Ανταλλακτικών
πρέπει να τηρηθούν κατά την εγκατάσταση, λειτουργία
Οποιαδήποτε μετατροπή ή μεταποίηση της μηχανής θα
και συντήρηση. Γι’ αυτό, αυτό το εγχειρίδιο θα πρέπει
πρέπει να πραγματοποιείται από τον κατασκευαστή πριν
να διαβάζεται και να γίνεται κατανοητό από τον
από την ολοκλήρωση. Τα γνήσια ανταλλακτικά και τα
υπεύθυνο συναρμολόγησης της μηχανής και από όλο το
παρελκόμενα που χορηγούνται από τον κατασκευαστή
προσοντούχο προσωπικό που έχει προσληφθεί από τον
διαβεβαιώνουν ασφάλεια. Ο κατασκευαστής δεν είναι
υπεύθυνο της εγκατάστασης για την πραγματοποίηση
σε καμία περίπτωση υπεύθυνος για ζημιές εξαιτίας την
αυτής της λειτουργίας. Αυτές οι λειτουργικές οδηγίες θα
χρήσης μη-γνήσιων ανταλλακτικών!
πρέπει πάντα να είναι διαθέσιμες προς χρήση στο χώρο
εγκατάστασης της μηχανής.
1. ΠΑΡΑΔΟΣΗ ΚΑΙ ΑΠΟΘΗΚΕΥΣΗ
1.1 Παράδοση
Σύμβολα κωδικοποιημένων οδηγιών στο εσωτερικό
του εγχειριδίου
Αυτές οι υποβρύχιες αντλίες χορηγούνται στην
Οι οδηγίες ασφαλείας που εμπεριέχονται σε αυτό το
γνήσια συσκευασία τους στην οποία και θα πρέπει να
εγχειρίδιο, των οποίων η αμέλεια μπορεί να προκαλέσει
παραμείνουν μέχρι την εγκατάσταση.
τραυματισμούς, σηματοδοτούνται από το σήμα γενικού
Αποφύγετε την κύρτωση της αντλίας όταν δεν
κινδύνου δηλ.:
είναι πακεταρισμένη, γιατί μπορεί να δημιουργήσει
αποευθυγράμμιση και καταστροφή της ίδιας της αντλίας.
(σήμα κινδύνου)
m
43

Η πλάκα δεδομένων που χορηγείται με την αντλία θα
πρέπει να στερεωθεί κοντά στον εξοπλισμό ηλεκτρικού
ελέγχου.
Η αντλία δεν θα πρέπει να εκτίθεται σε άσκοπα χτυπήματα
και συγκρούσεις.
1.2 Αποθήκευση και Χειρισμός
Θερμοκρασία Αποθήκευσης:
Αντλία: από -20°C έως +60°C
Η αντλία δεν θα πρέπει να εκτίθεται στο άμεσο ηλιακό
φως.
Αν η αντλία δεν έχει συσκευαστεί, θα πρέπει να
αποθηκεύεται οριζόντια, με καλή στήριξη ή κάθετα, για
την αποφυγή της κακής ευθυγράμμισης της αντλίας.
Κατά την διάρκεια της αποθήκευσης, η αντλία μπορεί να
υποστηρίζεται κατά την Εικ.1.
44
00114017 09/2008
2.3 Αντλούμενα υγρά
Τα αντλούμενα υγρά θα πρέπει να καθαρά, συμβατά
με τα εξαρτήματα και τα υλικά αντλίας, χωρίς στερεά
σωματίδια ή ίνες.
Η μέγιστη περιεκτικότητα άμμου στο νερό δεν θα πρέπει
να ξεπερνά τα 50 g/m³. Μεγαλύτερη περιεκτικότητα
άμμου στο νερό μειώνει το χρόνο λειτουργικής ζωής της
αντλίας και αυξάνει τον κίνδυνο κολλήματος.
Όταν αντλούνται υγρά με πυκνότητα μεγαλύτερη
από αυτή του νερού, θα πρέπει να χρησιμοποιούνται
κινητήρες με μεγαλύτερη διατομή εξόδου.
3. ΕΓΚΑΤΑΣΤΑΣΗ / ΠΡΟΕΤΟΙΜΑΣΙΑ
3.1 Όροι εγκατάστασης
Αν η αντλία θα πρέπει να εγκατασταθεί σε μια
θέση που είναι προσβάσιμη από ανθρώπους,
m
θα πρέπει να αποφευχθεί οποιαδήποτε
πιθανότητα επαφής με την σύζευξη. Η αντλία
μπορεί να εξοπλιστεί για την περίπτωση με ένα
προστατευτικό χιτώνιο
Η αντλία είναι κατάλληλη για κάθετη και για οριζόντια
εγκατάσταση. Ωστόσο, η αντλία δεν θα πρέπει ποτέ να
00114017 06/2010
εγκαθίσταται με κλίση προς τα κάτω, δείτε Εικ.2.
Eik. 1
ΣΗΜΕΙΩΣΗ: Κατά την διάρκεια της λειτουργίας,
Αν η αντλία δεν χρησιμοποιείται σε κάθετη θέση, θα
υποστήριξη αναρρόφησης θα πρέπει να είναι πλήρως
πρέπει να υποστηρίζεται και η πλευρά αντλίας αλλά και
κάτω από την στάθμη του νερού.
η πλευρά του κινητήρα. Θα πρέπει να σημειωθεί ότι το
Σε ειδικές συνθήκες, μπορεί να είναι αναγκαία η
κέντρο βάρους μεταβάλλεται σε κάθε τύπο αντλίας.
βύθιση της αντλίας ακόμα και βαθύτερα, εξαρτάται από
τις λειτουργικές συνθήκες της αντλίας όπως και την
2. ΓΕΝΙΚΑ ΔΕΔΟΜΕΝΑ
θερμοκρασία και τις τιμές NPSH.
2.1 Γενική περιγραφή
Οι υποβρύχιες αντλίες είναι πολυβαθμιδικές αντλίες που
εργάζονται με αριστερόστροφη διεύθυνση περιστροφής
(παρατηρώντας από την πλευρά παράδοσης) άμεσα
συζευγμένες με ειδικούς υποβρύχιους κινητήρες
(συμμόρφωση με πρότυπα ΝΕΜΑ).
Κωδικός αναγνώρισης αντλίας
2.2 Εφαρμογές
Αυτές οι υποβρύχιες αντλίες έχουν σχεδιαστεί για ένα
ευρύ φάσμα εφαρμογών, όπως η τροφοδοσία νερού σε
οικίες, υδραυλικά συστήματα και βιομηχανίες.
Αυτές οι αντλίες είναι αναγκαίες σε περίπτωση
ταπείνωσης της υπόγειας στάθμης υδάτων, όπως και της
αύξησης θερμοκρασίας.
Βυθίστε πλήρως την αντλία κάτω από την στάθμη νερού
είτε εγκαθίσταται οριζόντια είτε κάθετα. Δείτε παράγραφο
3.1 Όροι Εγκατάστασης.
00114018 09/2008
00114018 06/2010
Eik. 2
3.2 Διάμετρος Αντλίας/Κινητήρα
Επιβεβαιώσατε, στον τεχνικό κατάλογο την μέγιστη
διάμετρο της αντλίας και της αντλίας με κινητήρα.
Επιθεωρήσατε το φρεάτιο με μια εσωτερική καλίμπρα για
να βεβαιώσατε το ανεμπόδιστο πέρασμα.
... 7 N
/
8
1 5
... 7 N
/
8
1 5
... 7 N
/
8
1 5
... 7 N
/
8
1 5
... 7 N
/
8
1 5
... 7 N
/
8
1 5
... 7 N
/
8
1 5
... 7 N
/
8
1 5
... 7 N
/
8
1 5
Version completely in AISI 316
Version vollkommen aus AISI 316
Version complètement en AISI 316
Versiòn completamente en AISI 316
Wersja wykonana całkowicie ze stali AISI 316
Версия полностью из AISI 316
Versione completamente in AISI 316
Version fuldstændigt i AISI 316
Versio AISI 316
Number of stages
Stufennummer
Numéro de stages
Nùmero de estadios
Liczba stopni
Количество ступеней
Numero di stadi
Antal trin
Vaiheiden määrä
Rated flow rate m³/h
Nenndurchfluss m³/h
Débit nominal m³/h
Capacidad nominal m³/h
Przepływ znamionowy m³/h
Номинальный расход, м³/ч
Portata nominale m³/h
Nominel flowhastighed m³/h
Nimellinen tilavuusvirta m³/h
Type of pump
Pumpentyp
Type de pompe
Tipo de bomba
Rodzaj pompy
Тип насоса
Tipo di pompa
Pumpetype
Pumpun tyyppi
Έκδοση πλήρης από AISI 316
Αριθμός βαθμιδών
Μετρώμενος ρυθμός ροής m³/h
... 7 N
Τύπος αντλίας
/
8
1 5
... 7 N
8
/
1 5
... 7 N
8
/
1 5
... 7 N
8
/
1 5
... 7 N
8
/
1 5
Versie volledig van AISI 316
Komplett versjon i AISI 316
Versão completamente em AISI 316
Version helt i AISI 316
Aantal trappen
Antall stadier
Número de estágios
Antal steg
Nominale stromingssnelheid m³/u
Rangert pumpeytelse m³/h
Taxa do caudal nominal m³/h
Nominell flödeshastighet m³/h
Type pomp
Type pumpe
Tipo de bomba
Typ av pump

3.3 Ελέγξατε την βαλβίδα στην σωλήνωση εξόδου
5.1 ΣΥΝΑΡΜΟΛΟΓΗΣΗ ΤΗΣ ΑΝΤΛΙΑΣ ΜΕ
ΤΟΝ ΚΙΝΗΤΗΡΑ
Η αντλία διαθέτει μια ενσωματωμένη βαλβίδα ελέγχου στο
άνοιγμα εξόδου. Ωστόσο προτείνεται, ειδικά αν η αντλία
Τοποθετήστε την αντλία στον κινητήρα ώστε να
τροφοδοτεί άμεσα ένα δίκτυο διανομής που υπόκειται σε
ευθυγραμμίζονται κατά μήκος του ίδιου άξονα και εισάγετε
πίεση, η εγκατάσταση και άλλης μιας βαλβίδας ελέγχου
τον άξονα κινητήρα στο συνδετικό άξονα αντλίας: η
στη σωλήνα μεταφοράς όχι περισσότερο από 10 μέτρα
σύζευξη δεν θα πρέπει να είναι εξαναγκασμένη.
από την ελάχιστη στάθμη του φρεατίου. (Αν αυτό δεν
Σφίξτε τις βίδες ή τα παξιμάδια που διαγώνια στερεώνουν
είναι γνωστό χρησιμοποιήστε το άνοιγμα μεταφοράς σαν
τις φλάντζες του κινητήρα-αντλίας με την κινούσα ροπή
ελάχιστη στάθμη).
που αναγράφεται στην παρακάτω ετικέτα.
Η παρουσία του μειώνει υδραυλικές εκτονώσεις από
εκκίνηση και στάση.
Κινούσα ροπή
Τύπος κινητήρα Βίδες
Nm
Κινητήρας 4" M8 18
4. ΗΛΕΚΤΡΙΚΕΣ ΣΥΝΔΕΣΕΙΣ
Κινητήρας 6" M12 100
Κινητήρας 8" M16 200
Πριν από την εκκίνηση της εργασίας στην
αντλία, βεβαιωθείτε ότι η τροφοδοσία
m
ισχύος αποσυνδέθηκε και ότι δεν μπορεί να
5.2 ΣΩΛΗΝΕΣ ΜΕΤΑΦΟΡΑΣ
επανασυνδεθεί τυχαία.
Αν η αντλία είναι είδη συζευγμένη στην σωλήνωση
4.1 Γενικά σχόλια
μεταφοράς και χρησιμοποιείτε ένα κλειδί σύσφιξης
Οι ηλεκτρικές συνδέσεις μπορεί να πραγματοποιηθούν
σωλήνων με αλυσίδα, κρατήστε τη μόνο από το άνοιγμα
από ένα εξουσιοδοτημένο ηλεκτρολόγο σε συμφωνία με
εξόδου.
τους κανονισμούς σε ισχύ.
Οι κοχλιωτοί σωλήνες θα πρέπει να συνδέονται με
Η τάση τροφοδοσίας, ρεύμα και το συνημιτόνιο φ,
τέτοιο τρόπο για να υποστηρίζουν την δράση κατά του
αναγράφονται στην πλακέτα κινητήρα και θα πρέπει να
ξεβιδώματος εξαιτίας της εκκίνησης και της στάσης της
διατηρείται μαζί με το ηλεκτρικό πάνελ.
αντλίας.
Ο κινητήρας θα πρέπει να γειώνεται και να
Το σπείρωμα σωλήνα, που θα πρέπει να βιδώνεται
συνδέεται στο ηλεκτρικό πάνελ.
στην αντλία, δεν θα πρέπει να είναι μεγαλύτερο από το
m
σπείρωμα της αντλίας.
Μετά το βίδωμα της αντλίας στο άνοιγμα εξόδου,
4.2 Επιβεβαίωση της Διεύθυνσης Περιστροφής
σφίξτε την συναρμολογημένη βίδα για την αποφυγή του
Όταν η αντλία συνδέεται με την ισχύ τροφοδοσίας,
λασκαρίσματος της πρώτης βαθμίδας της σωλήνας, δείτε
καθορίζεται η διεύθυνση ρεύματος περιστροφής κατά τα
Εικ. 3.
ακόλουθα:
Όταν χρησιμοποιούνται πλαστικοί σωλήνες, η αντλία θα πρέπει
1. Εκκινήστε την αντλία και ελέγξατε την τροφοδοσία
να ασφαλίζεται από έναν ιμάντα που θα πρέπει να δένεται στο
κεφαλής με την βαλβίδα ολίσθησης όχι πλήρως
άνοιγμα ανεφοδιασμού, δείτε Εικ. 3
κλειστή.
2. Σταματήστε την αντλία και διασυνδέστε δυο από τις
συνδέσεις φάσης.
3. Εκκινήστε την αντλία και επαναλάβατε το βήμα 1 με
την βαλβίδα ολίσθησης στην ίδια θέση.
4. Σταματήστε την αντλία.
Συγκρίνατε τα αποτελέσματα του βήματος 1 και 3. Η
σύνδεση, που τροφοδοτεί την ψηλότερη κεφαλή, είναι η
σωστή.
Σημείωση: Η αντλία δεν θα πρέπει να ξεκινά μέχρι η
υποστήριξη αναρρόφησης να είναι πλήρως κάτω από
την στάθμη νερού.
5. ΕΓΚΑΤΑΣΤΑΣΗ ΑΝΤΛΙΑΣ
Πριν από την εκκίνηση της εργασίας στην αντλία
ή στον κινητήρα, βεβαιωθείτε ότι η τροφοδοσία
m
ισχύος αποσυνδέθηκε και ότι δεν μπορεί να
επανασυνδεθεί τυχαία.
45
00114016 09/2008
00114016 06/2010
Eik. 3

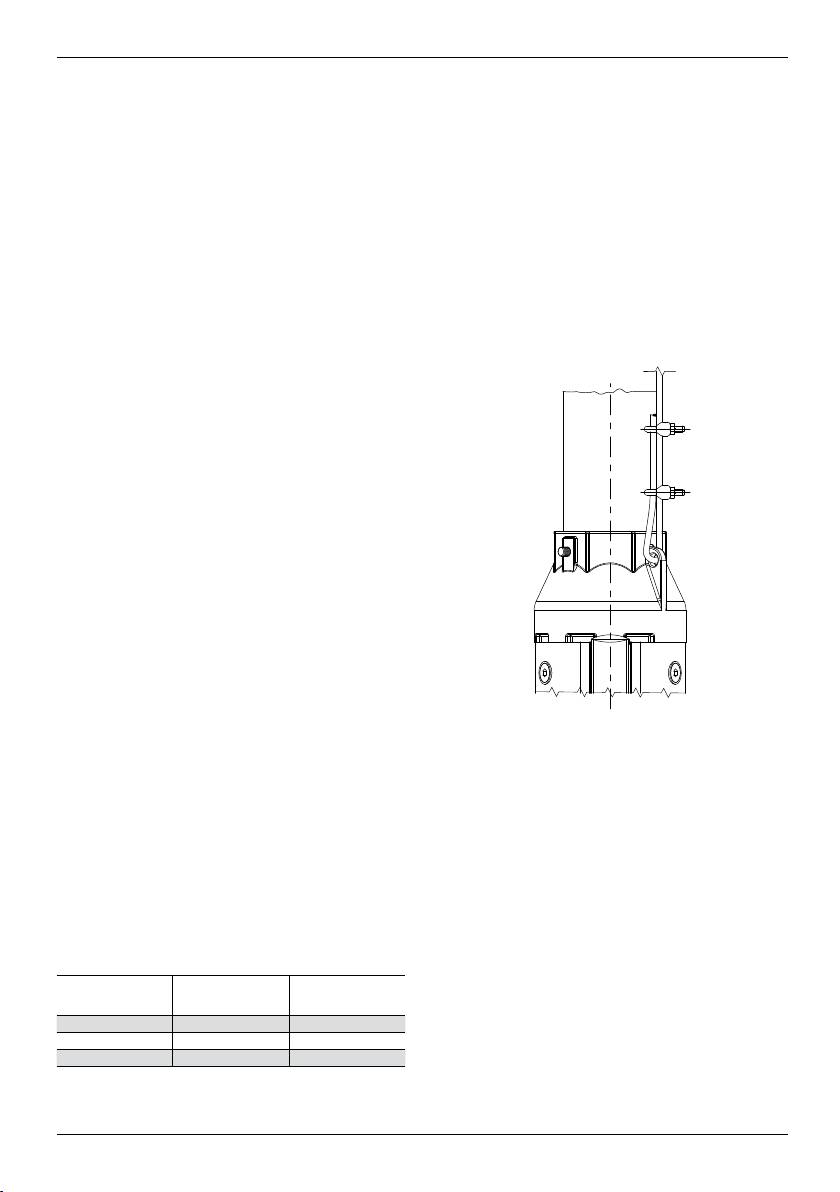
5.3 ΔΙΕΛΕΥΣΗ ΚΑΛΩΔΙΟΥ
Χρησιμοποιήστε κλιπ καλωδίων κάθε 3 μέτρα για την
στήριξη του καλωδίου στον ιμάντα στήριξης ή στον
σωλήνα ανεφοδιασμού.
Χρησιμοποιήστε κλιπ καλωδίων όπως φαίνονται στην
Εικ.4
Όταν συνδέσετε το καλώδιο, κόψτε το εναπομείναν μέρος
του κλιπ
46
3mt
3mt
00114019 09/2008
00114019 06/2010
Eik. 4
Θα πρέπει να χρησιμοποιούνται πλαστικά καλώδια, μην
τεντώνεται τα ηλεκτρικά καλώδια και τον ιμάντα στήριξης
για να αποφύγετε το σχίσιμο του ηλεκτρικού καλωδίου
εξαιτίας του τεντώματος πλαστικών καλωδίων από το
βάρος του νερού μέσα τους.
Όταν χρησιμοποιούνται σωλήνες με περιαυχένια, τα
κλιπς καλωδίων θα πρέπει να τοποθετούνται πριν και
μετά από κάθε φλάντζα
5.4 ΧΑΜΗΛΩΜΑ ΤΗΣ ΑΝΤΛΙΑΣ
Επιβεβαιώσατε ότι το φρεάτιο δεν είναι φραγμένο κατά
το μήκος του.
Κατεβάστε την αντλία στο φρεάτιο και δώστε προσοχή να
μην καταστρέψετε το ηλεκτρικό καλώδιο.
Σημείωση: Μην κατεβάζετε την αντλία πιάνοντας την
από το ηλεκτρικό καλώδιο.
5.5 ΒΑΘΟΣ ΕΓΚΑΤΑΣΤΑΣΗΣ
Η δυναμική στάθμη νερού θα πρέπει να βρίσκεται πάντα
επάνω από το μέσο αναρρόφησης της αντλίας, δείτε
παράγραφο 3.1 Όροι Εγκατάστασης και Εικ. 5.
Το ελάχιστο όριο ασφαλείας θα είναι 1 μέτρο.
Lb
Lc
Lt
Ld
La
Lb
Lc
Lt
Ld
La
00114015 09/2008
00114015 06/2010
Eik. 5
La: Ελάχιστο βάθος εγκατάστασης
(προτείνεται: ελάχιστο 1 m)
Lb: Στατική στάθμη νερού
Lc: Δυναμική στάθμη νερού
Ld: Διαφορά ανάμεσα σε στατική και δυναμική στάθμη
Lt: Βάθος εγκατάστασης
Μπλοκάρετε τον σωλήνα ανεφοδιασμού με αναρτήρες
στην κεφαλή του φρεατίου.
Λασκάρετε τον ιμάντα και σφίξτε τον στο έδαφος.
6. ΕΚΚΙΝΗΣΗ
Όταν εγκατασταθεί η αντλία και βυθιστεί, μπορεί να
ξεκινήσει λειτουργία με την βαλβίδα ολίσθησης στο 1/3.
Ελέγξατε την διεύθυνση περιστροφής όπως περιγράφεται
στην παράγραφο 4.2 Επιβεβαίωση της Διεύθυνσης
Περιστροφής.
Αν υπάρχουν ακαθαρσίες στο νερό, η βαλβίδα
ολίσθησης θα πρέπει να ανοίγει σταδιακά μέχρι το νερό
να ξανακαθαρίσει. Η αντλία θα πρέπει να σταματήσει
μέχρι το νερό να γίνει πλήρως καθαρό και πάλι,
γιατί διαφορετικά τα εξαρτήματα αντλίας και η αντλία
αντεπιστροφής μπορεί να καταστραφεί.
Αν η παροχή αντλίας είναι υψηλότερη από το φρεάτιο,
προτείνεται η χρήση μιας συσκευής προστασίας ενάντια
στην ξηρή λειτουργία.
Χωρίς καμία προστασία ενάντια στην ξηρή λειτουργία, το
επίπεδο νερού πέφτει κάτω από το μέσο αναρρόφησης
και η αντλία ρουφάει αέρα. Μακροπρόθεσμα, αυτό
προκαλεί ζημιές εξαιτίας της κακής ψύξης και λίπανσης.
7. ΣΥΝΤΗΡΗΣΗ ΚΑΙ ΕΠΙΘΕΩΡΗΣΗ
Οι αντλίες δεν χρειάζονται συντήρηση.
Όλες οι αντλίες μπορούν να συντηρηθούν εύκολα.

Χρησιμοποιήστε το Σέρβις Κιτ και τα ειδικά εργαλεία για
8. ΑΠΟΣΥΡΣΗ
συντήρηση.
Αυτό το προϊόν ή εξαρτήματά του θα πρέπει να
Το Εγχειρίδιο του Σέρβις είναι διαθέσιμο μετά από αίτηση
αποσύρονται χρησιμοποιώντας την τοπική ή δημόσια
Πριν από την πραγματοποίηση οποιασδήποτε
υπηρεσία διάθεσης αποβλήτων.
εργασίας στην αντλία ή στον κινητήρα,
m
βεβαιωθείτε ότι η τροφοδοσία ισχύος
αποσυνδέθηκε και ότι δεν μπορεί να
επανασυνδεθεί τυχαία.
9. ΕΝΤΟΠΙΣΜΟΣ ΒΛΑΒΩΝ
●
Μηδενική παροχή ροής
●
Χαμηλή παροχή ροής
●
Χαμηλή πίεση
●
Η αντλία ξεκινά και σταματά συχνά
●
Υπερβολική απορρόφηση ρεύματος από την ηλεκτροαντλία
Πιθανές αιτίες συσχετιζόμενες με την αντλία
Λύση
(Εξαιρούμενων κινητήρα και πάνελ)
██ █ Πολύ χαμηλή στάθμη στο φρεάτιο νερού Αναμείνατε την αποκατάσταση της στάθμης νερού,
ή αν είναι δυνατό χαμηλώστε και άλλο την αντλία
██ Φραγή στομίου αναρρόφησης Τραβήξτε το εξάρτημα και καθαρίστε το
██ Βαλβίδα εφοδιασμού κλειστή ή μπλοκαρισμένη Βρείτε και αντικαταστήστε την ελαττωματική αντλία
█ █ Αντλία φραγμένη Τραβήξτε το εξάρτημα και καθαρίστε το
██ █ Λάθος διεύθυνση περιστροφής Ακολουθήστε οδηγίες κατά την 4.2
█ █ Δυναμικότητα αντλία ξεπερνά την χωρητικότητα
Αντικατάσταση αντλίας με μικρότερης δυναμικής
φρεατίου
█ Διαρροή στο σύστημα Βρείτε και επισκευάστε τις διαρροές
█ Φθαρμένη αντλία Βγάλτε το εξάρτημα και διορθώστε το
█ Διακόπτης πίεσης ή έλεγχος στάθμης ακατάλληλος Διορθώστε ρυθμίσεις
█ Πολύ μικρό ντεπόζιτο Αντικαταστήστε ντεπόζιτο με μεγαλύτερο
█ Mηχανικός συμπλέκτης Βγάλτε την αντλία και διορθώστε την
47

Risico’s bij het niet in acht nemen van de
ï NL ð
veiligheidsinstructies
Het niet in acht nemen van de veiligheidsinstructies kan
Deze gebruiksinstructies bevatten belangrijke informatie
fysieke en materiële schade tot gevolg hebben, net als
en waarschuwingen. Lees de handleiding goed door
milieuverontreiniging. Als niet wordt voldaan aan de
voordat u de pomp monteert, de elektrische aansluitingen
veiligheidsinstructies, komt ook de garantie volledig te
maakt en de pomp in bedrijf stelt
vervallen.
In het bijzonder kan het niet in acht nemen van de
Algemene opmerkingen
hierboven genoemde instructies bijvoorbeeld het
Deze pomp is ontwikkeld volgens de meest geavanceerde
volgende tot gevolg hebben:
en recente technologie en in overeenstemming met
• storingen van de belangrijkste functies van de machine/
de van kracht zijnde regelgeving. Verder is de pomp
eenheid;
permanent onderhevig aan kwaliteitscontrole.
• storingen aan de onderhoudsprocedures;
Deze gebruiksinstructies zijn bedoeld om u de werking
• gevaar van elektrische, mechanische of chemische
van de pomp beter te laten begrijpen en u de mogelijke
aard.
toepassingen ervan te tonen.
In de handleiding staat belangrijke informatie die nodig
Veiligheidsvoorschriften
is voor een betrouwbare en rendabele werking. Het is
Alle veiligheidsvoorschriften die in deze handleiding staan,
van cruciaal belang dat u zich aan de gebruiksinstructies
moeten in acht worden genomen, net als alle eventuele
houdt om de betrouwbaarheid en een lange levensduur
andere nationale voorschriften over ongevallenpreventie
van de pomp te waarborgen en om ongelukken als
en alle eventuele interne voorschriften over het gebruik
gevolg van onjuist gebruik te voorkomen.
van machines en over arbeidsomstandigheden.
Deze pomp mag niet worden gebruikt boven de
limietwaarden uit de technische specicaties. Alle
Veiligheidsinstructies voor controle-, onderhouds-
aanwijzingen over de aard, de dichtheid, de temperatuur
en gebruikswerkzaamheden
en de stromingssnelheid van de gepompte vloeistof en
De leidinggevende moet controleren of alle onderhouds-,
over de rotatiesnelheid, de druk en de kracht van de
inspectie- en installatiewerkzaamheden worden
motor moeten in acht worden genomen. Ook alle andere
uitgevoerd door bevoegd en geautoriseerd personeel.
instructies die in deze handleiding of in de documentatie
Voordat deze werkzaamheden worden uitgevoerd, moet
die bij de overeenkomst is bijgesloten staan, moeten in
het personeel op de hoogte zijn van de inhoud van deze
acht worden genomen.
handleiding.
Op het serieplaatje staat het type van de pomp, de
Alle ingrepen aan de machines mogen alleen worden
belangrijkste bedrijfsgegevens en het serienummer.
uitgevoerd tijdens totale stilstand van de genoemde
Vermeld deze informatie bij alle aanvragen voor reparaties
machines. Volg de in deze handleiding beschreven
of assistentie en bij het bestellen van reserveonderdelen.
afsluitprocedure zorgvuldig op.
Pompen die vloeistoffen verwerken die gevaarlijk zijn
Veiligheidsvoorschriften
voor de gezondheid moeten worden ontsmet.
In deze handleiding staan instructies die van
Onmiddellijk na de voltooiing van de werkzaamheden
fundamenteel belang zijn en die in acht moeten worden
moeten alle veiligheids- en beschermende mechanismen
genomen tijdens de installatie, het gebruik en het
worden teruggeplaatst en/of weer worden ingeschakeld.
onderhoud. Daarom moet dit gebruikshandboek worden
gelezen en begrepen door de persoon die de leiding
Wijziging en fabricage van reserveonderdelen
heeft over het monteren van de machine en door al het
Alle reconstructies of aanpassingen van de machine
bevoegde personeel dat door de verantwoordelijke voor
moeten worden goedgekeurd door de fabrikant voordat
de installatie is toegewezen aan de bediening. Deze
ze worden uitgevoerd. Originele reserveonderdelen en
gebruiksinstructies moeten altijd onder handbereik zijn
door de fabrikant geleverde accessoires garanderen de
bij de machine.
veiligheid. De fabrikant is in geen geval aansprakelijk
voor schade die voortkomt uit het gebruik van niet-
De markering van gecodeerde instructies in de
originele reserveonderdelen!
handleiding
De veiligheidsinstructies in deze handleiding die gevaar
1. LEVERING EN OPSLAG
opleveren voor personen als ze niet in acht worden
genomen, zijn gemarkeerd met het teken voor algemeen
1.1 Levering
gevaar:
Deze dompelpompen worden geleverd in hun originele
(gevaarteken)
verpakking en moeten in de verpakking blijven tot aan
de installatie.
m
Zorg ervoor dat de pomp niet wordt gebogen wanneer
deze niet is ingepakt, omdat de uitlijning van de pomp
daardoor kan worden verstoord of de pomp zelf kan
beschadigen.
48

De losse gegevensplaat die bij de pomp wordt geleverd,
moet dicht bij de elektrische controle-apparatuur worden
aangebracht.
De pomp mag niet worden blootgesteld aan onnodige
schokken en botsingen.
1.2 Opslag en verplaatsing
Opslagtemperatuur:
Pomp: van -20°C tot +60°C
De pomp mag niet worden blootgesteld aan direct
zonlicht.
Als de pomp niet is verpakt, moet de pomp horizontaal en
goed ondersteund of verticaal worden opgeslagen om te
voorkomen dat de uitlijning van de pomp wordt verstoord.
Tijdens de opslag kan de pomp worden ondersteund
zoals te zien is op afb. 1.
49
00114017 09/2008
De maximale hoeveelheid zand in het water is 50 g/m³. Bij
meer zand in het water wordt de levensduur van de pomp
verkort en wordt het gevaar voor blokkering vergroot.
Als er vloeistoffen worden gepompt met een grotere
dichtheid dan water, moeten er motoren met een passend
hoger vermogen worden gebruikt.
3. INSTALLATIE / VOORBEREIDING
3.1 Plaatsingslimieten
Als de pomp moet worden geïnstalleerd in een
positie waarin de pomp toegankelijk is voor
m
mensen, moeten alle mogelijkheden tot contact
met de koppeling worden vermeden. De pomp
kan bijvoorbeeld worden uitgerust met een
afscherming.
De pomp is geschikt voor zowel verticale als horizontale
installatie, maar de pomp mag nooit worden geïnstalleerd
met een neerwaartse helling; zie afb. 2.
Opmerking: Tijdens de werking moet de aanzuigsteun
00114017 06/2010
altijd volledig zijn ondergedompeld.
Afb. 1
In speciale omstandigheden kan het nodig zijn om de
pomp nog dieper onder te dompelen, afhankelijk van de
Als de pomp niet in verticale positie wordt gebruikt,
bedrijfsomstandigheden, de temperatuur en de NPSH-
moeten zowel de pompzijde als de motorzijde worden
waarden.
ondersteund. Het zwaartepunt verschilt afhankelijk van
het pomptype.
2. ALGEMENE GEGEVENS
2.1 Algemene beschrijving
De dompelpompen zijn meertrapspompen met
draairichting linksom (gezien vanaf de drukzijde), direct
gekoppeld aan speciale waterproofmotoren (volgens de
NEMA-standaards).
Pompidenticatiecode
2.2 Toepassingen
Deze dompelpompen zijn ontworpen voor een groot
aantal toepassingen, zoals de toevoer van water naar
woningen, watersystemen en fabrieken.
Deze pompen zijn noodzakelijk bij het verlagen van het
grondwaterpeil en voor drukverhoging.
Dompel de pomp volledig onder het waterpeil, zowel bij
horizontale als bij verticale installatie. Zie paragraaf 3.1
Plaatsingslimieten.
2.3 Gepompte vloeistoffen
De gepompte vloeistoffen moeten schoon zijn, compatibel
zijn met de onderdelen en materialen van de pomp en
moeten vrij zijn van vaste deeltjes of vezels.
00114018 09/2008
00114018 06/2010
Afb. 2
3.2 Diameter van de pomp/motor
Controleer in de technische catalogus de maximumdiameter
van de pomp en van de pomp met de motor.
Controleer het boorgat met een interne schuifmaat om te
garanderen dat de doorgang niet is versperd.
3.3 Check valve on the delivering piping
De pomp is uitgerust met een ingebedde controleklep
in de opening aan de drukzijde. Het wordt echter
aanbevolen, in het bijzonder als de pomp direct een
... 7 N
/
8
1 5
... 7 N
/
8
1 5
... 7 N
/
8
1 5
... 7 N
/
8
1 5
... 7 N
/
8
1 5
... 7 N
/
8
1 5
... 7 N
/
8
1 5
... 7 N
/
8
1 5
... 7 N
/
8
1 5
... 7 N
/
8
1 5
Version completely in AISI 316
Version vollkommen aus AISI 316
Version complètement en AISI 316
Versiòn completamente en AISI 316
Wersja wykonana całkowicie ze stali AISI 316
Версия полностью из AISI 316
Versione completamente in AISI 316
Version fuldstændigt i AISI 316
Versio AISI 316
Έκδοση πλήρης από AISI 316
Number of stages
Stufennummer
Numéro de stages
Nùmero de estadios
Liczba stopni
Количество ступеней
Numero di stadi
Antal trin
Vaiheiden määrä
Αριθμός βαθμιδών
Rated flow rate m³/h
Nenndurchfluss m³/h
Débit nominal m³/h
Capacidad nominal m³/h
Przepływ znamionowy m³/h
Номинальный расход, м³/ч
Portata nominale m³/h
Nominel flowhastighed m³/h
Nimellinen tilavuusvirta m³/h
Μετρώμενος ρυθμός ροής m³/h
Type of pump
Pumpentyp
Type de pompe
Tipo de bomba
Rodzaj pompy
Тип насоса
Tipo di pompa
Pumpetype
Pumpun tyyppi
Τύπος αντλίας
Versie volledig van AISI 316
Aantal trappen
Nominale stromingssnelheid m³/u
... 7 N
Type pomp
/
8
1 5
... 7 N
8
/
1 5
... 7 N
8
/
1 5
... 7 N
8
/
1 5
Komplett versjon i AISI 316
Versão completamente em AISI 316
Version helt i AISI 316
Antall stadier
Número de estágios
Antal steg
Rangert pumpeytelse m³/h
Taxa do caudal nominal m³/h
Nominell flödeshastighet m³/h
Type pumpe
Tipo de bomba
Typ av pump

distributienetwerk voedt dat onder druk staat, om nog een
controleklep te installeren op de drukleiding op maximaal
Aandrijfdraaimoment
Motortype Schroef
10 meter vanaf het minimumniveau van de bron.
Nm
(Als dit laatste niet bekend is, gebruikt u de opening aan
Motor 4" M8 18
de drukzijde als minimumniveau).
Motor 6" M12 100
De aanwezigheid van deze klep vermindert hydraulische
Motor 8" M16 200
schokken door starten en stoppen.
5.2 Drukleiding
4. ELEKTRISCHE AANSLUITINGEN
Als de pomp al aan de drukleiding is gekoppeld en u een
Controleer voordat u begint met werkzaamheden
kettingtang gebruikt, draait u de pomp aan terwijl u deze
aan de pomp of de stroomtoevoer is
alleen vasthoudt bij de opening aan de drukzijde.
m
uitgeschakeld en niet onbedoeld kan worden
De leidingen met schroefdraad moeten zo worden
ingeschakeld.
aangesloten dat het losschroef-effect door het starten en
stoppen van de pomp wordt verdragen.
4.1 Algemene opmerkingen
Het schroefdraad van de leiding, dat in de pomp moet
De elektrische aansluitingen moeten worden uitgevoerd
worden geschroefd, mag niet langer zijn dan het
door een bevoegde elektricien volgens de geldende
schroefdraad van de pomp.
voorschriften.
Nadat u de leiding in de opening van de drukleiding
De voedingsspanning, stroom en cos φ staan aangegeven
heeft geschroefd, draait u de aangebrachte schroef aan
op het motorplaatje, dat op het schakelpaneel moet zitten.
om te voorkomen dat het eerste gedeelte van de leiding
De motor moet zijn geaard en aangesloten zijn
loskomt, zie afb. 3.
op het schakelpaneel.
Als er plastic leidingen worden gebruikt, moet de pomp
m
worden bevestigd met een onbelaste kabel aan de
opening aan de drukzijde, zie afb. 3.
4.2 Controle van de draairichting
Wanneer de pomp is aangesloten op de elektrische
voeding, bepaalt u als volgt de huidige draairichting:
1. Start de pomp en controleer de opvoerhoogte die is
geleverd met schuifafsluiter niet volledig gesloten.
2. Stop de pomp en wissel twee van de faseaansluitingen
om.
3. Start de pomp en herhaal stap 1. met de schuifafsluiter
in dezelfde positie.
4. Stop de pomp.
Vergelijk de resultaten die zijn verkregen in stap 1 en 3.
De aansluiting die de hoogste opvoerhoogte levert, is de
juiste.
Opmerking: De pomp mag pas worden gestart als de
aanzuigsteun volledig is ondergedompeld
5. DE POMP INSTALLEREN
Controleer voordat u begint met
werkzaamheden aan de pomp of aan de motor
m
of de stroomtoevoer is uitgeschakeld en niet
onbedoeld kan worden ingeschakeld.
5.1 De pomp samenstellen met de motor
Plaats de pomp zo op de motor dat ze langs dezelfde
as staan en breng de motoras aan in de koppeling van
de pompas: De koppeling mag niet worden geforceerd.
Draai de schroeven of de moeren waarmee de pomp-
motorenzen diagonaal zijn bevestigd aan met het
aandrijfdraaimoment dat in de volgende tabel staat
aangegeven.
50
00114016 09/2008
00114016 06/2010
Afb. 3
5.3 De kabel plaatsen
Gebruik kabelklemmen op iedere 3 meter om de
kabel mee aan de steunkabel of aan de drukleiding te
bevestigen.
Gebruik plastic kabelklemmen zoals te zien is op afb. 4.
Wanneer de kabel is bevestigd, snijdt u het resterende
gedeelte van de klem af.

51
3mt
3mt
00114019 09/2008
00114019 06/2010
Afb. 4
Als er plastic leidingen worden gebruikt, mogen de
elektriciteitskabel en de steunkabel niet worden uitgerekt
om te voorkomen dat de elektriciteitskabel scheurt door
de rek van de plastic leidingen door het gewicht van het
water dat erin zit.
Als er enspijpen worden gebruikt, moeten de
kabelklemmen voor en na iedere ens worden geplaatst.
5.4 De pomp omlaag brengen
Controleer of de bron over de gehele lengte niet verstopt
zit.
Breng de pomp omlaag in de bron en let erop dat de
elektriciteitskabel niet beschadigt.
Opmerking: Laat de pomp niet zakken aan de
elektriciteitskabel..
5.5 Installatiediepte
Het dynamische waterpeil moet altijd boven de
aanzuigsteun van de pomp liggen. Zie paragraaf 3.1
Plaatsingslimieten en afb. 5.
De minimum-veiligheidsmarge moet 1 meter zijn.
Lb
Lc
Lt
Ld
La
Lb
Lc
Lt
Ld
La
00114015 09/2008
00114015 06/2010
Afb. 5
La: Minimum-installatiediepte
(aangeraden: minimaal 1 m.).
Lb: Statisch waterpeil
Lc: Dynamisch waterpeil
Ld: Verschil tussen statisch en dynamisch peil
Lt: Installatiediepte
Blokkeer de drukleiding met geschikte hangers aan de
bron. Maak de steunkabel los en bevestig deze aan het
grondwerk
6. OPSTARTEN
Wanneer de pomp is geïnstalleerd en ondergedompeld,
kan de pomp worden gestart met de schuifafsluiter tot
1/3 gesloten.
Controleer de draairichting zoals beschreven in deel 4.2
Controle van de draairichting.
Als er onzuiverheden in het water zitten, moet de
schuifafsluiter geleidelijk worden geopend totdat het
water helderder wordt. De pomp mag pas worden
gestopt wanneer het water weer helemaal helder is,
omdat de pompdelen en de terugslagklep anders kunnen
beschadigen.
Als de stromingssnelheid van de pomp hoger is dan die
van de bron, wordt het gebruik van een bescherming
tegen drooglopen aanbevolen.
Zonder bescherming tegen drooglopen, zakt het waterpeil
tot onder de aanzuigsteun en zuigt de pomp lucht aan.
Op de lange termijn veroorzaakt dit schade door slechte
koeling en smering.
7. ONDERHOUD EN REPARATIES
De pompen zijn onderhoudsvrij.
Alle pompen zijn eenvoudig te repareren.
Gebruik de Service Kits en het speciale gereedschap
.

voor het onderhoud.
8. AFVOEREN ALS AFVAL
De Onderhoudshandleiding is op verzoek verkrijgbaar
Dit product of delen ervan moeten worden afgevoerd
Controleer voordat u werkzaamheden aan
volgens de plaatselijke openbare of particuliere
de pomp of de motor gaat verrichten of
m
afvalinzameling
de stroomtoevoer is uitgeschakeld en niet
onbedoeld kan worden ingeschakeld.
9. PROBLEEMOPLOSSING
●
Geen stroming
●
Zwakke stroming
●
Weinig druk
●
De pomp start en stopt te vaak
●
Te veel stroom opgenomen door de elektrische pomp
Mogelijke oorzaken met betrekking tot de pomp
Oplossing
(Met uitzondering van motor en paneel)
██ █ Waterpeil bron te laag Wacht totdat het bronwaterpeil is hersteld, of laat
de pomp verder zakken indien mogelijk
██ Zuigkorf verstopt Trek het samenstel naar buiten en reinig het
██ Klep op drukleiding gesloten of geblokkeerd Zoek en vervang de defecte klep
█ █ Pomp dichtgeslibt Trek het samenstel naar buiten en reinig het
██ █ Verkeerde draairichting Voer de instructies van 4.2 uit
█ █ Pompvermogen is groter dan bronvermogen Vervang de pomp door een pomp met een lager
vermogen
█ Lekken in het systeem Zoek de lekken op en repareer ze
█ Pomp versleten Trek het samenstel naar buiten en reviseer het
█ Drukschakelaar of peilregeling verkeerd ingesteld Pas de instelling aan
█ Tank te klein Vervang de tank door een grotere
█ Mechanische wrijving Trek de pomp naar buiten en reviseer de pomp
52

ï NO ð
Sikkerhetsreguleringer
Alle sikkerhetsforskrifter beskrevet i denne håndboken må
Instruksjonene for bruk inneholder vesentlig informasjon
overholdes, i tillegg til nasjonale forskrifter for forhindring
og sikkerhetsmessige merknader. Vennligst les nøye
av ulykker, samt eventuelle interne reguleringer ved bruk
igjennom håndboken før montering, elektrisk tilkobling og
av maskineri og driftssikkerhet.
kommisjonering utføres.
Sikkerhetsforskrifter for kontroll, vedlikehold og
Generelle Merknader
driftssikkerhet
Pumpen er utviklet i henhold til den nyeste og mest
Ansvarlig vedkommende må kontrollere at alt vedlikehold,
avanserte teknologi tilgjengelig, samtidig som den er i
inspeksjons - og installasjonsarbeid utføres av kvalisert
tråd med gjeldene forskrifter. Pumpen er videre underlagt
og godkjent personell. Før slikt arbeid utføres må
permanente kvalitetskontroller. Disse instruksjonene for
personellet være innforstått med denne håndbokens
bruk er utarbeidet for å sikre deg bedre forståelse for
innhold.
bruk av pumpen, samt å fremvise alle pumpens mulige
Alle inngrep ved maskinene må kun utføres ved
anvendelsesmåter.
fullstendig stans av nevnte maskiner. Utfør streng kontroll
Håndboken inneholder viktig nødvendig informasjon for
av at driftsstans prosedyre utføres som beskrevet i denne
forsvarlig og fordelaktig bruk av pumpen. Overholdelse
håndboken.
av instruksjonene for bruk er av avgjørende betydning
Helseskadelige væsker som føres i pumpene må
for å kunne sikre pumpens driftssikkerhet og lang levetid,
dekontamineres. Alle sikkerhets og beskyttelses
samt for å kunne unngå eventuelle ulykker ved feil
installasjoner installeres på nytt og/eller re-aktiveres
håndtering av pumpen. Denne må ikke benyttes utenfor
øyeblikkelig etter at arbeidet er utført.
de grenser beskrevet i den tekniske spesikasjonen. Alle
indikasjoner gitt angående kjennetegn, tetthet, temperatur
Modisering og fremstilling av Reserve deler
og pumpeytelse ved væsken som pumpes, skal overvåke
Alle rekonstruksjoner eller endringer ved maskin må
trykk og motoreffekt. Ytterligere instruksjoner beskrevet
godkjennes av produsent. Originale reserve deler og
i denne håndboken eller i vedlagt dokumentasjon
tilbehør levert av produsent garanterer for sikkerheten.
tilhørende avtalen skal også overholdes.
Produsenten er ikke i noe tilfelle ansvarlig for skader
På pumpens nummerskilt står serietype, hovedbruksdata
oppstått ved bruk av uoriginale reserve deler!
og serienummer oppført. Vennligst oppgi denne
informasjonen ved inngrep eller service og ved bestilling
av reservedeler.
1. LEVERING OG LAGRING
Sikkerhetsforskrifter
1.1 Levering
Håndboken inneholder vesentlige instruksjoner som må
De nedsenkbare pumpene leveres i tilhørende original
følges ved installasjon, bruk og vedlikehold. Derfor må
forpakning hvor de bør forbli innpakket helt frem til
denne håndboken leses og forståes av både personen
installasjon.
ansvarlig for montering av maskin, samt alt kvalisert
Unngå at pumpen bøyes hvis den ikke er innpakket, da
personell. Disse er da utpekt av ansvarlig leder til å
dette kan forårsake feiljustering og skader ved pumpen.
foreta installasjoner ved bruk. Håndboken må alltid være
Den løse data platen som følger med pumpen skal festes
tilgjengelig ved bruk av maskinen.
ved siden av det elektriske kontrollutstyr.
Pumpen skal ikke utsettes for unødvendige belastninger
Markering av kodede instruksjoner i håndboken
og slag.
Ved å unnlate overholdelse av sikkerhetsforskrifter
beskrevet i denne håndboken, kan dette føre til farlige
1.2 Lagringstemperatur:
situasjoner for personer. Disse situasjonene er markert
Pumpe: fra -20 °C til +60 °C
ved eget fare varsel, som følger:
Pumpen bør ikke eksponeres for direkte sollys.
(fare varsel)
Hvis pumpen ikke er innpakket skal den oppbevares
m
i horisontal posisjon, da med tilstrekkelig støtte, eller i
vertikal posisjon, for å unngå feiljusteringer ved pumpen.
Fare grunnet brudd på sikkerhetsforskrifter
Under lagring kan pumpen støttes opp som vist i Fig. 1
Brudd på sikkerhetsforskrifter kan forårsake person - og
materielle skader, i tillegg til miljøforurensning. Brudd
på sikkerhetsforskrifter vil også føre til fullstendig tap av
garanti rettigheter.
Spesielt kan brudd på sikkerhetsforskrifter beskrevet
ovenfor for eksempel resultere i:
• svikt ved maskin/delers funksjoner;
• svikt ved vedlikeholds prosedyrer;
• fare av elektrisk, mekanisk eller kjemisk karakter.
53

54
00114017 09/2008
installeres i nedover hellende posisjon, se Fig. 2.
Merknad: Ved bruk må alltid oppsugings funksjonen
være fullstendig nedsenket under vann.
Ved spesielle forhold kan det være nødvendig å senke
pumpen ytterligere ned på dypere vann, noe som er
00114017 06/2010
avhengig av pumpens driftsvilkår, samt temperatur og
Fig. 1
NPSH verdier
Hvis pumpen ikke benyttes i vertikal posisjon, må både
pumpesidene og motorsidene støttes opp. Legg merke til
at tyngdepunktet vil variere i forhold til pumpetype.
2. GENERELLE DATA
2.1 Generell beskrivelse
De nedsenkbare pumpene er erbruks-pumper som
arbeider med roteringsretning mot klokken (når sett fra
tømme siden), direkte koblet med spesielle nedsenkbare
motorer (i tråd med NEMA standarder).
Identiseringskode for pumpe
2.2 Anvendelsesområder
De nedsenkbare pumpene er utviklet med tanke på
bruk ved en rekke anvendelsesområder, som ved
vannforsyning til private hjem, vassdrag og industri.
Pumpene er nødvendige ved senkning av
grunnvannsnivå, i tillegg til trykkøkning.
Det er mulig å installere pumpe under vann nivå
både i horisontal og vertikal posisjon ved fullstendig
nedsenkning. Se avsnitt 3.1 Posisjoneringsgrenser.
2.3 Pumpede væsker
Pumpede væsker må være rene, kompatible med
pumpekomponenter og materialer, samt uten solide
partikler eller bre.
Maksimalt sandinnhold i vannet må ikke overgå 50 g/m³.
Større sandinnhold i vannet vil kunne redusere pumpens
levetid og øke risikoen for blokkering.
Når pumpevæske har en høyrere tetthet enn vann må
motorer med tilsvarende større pumpekraft benyttes.
3. INSTALLASJON / FORBEREDELSE
3.1 Posisjoneringsgrenser
Hvis pumpen skal installeres i en posisjon
hvor den er tilgjengelig for mennesker, må
m
det påsees at all mulig kontakt med koplingen
unngås. Pumpen må, for eksempel, utstyres
med et beskyttende dekke.
Det er mulig å installere pumpen både i vertikal og
horisontal posisjon. Pumpen må, imidlertid, aldri
00114018 09/2008
00114018 06/2010
Fig. 2
3.2 Diameter ved Pumpe/Motor
Kontroller pumpens og pumpemotorens maksimale
diameter i teknisk
katalog.
Kontroller brønnen ved bruk av en innvendig måleklave
for å sikre at pumpen ikke hindres eller blokkeres på noe
vis når den senkes ned.
3.3 Kontrolleringsventil i tømme rør
Pumpen er utstyrt med en innbygget kontrolleringsventil
ved tømmerør. Det anbefales uansett, spesielt hvis
pumpen leverer direkte til et distribusjonsnett, å
installere en kontrollventil i tillegg i tømmerøret, da ikke
lenger enn 10 meter fra minimum brønn nivå. (Benytt
tømmeåpningen som minimumsnivå hvis dette nivået er
ukjent,).
Dette motvirker hydrauliske sjokk grunnet til oppstart og
avstenging.
4. ELEKTRISKE TILKOPLINGER
Før iverksetting av arbeid med pumpen tar til,
kontroller at strømtilførsel har blitt koblet ut slik
m
at denne ikke kan slå seg på ved uhell.
... 7 N
/
8
1 5
... 7 N
/
8
1 5
... 7 N
/
8
1 5
... 7 N
/
8
1 5
... 7 N
/
8
1 5
... 7 N
/
8
1 5
... 7 N
/
8
1 5
... 7 N
/
8
1 5
... 7 N
/
8
1 5
... 7 N
/
8
1 5
... 7 N
/
8
1 5
Version completely in AISI 316
Version vollkommen aus AISI 316
Version complètement en AISI 316
Versiòn completamente en AISI 316
Wersja wykonana całkowicie ze stali AISI 316
Версия полностью из AISI 316
Versione completamente in AISI 316
Version fuldstændigt i AISI 316
Versio AISI 316
Έκδοση πλήρης από AISI 316
Versie volledig van AISI 316
Number of stages
Stufennummer
Numéro de stages
Nùmero de estadios
Liczba stopni
Количество ступеней
Numero di stadi
Antal trin
Vaiheiden määrä
Αριθμός βαθμιδών
Aantal trappen
Rated flow rate m³/h
Nenndurchfluss m³/h
Débit nominal m³/h
Capacidad nominal m³/h
Przepływ znamionowy m³/h
Номинальный расход, м³/ч
Portata nominale m³/h
Nominel flowhastighed m³/h
Nimellinen tilavuusvirta m³/h
Μετρώμενος ρυθμός ροής m³/h
Nominale stromingssnelheid m³/u
Type of pump
Pumpentyp
Type de pompe
Tipo de bomba
Rodzaj pompy
Тип насоса
Tipo di pompa
Pumpetype
Pumpun tyyppi
Τύπος αντλίας
Type pomp
Komplett versjon i AISI 316
Antall stadier
Rangert pumpeytelse m³/h
... 7 N
Type pumpe
/
8
1 5
... 7 N
8
/
1 5
... 7 N
8
/
1 5
Versão completamente em AISI 316
Version helt i AISI 316
Número de estágios
Antal steg
Taxa do caudal nominal m³/h
Nominell flödeshastighet m³/h
Tipo de bomba
Typ av pump

4.1 Generelle bemerkninger
Elektrisk tilkopling bør utføres av en godkjent elektriker i
tråd med gjeldende forskrifter.
Nettspenning, strøm og cos φ er oppgitt på motor platen
som må oppbevares innen det elektriske panelet.
Motorene må være jordede og koplet til det
elektriske panelet
m
4.2 Kontroll av Rotasjonsretning
Når pumpen har blitt koblet til strømforsyningen, må
tilpasning av rotasjonsretning skje på følgende måte:
1. Start pumpen og sjekk at toppen koblet til sluseventil
ikke er fullstendig lukket.
2. Stopp pumpen og bytt to av fase tilkoplingene med
hverandre.
3. Start pumpen og gjenta trinn 1, da med sluseventil i
samme posisjon.
4. Stopp pumpen.
Foreta en sammenlikning av resultatene oppnådd i steg
1 og 3. Koplingen som viser høyeste topp er den riktige.
Merknad: Pumpenmå ikke startes før oppsugings
funksjon er helt nedsenket.
5. PUMPE INSTALLASJON
Før hvilket som helst arbeid tar til ved pumpe
eller motor, kontroller at strømtilførselen har blitt
m
koblet ut slik at denne ikke kan slå seg på ved
uhell.
5.1 Montering av pumpe med motor
Plasser pumpen på motoren slik at de er posisjonert
langs samme akse og sett inn motoraksel i pumpens
akselsjakt; koplingen må ikke tvinges med håndmakt.
Stram skruene eller mutterne som diagonalt fester
pumpe-motor ensene med et drivmoment, som
beskrevet i følgende tabell.
Drivmoment
Motor type Skrue
Nm
Motor 4" M8 18
Motor 6" M12 100
Motor 8" M16 200
5.2 Tømme rør
Hvis pumpen allerede er koplet til tømme røret og du benytter en
kjede rørtang, stram pumpen ved kun å holde den ved tømme
åpningen.
De gjengede rørene må kobles sammen for slik å kunne tåle at
de skrues løs grunnet start og stopp av pumpen.
Gjeng ved rørene, som skal skrues inn i pumpen, bør ikke være
lengre enn pumpegjeng.
Stram til montert skrue etter å ha skrudd røret inn i tømme
åpningen, for slik å kunne unngå at første stykket av røret løsner,
se Fig. 3.
Når plastikk rør benyttes, bør pumpen sikres ved et ubelastet tau
som festes ved tømme åpningen, se Fig. 3
55
00114016 09/2008
00114016 06/2010
Fig. 3
5.3 Justering av kabler
Bruk kabelklemmer for hver 3. meter for å feste kabelen
til støttetauet
eller til tømmerøret.
Bruk kabelklemmer i plastikk som vist i Fig. 4.
Kutt av resterende del av klemmen når en kabel har blitt
festet.
3mt
3mt
00114019 09/2008
00114019 06/2010
Fig. 4
Strekk ikke de elektriske kablene eller støttetauet i tilfelle
plastikk rør brukes for slik å kunne unngå at den elektriske
kabelen slites. Kabelen kan slites grunnet strekk i plastikk
rørene på grunn av tyngden fra vannet som oppbevares
i disse.

Når enserør brukes må kabelklemmene plasseres før
og etter hver ens.
5.4 Nedsenkning av pumpen
Kontroller at brønnen ikke er tett langs hele dens totale
lengde.
Senk pumpen ned i brønnen og påse at det ikke
forekommer noen skader ved elektrisk kabel.
Merknad: Benytt ikke den elektriske kabelen for å senke
pumpen ned i brønnen.
5.5 Installasjonsdybde
Det dynamiske vann nivået må alltid benne seg
over pumpens oppsugings funksjon, se avsnitt 3.1
Posisjoneringsgrenser og Fig. 5.
Minimums sikkerhetsmargin skal være på 1 meter.
56
Lb
Lc
Lt
Ld
La
Lb
Lc
Lt
Ld
La
00114015 09/2008
kan dette forårsake skader ved pumpens deler og
tilbakeslagsventil.
Hvis pumpens gjennomstrømningsmengde er større enn
mengden i brønnen, anbefales bruk av en beskyttelses
anretning mot tørrdrift.
Uten noen form for beskyttelse mot tørrdrift vil vann nivået
falle grunnet oppsugings funksjon, samt når pumpen
suger ut luft. Over lengre tid vil dette kunne forårsake
skader grunnet manglende nedkjøling og smøring. .
7. VEDLIKEHOLD OG SERVICE
Pumpene er vedlikeholds-frie.
Det er enkelt å utføre service ved alle pumper.
Bruk Service Kit og spesielle verktøy for vedlikehold.
Service håndbok er tilgjengelig ved forespørsel.
Før hvilken som helst operasjon utføres ved
pumpen eller motor, kontroller at strømtilførselen
m
har blitt koblet ut slik at denne ikke kan slå seg
på ved uhell.
8. DEPONERING
Dette produktet eller deler av produktet må
deponeres ved å benytte offentlige lokale eller private
renoveringsselskaper.
00114015 06/2010
Fig. 5
La: Minimum installasjonsdybde
(foreslått: minimum 1 meter).
Lb: Statisk vann nivå
Lc: Dynamisk vann nivå
Ld: Differanse mellom statisk og dynamisk nivå
Lt: Installasjonsdybde
Blokker tømmerør med egnede hengere ved brønn hode.
Løsne opp støttetau og fest det til grunnarbeid.
6. OPPSTART
Når pumpen er installert og senket ned i vann, kan den
startes opp med sluseventil 1/3 lukket
Kontroller rotasjonsretningen som beskrevet i avsnitt 4.2
Kontroll av Rotasjonsretning.
Ved urenheter i vannet må sluseventilen åpnes gradvis
samtidig som vannet renses. Pumpen bør ikke stoppes
helt til vannet er på nytt fullstendig rent, hvis ikke

9. PROBLEMLØSNING
●
Null pumpeytelse
●
Liten pumpeytelse
●
Lite trykk
●
Pumpen starter og stopper for ofte
●
Overskudds strøm absorbert av elektro-pumpe
Mulige årsaker knyttet til pumpen
Løsning
(Motor og panel ekskludert)
██ █ Brønnvann nivå for lavt Vent til brønnvann nivå er gjenopprettet, eller,
hvis mulig, senk pumpen dypere
██ Tett oppsugings skjerm Trekk ut og rengjør montasje
██ Tømmeventil lukket eller blokkert Finn og butt ut defekt ventil
█ █ Tilslammet pumpe Trekk ut og rengjør montasje
██ █ Feil rotasjonsretning Utfør instruksjoner som beskrevet i 4.2
█ █ Pumpe kapasitet overgår brønnkapasitet Bytt ut pumpe med en med lavere kapasitet
█ Lekkasje i systemet Lokaliser og reparer lekkasjer
█ Utslitt pumpe Trekk ut og overhal montasje
█ Feil innstilling ved pressostat eller nivå kontroll Tilpass innstillinger
█ For liten tank Bytt ut tank med en større tank
█ Mekanisk friksjon Trekk ut og overhal pumpe
57

ambiental. A não conformidade com as instruções de
ï PT ð
segurança também levará à perda completa de qualquer
direito de garantia.
Estas instruções de funcionamento contêm informações
Em particular, a inobservância das instruções acima
relevantes e notas preventivas. Por favor, ler o manual
mencionadas pode, por exemplo, resultar em:
cuidadosamente antes da montagem, ligação elétrica e
• Avaria da máquina principal/funções da unidade;
preparação para funcionamento.
• Falha dos procedimentos de manutenção;
• Risco de natureza elétrica, mecânica ou química.
Observações Gerais
Esta bomba foi desenvolvida de acordo com a mais
Disposições regulamentares de segurança
avançada e recente tecnologia e está em conformidade
Todas as instruções de segurança contidas neste manual
com as disposições regulamentares em vigor. Além
deverão ser observadas, bem como qualquer outra
disso, a bomba está sujeita a um controlo de qualidade
regulamentação nacional sobre prevenção de acidentes
permanente.
e qualquer regulamentação interna sobre a utilização de
Estas instruções destinam-se a ajudar a uma melhor
máquinas e sobre segurança no trabalho.
compreensão do funcionamento da bomba e para
mostrar as suas possíveis aplicações.
Instruções de segurança para controlo, manutenção
O manual contém informações importantes e necessárias
e intervenções de funcionamento
a um funcionamento ável e rentável. A conformidade
A pessoa responsável deve certicar-se de que todas
com as instruções de funcionamento é de importância
as intervenções de manutenção, inspeção e instalação
vital para assegurar a abilidade e a longa durabilidade
sejam realizadas por pessoal qualicado e autorizado.
da bomba, bem como para evitar qualquer risco de
Antes de executar estas intervenções, o pessoal deve
acidente devido à utilização inadequada.
estar ciente do conteúdo deste manual.
Esta bomba não deve ser operada para além dos valores
Todas as intervenções nas máquinas devem somente
limite indicados nas especicações técnicas. Qualquer
ser realizadas durante a imobilização total das máquinas
indicação sobre a natureza, a densidade, a temperatura
mencionadas. Observar estritamente o procedimento de
e a caudal do líquido bombeado, bem como a velocidade
paragem descrito neste manual.
de rotação, a pressão e a potência do motor deve ser
As bombas de deslocação de uidos perigosos para a
observada. Todas as outras instruções contidas neste
saúde devem ser descontaminadas.
manual ou na documentação em anexo ao acordo
Imediatamente após a conclusão da intervenção, todos
devem ser igualmente observadas.
os dispositivos de segurança e de proteção devem ser
A placa sinalética traz a série do tipo, os dados do
reinstalados e/ou reativados.
funcionamento principais, e o número de série. Por
favor, citar esta informação em todos os pedidos de
Modicação e fabrico de peças de substituição
intervenção ou assistência e quando da encomenda de
Qualquer reconstrução ou alteração da máquina
peças de substituição.
devem ser autorizadas pelo fabricante antes de serem
executadas. As peças de substituição e acessórios
Disposições regulamentares de segurança
originais fornecidos pelo fabricante são garante de
Este manual contém instruções essenciais que devem
segurança. O fabricante não é, em nenhum modo,
ser observadas durante a instalação, funcionamento e
responsável por danos devidos à utilização de peças de
manutenção. Portanto, este manual de funcionamento
substituição não originais!
deve ser lido e compreendido tanto pela pessoa
encarregada pela montagem da máquina como por
1. ENTREGA E ARMAZENAMENTO
todo o pessoal qualicado designado, pelo responsável
pela instalação, para a colocação da mesma em
1.1 Entrega
funcionamento. Este manual de instruções deve estar
Estas bombas submersíveis são fornecidas nas suas
sempre disponível para consulta no local onde se
próprias embalagens originais onde devem permanecer
encontra a máquina.
até à instalação.
Evitar inclinar a bomba quando não estiver embalada,
Marcação de instruções codicadas no manual
pois isso pode desalinhá-la e causar-lhe danos.
As instruções de segurança contidas neste manual, cuja
A placa de dados solta, fornecida com a bomba, deve
inobservância pode causar riscos às pessoas, estão
ser axada próximo do equipamento de controlo elétrico.
marcadas com o sinal de perigo geral, ou seja:
A bomba não deve sofrer nem impactos nem quedas
(sinal do perigo)
desnecessárias.
m
1.2 Armazenamento e movimentação
Riscos devidos à inobservância das instruções de
Temperatura de armazenamento:
segurança
Bomba: de -20° C a +60° C
A inobservância das instruções de segurança pode
A bomba não deve ser exposta à luz solar direta.
causar danos físicos e materiais, bem como a poluição
58

Se a bomba não tiver sido embalada, deve ser
armazenada horizontalmente, devidamente apoiada, ou
verticalmente, para evitar o seu desalinhamento. Durante
o armazenamento, a bomba pode ser apoiada conforme
mostrado na g. 1
59
00114017 09/2008
3. INSTALAÇÃO / PREPARAÇÃO
3.1 Limites de posicionamento
Se a bomba tem que ser instalada numa posição
onde está acessível às pessoas, qualquer
m
possibilidade de contacto com o acoplamento
deve ser evitada. A bomba pode, por exemplo,
ser equipada com um escudo protetor.
A bomba é adequada tanto para instalação vertical
como horizontal, no entanto, a bomba nunca deve ser
00114017 06/2010
instalada inclinada no sentido descendente, ver g. 2.
Fig. 1
Nota: Durante o funcionamento, o apoio de aspiração
Se a bomba não é utilizada na posição vertical, tanto
deve estar sempre completamente submerso.
a lateral da bomba como a lateral do motor devem ser
Em condições especiais, pode ser necessário submergir
apoiadas. Notar que o centro de gravidade variará de
a bomba ainda mais, dependendo das condições de
acordo com o tipo de bomba.
funcionamento da mesma, bem como dos valores
de temperatura e AALP (Altura de Aspiração Liquida
2. INFORMAÇÕES GERAIS
Positiva).
2.1 Descrição geral
As bombas submersíveis são bombas de estágios
múltiplos que funcionam no sentido de rotação inverso
ao dos ponteiros do relógio (observando do lado da
descarga) diretamente acoplado a motores submersíveis
especiais (de acordo com as normas NEMA).
Código de identicação da bomba
2.2 Aplicações
Estas bombas submersíveis são projetadas para uma
ampla gama de aplicações, tais como o fornecimento
de água para casas particulares, sistemas de água e
indústrias.
Estas bombas são necessárias em caso de rebaixamento
do nível do lençol freático, bem como para aumento de
pressão.
Submergir completamente a bomba abaixo do
nível da água, tanto se estiver instalada horizontal
como verticalmente. Ver parágrafo 3.1 Limites de
posicionamento.
2.3 Líquidos bombeados
Os líquidos bombeados devem estar limpos, ser
compatíveis com os componentes e os materiais da
bomba, sem partículas sólidas ou bras.
O conteúdo máximo de areia na água não deve exceder
50 g/m³. Um teor mais elevado de areia na água reduz a
vida útil da bomba e aumenta o risco de bloqueio.
Ao bombear líquidos com uma densidade superior
à da água, devem usar-se motores com saídas
correspondentemente superiores.
00114018 09/2008
00114018 06/2010
Fig. 2
3.2 Diâmetro da Bomba/Motor
Vericar, no catálogo técnico, o diâmetro máximo da
bomba e da bomba com o motor.
Certicar-se de que o poço não apresente restrições ou
obstáculos à descida da bomba.
3.3 Válvula de retenção na tubagem de
distribuição
A bomba está equipada com uma válvula de retenção
incorporada na abertura de descarga. No entanto,
recomenda-se, especialmente se a bomba estiver a
alimentar diretamente uma rede de distribuição sujeita a
pressão, instalar outra válvula de retenção na tubagem
de distribuição a menos de 10 metros do nível mínimo
dopoço. (Se esta última não for conhecida, usar a
abertura de descarga como nível mínimo).
... 7 N
/
8
1 5
... 7 N
/
8
1 5
... 7 N
/
8
1 5
... 7 N
/
8
1 5
... 7 N
/
8
1 5
... 7 N
/
8
1 5
... 7 N
/
8
1 5
... 7 N
/
8
1 5
... 7 N
/
8
1 5
... 7 N
/
8
1 5
... 7 N
/
8
1 5
... 7 N
/
8
1 5
Version completely in AISI 316
Version vollkommen aus AISI 316
Version complètement en AISI 316
Versiòn completamente en AISI 316
Wersja wykonana całkowicie ze stali AISI 316
Версия полностью из AISI 316
Versione completamente in AISI 316
Version fuldstændigt i AISI 316
Versio AISI 316
Έκδοση πλήρης από AISI 316
Versie volledig van AISI 316
Komplett versjon i AISI 316
Number of stages
Stufennummer
Numéro de stages
Nùmero de estadios
Liczba stopni
Количество ступеней
Numero di stadi
Antal trin
Vaiheiden määrä
Αριθμός βαθμιδών
Aantal trappen
Antall stadier
Rated flow rate m³/h
Nenndurchfluss m³/h
Débit nominal m³/h
Capacidad nominal m³/h
Przepływ znamionowy m³/h
Номинальный расход, м³/ч
Portata nominale m³/h
Nominel flowhastighed m³/h
Nimellinen tilavuusvirta m³/h
Μετρώμενος ρυθμός ροής m³/h
Nominale stromingssnelheid m³/u
Rangert pumpeytelse m³/h
Type of pump
Pumpentyp
Type de pompe
Tipo de bomba
Rodzaj pompy
Тип насоса
Tipo di pompa
Pumpetype
Pumpun tyyppi
Τύπος αντλίας
Type pomp
Type pumpe
Versão completamente em AISI 316
Número de estágios
Taxa do caudal nominal m³/h
... 7 N
Tipo de bomba
/
8
1 5
... 7 N
8
/
1 5
Version helt i AISI 316
Antal steg
Nominell flödeshastighet m³/h
Typ av pump

A sua presença reduz os choques hidráulicos causados
5.2 Tubagem de distribuição
pelos arranques e paragens.
Se a bomba já estiver acoplada à tubagem de distribuição
e se utilizar uma chave de tubos de cadeia, xar bem a
4. LIGAÇÕES ELÉTRICAS
bomba, segurando-a apenas pela abertura de descarga.
Os tubos roscados devem estar de tal forma ligados que
Antes de começar a trabalhar na bomba,
permitam suportar o desenroscar devido ao arranque e
certicar-se de que a fonte de alimentação foi
m
paragem da bomba.
desativada e de que a mesma não pode ser
A rosca do tubo, quem tem de ser aparafusada dentro
ligada acidentalmente.
da bomba, não deverá ser mais comprida do que a rosca
da bomba.
4.1 Observações gerais
Depois de aparafusar o tubo na abertura de descarga,
apertar bem o parafuso montado para evitar o
As ligações elétricas devem ser feitas por um eletricista
afrouxamento da primeira secção do tubo, ver g. 3.
autorizado de acordo com as disposições regulamentares
Quando são utilizados tubos de plástico, a bomba deve
em vigor.
ser segura por uma corda livre a ser xada à abertura de
A tensão de alimentação, a corrente e o cos φ
descarga, ver a Fig. 3.
encontram-se indicados na placa do motor que tem que
ser conservada dentro do painel elétrico.
O motor deve estar ligado à terra e por sua vez
ao painel elétrico.
m
4.2 Controlo do sentido de rotação
Após ligação da bomba à eletricidade, estabelecer o
sentido de rotação da bomba como segue:
1. Ligar a bomba e vericar a cabeça provida de válvula
de fecho não completamente fechada.
2. Parar a bomba e trocar as ligações das duas fases.
3. Ligar a bomba e repetir o ponto 1. com a válvula de
fecho na mesma posição.
4. Parar a bomba.
Comparar os resultados obtidos nos passos 1 e 3. A
ligação correta é a que dá maior altura.
Nota: A bomba não deve ser iniciada até que o suporte
de aspiração não tenha sido completamente submerso.
5. INSTALAÇÃO DA BOMBA
Antes de dar início a qualquer trabalho
na bomba, certicar-se de que a fonte de
m
alimentação tenha sido desativada e de que a
mesma não possa ser ligada acidentalmente.
5.1 Montagem da bomba com o motor
Colocar a bomba sobre o motor, a m de que ambos
estejam posicionados ao longo do mesmo eixo e inserir o
veio do motor na junta do eixo da bomba: o acoplamento
não deve ser forçado.
Aparafusar bem os parafusos ou as porcas que xam,
diagonalmente, as anges do motor da bomba com um
binário motor conforme indicado na tabela a seguir.
Tipo de motor Parafuso Binário motor
Motor 4" M8 18
Motor 6" M12 100
Motor 8" M16 200
60
00114016 09/2008
00114016 06/2010
Fig. 3
5.3 Ajustamento dos cabos
Utilizar aperta-cabos a cada 3 metros para xar o cabo à
corda de suporte ou ao tubo de descarga.
Utilizar aperta-cabos de plástico como mostrado na g. 4.
Após o cabo ter sido xado, cortar o resto do cabo.

