E-Tech VS series 6" submersible pumps – страница 2
Инструкция к Насосу E-Tech VS series 6" submersible pumps

Au cas où le tuyau soit en plastique, il faut laisser le câble
électrique et la corde de soutien pas en tension, pour
éviter que l'extension du tuyau, due au poids de l'eau
contenue, déchire le câble électrique.
Avec des tuyaux bridés, les bandes doivent être
appliquées avant et après les brides.
5.4 Introduction de la pompe
On recommande de vérier que le puits ne soit pas
obstrué dans toute son extension.
Baisser la pompe dans le puits en évitant d'endommager
le câble électrique.
Nota: Ne pas utiliser le câble électrique pour baisser la
pompe.
5.5 Profondeur d'installation
Le niveau dynamique dans le puits doit garantir la
couverture du support de aspiration de la pompe, voir
paragraphe 3.1 Limites de positionnement et Fig. 5.
Le marge minimum de sécurité doit être de 1 mètre.
21
Lb
Lc
Lt
Ld
La
Lb
Lc
Lt
Ld
La
00114015 09/2008
6. DÉMARRAGE
Une fois installée et submergée, on peut démarrer la
pompe avec le robinet fermé de 1/3.
Contrôler le sens de rotation comme décrit au paragraphe
4.2 Contrôle du sens de rotation.
S'il y a des impuretés dans l'eau il faut ouvrir
graduellement le robinet jusqu'à ce que l'eau commence
à s'éclairer. La pompe ne doit pas être arrêtée avant que
l'eau soit devenue propre encore une fois, autrement les
différentes parties de la pompe et la soupape de non
retour peuvent s'endommager.
Si la portée de la pompe est supérieure à celle du puits,
on recommande l'emploi d'un appareil qui protège contre
la marche à sec.
En absence de toute protection contre la marche à
sec, le niveau de l'eau descend au dessous du support
d'aspiration et la pompe aspire de l'air.
Dans le temps, cela provoque des dommages pour
insufsant refroidissement et lubrication.
7. ENTRETIEN ET ASSISTANCE
Les pompes ne demandent pas d’entretiens spéciaux.
Toutes les pompes sont faciles à entretenir.
Utiliser les Service Kits et les outils spéciaux pour
l'entretien.
Le Manuel d'Assistance est disponible sur demande.
Avant de commencer à travailler sur la pompe
ou sur le moteur, il faut s'assurer de avoir
m
débranché la connexion électrique et qu'elle ne
soit pas reconnectée par hasard.
8. ELIMINATION
L'élimination de ce produit, ou de une partie, doit être
réalisée en utilisant des systèmes locaux, publiques ou
privés de récolte déchets.
00114015 06/2010
Fig. 5
La: Profondeur minimum d'installation.
On recommande au minimum 1 mt.
Lb: Niveau statique de l'eau.
Lc: Niveau dynamique de l'eau
Ld: Différence entre niveau statique et
dynamique
Lt: Profondeur d'installation.
Bloquer le tuyau de débit avec des brides appropriées
sur la tête du puits.
Affaiblir la corde de soutien et la xer à la fondation.

9. INVESTIGATION PANNES
●
Débit nul
●
Débit insufsant
●
Pression insufsante
●
La pompe démarre et s'arrête trop fréquemment
●
Excessif courant absorbé par l'électropompe
Possibles causes dues à la pompe
Solution
(Exclus le moteur et le panneau)
██ █ Réduction excessive du niveau du puits Attendre le rétablissement du niveau ou, si
possible, baisser la pompe
██ Grille en aspiration obstruée Extraire le groupe et nettoyer
██ Soupape en débit fermée ou bloquée Rechercher la vanne défectueuse et la
remplacer
█ █ Pompe avec du sable Extraire le groupe et débloquer la pompe
██ █ Sens de rotation mauvais Réaliser ce qui est indiqué au point 4.2
█ █ Capacité pompe trop élevée par rapport à celle du puits Remplacer la pompe avec une autre de plus
petite capacité
█ Pertes dans l'installation Localiser les pertes et réparer
█ Pompe usurée Extraire la pompe et la révisionner
█ Interrupteur de pression ou de niveau mal réglés Régler le calibrage
█ Réservoir trop petit Remplacer le réservoir avec un autre de plus
grande capacité
█ Frictions mécaniques Extraire la pompe et la révisionner
22

Para mencionar algunos ejemplos, la falta de respeto de
ï ES ð
dichas normas puede provocar:
• avería de las funciones principales de la máquina o de
Estas instrucciones para el ejercicio llevan importantes
la instalación,
indicaciones y avertencias. Rogamos leerlas antes
• compromitir las operaciones de mantenimiento,
del montaje, de la conexión eléctrica y de la puesta en
• daños al cuerpo de tipo eléctrico, mecánico o químico.
marcha.
Normas de seguridad
Generalidad
Todas las instrucciones de seguridad presentes en
La bomba ha sido realizada según las técnicas más
este manual deben ser respectadas, así como las
avanzadas y recentes, en el total respeto de las
prescripciones de la ley nacionales por lo que concerne
normas en vigor y está sumitida a un control de calidad
la prevención contra los accidentes y las reglas internas
permanente.
de empleo de las instalaciones y de seguridad en el
Este manual es importante para comprender el
trabajo.
funcionamiento de la bomba y les ayudará a conocer sus
posibles aplicaciones.
Instrucciones de seguridad para los trabajos de
El manual para el empleo contiene recomendaciones
control, mantenimiento y servicio
importantes, necesarias para un funcionamiento
El responsable debe averiguar que todos los trabajos de
adecuado y económico de la bomba. Es necesario
mantenimiento, inspección y montaje sean realizados
respectar dichas recomendaciones, para garantizar la
por personal calicado y autorizado. Antes de proceder
abilidad, la duración y para evitar riesgos de accidente
con dichos trabajos es necesario que dicho personal
derivantes de un empleo no adecuado.
conozca el contenido de este manual.
No hay que utilizar la bomba fuera de los límites descritos
Como regla general, todos los trabajos en las máquinas
en las especicaciones técnicas. Es necesario respectar
deben ser realizados solo bajo parada total de dichas
las indicaciones que concernen el tipo, densidad,
máquinas. Es absolutamente necesario respectar la
temperatura, caudal del liquido bombeado, la velocidad
procedura de parada descrita en este manual.
de rotación, la presión, la potencia del motor y también
Las bombas que envian úidos peligrosos para la salud
todas las otras instrucciones contenidas en este manual
deben ser decontaminadas.
o la documentación anexa al contrato.
Al nal de los trabajos, todos los dispositivos de seguridad
La tarjeta indica la gama, las especicaciones principales
y de protección deben ser montados otra vez y hay que
de servicio y el número de serie. Es importante suministrar
volver a ponerlos en marcha.
dichas indicaciones cuando se pide una intervención o la
asistencia y cuando se piden repuestos.
Modicación y fabricación de repuestos hechos por
el cliente
Normas de seguridad
La reconstrucción o modicación de la máquina debe
Este manual contiene instrucciones importantes a
ser siempre aprobada por el constructor antes de ser
respectar al momento de la instalación, del empleo y del
efectuada. Los repuestos originales y los accesórios
mantenimiento. Este manual debe ser absolutamente
suministrados por el constructor garantizan la seguridad.
consultado por el encargado del montaje y por todo el
El constructor no será en ningun caso responsable de
personal calicado que sigue el funcionamiento indicado
las consecuencias derivantes del empleo de repuestos
por el responsable de instalaciones, Además, este
no originales!
manual debe estar siempre a disposición en el lugar de
empleo de la máquina.
1. ENTREGA Y ALMACENAJE
Identicación de las instrucciones codicadas de
1.1 Entrega
este manual
Las bombas sumergibles se suministran en su embalaje
Las normas de seguridad presentes en este manual,
original en el cual deben quedar hasta el momento de la
cuya no observancia puede causar daños físicos, están
instalación.
marcadas por el símbolo general de peligro.
Hay que hacer cuidado a no sumitir la bomba a exión
(símbolo de seguridad)
cuando ella no está más embalada: ésto podría causar la
salida del eje y daños a la bomba misma.
m
La tarjeta no aplicada que se suministra con la bomba,
debe ser jada al aparato eléctrico de mando.
Riesgos que derivan de la falta de respeto de las
No hay que exponer la bomba a inútiles golpes.
normas de seguridad
La falta de respeto de las normas de seguridad puede
1.2 Almacenaje y movimiento
provocar daños físicos y materiales además de la posible
polución del ambiente. La no observancia de las normas
Temperatura de almacenaje:
de seguridad puede llevar a la pérdida total de los
Bomba: desde -20°C a +60°C
derechos de garantía.
No hay que exponer la bomba a los rayos del sol.
23

Si la bomba no ha sido embalada, hay que guardarla en
un almacén horizontalmente, adecuadamente sustenida
o verticalmente, para evitar la posible salida del eje.
Durante el estocaje, se puede sujetar la bomba como
indicado en Fig. 1.
24
00114017 09/2008
de contacto entre junta y personas, por ejemplo
equipándola con una barrera protectiva.
La bomba es adecuada para instalación sea vertical que
horizontal, nunca con inclinación hacia abajo, Fig. 2.
Nota: Durante el funcionamiento, el soporte de aspiración
debe estar siempre sumergido.
En condiciones especiales puede ser necesario
sumergirlo más abajo según el punto de trabajo,
temperaturas y NPSH de la bomba.
00114017 06/2010
Fig. 1
Si no se utiliza la bomba en posición vertical, hay que
sujetar sea la parte bomba que el motor. Hay que notar
que el baricentro varia según el tipo de bomba.
2. DATOS GENERALES
2.1 Descripción general
Las bombas sumergibles son bombas multiestadio
que funcionan con sentido de rotación antihorario
(observando desde el lado de caudal) directamente
acopladas a especiales motores (según normas NEMA)
sumergibles.
Codigo de identicación bomba
2.2 Aplicaciones
Estas bombas sumergibles han sido proyectadas para
una vasta gama de aplicaciones, como el suministro
hídrico para habitaciones particulares, acueductos e
industrias. Son indispensables en el caso de disminución
del nivel de lámina de agua y para el aumento de presión.
Hay que introducir completamente la bomba bajo el
nivel de agua, sea cuando se instale horizontalmente o
verticalmente. Ver párrafo 3.1 Límites de posicionamiento.
2.3 Líquidos bombeados
Líquidos limpios compatibles con los materiales
constructivos de la bomba, sin partículas sólidas o bras.
El contenido máximo de arena en el agua no debe pasar
los 50 g/m³. Una más alta concentración de arena reduce
la vida de la bomba y aumenta el riesgo de bloqueo.
Si se utiliza la bomba para bombear los líquidos con una
densidad superior al agua, hay que utilizar un motor con
una potencia proporcionalmente mayor.
3. INSTALACIÓN / PREPARACIÓN
3.1 Límites de posicionamiento
Si se instala la bomba en una posición accesible
a las personas, hay que evitar toda posibilidad
m
00114018 09/2008
00114018 06/2010
Fig. 2
3.2 Diámetro de bomba/motor
Compruebe en el catálogo técnico el diámetro máximo
de la bomba y de la bomba con el motor.
Averiguar que el pozo no tenga estrangulamientos u
obstáculos a la bajada de la bomba.
3.3 Valvula de retencion en la tuberia de
caudal
La bomba incorpora una válvula de retención en la boca
de caudal. Se aconseja por lo tanto, especialmente
en las aplicaciones en las cuales la bomba alimenta
directamente una red de distribución en presión, de
instalar otra válvula de retención en la tubería de
caudales a no más de 10 metros desde el nivel mínimo
del pozo ( si no lo se conoce, utilizar la boca de caudal
como nivel mínimo).
Su presencia reduce los choques hidráulicos debidos a
los arranques y a los paros
4. CONEXIONES ELÉCTRICAS
Antes de comenzar a trabajar en la bomba,
hay que asegurarse de haber desconectado la
m
conexión eléctrica y que no se reconecte por
error.
... 7 N
/
8
1 5
... 7 N
/
8
1 5
... 7 N
/
8
1 5
Version completely in AISI 316
Version vollkommen aus AISI 316
Version complètement en AISI 316
Number of stages
Stufennummer
Numéro de stages
Rated flow rate m³/h
Nenndurchfluss m³/h
Débit nominal m³/h
Type of pump
Pumpentyp
Type de pompe
Versiòn completamente en AISI 316
Nùmero de estadios
Capacidad nominal m³/h
... 7 N
Tipo de bomba
/
... 7 N
/
8
1 5
8
1 5
... 7 N
8
/
1 5
... 7 N
8
/
1 5
... 7 N
8
/
1 5
... 7 N
8
/
1 5
... 7 N
8
/
1 5
... 7 N
8
/
1 5
... 7 N
8
/
1 5
... 7 N
8
/
1 5
... 7 N
8
/
1 5
Versione completamente in AISI 316
Wersja wykonana całkowicie ze stali AISI 316
Версия полностью из AISI 316
Version fuldstændigt i AISI 316
Versio AISI 316
Έκδοση πλήρης από AISI 316
Versie volledig van AISI 316
Komplett versjon i AISI 316
Versão completamente em AISI 316
Version helt i AISI 316
Numero di stadi
Liczba stopni
Количество ступеней
Antal trin
Vaiheiden määrä
Αριθμός βαθμιδών
Aantal trappen
Antall stadier
Número de estágios
Antal steg
Portata nominale m³/h
Przepływ znamionowy m³/h
Номинальный расход, м³/ч
Nominel flowhastighed m³/h
Nimellinen tilavuusvirta m³/h
Μετρώμενος ρυθμός ροής m³/h
Nominale stromingssnelheid m³/u
Rangert pumpeytelse m³/h
Taxa do caudal nominal m³/h
Nominell flödeshastighet m³/h
Tipo di pompa
Rodzaj pompy
Тип насоса
Pumpetype
Pumpun tyyppi
Τύπος αντλίας
Type pomp
Type pumpe
Tipo de bomba
Typ av pump

4.1 Generalidad
Después del atornillado del tubo en la boca de caudal,
hay que apretar el tornillo colocado para evitar el
Las conexiones deben ser realizadas por un electricista
aojamiento del primer segmento de tubería, ver Fig. 3.
autorizado según las normas en vigor.
Cuando se utilizan tubos en plástica, asegurar la bomba
La tensión de alimentación, la corriente y el cos φ
con una cuerda no en tensión conectada a la boca de
aparecen en la tarjeta motor a conservar en el cuadro
caudal, como en Fig. 3.
eléctrico.
El motor debe ser colocado en tierra y
conectado al cuadro eléctrico.
m
4.2 Control del sentido de rotación
Una vez conectada a la alimentación eléctrica, determinar
el sentido de rotación como sigue:
1. Arrancar la bomba y controlar la prevalencia
suministrada con compuerta no completamente
cerrada.
2.
Parar la bomba y cambiar las conexiones de dos fases.
3. Arrancar la bomba y repetir el punto 1 con compuerta
en la misma posición.
4. Parar la bomba.
Comparar los resultados obtenidos después de haber
realizado los puntos 1 y 3. La conexión correcta es
aquella que ofrece la máxima prevalencia.
Nota: La bomba no puede ser arrancada hasta que el
soporte de aspiración no haya sido completamente
sumergido.
5. INSTALACIÓN DE LA BOMBA
Antes de comenzar cualquier trabajo en la
bomba o en el motor, asegurarse de haber
m
desconectado la alimentación eléctrica y que no
pueda ser reconectada por error.
5.1 Asemblaje de la bomba con motor
Posicionar la bomba en el motor de manera que sean
en el mismo eje e introducir el árbol motor en la junta
del árbol de la bomba, sin que el acomplamiento sea
forzado.
Sujetar los tornillos o tuercas que jan las bridas bomba-
motor diagonalmente con un par de apriete como
indicado en la tabla aquí bajo.
Par de apriete
Tipo motor Tornillo
Nm
Motor 4" M8 18
Motor 6" M12 100
Motor 8" M16 200
5.2 Tubería de caudal
Si la bomba está ya acoplada a la tubería de caudal y se
utiliza una llave de cadena para tubos, se debe apretar
unicamente sujetándola por la boca de caudal. Los tubos
enroscados deben ser conectados de manera a reducir
la acción de destornillado debida al arranque/parada de
la bomba.
El lete del tubo que se atornilla a la bomba no debe ser
más largo del lete de la bomba.
25
00114016 09/2008
00114016 06/2010
Fig. 3
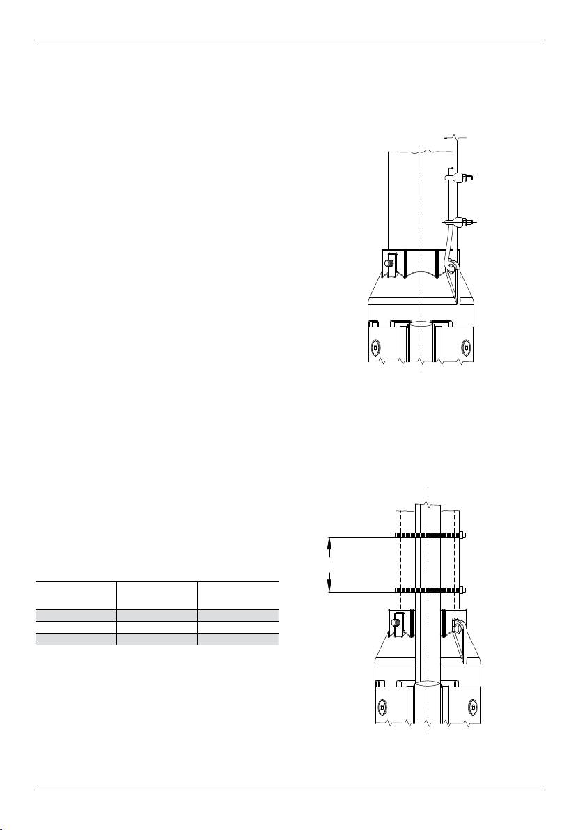
5.3 Arreglo del cable
Para sujetar el cable a la cuerda de sujeción o a la tubería
de caudal hay que utilizar unas fajitas a posicionar cada
3 metros.
Utilizar fajitas en plástica como indicado en Fig. 4. Una
vez bloqueado el cable, cortar la sobresalida de la fajita.
3mt
3mt
00114019 09/2008
00114019 06/2010
Fig. 4

Si el tubo es de plástica, hay que dejar el cable eléctrico
y la cuerda de sujeción no en tensión, para evitar que la
extensión del tubo, debida al peso del agua contenida en
ello, desgarre el cable eléctrico.
Con tubos con bridas las fajitas deben ser aplicadas
antes y después de las bridas.
5.4 Introducción de la bomba
Se recomienda de averiguar que el pozo no sea obstruido
en toda su longitud.
Bajar la bomba en el pozo evitando de dañar el cable
eléctrico.
Nota: No utilizar el cable eléctrico para bajar la bomba.
5.5 Profundidad de instalación
El nivel dinámico en el pozo debe garantizar la cobertura
del soporte de aspiración de la bomba, ver párrafo 3.1
Límites de posicionamiento y Fig. 5.
El margen mínimo de seguridad debe ser de 1 metro.
26
Lb
Lc
Lt
Ld
La
Lb
Lc
Lt
Ld
La
00114015 09/2008
Controlar el sentido de rotación como descrito al párrafo
4.2 Control del sentido de rotación.
Si hay impuridades en el agua es necesario abrir
gradualmente la compuerta hasta que el agua empieza
a aclararse. La bomba no debe ser parada antes que el
agua haya vuelto a ser completamente limpia, porque en
caso contrario las varias partes de la bomba y la válvula
de retención podrían estropearse.
Si la capacidad de la bomba es superior a aquella del
pozo, recomendamos el empleo de un aparato que
protege contra la marcha en seco.
En ausencia de toda protección contra la marcha en
seco, el nivel del agua bajará bajo el soporte aspiración y
la bomba aspirará aire.
En el tiempo, ésto provoca daños debidos a insuciente
enfriamiento y lubricación.
7. MANTENIMIENTO Y ASISTENCIA
Las bombas no solicitan mantenimientos especiales.
Todas las bombas son fáciles a mantener.
Utilizar los Service Kits y el equipo especial para el
mantenimiento.
El Manual de Asistencia es disponible bajo solicitud.
Antes de comenzar todo trabajo en la bomba
o en el motor, hay que asegurarse de haber
m
desconectado la alimentación eléctrica y que no
se pueda reconectar por error.
8. EVACUACIÓN
La evacuación de este producto, o parte de ello, se
debe realizar utilizando los sistemas locales, públicos o
particulares de recogimiento de desechos.
00114015 06/2010
Fig. 5
La: Profundidad mínima de instalación.
Se recomienda al mínimo 1 mt.
Lb: Nivel estático del agua.
Lc: Nivel dinámico del agua
Ld: Diferencia entre nivel estático y dinámico
Lt: Profundidad de instalación.
Bloquear el tubo de caudal con adecuadas bridas en la
cabeza del pozo.
Aojar la cuerda de sujeción y asegurarla a la fundación.
6. ARRANQUE
Una vez instalada y sumergible, se puede arrancar la
bomba con la compuerta cerrada de 1/3.

9. INVESTIGACIÓN AVERÍAS
●
Capacidad nula
●
Capacidad insuciente
●
Presión insuciente
●
La bomba arranca y se para demasiadas veces
●
Excesiva corriente absorbida por la electrobomba
Posibles causas debidas a la bomba
Solución
(Excluso el motor y el cuadro)
██ █ Bajada excesiva del nivel del pozo Esperar el restablecimiento del nivel o, si
posible, bajar la bomba
██ Rejilla en aspiración obstruida Extraer el grupo y limpiar
██ Válvula en caudal cerrada o bloqueada Buscar la válvula defectosa y remplazarla
█ █ Bomba con arena Extraer el grupo, desbloquear la bomba
██ █ Sentido de rotación equivocado Realizar lo indicado al punto 4.2
█ █ Capacidad bomba demasiado alta respecto a aquella
Remplazar la bomba con otra de menor
del pozo
capacidad
█ Pérdidas en la planta Localizar las pérdidas y reparar
█ Bomba desgastada Extraer la bomba y revisionarla
█ Interruptor de presión o de nivel mal ajustados Ajustar la calibración
█ Tanque demasiado pequeño Remplazar el tanque con otro de mayor
capacidad
█ Fricciones mecánicas Extraer la bomba y revisionarla
27

zanieczyszczenie środowiska. Nieprzestrzeganie zasad
ï PL ð
bezpieczeństwa prowadzi również do całkowitej utraty
gwarancji.
Niniejsza instrukcja obsługi zawiera istotne informacje
W szczególności nieprzestrzeganie wyżej wymienionych
i zalecane środki ostrożności. Przed rozpoczęciem
zasad może na przykład doprowadzić do:
montażu, podłączania instalacji elektrycznej i
• awarii maszyny głównej/podzespołów;
uruchomienia należy uważnie zapoznać się z treścią
• naruszenia zasad konserwacji;
instrukcji.
• zagrożenia o charakterze elektrycznym, mechanicznym
lub chemicznym.
Uwagi ogólne
Pompa ta została opracowana według najbardziej
Zasady bezpieczeństwa
zaawansowanych i najnowocześniejszych technologii
Należy przestrzegać wszystkich zasad bezpieczeństwa
oraz zgodnie z obowiązującymi przepisami. Ponadto
zawartych w niniejszej instrukcji oraz wszelkich innych
pompa podlega stałej kontroli jakości.
przepisów krajowych w zakresie zapobiegania wypadkom
Niniejsza instrukcja obsługi ma pomóc w lepszym
pracy oraz wewnętrznych regulacji dotyczących używania
zrozumieniu działania pompy oraz przedstawić jej
urządzeń i bezpieczeństwa pracy.
możliwe zastosowania.
Instrukcja zawiera ważne informacje niezbędne do
Zasady bezpieczeństwa w zakresie kontroli,
niezawodnej i oszczędnej eksploatacji. Przestrzeganie
konserwacji i eksploatacji
instrukcji obsługi jest niezwykle istotne w celu
Osoba odpowiedzialna powinna sprawdzić, czy
zapewnienia niezawodności i długiej żywotności pompy,
wszystkie prace konserwacyjne, kontrolne i instalacyjne
jak również w celu uniknięcia ryzyka awarii na skutek
są wykonywane przez wykwalikowany i upoważniony
niewłaściwego użytkowania.
personel. Przed przystąpieniem do wykonywania tych
Pompa nie może pracować powyżej wartości
prac pracownicy powinni zapoznać się z treścią niniejszej
granicznych określonych w specykacji technicznej.
instrukcji.
Należy przestrzegać wszystkich zaleceń dotyczących
Wszystkie interwencje w maszynach powinny być
rodzaju, gęstości, temperatury i przepływu pompowanej
przeprowadzane tylko po ich całkowitym zatrzymaniu.
cieczy, jak również prędkości obrotowej, ciśnienia i mocy
Należy ściśle przestrzegać procedury wyłączania
silnika. Należy również przestrzegać wszelkich innych
przedstawionej w niniejszej instrukcji.
zaleceń zawartych w niniejszej instrukcji lub w dołączonej
Pompy transportujące płyny niebezpieczne dla zdrowia
dokumentacji.
muszą zostać odkażone.
Na tabliczce znamionowej podano serię modelu, główne
Niezwłocznie po zakończeniu prac należy ponownie
dane eksploatacyjne oraz numer seryjny. Informacje te
zainstalować i/lub ponownie włączyć wszystkie elementy
należy zawsze podawać przy każdym zgłoszeniu serwisu
i urządzenia bezpieczeństwa.
technicznego lub przy zamawianiu części zamiennych.
Modykacja i przerobienie części zamiennych
Zasady bezpieczeństwa
Wszelkie przebudowy lub zmiany maszyny muszą zostać
Niniejsza instrukcja zawiera podstawowe zasady, których
wykonane przez producenta przed ich wdrożeniem.
należy przestrzegać podczas montażu, eksploatacji
Oryginalne części zamienne i osprzęt dostarczany przez
i konserwacji. Z tego względu z niniejszą instrukcją
producenta zapewniają bezpieczeństwo. Producent
powinny się zapoznać zarówno osoby odpowiedzialne
nie ponosi odpowiedzialności za szkody wynikające z
za montaż urządzenia, jak i wszyscy wykwalikowani
zastosowania nieoryginalnych części zamiennych!
pracownicy wyznaczeni przez osoby odpowiedzialne
za instalację do wykonywania tych czynności. Niniejsza
instrukcja obsługi musi być zawsze dostępna w miejscu
użytkowania urządzenia.
Oznaczenia bezpieczeństwa zastosowane w
instrukcji
Zasady bezpieczeństwa zawarte w niniejszej instrukcji,
których nieprzestrzeganie może spowodować
niebezpieczeństwo, oznaczone są znakiem ogólnego
zagrożenia, tj.:
(znak zagrożenia)
m
Zagrożenia związane z nieprzestrzeganiem zasad
bezpieczeństwa
Nieprzestrzeganie zasad bezpieczeństwa może
spowodować szkody osobowe i rzeczowe, a także
28

1. DOSTAWA I PRZECHOWYWANIE
1.1 Dostawa
Pompy głębinowe są dostarczane w oryginalnym
opakowaniu, w którym powinny pozostać do momentu
instalacji. Nie wolno zginać niezapakowanej pompy,
ponieważ może to spowodować jej nieprawidłowe
ustawienie i uszkodzenie.
Tabliczka znamionowa dostarczana luzem wraz z pompą
powinna być zamocowana w pobliżu elektrycznego
sprzętu sterującego.
Pompa nie może być narażona na niepotrzebne
uderzenia i zgniecenia.
1.2 Magazynowanie i postępowanie z
urządzeniem
Temperatura przechowywania:
Pompa: od -20°C do +60°C
Pompa nie powinna być narażona na bezpośrednie
działanie promieni słonecznych.
Jeżeli pompa nie została zapakowana, należy ją
przechowywać w pozycji poziomej i odpowiednio
podeprzeć lub w pozycji pionowej, aby uniemożliwić
przemieszczenie pompy. Podczas przechowywania
pompa może być podparta, jak pokazano na rys. 1.
29
00114017 09/2008
przemysłowe.
Pompy te są niezbędne w przypadku obniżania poziomu
wód gruntowych, jak również do podnoszenia ciśnienia w
systemie wodnym.
Należy zanurzyć pompę całkowicie pod powierzchnią
wody, zarówno w przypadku instalacji w pozycji poziomej,
jak i pionowej. Patrz pkt 3.1 Limity ustawienia.
2.3 Tłoczone ciecze
Tłoczone ciecze muszą być czyste, odpowiednie do
elementów i materiałów pompy oraz pozbawione cząstek
stałych i włókien.
Maksymalna zawartość piasku w wodzie nie może
przekraczać 100 g/m³. Większa zawartość piasku w
wodzie zmniejsza żywotność pompy i zwiększa ryzyko
zatkania.
W przypadku tłoczenia cieczy o gęstości większej od
gęstości wody, należy zastosować silniki o odpowiednio
większej mocy.
3. INSTALACJA / PRZYGOTOWANIE
3.1 Limity ustawienia
Jeżeli pompa ma być zainstalowana w miejscu,
w którym jest ona dostępna dla ludzi, należy
m
zabezpieczyć wszelką możliwość kontaktu
ze sprzęgłem. Pompa może być na przykład
wyposażona w tarczę ochronną.
Pompa nadaje się do montażu zarówno w pionie i
poziomie, jednak nigdy nie powinna być instalowana
00114017 06/2010
pochylona w dół, patrz rys. 2.
Rys. 1
Uwaga: Podczas pracy sekcja ssąca musi być zawsze
Jeżeli pompa nie jest używana w pozycji pionowej,
całkowicie zanurzona.
należy zapewnić odpowiednie podparcie z boku pompy
W szczególnych warunkach może być konieczne
oraz z boku silnika. Należy pamiętać, że środek ciężkości
zanurzenie pompy jeszcze głębiej, w zależności od
będzie się różnić w zależności od rodzaju pompy.
warunków pracy pompy, a także od temperatury i wartości
NPSH (antykawitacyjnej nadwyżki wysokości ssania).
2. DANE OGÓLNE
2.1 Opis ogólny
Pompy głębinowe są pompami wielostopniowymi, których
kierunek obrotów jest przeciwny do ruchu wskazówek
zegara (patrząc od góry pompy) i które są bezpośrednio
połączone ze specjalnymi silnikami głębinowymi (zgodnie
z normami NEMA).
Kod identykacyjny pompy
2.2 Zastosowania
Pompy głębinowe przeznaczone są do szerokiego
zakresu zastosowań, takich jak zaopatrzenie w wodę
domów prywatnych, systemy wodne i zastosowania
00114018 09/2008
00114018 06/2010
Rys. 2
... 7 N
/
8
1 5
... 7 N
/
8
1 5
... 7 N
/
8
1 5
... 7 N
/
8
1 5
Version completely in AISI 316
Version vollkommen aus AISI 316
Version complètement en AISI 316
Versiòn completamente en AISI 316
Number of stages
Stufennummer
Numéro de stages
Nùmero de estadios
Rated flow rate m³/h
Nenndurchfluss m³/h
Débit nominal m³/h
Capacidad nominal m³/h
Type of pump
Pumpentyp
Type de pompe
Tipo de bomba
Wersja wykonana całkowicie ze stali AISI 316
Liczba stopni
Przepływ znamionowy m³/h
... 7 N
Rodzaj pompy
8
/
... 7 N
/
8
1 5
1 5
... 7 N
8
/
1 5
... 7 N
8
/
1 5
... 7 N
8
/
1 5
... 7 N
8
/
1 5
... 7 N
8
/
1 5
... 7 N
8
/
1 5
... 7 N
8
/
1 5
... 7 N
8
/
1 5
Versione completamente in AISI 316
Версия полностью из AISI 316
Version fuldstændigt i AISI 316
Versio AISI 316
Έκδοση πλήρης από AISI 316
Versie volledig van AISI 316
Komplett versjon i AISI 316
Versão completamente em AISI 316
Version helt i AISI 316
Numero di stadi
Количество ступеней
Antal trin
Vaiheiden määrä
Αριθμός βαθμιδών
Aantal trappen
Antall stadier
Número de estágios
Antal steg
Portata nominale m³/h
Номинальный расход, м³/ч
Nominel flowhastighed m³/h
Nimellinen tilavuusvirta m³/h
Μετρώμενος ρυθμός ροής m³/h
Nominale stromingssnelheid m³/u
Rangert pumpeytelse m³/h
Taxa do caudal nominal m³/h
Nominell flödeshastighet m³/h
Tipo di pompa
Тип насоса
Pumpetype
Pumpun tyyppi
Τύπος αντλίας
Type pomp
Type pumpe
Tipo de bomba
Typ av pump

3.2 Średnica pompy/silnika
5.1 Montaż pompy z silnikiem
W katalogu technicznym należy sprawdzić maksymalną
Umieścić pompę na silniku tak, aby oba elementy były
średnicę pompy oraz pompy z silnikiem.
ustawione wzdłuż tej samej osi, następnie włożyć wał
Należy sprawdzić wywiercony otwór przy pomocy
silnika do przegubu wału pompy: nie wolno wciskać
suwmiarki wewnętrznej, aby zapewnić swobodny
sprzęgła.
przepływ.
Dokręcić śruby lub nakrętki mocujące po przekątnej
kołnierze pompy i silnika z momentem napędowym, jak
3.3 Zawór zwrotny na rurociągu tłocznym
podano w poniższej tabeli.
Pompa jest wyposażona we wbudowany zawór zwrotny
Moment
w otworze tłocznym. Zalecamy jednak, zwłaszcza
Rodzaj silnika Śruba
napędowy Nm
jeżeli pompa bezpośrednio zasila sieć dystrybucji pod
ciśnieniem, aby zainstalować drugi zawór zwrotny na
Silnik 4" M8 18
rurociągu tłocznym na wysokości nie więcej niż 10
Silnik 6" M12 100
metrów od minimalnego poziomu studni (jeżeli nie jest
Silnik 8" M16 200
znany minimalny poziom studni, należy przyjąć otwór
tłoczny jako poziom minimum).
5.2 Rurociąg tłoczny
Jego obecność zmniejsza uderzenia hydrauliczne
Jeżeli pompa jest już połączona z rurociągiem tłocznym
powodowane uruchomieniem i zatrzymaniem.
i używany jest klucz łańcuchowy do rur, należy dokręcić
pompę, trzymając ją tylko przy otworze tłocznym.
4. POŁĄCZENIA ELEKTRYCZNE
Rury gwintowane należy połączyć w taki sposób, aby
oddziaływały na odkręcenie w momencie uruchomienia
Przed rozpoczęciem prac przy pompie należy
i zatrzymania pompy.
sprawdzić, czy zasilanie zostało wyłączone i czy
Gwint rury, która ma być przykręcona do pompy, nie
m
nie ma możliwości przypadkowego włączenia.
powinien być dłuższy niż gwint pompy.
Po przykręceniu rury do otworu tłocznego należy dokręcić
4.1 Uwagi ogólne
wkręconą śrubę, aby uniknąć rozluźnienia pierwszego
odcinka rury, patrz rys. 3.
Połączenia elektryczne powinny być wykonane przez
W przypadku stosowania rur z tworzywa sztucznego
wykwalikowanego elektryka zgodnie z obowiązującymi
pompa powinna być zabezpieczona przez luźną linę,
przepisami.
którą należy zamocować do otworu tłocznego, patrz rys.
Napięcie zasilania, prąd i cos φ podane są na tabliczce
3.
znamionowej silnika, którą należy przechowywać w
rozdzielnicy elektrycznej.
Silnik musi być uziemiony i podłączony do
rozdzielnicy elektrycznej.
m
4.2 Kontrola kierunku obrotów
Po podłączeniu pompy do zasilania należy określić
bieżący kierunek obrotów w następujący sposób:
1. Uruchomić pompę i sprawdzić zasilaną głowicę, przy
czym zawór zasuwowy powinien być ustawiony w
pozycji „nie całkowicie zamknięty“.
2. Zatrzymać pompę i zamienić dwa połączenia fazy.
3. Uruchomić pompę i powtórzyć krok 1 z zaworem
zasuwowym w tej samej pozycji.
4. Zatrzymać pompę.
Porównać wyniki uzyskane w kroku 1 i 3. Połączenie,
które zasila najwyższą głowicę, jest prawidłowe.
Uwaga: Nie wolno uruchamiać pompy, dopóki sekcja
ssąca nie zostanie całkowicie zanurzona.
5. INSTALACJA POMPY
Przed rozpoczęciem prac przy pompie
lub silniku należy sprawdzić, czy zasilanie
m
zostało wyłączone i czy nie ma możliwości
przypadkowego włączenia.
30
00114016 09/2008
00114016 06/2010
Rys. 3
5.3 Osprzęt kablowy
Założyć uchwyty kablowe co 3 metry w celu zamocowania
kabla do liny zabezpieczającej lub do rury tłocznej.
Używać uchwytów kablowych z tworzywa sztucznego,
jak pokazano na rys. 4.

Po zamocowaniu kabla należy odciąć pozostałą część
uchwytu.
31
3mt
3mt
00114019 09/2008
00114019 06/2010
Rys. 4
Jeżeli stosowane są rury z tworzywa sztucznego,
nie wolno rozciągać kabla elektrycznego ani liny
zabezpieczającej, aby zapobiec przerwaniu kabla
elektrycznego ze względu na rozciągnięcie rur z
tworzywa sztucznego spowodowane przez zawarte w
nich masy wody.
Jeżeli stosowane są rury kołnierzowe, uchwyty kablowe
muszą być umieszczone przed i po każdym kołnierzu.
5.4 Opuszczanie pompy
Sprawdzić, czy studnia nie jest zatkana wzdłuż całej jej
długości.
Opuścić pompę do studni, zwracając uwagę, aby nie
uszkodzić kabla elektrycznego.
Uwaga: Nie wolno opuszczać pompy za pomocą kabla
elektrycznego.
5.5 Głębokość instalacji
Dynamiczny poziom wody musi być zawsze powyżej
sekcji ssącej pompy, patrz pkt 3.1 Limity ustawienia i rys.
5.
Minimalny margines bezpieczeństwa wynosi 1 metr.
Lb
Lc
Lt
Ld
La
Lb
Lc
Lt
Ld
La
00114015 09/2008
00114015 06/2010
Rys. 5
La: Minimalna głębokość instalacji
(sugerowana: minimum 1 m).
Lb: Statyczny poziom wody
Lc: Dynamiczny poziom wody
Ld: Różnica między poziomem statycznym i dynamicznym
Lt: Głębokość instalacji
Zablokować rurę tłoczną przy pomocy odpowiednich
wieszaków na głowicy studni.
Poluzować linę zabezpieczającą i zamocować ją do
podstawy.
6. ROZRUCH
Po zainstalowaniu i zanurzeniu pompy można ją
uruchomić, zamykając zawór zasuwowy na 1/3.
Sprawdzić kierunek obrotów, jak opisano w punkcie 4.2
Kontrola kierunku obrotów.
Jeżeli w wodzie są nieczystości, należy otwierać zawór
zasuwowy stopniowo, aż woda stanie się jaśniejsza. Nie
zatrzymywać pompy, dopóki woda nie będzie całkowicie
czysta, ponieważ w przeciwnym razie części pompy i
zawór zwrotny mogą ulec uszkodzeniu.
Jeżeli wydajność pompy jest większa niż wydajność
studni, zalecamy użycie urządzenia zabezpieczającego
przed suchobiegiem.
Bez zabezpieczenia przed suchobiegiem poziom wody
spada poniżej sekcji ssącej, a pompa zasysa powietrze.
W dłuższej perspektywie powoduje to uszkodzenia ze
względu na słabe chłodzenie i smarowanie.
7. KONSERWACJA I OBSŁUGA
Pompy nie wymagają konserwacji.
Wszystkie pompy są łatwe w obsłudze.
Używać zestawów serwisowych i specjalnych narzędzi
do konserwacji.

Instrukcja serwisowa jest dostępna na życzenie.
8. UTYLIZACJA
Przed wykonaniem jakiejkolwiek operacji
Ten produkt lub jego elementy podlegają utylizacji
na pompie lub silniku należy sprawdzić, czy
m
przez lokalne, publiczne lub prywatne przedsiębiorstwa
zasilanie jest wyłączone i czy nie ma możliwości
świadczące usługi zbiórki odpadów.
przypadkowego włączenia.
9. WYKRYWANIE I USUWANIE USTEREK
●
Zerowy przepływ
●
Słaby przepływ
●
Słabe ciśnienie
●
Pompa uruchamia się i zatrzymuje zbyt często
●
Nadmierny pobór prądu przez silnik
Możliwe przyczyny związane z pompą
Rozwiązanie
(Nie dotyczy silnika i szafy sterującej)
██ █ Poziom wody w studni jest zbyt niski Poczekać do przywrócenia poziomu wody lub
- jeżeli to możliwe - obniżyć pompę jeszcze
bardziej
██ Osłona sekcji ssącej jest zatkana Wyciągnąć całość i oczyścić
██ Zawór tłoczny jest zamknięty lub zablokowany Znaleźć i wymienić uszkodzony zawór
█ █ Pompa jest zamulona Wyciągnąć całość i oczyścić
██ █ Nieprawidłowy kierunek obrotów Wykonać zalecenia określone w punkcie 4.2
█ █ Wydajność pompy przekracza wydajność studni Wymienić pompę na inną o mniejszej wydajności
█ Wyciek w systemie Zlokalizować wycieki i naprawić
█ Zużyta pompa Wyciągnąć całość i wykonać przegląd
█ Przełącznik ciśnienia lub czujnik poziomu jest
Dostosować ustawienia
nieprawidłowo ustawiony
█ Zbiornik jest zbyt mały Wymienić zbiornik na większy
█ Tarcie mechaniczne Wyciągnąć pompę i wykonać przegląd
32

• fejlfunktion på hovedmaskinens/enhedernes funktioner;
ï DA ð
• fejlbehæftede vedligeholdelsesprocedurer;
• risiko med udspring i elektrisk, mekanisk eller kemisk
Disse betjeningsanvisninger indeholder relevante
baggrund.
oplysninger og sikkerhedsforskrifter. Læs venligst
vejledningen med omhu, inden montering, elektrisk
Sikkerhedsforskrifter
tilslutning og ibrugtagning.
Alle sikkerhedsforskrifterne i denne vejledning skal
overholdes, og det samme gælder for enhver national
Generelle bemærkninger
forskrift om ulykkesforebyggelse, samt alle interne
Denne pumpe er blevet udviklet i overensstemmelse med
forskrifter omkring brug af maskineri og arbejdssikkerhed.
den mest avancerede og nyeste teknologi og opfylder de
gældende forskrifter. Herudover udsættes pumpen for en
Sikkerhedsanvisninger vedrørende eftersyn,
løbende kvalitetskontrol.
vedligeholdelse og betjeningsopgaver
Disse betjeningsanvisninger er beregnet på at formidle en
Personen med ansvar herfor skal kontrollere at alle
hjælp til at opnå en bedre forståelse af hvordan pumpen
vedligeholdelses-, eftersyns- og installationsopgaver
betjenes og vise dennes mulige anvendelsesområder.
udføres af faglært og autoriseret personale. Personalet
Vejledningen indeholder vigtige oplysninger, som er
skal have kendskab til denne vejlednings indhold inden
nødvendige for at opnå en stabil og rentabel drift. Det er
opgaverne påbegyndes.
af vital vigtighed at overholde betjeningsanvisningerne,
Alle indgreb på maskinerne må udelukkende udføres
for at sikre stabilitet og en lang levetid for pumpen samt
under total stilstand på samme maskiner. Overhold
for at undgå risiko på grund af utilsigtet brug.
omhyggeligt den nedlukningsprocedure, som beskrives
Denne pumpe må aldrig anvendes ved værdier som
i denne vejledning.
overskrider de anførte i de tekniske specikationer.
Pumper, som befordrer sundhedsfarlige væsker, skal
Enhver indikation vedrørende den pumpede væskes
dekontamineres.
natur, densitet, temperatur og owhastighed, såvel som
Straks efter fuldført arbejde skal alle
motorens rotationshastighed, tryk og effekt, skal altid
sikkerhedsanordninger og værn geninstalleres og/eller
overholdes. Enhver anden anvisning i denne vejledning
genetableres.
eller i kontraktens medfølgende dokumentation skal
ligeledes overholdes.
Modikation og fremstilling af reservedele
Ydelsesskiltet indeholder serietype, de vigtigste
Enhver rekonstruktion eller ændring af maskinen skal
betjeningsdata, og serienummeret. Oplys venligst altid
være godkendt af fabrikanten inden den udføres.
disse oplysninger ved forespørgsler om indgreb eller
Originale reservedele og tilbehør, leveret af fabrikanten,
assistance og i forbindelse med bestilling af reservedele.
er en garanti for sikkerheden. Fabrikanten kan under
ingen omstændigheder drages til ansvar for skader, som
Sikkerhedsforskrifter
kan henføres til brug af uoriginale reservedele!
Denne vejledning indeholder de essentielle anvisninger,
som skal overholdes under installation, betjening
1. LEVERING OG OPBEVARING
og vedligeholdelse. Af samme årsag skal denne
betjeningshåndbog gennemlæses og forstås både
1.1 Levering
af den person, som har ansvaret for at montere
Disse undervandspumper leveres i den originale
maskinen, samt af alle de faglærte operatører, som den
emballage og bør opbevares heri indtil installation.
ansvarshavende har udpeget til at forestå dens betjening.
Undgå at pumpen bøjes, når den ikke er pakket, da dette
Disse betjeningsvejledninger skal altid stå til rådighed på
kan medføre fejlplacering og skader på selve pumpen.
maskinens brugssted.
Dataskiltet, som leveres sammen med pumpen, skal
fastsættes i nærheden af det elektriske kontroludstyr.
Signalering af kodicerede anvisninger i vejledningen
Pumpen må aldrig udsættes for unødvendige slag og
Sikkerhedsanvisningerne i denne vejledning, hvis
nedfald.
tilsidesættelse kan være årsag til personfarer, er
afmærket med det generelle faretegn, dvs:
1.2 Opbevaring og håndtering
(faretegn)
Opbevarelsestemperatur:
m
Pumpe: fra -20°C til +60°C
Pumpen må aldrig udsættes for direkte sollys.
Risici med udspring i tilsidesættelse af
Hvis pumpen ikke er pakket ind skal denne opbevares
sikkerhedsforskrifter
horisontalt, med en passende understøtning, eller
Tilsidesættelse af sikkerhedsforskrifterne kan forårsage
vertikalt, for at forebygge forkert placering af pumpen.
legemsskader og materielle skader samt miljøforurening.
Under opbevaringen kan pumpen understøttes som vist
Manglende overholdelse af sikkerhedsforskrifterne vil
i Fig. 1.
ligeledes medføre totalt bortfald af garantirettighederne.
Tilsidesættelse af de ovenfor omtalte anvisninger vil for
eksempel kunne medføre:
33

34
00114017 09/2008
Pumpen er egnet til såvel vertikal som horisontal
installation, men pumpen bør aldrig installeres skråt,
hældende nedad, se Fig. 2.
Bemærk: Sugestykket skal altid være helt dækket af
vand under drift.
00114017 06/2010
Under særlige forhold kan det være nødvendigt at sænke
Fig. 1
pumpen endnu længere ned, på grund af pumpens
driftsforhold, såvel som på grund af temperatur og NPSH
Hvis pumpen ikke anvendes i den vertikale position
værdier.
skal såvel pumpesiden samt motorsiden understøttes.
.
Bemærk at tyngdepunktets midte vil variere i funktion af
pumpetypen.
2. GENERELLE DATA
2.1 Generel beskrivelse
Undervandspumperne er ertrinpumper, som arbejder
med en rotation i urets retning (set fra tryksiden) direkte
sammenkoblet med specielle undervandsmotorer (i
overensstemmelse med standarden NEMA).
Pumpens identikationskode
2.2 Brugsområder
Disse undervandspumper er designet til et bredt udvalg
af brugsområder, så som vandforsyning af private
beboelser, vandsystemer og industrier.
Disse pumper er nødvendige i tilfælde af lave
grundvandsniveauer eller ved et lavt vandtryk.
Anbring pumpen helt under vandoveraden såvel ved
horisontal som ved vertikal installation. Jfr. afsnit 3.1
Placeringsbegrænsninger.
2.3 Pumpet væske
De pumpede væsker skal være rene, i overensstemmelse
med pumpens komponenter og materialer, og uden faste
partikler eller bre.
Vandets maksimale sandindhold må ikke overstige
50g/m³. Et højere sandindhold i vandet vil nedsætte
pumpens levetid og forøge risikoen for at den blokerer.
Ved pumpning af væsker med en højere densitet end
vandets, er brug af motorer med et tilsvarende højere
output påkrævet.
3. INSTALLATION / KLARGØRING
3.1 Placeringsbegrænsninger
Hvis pumpen skal installeres i en position,
hvor folk kan komme i nærheden heraf, skal
m
al mulig berøring med koblingen forebygges.
Pumpen skal, for eksempel, udstyres med en
beskyttelsesskærm.
00114018 09/2008
00114018 06/2010
Fig. 2
3.2 Pumpediameter/motor
Kontrollér pumpens maksimale diameter og den
maksimale diameter for pumpen med motor i det tekniske
katalog.
Kontrollér borehullet med en indvendig passer, så
passageobstruktion undgås.
3.3 Kontraventil på forsyningsrørledning
Pumpen er udstyret med en indbygget kontraventil
i forsyningens åbning. Det anbefales dog, især hvis
pumpen direkte forsyner et fordelingsnetværk med
trykpåvirkning, at der installeres endnu en kontraventil
på forsyningsrørledningen, højst 10 meter fra brøndens
minimumsniveau. (Hvis sidstnævnte ikke er kendt
anvendes forsyningens åbning som minimumsniveau).
Tilstedeværelsen heraf reducerer hydraulisk chok på
grund af start og stop.
4. ELEKTRISKE TILSLUTNINGER
Sørg, før indgreb på pumpen påbegyndes, for
at strømforsyningen er blevet koblet fra, og ikke
m
ved et uheld kan slås til igen.
... 7 N
/
8
1 5
... 7 N
/
8
1 5
... 7 N
/
8
1 5
... 7 N
/
8
1 5
... 7 N
/
8
1 5
... 7 N
/
8
1 5
... 7 N
/
8
1 5
Version completely in AISI 316
Version vollkommen aus AISI 316
Version complètement en AISI 316
Versiòn completamente en AISI 316
Wersja wykonana całkowicie ze stali AISI 316
Версия полностью из AISI 316
Versione completamente in AISI 316
Number of stages
Stufennummer
Numéro de stages
Nùmero de estadios
Liczba stopni
Количество ступеней
Numero di stadi
Rated flow rate m³/h
Nenndurchfluss m³/h
Débit nominal m³/h
Capacidad nominal m³/h
Przepływ znamionowy m³/h
Номинальный расход, м³/ч
Portata nominale m³/h
Type of pump
Pumpentyp
Type de pompe
Tipo de bomba
Rodzaj pompy
Тип насоса
Tipo di pompa
Version fuldstændigt i AISI 316
Antal trin
Nominel flowhastighed m³/h
... 7 N
Pumpetype
8
/
1 5
... 7 N
8
/
1 5
... 7 N
8
/
1 5
... 7 N
8
/
1 5
... 7 N
8
/
1 5
... 7 N
8
/
1 5
... 7 N
8
/
1 5
Versio AISI 316
Έκδοση πλήρης από AISI 316
Versie volledig van AISI 316
Komplett versjon i AISI 316
Versão completamente em AISI 316
Version helt i AISI 316
Vaiheiden määrä
Αριθμός βαθμιδών
Aantal trappen
Antall stadier
Número de estágios
Antal steg
Nimellinen tilavuusvirta m³/h
Μετρώμενος ρυθμός ροής m³/h
Nominale stromingssnelheid m³/u
Rangert pumpeytelse m³/h
Taxa do caudal nominal m³/h
Nominell flödeshastighet m³/h
Pumpun tyyppi
Τύπος αντλίας
Type pomp
Type pumpe
Tipo de bomba
Typ av pump

4.1 Generelle bemærkninger
jfr. Fig. 3
De elektriske tilslutninger skal udføres af en godkendt
elektriker i overensstemmelse med de gældende
forskrifter.
Forsyningsspænding, strøm og cos φ er anført på
motorskiltet, som skal være anbragt på el-tavlen.
Motoren skal være jordforbundet og forbundet
til el-tavlen.
m
4.2 Kontrol af rotationsretning
Efter pumpens tilslutning til strømforsyningen fastslås
den nuværende rotationsretning på følgende vis:
1. Start pumpen og kontrollér den ydede løftehøjde for
ikke helt lukket skydeventil.
2. Stop pumpen og byt om på to af fasetilslutningerne.
3. Start pumpen og gentag trin 1 med skydeventilen i
den samme position.
4. Stop pumpen.
Sammenlign resultaterne fra trin 1 og trin 3. Tilslutningen,
som leverer den højeste løftehøjde, er den korrekte.
Bemærk: Pumpen må aldrig startes før sugestykket er
helt dækket af vand.
5. PUMPEINSTALLATION
Sørg for at strømforsyningen er blevet koblet
fra, og ikke ved et uheld kan slås til igen, før
m
indgreb på pumpen eller motoren påbegyndes.
5.1 Pumpens montering med motoren
Placér pumpen på motoren, så disse placeres langs den
samme akse, og sæt motorakslen i pumpeakslens led:
koblingen må ikke forceres.
Stram skruerne eller møtrikkerne, som fastholder pumpe-
motorangerne diagonalt, med et drivmoment som anført
i nedenstående tabel.
Motortype Skrue Drivmoment Nm
Motor 4" M8 18
Motor 6" M12 100
Motor 8" M16 200
5.2 Forsyningsrørledninga
Hvis pumpen allerede er sammenkoblet med
forsyningsrørledningen og der anvendes en kæderørtang, skal
pumpen strammes ved kun at holde den i forsyningsmundingen.
De gevindskårne rør skal forbindes således at de kan
modstå den løsningsvirkning som opstår i forbindelse
med at pumpen startes og stoppes.
Rørets gevindskæring, som skal skrues i pumpen, må
ikke være længere en pumpens gevindskæring.
Efter at røret er blevet skruet fast i forsyningsmundingen
skal låseskruen strammes til, så løsrivning af rørets
første afsnit undgås, jfr. Fig. 3.
Hvis der anvendes plastikrør skal pumpen sikres med en
ubelastet line, som skal fastgøres til forsyningsmundingen,
35
00114016 09/2008
00114016 06/2010
Fig. 3
5.3 Kabelttings
Anvend kabelklips hver 3. meter, til fastgøring af kablet til
understøtningsrebet eller til forsyningsledningen.
Anvend plastikkabelklips som vist i Fig. 4.
Klip klipsens overskydende del af, når kablet er blevet
fastgjort.
3mt
3mt
00114019 09/2008
00114019 06/2010
Fig. 4
Undlad at strække den elektriske ledning og
understøtningsrebet, hvis der anvendes plastikrør, for at
undgå, at der kan opstå brud på den elektriske ledning
fordi plastikrørene strækkes på grund af vægten af

vandmængden heri.
Ved brug af angerør skal kabelklipsene anbringes foran
og bagved hver ange
5.4 Nedsænkning af pumpen
Kontrollér at kilden ikke er tilstoppet i hele dens længde.
Sænk pumpen ned i kilden og sørg omhyggeligt for ikke
at beskadige den elektriske ledning.
Bemærk: Pumpen må aldrig sænkes ned ved hjælp af
den elektriske ledning.
5.5 Installationsdybde
Det dynamiske vandniveau skal altid være
højere end pumpens sugestykke, jfr. afsnit 3.1
Placeringsbegrænsninger og Fig. 5.
Sikkerhedsmarginen skal være mindst 1 meter.
36
Lb
Lc
Lt
Ld
La
Lb
Lc
Lt
Ld
La
00114015 09/2008
stoppes før vandet er helt rent igen, da pumpedelene og
kontraventilen i modsat fald kan tage skade,
Hvis pumpens owhastighed er højere end kildens bør
der anvendes en beskyttelsesanordning mod tørdrift.
Uden en beskyttelse mod tørdrift kan vandniveauet falde
til under sugestykket og pumpen indsuge luft. På længere
sigt vil dette medføre skader på grund af dårlig afkøling
og smøring.
7. VEDLIGEHOLDELSE OG SERVICE
Pumperne er vedligeholdelsesfrie.
Alle pumper er nemme at servicere.
Anvend vores Service Kits og det specielle udstyr til
vedligeholdelse.
Servicevejledningen står til rådighed på forespørgsel
Kontrollér, inden der udføres nogen handling på
pumpen eller motoren, at strømforsyningen er
m
koblet fra og at den ikke kan aktiveres ved et
uheld.
8. BORTSKAFFELSE
Dette produkt eller dele heraf kan bortskaffes gennem den
lokale, offentlige eller private affaldsindsamlingsservice.
00114015 06/2010
Fig. 5
La: Minimumsinstallationsdybde
(anbefalet: minimum 1 m).
Lb: Statisk vandniveau
Lc: Dynamisk vandniveau
Ld: Forskel mellem statisk og dynamisk niveau
Lt: Installationsdybde
Blokér forsyningsrørledningen med de egnede ophæng
på kildehovedet.
Løsn understøtningslinen og fastgør den til fundamentet.
6. OPSTART
Efter installation og nedsænkning af pumpen kan denne
startes med skydeventilen lukket til 1/3.
Kontrollér rotationsretningen som beskrevet i afsnit 4.2
Kontrol af rotationsretning.
Hvis der er urenheder i vandet skal skydeventilen åbnes
gradvist, indtil vandet bliver klarere. Pumpen bør aldrig

9. FEJLFINDING
●
Ingen owhastighed
●
Ringe owhastighed
●
Ringe tryk
●
Pumpen starter og stopper for ofte
●
Overdreven strømabsorbering af elektropumpen
Mulige årsager med relation til pumpen
Løsning
(Ekskluderet motor og tavle)
██ █ For lavt vandniveau Vent indtil vandniveauet er genoprettet eller
sænk, om muligt, pumpen dybere ned
██ Tilstoppet sugeskærm Træk montagesamlingen ud og rens den
██ Lukket eller blokeret forsyningsventil Find frem til den defekte ventil og skift den ud
█ █ Pumpe fyldt med slam Træk montagesamlingen ud og rens den
██ █ Forkert rotationsretning Udfør handlingerne som anvist i 4.2
█ █ Pumpekapacitet overstiger kildekapacitet Udskift pumpen med en af lavere kapacitet
█ Lækage på systemet Find frem til lækagerne og reparér dem
█ Nedslidt pumpe Træk montagesamlingen ud og efterse den
█ Forkert indstillet trykafbryder eller niveau Justér indstilling
█ For lille tank Udskift tanken med en større
█ Mekanisk friktion Træk pumpen ud og efterse den
37

• päälaitteen/yksikön toimintojen häiriö;
ï FI ð
• huoltomenetelmien häiriö;
• sähköinen, mekaaninen tai kemiallinen vaara.
Nämä käyttöohjeet sisältävät tarpeellisia tietoja
ja ennakkovaroituksia. Lue käsikirja huolellisesti
Turvallisuusmääräykset
ennen asentamista, sähköliitäntöjen suorittamista ja
Tulee noudattaa kaikkia tämän käsikirjan
käyttöönottoa.
turvallisuusohjeita kuten myös mitä tahansa muuta
kansallista määräystä, joka liittyy onnettomuuksien
Yleisiä huomioita
ehkäisyyn, sekä kaikkia koneen käyttöön ja
Tämä pumppu on kehitetty uusimman ja kehittyneimmän
työturvallisuuteen liittyviä sisäisiä määräyksiä.
tekniikan mukaisesti sekä noudattaen voimassa
olevia määräyksiä. Lisäksi pumppu on jatkuvan
Turvallisuusohjeet tarkastus-, huolto- ja
laadunvalvonnan alainen.
käyttötoimenpiteitä varten
Näiden käyttöohjeiden tarkoituksena on auttaa sinua
Vastuuhenkilön tulee varmistaa, että kaikki huolto-,
ymmärtämään paremmin pumpun toimintaa sekä näyttää
tarkastus- ja asennustoimenpiteet suorittaa
sen mahdollisia eri sovelluksia.
ammattitaitoinen ja valtuutettu henkilökunta. Ennen
Käsikirja sisältää tärkeitä tietoja, jotka ovat välttämättömiä
näiden töiden suorittamista henkilökunnan tulee olla
luotettavan ja edullisen toiminnan takaamiseksi.
tietoinen tämän käsikirjan sisällöstä.
Käyttöohjeiden noudattaminen on äärimmäisen
Kaikki koneiden toimenpiteet tulee suorittaa ainoastaan
tärkeää, jotta taataan pumpun luotettavuus ja pitkä
mainittujen koneiden täydellisen pysäytyksen
käyttöikä sekä jotta vältetään väärästä käytöstä johtuva
aikana. Noudata tarkasti tämän käsikirjan kuvaamaa
onnettomuusvaara.
pysäytysmenetelmää.
Tätä pumppua ei tule käyttää teknisissä tiedoissa
Terveydelle vaarallisia nesteitä pumppaavat pumput
mainittujen raja-arvojen ulkopuolella. Tulee noudattaa
tulee puhdistaa vaaran aiheuttajista.
kaikkia pumpattavan nesteen laatua, tiheyttä, lämpötilaa
Välittömästi työn loppuun suorittamisen jälkeen kaikki
ja tilavuusvirtaa sekä moottorin pyörimisnopeutta,
turva- ja suojalaitteet tulee asentaa takaisin ja/tai ottaa
painetta ja tehoa koskevia merkintöjä. Lisäksi tulee
käyttöön.
noudattaa kaikkia muita tämän käsikirjan tai sopimuksen
mukana toimitettujen asiakirjojen määräyksiä.
Varaosien muuttaminen ja valmistaminen
Arvokilvestä löytyvät tyypin sarja, tärkeimmät toimintaa
Mikä tahansa koneen uudistamisen tai muuttamisen tulee
koskevat tiedot ja sarjanumero. Muista antaa nämä tiedot
saada valmistajan valtuutus ennen sen suorittamista.
kaikkien toimenpide- ja huoltopyyntöjen yhteydessä sekä
Valmistajan toimittamat alkuperäiset varaosat ja varusteet
varaosia tilattaessa.
takaavat turvallisuuden. Valmistaja ei ole missään
tapauksessa vastuussa vahingoista, jotka aiheutuvat
Turvallisuusmääräykset
muiden kuin alkuperäisten varaosien käytöstä!
Tämä käsikirja sisältää keskeiset ohjeet, joita tulee
noudattaa asennuksen, käytön ja huollon aikana. Sen
vuoksi sekä asennuksesta vastuussa olevan henkilön
että ammattitaitoisen henkilöstön, jonka asennuksen
vastuuhenkilö nimittää sen käyttöön, tulee lukea ja
ymmärtää tämä käytön käsikirja. Nämä käyttöohjeet tulee
säilyttää aina käytettävissä koneen läheisyydessä.
Koodilla merkityt ohjeet käsikirjassa
Tämän käsikirjan ne turvallisuusohjeet, joiden
noudattamatta jättäminen saattaa aiheuttaa
henkilövahinkoja, on merkitty yleisellä varoitusmerkillä
eli:
(varoitusmerkki)
m
Turvallisuusohjeiden noudattamatta jättämisestä
aiheutuvat vaarat
Turvallisuusohjeiden noudattamatta jättäminen saattaa
aiheuttaa fyysisiä ja materiaalisia vahinkoja kuten
myös ympäristön saastumista. Vaatimustenvastaisuus
turvallisuusohjeiden kanssa saattaa johtaa myös
takuuoikeuden täydelliseen menetykseen.
Erityisesti edellä mainittujen ohjeiden noudattamatta
jättäminen saattaa aiheuttaa esimerkiksi seuraavat asiat:
38

1. TOIMITUS JA VARASTOINTI
1.1 Toimitus
Nämä uppopumput toimitetaan niiden alkuperäisessä
pakkauksessa, jossa niitä tulee säilyttää niiden
asennukseen saakka.
Vältä pumpun taivuttamista, kun se ei ole pakkauksessa,
koska tämä voi aiheuttaa linjausvirheen ja vahinkoja itse
pumpulle.
Pumpun mukana toimitettu irrallinen tietokilpi tulee
kiinnittää lähelle sähköistä ohjauslaitteistoa.
Pumppua ei tule altistaa tarpeettomille iskuille tai
kaatumisille.
1.2 Varastointi ja käsittely
Varastointilämpötil:
Pumppu: od -20°C do +60°C
Pumppua ei tule jättää suoraan auringonvaloon.
Jos pumppu ei ole pakattu, se tulee varastoida riittävästi
tuettuun vaakasuoraan tai pystysuoraan asentoon, jotta
estetään pumpun linjausvirheet. Varastoinnin aikana
pumppua voidaan tukea kuten osoitetaan, Kuva 1.
39
00114017 09/2008
2.3 Pumpattavat nesteet
Pumpattavien nesteiden tulee olla puhtaita, yhteensopivia
pumpun osien ja materiaalien kanssa ja niissä ei saa olla
kiinteitä partikkeleita tai kuituja.
Hiekan maksimimäärä vedessä ei saa ylittää 50 g/m³.
Suurempi hiekkapitoisuus vedessä alentaa pumpun
käyttöikää ja lisää tukkeutumisvaaraa.
Kun pumpataan nesteitä, joiden tiheys on korkeampi
kuin veden, tulee käyttää vastaavasti tehokkaampia
moottoreita
3. ASENNUS / VALMISTELU
3.1 Sijoittamisen rajoitukset
Jos pumppu tulee asentaa asentoon, jossa se
voi joutua kosketuksiin ihmisten kanssa, tulee
m
estää kaikki mahdollisuudet joutua kosketuksiin
kytkennän kanssa. Pumppu voidaan esimerkiksi
varustaa suojakilvellä.
Pumppu sopii sekä pystysuoraa että vaakasuoraa
asennusta varten, pumppua ei saa kuitenkaan koskaan
asentaa alaspäin kallelleen, katso kuva 2.
Muistutus: Toimenpiteiden aikana imun tukialustan tulee
olla kokonaan upotettu.
Erityisolosuhteissa saattaa olla välttämätöntä,
että pumppu upotetaan vielä syvemmälle pumpun
00114017 06/2010
toimintaolosuhteista sekä myös lämpötilasta ja NPSH-
Kuva 1
arvoista riippuen.
Jos pumppua ei käytetä pystyasennossa, sekä pumpun
puoli että moottorin puoli tulee tukea. Huomaa, että
massakeskipiste vaihtelee pumpun tyypin mukaan.
2. YLEISIÄ TIETOJA
2.1 Yleinen kuvaus
Uppopumput ovat monivaiheisia pumppuja, jotka
toimivat vastapäiseen kiertosuuntaan (tarkasteltaessa
painepuolelta) suoraan kytkettyinä erityisiin
uppomoottoreihin (NEMA-standardien mukaisesti).
Pumpun tunnistuskoodi
2.2 Sovellukset
Nämä uppopumput on suunniteltu hyvin erilaisia
sovelluksia varten, ne sopivat yksityistä vesihuoltoa
varten, vesilaitoksille ja teollisuudelle.
Nämä pumput ovat tarpeellisia pohjaveden tason
laskiessa kuten myös paineen lisääntyessä.
Upota pumppu kokonaan veden alle sekä asennettaessa
vaaka-asentoon että pysty-asentoon. Katso kappale 3.1
Sijoittamisen rajoitukset
00114018 09/2008
00114018 06/2010
Kuva 2
... 7 N
/
8
1 5
... 7 N
/
8
1 5
... 7 N
/
8
1 5
... 7 N
/
8
1 5
... 7 N
/
8
1 5
... 7 N
/
8
1 5
... 7 N
/
8
1 5
... 7 N
/
8
1 5
Version completely in AISI 316
Version vollkommen aus AISI 316
Version complètement en AISI 316
Versiòn completamente en AISI 316
Wersja wykonana całkowicie ze stali AISI 316
Версия полностью из AISI 316
Versione completamente in AISI 316
Version fuldstændigt i AISI 316
Number of stages
Stufennummer
Numéro de stages
Nùmero de estadios
Liczba stopni
Количество ступеней
Numero di stadi
Antal trin
Rated flow rate m³/h
Nenndurchfluss m³/h
Débit nominal m³/h
Capacidad nominal m³/h
Przepływ znamionowy m³/h
Номинальный расход, м³/ч
Portata nominale m³/h
Nominel flowhastighed m³/h
Type of pump
Pumpentyp
Type de pompe
Tipo de bomba
Rodzaj pompy
Тип насоса
Tipo di pompa
Pumpetype
Versio AISI 316
Vaiheiden määrä
Nimellinen tilavuusvirta m³/h
... 7 N
Pumpun tyyppi
/
8
1 5
... 7 N
8
/
1 5
... 7 N
8
/
1 5
... 7 N
8
/
1 5
... 7 N
8
/
1 5
... 7 N
8
/
1 5
Έκδοση πλήρης από AISI 316
Versie volledig van AISI 316
Komplett versjon i AISI 316
Versão completamente em AISI 316
Version helt i AISI 316
Αριθμός βαθμιδών
Aantal trappen
Antall stadier
Número de estágios
Antal steg
Μετρώμενος ρυθμός ροής m³/h
Nominale stromingssnelheid m³/u
Rangert pumpeytelse m³/h
Taxa do caudal nominal m³/h
Nominell flödeshastighet m³/h
Τύπος αντλίας
Type pomp
Type pumpe
Tipo de bomba
Typ av pump

3.2 Pumpun/moottorin halkaisija
liitoskappaleeseen: kytkentää ei tule pakottaa.
Kiristä ruuvit tai mutterit, jotka kiinnittävät diagonaalisesti
Tarkista teknisten tietojen luettelosta maksimihalkaisija
pumpun/moottorin laipat seuraavan taulukon mukaisella
pelkälle pumpulle sekä pumpulle moottorin kanssa.
vääntömomentilla.
Tarkista kairausreikä jalkaharpilla varmistaaksesi
porakaivon ongelmattoman läpiviennin.
Vääntömomentti
Moottorin tyyppi Ruuvi
Nm
3.3 Takaiskuventtiili painepuolen putkistossa
Moottori 4" M8 18
Pumppu on varustettu sisäisellä takaiskuventtiilillä
Moottori 6" M12 100
painepuolen aukossa. Kuitenkin jos pumppu syöttää
Moottori 8" M16 200
suoraan paineenalaista jakeluverkkoa, suositellaan
asentamaan toinen takaiskuventtiili paineputkistoon
5.2 Paineputkisto
korkeintaan kuin 10 metriä kaivon minimitasosta. (Jos
tätä jälkimmäistä ei tunneta, käytä painepuolen aukkoa
Jos pumppu on jo kytketty painepuolen putkistoon ja
minimitasona).
käytät ketjuavainta, kiristä pumppu pitäen siitä kiinni
Sen läsnäolo vähentää hydraulisia iskuja käynnistysten
ainoastaan painepuolen aukosta.
ja pysäytysten yhteydessä.
Kierteiset putket tulee liittää siten, että tuetaan aina
pumpun käynnistyksestä ja pysäytyksestä aiheutuvaa
4. SÄHKÖLIITÄNNÄT
avautuvaa vaikutusta.
Pumppuun ruuvattavan putken kierteen ei tulisi olla
Ennen pumpun käsittelyä varmista, että
pidempi kuin pumpun kierteen.
virransyöttö on katkaistu ja ettei sitä voida
Sen jälkeen kun olet ruuvannut putken painepuolen
m
vahingossa kytkeä päälle.
aukkoon, kiristä ruuvi, joka on asennettu sen
välttämiseksi, että putken ensimmäinen osa löystyy,
katso Kuva 3.
4.1 Yleisiä huomioita
Kun käytetään muoviputkia, pumppu tulee varmistaa
Sähköliitännät tulee antaa tehtäväksi valtuutetulle
kuormittamattomalla köydellä, joka kiinnitetään
ammattitaitoiselle sähköasentajalle voimassa olevien
painepuolen aukkoon, katso 3.
määräysten mukaisesti.
Syöttöjännite, virta ja cos φ mainitaan moottorikilvessä,
joka tulee säilyttää sähkötaulussa.
Moottori tulee maadoittaa ja liittää sähkötauluunj.
m
4.2 Kiertosuunnan tarkistus
Kun pumppu on liitetty virransyöttöön, tarkista
tämänhetkinen kiertosuunta seuraavasti:
1. Käynnistä pumppu ja tarkista toimitettu nostokorkeus
luistiventtiili ei kokonaan suljettuna.
2. Pysäytä pumppu ja vaihda keskenään vaiheliitännät.
3. Käynnistä pumppu ja toista vaihe 1. luistiventtiili
samassa asennossa.
4. Pysäytä pumppu.
Vertaa vaiheessa 1 ja 3 saatuja tuloksia. Liitäntä, joka
aikaansaa korkeimman nostokorkeuden, on oikea.
Muistutus: Pumppua ei saa käynnistää ennen kuin imun
tukialusta on kokonaan upotettu.
5. PUMPUN ASENNUS
Ennen minkään toimenpiteen suorittamista
pumpulle tai moottorille varmista, että
m
virransyöttö on katkaistu ja ettei sitä voida
vahingossa kytkeä päälle.
5.1 Pumpun asennus moottorin kanssa
Sijoita pumppu moottorin päälle, jotta ne voidaan sijoittaa
samalle akselille ja laita moottorin akseli pumpun akselin
40
00114016 09/2008
00114016 06/2010
Kuva 3
5.3 Johdon kiinnitys
Käytä kaapelinpuristimia joka 3 metrin päässä johdon
kiinnittämiseksi tukiköyteen tai painepuolen putkeen.
Käytä muovisia kaapelinpuristimia kuten osoitetaan,
Kuva 4.
Kun johto on kiinnitetty, leikkaa pois puristimen
ylimääräinen osa.

