Samsung RSH5ZLBG: instruction
Class: Refrigerators and freezers
Type:
Manual for Samsung RSH5ZLBG

Refrigerator
user manual
English
This manual is made with 100 % recycled paper.
imagine the possibilities
Thank you for purchasing this Samsung product.
Free Standing Appliance
DA99-02318N-12.indb 1DA99-02318N-12.indb 1 14. 7. 16. 8:3114. 7. 16. 8:31

safety information
SAFETY INFORMATION
maintaining, and operating
your appliance.
• Before operating the
• Because these following
appliance, please read this
operating instructions
manual thoroughly and
cover various models, the
retain it at a safe place near
characteristics of your
the appliance for your future
refrigerator may differ slightly
reference.
from those described in this
• Use this appliance only for
manual and not all warning
its intended purpose as
signs may be applicable.
described in this instruction
If you have any questions
manual. This appliance is not
or concerns, contact your
intended for use by persons
nearest service center or fi nd
(including children) with
help and information online
reduced physical, sensory
at www.samsung.com.
or mental capabilities, or
• This appliance can be
lack of experience and
used by children aged
knowledge, unless they have
from 8 years and above
been given supervision or
and persons with reduced
instruction concerning use
physical, sensory or mental
of the appliance by a person
capabilities or lack of
responsible for their safety.
experience and knowledge
• Warnings and Important
if they have been given
Safety Instructions in this
supervision or instruction
manual do not cover all
concerning use of the
possible conditions and
appliance in a safe way and
situations that may occur. It
understand the hazards
is your responsibility to use
involved.
common sense, caution,
Children shall not play with
and care when installing,
2_ safety information
DA99-02318N-12.indb Sec2:2DA99-02318N-12.indb Sec2:2 14. 7. 16. 8:3114. 7. 16. 8:31

the appliance.
Call the contact
Cleaning and user
center for help.
maintenance shall not be
Note.
made by children without
supervision.
These warning signs are here
to prevent injury to you and
others.
Important safety symbols
Please follow them carefully.
and precautions :
After reading this section, keep
Hazards or unsafe
it in a safe place for future
practices that may
reference.
result in severe
WARNING
personal injury or
death.
CE Notice
This product has been
Hazards or unsafe
determined to be in
practices that may
result in minor
compliance with the Low
CAUTION
personal injury or
Voltage Directive(2006/95/
property damage.
EC), the Electromagnetic
Compatibility Directive
Do NOT attempt.
(2004/108/EC), RoHS Directive
Do NOT disassemble.
(2011/65/EU), Commission
Do NOT touch.
Delegated Regulation (EU)
Follow directions
No 1060/2010 and the Eco-
carefully.
Design Directive(2009/125/EC)
Unplug the power
implemented by Regulation (EC)
plug from the wall
No 643/2009 of the European
socket.
Union. (For products sold in
Make sure the
European Countries only)
machine is grounded
to prevent electric
shock.
safety information _3
DA99-02318N-12.indb Sec2:3DA99-02318N-12.indb Sec2:3 14. 7. 16. 8:3114. 7. 16. 8:31

SEVERE WARNING
be sited must be 1m³ in
WARNING
SIGNS FOR
size for every 8g of R-600a
TRANSPORTATION
refrigerant inside the
AND SITE
appliance. The amount of
refrigerant in your particular
• When transporting and
appliance is shown on the
installing the appliance,
identifi cation plate inside the
care should be taken to
appliance.
ensure that no parts of
the refrigerating circuit
are damaged.
SEVERE WARNING
WARNING
- Refrigerant leaking from the
SIGNS FOR
pipe work could ignite or
INSTALLATION
cause an eye injury. If a leak
• Do not install the
is detected, avoid any naked
refrigerator in a damp
fl ames or potential sources
place or place where it
of ignition and air the room
may come in contact
in which the appliance is
with water.
standing for several minutes.
- Deteriorated insulation of
• In order to avoid the creation
electrical parts may cause
of a fl ammable gas-air
an electric shock or fi re.
mixture if a leak in the
• Do not place this refrigerator
refrigerating circuit occurs,
in direct sunlight or expose
the size of the room in which
to the heat from stoves,
the appliance may be sited
room heaters or other
depends on the amount of
appliance.
refrigerant used.
• Do not plug several
• Never start up an appliance
appliances into the same
showing any signs of
multiple power board.
damage. If in doubt, consult
The refrigerator should
your dealer. The room
always be plugged into its
where the refrigerator will
4_ safety information
DA99-02318N-12.indb Sec2:4DA99-02318N-12.indb Sec2:4 14. 7. 16. 8:3114. 7. 16. 8:31

own individual electrical
manual before it is
which has a voltage rating
used.
that matched the rating
• Connect the power plug in
plate.
proper position with the cord
- This provides the best
hanging down.
performance and also
- If you connect the power
prevents overloading house
plug upside down, wire can
wiring circuits, which could
get cut off and cause fi re or
cause a fi re hazard from
electric shock.
overheated wires.
• Make sure that the power
• If the wall socket is loose, do
plug is not squashed or
not insert the power plug.
damaged by the back of the
- There is a risk of electric
refrigerator.
shock of fi re.
• When moving the
• Do not use a cord that
refrigerator, be careful not
shows cracks or abrasion
to roll over or damage the
damage along its length or
power cord.
at either end.
- This constitutes a fi re
• Do not bend the power cord
hazard.
excessively or place heavy
• The appliance must be
articles on it.
positioned so that the plug is
• Do not use aerosols near the
accessible after installation.
refrigerator.
- Aerosols used near the
• The refrigerator must
refrigerator may cause an
be grounded.
explosion or fi re.
- You must ground the
refrigerator to prevent any
power leakages or electric
• This refrigerator must
shocks caused by current
be properly installed
leakage from the refrigerator.
and located in
accordance with the
• Never use gas pipes,
safety information _5
DA99-02318N-12.indb Sec2:5DA99-02318N-12.indb Sec2:5 14. 7. 16. 8:3114. 7. 16. 8:31

telephone lines or other
SEVERE WARNING
WARNING
potential lightening rods as
SIGNS FOR USING
ground.
• Do not insert the power
- Improper use of the ground
plug with wet hands.
plug can result in electric
• Do not store articles on the
shock.
top of the appliance.
- When you open or close the
• If the power cord is
door, the articles may fall
damaged, have it
and cause personal injury
replaced immediately
and/or material damage.
by the manufacturer or
• Do not put items fi lled with
its service agent.
water on the refrigerator.
• The fuse on the refrigerator
- If spilled, there is a risk of fi re
must be changed by a
or electric shock.
qualifi ed technician or
• Do not let children hang on
service company.
the door.
- Failing to do so may result
- Failure to do so may cause
in electric shock or personal
serious personal injury.
injury.
• Do not leave the doors of
the refrigerator open while
CAUTION SIGNS FOR
the refrigerator is unattended
CAUTION
INSTALLATION
and do not let children enter
inside of the refrigerator.
• Keep ventilation
- There is a risk of children
opening in the
entrapment and serious
appliance enclosure or
personal injury because of
mounting structure
low temperature.
clear of obstruction.
• Never put fi ngers or other
• Allow the appliance to stand
objects into the dispenser
for 2 hours after installation.
hole.
6_ safety information
DA99-02318N-12.indb Sec2:6DA99-02318N-12.indb Sec2:6 14. 7. 16. 8:3114. 7. 16. 8:31

- Failure to do so may cause
odors.
personal injury or material
- This may result in electric
damage.
shock or fi re.
• Do not store volatile or
• Do not touch the inside walls
fl ammable substances such
of the freezer or products
as benzene, thinner, alcohol,
stored in the freezer with wet
ether or LP gas in the
hands.
refrigerator.
- This may cause frostbite.
- The storage of any of
• Do not use mechanical
such products may cause
devices or any other means
explosions.
to accelerate the defrosting
• Do not store low
process, other than those
temperature-sensitive
recommended by the
pharmaceuticals products,
manufacturer.
scientifi c materials or other
• Do not damage the
low temperature-sensitive
refrigerant circuit.
products in the refrigerator.
- Products that require
• This product is
strict temperature controls
intended only for the
must not be stored in the
storage of food in a
refrigerator.
domestic environment.
• Do not place or use
• Bottles should be stored
electrical appliance inside
tightly together so that they
the refrigerator, unless they
do not fall out.
are of a type recommended
• If a gas leak is detected,
by the manufacturer.
avoid any naked fl ames or
• Do not use a hair dryer
potential sources of ignition
to dry the inside of the
and air the room in which
refrigerator. Do not place
the appliance is standing for
a lighted candle in the
several minutes.
refrigerator for removing bad
• Use only the LED Lamps
safety information _7
DA99-02318N-12.indb Sec2:7DA99-02318N-12.indb Sec2:7 14. 7. 16. 8:3114. 7. 16. 8:31

provided by manufacturer or
when changing the light,
service agents.
contact service agents.
• Children should be
• If the products equipped
supervised to ensure that
with LED Lamp, do not
they do not play with and/or
disassemble Lamp Cover
climb into the appliance.
and LED Lamp by yourself.
- Please contact your service
• Do not disassemble or
agents.
repair the refrigerator
• If any dust or water is in
by yourself.
refrigerator, pull out power
- You run risk of causing a
plug and contact your
fi re, malfunction and/or
Samsung Electronics service
personal injury. In case of
center.
malfunction, please contact
- There is a risk of fi re.
your service agents.
CAUTION SIGNS FOR
• If the appliance
CAUTION
USING
generates a strange
noise, a burning or
• To get best
smell or smoke, unplug
performance of
the power plug
product,
immediately and
- Do not place foods too
contact your nearest
closely in front of the vents
service center.
at the rear of the appliance
- Failing to do so may result
as it can obstruct free air
in electric or fi re hazards.
circulation in the refrigerator
Keep ventilation opening in
compartment.
the appliance enclosure or
- Wrap the food up properly
mounting structure clear of
or place it in airtight
obstruction.
containers before put it into
• If you experience diffi culty
the refrigerator.
8_ safety information
DA99-02318N-12.indb Sec2:8DA99-02318N-12.indb Sec2:8 14. 7. 16. 8:3114. 7. 16. 8:31

• Do not place carbonated
may break and cause water
or fi zzy drinks in the freezer
leakage.
compartment. Do not put
- Do not put any newly
bottles or glass containers in
introduced food for freezing
the freezer.
near to already food.
- When the contents freeze,
• Please observe maximum
the glass may break and
storage times and expiry
cause personal injury and
dates of frozen goods.
property damage.
• Fill water tank, ice tray,
• Do not change the
water cubes only with
functionality of or modify the
potable water.
refrigerator.
• Use only the ice maker
- Changes or modifi cations
provided with the
may result in personal
refrigerator.
injury and/or property
• The water supply to this
damage. Any changes or
refrigerator must only be
modifi cations performed
installed/connected by a
by a 3rd party on this
suitably qualifi ed person and
completed appliance is
connect to a potable water
neither covered under
supply only.
Samsung warranty service,
• In order to operate the
nor is Samsung responsible
ice maker properly, water
for safety issues and
pressure of 138 ~ 862
damages that result from
3
kPa(1.4~8.8kgf/cm
) is
3rd party modifi cations.
required.
• Do not block air holes.
• Do not apply strong shock
- If the air holes are blocked,
or excessive force onto the
especially with a plastic bag,
surface of glass.
the refrigerator can be over
- Broken glass may result
cooled. If this cooling period
in a personal injury and/or
lasts too long, the water fi lter
property damage.
safety information _9
DA99-02318N-12.indb Sec2:9DA99-02318N-12.indb Sec2:9 14. 7. 16. 8:3114. 7. 16. 8:31

CAUTION SIGNS
CAUTION
FOR CLEANING AND
• Unplug the refrigerator
MAINTENANCE
before cleaning and
performing
• Do not directly spray
maintenance.
water inside or outside
the refrigerator.
- There is a risk of fi re or
SEVERE WARNING
WARNING
electric shock.
SIGNS FOR
• Do not spray infl ammable
DISPOSAL
gas near the refrigerator.
• Ensure that none of the
- There is a risk of explosion
pipes on the back of
or fi re.
the appliance are
• Do not spray cleaning products
damaged prior to
directly on the display.
disposal.
- Printed letters on the display
• R-600a or R-134a is used
may come off.
as a refrigerant. Check the
• Remove any foreign matter
compressor label on the rear
or dust from the power
of the appliance or the rating
plug pins. But do not use
label inside the refrigerator
a wet or damp cloth when
to see which refrigerant is
cleaning the plug, remove
used for your refrigerator.
any foreign material or dust
When this product contains
from the power plug pins.
fl ammable gas (Refrigerant
- Otherwise there is a risk of
R-600a), contact your local
fi re or electric shock.
authority in regard to safe
• Never put fi ngers or other
disposal of this product.
objects into the dispenser
Cyclopentane is used as a
hole and ice chute.
insulation blowing gas. The
- It may cause personal injury
gases in insulation material
or material damage.
require special disposal
10_ safety information
DA99-02318N-12.indb Sec2:10DA99-02318N-12.indb Sec2:10 14. 7. 16. 8:3114. 7. 16. 8:31

procedure. Please contact
supervised to ensure that
your local authorities in
they do not play with the old
regard to the environmentally
appliance.
safe disposal of this product.
• Please dispose of the
Ensure that none of the
packaging material for this
pipes on the back of the
product in an
environmentally
appliances are damaged
friendly manner.
prior to disposal. The pipes
shall be broke in the open
ADDITIONAL TIPS
space.
FOR PROPER
• If the appliance contains iso-
USAGE
butane refrigerant (R-600a),
a natural gas with high
• In the event of a power
environmental compatibility
failure, call the local offi ce
that is, however, also
of your Electricity Company
combustible. When
and ask how long it is going
transporting and installing
to last.
the appliance, care should
- Most power failures that are
be taken to ensure that no
corrected within an hour
parts of the refrigerating
or two will not affect your
circuit are damaged.
refrigerator temperatures.
• When disposing of
However, you should
this product or other
minimize the number of door
refrigerators, remove the
openings while the power is off.
door/door seals, door latch
- Should the power failure last
so that small children or
more than 24 hours, remove
animals cannot become
all frozen food.
trapped inside. Leave the
• If keys are provided with the
shelves in place so that
refrigerator, the keys should
children may not easily climb
be kept out of the reach of
inside. Children should be
children and not in vicinity of
safety information _11
DA99-02318N-12.indb Sec2:11DA99-02318N-12.indb Sec2:11 14. 7. 16. 8:3114. 7. 16. 8:31

the appliance.
defrosting can shorten its
• The appliance might
storage life.
not operate consistently
Saving Energy Tips
(possibility of temperature
becoming too warm in
- Install the appliance in
refrigerator) when sited
a cool, dry room with
for an extended period of
adequate ventilation.
time below the cold end of
Ensure that it is not exposed
the range of temperature
to direct sunlight and never
for which the refrigerating
put it near a direct source of
appliance is designed.
heat (radiator, for example).
• Do not store food which
- Never block any vents or
spoils easily at low
grilles on the appliance.
temperature, such as
- Allow warm food to cool
bananas, melons.
down before placing it in the
• Your appliance is frost free,
appliance.
which means there is no
- Put frozen food in the
need to manually defrost
refrigerator to thaw.
your appliance, as this will
You can then use the low
be carried out automatically.
temperatures of the frozen
• Temperature rising during
products to cool food in the
the defrost can comply with
refrigerator.
ISO requirement. But if you
- Do not keep the door of
want to prevent an undue
the appliance open for too
rise in the temperature of the
long when putting food in or
frozen food while defrosting
taking food out.
the appliance, please wrap
The shorter time for which
the frozen food in several
the door is open, the less ice
layers of newspaper.
will form in the freezer.
• Any increase in temperature
- Clean the rear of the
of frozen food during
refrigerator regularly.
12_ safety information
DA99-02318N-12.indb Sec2:12DA99-02318N-12.indb Sec2:12 14. 7. 16. 8:3114. 7. 16. 8:31

Dust increases energy
This appliance is intended
consumption.
to be used in household and
similar applications such as
- Do not set temperature
colder than necessary.
- staff kitchen areas in shops,
- Ensure suffi cient air exhaust
offi ces and other working
at the refrigerator base
environments;
and at the back wall of the
- farm houses and by
refrigerator.
clients in hotels, motels
Do not cover air vent
and other residential type
openings.
environments;
- Allow clearance to the right,
- bed and breakfast type
left, back and top when
environments;
installing.
- catering and similar non-
This will help reduce power
retail applications.
consumption and keep your
energy bills lower.
- For the most effi cient use
of energy, please keep the
all inner fi ttings such as
baskets, drawers, shelves
on the position supplied by
manufacturer.
contents
SETTING UP YOUR SIDE-BY-SIDE REFRIGERATOR ·····································14
OPERATING THE SAMSUNG SIDE-BY-SIDE REFRIGERATOR ······················23
TROUBLESHOOTING ·······················································································29
safety information _13
DA99-02318N-12.indb Sec2:13DA99-02318N-12.indb Sec2:13 14. 7. 16. 8:3114. 7. 16. 8:31

setting up your side-by-side
refrigerator
GETTING READY TO INSTALL
When moving your refrigerator
THE REFRIGERATOR
To prevent fl oor damage be sure the front levelling
legs are in the up position (above the fl oor). Refer to
Congratulations on the purchase of your Samsung
‘Levelling the refrigerator’ in the manual (at page 18).
Side-By-Side Refrigerator. We hope you will enjoy the
To protect the fi nish of the fl ooring, place the
many state-of-the-art features and effi ciencies that
protection sheet such as packing carton under the
this new appliance has to offer.
refrigerator.
Selecting the best location for the
refrigerator
• Select a location with easy access to the water
supply.
• Select a location without direct exposure to
sunlight.
• Select a location with level (or nearly level) fl ooring.
Leg
Screw Driver
• Select a location with enough space for the
refrigerator doors to open easily.
• Overall space required in use. Refer to drawing and
When installing, servicing or cleaning
dimension as below.
behind the refrigerator, be sure to pull the
CAUTION
• Please ensure that appliance can be moved freely
unit straight out and push back in straight
in the event of maintenance & service.
after fi nishing.
25mm
50
25mm
at least 50mm
at least 50mm
14_ setting up
DA99-02318N-12.indb Sec4:14DA99-02318N-12.indb Sec4:14 14. 7. 16. 8:3114. 7. 16. 8:31

1. With the Freezer door closed, remove the upper
REMOVING THE REFRIGERATOR
hinge cover
1
using a screwdriver, and then
DOORS
disconnect the wires by gently pulling them apart
2
.
If your entrance won’t allow the refrigerator to pass
easily through it, you can remove the doors.
1. Removing the Front Leg Cover
1
01 SETTING UP
2
First, open both the freezer and refrigerator doors,
and then take off the front leg cover by removing the
three screws counter-clockwise.
2. Remove hinge screws
3
and the ground screw
4
by turning counter-clockwise, and take off the
upper hinge
5
. Be careful that the door does not
fall on you as you are removing it
4
3
Separating the Water Supply Line from
5
the Refrigerator
1. Remove the water line by pressing the coupler
1
and pulling the water line
2
away.
3. Next, remove the door from the lower hinge
6
by
carefully lifting the door straight up
7
.
7
6
Be careful not to pinch the water tubing and
wire harness on the door.
1
4. Remove the lower hinge
8
using a hex wrench.
2
Do not cut the water line. Gently separate it from
the coupler.
2. Removing the freezer door
A few things to mention fi rst.
• Make sure that you lift the door straight up so the
hinges are not bent or broken.
• Be careful not to pinch the water tubing and wire
harness on the door.
• Place doors on a protected surface to prevent
scratching or damage.
setting up _15
DA99-02318N-12.indb Sec4:15DA99-02318N-12.indb Sec4:15 14. 7. 16. 8:3114. 7. 16. 8:31

Removing the Fridge Door
REATTACHING THE
1. With the door closed, remove the upper hinge
REFRIGERATOR DOORS
cover
1
using a screwdriver.
Once you have safely placed your refrigerator where
you plan for it to stay, it is time to put the doors back
on.
1
Reattaching the Freezer Door
1. Replace the freezer door by inserting the water
line
1
back into the lower corner of the door and
then into the hole on the lower hinge
2
.
Gently pull the water line back down so that it runs
2. Remove hinge screws
2
and the ground screw
straight, with no kinks or bends.
3
by turning counter-clockwise, and take off the
upper hinge
4
. Be careful that the door does not
fall on you as you are removing it
1
2
2
3
4
2. Insert the upper hinge shaft
3
into the hole on
the corner of the freezer door
4
.
Make sure the hinge is level between the upper
3. Remove the door from the lower hinge
5
by
hinge hole
5
and the hole of the cabinet
6
and
lifting the door straight up
6
.
reattach the hinge screws
7
and ground screw
8
by turning in a clockwise direction.
Reconnect the wires.
8
7
4. Remove the lower hinge
7
from the bracket
8
5
3
by gently lifting the lower hinge upwards.
6
4
3. Place the front part of the upper hinge cover
9
on the front of the upper hinge
10
and reattach
with the screw.
10
9
16_ setting up
DA99-02318N-12.indb Sec4:16DA99-02318N-12.indb Sec4:16 14. 7. 16. 8:3114. 7. 16. 8:31

Reattaching the Fridge Door
Reattaching the Water Supply Line
2
1. Insert the lower hinge
1
back into the lower
1. Insert the water line
into the coupler
1
.
hinge bracket
2
.
1
01 SETTING UP
2
2. Fit the hole in the corner of the fridge door
3
over the lower hinge
4
.
1
3
2
2. The Water Line must be fully Inserted to the center
of transparent coupler to prevent water leakage
from the dispenser.
4
3. Insert the clip in the install pack and check that it
holds the line fi rmly.
3. Insert the upper hinge shaft
5
into the hole
on the hinge
6
. Make sure the hinge is level
between the upper hinge hole
7
and the hole on
the top of the cabinet
8
. Then, reattach hinge
screws
9
and the ground screw
10
by turning it
in a clock wise direction.
Reattaching the Front Leg Cover
Before attaching the cover, check water
connector for leakage.
Replace the front leg cover by turning the three
screws clockwise, as shown in the fi gure.
4. Place the front part of the upper hinge cover
11
on the front of the upper hinge
12
and reattach it
with the screw.
12
11
setting up _17
Center of transparent
Center of transparent
coupler
coupler
clip A (1/4”)
clip A (1/4”)
(6.35mm)
(6.35mm)
DA99-02318N-12.indb Sec4:17DA99-02318N-12.indb Sec4:17 14. 7. 16. 8:3114. 7. 16. 8:31

LEVELLING THE REFRIGERATOR
MAKING MINOR ADJUSTMENTS
TO THE DOORS
Now that the doors are back on the refrigerator, you
will want to make sure the refrigerator is level so you
Remember, a level refrigerator is necessary for getting
can then make fi nal adjustments. If the refrigerator
the doors perfectly even. If you need help, review the
is not level, it will not be possible to get the doors
previous section on levelling the refrigerator.
perfectly even.
When the door of the freezer
The front of the refrigerator is also adjustable.
is higher than the fridge
When the Freezer door is lower than
the fridge
Insert a fl at-blade screwdriver into a notch on the
Adjustment
Leg, turn it clockwise or counter clockwise to level
part
the freezer.
In the process for adjusting both the doors is the
same. Open the doors and adjust them, one at a
time, as follows:
1. Unscrew the
nut
1
from the
3
Wrench
lower hinge until
2
Bolt
it reaches the
1
Leg
Nut
upper end of the
Screw Driver
bolt
2
.
When you release the nut
1
, make sure that
When the Freezer door is higher than
you use the Allen wrench provided
3
to loosen
the fridge
the bolt
2
in a counter-clockwise direction.
Insert a fl at-blade screwdriver into a notch on the
You should then be able to unscrew the nut
1
Leg, turn it clockwise or counter clockwise to level
with your fi ngers.
the fridge.
2. Adjust the
height difference
3
Wrench
between the
2
Bolt
doors by turning
the bolt
2
clockwise
or counter clockwise
.
Leg
When you turn clockwise
, the door will
Screw Driver
move up.
Refer to the next section for the best way to
3. After adjusting
make very minor adjustments to the doors.
the doors, turn
3
Wrench
the nut
1
2
Bolt
clockwise
1
Nut
until it reaches
the lower end
of the bolt, then tighten the bolt again with the
wrench
3
to fi x the nut in place
1
.
If you do not secure the nut fi rmly, the bolt may
release.
18_ setting up
DA99-02318N-12.indb Sec4:18DA99-02318N-12.indb Sec4:18 14. 7. 16. 8:3114. 7. 16. 8:31

4. After connecting the water supply to the water
CHECKING THE WATER
fi lter, turn your main water supply back on and
DISPENSER LINE (OPTIONAL)
dispense about 1l to clear and prime the water
A water dispenser is just one of the helpful features
fi lter.
on your new Samsung refrigerator. To help promote
better health, the Samsung water fi lter removes
unwanted particles from your water. However, it
does not sterilize or destroy microorganisms. You
01 SETTING UP
will need to purchase a water purifying system to do
that. In order for the icemaker to operate properly,
water pressure of 138 ~862 kPa is required. Under
normal conditions, a 170 cc paper cup can be fi lled
in 10 seconds. If the refrigerator is installed in an area
with low water pressure (below 138 kPa), you can
install a booster pump to compensate for the low
pressure. Make sure the water storage tank inside
the refrigerator is properly fi lled. To do this, press the
water dispenser lever until the water runs from the
water outlet.
Connecting the water line to the
refrigerator
Water Line installation Kits are included. You can
1. Remove the dust cap from the water line on the
fi nd it in one of the freezer drawers.
rear of the unit and fi t a compression nut from the
The new hose-sets supplied with the appliance
install kit.
are to be used and that old hose-sets should not
2. Remove the water pipe from the install kit and fi t a
be reused.
compression nut to one end.
3. Join the two pipes together using the compression
joint from the install kit ensuring that the joint is
INSTALLING THE WATER
water tight.
4. Join the other end of the install pipe to the main
DISPENSER LINE
water supply and turn on the water to check for
For Interior model
leaks.
Parts for water line Installation
2
Pipe connector
1
Water line fi xer and screws
3
Water line
4
Water Filter
Only connect the water line to a drinkable water
Connecting to the water supply line
source.
1. fi rst, shut off the main water supply line.
If you have to repair or disassemble the water
2. locate the nearest cold, drinking water line.
line, cut off 6.5mm of the plastic tubing to
3. follow the Water line Installation Instructions in the
make sure you get a snug, leak-free connection.
installation kit.
Before being used, the leakage in these
places should be examined
CAUTION
The water line must be connected
to the cold water pipe. If it is connected
to the hot water pipe, it may cause the
purifi er to malfunction.
setting up _19
Close Main
Close Main
Water pipe
Water pipe
Close Main
Close Main
Water pipe
Water pipe
NO GAP
NO GAP
Remove
Remove
cap
cap
Water Line
Water Line
from unit
from unit
Water Line
Water Line
from Kit
from Kit
No gap
No gap
Loosen a
Loosen a
CAUTION
DA99-02318N-12.indb Sec4:19DA99-02318N-12.indb Sec4:19 14. 7. 16. 8:3114. 7. 16. 8:31

• Samsung Warranty does not cover WATER LINE
INSTALLING THE WATER
INSTALLATION.
DISPENSER LINE
• The cost of connection to a water supply is at the
customer expense, unless included in the delivery
For Exterior model
charge (refer to the delivery agreement with the
Parts for water line Installation
seller)
• Please contact Plumber or Authorised Installer for
the installation if needed.
• If Water leakage occurs due to improper
installation, Please contact installer.
Pipe connector
Water line fi xer and screws
Water line
Purifi er lock-clip
Purifi er
Connecting to the water supply line
Connect the water pipe with coupler and tap.
1. Close the main water tap.
2. Connect coupler “A” to the tap.
CAUTION
The water line must be connected to the cold
water pipe. If it is connected to the hot water
pipe, it may cause the purifi er to malfunction.
WARRANTY INFORMATION
This water line installation is not covered by the
refrigerator or ice maker manufacturer’s warranty.
Follow these instructions carefully to minimise the risk of
expensive water damage.
Note:
If the coupler does not fi t on the current tap, go
the nearest authorised service dealer and purchase the
right couplers fi ttings.
select the location where the purifi er is to
install. (Model with the purifi er)
- If you wish to reassemble the water inlet and outlet
sides of the purifi er during purifi er installation, see
the reference illustration.
- Cut the water line attached to the purifi er to the
appropriate place after measuring the distance
between the purifi er and the cold water tap.
20_ setting up
DA99-02318N-12.indb Sec4:20DA99-02318N-12.indb Sec4:20 14. 7. 16. 8:3114. 7. 16. 8:31

COUPLER “A”
Remove any residual matter inside the
purifi er. (Model with the purifi er)
- Open the main water tap to check whether water
is running through the water tube on the water inlet
side of the purifi er.
TAP
- If water does not come out through the line, check
LINE OUTLET
whether the tap is open.
01 SETTING UP
- Leave the tap open until clean water is running
out and any residual matter that built up during
manufacturing has been removed.
SIDE OF
90 degree
PURIFIER
CAUTION
PURIFIER WATER
WATER INLET
COUPLER
SIDE OF PURIFIER
Replacement Instructions
1. Shut off water supply.
Attach the purifi er lock-clip.
2. Note the Flow direction on the fi lter.
- Hold the purifi er lock-clip in the appropriate position
3. Insert water supply tube into the inlet side of the
(under the sink for example) and fi x it tightly into
fi lter until the tube stop.
place where to screw.
Secure the purifi er in position.
- Fix the purifi er in position, as shown in the fi gure on
4. After inserting tube, put together the clip strongly.
the right.
The Clip fi x the tube.
5. Turn on the water and check for leaks. If leaks
occur, repeat step 1,2,3,4. If leaks persist,
discontinue use and call your supporting dealer.
6. Flush fi lter for 5 minutes before use.
setting up _21
Locking Clip
Locking Clip
Insert Locking Clip After
Insert Locking Clip After
tube seated
OUTLET SIDE
OF PURIFIER
PURIFIER
tube seated
WATER LINE
WATER
FLOW DIRECTION
PURIFIER LOCK-CLIP
WATER SUPPLY
PERMEAT
INLET SIDE
Note : You must also ensure
that the cut is square
and not at any sort
of angle as this could
cause a leak
WATER TUBE
PURIFIER LOCK-CLIP
PURIFIER
DA99-02318N-12.indb Sec4:21DA99-02318N-12.indb Sec4:21 14. 7. 16. 8:3114. 7. 16. 8:31

Connect the water line to the
refrigerator.
Check the amount of water supplied
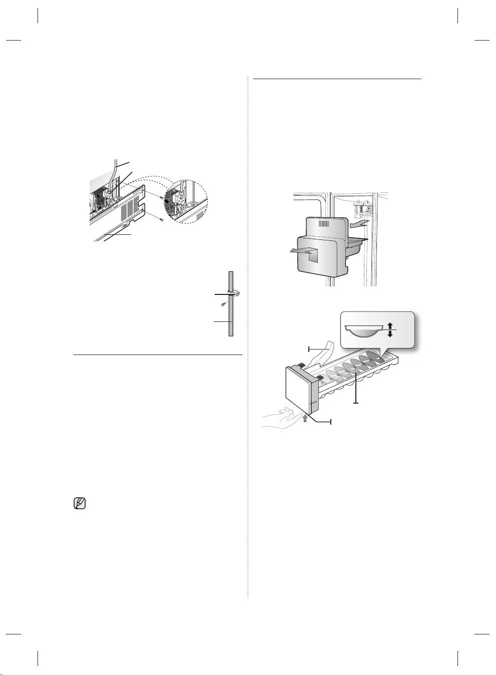
- Remove the compressor cover of the refrigerator.
to the ice tray.
- Connect the water line to the valve, as shown in
1. Lift up the icemaker cover and gently pull out.
the fi gure.
- When connected, check if there is any leakage.
2. When you press the Test button for 3 seconds,
the ice cube container is fi lled with water from the
If any, repeat the connection.
water supply tap. Check to make sure the amount
- Reattach the compressor cover of the refrigerator.
of water is correct (see the illustration below).
WATER LINE
If the water level is too low, the ice cubes will be
CONNECTION NUT
small. This is a water pressure problem from with
in the main water pipes, not the refrigerator.
1
INSTRUCTIONS
COMPRESSOR COVER OF
REFRIGERATOR
Secure the water line.
- Using clip ”A”, fi x the water
line to the wall (the back of
refrigerator).
CLIP A
Ice maker
- When the water line is
secure, make sure whether
the water line is not
WATER LINE
excessively bent, pinched or
squashed.
Feeler Arm
Removing any residual matter inside
the water supply line after installing
fi lter.
Check the water level
1. Turn ON the main water supply & turn OFF the
valve to the water supply line.
Test button
2. Run water through the dispenser until the water
2
runs clear (approx. 1L). This will clean the water
supply system and remove air from the lines.
3. Additional fl ushing may be required in some
households.
4. Open the refrigerator door and make sure there
are no water leaks coming from the water fi lter.
A newly installed water fi lter cartridge may cause
water to briefl y spurt from the water dispenser.
This is due to air getting into the line. It should
pose no problem to operation.
22_ setting up
DA99-02318N-12.indb Sec4:22DA99-02318N-12.indb Sec4:22 14. 7. 16. 8:3114. 7. 16. 8:31

operating the SAMSUNG
side-by-side refrigerator
02 OPERATING
OPERATING THE REFRIGERATOR
3
ICE
Use this button to choose
TYPE
Cubed, Crushed or to turn
USING THE CONTROL PANEL /
BUTTON
the Ice feature off.
DIGITAL DISPLAY
When you change the fi lter,
COOLSELECT MODEL
4
FILTER
press this button for 3
CHANGE
seconds to reset the fi lter
5
BUTTON
1
schedule.
6
2
If you are going on vacation
7
or business trip or you do not
3
need to use the refrigerator,
press the Vacation button.
4
DISPENSER MODEL
When you select vacation
button for fridge compartment
5
VACATION
off, display LED of Vacation
BUTTON
will be on.
It is strongly requested
to remove foods in the
fresh-food compartment
and do not leave the
NORMAL MODEL
door open when you
select Vacation function.
By pressing the Vacation
button and the Fridge button
simultaneously for 3 seconds,
6
CHILD
all buttons will be locked. The
LOCK
Water dispenser lever and
When not in use the temperature display will
FUNCTION
the Ice lever will not work
turn off, this is normal.
either. To cancel this function,
Press these two buttons for 3
Speeds up the time needed
seconds again.
to freeze products in the
freezer. This can be helpful
Press the Fridge button to
1
POWER
if you need to quickly freeze
set the fridge to your desired
FREEZE
items that spoil easily or if the
7
FRIDGE
temperature.
BUTTON
temperature in the freezer
BUTTON
You can set temperature
has warmed dramatically (For
between 1°C and 7°C (34°F
example, if the door was left
and 45°F).
open).
When you use Power Freeze the energy
Press the Freezer button
consumption of the refrigerator will increase.
to set the freezer to your
2
Remember to turn it off when you don’t
FREEZER
desired temperature, You can
need it and return the freezer to your original
BUTTON
set the temperature between
temperature setting.
-14°C (8°F) and -25ºC (-14°F).
If you need to freeze large amount of food stuff,
activate Power Freeze function at least 24 hours
before.
operating _23
DA99-02318N-12.indb 2:23DA99-02318N-12.indb 2:23 14. 7. 16. 8:3114. 7. 16. 8:31

CONTROLLING THE
USING THE ICE AND COLD
TEMPERATURE
WATER DISPENSER
Press the Ice Type button to select the type of ice
CONTROLLING THE FREEZER
you want
TEMPERATURE
The freezer temperature can be set between -14°C
(8°F) and -25ºC (-14°F) to suit your particular needs.
Press the Freezer button repeatedly until the desired
temperature is shown in the temperature display.
Keep in mind that foods like ice cream may melt at
-16ºC (4°F).
The temperature display will move sequentially from
-14°C (8°F) and -25ºC (-14°F). When the display
reaches -14ºC (8°F), it will begin again at -25ºC
(-14°F).
Five seconds after the new temperature is set the
display will again show the actual current freezer
No Ice
temperature. However, this number will change as
Select this if you want to
turn off the icemaker
the Freezer adjusts to the new temperature.
The top and bottom guards in the freezer of
this model are the two star sections, so the
Ice is made in cubes. When you select
“Crushed”, the icemaker grinds the ice cubes
temperature in two star sections are slightly
into crushed ice.
higher than other freezer compartment.
CONTROLLING THE FRIDGE
Dispensing ice
TEMPERATURE
Place your glass underneath the ice outlet and push
The refrigerator temperature can be set between 7ºC
gently against the ice dispenser lever with your glass.
(46°F) and 1ºC (34°F) to suit your particular
Make sure the glass is in line with the dispenser to
needs. Press the Fridge button repeatedly until the
prevent the ice from bouncing out.
desired temperature is shown in the temperature
display. The temperature control process for the
Fridge works just like the Freezer process. Press the
Using the Water Dispenser
Fridge button to set your desired temperature. After
Place a glass underneath the water outlet and
a few seconds, the Fridge will begin tracking towards
push gently against the water dispenser lever with
the newly set temperature. This will be refl ected in the
your glass. Make sure the glass is in line with the
digital display.
dispenser to prevent the water from splashing out.
The temperature of the freezer or the refrigerator
may rise from opening the doors too frequently,
or if a large amount of warm or hot food is
placed in either side.
This may cause the digital display to blink.
Once the freezer and refrigerator return to their
normal set temperatures the blinking will stop.
If the blinking continues, you may need to “reset”
the refrigerator.
Try unplugging the appliance, wait about 10
minutes and then plug back in.
24_ operating
DA99-02318N-12.indb 2:24DA99-02318N-12.indb 2:24 14. 7. 16. 8:3114. 7. 16. 8:31

• Do not put your fi ngers, hands or any
( 9 ) MOVING SHELF (OPTIONAL)
other unsuitable objects in the chute or
WARNING
COOLSELECT ZONE DRAWER
ice-maker bucket.
( 10 )
(OPTIONAL)
- It may result in personal injury or material
( 11 ) FRUIT & VEGETABLE DRAWER
damage.
• Never put fi nger or any other objects in
the dispenser opening.
To get more space, you can remove the top
- It may cause injury.
02 OPERATING
freezer drawer since it does not affect thermal
• Use only the ice maker provided with the
and mechanical characteristics. A declared
refrigerator.
storage volume of frozen food storage
• The water supply to this refrigerator must
compartment is calculated with this drawer
only be installed/connected by a suitably
removed.
qualifi ed person and connect to a potable
water supply only.
• In order to operate the ice maker properly,
water pressure of 138 ~ 862 Kpa is
required.
USING THE COOLSELECT
• If you have a long vacation or business
ZONE™ DRAWER (OPTIONAL)
trip and won’t use water or ice
CAUTION
dispensers, close the water valve.
- Otherwise, water leakage may occur.
Quick Cool
• Wipe excess moisture from the inside and
• You can use the Quick Cool feature with the
leave the doors open.
TM
CoolSelect Zone
.
- Otherwise, odor and mold may develop.
• “Quick Cool” allows 1~3 canned beverages to cool
within 60 min.
• To cancel this function, press the “Quick Cool”
TM
button again. CoolSelect Zone
returns to the
previous temperature.
• When “Quick Cool” ends, it returns to the “Cool”
temperature setting.
Thaw
• Drips loss and quality deterioration of meats
reduces the freshness of foods.
•
After “Thaw” is selected, warm and cold air is
TM
alternately supplied into the CoolSelect Zone
Drawer.
• Depending on the weight of meat, thawing time
can be selected for 4 hrs, 6 hrs, 10 hrs, and 12 hrs
sequentially.
TM
• When “Thaw” ends, CoolSelect Zone
display
returns to “Zero Zone” condition.
• When “Thaw “ ends, there are no juice in the meats
( 1 ) ICE CHUTE
and they are half-freezed condition so it is easy to
cut them for cooking.
( 2 ) SHELVES
• To cancel this option, press any button except
( 3 ) DOOR BINS
“Thaw”.
( 4 ) DRAWERS
• The approximate thawing time of meat and fi sh are
( 5 ) DAIRY BIN
shown below. (Based on 1inch thickness)
( 6 ) WINE SHELF (OPTIONAL)
( 7 ) EGG TRAY
( 8 ) SHELF (OPTIONAL)
operating _25
(1)
(1)
(3)
(3)
(4)
(4)
(2)
(2)
(5)
(5)
(7)
(7)
(8)
(8)
(6)
(6)
(8)
(8)
(9)
(9)
(10)
(10)
(11)
(11)
DA99-02318N-12.indb 2:25DA99-02318N-12.indb 2:25 14. 7. 16. 8:3114. 7. 16. 8:31

REMOVING THE FREEZER
THAW TIME WEIGHT
ACCESSORIES
4hours 363g (0.8Ib)
Cleaning and rearranging the interior of the freezer is
6hours 590g (1.3Ib)
simple.
10hours 771g (1.7Ib)
1. Remove the Glass shelf by pulling the shelf out as
12hours 1000g (2.2Ib)
far as it will go. Then, gently lift it up and remove it.
Depending on the size and thickness of meat
and fi sh, the thawing time may vary.
The above weight represents the total weight of
TM
food in the CoolSelect Zone
Drawer.
Ex) The total thawing time for 400g frozen beef
2. Remove the door bin by holding the door bin with
and 600g frozen chicken will be 10 hours.
both hands and then gently lift it up.
With the “Thaw” option, food which is not
TM
needed to thaw in the CoolSelect Zone
WARNING
Drawer should be removed.
Zero Zone (0ºC)
• When “Zero Zone” is chosen, the temperature
TM
of the CoolSelect Zone
Drawer is kept at 0 ºC
3. Remove the Plastic drawer by pulling it out and
regardless of the set refrigerator temperature.
slightly lifting it up.
• “Zero Zone” temperature helps keep meat or fi sh
fresh longer.
Cool
• When “Cool” is chosen, the temperature will be the
same as the set temperature of the refrigerator. The
digital panel shows the same temperature as that of
the display panel.
TM
• The CoolSelect Zone
Drawer allows extra
4. Remove the Icemaker bucket by lifting up and
refrigerator space.
pulling it out.
Depending on the beverages, the cool-down
time may vary.
For “Quick Cool” option, food stored in
TM
the CoolSelect Zone
Drawer should be
WARNING
removed.
Do not use excessive force when removing the
cover.
Otherwise, the cover may break and cause
injury.
26_ operating
DA99-02318N-12.indb 2:26DA99-02318N-12.indb 2:26 14. 7. 16. 8:3114. 7. 16. 8:31

Before removing any
accessories, make sure that
REMOVING THE FRIDGE
no food is in the way.
ACCESSORIES
When possible, remove the food altogether to
1. Remove the spill Proof Glass Shelf by pulling the
reduce the risk of accidents.
shelf out as far as it will go. Then, gently lift it up
and gently remove it.
02 OPERATING
CLEANING THE REFRIGERATOR
Do not use benzene, thinner, or Clorox,
Chloride for cleaning.
WARNING
They may damage the surface of the
appliance and may cause a fi re.
Do not spray the refrigerator with water
while it is plugged in, as it may cause an
CAUTION
2. Remove the Vegetable & Fruit Drawer by
electric shock.
pressing on the indentations found on the inside
Do not clean the refrigerator with benzene,
left and right sides of the Veggie Box/Dry Box
thinner or car detergent for risk of fi re.
cover and remove by
pulling forward.
Holding the drawer
with one hand, lift it up
REPLACING THE INTERIOR
a little bit while pulling
LIGHT
it forward and take it
out of the refrigerator.
For LED lamp, please contact service engineer
to replace it.
3. Remove the Gallon Door Bin by holding the bin
with both hands and gently lifting it up.
4. The Z Shelf is attached to the cabinet wall.
Remove the wine shelf by sliding it up and gently
lifting the shelf out of the tabs.
Ensure that the Z Shelf is fi tted as shown in
the diagram and not upside down.
CAUTION
operating _27
DA99-02318N-12.indb 2:27DA99-02318N-12.indb 2:27 14. 7. 16. 8:3114. 7. 16. 8:31

6. Once you have completed this process, hold the
CHANGING THE WATER FILTER
Ice Type button for 3 seconds to reset the fi lter
To reduce risk of water damage to your
schedule.
property DO NOT use generic brands of
WARNING
7. Lastly, Dispense 1L of water through water
water fi lers in your SAMSUNG Refrigerator.
dispenser and throw away. Make sure that water
USE ONLY SAMSUNG BRAND WATER
fl ows clearly again before drinking.
FILTERS. SAMSUNG will not be legally
responsible for any damage, including, but
not limited to property damage caused by
water leakage from use of a generic water
fi lter.
SAMSUNG Refrigerators are designed to
work ONLY WITH SAMSUNG Water Filter.
The “Filter Indicator” light lets you know when it is
time to change your water fi lter cartridge.
When the fi lter indicator light changes to red, it is time
A newly installed water fi lter cartridge may
to change the fi lter.
cause water to briefl y spurt from the water
To give you some time to get a new fi lter, the light will
dispenser. This is due to air getting into the line.
come on up just before the capacity of the current
It should pose no problem to operation.
fi lter runs out.
Changing the fi lter on time provides you with the
Ordering replacement fi lters
freshest, cleanest water from your fridge.
To order more water fi lter cartridges, contact your
1. Remove the water fi lter from the box and
authorised Samsung dealer.
put a month indicator sticker on the fi lter as
shown.
2. Place a sticker on the fi lter that dates six
USING THE DOORS
months in the future. For example, if you
are replacing the water fi lter in March, put
The refrigerator doors are equipped with a door
the “SEP” (September) sticker on the fi lter
opening and closing feature that ensures that the
to remind you to replace in September.
doors close all the way and are securely sealed.
Normally fi lter life is about every 6 months.
After opening beyond a certain point, the door will
3. Next, remove the fi xed cap by turning it
“catch” and remain open. When the door is ajar
counter clockwise.
ahead of the catch that allows it to stay open, it will
4. Remove the new fi lter’s protective cap and
close automatically.
remove the old fi lter.
5. Position and insert the new fi lter into the fi lter
housing.
Slowly turn the water fi lter clockwise 90º to
align with the indication mark on the cover,
locking the fi lter in position. Make sure
that the indicator is lined up with the “lock”
position. Do not over tighten.
Cover fi lter
1
2
4
Sticker
(month
3
indicator)
Align the
indication
5
mark with
lock position
28_ operating
DA99-02318N-12.indb 2:28DA99-02318N-12.indb 2:28 14. 7. 16. 8:3114. 7. 16. 8:31

troubleshooting
PROBLEM SOLUTION
The refrigerator
• Check that the power plug is properly connected.
does not work at all
• Is the temperature control on the display panel set to the correct
03 TROUBLESHOOTING
or it does not chill
temperature? Try setting it to a lower temperature.
suffi ciently.
• Is the refrigerator in direct sunlight or located too near a heat source?
• Is the back of the refrigerator too close to the wall and therefore keeping air
from circulating?
The food in the fridge is
• Is the temperature control on the display panel set to the correct
frozen.
temperature? Try setting it to a warmer temperature.
• Is the temperature in the room very low?
• Did you store the food with a high water content in the coldest part of the
fridge? Try moving those items into the body of the fridge instead of keeping
them in the CoolSelect Zone™ drawer.
You hear unusual
• Check that the refrigerator is level and stable.
noises or sounds.
• Is the back of the refrigerator too close to the wall and therefore keeping air
from circulating?
• Was anything dropped behind or under the refrigerator?
• A “ticking” sound is heard from inside the refrigerator. This is normal and
occurs because various accessories are contracting or expanding in relation
to the temperature of the refrigerator interior.
The front corners of
• Some heat is normal as anti-condensators are installed in the front corners
the appliance are hot
of the refrigerator to prevent condensation.
and condensation is
• Is the refrigerator door ajar? Condensation can occur when you leave the
occurring.
door open for a long time.
Ice is not dispensing.
• Did you wait for 12 hours after installation of the water supply line before
making ice?
• Is the water line connected and the shut-off valve open?
• Did you manually stop the ice making function? Make sure Ice Type is set to
Cubed or Crushed.
• Is there any ice blocked within the ice maker bucket?
• Is the freezer temperature too warm? Try setting the freezer temperature
lower.
You can hear water
• This is normal. The bubbling comes from the refrigerant coolant liquid
bubbling in the
circulating through the refrigerator.
refrigerator.
There is a bad smell in
• Has a food item spoiled?
the refrigerator.
• Make sure that strong smelling food (for example, fi sh) is wrapped so that it
is airtight.
• Clean out your freezer periodically and throw away any spoiled or suspect
food.
Frost forms on the
• Is the air vent blocked? Remove any obstructions so air can circulate freely.
walls of the freezer.
• Allow suffi cient space between the foods stored for effi cient air circulation.
• Is the freezer door closed properly?
Water dispenser is not
• Is the water line connected and the shut-off valve open?
functioning.
• Has the water supply line tubing been crushed or kinked?
Make sure the tubing is free and clear of any obstruction.
• Is the water tank frozen because the refrigerator temperature is too low?
Try selecting a warmer setting on the main display panel.
troubleshooting _29
DA99-02318N-12.indb 3:29DA99-02318N-12.indb 3:29 14. 7. 16. 8:3114. 7. 16. 8:31

Ambient Room Temperature Limits
This refrigerator is designed to operate in ambient temperatures specifi ed by its
temperature class marked on the rating plate.
Ambient Temperature range (°C)
Class Symbol
IEC 62552 (ISO 15502) ISO 8561
Extended Temperate SN +10 to +32 +10 to +32
Temperate N +16 to +32 +16 to +32
Subtropical ST +16 to +38 +18 to +38
Tropical T +16 to +43 +18 to +43
Internal temperatures may be affected by such factors as the location of the refrigerator,
ambient temperature and the frequency with which you open the door.
Adjust the temperature as required to compensate for these factors.
Correct Disposal of This Product
(Waste Electrical & Electronic Equipment)
English
(Applicable in countries with separate collection systems)
This marking on the product, accessories or literature indicates that the product and its
electronic accessories (e.g. charger, headset, USB cable) should not be disposed of with
other household waste at the end of their working life. To prevent possible harm to the
environment or human health from uncontrolled waste disposal, please separate these
items from other types of waste and recycle them responsibly to promote the sustainable
reuse of material resources.
Household users should contact either the retailer where they purchased this product, or
their local government offi ce, for details of where and how they can take these items for
environmentally safe recycling.
Business users should contact their supplier and check the terms and conditions of the
purchase contract. This product and its electronic accessories should not be mixed with
other commercial wastes for disposal.
DA99-02318N-12.indb 3:30DA99-02318N-12.indb 3:30 14. 7. 16. 8:3114. 7. 16. 8:31

