Hach-Lange POLYMETRON 9586 – page 7
Manual for Hach-Lange POLYMETRON 9586

Instalação
A V I S O
Vários perigos. Apenas pessoal qualificado deverá realizar as tarefas descritas nesta secção do
documento.
Montagem do analisador
A V I S O
Perigo de lesões pessoais. Os instrumentos ou componentes são pesados. Peça ajuda para instalar ou mover os
instrumentos ou componentes. Certifique-se de que a montagem de parede aguenta um peso 4 vezes superior
ao do equipamento.
A T E N Ç Ã O
O analisador deve estar alinhado na vertical para garantir a precisão.
Coloque o analisador numa superfície estável e vertical. Utilize um nível para se certificar de que o
analisador se encontra completamente na vertical. Consulte as directrizes que se seguem.
• Coloque o instrumento num local adequado com acesso para utilização, assistência e calibragem.
• Certifique-se de que existe uma boa visibilidade do ecrã e dos controlos.
• Mantenha o instrumento afastado de fontes de calor.
• Mantenha o instrumento afastado de vibrações.
• Mantenha a tubagem de amostra o mais curta possível para minimizar o tempo de resposta.
• Certifique-se de que não existe ar na linha de fornecimento da amostra.
Português 121

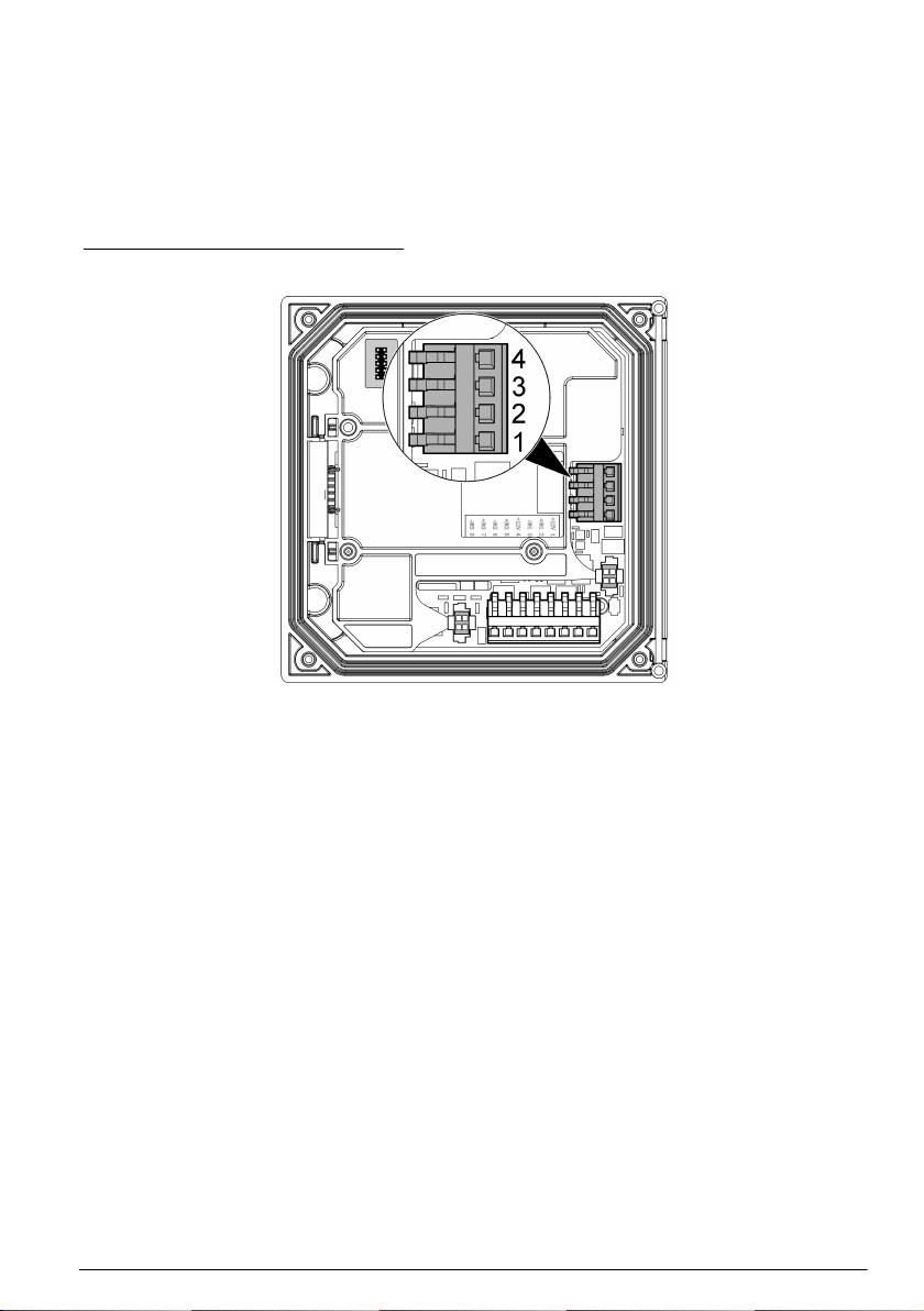
Descrição geral da cablagem
Figura 2 mostra uma visão geral das ligações de cablagem dentro do controlador com a barreira de
alta tensão removida. O lado esquerdo da figura mostra a parte de trás da tampa do controlador.
Nota: Remova as capas do conector antes de proceder à instalação do módulo.
122
Português

Figura 2 Descrição geral das ligações de cablagem
1 Ligação do cabo de serviço 5 Conector de alimentação CA e
9 Conector dos fios da entrada
1
1
CC
discreta
1
1
2 Saída de 4 a 20 mA
6 Terminais de ligação à terra 10 Conector do sensor digital
1
3 Conector do módulo do sensor 7 Ligações dos relés
1
4 Conector do módulo de
8 Conector do sensor digital
comunicação (por exemplo,
Modbus, Profibus, HART,
módulo 4-20 mA opcional, etc.)
1
Para um melhor acesso, os terminais podem ser removidos.
Barreira de alta tensão
A cablagem de alta tensão para o controlador encontra-se por trás da barreira de alta tensão na
estrutura do controlador. A barreira deve permanecer no local excepto quando instalar módulos, ou
quando um técnico de instalação qualificado estiver a ligar a potência, alarmes ou relés. Não retire a
barreira quando estiver a ser aplicada potência ao controlador.
Ligação à corrente
A D V E R T Ê N C I A
Perigo potencial de electrocussão. Desligue sempre a energia do instrumento quando efectuar
ligações eléctricas.
A D V E R T Ê N C I A
Perigo potencial de electrocussão. Caso este equipamento seja usado no exterior ou em locais
potencialmente húmidos, é necessário utilizar um dispositivo Interruptor de falha de terra para ligar o
equipamento à sua fonte de alimentação da rede eléctrica.
Português 123

P E R I G O
Perigo de electrocussão. Não ligue a alimentação de CA a um modelo que trabalha com 24 VCC.
A D V E R T Ê N C I A
Perigo potencial de electrocussão. É necessária uma ligação à terra (PE) de protecção para ambas as
aplicações de cabos de 100-240 VCA e 24 VCC. A falha de ligação a uma boa ligação terra PE pode
resultar em choques perigosos e desempenho fraco devido a interferências electromagnéticas. Ligue
SEMPRE o terminal de controlo a uma boa ligação terra PE.
A T E N Ç Ã O
Instale o dispositivo num local e posição que permita um acesso fácil ao seu funcionamento e desactivação.
O controlador pode ser adquirido como um modelo com capacidade de 100-240 VCA ou de 24 VCC.
Siga as instruções de cablagem adequadas para o modelo adquirido.
O controlador pode ser ligado à corrente eléctrica através de acessórios de ligação ou de um cabo
de alimentação. Seja qual for o fio utilizado, as ligações são efectuadas nos mesmos terminais. É
necessário um sistema de desactivação local concebido para cumprir o código eléctrico local e deve
estar identificado para todos os tipos de instalação. Nas aplicações ligadas por cabos, as quebras
do serviço de potência e terra para o instrumento devem ser de 18 a 12 AWG.
Notas:
• Antes de efectuar quaisquer ligações eléctricas, é necessário remover a barreira de tensão.
Depois de efectuar todas as ligações, coloque de novo a barreira de tensão antes de fechar a
tampa do controlador.
• Pode ser utilizado um redutor de tensão tipo selagem e um cabo de alimentação com menos de
3 metros de comprimento com três condutores de 18 (incluindo um fio de terra de segurança)
para manter a classificação ambiental de NEMA 4X/IP66.
• Os controladores podem ser encomendados com cabos de alimentação CA previamente
instalados. Podem ser igualmente encomendados cabos de alimentação adicionais.
• A fonte de alimentação CC que fornece energia ao controlador com alimentação de 24 VCC deve
manter a regulação da tensão dentro dos limites de tensão de 24 VCC-15% +20% especificados.
A fonte de alimentação CC deve também fornecer uma protecção adequada contra sobrecargas e
transitórios na linha.
Procedimento de cablagem
Consulte os passos ilustrados que se seguem e Tabela 1 ou Tabela 2 para ligar o sensor à
alimentação. Insira cada fio ao terminal adequado até o isolamento entrar em contacto com o
conector e sem fios descarnados expostos. Puxe suavemente após a inserção para se certificar que
a ligação é segura. Vede quaisquer aberturas não usadas na caixa do controlador com as tampas
de enchimento da abertura das ligações.
Tabela 1 Informações sobre ligação à corrente CA (apenas para modelos com alimentação
AC)
Terminal Descrição Cor—América do Norte Cor—EU
1 Quente (L1) Preto Castanho
2 Neutro (N) Branco Azul
— Lingueta de terra da ligação à terra de
Verde Verde com faixa amarela
protecção (PE)
124 Português

Tabela 2 Informações sobre ligação à corrente CC (apenas para modelos com alimentação
CC)
Terminal Descrição Cor—América do Norte Cor—EU
1 +24 V CC Vermelho Vermelho
2 Retorno de 24 V CC Preto Preto
— Lingueta de terra da ligação à terra de
Verde Verde com faixa amarela
protecção (PE)
Português 125

Alarmes e relés
O controlador está equipado com quatro relés de pólos simples, sem potência, com uma tensão que
varia entre 100 e 250 V AC, 50/60 Hz e uma resistência máxima de 5 amps. Os contactos têm uma
tensão de 250 V AC, uma resistência máxima de 5 amps para o controlador com alimentação AC e
24 V DC e uma resistência máxima de 5 A para o controlador com alimentação DC. Os relés não
são adequados para cargas indutivas.
Relés de ligação
A D V E R T Ê N C I A
Perigo potencial de electrocussão. Desligue sempre a energia do instrumento quando efectuar
ligações eléctricas.
A D V E R T Ê N C I A
Perigo potencial de incêndio. Os contactos do relé têm uma potência de 5 A e não possuem fusível. As
cargas externas ligadas aos relés devem ter dispositivos de limitação de corrente fornecidos para
limitar uma corrente para < 5 A.
A D V E R T Ê N C I A
Perigo potencial de incêndio. Não efectue ligações em cadeia de ligações de relé comuns ou de fios de
arranque a partir da ligação de alimentação de rede no interior do instrumento.
A D V E R T Ê N C I A
Perigo potencial de electrocução. Para manter as classificações ambientais NEMA/IP da estrutura,
utilize apenas acessórios de ligação e caixas de empanque para cabos concebidos para, pelo menos,
NEMA 4X/IP66 para encaminhar cabos para o instrumento.
Controladores com alimentação de linha CA (100—250 V)
126
Português

A D V E R T Ê N C I A
Perigo potencial de electrocução. Os controladores com alimentação de corrente CA
sc200 (115 V–230 V) foram concebidos para ligações de relés a circuitos de corrente CA (i.e., tensões
superiores a 16 V-RMS, 22,6 V-PEAK ou 35 V CC).
O compartimento de ligação não foi concebido para montagens de tensão superiores a 250 VCA.
Controladores com alimentação de 24 VCC
A D V E R T Ê N C I A
Perigo potencial de electrocução. Os controladores com alimentação de corrente de 24 V p foram
concebidos para ligações de relés a circuitos de baixa tensão (i.e., tensões inferiores a 16 V-RMS,
22,6 V-PEAK ou 35 V CC).
Os relés do controlador de 24 VDC foram concebidos para ligação a circuitos de baixa tensão (isto
é, tensões inferiores a 30 V-RMS, 42,2 V-PEAK ou 60 VDC). O compartimento de ligação não foi
concebido para montagens em tensão superiores a estes valores.
O conector de relé aceita fios de 18-12 AWG (como determinado pela aplicação de carga). Não é
recomendada uma espessura de fio inferior a 18 de acordo com a tabela de AWG.
Os contactos de relé Normalmente aberto (NO) e Comum (COM) serão ligados quando um alarme
ou outra condição estiver activa. Os contactos de relé Normalmente fechado (NC) e Comum serão
ligados quando um alarme ou outra condição estiver inactiva (a menos que o Sistema à prova de
falhas esteja definido para Sim) ou quando a alimentação é removida do controlador.
A maioria das ligações de relé utilizam terminais NO e COM ou os terminais NC e COM. Os passos
da instalação numerada mostram a ligação aos terminais NO e COM.
Português 127

Ligações de saída analógica
A D V E R T Ê N C I A
Perigo potencial de electrocussão. Desligue sempre a energia do instrumento quando efectuar
ligações eléctricas.
A D V E R T Ê N C I A
Perigo potencial de electrocução. Para manter as classificações ambientais NEMA/IP da estrutura,
utilize apenas acessórios de ligação e caixas de empanque para cabos concebidos para, pelo menos,
NEMA 4X/IP66 para encaminhar cabos para o instrumento.
São fornecidas duas saídas analógicas isoladas (1 e 2) (Figura 3). Estas saídas são normalmente
utilizadas para sinalização analógica ou controlar outros dispositivos externos.
Efectue as ligações de fios do controlador, tal como indicado em Figura 3 e em Tabela 3.
Nota: Figura 3 mostra a parte de trás da tampa do controlador e não o interior do compartimento do controlador
principal.
Tabela 3 Ligações de saída
Fios do gravador Posição da placa do circuito
Saída 2– 4
Saída 2+ 3
Saída 1– 2
Saída 1+ 1
1. Abra a tampa do controlador.
2. Direccione os fios através do redutor de tensão.
3. Ajuste o fio conforme necessário e aperte o redutor de tensão.
128
Português

4. Faça as ligações com o fio blindado de par trançados e ligue a blindagem à extremidade do
componente controlado ou na extremidade do circuito de comando.
• Não ligue a blindagem a ambas as extremidades do cabo.
• A utilização de cabos não blindados pode resultar em níveis de emissão de frequência de
rádio ou de susceptibilidade superiores ao permitido.
• A resistência máxima de ciclo é de 500 ohm.
5. Feche a tampa do controlador e aperte os parafusos da tampa.
6. Configure as saídas no controlador.
Figura 3 Ligações de saída analógica
Ligue a saída de comunicação digital opcional
O fabricante suporta os protocolos de comunicação Modbus RS485, Modbus RS232, Profibus
DPV1 e HART. O módulo de saída digital opcional está instalado na localização indicada pelo item
4 em Figura 2 na página 123. Para mais informações, consulte as instruções fornecidas com o
módulo de rede.
Para obter mais informações acerca de Registos Modbus , vá a http://www.hach-lange.com ou
http://www.hach.com e pesquise Registos Modbus ou vá a qualquer página do produto sc200.
Ligar as linhas da amostra e de drenagem
Ligue as linhas da amostra e de drenagem às ligações existentes na parte traseira do painel.
1. Ligue a linha da amostra à ligação do tubo OD de 4/6 mm de entrada.
2. Ligue a linha de drenagem à ligação do tubo OD de 6/8 mm de drenagem. Mantenha a linha de
drenagem o mais curta possível e à pressão atmosférica.
Português
129

Instalação dos reagentes
A D V E R T Ê N C I A
Perigo de exposição a produtos químicos. Siga os procedimentos de segurança do laboratório e utilize
todo o equipamento de protecção pessoal adequado aos produtos químicos manuseados. Consulte as
ficha de dados sobre segurança de materiais (MSDS/SDS) para protocolos de segurança.
1. Encha a garrafa de condicionamento vazio com DIPA (diisopropilamina) e introduza os
informações reagente perigosos na etiqueta em branco afixada na garrafa.
2. Instale a garrafa de condicionamento da amostra na parte da frente do analisador.
3. Ligue o tubo fornecido à célula de medição. Instale o tubo completamente no interior da garrafa
de solução de condicionamento. Certifique-se de que as ligações do tubo se encontram
apertadas para evitar fugas de fumos da garrafa de condicionamento para a atmosfera.
4. Se utilizar o cartucho de zero químico, instale-o na parte traseira do analisador.
Arranque
Certifique-se de que a taxa de fluxo e a pressão não excedem os valores indicados em
Especificações na página 116.
1. Abra a válvula na linha da amostra para permitir que a amostra flua através do analisador.
2. Rode o botão existente no medidor de fluxo para regular a taxa de fluxo.
3. Examine as canalizações quanto à existência de fugas e repare as fugas eventualmente
encontradas.
4. Forneça alimentação ao controlador.
5. Efectue as selecções de menu aplicáveis quando o controlador for iniciado.
Interface do utilizador e navegação
Interface do utilizador
O teclado tem quatro teclas de menu e quatro setas de direcção, tal como indicado em Figura 4.
130
Português

Figura 4 Visão geral do teclado e do painel frontal
1 Ecrã do instrumento 5 Tecla VOLTAR. Retrocede um nível na estrutura do
menu.
2 Tampa da ranhura do cartão Secure Digital Memory 6 Tecla MENU. Muda para o Menu de configurações
a partir de outros ecrãs e submenus.
3 Tecla INÍCIO. Muda para o ecrã Medição principal
7 Teclas de direcção. Utilizado para navegar pelos
de outros ecrãs e submenus.
menus, alterar definições e aumentar ou diminuir
dígitos.
4 Tecla ENTER. Aceita valores introduzidos,
actualizações ou opções de menu apresentadas.
As entradas e saídas são especificadas e configuradas através do painel frontal utilizando o teclado
e o ecrã. Esta interface de utilizador é utilizada para configurar entradas e saídas, criar informações
de registo e valores calculados, bem como calibrar sensores. A interface SD pode ser utilizada para
guardar registos e actualizar software.
Ecrã
A Figura 5 apresenta um exemplo do ecrã de medição principal com o sensor ligado ao controlador.
O ecrã do painel frontal mostra os dados de medição do sensor, definições de calibração e
configuração, erros, avisos e outras informações.
Português
131

Figura 5 Exemplo do ecrã de medição principal
1 Ícone do ecrã inicial 7 Barra de estado de aviso
2 Nome do sensor 8 Data
3 Ícone do cartão de memória SD 9 Valores de saída analógica
4 Indicador do estado do relé 10 Hora
5 Valor de medição 11 Barra de progresso
6 Unidade de medição 12 Parâmetro de medição
Tabela 4 Descrições dos ícones
Ícone Descrição
Ecrã inicial O ícone pode variar, dependendo do ecrã ou menu apresentado. Por exemplo, se estiver
instalado um cartão SD, é apresentado aqui um cartão SD quando o utilizador está no menu
Config. do cartão SD.
Cartão de
Este ícone só é apresentado se estiver um cartão SD na ranhura do leitor. Quando um
memória SD
utilizador se encontra no menu Config. do cartão SD, este ícone é apresentado no canto
superior esquerdo.
Aviso Um ícone de aviso consiste num ponto de exclamação dentro de um triângulo. Os ícones de
aviso são apresentado à direita do ecrã principal sob o valor de medição. Pressione a tecla
ENTER e, em seguida, seleccione o dispositivo para visualizar quaisquer problemas
associados ao mesmo. O ícone de aviso deixará de ser apresentado assim que todos os
problemas tenham sido corrigidos ou reconhecidos.
Erro Um ícone de erro consiste num ponto de exclamação dentro de um círculo. Quando ocorre um
erro, o ícone de erro e o ecrã de medição piscam alternadamente no ecrã principal. Para
visualizar os erros, pressione a tecla MENU e seleccione Diagnostics (Diagnóstico). Em
seguida, seleccione o dispositivo para visualizar quaisquer problemas associados a esse
dispositivo.
Formatos de visualização adicionais
• A partir do ecrã de medição principal, pressione as teclas de seta PARA CIMA e PARA BAIXO
para alternar entre os parâmetros de medição
• A partir do ecrã de medição principal, pressione a tecla de seta PARA A DIREITA para mudar
para uma visualização dividida com até 4 parâmetros de medição. Pressione a tecla de seta
PARA A DIREITA para incluir medições adicionais. Pressione a tecla de seta PARA A
ESQUERDA, conforme necessário, para regressar ao ecrã de medição principal
• A partir do ecrã de medição principal, pressione a tecla de seta PARA A ESQUERDA para mudar
para a visualização gráfica (consulte Visualização gráfica na página 133 para definir os
132
Português

parâmetros). Pressione as teclas PARA CIMA e PARA BAIXO para alternar entre gráficos de
medição
Visualização gráfica
O gráfico demonstra as medições de temperatura e concentração para cada canal em utilização. O
gráfico permite uma fácil monitorização das tendências e mostra as alterações no processo.
1. A partir do ecrã de visualização gráfica utilize as setas para cima e para baixo para seleccionar
um gráfico e pressione a tecla HOME.
2. Seleccione uma opção:
Opção Descrição
MEASUREMENT VALUE
Defina o valor de medição do canal seleccionado. Seleccione entre Auto
(VALOR DA MEDIÇÃO)
Scale (Dim. Auto) e Manually Scale (Dimens. Manual). Para um
dimensionamento manual introduza os valores mínimo e máximo de
medição
DATE & TIME RANGE
Seleccione o intervalo de data e hora a partir das opções disponíveis
(INTERVALO DATA/HORA)
Funcionamento
Configurar o sensor
Utilize o menu CONFIGURE (Configurar) para introduzir informação de identificação para o sensor e
alterar opções para o processamento e armazenamento de dados.
1. Prima a tecla menu e seleccione SENSOR SETUP (Configuração do sensor)>CONFIGURE
(Configurar).
2. Utilize as teclas de seta para seleccionar uma opção e prima enter. Para introduzir números,
caracteres ou pontuação, mantenha premidas as teclas de seta para cima ou para baixo. Prima
a tecla de seta para a direita para avançar para o espaço seguinte.
Opção Descrição
EDIT NAME (Editar nome) Muda o nome que corresponde ao sensor no topo do ecrã de medição. O
nome tem um limite máximo de 16 caracteres, sendo possível qualquer
combinação de letras, números, espaços ou pontuação.
SENSOR S/N (N/s do
Permite ao utilizador introduzir o número de série do sensor, limitado a
sensor)
16 caracteres em qualquer combinação de letras, números, espaços ou
pontuação.
MEAS UNITS (unidades
Altera as unidades de medição—Seleccione a unidade a partir da lista
de med.)
disponível.
TEMP UNITS (Unidades
Define as unidades de temperatura como °C (predefinição) ou °F
de temperatura)
FILTER (Filtro) Define uma constante de tempo para aumentar a estabilidade do sinal. A
constante temporal calcula o valor médio durante um período especificado—
0 (nenhum efeito, predefinição) a 60 segundos (média do valor do sinal
durante 60 segundos). O filtro aumenta o tempo em que o sinal do sensor
deve responder às alterações do processo.
LOG SETUP
Define o intervalo de tempo para armazenamento de dados no registo de
(Configuração do registo)
dados—5, 30 segundos, 1, 2, 5, 10, 15 (predefinição), 30, 60 minutos.
RESET DEFAULTS (Repor
Define o menu de configuração para as predefinições. Todas as informações
predefinições)
sobre o sensor foram perdidas.
Português 133

Calibração
Sobre o sensor de calibração
As características do sensor mudam lentamente ao longo do tempo e permitem que o sensor perca
precisão. O sensor deve ser calibrado regularmente para manter a precisão. A frequência de
calibração varia com a aplicação e é melhor determinada pela experiência.
Calibração de temperatura
Recomenda-se calibrar o sensor de temperatura uma vez por ano. Calibre o sensor de temperatura
antes de calibrar o sensor de medição.
1. Meça a temperatura da água com um termómetro preciso ou um instrumento independente.
2. Prima a tecla menu e seleccione SENSOR SETUP (Configuração do sensor)>CALIBRATE
(Calibrar).
3. Se o código de acesso estiver activado no menu de segurança para o controlador, introduza o
código de acesso.
4. Seleccione 1 PT TEMP CAL (Calibração de temperatura de 1 ponto) e prima enter.
5. É apresentado o valor bruto da temperatura. Prima enter.
6. Introduza o valor correcto, se diferir do valor apresentado, e prima enter.
7. Prima enter para confirmar a calibração. O desvio de temperatura é apresentado.
Calibração zero
O valor de zero foi calibrado em fábrica. Use o procedimento de calibração zero para definir o único
ponto zero do sensor.
1. Se a concentração da amostra for < 10 ppb, para obter melhores resultados recomenda-se a
utilização do cartucho de calibração zero opcional (consulte a secção Acessórios e peças de
substituição na página 137) e deixe o sensor no respectivo local. Caso contrário, remova o
sensor do processo e lave com água destilada.
2. Prima a tecla menu e seleccione SENSOR SETUP (Configuração do sensor)>CALIBRATE
(Calibrar).
3. Se o código de acesso estiver activado no menu de segurança para o controlador, introduza o
código de acesso.
4. Seleccione ZERO CAL (Calibração zero) e prima enter.
5. Seleccione a opção para o sinal de saída durante a calibração:
Opção Descrição
ACTIVE (Activo) O instrumento envia o valor de saída actual medido durante o procedimento de
calibração.
HOLD (Manter) O valor de saída do sensor é mantido no valor actual medido durante o
procedimento de calibração.
TRANSFER
Um valor de saída predefinido é enviado durante a calibração. Consulte o manual
(Transferir)
do utilizador do controlador para alterar o valor predefinido.
6. Se não utilizar o cartucho de calibração zero opcional, coloque o sensor limpo numa solução
sem hidrazina como, por exemplo, água ultra pura, e prima enter.
7. Aguarde até uma hora para que o valor estabilize e prima enter.
8. Reveja o resultado da calibração:
• PASS (Aprovado)—o sensor está calibrado e o desvio é apresentado.
• FAIL (Falha)—a calibração encontra-se fora dos limites aceitáveis. Limpe o sensor e tente
novamente. Consulte a secção Resolução de problemas na página 136 para obter mais
informações.
9. Se a calibração for aprovada, prima enter para continuar.
134
Português

10. Se a opção de ID do operador estiver definida como YES (Sim) no menu CAL OPTIONS
(Opções de calibração), introduza uma ID do operador. Consulte a secção Alterar as opções de
calibração na página 136.
11. No ecrã NEW SENSOR (Novo sensor), seleccione se o sensor é novo:
Opção Descrição
YES (Sim) O sensor não foi calibrado anteriormente com este controlador. Os dias da operação e as
curvas da calibração anterior do sensor são repostos.
NO (Não) O sensor foi calibrado anteriormente com este controlador.
12. Caso não utilize o cartucho de calibração zero opcional, volte a colocar o sensor no processo e
prima enter. O sinal de saída regressa ao estado activo e o valor da amostra medida é
apresentado do ecrã de medição.
Nota: Se o modo de saída estiver definido para manter ou transferir, seleccione o tempo de atraso quando as
saídas voltarem ao estado activo.
Calibração com a amostra de processo
O sensor pode permanecer na amostra de processo.
1. Prima a tecla menu e seleccione SENSOR SETUP (Configuração do sensor)>CALIBRATE
(Calibrar).
2. Se o código de acesso estiver activado no menu de segurança para o controlador, introduza o
código de acesso.
3. Seleccione SAMPLE CAL (Calibração de amostra) e prima enter.
4. Seleccione a opção para o sinal de saída durante a calibração:
Opção Descrição
ACTIVE (Activo) O instrumento envia o valor de saída actual medido durante o procedimento de
calibração.
HOLD (Manter) O valor de saída do sensor é mantido no valor actual medido durante o
procedimento de calibração.
TRANSFER
Um valor de saída predefinido é enviado durante a calibração. Consulte o manual
(Transferir)
do utilizador do controlador para alterar o valor predefinido.
5. Com o sensor na amostra do processo, prima enter. É apresentado o valor medido. Espere que
o valor estabilize e prima enter.
6. Com um instrumento de verificação secundário certificado, meça o valor da concentração da
amostra. Para evitar impurezas na amostra, realize a medição antes da amostra entrar na
câmara de fluxo. Use as teclas de seta para introduzir este valor se diferir do valor exibido e
prima enter.
7. Reveja o resultado da calibração:
• PASS (Aprovado)—o sensor é calibrado e o factor de calibração é apresentado.
• FAIL (Falha)—a calibração encontra-se fora dos limites aceitáveis. Limpe o sensor e tente
novamente. Consulte a secção Resolução de problemas na página 136 para obter mais
informações.
8. Se a calibração for aprovada, prima enter para continuar.
9. Se a opção de ID do operador estiver definida como YES (Sim) no menu CAL OPTIONS
(Opções de calibração), introduza uma ID do operador. Consulte a secção Alterar as opções de
calibração na página 136.
Português
135

10. No ecrã NEW SENSOR (Novo sensor), seleccione se o sensor é novo:
Opção Descrição
YES (Sim) O sensor não foi calibrado anteriormente com este controlador. Os dias da operação e as
curvas da calibração anterior do sensor são repostos.
NO (Não) O sensor foi calibrado anteriormente com este controlador.
11. Com o sensor ainda no processo, prima enter. O sinal de saída regressa ao estado activo e o
valor da amostra medida é apresentado do ecrã de medição.
Nota: Se o modo de saída estiver definido para manter ou transferir, seleccione o tempo de atraso quando as
saídas voltarem ao estado activo.
Alterar as opções de calibração
O utilizador pode definir um lembrete de calibração ou incluir uma ID de operador com dados de
calibração neste menu.
1. Prima a tecla menu e seleccione SENSOR SETUP (Configuração do sensor)>CALIBRATE
(Calibrar).
2. Se o código de acesso estiver activado no menu de segurança para o controlador, introduza o
código de acesso.
3. Seleccione CAL OPTIONS (Opções de calibração) e prima enter.
4. Use as teclas de seta para seleccionar uma opção e prima enter.
Opção Descrição
CAL REMINDER (Lembrete de
Define um lembrete para a próxima calibração em dias, meses ou anos
calibração)
—seleccione o atraso necessário na lista.
OP ID ON CAL (ID do Op. na
Inclui uma ID de operador com os dados de calibração—YES (Sim) ou
cal.)
NO (Não) (predefinição). A ID é introduzida durante a calibração.
Manutenção
P E R I G O
Vários perigos. Apenas pessoal qualificado deverá realizar as tarefas descritas nesta secção do documento.
Limpeza e descontaminação
P E R I G O
Desligue sempre a alimentação do controlador antes de efectuar as actividades de manutenção.
Geralmente, o analisador não necessita de qualquer limpeza ou descontaminação. Se necessário,
limpe o exterior do instrumento com um pano húmido e uma solução de sabão neutro. Nunca utilize
agentes de limpeza como terebintina, acetona ou produtos semelhantes para limpar o instrumento,
incluindo o monitor e quaisquer acessórios.
Resolução de problemas
Lista de avisos
Um ícone de aviso consiste num ponto de exclamação dentro de um triângulo. Os ícones de aviso
são apresentado à direita do ecrã principal sob o valor de medição. Um aviso não afecta o
funcionamento dos menus, relés e saídas. Para visualizar avisos, prima a tecla menu e seleccione
DIAGNOSTICS (Diagnósticos). Em seguida, seleccione o dispositivo para visualizar quaisquer
problemas associados a esse dispositivo. O ícone de aviso deixará de ser apresentado assim que o
problema tenha sido corrigido ou reconhecido.
Em seguida, é apresentada uma lista dos possíveis avisos na Tabela 5.
136
Português

Tabela 5 Lista de avisos para sensores de remoção de oxigénio
Aviso Descrição Resolution (Resolução)
O2 SCAVENGER TOO HIGH
O valor medido é >
Certifique-se de que o nível do removedor de
(Removedor de O2 demasiado
10000 ppm
oxigénio (hidrazina ou carbohidrazida) na
alto)
água de processo está dentro dos limites de
funcionamento do sensor. Calibre ou substitua
o sensor.
O2 SCAVENGER TOO LOW
O valor medido é < 0 ppm Calibre ou substitua o sensor.
(Removedor de O2 demasiado
baixo)
TEMP TOO HIGH (Temp.
A temperatura medida é >
Reduza a temperatura da amostra.
demasiado alta)
50 °C
TEMP TOO LOW (Temp.
A temperatura medida é <
Aumente a temperatura da amostra.
demasiado baixa)
0 °C
CURRENT TOO HIGH (Corrente
A corrente medida é >
Certifique-se de que o nível do removedor de
demasiado alta)
200 mA
oxigénio (hidrazina ou carbohidrazida) na
água de processo está dentro dos limites de
funcionamento do sensor. Calibre ou substitua
o sensor.
CURRENT TOO LOW (Corrente
A corrente medida é <
Calibre ou substitua o sensor.
demasiado baixa)
-0,5 mA
CAL OVERDUE (Cal. exp.) O tempo do lembrete de
Calibrar o sensor.
calibração expirou
REPLACE SENSOR (Substituir
O sensor foi utilizado há >
Substitua o cartucho do sensor e calibre o
sensor)
365 dias
sensor. Se o resultado da calibração for
aprovada, reponha os dias da membrana no
menu DIAG/TEST (Diagnóstico/teste).
NOT CALIBRATED (Não
O sensor não foi calibrado Calibrar o sensor.
calibrado)
CAL IN PROGRESS (Cal. em
A calibração foi iniciada mas
Voltar à calibração.
and.)
não concluída
Acessórios e peças de substituição
Consulte a secção referente às peças de substituição e acessórios da documentação do controlador
para obter as pelas e acessórios do mesmo.
Nota: Os número do produto e do artigo podem variar nalgumas regiões de venda. Para mais informações de
contacto, contacte o distribuidor apropriado ou consulte o site web da empresa.
Kit de peças sobresselentes para 2 anos - 09186=A=8000
Descrição Quantidade Item n.º
Filtro 6 363877,06000
Eléctrodo de referência 1 368429,00000
Bocal de injecção Venturi 1 359090,00024
Junta circular para bocal de injecção Venturi 1 356099,05090
Esferas de limpeza em plástico 7 588801,75008
Tubagem de 4 × 6 mm em PE 2 metros 151575,00006
Português 137

Célula de medição
Descrição Item n.º
Célula de medição 09186=A=0100
Eléctrodo de referência 368429,00000
Eléctrodo de trabalho 09186=A=0300
Encaixe de entrada em cotovelo G1/8 DN 4/6 359103,10070
Encaixe de saída G1/8 DN6/8 359103,10055
Tampa NPT1/8 431=201=018
Garrafa de condicionamento com equipamento 09186=A=0200
Garrafa de vidro castanha 490=010=011
Cartucho poroso 09073=C=0340
Encaixe G1/8 DN4/6 359103,10065
Controlador de taxa de fluxo equipado 09186=A=0400
Encaixe de entrada G1/4 DN4/6 587=006=002
Encaixe em cotovelo curto G1/4 DN4/6 359103,10072
Encaixe em cotovelo longo G1/4 DN4/6 587=906=002
Fluxómetro 694=000=001
Encaixe em cotovelo NPT1/8 DN4/6 359103,10170
Acessórios
Descrição Item n.º
Cartucho para calibração zero química 09186=A=0600
138 Português

目录
规格 第 139 操作 第 154
基本信息 第 140 维护 第 156
安装 第 143 故障排除 第 156
启动 第 151 更换零配件 第 157
用户界面及导航 第 151
附加信息
制造商网站中提供了附加信息
规格
规格如有更改,恕不另行通知。
面板
规格 详细信息
尺寸
817 x 300 x 140 mm (32.2 x 11.8 x 5.5 in)
重量
14.6 kg (32.15 lbs)
样品流速
10—15 升/小时
工作压力
0.5—6 巴 (7—87 psi)
环境温度
0—60 °C (-32—140 °F)
相对湿度
10—90%
工作电极 铂金
对电极 不锈钢
基准
Ag / AgCl / KCl 0.1 M
测量元件 丙烯酸
样本调节剂
DIPA(二异丙胺)
欧洲标准
针对电磁兼容性的 EN 61326 A 级标准;针对低压安全性的 EN 601010-1 标准
国际标准
cETLus
传感器
规格 详细信息
测量范围 0—500 ppb 联胺;0—100 ppb 碳酰肼
灵敏度
< 0.2 ppb
重复性 1 ppb 或测量值的 ± 2%,取二者中较大数值
检测限值
≤ 1 ppb
响应时间 < 60 秒
样品温度测量范围
5—45 °C (41—113 °F)
中文
139

控制器
规格 详细信息
组件说明 微处理器控制及菜单驱动的控制器可操作传感器和显示测量值。
操作温度 -20 至 60 ºC(-4 至 140 ºF);95% 相对湿度,传感器负载 <7 W 且无冷凝;-20 至 50 ºC(-4 至
104 ºF),传感器负载 <28 W
存储温度 -20 至 70 ºC(-4 至 158 ºF);95% 相对湿度,无冷凝
1
外壳
NEMA 4X/IP66 防护等级的金属外壳,带防腐蚀饰面
电源要求 交流电源供电的控制器:100-240 VAC ±10%,50/60 Hz;功率:50 VA,带 7 W 传感器/网络模
块负载;100 VA,带 28 W 传感器/网络模块负载(可选装 Modbus、RS232/RS485、Profibus
DPV1 或 HART 网络连接)。
24 VDC 电源供电的控制器:24 VDC—15%,+ 20%;功率:15 W,带 7 W 传感器/网络模块负载;
40 W,带 28 W 传感器/网络模块负载(可选装 Modbus、RS232/RS485、Profibus DPV1 或 HART
网络连接)。
海拔要求 标准 2000m (6562ft) ASL(海平面以上)
污染程度/安装
污染程度 2;安装类别 II
类别
输出 两个模拟(0-20 mA 或 4-20 mA)输出。每个模拟输出都可分配代表一个实测参数,比如 pH 值、
温度、流量或计算值等。可选模块另外提供三个模拟输出(共 5 个)。
继电器 四个 SPDT 型用户可配置触点,交流电源供电的控制器触点额定最大阻性为 250 VAC、5A,直流
供电的控制器触点额定最大阻性为 24 VDC、5A。继电器可连接到交流电路(即无论何时,控制
器可在 115 至 240 V 交流电源下工作)或直流电路(即无论何时,控制器可在 24 V 直流电源下
工作)。
尺寸
½ DIN—144 x 144 x 180.9 mm (5.7 x 5.7 x 7.12 in.)
重量
1.7 kg (3.75 lb)
2
合规信息
通过 CE 认证(所有传感器类型)。获得 ETL 根据 UL 和 CSA 安全标准认证,可用于一般场合
(所有传感器类型)。
此处列出了一些交流电源供电型号,它们适用于符合美国保险商实验室发布的 UL 和 CSA 安全标
准的一般安全位置(针对所有传感器类型)。
数字通信 可选 Modbus、RS232/RS485、Profibus DPV1 或 HART 网络连接,用于传输数据
数据记录 安全数字卡(最大 32 GB)或专用 RS232 电缆接头,用于记录数据、更新软件。控制器将为每个
传感器保存约 20000 个数据点。
保修 2 年
1
拥有美国保险商实验室 (UL) 认证的单元仅适用于室内使用,无 NEMA 4X/IP66 评级。
2
UL 未列出直流供电机组。
基本信息
对于因本手册中的任何不足或遗漏造成的直接、间接、特别、附带或结果性损失,制造商概不负责。制
造商保留随时更改本手册和手册中描述的产品的权利,如有更改恕不另行通知或承担有关责任。修订版
可在制造商的网站上找到。
安全信息
注 意
对于误用和滥用造成的产品损坏,制造商概不负责,包括但不限于:直接、附带和间接的损坏,并且对于适用法律
允许的最大程度的损坏也不承担任何责任。用户唯一的责任是识别重大应用风险和安装适当的系统,以在设备可能
出现故障时保护流程。
140
中文

