MEDC SM87BG: инструкция
Раздел: Системы безопасности
Тип: Датчик
Инструкция к Датчику MEDC SM87BG

Please note that every care has been taken to ensure the accuracy of our technical manual. We do not, however,
accept responsibility for damage, loss or expense result-ing from any error or omission. We reserve the right to
make alterations in line with technical advances and industry standards.
Для обеспечения максимальной точности нашего технического руководства были предприняты
все возможные меры. Наша компания не несет ответственности за повреждения, ущерб или
расходы, связанные с возможным наличием в нем ошибок или пропусков. Мы оставляем
за собой право вносить в него изменения с учетом технического прогресса и изменения
промышленных стандартов.
Toutes les précautions ont été prises pour garantir la précision de cette notice technique. Toutefois, nous ne
saurions accepter de responsabilité à l’égard des dégâts, pertes ou frais résultant d’une quelconque erreur ou
omission. Nous nous réservons le droit d’apporter d’éventuelles modifications pouvant résulter de progrès
techniques ou de l’évolution des normes industrielles.
Wir möchten Sie darauf hinweisen, dass wir große Sorgfalt darauf verwendet haben, die Richtigkeit unserer
technischen Anleitung zu gewährleisten. Wir übernehmen jedoch keine Verantwortung für Schäden, Verluste oder
Kosten, die sich aus einem etwaigen Fehler oder einem Versäumnis ergeben. Änderungen die dem technischen
Fortschritt bzw. neusten Industrienormen entsprechen, behalten wir uns vor.
O
Technical Manual for the Manual Call Points SM87BG/PB Exi Versions
Техническое руководство Устройства включения
сигнализации версий SM87BG/PB Exi
Manuel Technique pour les versions Exi SM87BG/PB de Points
de Déclenchement Manuel
Technische Anleitung für die Manuellen Feuermelder SM87BG/PB
Exi-Ausführungen
Manual técnico de los pulsadores manuales SM87BG/PB versiones Exi
Manual Técnico para o Manual Pontos de Chamada Manuais Versões
Exi SM87BG/PB
Por favor, tenha em atenção que tivemos todo o cuidado para garantir a precisão do nosso manual técnico. No
entanto, não nos responsabilizamos por danos, perdas ou despesas resultantes de qualquer erro ou omissão.
Reservamo-nos o direito de fazer alterações conforme os avanços técnicos e padrões industriais.
© Cooper MEDC 2011 08/11

English
1.0 INTRODUCTION
These manual fire alarm, emergency shutdown breakglass and pushbutton units have been designed for the most arduous
environmental conditions. The units are both easy to install and maintain. A choice of either stainless steel or marine grade
aluminium alloy makes the range suitable for either offshore or onshore industries
The units are available with the following options and features:
Lift Flap
Duty label
Tag label
Earth continuity via internal/external earth studs
LED (encapsulated)
End of Line and Series resistors and diodes (encapsulated)
Switches (two maximum)
M20 or M25 gland entries in a range of positions, with a maximum of four
Terminals up to a maximum of 9 x 2.5mm2
Test key facility on breakglass units
Optional momentary or latching with key reset actions
2.0 INSTALLATION
General
The unit should not be installed where it may be subjected to mechanical and thermal stresses or where it may be attacked by
existing or foreseeable aggressive substances.
The unit has been designed such that it does not:
s'IVERISETOPHYSICALINJURYOROTHERHARMDUETOCONTACT
s0RODUCEEXCESSIVESURFACETEMPERATUREINFRAREDELECTROMAGNETICORIONISINGRADIATION
s(AVENONELECTRICALDANGERS
When installing and operating explosion-protected equipment, requirements for selection, installation and operation should
be referred to, e.g. IEC60079-14 worldwide and the ‘National Electric Code’ in North America. Additional national and/
or local requirements may also apply.
Ensure that all nuts, bolts and fixings are secure
Ensure that only the correct listed or certified stopping plugs are used to blank off unused gland entry points and that the
.%-!)0RATINGOFTHEUNITISMAINTAINED-%$#RECOMMENDTHEUSEOFASEALINGCOMPOUNDSUCHAS(9,/-!20,ONTHE
threads of glands and stopping plugs in order to maintain the IP rating of the unit.
The unit should be mounted on a vertical surface using the four off Ø9mm fixing holes in the base. These have been designed
to accept and M8 screw or bolt
MEDC recommend the use of stainless steel screws.
Cable termination
CAUTION: Before removing the cover assembly, ensure that the power to the unit is isolated
Unscrew the 4 off M6 screws (5.0mm A/F hexagon key) holding the lid to the base. Keep screws in a safe accessible place
as they are not captive.
Twist the cover assembly gently clockwise and anti-clockwise, whilst pulling it away from the base. Remove to gain access to
the interior. The cover assembly should remain attached to the base by means of a retaining strap.
Cable termination should be in accordance with specification applying to the required application. MEDC recommends that
© Cooper MEDC 2011 08/11

all cables and cores should be correctly identified. Please refer to the wiring diagram provided with the product.
Ensure that only the correct listed or certified cable glands are used and that the assembly is shrouded and correctly earthed.
All cable glands should be of an equivalent NEMA/IP rating to that of the manual call point and integrated with the unit such
that this rating is maintained.
The internal earth terminal must be used for the equipment grounding connection and the external terminal is for a supplementary
bonding connection where local codes or authorities permit or require such a connection.
Once termination is complete, carefully push the cover assembly back onto the base avoiding damage to the mating surfaces.
Ensure that the retaining strap is not trapped between the mating surfaces and that the o-ring is correctly seated in its groove.
Ensure the retaining strap and wires are clear of the microswitch actuator and operating mechanism. Replace the 4 off M6
screws (5.0mm A/F hexagon key) into the holes in the cover assembly and tighten evenly. Ensure the maximum gap of 0.15mm
is maintained between the cover and the base once assembled.
3.0 OPERATION
The operating voltage of the unit is stated on the unit label. Please see the reference drawing supplied with each unit for details
of wiring and any fitted internal component values
SM87BG GENERAL ARRANGEMENT
SM87BG units - operation
The unit is operated by breaking the glass element in the front of the cover using the hammer attached to the unit. If a lift flap
has been specified, this will need to be raised first to gain access to the glass element.
SM87BG units - resetting procedure
a. To replace the glass, a kit containing O-rings and glass is provided.
b. Unscrew and remove the circular bezel on the front of the unit.
c. Remove the original O-rings and glass and ensure the grooves in the bezel and cover are clean.
d. Fit the larger O-ring into the groove on the cover.
e. Fit the smaller O-ring into the groove on the underside of the bezel:-
i. Offer the O-ring up to the groove.
ii. Place thumbs of both hands side by side onto the O-ring
iii. Press the O-ring down into the groove circumference maintaining even pressure, forcing the O-ring into the groove.
08/11 © Cooper MEDC 2011

iv. The O-ring should be fully seated in the groove and not fall out when fitting the bezel to the cover.
f. Place the new glass element into position on the cover and assemble the bezel over the top of the glass element.
g. Ensure the glass element stays central on the cover by holding down the glass with thumb through the hole in the centre
of the bezel.
h. Carefully use the glass element to depress the plunger until the glass is in full contact with the cover O-ring. Ensure there
is an even gap around the glass.
i. Without allowing the glass element to move, screw down the bezel until the bottom of the bezel is tightened against the
cover.
SM87PB GENERAL ARRANGEMENT
SM87PB units - operation
The unit is operated by lifting the flap on the front of the cover, then depressing the steel actuator underneath. Depending on
the unit type ordered, the actuator will either remain in its depressed position or return to its original position.
SM87PB units - resetting procedure
On the units with a latching mechanism, once operated, the actuator remains in its position. To reset the call point, lift the flap
on the front of the unit and insert the key (provided with the unit) into the slot in the front face of the actuator. The key should
be turned slightly to locate it in the actuator and pulled back to the initial position. The key can then be removed and the flap
lowered.
4.0 MAINTENANCE
$URINGTHEWORKINGLIFEOFTHEUNITITSHOULDREQUIRELITTLEORNOMAINTENANCE(OWEVERIFABNORMALORUNUSUALENVIRONMENTAL
conditions occur due to plant damage or accident etc., then visual inspection is recommended.
If the unit requires cleaning, then only clean exterior with a damp cloth to avoid electro-static charge build up.
If a unit fault should occur, then the unit can be repaired by MEDC. All parts of the unit are replaceable.
If you acquired a significant quantity of units, then it is recommended that spares are also made available. Please discuss your
requirements with the Technical Sales Engineers at MEDC.
© Cooper MEDC 2011 08/11

5.0 CERTIFICATION/APPROVALS
IECEx units
Certified to IEC 60079-0, IEC 60079-11 and IEC 60079-26
%XIAUNIT)%#CERTIlCATION.O)%#%X"!38
Ex ia IIC T4 Ga (-55°C to +55°C)
The IECEx certificate and product label carry the IECEx equipment protection level marking
Ga
Where Ga signifies suitability for use in a Zone 0 surface industries area in the presence of gas.
ATEX units
Certified to EN60079-0, EN60079-11 and EN60079-26
%XIAUNIT!4%8CERTIlCATION.O"ASEEFA!4%88
Ex ia IIC T4 Ga (-55°C to +55°C)
4HE!4%8CERTIlCATEANDPRODUCTLABELCARRYTHE!4%8GROUPANDCATEGORYMARKING
II 1 G
Where:
3IGNIlESCOMPLIANCEWITH!4%8
II Signifies suitability for use in surface industries
1 Signifies suitability for use in a zone 0 area
G Signifies suitability for use in the presence of gases
4HE!4%8CERTIlCATEANDPRODUCTLABELALSOCARRYTHEFOLLOWINGMARK
1180
This signifies unit compliance to the relevant European directives, in this case 94/9/EC, along with the number of the notified
body issuing the EC type examination certificate.
6.0 SPECIAL CONDITIONS FOR SAFE USE
The apparatus enclosure is made from metal alloy which must be protected against impact to avoid a possible risk of ignition
due to impact
08/11 © Cooper MEDC 2011

русский
1.0 ВВЕДЕНИЕ
Настоящие устройства ручной пожарной сигнализации, предусматривающие разбивание стекла и
нажатие кнопки аварийного выключения, разработаны для самых тяжелых условий окружающей
среды. Эти устройства легко и устанавливать, и обслуживать. Возможность выбора в качестве
конструкционного материала нержавеющей стали или судостроительного алюминиевого сплава
позволяет использовать их в отраслях промышленности, где работы могут производиться как в морских
условиях, так и на суше.
Устройства выпускаются со следующими возможностями и функциями:
Подъемный щиток
Ярлык с рабочими характеристиками
Этикетка с маркировкой
Заземление при помощи внутренних/наружных заземляющих штырей
СИД (герметизированный)
Конечные и добавочные резисторы и диоды (герметизированные)
Переключатели (не более двух)
Сальниковые вводы размером M20 или M25 в положениях, максимальное число которых не превышает
четырех
Клеммы в количестве до 9 x 2,5мм2
Приспособление с испытательным ключом на устройствах с разбиваемым стеклом
Предусмотренные отдельным заказом кратковременные или фиксируемые действия c возвратом в
исходное состояние с помощью ключа
2.0 УСТАНОВКА
Общая информация
Устройство не должно устанавливаться там, где оно может быть подвергнуто механическим или
тепловым нагрузкам, или там, где оно может оказаться под воздействием каких-либо агрессивных
веществ.
Устройство сконструировано таким образом, чтобы:
• Не приводить к травмам и не приносить другого вреда вследствие контакта с ним.
• Не приводить к перегреву поверхности, а также не являться источником инфракрасного,
электромагнитного или ионизирующего излучения.
• Не приводить к возникновению опасностей, не связанных с наличием электрического тока.
Требования, предъявляемые к выбору, установке и эксплуатации взрывозащищенного оборудования,
должны соответствовать мировому стандарту IEC60079-14 и «Национальным электротехническим
нормативам» для Северной Америки. Необходимо учитывать также наличие дополнительных
федеральных и (или) местных требований.
Проследите, чтобы все гайки, болты и крепления были надежно затянуты
Проследите, чтобы для заглушки неиспользуемых сальниковых вводов использовались только правильно
каталогизированные или сертифицированные заглушки и чтобы был выдержан класс защиты NEMA/
IP устройства. Компания MEDC рекомендует нанести герметик HYLOMAR PL32 на резьбу сальников и
заглушек с целью сохранения класса защиты IP устройства.
Устройство устанавливается на вертикальной поверхности при помощи четырех монтажных отверстий
размером Ø9мм в его основании. Отверстия рассчитаны под винты или болты размером M8
MEDC рекомендует использовать винты из нержавеющей стали.
1
© Cooper MEDC 2011 08/11

Кабельный ввод
ОСТОРОЖНО! Перед снятием узла крышки убедитесь в том, что питание устройства отключено.
Выверните 4 винта M6 (размер зева шестигранного ключа — 5,0мм), удерживая крышку на установочной
поверхности. Пока винты не задействованы, держите их в безопасном доступном месте.
Осторожно поворачивайте крышку в сборе по часовой стрелке и против нее, при этом вытаскивая ее
из базовой части. Удалите ее, чтобы получить доступ к внутреннему пространству. Крышка в сборе
должна оставаться присоединенной к базовой части фиксирующей скобой.
Кабельный ввод должен соответствовать спецификациям, разработанным для конкретной прикладной
задачи. MEDC рекомендует, чтобы все кабели и жилы кабелей были должным образом идентифицированы.
См. схему электропроводки, поставляемую вместе с изделием.
Проследите, чтобы использовались только правильно каталогизированные или сертифицированные
кабельные уплотнения и чтобы узел был экранирован и правильно заземлен.
Все кабельные уплотнения должны соответствовать классу защиты NEMA/IP ручного извещателя и
быть встроены в устройство, как того требует этот класс.
Внутренняя клемма заземления должна использоваться для заземления оборудования, а внешняя
клемма — для дополнительного заземления там, где местные законы или власти позволяют или требуют
наличия такого соединения.
По завершении заделки с большой осторожностью поместите крышку в сборе обратно на основание,
стараясь не повредить сопрягающиеся поверхности. Проследите, чтобы фиксирующая скоба не
попала между сопрягающимися поверхностями и чтобы кольцевое уплотнение правильно село в свою
канавку. Проследите, чтобы фиксирующая скоба и провода не задевали привод микропереключателя
и управляющий механизм. Установите 4 винта размером M6 (размер зева шестигранного ключа - 5,0
обратно в отверстия узла крышки и равномерно их затяните. Проследите, чтобы между крышкой
и основанием был выдержан зазор величиной не более 0,15мм.
3.0 ЭКСПЛУАТАЦИЯ
Рабочее напряжение устройства приведено на его этикетке. См. справочный чертеж, поставляемый
вместе с каждым устройством и содержащий детальное описание электропроводки, а также некоторые
подобранные значения внутренних компонентов
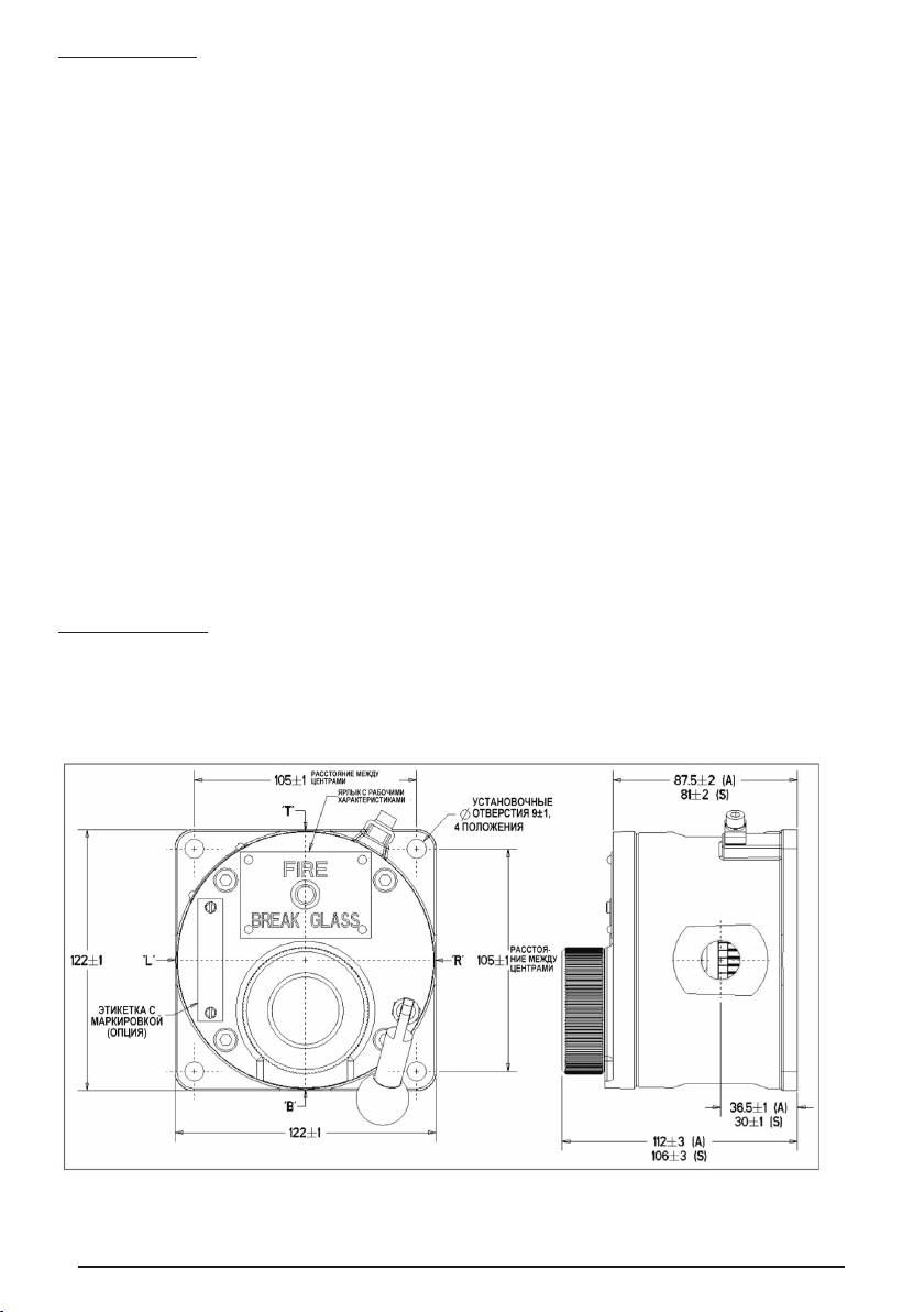
ОБЩАЯ КОМПОНОВКА SM87BG
©
мм)
08/11 © Cooper MEDC 2011

Устройства SM87BG — эксплуатация
Для управления устройством необходимо разбить стекло в передней части крышки при помощи молотка,
прилагаемого к устройству. В случае если был предусмотрен подъемный щиток, чтобы получить доступ
к стеклу, щиток необходимо предварительно поднять.
Устройства SM87BG — процедура сброса
a. Для замены стекла поставляется комплект, содержащий кольцевые уплотнения и само стекло.
b. Выверните и снимите круглую лицевую панель в передней части устройства.
c. Снимите исходные кольцевые уплотнения и стекло и проследите, чтобы канавки в лицевой
панели и крышке были чистыми.
d. Установите кольцевое уплотнение большего размера в канавку на крышке.
e. Установите кольцевое уплотнение меньшего размера в канавку на обратной стороне лицевой
панели:-
i. Разместите кольцевое уплотнение на канавке.
ii. Положите большие пальцы обеих рук рядом друг с другом на кольцевое уплотнение
iii. Равномерно нажимая на кольцевое уплотнение по всему контуру, вставьте его в канавку.
iv. Кольцевое уплотнение должно полностью сесть в канавку и не должно выпадать при установке
лицевой панели на крышку.
f. Установите новое стекло в надлежащее положение на крышке, а поверх стекла установите
лицевую панель.
g. Обеспечьте центральное положение стекла на крышке, прижимая и удерживая его большим
пальцем через отверстие в центре лицевой панели.
h. Осторожно надавливайте стеклом на шток, пока оно не войдет в полный контакт с кольцевым
уплотнением крышки. Проследите, чтобы зазор вокруг стекла был равномерным.
i. Не сдвигая стекла, вворачивайте лицевую панель до тех пор, пока ее дно не будет прижато к
крышке.
ОБЩАЯ КОМПОНОВКА SM87PB
1
105±1 расстояние между центрами
ярлык с рабочими
установочные
характеристиками
Ø отверстия 9±1,
4 положения
105±1
расстояние
между
центрами
этикетка с
маркировкой
(опция)
© Cooper MEDC 2011 08/11

Устройства SM87PB — эксплуатация
Для управления устройством необходимо поднять щиток, расположенный перед крышкой,
и нажать на стальной пускатель, находящийся под ним. В зависимости от типа заказанного
устройства пускатель либо останется в нажатом положении, либо вернется в исходное.
Устройства SM87PB — процедура сброса
В устройствах с механизмом фиксации нажатый пускатель остается в нажатом положении.
Чтобы восстановить готовность извещателя, поднимите щиток на передней крышке и вставьте
ключ (поставляется вместе с устройством) в щель на лицевой стороне пускателя. Ключ следует
слегка повернуть, чтобы установить его в пускателе, затем потянуть назад и вернуться в
исходное положение. Затем можно извлечь ключ и опустить щиток.
4.0 ТЕХОБСЛУЖИВАНИЕ
В течение всего срока службы устройству необходимо минимальное техобслуживание или
вообще не требуется никакого техобслуживания. Однако, если, например, из-за повреждения
или аварии установки возникают аномальные или необычные условия окружающей среды,
рекомендуется производить визуальный осмотр.
Если устройство нуждается в очистке, производите ее только для внешней его поверхности,
используя для этого кусок влажной ткани во избежание накопления электростатического
заряда.
Если в работе устройства происходят сбои, его можно отремонтировать в компании MEDC.
Может быть заменена любая деталь устройства.
Если вы приобретаете большое количество устройств, рекомендуется иметь необходимый
доступ к соответствующим запасным частям. Обсудите свои требования с инженерами службы
сбыта компании MEDC.
5.0 СЕРТИФИКАЦИЯ/АТТЕСТАЦИЯ
Устройства класса IECEx
Сертифицированы на соответствие стандартам IEC 60079-0, IEC 60079-11 и IEC 60079-26
Устройство Ex ia (сертификация IEC № IECEx BAS10.0033X)
Ex ia IIC T4 Ga (от -55 до +55°C)
В сертификате IECEx и на этикетке изделия содержится маркировка IECEx уровня защиты
оборудования
Ga
Где Ga означает возможность применения в наземных промышленных условиях Зоны 0 в
присутствии газа.
°C
08/11 © Cooper MEDC 2011

Устройства класса ATEX:
Сертифицированы на соответствие стандартам EN60079-0, EN60079-11 и EN60079-26
Устройство Ex ia (сертификация ATEX № Baseefa02ATEX0152X)
Ex ia IIC T4 Ga (от -55 до +55°C)
В сертификате ATEX и на этикетке изделия содержится маркировка, характеризующая группу
и категорию ATEX:
II 1 G
Где:
означает соблюдение требований ATEX
II означает возможность использования в наземных промышленных условиях
1 означает возможность использования в условиях Зоны 0
G означает возможность использования в присутствии газов
В сертификате ATEX и на этикетке изделия имеется также следующая отметка:
1180
Она означает соответствие устройства имеющим отношение к данному вопросу европейским
директивам, в данном случае директиве 94/9/EC, и содержит количество уполномоченных
органов, выпускающих свидетельство о проверке образца Европейского сообщества.
6.0 ОСОБЫЕ УСЛОВИЯ БЕЗОПАСНОГО ИСПОЛЬЗОВАНИЯ
Кожух устройства изготовлен из металлического сплава, обеспечивающего защиту от ударов
во избежание возможного воспламенения
°C
© Cooper MEDC 2011 08/11

Francais
1.0 INTRODUCTION
Ces alarmes incendie, brise-vitres d’arrêt d’urgence et boutons d’arrêt manuels ont été conçus pour fonctionner dans les conditions
environnementales les plus extrêmes. Ces unités sont faciles à installer et à entretenir. Un choix entre un alliage en aluminium
de catégorie marine ou en acier inoxydable rendent la gamme appropriée pour l’usage en mer ou sur terre
Les unités sont disponibles avec les options et fonctionnalités suivantes :
Volet soulevable
Etiquette de fonction
Etiquette d’identification
Continuité de mise à la masse à travers des bornes internes et externes
DEL (encapsulées)
Résistances et diodes Fin de Ligne et Série (encapsulées)
Commutateurs (maximum 2)
Entrées de presse-étoupes M20 ou M25 dans une série de positions, au maximum 4
Terminaisons, jusqu’à 9 x 2,5mm2
Emplacement de clé de test sur les unités de brise-vitre
Loquet ou verrou facultatif avec réinitialisation par clé
2.0 INSTALLATION
Généralités
L’unité ne doit pas être installée dans un endroit soumis à des contraintes mécaniques ou thermiques ou sujet à une attaque
par des substances aggressives existantes ou prévisibles.
Cette unité a été conçue de manière à ne pas :
s#AUSERDEBLESSUREPHYSIQUEPARCONTACTDIRECT
s0RODUIREUNETEMPÏRATUREDESURFACEEXCESSIVEOUDESRAYONNEMENTSINFRAROUGEÏLECTROMAGNÏTIQUESOUIONISANTS
s0RÏSENTERDEDANGERSDENATURENONÏLECTRIQUE
Lors de l’installation et de la mise en ser vice d’un appareil protégé contre les explosions, les spécifications de sélection, d’installation
et de fonctionnement doivent être consultées, par exemple le règlement international IEC 60079-14 et le « National Electric
Code » en Amérique du Nord. Des spécifications nationales et/ou locales additionnelles peuvent s’appliquer.
Assurez-vous que tous les écrous, les boulons et les attaches sont bien fixés.
Assurez-vous que seuls les bouchons listés ou certifiés sont utilisés pour neutraliser les presse-étoupes inutilisés, et que l’indice
.%-!)0DELUNITÏESTMAINTENU-%$#RECOMMANDELAPPLICATIONDUNCOMPOSÏDÏTANCHÏITÏTELQUELE(9,/-!20,
sur les fils des presse-étoupes et des bouchons afin de maintenir l’indice IP de l’unité.
L’unité doit être montée sur une surface verticale via les 4 trous de fixation de Ø 9mm de la base. Les trous de fixation ont été
conçus pour accepter une vis ou un boulon M8.
MEDC recommande l’usage de vis en acier inoxydable.
Terminaisons des câbles
AVERTISSEMENT : Avant d’enlever le couvercle, assurez-vous que l’alimentation est débranchée.
Dévissez les 4 vis M6 (clé hexagonale A/F de 5,0mm) retenant le couvercle à la base. Gardez les vis dans un endroit acces-
sible et sûr, celles-ci n’étant pas retenues à l’intérieur du couvercle.
Tournez doucement le couvercle dans les deux sens tout en l’éloignant de la base du boîtier. Soulevez-le pour accéder à
l’intérieur. Le couvercle devrait rester attaché à la base par une lanière de fixation.
Les terminaisons des câbles doivent être conformes aux spécifications liées au domaine d’application voulu. MEDC recom-
©
08/11 © Cooper MEDC 2011

mande que tous les câbles et les âmes soient correctement identifiés. Veuillez vous référer au schéma de câblage fourni avec
le produit.
Assurez-vous que seuls les presse-étoupes correctement listés ou certifiés sont utilisés et que l’ensemble est fermé et correcte-
ment relié à la masse.
Tous les presse-étoupes doivent posséder un indice NEMA/IP équivalent à celui du point de déclenchement manuel et doivent
être intégrés à l’unité d’une manière qui maintienne cet indice.
La borne de masse interne doit être utilisée pour la connexion à la masse de l’appareil, et la borne externe sert de connexion
de liaison supplémentaire lorsque les règlements ou les autorités locales permettent ou exigent une telle connexion.
Une fois que les terminaisons ont été installées, replacez doucement le couvercle sur le boitier en évitant d’abîmer les surfaces
de contact. Assurez-vous que la lanière de fixation n’est pas bloquée entre les surfaces de contact et que le joint torique est
correctement positionné dans sa cannelure. Assurez-vous que la lanière de fixation et les câbles sont dégagés de la commande
de micro contact et du dispositif de fonctionnement. Replacez les 4 vis M6 (clé hexagonale A/F de 5,0mm) dans les trous
du couvercle et resserrez de manière égale. Assurez-vous que l’écart maximal de 0,15mm entre le couvercle et la base est
maintenu après l’assemblage.
3.0 FONCTIONNEMENT
La tension nominale de l’unité est indiquée sur l’étiquette. Veuillez consulter le schéma de référence fourni avec chaque unité
pour obtenir les informations de câblage et les valeurs des composants internes installés.
DISPOSITION GENERALE SM87BG
Unités SM87BG - fonctionnement
L’unité fonctionne en brisant la vitre sur la face avant du couvercle au moyen du marteau attaché à l’unité. SI un volet soulevable
a été spécifié, celui-ci devra être soulevé pour pouvoir accéder à la vitre.
Unités SM87BG - procédure de réinitialisation
a. Pour remplacer la vitre, une trousse est fournie, contenant des joints toriques et des vitres.
b. Dévissez et enlevez le panneau circulaire sur la face avant de l’unité.
c. Enlevez les joints toriques et la vitre d’origine et assurez-vous que les rainures du panneau et du couvercle sont propres.
d. Placez le joint torique le plus large dans la rainure sur le couvercle.
e. Placez le joint torique le plus petit dans la rainure sur la face interne du panneau :
© Cooper MEDC 2011 08/11

i. Positionnez le joint torique dans la rainure.
ii. Placez les deux pouces de chaque côté du joint.
iii. Pressez le joint vers l’intérieur de la rainure en maintenant une pression égale.
iv. Le joint doit être complètement encastré et ne pas tomber lors du positionnement du panneau sur le couvercle.
f. Placez la nouvelle vitre en position sur le couvercle et assemblez le panneau par dessus la vitre.
g. Assurez-vous que la vitre reste au centre du couvercle en maintenant celle-ci avec le pouce passé à travers le trou
au centre du panneau.
h. Utilisez la vitre avec précaution pour dépressuriser le piston jusqu’à ce qu’elle soit en contact complet avec le joint
torique du couvercle. Assurez-vous qu’il y a un écart égal tout autour de la vitre.
i. Sans laisser la vitre bouger, vissez le panneau jusqu’à ce que sa partie inférieure soit resserrée contre le couvercle.
DISPOSITION GENERALE SM87PB
Unités SM87 - fonctionnement
PB
L’unité fonctionne suite au soulèvement du couvercle et à la dépressurisation de l’actionneur en acier situé dessous. Selon le
type d’unité commandé, l’actionneur restera en position dépressurisée ou retournera à sa position initiale.
Unités SM87PB - procédure de réinitialisation
Sur les unités possédant un mécanisme de verrouillage, l’actionneur reste en position une fois actionné. Pour réinitialiser le
point de déclenchement, soulevez le couvercle de la face avant de l’unité et insérez la clé (fournie avec l’unité) dans la fente de
la face avant de l’actionneur. La clé doit être tournée légèrement pour la loger dans l’actionneur, puis remise dans sa position
initiale. La clé peut ensuite être retirée et le volet rabaissé.
4.0 ENTRETIEN
L’unité ne devrait exiger que très peu, ou pas, d’entretien au cours de sa durée de vie. Toutefois, si des conditions environ-
nementales anormales ou inhabituelles se produisent suite à un accident d’usine etc., une inspection visuelle de l’appareil est
recommandée.
Si l’unité doit être nettoyée, ne nettoyez que l’extérieur avec un chiffon humide pour éviter le développement de charges
électrostatiques.
Si une unité tombe en panne, celle-ci pourra être réparée par MEDC. Tous les composants de l’unité sont remplaçables.
Si vous avez acquis de nombreuses unités, il est recommandé de commander des pièces de rechange. Veuillez faire part de
vos spécifications aux ingénieurs technico-commerciaux de MEDC
08/11 © Cooper MEDC 2011

5.0 CERTIFICATION/HOMOLOGATIONS
Unités IECEx
Certifiées aux normes IEC 60079-0, IEC 60079-11 et IEC 60079-26
5NITÏ%XIANªDECERTIlCATION)%#)%#%X"!38
Ex ia IIC T4 Ga (-55°C à +55°C)
Le certificat IECEx et l’étiquette de produit indiquent le niveau de protection IECEx de l’appareil
Ga
Où Ga indique l’aptitude de l’appareil à un usage dans une industrie à ciel ouvert de type Zone 0 avec présence de gaz.
Unités ATEX
Certifiées aux normes EN 60079-0, EN 60079-11 et EN 60079-26
5NITÏ%XIANªDECERTIlCATION
Ex ia IIC T4 Ga (-55°C à +55°C)
,ECERTIlCAT!4%8ETLÏTIQUETTEDEPRODUITINDIQUENTLEGROUPEETLACATÏGORIE!4%8
II 1 G
Où :
INDIQUELACONFORMITÏDELAPPAREILAUXNORMES!4%8
II indique l’aptitude de l’appareil à un usage dans les industries à ciel ouvert
1 indique l’aptitude de l’appareil à un usage dans un secteur de type zone 0
G indique l’aptitude de l’appareil à un usage en présence de gaz
,ECERTIlCAT!4%8ETLÏTIQUETTEDUPRODUITPORTENTÏGALEMENTLINSCRIPTIONSUIVANTE
1180
Cela indique la conformité de l’unité aux directives européennes appropriées, 94/9/EC dans ce cas, ainsi que le numéro de
l’organisme distribuant le certificat d’examen de type EC.
6.0 CONDITIONS PARTICULIERES POUR UNE UTILISATION SURE
Le couvercle de l’appareil est fabriqué en alliage métallique qui doit être protégé contre les impacts afin d’éviter un risque
possible d’inflammation en relation avec l’impact.
!4%8
"ASEEFA!4%88
© Cooper MEDC 2011 08/11

Deutsch
1.0 EINFÜHRUNG
$IESEMANUELLEN'LASBRUCHUND$RUCKTASTER(ANDFEUERMELDERZUR.OTABSCHALTUNGWURDENFàRDEN%INSATZUNTERSCHWIERIGSTEN
5MGEBUNGSBEDINGUNGENENTWICKELT$IE'ERËTESINDEINFACHZUINSTALLIERENUNDWARTUNGSFREUNDLICH(ERGESTELLTAUSSEEWAS-
serfesten Aluminiumlegierungen oder Edelstahl, ist diese Serie sowohl für den Einsatz an Land als auch auf See geeignet.
Die Geräte sind mit folgenden Optionen und Funktionsmerkmalen erhältlich:
Klappe zum Anheben
Betriebsartetikett
Typenschild
Erdverbindung über interne/externe Erdstifte
LED (eingekapselt)
Abschluss- und Reihenwiderstände und -dioden (eingekapselt)
Schalter (maximal zwei)
M20 oder M25 Anschlussstutzen-Öffnungen in verschiedenen Positionen, max. 4 Stück
Klemmen bis zu max. 9 x 2,5mm2
Testschlüsseleinrichtung bei Bruchglas-Geräten
Optionaler Tast- oder Einrast-Mechanismus für Drucktaste; Rückstellung erfolgt über Schlüssel
2.0 INSTALLATION
Allgemeines
Das Gerät darf nicht an Plätzen installiert werden, wo es mechanischen und thermischen Belastungen ausgesetzt ist oder von
bereits vorhandenen oder vorhersehbaren aggressiven Substanzen angegriffen werden könnte.
Das Gerät ist folgendermaßen ausgelegt:
s%SVERURSACHTBEI"ERàHRUNGKEINE6ERLETZUNGENODERANDERE3CHËDEN
s%SERZEUGTKEINEàBERMËIGHOHEN/BERmËCHENTEMPERATURENUNDKEINEINFRAROTEELEKTROMAGNETISCHEODERIONISIERENDE
Strahlung.
s%SBIRGTKEINENICHTELEKTRISCHEN'EFAHREN
Bei Installation und Betrieb explosionsgeschützter elektrischer Einrichtungen sind die entsprechenden landesspezifischen Rege-
lungen betreffs Auswahl, Installation und Betrieb (z. B.: IEC 60079-14 international und die NEC-Vorschriften in Nordamerika)
zu beachten. Zusätzlich können auch nationale und/oder lokale Bestimmungen Anwendung finden.
Stellen Sie sicher, dass alle Muttern, Schrauben und Befestigungselemente fest sitzen.
Stellen Sie sicher, dass nur die korrekt gelisteten oder zertifizierten Verschlussstopfen zum Verschließen unbenutzter Anschlusss-
tutzen-Öffnungen verwendet werden, und dass die IP-/NEMA-Schutzklasse der Einheit erhalten bleibt. Um die IP-Schutzklasse
der Einheit zu erhalten, empfiehlt MEDC, an den Gewinden der Anschlussstutzen und Verschlussstopfen eine Dichtmasse wie
(9,/-!20,ZUVERWENDEN
Das Gerät ist mithilfe der vier Ø 9mm-Befestigungsbohrungen im Unterteil auf einer senkrechten Fläche zu montieren. Die
Befestigungsbohrungen wurden für M8 Schrauben oder -Bolzen konstruiert.
MEDC empfiehlt die Verwendung von Edelstahlschrauben.
Kabelendverschluss
VORSICHT: Stellen Sie vor Entfernung des Deckels sicher, dass das Gerät von der Spannungsversorgung isoliert ist.
Lösen Sie die vier M6 Schrauben (5mm A/F Sechskantstiftschlüssel), mit denen der Deckel am Unterteil befestigt ist. Bewahren
Sie die Schrauben sicher und leicht erreichbar auf, da sie nicht unverlierbar sind.
Drehen Sie den Deckel vorsichtig im Uhrzeigersinn und gegen den Uhrzeigersinn und ziehen ihn gleichzeitig vom Unterteil
©
08/11 © Cooper MEDC 2011

weg, bis er sich löst. Entfernen Sie den Deckel, um das Geräteinnere freizulegen. Die Deckel-Baugruppe sollte durch ein
(ALTEBANDAM5NTERTEILBEFESTIGTBLEIBEN
Der Kabelendverschluss ist in Übereinstimmung mit der für die entsprechende Anwendung geltenden Spezifikation durch-
zuführen. MEDC empfiehlt, alle Kabel und Adern ordnungsgemäß zu kennzeichnen. Nutzen Sie dazu den mit dem Produkt
gelieferten Schaltplan.
Stellen Sie sicher, dass nur korrekt gelistete oder zertifizierte Anschlussstutzen benutzt werden, und dass die Baugruppe um-
mantelt und ordnungsgemäß geerdet ist.
Alle Anschlussstutzen müssen über die gleiche NEMA-/IP-Schutzklasse wie der manuelle Feuermelder verfügen und so in das
Gerät integriert werden, dass diese Klasse aufrechterhalten wird.
Die interne Erdungsklemme muss zur Erdung des Ausrüstungsgegenstands verwendet werden und die externe Klemme ist
für eine zusätzliche Masseverbindung bestimmt, die dort verwendet wird, wo die örtlichen Vorschriften oder Behörden diese
Verbindung zulassen oder vorschreiben.
Nach dem Kabelendverschluss drücken Sie den Deckel wieder auf das Unterteil. Gehen Sie dabei vorsichtig vor, um Schäden
ANDEN+ONTAKTmËCHENZUVERMEIDEN3TELLEN3IESICHERDASSDAS(ALTEBANDNICHTZWISCHENDEN+ONTAKTmËCHENLIEGTUNDDASS
DER/2INGKORREKTINSEINER.UTSITZT3TELLEN3IEWEITERHINSICHERDASSDIEINTERNEN,EITUNGENUNDDAS(ALTEBANDNICHTDAS
Mikroschalter-Stellglied und -Betätigungselement berühren. Setzen Sie die vier M6 Schrauben (5mm A/F Sechskantstiftschlüs-
sel) in die Bohrlöcher der Deckel-Baugruppe ein, und ziehen Sie sie dann gleichmäßig an. Stellen Sie sicher, dass nach dem
Zusammenbau ein Abstand von maximal 0,15mm zwischen Deckel und Unterteil beibehalten wird.
3.0 BETRIEB
Die Betriebsspannung des Geräts ist auf dem Geräteetikett vermerkt. Weitere Einzelheiten zur Verdrahtung sowie zu den
Werten interner Bauteile entnehmen Sie der mit dem Produkt gelieferten Referenzzeichnung.
SM87BG ÜBERSICHTSZEICHNUNG
Betrieb des Geräts SM87BG
Das Gerät wird durch Einschlagen der Glasscheibe auf der Vorderseite des Deckels betätigt. Dazu wird der am Gerät befestigte
(AMMERBENUTZT7ENNDAS'ERËTMITEINER+LAPPEZUM!NHEBENAUSGESTATTETISTMUSSDIESEERSTANGEHOBENWERDENUM
an die Glasscheibe zu gelangen.
Rückstellung des Geräts SM87BG
© Cooper MEDC 2011 08/11

a. Zur Erneuerung der Glasscheibe nach einem Einsatz des Melders, benutzen Sie das mitgelieferte Set aus O-Ringen und
neuer Glasscheibe.
b. Lösen Sie die Schrauben des Deckelrings an der Vorderseite des Geräts, und nehmen Sie den Deckelring ab.
c. Entfernen Sie die originalen O-Ringe und das Glas und stellen Sie sicher, dass die Nuten in Blende und Deckel sauber
sind.
d. Legen Sie den größeren O-Ring in die Deckelnut ein.
e. Legen Sie den kleineren O-Ring in die Nut auf der Unterseite des Deckelrings ein:
i. Legen Sie den kleineren O-Ring auf die Nut.
ii. Legen Sie beide Daumen nebeneinander auf den O-Ring.
iii. Drücken Sie den O-Ring mit gleichmäßigem Druck ringsum in die Nut.
iv. Der O-Ring muss vollständig in der Nut sitzen und darf nicht herausfallen, wenn der Deckelring auf den Deckel gelegt
wird.
f. Setzen Sie die neue Glasscheibe in den Deckel ein und montieren Sie den Deckelring über der Glasscheibe.
g. Stellen Sie sicher, dass die Glassscheibe mittig auf dem Deckel bleibt, indem Sie sie mit dem durch den Deckelring
gest reckten Daumen an ihrem Platz halten.
h. Benutzen Sie dann vorsichtig die Glassscheibe, um den Kolben so weit hineinzudrücken, dass die Glasscheibe
vollständigen Kontakt mit dem Deckel-O-Ring hat. Stellen Sie sicher, dass ringsum um die Glasscheibe ein gleich großer
Zwischenraum frei bleibt.
i. Schrauben Sie den Deckelring fest, ohne der Glasscheibe eine Bewegung zu ermöglichen, bis das Unterteil des
Deckelrings am Deckel fest anliegt.
SM87PB ÜBERSICHTSZEICHNUNG
Betrieb des Geräts SM87PB
Man benutzt das Gerät, indem die Klappe an der Vorderseite des Deckels angehoben und dann das darunter befindliche
Stellglied aus Stahl betätigt wird. Je nach bestellter Ausführung bleibt das Stellglied entweder in seiner aktivierten/niederge-
drückten Stellung oder kehrt in seine Ausgangsstellung zurück.
08/11 © Cooper MEDC 2011

Rückstellung des Geräts SM87PB
Bei den Geräten mit Einrast-Mechanismus verbleibt das Stellglied nach Betätigung in seiner Stellung. Um den Feuermelder
zurückzustellen, heben Sie die Klappe an der Vorderseite des Geräts an und stecken den Schlüssel (mit dem Gerät geliefert)
in den Schlitz an der Vorderseite des Stellglieds. Der Schlüssel sollte leicht gedreht werden, um ihn ins Stellglied zu stecken.
Dann kann es in die Ausgangsposition zurückbewegt werden. Danach kann der Schlüssel wieder herausgezogen und die
Klappe heruntergeklappt werden.
4.0 INSTANDHALTUNG
Während des Arbeitslebens des Geräts sollten nur geringe oder gar keine Instandhaltungsarbeiten erforderlich sein. Wenn
allerdings aufgrund eines Anlagenschadens oder Unfalls etc. ungewöhnliche Umgebungsbedingungen auftreten, wird eine
Sichtprüfung empfohlen.
Wenn das Gerät gereinigt werden muss, reinigen Sie es nur von außen mit einem feuchten Tuch, um eine elektrostatische
Aufladung zu vermeiden.
Sollte ein Fehler im Gerät auftreten, kann es von MEDC instandgesetzt werden. Alle Bauteile können ersetzt werden.
Wenn Sie größere Stückzahlen erworben haben, wird die Lagerhaltung von Ersatzaggregaten empfohlen. Bitte besprechen
Sie Ihren Ersatzteilbedarf mit den Vertriebsingenieuren von MEDC.
5.0 ZERTIFIZIERUNG / GENEHMIGUNGEN
IECEx Einheiten
Zertifiziert gemäß IEC 60079-0, IEC 60079-11 und IEC 60079-26
%XIA%INHEIT
Ex ia IIC T4 Ga (-55°C bis +55°C)
Das IECEx-Zer
tifikat und das Produktetikett tragen die IECEx-Kennzeichnung zum Geräte-Schutzniveau:
Ga
Dabei steht Ga für die Eignung zur Verwendung in einem Bereich der „Zone 0“, Übertageindustrien in gashaltigen Bere-
ichen.
IECEx
:ERTIlZIERUNGSNUMMER
IECEx
"!38
© Cooper MEDC 2011 08/11

ATEX Einheiten
Zertifiziert gemäß EN 60079-0, EN 60079-11 und EN 60079-26
%XIA%INHEIT!4%8:ERTIlZIERUNGSNUMMER"ASEEFA!4%88
Ex ia IIC T4 Ga (-55°C bis +55°C)
$AS!4%8:ERTIlKATUNDDAS0RODUKTETIKETTTRAGENDIE!4%8'RUPPENUND+ATEGORIEKENNZEICHNUNG
II 1 G
Dabei steht:
FàRDIE%INHALTUNGDER!4%86ORSCHRIFTEN
II für die Eignung zur Verwendung in Übertageindustrien,
1 für die Eignung zur Verwendung in einem Bereich der „Zone 0“,
G für die Eignung zur Verwendung in gashaltigen Bereichen.
$AS!4%8:ERTIlKATUNDDAS0RODUKTETIKETTTRAGENAUERDEMFOLGENDES:EICHEN
1180
Dieses Zeichen bedeutet, dass das Gerät die anzuwendenden EU-Richtlinien erfüllt, in diesem Fall 94/9/EG. Außerdem gibt
es die Nummer der registrierten Behörde an, die die EG-Baumusterprüfbescheinigung ausgefertigt hat.
6.0 BESONDERE BEDINGUNGEN FÜR EINE SICHERE NUTZUNG
Das Gehäuse besteht aus einer Metalllegierung, die vor Stoß oder Aufprall geschützt werden muss, um einen Zündvorgang
aufgrund des Aufpralls zu vermeiden.
©
08/11 © Cooper MEDC 2011

Espanol
1.0 INTRODUCCIÓN
Estas unidades de alarma contra incendios manual, desconexión de emergencia rompiendo un vidrio y botón pulsador han
sido diseñadas para enfrentar las condiciones ambientales más arduas. Las unidades son fáciles de instalar y de mantener.
La opción de acero inoxidable o aleación de aluminio de calidad marítima ofrece una variedad apta para las industrias en
tierra firme como en alta mar.
Las unidades están disponibles con las siguientes opciones y características:
Pestaña que se puede levantar
Etiqueta de funciones
Marbete
Puesta a tierra a través de clavijas de conexión a tierra internas/externas
LED (encapsulado)
Final de línea y resistencias eléctricas y diodos de serie (encapsulado)
Interruptores (dos como máximo)
Entradas de collarines M20 o M25 en varias posiciones, con un máximo de cuatro
Terminales de hasta un máximo de 9 x 2,5mm2
Prestación de llave de prueba en las unidades con rotura de vidrio
Acciones de reinicio opcionales momentáneas o de cerrojo con llave
2.0 INSTALACIÓN
General
La unidad no debe instalarse en lugares en los que pueda estar sometida a tensiones mecánicas o térmicas o donde pueda
ser alcanzada por sustancias agresivas ya existentes o previsibles.
La unidad ha sido diseñada de manera tal que no:
s#AUSELESIONESFÓSICASUOTROSDA×OSATRAVÏSDELCONTACTO
s0RODUZCATEMPERATURASUPERlCIALEXCESIVANIRADIACIØNINFRARROJAELECTROMAGNÏTICAOIONIZANTE
s0RESENTEPELIGROSNOELÏCTRICOS
Al instalar y poner en funcionamiento equipos con protección frente a explosiones, se deberán consultar los requisitos para
l
a selección, instalación y funcionamiento, por ejemplo, las normas mundiales como la IEC 60079-14 y el Código Eléctrico
Nacional (NEC, por sus siglas en inglés) de Norteamérica. Es posible que también se apliquen otros requisitos nacionales
y/o locales.
Asegúrese de que todas las tuercas, los pernos y las fijaciones estén firmemente ajustados.
Asegúrese de utilizar solamente los tapones de sellado correctos, enumerados o certificados, para obturar los puntos de entrada
de los collarines que no se usen y también de que se mantenga la calificación NEMA/IP de la unidad. MEDC recomienda
ELUSODEUNCOMPUESTOSELLADORCOMO(9,/-!20,ENLASROSCASDELOSCOLLARINESYENLOSTAPONESDESELLADOPARAASÓ
mantener la calificación IP de la unidad.
La unidad debe montarse sobre una superficie vertical, a través de los cuatro orificios de fijación de Ø9mm que se encuentran
en la base. Los orificios han sido diseñados para aceptar pernos o tornillos M8.
MEDC recomienda utilizar tornillos de acero inoxidable.
Caja terminal
PRECAUCIÓN: Antes de quitar la instalación de la tapa, asegúrese de que la alimentación hacia la unidad esté aislada.
Desatornille los 4 tornillos M6 (5,0mm de cabeza hexagonal A/F) mientras sostiene la tapa sobre la base. Mantenga los
tornillos en un lugar seguro y accesible, ya que no son imperdibles.
1
~
© Cooper MEDC 2011 08/11

Gire suavemente la tapa en sentido horario y antihorario, mientras tira de ella para sacarla de la base. Quítela para acceder
al interior. La tapa debe mantenerse sujeta a la base a través de una correa de retención.
La caja terminal debe cumplir con las especificaciones correspondientes a la aplicación solicitada. MEDC recomienda que
todos los cables y conductores estén identificados correctamente. Consulte el diagrama de conexiones suministrado con el
producto.
Asegúrese de utilizar sólo los collarines correctos, enumerados o certificados y de que la unidad esté oculta y puesta a tierra
correctamente.
Todos los collarines de cables deben ser de una calificación NEMA/IP equivalente a la del pulsador manual y deben estar
integrados con la unidad, de manera de mantener la calificación.
El borne de puesta a tierra interno se debe utilizar para la conexión a tierra del equipo y el borne externo, para un empalme
adicional, donde los códigos o autoridades locales permitan o exijan ese tipo de conexiones.
Una vez finalizada la terminación, presione cuidadosamente la tapa sobre la base y evite dañar las superficies de aco-
plamiento. Asegúrese de que la correa de retención no quede atrapada entre las superficies de acoplamiento y de que la
junta tórica esté apoyada correctamente sobre la ranura. Asegúrese de que la correa de retención y el cableado estén lejos del
accionador del microinterruptor y del mecanismo de funcionamiento. Vuelva a colocar los 4 tornillos M6 (5,0mm de cabeza
hexagonal A/F) en los orificios de la tapa y ajústelos firme y uniformemente. Una vez armada, asegúrese de mantener el
espacio máximo de 0,15mm entre la tapa y la base.
3.0 FUNCIONAMIENTO
El voltaje de funcionamiento de la unidad se indica en la etiqueta. Consulte el dibujo de referencia provisto con la unidad
para obtener más detalles sobre el cableado y los valores de los componentes internos ajustados.
DISPOSICIÓN GENERAL SM87BG
Funcionamiento de unidades SM87BG
La unidad se pone en funcionamiento rompiendo el vidrio que se encuentra frente a la tapa, con el martillo adosado. Si se ha
especificado una pestaña que se puede levantar, primero deberá levantar la pestaña para poder acceder al vidrio.
Procedimiento de reinicio de las unidades SM87BG
a. Para cambiar el vidrio, se suministra un kit que contiene juntas tóricas y vidrio.
©
08/11 © Cooper MEDC 2011

b. Desatornille y quite el bisel circular que se encuentra en el frente de la unidad.
c. Quite la junta tórica y el vidrio originales y asegúrese de que las ranuras del bisel y la tapa estén limpias.
d. Coloque la junta tórica más grande en la ranura que está sobre la tapa.
e. Coloque la junta tórica más pequeña sobre la ranura que se encuentra en la parte inferior del bisel:
i. Presente la junta tórica sobre la ranura.
ii. Coloque ambos pulgares juntos sobre la junta tórica.
iii. Presione la junta tórica para que entre en la circunferencia de la ranura y mantenga una presión uniforme.
iv. La junta tórica debe estar completamente apoyada en la ranura y no debe salirse cuando coloque el bisel a la tapa.
f. Coloque el vidrio nuevo sobre la tapa y coloque el bisel sobre la parte superior del vidrio.
g. Asegúrese de que el vidrio permanezca centrado en la tapa presionándolo con el pulgar a través del orificio que se
encuentra en el centro del bisel.
h. Con cuidado, use el vidrio para bajar el pistón hasta que el vidrio esté completamente en contacto con la junta
tórica de la tapa. Asegúrese de que haya un espacio parejo alrededor del vidrio.
i. Sin permitir que se mueva el vidrio, atornille el bisel hasta que el fondo quede presionado contra la tapa.
DISPOSICIÓN GENERAL SM87PB
Funcionamiento de unidades SM87PB
La unidad se pone en funcionamiento levantando la pestaña que se encuentra en el frente de la tapa y luego presionando el
accionador de acero que se encuentra debajo. Según el tipo de unidad solicitada, el accionador se mantendrá en la posición
presionada o volverá a su posición inicial.
Procedimiento de reinicio de la unidad SM87PB
En las unidades que tienen un mecanismo de cerrojo, una vez puestas en funcionamiento, el accionador se mantiene en la
posición. Para reiniciar el pulsador, levante la pestaña que se encuentra en el frente de la unidad e inserte la llave (suministrada
con la unidad) en la ranura que se encuentra en el frente del accionador. Se debe girar la llave suavemente para colocarla
en el accionador y retirarla a la posición inicial. Entonces podrá quitar la llave y bajar la pestaña.
4.0 MANTENIMIENTO
Durante su vida útil, la unidad necesitará poco o ningún tipo de mantenimiento. Sin embargo, si se presentan condiciones
ambientales anormales o poco frecuentes, debido a una avería o accidente en la planta, se recomienda efectuar una inspec-
ción visual.
© Cooper MEDC 2011 08/11

Si la unidad necesita limpieza, limpie solamente el exterior con un paño húmedo para evitar la acumulación de cargas
electrostáticas.
Si se presenta una falla en la unidad, MEDC puede repararla. Todas las piezas de la unidad son reemplazables.
Si adquirió una cantidad importante de unidades, le recomendamos que tenga disponibles unidades de repuesto. Los ingenieros
de Ventas Técnicas de MEDC podrán asesorarlo según sus requisitos.
5.0 CERTIFICACIÓN/APROBACIONES
Unidades IECEx
Certificadas con IEC 60079-0, IEC 60079-11 e IEC 60079-26
5NIDAD%XIA
Ex ia IIC T4 Ga (-55 °C a +55 °C)
El certificado IECEx y la etiqueta del producto indican la marca del nivel de protección IECEx del equipo
Ga
Donde Ga significa que es apto para el uso en el área de industrias de superficie de Zona 0, en presencia de gas.
Unidades ATEX
Certificadas con EN 60079-0, EN 60079-11 y EN 60079-26
5NIDAD%XIA
Ex ia IIC T4 Ga (-55 °C a +55 °C)
%LCERTIlCADOYLAETIQUETADEPRODUCTO!4%8INDICANLASMARCASDEGRUPOYCATEGORÓA!4%8
II 1 G
Donde:
3IGNIlCAQUECUMPLECON!4%8
II Significa que es apto para el uso en industrias de superficie
1 Significa que es apto para su uso en un área de Zona 0
G Significa que es apto para el uso en presencia de gases
%LCERTIlCADO!4%8YLAETIQUETADELPRODUCTOADEMÉSINDICANLASIGUIENTEMARCA
1180
Significa que la unidad cumple con las directivas europeas relevantes, en este caso 94/9/EC, junto con la cantidad de los
organismos notificados que emiten el certificado de examen tipo EC.
6.0 CONDICIONES ESPECIALES PARA EL USO SEGURO
La caja del aparato está hecha de aleación de aluminio y debe protegerse de impactos para evitar un posible riesgo de
ignición debido al impacto.
IEC
.DECERTIlCACIØN)%#%X"!38
!4%8
.DECERTIlCACIØN"ASEEFA!4%88
08/11 © Cooper MEDC 2011

1.0 INTRODUÇÃO
Estas unidades manuais de alarme de incêndio, de quebra de vidro para paragem de emergência e com
botões de pressão foram concebidas para as condições ambientais mais difíceis. As unidades são ambas
fáceis de instalar e manter. Uma escolha de aço inoxidável ou liga de alumínio naval torna a gama adequada
para indústrias terrestres ou marítimas.
As unidades estão disponíveis com as seguintes opções e características:
Barra orientadora
Placa de identificação
Etiqueta
Continuidade terra por meio de cavilhas de terra internas/externas
LED (encapsulado)
Resistências EOL (End of Line) e de série e díodos (encapsulados)
Comutadores (dois, no máximo)
Entradas de glande M20 ou M25 numa variação de posições, com um máximo de quatro
2
Terminais até um máximo de 9 x 2,5mm
Funcionalidade de chave de teste em unidades de quebra de vidro
Temporário ou bloqueio opcional com acções de reposição de chaves
2.0 INSTALAÇÃO
Geral
A unidade não deve ser instalada em locais onde possa ficar sujeita a tensões mecânicas ou térmicas ou em
que possa ficar junto a substâncias agressivas já existentes ou que possam vir a existir.
A unidade foi concebida para não:
• provocar ferimentos físicos ou outros danos devido a contactos.
• produzir uma temperatura de superfície excessiva, infravermelhos, electromagnética ou radiação
ionizante.
• representar perigos não eléctricos.
Quando instalar e operar equipamento protegido contra explosão, os requisitos para selecção, instalação e
operação devem ser consultados e.g. IEC60079-14 em todo o mundo e o
‘National Electrical Code’ (Código
Eléctrico Nacional) na América do Norte
. Poderão aplicar-se requisitos nacionais e/ou locais adicionais.
Certifique-se de que todos os parafusos, porcas e uniões estão apertados com segurança.
Certifique-se de que só os tampões obturadores listados ou certificados são usados para isolar pontos de
entrada da junta não utilizados e que a classificação NEMA/IP da unidade é mantida. A MEDC recomenda o
uso de um composto de selagem, como por exemplo, o HYLOMAR PL32 nas roscas de juntas e tampões
obturadores para manter a classificação IP da unidade.
A unidade deve ser montada numa superfície vertical usando os quatro orifícios de fixação com 9 mm de
diâmetro na base. Estes foram concebidos para aceitar um parafuso ou porca M8.
A MEDC recomenda o uso de parafusos de aço inoxidável.
Terminação de Cabos
CUIDADO: Antes de remover a cobertura, assegure-se de que a potência da unidade está isolada.
Desaperte os 4 parafusos M6 (chave hexagonal A/F de 5,0mm) fixando a tampa à base. Mantenha os
parafusos num local seguro acessível pois não são fixos.
Torça a cobertura delicadamente no sentido dos ponteiros do relógio e no sentido contrário aos ponteiros do
relógio, ao mesmo tempo que a puxa para fora da base. Remova para ter acesso ao interior. A montagem da
cobertura deverá permanecer fixa à base por meio de uma tira de retenção.
A terminação de cabos deve estar conforme as especificações aplicadas à aplicação requerida. A MEDC
recomenda que todos os cabos e casquilhos devem estar correctamente identificados. Por favor, consulte o
Português
diagrama de cablagem fornecido com o produto.
08/11 © Cooper MEDC 2011

Certifique-se de que só as juntas de cabos listadas ou certificadas correctas são usadas e que a montagem está
protegida e correctamente ligada à terra. Todos os vedantes de cabos devem ser de classificação NEMA/IP
equivalente à do ponto de chamada manual e integrados na unidade de forma que esta classificação seja mantida.
O terminal de ligação à terra interno, sempre que estiver instalado, deve ser usado para a ligação à terra do
equipamento e o terminal externo é para uma ligação suplementar onde os códigos ou as autoridades locais
permitam ou exijam esse tipo de ligação.
Quando a terminação estiver completa, coloque cuidadosamente a cobertura na base de novo, evitando
danos nas superfícies conjugadas. Assegure-se de que a fita de retenção não está entalada entre as superfícies
conjugadas e que o anel em O está correctamente encaixado na sua ranhura. Assegure-se de que a fita de
retenção e os cabos estão longe do actuador de microcomutador e mecanismo de operação. Substitua os 4
parafusos M6 (chave hexagonal A/F de 5,0mm) nos orifícios na montagem da cobertura e firmemente
apertados. Assegure-se de que o intervalo máximo de 0,15mm é mantido entre a cobertura e a base depois
de montada.
3.0 OPERAÇÃO
A voltagem de funcionamento da unidade está marcada na etiqueta da unidade. Por favor, consulte o desenho
de referência fornecido com cada unidade para ver detalhes de cablagem e quaisquer valores dos
componentes internos embutidos.
DISPOSIÇÃO GERAL do SM87BG
Unidades SM87BG - operação
A unidade opera-se quebrando o elemento de vidro na parte da frente da cobertura com o martelo anexo à
unidade. Se uma barra orientadora tiver sido especificada, esta terá que ser levantada primeiro para ter
acesso ao elemento de vidro.
Unidades SM87BG - procedimento de reposição
a. Para substituir o vidro, fornece-se um kit que contém anéis em O e vidro.
b. Desaparafuse e remova o aro circular na parte da frente da unidade.
c. Remova os anéis em O e o vidro originais e assegure-se de que as ranhuras no aro e na cobertura estão
li
mpas.
d. Encaixe o anel em O maior na ranhura na cobertura.
e. Encaixe o anel em O maior pequeno na ranhura por baixo do ar.
i. Coloque o anel em O na ranhura.
PLACA DE
IDENTIFICAÇAO
ORIFICIOS DE
FIXAÇAO 4
POSIÇOES Ø9±1
ETIQUETA
(OPCIONAL)
08/11 © Cooper MEDC 2011

ii. Coloque os polegares de ambas as mãos lado a lado no anel em O.
iii. Pressione o anel em O para baixo na circunferência da ranhura mantendo uma pressão uniforme,
f
orçando o anel em O a encaixar na ranhura.
iv. O anel em O deverá estar totalmente encaixado na ranhura e não cair quando se encaixar o aro na
co
bertura.
f. Coloque o novo elemento de vidro na posição na cobertura e monte o aro no topo do elemento de vidro.
g. Assegure-se de que o elemento de vidro fica central na cobertura segurando no vidro com o polegar
a
través do orifício no centro do aro.
h. Use cuidadosamente o elemento de vidro para pressionar o êmbolo até o vidro ficar em contacto total
co
m o anel em O da cobertura. Assegure-se de que existe um intervalo uniforme à volta do vidro.
i. Sem permitir que o elemento de vidro se mova, aparafuse o aro até que o fundo do aro esteja apertado
co
ntra a cobertura.
SM87PB DISPOSIÇÃO GERAL
Unidades SM87PB - operação
A unidade é operada pela elevação da barra na parte da frente da cobertura, depois pressionando o
actuador de aço por baixo. Dependendo do tipo de unidade encomendado, o actuador irá permanecer na sua
posição pressionada ou voltará à sua posição original.
Unidades SM87PB – procedimento de reposição
Nas unidades com um mecanismo de bloqueio, depois de operado, o actuador permanece na sua posição.
Para repor o ponto de chamada, levante a barra na parte da frente da unidade e insira a chave (fornecida
com a unidade) na ranhura na parte da frente do actuador. A chave deve ser rodada ligeiramente para a
posicionar no actuador e puxada para a posição inicial. Depois, a chave já pode ser removida e a barra descida.
4.0 MANUTENÇÃO
Durante a vida útil da unidade, precisará de pouca ou nenhuma manutenção. No entanto, se ocorrerem
condições ambientais invulgares devido a danos ou acidentes nas instalações, etc., recomenda-se uma
inspecção visual.
Se a unidade precisar de limpeza, limpe apenas o exterior com um pano húmido para evitar a acumulação de
carga electroestática. Se uma unidade falhar, a unidade pode ser reparada pela MEDC. Todas as peças da
unidade são substituíveis.
Se adquiriu uma quantidade significativa de unidades, recomenda-se que as peças sobresselentes também
sejam disponibilizadas. Por favor, discuta os seus requisitos com os Engenheiros Técnicos de Vendas da MEDC.
105±1 CRS
PLACA DE
IDENTIFICAÇAO
ORIFICIOS DE
FIXAÇAO 4
POSIÇOES Ø9±1
105±1
расстояние
между
центрами
ETIQUETA
(OPCIONAL)
08/11 © Cooper MEDC 2011

5.0 CERTIFICAÇÃO/APROVAÇÕES
Unidades IECEx
Certificadas de acordo com a IEC 60079-0, IEC 60079-11 e IEC 60079-26
Unidade Ex ia (Certificação IEC N.º IECEx BAS10.0033X)
Ex ia IIC T4 Ga (-55°C a +55°C)
A certificação IECEx e a etiqueta de produto têm a marcação de nível de protecção de equipamento IECEx
Ga
Onde Ga significa adequabilidade para uso numa área industrial de superfície de Zona 0 na presença de
gás.
Unidades ATEX
Certificadas de acordo com a EN60079-0, EN60079-11 e EN60079-26
Unidade Ex ia (Certificação ATEX N.º Baseefa02ATEX0152X)
Ex ia IIC T4 Ga (-55°C a +55°C)
A certificação ATEX e a etiqueta de produto têm a marcação de nível de grupo e categoria ATEX:
II 1 G
Onde:
Significa conformidade com ATEX
II Significa adequabilidade para uso em indústrias de superfície
1 Significa adequabilidade para uso numa área de zona 0
G Significa adequabilidade para uso na presença de gases
A certificação ATEX e a etiqueta de produto também têm a seguinte marcação:
1180
Isto significa conformidade das unidades com as directivas europeias relevantes, neste caso 94/9/EC,
juntamente com o número da entidade notificada emissora da certidão de examinação to tipo EC.
6.0 CONDIÇÕES ESPECIAIS PARA UM USO EM SEGURANÇA
A estrutura do aparelho é feita de liga de metal que deve ser protegida contra impactos para evitar um
possível risco de inflamação devido ao impacto.
08/11 © Cooper MEDC 2011

MEDC Stock No.
TM147-ISSE
1
Cooper MEDC Ltd, Unit B, Sutton Parkway, Oddicroft Lane, Sutton in Ashfield NG17 5FB
Tel: +44 (0)1623 444444 Fax: +44 (0)1623 444531
Email: medc.sales@cooperindustries.com medc.orders@cooperindustries.com
Web: www.coopermedc.com
© Cooper MEDC 2011 08/11

