MSI Wind Board D510 – page 5
Manual for MSI Wind Board D510

Français
Fr-23
tRCD
tRCD
Quand le DRAM est rafraîchi, les rangs et les colonnes sont tous adressés séparé-
ment. Cet article vous permet de déterminer le timing de la transition de RAS (row
address strobe) à CAS (column address strobe). Le moins fonctionne l’horloge, le
plus vite est la performance de DRAM.
tRP
tRP
Cet article contrôle le numéro de cycles pour que le Row Address Strobe (RAS) soit
permit à précharger. S’il n’y a pas assez de temps pour que le RAS accumule son
charge avant le refraîchissement de to DRAM, le refraîchissement peut être incom-
plet et le DRAM peut échouer à retirer les données. Cet article applique seulement
quand le DRAM synchrone est installé dans le système.
tRAS
tRAS
L’article détermine le temps que le RAS prend pour lire ou écrire une cellule de
mémoire.
Auto Disable DRAM/PCI Frequency
Auto Disable DRAM/PCI Frequency
Lorsque mis en [Enabled], le système éteindra les horloges des fentes vides de PCI
pour réduire au minimum l’interface électromagnétique (EMI).
CPU VTT (V)/ DRAM Voltage (V)/ CPU NB (V)/ SB 1.50 (V)
CPU VTT (V)/ DRAM Voltage (V)/ CPU NB (V)/ SB 1.50 (V)
Ces articles servent à ajuster le voltage du CPU, DRAM, CPU NB et SB.
Spread Spectrum
Spread Spectrum
Lorsque le générateur d’horloge de la carte mère fonctionne, les valeurs extrêmes
(spikes) créent des interférences électromagnétiques EMI (Electromagnetic Interfer-
ence). La fonction Spread Spectrum réduit ces interférences en réglant les impultions
pour que les spikes des impultions sont réduits au courbes plus plates.
Important
▶
▶
▶
▶
▶
▶
Important
•
Si vous n’avez pas de problème d’EMI, laissez l’option sur [Disable], ceci vous per-
met d’avoir une stabilité du système et des performances optmales. Dans le cas
contraire, choisissez Spread Spectrum pour réduire les EMI
.
•
Plus la valeur Spread Spectrum est importante, plus les EMI sont réduites, et le
système devient moins stable. Pour la valeur Spread Spectrum la plus convenable,
veuillez consulter le reglement EMI local
.
•
N’oubliez pas de désactiver la fonction Spread Spectrum si vous êtes en train
d’overclocker parce que même un battement léger peut causer un accroissement
temporaire de la vitesse de l’horloge qui verrouillera votre processeur overclocké
.

Fr-24
Carte mère MS-7618
▍
Carte mère MS-7618
INFORMATION DE LOGICIEL
INFORMATION DE LOGICIEL
Sortez le pilote/ Service du DVD, qui est inclus dans le paquet de la carte mère et
placez-le dans le DVD-ROM. L’installation va automatiquement se déclencher, cliquez
sur le pilote ou sur l’usage et suivez le pop-up de l’écran pour accomplir l’installation.
Le pilote/Service DVD contient :
Menu de pilote : Il montre les pilotes disponibles. Installez le pilote si vous le sou-
haitez pour activez le dispositif.
Menu de service : Il montre les applications logicielles supportées par la carte
mère.
Menu du site Web : Il vous indique les sites webs utiles.
Important
-
-
-
Important
Veuillez consulter le site Web de MSI pour obtenir les derniers pilotes et BIOS pour
meilleure performance du système.

Wind Board
Wind Board
Серия D510/ D410
Серия D510/ D410
Русский
Русский
Europe version

Ru-2
MS-7618 Системная плата
▍
MS-7618 Системная плата
ХАРАКТЕРИСТИКИ
ХАРАКТЕРИСТИКИ
Процессоры
Процессоры
®
Поддержка Intel
Atom CPU D510/ D410
Base Clock Extemal clock frequency
Base Clock Extemal clock frequency
100 МГц
Чипсет
Чипсет
®
Intel
NM10
Память
Память
DDR2 800 SDRAM (4ГБ Max)
2 слота DDR2 DIMM (240конт / 1.8V), один канал
*(За дополнительной информацией о совместимых компонентах посетите сайт
http://www.msi.com/index.php?func=testreport)
LAN
LAN
®
Поддержка Realtek
RTL8103EL 10/100 Мб/с
®
Поддержка Realtek
RTL8111DL 10/100/1000 Мб/с (опционально)
Поддержка управления питанием ACPI
Аудио
Аудио
®
Аудио кодек Realtek
ALC888S
Поддержка 6-канального аудио выхода
SATA
SATA
®
2 порта SATA 3 Гб/с на чипсете Intel
NM10
Коннекторы
■
■
■
■
■
■
■
■
■
■
■
Коннекторы
■
Задней панели
‑
1 PS/2 порт мыши
‑
1 PS/2 порт клавиатуры
‑
1 последовательный порт
‑
1 порт VGA
‑
4 порта USB 2.0
‑
1 разъем RJ-45 LAN
‑
3 звуковых разъема с гибким переназначением
■
Разъемы, установленные на плате
‑
2 разъема USB 2.0
‑
1 разъем параллельного порта
‑
1 разъем для подключения аудио на передней панели
‑
1 разъем S/PDIF-Out
‑
1 разъем датчика открывания корпуса
‑
1 разъем TPM

Русский
Ru-3
Слоты
Слоты
1 слот PCI
Поддержка интерфейса PCI шины с питанием 3.3V/ 5V
Форм Фактор
Форм Фактор
Mini-ITX (17.0см X 17.0см)
Крепление
■
■
■
Крепление
■
4 отверстия для крепления
Помощь в приобретении дополнительных аксессуаров и поиске номера изделия
можно найти по адресу
http://www.msi.com/index.php

Ru-4
MS-7618 Системная плата
▍
MS-7618 Системная плата
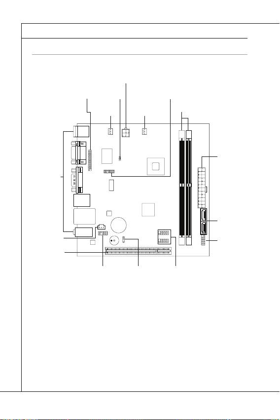
РАЗМЕЩЕНИЕ КОМПОНЕНТОВ СИСТЕМНОЙ ПЛАТЫ
РАЗМЕЩЕНИЕ КОМПОНЕНТОВ СИСТЕМНОЙ ПЛАТЫ
Задняя
Задняя
панель
панель,
Ru-8
DDR2
DDR2, Ru-5
JCI1
JCI1, Ru-9
JPWR1
JPWR1, Ru-7
JTPM1
JTPM1, Ru-12
SATA
SATA, Ru-9
SYSFAN1
SYSFAN1, Ru-10
JFP1
JFP1, Ru-10
JUSB1~2
JUSB1~2, Ru-11
PCI
PCI, Ru-15
JPWR2
JPWR2, Ru-7
JBAT1
JBAT1, Ru-14
SYSFAN2
SYSFAN2,
Ru-10
JLPT1
JLPT1, Ru-12
JAUD1
JAUD1, Ru-11
JSP1
JSP1, Ru-13

Русский
Ru-5
ПАМЯТЬ
ПАМЯТЬ
Слоты DIMM используются для установки модулей памяти. За дополнительной
информацией о совместимых компонентах обратитесь на сайт
http://www.msi.com/index.php?func=testreport
DDR2
DDR2
240-конт, 1.8V
240-конт, 1.8V
64x2=128 конт
64x2=128 конт
56x2=112 конт
56x2=112 конт
Правила установки модулей памяти
Правила установки модулей памяти
Ниже приведены правила заполнения слотов памяти.
1
1
DIMM1
DIMM2
2
2
DIMM1
DIMM2
Внимание
Внимание
Модули DDR2 не взаимозаменяемы с модулями DDR, и стандарт DDR2 не
имеет обратной совместимости. Следует всегда устанавливать модули памяти
DDR2 в разъемы DDR2 DIMM.
Чтобы система загрузилась, вначале установите модули в разъем
DIMM1
Установленно
Не установленно
•
•
DIMM1.
•
Из-за специфики распределения системных ресурсов чипсета, объём доступной
памяти может максимально составить 3+ГБ (но не 4ГБ) при установке модулей
памяти 2ГБ в каждый из слотов.

Ru-6
MS-7618 Системная плата
▍
MS-7618 Системная плата
Установка модулей памяти
Установка модулей памяти
Модули памяти имеют одну прорезь в средней части. Модуль войдет в разьем
только при правильной ориентации.
Вставьте модуль в DIMM слот в вертикальном направлении. Затем нажмите
на него, чтобы золоченые контакты глубоко погрузились в DIMM слот. Если
модуль памяти вставлен правильно, то пластиковые защелки на обоих концах
закроются автоматически.
Вручную убедитесь, что модуль закреплен в слоте DIMM защелками с обеих
сторон.
Прорезь
Ключ
Внимание
1.
2.
3.
Внимание
Золотые контакты едва видны, если модули памяти правильно размещены в
DIMM слоте.

Русский
Ru-7
РАЗЪЕМ ПИТАНИЯ
РАЗЪЕМ ПИТАНИЯ
24-контактный разъем питания ATX: JPWR1
24-контактный разъем питания ATX: JPWR1
Этот разъем позволяет подключить 24-контактный коннектор питания ATX.
Для его подключения убедитесь, что коннектор и контакты разъема правильно
сориентированы. Затем плотно вставьте его в разъем на системной плате.
Вы также можете использовать 20-контактный ATX блок питания. При
использовании 20-контактного разъема, подключайте его вдоль контактов 1 и 13.
13.+3.3
V
11.+12V
10.+12V
9.5VSB
8.PWR OK
7.Ground
6.+5V
5.Ground
4.+5V
3.Ground
2.+3.3V
1.+3.3V
24.Ground
23.+5V
22.+5V
21.+5V
20.Res
19.Ground
18.Ground
17.Ground
16.PS-ON#
15.Ground
14.-12V
1
2.+3.3V
4-контактный разъем питания ATX: JPWR2
4-контактный разъем питания ATX: JPWR2
Этот разъем питания используется для обеспечения питания процессора.
4.+12
V
2.Ground
3.+12V
1
.Ground
Внимание
Внимание
•
Убедитесь в том, что все разъемы подключены к источникам питания ATX для
стабильной работы системной платы.
•
Для стабильности системы настоятельно рекомендуется использовать источник
питания на 350 Вт (и выше).

Ru-8
MS-7618 Системная плата
▍
MS-7618 Системная плата
ЗАДНЯЯ ПАНЕЛЬ
ЗАДНЯЯ ПАНЕЛЬ
Порт мыши/клавиатуры
Порт мыши/клавиатуры
®
Стандартные разъемы DIN PS/2
для подключения мыши/клавиатуры с
®
интерфейсом PS/2
.
Последовательный порт
Последовательный порт
Данный разъем является высокоскоростным последовательным портом связи
16550A с 16-байтной передачей FIFO. К этому разъему можно непосредственно
подключить последовательное устройство.
Порт VGA
Порт VGA
Разъем DB15 для подключения монитора.
Порт USB
Порт USB
USB порт (Universal Serial Bus) позволяет подключать такие USB устройства, как
клавиатура, мышь и т.д.
Разъем LAN
Разъем LAN
Стандартный разъем RJ-45 для подключения к
локальной вычислительной сети (LAN). К нему
подключается кабель локальной сети.
LED
LED
Цвет
Цвет
Состояние LED
Состояние LED
Описание
Описание
Лев. Жёлт. Нет LAN соединение не установлено.
Есть(постоянно) LAN соединение установлено.
Есть(ярче & мигает) Связь с другим компьютером по LAN.
Прав.
Зелён. Нет Скорость передачи 10 Мб/с.
Есть Скорость передачи 100 Мб/с.
Оранж. Есть Скорость передачи 1000 Мб/с.
Аудио разъемы
▶
▶
▶
▶
▶
▶
Аудио разъемы
Эти разъемы используются для подключения звуковых устройств. Разъемы,
выполняющие разные функции, имеют различные цвета.
■
Вход аудио (Голубой) - Линейный вход, используется для подключения
внешего CD проигрывателя, магнитофона или других звуковых
устройств.
■
Выход аудио (Зелёный) - Линейный выход для подключения наушников
или колонок.
■
Микрофон (Розовый) - Разъем для подключения микрофона.
Порт
Порт
мыши
мыши
Линейный
Линейный
вход
вход
Порт USB
Порт USB
Жёлт. Зелён./ Оранж.
Порт
Порт
клавиатуры
клавиатуры
Порт VGA
Порт VGA
Разъем
Разъем
LAN
LAN
Порт USB
Порт USB
Последовательный
Последовательный
порт
порт
Линейный
Линейный
выход
выход
Микрофон
Микрофон

Русский
Ru-9
КОННЕКТОРЫ
КОННЕКТОРЫ
Разъем Serial ATA: SATA1~2
Разъем Serial ATA: SATA1~2
Данный разъем является высокоскоростным портом интерфейса Serial ATA.
Любой разъем Serial ATA может соединяться с одним устройством Serial ATA.
F
l
o
p
p
y
D
M
S
I
F
l
o
p
p
y
D
M
S
I
F
l
o
p
p
y
D
M
S
I
F
l
o
p
p
y
D
M
S
I
K
d
k
l
d
k
d
d
f
k
k
f
k
a
s
k
k
s
d
k
d
k
f
k
k
a
d
a
d
d
d
f
d
f
d
d
-
k
l
f
d
f
d
d
k
d
a
f
d
d
f
d
d
d
j
a
s
d
d
j
d
f
f
f
a
d
k
d
a
s
d
d
d
f
f
d
f
d
f
f
d
s
a
s
d
d
f
d
d
d
a
d
a
s
d
d
a
s
d
a
s
s
d
d
f
a
a
s
d
d
a
d
d
s
d
d
d
f
d
f
s
d
f
a
s
a
d
f
f
s
f
f
d
f
a
s
d
f
f
f
d
f
K
d
k
l
d
k
d
d
f
k
k
f
k
k
k
s
k
a
s
d
k
d
a
f
d
d
k
a
d
f
d
f
k
d
d
-
k
l
f
d
d
f
a
d
f
f
d
d
d
d
k
d
d
j
a
d
f
a
d
d
d
d
s
j
d
d
f
f
k
d
a
s
d
f
f
d
f
d
f
f
d
s
a
s
d
d
f
d
d
d
a
d
a
d
a
s
d
s
a
d
s
s
d
d
f
a
a
s
d
d
a
d
d
s
d
d
d
f
d
f
s
d
f
f
a
a
d
f
f
s
s
d
f
a
f
s
d
f
f
f
d
f
F
l
o
p
p
y
D
M
S
I
F
l
o
p
p
y
D
M
S
I
K
d
k
l
k
d
d
d
f
k
k
k
f
k
k
s
d
k
k
s
d
k
a
d
k
k
d
a
f
d
f
a
d
f
d
d
f
d
f
-
d
l
d
f
d
d
d
d
a
d
k
d
s
d
j
f
d
j
d
f
d
k
a
d
s
d
f
a
d
d
f
f
a
d
f
f
d
d
f
f
d
a
s
d
f
d
d
d
a
s
d
d
a
s
d
d
a
s
d
a
s
s
d
d
f
a
a
s
d
d
d
a
s
d
d
d
d
f
s
d
f
a
s
a
d
d
f
f
f
s
f
f
d
a
f
s
d
f
f
f
d
f
K
d
k
l
k
d
d
d
f
k
k
k
a
f
k
k
s
k
f
d
k
k
l
s
d
k
d
k
a
d
a
d
f
d
d
f
d
f
d
-
d
f
a
d
f
d
d
d
d
k
d
d
j
f
d
a
s
d
d
d
d
j
d
f
a
k
d
d
f
f
f
a
s
d
f
d
d
f
d
f
d
f
a
d
s
d
a
s
s
d
d
a
f
d
a
s
d
d
a
d
s
d
f
a
s
d
a
s
d
d
d
a
s
d
d
d
d
f
s
d
f
d
f
a
s
a
d
f
f
f
s
d
f
a
s
f
d
f
f
f
d
f
Внимание
Внимание
Избегайте, пожалуйста, резких изгибов кабеля Serial ATA. В противном случае
могут возникнуть потери данных при передаче.
Разъем датчика открывания корпуса: JCI1
Разъем датчика открывания корпуса: JCI1
К этому коннектору подключается кабель датчика, установленного в корпусе.
При открывании корпуса его механизм активизируется. Система запоминает это
событие и выдает предупреждение на экран. Предупреждение можно отключить
в настройках BIOS.
1
.
C
I
N
T
R
U
2
.
G
r
o
u
n
d

Ru-10
MS-7618 Системная плата
▍
MS-7618 Системная плата
Разъем питания вентиляторов: SYSFAN1~2
Разъем питания вентиляторов: SYSFAN1~2
Разъемы питания вентиляторов поддерживают вентиляторы с питанием +12В.
При подключении необходимо помнить, что красный провод подключается к шине
+12В, черный - к земле GND. Если на системной плате установлена микросхема
аппаратного мониторинга, необходимо использовать специальные вентиляторы с
датчиками скорости для реализации функции управления вентиляторами.
1
2
.
G
3
.
+
r
.
S
1
o
2
u
e
V
n
n
d
s
o
r
Коннекторы передней панели: JFP1
Коннекторы передней панели: JFP1
Эти коннекторы используются для подключения кнопок и индикаторов,
расположенных на передней панели корпуса. Коннектор JFP1 соответствует
®
руководству Intel
Front Panel I/O Connectivity Design.
10.NoPin
5.-
3.-
1.+
Reset Switc
h
HDD LE
D
Power Switch
Power LED
8.-
6.+
4.-
2.+
9.Reserved
7.+

Русский
Ru-11
Разъем USB передней панели: JUSB1 / JUSB2
Разъем USB передней панели: JUSB1 / JUSB2
®
Разъем, соответствует спецификации Intel
I/O Connectivity Design, идеально
подходит для подключения таких высокоскоростных периферийных устройств, как
USB HDD, цифровые камеры, MP3 плееры, принтеры, модемы и им подобные.
1
.
V
C
C
3
.
U
S
B
D
-
1
0
.
U
S
B
O
C
9
.
7
N
.
5
G
o
.
r
P
U
o
i
S
u
B
n
D
d
+
n
8
.
6
G
.
U
r
4
o
.
S
u
2
U
B
n
.
S
V
D
d
B
C
D
+
C
-
Внимание
Внимание
Помните, что во избежание повреждений, контакты VCC и GND должны быть
правильно подключены.
Выносной разъем аудио: JAUD1
Выносной разъем аудио: JAUD1
Этот коннектор позволяет подключить выносной разъем аудио на передней
®
панели и соответствует руководству Intel
Front Panel I/O Connectivity Design.
3
.
1
M
.
M
I
C
I
C
R
L
1
0
.
H
e
a
d
P
h
o
n
e
D
e
t
e
c
t
i
o
n
9
.
7
H
5
.
S
e
a
.
H
E
d
e
N
P
a
S
h
d
E
o
P
_
n
h
S
e
o
E
n
N
e
D
R
L
Выносная планка USB 2.0
(опционально)
8
.
6
N
.
o
4
M
.
I
P
2
P
C
i
R
n
.
G
D
E
r
e
o
S
t
u
E
e
n
N
c
d
t
C
i
o
E
n
#

Ru-12
MS-7618 Системная плата
▍
MS-7618 Системная плата
Разъем TPM Модуля: JTPM1
Разъем TPM Модуля: JTPM1
Данный разъем подключается к модулю TPM (Trusted Platform Module)(опционально).
За более подробной информацией и назначениями обращайтесь к описанию
модуля TPM.
1
0
.
N
o
P
i
n
1
1
4
2
.
G
.
G
r
o
8
r
u
.
o
n
6
5
u
.
V
n
d
4
S
e
P
d
.
3
r
o
.
i
3
a
w
V
l
e
I
R
r
P
o
Q
w
e
r
2
.
3
V
S
t
a
n
d
b
y
p
o
w
e
r
5
.
3
L
.
L
P
1
.
P
C
L
C
a
P
R
d
C
d
C
e
r
s
e
l
s
o
e
s
c
t
k
&
d
a
t
a
p
i
n
0
1
1
9
.
.
L
7
L
P
.
P
C
L
C
P
a
C
a
d
d
d
a
d
r
d
r
e
d
e
s
r
s
s
e
s
&
s
s
&
d
&
d
a
a
t
d
t
a
a
a
p
t
a
p
i
n
i
p
n
i
2
n
1
3
1
3
.
L
P
C
F
r
a
m
e
Разъем параллельного порта: JLPT1
Разъем параллельного порта: JLPT1
Этот коннектор используется для подключения опциональной планки
параллельного порта. Параллельный порт - это стандартный порт для принтера.
Он поддерживает режимы EPP (усовершенствованный параллельный порт) и
ECP (параллельный порт с дополнительными возможностями).
2
2
6
4
.
N
2
.
G
o
2
2
.
r
P
0
G
o
i
1
n
.
u
8
G
r
o
n
1
.
r
u
6
G
d
o
n
1
.
r
u
d
1
4
G
o
n
.
r
u
d
2
G
o
n
1
.
r
u
d
0
G
o
n
8
.
G
r
d
.
o
u
6
L
r
u
n
d
.
P
o
n
4
P
T
u
d
.
I
E
N
_
n
2
2
S
d
.
R
I
5
T
L
A
2
.
R
#
I
3
S
F
#
N
2
.
L
D
#
1
P
C
#
1
.
B
E
T
1
9
7
.
A
U
1
.
C
S
5
P
Y
1
.
P
R
K
3
#
1
.
P
R
N
1
N
D
9
.
R
7
.
P
R
N
D
7
P
6
.
R
N
D
5
P
5
3
.
N
D
P
R
D
4
.
P
R
N
3
1
D
.
R
R
N
2
N
D
S
1
T
D
B
0
#

Русский
Ru-13
Разъем S/PDIF-Out: JSP1
Разъем S/PDIF-Out: JSP1
Этот разъем используется для подключения интерфейса S/PDIF (Sony & Philips
Digital Interconnect Format) для передачи звука в цифровом формате.
3
.
2
G
.
r
1
S
o
.
P
u
V
D
n
C
I
d
C
F
Выносная планка S/PDIF
(опционально)

Ru-14
MS-7618 Системная плата
▍
MS-7618 Системная плата
ПЕРЕМЫЧКИ
ПЕРЕМЫЧКИ
Перемычка очистки CMOS: JBAT1
Перемычка очистки CMOS: JBAT1
На плате установлена CMOS память с питанием от батарейки, хранящая данные
о конфигурации системы. С помощью памяти CMOS, система автоматически
загружается каждый раз при включении. Если у вас возникает необходимость
сбросить конфигурацию системы (очистить CMOS), воспользуйтесь этой
перемычкой.
JBAT1
JBAT1 Хранение
Сброс
настроек
настроек
1 11
Внимание
Внимание
Очистка CMOS производится соединением контактов 2-3 при отключенной
системе. Затем следует вернуться к соединению контактов 1-2. Избегайте очистки
CMOS при работающей системе: это повредит системную плату.

Русский
Ru-15
СЛОТЫ
СЛОТЫ
Слот PCI (Peripheral Component Interconnect)
Слот PCI (Peripheral Component Interconnect)
Слот PCI позволяет установить карты LAN, SCSI, USB и другие дополнительные
карты расширения, которые соответствуют спецификации PCI.
32-bit PCI слот
Внимание
Внимание
Перед установкой или извлечением карт расширения убедитесь, что кабель
питания отключен от электрической сети. Прочтите документацию на карту
расширения и выполните необходимые аппаратные или програмные установки
для данной платы, такие как перемычки, переключатели или конфигурацию
BIOS.
Маршрутизация запросов прерывания PCI
Маршрутизация запросов прерывания PCI
IRQ - сокращение от interrupt request (line) - линия запроса прерывания,
аппаратная линия, по которой устройства могут посылать сигнал прерывания
микропроцессору. Обычное подключение PCI IRQ к контактам шины PCI показано
ниже:
Order1 Order2 Order3 Order4
Order1 Order2 Order3 Order4
PCI Slot1 INT B# INT C# INT D# INT A#

Ru-16
MS-7618 Системная плата
▍
MS-7618 Системная плата
НАСТРОЙКА BIOS
НАСТРОЙКА BIOS
В этой главе приводятся основные сведения о режиме настройки BIOS (BIOS
SETUP), который позволяет установить оптимальную конфигурацию системы.
Этот режим может потребоваться в следующих случаях:
Во время загрузки системы появляется сообщение об ошибке с
требованием запустить BIOS SETUP.
Требуется заменить заводские настройки на собственные.
Внимание
■
■
Внимание
•
Для улучшения работы системы содержимое каждого из разделов BIOS,
рассматриваемое в данной главе, постоянно совершенствуется. Поэтому, для
новых версий BIOS оно может несколько отличаться от данного описания,
которое сможет служить в качестве ориентира.
•
При загрузке, в первой, после объема памяти строке, выводится обозначение
BIOS . Обычно оно имеет следующий формат:
A7618IMS V1.0 020110 где:
1ая буква соответствует изготовителю BIOS ( A = AMI, W = AWARD и P
= PHOENIX).
Следующие 4 цифры соответствуют номеру модели.
Следующая буква обозначает поставщика чипсета (I = Intel, N = Nvidia,
A = AMD, и V = VIA).
2 следующие буквы обозначают заказчика MS = стандартный заказчик.
V1.0 соответствует номеру версии BIOS.
020110 - дата выпуска BIOS.

Русский
Ru-17
Вход в режим настройки
Вход в режим настройки
Включите питание компьютера. При этом запустится процедура POST (Тест
включения питания). Когда на экране появится приведенное ниже сообщение,
нажмите клавишу <DEL> для входа в режим настройки.
Press DEL to enter SETUP
Press DEL to enter SETUP
(Нажмите DEL для входа в SETUP)
(Нажмите DEL для входа в SETUP)
Если сообщение исчезло, а вы не успели нажать клавишу, перезапустите систему,
выключив и снова включив питание, или нажав кнопку RESET. Можно, также,
перезапустить систему, нажав одновременно клавиши <Ctrl>, <Alt>, и <Delete>.
Режим настройки
Режим настройки
Войдя в режим настройки, вы сразу увидите Главное меню.
Main Menu (Главное меню)
Main Menu (Главное меню)
Главное меню содержит список настроек, которые вы можете изменить. Для
выбора можно использовать клавиши со стрелками ( ↑↓ ) . Справка о выбранной
настройке отображается в нижней части экрана.
Подменю
Подменю
Если вы обнаружите, что слева от пункта меню имеется знак правого указателя
это означает наличие подменю, содержащего дополнительные настройки
которые можно сделать в этом пункте. Используйте управляющие клавиши ( ↑
↓ ) для выбора , а затем нажмите <Enter> чтобы вызвать подменю. Далее можно
использовать управляющие клавиши для ввода параметров и перемещения по
пунктам подменю. Чтобы вернуться в главное меню, просто нажмите <Esc>.
Подробная справка <F1>
Подробная справка <F1>
В режиме настройки BIOS имеется возможность получения подробной справки.
Ее можно вызвать из любого меню простым нажатием <F1>. В окне справки будут
перечислены все возможные настройки в выбранном пункте меню. Нажмите
<Esc> для выключения окна справки.

Ru-18
MS-7618 Системная плата
▍
MS-7618 Системная плата
The Main Menu (Главное меню)
The Main Menu (Главное меню)
При входе в режим настройки BIOS на экране отображается Главное меню.
Главное меню позволяет выбрать функции настройки и имеет два варианта
выхода. Для перемещения по пунктам используются клавиши со стрелками и <En-
ter> для подтверждения или входа в подменю.
Standard CMOS Features (Стандартные функции CMOS)
Standard CMOS Features (Стандартные функции CMOS)
Это меню позволяет установить основные параметры конфигурации системы
(дату, время и т.п.).
Advanced BIOS Features (Дополнительные функции BIOS)
Advanced BIOS Features (Дополнительные функции BIOS)
Это меню используется для настройки специальных функций.
Integrated Peripherals (Встроенные периферийные устройста)
Integrated Peripherals (Встроенные периферийные устройста)
Это меню используется для настройки параметров встроенных периферийных
устройств.
Power Management Setup (Настройка управления питанием)
Power Management Setup (Настройка управления питанием)
Это меню позволяет задать параметры управления питанием системы.
H/W Monitor (Монитор аппаратной части)
H/W Monitor (Монитор аппаратной части)
Этот пункт отображает состояние аппаратной части ПК.
BIOS Setting Password (Пароль доступа к настройкам BIOS)
BIOS Setting Password (Пароль доступа к настройкам BIOS)
Это меню используется, чтобы задать пароль.
Cell Menu (Меню узла “Cell”)
Cell Menu (Меню узла “Cell”)
Это меню позволяет управлять тактовыми частотами и напряжениями при разгоне
системы.
M-Flash
▶
▶
▶
▶
▶
▶
▶
▶
M-Flash
Используется для чтения/ прошивки BIOS с внешнего накопителя (только FAT/
FAT32).

